Monograph: Our Lady of Montserrat Chapel

Page 1


Seattle Preparatory School

Our Lady of Montserrat Chapel

OUR LADY OF MONTSERRAT CHAPEL

Our Lady of Montserrat Chapel serves as a sacred, contemplative space on the campus of a Jesuit college preparatory school in Seattle, Washington. The new chapel supports the mission of the school and reflects the traditions and history of the Jesuit order. Inspired by the ruins of 17th-century South American missions, the design blends the strength and permanence of stone with the warmth and simplicity of wood in modern Pacific Northwest architecture to create an open and inviting space. Although only a modest 1,600 square feet, the chapel has transformed the character of the school for students, faculty, staff, and the community at large by creating a spiritual heart for the campus.

PRELIMINARY DESIGN CONCEPTS

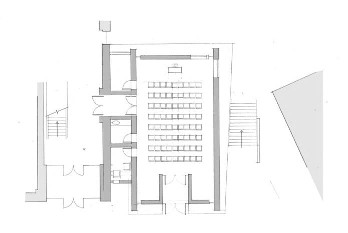
The project site was highly constrained, requiring the chapel to fit on the footprint of an existing structure.

Preliminary concepts explored three options, with option No. 3 selected.

Reflection

Mission

The ruins of Jesuit missions, like those at San Ignacio Miní in Argentina, inspired the selected design concept.
Concept rendering of chapel interior looking north
Rendering of selected design concept

SITE

PLAN

The placement of the new chapel — which hosts classes, mass, and individual reflection — complements the radius of the existing lawn and creates a campus focal point with a strong visual connection to the surrounding neighborhood.

Our Lady of Montserrat Chapel
Plaza
McHugh Gymnasium
Paccar Commons
McDonnell Hall
Old Adelphia Hall
Healy Theater
St. Ignatius Hall
Adelphia Memorial Hall
Church
Chapel of St. Ignatius, Seattle,
Steven Holl
Loyola Jesuit Center, Portland, OR Hennebery Eddy Architects
Tadao Ando
Hennebery Eddy Architects

SITE PLACEMENT

The chapel takes advantage of the steep site to immerse visitors in the canopy of existing trees. In winter months, this prospect frames views to Portage Bay.

MATERIAL FUNCTIONS

The chapel is anchored to the site by a 12-foot-high battered sandstone wall cascading over the edge of the hillside. To the south, a remnant of the wall extends into the lawn of the commons as a low sit wall, helping to establish a greater presence on campus. A board-formed concrete wall screens the quiet reflective interior from the active campus and signals the building’s identity via a cross-shaped void. Opposite the sandstone wall, a band of ancillary spaces separate the chapel from the adjacent classroom building. Wood tongue-and-groove decking over glu-lam beams form the chapel’s shed roof. Large wood windows wrap three sides to complete the enclosure while providing ample natural light and ventilation.

BUILDING CHARACTER

In early mornings and late evenings, the chapel is dramatically present on campus, with accent lights highlighting the warmth of the entry door and texture of the sandstone wall.

CRAFT

The Jesuit tradition of craft is emphasized throughout the building details. This is most prominent in the custom entry door, pivot-mounted and scribed to meet the battered stone wall. The door is accented with solid bronze inlays and a hand-forged bronze pull.

Handcrafted elements

BAPTISMAL POOL

Behind the exterior screen wall, a baptismal font rests in a shallow pool that reflects sunlight into the entry and creates a tranquil passage to the chapel. Here, three large lift-and-slide doors create the opportunity for open-air services.

LITURGICAL ELEMENTS

Liturgical elements, including the altar, ambo, tabernacle, and crucifix, were designed in collaboration with Francis Nguyen, SJ. The elements were fabricated using old-growth fir salvaged from a recently demolished campus building.

Above: concept sketch of ambo Opposite: ambo and crucifix

View from chapel to Adelphia Memorial Hall
chapel entrance from Adelphia Memorial Hall

WOOD

The inherent functional, aesthetic, and healing qualities of wood were essential in crafting a warm and inviting environment for contemplation and mindfulness. Seating in the chapel is simple molded wood chairs, which are beautiful, highly durable, and comfortable.

The quiet room

TREE CANOPY | LIGHTS

Influenced by Pacific Northwest vernacular, a dramatic wood window wall frames views into a forest canopy.

Inspired by candle light in traditional Jesuit missions, the pendant lights were custom designed and hand-blown by a local artisan.

STAINED GLASS

The stained glass installation depicts the journey of St. Ignatius to Montserrat and is installed on axis with the chapel entrance. This element also screens adjacent mechanical equipment.

Chapel interior looking north

SEATTLE PREPARATORY SCHOOL

President: Kent Hickey

Director of Development: Liz Brennan

Director of Facilities: John O’Neil

Design Collaborator: Francis Nguyen, SJ

Parent, Campaign Committee Representative: Jay Henning

HENNEBERY EDDY ARCHITECTS

Principal-in-Charge: Alan Osborne, AIA

Project Architect: Will Ives, AIA

Project Team: Doug Reimer, AIA; Alexander Lungershausen, AIA; Chandra Robinson

CONSULTANTS

Landscape: Walker Macy

Civil: Coughlin Porter Lungen

Structural: Coughlin Porter Lundeen

Mechanical: PAE Consulting Engineers

Electrical: PAE Consulting Engineers

Plumbing: PAE Consulting Engineers

CONTRACTOR

Sellen Construction Company

Photography: Josh Partee Photography

Photography: Andrew Pogue Photography

PROJECT INFORMATION

Client: Seattle Preparatory School

Location: Seattle, Washington

Building Use: Chapel, Multipurpose

Building Area: 1,600 sf

Construction Type: I-B (IBC 2009)

Occupancy Type: A

Construction Cost: $1.4M

Cost/sf: $875

Completion Date: September 2014

HEA Project Number: 13032

AWARDS

Religious Architecture Honor Award — New Facilities, Interfaith Forum on Religion, Art, and Architecture (IFRAA) and Faith & Form Magazine, 2015

Wood Design Award, Educational Design, US WoodWorks, 2015

Turn static files into dynamic content formats.

Create a flipbook
Issuu converts static files into: digital portfolios, online yearbooks, online catalogs, digital photo albums and more. Sign up and create your flipbook.