2390 W Beall, Unit 3 Property Book

Page 1

1800 WEST KOCH, BOZEMAN, MT 59715 POST OFFICE BOX 396 – BOZEMAN, MT 59771-0396 PHONE (406) 587-5563 – (406) 586-3114 - 1-800-405-5299 FAX (406) 587-8038

PROPERTY PROFILE Legal Description: Lessley Estates Condominium, Unit 15 Agency: Hart Real Estate Customer: Lori Hart Date: September 23, 2022 This report is provided to assist you with your new listing. The information contained herein is not the result of a title examination and is not a commitment to insure. So that your closing will not be delayed by title problems, you should order a Commitment for Title insurance as soon as you have a signed Buy/Sell. We appreciate the opportunity to serve you and look forward to working with you again. WE APPRECIATE YOUR BUSINESS

Hart Real Estate

Hello Lori,

Please find attached the Property Profile you requested for 2390 W Beall Street, Unit 3.

It has been a pleasure to be of service to you. Should you require another Property Profile at any time in the future, please do not hesitate to give us a call at (406) 587-5563

Sincerely, Daniel Stratton Customer Service 406-587-5563

September 23, 2022

VESTING DEED

ORIGINAL DOCUMENT MAY HAVE POOR PHOTOGRAPHIC QUALITY THIS DOCUMENT IS PROVIDED WITHOUT BENEFIT OF A TITLE EXAMINATION. NO LIABILITY IS ASSUMED FOR THE COMPLETENESS THEREOF. PLATS MAY OR MAY NOT BE A SURVEY OF THE LAND DEPICTED HEREIN. THE COMPANY EXPRESSLY DISCLAIMS ANY LIABILITY FOR ALLEGED LOSS OR DAMAGE WHICH MAY RESULT FROM RELIANCE UPON THEM.

TAX RECORD AND BILL

Shopping Cart: 0 items

Property/Parcel TaxID: RGG53701

Status: Current

Receipt: 53701

2021 Owner(s): SIEWERT DAVID E

2021 Value:

Market: $335,300 Taxable: $4,526

2021 Taxes:

Mailing Address: 2390 W BEALL ST APT 3 BOZEMAN, MT 597183105

Levy District: 0350-08, 7C BOZEMAN(C)BZP

First Half: $1,299.42 Due: 12/15/2021

Second Half: $1,299.40 Due: 5/31/2022

Total: $2,598.82

2021 Payments:

First Half: $1,299.42

Second Half: $1,299.40

Total: $2,598.82

(May include penalty & interest)

2021 Legal Records:

Geo Code: 06-0798-11-1-16-25-7015 Instru#: 2503129 Date: 2015-02-03

Property address: 2390 W BEALL ST UNIT 3 TRS: T02 S, R05 E, Sec. 11

Legal: LESSLEY ESTATES CONDO, S11, T02 S, R05 E, UNIT 15

Note:

If you are having trouble using this search page, please contact our office at 406-582-3030 - Extension #2.

If you believe there is an error on the property owner’s name, geo-code, address, etc.., or have questions regarding your market and/or taxable value, please contact the Montana Department of Revenue – Bozeman Office, at 406-582-3400.

*The accuracy of this data is not guaranteed. Property tax data was last updated 09/23/2022 01:30 PM.

Payments can be sent to: Gallatin County Treasurer

[$0.00]
Tyler Technologies - iTax https://itax.gallatin.mt.gov/detail.aspx?taxid=RGG53701 1 of 2 9/23/2022, 2:05 PM ORIGINAL DOCUMENT MAY HAVE POOR PHOTOGRAPHIC QUALITY THIS DOCUMENT IS PROVIDED WITHOUT BENEFIT OF A TITLE EXAMINATION. NO LIABILITY IS ASSUMED FOR THE COMPLETENESS THEREOF. PLATS MAY OR MAY NOT BE A SURVEY OF THE LAND DEPICTED HEREIN. THE COMPANY EXPRESSLY DISCLAIMS ANY LIABILITY FOR ALLEGED LOSS OR DAMAGE WHICH MAY RESULT FROM RELIANCE UPON THEM.

Market Value:$335,300

Taxable Value:$4,526

are having trouble using this

please contact our office at 406-582-3030

Extension #2.

believe there is an error on the property owner’s name, geo-code, address, etc.., or have questions regarding your market and/or taxable value,

contact the Montana Department of Revenue – Bozeman Office, at 406-582-3400.

Shopping Cart: 0 items [$0.00] Note: If you
search page,
-
If you
please
*The accuracy of this data is not guaranteed. Property tax data was last updated 09/23/2022 01:30 PM. Property/Parcel TaxID: RGG53701 Status: Current Type: RE Owner: SIEWERT DAVID E Value Breakdown: YearProperty/Parcel TaxIDClass Code Description Market ValueTaxable Value 2021RGG53701 2201 Residential City/Town Lots $7,654 $103 2021RGG53701 3501 Improvements on Residential City/Town Lots $327,646 $4,423 Current
Current
Tyler Technologies - iTax https://itax.gallatin.mt.gov/classcodes.aspx 1 of 2 9/23/2022, 2:05 PM ORIGINAL DOCUMENT MAY HAVE POOR PHOTOGRAPHIC QUALITY THIS DOCUMENT IS PROVIDED WITHOUT BENEFIT OF A TITLE EXAMINATION. NO LIABILITY IS ASSUMED FOR THE COMPLETENESS THEREOF. PLATS MAY OR MAY NOT BE A SURVEY OF THE LAND DEPICTED HEREIN. THE COMPANY EXPRESSLY DISCLAIMS ANY LIABILITY FOR ALLEGED LOSS OR DAMAGE WHICH MAY RESULT FROM RELIANCE UPON THEM.

Tax Year: 2021 Property/Parcel TaxID: RGG53701

Status: Current

RE

Stat#

53701CITY/RURAL

1st Half

2nd Half

CITY/RURAL TAXES $348.77 $348.77

53701COUNTY COUNTY TAXES $103.24 $103.24

53701PUBLIC SAFETY PUBLIC SAFETY $96.45 $96.45

53701SCHOOL

LOCAL SCHOOL TAXES $504.96 $504.96

53701SPECIAL: 0110 GLTN CONSV DIST .7 MILLS $1.59 $1.58

53701SPECIAL: 0112 GLTN CO WTR QUALITY (FEE) $3.30 $3.30

53701SPECIAL: 0300 OPEN SPACE BND 4.04 MILLS $9.15 $9.14

53701STATE SCHOOL STATE SCHOOL TAXES $214.99 $214.99

53701UNIVERSITY UNIVERSITY/COLLEGE $16.97 $16.97

1st Half Total: $1,299.42

2nd Half Total: $1,299.40

Total Tax: $2,598.82

Note:

If you are having trouble using this search page, please contact our office at 406-582-3030 - Extension #2.

If you believe there is an error on the property owner’s name, geo-code, address, etc.., or have questions regarding your market and/or taxable value, please contact the Montana Department of Revenue – Bozeman Office, at 406-582-3400.

Payments can be sent to:

Gallatin County Treasurer 311 West Main, Room 103 Bozeman, MT 59715

Please include your parcel/taxpayer ID# and

Please direct any questions to: (406)582-3030 or treasurer@gallatin.mt.gov

Shopping Cart: 0 items [$0.00]
*The accuracy of this data is not guaranteed. Property tax data was last updated 09/23/2022 01:30 PM.
your phone number on your check.
Type:
Owner: SIEWERT DAVID E Tax Breakdown:
Kind Description
Tyler Technologies - iTax https://itax.gallatin.mt.gov/kindoftax.aspx 1 of 2 9/23/2022, 2:05 PM ORIGINAL DOCUMENT MAY HAVE POOR PHOTOGRAPHIC QUALITY THIS DOCUMENT IS PROVIDED WITHOUT BENEFIT OF A TITLE EXAMINATION. NO LIABILITY IS ASSUMED FOR THE COMPLETENESS THEREOF. PLATS MAY OR MAY NOT BE A SURVEY OF THE LAND DEPICTED HEREIN. THE COMPANY EXPRESSLY DISCLAIMS ANY LIABILITY FOR ALLEGED LOSS OR DAMAGE WHICH MAY RESULT FROM RELIANCE UPON THEM.

History:

2021 53701 10/27/2021 $2,598.82 12/14/2021 12/14/2021

$1,299.42 $1,299.40

2020 36794 11/05/2020 $2,518.44 11/24/2020 11/24/2020 $1,259.22 $1,259.22

2019 53701 10/30/2019 $2,575.74 11/27/2019 7/31/2020 $1,287.88 $1,334.80

2018 53701 10/31/2018 $2,378.59 11/26/2018 7/16/2019 $1,192.60 $1,229.53

2017 53701 10/31/2017 $2,223.92 11/29/2017 11/29/2017 $1,115.27 $1,108.65

2016 53701 11/16/2016 $1,860.61 2/24/2017 7/6/2017 $968.39 $954.69

2015 53701 10/31/2015 $1,862.60 12/1/2015 7/12/2016 $934.61 $957.24

If you are having trouble using this

please contact our office at 406-582-3030

If you believe there is an error

the property owner’s name, geo-code, address, etc.., or have questions regarding your market and/or taxable value, please contact the Montana

of Revenue – Bozeman Office, at 406-582-3400.

Shopping Cart: 0 items [$0.00] ** Paid Amount may include penalty & interest Note:
search page,
- Extension #2.
on
Department
*The accuracy of this data is not guaranteed. Property tax data was last updated 09/23/2022 01:30 PM. Payments can be sent to: Gallatin County Treasurer Property/Parcel TaxID: RGG53701 Status: Current Type: RE Owner: SIEWERT DAVID E
Tax Year Statement# Bill Date Bill Amount Date Paid ** Paid Amount Notes
Tyler Technologies - iTax https://itax.gallatin.mt.gov/history.aspx 1 of 2 9/23/2022, 2:05 PM ORIGINAL DOCUMENT MAY HAVE POOR PHOTOGRAPHIC QUALITY THIS DOCUMENT IS PROVIDED WITHOUT BENEFIT OF A TITLE EXAMINATION. NO LIABILITY IS ASSUMED FOR THE COMPLETENESS THEREOF. PLATS MAY OR MAY NOT BE A SURVEY OF THE LAND DEPICTED HEREIN. THE COMPANY EXPRESSLY DISCLAIMS ANY LIABILITY FOR ALLEGED LOSS OR DAMAGE WHICH MAY RESULT FROM RELIANCE UPON THEM.
Shopping Cart: 0 items [$0.00] Note: Property/Parcel TaxID: RGG53701 Status: Current Type: RE Owner: SIEWERT DAVID E Payoff Calendar: This calendar is for inquiry purposes only. Property taxes can only be paid online using today as the transaction date. To begin paying your taxes, click the "Detail" button above (Or the back arrow on your browser). Aug September 2022 Oct Sun Mon Tue Wed Thu Fri Sat 28 29 30 31 1 2 3 4 5 6 7 8 9 10 11 12 13 14 15 16 17 18 19 20 21 22 23 24 25 26 27 28 29 30 1 2 3 4 5 6 7 8 Tyler Technologies - iTax https://itax.gallatin.mt.gov/PayoffCalendar.aspx 1 of 2 9/23/2022, 2:05 PM ORIGINAL DOCUMENT MAY HAVE POOR PHOTOGRAPHIC QUALITY THIS DOCUMENT IS PROVIDED WITHOUT BENEFIT OF A TITLE EXAMINATION. NO LIABILITY IS ASSUMED FOR THE COMPLETENESS THEREOF. PLATS MAY OR MAY NOT BE A SURVEY OF THE LAND DEPICTED HEREIN. THE COMPANY EXPRESSLY DISCLAIMS ANY LIABILITY FOR ALLEGED LOSS OR DAMAGE WHICH MAY RESULT FROM RELIANCE UPON THEM.

GENERAL PARCEL

INFORMATION

Property Record Card

Summary

Primary Information

Property Category: RP Subcategory: Residential Property Geocode: 06-0798-11-1-16-25-7015

Assessment Code: 00RGG53701

Primary Owner: PropertyAddress: 2390 W BEALL ST

SIEWERT DAVID E

2390 W BEALL ST APT 3

COS Parcel: BOZEMAN, MT 59718-3105

NOTE: See the Owner tab for all owner information Certificate of Survey: Subdivision: LESSLEY ESTATES CONDO

Legal Description:

LESSLEY ESTATES CONDO, S11, T02 S, R05 E, UNIT 15

Last Modified: 7/14/2022 4:23:18 AM

General Property Information

Neighborhood: 206.700.K

Property Type: KU - Condominium Urban Living Units: 1 Levy District: 06-035008-7C 08

Zoning: Ownership %: 100

Linked Property:

No linked properties exist for this property Exemptions: No exemptions exist for this property

Condo Ownership: General: 2.083 Limited: 0

Property Factors

Topography: Fronting: Utilities: Parking Type: Access: Parking Quantity: Location: Parking Proximity:

Land Summary

Land Type Acres Value

Grazing 0.000 00.00

Fallow 0.000 00.00

Irrigated 0.000 00.00 Continuous Crop 0.000 00.00

Wild Hay 0.000 00.00

Farmsite 0.000 00.00

ROW 0.000 00.00

NonQual Land 0.000 00.00

Total Ag Land 0.000 00.00

Total Forest Land 0.000 00.00

Total Market Land 0.000 00.00

Deed Information: Deed DateBookPageRecorded

Type 2/3/2015 2/3/2015 2503129 Termination of Joint Tenancy by Death 2/3/2015 2/3/2015 2503130 Beneficiary Deed

DateDocument Number Document
PrintPropertyRecordCard http://svc.mt.gov/msl/MTCadastral/PrintPropertyRecordCard/GetPrope... 1 of 3 9/23/2022, 2:05 PM ORIGINAL DOCUMENT MAY HAVE POOR PHOTOGRAPHIC QUALITY THIS DOCUMENT IS PROVIDED WITHOUT BENEFIT OF A TITLE EXAMINATION. NO LIABILITY IS ASSUMED FOR THE COMPLETENESS THEREOF. PLATS MAY OR MAY NOT BE A SURVEY OF THE LAND DEPICTED HEREIN. THE COMPANY EXPRESSLY DISCLAIMS ANY LIABILITY FOR ALLEGED LOSS OR DAMAGE WHICH MAY RESULT FROM RELIANCE UPON THEM.

Owners Party

Default Information: SIEWERT DAVID E

W BEALL ST APT 3

Ownership %: 100

Primary Owner: "Yes"

Interest Type: Fee Simple

Last Modified: 2/18/2015 12:00:47 PM

Other Names

GROVER CYNTHIA ANN & BENF BENF - Beneficiary Deed

Addresses

other address

SIEWERT MARY BETH BENF BENF - Beneficiary Deed No other address

SUSAN L & BENF BENF - Beneficiary Deed No other address

Appraisals

Appraisal History

Tax Year Land Value Building Value Total Value Method

7654 327646 335300 MKT

7654 327646 335300 MKT

12817 281683 294500 MKT Market Land Market Land Info

market land info exists for this parcel

Dwellings

Existing Dwellings

Dwelling Type Style Year Built Condominium 22 - Condo - Rowhouse 2005

Dwelling Information

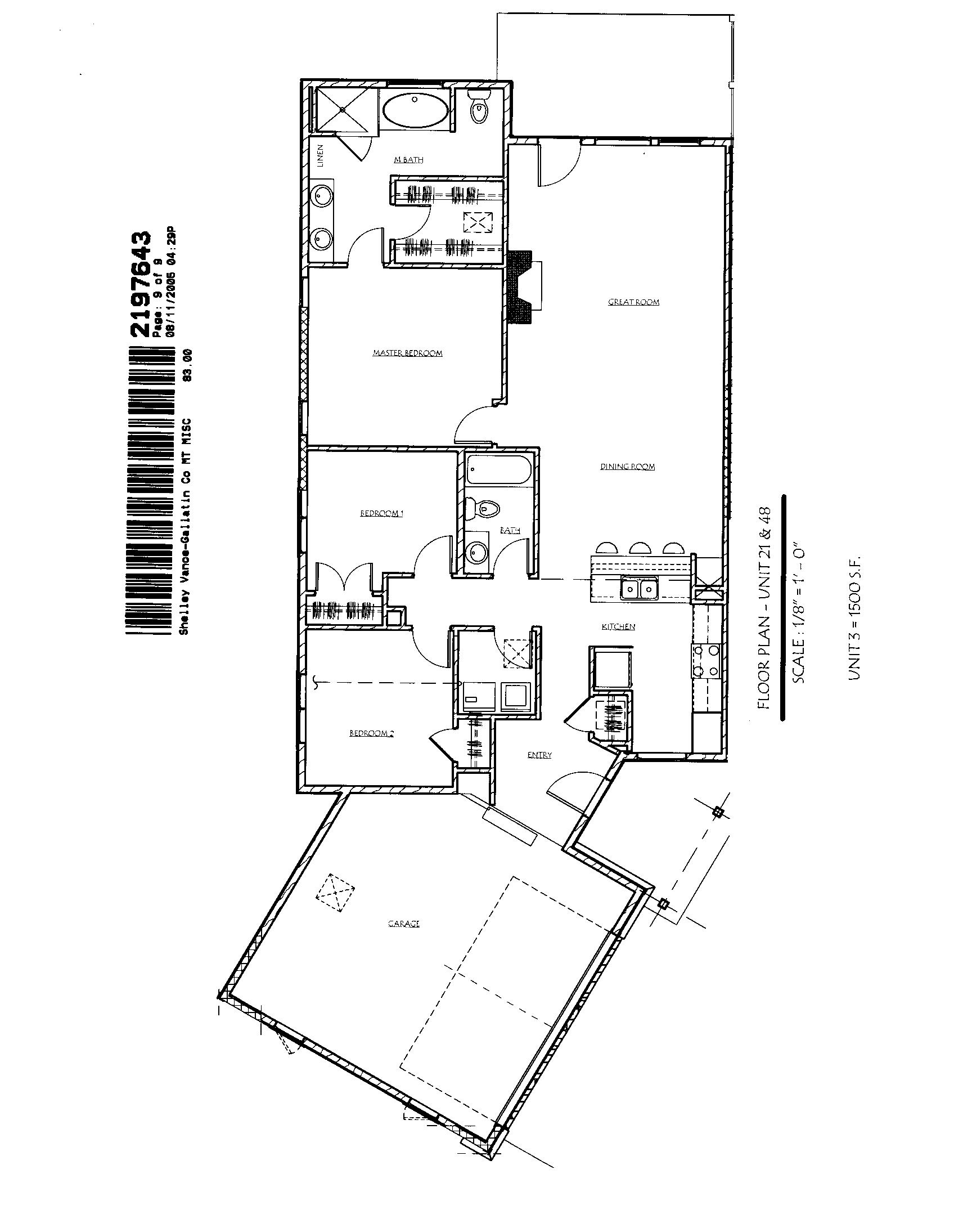
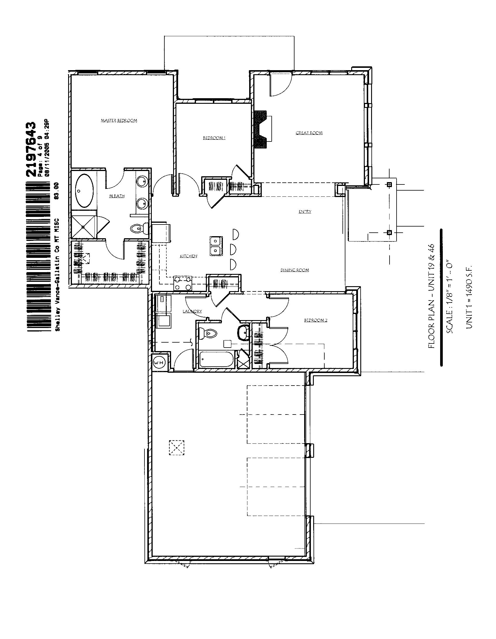
Residential Type: Condominium Style: 22 - Condo - Rowhouse Year Built: 2005 Roof Material: 10 - Asphalt Shingle

Effective Year: 0 Roof Type: 3 - Gable Story Height: 1.0 Attic Type: 0

Grade: 6

Exterior Walls: 1 - Frame

Class Code: 3501 Exterior Wall Finish: 3 - Masonite Year Remodeled: 0 Degree Remodeled:

Mobile Home Details

Manufacturer: Serial #: Width: 0 Model: Length: 0

Basement Information

Foundation: 2 - Concrete Finished Area: 0 Daylight: Basement Type: 0 - None Quality:

Heating/Cooling Information

Type: Central/AC System Type: 5 - Forced Air Fuel Type: 3 - Gas Heated Area: 0

11/6/2009 11/6/2009 2346365D Warranty Deed 9/18/20052202243D
#1
2390
Other
Name Type
No
MCGUIRE
2022
2021
2020
No
PrintPropertyRecordCard http://svc.mt.gov/msl/MTCadastral/PrintPropertyRecordCard/GetPrope... 2 of 3 9/23/2022, 2:05 PM ORIGINAL DOCUMENT MAY HAVE POOR PHOTOGRAPHIC QUALITY THIS DOCUMENT IS PROVIDED WITHOUT BENEFIT OF A TITLE EXAMINATION. NO LIABILITY IS ASSUMED FOR THE COMPLETENESS THEREOF. PLATS MAY OR MAY NOT BE A SURVEY OF THE LAND DEPICTED HEREIN. THE COMPANY EXPRESSLY DISCLAIMS ANY LIABILITY FOR ALLEGED LOSS OR DAMAGE WHICH MAY RESULT FROM RELIANCE UPON THEM.

Living Accomodations

Bedrooms: 3

Full Baths: 2 Addl Fixtures: 5

Family Rooms: 0 Half Baths: 0

Additional Information

Fireplaces:

Stacks: 0 Stories: Openings: 0 Prefab/Stove: 1

Garage Capacity: 0 Cost & Design: 0 Flat Add: 0 % Complete: 0 Description: Description:

Dwelling Amenities

View: Access: Area Used In Cost

Basement: 0 Additional Floors: 0

Attic: 0

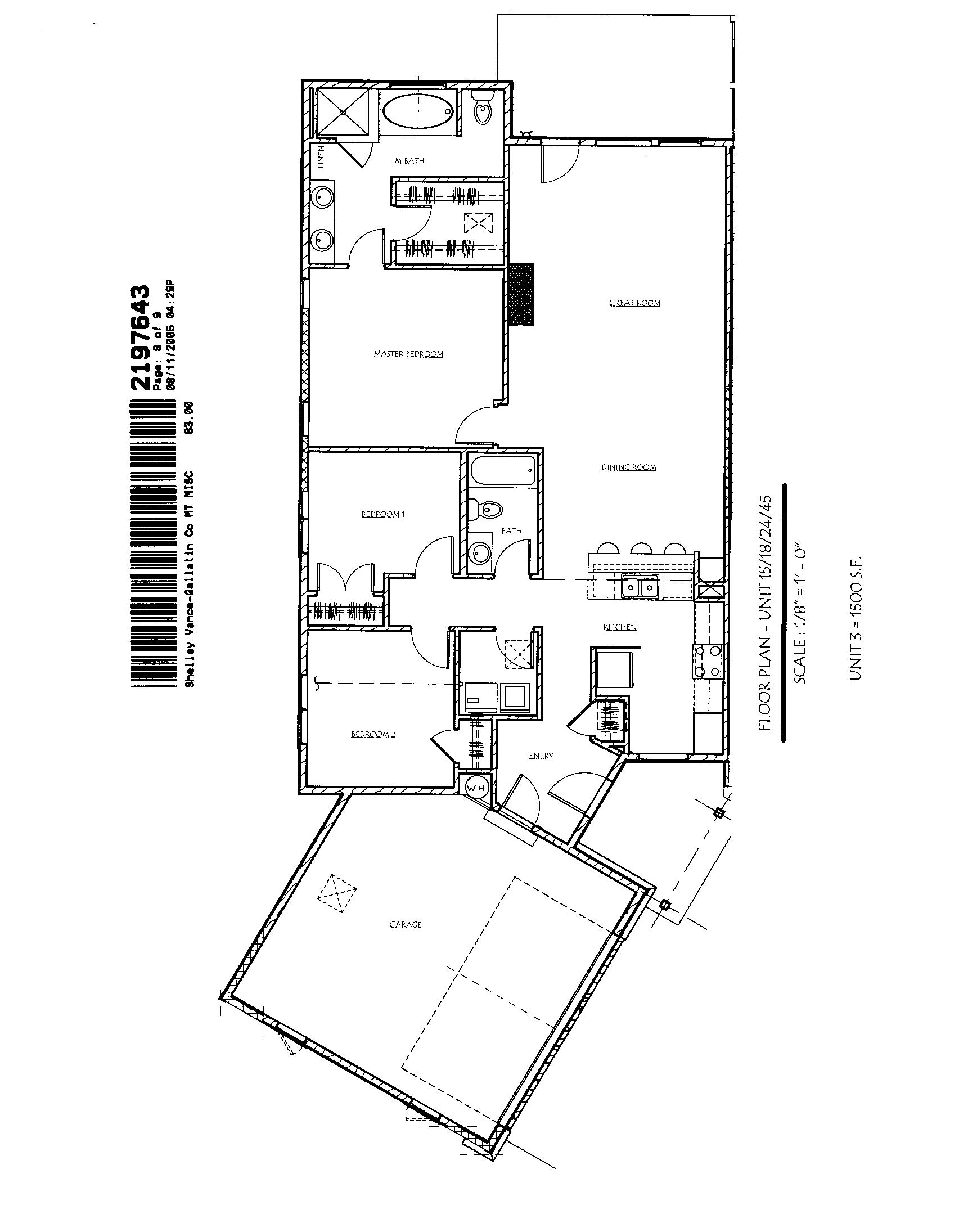
First Floor: 1500 Half Story: 0 Unfinished Area: 0 Second Floor: 0 SFLA: 1500

Depreciation Information

CDU: Physical Condition: Average (7)

Utility: Average (7) Desirability: Property: Average (7) Location: Average (7)

Depreciation Calculation

Age: 15 Pct Good: 0.83

Additions / Other Features

Additions

RCNLD: 311670

Lower First SecondThirdAreaYearCost 21 - Porch, Masonry, Open 70 0 2098 19 - Garage, Frame, Finished 462 0 23595 34 - Deck, Concrete 140 0 689

There are no other features for this dwelling

Other Buildings/Improvements

Outbuilding/Yard Improvement #1

Type: Residential Description: RPA2 - Concrete Quantity: 1 Year Built: 2005 Grade: A Condition: Functional: Class Code: 3501 Dimensions

Width/Diameter: Length: Size/Area: 972 Height: Bushels: Circumference:

Commercial

Existing Commercial Buildings

No commercial buildings exist for this parcel

Ag/Forest Land

Ag/Forest Land

No ag/forest land exists for this parcel

PrintPropertyRecordCard http://svc.mt.gov/msl/MTCadastral/PrintPropertyRecordCard/GetPrope... 3 of 3 9/23/2022, 2:05 PM ORIGINAL DOCUMENT MAY HAVE POOR PHOTOGRAPHIC QUALITY THIS DOCUMENT IS PROVIDED WITHOUT BENEFIT OF A TITLE EXAMINATION. NO LIABILITY IS ASSUMED FOR THE COMPLETENESS THEREOF. PLATS MAY OR MAY NOT BE A SURVEY OF THE LAND DEPICTED HEREIN. THE COMPANY EXPRESSLY DISCLAIMS ANY LIABILITY FOR ALLEGED LOSS OR DAMAGE WHICH MAY RESULT FROM RELIANCE UPON THEM.

COVENANTS

ORIGINAL DOCUMENT MAY HAVE POOR PHOTOGRAPHIC QUALITY THIS DOCUMENT IS PROVIDED WITHOUT BENEFIT OF A TITLE EXAMINATION. NO LIABILITY IS ASSUMED FOR THE COMPLETENESS THEREOF. PLATS MAY OR MAY NOT BE A SURVEY OF THE LAND DEPICTED HEREIN. THE COMPANY EXPRESSLY DISCLAIMS ANY LIABILITY FOR ALLEGED LOSS OR DAMAGE WHICH MAY RESULT FROM RELIANCE UPON THEM.
ORIGINAL DOCUMENT MAY HAVE POOR PHOTOGRAPHIC QUALITY THIS DOCUMENT IS PROVIDED WITHOUT BENEFIT OF A TITLE EXAMINATION. NO LIABILITY IS ASSUMED FOR THE COMPLETENESS THEREOF. PLATS MAY OR MAY NOT BE A SURVEY OF THE LAND DEPICTED HEREIN. THE COMPANY EXPRESSLY DISCLAIMS ANY LIABILITY FOR ALLEGED LOSS OR DAMAGE WHICH MAY RESULT FROM RELIANCE UPON THEM.
ORIGINAL DOCUMENT MAY HAVE POOR PHOTOGRAPHIC QUALITY THIS DOCUMENT IS PROVIDED WITHOUT BENEFIT OF A TITLE EXAMINATION. NO LIABILITY IS ASSUMED FOR THE COMPLETENESS THEREOF. PLATS MAY OR MAY NOT BE A SURVEY OF THE LAND DEPICTED HEREIN. THE COMPANY EXPRESSLY DISCLAIMS ANY LIABILITY FOR ALLEGED LOSS OR DAMAGE WHICH MAY RESULT FROM RELIANCE UPON THEM.
ORIGINAL DOCUMENT MAY HAVE POOR PHOTOGRAPHIC QUALITY THIS DOCUMENT IS PROVIDED WITHOUT BENEFIT OF A TITLE EXAMINATION. NO LIABILITY IS ASSUMED FOR THE COMPLETENESS THEREOF. PLATS MAY OR MAY NOT BE A SURVEY OF THE LAND DEPICTED HEREIN. THE COMPANY EXPRESSLY DISCLAIMS ANY LIABILITY FOR ALLEGED LOSS OR DAMAGE WHICH MAY RESULT FROM RELIANCE UPON THEM.
ORIGINAL DOCUMENT MAY HAVE POOR PHOTOGRAPHIC QUALITY THIS DOCUMENT IS PROVIDED WITHOUT BENEFIT OF A TITLE EXAMINATION. NO LIABILITY IS ASSUMED FOR THE COMPLETENESS THEREOF. PLATS MAY OR MAY NOT BE A SURVEY OF THE LAND DEPICTED HEREIN. THE COMPANY EXPRESSLY DISCLAIMS ANY LIABILITY FOR ALLEGED LOSS OR DAMAGE WHICH MAY RESULT FROM RELIANCE UPON THEM.
ORIGINAL DOCUMENT MAY HAVE POOR PHOTOGRAPHIC QUALITY THIS DOCUMENT IS PROVIDED WITHOUT BENEFIT OF A TITLE EXAMINATION. NO LIABILITY IS ASSUMED FOR THE COMPLETENESS THEREOF. PLATS MAY OR MAY NOT BE A SURVEY OF THE LAND DEPICTED HEREIN. THE COMPANY EXPRESSLY DISCLAIMS ANY LIABILITY FOR ALLEGED LOSS OR DAMAGE WHICH MAY RESULT FROM RELIANCE UPON THEM.
ORIGINAL DOCUMENT MAY HAVE POOR PHOTOGRAPHIC QUALITY THIS DOCUMENT IS PROVIDED WITHOUT BENEFIT OF A TITLE EXAMINATION. NO LIABILITY IS ASSUMED FOR THE COMPLETENESS THEREOF. PLATS MAY OR MAY NOT BE A SURVEY OF THE LAND DEPICTED HEREIN. THE COMPANY EXPRESSLY DISCLAIMS ANY LIABILITY FOR ALLEGED LOSS OR DAMAGE WHICH MAY RESULT FROM RELIANCE UPON THEM.
ORIGINAL DOCUMENT MAY HAVE POOR PHOTOGRAPHIC QUALITY THIS DOCUMENT IS PROVIDED WITHOUT BENEFIT OF A TITLE EXAMINATION. NO LIABILITY IS ASSUMED FOR THE COMPLETENESS THEREOF. PLATS MAY OR MAY NOT BE A SURVEY OF THE LAND DEPICTED HEREIN. THE COMPANY EXPRESSLY DISCLAIMS ANY LIABILITY FOR ALLEGED LOSS OR DAMAGE WHICH MAY RESULT FROM RELIANCE UPON THEM.
ORIGINAL DOCUMENT MAY HAVE POOR PHOTOGRAPHIC QUALITY THIS DOCUMENT IS PROVIDED WITHOUT BENEFIT OF A TITLE EXAMINATION. NO LIABILITY IS ASSUMED FOR THE COMPLETENESS THEREOF. PLATS MAY OR MAY NOT BE A SURVEY OF THE LAND DEPICTED HEREIN. THE COMPANY EXPRESSLY DISCLAIMS ANY LIABILITY FOR ALLEGED LOSS OR DAMAGE WHICH MAY RESULT FROM RELIANCE UPON THEM.
ORIGINAL DOCUMENT MAY HAVE POOR PHOTOGRAPHIC QUALITY THIS DOCUMENT IS PROVIDED WITHOUT BENEFIT OF A TITLE EXAMINATION. NO LIABILITY IS ASSUMED FOR THE COMPLETENESS THEREOF. PLATS MAY OR MAY NOT BE A SURVEY OF THE LAND DEPICTED HEREIN. THE COMPANY EXPRESSLY DISCLAIMS ANY LIABILITY FOR ALLEGED LOSS OR DAMAGE WHICH MAY RESULT FROM RELIANCE UPON THEM.
ORIGINAL DOCUMENT MAY HAVE POOR PHOTOGRAPHIC QUALITY THIS DOCUMENT IS PROVIDED WITHOUT BENEFIT OF A TITLE EXAMINATION. NO LIABILITY IS ASSUMED FOR THE COMPLETENESS THEREOF. PLATS MAY OR MAY NOT BE A SURVEY OF THE LAND DEPICTED HEREIN. THE COMPANY EXPRESSLY DISCLAIMS ANY LIABILITY FOR ALLEGED LOSS OR DAMAGE WHICH MAY RESULT FROM RELIANCE UPON THEM.
ORIGINAL DOCUMENT MAY HAVE POOR PHOTOGRAPHIC QUALITY THIS DOCUMENT IS PROVIDED WITHOUT BENEFIT OF A TITLE EXAMINATION. NO LIABILITY IS ASSUMED FOR THE COMPLETENESS THEREOF. PLATS MAY OR MAY NOT BE A SURVEY OF THE LAND DEPICTED HEREIN. THE COMPANY EXPRESSLY DISCLAIMS ANY LIABILITY FOR ALLEGED LOSS OR DAMAGE WHICH MAY RESULT FROM RELIANCE UPON THEM.
ORIGINAL DOCUMENT MAY HAVE POOR PHOTOGRAPHIC QUALITY THIS DOCUMENT IS PROVIDED WITHOUT BENEFIT OF A TITLE EXAMINATION. NO LIABILITY IS ASSUMED FOR THE COMPLETENESS THEREOF. PLATS MAY OR MAY NOT BE A SURVEY OF THE LAND DEPICTED HEREIN. THE COMPANY EXPRESSLY DISCLAIMS ANY LIABILITY FOR ALLEGED LOSS OR DAMAGE WHICH MAY RESULT FROM RELIANCE UPON THEM.
ORIGINAL DOCUMENT MAY HAVE POOR PHOTOGRAPHIC QUALITY THIS DOCUMENT IS PROVIDED WITHOUT BENEFIT OF A TITLE EXAMINATION. NO LIABILITY IS ASSUMED FOR THE COMPLETENESS THEREOF. PLATS MAY OR MAY NOT BE A SURVEY OF THE LAND DEPICTED HEREIN. THE COMPANY EXPRESSLY DISCLAIMS ANY LIABILITY FOR ALLEGED LOSS OR DAMAGE WHICH MAY RESULT FROM RELIANCE UPON THEM.
ORIGINAL DOCUMENT MAY HAVE POOR PHOTOGRAPHIC QUALITY THIS DOCUMENT IS PROVIDED WITHOUT BENEFIT OF A TITLE EXAMINATION. NO LIABILITY IS ASSUMED FOR THE COMPLETENESS THEREOF. PLATS MAY OR MAY NOT BE A SURVEY OF THE LAND DEPICTED HEREIN. THE COMPANY EXPRESSLY DISCLAIMS ANY LIABILITY FOR ALLEGED LOSS OR DAMAGE WHICH MAY RESULT FROM RELIANCE UPON THEM.
ORIGINAL DOCUMENT MAY HAVE POOR PHOTOGRAPHIC QUALITY THIS DOCUMENT IS PROVIDED WITHOUT BENEFIT OF A TITLE EXAMINATION. NO LIABILITY IS ASSUMED FOR THE COMPLETENESS THEREOF. PLATS MAY OR MAY NOT BE A SURVEY OF THE LAND DEPICTED HEREIN. THE COMPANY EXPRESSLY DISCLAIMS ANY LIABILITY FOR ALLEGED LOSS OR DAMAGE WHICH MAY RESULT FROM RELIANCE UPON THEM.
ORIGINAL DOCUMENT MAY HAVE POOR PHOTOGRAPHIC QUALITY THIS DOCUMENT IS PROVIDED WITHOUT BENEFIT OF A TITLE EXAMINATION. NO LIABILITY IS ASSUMED FOR THE COMPLETENESS THEREOF. PLATS MAY OR MAY NOT BE A SURVEY OF THE LAND DEPICTED HEREIN. THE COMPANY EXPRESSLY DISCLAIMS ANY LIABILITY FOR ALLEGED LOSS OR DAMAGE WHICH MAY RESULT FROM RELIANCE UPON THEM.
ORIGINAL DOCUMENT MAY HAVE POOR PHOTOGRAPHIC QUALITY THIS DOCUMENT IS PROVIDED WITHOUT BENEFIT OF A TITLE EXAMINATION. NO LIABILITY IS ASSUMED FOR THE COMPLETENESS THEREOF. PLATS MAY OR MAY NOT BE A SURVEY OF THE LAND DEPICTED HEREIN. THE COMPANY EXPRESSLY DISCLAIMS ANY LIABILITY FOR ALLEGED LOSS OR DAMAGE WHICH MAY RESULT FROM RELIANCE UPON THEM.
ORIGINAL DOCUMENT MAY HAVE POOR PHOTOGRAPHIC QUALITY THIS DOCUMENT IS PROVIDED WITHOUT BENEFIT OF A TITLE EXAMINATION. NO LIABILITY IS ASSUMED FOR THE COMPLETENESS THEREOF. PLATS MAY OR MAY NOT BE A SURVEY OF THE LAND DEPICTED HEREIN. THE COMPANY EXPRESSLY DISCLAIMS ANY LIABILITY FOR ALLEGED LOSS OR DAMAGE WHICH MAY RESULT FROM RELIANCE UPON THEM.
ORIGINAL DOCUMENT MAY HAVE POOR PHOTOGRAPHIC QUALITY THIS DOCUMENT IS PROVIDED WITHOUT BENEFIT OF A TITLE EXAMINATION. NO LIABILITY IS ASSUMED FOR THE COMPLETENESS THEREOF. PLATS MAY OR MAY NOT BE A SURVEY OF THE LAND DEPICTED HEREIN. THE COMPANY EXPRESSLY DISCLAIMS ANY LIABILITY FOR ALLEGED LOSS OR DAMAGE WHICH MAY RESULT FROM RELIANCE UPON THEM.
ORIGINAL DOCUMENT MAY HAVE POOR PHOTOGRAPHIC QUALITY THIS DOCUMENT IS PROVIDED WITHOUT BENEFIT OF A TITLE EXAMINATION. NO LIABILITY IS ASSUMED FOR THE COMPLETENESS THEREOF. PLATS MAY OR MAY NOT BE A SURVEY OF THE LAND DEPICTED HEREIN. THE COMPANY EXPRESSLY DISCLAIMS ANY LIABILITY FOR ALLEGED LOSS OR DAMAGE WHICH MAY RESULT FROM RELIANCE UPON THEM.
ORIGINAL DOCUMENT MAY HAVE POOR PHOTOGRAPHIC QUALITY THIS DOCUMENT IS PROVIDED WITHOUT BENEFIT OF A TITLE EXAMINATION. NO LIABILITY IS ASSUMED FOR THE COMPLETENESS THEREOF. PLATS MAY OR MAY NOT BE A SURVEY OF THE LAND DEPICTED HEREIN. THE COMPANY EXPRESSLY DISCLAIMS ANY LIABILITY FOR ALLEGED LOSS OR DAMAGE WHICH MAY RESULT FROM RELIANCE UPON THEM.
ORIGINAL DOCUMENT MAY HAVE POOR PHOTOGRAPHIC QUALITY THIS DOCUMENT IS PROVIDED WITHOUT BENEFIT OF A TITLE EXAMINATION. NO LIABILITY IS ASSUMED FOR THE COMPLETENESS THEREOF. PLATS MAY OR MAY NOT BE A SURVEY OF THE LAND DEPICTED HEREIN. THE COMPANY EXPRESSLY DISCLAIMS ANY LIABILITY FOR ALLEGED LOSS OR DAMAGE WHICH MAY RESULT FROM RELIANCE UPON THEM.
ORIGINAL DOCUMENT MAY HAVE POOR PHOTOGRAPHIC QUALITY THIS DOCUMENT IS PROVIDED WITHOUT BENEFIT OF A TITLE EXAMINATION. NO LIABILITY IS ASSUMED FOR THE COMPLETENESS THEREOF. PLATS MAY OR MAY NOT BE A SURVEY OF THE LAND DEPICTED HEREIN. THE COMPANY EXPRESSLY DISCLAIMS ANY LIABILITY FOR ALLEGED LOSS OR DAMAGE WHICH MAY RESULT FROM RELIANCE UPON THEM.
ORIGINAL DOCUMENT MAY HAVE POOR PHOTOGRAPHIC QUALITY THIS DOCUMENT IS PROVIDED WITHOUT BENEFIT OF A TITLE EXAMINATION. NO LIABILITY IS ASSUMED FOR THE COMPLETENESS THEREOF. PLATS MAY OR MAY NOT BE A SURVEY OF THE LAND DEPICTED HEREIN. THE COMPANY EXPRESSLY DISCLAIMS ANY LIABILITY FOR ALLEGED LOSS OR DAMAGE WHICH MAY RESULT FROM RELIANCE UPON THEM.
ORIGINAL DOCUMENT MAY HAVE POOR PHOTOGRAPHIC QUALITY THIS DOCUMENT IS PROVIDED WITHOUT BENEFIT OF A TITLE EXAMINATION. NO LIABILITY IS ASSUMED FOR THE COMPLETENESS THEREOF. PLATS MAY OR MAY NOT BE A SURVEY OF THE LAND DEPICTED HEREIN. THE COMPANY EXPRESSLY DISCLAIMS ANY LIABILITY FOR ALLEGED LOSS OR DAMAGE WHICH MAY RESULT FROM RELIANCE UPON THEM.
ORIGINAL DOCUMENT MAY HAVE POOR PHOTOGRAPHIC QUALITY THIS DOCUMENT IS PROVIDED WITHOUT BENEFIT OF A TITLE EXAMINATION. NO LIABILITY IS ASSUMED FOR THE COMPLETENESS THEREOF. PLATS MAY OR MAY NOT BE A SURVEY OF THE LAND DEPICTED HEREIN. THE COMPANY EXPRESSLY DISCLAIMS ANY LIABILITY FOR ALLEGED LOSS OR DAMAGE WHICH MAY RESULT FROM RELIANCE UPON THEM.
ORIGINAL DOCUMENT MAY HAVE POOR PHOTOGRAPHIC QUALITY THIS DOCUMENT IS PROVIDED WITHOUT BENEFIT OF A TITLE EXAMINATION. NO LIABILITY IS ASSUMED FOR THE COMPLETENESS THEREOF. PLATS MAY OR MAY NOT BE A SURVEY OF THE LAND DEPICTED HEREIN. THE COMPANY EXPRESSLY DISCLAIMS ANY LIABILITY FOR ALLEGED LOSS OR DAMAGE WHICH MAY RESULT FROM RELIANCE UPON THEM.
ORIGINAL DOCUMENT MAY HAVE POOR PHOTOGRAPHIC QUALITY THIS DOCUMENT IS PROVIDED WITHOUT BENEFIT OF A TITLE EXAMINATION. NO LIABILITY IS ASSUMED FOR THE COMPLETENESS THEREOF. PLATS MAY OR MAY NOT BE A SURVEY OF THE LAND DEPICTED HEREIN. THE COMPANY EXPRESSLY DISCLAIMS ANY LIABILITY FOR ALLEGED LOSS OR DAMAGE WHICH MAY RESULT FROM RELIANCE UPON THEM.
ORIGINAL DOCUMENT MAY HAVE POOR PHOTOGRAPHIC QUALITY THIS DOCUMENT IS PROVIDED WITHOUT BENEFIT OF A TITLE EXAMINATION. NO LIABILITY IS ASSUMED FOR THE COMPLETENESS THEREOF. PLATS MAY OR MAY NOT BE A SURVEY OF THE LAND DEPICTED HEREIN. THE COMPANY EXPRESSLY DISCLAIMS ANY LIABILITY FOR ALLEGED LOSS OR DAMAGE WHICH MAY RESULT FROM RELIANCE UPON THEM.
ORIGINAL DOCUMENT MAY HAVE POOR PHOTOGRAPHIC QUALITY THIS DOCUMENT IS PROVIDED WITHOUT BENEFIT OF A TITLE EXAMINATION. NO LIABILITY IS ASSUMED FOR THE COMPLETENESS THEREOF. PLATS MAY OR MAY NOT BE A SURVEY OF THE LAND DEPICTED HEREIN. THE COMPANY EXPRESSLY DISCLAIMS ANY LIABILITY FOR ALLEGED LOSS OR DAMAGE WHICH MAY RESULT FROM RELIANCE UPON THEM.
ORIGINAL DOCUMENT MAY HAVE POOR PHOTOGRAPHIC QUALITY THIS DOCUMENT IS PROVIDED WITHOUT BENEFIT OF A TITLE EXAMINATION. NO LIABILITY IS ASSUMED FOR THE COMPLETENESS THEREOF. PLATS MAY OR MAY NOT BE A SURVEY OF THE LAND DEPICTED HEREIN. THE COMPANY EXPRESSLY DISCLAIMS ANY LIABILITY FOR ALLEGED LOSS OR DAMAGE WHICH MAY RESULT FROM RELIANCE UPON THEM.
ORIGINAL DOCUMENT MAY HAVE POOR PHOTOGRAPHIC QUALITY THIS DOCUMENT IS PROVIDED WITHOUT BENEFIT OF A TITLE EXAMINATION. NO LIABILITY IS ASSUMED FOR THE COMPLETENESS THEREOF. PLATS MAY OR MAY NOT BE A SURVEY OF THE LAND DEPICTED HEREIN. THE COMPANY EXPRESSLY DISCLAIMS ANY LIABILITY FOR ALLEGED LOSS OR DAMAGE WHICH MAY RESULT FROM RELIANCE UPON THEM.
ORIGINAL DOCUMENT MAY HAVE POOR PHOTOGRAPHIC QUALITY THIS DOCUMENT IS PROVIDED WITHOUT BENEFIT OF A TITLE EXAMINATION. NO LIABILITY IS ASSUMED FOR THE COMPLETENESS THEREOF. PLATS MAY OR MAY NOT BE A SURVEY OF THE LAND DEPICTED HEREIN. THE COMPANY EXPRESSLY DISCLAIMS ANY LIABILITY FOR ALLEGED LOSS OR DAMAGE WHICH MAY RESULT FROM RELIANCE UPON THEM.
ORIGINAL DOCUMENT MAY HAVE POOR PHOTOGRAPHIC QUALITY THIS DOCUMENT IS PROVIDED WITHOUT BENEFIT OF A TITLE EXAMINATION. NO LIABILITY IS ASSUMED FOR THE COMPLETENESS THEREOF. PLATS MAY OR MAY NOT BE A SURVEY OF THE LAND DEPICTED HEREIN. THE COMPANY EXPRESSLY DISCLAIMS ANY LIABILITY FOR ALLEGED LOSS OR DAMAGE WHICH MAY RESULT FROM RELIANCE UPON THEM.
ORIGINAL DOCUMENT MAY HAVE POOR PHOTOGRAPHIC QUALITY THIS DOCUMENT IS PROVIDED WITHOUT BENEFIT OF A TITLE EXAMINATION. NO LIABILITY IS ASSUMED FOR THE COMPLETENESS THEREOF. PLATS MAY OR MAY NOT BE A SURVEY OF THE LAND DEPICTED HEREIN. THE COMPANY EXPRESSLY DISCLAIMS ANY LIABILITY FOR ALLEGED LOSS OR DAMAGE WHICH MAY RESULT FROM RELIANCE UPON THEM.
ORIGINAL DOCUMENT MAY HAVE POOR PHOTOGRAPHIC QUALITY THIS DOCUMENT IS PROVIDED WITHOUT BENEFIT OF A TITLE EXAMINATION. NO LIABILITY IS ASSUMED FOR THE COMPLETENESS THEREOF. PLATS MAY OR MAY NOT BE A SURVEY OF THE LAND DEPICTED HEREIN. THE COMPANY EXPRESSLY DISCLAIMS ANY LIABILITY FOR ALLEGED LOSS OR DAMAGE WHICH MAY RESULT FROM RELIANCE UPON THEM.
ORIGINAL DOCUMENT MAY HAVE POOR PHOTOGRAPHIC QUALITY THIS DOCUMENT IS PROVIDED WITHOUT BENEFIT OF A TITLE EXAMINATION. NO LIABILITY IS ASSUMED FOR THE COMPLETENESS THEREOF. PLATS MAY OR MAY NOT BE A SURVEY OF THE LAND DEPICTED HEREIN. THE COMPANY EXPRESSLY DISCLAIMS ANY LIABILITY FOR ALLEGED LOSS OR DAMAGE WHICH MAY RESULT FROM RELIANCE UPON THEM.
ORIGINAL DOCUMENT MAY HAVE POOR PHOTOGRAPHIC QUALITY THIS DOCUMENT IS PROVIDED WITHOUT BENEFIT OF A TITLE EXAMINATION. NO LIABILITY IS ASSUMED FOR THE COMPLETENESS THEREOF. PLATS MAY OR MAY NOT BE A SURVEY OF THE LAND DEPICTED HEREIN. THE COMPANY EXPRESSLY DISCLAIMS ANY LIABILITY FOR ALLEGED LOSS OR DAMAGE WHICH MAY RESULT FROM RELIANCE UPON THEM.
ORIGINAL DOCUMENT MAY HAVE POOR PHOTOGRAPHIC QUALITY THIS DOCUMENT IS PROVIDED WITHOUT BENEFIT OF A TITLE EXAMINATION. NO LIABILITY IS ASSUMED FOR THE COMPLETENESS THEREOF. PLATS MAY OR MAY NOT BE A SURVEY OF THE LAND DEPICTED HEREIN. THE COMPANY EXPRESSLY DISCLAIMS ANY LIABILITY FOR ALLEGED LOSS OR DAMAGE WHICH MAY RESULT FROM RELIANCE UPON THEM.
ORIGINAL DOCUMENT MAY HAVE POOR PHOTOGRAPHIC QUALITY THIS DOCUMENT IS PROVIDED WITHOUT BENEFIT OF A TITLE EXAMINATION. NO LIABILITY IS ASSUMED FOR THE COMPLETENESS THEREOF. PLATS MAY OR MAY NOT BE A SURVEY OF THE LAND DEPICTED HEREIN. THE COMPANY EXPRESSLY DISCLAIMS ANY LIABILITY FOR ALLEGED LOSS OR DAMAGE WHICH MAY RESULT FROM RELIANCE UPON THEM.
ORIGINAL DOCUMENT MAY HAVE POOR PHOTOGRAPHIC QUALITY THIS DOCUMENT IS PROVIDED WITHOUT BENEFIT OF A TITLE EXAMINATION. NO LIABILITY IS ASSUMED FOR THE COMPLETENESS THEREOF. PLATS MAY OR MAY NOT BE A SURVEY OF THE LAND DEPICTED HEREIN. THE COMPANY EXPRESSLY DISCLAIMS ANY LIABILITY FOR ALLEGED LOSS OR DAMAGE WHICH MAY RESULT FROM RELIANCE UPON THEM.
ORIGINAL DOCUMENT MAY HAVE POOR PHOTOGRAPHIC QUALITY THIS DOCUMENT IS PROVIDED WITHOUT BENEFIT OF A TITLE EXAMINATION. NO LIABILITY IS ASSUMED FOR THE COMPLETENESS THEREOF. PLATS MAY OR MAY NOT BE A SURVEY OF THE LAND DEPICTED HEREIN. THE COMPANY EXPRESSLY DISCLAIMS ANY LIABILITY FOR ALLEGED LOSS OR DAMAGE WHICH MAY RESULT FROM RELIANCE UPON THEM.
ORIGINAL DOCUMENT MAY HAVE POOR PHOTOGRAPHIC QUALITY THIS DOCUMENT IS PROVIDED WITHOUT BENEFIT OF A TITLE EXAMINATION. NO LIABILITY IS ASSUMED FOR THE COMPLETENESS THEREOF. PLATS MAY OR MAY NOT BE A SURVEY OF THE LAND DEPICTED HEREIN. THE COMPANY EXPRESSLY DISCLAIMS ANY LIABILITY FOR ALLEGED LOSS OR DAMAGE WHICH MAY RESULT FROM RELIANCE UPON THEM.
ORIGINAL DOCUMENT MAY HAVE POOR PHOTOGRAPHIC QUALITY THIS DOCUMENT IS PROVIDED WITHOUT BENEFIT OF A TITLE EXAMINATION. NO LIABILITY IS ASSUMED FOR THE COMPLETENESS THEREOF. PLATS MAY OR MAY NOT BE A SURVEY OF THE LAND DEPICTED HEREIN. THE COMPANY EXPRESSLY DISCLAIMS ANY LIABILITY FOR ALLEGED LOSS OR DAMAGE WHICH MAY RESULT FROM RELIANCE UPON THEM.
ORIGINAL DOCUMENT MAY HAVE POOR PHOTOGRAPHIC QUALITY THIS DOCUMENT IS PROVIDED WITHOUT BENEFIT OF A TITLE EXAMINATION. NO LIABILITY IS ASSUMED FOR THE COMPLETENESS THEREOF. PLATS MAY OR MAY NOT BE A SURVEY OF THE LAND DEPICTED HEREIN. THE COMPANY EXPRESSLY DISCLAIMS ANY LIABILITY FOR ALLEGED LOSS OR DAMAGE WHICH MAY RESULT FROM RELIANCE UPON THEM.
ORIGINAL DOCUMENT MAY HAVE POOR PHOTOGRAPHIC QUALITY THIS DOCUMENT IS PROVIDED WITHOUT BENEFIT OF A TITLE EXAMINATION. NO LIABILITY IS ASSUMED FOR THE COMPLETENESS THEREOF. PLATS MAY OR MAY NOT BE A SURVEY OF THE LAND DEPICTED HEREIN. THE COMPANY EXPRESSLY DISCLAIMS ANY LIABILITY FOR ALLEGED LOSS OR DAMAGE WHICH MAY RESULT FROM RELIANCE UPON THEM.
ORIGINAL DOCUMENT MAY HAVE POOR PHOTOGRAPHIC QUALITY THIS DOCUMENT IS PROVIDED WITHOUT BENEFIT OF A TITLE EXAMINATION. NO LIABILITY IS ASSUMED FOR THE COMPLETENESS THEREOF. PLATS MAY OR MAY NOT BE A SURVEY OF THE LAND DEPICTED HEREIN. THE COMPANY EXPRESSLY DISCLAIMS ANY LIABILITY FOR ALLEGED LOSS OR DAMAGE WHICH MAY RESULT FROM RELIANCE UPON THEM.
ORIGINAL DOCUMENT MAY HAVE POOR PHOTOGRAPHIC QUALITY THIS DOCUMENT IS PROVIDED WITHOUT BENEFIT OF A TITLE EXAMINATION. NO LIABILITY IS ASSUMED FOR THE COMPLETENESS THEREOF. PLATS MAY OR MAY NOT BE A SURVEY OF THE LAND DEPICTED HEREIN. THE COMPANY EXPRESSLY DISCLAIMS ANY LIABILITY FOR ALLEGED LOSS OR DAMAGE WHICH MAY RESULT FROM RELIANCE UPON THEM.
ORIGINAL DOCUMENT MAY HAVE POOR PHOTOGRAPHIC QUALITY THIS DOCUMENT IS PROVIDED WITHOUT BENEFIT OF A TITLE EXAMINATION. NO LIABILITY IS ASSUMED FOR THE COMPLETENESS THEREOF. PLATS MAY OR MAY NOT BE A SURVEY OF THE LAND DEPICTED HEREIN. THE COMPANY EXPRESSLY DISCLAIMS ANY LIABILITY FOR ALLEGED LOSS OR DAMAGE WHICH MAY RESULT FROM RELIANCE UPON THEM.
ORIGINAL DOCUMENT MAY HAVE POOR PHOTOGRAPHIC QUALITY THIS DOCUMENT IS PROVIDED WITHOUT BENEFIT OF A TITLE EXAMINATION. NO LIABILITY IS ASSUMED FOR THE COMPLETENESS THEREOF. PLATS MAY OR MAY NOT BE A SURVEY OF THE LAND DEPICTED HEREIN. THE COMPANY EXPRESSLY DISCLAIMS ANY LIABILITY FOR ALLEGED LOSS OR DAMAGE WHICH MAY RESULT FROM RELIANCE UPON THEM.
ORIGINAL DOCUMENT MAY HAVE POOR PHOTOGRAPHIC QUALITY THIS DOCUMENT IS PROVIDED WITHOUT BENEFIT OF A TITLE EXAMINATION. NO LIABILITY IS ASSUMED FOR THE COMPLETENESS THEREOF. PLATS MAY OR MAY NOT BE A SURVEY OF THE LAND DEPICTED HEREIN. THE COMPANY EXPRESSLY DISCLAIMS ANY LIABILITY FOR ALLEGED LOSS OR DAMAGE WHICH MAY RESULT FROM RELIANCE UPON THEM.
ORIGINAL DOCUMENT MAY HAVE POOR PHOTOGRAPHIC QUALITY THIS DOCUMENT IS PROVIDED WITHOUT BENEFIT OF A TITLE EXAMINATION. NO LIABILITY IS ASSUMED FOR THE COMPLETENESS THEREOF. PLATS MAY OR MAY NOT BE A SURVEY OF THE LAND DEPICTED HEREIN. THE COMPANY EXPRESSLY DISCLAIMS ANY LIABILITY FOR ALLEGED LOSS OR DAMAGE WHICH MAY RESULT FROM RELIANCE UPON THEM.
ORIGINAL DOCUMENT MAY HAVE POOR PHOTOGRAPHIC QUALITY THIS DOCUMENT IS PROVIDED WITHOUT BENEFIT OF A TITLE EXAMINATION. NO LIABILITY IS ASSUMED FOR THE COMPLETENESS THEREOF. PLATS MAY OR MAY NOT BE A SURVEY OF THE LAND DEPICTED HEREIN. THE COMPANY EXPRESSLY DISCLAIMS ANY LIABILITY FOR ALLEGED LOSS OR DAMAGE WHICH MAY RESULT FROM RELIANCE UPON THEM.
ORIGINAL DOCUMENT MAY HAVE POOR PHOTOGRAPHIC QUALITY THIS DOCUMENT IS PROVIDED WITHOUT BENEFIT OF A TITLE EXAMINATION. NO LIABILITY IS ASSUMED FOR THE COMPLETENESS THEREOF. PLATS MAY OR MAY NOT BE A SURVEY OF THE LAND DEPICTED HEREIN. THE COMPANY EXPRESSLY DISCLAIMS ANY LIABILITY FOR ALLEGED LOSS OR DAMAGE WHICH MAY RESULT FROM RELIANCE UPON THEM.
ORIGINAL DOCUMENT MAY HAVE POOR PHOTOGRAPHIC QUALITY THIS DOCUMENT IS PROVIDED WITHOUT BENEFIT OF A TITLE EXAMINATION. NO LIABILITY IS ASSUMED FOR THE COMPLETENESS THEREOF. PLATS MAY OR MAY NOT BE A SURVEY OF THE LAND DEPICTED HEREIN. THE COMPANY EXPRESSLY DISCLAIMS ANY LIABILITY FOR ALLEGED LOSS OR DAMAGE WHICH MAY RESULT FROM RELIANCE UPON THEM.
ORIGINAL DOCUMENT MAY HAVE POOR PHOTOGRAPHIC QUALITY THIS DOCUMENT IS PROVIDED WITHOUT BENEFIT OF A TITLE EXAMINATION. NO LIABILITY IS ASSUMED FOR THE COMPLETENESS THEREOF. PLATS MAY OR MAY NOT BE A SURVEY OF THE LAND DEPICTED HEREIN. THE COMPANY EXPRESSLY DISCLAIMS ANY LIABILITY FOR ALLEGED LOSS OR DAMAGE WHICH MAY RESULT FROM RELIANCE UPON THEM.
ORIGINAL DOCUMENT MAY HAVE POOR PHOTOGRAPHIC QUALITY THIS DOCUMENT IS PROVIDED WITHOUT BENEFIT OF A TITLE EXAMINATION. NO LIABILITY IS ASSUMED FOR THE COMPLETENESS THEREOF. PLATS MAY OR MAY NOT BE A SURVEY OF THE LAND DEPICTED HEREIN. THE COMPANY EXPRESSLY DISCLAIMS ANY LIABILITY FOR ALLEGED LOSS OR DAMAGE WHICH MAY RESULT FROM RELIANCE UPON THEM.
ORIGINAL DOCUMENT MAY HAVE POOR PHOTOGRAPHIC QUALITY THIS DOCUMENT IS PROVIDED WITHOUT BENEFIT OF A TITLE EXAMINATION. NO LIABILITY IS ASSUMED FOR THE COMPLETENESS THEREOF. PLATS MAY OR MAY NOT BE A SURVEY OF THE LAND DEPICTED HEREIN. THE COMPANY EXPRESSLY DISCLAIMS ANY LIABILITY FOR ALLEGED LOSS OR DAMAGE WHICH MAY RESULT FROM RELIANCE UPON THEM.
ORIGINAL DOCUMENT MAY HAVE POOR PHOTOGRAPHIC QUALITY THIS DOCUMENT IS PROVIDED WITHOUT BENEFIT OF A TITLE EXAMINATION. NO LIABILITY IS ASSUMED FOR THE COMPLETENESS THEREOF. PLATS MAY OR MAY NOT BE A SURVEY OF THE LAND DEPICTED HEREIN. THE COMPANY EXPRESSLY DISCLAIMS ANY LIABILITY FOR ALLEGED LOSS OR DAMAGE WHICH MAY RESULT FROM RELIANCE UPON THEM.
ORIGINAL DOCUMENT MAY HAVE POOR PHOTOGRAPHIC QUALITY THIS DOCUMENT IS PROVIDED WITHOUT BENEFIT OF A TITLE EXAMINATION. NO LIABILITY IS ASSUMED FOR THE COMPLETENESS THEREOF. PLATS MAY OR MAY NOT BE A SURVEY OF THE LAND DEPICTED HEREIN. THE COMPANY EXPRESSLY DISCLAIMS ANY LIABILITY FOR ALLEGED LOSS OR DAMAGE WHICH MAY RESULT FROM RELIANCE UPON THEM.
ORIGINAL DOCUMENT MAY HAVE POOR PHOTOGRAPHIC QUALITY THIS DOCUMENT IS PROVIDED WITHOUT BENEFIT OF A TITLE EXAMINATION. NO LIABILITY IS ASSUMED FOR THE COMPLETENESS THEREOF. PLATS MAY OR MAY NOT BE A SURVEY OF THE LAND DEPICTED HEREIN. THE COMPANY EXPRESSLY DISCLAIMS ANY LIABILITY FOR ALLEGED LOSS OR DAMAGE WHICH MAY RESULT FROM RELIANCE UPON THEM.
ORIGINAL DOCUMENT MAY HAVE POOR PHOTOGRAPHIC QUALITY THIS DOCUMENT IS PROVIDED WITHOUT BENEFIT OF A TITLE EXAMINATION. NO LIABILITY IS ASSUMED FOR THE COMPLETENESS THEREOF. PLATS MAY OR MAY NOT BE A SURVEY OF THE LAND DEPICTED HEREIN. THE COMPANY EXPRESSLY DISCLAIMS ANY LIABILITY FOR ALLEGED LOSS OR DAMAGE WHICH MAY RESULT FROM RELIANCE UPON THEM.
ORIGINAL DOCUMENT MAY HAVE POOR PHOTOGRAPHIC QUALITY THIS DOCUMENT IS PROVIDED WITHOUT BENEFIT OF A TITLE EXAMINATION. NO LIABILITY IS ASSUMED FOR THE COMPLETENESS THEREOF. PLATS MAY OR MAY NOT BE A SURVEY OF THE LAND DEPICTED HEREIN. THE COMPANY EXPRESSLY DISCLAIMS ANY LIABILITY FOR ALLEGED LOSS OR DAMAGE WHICH MAY RESULT FROM RELIANCE UPON THEM.
ORIGINAL DOCUMENT MAY HAVE POOR PHOTOGRAPHIC QUALITY THIS DOCUMENT IS PROVIDED WITHOUT BENEFIT OF A TITLE EXAMINATION. NO LIABILITY IS ASSUMED FOR THE COMPLETENESS THEREOF. PLATS MAY OR MAY NOT BE A SURVEY OF THE LAND DEPICTED HEREIN. THE COMPANY EXPRESSLY DISCLAIMS ANY LIABILITY FOR ALLEGED LOSS OR DAMAGE WHICH MAY RESULT FROM RELIANCE UPON THEM.
ORIGINAL DOCUMENT MAY HAVE POOR PHOTOGRAPHIC QUALITY THIS DOCUMENT IS PROVIDED WITHOUT BENEFIT OF A TITLE EXAMINATION. NO LIABILITY IS ASSUMED FOR THE COMPLETENESS THEREOF. PLATS MAY OR MAY NOT BE A SURVEY OF THE LAND DEPICTED HEREIN. THE COMPANY EXPRESSLY DISCLAIMS ANY LIABILITY FOR ALLEGED LOSS OR DAMAGE WHICH MAY RESULT FROM RELIANCE UPON THEM.
ORIGINAL DOCUMENT MAY HAVE POOR PHOTOGRAPHIC QUALITY THIS DOCUMENT IS PROVIDED WITHOUT BENEFIT OF A TITLE EXAMINATION. NO LIABILITY IS ASSUMED FOR THE COMPLETENESS THEREOF. PLATS MAY OR MAY NOT BE A SURVEY OF THE LAND DEPICTED HEREIN. THE COMPANY EXPRESSLY DISCLAIMS ANY LIABILITY FOR ALLEGED LOSS OR DAMAGE WHICH MAY RESULT FROM RELIANCE UPON THEM.
ORIGINAL DOCUMENT MAY HAVE POOR PHOTOGRAPHIC QUALITY THIS DOCUMENT IS PROVIDED WITHOUT BENEFIT OF A TITLE EXAMINATION. NO LIABILITY IS ASSUMED FOR THE COMPLETENESS THEREOF. PLATS MAY OR MAY NOT BE A SURVEY OF THE LAND DEPICTED HEREIN. THE COMPANY EXPRESSLY DISCLAIMS ANY LIABILITY FOR ALLEGED LOSS OR DAMAGE WHICH MAY RESULT FROM RELIANCE UPON THEM.
ORIGINAL DOCUMENT MAY HAVE POOR PHOTOGRAPHIC QUALITY THIS DOCUMENT IS PROVIDED WITHOUT BENEFIT OF A TITLE EXAMINATION. NO LIABILITY IS ASSUMED FOR THE COMPLETENESS THEREOF. PLATS MAY OR MAY NOT BE A SURVEY OF THE LAND DEPICTED HEREIN. THE COMPANY EXPRESSLY DISCLAIMS ANY LIABILITY FOR ALLEGED LOSS OR DAMAGE WHICH MAY RESULT FROM RELIANCE UPON THEM.
ORIGINAL DOCUMENT MAY HAVE POOR PHOTOGRAPHIC QUALITY THIS DOCUMENT IS PROVIDED WITHOUT BENEFIT OF A TITLE EXAMINATION. NO LIABILITY IS ASSUMED FOR THE COMPLETENESS THEREOF. PLATS MAY OR MAY NOT BE A SURVEY OF THE LAND DEPICTED HEREIN. THE COMPANY EXPRESSLY DISCLAIMS ANY LIABILITY FOR ALLEGED LOSS OR DAMAGE WHICH MAY RESULT FROM RELIANCE UPON THEM.
ORIGINAL DOCUMENT MAY HAVE POOR PHOTOGRAPHIC QUALITY THIS DOCUMENT IS PROVIDED WITHOUT BENEFIT OF A TITLE EXAMINATION. NO LIABILITY IS ASSUMED FOR THE COMPLETENESS THEREOF. PLATS MAY OR MAY NOT BE A SURVEY OF THE LAND DEPICTED HEREIN. THE COMPANY EXPRESSLY DISCLAIMS ANY LIABILITY FOR ALLEGED LOSS OR DAMAGE WHICH MAY RESULT FROM RELIANCE UPON THEM.
ORIGINAL DOCUMENT MAY HAVE POOR PHOTOGRAPHIC QUALITY THIS DOCUMENT IS PROVIDED WITHOUT BENEFIT OF A TITLE EXAMINATION. NO LIABILITY IS ASSUMED FOR THE COMPLETENESS THEREOF. PLATS MAY OR MAY NOT BE A SURVEY OF THE LAND DEPICTED HEREIN. THE COMPANY EXPRESSLY DISCLAIMS ANY LIABILITY FOR ALLEGED LOSS OR DAMAGE WHICH MAY RESULT FROM RELIANCE UPON THEM.
ORIGINAL DOCUMENT MAY HAVE POOR PHOTOGRAPHIC QUALITY THIS DOCUMENT IS PROVIDED WITHOUT BENEFIT OF A TITLE EXAMINATION. NO LIABILITY IS ASSUMED FOR THE COMPLETENESS THEREOF. PLATS MAY OR MAY NOT BE A SURVEY OF THE LAND DEPICTED HEREIN. THE COMPANY EXPRESSLY DISCLAIMS ANY LIABILITY FOR ALLEGED LOSS OR DAMAGE WHICH MAY RESULT FROM RELIANCE UPON THEM.
ORIGINAL DOCUMENT MAY HAVE POOR PHOTOGRAPHIC QUALITY THIS DOCUMENT IS PROVIDED WITHOUT BENEFIT OF A TITLE EXAMINATION. NO LIABILITY IS ASSUMED FOR THE COMPLETENESS THEREOF. PLATS MAY OR MAY NOT BE A SURVEY OF THE LAND DEPICTED HEREIN. THE COMPANY EXPRESSLY DISCLAIMS ANY LIABILITY FOR ALLEGED LOSS OR DAMAGE WHICH MAY RESULT FROM RELIANCE UPON THEM.
ORIGINAL DOCUMENT MAY HAVE POOR PHOTOGRAPHIC QUALITY THIS DOCUMENT IS PROVIDED WITHOUT BENEFIT OF A TITLE EXAMINATION. NO LIABILITY IS ASSUMED FOR THE COMPLETENESS THEREOF. PLATS MAY OR MAY NOT BE A SURVEY OF THE LAND DEPICTED HEREIN. THE COMPANY EXPRESSLY DISCLAIMS ANY LIABILITY FOR ALLEGED LOSS OR DAMAGE WHICH MAY RESULT FROM RELIANCE UPON THEM.
ORIGINAL DOCUMENT MAY HAVE POOR PHOTOGRAPHIC QUALITY THIS DOCUMENT IS PROVIDED WITHOUT BENEFIT OF A TITLE EXAMINATION. NO LIABILITY IS ASSUMED FOR THE COMPLETENESS THEREOF. PLATS MAY OR MAY NOT BE A SURVEY OF THE LAND DEPICTED HEREIN. THE COMPANY EXPRESSLY DISCLAIMS ANY LIABILITY FOR ALLEGED LOSS OR DAMAGE WHICH MAY RESULT FROM RELIANCE UPON THEM.
ORIGINAL DOCUMENT MAY HAVE POOR PHOTOGRAPHIC QUALITY THIS DOCUMENT IS PROVIDED WITHOUT BENEFIT OF A TITLE EXAMINATION. NO LIABILITY IS ASSUMED FOR THE COMPLETENESS THEREOF. PLATS MAY OR MAY NOT BE A SURVEY OF THE LAND DEPICTED HEREIN. THE COMPANY EXPRESSLY DISCLAIMS ANY LIABILITY FOR ALLEGED LOSS OR DAMAGE WHICH MAY RESULT FROM RELIANCE UPON THEM.
ORIGINAL DOCUMENT MAY HAVE POOR PHOTOGRAPHIC QUALITY THIS DOCUMENT IS PROVIDED WITHOUT BENEFIT OF A TITLE EXAMINATION. NO LIABILITY IS ASSUMED FOR THE COMPLETENESS THEREOF. PLATS MAY OR MAY NOT BE A SURVEY OF THE LAND DEPICTED HEREIN. THE COMPANY EXPRESSLY DISCLAIMS ANY LIABILITY FOR ALLEGED LOSS OR DAMAGE WHICH MAY RESULT FROM RELIANCE UPON THEM.
ORIGINAL DOCUMENT MAY HAVE POOR PHOTOGRAPHIC QUALITY THIS DOCUMENT IS PROVIDED WITHOUT BENEFIT OF A TITLE EXAMINATION. NO LIABILITY IS ASSUMED FOR THE COMPLETENESS THEREOF. PLATS MAY OR MAY NOT BE A SURVEY OF THE LAND DEPICTED HEREIN. THE COMPANY EXPRESSLY DISCLAIMS ANY LIABILITY FOR ALLEGED LOSS OR DAMAGE WHICH MAY RESULT FROM RELIANCE UPON THEM.
ORIGINAL DOCUMENT MAY HAVE POOR PHOTOGRAPHIC QUALITY THIS DOCUMENT IS PROVIDED WITHOUT BENEFIT OF A TITLE EXAMINATION. NO LIABILITY IS ASSUMED FOR THE COMPLETENESS THEREOF. PLATS MAY OR MAY NOT BE A SURVEY OF THE LAND DEPICTED HEREIN. THE COMPANY EXPRESSLY DISCLAIMS ANY LIABILITY FOR ALLEGED LOSS OR DAMAGE WHICH MAY RESULT FROM RELIANCE UPON THEM.
ORIGINAL DOCUMENT MAY HAVE POOR PHOTOGRAPHIC QUALITY THIS DOCUMENT IS PROVIDED WITHOUT BENEFIT OF A TITLE EXAMINATION. NO LIABILITY IS ASSUMED FOR THE COMPLETENESS THEREOF. PLATS MAY OR MAY NOT BE A SURVEY OF THE LAND DEPICTED HEREIN. THE COMPANY EXPRESSLY DISCLAIMS ANY LIABILITY FOR ALLEGED LOSS OR DAMAGE WHICH MAY RESULT FROM RELIANCE UPON THEM.
ORIGINAL DOCUMENT MAY HAVE POOR PHOTOGRAPHIC QUALITY THIS DOCUMENT IS PROVIDED WITHOUT BENEFIT OF A TITLE EXAMINATION. NO LIABILITY IS ASSUMED FOR THE COMPLETENESS THEREOF. PLATS MAY OR MAY NOT BE A SURVEY OF THE LAND DEPICTED HEREIN. THE COMPANY EXPRESSLY DISCLAIMS ANY LIABILITY FOR ALLEGED LOSS OR DAMAGE WHICH MAY RESULT FROM RELIANCE UPON THEM.
ORIGINAL DOCUMENT MAY HAVE POOR PHOTOGRAPHIC QUALITY THIS DOCUMENT IS PROVIDED WITHOUT BENEFIT OF A TITLE EXAMINATION. NO LIABILITY IS ASSUMED FOR THE COMPLETENESS THEREOF. PLATS MAY OR MAY NOT BE A SURVEY OF THE LAND DEPICTED HEREIN. THE COMPANY EXPRESSLY DISCLAIMS ANY LIABILITY FOR ALLEGED LOSS OR DAMAGE WHICH MAY RESULT FROM RELIANCE UPON THEM.
ORIGINAL DOCUMENT MAY HAVE POOR PHOTOGRAPHIC QUALITY THIS DOCUMENT IS PROVIDED WITHOUT BENEFIT OF A TITLE EXAMINATION. NO LIABILITY IS ASSUMED FOR THE COMPLETENESS THEREOF. PLATS MAY OR MAY NOT BE A SURVEY OF THE LAND DEPICTED HEREIN. THE COMPANY EXPRESSLY DISCLAIMS ANY LIABILITY FOR ALLEGED LOSS OR DAMAGE WHICH MAY RESULT FROM RELIANCE UPON THEM.
ORIGINAL DOCUMENT MAY HAVE POOR PHOTOGRAPHIC QUALITY THIS DOCUMENT IS PROVIDED WITHOUT BENEFIT OF A TITLE EXAMINATION. NO LIABILITY IS ASSUMED FOR THE COMPLETENESS THEREOF. PLATS MAY OR MAY NOT BE A SURVEY OF THE LAND DEPICTED HEREIN. THE COMPANY EXPRESSLY DISCLAIMS ANY LIABILITY FOR ALLEGED LOSS OR DAMAGE WHICH MAY RESULT FROM RELIANCE UPON THEM.
ORIGINAL DOCUMENT MAY HAVE POOR PHOTOGRAPHIC QUALITY THIS DOCUMENT IS PROVIDED WITHOUT BENEFIT OF A TITLE EXAMINATION. NO LIABILITY IS ASSUMED FOR THE COMPLETENESS THEREOF. PLATS MAY OR MAY NOT BE A SURVEY OF THE LAND DEPICTED HEREIN. THE COMPANY EXPRESSLY DISCLAIMS ANY LIABILITY FOR ALLEGED LOSS OR DAMAGE WHICH MAY RESULT FROM RELIANCE UPON THEM.
ORIGINAL DOCUMENT MAY HAVE POOR PHOTOGRAPHIC QUALITY THIS DOCUMENT IS PROVIDED WITHOUT BENEFIT OF A TITLE EXAMINATION. NO LIABILITY IS ASSUMED FOR THE COMPLETENESS THEREOF. PLATS MAY OR MAY NOT BE A SURVEY OF THE LAND DEPICTED HEREIN. THE COMPANY EXPRESSLY DISCLAIMS ANY LIABILITY FOR ALLEGED LOSS OR DAMAGE WHICH MAY RESULT FROM RELIANCE UPON THEM.
ORIGINAL DOCUMENT MAY HAVE POOR PHOTOGRAPHIC QUALITY THIS DOCUMENT IS PROVIDED WITHOUT BENEFIT OF A TITLE EXAMINATION. NO LIABILITY IS ASSUMED FOR THE COMPLETENESS THEREOF. PLATS MAY OR MAY NOT BE A SURVEY OF THE LAND DEPICTED HEREIN. THE COMPANY EXPRESSLY DISCLAIMS ANY LIABILITY FOR ALLEGED LOSS OR DAMAGE WHICH MAY RESULT FROM RELIANCE UPON THEM.
ORIGINAL DOCUMENT MAY HAVE POOR PHOTOGRAPHIC QUALITY THIS DOCUMENT IS PROVIDED WITHOUT BENEFIT OF A TITLE EXAMINATION. NO LIABILITY IS ASSUMED FOR THE COMPLETENESS THEREOF. PLATS MAY OR MAY NOT BE A SURVEY OF THE LAND DEPICTED HEREIN. THE COMPANY EXPRESSLY DISCLAIMS ANY LIABILITY FOR ALLEGED LOSS OR DAMAGE WHICH MAY RESULT FROM RELIANCE UPON THEM.
ORIGINAL DOCUMENT MAY HAVE POOR PHOTOGRAPHIC QUALITY THIS DOCUMENT IS PROVIDED WITHOUT BENEFIT OF A TITLE EXAMINATION. NO LIABILITY IS ASSUMED FOR THE COMPLETENESS THEREOF. PLATS MAY OR MAY NOT BE A SURVEY OF THE LAND DEPICTED HEREIN. THE COMPANY EXPRESSLY DISCLAIMS ANY LIABILITY FOR ALLEGED LOSS OR DAMAGE WHICH MAY RESULT FROM RELIANCE UPON THEM.
ORIGINAL DOCUMENT MAY HAVE POOR PHOTOGRAPHIC QUALITY THIS DOCUMENT IS PROVIDED WITHOUT BENEFIT OF A TITLE EXAMINATION. NO LIABILITY IS ASSUMED FOR THE COMPLETENESS THEREOF. PLATS MAY OR MAY NOT BE A SURVEY OF THE LAND DEPICTED HEREIN. THE COMPANY EXPRESSLY DISCLAIMS ANY LIABILITY FOR ALLEGED LOSS OR DAMAGE WHICH MAY RESULT FROM RELIANCE UPON THEM.
ORIGINAL DOCUMENT MAY HAVE POOR PHOTOGRAPHIC QUALITY THIS DOCUMENT IS PROVIDED WITHOUT BENEFIT OF A TITLE EXAMINATION. NO LIABILITY IS ASSUMED FOR THE COMPLETENESS THEREOF. PLATS MAY OR MAY NOT BE A SURVEY OF THE LAND DEPICTED HEREIN. THE COMPANY EXPRESSLY DISCLAIMS ANY LIABILITY FOR ALLEGED LOSS OR DAMAGE WHICH MAY RESULT FROM RELIANCE UPON THEM.
ORIGINAL DOCUMENT MAY HAVE POOR PHOTOGRAPHIC QUALITY THIS DOCUMENT IS PROVIDED WITHOUT BENEFIT OF A TITLE EXAMINATION. NO LIABILITY IS ASSUMED FOR THE COMPLETENESS THEREOF. PLATS MAY OR MAY NOT BE A SURVEY OF THE LAND DEPICTED HEREIN. THE COMPANY EXPRESSLY DISCLAIMS ANY LIABILITY FOR ALLEGED LOSS OR DAMAGE WHICH MAY RESULT FROM RELIANCE UPON THEM.
ORIGINAL DOCUMENT MAY HAVE POOR PHOTOGRAPHIC QUALITY THIS DOCUMENT IS PROVIDED WITHOUT BENEFIT OF A TITLE EXAMINATION. NO LIABILITY IS ASSUMED FOR THE COMPLETENESS THEREOF. PLATS MAY OR MAY NOT BE A SURVEY OF THE LAND DEPICTED HEREIN. THE COMPANY EXPRESSLY DISCLAIMS ANY LIABILITY FOR ALLEGED LOSS OR DAMAGE WHICH MAY RESULT FROM RELIANCE UPON THEM.
ORIGINAL DOCUMENT MAY HAVE POOR PHOTOGRAPHIC QUALITY THIS DOCUMENT IS PROVIDED WITHOUT BENEFIT OF A TITLE EXAMINATION. NO LIABILITY IS ASSUMED FOR THE COMPLETENESS THEREOF. PLATS MAY OR MAY NOT BE A SURVEY OF THE LAND DEPICTED HEREIN. THE COMPANY EXPRESSLY DISCLAIMS ANY LIABILITY FOR ALLEGED LOSS OR DAMAGE WHICH MAY RESULT FROM RELIANCE UPON THEM.
ORIGINAL DOCUMENT MAY HAVE POOR PHOTOGRAPHIC QUALITY THIS DOCUMENT IS PROVIDED WITHOUT BENEFIT OF A TITLE EXAMINATION. NO LIABILITY IS ASSUMED FOR THE COMPLETENESS THEREOF. PLATS MAY OR MAY NOT BE A SURVEY OF THE LAND DEPICTED HEREIN. THE COMPANY EXPRESSLY DISCLAIMS ANY LIABILITY FOR ALLEGED LOSS OR DAMAGE WHICH MAY RESULT FROM RELIANCE UPON THEM.
ORIGINAL DOCUMENT MAY HAVE POOR PHOTOGRAPHIC QUALITY THIS DOCUMENT IS PROVIDED WITHOUT BENEFIT OF A TITLE EXAMINATION. NO LIABILITY IS ASSUMED FOR THE COMPLETENESS THEREOF. PLATS MAY OR MAY NOT BE A SURVEY OF THE LAND DEPICTED HEREIN. THE COMPANY EXPRESSLY DISCLAIMS ANY LIABILITY FOR ALLEGED LOSS OR DAMAGE WHICH MAY RESULT FROM RELIANCE UPON THEM.
ORIGINAL DOCUMENT MAY HAVE POOR PHOTOGRAPHIC QUALITY THIS DOCUMENT IS PROVIDED WITHOUT BENEFIT OF A TITLE EXAMINATION. NO LIABILITY IS ASSUMED FOR THE COMPLETENESS THEREOF. PLATS MAY OR MAY NOT BE A SURVEY OF THE LAND DEPICTED HEREIN. THE COMPANY EXPRESSLY DISCLAIMS ANY LIABILITY FOR ALLEGED LOSS OR DAMAGE WHICH MAY RESULT FROM RELIANCE UPON THEM.
ORIGINAL DOCUMENT MAY HAVE POOR PHOTOGRAPHIC QUALITY THIS DOCUMENT IS PROVIDED WITHOUT BENEFIT OF A TITLE EXAMINATION. NO LIABILITY IS ASSUMED FOR THE COMPLETENESS THEREOF. PLATS MAY OR MAY NOT BE A SURVEY OF THE LAND DEPICTED HEREIN. THE COMPANY EXPRESSLY DISCLAIMS ANY LIABILITY FOR ALLEGED LOSS OR DAMAGE WHICH MAY RESULT FROM RELIANCE UPON THEM.
ORIGINAL DOCUMENT MAY HAVE POOR PHOTOGRAPHIC QUALITY THIS DOCUMENT IS PROVIDED WITHOUT BENEFIT OF A TITLE EXAMINATION. NO LIABILITY IS ASSUMED FOR THE COMPLETENESS THEREOF. PLATS MAY OR MAY NOT BE A SURVEY OF THE LAND DEPICTED HEREIN. THE COMPANY EXPRESSLY DISCLAIMS ANY LIABILITY FOR ALLEGED LOSS OR DAMAGE WHICH MAY RESULT FROM RELIANCE UPON THEM.
ORIGINAL DOCUMENT MAY HAVE POOR PHOTOGRAPHIC QUALITY THIS DOCUMENT IS PROVIDED WITHOUT BENEFIT OF A TITLE EXAMINATION. NO LIABILITY IS ASSUMED FOR THE COMPLETENESS THEREOF. PLATS MAY OR MAY NOT BE A SURVEY OF THE LAND DEPICTED HEREIN. THE COMPANY EXPRESSLY DISCLAIMS ANY LIABILITY FOR ALLEGED LOSS OR DAMAGE WHICH MAY RESULT FROM RELIANCE UPON THEM.
ORIGINAL DOCUMENT MAY HAVE POOR PHOTOGRAPHIC QUALITY THIS DOCUMENT IS PROVIDED WITHOUT BENEFIT OF A TITLE EXAMINATION. NO LIABILITY IS ASSUMED FOR THE COMPLETENESS THEREOF. PLATS MAY OR MAY NOT BE A SURVEY OF THE LAND DEPICTED HEREIN. THE COMPANY EXPRESSLY DISCLAIMS ANY LIABILITY FOR ALLEGED LOSS OR DAMAGE WHICH MAY RESULT FROM RELIANCE UPON THEM.
ORIGINAL DOCUMENT MAY HAVE POOR PHOTOGRAPHIC QUALITY THIS DOCUMENT IS PROVIDED WITHOUT BENEFIT OF A TITLE EXAMINATION. NO LIABILITY IS ASSUMED FOR THE COMPLETENESS THEREOF. PLATS MAY OR MAY NOT BE A SURVEY OF THE LAND DEPICTED HEREIN. THE COMPANY EXPRESSLY DISCLAIMS ANY LIABILITY FOR ALLEGED LOSS OR DAMAGE WHICH MAY RESULT FROM RELIANCE UPON THEM.
ORIGINAL DOCUMENT MAY HAVE POOR PHOTOGRAPHIC QUALITY THIS DOCUMENT IS PROVIDED WITHOUT BENEFIT OF A TITLE EXAMINATION. NO LIABILITY IS ASSUMED FOR THE COMPLETENESS THEREOF. PLATS MAY OR MAY NOT BE A SURVEY OF THE LAND DEPICTED HEREIN. THE COMPANY EXPRESSLY DISCLAIMS ANY LIABILITY FOR ALLEGED LOSS OR DAMAGE WHICH MAY RESULT FROM RELIANCE UPON THEM.
ORIGINAL DOCUMENT MAY HAVE POOR PHOTOGRAPHIC QUALITY THIS DOCUMENT IS PROVIDED WITHOUT BENEFIT OF A TITLE EXAMINATION. NO LIABILITY IS ASSUMED FOR THE COMPLETENESS THEREOF. PLATS MAY OR MAY NOT BE A SURVEY OF THE LAND DEPICTED HEREIN. THE COMPANY EXPRESSLY DISCLAIMS ANY LIABILITY FOR ALLEGED LOSS OR DAMAGE WHICH MAY RESULT FROM RELIANCE UPON THEM.
ORIGINAL DOCUMENT MAY HAVE POOR PHOTOGRAPHIC QUALITY THIS DOCUMENT IS PROVIDED WITHOUT BENEFIT OF A TITLE EXAMINATION. NO LIABILITY IS ASSUMED FOR THE COMPLETENESS THEREOF. PLATS MAY OR MAY NOT BE A SURVEY OF THE LAND DEPICTED HEREIN. THE COMPANY EXPRESSLY DISCLAIMS ANY LIABILITY FOR ALLEGED LOSS OR DAMAGE WHICH MAY RESULT FROM RELIANCE UPON THEM.
ORIGINAL DOCUMENT MAY HAVE POOR PHOTOGRAPHIC QUALITY THIS DOCUMENT IS PROVIDED WITHOUT BENEFIT OF A TITLE EXAMINATION. NO LIABILITY IS ASSUMED FOR THE COMPLETENESS THEREOF. PLATS MAY OR MAY NOT BE A SURVEY OF THE LAND DEPICTED HEREIN. THE COMPANY EXPRESSLY DISCLAIMS ANY LIABILITY FOR ALLEGED LOSS OR DAMAGE WHICH MAY RESULT FROM RELIANCE UPON THEM.
ORIGINAL DOCUMENT MAY HAVE POOR PHOTOGRAPHIC QUALITY THIS DOCUMENT IS PROVIDED WITHOUT BENEFIT OF A TITLE EXAMINATION. NO LIABILITY IS ASSUMED FOR THE COMPLETENESS THEREOF. PLATS MAY OR MAY NOT BE A SURVEY OF THE LAND DEPICTED HEREIN. THE COMPANY EXPRESSLY DISCLAIMS ANY LIABILITY FOR ALLEGED LOSS OR DAMAGE WHICH MAY RESULT FROM RELIANCE UPON THEM.
ORIGINAL DOCUMENT MAY HAVE POOR PHOTOGRAPHIC QUALITY THIS DOCUMENT IS PROVIDED WITHOUT BENEFIT OF A TITLE EXAMINATION. NO LIABILITY IS ASSUMED FOR THE COMPLETENESS THEREOF. PLATS MAY OR MAY NOT BE A SURVEY OF THE LAND DEPICTED HEREIN. THE COMPANY EXPRESSLY DISCLAIMS ANY LIABILITY FOR ALLEGED LOSS OR DAMAGE WHICH MAY RESULT FROM RELIANCE UPON THEM.
ORIGINAL DOCUMENT MAY HAVE POOR PHOTOGRAPHIC QUALITY THIS DOCUMENT IS PROVIDED WITHOUT BENEFIT OF A TITLE EXAMINATION. NO LIABILITY IS ASSUMED FOR THE COMPLETENESS THEREOF. PLATS MAY OR MAY NOT BE A SURVEY OF THE LAND DEPICTED HEREIN. THE COMPANY EXPRESSLY DISCLAIMS ANY LIABILITY FOR ALLEGED LOSS OR DAMAGE WHICH MAY RESULT FROM RELIANCE UPON THEM.
ORIGINAL DOCUMENT MAY HAVE POOR PHOTOGRAPHIC QUALITY THIS DOCUMENT IS PROVIDED WITHOUT BENEFIT OF A TITLE EXAMINATION. NO LIABILITY IS ASSUMED FOR THE COMPLETENESS THEREOF. PLATS MAY OR MAY NOT BE A SURVEY OF THE LAND DEPICTED HEREIN. THE COMPANY EXPRESSLY DISCLAIMS ANY LIABILITY FOR ALLEGED LOSS OR DAMAGE WHICH MAY RESULT FROM RELIANCE UPON THEM.
ORIGINAL DOCUMENT MAY HAVE POOR PHOTOGRAPHIC QUALITY THIS DOCUMENT IS PROVIDED WITHOUT BENEFIT OF A TITLE EXAMINATION. NO LIABILITY IS ASSUMED FOR THE COMPLETENESS THEREOF. PLATS MAY OR MAY NOT BE A SURVEY OF THE LAND DEPICTED HEREIN. THE COMPANY EXPRESSLY DISCLAIMS ANY LIABILITY FOR ALLEGED LOSS OR DAMAGE WHICH MAY RESULT FROM RELIANCE UPON THEM.
ORIGINAL DOCUMENT MAY HAVE POOR PHOTOGRAPHIC QUALITY THIS DOCUMENT IS PROVIDED WITHOUT BENEFIT OF A TITLE EXAMINATION. NO LIABILITY IS ASSUMED FOR THE COMPLETENESS THEREOF. PLATS MAY OR MAY NOT BE A SURVEY OF THE LAND DEPICTED HEREIN. THE COMPANY EXPRESSLY DISCLAIMS ANY LIABILITY FOR ALLEGED LOSS OR DAMAGE WHICH MAY RESULT FROM RELIANCE UPON THEM.
ORIGINAL DOCUMENT MAY HAVE POOR PHOTOGRAPHIC QUALITY THIS DOCUMENT IS PROVIDED WITHOUT BENEFIT OF A TITLE EXAMINATION. NO LIABILITY IS ASSUMED FOR THE COMPLETENESS THEREOF. PLATS MAY OR MAY NOT BE A SURVEY OF THE LAND DEPICTED HEREIN. THE COMPANY EXPRESSLY DISCLAIMS ANY LIABILITY FOR ALLEGED LOSS OR DAMAGE WHICH MAY RESULT FROM RELIANCE UPON THEM.
ORIGINAL DOCUMENT MAY HAVE POOR PHOTOGRAPHIC QUALITY THIS DOCUMENT IS PROVIDED WITHOUT BENEFIT OF A TITLE EXAMINATION. NO LIABILITY IS ASSUMED FOR THE COMPLETENESS THEREOF. PLATS MAY OR MAY NOT BE A SURVEY OF THE LAND DEPICTED HEREIN. THE COMPANY EXPRESSLY DISCLAIMS ANY LIABILITY FOR ALLEGED LOSS OR DAMAGE WHICH MAY RESULT FROM RELIANCE UPON THEM.
ORIGINAL DOCUMENT MAY HAVE POOR PHOTOGRAPHIC QUALITY THIS DOCUMENT IS PROVIDED WITHOUT BENEFIT OF A TITLE EXAMINATION. NO LIABILITY IS ASSUMED FOR THE COMPLETENESS THEREOF. PLATS MAY OR MAY NOT BE A SURVEY OF THE LAND DEPICTED HEREIN. THE COMPANY EXPRESSLY DISCLAIMS ANY LIABILITY FOR ALLEGED LOSS OR DAMAGE WHICH MAY RESULT FROM RELIANCE UPON THEM.
ORIGINAL DOCUMENT MAY HAVE POOR PHOTOGRAPHIC QUALITY THIS DOCUMENT IS PROVIDED WITHOUT BENEFIT OF A TITLE EXAMINATION. NO LIABILITY IS ASSUMED FOR THE COMPLETENESS THEREOF. PLATS MAY OR MAY NOT BE A SURVEY OF THE LAND DEPICTED HEREIN. THE COMPANY EXPRESSLY DISCLAIMS ANY LIABILITY FOR ALLEGED LOSS OR DAMAGE WHICH MAY RESULT FROM RELIANCE UPON THEM.
ORIGINAL DOCUMENT MAY HAVE POOR PHOTOGRAPHIC QUALITY THIS DOCUMENT IS PROVIDED WITHOUT BENEFIT OF A TITLE EXAMINATION. NO LIABILITY IS ASSUMED FOR THE COMPLETENESS THEREOF. PLATS MAY OR MAY NOT BE A SURVEY OF THE LAND DEPICTED HEREIN. THE COMPANY EXPRESSLY DISCLAIMS ANY LIABILITY FOR ALLEGED LOSS OR DAMAGE WHICH MAY RESULT FROM RELIANCE UPON THEM.
ORIGINAL DOCUMENT MAY HAVE POOR PHOTOGRAPHIC QUALITY THIS DOCUMENT IS PROVIDED WITHOUT BENEFIT OF A TITLE EXAMINATION. NO LIABILITY IS ASSUMED FOR THE COMPLETENESS THEREOF. PLATS MAY OR MAY NOT BE A SURVEY OF THE LAND DEPICTED HEREIN. THE COMPANY EXPRESSLY DISCLAIMS ANY LIABILITY FOR ALLEGED LOSS OR DAMAGE WHICH MAY RESULT FROM RELIANCE UPON THEM.
ORIGINAL DOCUMENT MAY HAVE POOR PHOTOGRAPHIC QUALITY THIS DOCUMENT IS PROVIDED WITHOUT BENEFIT OF A TITLE EXAMINATION. NO LIABILITY IS ASSUMED FOR THE COMPLETENESS THEREOF. PLATS MAY OR MAY NOT BE A SURVEY OF THE LAND DEPICTED HEREIN. THE COMPANY EXPRESSLY DISCLAIMS ANY LIABILITY FOR ALLEGED LOSS OR DAMAGE WHICH MAY RESULT FROM RELIANCE UPON THEM.
ORIGINAL DOCUMENT MAY HAVE POOR PHOTOGRAPHIC QUALITY THIS DOCUMENT IS PROVIDED WITHOUT BENEFIT OF A TITLE EXAMINATION. NO LIABILITY IS ASSUMED FOR THE COMPLETENESS THEREOF. PLATS MAY OR MAY NOT BE A SURVEY OF THE LAND DEPICTED HEREIN. THE COMPANY EXPRESSLY DISCLAIMS ANY LIABILITY FOR ALLEGED LOSS OR DAMAGE WHICH MAY RESULT FROM RELIANCE UPON THEM.
ORIGINAL DOCUMENT MAY HAVE POOR PHOTOGRAPHIC QUALITY THIS DOCUMENT IS PROVIDED WITHOUT BENEFIT OF A TITLE EXAMINATION. NO LIABILITY IS ASSUMED FOR THE COMPLETENESS THEREOF. PLATS MAY OR MAY NOT BE A SURVEY OF THE LAND DEPICTED HEREIN. THE COMPANY EXPRESSLY DISCLAIMS ANY LIABILITY FOR ALLEGED LOSS OR DAMAGE WHICH MAY RESULT FROM RELIANCE UPON THEM.
ORIGINAL DOCUMENT MAY HAVE POOR PHOTOGRAPHIC QUALITY THIS DOCUMENT IS PROVIDED WITHOUT BENEFIT OF A TITLE EXAMINATION. NO LIABILITY IS ASSUMED FOR THE COMPLETENESS THEREOF. PLATS MAY OR MAY NOT BE A SURVEY OF THE LAND DEPICTED HEREIN. THE COMPANY EXPRESSLY DISCLAIMS ANY LIABILITY FOR ALLEGED LOSS OR DAMAGE WHICH MAY RESULT FROM RELIANCE UPON THEM.
ORIGINAL DOCUMENT MAY HAVE POOR PHOTOGRAPHIC QUALITY THIS DOCUMENT IS PROVIDED WITHOUT BENEFIT OF A TITLE EXAMINATION. NO LIABILITY IS ASSUMED FOR THE COMPLETENESS THEREOF. PLATS MAY OR MAY NOT BE A SURVEY OF THE LAND DEPICTED HEREIN. THE COMPANY EXPRESSLY DISCLAIMS ANY LIABILITY FOR ALLEGED LOSS OR DAMAGE WHICH MAY RESULT FROM RELIANCE UPON THEM.
ORIGINAL DOCUMENT MAY HAVE POOR PHOTOGRAPHIC QUALITY THIS DOCUMENT IS PROVIDED WITHOUT BENEFIT OF A TITLE EXAMINATION. NO LIABILITY IS ASSUMED FOR THE COMPLETENESS THEREOF. PLATS MAY OR MAY NOT BE A SURVEY OF THE LAND DEPICTED HEREIN. THE COMPANY EXPRESSLY DISCLAIMS ANY LIABILITY FOR ALLEGED LOSS OR DAMAGE WHICH MAY RESULT FROM RELIANCE UPON THEM.
ORIGINAL DOCUMENT MAY HAVE POOR PHOTOGRAPHIC QUALITY THIS DOCUMENT IS PROVIDED WITHOUT BENEFIT OF A TITLE EXAMINATION. NO LIABILITY IS ASSUMED FOR THE COMPLETENESS THEREOF. PLATS MAY OR MAY NOT BE A SURVEY OF THE LAND DEPICTED HEREIN. THE COMPANY EXPRESSLY DISCLAIMS ANY LIABILITY FOR ALLEGED LOSS OR DAMAGE WHICH MAY RESULT FROM RELIANCE UPON THEM.
ORIGINAL DOCUMENT MAY HAVE POOR PHOTOGRAPHIC QUALITY THIS DOCUMENT IS PROVIDED WITHOUT BENEFIT OF A TITLE EXAMINATION. NO LIABILITY IS ASSUMED FOR THE COMPLETENESS THEREOF. PLATS MAY OR MAY NOT BE A SURVEY OF THE LAND DEPICTED HEREIN. THE COMPANY EXPRESSLY DISCLAIMS ANY LIABILITY FOR ALLEGED LOSS OR DAMAGE WHICH MAY RESULT FROM RELIANCE UPON THEM.
ORIGINAL DOCUMENT MAY HAVE POOR PHOTOGRAPHIC QUALITY THIS DOCUMENT IS PROVIDED WITHOUT BENEFIT OF A TITLE EXAMINATION. NO LIABILITY IS ASSUMED FOR THE COMPLETENESS THEREOF. PLATS MAY OR MAY NOT BE A SURVEY OF THE LAND DEPICTED HEREIN. THE COMPANY EXPRESSLY DISCLAIMS ANY LIABILITY FOR ALLEGED LOSS OR DAMAGE WHICH MAY RESULT FROM RELIANCE UPON THEM.
ORIGINAL DOCUMENT MAY HAVE POOR PHOTOGRAPHIC QUALITY THIS DOCUMENT IS PROVIDED WITHOUT BENEFIT OF A TITLE EXAMINATION. NO LIABILITY IS ASSUMED FOR THE COMPLETENESS THEREOF. PLATS MAY OR MAY NOT BE A SURVEY OF THE LAND DEPICTED HEREIN. THE COMPANY EXPRESSLY DISCLAIMS ANY LIABILITY FOR ALLEGED LOSS OR DAMAGE WHICH MAY RESULT FROM RELIANCE UPON THEM.
ORIGINAL DOCUMENT MAY HAVE POOR PHOTOGRAPHIC QUALITY THIS DOCUMENT IS PROVIDED WITHOUT BENEFIT OF A TITLE EXAMINATION. NO LIABILITY IS ASSUMED FOR THE COMPLETENESS THEREOF. PLATS MAY OR MAY NOT BE A SURVEY OF THE LAND DEPICTED HEREIN. THE COMPANY EXPRESSLY DISCLAIMS ANY LIABILITY FOR ALLEGED LOSS OR DAMAGE WHICH MAY RESULT FROM RELIANCE UPON THEM.
ORIGINAL DOCUMENT MAY HAVE POOR PHOTOGRAPHIC QUALITY THIS DOCUMENT IS PROVIDED WITHOUT BENEFIT OF A TITLE EXAMINATION. NO LIABILITY IS ASSUMED FOR THE COMPLETENESS THEREOF. PLATS MAY OR MAY NOT BE A SURVEY OF THE LAND DEPICTED HEREIN. THE COMPANY EXPRESSLY DISCLAIMS ANY LIABILITY FOR ALLEGED LOSS OR DAMAGE WHICH MAY RESULT FROM RELIANCE UPON THEM.
ORIGINAL DOCUMENT MAY HAVE POOR PHOTOGRAPHIC QUALITY THIS DOCUMENT IS PROVIDED WITHOUT BENEFIT OF A TITLE EXAMINATION. NO LIABILITY IS ASSUMED FOR THE COMPLETENESS THEREOF. PLATS MAY OR MAY NOT BE A SURVEY OF THE LAND DEPICTED HEREIN. THE COMPANY EXPRESSLY DISCLAIMS ANY LIABILITY FOR ALLEGED LOSS OR DAMAGE WHICH MAY RESULT FROM RELIANCE UPON THEM.
ORIGINAL DOCUMENT MAY HAVE POOR PHOTOGRAPHIC QUALITY THIS DOCUMENT IS PROVIDED WITHOUT BENEFIT OF A TITLE EXAMINATION. NO LIABILITY IS ASSUMED FOR THE COMPLETENESS THEREOF. PLATS MAY OR MAY NOT BE A SURVEY OF THE LAND DEPICTED HEREIN. THE COMPANY EXPRESSLY DISCLAIMS ANY LIABILITY FOR ALLEGED LOSS OR DAMAGE WHICH MAY RESULT FROM RELIANCE UPON THEM.
ORIGINAL DOCUMENT MAY HAVE POOR PHOTOGRAPHIC QUALITY THIS DOCUMENT IS PROVIDED WITHOUT BENEFIT OF A TITLE EXAMINATION. NO LIABILITY IS ASSUMED FOR THE COMPLETENESS THEREOF. PLATS MAY OR MAY NOT BE A SURVEY OF THE LAND DEPICTED HEREIN. THE COMPANY EXPRESSLY DISCLAIMS ANY LIABILITY FOR ALLEGED LOSS OR DAMAGE WHICH MAY RESULT FROM RELIANCE UPON THEM.
ORIGINAL DOCUMENT MAY HAVE POOR PHOTOGRAPHIC QUALITY THIS DOCUMENT IS PROVIDED WITHOUT BENEFIT OF A TITLE EXAMINATION. NO LIABILITY IS ASSUMED FOR THE COMPLETENESS THEREOF. PLATS MAY OR MAY NOT BE A SURVEY OF THE LAND DEPICTED HEREIN. THE COMPANY EXPRESSLY DISCLAIMS ANY LIABILITY FOR ALLEGED LOSS OR DAMAGE WHICH MAY RESULT FROM RELIANCE UPON THEM.
ORIGINAL DOCUMENT MAY HAVE POOR PHOTOGRAPHIC QUALITY THIS DOCUMENT IS PROVIDED WITHOUT BENEFIT OF A TITLE EXAMINATION. NO LIABILITY IS ASSUMED FOR THE COMPLETENESS THEREOF. PLATS MAY OR MAY NOT BE A SURVEY OF THE LAND DEPICTED HEREIN. THE COMPANY EXPRESSLY DISCLAIMS ANY LIABILITY FOR ALLEGED LOSS OR DAMAGE WHICH MAY RESULT FROM RELIANCE UPON THEM.
ORIGINAL DOCUMENT MAY HAVE POOR PHOTOGRAPHIC QUALITY THIS DOCUMENT IS PROVIDED WITHOUT BENEFIT OF A TITLE EXAMINATION. NO LIABILITY IS ASSUMED FOR THE COMPLETENESS THEREOF. PLATS MAY OR MAY NOT BE A SURVEY OF THE LAND DEPICTED HEREIN. THE COMPANY EXPRESSLY DISCLAIMS ANY LIABILITY FOR ALLEGED LOSS OR DAMAGE WHICH MAY RESULT FROM RELIANCE UPON THEM.
ORIGINAL DOCUMENT MAY HAVE POOR PHOTOGRAPHIC QUALITY THIS DOCUMENT IS PROVIDED WITHOUT BENEFIT OF A TITLE EXAMINATION. NO LIABILITY IS ASSUMED FOR THE COMPLETENESS THEREOF. PLATS MAY OR MAY NOT BE A SURVEY OF THE LAND DEPICTED HEREIN. THE COMPANY EXPRESSLY DISCLAIMS ANY LIABILITY FOR ALLEGED LOSS OR DAMAGE WHICH MAY RESULT FROM RELIANCE UPON THEM.
ORIGINAL DOCUMENT MAY HAVE POOR PHOTOGRAPHIC QUALITY THIS DOCUMENT IS PROVIDED WITHOUT BENEFIT OF A TITLE EXAMINATION. NO LIABILITY IS ASSUMED FOR THE COMPLETENESS THEREOF. PLATS MAY OR MAY NOT BE A SURVEY OF THE LAND DEPICTED HEREIN. THE COMPANY EXPRESSLY DISCLAIMS ANY LIABILITY FOR ALLEGED LOSS OR DAMAGE WHICH MAY RESULT FROM RELIANCE UPON THEM.
ORIGINAL DOCUMENT MAY HAVE POOR PHOTOGRAPHIC QUALITY THIS DOCUMENT IS PROVIDED WITHOUT BENEFIT OF A TITLE EXAMINATION. NO LIABILITY IS ASSUMED FOR THE COMPLETENESS THEREOF. PLATS MAY OR MAY NOT BE A SURVEY OF THE LAND DEPICTED HEREIN. THE COMPANY EXPRESSLY DISCLAIMS ANY LIABILITY FOR ALLEGED LOSS OR DAMAGE WHICH MAY RESULT FROM RELIANCE UPON THEM.
ORIGINAL DOCUMENT MAY HAVE POOR PHOTOGRAPHIC QUALITY THIS DOCUMENT IS PROVIDED WITHOUT BENEFIT OF A TITLE EXAMINATION. NO LIABILITY IS ASSUMED FOR THE COMPLETENESS THEREOF. PLATS MAY OR MAY NOT BE A SURVEY OF THE LAND DEPICTED HEREIN. THE COMPANY EXPRESSLY DISCLAIMS ANY LIABILITY FOR ALLEGED LOSS OR DAMAGE WHICH MAY RESULT FROM RELIANCE UPON THEM.
ORIGINAL DOCUMENT MAY HAVE POOR PHOTOGRAPHIC QUALITY THIS DOCUMENT IS PROVIDED WITHOUT BENEFIT OF A TITLE EXAMINATION. NO LIABILITY IS ASSUMED FOR THE COMPLETENESS THEREOF. PLATS MAY OR MAY NOT BE A SURVEY OF THE LAND DEPICTED HEREIN. THE COMPANY EXPRESSLY DISCLAIMS ANY LIABILITY FOR ALLEGED LOSS OR DAMAGE WHICH MAY RESULT FROM RELIANCE UPON THEM.
ORIGINAL DOCUMENT MAY HAVE POOR PHOTOGRAPHIC QUALITY THIS DOCUMENT IS PROVIDED WITHOUT BENEFIT OF A TITLE EXAMINATION. NO LIABILITY IS ASSUMED FOR THE COMPLETENESS THEREOF. PLATS MAY OR MAY NOT BE A SURVEY OF THE LAND DEPICTED HEREIN. THE COMPANY EXPRESSLY DISCLAIMS ANY LIABILITY FOR ALLEGED LOSS OR DAMAGE WHICH MAY RESULT FROM RELIANCE UPON THEM.
ORIGINAL DOCUMENT MAY HAVE POOR PHOTOGRAPHIC QUALITY THIS DOCUMENT IS PROVIDED WITHOUT BENEFIT OF A TITLE EXAMINATION. NO LIABILITY IS ASSUMED FOR THE COMPLETENESS THEREOF. PLATS MAY OR MAY NOT BE A SURVEY OF THE LAND DEPICTED HEREIN. THE COMPANY EXPRESSLY DISCLAIMS ANY LIABILITY FOR ALLEGED LOSS OR DAMAGE WHICH MAY RESULT FROM RELIANCE UPON THEM.
ORIGINAL DOCUMENT MAY HAVE POOR PHOTOGRAPHIC QUALITY THIS DOCUMENT IS PROVIDED WITHOUT BENEFIT OF A TITLE EXAMINATION. NO LIABILITY IS ASSUMED FOR THE COMPLETENESS THEREOF. PLATS MAY OR MAY NOT BE A SURVEY OF THE LAND DEPICTED HEREIN. THE COMPANY EXPRESSLY DISCLAIMS ANY LIABILITY FOR ALLEGED LOSS OR DAMAGE WHICH MAY RESULT FROM RELIANCE UPON THEM.
ORIGINAL DOCUMENT MAY HAVE POOR PHOTOGRAPHIC QUALITY THIS DOCUMENT IS PROVIDED WITHOUT BENEFIT OF A TITLE EXAMINATION. NO LIABILITY IS ASSUMED FOR THE COMPLETENESS THEREOF. PLATS MAY OR MAY NOT BE A SURVEY OF THE LAND DEPICTED HEREIN. THE COMPANY EXPRESSLY DISCLAIMS ANY LIABILITY FOR ALLEGED LOSS OR DAMAGE WHICH MAY RESULT FROM RELIANCE UPON THEM.
ORIGINAL DOCUMENT MAY HAVE POOR PHOTOGRAPHIC QUALITY THIS DOCUMENT IS PROVIDED WITHOUT BENEFIT OF A TITLE EXAMINATION. NO LIABILITY IS ASSUMED FOR THE COMPLETENESS THEREOF. PLATS MAY OR MAY NOT BE A SURVEY OF THE LAND DEPICTED HEREIN. THE COMPANY EXPRESSLY DISCLAIMS ANY LIABILITY FOR ALLEGED LOSS OR DAMAGE WHICH MAY RESULT FROM RELIANCE UPON THEM.
ORIGINAL DOCUMENT MAY HAVE POOR PHOTOGRAPHIC QUALITY THIS DOCUMENT IS PROVIDED WITHOUT BENEFIT OF A TITLE EXAMINATION. NO LIABILITY IS ASSUMED FOR THE COMPLETENESS THEREOF. PLATS MAY OR MAY NOT BE A SURVEY OF THE LAND DEPICTED HEREIN. THE COMPANY EXPRESSLY DISCLAIMS ANY LIABILITY FOR ALLEGED LOSS OR DAMAGE WHICH MAY RESULT FROM RELIANCE UPON THEM.
ORIGINAL DOCUMENT MAY HAVE POOR PHOTOGRAPHIC QUALITY THIS DOCUMENT IS PROVIDED WITHOUT BENEFIT OF A TITLE EXAMINATION. NO LIABILITY IS ASSUMED FOR THE COMPLETENESS THEREOF. PLATS MAY OR MAY NOT BE A SURVEY OF THE LAND DEPICTED HEREIN. THE COMPANY EXPRESSLY DISCLAIMS ANY LIABILITY FOR ALLEGED LOSS OR DAMAGE WHICH MAY RESULT FROM RELIANCE UPON THEM.
ORIGINAL DOCUMENT MAY HAVE POOR PHOTOGRAPHIC QUALITY THIS DOCUMENT IS PROVIDED WITHOUT BENEFIT OF A TITLE EXAMINATION. NO LIABILITY IS ASSUMED FOR THE COMPLETENESS THEREOF. PLATS MAY OR MAY NOT BE A SURVEY OF THE LAND DEPICTED HEREIN. THE COMPANY EXPRESSLY DISCLAIMS ANY LIABILITY FOR ALLEGED LOSS OR DAMAGE WHICH MAY RESULT FROM RELIANCE UPON THEM.
ORIGINAL DOCUMENT MAY HAVE POOR PHOTOGRAPHIC QUALITY THIS DOCUMENT IS PROVIDED WITHOUT BENEFIT OF A TITLE EXAMINATION. NO LIABILITY IS ASSUMED FOR THE COMPLETENESS THEREOF. PLATS MAY OR MAY NOT BE A SURVEY OF THE LAND DEPICTED HEREIN. THE COMPANY EXPRESSLY DISCLAIMS ANY LIABILITY FOR ALLEGED LOSS OR DAMAGE WHICH MAY RESULT FROM RELIANCE UPON THEM.

SelectPropertyAddress

Real

UsageHistory

tablesbelow

Year

ShowUsageFor  Electric

Aug

(KWh)

ShowingMonth

Mar Feb Jan Dec Nov Oct

9/27/22, 2:03 PM NorthWestern Energy - Usage History https://myaccount2.northwesternenergy.com/NWESSP/UsageSummary.aspx?SearchType=ServiceAddressSearch 1/1
ChangeMyUserProfile EnergySavingTips ContactUs Logout
EstateAgentName: TimPHart PropertyAddress: 2390WBEALLSTAPT3 BOZEMAN,MT
1to12outof24Months 1 Go The
showyourenergyusageforthepast24months.Thisinformationmaybeusefulasyoulook for opportunities to saveenergy orwhen youcompare offers of energy suppliers. These figures donot include usageforarealightingorotherunlimitedservices.
2022 2021 Month Sep
Jul Jun May Apr
Usage
156.0 213.0 313.0 310.0 329.0 312.0 319.0 392.0 388.0 351.0 251.0 291.0 Demand 0.0 0.0 0.0 0.0 0.0 0.0 0.0 0.0 0.0 0.0 0.0 0.0 $Billed 22.29 28.92 39.89 39.37 41.54 39.44 39.94 48.11 50.23 46.38 34.37 38.44 No.Days 33 28 31 32 30 32 29 28 31 33 28 29 Year 2021 2020 Month Sep Aug Jul Jun May Apr Mar Feb Jan Dec Nov Oct Usage(KWh) 355.0 431.0 426.0 273.0 267.0 318.0 350.0 360.0 428.0 344.0 277.0 260.0 Demand 0.0 0.0 0.0 0.0 0.0 0.0 0.0 0.0 0.0 0.0 0.0 0.0 $Billed 45.73 54.63 53.02 35.32 34.65 41.12 44.8 45.69 53.03 43.32 35.67 34.39 No.Days 34 28 33 30 30 33 28 29 32 30 29 32 Sep 2022 Aug 2022 Jul 2022 Jun 2022 May 2022 Apr 2022 Mar 2022 Feb 2022 Jan 2022 Dec 2021 Nov 2021 Oct 2021 ReadDate 100 150 200 250 300 350 400 450 KWH ©2021NorthWesternEnergy.Allrightsreserved. PrivacyPolicy|POTerms&Conditions

SelectPropertyAddress

Real

UsageHistory

Thetablesbelow

ShowUsageFor  Gas

energyusage

past

ShowingMonth

months.Thisinformationmaybeusefulasyoulook

not

Year 2022 2021

Sep Aug Jul Jun May Apr Mar Feb Jan Dec Nov Oct Usage(THERM)

Year

2020

Dec Nov Oct

9/27/22, 2:03 PM NorthWestern Energy - Usage History https://myaccount2.northwesternenergy.com/NWESSP/UsageSummary.aspx?SearchType=ServiceAddressSearch 1/1
ChangeMyUserProfile EnergySavingTips ContactUs Logout
EstateAgentName: TimPHart PropertyAddress: 2390WBEALLSTAPT3 BOZEMAN,MT
1to12outof24Months 1 Go
showyour
forthe
24
for opportunities to saveenergy orwhen youcompare offers of energy suppliers. These figures do
include usageforarealightingorotherunlimitedservices.
Month
11.0 12.0 15.0 30.0 60.0 54.0 77.0 66.0 94.0 65.0 43.0 14.0 Demand 0.0 0.0 0.0 0.0 0.0 0.0 0.0 0.0 0.0 0.0 0.0 0.0 $Billed 17.1 18.05 22.28 36.31 59.84 51.57 70.53 59.79 84.78 61.99 42.99 17.76 No.Days 29 28 31 32 29 33 29 28 31 33 28 29
2021
Month Sep Aug Jul Jun May Apr Mar Feb Jan
Usage(THERM) 16.0 12.0 14.0 30.0 51.0 68.0 101.0 86.0 95.0 79.0 53.0 26.0 Demand 0.0 0.0 0.0 0.0 0.0 0.0 0.0 0.0 0.0 0.0 0.0 0.0 $Billed 18.81 15.44 20.87 36.99 53.72 62.75 79.28 66.45 72.69 61.64 43.32 24.38 No.Days 34 28 33 30 29 34 28 29 32 30 29 32 Sep 2022 Aug 2022 Jul 2022 Jun 2022 May 2022 Apr 2022 Mar 2022 Feb 2022 Jan 2022 Dec 2021 Nov 2021 Oct 2021 ReadDate 0 20 40 60 80 100 THERM ©2021NorthWesternEnergy.Allrightsreserved. PrivacyPolicy|POTerms&Conditions

Hart2Admin<admin@hartres.com>

Re:HOAInfoRequest-LessleyEstatesCondos

message

FrankWalker<frankcwalker@me.com>

To:HartAdmin<admin@hartres.com>

Tue,Sep27,2022at7:54PM

Cc:JaneHoward<janebrownhoward@gmail.com>,ElaineNielsen<ekpnielsen@gmail.com>,LylaReibel<lmreibel@gmail.com>,CarolSchott <carolschott58@yahoo.com>,FrankWalker<frankcwalker@me.com>

HartAdmin,

Myanswerstoyourquestionsbelowareinbold. Iamalsoenclosingacopyofour2022Owner’sManualwhichshouldhelpansweralotof questionsforanypotentialbuyers.

Frank Walker

President

LessleyEstatesCondominiumsOwnersAssociation 2302-2396WestBeallStreet

Mail:1627WestMainStreetPMB347 Bozeman,MT59715-4011

frankcwalker@me.com 406-599-5015

OnSep27,2022,at6:21PM,HartAdmin<admin@hartres.com>wrote: HiFrank,

Nicechattingwithyouonthephone.Infollowuptoourconversation,wearerepresentingaSellerwhoownsapropertylocated at2390WBeallUnit3.WewouldliketoprovideprospectiveBuyerswithasmuchinformationregardingtheHOAaspossible.

Couldyouhelpanswerthefollowing?

1 Howmucharetheduesandwhatdotheycover?in2022,theduesare$235/month,butavoteisoutrightnowto theownerstoraisethatto$255/monthin2023.Theduescovertheadministrationandaccounting;general externalmaintenance,includingmowingandtrimming,snowremovalandoutsidemaintenanceofthe16 buildings;allwaterandsewertotheCityofBozeman;themasterpolicyforthecondo complexaswellasa reservefundforlongertermprojectsandaninsurancedeductiblefund.

1.Arethereanytransferfees?Notherearenot

2 Arethereanyspecialassessmentscurrentlyorprojectedinfuture?Inthefirst18years,therehasneverbeenan assessmentandoneisnotplanned.

3 Whatistheowneroccupancyrate?Onlysixof48unitsarerentalunits.

4 Arethereanyrentalrestrictions?Yes,30dayminimumandownerisrequiredtosubmitthetenantinformation formwithin14daysandtenantsmustfollowallrulesjustlikeownersdo.

4 Aresalessignspermittedontheproperty?Onesignnottoexceed5squarefeetmaybedisplayedoutsidethe unitandmustberemovedoncethesaleiscompleted.

Thanksinadvanceforyourhelp!

Bestregards,

Annemarie

HartAdmin

HartRealEstate 406-585-0000

https://mail.google.com/mail/u/1/?ik=220e0ef26a&view=pt&search=all&permthid=thread-a%3Ar4634223259672898561%7Cmsg-f%3A1745176564756702672&si

9/28/22, 1:36 PM Hart Real Estate Solutions Mail - Re: HOA Info Request - Lessley Estates Condos
1/2
1
9/28/22, 1:36 PM Hart Real Estate Solutions Mail - Re: HOA Info Request - Lessley Estates Condos https://mail.google.com/mail/u/1/?ik=220e0ef26a&view=pt&search=all&permthid=thread-a%3Ar4634223259672898561%7Cmsg-f%3A1745176564756702672&si 2/2 Final-2022Owner'sManual(#10)(1)(1).pdf 680K

Lessley Estates Condominiums Owners Association, Inc.

2022 Owner’s Manual

Replaces All Previous Owner’s Manuals

EMERGENCY TELEPHONE NUMBERS:

• FIRE ● POLICE ● AMBULANCE: 911

• Police Department Non Emergency: (406) 582 2000

• Hospital – Emergency Services: (406) 414-5000

• NorthWestern Energy Electrical Emergencies: 888-467-2669

• NorthWestern Energy Gas Emergencies Odors: 888 467 2669

• See Exhibit I for Board of Directors Contact Information

THIS MANUAL MUST REMAIN WITH CONDO WHEN SOLD OR TRANSFERRED TO ANOTHER OWNER

Revisions to this Manual will be provided as needed.

Revised January 1, 2022

1

Table of Contents Title Page

Owner’s (and Tenant’s) Manual Cover 1

Emergency Telephone Numbers 1

Introduction 4

1.0 Terms/Definitions & Management Offices 5

1.1 Maintenance Services Paid For By Unit Owners - - - - - - - - - - - - - - - - - 6

1.2 Maintenance Services paid by Lessley Estates 6

1.3 Insurance 7

1.4 Lawn, Landscape, Trees & Sprinklers 7

1.5 Management of Lessley Estates 8

1.6 Legal Documents of Lessley Estates 8

1.7 Lessley Estates Meetings 8

1.8 Common Areas, Limited Common Areas & Owner Responsibility 9

1.9 Payment of Dues and/or Assessments 9

1.10 Utilities Information - - - - - - - - - - - - - - - - - - - - - - - - - - - - - - - - - - - - 10

2.0 Pets 11

3.0 Additions. Alterations, Repairs and Replacements 11

4.0 Inoperable Vehicles/Machinery and Equipment 11

5.0 Streets and Parking 11

6.0 Noise and Nuisance - - - - - - - - - - - - - - - - - - - - - - - - - - - - - - - - - - - - -13

7.0 Outdoor Equipment Storage and Garbage 13

8.0 Rental Policy 13

9.0 Signs and Permits 13

10.0 Hot Tubs and Spas 14

11.0 Satellite Dishes and Wireless Internet Devices 14

12.0 Procedures for Settlement of Grievances 15

13.0 Barbeques and Wood Burning Stoves 15

14.0 Snow Removal and Ice Dams 15

15.0 Garage Lights 16

16.0 Roofs, Gutters and Downspouts 16

17.0 Unit Exteriors 16

17.1 Combination Storm/Screen and Screen Doors 16

17.2 Exterior Trim, Siding and Soffits 16

17.3 Windows 17

17.4 Outside Faucets 17

17 5 Garage Sales 17

17.6 Exterior Vents and Humidistat Fans 17

18.0 Unit Interiors 18

18.1 Water Heaters 18

18.2 Smoke and Carbon Monoxide Detectors 18

18.3 Crawl Space - - - - - - - - - - - - - - - - - - - - - - - - - - - - - - - - - - - - -18

18.4 Furnaces and Air Conditioning Units 18

18.5 Dryer Vents, Air Ducts and Inside Water Hoses 18

19.0 Owner Absence from Unit 19

20.0 Residential Use 19

21.0 VA Financing - - - - - - - - - - -- - - - - - - - - - - - - - - - - - - - - - - - - - - - - - 19

2

22.0 Fine Policy and Schedule 19

23.0 The Declaration and Bylaws 20

Exhibit “A” Lessley Estates Insurance Information 21

Exhibit “B” Smoke Alarm Information 22

Exhibit “C” Parking Guest Pass and Towing Procedures 23

Exhibit “D” Landscape Change Form 24

Exhibit “E” Architectural Change Form - - - - - - - - - - - - - - - - - - - - - - - - - - - 25

Exhibit “F” Garage Sale Guidelines and Application 26

Exhibit “G” Owner and Association Maintenance Responsibilities 27

Exhibit “H” Crawl Spaces 29

Exhibit “I” Director’s Registry 31

3 Title Page

INTRODUCTION

The Board of Directors of the Lessley Estates Condominiums Owners Association, Inc. welcomes you to condominium living in your new residence. If this is your first experience in this type of residential property, you will notice that it is a significantly different type of living, especially when compared to owning your own separate family home on your own lot. Lessley Estates consists of 16 buildings with 48 residential condominium units spread across 9.5 acres. The word Condominium refers to a housing plan in which you are responsible for the care and maintenance of the interior of your residence, while Lessley Estates is responsible for the care and maintenance of the exterior, with a few exceptions.

The Board of Directors, a volunteer group of elected owners, has a fiduciary and legal responsibility to manage Lessley Estates in accordance with the Articles of Incorporation of 2004, Declaration and Bylaws of 2014, the current Owner’s Manual, and various State of Montana and City of Bozeman statutes. It is important that you become familiar with these documents as they define the various guidelines that accompany this type of property ownership.

Board Meetings are scheduled on a regular basis, normally on the fourth Wednesday of each month. The Board seeks your assistance, input, support and wisdom, and in this regard encourages you to attend the scheduled Board Meetings, as well as the annual meeting in October each year.

The Board appoints and/or contracts for such services as are necessary to implement policies and practices within the Declaration and Bylaws of 2014. This includes, but is not limited to, maintenance, repairs, management services, accounting, scheduled property inspections, and the resolution of complaints. Currently, the Lessley Estates Board of Directors manages the day to day operations of the Association, and may be referred to as “property management” in this document.

The following information is a summary based on the Lessley Estates Declaration and Bylaws of 2014, and all owners are expected to adhere to these policies. Any owner renting his/her unit is responsible for assuring that his/her tenants are aware of this information and adhere to these policies as well. These rules and regulations are set forth to ensure neighborhood safety, to protect the value of each owner’s real estate investment, to maintain the beauty of the development, and to enhance our day to day living experiences.

We hope you find that Lessley Estates is an enjoyable place to live as well as a place where sharing, caring and concern for your fellow neighbors is given a high priority.

4

1.0 TERMS/DEFINITIONS

Bylaws refers to a specific legal document, dated October 21, 2014, that provides a framework for operation of Lessley Estates.

Declaration refers to the Condominium legal document for Lessley Estates, dated October 21, 2014.

Lessley Estates refers to the Lessley Estates Condominiums Owners Association, Inc., which includes the owners of the 48 units.

Unit Owner shall mean the person or persons owning a unit.

.

Board of Directors

The people elected to oversee the operation of the Lessley Estates Condominium Owners Association.

Property Management a management company contracted by the Board of Directors of Lessley Estates for the purpose of being in charge of the administration of, and managing the day to day operations of Lessley Estates The Lessley Estates Board of Directors may choose to serve as the property managers.

Common Elements all portions of the condominium common area owned and maintained by Lessley Estates.

Limited Common Elements those Common Elements on the outside boundaries of the unit, which serve one to three units. Some Limited Common Elements are for the unit owner’s exclusive use, including the front and back patios, utility connections such as electrical, water, sewer, phone, cable and other facilities outside the unit, but used exclusively by the unit owner.

Lessley Estates Mailing Address

Lessley Estates Condominiums Owners Association, Inc. 1627 West Main Street PMB 347 Bozeman, MT 59715 4011

Property Management

Lessley Estates Condominiums Owners Association, Inc

Lessley Estates Board of Directors

℅ Frank Walker Phone: (406) 599 5015 E mail: frankcwalker@me.com

Other definitions can be found in the Lessley Estates Declaration of 2014.

5

1.1 MAINTENANCE SERVICES PAID FOR BY UNIT OWNERS

Trash Three different services are available:

City of Bozeman (406) 582 3200 Monday Pick up Republic Services (406) 586 0606 Tuesday Pick up L & L Site Services, Inc. (406) 388-7171 Friday Pick-up

Recycling

City of Bozeman (406) 582 3200 Republic Services (406) 586 0606

Please place your containers out by the street the evening before pick up. All garbage containers must be stored inside the garage, not outside of the unit, after pickup.

SUGGESTED SERVICE PROVIDERS:

Gas and Electricity: North Western Energy (888) 467 2669

Plumbing: Williams Plumbing & Heating Rick (406) 922 3114

Furnace & Air Conditioning Maintenance: Air Controls of Bozeman, Inc. (406) 587 6292

Electrical: Emerald Electric Mark Lawley (406) 223 1164

Exterior Doors: Kenyon Noble Lumber and Hardware (406) 388 6400

Windows: Bozeman Glass (406) 587 4205

Storm Doors: Lowes’s (406) 522 3268

Garage Doors: Bridger Garage Door Co., Inc. (406) 763 3667

Fireplace: Fireplace Center Inc. (406) 522 9160 Cabinets and Countertops: Futura Cabinets (406) 586 1300

Light Fixtures: Distinctive Lights (406) 586 7172

Dryer Vent Cleaning: Buffalo Restoration (406) 219 5116

Hunter Walker (406) 580 5005 Whit’s Appliance and Repair (406) 580 3966 Mountain Heating and Cooling (406) 586-4007

1.2 MAINTENANCE SERVICES PROVIDED BY LESSLEY ESTATES

Streets: Streets and sidewalks within the Common Areas are owned and maintained by Lessley Estates.

Mowing: All turf area is owned and maintained by Lessley Estates.

Snow Plowing: Lessley Estates is responsible for shoveling walks and plowing streets and driveways. See Section 14.0

Landscaping: Landscaping maintenance in the Common Areas is provided by the Association. See Section 1.4 and Exhibit G.

6

1.3 INSURANCE

1.3.1 Lessley Estates maintains a property replacement and liability insurance policy. The master policy covers the buildings themselves on a limited “all risk” basis, with a $10,000.00 deductible per incident. There is no coverage for earthquake, flood, sinkhole, mold, or normal wear and tear. Included in the building coverage are the structure and permanent fixtures, i.e., cabinets and built in shelving. The master policy does not provide any coverage for the personal belongings and household items not permanently attached or upgrades the owner may have installed that are not part of the building structure The master policy also provides the unit owners with liability coverage in the Common Areas such as streets and sidewalks. See Exhibit “A” Insurance Information for a more detailed description.

1.3.2 Owners are responsible for purchasing an individual homeowner policy that covers their personal property, upgrades, loss of use, loss assessment, personal liability and medical payments to others.

1.4 LAWN, LANDSCAPE, TREES, & SPRINKLERS

Lessley Estates is responsible for maintaining grounds in the Common Areas, including mowing of all lawns, caring for landscape beds, shrubs, and trees, and for maintaining the sprinkler system. Trees and shrubs are pruned and fertilized as needed, and as funds allow. Lessley Estates is responsible for the planting beds that lie behind unit 3’s in the center of the complex.

As a condo owner, your individual responsibility includes those areas where you have individual access such as the interior of your unit, your front porch, your back patio and fence, and those planting beds immediately adjacent to your unit. Owners are responsible for the weeding of those planting units immediately adjacent to their units as defined below, as well as the maintenance and trimming of the shrubs in those areas. Shrubs are to be trimmed as to not exceed five feet in height, to be at least one foot away from walls, and shrub branches and flowers trimmed so as not to extend over the lawn. Branches or flowers hanging over the lawn make it difficult for contractors to mow the grass, and may cause the grass to brown or die. Approved bedding materials are natural shredded bark, washed, round 1 ½” river rock or Soil Pep. If a common or limited common area landscape change is desired, it must be submitted to the Board of Directors for approval, see Exhibit “D” Landscape Change Form on Page 24.

Unit number 1’s responsibilities include the front planting beds facing the street, back patio and planting bed, the planting bed adjacent to the outer walls of the garage, and the shared planting bed by the air conditioning units between units 1 and 2.

Unit 2’s responsibilities include the front planting beds, back patio and planting bed and shared responsibility for the back planting beds by the air conditioning units between units 1 and 2.

7

Unit 3’s responsibilities include the front flowerbeds, the back patio and planting beds, as well as the bed that extends from their patio to the corner of their unit near the center of the complex. The planting area behind unit 3’s is considered a common area and is maintained by Lessley Estates.

Lessley Estates maintains the common area sprinkler system, water well, and pump that provides the water to irrigate the lawns, shrubs, and trees. The system is operated by two Rain Bird controllers which are able to run multiple programs with various start times and day patterns, and adjustable station running times. The lawns and trees are irrigated using flat pop up and rotor style pop up sprinkler heads. The planting beds are irrigated by a drip line. The drip line is a black, one inch tube that is slightly buried in the planting beds around the buildings, and provides a slow drip irrigation method for the shrubs in the beds. The drip line can be easily damaged so owners are asked to be very careful not to cut or nick the drip line when weeding or digging in the planting bed areas. Owners who have modified the drip line or who accidentally damage a drip line, are responsible for any repairs that may be necessary to keep the drip line viable for other owners Owners or tenants are asked to contact a Board member or property management immediately if they notice a leak in a sprinkler head or in the drip line.

1.5 MANAGEMENT OF LESSLEY ESTATES

Lessley Estates is responsible for the Common Areas and provides for property management and maintenance services using Montana licensed and insured contractors as needed.

1.6 LEGAL DOCUMENTS OF LESSLEY ESTATES

The legal documents of Lessley Estates are as follows in hierarchical order of authority: Plat, Articles of Incorporation, the Declaration and By laws of 2014, and the current Owner’s Manual. There are also City of Bozeman rights of way for public access on streets and the east/west trail; as well as, City of Bozeman, County of Gallatin, and State of Montana ordinances.

1.7 LESSLEY ESTATES MEETINGS

Board meetings are normally held monthly on the fourth Wednesday of the month at a board member’s residence, or on line, if necessary. The meeting agenda will be mailed or e-mailed to all unit owners about a week prior to the scheduled meeting. Please check the agenda for the exact time and place. All owners are encouraged to attend.

The annual meeting of Lessley Estates is held in October each year, and it is important that all owners attend in person or be represented by proxy. A quorum of unit owners (more than 50%) is required to conduct business. This meeting includes the Board of Directors

8

elections results; the review and approval of the following year’s budget, and any other business related to the operation of Lessley Estates.

1.8 COMMON AREAS, LIMITED COMMON AREAS & OWNER RESPONSIBILITY

The Lessley Estates Board of Directors has reviewed and discussed both the responsibility of the individual unit owner and the responsibility of Lessley Estates. One of the roles of the Board is to further define these responsibilities.

Three definitions are important: “Common Areas”, “Limited Common Areas” and “Owner Responsibility”.

The Common Areas are those we all have access to and own collectively, such as the center park, the streets (our portion of West Beall Street within the complex), sidewalks, common driveways, the interior gravel footpaths, the underground water well, sprinkler system, lawns, trees and shrubs. The roofs and outside structure of all the units are also considered Common Areas. Lessley Estates is primarily responsible for these areas.

Limited Common Areas are those in which one to three owners have immediate access, but are owned collectively by Lessley Estates. This would include the shared planting beds (such as between units one and two), adjoining fences, shared driveways, etc.

Individual Owner Responsibility includes those areas in which you have individual owner access; such as the interior of your unit, your front porch, back patio and fence structure and those planting beds immediately adjacent to your unit. Because only a few units have skylights installed, they are considered an individual responsibility.

It is the responsibility of all owners/tenants to keep personal possessions from encroaching upon common or limited common areas such as shared driveways and screening beds, and to limit the number and size of shrubs and flowers in planting beds or in pots in order to maintain an aesthetically pleasing appearance.

Lessley Estates is responsible for all Common Area additions, deletions and maintenance. Unit owners may not make any alterations, additions or deletions to any Common Area within the confines of Lessley Estates without prior written Board approval. See Exhibit “D” Landscape Change Form on page 24. Trees and/or shrubs donated by Owners and/or planted in Common Areas beyond the planting beds immediately adjacent to their units, become the property of Lessley Estates to care and maintain.

1.9 PAYMENT OF DUES AND/OR ASSESSMENTS

Monthly Dues and/or assessments are approved by majority vote of Unit Owners at the Annual Meeting. Dues and/or assessments may be paid monthly, quarterly, semi annually or annually at the option of the Unit Owner, and are due on the first day of each month. If payment is not received by the tenth day of the month, Unit Owners are considered delinquent and will be assessed a fee of $25.00 for each occurrence.

9

UTILITIES INFORMATION

FIRE EXTINGUISHERS

Owners are encouraged to have at least two fire extinguishers in their unit, one in the kitchen and one in the garage. Owners are encouraged to periodically shake fire extinguishers to avoid chemical settling in the bottom.

ELECTRICAL

The main electrical disconnect is located outside the east wall of units 2352 2396 #3s and outside the west wall of 2302 2346 #3s. Breaker boxes inside the units are located in the laundry rooms of units 1 & 3 and in the garage of unit 2s.

GAS

The gas meters for all units are located outside the east wall of units 2352 2396 #3s and outside the west wall of 2302 2346 #3s.

WATER

There are two sources of water used at Lessley Estates: (1) The City of Bozeman water/ sewer system, and (2) The landscape irrigation system provided by an underground well, water pump, and sprinkler system.

Each building at Lessley Estates is connected to the City of Bozeman water/sewer system. This provides water/sewer service inside each unit, and also for any water that is accessed through the outside faucets of each unit. Units do not have their own water meter. Instead, each building has one water meter which is read each month by the city, and the city sends Lessley Estates a bill for all sixteen buildings. Individual unit owners do not pay directly for the city water/sewer service. The bill is paid by Lessley Estates each month utilizing Lessley Estates assessed dues.

Water usage by building is carefully monitored, and it is important that each unit owner/ tenant does his/her best to conserve water to minimize Lessley Estates costs, and to use this precious natural resource wisely. Please repair leaking faucets, shower heads, or toilets immediately, and use a nozzle on your outside hose so it will automatically turn the water off when it is not needed. The water supply to the washing machine should be turned off during extended absences from the unit.

The water shut off valve is located in the crawl space of each individual unit. Owners should know the location of their unit’s water shut-off valve so it may be accessed quickly if an emergency arises. The City water shut off valve for the entire building is located in the front yard of unit #1

Lessley Estates has a water well, water pump, and sprinkler system that provides water to irrigate lawns, trees, shrubs, and planting areas. Lessley Estates pays for the electricity to run the pump and to maintain the system. Many unit owners have tapped into the drip line irrigation system in the planting beds adjacent to their unit in order to water outside flowers. If a unit owner would like to pursue this option, the owner must submit a

10 1.10

“Landscape Change Form” to the Board of Directors for approval. See page 24. Alterations made to the drip line will be incurred at the unit owner’s expense.

2.0 PETS

Each Owner is allowed no more than three (3) large pets, and they may not be used for commercial purposes. Large pets shall mean a dog or cat. Dogs must be on a leash at all times when outside on general common elements. Owners are responsible for cleaning up after their pets immediately and for any damage caused by their pets. Pet Owners must respect their neighbors’ right to peace and quiet, and their right to have all lawns and planting beds free of pet waste.

3.0 ADDITIONS, ALTERATIONS, REPAIRS AND REPLACEMENTS

Any proposed changes made to the exterior of any building, including exterior doors, storm doors, extensions of patios, fencing and gates must be submitted to the Board in writing and approved in writing by the Board prior to any work being done. All replacements and colors must match the original as closely as possible.

See Exhibit E Architectural Change Form

4.0 INOPERABLE VEHICLES/MACHINERY AND EQUIPMENT

No Unit patio or driveway shall be used for the storage of any inoperable vehicle, machinery or equipment, or other personal property of any quantity in excess of the immediate needs and personal use of the owner or occupants of a Unit. All equipment and vehicles kept on the Property, including, but not limited to, recreational vehicles, campers, trailers, motor homes, boats, and all other recreational equipment shall be enclosed in the garage. No one shall reside in such recreational vehicles, motor homes, campers, trailers or other recreational equipment stored on the Property.

5.0 STREETS AND PARKING

Lessley Estates streets are private streets with a public easement, and are not Bozeman City standard width. Therefore, Lessley Estates retains the right to establish rules and to regulate and enforce such rules.

West Beall Street loop, which provides access to all units, is designated a tow away zone. Any vehicle parked overnight will be towed at the vehicle owner’s expense. Signs along the street notify all residents of this policy. At the south end of the complex, on-street parking on either side of the street is not allowed at any time. This is due to the narrowness of the street.

Special “Guest Pass” dashboard hang tags to be hung on the rear view mirror of the vehicle for short term guests that must park overnight on the street (except at the south

11

end) will be available. These will only be used when there is not adequate room to park in the Unit Owner’s driveway or for the occasional unoccupied small trailer. The hang tags may be used for a maximum of three (3) consecutive days at one (1) time.

Lessley Estates streets must maintain a minimum clearance of twenty (20) feet in width for emergency vehicle access. (City of Bozeman Ordinance §10 32 180, paragraph A.) Parking is encouraged on the outside lane of the street, in either direction for the safety of all residents. If vehicles are parked on both sides of our street, there is inadequate access for emergency vehicles such as ambulances and fire trucks.

Parking areas are provided for each Unit, two (2) in each Unit’s garage and two (2) only, on the driveway directly in front of each Unit’s garage. For safety purposes it is encouraged that Unit Owners park their vehicles in their garage. Vehicles parked in the driveway may not extend beyond the end of the driveway directly in front of the Unit Owner’s garage. Parking of any vehicle on a driveway or on the street may not interfere with the right of other Unit Owners, his/her tenants and/or guest’s safe access to and egress from their garages. If a Unit Owner, his/her tenant, and/or guest vehicle is too large to park within the limits of the unit’s driveway, alternate parking arrangements must be made.

It is the responsibility of Unit Owners to inform his/her tenants and/or guests of Lessley Estates parking regulations.

Commercial vehicles making deliveries or providing services are allowed to park on the street during the time of delivery or services only. Other vehicles used to provide services, including, but not limited to, house cleaning, minor repairs and other activities of that nature, must park in the Unit Owner’s driveway.

Trucks over ¾-ton capacity and recreational vehicles including, but not limited to, trailers, motor homes, ATV’s, and boats are not allowed to park on the driveways of Lessley Estates

i. An exception to this is that Unit Owners, his/her tenants, and/or guests may park a recreational vehicle on the driveway for a maximum of twenty four (24) hours if attended, and provided it does not intrude beyond the designated driveway parking area immediately in front of the Unit Owners garage. This is to ensure that other Unit Owners, his/her tenants, and/or guests, and emergency vehicles have prompt, safe access to and egress from their unit.

ii. No vehicles shall obstruct a sidewalk.

Unit Owners, his/her tenants and/or guests who violate Lessley Estates parking rules may have their vehicle towed at the vehicle owner’s expense.

Lessley Estates streets are not to be used by any unlicensed motor powered vehicle of any type or by anyone not licensed to operate properly licensed vehicles on a public street or highway, the exception being wheelchairs and maintenance equipment. The speed limit on all streets in Lessley Estates is fifteen (15) miles per hour.

See Exhibit C for additional parking guidelines.

12

6.0 NOISE AND NUISANCE

All owners, tenants, guests and any other occupants shall be considerate and sensitive to others in regard to noise levels. No noise or nuisances shall be allowed upon the property, nor shall any use or practice be allowed which is a source of annoyance to owners of Lessley Estates. Quiet hours are from 10 P.M. until 8 A.M. Any serious incident of this nature will be reported to the Bozeman Police Department. The City of Bozeman ordinance on noise (8.30) does apply to Lessley Estates. Fireworks are prohibited.

7.0 OUTDOOR EQUIPMENT STORAGE AND GARBAGE

All trash and recycling containers shall be put out the evening before or the morning of pick up and shall be returned and stored inside the unit’s garage after pick up. No junk, garbage, trash, equipment, lumber, debris or other waste shall be allowed on the sidewalk, entrance, patio, or driveway of any unit or in Common and/or Limited Common Areas.

8.0 RENTAL POLICY

All owners are responsible for their tenants’ compliance with the rules and regulations of Lessley Estates. Owners need to ensure their tenants have a copy of the current Owner’s Manual and are familiar with its contents. In addition, city and municipal codes will need to be followed. This includes making sure that no more than four (4) unrelated people are living in the unit. There is a 30 day lease minimum. Owners will submit a tenant contact form to the board within 14 days. Failure to comply will result in fines for the owner.

9.0 SIGNS AND PERMITS

A “For Sale”, “For Rent” or “For Lease” sign may be displayed outside the unit, but is limited in size not to exceed 5 square feet. The sign must be removed when the sale is completed, or the unit is rented, or leased.

Open House signs, measuring no greater than 2’ x 2’, may be placed in the front common area on the day of the open house. Such signs may only be displayed for one hour prior to and no longer than one hour following the open house, at which time it must be removed.

Owners shall not cause or permit anything to be hung or displayed on the outside of windows or placed on the outside walls of a building. No sign, garden hose reel or hook, awning, canopy, radio, or decoration shall be affixed to or placed upon the exterior walls or roof of any part thereof, without the prior written consent of the Board of Directors. Seasonal decorations should be removed within two weeks after the holiday or event.

No signage, including election signs, will be placed in the general common areas without prior approval of the Board of Directors.

Unit Owners may install a mounting bracket on the front entrance support post for the display of an American Flag.

13

10.0 HOT TUBS AND SPAS

Hot tubs and spas are allowed in Lessley Estates under the following guidelines:

1. Outdoor hot tubs/spas are allowed only on the unit owner’s patio, and no additional privacy patio fencing is permitted.

2. Prior to installation, the unit owner must submit a written request to the Board of Directors detailing the size of the hot tub/spa, installation location on patio, and agreement to comply with the City of Bozeman building code information addressing Hot Tub and Spa Installations.

3. During installation or removal of a hot tub/spa, workers are not allowed to drive trucks or other equipment on turf areas due to potential damage to lawn, sprinklers or utility lines unless authorized in writing by a Lessley Estates representative.

4. Water from the hot tub/spa is not allowed to be drained onto the grass or other planting areas of Lessley Estates. Hoses must be used to transport the water to the street for disposal. Water may not be disposed into the street during the winter months due to possible ice accumulation so please plan accordingly.

5. Hot tub/spa owners are encouraged to be good neighbors and not allow usage to disturb others in the complex. See Article 6.0 Noise and Nuisance.

6. If excessive water consumption occurs due to the usage of a hot tub/spa, additional water consumption charges may be assessed.

7. Any damage to the patio or other limited common areas or common areas caused by the hot tub/spa installation, usage, or removal shall be the owner’s responsibility.

11.0 SATELLITE DISHES AND WIRELESS INTERNET DEVICES

Lessley Estates prohibits the installation of satellite dishes/antenna on general common elements due to the damage it causes to roofs and siding, and aesthetics of the building design. Satellite dish/antenna systems will not be installed on any common element of Lessley Estates. The drilling of holes through any exterior wall, roof, or foundation, or attaching any type of wire/cable to any common element is also prohibited. Units with an existing satellite dish or wireless internet device installed prior to adoption of the October 21, 2014 Owner approved Declaration, and is presently being used, will be “grandfathered in” as long as the present owner retains ownership of his/her unit, and the present renter resides therein.

i. Whenever a unit changes ownership, or a rental terminates, any existing satellite dish or wireless internet device installed in a common area must be removed and the common area must be repaired at the Owners expense. Repairs made to the surfaces where installations existed must be performed by a qualified contractor(s) approved by the Board of Directors. Any repair not performed to the satisfaction of the Board of Directors will be contracted for and performed by a qualified contractor(s) at the expense of the Unit Owner.

ii. If compliance is not met by the Unit Owner, fees and fines as allowed by the Declaration and Bylaws and the State of Montana will be assessed for the

14

collection, expenditure and accounting of said fees and fines through any legal means required.

iii. See Federal Communications Commission Rules and Regulations, section 207.

12.0 PROCEDURES FOR SETTLEMENT OF GRIEVANCES

These procedures provide a process intended to prevent or overcome personal conflict and/or grievances that occur in Lessley Estates and to overcome such conflict or grievance without delay, in a conciliatory, informal and effective manner.

A. It is important that the resolution process systematically addresses the issues.

B. For the purpose of these procedures, a grievance is defined as a Lessley Estates problem or condition which a Unit Owner(s) believes to be unfair, inequitable, not in keeping with the established rules, regulations and policies of Lessley Estates, or is discriminatory or a hindrance to Lessley Estates

i. Unit Owner(s) with a grievance will address that grievance directly to the Board of Directors in writing stating specifically what the grievance is, and giving the Board of Directors time to respond.

ii. If no resolution is achieved, the Board of Directors may suggest the appropriate entity to proceed with the grievance and seek a resolution based on State and Federal policies and rules. If the Board of Directors and owner(s) do not reach an agreement, it is agreed to take the grievance to mediation.

iii. Pending the final award, the mediator’s compensation and expenses shall be shared equally by the parties.

13.0 BARBEQUES AND WOOD BURNING STOVES

Barbeques are allowed on patios. Outside wood burning devices are prohibited.

14.0 SNOW REMOVAL AND ICE DAMS

Sidewalks on the perimeter of the complex will be cleared by the contractor when 1” or more of snow has accumulated. Driveways and sidewalks of individual units will be cleared when 2” or more has accumulated. Owners may shovel their walks and clear their driveways at their option when not enough snow has accumulated to engage the snow removal contractor. Driveways will not be plowed if a vehicle is parked in the driveway.

To prevent ice dam build ups which can ruin roofs and allow water into units, Lessley Estates will rake snow back three feet on the roofs of units on an “as needed” basis. Unit

15

owners are asked to immediately report any leaks or ice dam development to property management. Heat tapes are allowed with approval by the Board of Directors.

15.0 GARAGE LIGHTS

Lessley Estates maintains the outside garage lights for security purposes, specifically because we do not have streetlights. The switches for exterior garage lights must be left on at all times. This switch is located in the garage. An automatic light sensor will turn the lights on at night and off during the day. A volunteer group of owners replaces the LED bulbs on an as needed basis. Please call property management if one or more of your exterior garage lights are burned out, or if the sensor is not working properly.

16.0 ROOFS, GUTTERS AND DOWNSPOUTS

The roofs and downspouts are Lessley Estates responsibility and will be inspected routinely, and any problems will be repaired as soon as possible If a Unit owner notices any leaks or damage to a roof, gutter, or downspout, he/she should notify property management immediately.

17.0 UNIT EXTERIORS

17.1 Doors, Combination Storm/Screen, and Screen Doors

Combination storm and screen doors or just screen doors may be purchased by the unit owner and have professionally installed. The door must match the trim color of the unit. The Larson almond colored storm door with retractable screen is the accepted model for combination storm and screen doors. Either brass or brushed nickel finishes for the door handles are acceptable. The front doors are 36” wide and the back doors are 32” wide. Door handles and door locks are the responsibility of the unit owner

17.2 Exterior Trim, Siding and Soffits

The buildings’ exterior trim is aluminum fascia. EFIS (synthetic stucco) and Hardy Plank cement board make up the rest of the exterior finishes. These products should not require replacement for many years and will be maintained by Lessley Estates as necessary. Lessley Estates is responsible for maintaining the appearance of these features, while the owner is responsible for repairing any damage caused by his/her actions or the actions of his/her tenants and/or guests.

Owners, his/her tenants, and/or guests are not allowed to use nails, screws, or any other fasteners that would put holes in the Hardy Plank siding, EFIS

16

walls/trim, or vinyl windows. Owners must not allow personal items to lean against any part of the building/siding so as not to scrape the siding.

17.3 Windows

Lessley Estates is responsible for the repair or replacement of failed, broken, or malfunctioning windows unless the damage is caused by the actions of the owner, tenants, or guests. This includes windows in the living spaces of the condo, windows in the entry way door or patio door, and windows in the garage area. Lessley Estates reserves the right to determine if a window needs to be replaced or repaired. Owners are encouraged to contact property management if there is a concern about a window.

17.4 Outside Faucets

Owners must unfasten and remove all hoses before the first freeze and throughout the winter season to prevent freezing. If the frost proof faucet freezes due to a hose being attached, the owner must pay the full cost of repair and replacement, and may be assessed an additional water consumption fee. These faucets are the owner’s responsibility.

17.5 Garage Sales

Garage Sales shall be held only with prior approval of the Board of Directors. See Exhibit “F” Garage Sales.

17.6 Exterior Vents and Humidistat Fans

The ten buildings north of the Center Park (2302, 2310, 2316, 2322, 2328, 2372, 2378, 2384, 2390, and 2396) have exterior foundation vents. Lessley Estates will have foam vent blocks installed in the fall to cover the vents in order to keep the crawl spaces warmer in the cold months. Lessley Estates will remove the foam vent blocks in the summer to increase crawl space air flow. Owners are encouraged to check these vents occasionally, and are responsible to report any missing foam vent blocks to property management. Due to a change in building codes, the six buildings south of the Center Park (2334, 2340, 2346, 2352, 2358, and 2366) do not have exterior foundation vents.

All units in all sixteen buildings have a humidistat fan located in the crawl space which switches on automatically to help remove excess moisture. Owners should check the humidistat fan in the summer to make sure it is operating properly. If you hear a faint humming sound, it is probably the humidistat fan at work. See Exhibit “H” Crawl Spaces

17

18.0 UNIT INTERIORS

18.1 Water Heaters

Unit Owners are responsible for water heater maintenance and/or replacement Watch for leaks and expect to replace the unit after ten to fifteen years. Routine maintenance requires draining the tank once a year and cleaning out any debris.

18.2 Smoke and Carbon Monoxide Detectors

Unit Owners are responsible for changing the batteries on a regular basis. They use 9 volt batteries. Owners are also responsible for maintenance and repair of these detectors. See Exhibit B.

18.3 Crawl Space

The usable space beneath the living area of a unit is called the “crawl space”. This space may be used for storage as long as it does not create a hazard to any Unit or obstruct any easement for utility services. Also, such use may not result in the cancellation or rate increase of Lessley Estates insurance.

In the event of an emergency, the Board of Directors and/or its consultants have the right upon reasonable notice to Unit Owner, or the Unit Owner’s representative, to enter into the unit to access the crawl space, or attic, in order to assess and/or repair a problem (such as, but not limited to, a fire, flood, gas leak, electrical or other emergency) which could potentially damage the unit, other units, or common elements belonging to Lessley Estates. Entering the Unit will be made by no less than two (2) persons and may include the Unit Owner or his/her representative. See Exhibit “H” Crawl Spaces.

18.4 Furnaces and Air Conditioning Units

The furnace and air conditioning systems are the responsibility of the Unit owner. To ensure your safety as well as energy efficiency, you must maintain your furnace and air conditioner on a regular basis, including the changing of your filter according to the manufacturer’s directions.

18.5 Dryer Vents, Air Ducts and Inside Water Hoses

Air ducts should be cleaned on a regular basis as a safety issue. Dryer vents should be cleaned on a regular basis to prevent fire. Owners are encouraged to purchase and install leak proof/burst proof water supply line hoses for their washing machine. Owners should check their sump pumps (located in the crawl space) at least annually to ensure they are working properly. Normally, you can occasionally hear the water from the sump pump draining into the washing machine drain.

18

19.0 OWNER ABSENCE FROM UNIT

When an Owner is gone for an extended period of time, thermostats should be turned no lower than 55 degrees during the winter months, and the water supply to the washing machine should be turned off.

It is imperative to leave a contact name and number or your own cell phone number with the management company in case of an emergency.

20.0 RESIDENTIAL USE

The units in Lessley Estates are for residential use and not for commercial use. Unit Owners may have a personal business/office (telephone calls, faxes, correspondence) but may not use their units for any business that generates foot traffic, additional vehicle traffic or disturbances to neighbors.

21.0 VA Financing

Lessley Estates qualifies for VA (Veteran’s Administration) loans. Other mortgages, including reverse mortgages, are offered by various institutions in the community.

22.0 FINE POLICY AND SCHEDULE

All owners are obligated to comply with the Declaration and Bylaws of 2014, the current Owner’s Manual, and the laws of the City of Bozeman, County of Gallatin, and State of Montana.

Violations and/or infractions are cause for fines to be levied. Owners will be sent a warning letter for each violation and will have 14 days to correct the item. If not corrected by the end of 14 days, the following schedule of fines will be implemented. When the sum of $300 is reached including late monthly condominium fees, a lien will be attached to that unit.

1st Offense: Warning letter

2nd Offense: $ 50.00

3rd Offense: $100.00

4th And Subsequent Offenses: Fines will be determined by the Board of Directors taking into account the seriousness of the violation, the length of time between violations, and any extenuating circumstances.

19

THE DECLARATION AND BYLAWS

The contents of this document do not supersede the Lessley Estates Declaration and Bylaws of 2014.

20 23.0

EXHIBIT “A” Lessley Estates Insurance Information

Lessley Estates Condominiums Association has a Residential Community Association insurance policy (master policy) issued by State Farm Fire and Casualty Company. This policy covers damages that may occur to our buildings under certain conditions, and provides liability coverage for the Association and for common areas. This information is a summarization and is not meant to be used to make insurance decisions. An electronic copy of the master insurance policy is available upon request. Please consult your insurance agent for your needs.

The State Farm policy covers building damages caused by many perils including fire, lightning, explosion, windstorm or hail, aircraft or vehicles, weight of snow, ice or sleet, and certain water damages. The policy does not cover damages resulting from earthquakes, floods, sinkholes, mold, or normal wear and tear items. If a building is damaged due to one of the qualifying perils, State Farm would cover the cost of repairs minus the policy deductible. This coverage includes the structure of the building and things attached to it such as fixtures, flooring, built in appliances, and built in shelving. It also includes improvements and alterations that are part of the building structure. Water damage is covered only if caused by the abrupt accidental discharge or leakage of water from the abrupt rupture of any part of a plumbing system or appliance. Water damages caused by an on going, slow leak from a plumbing system is not covered. The policy does not include personal property or household items owned by the unit owner.

The State Farm policy has a $10,000 deductible for each occurrence. This means the Association is responsible to pay the first $10,000 for covered repairs. Therefore, any qualifying repair costing les s than $10,000 is usually handled directly by the Association. Damages caused by the actions of an owner, his/her tenants or guests are the responsibility of the owner.

The master policy has inflation coverage and guaranteed replacement cost endorsements. This means State Farm would pay what our property is worth at the time of the incident or pay the actual replacement cost to rebuild if a catastrophic event occurred.

The State Farm policy also provides business liability coverage for the Association and for unit owners in common areas. This coverage helps protect against legal liability from accidents or injuries incurred while on the common areas of Lessley Estates. It also protects our Board of Directors against claims alleging wrongful acts in carrying out their duties.

Unit owners should consider purchasing an individual condo insurance policy for the following:

1. Personal property covers your possessions against theft, damage or loss

2. Upgrades or improvements made to your unit that are not part of the building structure

3. Loss of use helps pay for expenses if you have to live elsewhere, if your unit is uninhabitable due to a fire or other covered peril

4. Personal liability and medical payments to others protects you if others make a claim or bring a suit against you for physical injuries or property damage that occur inside your unit

5. Loss assessment helps prevent a condo owner from paying out of pocket if their condo association issues a special assessment for expenses related to an insurance claim outside the walls of their unit

Again, please consult your insurance agent to make sure you have the insurance that meets your needs.

21

EXHIBIT “B” Smoke Alarm Information

Our BRK smoke alarms are warranted for 10 years from the date of original construction. The smoke alarms are all hardwired to the electric power system and utilize a 9 volt battery backup. They are also wired together, so when one goes off, they all go off. Most of us have five ceiling mounted smoke detectors, designed to warn you of smoke or fire in your unit.

As most of our condos are ten years old or older, you should consider replacing your smoke alarms. For the do it yourselfer, a six pack of the BRK Smoke Detectors (BRK 9120B 120 volt, Ionization smoke detector, with battery backup) are available at Lowe’s for about $77. Individually, they are available from Lowe’s, Ace and Home Depot and other stores for about $16 18 each. The new alarms come with a new 9 volt battery. It is relatively easy to remove the old smoke alarms and install the new ones and this normally takes about 30 minutes to replace all five alarms. You will need a ladder, a screwdriver and a good flashlight. If you have a vaulted ceiling and a high mounted alarm, you will need a 12 foot stepladder. If you are not able to replace the alarms yourself, the property management company may be able to provide someone (at your cost) to do that for you. Smoke alarms are the unit owner’s responsibility.

As a recap, if one alarm starts beeping (and you don’t have a fire), it means the battery has failed in that alarm and must be replaced to silence it. If all 5 alarms are screeching, it means an alarm has failed and must be disconnected to silence it and then it must be replaced. You may not think this is important but after a couple of nights being awakened around 3:00 a.m. without understanding what to do, the situation will get your attention. Please remember to change your 9 volt batteries once a year or they will “chirp” when the batteries get weak.

If you don’t already have a carbon Monoxide (CO) detector, you should invest in one, especially with our gas stoves and gas hot water heaters. Owners who rent their units are required by Montana law to have both smoke detectors and CO detectors.

22

EXHIBIT “C”

Lessley Estates Parking Guest Pass and Towing Procedures:

Guest Passes were issued to each owner in 2011. They are valid following these instructions:

• Valid for temporary overnight street parking at Lessley Estates

• 3-night limit per permit.

• No street parking on the south end of Lessley Estates

• Permit requires all vehicles to move for snow plowing operation

• Preferred overnight guest parking is in front of the unit’s garage

• Hang tag on rear view mirror facing the front of the vehicle

• Owners should use a dry erase marker for this reusable permit

• Please contact a Board member or property management for further information or to obtain a guest pass.

When vehicles are not in compliance with overnight or other parking violations, the following procedures will be followed by a Board member or property management:

• Verify that the vehicle is in a no parking zone (South end is no parking anytime, and the rest of West Beall loop is no parking overnight from 12AM 7AM.)

• Verify that the vehicle does not have a guest pass (hang tag on the rear view mirror). If you are checking at night, make sure you have a good working flashlight.

• Write down license number, vehicle description and location.

• After verifying all of the above, call a towing company and give them the license number, color and make of car and exact location.

• The vehicle is generally towed within 20 minutes. Once the tow truck drops his equipment, the vehicle will be towed no matter if the vehicle’s owner runs out to protest.

• The overall reason for removing vehicles parked illegally is to ensure both compliance and safety for our residents, and to maintain property values.

• Owners are encouraged to contact the Board of Directors or property management to report possible parking violations.

23

Landscape Change Form

This form should be used by owners who propose any changes to the common area or limited common area landscape including trees, shrubs and other plants. The Board’s goal is to ensure Lessley Estates landscaping looks its best and can be maintained by the Association for a reasonable cost. Trees and/or shrubs donated by Owners and/or planted in Common Areas beyond the planting beds immediately adjacent to their units, become the property of Lessley Estates to care and maintain.

1. Please attach a detailed plan of your proposed project. Your plan should be drawn to scale and have the length and width of the project shown as well as the measurements from the unit where it is to be planted, and its relationship to neighboring units. Please have your neighbor(s) sign off on your request.

2. List all proposed plant materials. This should closely follow the installation materials and recommendations in Section 1.4 of this Owner’s Manual (Page 7).

3. List any changes or potential impacts to the drip line or sprinkler system.

4. Send a copy of your plan to the Board of Directors for conceptual approval. An on site visit by the Board and/or professional landscape review may be necessary. Depending on the planting placement, the Board may need to consider more broadly which neighbors might be affected/involved.

5. If the project is given final approval, the owner will be contacted in writing and the work can be accomplished.

6. If you have Board approval and you are paying for the materials and installation, it should be by completed by a licensed and insured contractor.

24 EXHIBIT “D”
Name: __________________ Address: ____________________________ Date: _______ Phone:

Lessley Estates Architectural Change Form

Examples: Gates, skylights,

concrete pads, hot tubs, additional exterior electrical outlets, outside water faucets,

protection

changes

exterior of the building.

Required plot plans, drawings

specifications

be attached with a complete description of

City of Bozeman building permit, if applicable, must be submitted with this application. Supporting documents will not be returned, as they will become a part of the permanent record in your homeowner file. Approval or disapproval will be mailed to you within 30 days from date of receipt of the application.

proposed change.

of work: Staple all attachments to this form. Incomplete applications will not be accepted. If additional space is need please use additional paper.

Note

Unit Owner is fully responsible for any and all damages to any common area including, but not limited to, roof damage, leaks, improper flashing or sealing. Unit Owner is fully responsible for complete insurance coverage for improvements. Unit Owner is responsible to advise all Contractors that the grass in all turf areas is not to be used as work or storage areas; Contractors are not permitted to drive trucks or other heavy equipment on turf areas; Contractors are responsible for thorough cleanup of sidewalks, driveways and streets. The Unit Owner shall be liable for any charges incurred as a result of Contractor negligence.

25 EXHIBIT “E”
additional
and any
involving the
* For your
always use licensed, bonded and insured contractors. Date: _____________________ Condo Unit Number: ________________ Condo Owner Name: ______________________________________________________ Signature: _______________________________________________________________ Address: ____________________________________ Phone Number: ______________
and
must
the
A
Description
Date Approved: __________________________________________________________ Approved/Disapproved by: _________________________________________________ Comments: _____________________________________________________________
:

Lessley Estates Garage Sale Guidelines & Application:

1. All garage sales must have board approval before the proposed sale.

2. Individual or group garage sales of personal property are permitted.

3. Garage Sales must be conducted in a manner so they are not construed as a “nuisance”. See Amended and Restated Declaration Article VI, paragraph o).

4. Sales may be conducted no more than two (2) times per year per address.

5. Sales may last no longer than three (3) consecutive days.

6. Only one (1) sign is permitted on the common area and must be promptly removed at the end of the sale.

7. Sale items to be displayed only in unit owner’s garage and/or on driveway in front of his/her garage, not on lawn area

8. The sale of commercial, industrial or business items is not permitted

9. Sale times are not to begin before 8:00 A.M. or extend beyond 3:00 P.M. daily.

10. It is the owner’s or tenant’s responsibility to oversee traffic and customers.

11. All parking rules are in place and will be strictly adhered to, or vehicles in violation will be towed. See Amended and Restated Declaration Article III, Streets and Parking Areas:

26 EXHIBIT “F”
Proposed Dates and Times: _________________________ I understand and agree to follow the above guidelines: Unit #:_____ Owner or Tenant Printed Name Date: ___________________ Owner or Tenant Signature Lessley Estates Condominiums Owners Association, Inc. _______ Approved: ___________________________________ Date: _______________ President _______ Disapproved: _________________________________ _Date: _____ President Comments:

EXHIBIT “G”

Lessley Estates Owner and Association Maintenance Responsibilities:

Lessley Estates Condominiums Association has certain responsibilities to fix, repair, and maintain our buildings and grounds in order to provide a safe and inviting living environment. However, the Association is not responsible to fix everything for every owner. So how do we define what the Association will repair and maintain, and what individual unit owners should be responsible to fix and maintain at their own expense?

The Board of Directors has developed guidelines to help differentiate between Association and Owner maintenance/repair responsibilities. The goal is to provide clarity, to treat all owners fairly, to provide consistency from year to year, and to use funds as prudently as possible.

Some items on the Association list include the general maintenance of the grounds (mowing, fertilizing, tree trimming, sprinklers, etc.); the exterior painting of buildings including doors, patio fences, and porches; and repairs such as fixing leaking roofs/gutters, damaged siding, or broken vent covers.

The items on the Unit Owner’s maintenance/repair list include personal interest items (items that pertain just to one unit) such as maintaining/repairing window screens, garage door seals, garage door openers and springs, entryway and exit door weather stripping, repairing air conditioners or furnaces, replacing patio light bulbs, and weeding and trimming bushes in assigned planting beds. Also, any damage to the buildings or grounds caused by the owner, the owner’s guests/tenants, or a contractor hired by an owner, would be the owner’s responsibility to repair.

The lists on the following pages are not meant to be all inclusive. They will be updated as more items are identified. As a reminder, owners are asked to refer to section 3.0 of the Owner’s Manual and “Exhibit E” before making additions, alterations, repairs and/or replacements.

27

Lessley Estates Responsibilities:

Mowing and Fertilizing

Tree and shrub trimming in common areas

Maintenance of all common area planting beds

Weed control in common areas

Painting of exterior of buildings

the exterior of outside doors

Replacing exterior garage light bulbs/ all external fixtures

Snow removal

Street and sidewalk maintenance

Patio fence staining & front columns & wood over front porch

Roofs, siding, downspouts, gutters and downspout extensions

vent covers

Annual install/uninstall foam vent blocks on crawl space vents

Replacement of windows & failed window panes

Heat Tapes to prevent ice dams

Irrigation pump, sprinklers and original drip lines

Owner Responsibilities:

Assigned planting beds maintenance & shrub replacement

Weeding and trimming shrubs in assigned planting beds

Window screens

Garage door seals, openers & springs

Crawl Space Inspections

Entryway and exit door weather stripping

Entry door locks & door hardware

Back patio and front porch light bulbs

Interior maintenance including painting, electrical circuits, and plumbing

AC and furnace maintenance, repair/replacement

Hot water heater maintenance and repair/replacement

Skylights

Patio cement and owner installed concrete

Patio fence, structure & hardware

Smoke & CO2 detectors

Dryer vent cleaning

Storm doors (almond)

Humidistat in crawl space

Sump pump under furnace in crawl space

Replace windows broken by owners/tenants

Electricity for heat tape

Repair/replace drip line modifications in assigned planting beds

Outside faucets and hose bibs

28
1
2
3
4
5
6 Staining/painting
7
8
9
10
11
12 Exhaust
13
14
15
16
1
2
3
4
5
6
7
8
9
10
11
12
13
14
15
16
17
18
19
20
21
22
23

EXHIBIT “H”

Crawl Spaces:

Maintaining your crawl space in an owner’s responsibility. There are several items down there that will need your attention including the crawl space itself, the furnace, the sump pump under the furnace, the humidistat and moisture and leak control. What does all that mean?

Keeping Your Crawl Space Dry and Clean:

1. Keep moisture out. Moisture control is one of the first steps towards having a safe and clean crawl space. A small leak over time can result in mold and expensive repairs.

2. Inspect every six months and clean the interior of your crawl space annually. Make sure your vapor barrier (plastic sheet) is in place. Use a flashlight to carefully examine for traces of mold, pests or even water

3. Block Out Rodents and Ventilate. There are removable foam blocks in the 10 units north of the park “in” during the winter and “out” during the summer, done by our maintenance contractor.

4. Insulate the crawl space if needed (a free Northwestern Energy Audit can tell you if that is necessary)

Sump Pump:

Our sump pumps are located near/under the furnace in the crawl space specifically to remove excess water in the summer from under the furnace and air conditioner. The pump works when it is needed and pumps water through a small hose into your washing machine drain and into the sewer system (remember hearing that water trickling occasionally?). As with any other system or appliance you may have in your home, a sump pump needs regular maintenance to keep it functioning properly.

Sump Pump Maintenance Checklist

• Step 1: Clean Sump Basin Debris. ...

• Step 2: Inspect the “Check” Valve. ...

• Step 3: Clean the Weep Hole. ...

• Step 4: Clean the Impeller. ...

• Step 5: Smell for a Sump Pump Odor. ...

• Step 6: Check for Power and Install a Backup Power Source.

Humidistat Maintenance:

Each condo unit has a humidistat (special dehumidifier fan) that runs when needed to remove excess moisture from under your unit. You have probably heard it when we have had lots of rain. Although they are incredibly dependable, just check annually to make sure it is still working.

29

Annual Maintenance of furnace in the crawl space.

A heating and air conditioning firm can tune up your furnace and air conditioning unit. Annual heater and air conditioner inspections are an important part of maintaining your condo. Furnace filters should be checked and changed on a regular basis.

One of the best times to check for water leaks or water on the vapor barrier is when the furnace maintenance company does its annual inspection.

Dryer vents:

It is extremely important to clean your dryer vent and associated ductwork to prevent a fire and to help dry your clothes more efficiently.

30

LESSLEY ESTATES CONDOMINIUMS OWNERS ASSOCIATION, INC. DIRECTORS REGISTRY 2022

January 1. 2022

NAME: TITLE: CONTACT INFORMATION: TERM EXPIRES:

Frank Walker President

2396 West Beall Street #2 December 2022 Bozeman MT 59718 3104

Phone: (406) 599 5015

E mail: frankcwalker@me.com

Carol Schott Vice President

2366 West Beall Street #3 December 2022 Bozeman MT 59718 3114

Phone: (406) 599 5044

E mail: carolschott58@yahoo.com

Lyla Reibel Secretary

2334 West Beall Street - #1 December 2023 Bozeman MT 59718 3118

Phone: 1 509 540 9200

E mail: lmreibel@gmail.com

Jane Howard Treasurer 2366 West Beall Street #1 December 2022 Bozeman MT 59718 3114

Phone: 1 307 752 8716

E mail: janebrownhoward@gmail.com

Elaine Nielsen Director at Large 2378 West Beall Street #1 December 2023 Bozeman MT 59718

Phone: 1 406 581 9077

E mail: ekpnielsen@gmail.com

Property Management

Security Garage Lights Maintenance

Lessley Estates Board of Directors

℅ Frank Walker

Phone: (406) 599 5015

E mail: frankcwalker@me.com

Frank Walker

Phone: (406) 599 5015

E mail: frankcwalker@me.com

Revised January 1, 2022

31 EXHIBIT “I”
Effective
9/27/22, 4:58 PM Click2Gov Assessment Billing - Account Inquiry https://bozn-egov.aspgov.com/Click2GovTX/accountsearch.html?OWASP_CSRFTOKEN=8ONY-YR34-BMMS-ELWW-NJFG-L4GC-N7GO-7M7R&accountId=000162420&taxYear=2021&searchType=1&post=true&accountsView=ac 1/1 Click2Gov Assessment Billing - Account Inquiry General Account Information Assessment Information for 2021 Online payments are currently unavailable Please contact (406) 582 2329 for more information Account ID: 162420 Owner Name: SIEWERT, DAVID E Location ID: 162420 Address: 2390 W BEALL ST UNIT 3, BOZEMAN, MT 59718 County Parcel # RGG53701 Billed Assessments: $48775 Current Assessments Due : $0 00 Interest, Penalties, and Collections: $0 00 Total Due: $0.00

Turn static files into dynamic content formats.

Create a flipbook
Issuu converts static files into: digital portfolios, online yearbooks, online catalogs, digital photo albums and more. Sign up and create your flipbook.
2390 W Beall, Unit 3 Property Book by Hart Marketing - Issuu