
2,8 M
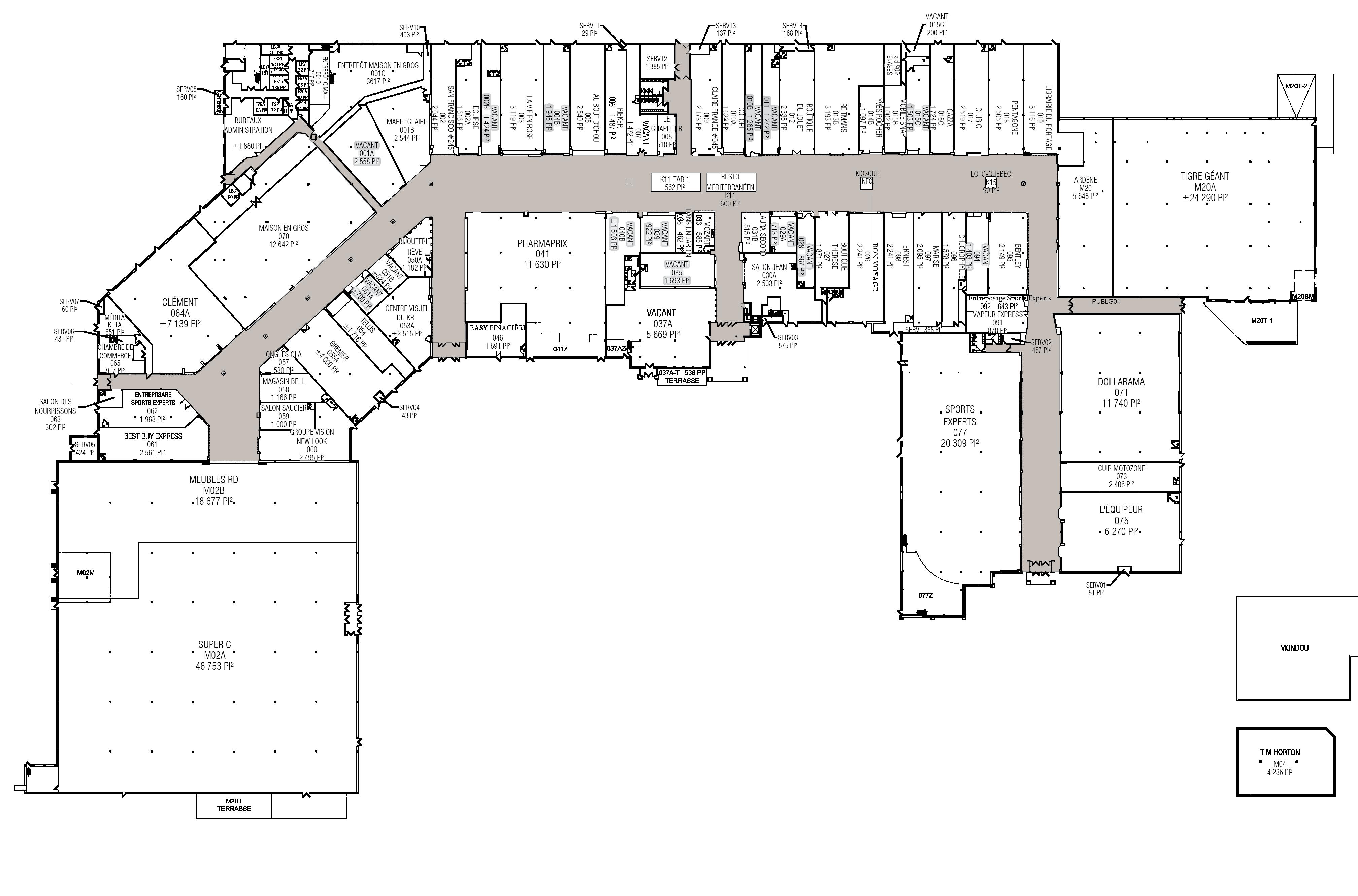
Located at the gateway to Eastern Quebec and New Brunswick, the Centre commercial Rivière-du-Loup is a popular destination for people in the region and tourists, as it is the only center of this significance within a 100 km radius. Its variety of local shops, brands, and practical services offers everything for the whole family.
376 ANNUAL SHOPPERS
1,726


59 M
59
$
275 K

TOTAL TRADE AREA POPULATION
TOTAL TRADE AREA HOUSEHOLDS
78,000
35,800
AVG. HOUSEHOLDS INCOME IN TOTAL TRADE AREA $64,000
TRADE AREA HOUSEHOLDS WITH INCOME $100K+ 17 %
MALE / FEMALE 47 % | 53 %
AVERAGE LENGHT OF VISIT 70 MINS

Primary trade area
Secondary trade area Highways Roads 5 km





