FormatE1 - Początek

Page 1

Czasopismo studentów WA PWr
1
Format Początek
05.2019

Początki z drukiem 3D

Dworce kolejowe. Nowy początek.

Louvainla-Neuve

Hala Stulecia

jako kamień

milowy w historii budownictwa

Historia Habitatów

Zamki i ich cienie. Ostróda.

Pierwsza

(archi)dama

Wrocławia

Wspólna

innicjatywa architektoniczna

Początek ... końca?

Drodzy nowi czytelnicy!

Jest nam niezmiernie miło powitać Was na łamach pierwszego numeru kwartalnika „Format E1”. Dedykujemy go wszystkim osobom zainteresowanym kulturą, architekturą, sztuką i budownictwem. Jest to pierwsze tego typu czasopismo Wydziału Architektury Politechniki Wrocławskiej tworzone przy współpracy kół naukowych i agend kultury. Każdy kolejny numer będzie posiadał swój motyw przewodni. W obecnym, pierwszym wydaniu nawiązujemy do szeroko rozumianego „początku”. Nie tylko naszego czasopisma, ale m.in. Szkoły Naukowej HABITAT, miasta studenckiego Louvain-la-Neuve, Hali Stulecia jako symbolu modernistycznego Wrocławia i wielu innych, bardzo ciekawych tematów. Jest do doskonała okazja, aby zaznajomić się z działalnością i tematyką poszczególnych kół naukowych. Naszym celem jest również prezentacja projektów i wyników przeprowadzanych konkursów, dlatego też w obecnym numerze możemy zapoznać się ze zwycięzcami kilku ostatnich konkursów wydziałowych. Mamy nadzieję, że zarówno pierwsze, jak i kolejne wydania będą zachęcały do wspólnego zgłębiania zawartej w nich tematyki.

Serdecznie zapraszamy do lektury i współpracy.

Dzielmy się wiedzą i wspólnie z niej korzystajmy!

Zespół redakcyjny

Szanowni Państwo,

Pomysł na stworzenie czasopisma zrodził się kilkanaście lat temu, kiedy jeszcze jako studenci marzyliśmy z kolegami o przestrzeni, w której moglibyśmy wzorem wielu uczelni zachodnich podzielić się swoimi zainteresowaniami i pasjami oraz informacjami z życia Wydziału. Nazwa czasopisma odnosi się do gmachu Wydziału Architektury – budynku E-1, a jego format jest pomniejszoną wersją tradycyjnego dla naszego Wydziału formatu o wymiarach 70x70cm, na którym przez wiele lat prezentowane były projekty studenckie.

Chciałbym wyrazić podziękowanie dla całego zespołu redakcyjnego z KN HŚM a także dla wszystkich autorów artykułów, projektów oraz fotografii za wkład w pierwszy numer Formatu E-1. Szczególne podziękowania składam na ręce

Aleksandry Wasilenko, która jako redaktor naczelna włożyła wiele wysiłku w przygotowanie tego numeru.

Liczę, że nasze czasopismo stanie się przestrzenią, w której studenci będą dzielili się swoimi doświadczeniami i zainteresowaniami, i że pomoże im odkryć w sobie talenty badawcze, kierując ich kroki na dalszą ścieżkę rozwoju kariery naukowej. Już dzisiaj chciałbym zaprosić wszystkich studentów, którym bliska jest tematyka designu, architektury i urbanistyki oraz dziedziń pokrewnych do publikowania w kolejnych numerach czasopisma Format E-1.

Życzę udanej lektury, dr inż. arch. Jerzy Łątka opiekun naukowy KN HŚM

Zdjęcia redakcji wykonała Agenda

Fotograficzna SpAF

(od lewej Agnieszka Gogół, Aleksandra Wasilenko, Jerzy Łątka, Edyta Naworska, Anton Budas, Alicja Lorenc, Weronika Abramczyk, Kinga Niewczas)

3

Początki z drukiem 3D

Druk 3D jest coraz popularniejszym sposobem tworzenia modeli architektonicznych. Jeśli odpowiednio używamy drukarki, jest to sposób szybszy, dokładniejszy i bardziej efektowny od standardowego, ręcznego tworzenia makiet.

TECHNOLOGIA FDM

Fused Deposition Modeling polega na wytwarzaniu danego elementu za pomocą nakładania na siebie poszczególnych warstw materiału, z którego ma być wykonany. Materiał przeznaczony do druku 3D produkowany jest w postaci filamentów (a) o znormalizowanych średnicach, nawiniętych na szpule. Filament ze szpuli pobierany jest przy pomocy extrudera (b), który dzięki zastosowaniu silnika krokowego jest w stanie podawać go z odpowiednią prędkością. Materiał stapiany jest w bloku grzejnym (c), następnie wypływa przez dyszę (d) i przylepia się do nałożonej już wcześniej warstwy, bądź w przypadku, gdy drukowana jest pierwsza warstwa – do podgrzewanego stołu (e). Głównym problemem druku FDM jest to, że nie można tworzyć bezpośrednio elementów, których kąt nachylenia względem stołu jest mniejszy niż 45°, ponieważ nakładane warstwy nie mają wystarczającej powierzchni, do której mogłyby się przyczepić i zaczynają opadać. Rozwiąza-

http://halastulecia.pl/wp-content/uploads/2014/05/budowa2.png data dostępu 19.03.2019 19.03.19

niem jest wydrukowanie supportu (f), czyli konstrukcji podtrzymującej przewieszenia podczas druku i usuwanej w procesie obróbki gotowego już modelu.

WYSOKOŚĆ WARSTWY

Wysokość warstwy w druku FDM to odległość pomiędzy dyszą a poprzednią, zastygniętą już warstwą materiału (w przypadku pierwszej warstwy – między dyszą a stołem). Ten parametr ma znaczący wpływ na dwie kwestie: jakość i czas wydruku. Powiązanie czasu druku i wysokości warstwy jest dosyć oczywiste – w procesie przetwarzania modelu 3D przez aplikację typu „slicer” na podstawie jego wysokości oraz wysokości warstwy określana jest ilość warstw potrzebna do wydrukowania modelu. Przykładowo zmniejszenie wysokości warstwy o połowę sprawia, że czas druku będzie dwa razy dłuższy. Jakość można zdefiniować jako dokładność odtworzenia komputerowego modelu przez drukarkę 3D. Zwiększenie wysokości powoduje, że na ściankach wydruku zaczynają być widoczne poszczególne warstwy, a przede wszystkim zmniejsza dokładność krawędzi kształtowych (np. otworów).

PRĘDKOŚĆ DRUKU

Prędkość przemieszczania się głowicy

https://l.facebook.com/l.php?u=https%3A%2F%2 blog-assets.pinshape. com%2Fblog%2Fwp-content%2Fuploads%2F2017%2F03%2F16164120%2Fyhtwood.jpg%3Ffbclid%3DIwAR0GsyTd8eA2kWg3ZlrCcdB6QfLQoT-

drukarki w osiach X,Y ma związek z dokładnością wydrukowanej części oraz czasem potrzebnym do jej wytworzenia. Dodatkowo prędkość druku ma wpływ na siłę, z jaką poszczególne warstwy przywierają do siebie, tj. zwiększenie prędkości sprawia, że nowa warstwa słabiej wtopi się w poprzednią. Podczas drukowania z łatwo topliwych tworzyw sztucznych

takich jak PLA nie ma to znaczenia, jednakże w przypadku bardziej wytrzymałego materiału ABS jest to kluczowe. Oprócz wyższej temperatury topnienia wykazuje on znacznie większą rozszerzalność cieplną, a co za tym idzie w procesie stygnięcia znacząco się kurczy (ok. 2-3%), co sprawia, że może dojść do oderwania się od siebie poszczególnych warstw modelu. Aby tego uniknąć, ABS drukuje się na mniejszych prędkościach niż PLA, co zwiększa siły oddziaływania pomiędzy poszczególnymi warstwami gotowego modelu.

SUPPORT

„Supportu” używamy w przypadku, gdy chcemy drukować w przewieszeniu. Trzy podstawowe rodzaje przewieszeń występujące w druku 3D reprezentowane są przez litery Y, H, T. Wyobraźmy sobie, że każdą z nich chcielibyśmy wydrukować na drukarce FDM. Litera Y jest na granicy na-

https://www.archdaily.com/904529/worlds-first-3d-printed-steel-bridge-takes-center-stage-at-dutch-design-week?fbclid=IwAR11XIjWzwmBbt_5RrTfi8K0EXi5lWMigbRBpQbdYZZgb2PmgdRW73szX6E

szego warunku o zastosowaniu supportu, ponieważ jej górne ramiona odchylone są od poziomu, więc od wartości tego odchylenia zależeć będzie, czy operacja się powiedzie. Środkowa część litery H jest równoległa do stołu, więc użycie supportu jest w tym przypadku zalecane, natomiast wydruk ma szanse udać się i bez niego dzięki zjawisku zwanemu „bridging”, czyli przeciągnięciu materiału drukowanego pomiędzy dwoma punktami zaczepienia.

Litera T nie daje się wydrukować bez zastosowania supportu, ponieważ „daszek” jest równoległy do stołu drukarki i dodatkowo na jego końcach nie ma punktów

zaczepienia, więc „bridging” w tym przypadku nie zajdzie.

ZASTOSOWANIE DRUKU 3D W PEŁNOWYMIAROWYCH KONSTRUKCJACH

Jako że apetyt rośnie w miarę jedzenia, architekci idą o krok dalej i drukują nie tylko modele, ale i pełnowymiarowe konstrukcje. Przykładem jest pierwszy na świecie most stworzony w technologii druku 3D, który powstał niecałe 2 lata temu w Madrycie, wykonany ze wzmacnianego betonu, oraz most autorstwa duńskiej firmy MX3D wydrukowany ze stali nierdzewnej w Amsterdamie.

Podjęto już kilka prób wydrukowania całych budynków, toczą się rozmowy o drukowaniu całych osiedli czy nawet miast. Czy modele na etapie koncepcji pozostaną jedyną dziedziną powszechnego używania druku 3D w architekturze, czy będzie to tylko początek?

Autor: Monika Bolda

Koło Naukowe: LabDigiFab

5
24.10.18

Hala Stulecia jako kamień milowy w historii budownictwa

Otwarcie w 1913 roku Hali Stulecia wraz z Terenami Wystawowymi było wyraźnym punktem zwrotnym w historii architektury Wrocławia. Szeroko komentowana Wystawa Stulecia stała się impulsem do rozwoju i rozkwitu nie tylko idei modernizmu, ale także nowych technologii budowlanych. Tak jak kiedyś dla Berga, Poelziga oraz czołowych twórców tego okresu, tak i dla nas, początkujących adeptów architektury, ponad wiek później Hala Stulecia stała się symbolicznym kamieniem węgielnym przy utworzeniu studenckiego koła naukowego Wrocławskiej Modernistycznej Architektury. Powstanie naszej organizacji jest wypadkową współpracy z Halą Stulecia przy opracowywaniu pierwszej edycji Dni Architektury Maxa Berga (DAMB). Koło nadal angażuje się w inicjatywy kreowane przez pracowników Hali, czego owocem są m.in. gry miejskie związane z modernistycznymi obiektami Wrocławia oraz architektoniczne warsztaty dla dzieci. Hala Stulecia to bez wątpienia jeden z najbardziej rozpoznawalnych obiektów na mapie współczesnego Wrocławia. W ciągu ostatnich stu lat stała się prawdziwą wizytówką miasta. Jednak większość z nas przyjmuje istnienie tej budowli za coś oczywistego, nie dostrzegając przy

tym rewolucyjnego charakteru projektu Berga.

Poszerzając swą wiedzę związaną z wrocławskim modernizmem, nie sposób uniknąć wtórnego wgłębienia się w dzieje Hali Stulecia. Najwybitniejsze dzieło Maxa Berga swą monumentalną formą idealnie wpisuje się w hasła czołowych modernistów, którzy głosili zależności formy budowli od tworzywa, z którego ta powstaje. Zainspirowany tą ideą twórca dążył do rezygnacji ze zbędnej ornamentyki na rzecz funkcjonalności oraz czystości

bryły. To właśnie żelbetowa konstrukcja obiektu stała się punktem wyjścia dla struktury jego wnętrza. Po raz pierwszy architekt postanowił zrezygnować z ukrywania śladów po szalunku, eksponując go w całej krasie i podkreślając surowość, ale również szlachetność materiału jakim jest żelazobeton. Pomimo że kreował zupełnie nową postać estetyki, nie odcinał się w swoim projekcie od tradycji. Patrząc na rzut Hali Stulecia (czteroliść), można odnieść wrażenie, że twórca inspirował się bizantyjskimi, kopułowymi budowlami centralnymi, w szczególności kościołem

http://halastulecia.pl/wp-content/uploads/2014/04/galh6.jpeg 19.03.19

Hagia Sophia w Konstantynopolu. Połączenie klasycznych wzorców z innowacyjnymi materiałami i nowoczesnymi technikami budowlanymi dało początek nowemu prądowi w architekturze, który według Berga utożsamiał się z prostotą, rytmem, proporcjonalnością brył oraz „prawdą materiału”.

Nawiązując do budowy Hali Stulecia, nie można pominąć kwestii powstania jej żelbetowej konstrukcji. Warto pamiętać, że na początku XX wieku był to nowy materiał, który pomimo swych znakomitych parametrów technicznych (lekkości oraz sprężystości) nie cieszył się wówczas pełnym zaufaniem konstruktorów, w przeciwieństwie do cięższej oraz droższej stali. Budowniczowie odpowiedzialni za zdjęcie drewnianych rusztowań obawiali się momentu usunięcia form wspierających konstrukcję, gdyż sądzili, że budowla nie będzie w stanie utrzymać się o własnych siłach, co skutkować będzie katastrofą budowlaną. W powszechnie znanej anegdocie Berg w asyście przypadkowego przechodnia odkręcił śruby pierwszego szalunku, rozwiewając wątpliwości robotników. Architekt był pewny powodzenia, gdyż jego śmiała wi-

zja została w fazie projektowej poddana szeregowi precyzyjnych obliczeń statycznych wykonanych przez cztery niezależne instytucje. Wykorzystując właściwości nowego materiału, jakim był żelazobeton, Max Berg stworzył monumentalną kopułę (o rozpiętości 65 metrów), która była o połowę większa niż rzymski Panteon, a przy tym zdecydowanie lżejsza niż jej antyczna poprzedniczka. W chwili otwarcia Wystawy Stulecia kopuła wrocławska biła światowe rekordy. Zdecydowanie różniła się swoją formą od klasycznych wzorców. Była zwieńczona latarnią zbudowaną z czterech konstrukcyjnych ram w formie przeszklonej kopuły w stalowej obręczy. Kopuła oraz podstawa budowli były połączone trzydziestoma dwoma metalowymi łożyskami. W przeciwieństwie do bani na żagielkach, projekt Berga opierał się na pomyśle ujęcia okrągłej podstawy kopuły jako opisującej kwadrat wyznaczony przez trójkąty sferyczne. Idea ta mogłaby wiązać się ze skręcaniem konstrukcji, dlatego też zdecydowano się zastosować dwadzieścia cztery przypory, które są żebrami czterech apsyd budowli. Plac budowy, który powstał przy Hali Stulecia, okazał się być równie rewolucyjnym rozwiązaniem. Inspiracja inżynierów

organizacją amerykańskich przedsięwzięć budowlanych znalazła swe ucieleśnienie na wrocławskim gruncie. Po raz pierwszy na tak ogromną skalę zostały wykorzystane m.in. elementy prefabrykowane. Wokół obrysu budowli zainstalowano tory przeznaczone dla dwóch czternastometrowych, mobilnych wież dźwigu, które po połączeniu z wysoką liną przymocowaną do centralnie położonej wieży poruszały się wokół rusztowań niczym kolejka linowa w formie karuzeli. Po przeciwległych stronach placu usytuowano stanowiska produkcji betonu. Na terenie budowy utworzono również młyny do uzyskiwania żwiru z granitu oraz tartak zaopatrujący w deski do wykonywania rusztowań i szalunków. Taka organizacja placu budowy uniezależniała go od dostaw z zewnątrz i pozwalała na nieustanną kontrolę jakości materiałów.

Max Berg niezaprzeczalnie był wizjonerem, który wielokrotnie podkreślał, że główną przyczyną do powstania takiej formy budowli był funkcjonalizm. Hala Stulecia miała łączyć w sobie rolę miejsca zgromadzeń wraz z możliwościami wystawienniczymi. Zarówno sam odważny projekt, jak i jego kunsztowna realizacja w idealny sposób odzwierciedlają obie przyświecające architektowi idee.

Autor: Marta Noszczyk

Koło Naukowe: WMArch

7
http://halastulecia.pl/wp-content/uploads/2014/04/hs3.jpeg 19.03.2019 19.03.19 http://halastulecia.pl/wp-content/uploads/2014/05/budowa2.png data dostępu 19.03.2019 19.03.19

Pierwsza (archi)dama Wrocławia

Kobieca postać stoi przy stole kreślarskim, dość drobna, ubrana w modną na owe czasy zwiewną bluzkę w etniczne wzory, opiera dłonie o rozłożone przed nią kalki. Dama i profesjonalistka, niewielka posturą lecz ogromna siłą ducha. Kobieta światowa, na każdym kroku wytworna i elegancka, a przy tym zaskakująca swoją uprzejmością i otwartością; o niezwykłym darze łączenia pokoleń. Odważna i niebojąca się kroczyć z duchem czasu, mimo wszystkich tych niesprzyjających czynników, w jakich przyszło jej tworzyć. Tak przedstawia nam się Jadwiga Grabowska-Hawrylak na jednej z fotografii i we wspomnieniach, które po niej zostały.

„Podczas inwentaryzacyjnej praktyki w kamienicy Heinricha von Rybischa” –tak głosi podpis innego zdjęcia; rok 1946, młoda dziewczyna w białej sukience, studentka pierwszego powojennego rocznika Wydziału Architektury, rysuje pośród ruin budynków. Pani Jadwiga zostaje pierwszą kobietą-architekt wykształconą po II wojnie światowej i zaczyna pracować w Miastoprojekcie. Początek jej kariery wiąże się głównie z projektowaniem historyzujących kamienic. Może nie było to przedsięwzięcie dość zaskakujące, ale spotykało się z ogólną falą entuzjazmu, jak zresztą cały proces odbudowy i rekonstrukcji powojennego Wrocławia.

Jednym z pierwszych jej projektów niezwiązanych z odbudową zabytków była szkoła podstawowa przy ulicy Podwale. Nowoczesny, modernistyczny budynek o ciekawej grze faktur i materiałów, skomponowanej na zasadzie kontrastów płaszczyzn białego tynku i czarnego marblitu oraz lastriko. Urozmaicona kompozycja brył, biało-czarna elewacja, liczne przeszklenia oraz płynnie wygięta rampa stały się symbolem eksperymentalnej modernistycznej architektury Wrocławia, ale również stanowiły kolejny krok do nowoczesności. Zastosowanie nowych technologii konstrukcji oraz ogromne okna sprawiły, że całą strukturę zaczęto określać mianem pierwszego szklanego domu we Wrocławiu. Jak wspominała pani Jadwiga, słono ją to musiało kosztować. Kiedy jej syn, Maciej, zbił szybę, wezwano ją na dywanik: „Pani zaprojektowała szklane drzwi, to teraz musi pani zapłacić”…

Końcówka lat 50. „Wtedy znaną formą w Europie były mieszkania maisonette (...), nie było możliwości budowania domów jednorodzinnych. Pomyśleliśmy, że zaprojektujemy budynek wysoki, w którym będą mieszkania podobne do domów”. Jak pomyśleli, tak zrobili; na wąskiej działce przy ulicy Kołłątaja pojawił się siedmiokondygnacyjny galeriowiec z usługowym parterem, autorstwa zespołu w składzie:

Igor i Maria Tawryczewscy, Edmund Frąckiewicz, Jadwiga Grabowska-Hawrylak. Sam projekt był w pewnym sensie ukłonem w stronę Le Corbusiera, chociażby przez zastosowanie powtarzalnej jednostki mieszkalnej. Składała się ona z dwóch części – dolnej, dziennej, złożonej z salonu i kuchni oraz górnej z sypialnią i łazienką. Ponadto każdej sekcji mieszkalnej odpowiadała głęboka loggia. Tak oto udało się stworzyć namiastkę domu w samym sercu miasta.

Lata 60. to okres, gdy Wrocław wciąż jeszcze nie zdążył otrząsnąć się po wojennych szkodach, niektóre ulice nadal leżały w gruzach. Na Placu Grunwaldzkim wyrosła wtedy kolejna, świeża wizja Miastoprojektu: 10-kondygnacyjny, najwyższy wówczas budynek w całym mieście, szczyt nowoczesności i techniki. Inwestorem przedsięwzięcia była sama Politechnika Wrocławska, jako że przyszłymi mieszkańcami mieli zostać pracownicy naukowi (sama pani Jadwiga wraz z rodziną mieszkała tam przez lat 22). Inwestor był, pieniądze były, ambicje i oczekiwania, by standard nieco podwyższyć – również. Pojawiły się zatem takie nowinki, jak rozsuwane drzwi, windy, zsypy czy wbudowane meble, a wszystko to opracowane co do najmniejszego detalu. Zgodnie zaś z modernistyczną zasadą, Dom Naukowca miał być biało-szary; czarny parapet z lastriko ciągnął się przez cały budynek, podkreślając horyzontalne podziały. Po tym parapecie miał w zwyczaju przechadzać się kot rektora Szpakowskiego i wyjadać szynkę prosto z kuchni państwa Hawrylaków.

Kolejne dziesięciolecie, nadal znajdujemy się przy tym samym placu; obracając się możemy dostrzec kolejny z projektów Grabowskiej-Hawrylak, o którym chodziły legendy, że został przygotowany dla jakiegoś afrykańskiego kraju, jednak na skutek przegranej w konkursie został zrealizowany we Wrocławiu. Zbiór sześciu budynków mieszkalnych i trzech pawilonów

zdj. Alicja Lorenc

usługowych, zwany też potocznie „sedesowcami”, umieszczony na wyniesionej ponad ulicę platformie, pod którą znalazły się garaże i parkingi. Zaskoczenie wywołały nietypowe elewacje, wzniesione w technologii prefabrykatów; balkony i okna osłonięto płytami z poprzesuwanych względem siebie, betonowych elementów. Z biegiem lat pani Jadwiga niechętnie na nie spoglądała, zostały nadszarpnięte zębem czasu, wyglądały na zniszczone.

Brudny niegdyś beton został pokryty bielą. Zjednoczone siły fundacji Jednostka Architektury i pracowni VROA, pod czujnym okiem samej autorki, stworzyły koncepcję remontu. Podobny los ma czekać Galeriowiec przy ulicy Kołłątaja, który wpisany został do rejestru zabytków. Do tej pory bardziej odstraszał niż zapraszał. Konia z rzędem temu, kto w tej zaniedbanej budowli na pierwszy rzut oka rozpoznał pod spękaną warstwą kolorowych, ale poszarzałych już od ulicznego pyłu tynków (mieszkańcy sami wzięli sprawy w swoje ręce, szkoda tylko, że wygląda na to, że każdy osobno…) architektoniczny unikat. Niestety wspomniana szkoła czy Dom Naukowca straciły wiele z dawnego blasku. Elewacje zostały potraktowane bez szacunku do ich pierwotnego wyglądu, słyszy się nawet głosy o ich brutalnym oszpeceniu.

Jadwiga Grabowska-Hawrylak odeszła 4 czerwca 2018 roku. Zostało nam po niej nie tylko wspomnienie, lecz wspaniałe architektoniczne dziedzictwo. Pamiętajmy, że czasy, w których tworzyła, nie należały do najprostszych; kompletnie nie sprzyjały twórczym umysłom, pragnącym otwierać się na nowe. Ona jednak starała się wykorzystywać każdą istniejącą możliwość, by wyjść poza schematy i panujące ówcześnie trendy i konsekwentnie kroczyła swoją ścieżką. Przy tym wszystkim biła od niej pewna szczerość i naturalność. Jak sama zresztą mówiła: „czasy (…) były kiepskie, ja starałam się mimo wszystko

robić swoje. Ale nigdy nie starałam się, żeby moje budynki były jakieś nadzwyczajne, tylko by były normalne”.

Autor: Edyta Naworska

Koło Naukowe: HŚM

9
zdj. Alicja Lorenc

Dworce kolejowe. Nowy początek.

Na Dolnym Śląsku znajduje się wiele obiektów związanych dawniej z koleją, które czekają na swoje drugie życie. Część budynków, które nie są użytkowane, PKP S. A. wystawia na sprzedaż. Obecnie w ofercie spółki znajduje się około 50 dworców. W większości znajdują się one przy liniach, które zostały wyłączone z eksploatacji. Można dla nich znaleźć nowe przeznaczenie. Chcemy pokazać ciekawe przykłady adaptacji obiektów kolejowych na nowe funkcje. Są to przestrzenie o zróżnicowanej wielkości, położone zarówno w dużych miastach, jak i w mniejszych miejscowościach. Każdy z budynków został dostosowany w taki sposób, że obecnie dobrze spełnia swoją nową rolę.

ZESPÓŁ MIESZKANIOWO-USŁUGOWY W GOSPORT, WIELKA BRYTANIA

Stację kolejową w Gosport w Wielkiej Brytanii uruchomiono w 1841 roku. Została zaprojektowana przez Williama Tite’a w stylu klasycystycznym. Już w pierwszych latach istnienia odznaczała się dużym natężeniem ruchu, co było związane transportem węgla. Budynek został uszkodzony w znacznym stopniu podczas nalotu bombowego w 1941 roku, ale nadal funkcjonował. Stacja nie była remontowana i zamknięto ją w 1953.

http://re-format.co.uk/gosport-railway-station/,12.11.17

W 2007 roku budynek został zakupiony przez Hermitage Housing Association. Projekt rewitalizacji dawnej stacji kolejowej, wykonany przez architektów z biura Re-Format, ukończono w 2010 roku. Projektantom udało się przekształcić opuszczone i niszczejące miejsce w wysokiej jakości pomieszczenia mieszkalne i biurowe. Projekt obejmuje 35 niedrogich mieszkań, 4 biura oraz pokój do wspólnych spotkań. Koncepcja ta łączy ruiny peronów i belkowanie, tworząc domkniętą przestrzeń centralnego dziedzińca, który powstał w miejscu dawnych torów kolejowych. Architekci zachowali charakter zabytkowej stacji kolejowej. Projekt zdobył liczne nagrody, m.in.: Housing Design Awards 2008 (wygrana) oraz Civic Trust Awards 2012 (nagroda).

DOM KULTURY W BURGOS, HISZPANIA

Stacja w Burgos została zbudowana w 1902 roku przez Koleje Hiszpańskie. Budynek pełnił funkcję dworca kolejowego do 2008 roku. Dopiero w 2016 został ponownie otwarty jako Centrum Kultury. Projekt wykonali architekci Maria Dolores Contell i Juan Miguel Martínez z biura projektowego Contell-Martinez Arquitectos. Jego celem była rewitalizacja starego dworca i dostosowanie go do programu rekreacyjno-wypoczynkowego, przezna-

http://contell-martinez.com/rehabilitacion-de-la-antigua-estacion-de-ferrocarril-de-burgos 12.11.17

czonego głównie dla dzieci i młodzieży. Z zewnątrz budynek starannie odnowiono.

By zintegrować go z otoczeniem, architekci zaprojektowali nową pergolę, podporządkowując jej kształt do powstającego bulwaru. Służy ona nie tylko jako przejście pomiędzy budynkiem a obszarem zieleni, ale także nawiązuje do dawnej, szklanej konstrukcji zadaszenia peronów.

Wszystkie istniejące okładziny wewnętrzne stacji zostały usunięte, odsłaniając cegły i kamieniarkę. W wyniku tej niezbędnej renowacji murów stworzono unikalny klimat wnętrza.

DOM JEDNORODZINNY W STAREJ STACJI KOLEJOWEJ GRUBEN W GSTAAD, SZWAJCARIA

Dworzec kolejowy Gruben, znajdujący się w szwajcarskiej miejscowości Gstaad, został otwarty w 1904 roku. Był częścią linii kolejowej Montreux-Berner-Oberland. Architekt Antonie Bertherat-Kioes zaprojektowała przebudowę stacji generatorowej, powstałej na początku XX wieku, na dom letniskowy znajdujący się w niezwykle urokliwym otoczeniu – górskiej dolinie. Jest to obiekt o powierzchni około 700 metrów kwadratowych przekształcony na potrzeby sześcioosobowej rodziny projektantki. Jego przebudowa została

zakończona w 2009 roku.

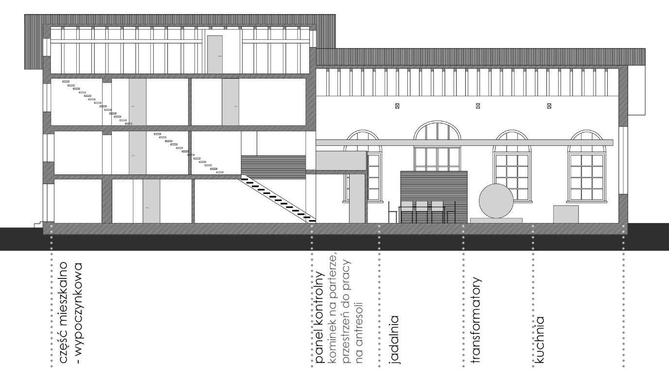
Zewnętrzny wygląd budynku nie został zmieniony. We wnętrzu przeplatają się nowoczesne elementy wystroju z detalami budynku technicznego. Panel kontrolny stacji generatorowej zaadaptowano na domowy kominek oraz, na poziomie galerii, na miejsce pracy, wykorzystując istniejące blaty. Żelazne transformatory pełnią funkcję dzielącą przestrzeń kuchni od części jadalnej domu. Architekt użyła drewna jako materiału kontrastującego z surowością i przemysłowym charakterem maszyn, które pozostały w budynku. Zabieg ten nadaje wnętrzom ciepły i przytulny w odbiorze charakter.

Budynek składa się z dwóch części: jednokondygnacyjnej – mieszczącej kuchnię z jadalnią, transformatory i panel kontrolny, oraz czterokondygnacyjnej zawierającej przestrzenie mieszkalne i wypoczynkowe.

Obecnie możemy obserwować wiele dworców, które przestały być użytkowane. Wiąże się to z tym, że transport kolejowy stracił na znaczeniu w porównaniu do wieku XIX i XX. Konsekwencją tego jest popadanie w ruiny wielu wartościowych obiektów. Istnieje jednak inne wyjście z tej sytuacji. Dworce kolejowe pocho-

dzące z XIX wieku oprócz niewątpliwej wartości historycznej oraz estetycznej posiadają niewykorzystany potencjał. Ich istotna rola w przeszłości nie jest bez znaczenia zarówno w aspekcie analizy ich architektury, jak i wpisania w nie nowych funkcji.

Autorzy: mgr inż. arch. Maria Czarnecka, mgr inż. arch. Aleksandra Kozaczek, mgr inż. arch. Agnieszka Nowicka mgr inż. arch. Gabriela Wojciechowska

Obrazki/Góra: Od lewej – elewacja części jednokondygnacyjnej budynku; kominek w części jadalnej domu zaprojektowany w panelu kontrolnym; transformatory dzielące przestrzeń na część jadalną i kuchnię

Obrazek/Dół: Przekrój przez budynek z widocznym podziałem na część jednokondygnacyjną i czterokondygnacyjną.

Koło Naukowe: Industria

11
https://onekindesign.com/2012/06/01/train-station-transformed-impressive-home/, dostęp 06.01.2018. https://onekindesign.com/2012/06/01/train-station-transformed-impressive-home/, dostęp 06.01.2018. https://onekindesign.com/2012/06/01/train-station-transformed-impressive-home/, dostęp 06.01.2018. http://static.schoener-wohnen.de/80/89/hs201005036.pdf, dostęp 06.01.2018.

Historia Habitatów

Wywiad z prof. dr. inż. arch. Zbigniewem Baciem

Panie Profesorze, minęło już 30 lat od założenia Szkoły Naukowej HABITAT. W związku z tą okrągłą rocznicą chcielibyśmy przybliżyć jej początki i główne założenia. Wiedza oraz filozofia płynąca z wielu publikacji i konferencji towarzyszy nam od początków naszego studiowania i mam nadzieję, że będzie jeszcze towarzyszyć następnym pokoleniom.

Proszę opowiedzieć jak to wszystko się zaczęło? Jakie były początki Pana pracy jako architekta?

Jak to zwykle bywa, główna przyczyna jest bardzo prosta. Wywodzi się z tego, że bezpośrednio po studiach zostałem zatrudniony na Politechnice Wrocławskiej w charakterze asystenta i trafiłem do katedry projektowania architektury mieszkaniowej. Stąd od początku moje zainteresowania szły siłą rzeczy w tym kierunku. Chciałem rozwijać tę dziedzinę w katedrze. Był to i jest mój obowiązek. Co kryje się pod hasłem „architektura mieszkaniowa”?

Odkąd rozpocząłem pracę, zmieniły się pewne poglądy i nazewnictwo. Zamiast terminu architektura mieszkaniowa używa się często sformułowania środowisko mieszkaniowe. Jest to istotna zmiana, ponieważ mówiąc i myśląc o architekturze,

myślimy o bryle, budynku, bo to tworzy architekturę. Natomiast jeśli zmieniamy nazwę, wchodzimy w środowisko, myślimy już nie tylko o architekturze, ale też o otoczeniu, ludziach, kulturze.

Pierwsze tezy, które sformułowałem i wypracowałem przez poprzednie lata nieco różniły się od popularnych poglądów. Zacząłem się zastanawiać na podstawie literatury i wypowiedzi innych osób, co jest podstawą myślenia o architekturze. Są to trzy podstawowe zagadnienia: przestrzeń, społeczność, kultura. Często zapominamy o dwóch końcowych i myślimy tylko o rozwijaniu przestrzeni, tworzeniu niezwykłych form, a to nie wystarcza...

Dlaczego „habitaty”, a nie „osiedla mieszkaniowe”? Jaka jest historia zapożyczenia tego terminu, ponieważ w architektonicznym języku nie było takiego słowa dotychczas.

Po powrocie z Iraku w 1983 roku zostałem zaproszony do udziału w pewnych sesjach, których celem było spotykanie się ludzi z różnych dyscyplin: lekarzy, filozofów, biologów, itd. Organizował je Instytut Psychologii Uniwersytetu Jagiellońskiego, gdzie prof. T. Kocowski był kierownikiem grupy, która aranżowała sesje inwentyczne. Miały one za zadanie pobudzać aktywność twórczą. Jako naukowiec postanowił to zbadać w sposób interdyscyplinarny. Jak człowiek się zachowuje, kiedy ma rozwiązać problem. Stąd to pobudzanie aktywności twórczej. Wymyślił, że rozwój osobowości i myślenia następuje wtedy, gdy prezentuje się coś w obecności ludzi z innych dziedzin. Tutaj pojawia się ta interdyscyplinarność.

Stąd zaproszeni byli filozofowie, socjolodzy, biolodzy, lekarze, elektronicy, psycholodzy, urbaniści, studenci. Każdy z uczestników miał za zadanie wygłosić swój problem naukowy podczas tych trwających sesji. Wywiązywały się dyskusje, bardzo pomocne. Dzięki temu, że były

to osoby mające inne poglądy, zajmujące się różnymi dziedzinami, można było spojrzeć na dany problem z zupełnie innej strony. Rodziły się nowe pomysły, świeże spojrzenia.

Prezentowałem wówczas problem dotyczący właśnie architektury mieszkaniowej, środowiska mieszkaniowego, blokowisk. Jeden z biologów zabrał głos, zgodził się, że temat jest interesujący i poważny, dotyczący wszystkich ludzi. Jednak zauważył, że mówiąc o tym, jako o architekturze mieszkaniowej każdy stwierdzi, że to nie jest nic nowego.

zdj.Aleksandra Wasilenko

Wszyscy się spotykają, często mieszkają w takich osiedlach, przez co ta problematyka nie jest dla nich czymś nowym i interesującym. Zaczęliśmy się wówczas zastanawiać, jak rozwiązać ten problem. Wtedy to po kilku dniach ten właśnie biolog wskazał w encyklopedii słowo „habitat” – w naukach biologicznych oznacza środowisko, w którym wszystkie gatunki znajdują najlepsze warunki rozwoju, a habitatem ptaków śpiewających są korony wysokich drzew. No nie można było sobie wyobrazić lepszej definicji niż ta. Pojawia się metafora, która sprawia, że człowiek się zastanawia: „skoro ptaki muszą śpiewać, to muszą się wznieść ponad korony drzew, żeby nic im nie zagrażało, gdy będą zajęte śpiewem”. A habitat jest miejscem dla wszystkich gatunków mieszkających na Ziemi. I tutaj otwiera się piękny temat do badań nad człowiekiem. Jaki jest, czego mu potrzeba i jak mu to zapewnić, by mógł czuć się dobrze w swoim środowisku naturalnym – w habitacie.

Początek Szkoły Naukowej HABITAT sięga schyłku lat 80. Wtedy to w Polsce zaczęły się już pojawiać idee postmodernizmu, nastąpiło wiele zmian za sprawą przemian społeczno-gospodarczych i dostępu do nowych technologii. Czy miało to jakiś szczególny wpływ na ówczesne projektowanie osiedli?

W owym czasie postulaty, które głosiła szkoła były przyjmowane z trudnością i pewnym dystansem przez kolegów urbanistów. Co ciekawe, nawet dzisiaj są osoby z mojego środowiska, które sceptycznie odnoszą się do habitatów.

Z badań i według wspomnianych już założeń wynika, że podobne problemy co wtedy istnieją do dnia dzisiejszego, zarówno w Polsce, jak i za granicą. Są to głównie trudności z mieszkańcami, tworzącą się patologią w nowoczesnych osiedlach.

Wynikają z braku wiedzy architektów i urbanistów, którzy projektują duże zespoły, gdzie ludzie nie mają możliwości

się poznać, są anonimowi i nie identyfikują się jako jedno społeczeństwo dbające o wspólne dobro. Jako przykład podam punktowce w Hongkongu, które liczą około 2000 mieszkańców! Nie ma możliwości, by mówić w takiej sytuacji o habitacie.

Czy jest coś, co Pana zaskakuje w obecnym projektowaniu, a może jakie błędy popełniają deweloperzy, architekci?

Głównym błędem w projektowaniu jest brak zrozumienia i chęci, żeby poznać i przyswoić idee habitatu. Drugą przeszkodą jest niechęć społeczna do robienia czegoś inaczej. Często społeczność nie aprobuje nowych projektów. Trzeba się przebijać przez swego rodzaju mur: krytyki, niechęci, niepewności.

Oczywiście kolejną sprawą są pieniądze. Są sytuacje, że nawet gdy deweloper ma szansę, propozycję by wybudować habitat, odrzuci ten plan na rzecz większej ilości mieszkań, tak by zarobki były odpowiednio wyższe.

Jak Pan widzi rozwój środowisk mieszkaniowych? Czy te założenia wypracowywane przez lata będą wciąż aktualne w habitatach przyszłości?

Uważam, że teoria habitatu powinna być cały czas uaktualniana. Ma ona wartości uniwersalne, ogólnodyscypilnarne. Nawet projektując habitaty przyszłości na Marsie, trzeba poznać ogólne zachowania ludzi. Obiekt oczywiście można tam zaprojektować, on może technicznie będzie doskonały, ale tam człowiek nie będzie mógł żyć. Każdy z nas jest inny i ma swoje wymagania. Kluczem do tego by zrozumieć człowieka i jego poglądy na świat są rozmowy, badania i spotkania z mieszkańcami. Należy zrozumieć ich kulturę, tradycje, a także nauczyć ich i przystosować do życia we wspólnocie. Nie jest to zadanie łatwe, ze względu chociażby na różnorodność charakteru, czy pochodzenia. Czy ktoś wywodzi się z habitatu i umie w nim żyć, czy też jest

jednostką nieutożsamiającą się jako część danego społeczeństwa. Konieczna jest umiejętność korzystania z miejskich udogodnień, wzajemnego poszanowania i dbania o wspólne dobro.

W roku 2018 minęło 30 lat od powstania Szkoły Naukowej HABITAT. W związku z tym, tematem przewodnim ostatniej konferencji naukowej była „Teoria Habitatu: Współczesny Kontekst”. Skąd my, przyszli architekci, urbaniści, moglibyśmy czerpać wzorce, chcąc tworzyć habitaty?

Wiele osób, nie tylko z naszego otoczenia, ale też ze świata, zna idee habitatu. Dzięki temu powstają takie miejsca specjalnie zaprojektowane i przemyślane poza granicami Polski. W krajach Skandynawskich ludzie dążą do tego, by mieszkać we wspólnotach. Dla nich jest to zupełnie naturalne. Mają zaufanie do siebie i wzajemny szacunek dla wspólnego dobra. To np. w Danii, Holandii najczęściej można spotkać dobre przykłady habitatów. Podróżując nie tylko po świecie, ale i po naszym kraju wielokrotnie spotykam takie wspólnoty. Niestety, zazwyczaj architekci projektujący takie osiedla nie zdają sobie sprawy, że stworzyli habitat.

Projektując, nie powinniśmy się skupiać tylko na bryle, ale należy też pamiętać o tych trzech podstawowych zasadach jakimi są: przestrzeń, społeczność, kultura. Habitat to sztuka i umiejętność organizowania przestrzeni życia człowieka.

Autor: Aleksandra Wasilenko

Koło Naukowe: HŚM

13
innicjatywa architektoniczna

Jako początek dorosłego życia można uważać samodzielne mieszkanie. Jednak dla osób z niepełnosprawnością taka samodzielność jest często poza zasięgiem ze względu na bariery napotykane w swoim najbliższym otoczeniu. Dostosowanie pod względem funkcjonalnym ich własnych „czterech ścian” jest nowym początkiem lepszego życia. Trudnością dla tych osób jest sam remont mieszkania, gdyż wiąże się on z problemami logistycznymi i dużym nakładem finansowym. Z pomocą przychodzi Wspólna Inicjatywa Architektoniczna (WIA).

WIA to innowacyjny i interdyscyplinarny projekt, którego celem jest usuwanie barier architektonicznych, technicznych oraz komunikacyjnych dla osób z niepełnosprawnością. Ideą warsztatów jest stworzenie projektów adaptacji istniejących mieszkań oraz obiektów dla osób z różnymi dysfunkcjami, tworząc przestrzenie przyjazne, funkcjonalne, a przede wszystkim bezpieczne. Osoby otrzymujące gotowy projekt mogą skorzystać z pomocy MOPS-u, ubiegając się o dofinansowanie PFRON, przeznaczone na usuwanie barier architektonicznych.

Pilotażowa edycja została zorganizowana w 2008 roku na Wydziale Architektury Politechniki Wrocławskiej przy współpracy

ze Stowarzyszeniem Wspierania Rozwoju Osób Niepełnosprawnych. W roku 2018 odbyło się dziesięciolecie projektu. Program został podzielony na dwie części: warsztatową połączoną z wycieczką oraz projektową. Pierwszy z etapów polegał na zaznajomieniu się studentów z tematyką projektowania uniwersalnego poprzez cykl wykładów przeprowadzonych przez specjalistów – architektów, producentów sprzętu sanitarnego oraz medycznego. Zorganizowana została tzw. „Akcja Miejska”, w której to uczestnicy mieli za zadanie, poruszając się na wózkach inwalidzkich lub o kulach, sprawdzić dostępność miasta do potrzeb osób z niepełnosprawnością fizyczną. Jedną z form warsztatów była „Godzina Ciemności”, która obejmowała podstawy języka migowego oraz poznanie alfabetu Lorma. W ten sposób uczestnicy wprowadzeni zostali do świata osób niewidomych, głuchych oraz głuchoniewidomych. Kolejnym z elementów warsztatów była wizyta w Milickim Mieszkaniu Treningowym dla niepełnosprawnych oraz w firmie, która produkuje wózki inwalidzkie i sprzęty ułatwiające poruszanie się dla osób z dysfunkcją ruchową.

Część projektowa obejmowała wykonanie koncepcyjnego projektu dostosowania obiektu do potrzeb konkretnego inwestora. Początek prac związany był z przepro-

wadzaniem inwentaryzacji oraz wywiadu środowiskowego. Ważnym aspektem projektu była strona techniczna, obejmującą stworzenie dokumentacji budowlanej oraz kosztorysu. Zwieńczeniem kilkutygodniowej pracy była uroczysta gala, podczas której zostały wręczone gotowe projekty. Ponadto dzięki sponsorom inwestor, którego projekt najlepiej spełnił wymagania osoby z niepełnosprawnością, otrzymał specjalistyczne wyposażenie łazienki.

Rok 2017 był początkiem nowego etapu działania projektu. Spotkanie się studentów – projektantów przedstawiających różne dyscypliny naukowe, doprowadziło do interdyscyplinarności przedsięwzięcia oraz rzucenia światła na nowe problemy w zastanych mieszkaniach. Dzięki odmienności reprezentowanych profesji uczestnicy uczą się od siebie nawzajem. W 2017 roku do projektu włączyła się Terapia Zajęciowa z Akademii Wychowania Fizycznego. W 2018 roku został zaproszony również kierunek Fizjoterapii z AWF-u oraz Architektury Wnętrz i Wzornictwa z Akademii Sztuk Pięknych.

Terapia zajęciowa stanowi część rehabilitacji, która ma za zadanie uaktywnić pacjenta poprzez wykonywanie określonych czynności mających również charakter usprawniania psychicznego i fizyczne-

Wspólna
zdj.Dominika Chrząstek zdj.Uczestnik WIA

go. Aktywności związane są z dbaniem o siebie, samoobsługą, edukacją, pracą oraz formą wypoczynku i spędzaniem czasu wolnego. Rola tych studentów w projekcie opierała się przede wszystkim na ustaleniu indywidualnych potrzeb klienta. Konieczne do tego było określenie czynności, które są zaburzane, a także zbadanie przyczyny – zapoznanie się z chorobą i jej przebiegiem, poznanie rytmu dnia, codziennych zwyczajów. Studenci posłużyli się specjalistycznym narzędziem w postaci arkusza pogłębionego wywiadu COPM. Dzięki tej wiedzy terapeuci zasygnalizowali priorytetowe strefy życia inwestora. Ponadto przekazali wiedzę jakie sprzęty czy rozwiązania sprawdzą się jako najbardziej ergonomiczne.

Studenci kierunku fizjoterapia dzięki znajomości różnych jednostek chorobowych mogli w projekcie nie tylko spełnić aktualne potrzeby inwestorów, ale także zaproponować rozwiązania, które okażą się przydatne w przyszłości – kiedy choroba zacznie się pogłębiać. Wspomogli go także wiedzą związaną ze specjalistycznym wyposażeniem, takim jak poduszki czy materace ortopedyczne. Dzięki rozmowom z inwestorem mogli poprawić jego higienę życia czy zalecić indywidualnie dobrane ćwiczenia.

Studenci architektury wnętrz w swojej pracy skupili się przede wszystkim na zaaranżowaniu i wystroju projektowanych przestrzeni, w tym kolorystyki z uwzględnieniem specyficznych wymagań osoby chorej, oświetlenia oraz doborze faktur. Studenci wzornictwa posiadają szeroką wiedzę o charakterze humanistycznym. Ich rola w projekcie polegała na zaprojektowaniu innowacyjnych rozwiąń – nowych mebli, elementów wyposażenia domu mogących pozytywnie wpłynąć na inwestora i ułatwić mu funkcjonowanie w jego najbliższej przestrzeni.

Można powiedzieć, że udział w warsztatach był dla wielu studentów początkiem pracy w zespole interdyscyplinarnym. Takie doświadczenie dla przyszłych architektów jest szczególnie ważne, ponieważ w swojej pracy zawodowej ciągle będą spotykać się z branżystami mającymi odmienny punkt widzenia na projekt. Dodatkowo jest to świetnaokazja, by dostrzec problemy i słabości innych ludzi. Wspólna Inicjatywa Architektoniczna to także dla inwestorów z niepełnosprawnością początek życia bez barier.

Autorzy:

Dominika Chrząstek

Kinga Kasprzyca

Koło Naukowe: POPARCH

15
zdj.Przemysław Wdowiak zdj.Przemysław Wdowiak

Louvainla-Neuve

Jak architektura ma się do wyobrażeń i oczekiwań użytkownika? Czym żywi nas kino i social media, a co dostajemy w zamian? W jaki sposób architektura wpływa na naszą codzienność i jakie społeczeństwo kreuje? Z pewnością jest to uwarunkowane kulturowo, gospodarczo oraz klimatycznie. I choć belgijski klimat jest całkiem zbieżny z naszym polskim, to napotkaliśmy tam perełkę swoją wyjątkowością dorównującą co najmniej Metropolis przedstawionemu przez Fritza Langa. Tylko tutaj industrialnym podziemiom odpowiada parking samochodowy.

Nazwę Louvain-la-Neuve dosłownie rozumie się jako Nowe Louvain. W całości studenckie miasto miało być siedzibą Katolickiego Uniwersytetu Louvain wraz z francuskojęzyczną społecznością akademicką. W wyniku kryzysu polityczno-kulturowego, dotychczasowy Katolicki Uniwersytet w Lowanium został podzielony na część francusko- oraz niderlandzkojęzyczną, która pozostała w mieście Leuven. Przeniesieni do nowego miasta studenci symbolicznie co roku przywozili kostkę brukową z poprzedniej siedziby uczelni i umieszczali ją w nowych chodnikach.

Tworzenie miasta uniwersyteckiego zupełnie od zera było ciekawym ekspery-

mentem architektonicznym. Świadomie zdecydowano o budowie nowoczesnego miasta na surowej ziemi, które będzie spełniało modernistyczny postulat funkcjonalnego rozdziału ruchu pieszego i samochodowego. Miasta, które będzie działać jak corbusierowska maszyna, w której każdy trybik ma swoje miejsce. Głównym projektantem był Victor Hugo Green. Jego kluczowym założeniem było połączenie modernistycznego racjonalizmu konstrukcyjnego i funkcjonalnego z ludzką, przyjazną skalą zabudowy tradycyjną dla Europy. Efektem jest sztuczne miasto ulokowane na płycie, która swoją krzywizną naśladuje naturalne, górzyste ukształtowanie terenu. Oddziela ona powierzchnię tętniącą pieszymi i parking podziemny. Na tej płycie ulokowano zabudowę jakby wyjętą ze średniowiecza, powtarzalną, pompatyczną, z elewacjami, w których dominującym materiałem jest cegła, wypełniającą siatkę miejską w zwarty sposób, wytwarzając system krętych ulic, mniejszych i większych placów rozlanych po tym sztucznym wzgórzu. Cały ten spektakl nieregularnych, ceglanych form oparty jest jednak na racjonalnej do bólu, regularnej siatce żelbetowych słupów podziemnego parkingu. To intrygujące pogodzenie modernizmu i tradycji buduje niepowtarzalną atmosferę miasta. Przeważa w nim architektura

ceglana, co w praktyce skutkuje brakiem identyfikacji wizualnej, a sami mieszkańcy mówią, że gubienie się w jego uliczkach jest na porządku dziennym.

Louvain-la-Neuve można określić kampusem uczelnianym o skali miasta. Zdecydowaną dominantą społeczeństwa są studenci zamieszkujący tematyczne akademiki, które występują naprzemiennie z budynkami wydziałów Uniwersytetu. Przy głównym placu, w pobliżu stacji kolejowej, gdzie w tradycyjnym europejskim mieście spodziewamy się ujrzeć ratusz, w Louvain-la-Neuve znajdujemy się nieopodal siedziby rektora i niemalże możemy zmierzać w stronę kolejki do dziekanatu.

Louvain-la-Neuve jest również przystosowane dla seniorów. Całkowicie funkcjonuje jako pedestrian city, co oznacza, że do każdego udogodnienia można dojść w mniej niż 15 minut. Zaobserwowaliśmy, że często prowokuje to konflikty międzypokoleniowe wśród mieszkańców ze względu na dynamiczny styl życia młodych studentów. Starsi nie są w stanie docenić naukowej działalności studenckiej, ponieważ jest ona zazwyczaj zamykana w kuluarach wewnątrzuczelnianych.

Sama architektura mimo swojej surowości i powtarzalności nadaje klimat temu

zdj.Michalina Dębska zdj.Michalina Dębska

miejscu. Miasto powstało w dolinie i cała zabudowa wznosi się ku wzgórzu. Każdy budynek kończący pierzeję bądź kwartał zabudowy zakończony jest ślepą ścianą, umożliwiając kontynuację tworzenia zwartej tkanki miejskiej.

Zwróciliśmy jednak uwagę na pewien problem, który dostrzec można również na naszych podwórkach – liczne budynki dziedzictwa modernistycznego, o których stan techniczny nikt nie dba. Władze nie nadążają z remontami tak, aby jednocześnie zaspokoić potrzeby obowiązujących przepisów oraz zachować ducha tego modernistycznego miasta. Idealnym przykładem złej modernizacji jest tamtejszy Wydział Informatyczny. Pierwotne pionowe podziały elewacji zostały zaburzone przez nowe plastikowe okna, a ilość światła dziennego wpadająca do pomieszczeń została w znacznym stopniu ograniczona. Jest to problem dający wiele do myślenia i zachęcający do zmierzenia się z nim w naszych przyszłych projektach.

Zdecydowanie jednym z najprzyjemniejszych miejsc w Louvain-la-Neuve był dla nas tamtejszy Wydział Architektury. Mimo tego, że w teorii budynek zamykany zostaje o północy, to studenci i tak mają możliwość całodobowej pracy nad swoimi projektami. Każdemu studentowi przy-

sługuje wielkoformatowy stół kreślarski, dzięki czemu może spokojnie zostawić wszystkie swoje kalki, promarkery i nożyki na swoim stanowisku pracy, wiedząc, że kiedy wróci, to wszystko nadal będzie na swoim miejscu. Ponadto dla studentów dostępne są udogodnienia modelarni, a jeżeli mają jakieś zbędne materiały, to mogą zostawić je dla kolegów z roku. Co ciekawe, każdy zna tam każdego, gdyż na rocznik przypada zaledwie około trzydziestu studentów.

Louvain-la-Neuve składa się z wyjątkowej urbanistyki i przemyślanych budynków. Jego specyfiki nie da się określić jako dobrej lub złej. W tym przypadku planiści oraz architekci stworzyli miejsce sprzyjające rozwojowi życia studenckiego, pełnego udogodnień i komfortowego dla użytkowników. Zarówno studenci, jak i pracownicy wydziałowi są w stanie przyznać słuszność zaobserwowanych przez nas mankamentów, lecz czują się tam dobrze. Będąc w LLN, odczuliśmy, że miasto tętni życiem i ma swój unikatowy charakter. Inspiruje do rozwagi nad projektowaniem oraz do przemyśleń, w jaki sposób stworzyć przyjazną przestrzeń dla ludzi. Uważamy, że jest to miasto, które każdy architekt powinien odwiedzić oraz polecamy trening projektowy w postaci jego rewitalizacji.

Autor: Michalina Dębska

Koło Naukowe: Cardo

17
zdj.Michalina Dębska zdj.Michalina Dębska

Ostróda jest niedużym, przyjemnym miasteczkiem na Mazurach, położonym nad Jeziorem Drwęckim. Kryje w sobie historyczny skarb, który nieśmiało zgubił się wśród drzew. Idąc wzdłuż jeziora ulicą Adama Mickiewicza łatwo go pominąć, bo choć stanowczo odznacza się elewacją z czerwonej cegły i lekko przysadzistą bryłą, nie jest wyeksponowany jak inne, podobne mu budowle. A tych na Mazurach jest wiele – każdy z nas słyszał zapewne o zamkach gotyckich w Malborku, Lidzbarku czy Fromborku. Bo mowa oczywiście o Zamku Krzyżackim w Ostródzie. To w nim w lipcu 2018 roku odbyła się trzecia edycja warsztatów organizowanych przez Koło Naukowe Historii Architektury ArcHist pt. „Zamki i ich cienie” prowadzonych przez dr inż. arch. Teresę Dziedzic.

Historia zamku w Ostródzie sięga drugiej połowy XIII wieku, kiedy Krzyżacy zbudowali na wyspie powstałej przez rozwidlenie koryta rzeki Drwęcy drewniany dwór rycerski otoczony palisadą z bali. Od 1300 roku stanowił siedzibę zakonnego wójta, pełnił też wtedy rolę administracyjnego, gospodarczego i wojskowego centrum, przy którym zaczęła powstawać niewielka osada. Uzyskała przywilej miejski w 1329 z rąk komtura dzierzgońskiego, Lutra z Brunszwiku. Z czasem zaczęła nabierać

większego znaczenia, co zaowocowało utworzeniem w 1341 roku komturstwa ostródzkiego – jednego z ważniejszych w tej części państwa zakonnego ze względu na charakter przygraniczny. Duże znaczenie miało również położenie na szlaku handlowym, prowadzącym z Mazowsza nad Bałtyk.

W połowie XIV wieku rozpoczęła się w Ostródzie budowa zamku murowanego z cegły z inicjatywy ówczesnego komtura, Güntera von Hohensteina. Założenie wzniesiono na kamiennej podmurówce na planie zbliżonym kształtem do kwadratu o wymiarach 44,7 na 45,2 metrów. Posiadało cztery podpiwniczone skrzydła o szerokości około 14 metrów, przy czym reprezentacyjne (południowe i północne) były trzykondygnacyjne, a urzędowo-mieszkalne (wschodnie i zachodnie) miały cztery kondygnacje. Na pierwszym piętrze komunikację wzdłuż wszystkich skrzydeł zapewniał drewniany krużganek. Na dziedziniec zamku można było dostać się przez most zwodzony i bramę wjazdową, znajdujące się po zachodniej stronie. System obronny stanowiły fosa i parchan z murem obwodowym. Przedzamcze składało się z budynków gospodarczych oraz produkcyjno-magazynowych.

W 1788 roku wybuchł pożar, który strawił

całe miasto. W jego wyniku nastąpił wybuch prochu składowanego we wschodnim skrzydle, które zostało zupełnie zniszczone i później rozebrane. Spłonęły również górne poziomy budynku. Podczas odbudowy zrezygnowano z odtworzenia nieistniejącej już części zamku, a pozostałe trzy skrzydła przykryto dachem na wysokości pierwszego piętra. W XIX wieku zamek stanowił m.in. siedzibę sądu oraz urzędu powiatowego, a część pomieszczeń została przerobiona na mieszkania.

Niestety, nawet w zmienionej formie budowla nie przetrwała do naszych czasów – w trakcie ofensywy radzieckiej zimą 1945 roku zamek spłonął. Sześć lat później powstała sporządzona przez Józefa Fischera inwentaryzacja pozostałości założenia, a na jej podstawie – projekt odbudowy tego samego autora. Zakładał on odtworzenie wieży z klatką schodową w południowo-zachodnim rogu krużganka. Do realizacji jednak nigdy nie doszło.

W 1977 roku rozpoczęto prace archeologiczne i budowlane przy restauracji zamku, pozostawiając nieliczne już elementy średniowiecznego układu wnętrz. W niektórych pomieszczeniach przyziemia zachowane zostały sklepienia krzyżowo-żebrowe z granitowymi filarami. Zrekonstruowano również otwory okienne Zamki

i ich cienie. Ostróda.
zdj.Agnieszka Stanclik

i bramne w kształcie ostrołuków, a na dziedzińcu odkryto studnię i odtworzono drewniany krużganek przy skrzydle północnym.

Warsztaty rozpoczęliśmy od spotkania z dyrektorem Centrum Kultury w Ostródzie, panem Julianem Pawłowskim, aby omówić najważniejsze i wymagające największej uwagi problemy. Na pierwszym miejscu znalazły się zniszczenia spowodowane wilgocią i zasoleniem, a także nieszczelność niektórych elementów konstrukcyjnych. Skupiliśmy się również na odtworzeniu dachu z jego pierwotnym nachyleniem i skrzydła wschodniego w nowoczesnym wydaniu, natomiast dziedziniec i otoczenie budynku niewątpliwie wymagało uporządkowania i ponownego zaprojektowania oraz zaplanowania systemu informacyjnego.

Efektem tygodniowych warsztatów stały się liczne pomysły i postulaty, które przedstawiliśmy na prezentacji multimedialnej podczas wernisażu, który odbył się 28 lipca 2018 roku w muzeum na zamku. Na to wydarzenie zaprosiliśmy m.in. burmistrza miasta, pana Czesława Najmowicza, oraz wszystkich mieszkańców miasta zainteresowanych wynikami naszej pracy. Projekt realizowany był we współpracy z Centrum Kultury w Ostródzie oraz pod

patronatem Dolnośląskiego Wojewódzkiego Konserwatora Zabytków – Barbary Nowak-Obelindy.

Prezentację rozpoczęliśmy od przedstawienia historii założenia zamkowego i rekonstrukcji bryły oraz analiz urbanistycznych. Następnie przeszliśmy do części projektowej: zagospodarowania terenu, dziedzińca zamku i odtworzenia skrzydła wschodniego. Ostatnia część dotyczyła naszej wizji systemu informacyjnego oraz zaleceń konserwatorskich do projektu.

Wyjazd zakończyliśmy pełni satysfakcji – nauczyliśmy się pracy w szerszym zespole, poznaliśmy nowoczesne technologie wykorzystywane do badań konserwatorskich oraz sposoby zabezpieczania i ochrony historycznych konstrukcji. Jest to dla nas cenne doświadczenie, ale przede wszystkim rośnie w nas nadzieja, że Zamek Krzyżacki w Ostródzie w przyszłości otrzyma godną i piękną oprawę, aby mieszkańcy mogli być dumni, że w ich mieście można zobaczyć tak wyjątkowe miejsce.

Autor: Agnieszka Stanclik

Koło Naukowe: ArcHist

19
zdj.Agnieszka Stanclik zdj.Agnieszka Stanclik

Początek ... końca?

Początek… końca?

Nie mamy zbyt wiele czasu. I niestety nie mam tu na myśli zbliżającej się sesji. W naszych małych, oddaniocentrycznych światach poza sprawami priorytetowymi, jak kasa na wydruk i odpowiednia ilość energetyków w lodówce, istnieją także bardziej przyziemne sprawy, jak zmiany klimatyczne, grożące nam przeludnienie obszarów nadających się do życia, czy… problem śmieci.

Zatrzymajmy się na chwilę przy tym ostatnim. Od 1950 do 2015 roku ludzkość wyprodukowała 8,3 miliarda ton genialnego i niesamowicie wytrzymałego materiału – plastiku. Niestety, tylko 9% z tej ilości po użyciu zostało poddane recyklingowi, 12% – spalone, a reszta (79%) – znalazła się na wysypiskach śmieci. Stamtąd, pod wpływem nieodpowiedniego zabezpieczenia, tworzywa sztuczne przedostają się do gleb i wód, następnie do roślin i zwierząt na naszych talerzach, wody pitnej oraz powietrza, którym oddychamy.

Ta liczba jest dla nas nieco abstrakcyjna, więc może odrobinę porównań: taka masa to równowartość 822 tysięcy Wież Eiffla, a spora część z tego pływa w postaci Wielkiej Pacyficznej Plamy Śmieci, której powierzchnia wynosi 1,6 miliona

kilometrów kwadratowych (ponad pięciokrotna powierzchnia Polski).

Dosyć faktów, pora na powrót do grafomanii. Jak do tego tematu odnosi się design i architektura? Najczęściej – nijak, choć są wyjątki, a tendencje do mierzenia się z problemem rosną.

Na pierwszy ogień weźmy wystawę „Over Flow” autorstwa Tadashiego Kawamaty. Instalacja została stworzona pod ekspozycję w Sali Owalnej Muzeum Sztuki, Architektury i Technologii w Lizbonie. Zrobiono ją z odpadów zebranych u wybrzeży Portugalii przez grupę aktywistów Brigada do Mar i przy współpracy z kolektywem architektonicznym Os Espacialistas. Efektem ich wspólnych działań było utworzenie „stropu” z siatek i śmieci, które dały efekt rozchwianego, wzburzonego morza odpadów wyprodukowanych przez ludzkość.

Mamy także polskich przedstawicieli zaangażowanych w tę tematykę. Hugon Kowalski (UGO.Architecture) i Marcin Szczelina (Architecture Snob), na zaproszenie Alejandro Araveny zaprojektowali główną ekspozycję podczas Biennale Architektury w Wenecji w 2016 roku, zatytułowaną „Let’s talk about garbage”. Zwraca ona uwagę na rosnące dyspropor-

cje w poziomie życia pomiędzy Europą a Azją oraz niewykorzystany przez Europejczyków potencjał, jaki tkwi w śmieciach. Co ciekawe, odwiedzający mogli wchodzić w interakcję z wystawą, np. poprzez dokładanie swoich śmieci. W momencie, gdy wrzucili coś do otworu znajdującego się po stronie symbolizującej Europę, odpady wylatywały po stronie azjatyckiej. Wskazuje to także na inne problemy, jak do niedawna entuzjastycznie uprawiany śmieciowy outsourcing.

Dość o wystawach, co z rzeczywistym działaniem?

Zrównoważony rozwój i odpowiedzialne wykorzystanie zasobów stają się populistycznym hasztagiem numer jeden, nic więc dziwnego, że zainteresowanie śmieciami wzrasta. Realizacje wykonane z odpadów mają coraz mniej niszowy charakter, przestają być jedynie ciekawostką i mają szansę na wytyczenie nowych trendów.

Poruszając ten temat w kontekście architektury, nie sposób nie wspomnieć o Michaelu Reynoldsie – ojcu earthshipów, w których ideologia zero-waste oraz wykorzystanie alternatywnych materiałów, jak np. opony wypełnione piachem, grają kluczową rolę. Reynolds w czasie stu-

https://www.earthshipglobal.com/global-model-earthships/qvkma0h9u3h0cah9w1y3ihpkwbmub4 19.03.19

https://www.dezeen.com/2018/10/29/tadashi-kawamata-lisbon-maat-plastic-ocean-over-flow-installation/

diów buntował się przeciwko masowej standaryzacji architektury mieszkaniowej i zwracał uwagę na problem umierania serc amerykańskich miast na skutek wypierania funkcji rezydencjonalnej przez biznes. Propozycja amorficznego „rezydencjonalnego koca” – jak sam autor się o tym wypowiadał – w jego pracy dyplomowej jest co najmniej tak samo odważna, jak Plan Voisin Le Corbusiera, lecz wyzbyta autorytarnego charakteru na rzecz większej swobody i zaufania w kreatywność oraz odpowiedzialność użytkowników, kładąc jednocześnie nacisk na spełnianie podstawowych potrzeb i po-

nowne wykorzystanie materiałów.

Jeśli chodzi o Polskę, to odnoszę wrażenie, że projektanci mody, mebli czy przedmiotów użytkowych traktują ten problem dużo poważniej niż architekci. Wydarzenia takie jak Gdynia Design Days, Łódź Design Festival z konkursem Make me!, czy też najróżniejsze targi mody pokazują, że młode pokolenie projektantów podchodzi do tematu na poważnie. Niestety, nie można powiedzieć tego samego o branży budowlanej, a to przecież ona jest odpowiedzialna za produkcję 33% odpadów w całej Unii Europejskiej .

Mamy naprawdę niewiele czasu na odrobienie tej lekcji. Architekci uwielbiają chować się za tarczami z paneli słonecznych i kopiami z wiatraków, ale czas spojrzeć w lustro i zadać sobie pytanie: Czy to naprawdę wszystko, na co nas stać?

Autor: Przemysław Wdowiak

Koło Naukowe: KN Warsztat

21

Konkursy

Zespół dydaktyczny Architektury Mieszkaniowej zorganizował wystawę i konkurs prac studenckich na Wydziale Architektury Politechniki Wrocławskiej w dniach 25.02.–15.03. 2019. Na wystawie zostały zaprezentowane projekty studenckie zrobione w ramach kursów: Projektowanie architektury usług podstawowych – miasto (rok akademicki 2017/2018), Projektowanie architektury domów jednorodzinnych (rok akademicki 2018/2019) oraz Habitaty: Projektowanie wielorodzinnej architektury mieszkaniowej (rok akademicki 2018/2019). Celem wystawy było wywołanie dyskusji na temat sposobu kształtowania środowiska mieszkaniowego przez ukazanie różnych koncepcji projektowych dot. architektury mieszkaniowej i jej infrastruktury społecznej, a także – upowszechnienie projektów studenckich, tak aby nie były one tylko podstawą do zaliczenia przedmiotu, lecz by ich oddziaływanie i potencjał intelektualny miał szerszy odbiór społeczny.

Jury, złożone z pracowników Zespołu dydaktycznego Architektury Mieszkaniowej, przyznało nagrody dla najlepszych prac studenckich w ramach poszczególnych kursów projektowych. Dodatkowo zostały przyznane nagrody publiczności w formie tajnego głosowania przez osoby zwiedzające wystawę.

dr inż. arch. Ada Kwiatkowska kierownik Zespołu Dydaktycznego Architektury Mieszkaniowej

I Miejsce:

Ania Waligóra i Paulina Samołyk prow. mgr inż. arch. Lea Kazanecka-Olejnik

Habitaty: projektowanie wielorodzinnej architektury mieszkaniowej Projektowanie usług podstawowych w miescie Projektowanie architektoniczne domów jednorodzinnych
1 2 3 1
23
Kazanecka-Olejnik II Miejsce: Sandra Puchacz prow. dr inż. arch. Anna Berbesz

III Miejsce ex aequo: Aleksander Blicharski i Wiktoria Chocianowska prow. dr hab. inż. arch. Anna Bać

III Miejsce ex aequo: Katarzyna Jasińska prow. dr hab. inż. arch. Ewa Cisek

25
Nagroda publiczności: Olga Terlecka i Michalina Dębska prow. dr inż. arch. Jerzy Łątka

I Miejsce: Dawid Szczypior i Sebastian Krawczyk prow. dr hab. inż. arch. Anna Bać

II Miejsce: Sabina Barnat i Klaudia Kubas prow. dr inż. arch. Paweł Horn

2
27
III Miejsce ex aequo: Joanna Barwińska i Kinga Teklak prow. dr inż. arch. Anna Berbesz

Wyróżnienie:

III Miejsce ex aequo: Alicja Bilska i Anton Budas prow. dr inż. arch. Tomasz Głowacki Aleksandra Jówko i Aleksandra Mikiciuk prow. dr hab. inż. arch. Ewa Cisek
29 Mikiciuk
Wyróżnienie: Dawid Szewczuk prow. dr inż. arch. Jan Zamasz

Nagroda publiczności: Jakub Biernacki i Jakub Chrząstek prow. dr inż. arch. Jerzy Łątka

I Miejsce ex aequo: Magdalena Budek prow. dr inż. arch. Paweł Horn

3
31
I Miejsce ex aequo: Milena Szymczak prow. dr inż. arch. Paweł Horn

III Miejsce ex aequo: Nina Miłosławska prow. dr hab. inż. arch. Ewa Cisek

III Miejsce ex aequo: Julia Wicher prow. dr inż. arch. Anna Berbesz

Nagroda publiczności: Katarzyna Janczak prow. dr inż. arch. Anna Berbesz

33
Dr inż. arch. Jerzy Łątka Opiekun Koła Aleksandra Wasilenko Redaktor Naczelny Edyta Naworska Redaktor Anton Budas Grafik Weronika Abramczyk Grafik Dina Cheliadina Grafik Agnieszka Gogól Edytor Kinga Niewczas Edytor Alicja Lorenc Fotograf “Liny” zdj. Karolina Kurtyka

format.redakcja@gmail.com

facebook.com/czasopismoFormatE1

Turn static files into dynamic content formats.

Create a flipbook
Issuu converts static files into: digital portfolios, online yearbooks, online catalogs, digital photo albums and more. Sign up and create your flipbook.