

FERTIGHÄUSER 2026
von und für HausbauHelden

MUSTERHÄUSER
Die wichtigsten Adressen für das perfekte Live-Haus-Erlebnis
SO
BAUT MAN HEUTE
Neue, kreative Hauskonzepte in innovativen Fertigbauweisen


EINFACH BESSER BAUEN Alles aus einer Hand

BUNGALOWS
Alle Dimensionen des Wohnens auf einer Ebene
SCHÖNES WOHNEN
Inspirierende Einrichtungstrends aus den schönsten Fertighäusern des Jahres



Sicher ins eigene Heim
Seit Kurt Tucholski 1927 sein satirisches Gedicht „Das Ideal“ veröffentlichte, scheint sich an den Wohnidealen hierzulande nicht viel geändert zu haben: „Eine Villa im Grünen mit großer Terrasse, vorn die Ostsee, hinten die Friedrichstraße.“ Dies ist, wie alle Ideale, in der Realität selten. Dennoch kann uns das eigene Zuhause dem näher bringen und einen persönlich möglichst idealen Rahmen für die Verwirklichung eigener Lebensentwürfe bieten – und ein Gefühl von Sicherheit in bewegten Zeiten.
Was sich seit 1927 aber deutlich verändert hat, ist die Art und Weise, wie Häuser gebaut werden. Dabei spielen vielfältige technologische Entwicklungen eine Rolle, aber auch unsere veränderten Anspüche an den Wohnkomfort und die Notwendigkeit, nachhaltiger und klimaschonender zu bauen.
Eine Bauweise, die Bauinteressenten den Weg ins eigene, individuell ideale Heim besonders einfach macht, ist die Holzfertigbauweise: sie kombiniert traditionelle Handwerkskunst mit modernsten Produktionsmethoden und fertigt aus dem klimaschonenden Baustoff Holz nach individuellen Bauherrenplänen energieeffiziente Wohngebäude. Qualitätshersteller bieten Bauinteressenten dabei ein Maximum an Terminsicherheit und Preistransparenz.
Wie breit das Spektrum der Möglichkeiten des modernen Holzfertigbaus ist, zeigen wir auf den kommenden Seiten: keine einzige Ideal-Villa à la Tucholski, aber vielfältigste Inspirationen für euer persönliches Ideal vom Zuhause.
Herzlichst, eure

Astrid Barsuhn, Chefredakteurin

RAUM FÜR GANZ VIEL (ER)LEBEN!
Mit 120 Jahren Know-How, heimischen Hölzern und natürlichen Materialien werden aus Ihren Wohnträumen individuelle Lebensmittelpunkte. Durchdacht, effizient und energetisch bis unters Dach.

Foto: Oliver Röckle
So fühlt sich Zuhause an:


Foto: Zimmermeisterhaus/xm . agentur
20 TRENDHÄUSER
Immer
42 HOLZHÄUSER
72 BUNGALOWS
56 STADTHÄUSER


TRENDHÄUSER



Foto: Schwörer Haus/Det Göckeritz
Foto: Regnauer Hausbau/Martin Duckek
Foto: Luxhaus
Foto: Danwood S.A.
Fertighaus
Leben im eigenen Traumhaus

Ein echtes Zuhause-Gefühl entsteht dann, wenn ihr euer neues Haus mit Leben füllt! Klar, Architektur und Grundriss sollten auf eure Bedürfnisse zugeschnitten sein, aber richtiges Wohlfühlwohnen entwickelt sich vor allem bei der Gestaltung der Innenräume: dem Innenausbau und der Möblierung nach eurem ganz persönlichen Geschmack und Anspruch.


1 Mit Wohlfühl-Flair:
Offen gestaltete Wohn-Ess-Kochbereiche schaffen auch auf kompakterer Fläche Großzügigkeit. Gut zoniert und dank großer Verglasungen tageslichthell, bieten derart gut geplante Familienbereiche optimalen Raum für Zeit mit Freunden und Familie sowie ganz privat, zum Entspannen. In diesem schlanken Stadthaus des Ehepaars Zink liegen Diele, Küche, Essplatz und Sofaecke in einer Linie. Die geradläufige, offene Holz-Stahltreppe ist schmückendes Raumelement. www.zmh.com
2 Garantierte Quality-Time:

In einer neuen, gut ausgestatteten Küche macht das Kochen mit der ganzen Familie allen richtig Spaß! Nicht nur chic, sondern vor allem auch geräumig und durchdacht gestaltet – mit großer Kochinsel, gut belichteten, großzügigen Arbeitsflächen und viel Stauraum in den raumhohen Küchenschränken – schaffen moderne Kochbereiche wie im Haus Ordner hierfür die besten Voraussetzungen. www.fingerhaus.de
3 Lichtspiele inklusive:
Ein rundum verglaster WintergartenAnbau bietet Naturnähe auch in der kühlen Jahreszeit. Im Kundenhaus Ottobrunn hält der gemütliche Rückzugsort dabei herrliche Ausblicke in den umgebenden Garten mit altem Baumbestand bereit. Hier kann man den Alltag gut einfach mal hinter sich lassen. www.regnauer.de
Foto: Zimmermeisterhaus/xm . agentur
Foto: Regnauer Hausbau
CHIC UND COZY




Foto:

1 Stilvoller Luxus:
Mit einem Hauch Extravaganz und besonders viel Platz für Familie und Gäste lädt die stylische Luxus-Küche der Londoner Marke Lanserring im Haus ART 6 zum geselligen Kochen ein. Gemeinsames Werkeln oder ein entspannter Aperitif an der edlen Marmor-Kochinsel werden am Ufer des Genfersees zum Erlebnis. www.huf-haus.com
2 Private Spa:
Das private Badezimmer ist nicht nur Ort für Körperpflege, sondern auch für Entspannung und Regeneration: Mit frei stehender Badewanne, warmen, dezenten Naturtönen, viel Holz und Weiß sowie reichlich Tageslicht dank des großen Fensters schuf Familie Bremer sich eine wahre Wohlfühloase für die ganze Familie. www.fertighaus-weiss.de
3 Stylisch gemütlich:
Eine Fernsehecke, ergänzend zur eigentlichen SofaLandschaft bietet zusätzliche Rückzugsmöglichkeit und viel Raum zum Kuscheln und Toben. Daneben sorgen die farbigen Wände in leuchtendem Türkisblau und bodentiefe, große Verglasungen mit Blick in den Garten im Haus Gilching für frisches, luftiges Ambiente. www.kampa.de
4 Mit Tiefgang:
Bei einem Hanghaus kann es sich anbieten, mit der Raumaufteilung buchstäblich in die Tiefe zu gehen: Bei diesem Kundenhaus liegen die Schlafräume auf der Eingangsebene, in der oberen Etage, unten, auf Gartenebene, ist der Familienbereich untergebracht. Die geradläufige Treppe besticht durch ihr Faltwerk aus Massivholz und dunklem Relinggeländer. www.bw-holzhaus.de

WIR MACHEN SCHLUSS MIT DEM UNERWARTETEN BEIM HAUSBAU.
Etwas lauert bei der Hausplanung immer im Verborgenen: das Unerwartete. FingerHaus sorgt für maximale Planungssicherheit bei Ihrem neuen Zuhause und bietet Ihnen dank preisgekröntem Service und innovativer Holzfertigbauweise höchste Qualität – von der ersten Planung bis zum fertigen Eigenheim.
Jetzt sorgenfrei ins eigene Zuhause!

Jetzt Infopaket anfordern: www.fingerhaus.de
SCHÖNER WOHNEN im Fertighaus
HAPPY HARMONY


1 Für Gemeinsam-Zeit:
Ein offener, zentraler Koch- und Essbereich ist kommunikativ und bildet daher im Familienalltag oft den Mittelpunkt des Geschehens. In diesem Landhaus in Westfalen dient ein beidseitig einsehbarer Kaminofen als Raumtrenner. Gleichzeitig schafft er im ganzen Raum ein behagliches, warmes Ambiente. www.stommel-haus.de
2 Traum-Raum:
Stilvolles Design und viel Platz prägen den Rückzugsbereich aus Schlafzimmer mit integrierter Ankleide und direkt angrenzendem Wellness-Bad. Zudem schaffen dezente Erdtöne, stimmungsvolle Beleuchtung und ein weiter Ausblick ins Grüne eine beruhigende, elegant anmutende Atmosphäre. Wer es selbst „erleben" will: In der Ausstellung Eigenheim & Garten in Bad Vilbel kann das Musterhaus Vision 207 besichtigt werden. www.danwoodvision.de
3 Kuschelzone:
In edlem Look und dabei extrem wohnlich präsentiert sich der offene Wohn-Ess-Kochraum im Musterhaus Merano. Mit großen Glasschiebetüren zur Terrasse und einem zentral angeordneten Kamin, dessen Flammenspiel man von der stylischen Sofaecke aus gut im Blick hat. Anders verhält es sich mit der Küche, die von dort aus übereck in der Nische dezent aus dem Sichtfeld verschwindet. www.rensch-haus.com
4 Familienplausch:
Ein großzügiger Essplatz hält im besten Fall ausreichend Platz für alle Familienmitglieder sowie Gäste, Freunde und Verwandtschaft bereit. Ist er noch dazu, wie im Kundenhaus Karesa dank bodentiefer, großer Verglasungen hell und luftig gestaltet, kommt die Familie außer zum gemeinsamen Essen hier auch gerne zum Erzählen, Basteln, Spielen oder für die Hausaufgaben zusammen. www.fingerhuthaus.de

5 Kinder-Paradies:
Geräumige, gut belichtete Kinderzimmer schaffen auch für die Kleinsten notwendige Rückzugsbereiche: zum Spielen oder Ausruhen. Mit mittelhohem Kniestock entsteht ein gemütlicher Bereich unter der Dachschräge, der dennoch möblier- und nutzbar bleibt –z.B. für die Platzierung des Bettes. www.fertighaus-weiss.de
Foto: Stefan SchillingFoto:



NACHHALTIG
ZUKUNFTSSICHER EFFIZIENT




Sichere Wärme
Think hybrid – bau mit Schornstein!



Hybride Heizsysteme kombinieren mindestens zwei Wärmeerzeuger miteinander. Darum, bau mit Schornstein und setze beim Neubau auf die Kombination Wärmepumpe + Kaminofen.
Schiedel Schornstein- und Ofensysteme garantieren Wärme und lösen die Abhängigkeit von nur einem Energieträger.
Schornsteine, Öfen und Lüftungslösungen entwickelt für Ihr Leben.
FAMILY PLACES


1 Lichte Naturnähe:
Ein gemütliches Sitzfenster macht in jedem Raum eine gute Figur. Es kann zum Chillen oder als gut belichtete Leseecke genutzt werden. Dabei ist man der Natur hier immer ein kleines bisschen näher als vor anderen Fenstern. Im Kundenhaus Ramtohul wurde der untere Bereich außerdem mit großen Schubfächern für zusätzlichen Stauraum ausgestattet. www.weberhaus.de
2 Nach oben offen:
Viel helles Holz, weiße Wände und eine moderne Einrichtung sind im Landhaus 138 in Erd- wie auch Obergeschoss maßgebend. Die Verbindung der beiden Ebenen ist offen und fließend gestaltet. Helligkeit und Weite schafft die luftige Galerie mit großem, raumbreitem Sitzfenster und transparentem Glasgeländer. Ein echter Hingucker ist die Wandscheibe zwischen Treppe und Galerie, die den umgekehrten Verlauf der Treppe nachbildet. www.luxhaus.de
3 Entfaltungs-Spielraum:
Kleine Kinder spielen gerne in der Nähe der Eltern. Moderne Familienhäuser, die meist über einen offenen Koch-EssWohnbereich verfügen, bieten hierfür gute Voraussetzungen – zum Beispiel mit einer extra eingerichteten Spielecke, die man immer gut im Blick hat. Bodentiefe Verglasungen bringen in Haus Baart viel Licht herein und geben auch den Kleinsten die Möglichkeit, nach draußen in den Garten schauen zu können. www.fingerhaus.de
4 Kochen mit Spaß und Aussicht:
In der modernen Landhausküche von Haus Behringer wurden auf beiden Seiten der L-förmigen Arbeitsfläche je ein großes, doppelflügeliges Fenster für beste Belichtung bei der Küchenarbeit angeordnet. Noch dazu bieten sie beim Gemüseschnippeln und Kuchenbacken schöne Ausblicke ins umliegende Grün. www.baufritz.de

5 Raumgewinn:
Im Zuge einer Sanierung ihres Mehrfamilienhauses, nutzten die Besitzer die Chance, dieses mit einem Staffelgeschoss in die Höhe zu erweitern. Heute genießen sie ihr neues lichtdurchflutetes Refugium. www.schwoererhaus.de
Foto: Weberhaus/Matthias


Innovativ Individuell Nachhaltig
Einfach, schnell und sicher
Fertighäuser werden witterungsunabhängig in Werkhallen vorgefertigt, sodass fixe Fertigstellungstermine und eine Festpreisgarantie geboten sind. Aufgrund dieser Herstellungsweise hält sich das hartnäckige Vorurteil, sie sehen alle gleich aus und würden wenig Freiraum für Individualität bieten. Dem ist allerdings seit langem nicht mehr so. Wir zeigen euch, welche Vorteile die Fertigbauweise birgt und wie individuell inzwischen geplant werden kann.
Was ihr wissen wollt:
„Wie viel kostet ein Holzfertighaus?“
Die Kosten eines Fertighauses hängen von verschiedenen Faktoren ab, darunter dem Energiestandard, der Größe und der Ausstattung. Zudem beeinflusst die Entscheidung, ob das Haus als Ausbauhaus – bei dem der Bauherr Teile des Innenausbaus selbst übernimmt – oder schlüsselfertig geliefert wird, den Preis erheblich. Die reinen Baukosten belaufen sich überschlägig auf mindestens 2000 bis 3000 Euro pro Quadratmeter Wohnfläche. Hinzu kommen Ausgaben für die Erschließung des Baugrunds, die Bodenplatte oder den Keller sowie Kauf- und Baunebenkosten.
Sparen ist das Gebot der Stunde und der moderne Holzfertigbau hat gut auf viele der aktuellen Anforderungen im Bausektor reagiert. Dies gilt auch für das aktuelle Thema der „Nachverdichtung“. Dabei handelt es sich um das Nutzen freier Flächen im Bereich bereits bestehender Bebauung. Aktuell fehlen in Deutschland rund 700000 Wohnungen. Eine Lösung für das Problem bieten die zahlreichen Vorteile der Fertigbauweise, die auch bei Umbauten, Anbauten, Sanierungen und Aufstockungen wirksam werden.
Anbau
Viele Altbauten befinden sich zwar auf großzügig bemessenen Grundstücken, bieten allerdings nicht ausreichend Wohnfläche. Hier lohnt es sich, eine Erweiterung des Gebäudes durch einen
Anbau in Erwägung zu ziehen. Auf diesem Weg lässt sich entweder der Wohnraum vergrößern oder eine zusätzliche Wohneinheit realisieren. Letztere kann beispielsweise später vermietet oder verkauft werden, um einen Teil des eigenen Bauvorhabens zu finanzieren. Ratsam ist bei einem Anbau auf die Zusammenarbeit mit einem erfahrenen Architekten zu setzen, der die Bausubstanz des Bestandsbaus genau prüft und feststellt, welche baurechtlichen Möglichkeiten auf dem Grundstück gelten.
Aufstockung
Laut einer Studie von 2019 könnten auf Deutschlands Dächern bis zu 2,7 Millionen neue Wohnungen errichtet werden. Eine weitere mögliche Lösung für die Baulandknappheit wäre somit in die Höhe statt in die Breite zu denken. Aus
1Individuell und innovativ
Entgegen hartnäckiger Vorurteile bietet der moderne Fertigbau vielfältige Gestaltungs- und Individualisie- rungsmöglichkeiten. Zwar gibt es auch sogenannte Entwurfsserien mit optimierten Basisentwürfen, bei denen du nur geringe Änderungen vornehmen kannst, doch meist werden Fertighäuser ganz individuell nach deinen Wünschen vom Architekten geplant. Es sind also, wie bei jeder anderen Bauweise, sämtliche Ge- staltungen – vom Bungalow bis zum mehrgeschossi- gen Stadthaus – in allen Formen und Abmessungen möglich. Dabei ist es der Branche gelungen, durch bauliche wie technische Anpassungen, Optimierun- gen und vielfältige eigene Entwicklungen sehr hohe Standards zum Beispiel im energetischen Bereich zu etablieren. So ist der Holzfertigbau heute nicht nur auf der Höhe der Zeit, sondern dieser oft sogar einen Schritt voraus.
der Möglichkeit, auf bereits bestehende Gebäude aufzustocken, ergibt sich dementsprechend ein enormes Potenzial. An dieser Stelle hat die Holzfertigbauweise den Vorteil, dass sie relativ leicht ist und auch die Beeinträchtigung der Nachbarn durch die kurzen Bauzeiten reduziert wird.
Serielle Sanierung
Bei dem Vorgang des seriellen Sanierens werden spezielle hochgedämmte Wand- und Dachelemente passgenau für einen zuvor digital ausgemessenen Altbau angefertigt und als zusätzliche neue Außenhülle montiert.
Auch hier verringern kurze Bauzeit die Lärmbelästigung der Bewohner und Nachbarn. Hinzu kommt, dass diese während des Sanierungsvorgangs meist in ihren Wohnungen bleiben können. • red

Dieses Generationenhaus in Holzfertigbauweise bietet individuell geplanten Wohnraum für drei Generationen einer Familie. Insgesamt befinden sich drei separate Wohneinheiten unter dem Pultdach. www.fertighaus-weiss.de
2Ökologisch & wohngesund
Holz hat viele gute Eigenschaften: Der natürliche Baustoff hat eine hohe Tragfähigkeit, er kann die Raumluftfeuchte regulieren und verfügt über gute Wärmedämmeigenschaften. Außerdem ist er ein nachwachsender, heimischer Rohstoff und CO2-Speicher. Viele Hersteller setzen zudem beim gesamten Wandaufbau auf ökologische Baustoffe und wählen Holz aus heimischer, zertifizierter Forstwirtschaft sowie Dämmung aus Holzfaser und Zellulose. Diese umweltfreundlich hergestellten Baustoffe schonen in der Regel Umwelt und Mensch und sind oft auch baubiologisch sehr positiv. Doch auch künstliche, aber schadstoffgeprüfte Baumaterialien können deine Anforderungen an ein wohngesundes Heim erfüllen. So verpflichtet die Satzung der Qualitätsgemeinschaft Deutscher Fertigbau (QDF) grundsätzlich zu umwelt- und gesundheitsverträglichen Baulösungen. Einige Hersteller gehen sogar noch weiter und bieten dir die Möglichkeit einer Raumluftmessung für das fertiggebaute Haus.

Dank der guten Dämmung und einer kontrollierten Wohnraumlüftung, erzielte diese Baufamilie ihr erwünschtes gesundes Raumklima. Schadstoffe werden dabei nach draußen geleitet und frische Luft ins Innere geführt. www.schwoererhaus.de
Foto: Fertighaus Weiss/Juergen Pollak Photographie&Film

Die Elemente für Fertighäuser werden witterungsunabhängig in großen Werkshallen hergestellt. Eine der modernsten ist diese von www.fingerhaus.de
4Alles aus einer Hand
Beim schlüsselfertigen Fertighausbau hast du nur einen Ansprechpartner für alle Gewerke. Dies gewährleistet einen reibungslosen Ablauf: Der sonst herrschende Stress und die Zeitverzögerungen durch Abstimmungen zwischen verschiedenen Dienstleistern entfallen. Zudem bieten viele Fertighausfirmen auch den Kellerbau an oder haben feste Partnerunternehmen. Der Innenausbau ist je nach Ausbaustufe ebenfalls Teil des Leistungsumfangs. Ausstattungsobjekte, Materialien und Bauteile – vom Dachziegel über Innentüren bis hin zur Duscharmatur – suchst du mithilfe kompetenter Fachberater bei der sogenannten Bemusterung aus. Einige Hersteller stellen darüber hinaus auch passgenaues (Einbau-)Mobiliar her und/oder übernehmen die Licht-, Garten- und Küchenplanung, sodass du ein maßgefertigtes Zuhause aus einem Guss bekommst.
3Vorfertigung im Werk
Oft aus einstigen Familienunternehmen wie Schreinereien oder Sägewerken entstanden, beschäftigen heutige Holzfertighaushersteller Hunderte spezialisierte Mitarbeiter und verfügen über riesige Werkshallen. Hier werden die Fertighäuser trocken, witterungsunabhängig und dank modernster Technik millimetergenau vorgefertigt. Die komplett vorbereiteten Wände und Dachteile werden später per LKW auf deine Baustelle geliefert und innerhalb kurzer Zeit, meist in ein bis zwei Tagen, wetterfest montiert. Bei der Vorfertigung im Werk kann die Qualität sehr gut überwacht und gewährleistet werden. Außerdem ist der Hausbau auf diese Weise genau planbar. Daher ergeben sich auch sehr kurze Bauzeiten: Nach ein bis zwei Tagen Aufbau wird der schlüsselfertige Innenausbau in der Regel in rund zwölf Wochen fertiggestellt.
5Musterhäuser
In zahlreichen Musterhaus-Ausstellungen kannst du dich deutschlandweit von fertigen, voll ausgestatte- ten Einfamilienhäusern inspirieren lassen und einen realen Wohneindruck bekommen. Größe, Raumauf- teilung, Möblierungsmöglichkeiten und die Wirkung von Erkern, Galerien oder Dachflächenfenstern lassen sich hier viel besser beurteilen als am Computer oder inGrundrisszeichnungen.Über1000 Musterhäuser findest du im Bundesgebiet. Sie stehen zumeist an den Firmenstandorten der Fertighaushersteller oder sind in größeren Ausstellungsparks zusammengefasst. In Letzteren lassen sich die Angebote von verschie- denen Hausfirmen gut vergleichen: neben Größe, Energieeffizienz und Wohngesundheit geht es auch umBauqualitätundService.Überdennebenstehen- den QR-Code kommst du direkt zu unserem Online- Musterhausfinder auf www.HausbauHelden.de
Die größte Musterhaus-Ausstellung Deutschlands findest du in Bad Vilbel bei Frankfurt. Sie ist mittwochs bis sonntags von 11 bis 18 Uhr geöffnet. www.musterhaus-online.de

Foto: Fingerhaus GmbH
Energieeffizienz
Durch den schichtweisen Aufbau ihrer Außenwände gelingt es Holzfertighäusern, beste Energiestandards zu erreichen. Im Extrem, als Null-Energie-Haus, benötigt dein Eigenheim rechnerisch keine Heizenergie mehr und erzeugt zusammen mit einer PhotovoltaikAnlage sogar mehr Energie als es verbraucht. Außerdem sind die Haushülle und die Technikausstattung optimal aufeinander abgestimmt. Auch das minimiert den Energiebedarf und trägt zur Kosteneffizienz bei. Für ein ökologisch vorbildliches Haus bekommst du zudem staatliche Unterstützung. Da die meisten Fertighausanbieter immer auf dem neuesten Stand sind, was die gerade verfügbaren bundesweiten und regionalen Förderprogramme angeht, helfen sie dir bei der Suche sowie bei der Beantragung von Förderungen.

Individuell geplante, anspruchsvolle Architektur fürs urbane Wohnumfeld lässt sich auch in Holzfertigbauweise realisieren, wie dieses außergewöhnliche Stadthaus zeigt. www.huf-haus.com

7Sparen durch Eigenleistung
Übernimmt die Hausfirma den kompletten Innenausbau, spricht man vom schlüsselfertigen Bauen, im Ausbauhaus dagegen bringst du eigene Arbeitsleistungen ein. Viele Hersteller haben verschiedene Ausbaustufen im Programm. Handwerklich versierte Bauherren können so zehn bis zwanzig Prozent der Baukosten sparen. Der Wert der Eigenleistung wird von vielen Banken zum Eigenkapitalanteil hinzugerechnet. Am meisten lohnt sich deine „Muskelhypothek“ bei Belagsarbeiten an Wänden und Böden. Denn hier ist das Material relativ günstig und die Lohnkosten sind hoch. Andere Posten können die Haushersteller durch große Pakete so günstig anbieten, dass du mit Eigenleistung kaum sparst. Wichtig ist, dass Arbeitsaufwand und Kostenersparnis zusammenpassen und du dein Zeitbudget nicht überschätzt. Wenn du viel selbst machen möchtest, aber wenig Erfahrung hast, solltest du vorab klären, ob dich der Hersteller zum Beispiel durch Workshops, Online-Tutorials oder eine entsprechende Bauleitung unterstützen kann.
Foto:
Huf
Haus
8Service & Zusatzleistungen
Rund um den eigentlichen Hausbau musst du auch jede Menge andere Dinge organisieren und regeln. Viele Fertighausfirmen unterstützen dich von Anfang an mit Rat und Tat, indem sie dich etwa darauf hinweisen, um welche notwendigen Leistungen du dich selbst kümmern musst und was mit zusätzlichen Kosten verbunden ist. Einige Haushersteller bieten daneben auch eine Finanzierungsberatung sowie Hilfe bei der Bauplatzsuche und beim Planungs- und Genehmigungsablauf. Alle im Umfang enthaltenen Leistungen stehen in der Bau- und Leistungsbeschreibung. Nur was hier schriftlich festgehalten ist, kann im Streitfall verlangt werden. Je detaillierter sie ist, desto besser. Wenn du dir bei der Beurteilung unsicher bist, findest du Rat bei unabhängigen Bauberatern, z.B. beim Verband Privater Bauherren, www.vpb.de und beim BauherrenSchutzbund, www.bsb-ev.de

Sandra Schneider-Frey und ihr Ehemann Frank erfüllten sich ihren Traum vom Eigenheim mit einem Anbau in Holzfertigbauweise an Sandras Elternhaus. Die knifflige Planungsaufgabe bewältigte das Paar zusammen mit den Experten von www.weberhaus.de

Garantierte Qualität
Feste Preise & Termine
Schon lange bevor dies mit der Einführung des neu- en Bauvertragsrechts 2018 zur Pflicht wurde, haben Fertighaushersteller ihren Bauherren fixe Fertigstel- lungstermine und Festpreisgarantien geboten. Letztere gilt meist für einen Zeitraum von 12 Monaten, manche Hersteller gewähren sie auch für 18 Monate. Das gibt Bauherren maximale Sicherheit. Unvorhergesehene Preisaufschläge und Mehrkosten müssen so nicht be- fürchtet werden. Auch der Termin zur Hausübergabe steht genau fest – sodass der Umzugstermin gut planbar ist. Doch Achtung: Beide Punkte – Fertigstellungstermin und Festpreis – müssen schwarz auf weiß im Bauvertrag bzw. der Bau- und Leistungsbeschreibung festgehalten sein, damit du dich darauf berufen kannst.


Label belegen den einwandfreien Fertigungsprozess und eine geprüfte Bauqualität beim Fertighausbau. So gibt beispielsweise das „RAL Gütezeichen Holzhausbau“ Sicherheit darüber, dass sowohl die Fertigung im Werk als auch die Montage auf der Baustelle regelmäßig durch unabhängige Sachverständige überwacht wird. Außerdem verpflichten sich viele renommierte Hausfirmen durch ihre Mitgliedschaft im Bundesverband Deutscher Fertigbau (BDF) zur Einhaltung der Satzungsvorschriften der Qualitätsgemeinschaft Deutscher Fertigbau (QDF). Diese besteht seit 1989 und wird regelmäßig an die rechtlichen und bautechnischen Entwicklungen angepasst: Zu den Prüfkriterien des QDF zählen Ansprüche an Energieeffizienz, Umweltschutz und Vertragsgrundlagen – weit über die gesetzlichen Anforderungen hinaus. Mehr Infos zu den Gütesiegeln findest du unter www.ral-holzhaus.de und www.fertigbau.de





















Immer am Puls der Zeit


”Designtrends und Lebensstile unterliegen heutzutage in gefühlt immer kürzeren Abständen kontinuierlichen Veränderungen. Dies spiegelt sich auch im Hausbau in Form moderner Wohnkonzepte wider. Eine bewährte Konstante: die Bereiche Wohnen, Kochen und Essen in einem großen, offenen Raum unterzubringen. Das übergeordnete
Ziel von Trendhäusern liegt in der Umsetzung interessanter Einrichtungskonzepte, die sowohl den Anspruch an Funktionalität als auch Ästhetik erfüllen.
”
Haus
Susan Carlizzino-Hoog, Redakteurin:
Perfekt zugeschnitten

Ein frei stehendes Einfamilienhaus im langjährigen Wohnort, das alle Wünsche vereint – diesen Traum erfüllte sich Familie Bingel mit ihrem schlüsselfertigen Zuhause. Modernste Technik, geschützte Aufenthaltsräume im Außenbereich und getrennte Rückzugsmöglichkeiten für Töchter und Eltern sind das Ergebnis. Zudem wurden ein offenes Erdgeschoss, viel Stauraum und eine Garage realisiert. Die von dem Bauherren gewünschte Büroeinheit konnte im Grundriss etwas nach vorne gezogen werden, sodass eine raffinierte Eingangssituation mit Haustür und eigenem Bürozugang entstand. Da die Einheit mit Küchenzeile und Duschbad ausgestattet ist, erfüllt sie alle Voraussetzungen für Kundenbesuche und könnte später auch als Einliegerwohnung vermietet werden.



1 – Indem das Gebäude als Riegel zur Straße geplant wurde, verwandelte sich der Garten zu einer privaten Ruhe-Oase. 2 – Anstelle eines alten Siedlungshäuschen, dessen Sanierung das Budget der Baufamilie gesprengt hätte, entstand auf dem eingewachsenen Grundstück ein Haus mit moderner Anmutung und in die flachen Dachziegel integrierten Photovoltaik-Elementen. 3 – Die Speisekammer ist gut versteckt über einen weißen Schrank der offenen Küche erreichbar. 4 – Der einladende Essplatz schiebt sich dank eines lichtdurchfluteten Erkers in den Terrassenbereich.
DATEN & FAKTEN KUNDENHAUS BINGEL
Schwörer Haus GmbH & Co. KG Hans-Schwörer-Straße 8 72531 Hohenstein/Oberstetten Tel. 07387/16-111 www.schwoererhaus.de
Konstruktion + Technik: Holztafelbauweise, mineralische Dämmung, Putzfassade, U-Wert Außenwand 0,149 W/m²K, Fenster Dreifachverglasung, Ug-Wert 0,6 W/m²K, Satteldach, U-Wert 0,146 W/m²K, Kniestock 105 cm, Luft-Wärmepumpe, Fußbodenheizung, kontrollierte Lüftung mit Wärmerückgewinnung, PV-Indachanlage 2 x 8 Module – 3279 kWh/a, WallBox
Wohnfläche:
EG 107 m², OG 85 m²

Weitere Entwürfe von und Informationen über Schwörer Haus findest du auf www.HausbauHelden.de oder über diesen QR-Code.
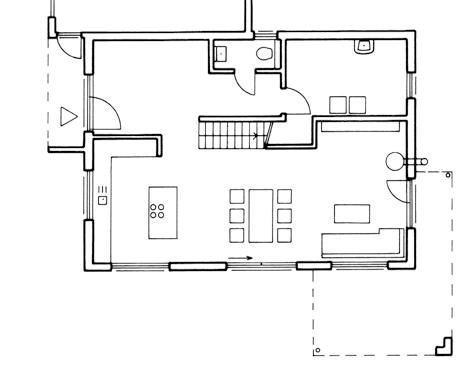
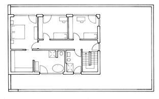
OBERGESCHOSS
ERDGESCHOSS
Licht, Luft, wohlfühlen

Viel Wohnkomfort auf relativ kompakter Fläche bietet dieses individuell geplante Familienhaus. Mit klar strukturiertem Grundriss und großen Fensterflächen schafft es ein großzügiges, luftiges Wohngefühl auf zwei Ebenen. Unter dem flach geneigten Satteldach und über zwei Metern Kniestockhöhe gibt es überall viel Platz und gute Möblierungsoptionen. Im Erdgeschoss besticht neben der geräumigen Diele und dem Technikraum der offene Familienbereich: Hier kochen und essen alle zusammen und wenn man es sich abends gemütlich machen will, wartet daneben die Sofazone mit Kaminofen. Eine moderne Faltwerktreppe führt hoch auf die Galerie und zu den Rückzugsräumen: Schlaf- und Kinderzimmer, Ankleide und ein großes Wellness-Bad.



1 – Das Äußere besticht durch klare Linienführung. Die überdachte Terrasse ergänzt den Wohnbereich als geschütztes Freiluft-Zimmer. 2 – Im gemütlichen Sofabereich sorgt ein Kaminofen im Winter für angenehme Wärme. 3 – Der Rückzugsraum der Eltern besteht aus Schlafzimmer, Ankleide und angrenzendem Wellnessbad. 4 – Lichtdurchflutet liegt der Essplatz mit Zugang zur Terrasse zwischen Wohn- und Kochbereich, wo sich auch der Luftraum darüber bis zur Galerie weit öffnet.
DATEN & FAKTEN INDIVIDUELLE PLANUNG
Bittermann & Weiss Holzhaus Am Geißgraben 6 97950 Gerchsheim Tel. 09344/92090
www.bw-holzhaus.de
Konstruktion + Technik: Holztafelbauweise, Holzweichfaserplatte, Mineralwolle-Dämmung, Putzfassade, Kunststoff-Alu-Fenster, 22 Grad geneigtes Satteldach, Luft-Wasser-Wärmepumpe, Fußbodenheizung
Wohnfläche: EG 82 m2 , OG 69 m2

Weitere Entwürfe von und Informationen über Bittermann & Weiss findest du auf www.HausbauHelden.de oder über diesen QR-Code.


Eigen gemacht

Dieses Haus wurde von den Bauherren nicht nur selbst entworfen – sie erbrachten auch jede Menge Eigenleistung. Die Planung der Eheleute erfolgte virtuell und konnte fast eins-zu-eins von dem Haushersteller übernommen werden. Die Fachleute von Lehner nahmen lediglich kleinere Ergänzungen vor, sodass die Individualität des modernen Traumhauses gewahrt werden konnte. In Absprache mit dem Haushersteller übernahmen die Bauherren unter anderem die Malerarbeiten sowie das Verlegen der Fliesen. Ein großzügiger Luftraum, ausgefallene Glasgeländer und reichlich Tageslichteinfall kennzeichnen das luftige Innere des Hauses. Das Fabkonzept wird durch den Kontrast weißer Wandflächen mit schwarzen Akzenten geprägt.

DATEN & FAKTEN HOMESTORY 123
Lehner-Haus GmbH
Aufhausener Straße 29-33 89520 Heidenheim Tel. 07321/9670-0 www.lehner-haus.de
Konstruktion + Technik: Holzständerbauweise, ökologisch, Holzfaserdämmplatten, Holzwerkstoffplatte und Gipsbauplatten, diffusionsoffen, Brandschutz F90, U-Wert Außenwand 0,13 W/m²K, Holz-Alu Fenster Dreifachverglasung, UgWert 0,6, W/m²K, Flachdach, Wärmepumpe, Fußbodenheizung
Wohnfläche:
EG 113 m2 , OG 91 m2

Weitere Entwürfe von und Informationen über LehnerHaus findest du auf www.HausbauHelden.de oder über diesen QR-Code.

1 – Das architektonische Unikat besticht durch seine kubischen Formen und eine großflächige Verglasung. 2 – Großformatige helle Fliesen verleihen dem lichtdurchfluteten Badezimmer Eleganz. 3 – Bodentiefe Fenster bieten herrliche Ausblicke in den Garten und rücken das Alltagsgeschehen näher an die Natur heran.
Fotos:
Lehner-Haus GmbH
Stylish selbst gebaut

Katrin und Timo Hilzendegen war schon immer klar, dass sie irgendwann ein Einfamilienhaus bauen würden. Das Grundstück dafür befand sich schon längere Zeit im Familienbesitz und als es dann zum Baugebiet deklariert wurde, stand der Erfüllung des Traums nichts mehr im Weg. Fast nichts, denn „als wir in die Planungen einstiegen, lebte ich in China. Katrin war zwar vor Ort, aufgrund ihrer Schwangerschaft hatte sie aber neben dem Hausbau natürlich noch viele andere Dinge im Kopf“, erinnert sich Timo Hilzendegen. Zum Glück fanden die beiden mit dem Fertighaus-Anbieter Living Haus einen Hersteller, der ihnen die Sicherheit gab, dass Planung und Realisation des eigenen Zuhauses auch in dieser Phase ihres Lebens problemlos über die Bühne gehen würde.
Beim Bau des modernen Satteldachhauses mit weißer Putzfassade und dunkel eingedecktem Dach konnte sich die Baufamilie selbst verwirklichen und einige Arbeiten in Eigenregie erledigen. Dazu gehörten unter anderem die Wand- und Bodenbeläge sowie die Innentüren. Das Know-how und den notwendigen Support bekamen sie durch das DIY-AusbauCoaching von Living Haus. So verliehen sie dem neuen Zuhause eine persönliche Note und sparten Geld. Darüber hinaus spielte die umweltfreundliche Energieversorgung mit leistungsstarker Photovoltaikanlage samt Batteriespeicher eine wichtige Rolle. Der selbst erzeugte Sonnenstrom deckt im Jahresverlauf rund 70 Prozent des Bedarfs und die Stromtankstelle für das Elektroauto ist auch schon vorbereitet.


1 – Das neue Zuhause von Katrin und Timo beruht auf einem multifunktionalen Grundrisskonzept. Die Anordung der Fenster, der Wohnzimmererker sowie die Eingangsüberdachung mit darüberliegendem Balkon stammen aus der Feder der Bauherren. 2 – Mit 16 Quadratmetern ist das Familienbad im Obergeschoss großzügig bemessen. Die Fliesen haben die Bauherren selbst verlegt und auch Badewanne, WC, Dusche und Waschtisch selbst eingebaut. 3 – Die offene Küche direkt neben dem Essplatz wird durch den Wohnbereich ergänzt und bildet das sonnenlichtdurchflutete Zentrum des Familienlebens.
DATEN & FAKTEN
INDIVIDUELLE PLANUNG
Living Fertighaus GmbH
Am Distelrasen 2
36381 Schlüchtern
Tel. 0800/3040503
www.livinghaus.de
Konstruktion + Technik: Holzverbundbauweise, Wärmedämmung Holzfaser und Mineralwolle, Putzfassade, 25 Grad geneigtes Satteldach, 1,60 m Kniestock, dreifachverglaste Fenster, Luft-LuftWärmepumpe mit kontrollierter Wohnraumbe- und entlüftung, Wärmerückgewinnung mit Kühlfunktion, Photovoltaikanlage
Wohnfläche:
EG 98,5 m2, OG 82,5 m2

Weitere Entwürfe von und Informationen über Living Haus findest du auf www.HausbauHelden.de oder über diesen QR-Code.
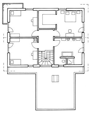
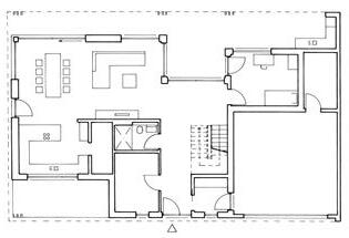
ERDGESCHOSS

OBERGESCHOSS

Modern und hölzern

Geradlinige Architektur wird bei diesem modernen Musterhaus mit dem Naturmaterial Holz vereint. Der Kubus mit Flachdach erhält durch einen eingeschossigen Holzriegel an der Eingangsfassade Charakter. Das Gestaltungselement lässt einen torartigen Einschnitt frei, in dem sich der witterungsgeschützte Hauseingang befindet. Die L-förmige Grundfläche
des Hauses bietet auf 55 Quadratmetern viel großzügige Wohnfläche. Das im Loft-Look gestaltete Interieur ist durch die Materialien Stahl und Holz geprägt. Eichendielen schaffen in den Wohn- und Schlafbereichen Behaglichkeit. Zudem beleben Details in verschiedenen Grautönen – wie Bodenbeläge in Betonoptik und glänzende Wandfliesen – die Räumlichkeiten.

MUSTERHAUS
Dieses Musterhaus kann von Montag bis Freitag von 8 bis 17 Uhr und sonntags von 14 bis 17 Uhr am Firmenstandort von Fingerhut Haus, Hauptstraße 46, 57520 Neunkhausen besichtigt werden.
DATEN & FAKTEN VILAGO NEUNKHAUSEN
Fingerhut Haus GmbH & Co. KG Hauptstraße 46, 57520 Neunkhausen Tel. 02661/956420 www.fingerhuthaus.de
Konstruktion + Technik:
Holzverbundkonstruktion mit Großelementen, Luft-Wasser-Wärmepumpe mit integrierter Lüftungsanlage und Kühlfunktion, Fußbodenheizung, Photovoltaikanlage
Wohnfläche: EG 115,5 m², OG 80 m²

Weitere Entwürfe von und Informationen über Fingerhut Haus findest du auf www.HausbauHelden.de oder über diesen QR-Code.
OBERGESCHOSS
Die offene, in Grau gehaltene Küche ist mit einer frei stehenden Kochinsel ausgestattet.
ERDGESCHOSS
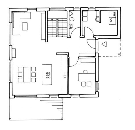
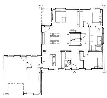
WOHNEN
ERDGESCHOSS
DATEN & FAKTEN MUSTERHAUS NEXT EASY 49 L-2
Danwood S.A.
Justus-von-Liebig-Str. 7 12489 Berlin
Tel. 030/67 82 39 80 www.danwood.de
Konstruktion + Technik:
Holztafelbau in Modulbauweise, Holzfassade, U-Wert-Außenwand: 0,25 W/m2K, Flachdach, Infrarotheizung, Wärmepumpe zur Warmwasserbereitung, dezentrale Lüftungsanlage mit Wärmerückgewinnung
Wohnfläche:
EG 49,5 m2


MWeitere Entwürfe von und Informationen über Next by Danwood findest du auf www.HausbauHelden.de oder über diesen QR-Code.

Klein, aber oho!
it einem Hauch von Urlaubsfeeling kann dieses Mini-Haus sowohl als Ferienhaus in schöner Landschaft als auch als dauerhaftes Zuhause dienen –beispielsweise für Menschen, die sich beim Wohnen aufs Wesentliche konzentrieren möchten. Der Entwurf besteht aus Modulen der Göße L und hält einen geräumigen Wohn-Essbe-

Raumhohe, große Fenster fluten die Räume mit Tageslicht und schaffen eine schöne Verbindung zur umliegenden Natur.
reich bereit, großartige Panoramablicke aus Wohn- und Schlafräumen sowie ein komfortables Duschbad mit großer Dusche und Waschtisch. Zudem besticht das Modulhaus „Next Easy“ mit modernem Design und viel Naturnähe. Ob am See, auf dem flachen Land oder in den Bergen: Die Sonnenterrasse möchte sicher niemand missen.
Zwei kleine Schlafzimmer bieten gemütliche Rückzugsorte und noch dazu gut organisierten Stauraum.
MUSTERHAUS
Dieses Musterhaus kann mittwochs bis sonntags von 11 bis 18 Uhr im Bauzentrum Poing bei München, Senator-GerauerStraße 25, besichtigt werden.
Fotos: Danwood S.A.
Familien-Domizil

Den Grundriss des Hauses hat die Baufamilie hier weitgehend selbst entwickelt. Im Erdgeschoss finden sich die offen angelegten Gemeinschaftsräume, die den Mittelpunkt des Familienalltags bilden. Hier ist man zwar beieinander, tritt sich aber nicht gegenseitig auf die Füße. Kombiniert werden die Gemeinschaftsflächen mit gemütlichen Rückzugsbereichen im Obergeschoss. Praktisch ist das Zweitbad mit Dusche, das die morgendliche Rushhour entzerrt und so einen entspannten Start in den Tag ermöglicht. Im Untergeschoss, das sich dank der Hanglage und der großen Fenster ebenso hell und freundlich präsentiert, befinden sich neben den Technik- und Lagerräumen auch das Büro des Hausherrn sowie ein Gästezimmer.

DATEN & FAKTEN
HAUS EVERS
Bien-Zenker GmbH
Am Distelrasen 2 36381 Schlüchtern Tel. 06661/98236 www.bien-zenker.de
Konstruktion + Technik:
Holzverbundkonstruktion mit Putzfassade, Satteldach 25 Grad, Kniestock 160 cm, Luft-Luft-Wärmepumpe mit kontrollierter Lüftung und Wärmerückgewinnung
Wohnfläche:
EG 86 m2, OG 83 m2

Weitere Entwürfe von und Informationen über Bien-Zenker findest du auf www.HausbauHelden.de oder über diesen QR-Code.

1 – Die Hanglage des Grundstücks war eine Herausforderung, wurde aber erfolgreich gemeistert. 2 – Im Obergeschoss ist Platz für zwei große Kinderzimmer. 3 – Die Bewohner lieben die Weitläufigkeit des Wohn-Ess- und Kochbereichs.
ERDGESCHOSS


OBERGESCHOSS
Fotos: Bien-Zenker
Family base

Die Raumaufteilung des Musterhauses „Palermo“ ist mit 170 Quadratmetern auf eine vier- bis fünfköpfige Familie ausgerichtet. Im Dachgeschoss ist Raum für zwei große Kinderzimmer, das Elternschlafzimmer mit Ankleide und ein geräumiges Familienbad. Auf der unteren Ebene, im Erdgeschoss, lädt ein weitläufiger Wohn-Koch-Essbereich zum geselligen Familienmiteinander ein. Ein sogenannter „Relaxerker“ ist von innen und außen betrachtet ein Eyecatcher. Er wurde mit einer übereck gebauten Fenstersitzbank bestückt und so eine Ruhezone mit schönem Ausblick geschaffen. Die Haustechnik des Plus-Energie-Hauses ist hoch effizient. Auf der Basis einer guten Wärmedämmung besteht sie aus einer Luft-Luft-Wärmepumpe mit automatischer Lüftungsanlage mit Wärmerückgewinnung und einer Photovoltaik-Anlage mit Batteriespeicher.



DATEN & FAKTEN
MUSTERHAUS PALERMO
Rensch-Haus GmbH
Mottener Straße 13 36148 Kalbach-Uttrichshausen Tel. 09742/91-0 www.rensch-haus.com
Konstruktion + Technik: Holztafelbau, „thermo-aroundnatur“-Dämmung Holzfaser/Zellulose und Putzfassade insgesamt 330 mm, KunststoffFenster mit Dreifachverglasung Ug-Wert 0,5 W/m2K, Photovoltaik mit Batteriespeicher, Frischluft-Wärmetechnik mit Wärmerückgewinnung und Kühlfunktion, SmarthomeTechnologie „Rensch-Haus i-tec“, PlusEnergie-Haus
Wohnfläche:
EG 91 m2, OG 81 m2

Weitere Entwürfe von und Informationen über Rensch-Haus findest du auf www.HausbauHelden.de oder über diesen QR-Code.

1 – Die Außenansicht des Musterhauses präsentiert sich in moderner Optik und zurückhaltenden Farbelementen. 2 – Ein offener, großzügiger Ankleideraum schließt sich direkt ans Schlafzimmer an, von dem aus man über den Flur ins benachbarte Badezimmer gelangt. 3 – Die Sitzbank ist ein verlockender Platz, um sich eine gemütliche Auszeit zu gönnen. 4 – Im weitläufigen Wohnbereich mit einem attraktiven Kaminofen als zentralem Bestandteil ist reichlich Bewegungsspielraum.
ERDGESCHOSSOBERGESCHOSS

MUSTERHAUS
Dieses Haus kann von Mittwoch bis Sonntag von 11 bis 18 Uhr in der Fertighauswelt Nürnberg, Im Gewerbepark 30, 91093 Heßdorf besichtigt werden.
Fotos: Rensch-Haus

Licht ist Trumpf
Modulare Eleganz
Die Wände des Musterhauses „Next 125“ bestehen aus einer Kombination von Holztafelbauweise und Stahlkonstruktion. Alle Module sind vorgefertigt und lassen sich zu einem individuellen Eigenheim kombinieren. In dessen Fokus steht hoher Wohnkomfort, wie zum Beispiel ein En-suite-Bad. Raumhohe Fenster sorgen für eine lichtdurchflutete Wohnatmosphäre, ein echter Eyecatcher ist das frei schwebende Balkondach.
Dan-Wood House, 12489 Berlin, Tel. 030/678239-80 www.HausbauHelden.de/hersteller/danwood-house
Beim Musterhaus „Freiburg“ fallen auf den ersten Blick die weiten Dachüberstände, unter denen sich der umlaufende Balkon befindet, ins Auge. Beim Betreten des Hauses gelangt man in eine geräumige Diele mit Atrium. Im Obergeschoss profitieren die Privaträume der Eltern und Kinder aufgrund der großen Fensterflächen von Licht in Hülle und Fülle.
Bien-Zenker, 36381 Schlüchtern, Tel. 06661/98-0 www.HausbauHelden.de/hersteller/bienzenker

Grün gedeckt
Klare Linien und ein begrüntes Satteldach prägen das Musterhaus „Juno 300“. Es bietet Wohnkomfort auf rund 168 Quadratmetern, variable Anbauteile ermöglichen eine hohe Flexibilität für die variable Grundrissgestaltung. Seine energiesparende Bauweise sowie die regenerative Heiztechnik verleihen dem Haus den Status förderfähiges Effizienzhaus. Fingerhaus GmbH, 35066 Frankenberg/Eder, Tel. 06451/504-209 www.HausbauHelden.de/hersteller/finger-haus

Stilvoll verschalt
Mit seiner weißen Holzverschalung erinnert dieses Reihenendhaus, erbaut in ökologischer Holzbauweise und mit wohngesunden Baumaterialien, an den Stil der Häuser an der amerikanischen Ostküste. Innen herrscht eine helle, offene Atmosphäre, basierend auf einem großen, in den Garten führenden Faltfenster und einem weiten Luftraum über dem Wohnbereich.
Bau-Fritz GmbH, 87746 Erkheim, Tel. 08336/9000 www.HausbauHelden.de/hersteller/baufritz-oekohaus

Foto: Baufritz/Tom Jasny
Foto: Katharina Jaeger, fotografische Werkstatt

Schmal und lang
Auf kleiner Fläche zu bauen, ist vor allem im urbanen Raum sehr gefragt. Dieses schmale Haus mit einem Baufenster von 4,2 x 16 Metern ist mit seinen etwa 90 Quadratmetern Wohnfläche vergleichbar mit einer Drei-Zimmer-Wohnung. Also auch ausreichend für eine Familie. Dank cleverer Planung bietet es viel Stauraum, obwohl es ohne Keller auskommt.
Schwörer Haus, 72531 Hohenstein/Oberstetten, Tel. 07387/16-111 www.HausbauHelden.de/hersteller/schwoererhaus
Kompakter Komfort
Die potenziellen Bewohner des Musterhauses „Merano“ können sich an der weitgehenden Unabhängigkeit von externen Energieversorgern und fossilen Brennstoffen erfreuen. Mit der effizienten Dämmung erreicht es den Standard A+. Auf 172 Quadratmetern ist viel Platz für eine Familie. Sitzfenster, Kaminofen und eine weit überdachte Terrasse bieten einen hohen Zusatzkomfort. Rensch-Haus, 36148 Kalbach-Uttrichshausen, Tel. 09742/91-0 www.HausbauHelden.de/hersteller/rensch-haus


Hoch flexibel
Aus den einzelnen Modulen des Musterhauses „Dahoam to go“ lassen sich, sowohl ein- als auch mehrstöckig, unterschiedlich große und unterschiedlich kombinierte Häuser zusammenstellen. Des Weiteren eignen sich die Module auch als Anbau und für ein Haus in Tiny-Größe. So kann das Haus auf die jeweilige individuelle Lebenssituation ausgerichtet werden.
Sonnleitner Holzbauwerke, 94496 Ortenburg, Tel. 08542/9611-0 www.HausbauHelden.de/hersteller/sonnleitner
Freie Wahl
Haus „Arco“ präsentiert sich in interessanter Lattenoptik, einer sogenannten Holzspalierfassade. Das in zeitsparender Modulbauweise errichtete Musterhaus steht für maximale Flexibilität. Es ist umsetzbar in zwei oder gar drei einzelnen Einheiten. Diese lassen sich sowohl als großzügiges Einfamilienhaus, Doppelhaus oder – bei horizontaler Aufteilung – auch als Haus mit drei Wohneinheiten nutzen. Wolf System GmbH, 94486 Osterhofen, Tel. 08563/976010 www.HausbauHelden.de/hersteller/wolf-system-haus

Foto: Wolf System GmbH/Sabine Gudath
Foto: Rensch-Haus
Hausideen, die trenden
Der Hausbau befindet sich im Wandel. Er ist nachhaltiger und individueller als früher. Der Fokus der Bauenden liegt nicht nur auf der optischen Umsetzung, also der Architektur, sie machen sich unter anderem ebenso Gedanken um Energieeffizienz, flexible Wohnkonzepte und die innovativen Technologien. Wer heute baut, hat die Zukunft mit im Blick. Die wichtigsten „Trendsetter“ haben wir hier für dich zusammengefasst.
Nachhaltigkeit
Ein anhaltender Schwerpunkt liegt bei den Trends auf dem Thema Nachhaltigkeit. An erster Stelle steht die Nutzung des Baumaterials Holz, aber auch der Einsatz von Recylingbeton und Baumate-
Energieeffizienz & Autarkie
Die Kraft der Sonne zu nutzen und das Eigenheim so energieeffizient wie möglich oder gar autark betreiben zu können, ist ein weiterer wichtiger Punkt. Hier kommen Photovoltaik und Wärmepumpe ins Spiel.

Schau doch mal bei uns auf YouTube vorbei! Dort findest du Hausvorstellungen in unterschiedlichsten Formaten wie zum Beispiel Haus-Touren, Room-Touren, Home-Touren und vieles mehr, die Bauprojekte unter diversen Aspekten beleuchten. Natürlich spiegeln sich dort auch die aktuellen Trends in bewegten Bildern wider. Klick dich rein, es lohnt sich!

Modulares und kompaktes Bauen Immer stärker im Kommen sind im Werk vorgefertigte modulare Bauelemente, die vor Ort zusammengefügt werden. Diese Bauweise reduziert sowohl die Bauzeit als auch die Kosten. Wer Geld und Fläche sparen möchte, setzt auf Bauen im Tiny-Format. Ein Trend, der bei Jung und Alt angesagt ist.
Gesundes Wohnen
Schadstoffgeprüfte und zertifizierte Naturmaterialien stehen für Wohngesundheit und steigen in der Priorität bei den Bauenden.
Architektonische Offenheit
Ein weiterer Trend sind offene Raumkonzepte, große Fensterfronten und eine möglichst enge Verbindung zur Natur.
Individueller Konzeptionsmix
Im skandinavisch-bayerischen Look, mit einem Mix aus Putz- und Holzfassade, besticht dieses kostenoptimierte Aktionshaus optisch. Mit einem Baukörper von 9,48 x 7,85 Metern hat es eine eher kleine Grundfläche. Die Wohnfläche – jedes Geschoss verfügt über 55 Quadratmeter – reicht dem Bauherrenpaar aktuell zum Wohnen und Arbeiten. Die Konzeption ist jedoch ebenso darauf ausgerichtet, dass eine vierköpfige Familie genügend Platz zum Leben findet. Der überdachte Eingangsbereich ist eine Reminiszenz an schöne Skandinavienurlaube. www.schwoererhaus.de


Die ausführliche Hometour gibt‘s auf www.youtube.com/@HausbauHelden oder direkt über diesen QR-Code.


Klein, aber clever
Mini-Häuser liegen im Trend und sind inzwischen auf die unterschiedlichsten Bedarfsmodelle ausgerichtet: Unser Beispiel zeigt einen Tiny-Haus-Bungalow mit rund 53 Quadratmetern – geeignet zum Beispiel für Singles, ein älteres oder kinderloses Paar. Desweiteren ein schlankes zweigeschossiges Modell mit 70 Quadratmetern und genügend Platz für Paare. Und zu guter Letzt eine Option mit 90 Quadratmetern inklusive StudioAnbau fürs Home-Office, Hobby oder Ähnliches. www.weberhaus.de
Die ausführliche Haustour gibt‘s auf www.youtube.com/@HausbauHelden oder direkt über diesen QR-Code.

Foto: Schwörer
Haus
Aus eins mach viele
Mehrfamilienhäuser gelten als geeignete Alternative trotz Bauplatzmangel Eigentum zu erwerben, vor allem im innerstädtischen Bereich. Dass dies auch ökologisch und wohngesund machbar ist, bestätigt diese sich dem umgebenden Reihenhausstil anpassende und in Holzbauweise errichtete Wohnanlage. Sie umfasst auf einer Komplettfläche von 891 Quadratmetern 9 (ursprünglich 10) separate, barrierefreie Wohneinheiten. Die einzelnen Wohnflächen erstrecken sich von 50 bis ca. 100 Quadratmeter, eine davon (der Zusammenschluss zweier Wohnungen) misst 125 Quadratmeter. Für die Erdgeschosswohnungen wurde jeweils ein separater Eingang geplant, die oberen sind über einen gesammelten Zugang erreichbar. Optische Individualität verleihen die beiden Flachdachgauben, die den einheitlichen Look des Satteldaches aufbrechen. www.baufritz.com



Die ausführliche Haustour gibt‘s auf www.youtube.com/@HausbauHelden oder direkt über diesen QR-Code.

Gemeinsam bauen & wohnen
Ob Mehrgenerationen- oder Zweifamilienhaus – beides ist bei diesem, im modernen bayerischen Landhausstil errichteten Wohnhaus eine Option. Obwohl es von außen eher die Anmutung eines Einfamilienhauses hat, verfügt es über zwei in sich abgeschlossene Wohneinheiten mit gemeinsamem Zugang ins Hausinnere. Die Wohnflächen sind mit 114 im Erdgeschoss und 107 Quadratmetern in der oberen Etage fast gleich groß. Das Flachdach hat, ganz im bayerischen Stil, mit 25 Grad eine eher mäßige Neigung, die Optik der Fassade ist unterteilt in Putz und Holz. www.regnauer.de
Den Haus-Check mit Grundrissanalyse gibt‘s unter www.youtube.com/ @HausbauHelden oder direkt über diesen QR-Code.

Foto:
Baufritz
Bauhaus-Villa
An mehreren Stellen erweiterbar ist dieses klassische, individuell geplante Stadthaus über zwei Ebenen und mit Flachdach. Zum einen kann auf dem Erkeranbau, der zunächst als Dachterrasse genutzt werden soll, aufgestockt werden. Die Vorkehrungen dafür sind getroffen. Desweiteren wurde auch eine optionale Wohnraumerweiterung auf der Doppelgarage an der Vorderseite des Hauses vorgesehen, das Garagendach wurde dafür extra stabilisiert. Das Gebäude verfügt über die höchstmögliche Effizienzstufe, die 40 Plus und zurzeit über eine Gesamtwohnfläche von 197 Quadratmetern. www.fingerhaus.com

Die ausführliche Haustour gibt‘s auf www. youtube.com/@HausbauHelden oder direkt über diesen QR-Code.



Modulhaus mit Mehrwert
Einzelne Module in der Größe 10,40 x 3,45 Meter, Gesamthöhe 3,64 Meter, bilden die Grundlage für Tiny-Häuser in Modulbauweise. Die Häuser werden in der Produktionshalle vorgefertigt, auf den Bauplatz gebracht und dort mit einem Punkt- oder Streifenfundament verankert. In zwei bis drei Tagen sind sie bezugsfertig. Die Wohnfläche des abgebildeten aus drei Teilen bestehenden Modulhauses beträgt etwa 100 Quadratmeter, ein viertes Modul steht als Carport und für die Technik zur Verfügung. Außen sind die Bauteile mit einer Holzverschalung versehen. Die dazugehörigen Holzfenster werden vom Hersteller selbst produziert. www.sonnleitner.de

Die ausführliche Haustour gibt‘s auf www.youtube. com/@HausbauHelden oder direkt über diesen QR-Code.
Foto: Katharina Jäger, fotografische Werkstatt

Warm & natürlich


In einem Holzhaus spüren wir Natur hautnah: Wärme, Behaglichkeit und ein gesundes Wohnklima sind nur einige der Vorteile. Der regenerative Baustoff speichert außerdem CO 2 und hat insgesamt eine hervorragende Ökobilanz. Vielfältig sind auch die architektonischen Gestaltungsweisen – ob rustikal oder modern, der Kreativität werden keine Grenzen gesetzt.
Sylvia Gatzka, Redakteurin:
Foto: Regnauer Hasubau/Martin Duckek
Modern dahoam

Das Musterhaus „Liesl“ zeigt unter seinem auskragenden Satteldach mit weiß verputztem Sockel und gehackter Lärchenholz-Verkleidung eine moderne Interpretation der traditionellen Chiemgauer Architektur und Materialität. Im Inneren setzt sich diese Gestaltungsidee fort: Der einladende breite Wohnflur mit Glasfront zum Garten ist dem historischen „Flez“ alter Bauernhäuser nachempfunden und erschließt auf der einen Seite Gäste-WC, Hauswirtschaftsraum und die „gute Stube“ mit Ofen. Die gesamte andere Seite nimmt die offene Wohnküche mit Essplatz und Sitzbereich ein. Im Obergeschoss erstreckt sich der Elterntrakt von einer Traufseite zur anderen, zwei Kinderzimmer und ein Duschbad mit Ankleide im Glasgiebel orientieren sich zu Balkon und Garten.
Du möchtest vorab virtuell durchs Haus schlendern? Dann geh online auf Haustour unter www.youtube. com/HausbauHelden oder direkt auf diesen QR-Code.

VIDEO-TIPP
MUSTERHAUS
Dieses Musterhaus kann täglich von 10 bis 18 Uhr im Bauherrenzentrum Seebruck, Pullacher Straße 11, 83358 Seebruck/ Chiemsee besichtigt werden.
DATEN & FAKTEN
MUSTERHAUS LIESL
Regnauer Hausbau GmbH & Co. KG
Pullacher Straße 11 83358 Seebruck/Chiemsee Tel. 08667/72-222 www.regnauer.de
Konstruktion + Technik:
Massivholz-Riegel-Konstruktion mit Holzfaserdämmung, extrastarke Gipsbeplankung, Putz- und Holzfassade, Holz-Alu-Fenster, Satteldach 20 Grad, Luft-Luft-Wärmepumpe, Frischluft-Wärmetechnik, Photovoltaik-Anlage, Hausautomation
Wohnfläche:
EG 85 m2, OG 82,5 m2

Weitere Entwürfe von und Informationen über Regnauer Hausbau findest du auf www.HausbauHelden.de oder über diesen QR-Code.


1 – Ein verglaster Giebel, schwarze Fensterrahmen und der umlaufende Balkon mit filigranem Stahlgeländer schaffen moderne Leichtigkeit. 2 – Die holzvertäfelte Stube mit Bank und Daybed am Ofen eignet sich für Ruhe genauso wie für Geselligkeit. 3 – Mit Kochinsel, schwarzen Fronten und durchlaufendem Echtholzparkett ist die offene Wohnküche hochwertig und schick ausgestattet.


Fotos: Martin Duckek /Regnauer Hausbau
Kompakt, aber großzügig


Trotz kompakter Größe entsteht ein Eindruck von Großzügigkeit.
Die äußere Fassade aus weißem Putz und Holz passt hier zur nachhaltigen Holzbauweise ebenso gut wie in die natürliche Umgebung des großzügigen Grundstücks. Sie verleiht dem Haus einen modern-rustikalen Charme. Anthrazit gerahmte Fenster betonen die harmonische Ausstrahlung. Die offene Gestaltung im Erdgeschoss und die Galerie im oberen Bereich verstärken den Eindruck von Weite und Großzügigkeit, obwohl das Haus mit rund 140 Quadratmetern nicht übermäßig groß ist. Bei der Planung wurde neben dem familientauglichen Grundriss natürlich Wert auf Energieeffizienz gelegt. Eine effiziente Wärmepumpenheizung und ein zentrales Belüftungssystem nutzen umweltfreundlich erneuerbare Energien und sind sparsam im Betrieb.
DATEN & FAKTEN
POINT 140
Dan-Wood House
Justus-von-Liebig-Straße 7 12489 Berlin
Tel. 030/67823980
www.danwood.de
Konstruktion + Technik:
Holzverbundkonstruktion mit Putz- und Holzfassade, Satteldach 30 Grad, Kniestock 175 cm, Luft-Wasser-Wärmepumpe, Fußbodenheizung, zentrale Lüftung mit Wärmerückgewinnung
Wohnfläche:
EG 74 m2 , OG 64,5 m2

Weitere Entwürfe von und Informationen über Dan-Wood House findest du auf www.HausbauHelden.de oder über diesen QR-Code.
OBERGESCHOSS

ERDGESCHOSS

Fotos: Dan-Wood House
DATEN & FAKTEN HAUS KÖBLER
Rems-Murr Holzhaus GmbH
Wiesenstraße 9, 71577 Großerlach-Grab Tel. 07192/20244 www.remsmurr-holzhaus.de
Konstruktion + Technik:
Blockbohlenbauweise, Außenwände 20 cm, Photovoltaik-Anlage mit Batteriespeicher, Wärmepumpe, Energieeffizienzklasse A+ mit einem Jahresendenergiebedarf von 22,9 kWh/m2a
Wohnfläche:
EG 94 m2, OG 80 m2

Weitere Entwürfe von und Informationen über Rems-Murr Holzhaus findest du auf www.HausbauHelden.de oder über diesen QR-Code.

Pur und massiv

Holz als nachwachsender, nachhaltiger Rohstoff sowie bauphysikalische und wohngesundheitliche Argumente stehen bei diesem aus einzelnen Balken in Blockbohlenbauweise errichteten Vollholzhaus im Vordergrund. Es ist ein Bausatzhaus, bei dem Bauende die Möglichkeit haben, sich selbst mit Eigenleistung

Auch im Hausinneren der Baustoff Holz. Glatt gehobelte Blockwände bilden die sichtbaren Oberflächen. Das macht Verputzen oder Streichen überflüssig.
einzubringen. Beheizt wird das Haus mittels einer Wärmepumpe per Fußbodenheizung. Eine auf beiden Dachseiten untergebrachte Photovoltaik-Anlage liefert dafür den Strom. Die Kombination aus dichter, gut gedämmter Massivholzhülle und moderner Heizungstechnik trägt dazu bei, das Ziel Topenergieklasse A+ zu erreichen.

Fotos:
Rems-Murr
Holzhaus
Moderner Skandi-Stil

Bauen statt mieten – diesem Motto folgten Jana und Johannes Moser, als sich die Wohnungssuche schwierig gestaltete. Auf dem großelterlichen Bauernhof in Oberbayern konnten sie ihren Haustraum verwirklichen. Sie entschieden sich für ein Aktionshaus, bei dem zwar die Wände festgelegt, sonst aber viele individuelle Gestaltungsmög-
lichkeiten umsetzbar sind: die Lage der Fenster und Innentüren, Dachneigung, Kniestock, Farbwahl usw. So konnten sie ihren eigenen Wohnstil zum besten Preis-Leistungsverhältnis realisieren. Mit Keller, einer Geschosstreppe im Landhausstil und zwei Sitzfenstern mit passgenauem Stauraum aus der Schwörer- Designschreinerei.

VIDEO-TIPP
Du möchtest virtuell durchs Haus schlendern? Dann geh auf Haustour unter www.youtube.com/ HausbauHelden oder über diesen QR-Code.

DATEN & FAKTEN
HAUS MOSER
Schwörer Haus
Hans-Schwörer-Str. 8
72531 Hohenstein
Tel. 07387/16-111
www.schwoererhaus.de
Konstruktion + Technik:
Holztafelbauweise, 32 cm Wandstärke, 24 cm mineralische Dämmung, Putzfassade, U-Wert Wand 0,149 W/m²K, dreifachverglaste Kunststofffenster, Ug-Wert 0,6 W/ m²K, Satteldach, 30 Grad geneigt, U-Wert Dach 0,148 W/m²K, Frischluftheizung, kontrollierte Lüftung mit Wärmerückgewinnung, Trinkwasserwärmepumpe
Wohnfläche:
EG 55 m2, OG 55 m2
OBERGESCHOSS

ERDGESCHOSS
Direkt hinter der Küche liegt – statt wie zuerst geplant der Technikraum –ganz praktisch die Speisekammer.


Alles unter einem Dach
Um für alle Bedürfnisse der Bewohner Platz zu schaffen, wurde bei dem „Haus Haidhausen“ ein vorgelagerter Anbau entworfen. Über der Wohnraumerweiterung befindet sich eine Balkon-Loggia, die reichlich Platz zur Entspannung an der frischen Luft bietet. Wichtig waren der Baufamilie auch der reichliche Einsatz von Holz und die Photovoltaik-Module.
Regnauer Hausbau, 83358 Seebruck, Tel. 08667/72222 www.HausbauHelden.de/hersteller/regnauer

Villa in Holz
Das „Haus Stuttgart“ besticht durch seine geradlinige Holzarchitektur mit einer eleganten, filigranen Weißtannenfassade. Die Rahmen der meist geschosshohen Fenster nehmen das moderne Anthrazit der Dachdeckung auf. Zudem verleihen mehrere Loggien der Fassade eine weitere Dimension. Das gut gedämmte Wohnhaus wird klimaschonenend mit einer Wärmepumpe beheizt. Schwarzwälder, 78112 St. Georgen, Tel. 07724/58002-30 www.HausbauHelden.de/hersteller/schwarzwaelder-haus
Natürlich schön
Auf einem schmalen Grundstück realisiert sich ein Ehepaar dieses Domizil in moderner Holzbauweise. Da das „Haus Zink“ nur 3,70 Meter breit und 21 Meter lang ist, musste für das extralange Gebäude ein spezielles Raumkonzept kreiert werden. So sorgt beispielsweise eine offene Raumanordnung für ein modernes Flair und luftige Weite. Auch bei der Innenraumgestaltung kamen vorrangig natürliche Materialien zum Einsatz.
Zimmermeisterhaus-Manufaktur, 61191 Rosbach, Tel. 0791/949474-0 www.HausbauHelden.de/hersteller/zimmermeisterhaus

Ganz harmonisch
In dem Haus „Großheppach“ wird der natürliche Baustoff Holz nicht nur als waagerecht ausgeführte Schalung aus Lärche sichtbar. Dem Hausinneren verleiht zudem eine gehobelte Holzbalkendecke Gemütlichkeit. Der Eigenentwurf wird zudem durch zwei große Spitzgauben charakterisiert und fügt sich harmonisch in die umliegende Bebauung ein.
Rems-Murr-Holzhaus, 71577 Großerlach-Grab, Tel. 0719220244 www.HausbauHelden.de/hersteller/rems-murr-holzhaus

Foto: Rems-Murr-Holzhaus
Foto: René Lamb Fotodesign

Wohlfühl-Refugium
Dieses individuelle Kundenhaus wurde auf Wunsch der Baufamilie mit Blick auf Wohngesundheit und Nachhaltigkeit errichtet. So entstand ein modernes Familienhaus in ökologischer Holzbauweise mit zukunftsfähigem Energiekonzept. Das natürliche Baumaterial zeigt auch im Hausinneren Präsenz, beispielsweise in Gestalt einer sichtbaren Holzbalkendecke.
Jura-Holzbau, 93339 Riedenburg, Tel. 09442/9203-0 www.jura-holzbau.de
Mit warmem Kern
Bei Konstruktion, Fassade und Innenausbau von „Haus Bremer“ spielt der Naturbaustoff Holz eine wichtige Rolle. Das Ergebnis ist ein nachhaltiges Familienhaus mit einer durchdachten Raumplanung. Die sich wiederholenden Materialien und Elemente, viel helles Holz sowie ein offener WohnEssbereich mit Eichentreppe als Blickfang entsprechen exakt den Vorstellungen der Baufamilie. Fertighaus Weiss, 74420 Oberrot-Scheuerhalden, Tel. 07977/9777-0 www.HausbauHelden.de/hersteller/fertighaus-weiss


Individuell zugeschnitten
Bei der „Homestory 980“ handelt es sich um ein Unikat mit viel sichtbarem Holz. Die Baufamilie leistete auf Wunsch Eigenleistung und konnte im Austausch mit den Fachberatern ihre eigenen Vorstellungen realisieren. Das Ergebnis ist ein Haus mit klassischem Satteldach und einer großzügigen Verglasung, die viel wohltuendes Tageslicht ins Hausinnere einfallen lässt.
Lehner-Haus GmbH, 89520 Heidenheim, Tel. 07321/9670-0 www.HausbauHelden.de/hersteller/lehner-haus
Elegant verbunden
Das Wohnensemble „Haus Graylings“ besteht aus zwei über ein begrüntes Flachdachgebäude verknüpften Gebäudetrakten. Großzügige Schiebefenster gewähren Zugang zu den an beiden Seiten liegenden Außenbereichen. Umhüllt wird das Gebäude von einer Fassade aus schwarz gestrichenem Holz. Im Flachdachbereich ist die Schalung waagerecht und bei den beiden Gebäudeflügeln senkrecht ausgeführt.
Baufritz, 87746 Erkheim, Tel. 08336/900-209 www.HausbauHelden.de/hersteller/baufritz-oekohaus

Foto: Jura-Holzbau/Herbert Stolz
Foto: Baufritz/Marcel Laponder
Foto: Fertighaus
Weiss/Michael Christian Peters Fotodesign

Material-Mix
Öko-Oase
Die Lärchen-Vollholzfassade des Hauses „München“ strahlt natürliche Eleganz aus und sorgt dafür, dass es sich zeitlos in die grüne Umgebung fügt. Seine moderne Anmutung verdankt das Haus den minimalen Dachüberständen und den asymmetrisch angeordneten Fenstern. Das gesunde Raumklima ist und auf die von Sonnleitner selbstentwickelten Klimawände mit sehr hohem Massivholzanteil zurückzuführen.
Sonnleitner Holzbauwerke, D-94496 Ortenburg, Tel. 08542/9611-0 www.HausbauHelden.de/hersteller/sonnleitner
Eine gelungene Materialkombination aus weißer Putz- und vergrauender Holzleistenfassade kennzeichnet die äußere Erscheinung von „Haus Erlenried“. Der Innenraum vereint offene Bereiche mit behaglichen Rückzugsorten. Das kommunikative Zentrum im Erdgeschoss bildet zum Beispiel der offene Wohn- und Essbereich mit direktem Terrassenzugang.
Keitel-Haus, 74585 Rot am See/Brettheim, Tel. 07958/9805-0 www.HausbauHelden.de/hersteller/keitel

Villa mit Durchblick
Das „Haus Art 5“ ist durch seine bodentiefe Verglasung und die weiße Leimholz-Fachwerkkonstruktion ein wahrer Hingucker. Die besondere Fassade erstreckt sich über zwei Vollgeschosse bis unter das Dach. Entsprechend weitläufig sind von innen die Ausblicke ins Grüne oder auf den großzügigen Pool, der sich eng an die gläserne Villa schmiegt. Huf Haus, 56244 Hartenfels, Tel. 02626/761-200 www.HausbauHelden.de/hersteller/huf-haus

Neu und in Holz
Inspiration für dieses zweigeschossige Holzhaus mit flachem Satteldach schöpfte die Baufamilie bei einem Ausflug in die Musterhaus-Ausstellung in Poing. Die weiße Putzfassade wurde gezielt mit Partien aus Lärchenholzverkleidung kombiniert. Über den Hauseingang an der Giebelseite spannt sich ein elegantes Vordach aus Holz und Glas.
Kampa GmbH, 73432 Aalen-Waldhausen, Tel. 07367/92092-0 www.HausbauHelden.de/hersteller/kampa

Foto: Huf Haus
Natürlich nachhaltig
Individuell Ökologisch Innovativ
Nachhaltig bauen ist längst mehr als ein Trend – es ist ein zentrales Bedürfnis vieler Bauherren. Und kaum ein Baustoff erfüllt diesen Anspruch besser als Holz. In Verbindung mit moderner Fertigungstechnologie ist der Holzfertigbau heute ein Synonym für energieeffizientes, wohngesundes und architektonisch anspruchsvolles Bauen. Doch was macht das Bauen mit Holz so besonders – und worauf sollten Bauinteressierte achten?
Was ihr wissen wollt:
„Wie viel Holz benötigt man für ein Einfamilienhaus?“
Das hängt von der Größe des Hauses ab. Und davon, ob nur Konstruktion oder Fassade aus Holz gefertigt sind oder auch die Dämmung und große Teile des Innenausbaus aus Holz bestehen. In der Regel werden für ein durchschnittliches Einfamilienhaus in Holzbauweise jedoch etwa 50 bis 70 Kubikmeter Holz benötigt. Pro Kubikmeter verwendetem Holz wird langfristig CO2 gespeichert. Dabei gilt: je schwerer das Holz, desto mehr – im Durchschnitt rund eine Tonne pro Kubikmeter Holz.
Der größte Teil unserer bisherigen Bauwirtschaft ist geprägt von fossilen Rohstoffen: Doch diese sind endlich und vor allem große CO2-Emittenten. Im Gegensatz dazu wächst Holz aus nachhaltig bewirtschafteten Wäldern immer wieder nach. Rund ein Drittel der Bundesrepublik ist mit Wald bedeckt. Alle diese Bäume haben im Laufe ihres Wachstums Kohlenstoff aus der Atmosphäre aufgenommen und diesen in ihrem Holz gespeichert. Deswegen gelten Wälder als sogenannte CO2-Senken. Laut der „Charta für Holz 2.0 Kennzahlenbericht 2022/2023“ belief sich die Klimawirkung des deutschen Waldes in 2022 auf eine Senke von minus 40 Milionen Tonnen CO2-Äquivalenten. Dieses Speichervolumen wird durch die langfristige Nutzung von Holz
kontinuierlich erhöht: Dabei werden ausgewachsene Bäume aus dem Wald entnommen, z.B. um sie für den Bau von Häusern zu verwenden oder aus ihnen andere, langlebige Produkte herzustellen – so wird das in ihnen gespeicherte CO2 lange konserviert. Außerdem werden die relativ hohen Treibhausgasemissionen bei der Herstellung von vielen mineralischen Baustoffen durch deren Substitution durch Holz vermieden. Ein weiterer positiver Effekt der Holznutzung ist, dass junge Bäume, die als Ersatz für entnommene gepflanzt werden, durch ihr schnelles Wachstum mehr CO2 aufnehmen als ihre Vorgänger.
Holz tut gut
Die Verwendung von Holz ist aber nicht nur gut für das Klima sondern wirkt sich in vielerlei
Das neue Zuhause von Familie Bauer/ Grunden zeigt Holzbau in moderner Gestaltung. Das Fertighaus wurde individuell für die Bedingungen auf einem lang gezogenen Grundstück und die Familiensituation geplant. Viel Holz in der Außen- und Innengestaltung sorgen für einen wohltuenden Rahmen für den lebhaften Familienalltag. www.schwoererhaus.de
Hinsicht positiv auf unser Wohlbefinden aus und kann sogar die Gesundheit verbessern. So stellte das Food Safety Laboratory der University of Wisconsin bereits 1994 fest, dass Holz Bakterien abtötet. Dafür sorgen natürliche Inhaltsstoffe wie Polyphenole sowie seine hygroskopische Eigenschaft. Dadurch wird den Bakterien die Feuchtigkeit entzogen, die sie zum Überleben brauchen. Sogar auf das HerzKreislaufsystem wirkt Holz sich positiv aus. So belegt eine Doktorarbeit an der University of British Columbia in Vancouver von 2010, dass in Räumen mit Holzausstattung Blutdruck und Puls sinken. Innerhalb von Räumen sorgen Holzoberflächen für weniger Lärm, weil sie Schall absorbieren. Durch die Fähigkeit, Feuchtigkeit aufzunemen und wieder abzugeben, reguliert es die Luftfeuchtigkeit und sorgt für ein angenehmes Raumklima.
Echt langlebig
Immer wieder wird bezweifelt, dass Holzhäuser genau so lange ihren Zweck erfüllen, wie solche aus Stein oder Beton. Tatsächlich ist das älteste Haus Deutschlands ein Holzhaus: es steht in der Webergasse 8 im Baden-Württembergischen Esslingen und ist über 750 Jahre alt. Der Wohnkomfort des mittelalterlichen Hauses

entspricht sicherlich nicht in jeder Hinsicht den heutigen Anforderungen, aber es zeigt, dass Holzhäuser sehr dauerhaft sein können. Eine Studie von Prof. Dr.-Ing. Stefan Winter und Dipl.-Ing. (FH) Daniel Kehl von der Universität Leipzig kam bereits 2002 zu dem Schluss, dass auch moderne Holzhäuser sich bei Lebensdauer und Wertbeständigkeit nicht von Häusern aus Stein unterscheiden. Sie genügen
allen gesetzlichen Anforderungen an Wärme-, Feuchte-, Brand- und Schallschutz – übertreffen diese meist sogar. Die technische Lebensdauer von Holzbauten kann daher bei ordnungsgemäßer Instandhaltung mehrere 100 Jahre erreichen. Die Wissenschaftler vom Lehrstuhl für Stahl- und Holzbau der Uni Leipzig hatten die Entwicklung der Holztafel- und Holzrahmenbauweise seit den
Foto:
Schwörer
Haus/Det
Goeckeritz

Das Musterhaus „Klara“ in Fellbach bei Stuttgart fällt aufgrund seiner modernen Interpretation des traditionellen Hauses mit Satteldach ins Auge. Auch hinter der Putzfassade verbirgt sich hier eine moderne Holzfertigbauweise die für niedrige Energiebedarfe und ein wohltuendes Wohnklima sorgt. www.regnauer.de
60er-Jahren untersucht und mit anderen Bauweisen verglichen.
Von Tiny- bis Hochhaus Holz ist deswegen ein so vielfältig einsetzbarer Baustoff, weil er hohe Stabilität mit einem relativ geringen Gewicht und vergleichsweise einfacher Verarbeitung vereint. Kombiniert mit seinen ökologischen Vorteilen hat das in den letzen Jahren dazu geführt, dass der natürliche Baustoff eine echte Renaissance erlebt.
Weil der Holzbau traditionell eher auf dem Land praktiziert wurde,
Im Hausinneren sorgt Holz für ein gesünderes Wohnen: Es ist wärmedämmend, feuchteregulierend, verbessert die Akkustik und wirkt sich positiv auf das Herz-Kreislaufsystem aus. Das Bild zeigt das Musterhaus „E 10-226.1“ am Firmenstandort von www.schwoererhaus.de
nur im Einfamilienhaus im Grünen. Inzwischen erobern Holzhäuser zunehmend den urbanen Raum: Ob als Aufstockung oder Anbauten von Bestandsgebäuden, als Mehrfamilienhaus bis hin zu Hochhäusern, in Holz oder Holz-Hybridbauweisen. Von der Beliebtheit des Baustoffes profitiert auch der Fertigbau: über 26 Prozent der Ein- und Zweifamilienhäuser in Deutschland werden inzwischen in nachhaltiger Holzfertigbauweise erstellt.
verbinden heute viele eher
rustikale Architektur mit dem Baustoff. Doch natürlich lässt sich mit Holz auch sehr moderne Architektur realisieren. Moderne Holzbaustoffe ermöglichen heute, fast alles aus Holz zu bauen, nicht
Alles und für alles zu gebrauchen Eine besondere Eigenschaft von Holz ist, dass man daraus fast alles herstellen kann. Je nach Anwendung, muss man nur die geeignete Holzart wählen. Je nach Holzart sind die Hölzer härter oder weicher, anfälliger oder robuster in Bezug auf Feuchtigkeit, haben unterschiedliche Farben und Maserungen. Dort wo Holz sichtbar bleiben soll, bei Möbeln, Böden, auf der Terrasse oder bei Fenstern und Treppen, lohnt es sich also zu vergleichen und abzuwägen, was in puncto

Foto: Schwörer Haus/Jürgen Lippert
Foto: Regnauer
Eigenschaften und Optik zum persönlichen Wohn- und Lebensstil am besten passt.
Fertighäuser aus Holz
Für den Hausbau wird heutzutage in der Regel Fichtenholz verwendet. Es ist sehr gut für den Hausbau geeignet, da diese Bäume besonders gerade wachsen und das Holz im Verhältnis zu seinem relativ geringen Gewicht gute Festigkeits- und Elastizitätseigenschaften besitzt. Wichtig bei der Wahl von Holzprodukten ist, dass sie aus nachhaltiger Waldwirtschaft kommen – im Idealfall sogar aus regionalen Wäldern stammen. Nachhaltige Holznutzung, traditionelle Handwerkskunst und innovative Fertigungsmethoden versammeln viele Hersteller von modernen Holzfertighäusern unter einem Dach. Die Verwendung von heimischen Hölzern, die technisch getrocknet und witterungsgeschützt in Werkshallen vorgefertigt werden, sorgt für höchste Holzbauqualität. Eine gute Grundlage für langes und glückliches Wohnen im eigenen Holzhaus. • ab

„Eins, Zwei, Drei“ heißt dieses Hauskonzept, dass aus Massivholz-Modulen besteht. Das Musterhaus am Firmenstandort von Stommel Haus zeigt, wie eine Kombinaton aus den drei Modularten aussehen kann – Bauinteressenten können aus den flexiblen Modulen auch ganz eigene Entwürfe erschaffen. www.stommel-haus.de
Beim Haus Jansen wird der Baustoff Holz zelebriert: Nicht nur die Fassade und die Konstruktion des Gebäudes besteht aus dem nachwachsenden Baustoff, auch sein Interieur ist maßgeblich von ihm geprägt. www.baufritz.com

Was ihr wissen wollt:
„Sind Holzhäuser teurer als konventionelle?“
Während der Corona-Pandemie gab es einen sprunghaften Anstieg der Holzpreise – was das Bauen mit den nachwachsenden Rohstoffen verteuert hatte. Das hat sich zwischenzeitlich wieder auf Normalniveau angeglichen. Unterm Strich ist es nicht teurer, sein Haus mit Holz als mit einem mineralischen Baustoff zu bauen. Die hohen Baukosten in Deutschland sind eher bedingt, durch ein hohes Lohnniveau, gesetzlich geforderte Bau- und Energiestandards sowie relativ hohe Finanzierungskosten. Darüber hinaus wirken sich auch individuelle Komfort- und Ausstattungs-Ansprüche auf die Baukosten aus.
Foto: Stommel Haus

Mitten im Geschehen

In der Stadt zu bauen, verlangt Kreativität und Anpassungsfähigkeit. Oft ist es nur auf kleinen, schmalen oder Lückengrundstücken, als Nachverdichtung oder Ersatzneubau möglich. Doch clever geplant, entstehen auch auf kleiner Fläche oder in zweiter Reihe großartige Lebensräume: mit besterAnbindung, in einem individuellen, modernen Zuhause – mitten im lebendigen Geschehen.

Christine Meier, stellv. Chef-Redakteurin:
Kubischer Chic

Mit Edelputz im Farbton „Taupe“ und symmetrisch angeordneten quarzfarbenen Fensterrahmen zeigt sich die Stadtvilla „Urban Life“ lässig-elegant auf kompakter quadratischer Grundfläche. Technik- und Hauswirtschaftsraum sind in einem Anbau untergebracht und ebenso wie das Gäste-WC dem seitlich gelegenen Eingang zugeordnet. Vom Entree führt die offene Gestaltung in den Koch-Ess-Wohnbereich; ein Zusatzraum ermöglicht die Nutzung als Home-Office, Gästezimmer oder auch barrierefreies Leben auf einer Ebene im Alter. Von der Küche aus ist die mit Lamellen überdachte Terrasse barrierearm zugänglich. Eine Holztreppe in Faltwerkoptik erschließt im Obergeschoss das Elternschlafzimmer mit Ankleide, das Familienbad mit praktischem Wäscheabwurfschacht in den Hauswirtschaftsraum und zwei gleich große Kinderzimmer. Passend zur Fassade dominieren im Innenraum Beige- und Holztöne bei den Möbeln und Textilien.
VIDEO-TIPP
Sie wollen schon mal online durchs Haus schlendern? Dann gehen Sie auf Haustour unter www.youtube.com/HausbauHelden oder direkt auf diesen QR-Code.

MUSTERHAUS
Dieses Musterhaus kann von Mittwoch bis Sonntag von 10 bis 17 Uhr im FertighausCenter Mannheim besichtigt werden.
DATEN & FAKTEN
MUSTERHAUS URBAN LIFE
Fertighaus Weiss GmbH
Sturzbergstr. 40-42 74420 Oberrot Tel. 07977/9777-0 www.fertighaus-weiss.de
Konstruktion + Technik:
Holzrahmenkonstruktion, Putzfassade, Walmdach 22 Grad, Luft-Wasser-Wärmepumpe mit kontrollierter Wohnraumlüftung, Wärmerückgewinnung und Kühlfunktion, Photovoltaik-Anlage, Solarspeicher, Smarthome-Steuerung
Wohnfläche:
EG 89,5 m2 , OG 74,5 m2

Weitere Entwürfe von und Informationen über Fertighaus Weiss gibt es unter www.HausbauHelden.de oder über diesen QR-Code.



1 – Im Obergeschoss der Stadtvilla sind die nahezu bodentiefen Fenster mit einer gläsernen Absturzsicherung versehen. 2 – Der Wohnbereich mit loungiger Sitzecke liegt in einer Nische, geschützt vor der Haupt-Sichtachse. 3 – Holzlamellen-Paneele bekleiden die Wandscheibe zwischen Ankleide und Schlafzimmer. 4 – Die weiße Kücheninsel leitet über vom Kochbereich zum geräumigen Essplatz.


Fotos: Fertighaus Weiss
Digital planen. Sicher bauen.


Ein Haus, das zu den eigenen Vorstellungen passt – ganz einfach digital geplant. Im Hauskonfigurator von Danwood Family lässt sich die Stadtvilla Family 144 Schritt für Schritt gestalten: Ausstattungspakete wählen, Technik verstehen, Budget im Blick behalten. So entsteht ein Zuhause, das genau zum Alltag passt. Moderne Haustechnik mit Wärmepumpe, Fußbodenheizung und Lüftungsanlage sorgt für angenehmes Raumklima und dauerhaft niedrige Energiekosten. Das Family-Programm bietet zahlreiche Hausentwürfe, die online konfigurierbar sind – mit klar strukturierten Ausstattungspaketen, transparenter Preisgestaltung und kurzer Planungszeit. So gelingt der Weg ins eigene Zuhause: unkompliziert, komfortabel und bezahlbar.
DATEN & FAKTEN
FAMILY 144
Danwood S. A.
Justus-von-Liebig-Str. 7 12489 Berlin
Tel. 0800/4326459 (kostenfrei) www.danwoodfamily.de
Konstruktion + Technik:
Effizienzhaus 40 im Standard, Holztafelbauweise, Putzfassade, Walmdach 22 Grad, zwei Vollgeschosse, Luft-Wasser-Wärmepumpe, Fußbodenheizung, zentrale Lüftungsanlage mit Wärmerückgewinnung
Wohnfläche:
EG 74 m2 , OG 71 m2

Weitere Entwürfe von und Informationen über DANWOOD Family findest du auf www.HausbauHelden.de oder über diesen QR-Code.


1 – Die Stadtvilla präsentiert sich mit zeitgemäßen grauen Akzenten, einem dunklen Dach und integrierten Photovoltaik-Modulen. 2 – Das im Erdgeschoss untergebrachte Wohnzimmer ist gemütlich und hell. 3 – Das großzügige Badezimmer kombiniert Wellnessfeeling mit Funktionalität. 4 – Die offene Küche mit Ess- und Wohnbereich wird zum Treffpunkt der Familie


Fotos: Danwood
Ein Hauch von Luxus

Maximalen Wohnkomfort bietet dieses moderne Pultdachhaus der vierköpfigen Familie. Im Erdgeschoss nimmt der offene, gut zonierte Wohn-Ess-Kochbereich fast 80 Quadratmeter ein und hält hier reichlich Platz für gemeinsame Zeit bereit. Ein Zusatz-/Arbeitszimmer mit angrenzendem DuschWC schafft flexible Nutzungsmöglichkeiten – als Gäste- oder Jugendzimmer oder für späteres Wohnen auf einer Ebene. Außerdem gibt es mit geräumiger Garderobe und einer Vorratskammer direkt hinter der Küche ausreichend Stauraum. Die privaten Rückzugsbereiche im Obergeschoss sind klar getrennt: zwei Kinderzimmer auf einer Seite des Flurs, der Elternbereich mit Schlafen, Ankleide und Bad gegenüber. Zudem sorgt ein separates Kinderbad für viel Privatsphäre.



1 – Das moderne Familienhaus zeigt sich zur Straßenseite einladend und offen. Hohe, schmale Fensterbänder lassen Tageslicht ins Innere, bieten aber nur dezente Einsicht 2 – Durch eine Wandscheibe vom Flur getrennt, wird der Sofabereich perfekt für gemütliche Stunden. 3 – Luftig und hell ist der Lieblingsplatz „Sitzfenster“ auf der Galerie mit Glasgeländer gestaltet. 4 – Mit offener Galerie und Verglasung über zwei Geschosse Richtung Garten wird der geräumige Essplatz weit und lichtdurchflutet.

ERDGESCHOSS
DATEN & FAKTEN
PULTDACH KLASSIK 285
Luxhaus. Pleinfelder Str. 64 91166 Georgensgmünd Tel. 09172/6920 www.luxhaus.de
Konstruktion + Technik:
Diffusionsoffene Holztafelbauweise mit Wärmedämmverbundsystem, Putzfassade, U-Wert Außenwand 0,12 W/m2K, Kunststoffund Holz-Alufenster dreifachverglast, UgWert 0,6 W/m2K, Pultdach mit 5 Grad Neigung, Luft-Wasser-Wärmepumpe, Lüftungsanlage, PV-Anlage mit Speicher, Smarthome-System
Wohnfläche:
EG 131,5 m2 , OG 111 m2

Weitere Entwürfe von und Informationen über Luxhaus findest du auf www.HausbauHelden.de oder über diesen QR-Code.

DATEN & FAKTEN
KUNDENHAUS „GUTBROD“
Schwörer Haus KG
Hans-Schwörer-Straße 8 72531 Hohenstein/Oberstetten Tel. 07387/16-111 www.schwoererhaus.de
Konstruktion + Technik:
Holztafelbauweise, 32 cm Wandstärke, 24 cm mineralische Dämmung, Putzfassade, Walmdach, Dreifachverglasung Ug-Wert 0,6 W/m²K, Luft-Wasser-Wärmepumpe mit Fußbodenheizung und kontrollierte Beund Entlüftung
Wohnfläche:
EG 80 m2, UG 69 m2

Weitere Entwürfe von und Informationen über Schwörer Haus findest du auf www.HausbauHelden.de oder über diesen QR-Code.

Auf den Kopf gestellt
Aufgrund der ausgeprägten Hanglage des Grundstücks wurde das Wohnkonzept bei Haus Gutbrod kurzerhand auf den Kopf gestellt, sprich das Untergeschoss zum Wohngeschoss erklärt. Im oben liegenden Erdgeschoss befinden sich der Eingangsbereich und die Privaträume mit drei Schlafräumen
und Familienbad. Eine offene Treppe von der Galerie ins lichtdurchflutete Untergeschoss mündet im großzügig gehaltenen Wohn-, Ess- und Kochbereich. Aufgrund der Hanglage bietet sich besonders durch die großen Panoramafenster im Untergeschoss ein wunderschöner Weitblick.

Die schräg in den Raum reichende Küchentheke bricht das meist im rechten Winkel ausgerichtete Grundrisskonzept raffiniert auf.
ERDGESCHOSS
Fotos: Schwörer
Haus/D. Göckeritz
DATEN & FAKTEN
HAUS CONCEPT 8
Kampa GmbH
Kampa-Platz 1
73432 Aalen-Waldhausen
Tel. 07367/92092-0
www.kampa.de
Konstruktion + Technik:
Holzrahmenkonstruktion mit Putz- und Klinkerfassade, MultiTec-Wandsystem mit Installationsebene und hinterlüfteter Fassade, Holzwerkstoffplatte, Kunststoff-Aluminium-Fenster mit Drei-Scheiben-Thermoverglasung, Ug-Wert 0,72 W/m2K, Flachdach, Wärmepumpe mit Kühlfunktion, Fußbodenheizung, Wohnraumlüftung mit Wärmerückgewinnung und Enthalpie-Wärmetauscher, PV-Anlage und Stromspeicher
Wohnfläche:
EG 113 m2, OG 84,5 m2

Weitere Entwürfe von und Informationen über Kampa findest du auf www.HausbauHelden.de oder über diesen QR-Code.

Exklusives Traumhaus


Stilvolles Design, hohen Wohnkomfort und eine nachhaltige Bauweise vereint Haus Concept 8. Die acht Entwürfe der Haus-Reihe sind keine festgelegten Planungen, sondern dienen als Inspirationen für das eigene Traumhaus, das mit den KampaArchitekten ausgefeilt wird. So besticht dieser Flachdach-Entwurf außen mit
einer markanten Putz- und Klinkerfassade, innen mit einem großzügigen Familienbereich mit angrenzender Terrasse und einem Gästezimmer plus Dusch-WC im Erdgeschoss. Oben sind Kinder- und Schlafzimmer, ein geräumiges Wellness- und ein Kinderbad untergebracht. Eine große Dachterrasse bietet viel zusätzlichen Freiraum.
Große, bodentiefe Verglasungen öffnen das Gebäude in beiden Geschossen weit in Richtung Garten. Sie verbinden innen und außen und sorgen für lichtdurchflutete Räume.


Raumwunder
Mit moderner architektonischer Klarheit besticht das „Landhaus 138“, das dank seiner kompakten Form auch gut auf einem schmaleren Grundstück in der Stadt oder in Stadtnähe Platz finden könnte. Die Großzügigkeit im Inneren verdankt das Familienhaus den zwei Vollgeschossen sowie einer cleveren Grundrissplanung mit offenen, fließenden Raumübergängen.
Luxhaus, 91166 Georgensgmünd, Tel. 09172/692-0 www.HausbauHelden.de/hersteller/luxhaus

Im Bauhaus-Stil
Diese luxuriöse Stadtvilla besteht vorwiegend aus dem ökologischen Baustoff Holz. Die geradlinige Flachdacharchitektur in Anlehnung ans Bauhaus wirkt modern und elegant. Im Inneren ist die wohltuende Wirkung von Holz spürbar. Während das Erdgeschoss alle zum alltäglichen Leben nötigen Räume auf einer Ebene beherbergt, liegen im Staffelgeschoss darüber drei flexibel nutzbare Zimmer, für Kinder oder Gäste.
Stommel Haus, 53819 Neunkirchen-Seelscheid, Tel. 02247/9172-30
www.HausbauHelden.de/hersteller/stommel-haus

Clever am Hang
Mit viel Know-how und Erfahrung gelang dem Architekten ein gelungener Entwurf für dieses Hanggrundstück. Noch dazu galt es, auf der begrenzten Fläche möglichst viel Raum für das neue Zuhause der Bauherren mit großem Kamin und offener Küche zu schaffen , aber auch Keller, Garage und Terrasse unterzubringen.
Lehner-Haus, 89520 Heidenheim, Tel. 07321/9670-0 www.HausbauHelden.de/hersteller/lehner-haus
Familien-Domizil
Über einen digitalen Hauskonfigurator wählten die Bauleute bequem die individuellen Komponenten für ihr Haus. Klar gegliedert, nutzt der Grundriss jeden Quadratmeter optimal aus: Neben dem großen Wohnbereich unten, Schlaf- und Kinderzimmer oben, gibt es noch je ein flexibel nutzbares Gäste- und Arbeitszimmer auf jeder Ebene.
Danwood S.A., 12489 Berlin, Tel. 030/67823980 www.HausbauHelden.de/hersteller/danwoodfamily

Foto: Lehner-Haus
Foto:
Luxhaus/Volker Lau
Foto:
Dan-Wood Family
Foto: Stommel Haus

Auf der Sonnenseite
Das Musterhaus „Sunshine 157“ in Fellbach bei Stuttgart präsentiert sich mit klassischem Satteldach auf zwei Vollgeschossen plus einem einstöckigen, als Home-Office möblierten Anbau. Unten mit viel modern gestaltetem Raum für Kochen, Essen und Wohnen – plus Mediaraum. Oben mit zwei Kinderzimmern, Schlafraum sowie einem großen Wellnessbad für alle.
Living Fertighaus GmbH, 36381 Schlüchtern, Tel. 0800/3040503 www.HausbauHelden.de/hersteller/living-fertighaus

Unter einem Dach
Die moderne Stadtvilla von Familie Ordner bietet auf 258 Quadratmetern Wohnfläche auch Platz für die Berufstätigkeit: ein Arbeitszimmer für den Bauherren und eine Massagepraxis für die Bauherrin – beides im Eingangsbereich, also mit etwas Abstand vom Familienleben. Dieses findet im im Erdgeschoss vorwiegend im großzügigen Wohn-Ess-Kochbereich statt, oben sind Eltern- und Kinderbereich klar getrennt.
Fingerhaus GmbH, 35066 Frankenberg/Eder, Tel. 06451/504-524 www.HausbauHelden.de/hersteller/finger-haus
Zukunftsfähig
Besonderen Charme verleihen dem Äußeren ein taupefarbender Putz, Fensterrahmen in Anthrazit sowie das asymmetrisch, mit verschiedenen Neigungen gestaltete Satteldach. In nachhaltiger Bauweise, mit klar strukturiertem Grundriss und zukunftsfähiger Haustechnik bietet das moderne „Kundenhaus Rose“ viel Wohnkomfort.
Fertighaus Weiss, 74420 Oberrot-Scheuerhalden, Tel. 07977/9777-0 www.HausbauHelden.de/hersteller/fertighaus-weiss

Stadthaus im Grünen
Mit dieser Stadtvilla realisierte eine fünfköpfige Familie ihr Traumhaus im Westerwald. In moderner Architektur, elegant und geradlinig, präsentiert sich das Kundenhaus Tendo. Innen ist neben einem großen Wohnbereich, Schlaf- und Kinderzimmern, sogar Platz für ein Gästezimmer sowie ein ruhiges Home-Office.
Fingerhut Haus, 57520 Neunkhausen, Tel. 02661/956420 www.HausbauHelden.de/hersteller/fingerhut
Foto: Fingerhut Haus/IMKINODAS

Foto: Fertighaus Weiss/Juergen Pollak Photographie & Film
Foto: Living Fertighaus
Foto: Fingerhaus/Katharina
Jaeger, fotografische Werkstatt
Urbanes Leben
Ob Restgrundstück, im Garten des Elternhauses oder auf dessen Dach: Auch ungewöhnliche Orte können ein großes Potenzial für den Bau des individuellen Wohntraums haben. Dieses zu finden, ermöglicht es auch im städtischen Umfeld die eigenen vier Wände zu realisieren. Das Bauen in der Stadt stellt Bauherren vor besondere Herausforderungen, bietet dafür aber einmalige Chancen.
„Was genau ist eigentlich ein Stadthaus?“
Diese scheinbar einfache Frage lässt sich gar nicht so leicht beantworten – der Begriff wird nämlich oft uneinheitlich definiert. Grundlegend handelt es sich bei einem Stadthaus aber um ein meist mehrstöckiges Wohngebäude im urbanen Raum, das vielfältige Formen annehmen kann: vom Reihenhaus, über eine Lückenbebauung bis zum kompakten Einfamilienhaus in städtischer Lage. Wer sich also den Traum von einem Stadthaus erfüllen möchte, dem stehen zahlreiche Varianten zur Auswahl. Was ihr wissen wollt:
Kurze Arbeitswege, eine gut erreichbare Kita und ein vielfältiges Freizeitangebot gehören zu den Vorzügen des urbanen Lebens. Kein Wunder, dass es viele Menschen in die Städte zieht. Eine große Herausforderung unserer Zeit ist jedoch, das Bauen in der Stadt bezahlbar zu machen, denn vor allem in Ballungsgebieten sind Baugrundstücke rar und daher oft sehr teuer. Wer weder über sehr viel Geld, noch gute Verbindungen verfügt, benötigt also Fantasie, Offenheit für Unkonventionelles und häufig auch viel Kompromissbereitschaft. Dabei gilt ind er Regel: Je urbaner und dichter die Nachbarschaft bebaut ist, desto anspruchsvoller die Planungs- und Bauaufgabe. Während man im sogenannten Speckgürtel von Städten häufig noch den Traum
Bauplatz-Potenziale erkennen
Individuell planen
Profi-Unterstützung nutzen
vom frei stehenden Einfamilienhaus verwirklichen kann, zum Beispiel indem man ein auf dem Grundstück befindliches altes Haus durch sein neues ersetzt, ist dieses Vorhaben im innerstädtischen Bereich fast nie realisierbar. Nicht nur die Grundstückspreise sprechen dagegen – auch baurechtlich sind frei stehende Einfamilienhäuser dort meist nicht vorgesehen. Doch auch hier gibt es Möglichkeiten wie zum Beispiel
• die Lückenbebauung zwischen bestehenden Gebäuden
• das Bauen in zweiter Reihe
• die Aufstockung von Bestandsgebäuden
Mut zur Lücke
Häufiger zu fnden sind im städtischen Umfeld schmale Grundstücke zwischen bestehenden
Der Architekt Oliver Engelhardt baute sein ökologisches Holzhaus auf einem innerstädtischen Grundstück mit nur 113 Quadratmetern Größe. Trotz strenger Auflagen im historischen Stadtkern entstand ein Wohnhaus mit viel Privatsphäre und großer Wohnqualität. www.baufritz.com

Gebäuden, auf denen vielleicht nur Garagen stehen oder ältere, kleine Häuser, die niemand mehr sanieren möchte. Diese Grundstücke können große Potenziale haben und sollten näher betrachtet werden. Es gibt in fast allen Bundesländern Online-Geoportale, wo man nachsehen kann, wie das betreffende Grundstück geschnitten ist (z.B. www.gutachterausschuesse-bw.de/borisbw oder www.atlas.bayern.de). Um den Besitzer eines Grundstückes zu ermitteln, fragt man am besten in der Nachbarschaft herum. Das Gundbuchamt gibt nur bei „berechtigtem Interesse“ Auskunft – einen Versuch ist es aber wert.
Poleposition in der zweiten Reihe
Viele ältere Häuser stehen auf sehr großen Grundstücken. Hier kann
sich die Möglichkeit ergeben, in zweiter Reihe noch ein weiteres Haus zu bauen. Sollten Eltern oder Großeltern über eine solche Immobilie verfügen, lohnt es sich, beim Baurechtsamt deswegen nachzufragen.
Auf Alt mach Neu
Eine weitere Möglichkeit, mehr Wohnraum in der Stadt zu schaffen, liegt in der Höhe: Laut Studien, bieten sich durch die Aufstockung bestehender Gebäuden in Deutschland enorme Potenziale, innerstädtisch neuen, günstigen und nachhaltigen Wohnraum zu schaffen: Die Erschließung mit Straßen und der Energieversorgung ist hier bereits vorhanden und es muss kein zusätzlicher Boden versiegelt werden. Aufstockungen sind
planerisch und bautechnisch zwar anspruchsvoll, aber in der Regel keine Raketentechnologie: Wenn der Statiker bescheinigt, dass die Tragfähigkeit des Bestandgebäudes für die Ergänzung von ein oder zwei weiteren Geschossen ausreicht und baurechtlich nichts dagegen spricht, kann man im Prinzip loslegen. Aufwendig kann die Genehmigungsphase werden, wenn das Gebäude, das aufgestockt werden soll, andere Besitzer hat, oder gar mehrere –also eine sogenannte Eigentümergemeinschaft ist. Hier braucht man in der Regel einen langen Atem, um alle von dem Vorhaben zu überzeugen, ihr Dach als Bauplatz zur Verfügung zu stellen. Wirtschaftliche Aspekte können helfen: Wenn ein hochgedämmtes Penthouse in Holzfertigbauweise
Foto: Baufritz

Was ihr wissen wollt:
„WiefindeicheinBaugrundstück in der Stadt?“
Die Suche nach einem bebaubaren
Grundstück in städtischer oder stadtnaher Lage ist herausfordernd. Um dabei erfolgreich zu sein, lohnt es sich auch kleinere, untypisch geschnittene oder mit alten Gebäuden bebaute Grundstücke in Betracht zu ziehen. Solche Immobilien sind für Investoren häufig uninteressanter. Somit fällt ein großer Teil der preistreibenden Konkurrenz weg. Sprich Nachbarn, Freunde, Arbeitskollegen und Verwandte auf dein Vorhaben an – Mund-zu-Mund-Propaganda hilft häufig bei der Grundstückssuche. Auch Inserate in der lokalen Presse oder Aushänge in der gewünschten Nachbarschaft können helfen.

Wenn das Grundstück schmal ist, muss das Haus höher werden. So wie dieses individuell geplante Holzfertighaus: auf einem Fertigkeller, der in den Hang geschoben wurde, bietet es unter einem Flachdach auf zwei Vollgeschossen viel Wohnraum mit individueller Note und modernem Komfort www.fertighaus-weiss.de
das alte Dach ersetzt, profitieren alle Hausbewohner von geringeren Heizkosten. Auch die Ertüchtigung der häuslichen Erschließung, zum Beispiel durch einen Aufzug, erhöht den Komfort für alle Nachbarn im Haus.
Fantasie und Kompromiss
Bauen im urbanen Umfeld, auf einem ungewöhnlichen oder kleinen Grundstück erfordert von Bauherren also eine intensive Auseinandersetzung mit den individuellen Gegebenheiten vor Ort. Hilfreich ist es, sich von Anfang an kompentente Bauprofis zu suchen, die dich unterstützen, denn das Bauen im urbanen Bestand stellt nicht nur Bauherren sondern auch Architekten und Baufirmen häufig vor große Herausforderungen. Um trotzdem zum gewünschten Ziel zu kommen,
braucht man Profis als Baupartner, die helfen, kreative und manchmal auch unkonventionelle Lösungen zu finden.
Wer im urbanen Raum, oder gar historisch geprägten Nachbarschaften bauen möchte, muss damit rechnen, dass es Vorschriften zum Denkmal- und Ensembleschutz gibt. Neue Gebäude oder Gebäudeteile müssen dann so gestaltet werden, dass sie sich optisch in geschützte Straßenzüge, einen Platz oder ein Stadtviertel einfügen. Es empfiehlt sich frühzeitig Kontakt mit der zuständigen Behörde aufzunehmen, um die Möglichkeiten zu erörtern.
Wer plant, auf einem sehr kleinen Grundstück zu bauen, sollte auch daran denken, dass die für den Hausbau nötigen Materialien und
Fotos: Fertighaus Weiss
Maschinen, das Gerüst oder die Bau-Toilette in der Regel auf dem Baugrundstück untergebracht werden müssen. Ist das zu klein dafür, kann man eventuell auch –gegen Gebühren – auf öffentliche Straßen und Wege ausweichen. Wichtig ist auch beim Bauen in der Stadt eine Baugrunduntersuchung um zuverlässige Informationen zu Tragfähigkeit, Gründungsaufwand und eventuelle (teuer zu entsorgende) Altlasten zu erhalten.
Schneller bauen ist besser Bei diesen anspruchsvollen Rahmenbedingungen beim Bauen im städtischen Umfeld kann der Holzfertigbau besonders punkten: Neben Vorteilen wie Termin und Kostensicherheit zeichnet sich die Bauweise durch eine extrem kurze Bauphase vor Ort aus. Denn im Gegensatz konventionell erstellten Gebäuden, bei denen allein der Rohbau Monate dauert, werden die

Wo bis vor ein paar Jahren noch eine alte Kneipe stand, hat sich Familie Kürsten ihren Traum vom Eigenheim erfüllt. Rund 170 Quadratmeter Wohnfläche bauten sie zwischen zwei Mehrfamilienhäuserm auf der nur sieben Meter breiten Baulücke. www.baufritz.com
Hauselemente beim Fertigbau maßgenau im Werk vorgefertigt und können auf der Baustelle binnen weniger Tage montiert werden. Kombiniert mit einer In-Time-Logistik, bei der alle Bauteile genau

dann angeliefert werden, wenn sie benötigt werden, wird die Belastung der Nachbarschaft durch die Baustelle auf ein Minimum reduziert und sorgt so für einen guten Start am neuen Wohnort. • sg/ab

Wenn die Familie wächst, kann es schnell eng werden. Familie Berweiler löste ihr Wohnraumproblem durch eine Aufstockung. Die zusätzliche Etage bietet heute auf rund 44 Quadratmetern Platz für Küche, Essplatz und Wohnzimmer plus Dachterrasse. In der „alten Wohnung“ ist heute entsprechend mehr Platz für die Individualräume. Das neue Geschoss ist ein „Flying Space“-Modul, wurde fix und fertig angeliefert und in wenigen Stunden auf das Bestandsdach aufgesetzt. www.schwoererhaus.de
Foto:
Baufritz

Der Bungalow erlebt eine Renaissance. Zu Recht, bietet er doch aufgrund der Anordnung aller Wohnräume auf einer Ebene ein Maximum an Wohnkomfort. Die Vorteile des schwellenarmen Alltags erkennen inzwischen auch immer mehr junge Bauherren und entscheiden sich ganz bewusst für diesen Haustyp. In puncto Gestaltung zeigt er sich vielfältig: von klassisch mit Walmdach bis zum modernen Flachdachbungalow, sind die Entwürfe so individuell wie die Wünsche ihrer Bauherren.

Astrid Barsuhn, Chef-Redakteurin:

Clever und komfortabel
Fotos: Schwörer Haus/D. Göckeritz
Bereit für die Zukunft

Angekommen – das ist das Gefühl, mit dem Ina und Uwe Jakoby ihr neues Zuhause verbinden. Vorausschauend hatten sie sich im Neubaugebiet ihres Ortes im Hunsrück ein gutgelegenes Grundstück mit herrlicher Aussicht gesichert. Ihr neues Haus sollte schlüsselfertig, in Holzständerbauweise entstehen – wegen der hervorragenden Dämmeigenschaften, der Wohngesundheit und aus Umweltgründen. Orientiert am MusterhausBungalow, der am Schwörer-Firmensitz in Hohenstein-Oberstetten steht, entstand ihr persönlicher Haus-
entwurf. Im Inneren zeigt sich der Bungalow als klug geplanter Lebensraum rund um die mittig platzierte Treppe in den Spitzboden, die den Grundriss gliedert. Herzstück ist die offene Küche mit großer Kücheninsel und angegliedertem Essplatz, große Fensterflächen holen die Natur ins Haus. Die Räume sind höher als üblich, Türen und Durchgänge bewusst breiter – barrierearm und damit zukunftssicher.

DATEN & FAKTEN HAUS JAKOBY
Schwörer Haus
Hans-Schwörer-Str. 8 72531 Hohenstein Tel. 07387/16-111 www.schwoererhaus.de
Konstruktion + Technik:
Holztafelbauweise, 32 cm Wandstärke, 24 cm mineralische Dämmung, Putzfassade, U-Wert Wand 0,149 W/m²K, dreifachverglaste Kunststofffenster, Ug-Wert 0,6 W/m²K, Walmdach, 26 Grad geneigt, U-Wert Dach 0,146 W/m²K, Frischluftheizung, kontrollierte Lüftung mit Wärmerückgewinnung, Trinkwasserwärmepumpe, Photovoltaik-Anlage
Wohnfläche: EG 121 m2

Weitere Entwürfe von und Informationen über Schwörer Haus findest du auf www.HausbauHelden.de oder über diesen QR-Code.
Ein Sitzfenster ergänzt den Essplatz und schafft hier eine besondere Verbindung in den Garten.
Maßgefertigte Möbel aus der SchwörerDesignschreinerei für Bad, Schlafzimmer und Garderobe prägen das Hausinnere.


DATEN & FAKTEN „VISION 154“
Danwood S.A.
Justus-Liebig-Str. 7 12489 Berlin Tel. 030/67823980 www.danwoodvision.de
Konstruktion + Technik:
Baureihe VISION by Danwood, Holztafelbauweise, U-Wert Außenwand 0,12 W/m2K, Satteldach Neigung 35 Grad, Aluminiumfenster, PhotovoltaikAnlage mit Batteriespeicher, Effizienzhaus 40 Plus
Wohnfläche:
EG 145 m2

Weitere Entwürfe von und Informationen über VISION by Danwood findest du auf www.HausbauHelden.de oder über diesen QR-Code.
Das Haus aus der Luxusserie
„Vision“ bietet mit seinen 2,50 Metern hohen Glasfassaden aus Aluminiumfenstern und drei Metern Raumhöhe ein ansprechendes minimalistisches Design. Die klassische Form mit dem überstandslosen Satteldach fügt sich in jede Umgebung ein. Beim „Vision 154“ harmonieren Exterieur und Interieur perfekt: Große weiße bezie-

Natur + Design
hungsweise helle Flächen im Inneren bilden einen schönen Kontrast zu dunklen Möbeln. Die Außenwand des Schlafzimmers ist voll verglast und bietet uneingeschränkten Blick aufs Wasser. Technisch ist das Haus auf modernstem Stand mit Wärmepumpe, Fußbodenheizung und Kühlfunktion sowie zentraler Wohnraumlüftung mit Wärmerückgewinnung.

ERDGESCHOSS
Von der Küche aus, vom Esstisch und vom Wohnbereich bietet sich ein herrlicher Blick auf ein besonderes Stück Natur.
Fotos:
Danwood

Kubus am Hang
Dieses Bungalow-Kundenhaus verfügt über eine fast quadratische Grundfläche. Alle wesentlichen Wohnräume sind auf der oberen Ebene nutzbar. Das Raumprogramm ist durch eine Kombination aus fließenden Übergängen und geschlossenen Bereichen gekennzeichnet. Die Hanglage ermöglichte es im Untergeschoss eine Einliegerwohnung zu integrieren.
Bittermann & Weiss Holzhaus, 97950 Gerchsheim, Tel. 09344/9209-0 www.HausbauHelden.de/hersteller/bittermann-weiss

Beste Aussichten
Das „Haus Ohlsbach“ liegt auf einem Betonsockel auf und kragt auf filigranen Stahlstützen schwebend, mit vorgelagertem Balkon über den Abhang aus. Ein asymmetrisches Satteldach und die plastische Ortgangverkleidung aus vertikalen Weißtannenlamellen charakterisieren das Domizil. Mit geschickter Planung konnte es exakt auf die fünfköpfige Baufamilie zugeschnitten werden.
Schwarzwälder Haus, 78112 St. Georgen, Tel. 07724/58002-30 www.HausbauHelden.de/hersteller/schwarzwaelder-haus
Auf Augenhöhe mit der Natur
Vielzählige großformatige Fenster machen in diesem Bungalow die umliegende Natur erlebbar. Reichlich Platz bietet hierfür auch die durch eine Überdachung vor Wetterkapriolen geschützte Terrasse mit Außenküche und Außensauna. Im Innern bieten großzügige 152 Quadratmeter Raum zur persönlichen Entfaltung. Etwa 20 m2 davon wurden für die Einrichtung eines großen Gästetrakts mit eigenem Bad genutzt.
Griffnerhaus GmbH, 9112 Griffen, Österreich, Tel. 0043/4233/22370 www.HausbauHelden.de/hersteller/griffner-haus

Mit Blick in die Zukunft
Basis dieses Bungalows für alle Lebenslagen war die Baureihe „myLife“. Die warme Außenfarbe in Verbindung mit der honigfarbenen Holzfassade wurde bewusst gewählt, um den puren Bauhausstil-Look aufzubrechen. Herzstück des Bungalows ist ein offen angelegter Wohn-, Ess- und Kochbereich mit angrenzender großen Terrasse.
Weberhaus, 77866 Rheinau, Tel. 07853/83-830 www.HausbauHelden.de/hersteller/weberhaus

Foto: Weberhaus
Foto: Griffnerhaus
Foto: René Lamb Fotodesign GmbH

Perfekt integriert
Bei dem Bungalow „Familie Be“ wurde die Hanglage durch den Bau eines geräumigen Kellers und die Ausrichtung des Eingangs mit Garderobe clever integriert. Große Fenster öffnen den Blick ins Grüne, während der weitläufige Wohn- und Essbereich das Herzstück des Domizils bildet. Eine Verbindung aus Holz und Putz prägen seine Anmutung nach außen.
Genböck Haus, 4680 Haag/Hausruck, Österrreich, Tel. 0043/7732/36510 www.HausbauHelden.de/hersteller/genboeck-haus

Tiny eben
Im Firmenwerk des Herstellers wurde das „Flying-Space“ vorgefertigt und per Tieflader schlüsselfertig an den Standort geliefert. Dort konnte es mit einem Kran innerhalb weniger Stunden aufgestellt werden. Das fertige TinyHouse inklusive überdachter Terrasse verfügt auch über einen separaten Carport mit Lade- und Müllstation.
Schwörer Haus, 72531 Hohenstein/Oberstetten, Tel. 07387/16-0 www.HausbauHelden.de/hersteller/schwoererhaus
Design & Komfort
Auf ansehnlichen 218 Quadratmetern Wohnfläche erfüllte sich die Baufamilie des Bungalows „Vision 220“ ihren Wohntraum. Nach außen präsentiert sich das Haus mit einer modernen kubischen Architektur und minimalistischem Design. Im Innenraum wurden trotz der großen Flächen die Räume clever angeordnet, um kurze Laufwege zwischen den Funktionsbereichen zu schaffen.
Dan-Wood House, 12489 Berlin, Tel. 03067/8239-80
www.HausbauHelden.de/hersteller/danwood-house

Oase ohne Barrieren
„Haus Breinbauer“ ist barrierearm, altersgerecht und dazu noch ökologisch. Der kompakte Bungalow bietet auf nur 130 Quadratmeter Fläche dank einer durchdachten Grundrissplanung reichlich Platz. Eine Photovoltaik-Anlage auf dem Satteldach versorgt das Haus in Kombination mit einem Batteriespeicher mit Strom, unter anderem für die Luft-Wasser-Wärmepumpe.
Regnauer Hausbau, 83358 Seebruck, Tel. 08667/72-222 www.HausbauHelden.de/hersteller/regnauer

Foto:
Schwörer Haus/D. Göckeritz
Foto: Lisa Seifriedsberger
Komfortabel eben
Altersgerecht
Barrierearm
Vielseitig
Der Bungalow feiert ein Comeback – und das völlig zu Recht. Immer mehr Bauinteressierte wünschen sich ein Haus, das Komfort, Nachhaltigkeit und Design vereint. Besonders in Kombination mit moderner Holzfertigbauweise bietet der Bungalow zahlreiche Vorteile: kurze Wege, wohngesunde Materialien, schnelle Bauzeiten und architektonische Freiheit. Doch der Haustyp hat auch seine planerischen Besonderheiten – und einige Punkte, die man kennen sollte.

Ein maßgeschneiderter Altersruhesitz ist das Haus Schossig. Der Winkelbungalow bietet auf der einen Seite einen offenen Wohn-, Ess,- Küchenbereich, auf der anderen ein großes Schlafzimmer mit angeschlossenem Bad und Ankleide. www.baufritz.com

Was ist eigentlich ein Bungalow? Der Haustyp wird oft nicht einheitlich definiert. Die aus dem Hindi stammende Bezeichnung Bungalow (bangal) bedeutet „Landhaus“. Im europäischen Raum ist damit ein eingeschossiges Wohnhaus gemeint. Obwohl die Dachformen variieren und vielfältige Gestaltungsmöglichkeiten bestehen, werden Bungalows zumeist mit einem Flachdach in Verbindung gebracht.
Vorteile des Bungalows
Das einstige Statussymbol der 60er und 70er hat jedoch außer schicker Optik weitaus mehr zu bieten:
• Mit Barrierefreiheit und somit der Möglichkeit, bis ins hohe Alter autonom wohnen zu können.
• Mit der unmittelbaren Nähe zur Natur. Besonders im Sommer


Das Musterhaus „Next 115“ steht im Bauzentrum Poing bei München. Der Bungalow besteht aus Modulen und kann daher in nur drei Wochen schlüsselfertig erstellt werden. Das Atrium versorgt das Zentrum des Hauses mit viel Tageslicht und bietet Platz für einen geschützten Freisitz. www.danwood.de
verschmelzen Innen- und Außenbereich zu einer großen Einheit.
• Mit einem hohen Gestaltungspotenzial bezüglich Grundriss, Dach und Raumkonzept.
Wohnkomfort auf einer Ebene Komfort ist ein beliebtes Schlagwort, wenn der Bau eines Bungalows erwogen wird. Immerhin ist es in allen Lebensabschnitten bequemer, im Alltag wenigerim Idealfall keine - Treppen zu erklimmen. Ob Kleinkind oder Senior: Treppen sind immer anstrengend und bergen Unfallrisiken. Bungalows bieten beste Voraussetzungen für einen barrierefreien Alltag. Speziell für betagtere Bauherren ist die Wohnform auf einer einzigen Ebene von Interesse, weil es sich hier auch trotz eventueller
Was ihr wissen wollt:
„Kann man überall einen Bungalow bauen?“
Was auf welchem Baugrundstück gebaut werden darf, steht in der Regel im Bebauungsplan. Es gibt Nachbarschaften mit sehr strikten Vorschriften, und solche, bei denen man als Bauherr mehr Freiheiten hat. Häufig werden zum Beispiel maximale Traufhöhen angegeben – dann kann man natürlich niedriger bauen. Wichtig ist, ob die bebaubare Fläche auf dem jeweiligen Grundstück für einen Bungalow ausreicht. Am besten direkt beim zuständigen Bauamt nachfragen, ob der gewünschte Bungalow genehmigungsfähig ist.
Foto: Danwood
Was ihr wissen wollt:
„Sind Bungalows teurer als mehrgeschossige Häuser?“
Es ist schwer dazu eine allgemeingültge Antwort zu geben, weil die Kosten für ein Haus zum einen regional sehr unterschiedlich sind und stark von der gewählten Ausstattung abhängen. Weil bei einem Bungalow die Wohnräume nicht übereinander, sondern nebeneinander angeordnet werden, benötigt man für diesen Haustyp vergleichsweise mehr bebaubare Grundstücksfläche. Das kann, je nach dem wo man bauen möchte, ein starker Kostentreiber sein. Die größere Grundfläche eines Bungalows führt auch zur Vergrößerung von Bauteilen wie Bodenplatte (oder Keller) und Dach.
künftiger gesundheitlicher Einschränkungen länger selbstständig in den eigenen vier Wänden leben lässt.
Grundriss-Besonderheiten
Um das Wohnen auf einer Ebene so komfortabel wie möglich zu machen, sind gut durchdachte Grundrisse wichtig. Das garantiert auch im ebenerdigen Haus kurze Wege und eine gute Zonierung des Grundrisses in belebtere Gemeinschaftsbereiche und ruhebedürftigere Privaträume. Eine clevere Planung reduziert auch den Grundstücksbedarf und die meist nicht unerheblichen Kosten für Bauland.
Bungalow-Formen Wichtig beim Bauen auf einer Ebene, ist neben der guten Organisation der Nutzungsbereiche auch eine ausreichende Versorgung mit Tageslicht im ganzen Haus. Deswegen sollte ein Bungalow-Grundriss nicht zu tief werden, damit es im Zentrum des Hauses nicht zu dunkel wird. Im Laufe der Zeit haben sich folgende

Bungalow-Typen etabliert:
• Rechteckige Bungalows haben den Vorteil sehr kompakt zu sein. Die Kehrseite der Medaille ist, dass in der Mitte unter Umständen fensterlose und daher auch recht dunkle Bereiche entstehen. Dies kann man z.B. durch Versprünge im Dach und so entstehende Oberlichter lösen, durch Dachflächenfenster oder auch durch ein mittig angeordnetes Atrium, das als Lichthof fungiert.
• Der Winkelbungalow besteht aus zwei Gebäudeteilen in denen private Räume und Gemeinschaftsbereiche getrennt voneinander angeordnet werden (zumeist im rechten Winkel). Der Klassiker der BungalowArchitektur bietet in seinem Winkel bei entsprechender Ausrichtung des Gebäudes den perfekten Ort für eine geschützte und sehr private Terrasse, zu der sich die Wohnräume öffnen.
• Bungalow mit U-Grundriss. Bungalows, deren Grundriss ein „U“ beschreibt, bilden einen zentralen, geschützten Frei-
Ein individuell gestalteter Kunden-Bungalow aus der Reihe „Nivo“: Das rechteckige Flachdachhaus erhält durch eine eingezogene Terrasse und runde Fenster seinen coolen Charakter. www.fingerhaus.de

Foto: Fingerhaus


Der Winkelbungalow „Vintra“ bietet unter seinem klassischen Walmdach auf rund 170 Quadratmetern Wohnfläche Platz für bis zu fünf Personen. www.fingerhuthaus.de
bereich zwischen den vom Haupthaus abgehenden Gebäudeflügeln. Häufig werden in den Flügeln die Privaträume untergebracht – z.B. Elternschlafbereich auf der einen und der Kinderbereich auf der anderen Seite. So entsteht auch eine „akustische“ Trennung. Bei kompakteren U-Bungalows für Paare, lassen sich die Flügel natürlich flexibler nutzen.
Naturbezug zelebrieren
Wenn alle Wohnräume ebenerdig angeordnet sind, ergeben sich auch ganz neue Möglichkeiten, den Außenraum ins Wohnen mit einzubeziehen. Große, raumhohe Fenster zum Beispiel lassen auch kleinere Zimmer großzügiger erscheinen. Direkt anschließende Terrassen erweitern den Wohnraum bei freundlicher Witterung nach außen und ermöglichen so ein besonders naturverbundenes Wohnen. Dabei sollte man auch sein Bedürfnis nach Privatsphäre nicht außer Acht lassen:
Wer nicht das Glück hat, über ein uneinsehbares, parkähnliches Grundstück zu verfügen, sollte sich bei der Planung eines Bungalows gut überlegen, wo große Fenster mit Aus- aber eben auch Einblicken sinnvoll sind. Eine abgestimmte Gartengestaltung, kann auch auf kleineren Grundstücken viel zur Privatheit beitragen. Alle Wohnräume, Fenster und Türen zu ebener Erde bedeutet auch, dass ungebetene Gäste sich eingeladen fühlen könnten. Ein solider mechanischer Einbruchschutz mit dem Mindeststandard RC2 ist hier ein Muss. Für zusätzliche Sicherheit sorgen eine gute Außenbeleuchtung, eventuell verbunden mit Bewegungsmeldern.
Barrierefreiheit
Wer seinen Bungalow richtig alterssicher machen will, sollte auf eine barrierearme Ausführung achten. Dazu gehören Maßnahmen, die gerade beim Neubau günstig umzusetzen sind. Wichtig
für den sicheren Alltag ist es Stolperfallen, wie Schwellen an Haus- und Terrassentüren zu minimieren. Wer seine Türen mit mindestens 90 Zentimeter lichtem Durchgangsmaß plant, kann sicher sein, später auch mit Rollator oder Rollstuhl hindurchzukommen. Eine ebenerdige Dusche und ausreichend Bewegungsfläche sorgen dafür, dass auch das Badezimmer zukunftsgerecht ist.
Fertighaus-Bungalows
Sich seinen Bungalow in Holzfertigbauweise erstellen zu lassen, sorgt dafür, dass das Haus auch in puncto Nachhaltigkeit zukunftsfähig ist:
Die überdurchschnittliche energetische Qualität der Gebäudehülle sorgt in Kombination mit modernster Haustechnik für höchsten Komfort bei minimalen Energiekosten. Und auch in Bezug auf die Gestaltung hast du maximale Freiheiten, denn dein Bungalow kann ganz individuell geplant werden, bei hoher Kostentrasparenz und Terminsicherheit. • ab
Foto: Fingerhut Haus
Wir bauen unser Traumhaus!
Fertig- und Massivhäuser
Vergleich von Hausherstellern Inspiration fürs eigene Haus
Musterhaus-Ausstellungen bieten den besten Überblick über Architektur- und Techniktrends für das neue Zuhause. Insgesamt 18 dieser Musterhausparks gibt es in Deutschland.

Wenn der Entschluss, sein eigenes Haus zu bauen, erst einmal gefasst ist, beginnt die eigentliche Arbeit: Wo bekommen wir ein Grundstück, wie soll das Haus aussehen? Ein Bungalow oder lieber klassisch über 1,5 Etagen? Welche Dachform darf ich bauen und möchte ich haben? Brauchen wir einen Keller? Soll die Küche offen oder in sich geschlossen sein? Wollen wir schlüsselfertig bauen oder doch einen Teil der Arbeiten selbst durchführen? Wie wird die Finanzierung aussehen, welche Förderungen kann ich für
mich nutzen, welche Voraussetzungen gibt es hierbei zu beachten? Diese und noch viele weitere bilden den Auftakt in eines der größten Abenteuer im Leben, an deren Ende das glückliche Gefühl steht, sein eigenes Zuhause geschaffen zu haben.
Fragen über Fragen – und nun?
Bei diesen ganzen Fragen ist es gut, wenn man einen kompetenten Berater an seiner Seite hat, der einem von der Planung über die Grundstückssuche bis zur finalen Übergabe des Hauses mit Rat und

Tat und Unterstützung zur Seite steht.
Klingt zu schön, um wahr zu sein? Dann kommt hier die gute Nachricht: ist es aber nicht! In den Musterhaus-Ausstellungen der Eigenheim & Garten in Fellbach, Bad Vilbel und im Bauzentrum Poing finden Sie neben Ihrem Traumhaus auch den für Sie richtigen, vertrauenswürdigen und langjährigen Partner, der Sie durch die Bauphase und die Bemusterung Ihres Traumhauses hindurch begleitet.
Hilfe in den MusterhausAusstellungen
Unsere Musterhaus-Ausstellungen bieten zweierlei: Inspiration und Unterstützung. Wie das geht ist ganz einfach: Starten Sie Ihren Besuch in unseren Ausstellungen und lassen Sie sich von unseren voll ausgestatteten Musterhäusern inspirieren. Nehmen Sie sich die Zeit und erkunden Sie die Häuser ausgiebig. Stellen Sie Fragen über
Die Luftaufnahme vom Bauzentrum Poing in der Nähe von München zeigt anschaulich die Größe des Geländes und die zahlreichen Musterhäuser. Sich alle an einem Tag anzuschauen, ist kaum möglich. Deshalb ein Tipp: Vor dem Besuch eine Auswahl treffen und sich die Häuser vorab unter www.bauzentrum-poing.de online ansehen.
Immer auf dem Laufenden – mit den Ausstellungen Eigenheim
Das klassische Einfamilienhaus bekommt Gesellschaft: Modul- und Mikrohäuser als neue Wohnformen bedienen den Trend des kompakten Wohnens und gewinnen zunehmend an Bedeutung. Hierbei handelt es sich nicht um den reinen Wunsch nach Minimalismus, sondern viel mehr wächst hier eine neue Form des Lebensphasen-Wohnens heran.
In unseren Ausstellungen finden Sie schon heute eine Auswahl an Modulhäusern, die – je nach Lebensmodell – erweitert werden können. Dank industriell vorgefertigter Wohnelemente können je nach Bedarf ganze Räume angebaut werden.
Mikrohäuser bieten auf bis zu 100 Quadratmeter alles, was ein vollwertiges Zuhause ausmacht:
& Garten
Küche, Bad, Schlafzimmer und Wohn-/ Essbereich.
Bei beiden Wohnformen werden beim Thema Wohnkomfort keine Abstriche gemacht: Isolierungen, Heizung, zum Teil sogar Klimaanlagen sind inbegriffen, auch Solar- und Photovoltaik-Anlagen sind einfach zu integrieren.
Selbstverständlich finden Sie bei uns auch immer wieder neue Musterhäuser, sodass Sie in unseren Ausstellungen immer ein umfassendes Bild der Möglichkeiten des Fertigbaus vorfinden.
Schauen Sie einfach in unseren Ausstellungen in Poing, Bad Vilbel und Fellbach vorbei, entdecken Sie unsere Vielfalt an Einfamilien-, Modul- und Mikrohäusern und lassen Sie sich von deren Vielseitigkeit überraschen!
Wir waren schon in vielen der deutschen Musterhausparks und haben tolle Ausstellungsrundgänge gedreht! Die Videos gibt‘s unter www.youtube.com/ HausbauHelden oder direkt über diesen QR-Code.

Ausstattungsmerkmale, Bodenbeläge, Sanitäreinrichtungen, Ihre eigenen Wünsche und Vorstellungen, kommen Sie mit unseren kompetenten Fachberatern ins Gespräch. Schnell werden Sie bei „Ihrem“ persönlichen Haus-Partner landen und die Detailplanung für Ihr Traumhaus in Angriff nehmen.
Klarer Vorteil: Ein Ansprechpartner für Alles Dies ist der Vorteil bei unseren Herstellern: Sie haben einen Ansprechpartner, der für Sie und in Absprache mit Ihnen die einzelnen Gewerke der Baustelle regelt. Zudem garantiert Ihnen ein im Vorfeld fixierter Preis, dass keine zusätzlichen Kosten Ihre Finanzierung beeinflussen. Auch für diesen Part des Hausbaus haben viele Hersteller Partner zur Seite stehen, die Ihnen die bestmögliche Finanzierung errechnen und sich um Fördermittelanträge kümmern. Übrigens: Auch bei der Grundstückssuche kann Ihnen Ihr Partner behilflich sein, fragen Sie gerne nach!
VIDEO-TIPP
1 DER UNGER-PARK WERDER
18 Häuser von 17 Herstellern 14542 Werder
An den Hainbuchen www.unger-park.de
2 UNGER-PARK DRESDEN
15 Häuser von 14 Herstellern
01458 Ottendorf-Okrilla Zur Kuhbrücke 11 www.unger-park.de
3 UNGER-PARK CHEMNITZ
7 Häuser von 7 Herstellern 09114 Chemnitz
Donauwörther Straße 5 www.unger-park.de
4 UNGER-PARK LEIPZIG
21 Häuser von 19 Herstellern 04435 Schkeuditz-Dölzig Döbichauer Straße 13 www.unger-park.de
5 FERTIGHAUSWELT HANNOVER
19 Häuser von 15 Herstellern 30855 Hannover-Langenhagen Münchner Straße 25 www.fertighauswelt-hannover.de
6 FERTIGHAUSWELT WUPPERTAL
17 Häuser von 17 Herstellern 42297 Wuppertal- Oberbarmen Schmiedestraße 59 www.fertighauswelt-wuppertal.de
7 FERTIGHAUSWELT KÖLN
24 Häuser von 24 Herstellern 50226 Frechen, Europaallee 45 www.fertighauswelt-koeln.de
8 MUSTERHAUSZENTRUM MÜLHEIM-KÄRLICH
25 Häuser von 25 Herstellern 56218 Mülheim-Kärlich Musterhausstraße 123 www.musterhauszentrum-mk.de
9 AUSSTELLUNG E & G BAD VILBEL
65 Häuser von 40 Herstellern 61118 Bad Vilbel (bei Frankfurt)
Ludwig-Erhard-Straße 70 www.musterhaus-online.de
Hier finden Sie Ihr Haus
Hier finden Sie die aktuellen Musterhaus-Ausstellungen in Ihrer Nähe. Bei manchen Ausstellungen muss man Eintritt bezahlen: Rechnen Sie mit 2 bis 5 Euro pro Person.
In der Regel sind die Ausstellungen montags und dienstags geschlossen.
12 FERTIGHAUSWELT NÜRNBERG
19 Häuser von 19 Herstellern
91093 Nürnberg, Gemeinde Heßdorf Im Gewerbepark 30 www.fertighauswelt-nuernberg.de
13 AUSSTELLUNG EIGENHEIM & GARTEN FELLBACH
55 Häuser von 48 Herstellern
70736 Fellbach bei Stuttgart Höhenstraße 21 www.musterhaus-online.de
14 BAUZENTRUM POING
Betreiber: Eigenheim & Garten
60 Häuser von 50 Herstellern
85586 Poing (b. München) Senator-Gerauer-Straße 25 www.bauzentrum-poing.de
15 FERTIGHAUSWELT GÜNZBURG
20 Häuser von 20 Herstellern 89312 Günzburg, Kimmerle-Ring 2 www.fertighauswelt-guenzburg.de
16 HAUSBAU-CENTER ULM
11 Häuser von 11 Herstellern
89073 Ulm, Messegelände Böfinger Straße 60/14 www.ulmer-hausbaucenter.de
17 HAUSBAUPARK SCHWENNINGEN
15 Häuser von 15 Herstellern
10 UNGER-PARK ERFURT
11 Häuser von 11 Herstellern
99098 Erfurt
Bei den Froschäckern 17-43 www.unger-park.de/erfurt
11 DEUTSCHES FERTIGHAUS CENTER
32 Häuser von 31 Herstellern 68163 Mannheim, Maimarktgelände Xaver-Fuhr-Straße 101 www.deutsches-fertighaus-center.de
78056 Villingen-Schwenningen Messegelände www.hausbaupark.de
18 FERTIGHAUSWELT SCHWARZWALD
14 Häuser von 14 Herstellern FertighausWelt 1 77966 Kappel-Grafenhausen www.fertighauswelt-schwarzwald.de
19 HOME EXPO
6 Häuser von 6 Herstellern
CH-5034 Suhr, Bernstraße Ost 46 www.home-expo.ch
Keller oder Bodenplatte?
Jeder, der ein neues Haus bauen möchte, muss diese Frage für sich beantworten: Soll das neue Heim nur auf einer Bodenplatte errichtet oder unterkellert werden? Hier die wichtigsten Infos für die persönlich perfekte Beantwortung.
Baugrundgutachten
Vorteile Bodenplatte
Raumgewinn Keller

Der Hausbau ist eine individuelle Angelegenheit, aber eine Frage müssen sich alle Bauhherren stellen, nämlich: ob sie mit oder ohne Keller bauen möchten. Auf diese Frage gibt es keine allgemeingültige Antwort. Es geht jedoch um eine weitreichende Entscheidung, die später nicht mehr revidiert werden kann. Deswegen ist es so wichtig, in Ruhe die Vor- und Nachteile vom Bauen mit Keller oder Bodenplatte sorgfältig abzuwägen. Dabei spielen das Baugrundstück, die Beschaffenheit des Baugrundes und die persönlichen finanziellen Möglichkeiten wichtige Rollen.
Das spricht für die Bodenplatte Argumente für den Hausbau nur auf Bodenplatte können Zeit- und Kostenersparnis sein. Denn eine Bodenplatte ist eine wesentlich kleinere Baumaßnahme als ein
Bodenplatte
+ für jeden Untergrund geeignet
+ kostengünstig
– Abstellraum muss oberirdisch zu möglicherweise höheren
Kosten geschaffen werden
– Haustechnik kann im Haus Lärmbelästigungen verursachen
Teilkeller
+ schafft Platz für die Haustechnik
+ kostengünstiger als Vollkeller
+ bietet zusätzlichen Stau- und Abstellraum
– relativ hoher Quadratmeterpreis
– besondere statische Anforderungen
Keller, daher schneller fertig und preisgünstiger. Wer wenig Abstellfläche benötigt, oder auf barrierefreien Stauraum auf der Wohnebene angewiesen ist, der ist mit einer Bodenplatte unter Umständen ebenfalls besser beraten. Auch die Bodenverhältnisse wie z.B. felsiger Untergrund, belastete Böden oder ein hoher Grundwasserspiegel können für den Hausbau auf einer Bodenplatte sprechen. Denn anspruchsvolle Bodenverhältnisse machen den Kellerbau zwar nicht unmöglich, verteuern ihn aber in der Regel. Hier muss eine individuelle Wirtschaftlichkeitsberechnung gemacht werden.
Ein Muss: Baugrundgutachten
Weil die bautechnische Machbarkeit, der Aufwand und damit die Kosten für einen Keller- oder Bodenplattenbau maßgeblich von den Gegebenheiten auf dem
Vollkeller
+ schafft Platz für die Haustechnik
+ bietet zusätzlichen Stau- und Abstellraum
– nicht gedämmt und beheizt
Grundstück abhängen, ist es ratsam zuerst ein Baugrundgutachten erstellen zu lassen. Das ist nicht verpflichtend, bietet den Bauherren und entsprechenden Bauunternehmen aber alle wichtigen Informationen, die für die Gründung der passenden Bodenplatte oder des Kellers nötig sind.
Keller kann wirtschaftlicher sein Manchmal ist ein Keller sogar die wirtschaftlichere Lösung: zum Beispiel, wenn obere Bodenschichten eine schlechte Tragfähigkeit aufweisen und darum eine aufwendige Gründung nötig wird. Mit einem Keller lassen sich eventuell tragfähige tiefere Bodenschichten erreichen – und es entsteht dabei zusätzlicher nützlicher Raum. Denn der größte Vorteil eines Kellers ist der Raumgewinn. Die Vollunterkellerung eines durchschnittlichen
Wohnkeller
+ schafft Platz für zusätzlichen Wohnraum oder eine zusätzliche separate Wohnung, ideal am Hang
+ bietet zusätzlichen Stau- und Abstellraum
– höhere Kosten für Technik und Innenausbaustandard
– lichte Mindesthöhe und Fensterfläche nach Landesbauordnung (LBO)
– zusätzliche Dämmung nach Gebäudeenergiegesetz (GEG)
Was ihr wissen wollt:
„Welche Arten von Kellern gibt es?“
Prinzipiell gibt es drei verschiedene Möglichkeiten, einen Keller zu errichten: Stein auf Stein vor Ort gemauert, einen geschalten und auf der Baustelle mit Beton ausgegossenen Keller und einen Betonfertigteilkeller. Bei Letzterem werden die einzelnen Wände im Werk computergesteuert mit allen notwendigen Aussparungen vorgefertigt und per Tieflader auf die Baustelle gebracht. Hier muss dann zuvor nur die Bodenplatte und anschließend die sogenannte Filigrandecke mit Beton ausgegossen werden.
Was ihr wissen wollt:
„Was steht im Baugrundgutachten?“
Eine gründliche geologische Untersuchung des Baugrundes ist für jeden Bauherren unverzichtbar. Dabei werden genau dort, wo später das Haus stehen soll, von einem speziellen Baugrundgutachter Sondierungen ausgeführt. Diese erlauben es dem Experten, genaue Aussagen zur Tragfähigkeit, Bodenqualität sowie den Grundwasserverhältnissen auf dem Baugrundstück zu treffen. Diese fasst er im sogenannten Baugrundgutachten schriftlich zusammen. Das Baugrundgutachten ist deswegen so wichtig, weil seine Ergebnisse Statikern und Architekten – aber auch den Kellerbauern – als Basis für ihre Planungen und Berechnungen dienen. Auch deshalb sollte das Baugrundgutachten möglichst frühzeitig eingeholt werden. Durch das Baugrundgutachten stehen dem Planer alle wesentlichen Angaben für die korrekte Bemessung der Gründung des Gebäudes frühzeitig zur Verfügung. Aber auch der Erd- und der Kellerbauer benötigen die enthaltenen Angaben für das Angebot ihrer Leistungen und die spätere fachgerechte Ausführung. Und: Verzichtet man als Bauherr auf das Baugrundgutachten, gehen Haftungsrisiken bei eventuellen späteren Schäden auf einen über.
Einfamilienhauses bringt bis zu 40 Prozent mehr Nutzfläche im Vergleich zum selben Haus nur mit Bodenplatte. Dieser zusätzliche Raum kann – je nach Dämmstandard und Belichtungsmöglichkeiten – vielfältig genutzt werden: als zusätzlicher Wohnraum, Einliegerwohnung, für einen Hobbyraum oder als Arbeitszimmer. Aber auch die umfangreiche Haustechnik (Wärmepumpe, Batteriespeicher, Lüftungsanlage), Wäscheraum und Lager- und Vorratsraum sind im Keller gut untergebracht und nehmen so nicht in anderen Bereichen des Hauses Platz weg. Als Faustregel gilt: Ab einem Bedarf an Nebenräumen von etwa 45 Quadratmetern kann es wirtschaftlicher sein, diese in einem Untergeschoss unterzubringen als oberirdisch Wohnfläche zu opfern oder Ersatzflächen zu schaffen.
Für ein Haus mit Keller spricht auch der bessere Wiederverkaufswert, der meist höher ist als ohne Keller. Bei einem Grundstück in Hanglage empfiehlt es sich, einen Keller zu bauen, denn Aufwand und Kosten für das Anfüllen der Bodenplatte sind relativ hoch –
und die Kosten für einen Keller im Verhältnis dazu relativ günstig.
Alternative Teilkeller
Nicht immer ist es sinnvoll, das gesamte Haus zu unterkellern: Manchmal reichen ein paar Quadratmeter als Teilunterkellerung „unter Tage“, um zusätzlich Platz für die Haustechnik zu schaffen. Diese Art der Unterkellerung ist nicht unumstritten, da sie statisch unter Umständen recht aufwendig sein kann. Alternativ zu Teilkellermodulen bietet die Firma Knecht Fertigkeller eine sogenannte „Technikbox“, die neben der Bodenplatte des Hauses platziert wird, damit sie sich statisch nicht auf die Gründung des Hauses auswirkt, nur mit Außenzugang und nicht vom Haus aus zu erreichen. Hersteller Glatthaar bietet als Minilösung den sogenannten „Effektivkeller“ mit einer an die Grundfläche des Hauses angepassten Bodenplatte als praktischen Modulkeller an.
Wohnräume im Keller Ein Untergeschoss kann aber natürlich auch zu Wohnzwecken genutzt werden. Ein solcher
Heizung, Lüftung, Hausbatterie, Hausanschluss sowie Waschmaschine und Trockner benötigen Platz – und lassen sich perfekt im Untergeschoss unterbringen. www.glatthaar.com

Foto: Glatthaar Keller

Wohnkeller muss allerdings alle Kriterien der jeweils gültigen Landesbauordnungen (LBO) an Wohnräume erfüllen. Je nach Bundesland muss die lichte Raumhöhe mindestens 2,30 bis 2,50 Meter betragen, wenn der Keller dauerhaft als Wohnraum genutzt werden soll. Zu den Anforderungen an Wohnräume gehört auch eine ausreichend große Fensterfläche, denn Wohnräume müssen natürlich belichtet werden.
Je nach Bundesland muss die Fensterfläche mindestens 10 bis 12 Prozent der Fläche des Raumes betragen. Um Fenster in den Kellerwänden platzieren zu können und somit Tageslicht ins Untergeschoss zu bekommen, kann man sogenannte Lichthöfe bauen, also die Erde dort abgraben und die Böschung befestigen, wo Fenster geplant werden. Gut haben es Bauherren mit Hanggrundstück, denn hier ragt der Keller auf der Talseite aus dem Erdreich und eignet sich daher besonders gut für die Wohnnutzung. Eine gute Belüftung sowie eine Heizung sind ebenfalls Voraussetzung für einen
Lichthöfe bringen Tageslicht in Kellerräume und bieten die Möglichkeit Untergeschosswohnungen durch eine Terrasse zu ergänzen.
www.weberhaus.de
Gut belichtete Kellerräume lassen sich vielfältig nutzen, zum Beispiel als HomeOffice oder Einliegerwohnung wie beim Musterhaus in Poing. www.kampa.de
Wohnkeller. Letzteres bedeutet, dass dieser als beheizter Raum entsprechend des Gebäude-Energie-Gesetzes gedämmt und abgedichtet sein muss.
Richtig dicht
Keller müssen generell von außen gut gegen Feuchtigkeit aus dem Erdreich abgedichtet werden. Zum einen, um die Konstruktion zu schützen, zum anderen um die Kellerräume und deren Inhalt vor Feuchteschäden, muffigem Geruch und Schimmel zu bewahren. Die nötige Qualität der Abdichtung und damit auch der Kellerkosten hängt von der jeweiligen Baugrundbeschaffenheit ab. Bei gemauerten Kellern kommt oft eine Abdichtung aus Bitumen zum Einsatz. Solche Keller nennt man Schwarze Wanne. Sie eignen sich nur bei unproblematischen Bodenverhältnissen. Keller aus wasserundurchlässigem Beton (WU-Beton) werden Weiße Wanne genannt. Diese bietet in der Regel ohne zusätzliche Abdichtungsmaßnahmen ausreichend Schutz – und das auch bei hohem Grundwasserspiegel. • ab

Was ihr wissen wollt:
„Was kostet ein Keller?“
Die Kosten für Keller und Bodenplatte variieren regional sehr stark und richten sich unter anderem nach deren Größe, den Bodenverhältnissen auf dem Baugrundstück, Deponiekosten sowie der gewünschten Qualität. Wichtig beim Vergleich: Wer auf Bodenplatte baut, muss oberirdisch Abstellfläche sowie die Haustechnik schaffen – und auch diese kostet Geld. Orientierungswerte für einen einfachen, unbeheizten Keller werden mit 1 000 Euro pro Quadratmeter angesetzt, für einen gedämmten und beheizbaren Wohnkeller ab 2 500 Euro pro Quadratmeter. Dazu kommen Kosten für Aushub, Abtransport der Erde und Deponiekosten. Ein verlässlicher Preisvergleich kann nur anhand von individuellen Angeboten stattfinden.
Foto: GÜF/Kampa/Knecht
Keller/Michael Christian Peters
Foto: GÜF/Weberhaus
Safety first!
Einbruchschutz
Mechanische Vorkehrung
Digitale Tools
Nutzerverhalten
Wohnungseinbrüche sind laut polizeilicher Kriminalstatistik erneut gestiegen. Geld, Wertsachen und das persönliche Sicherheitsgefühl lassen sich jedoch mit speziellen Vorkehrungen und dem richtigen Verhalten schützen.

Für das Jahr 2024 verzeichnet die bundesweite Polizeiliche Kriminalstatistik (PKS) einen leichten Anstieg beim Wohnungseinbruch. Insgesamt wurden 78 436 Fälle einschließlich der Einbruchsversuche erfasst, 2023 waren es 77819 Fälle.* Die gute Nachricht ist jedoch, dass viele Wohnungseinbrüche im Versuchsstadium scheitern. Das zeigt: Richtige Sicherheitstechnik wirkt und schützt Hab und Gut. Doch was heißt „richtig“?
*Quelle: www.k-einbruch.de
Beim Einbruchschutz unterscheidet man zwischen mechanischer Sicherungstechnik (Schlösser und Beschläge) und elektronischer Sicherungstechnik (Alarmanlagen). Außerdem spielt das Verhalten der Nutzer eine wesentliche Rolle.
Basissicherung ist mechanisch Nach Meinung der kriminalpolizeilichen Experten steht die solide mechanische Sicherung aller Öffnungen rund ums Haus an erster Stelle. Denn die wenigsten Einbrecher sind gut ausgerüstete Profis: Wenn es zu lange dauert, Fenster oder Kellertür zu knacken, lassen sie von ihrem Vorhaben ab. Elektronische Maßnahmen wie Videokameras, Alarmanlagen und Smarthome-Lösungen können die klassische Technik darüber hinaus sinnvoll ergänzen und erhöhen das Sicherheitsgefühl. Die Polizei bringt den Zusammenhang auf die einfache Formel: „Mechanisch sichern, elektronisch überwachen.“
Normale Fenster lassen sich leicht aufhebeln – der am häufigsten

Fenster der Widerstandsklasse RC 2 mit Rundumverriegelung im Flügel. Außerdem ist bei Fenstern mit zertifizierter Einbruchhemmung ab RC 2 Sicherheitsglas inkludiert. Zum Einsatz kommt sogenanntes Verbundsicherheitsglas VSG: Eine zähelastische Folie zwischen den Scheiben erschwert die Zerstörung der durchwurfhemmenden Sicherheitsverglasung und das Durchsteigen. www.kneer-suedfenster.de
Häufige Sicherheitslücken vermeiden
So verschaffen sich
Einbrecher Zutritt
Keller Die Polizei registrierte 2023 über 100 000 Fälle von Diebstahl aus Kellern, Waschküchen & Co. Darum die Kellertür beim Einbruchschutz mitdenken, Kellerfenster geschlossen halten sowie das Lichtschachtgitter gegen unbefugtes Anheben sichern.
Fenstertüren: Etwa 50 Prozent aller Einbrüche* in Einfamilienhäuser erfolgen durch Fenstertüren auf Garten- und Hausrückseite, da Einbrecher hier am ehesten unentdeckt bleiben. Sicherheitsmaßnahmen sind hier besonders wichtig.
Haustür: Die Sicherheitsausstattung von Haustüren ist in der Regel standardmäßig bereits hoch, was naturgemäß eine abschreckende Wirkung hat. Dennoch finden hier immerhin rund 20 Prozent* aller Einbruchsversuche statt.
Bänke, Mülltonnen, Aufbewahrungsboxen und Leitern können als Einstiegshilfe genutzt werden und sollten daher weggestellt oder Fenster darüber besonders gesichert werden.
Fenster sind mit rund 30 Prozent* die zweitgrößte Schwachstelle am Haus. Bevorzugt werden Fenster im Erdgeschoss, gefährdet sind aber auch über Balkone und Flachdächer zugängliche Elemente im Obergeschoss.


Schon eine gut sichtbare Sirene schreckt potenzielle Einbrecher ab. www.bosch-smarthome.de
Elektronische Helfer
Smarte Kameras melden Aktivitäten aufs Handy, hier z.B. an die Magenta Zuhause App. www.telekom.de

Auf Nummer sicher gehen: Videotürklingel, verknüpft mit einer Alarmanlage von Verisure. www.verisure.com
praktizierte Modus Operandi. Bei einbruchhemmenden Fenstern dagegen ist der Beschlag mit Pilzkopfzapfen ausgestattet, was das Aufhebeln erschwert. Im Erdgeschoss bzw. in leicht zugänglichen Bereichen sollten sie daher die erste Wahl sein. Beliebtestes Ziel von Einbrechern sind übrigens Balkon- und Terrassentüren. Diese Zugänge befinden sich
Digitalisierung und Smarthome ermöglichen z.B. Anwesenheitssimulation, indem das Licht an- und ausgeschaltet wird, Rollläden hochfahren oder Lautsprecher eingeschaltet werden. Smarte Kameras lassen sich im Innen- oder Außenbereich einbinden und senden erkannte Aktivitäten z.B. aufs Smartphone. Wer mit seinem Smarthome-System signifikant den Einbruchschutz verbessern will, dem empfiehlt die Polizei die Einbindung einer Alarmanlage in das System. „Einbruchmeldeanlagen“, wie Alarmanlagen fachlich korrekt heißen, sollten immer von einem qualifizierten Errichterunternehmen montiert werden.
meist seitlich oder hinter dem Haus, sind schlecht einsehbar und weniger stabil als die Haustür. Wer auf Nummer sicher gehen will, wählt Fenster mit zertifizierter Einbruchhemmung. Diese wurden von neutraler Stelle geprüft und nach DIN EN 1627 in Widerstandsklassen (RC = resistance class) von 1 bis 6 eingeteilt. Je höher die Klasse, desto besser der Schutz.

Sicherheit und Komfort: Bei dieser Haustür mit automatischer Mehrfachverrieglung reicht es, sie einfach zuzuziehen – und schon ist sie verriegelt. www.roto-frank.com
Die Polizei empfiehlt für Ein- und Zweifamilienhäuser mindestens RC 2. Diese Elemente müssen einem Öffnungsversuch mindestens drei Minuten standhalten. In der nächsthöheren Klasse RC 3 sind es fünf Minuten. RC 4 bis RC 6 kommen im Wohnbereich so gut wie nie zum Einsatz.
Die optimale Ausstattung
Auch für Haustüren wird als Basisschutz die Widerstandsklasse RC 2 empfohlen. Alle Komponenten wie Türblatt, Schloss, Beschlag und Rahmen sind für die gewünschte Schutzwirkung optimal aufeinander abgestimmt. Ein Ausstattungsmerkmal, das einen genaueren Blick verdient hat, ist das des Haustürschlosses, im Fachjargon „Mehrfachverriegelung“ genannt. Es besteht aus einem Hauptschloss und zwei oder mehr Nebenschlössern, die mechanisch miteinander verbunden sind. Abschließen mit dem Schlüssel sichert die Tür an allen Verriegelungspunkten gleichzeitig – die Tür ist vor dem Aufhebeln geschützt.

Smarte Sensoren melden, ob die Fenster zu Hause geöffnet oder tatsächlich geschlossen sind. Das gibt auch unterwegs Sicherheit. www.siegenia.com
Praktisch ist im Alltag eine automatische Mehrfachverriegelung, bei der die Nebenschlösser der Tür durch bloßes Zuziehen verriegelt sind. Das kann im Falle eines Schadens wichtig sein, um vollen Versicherungsschutz zu gewährleisten. Noch komfortabler ist die Mehrfachverriegelung mit Motorschloss: Sie verriegelt beim Zuziehen automatisch das Hauptschloss. Die Tür kann damit elektronisch, zum Beispiel über Gegensprechanlage oder Smartphone, entriegelt werden. Fenster- und Türhersteller bieten auch Sensoren an, die erkennen, ob ein Element geöffnet oder geschlossen ist. Gekoppelt mit einem Smarthome-System können die kleinen Bauteile noch mehr: Sie schalten die Heizung ab, wenn das Fenster offen ist, oder lösen bei einem Einbruchversuch Alarm aus.
Auch Türschlösser verfügen heute teilweise über intelligente Technik und lassen sich ins Smarthome integrieren. So kann das Schloss beispielsweise via Geofencing bei Annäherung automatisch aufge-
Foto: Jung
Foto: Siegenia

Sicherheit und Komfort: Wer nicht nur hören, sondern auch sehen möchte, wer an der Haustür klingelt, für den sind Anlagen mit Videoübertragung die richtige Lösung. www.jung.de
schlossen werden. Aus polizeilicher Sicht sind Smarthome-Lösungen immer nur ergänzend zu mechanischem Grundschutz empfehlenswert.
Wer den Einbruchschutz von Fenstern und Türen nachträglich verbessern möchte, findet in der „Errichterliste“ der Polizei geeignete Unternehmen: www.keinbruch.de/fachbetriebssuche.
Tipp: Abschließbare Fenstergriffe als Einzelmaßnahme haben laut Kriminalpolizei „keine direkte Einbruchschutzwirkung“, sind also unzureichend.
Verantwortungsvoll handeln
Bei allen Überlegungen zu bestmöglichem Einbruchschutz sollte man immer bedenken, dass die Kette nur so stark ist, wie das schwächste Glied. Daher gilt: auch Lichtschächte, Kellertüren und -fenster nicht vergessen! Rollläden bieten einen gewissen Schutz, wenn sie gegen Hochschieben gesichert sind. Garagentore sollten mit spezieller Einbruchhemmung gewählt und auch bei kurzer
Foto: Hager Vertriebsgesellschaft

Geht das Licht jeden Abend zu einer anderen Zeit an, ist es von außen schwer einzuschätzen, ob jemand zu Hause ist. www.hager.com
Abwesenheit immer verschlossen werden. Denn die beste Technik nützt nichts, wenn der Mensch zu sorglos damit umgeht. Offene Garagentore, gekippte Fenster oder unverriegelte Haustüren machen es Langfingern leicht. Übrigens passieren viele Einbrüche, anders als vermutet, nicht nachts, sondern tagsüber, oft während kurzer Abwesenheit. Auch darum zahlt sich ein gutes Nachbarschaftsverhältnis aus, denn auch aufmerksame Beobachter wirken abschreckend auf ungebetene Gäste. • hg
Hilfe, Infos & Beratung
Einen guten Überblick über das Thema Einbruchschutz bietet die Broschüre „Sicher Wohnen“. Sie kann kostenlos heruntergeladen werden unter: www.polizei-beratung.de
Bei allen Fragen zu Sicherheit und Einbruchschutz helfen die kriminalpolizeilichen Beratungsstellen in deiner Nähe: www.k-einbruch.de/beratungsstellensuche/
Healthy Home
Gesunde Baustoffe Richtig lüften Reichlich Tageslicht
Wohnen im Eigenheim kann unter günstigen Bedingungen mit höherem Wohlbefinden und besserer psychischer und physischer Gesundheit verbunden sein. Dafür muss die Wohnqualität und das Umfeld zu den persönlichen Vorlieben passen und die Wohnkosten nicht übermäßig belasten. Eine auf die individuellen Wünsche und Möglichkeiten abgestimmte Planung aber auch die Auswahl gesundheitlich zuträglicher Baumaterialien sind die beste Grundlage für gesundes Wohnen.

Nachweislich wohngesunde Produkte wie die Erfurt-Rauhfaser, die frei ist von Weichmachern, PVC oder Lösungsmitteln und in Sachen VOCs sehr emissionsarm, kann eine gute Wahl zum Beispiel im Kinderzimmer sein, um den Kleinsten ein gesünderes Wohnumfeld zu schaffen. www.erfurt.com
Foto:

Viele Hausanbieter werben heutzutage mit den Begriffen „gesund“, „vital“ oder „öko“. Trotzdem sollten sich Bauwillige informieren was genau hinter dem Werbeversprechen steht – vor allem wenn sie oder ihre Familie besondere gesundheitliche Bedürfnisse haben.
Was ist Wohngesundheit?
Die Europäische Gesellschaft für gesundes Bauen und Innenraumhygiene (EGGBi) definiert den Begriff „Wohngesundheit“ als ein „Gebäudezustand (Zustand von Räumen), der durch Minimierung von schädlichen störenden Einflüssen/Belastungen bestmögliche Bedingungen für die Gesundheit der Nutzer schafft.“ Ziel ist es, die Gesundheit möglichst zu erhalten, Menschen mit besonderen Sensitivitäten gegenüber

Wohngesundheit und modernes Wohndesign widersprechen sich nicht. Das Haus Waldsicht wurde von dem Schweizer Designer Alfredo Häberli entworfen und von Baufritz, dem Pionier in Sachen ökologisches und wohngesundes Fertighaus, realisiert. Das allgäuer Familienunternehmen hat über die letzten Jahrzehnte das umfangreichste Portfolio in puncto gesundes Bauen und Wohnen entwickelt. www.baufritz.com
Umwelteinflüssen eine „Reduzierung“ ihrer Befindlichkeiten zu bieten und das Wohlbefinden zu steigern.
Individuell angepasst
Die Einflussfaktoren auf unser Wohlbefinden im Wohnumfeld sind allerdings sehr vielfältig. Und worauf der eine schon mit Unbehagen reagiert, macht dem anderen gar nichts aus, das heißt: Jeder Mensch ist anders und hat dementsprechend ganz persönliche gesundheitliche Voraussetzungen und Bedürfnisse. Idealerweise sollte jedes neue Haus auf seine Bewohner zugeschnittene Lösungen bieten, um ein möglichst gutes subjektives Wohlbefinden zu erzielen. Es gibt aber Aspekte, die grundsätzlich zu einem gesünderen Wohnumfeld führen und deswegen
Was ihr wissen wollt:
„Warum ist die Raumluftqualität wichtig?“
Im Durchschnitt halten wir uns 90 Prozent des Tages in Innenräumen auf. Da ist es kaum verwunderlich, dass das Raumklima und die Raumluftqualität einen wesentlichen Einfluss auf unsere Gesundheit und unser Wohlbefinden haben. Schlechte Raumluft kann Symptome wie Müdigkeit, Konzentrationsschwäche oder Kopfschmerzen verursachen. Es kann aber auch baustoffspezifische Reaktionen wie Allergien oder Reizungen der Schleimhäute und Augen geben.
Foto:
Baufritz
Was ihr wissen wollt:
„Sind natürliche Baustoffe gesünder?“
Beschreibungen von Baustoffen mit Vokalben wie „nachhaltig“, „öko“ oder „biologisch“ werden häufig mit „wohngesund“ gleichgesetzt. Aber Vorsicht: In der Natur vorkommende Stoffe können gesund sein, aber natürliche Materialien können ebenso negative Auswirkungen auf unsere Gesundheit haben, beispielsweise indem sie allergieauslösende Stoffe enthalten. Die Verwendung von Produkten, die als „nachhaltig“, „öko“ oder „biologisch“ gekennzeichnet sind, ist aus der Perspektive des Umweltschutzes grundsätzlich zu begrüßen. Wer allerdings auch der Wohngesundheit Bedeutung beimisst, sollte genauer hinschauen, welche Leistungsversprechen die gekennzeichnenden Gütezeichen und Siegel wirklich liefern.
bei jeder Planung eine Rolle spielen sollten:
• ein guter winterlicher und sommerlicher Wärmeschutz der zu angenehmen Raumtemperaturen beiträgt
• emissionsarme Baustoffe vor allem im Innenausbau
• guter Schallschutz und ausgewogene Raumakkustik
• regelmäßiges Lüften
• ausreichend Tageslicht
Gesunde Baustoffe
Um die 500 unterschiedliche Produkte kommen beim Bau eines Einfamilienhauses durchschnittlich zum Einsatz. Jedes einzelne Material kann schädliche Emissionen verursachen oder in Kombination mit anderen chemische Reaktionen verursachen, die Einfluss auf die Gesundheit haben können. Im Durchschnitt halten wir uns 90 Prozent der Zeit in Innenräumen auf. Da ist es kaum verwunderlich, dass das Raumklima und die Raumluftqualität einen wesentlichen Einfluss auf unsere Gesundheit und unser Wohlbefin-


den haben. Schadstoffe, die auch heute noch in Baumaterialien vorkommen und die Raumluftqualität beeinträchtigen können, sind zum Beispiel unter anderem:
• Fomaldehyd kann in innenraumwirksamen Baustoffen, wie Gipskartonplatten, Tapeten, Holz, Mauerwerk, Putz und Dämmmaterialien vorkommen und bei empfindlichen Menschen zu Augenreizungen, Kopfschmerzen und Atemwegsbeschwerden führen. Außerdem ist Formaldehyd krebserregend.
• Weichmacher können z.B. in Bodenbelägen, Tapeten, Wandfarben und Verlegewerkstoffen vorkommen und sich negativ auf den Hormonhaushalt und die Reproduktionsfähigkeit auswirken.
Wichtig: Richtig lüften
Bei neu gebauten Wohnhäusern kann auch die im Gebäudeenergiegesetz geforderte Luftdichtigkeit von Gebäuden zu einer erhöhten Schadstoffbelastung der Innenraumluft führen: Um unnötige Wärmeverluste zu vermeiden, werden moderne Häuser heute besonders dicht konstruiert. Um den nötigen Luftaustausch zu schaffen und so feuchte, verbrauchte und schadstoffbelastete Luft gegen frische Außenluft zu tauschen, sollten Fenster auf jeden Fall dreimal täglich für mindestens fünf Minuten weit geöffnet werden.
Regnauer ist einer der Fertighaushersteller, die sich von der in Sachen Wohngesundheit renommierten Sentinel Haus Holding schulen ließ und daher ein guter Ansprechpartner für Bauinteressenten mit besonderen Gesundheitsanforderungen ist. Das Bild zeigt das Musterhaus Heidi, das die hohen Standards des Sentinel Haus-Siegels erfüllt. www.regnauer.de
Labels für Wohngesundheit
Tapeten, Farben, Bodenbeläge, aber auch Kleber oder Dichtungsmaterialien: Beim Hausbau und Innenausbau ist es für eine gute Raumluftqualität wichtig, auch im Detail auf emissionsarme Produkte zu achten, um die Innenraumluft möglichst frei von Schadstoffen zu halten. Bei Farben und Lacken z.B. sollte man die Inhaltsstoffe prüfen – organische Lösemittel sind meist risikoärmer. Vor allem in Schlaf- und Kinderzimmern sollte nicht zuletzt auch bei der Wahl des Mobiliars auf schadstoffarme Materialien gesetzt werden. Bei der Beurteilung der gesundheitlichen Qualität von Bauprodukten helfen hochwertige Baustofflabel, die von unabhängigen Stellen vergeben und regelmäßig überprüft werden. Hier drei Beispiele.

Der „Blaue Engel“ ist in Deutschland das bekannteste Umweltzeichen. Die Prüfbedingungen des Siegels beziehen sich jeweils auf eine Aussage: z.B. „schützt Umwelt und Gesundheit – weil emissionsarm“. www.blauer-engel .de
Unterstützt werden kann das im Neubau sehr einfach durch eine kontrollierte Wohnungslüftungsanlage: sie führt belastete Luft rund um die Uhr ins Freie ab, sorgt für Frischluftnachschub und reduziert dank Wärmerückgewinnung die Lüftungswärmeverluste auf ein Minimum. Spezielle Pollenfilter bieten sich zudem für Allergiker an, die unter Heuschnupfen leiden. Richtiges und regelmäßiges Lüften beugt auch einer zu hohen Luftfeuchtigkeit im Haus vor, die das Risiko für Schimmelbildung erhöht. Schimmel kann langfristig z.B. zu Allergien, Atemwegserkrankungen, Augen- und Hautreizungen führen.
Ruhig wohnen
Auch Lärm kann krank machen. Um dem entgegenzuwirken, helfen baulicher Schallschutz und eine gute Raumakustik. Schwere oder

Das Zeichen des privaten Instituts in Köln gibt es für unterschiedliche Produktgruppen, etwa für emissionsarme Bauprodukte, aber auch für Möbel und Einrichtungsgegenstände. www.eco-institut-label .de
mehrschalige Bauteile reduzieren beispielsweise Schallübertragungen von außen, die häufig als besonders störend empfunden werden. Trittschallübertragung lässt sich durch schwimmend verlegte Estriche und schalltechnisch entkoppelte Treppen verringern. In Wohnräumen mit glatten Böden und großen Fensterflächen sind schallabsorbierende Materialien wie Teppiche, Vorhänge und Polstermöbel mit Stoffbezügen gegen Hall und Echo hilfreich.
Gut drauf, dank viel Tageslicht
Auch natürliches Tageslicht ist wichtig für die Gesundheit: Es hat direkte Auswirkungen auf unsere Stimmung, Produktivität und Schlafqualität: morgens sorgt es dafür, dass wir aufwachen, stärkt im Laufe des Tages, wenn es heller wird, unsere Leistungsfähigkeit

Das vom gleichnamigen, unabhängigen Verein vergebene Qualitätszeichen gilt als streng und umfassend bzgl. Umweltschutz, Nachhaltigkeit und Wohngesundheit. www.natureplus.org
Foto: Velux

Wer in einer lauten Umgebung – wie z.B. der Einflugschneise eines Flughafens – baut, sollte auch bei Dach und Dachflächenfenstern auf erhöhten Schallschutz achten. www.velux.de

Alle bei diesem Luxhaus verwendeten Materialien wurden von der Sentinel Haus Holding auf Schadstoffe geprüft. Zusätzlich wurden die Mitarbeiter in Bezug auf die Abläufe sowie den richtigen Umgang mit Werkstoffen und Verpackungsmaterialien auf der Baustelle geschult. Das Ergebnis: Eine wohngesunde Stadtvilla und zufriedene Bauherren. www.luxhaus.de
und veranlasst unseren Körper am Abend, wenn es langsam schwindet, das Hormon Melatonin auszustoßen, das uns müde macht. Licht steuert also unseren Biorhythmus. Ein Mangel an Tageslicht kann zu Müdigkeit, Konzentrationsmangel und sogar Depressionen führen. Für eine optimale Lichtausnutzung sollte daher die Summe aller Fensterbreiten mindestens 55 Prozent der Breite des Wohnraums betragen. Gleichzeitig sind optimale Verdunkelungsmöglichkeiten für guten, erholsamen Schlaf wichtig ebenso wie der sommerliche Wärmeschutz: Außen sorgen Rollläden, Raffstores und Markisen für einen wirkungsvollen Hitze- und Blendschutz.
Gesunde Fertighäuser
Wer ein gesundes Haus bauen, sich aber nicht um alle Einzelaspekte selbst kümmern möchte – wir erinnern uns an die durchschnittlich 500 Bauprodukte pro Haus – der kann sich an Fertighaushersteller wenden, die sich das Thema gesundes Bauen auf die Fahne geschrieben haben. Pionier in Sachen Wohngesundheit ist unangefochten die Firma Baufritz aus dem Allgäu, die das umfassendste Gesundheitskonzept anbietet. Aber auch Firmen wie Schwörer Haus, Weberhaus, Regnauer, Fertighaus Weiss und Luxhaus haben sich in den letzten Jahren eine große Expertise in puncto Wohngesundheit angeeignet. • ab/sg
Bauhelden Media
GmbH & Co. KG
Welfenstraße 19, 70736 Fellbach
Redaktion: Tel. 0711/5206-218
Anzeigen: Tel. 0711/5206-283 www.bauhelden.media
www.HausbauHelden.de
E-Mail: info@bauhelden.media
GESCHÄFTSFÜHRUNG:
Fabio Schoch
CHEFREDAKTION:
Astrid Barsuhn (ab)
Head of Content (verantwortlich)
Christine Meier (cm) stv.
REDAKTION:
Susan Carlizzino-Hoog (sc) Sylvia Gatzka (sg)
ASSISTENZ UND LEKTORAT:
Mirjam Ernst, Ilona Mayer
E-Mail: mayer@bauhelden.media
STÄNDIGE MITARBEITER:
Elke Raff (Zeichnungen)
Hans Graffé (hg)
Jürgen Wendnagel (jw)
Porträt-Fotos Redaktion: Oliver Röckle
LAYOUT: Dolde Werbeagentur GmbH, 70327 Stuttgart
HERSTELLUNG: Anja Groth (Ltg.)
ANZEIGEN: Christoph Beyreiß
Head of Media & Brandsolutions
E-Mail: beyreiss@bauhelden.media
Tatjana Berger (Disposition Ltg.)
E-Mail: dispo@bauhelden.media
VERTRIEB: Partner Medienservices GmbH Julius-Hölder-Str. 47 70597 Stuttgart
DRUCK:
Print Media Group GmbH Gutenbergstr. 4 69181 Leimen
PREIS: Einzelheft 7,80 Euro
BANKKONTEN: HypoVereinsbank
IBAN: DE72 670 201 900 025 059 506
BIC: HYVEDEMM489
Steuer-Nr. 90492/10407
EG USt.-Id.Nr.: DE 147 321 116
Nachdruck, auch auszugsweise, nur mit Genehmigung des Verlags. Das Führen der Zeitschrift im Lesezirkel sowie der Export und Vertrieb im Ausland ist nur mit schriftlicher Genehmigung des Verlags gestattet.
Die Bauhelden Media GmbH & Co. KG ist förderndes Mitglied im Bundesverband Deutscher Fertigbau e.V. (BDF), Bad Honnef. Artikel oder Zuschriften mit Namen des Verfassers stellen die Meinung des Autors, nicht unbedingt die der Redaktion dar.
ISBN 978-3-945604-97-7
Printed in Germany

de H H youtube.com/HausbauHelden
FEELING DAS HUF HAUS

Erleben Sie HUF HAUS hautnah: In einem unserer Musterhäuser in ganz Europa oder bei einer persönlichen Tour durch die hochmoderne Produktion im Westerwald. Terminvereinbarung unter 02626 761-200.
Luxuriös | Individuell | Nachhaltig | Wertstabil
