

Connections
Designs for
Laura Harrigan & Whit Kilpatrick Russell The Conway School | Spring 2025
Conceptual
Spring Brook Park and Memorial Pond Walpole, MA

Memorial Pond and Spring Brook Park
Tucked in just behind the main corridor of Walpole's town center lie two parcels totaling 35 acres with a mix of programming that includes a pond with wooded trails, a brook with nearby pavilions and picnic tables, athletic fields, a playground/pool/splashpad complex, and a number of municipal buildings including the Town Hall, Library, and Recreation Center. Together, these parcels have the potential to be the heart and soul of the community, as they offer a broad array of programming and actitivites for all ages from organized sports, to fishing, to nature immersion. But the parcels are dissected by a road that makes pedestrian crossing hazardous: there are not enough crosswalks, the crosswalks that exist are not conveniently located, and there is both a steady stream of through traffic and traffic entering and exiting the myriad driveways and parking lots. There is also not much visual continuity between the sites contributing further to the feeling of fragmentation rather than cohesion.
Unkempt and undesirable vegetation along the streambank and the pond edge block views and prevent access to the water, while also severely limiting biodiversity.
The trails, which wind through beautiful forested wetlands and periodically cross over lovely feeder streams, have points that flood in heavy storms, making them almost impossible to pass, and they end abruptly at side roads with no indication where to go next, leaving the hiker uncertain and requiring them to retrace steps.
The eastern length of the pond along Diamond Street abuts private properties with ownership right to the pond edge and no easements. A narrow right of way gives the town access to the edge when needed.
Stormwater runoff at the primary pond access point carries debris from a nearby stone dust parking lot and path that erode into the pond, contributing to polluted water and sedimentation build up. The pond requires expensive dredging to maintain its depth.



Vision Statement from Walpole's 2021 Master Plan
"A town with a green space network with walking and bike trails that connect a series of recreational fields and other community amenities, as well as provide access to natural areas and the town's abundant ponds. The vision includes clean water resources...where our ponds are clear and free of nuisance aquatic vegetation and available for fishing, boating, skating, and other passive recreational uses...and trails for dog walking and bird watching and habitat for wildlife."

View of Spring Brook from the School Street bridge showing a streambank tangled with invasive species and a pipe that delivers stormwater runoff into the water.
Directly opposite the first photo, on the other side of School Street, this view shows the docked entry area to Memorial Pond.
Client Goals
The Town would like to see more people using Spring Brook Park and Memorial Pond on a consistent daily basis. Currently, several well-attended annual townwide events occur in these parks, including Walpole Day, Fourth of July fireworks, and a weekly Farmer's Market. The athletic fields are also used in season almost daily, but just during a short evening window after school. A core team including Patrick Deschenes, Director of Economic Development, and Landis Hershey, Conservation Commission, articulated three overarching goals:
Goal 1: Activate the Spaces and Improve Aesthetics
The Town is interested in strategies that would invite lingering and transform the space into a desirable destination. Improving the visual appeal, comfort, recreational opportunities, cleanliness, and safety are all possibilities to explore.


Goal 2: Make the Spaces Feel Connected and Cohesive
Create a one-park feel across the space that mitigates the divisive effect of the road and the isolating and confining effect of the overgrown undesirable vegetation.

"The space is currently just a pass-through - we’d prefer people enjoyed it so much that they’d sit and stay.”
~ Patrick Deschenes, Director, Community Development
Goal 3: Reduce Storm-Water Runoff Debris Entering the Pond
A slight slope at the primary access point to the pond allows the loose stone dust surface of the paths and parking lot to run into the pond during storm events. After a steep investment in dredging the pond in 2018, it's critical to limit material build-up to avoid frequent costly dredging operations.


The wide-open sun-baked Spring Brook path along the north edge of Stone Field. The divide created by School Street.
The eroding stone dust path at the pond.
History of Walpole
The land which is now known as Walpole was originally inhabited by the Neponset Band of the Indigenous Massachusett people from time immemorial. With the arrival of English settlers, Indigenous populations decreased dramatically due to disease and warfare brought on the Massachusett people by the colonists. After the forced removal of the Massachusett people, English settlers developed the land taking advantage of its waterways and timber resources. Settlers built mills powered by the many tributaries of the Neponset River, and harvested cedar trees for building homes and sent large trees to Boston to become ship masts. Saw mills were the first industry in Walpole. The incorporation of dams and adjoining mills on many of the brooks and Neponset River throughout Walpole expanded manufacturing to textiles, tanyards, foundries, bleaching and dye, paper, rubber products, stoves, and numerous other goods.
Upstream from Memorial Pond, the waters of Spring Brook powered a saw mill and a cotton mill. Later the water held at Diamond Pond powered the manufacturing of straw bonnets, lamp wicking, and twine.

Memorial Park History
Memorial Park was planned in 1923 to celebrate the bicentennial of Walpole’s incorporation in 1724. It was designed by John Nolan, a landscape architect and urban planner who studied with Frederick Law Olmsted and designed another park in Walpole (Bird Park). Nolan intended Memorial Park to be a “central park” and act as a civic center.
Spanning over Spring Brook, the construction of Memorial Bridge in 1924, and the adjoining dam and spillway, began the development of the park. Built from field stones taken from old stone walls, Memorial Bridge was dedicated as a “tribute to the sailors, soldiers, and nurses who fought in wars since incorporation.” Those words can be found inscribed on brass plaques on the bridge. A swimming pool and bath house were constructed in 1926. A social center was completed in 1932 as a gift by Harriet F. Nevins in honor of her parents George and Nancy Blackburn who were prominent mill owners. Blackburn Memorial Hall houses the Walpole Rec Center today. Ms. Nevins also contributed the bronze plaques on Memorial Bridge, a brick masonry fountain for horses and dogs, and two civil war era cannons, all of which are still on site.


Memorial Pond and Spring Brook Park Today
The primary features of Nolan’s park design which still exist are Memorial Bridge, the dam, Memorial Pond, and Memorial Blackburn Hall. The fountain and cannons still sit near School Street and remnants of the shelter foundation can be found along one of the trails that traverses the forested edge of the pond. In Nolan’s park design, programing areas are defined and connected with a strategic network of paths. The paths also connect on opposite sides of School Street creating a physical and visual continuity between the eastern and western sides of the street. Although many of the original design features still exist, many of the trails and pathways were not developed or have dissolved.
In 2015 the western side of the park became Spring Brook Park to put a “welcome sign” on downtown Walpole and to connect hiking areas in Walpole with the Bay Circuit Trail. A bridge over the brook was built along with a new gravel trail, pavilions, a kiosk, and benches to function as a connection for the trails and provide a destination for gathering and passive recreation.

Memorial Bridge and Spillway. Built in 1924 with field stones gathered from old stone walls in Walpole. Construction of the bridge was the Town's first step in developing the park.
Original site plan by John Nolan for Memorial Park, 1923. The park was developed to commemerate Walpole's bicentennial and as a "tribute to the sailors, soldiers, and nurses who fought in wars since incorporation."
Wool scouring mill, 1882. Walpole Public Library
Open Space & Trails Open Space
Zooming out to the town-wide context underscores the critical need for these parks. Walpole boasts many open spaces, including parks, town forests, conservation areas, ponds, and parks, but they are located closer to the town limits, leaving the downtown area relatively lacking in green space for gathering or enjoyment of the outdoors.

Bay Circuit Trail
The Bay Circuit Trail & Greenway, managed by the Appalachian Mountain Club (AMC), is a 230-mile greenway that falls in a very rough half-moon arc outside Boston just beyond the half-moon arc of Rte 128.
It crosses through 38 towns, including an 8.3 mile stretch in Walpole. Back in 1929, as Boston’s population grew, an idea arose to mimic Frederick Law Olmsted’s emerald necklace of connected park spaces outside the city. Work began but was soon disrupted by residential and commercial development that outpaced the park connections, leaving an intermittent string of unconnected green spaces. Late last century, the project was resurrected with the AMC adopting it and now actively working to connect the parcels. Today, the circuit is almost fully connected, although many of the trail connections are along roadways and sidewalks. A portion of the circuit runs right through Memorial Pond and Spring Brook Park.









The full extent of the Bay Circuit Trail framing Boston, revealing a few segments where connections are still a work in progress. The box highlights Walpole.
Green shaded areas map out the town's open space parcel designations, revealing the critical need for Spring Brook Park and Memorial Pond (shown in black) as some of the only public open spaces in the downtown corridor.
This walking map illustrates neighborhood distances from the center of these park parcels.
A Bay Circuit Trail wayfinding sign located at the truss bridge in Spring Brook Park, and a section of the trail through the Memorial Pond understory.
The dotted path shows the extent of the Bay Circuit Trail through Walpole, starting along the Mill Brook to the north, and continuing through the Town Center, the project site, the Town Forest, as well as neighborhoods along the way.
The Neighborhood
The park neighborhood includes a mix of residential, business, and municipal properties. The businesses, primarily in the town center, include restaurants, retail, banks, studio facilities, medical offices, and a pharmacy chain. Most of these commercial properties are small businesses or franchises.
The map here reveals roughly 80 single-family residences in the neighborhood around the park (in pink). Assuming an average of four people per household, there may be roughly 320 people living in homes nearby. A few small apartment buildings add to the total.
There are also several large apartment buildings, some of which are new due to the MBTA station and associated dense housing allowances. The hatched purple overlays highlight newly built or permitted projects. The town estimates very roughly 1,500 residents in these buildings (spanning over 750 new units and 1,300 bedrooms).
Combining all single family and apartment dwellings, the parks may serve 1,800 residents living within a half mile or roughly 10 minute-walk of these parks. Out of the total town population of 26,383, that’s 7% of the community.



In the Central Business District, there is no open space requirement for mixeduse projects. This includes the three buildings with a combined 450 units furthest to the west here. Indeed, these structures take up the full footprint between their bounding streets, with very little, if any, usable community green space. For residents seeking a bit of green, the Town Common is conveniently located, but it's less than 5 acres in size and segmented into three spaces by busy streets including Main Street. These fragments are each then further criss-crossed by a network of paved walking paths, and include memorials, small buildings, and formal planting beds that signal this is a pass-through space rather than one intended for lounging or leisure, despite the handful of benches scattered about. The proximity of the primary roads and their associated noise along the perimeters further reduces the hospitality here.This means Spring Brook Park and Memorial Pond are critical green spaces for these communities.
The parcels are knit into a mixed use area that includes municipal buildings, single family homes, apartment complexes, and Main Street businesses. The nearby MBTA station has precipitated high-density housing growth within a 10-minute walk of the parks. The view shown here includes approximately 65 businesses and 80 single-family homes, in addition to the five large apartment complexes.
The three Town Common parcels segmented by Main Street and Elm Street; each space is further divided by a maze of walking paths, rendering the area inhospitable for activity other than walking through on one's way elsewhere.
Main Street/Route1 Elm Street
Walpole Town Common
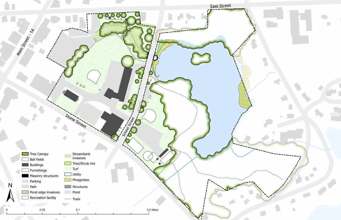
Existing Conditions
School Street maintains a dominating presence on the site dividing the parcels. Other key elements include:
The Bay Circuit Trail: runs through the entire length of the site and beyond, but does not loop within either park. The trail surface is stone dust along the brook side, and continues as stone dust at the pond dock, but then becomes a dirt surface once it enters the woodland.
Recreational facilities: clustered along Stone Street, facilities include a playground, splashpad, pool, little league fields, and closer to the rec center, cornhole and bleachers.
Invasive vegetation: has proliferated abundantly in the dam area and streambank, blocking views and access to the water, and limiting biodiversity.
Dock: offers the only intentional access point to the water and is ADAaccessible.
4.75 acres of parking: most of this is impervious, other than a small stone-dust lot. There are plenty of spaces for day-to-day needs. Lots do fill during townwide events held a couple of times a year (e.g., Walpole Day and 4th of July).
Furnishings: located throughout the site, these include pavilions, benches, picnic tables, trash receptacles, bike racks, lampposts, historical and wayfinding signage, and a doggie station.








Land Cover
The site includes a variety of land cover types, with the Spring Brook parcel dominated by impervious surface and turf, and the Memorial Pond parcel dominated by open water, forest, and forested wetland. The forested wetlands here are classic Red Maple Swamps--a natural community defined by the dominance of red maple and includes ash, black gum, white pine, hemlock, elm, pin oak, and swamp white oak. The woody understory typically includes clethra, swamp azalea, greenbrier, blueberry, spicebush, alder, and viburnum, all of which habitate this site. The herbaceous layer on the ground is dominated by ferns (particularly cinnamon, royal, and wood fern) and skunk cabbage, which is also typical of a Red Maple Swamp. These swamps offer habitat cover and water to many songbirds and small mammals who appreciate the dense cover they provide. Statewide, glossy buckthorn is common in these areas, and is present here and in need of ongoing management control to avoid destroying the preferred habitat.






Memorial Pond
Spring Brook
A red maple marks the entry to this forested wetland of the Bay Circuit Trail.
Ash in the pond understory; clethra thriving near the pond edge; ferns and skunk cabbage in the swampy forested understory.
Vegetation
Turf
Across this space, seven acres (out of 35 acres) is turf: that's 20% of the site. It takes a DPW staff member one full day to mow this site each week during the growing season. Given turf's high maintenance expense, low stormwater absorption, and low biodiversity value, any acreage not needed for athletics could be reimagined as other vegetation types that offer ecosystem services.
Brook Bank
Along Spring Brook is an intense thicket of invasive plants that is outcompeting native flora, preventing physical access to the brook, and disrupting views both to the water and beyond. Many of the species growing here are designated by the state as invasive plants, meaning they are considered "a great threat to our native species and natural communities." These species include:
• Bittersweet
• Poison ivy
• Multiflora rose
• Barberry
• Burning bush
• Japanese knotweed
• Japanese honeysuckle
Pond
Similarly, along the pond bank, invasive species are proliferating, although the desirable plants such as milkweed, red-twig dogwood, and a variety of ferns, haven’t been entirely outcompeted. Invasive species here includes buckthorn, bittersweet, and multiflora rose.
Phragmites and cattails dominate the edge abutting the water where they are limiting views and shrinking the size of the pond basin. The tall height of these plants is also constraining the views of the pond from the road and spillway area. While these species do help filter and clean the water, management should be considered to retain views and access to the water.
In the pond woodland, the shrub and ground layer vegetation is more mixed native and non-native, including all of the species listed above at the brook, except no evidence of knotweed. It also includes large patches of escaped garden "ornamentals" such as vinca and English ivy. On the plus side, it also hosts an abundant variety of desirable species including blueberries, clethra, ferns, spicebush, skunk cabbage, and a number of perennial spring ephemerals.
Trees
Treed areas include the canopy over the brook, the planted ornamentals along the streets and around the buildings, and the woodlands and forests around the pond.
The brook canopy includes roughly 50% Norway maples, and a mix of silver maples, lindens, oaks, a large elm, and dying ash.
Street trees throughout the site include oaks, platanus, cherry, crabapple, hornbeam, magnolia, and honeylocust among others. The Town Hall front yard is dominated by invasive ornamental Callery pears and another large purple Norway maple. Pears in particular produce tons of seeds, germinate readily, and outcompete native vegetation and the wildlife that depends on it. Last year, Massachusetts added Callery pears to its list of illegal species to sell.
The pond woodland hosts Norway maples, white pine, American holly, oak, spruce, hemlock, and red maple.





Phragmites & Typha Turf
Center Town Hall Library Playground
The pond's fern-and-skunk-cabbage understory. Cattail, bittersweet, and milkweed mix. Japanese honeysuckle and poison ivy thriving under under a Norway Maple at the brook.
Sun and Shade
The longest duration of sun exposure on the two parcels from the beginning of spring until the end of summer is concentrated on Stone Field, the western parking lot, and on the northern section of Memorial Pond. The longest duration of shade is in the forested edge around Memorial Pond and the northern portion of Spring Brook Park. Tree canopy provides the most shade in the two parks with most shaded areas on the Memorial Pond side. Sunny areas may be more desirable during spring and fall and less desirable in summer during the hottest months. Surface areas covered in turf or asphalt when exposed to sun get hotter than the air temperature. Hotter temperatures can affect human comfort and can pose health risks to certain groups including the young and elderly. Stone Field in Spring Brook Park receives about an average of 15 hours of sunlight in spring along the northern and southern portions and the entire field receives about on average 15 hours of sunlight in the summer. The field is used for softball in the spring, Walpole Day (annual event with vendors, kids play area and live music) and by the Rec Center for their summer programming for kids. Permanent concrete cornhole boards on the most southern edge of the field receive on average 12 hours a day of sun in spring and summer. On the northern part of Stone Field, 2 metal benches and 2 stone benches receive on average about 6-9 hours of direct sunlight a day. The playground and adjacent parking lot, located in the southwest corner of Memorial Pond parcel receive an average of 12 hours of sun a day in spring and summer. The playground is a popular attraction at the park. During five separate site visits the playground was always occupied with children and parents. When asked why visitors come to Memorial Pond on the community survey, the top two responses selected were “playground” and “enjoy nature.” With annual temperatures projected to rise in Massachusetts due to climate change, adding tree canopy to provide shade in areas of Stone Field without compromising the use of the field for sports and the summer recreation programming would improve comfort levels for those using the field. The comfort levels of children and parents could also benefit from added tree canopy. When asked about physical improvements to Spring Brook Park on the community survey about 30% of respondents selected “more shade.”






Memorial Pond
Stone Field
Town Hall
Parking
Cornhole
Benches
Duration of sun exposure hours per day during the summer from June 20 to September 21.
Duration of sun exposure hours per day during the spring from March 20 to June 19. Trees are needed for shade.
Stone Field in full sun exposure and the Bay Circuit Trail through the shaded woodland.
Watershed/Hydrology
Neponset River Watershed
The parks are located in the upper Neponset River watershed. The headwaters of the Neponset River are located in nearby Foxborough, MA. The river flows south to north for 13.2 miles and deposits into Boston Harbor. The Neponset River is considered an impaired waterbody. A 2022 report from the EPA classified aesthetics, fish consumption, fish and other aquatic life and wildlife, and primary and secondary contact recreation as all impaired. Confirmed “probable sources contributing to impairment” included dams or impoundments, industrial point source discharge, and the introduction of non-native organisms. Unconfirmed “probable sources contributing to impairment” included DDT in fish tissue, E. coli, nutrient eutrophication, PCBs in fish tissue, phosphorous, and unspecified materials in sediment. Restoration and protection plans for the Neponset River were completed in 2002 and 2013 to address E. coli and other pathogens.


Spring Brook Subbasin
The parks are located in the lower portion of the watershed’s Spring Brook subbasin. Spring Brook originates in Sharon, MA, and flows east to west for .8 miles until the confluence with the Neponset River just west of the site. The brook enters Memorial Pond on the eastern side and overspills the dam on the western side. On the western edge of the site, Spring Brook is directed underground and daylights before meeting the Neponset River offsite. Before reaching Memorial Pond, Spring Brook travels through a golf course, suburban residential neighborhoods, and conservation land. Five dams along the brook created ponds and wetlands for recreation and for water power. The dams inhibit any movement of aquatic species from the lower to upper headwaters of Spring Brook. A 2022 report from the EPA classified Spring Brook as an impaired waterbody. Aesthetics, fish, other aquatic life and wildlife, and primary and secondary contact recreation were all confirmed to be impaired. Fish consumption was not assessed. Probable sources contributing to impairment included illegal dumps or other inappropriate waste disposal of debris and trash, but these sources were not confirmed. No protection or restoration plans were specified.


Memorial Pond
Located in the eastern part of the park, Memorial Pond covers about 6.5 acres
The pond was created by the construction of a dam on Spring Brook in 1924. A 2002 report from the EPA classified Memorial Pond as impaired due to aquatic weeds and turbidity. Aesthetics, and primary and secondary contact recreation were confirmed to be impaired while fish consumption and fish, other aquatic life and wildlife were not assessed.
Native aquatic plants including cattails (Typha), Duckweed (Lemna), and Waterlilies (Nymphaeceae) were recorded in 2024 by Water & Wetland LLC.
Based on accounts of residents who fish in the pond, the pond supports perch, sunfish, and small-mouth bass. Other wildlife observed include a nesting pair of non-native, mute swans (Cygnus olor), Canada geese (Branta canadenis), great blue heron (Ardea herodias) and common muskrat (Ondatra zibethicus).
Drainage Patterns On Site
On the Memorial Pond parcel, water primarily drains into the pond and the pond overflows into Spring Brook. On the Spring Brook Park parcel, water primarily drains directly into Spring Brook. On site and around the two parcels, stormwater runoff is collected by stormwater drains into pipes with outfalls on Memorial Pond and Spring Brook. Ultimately water runoff on site that does not infiltrate into soil makes its way untreated into the Neponset River. There are about 6 acres of impervious surfaces or about 1/6 of the combined parks surface area. The impervious surfaces are comprised of three buildings, the Town Hall, Library, and Rec Center, eight parking areas, and School Street. Stormwater runoff from these surfaces ends up in Memorial Pond and Spring Brook. This runoff may contain pollutants and sediment, and may have elevated temperatures during warmer months, which can negatively affect aquatic life, including the fish in Memorial Pond.

Memorial Pond
SpringBrook Spring Brook
Erosion Brook Culverted
PerenialStream
PerenialStream Drainage
Pond Management
Memorial Pond Dredging Project
Memorial Pond was dredged to remove accumulated sediment in 2018 to improve environmental conditions and aesthetic appeal. According to the Town’s website, the storage capacity of the pond had been reduced by sediment and organic material. The pond was dredged to about a depth of 12 feet on the western side of the pond around the dam. Sediment was also removed from below the dam’s spillway. After testing the excavated sediment was deemed fit for use in the development of playing fields along Route 1A in Walpole. If the pond is to remain a pond, future dredging may be required.


Water Quality Testing
The Town of Walpole contracts Water and Wetland LLC Lake, Pond & Wetland Management to help manage the 6.5 acres of Memorial Pond with an aquatic management program. Five site visits were conducted from May 8 to September 16, 2024 to manage invasive species present in the pond, monitor native species growth, and assess water quality. During each visit dissolved oxygen levels were tested. Dissolved oxygen (DO) is the amount of oxygen available in water to aquatic organisms. It is essential for aquatic species for respiration. Memorial Pond is a popular fishing spot and although tolerance varies by species, sufficient levels of DO is necessary for spawning, growth, and activity. The tolerance for fish ranges from 0 mg/L (milligrams per liter) DO to 10 mg/L. 0 mg/L is too low for most fish, 5 mg/L is stressful, and 10 mg/L is supportive. Healthy water generally has a DO concentration of 6.5-8+ mg/L. During the site testing, DO levels at Memorial Pond ranged from 7.76 mg/L to 9.21 mg/L, which are optimal for fish and other aquatic species.

Invasive Species Management
Invasive species can outcompete native species and reduce dissolved oxygen levels in the pond. During Water and Wetland’s survey visits in 2024, five species of aquatic invasive vegetation were identified. The species recorded were variable milfoil (Myriophyllum heterophyllum), curly-leaf pondweed (Potamogeton crispus), water chestnut (Trapa natans), fanwort (Cabomba caroliniana), and purple loosestrife (Lythrum salicaria). These species were prominent along the entire shoreline and had the densest concentration around the inlet of Spring Brook. Two treatments were conducted by Senior Aquatic Biologist, Colin Gosselin, on June 28, 2024. Scattered throughout the pond, milfoil and curly-leaf pondweed were targeted using submersed injection while water chestnut, concentrated around the inlet, was treated by foliar application. All three species were treated with the liquid herbicide Clearcast (imazamox). A follow up herbicide treatment was performed on July 18, 2024 by Senior Environmental Scientist, James Lacasse and Aquatic Field Assistant, Jake McNary to target water chestnut by foliar application. During this visit it was noted that variable milfoil, fanwort, and water chestnut were either dead or dying. On August 15, 2024, Aquatic Biologist, Grace Adams, hand pulled
water chestnut and disposed it offsite. The last treatment was conducted by Grace Adams on September 16, 2024 to target cattails (Typha) per request by Landis Hershey around the dam and spillway area. A liquid herbicide was applied using foliar application. Each treatment session was performed on days without rain or high winds to minimize impacts on nontargeted vegetation. Signs were posted on the shoreline to notify the public of water use restrictions during treatment. The year-end summary report for 2024, written by James Lacasse, stated that many of the treatments were successful, but noted the importance to continue with the management plan due to the number of invasive species present in the pond and the long-term viability of some seeds, in particular water chestnut. Not listed in the report, but present in spring of 2025, were stands of common reed (Phragmites) and although they had been treated in 2024, cattails were observed around the dam and spillway.
Hydroraking was performed in 2019-2020 to remove cattails from the northeast side of the pond to improve the aesthetics and quality of the pond for fish and wildlife as stated on the Town’s website.

Dam
The pond prior to dredging in 2018.
Spring Brook Inlet
Hydroraking area
Dredged area
Spring Brook Outlet
Cattail Management area Diamond Street
The pond in 2025.
Community Engagement
To gather feedback from the community, the Conway team attended Walpole Day on May 10, a beloved community event that draws hundreds of residents. The team attended as a "vendor" with a tent set up to interview residents as they milled about and encouraged them to fill out a survey inquiring about their use of and priorities for Spring Brook Park and Memorial Pond.
Survey Results
Community Use
Through the end of May 2025, the survey generated 180 responses which collectively revealed that residents venture to Spring Brook Park primarily for town-wide events like Walpole Day and the Farmer’s Market, or for the athletic fields after school. Otherwise, they are just passing through on their way somewhere else:

“I would use it more if the brook was accessible. The edges are all grown in with invasive plants which makes it very hard to see, enjoy and take advantage of.”
The Pond side is visited equally for its recreation facilities and the natural environment:

“I didn’t know there were trails there already.” “I don’t visit it since the pond is in need of maintenance.”
Priorities for Improvement
When asked about desired improvements for the parks, these top priorities emerged:
• More gardens, prioritizing native plants
• More trails and looping trails
• Better views
• Access to the streambank and pond edge
• More seating, trash, and dog waste receptacles
• More shade, especially at the pond

“Clean up the trash and open up the edge of the water. Remove the invasive plants.”
“More viable frontage. No weeds. Someone take care of that all summer.”
“Games for small kids/rocks to climb on.”

“The overgrown plants are a real downer for those who want to fish or enjoy the shore’s edge.”
“Make the area more scenic from the road.”
“Expand the park into the existing gravel parking area.”
“I’d love a native labeled pollinator garden.”
“More trash barrels and dog waste stations.”
“More seating. More shade.”
“The pond & park are underutilized treasures in the central business district.”
~ Survey Respondent


Community Meeting
On June 3, the Conway team held a Community Meeting at the library to share initial design concepts and gather more feedback. A series of breakout activities were designed to encourage community members to debate the alternatives and generate additional ideas. Priorities that emerged from this session included:
• Closing School Street to trucks and commercial traffic.
• Adding clearly articulated crosswalks along School Street.
• Installing infiltration basins across School Street to capture stormwater and serve to slow traffic with a bump-out design.
• Convert the Town Hall lawn to native gardens integrating the top portion of the crescent drive.
• Remove the bulk of the gravel lot, maintaining just a portion necessary for DPW vehicles/maintenance access.
• Add observation decks and seating around the spillway.
• Activate areas with play and performance structures.
• Extend the Memorial Pond trail system to the north edge of the pond and add loops.
• Include a maintenance plan with community volunteers and/or Aggie students.

Top: Chatting with a resident under the Conway tent at Walpole Day.
Bottom: The event is held on Stone Field and its adjacent parking lots between the Town Hall, Library, and Recreation Center. The space immediately abuts Spring Brook Park and spills into that space, particularly during the duck race that occurs in the brook.
Access and Circulation
The site lacks a cohesive, well-connected, and safe pedestrian network. While some areas are well-marked with wayfinding and interesting historical signage, others are lacking, leaving the visitor feeling uncertain about where to venture next, or simply unaware that trails even exist.
Safety is a concern for two reasons: a crash cluster is designated by MassDOT at the East St./School St. intersection. This is one of four designated crash clusters in Walpole, with 21 accidents reported here since 2022. There have also been eight incidents at the Stone Street/School Street intersection near the playground. Secondly, there are only two crosswalks across School Street: one located at the highly used corridor between the Library and playground, and another inconveniently located north of the dam. There is no crosswalk just south of the dam where it is needed, particularly as this is the junction of the Bay Circuit Trail segments.
All trails in the parcel to the west of School Street have stone dust surfaces and are ADA accessible. These trails are flat and 4-5 feet wide. These conditions continue across the street at the dock entry area. Once visitors cross into the forest, the path becomes a dirt surface, often with exposed roots and traversing muddy terrain. A short segment near the pool house emerges briefly from the forest onto turf before returning to the forest. This area is a bit confusing to the hiker as the reentry point is not marked or visually clear. The short spur running from the pool to Stone Street is also turf and does not read as trail.
The trail through the Memorial Pond woodland ends abruptly at Diamond Street, as does its spur at Stone Street. There is no clear signage at either point and a visitor walking by might not even notice these entries. There is also no indication that these trails link to the larger Bay Circuit network just beyond the site through the Town Forest.
Along the east edge of the pond, residential properties preclude public access. A loop can be walked by exiting the Diamond Street trailhead, continuing northward along Diamond and then west along East Street, and entering back into the site at School, but the pedestrian experience here is not ideal. East Street sidewalks are in good condition, but conditions vary along Diamond from nonexistent, to crumbling, to good condition by the church. If the Town desires to create a contiguous loop around the Pond, it could consider sidewalk and street improvements here to provide for a more enjoyable pedestrian experience.







Views
Arrows indicate the site's best views. Several benches are positioned to capitalize on these views, but are blocked by tall, weedy vegetation, or are situated very close to the road which detracts a bit from the experience.
Zones of Use
Based on observations in spring 2025, the zone of highest active use yearround is the library and playground at the bottom of School Street. These are rain-or-shine spaces with lots of activity back and forth between the sites across School Street. Based on the Rec Department’s schedule for the athletic fields, and feedback from the survey, once the season for sports and water play begins, the fields, pool, and splashpad come into high use. While the survey indicated high use for nature-based activities at the pond, on-site observations revealed a flush of activity at the dam and dock, particularly when teens fish on a nice day, but very little activity along the trails in the pond woodland. The front yard of the Town Hall and the edges flanking the top of School Street are not





Zones
Preliminary Design Concepts
design alternatives were presented at a community meeting held on June 3. Feedback from the town residents informed the final design.
Stormwater Chic
Infiltration basins slow, clean, and cool the runoff, slow vehicle speeds along School Street; and improve aesthetics.

Other design elements:
• An acre of turf is replaced with native vegetation, including a pollinator garden in the Town Hall's front yard. This reduces mowing and increases biodiversity.
• New trail and looping trails encourage more use.
• Brook bank invasive species are replaced with native species, improving biodiversity and views.
• Trails dip to the brook's edge allowing water access.
• Docks and a pavilion added near the spillway accommodate lounging and view enjoyment.
• Speed tables slow traffic speeds along School Street.
• Solar panels over parking areas reduce carbon footprint and shade the ground surface.
• Canopy trees increase shade in exposed areas at the playground, rec center, and softball field.
Mill Park
Activates unused areas with natural play structures and a dog park, and modifies the road’s surface, using textures and paint to signal to drivers that the road is a pedestrian crossing.

Other design elements:
• More prominent pedestrial crossing at School Street.
• Homage to the town's history of mills.
• Spring Brook Park area is expanded to accommodate tree planting for shade.
• Pavilions are moved to athletic field side of the brook so users can be less isolated, moved away from noisy East Street, and closer to activities Stone Field.
• An observation deck at the spillway expands viewing and fishing opportunities.
• Rain gardens allow storm-water infiltration.
• One entry of Town Hall's crescent drive is closed to reduce impervious surface.
• Canopy trees increase shade in exposed areas at the playground, rec center, and softball field.
From Roadway to Greenway
Closes the road, fully prioritizing pedestrians and bicyclists over vehicles, and allowing the bridge to transform into a piazza-style plaza with views looking out over the pond and brook.

Other design elements:
• Both sides of School Street in front of Town Hall become lush gardens with pathways running through.
• The top portion of the crescent drive and the entire gravel lot become gardens, absorbing stormwater and improving the aesthetics of the space.
• An observation deck around the spillway includes wings for adirondack chairs.
• Paths lead down to the brook and cross it with steppers for greater interaction with the water.
• A bocce court invites play for all ages.
• A circular patio encourages leisure and lounging at the existing dock.

Three
Piazza
Adirondack
Final Design: Overview of Full Site
Based on the community's feedback, elements from each design were meshed into the final plan which focuses on prioritizing pedestrians, slowing traffic, mitigating stormwater, activating the area with play and performance elements, offering more opportunities for lounging and nature observation, replacing turf and invasive species with natives, and improving and adding to the trail system.
Entry from Town Center: A simple painted crosswalk guides pedestrians from the Main Street Mural in the Town Center through the parking lot, under a new solar panel, to Stone Field.
Infiltration Basin: Asphalt is cut and removed to accommodate new green infrastructure to capture, clean, and cool stormwater runoff from the parking lot.
Trails: A new trail runs along the north edge of the pond from the pavilion deck to Diamond Street; a loop with a viewing platform is added to the Bay Circuit Trail; boardwalks are added where the path stays wet or floods in storms.
Wayfinding: All trail entries are accentuated with visual cues including boulders and signage.
Turf Reduction: An acre of turf is replaced with native vegetation, including a pollinator garden in the Town Hall's front yard.
Shade: Canopy trees for shade are added in exposed areas at the playground, rec center, and softball field.
Solar Panels: Photovoltaics over several parking bays reduce carbon footprint.
Filtered Screening: Low shrub and perennial vegetation is added along East Street to serve as a noise and visual buffer but still allow views into the park.


Final Design: Focal Area
Spring Brook Park Restoration and Activation: The invasive species along the brook banks are replaced with native species--under guidance from a restoration ecologist-improving biodiversity, access, and views. New activities here include bocce, water access via stepping stones and wooden platform, new viewing areas, and several play areas made of natural materials such as logs, stumps, boulders, and earthen mounds. Access around the Farmer's Market area and the Natural Play Area are improved with additional crushed stone paths. A new, 10' x 18' elevated viewing platform with benches offers shady views of the brook. One of the pavilions is relocated to the south side of the brook to offer a shady picnic area closer to the action at Stone Field.
Reduced Hardscape: The paved top entry to the Town Hall and two-thirds of the gravel parking lot by the pond are removed and replaced with vegetation. The remaining portion of the gravel lot is paved to accommodate two accessible parking spaces.
Leisure and Lounging: An Observation Deck with a built-in bench surrounds the spillway and Adirondack decks accommodating 7 seats each flank the dam for added viewing/ resting. A pavilion extends out over the water for views from the shade.
Green Infrastructure: Rain Gardens, streetside infiltation basins, and hellstrip plantings along School Street serve to absorb stormwater runoff, and cool, clean, and slow it down. The rain garden near the existing dock includes boardwalk paths over the top.
Crosswalks: Added for pedestrian safety along the length of School Street and painted for visual emphasis to encourage driver awareness and slower speeds.

Pollinator Garden: A native planting to attract birds, bees, butterflies, dragonflies, and fireflies, among many others includes pathways through it to allow residents to get close to nature. Educational signage identifying plant species can be added. Four Adirondack chairs are added at the existing flagpole patio.
Extended Park Edge: New beds are added to the south side of the existing path by roughly xx feet, still maintaining the full acreage needed for athletics. Trees are added for shade and ground level vegetation is kept low to maintain views and an open feel in all directions.
Access Dock and Stone Benches: A series of wood steps and landings lead down to a 10' x 10' access dock for direct access to the brook. Nearby, three stone slabs captialize on the view directly through the bridge archway to the pond beyond.
Path Wayfinding: Stone steppers are set at entry points to the turf path, dissolving as they extend farther from the entries, to offer the suggestion of a path beyond the outfield edge, and encourage residents to use it to get from the playground lot to the dock.

Hellstrip Plantings Infiltration Basins
Scramble Bocce Farmer's Market Corral
Relocated Pavilion
Adirondack Deck
School Street




Sections




Section A-A'
Section B-B'
Detail: Natural Play Spaces
Natural play spaces incorporate the surrounding landscape and vegetation to create an alternative to traditional play structures made of plastic and metal. Common materials used in natural play spaces such as wood, rock, sand, soil, vegetation, and water help develop appreciation for nature and a source for learning about nature. Appreciation for nature creates emotional bonds, which in turn can help protect nature.
For all ages, spending time in nature reduces stress and can reduce symptoms of depression and attention deficit. Natural play spaces allow for more imaginative play than traditional play structures. Traditional play structures generally have fixed or singular uses. Natural play spaces can help develop motor skills, cognitive abilities, risk assessment, and environmental adaptation. Natural playscapes can have a lower cost compared to traditional playscapes and have a lower carbon footprint.








Tree cookies or stepping stumps for scrambling, sitting, and balance.
Boulders for scrambling and sitting.
Outdoor classroom/gathering space with tree cookies and logs. Can also be used for play.
Earthen mound with tree stumps.
Boulders and wood platform for scrambling, and hiding.
Log maze for climbing, scrambling, and balance.
Smaller trees sized for younger children for play and provide shade.
Detail: Trails
When asked what physical improvements could be done at Memorial Pond, the top response was “looping trails” with a response rate of 60%. In the forested edge surrounding Memorial Pond a portion of the Bay Circuit Trail starts near the dock and navigates the southern edge of the pond with an access point on Stone Street where it continues outside of the park to the Town Forest. A trail diverges from the Bay Circuit section on the eastern side of the pond with an access point on Diamond Street. Although there are metal blazes with the Bay Circuit Trail emblem along the trail there are no trail markers at the access points on Stone Street or Diamond Street. Respondants to the survey commented “park trails could be better marked” and “I didn’t know there were trails there already." Improved wayfinding could help define and inform visitors of trail attractions.



Concept for trailhead creates clear wayfinding. The kiosk could include a trail map showing the Memorial Pond/Spring Brook Park trails, as well as the extended Bay Circuit Trail beyond the site perimeter. Trail length and estimated walking times; trail conditions/accessibility; wildlife information.



Diamond Street Connection: Although outside of the Memorial Pond boundary, Diamond Street could be part of a looping connection with the trails running through the north and south sides of the pond. Without a continuous sidewalk, a sidewalk and traffic study is recommended to determine the feasiblity of a safe connection.
Sidewalk Stone Street
Concept for trailhead wayfinding around Memorial Pond.
Diamond Street
Inlaid Stone Arch
Boulder
Plan view of trailhead elements, including an inlaid stone arch inspired by the arch of the bridge at the dam. The archway imagery helps offer cohesion around the site.
Information Kiosk
Boulder
The existing trailhead along Diamond Street is unremarkable.
Boulder
Green Infrastructure: Managing Stormwater
Infiltration Bump-outs along School Street
As a critical project goal is mitigation of the negative stormwater impacts on the pond, the design offers several green infrastructure strategies to intercept the water allowing it to either recharge into the ground or slowing it to cool it, clean it, and prevent erosion. Starting along School Street, infiltration basins are installed at existing drain grates for efficient construction wherever possible. Several additional basins are also installed requiring some new piping.





Rain Gardens
A rain garden located near the existing dock intercepts runoff from the area above before it hits the pond. In heavy storm events, when the basin fills beyond capacity, an opening in the berm at the bottom of the slope allows excess water to drain out of the basin through channels in the stepping stone slabs and into the pond.

Three stone slabs at the overflow create a spillway that also allows pedestrians to cross and remain on the path to the dock or Bay Circuit Trail.



An example of boardwalks crossing rain gardens designed by LaGuardia Design Group.
An example of an infiltration basin bumped out along a street for traffic-calming.
Basins are excavated from the existing hellstrip areas between the sidewalks and road.
An example of green infrastructure along the roadway.
Grading Plan Rain Gardens



Parking Lot Improvements
The size, location, and exposure of the parking lot on-site create a few challenges. First, its location between the heart of downtown and the Spring Brook/Stone Field site limits pedestrian movement across the space; there is a safety concern where pedestrians may come in conflict with vehicular movement, and the vast, exposed impervious surface retains heat and lacks aesthetic appeal. Additionally, this surface is heating and polluting stormwater runoff without much mitigation before the water drains into local water bodies including Spring Brook.
Also, the new Main Street Mural next to the Dance Center is situated in an alley that leads directly from Main Street into this municipal lot. Creating a pedestrian pathway that starts in this alley would help bring attention to and celebrate this iconic work.


The size of the lot could easily accommodate both safe pedestrian passage and a sizable infiltration basin with a few simple shifts to the painted parking bays. Currently, two of the aisles between the bays are 23' while all that is required is 20'. Shifting the top half of Bay A to the north 5' would allow for a 5' wide pedestrian pathway from the mural alley to Stone Field. In this scenario Bay B would also shift to the north, still allowing the minimum aisle width of 20'. Along the route, a building just to the southeast of the alley has an exposed wall that could offer another potential mural surface to enhance the interest of the route. Just beyond that building, a small pocket park could be developed for additional appeal with a tree for cooling.
The aisle farthest to the north has a large unneeded area of pavement that could be converted to an infiltration basin. Grades in the lot already drain toward this area, so the location is ideal. The design offers a generous capture area while retaining the number of parking spaces. The largest aisle to the north is currently 33' at its tightest point, leaving plenty of room to accomodate a shifted row of parking and the basin.
The infiltration basin in this location offers a subtle reminder that Spring Brook dives underground and flows right beneath the surface here, continuing through the Town Center until it re-emerges to join the Neponset River to the northeast. This basin could be planted with blue flowering species such as baptisia and amsonia as a nod to the water below. A variety of ornamental grass species could also represent water as they they sway in the breeze.
PaintedPedestrianPathway-5'




The Main Street Mural painted by Ruby Rose and Jonathan Stasiukevicius is located between a dance center and real estate office in the Town Center. The project was funded by the local nonprofit Destination Downtown.
The parking lot's existing topography includes a swale that could be directed to drain into the new infiltration basin.
This parking lot from the Mt. Cuba center in Delaware shows how simply emphasizing the crosswalk brings it to attention to create a safer pathway. Large infiltration basins between the bays clean, slow, and cool stormwater and add to the visual appeal of the space.
An infiltration basin eliminates unnecessary impervious asphalt; the shifted parking bay maintains the same number of spaces.
Infiltration Basin
Painted Emphasis at "Driveway" Areas for Safety
New Threshold Entry to Stone Field
Example of a parking lot infiltration basin with curb cuts to allow stormwater to enter the system.
Spotlight on Cattails & Common Reed (Typha & Phragmites)
Common Reed/Phragmites
Common Reed, Phragmites australis, is an aggressive wetland grass introduced from Europe in the 19th century. While it can quickly outcompete our native species, and reduce biodiversity in the water and along the edges it dominates, it also offers habitat to birds, and filters nutrients out of the water which is critical for keeping populations of other, even more destructive invasive species low. Algae and Millfoil, in particular, explode in the presence of nutrients at a faster rate than other species. Millfoil is also detrimental to fish populations, so limiting the availability of those nutrients is critical. There are multiple up-stream sources of nutrients that are likely currently draining into the pond: the Diamond Street residences abutting the eastern edge of the pond that maintain lawn to the edge may be shedding fertilizer runoff into the pond; the golf course at the County Club; and the three smaller stream inlets that are culverted into the pond. While the Phragmites may not be ideal, its value filtering pollutants may warrant keeping the stands intact, other than where some control or clearing may be desired for views and water access, particularly near the dam. Also note the multiple ways in which it spreads:
• Wind and water disperal of seeds (2,000 seeds per seedhead)
• Stolons (aboveground stems)
• Rhizomes (underground stems)
Managing its spread can be attempted by mowing or hand-cutting after July 15 to avoid interfering with nesting wildlife. Ongoing monitoring and management needs to be performed annually. Also note that water depths of 6' or more halt its spread.

Cattails/Typha
While they also have spreading tendencies, Cattails, Typha latifolia, are a desirable native species for their filtering abilities of nitrogen and phorphorus, and for the habitat they create. They offer refuge and nesting to birds and fish, and are often targeted specifically by fishermen to increase catch rates. (D. Burchsted) Reproduction is both by seed (200,000 seeds per head) and by rhizome cloning.
Several organizations are evaluating the feasibility of using floating Cattail filtration mats to remove nutrients from water bodies. Applied to the pond, these mats could be anchored in place, absorb pollutants all season, and then the top growth would be harvested and disposed of in fall, removing the pollutants from the pond's ecosystem, and minimizing organic debris. The mats with the remaining root structures would then be placed back in the pond to continue the cycle the following year.


The annual death and decay cycle of any vegetation in a pond will contribute to the build up of organic matter and therefore eutrophication of the pond. Collecting and disposing of any edge material that either dies naturally or is cut will help reduce this build up. While future dredging projects likely cannot be entirely avoided, managing the organic build-up can help reduce the frequency with which dredging may be required.



Phragmites. Photo by Randy Robertson
Curry Industries hydroponic filtration system.
Cattails edging a pond. Source: The Spruce
Cattail and reed habitat flanking the dam at Memorial Pond.
Cattail and reed habitat along the northwest edge serves a habitat for nesting swans.
Plant Palette: Infiltration Basins at Pond, Town Hall, School Street, & Parking Lot














Amsonia tabernaemontana Asclepias tuberosa
Iris versicolor
Juncus effusus
Lobelia siphilitica
Eupatorium dubium
Panicum
Dryopteris marginalis
Chasmanthium
Baptisia australis
Chelone glabra
Schizachyrium
Plant Palette: Spring Brook Park
Along East Street/Play Area




Play
"Lawn"















Amelanchier
Aronia
Athyrium
Zizia
Ilex opaca
Gillenia
Diervilla
Chamaecyparis
Lindera Cercis
Carex
Ilex
Clethra
Onoclea Osmunda
Plant Palette: Spring Brook Park
Stone Field Upland (along the existing path)
Botanical Name Common Name Mature Height Qty Purchase Size
Amelanchier canadensis Serviceberry 18' 5 2" cal clmp
Amsonia hubrichtii Willowleaf Bluestar 42" 143 plug
Amsonia tabernaemontana Eastern Bluestar 4' 300 plug
Deschampsia flexuosa Wavy Hair Grass 18" 955 plug
Diervilla lonicera Bush Honeysuckle 3' 78 3 gallon
Gillenia trifoliata Bowman's Root 3' 357 plug
Magnolia virginiana Sweetbay Magnolia 20' 5 7-8' clump
Penstemon digitalis Beardtongue 30" 1,300 plug
Vaccinium corumbosum 'Jersey' Highbush Blueberry 5' 16 3 gallon
Vaccinium corumbosum 'Blue Ray' Highbush Blueberry 5' 16 3 gallon
V. corumbosum 'North Blue' Compact Highbush Blueberry 3' 16 3 gallon
School Street Hellstrips
Botanical Name Common Name Mature Height Qty Purchase Size
Asclepias tuberosa Butterflyweed 2' plug
Lysimachia lanceolata 'Burgundy Mist' Lance-leaved loosestrife 15" plug
Pycnanthemum virginianum American Mountain Mint 2' plug
Sisyrinchium angustifolium Blue-Eyed Grass 12" plug















Amelanchier (fall)
Vaccinium
Amsonia hubrichtii
Amsonia tabernaemontana
Penstemon
Gillenia
Diervilla
Deschampsia
Magnolia
Sisyrinchium
Lysimachia
Asclepias
Pycnanthemum
Hellstrips
Upland
Plant Palette: Town Hall Pollinator Garden
Perennials
Botanical Name
Agastache foeniculum Hummingbird Mint 3' seed
Aster laevis Smooth Aster 3' seed
Aster novae-angliae New England Aster 4-5' seed
Carex pensylvanica Pennsylvania Sedge 14" seed
Deschampsia flexuosa Wavy Hair Grass 18" seed
Echinacea pallida Pale Purple Coneflower 4' seed
Echinacea purpurea Purple Coneflower 3' seed
Monarda punctata Spotted Beebalm 2' seed
Penstemon digitalis Beardtongue 30" seed
Pycnanthemum tenuifolium Slender Mountain Mint 30" seed
Rudbeckia fulgida Black-Eyed Susan 3' seed
Schizachyrium scoparium Little Bluestem 4' seed
Sporobolus heterolepsis Prairie Dropseed 3' seed
Solidago caesia Blue-Stemmed Goldenrod 30" seed
Solidago speciosa Showy Goldenrod 3' seed
Small Trees and Shrubs (see "Spring Brook Park Upland" for Photos)
Botanical Name
Amelanchier canadensis Serviceberry 18' 2 2" cal clmp
Aronia arbutifolia Red Chokeberry 5' 8 3 gallon
Aronia melanocarpa Black Chokeberry 5' 7 3 gallon
Diervilla lonicera Bush Honeysuckle 3' 14 3 gallon
Hypericum frondosum St. John's Wort 3' 54 3 gallon
Ilex glabra Inkberry Holly 5' 60 3 gallon
Magnolia virginiana Sweetbay Magnolia 20' 4 7-8' clump
Vaccinium corumbosum 'Jersey' Highbush Blueberry 5' 23 3 gallon
Vaccinium corumbosum 'Blue Ray' Highbush Blueberry 5' 23 3 gallon
V. corumbosum 'North Blue' Compact Highbush Blueberry 3' 23 3 gallon


















Agastache
Penstemon
Aster laevis
A. novae-angliae
Monarda
Echinacea pallida
Deschampsia
Carex
E. purpurea
Schizachyrium
Pycnanthemum Rudbeckia Sporobolus
Solidago caesia
S. speciosa
Hypericum
Plant Palette: Dam/Deck Area
Dam/Deck & former Gravel Parking Area
Botanical Name Common Name
Amelanchier canadensis Serviceberry 18' 7 2" cal clmp
Aronia melanocarpa Black Chokeberry 5'' 28 3 gallon
Aronia arbutioflia Red Chokeberry 5' 28 3 gallon
Clethra alnifolia 'Hummingbird' Dwarf Summersweet 3'
Hypericum frondosum St. John's Wort
Magnolia virginiana Sweetbay Magnolia 20' 3 7-8'
Panicum virgatum 'Shenandoah' Shenandoah Switchgrass 3' 70 plug
Vaccinium corymbosum 'Blueray' Highbush Blueberry
Vaccinium corymbosum 'Patriot' Highbush Blueberry
V. corymbosum 'North Blue' Compact Highbush Blueberry
Playground and Library
Name
Amelanchier canadensis Serviceberry
Athyrium felix-femina Lady Fern
Cercis canadensis Eastern Redbud
Comptonia peregrina Sweetfern
Magnolia virginiana Sweetbay Magnolia
Zizia aurea Golden
Shade Trees
rubrum Red Maple
sylvatica Black Gum
occidentalis Sycamore
Quercus bicolor White Swamp Oak

Dam/Deck Area







Playground & Library









Amelanchier
Aronia
Clethra (fall)
Quercus
Zizia
Cercis
Panicum
Magnolia
Hypericum
Comptonia
Vaccinium (fall)
Nyssa
Platanus
Cost Estimates
Caveat
Given current uncertainties regarding tariffs and other financial conditions, accurately estimating future costs is extremely difficult. The cost estimates on this sheet are approximations based on current prices which may fluctuate wildly, and cannot predict future contingencies.
Spring Brook Park, Town Hall, & School Street
Memorial Pond
