Actividades del Foro Cerámico Hispalyt 2024-2025

Page 1


Programa de actividades

Curso académico 2024/2025

Actividades organizadas por:

Edita Foro Cerámico Hispalyt

Coordinación editorial y selección de material

Enrique Sanz Neira Diseño gráfico y maquetación conarquitectura ediciones Los autores aportan su trabajo desinteresadamente. Se han publicado íntegramente las miniaturas de la documentación presentada por los participantes y una selección escogida de la misma.

PRESENTACIÓN

Me satisface presentar el libro con el resumen de las actividades que el Foro Cerámico universitario Hispalyt ha realizado durante el curso académico 2024/2025

El Foro Cerámico, que está promovido por la Sección de Ladrillos Cara Vista de Hispalyt, tiene como actividad principal el Concurso de Proyectos, que este curso 2024/2025 ha consistido en el diseño de un Club de Piragüismo en Zaragoza con fachadas de ladrillo cara vista

Un año más comprobamos el interés que tanto los alumnos como las Escuelas participantes muestran por el Concurso de Proyectos. En el curso 2024/2025 se ha convocado Premio

Local en las 15 Escuelas de Arquitectura siguientes inscritas al Concurso: Alicante, Barcelona-La Salle, Barcelona-UIC, Barcelona-UPC, Cartagena, Madrid-CEU, Madrid-UEM, Málaga, Murcia, Navarra, Sevilla, Toledo, Valencia-CEU, Valencia-UPV y Zaragoza.

Por su parte, al Premio Local Hispalyt se presentaron 14 proyectos de las Escuelas donde había quedado el Premio desierto, de las Escuelas no inscritas a este Concurso y de arquitectos recién titulados en Escuelas que, habiendo celebrado Premio Local, no permitían su participación.

En total, se recibieron 256 proyectos en los Premios Locales (Escuelas e Hispalyt), otro éxito más de esta convocatoria que supone la consolidación de este Concurso a nivel nacional. Los proyectos han alcanzado un nivel excepcional, lo que pone de manifiesto el gran talento y la creatividad de los jóvenes arquitectos en formación en las Escuelas de Arquitectura de España.

Por último, en el Premio Nacional del Concurso de Proyectos participaron los 44 proyectos ganadores y mencionados de los Premios Locales.

Me gustaría aprovechar esta oportunidad para resaltar el esfuerzo y la dedicación de los profesores coordinadores de las Escuelas de Arquitectura colaboradoras. Su trabajo ha convertido al Foro Cerámico en un referente como lugar de encuentro entre la Universidad y la Empresa. Quiero expresar mi más sincero agradecimiento y reconocimiento por su gran profesionalidad y espíritu de colaboración a lo largo de todos estos años.

Con respecto a la segunda actividad del Foro Cerámico, el Premio Trabajo Fin de Máster (TFM) en el curso 2024/2025 ha recibido 15 propuestas.

Mi más sincera enhorabuena tanto a los ganadores como al resto de participantes del Concurso de Proyectos y del Premio TFM. Estoy seguro de que, gracias al talento y la habilidad que han demostrado, les espera un futuro lleno de éxitos.

Nos sentimos muy afortunados de contar con la profesionalidad y el buen juicio de los arquitectos que integran el Jurado del Concurso de Proyectos y del Premio TFM. Quiero expresar mi agradecimiento hacia ellos, ya que su apoyo es esencial para elevar el nivel de estos premios.

La tercera actividad del Foro consiste en la organización de las conferencias ‘Lecciones aprendidas: el arquitecto cuenta su obra’, cuyo propósito es mostrar a los estudiantes la amplia variedad y calidad de las obras realizadas con ladrillo visto en nuestro país. En estas conferencias han participado arquitectos y estudios de gran renombre, quienes han presentado sus proyectos más destacados en ladrillo cara vista, como 08014 Arquitectura, b720 Fermín Vázquez Arquitectos, aybar.mateos.arquitectos, Batlle Roig, Burgos y Garrido Arquitectos, Marina UNO Arquitectos, NOARQ José Carlos Nunes de Oliveira, Harquitectes, Néstor Montenegro, Peris y Toral arquitectes y Mesura. Se han impartido charlas a los alumnos de 22 Escuelas de Arquitectura de toda España, a las que han asistido 1.378 personas.

Finalmente, el Foro Cerámico brinda a las Escuelas de Arquitectura de toda España la oportunidad de organizar Conferencias sobre novedades y sistemas cerámicos donde se presentan las soluciones más avanzadas e innovadoras en cerámica desde la perspectiva de la industrialización, digitalización, sostenibilidad, entre otros temas, así como Visitas a fábricas, que permiten a los estudiantes conocer de primera mano el proceso de fabricación de los materiales cerámicos. Esto amplía su comprensión sobre las prestaciones técnicas y las posibilidades estéticas que estos materiales pueden aportar a su trabajo creativo.

En conclusión, el Foro Cerámico Hispalyt refuerza, curso tras curso, su compromiso de promover el intercambio de conocimientos entre la industria de cerámica estructural y las Escuelas de Arquitectura de nuestro país, contribuyendo al desarrollo de la profesión de arquitecto.

Confío en que encuentren esta publicación interesante.

Pedro Rognoni Escario Presidente de Hispalyt

CONCURSO DE PROYECTOS

CLUB DE PIRAGÜISMO EN ZARAGOZA

CON

FACHADAS DE LADRILLO CARA VISTA

El objetivo de este Concurso es premiar a estudiantes y arquitectos recién titulados que realicen con talento el diseño de un proyecto, similar a los ejercicios académicos que desarrollan durante su paso por las Escuelas de Arquitectura, sobre una temática concreta que cambia cada curso y en el que los materiales cerámicos, como el ladrillo cara vista, suponen una parte importante del mismo. Este curso 2024/2025 el Concurso consiste en diseñar un club de piragüismo en Zaragoza con fachadas de ladrillo cara vista.

En esta edición del Concurso de Proyectos se ha establecido un Premio Nacional , al que han concurrido los ganadores y mencionados en los Premios Locales en Escuelas y en el Premio Local Hispalyt .

BASES DEL CONCURSO Y OTROS

En la dirección https://www.foroceramico.es/concurso-proyectos/anos-anteriores se encuentra la siguiente información sobre el XIX Concurso del Foro Cerámico Hispalyt del curso 2024/2025:

• Nota de prensa Fallo Jurado y Ganadores

• Proyectos Ganadores Premios Locales y Premio Nacional

• Actas con el Fallo del Jurado Premio Nacional y Premios Locales

• Documentación del Concurso

• Bases

Premios Locales en Escuelas para estudiantes de cada una de las Escuelas de Arquitectura inscritas al Foro Cerámico:

• A Coruñ a UAC: Cristóbal Crespo González (Profesor y Director del Dpto. de Proyectos Arquitectónicos, Urbanismo y Composición)*

• Alicante UA: Antonio Macià Mateu (Profesor Titular Proyectos-Estructuras)

• Barcelona La Salle: Adrià Sánchez Llorens (Profesor Sistemas de Representación)

• Barcelona UIC: Íñigo Ugalde Blázquez (Profesor de Proyectos Arquitectónicos y de Pensamiento Crítico)

• Barcelona UPC: Belén Onecha Pérez (Subdirectora de Patrimonio, Obras e Infraestructuras de la ETSAB)

• Cartagena UPCT: Pedro García Martínez (Profesor del Área de Proyectos y Secretario del Dpto. de Arquitectura y Tecnología)

• Granada UGR: Elisa Valero Ramos (Catedrática de Proyectos Arquitectónicos)*

• Madrid CEU: Carlos Miguel Iglesias Sanz (Profesor Área Proyectos)

• Madrid UEM: Néstor Montenegro Mateos y Javier Mosquera González (Profesores del Dpto. de Proyectos)

• Madrid UPM: Enrique Colomés Montañés (Profesor Dpto. Proyectos)*

• Madrid URJC Aranjuez: José María Echarte Ramos (Profesor de Proyectos y Teoría y Crítica)*

• Madrid URJC Fuenlabrada: José María Echarte Ramos (Profesor de Proyectos y Teoría y Crítica)*

• Málaga UMA: Ferrán Ventura Blanch (Profesor Dpto. Proyectos)

• Murcia UCAM: Lorenzo Tomás Gabarrón (Profesor de Tª e Hª General de la Arquitectura y Proyectos Arquitectónicos)

• Navarra UN: Marta García Alonso (Profesora Área Proyectos)

• San Sebastián UPV/EHU: Leire Azcona Uribe (Secretaria Académica)*

• Sevilla US: Javier Tejido Jiménez (Profesor Dpto. Proyectos)

• Segovia IE: Wesam Al Asali (Profesor en la Escuela de Arquitectura y Diseño)*

• Toledo UCLM: Juan Ignacio Mera González (Director y Profesor de Proyectos) y Sergio Cobos (Profesor Asociado)

• Valencia CEU: Javier Lahuerta Ferris (Profesor de Proyectos)

• Valencia UPV: Lourdes García Sogo (Profesora Dpto. Proyectos)

• Valladolid UVA: Julio Grijalba Bengoetxea (Profesor Titular Dpto. Tª Arq. y Proy.)*

• Zaragoza UNIZAR: Carlos Labarta Aizpún (Profesor Dpto. Proyectos)

*El Premio Local quedó desierto en estas escuelas al no alcanzar el número mínimo de 6 proyectos recibidos, tal y como se exige en las bases del Concurso de Proyectos.

El Premio Local Hispalyt se celebró el día 18 de julio de 2025 (ver pág. 9).

En el Concurso de Proyectos han participado alumnos matriculados en el curso académico 2023-2024 y Máster habilitante de todas las Escuelas Técnicas Superiores y Facultades de Arquitectura de España.

A continuación se recoge información sobre todas las propuestas recibidas, ordenadas las Escuelas alfabéticamente (por localidad) y los trabajos presentados (por orden de inscripción).

premio nacional

ACTA PREMIO NACIONAL

El 18 de julio de 2025 tuvieron lugar los fallos del Jurado del Premio Local Hispalyt (resto de Escuelas) y del Premio Nacional del Concurso de Proyectos, en el que se valoraron todos los proyectos ganadores y mencionados en los Premios Locales en Escuelas colaboradoras.

El Jurado estuvo compuesto por los arquitectos José Ignacio Linazasoro, Tomás Carranza Macías y Cristóbal Crespo González, además de Enrique Sanz, director de la revista conarquitectura y Pedro Rognoni, presidente de Hispalyt.

Los ganadores y mencionados de los Premios Locales en Escuelas participaron en el Premio Nacional. Los Premios que se otorgan son los siguientes:

• Premio Nacional Primer premio: 3.000 € Dos menciones: 1.000 €

El Jurado decidió otorgar los siguientes Premios:

• Primer Premio: BB3300. Jorge Bull Teller, Noordin Hassan Burguete y Paula Agudo Vicente (Escuela de Granada UGR)

• Primera Mención: AC7085. María Belloso Crespo, Daniel Álvarez Dueñas y Pablo Calzada Arias (Escuela de Valladolid UVA)

• Segunda Mención: KA1111. Alexander Swienton y Katarina Ratkovic (Escuela de Barcelona UIC)

Espacios que navegan Fue Tomás quien insistió en que fueran esa tarde, aunque Mateo, más por costumbre que por entusiasmo, aceptó sin demasiada resistencia. Habían oído que el club había reabierto, reconstruido sobre los restos del antiguo, que apenas se mantenía ya en pie salvo por la memoria de los que, como ellos, lo conocieron cuando aún tenía el aire austero de los lugares hechos para durar poco pero que, paradójicamente, perduran más en el recuerdo que los que se edifican con la intención expresa de la permanencia. Caminaron desde el puente de Hierro, bordeando el Ebro por ese sendero que los sauces y los plátanos han decidido convertir en propio, curvando sus ramas para ofrecer sombra sin que nadie se lo haya pedido. La ciudad, como tantas veces, parecía dar la espalda al río, o al menos mantenerse en una distancia prudente, acaso por respeto o por temor a esa naturaleza que a veces inunda sin previo aviso y sin aparente motivo. Pero allí, entre la vegetación algo domesticada y el rumor constante del agua, apareció la silueta del nuevo edificio.

No era exactamente lo que Mateo esperaba. No se alzaba, como suelen hacerlo los edificios deseosos de ser vistos, sino que parecía hundirse levemente, como si intentara pasar desapercibido o, más aún, fundirse con el terreno. Desde cierta distancia se intuían unas curvas, un gesto contenido en la piel de ladrillo que recubría buena parte de la fachada, pero nada revelaba del todo su forma. Y sin embargo, algo sugería que lo importante estaba dentro, que había que cruzar el umbral para entenderlo.

La puerta —una abertura amplia, de proporciones deliberadamente exageradas— se extendía de lado a lado, ocupando todo el ancho de la bóveda que la acogía. Y fue entonces, justo al atravesarla, cuando el espacio se reveló. No con estruendo, sino con un murmullo suave, como si alguien al otro lado hubiese dicho “adelante” sin abrir la boca.

Dentro, la temperatura descendía ligeramente. El hormigón, cubierto por la tierra desde el exterior, había acumulado la frescura de la ribera, y en su superficie cóncava se proyectaban, de forma tenue pero constante, los reflejos del agua. El sonido del Ebro llegaba amplificado por la forma del edificio, como si el río hablara más claro una vez dentro.

—No lo esperaba así —murmuró Mateo, sin dirigirse exactamente a Tomás, sino más bien al espacio, como si el edificio fuera capaz de escuchar.

Tomás no respondió de inmediato. Caminaba lento, observando. A la izquierda, un volumen de hormigón interrumpía el paso. Era casi un cilindro macizo, sin ornamentos, detrás del cual un recepcionista los saludó con una sonrisa sin levantar la voz. A ambos lados del pasillo que se abría más allá, el programa se desplegaba sin violencia, como si cada función del edificio hubiese encontrado su lugar natural: los vestuarios a la derecha, más allá del tambor; a la izquierda, las oficinas y las salas de formación. Todo con una claridad de uso que no necesitaba de rótulos ni señales.

A medida que avanzaban, descubrieron que desde el pasillo no era posible entender del todo lo que ocurría en las estancias. Solo al entrar en ellas se desvelaba el verdadero carácter del edificio: las exedras. No como decoración ni como capricho formal, sino como núcleos de sentido. En los vestuarios, por ejemplo, las duchas se refugiaban en esos nichos curvos, y la luz que descendía desde una abertura superior dibujaba formas móviles sobre el ladrillo. Era una luz que no iluminaba, sino que acariciaba. Ninguna exedra se revelaba desde el pasillo; era necesario entrar, detenerse, mirar. Cada una de ellas se convertía así en una suerte de secreto, no por oculto, sino por íntimo. Se entendía entonces que el edificio no ofrecía todo a primera vista. Había que merecerlo. Había que avanzar con calma, como se avanza por un río que no se conoce. En la zona del puerto, el lenguaje cambiaba levemente. Allí, las cubiertas se sostenían con pilares que parecían emerger del mismo ritmo de las estanterías donde dormían las embarcaciones. Todo estaba dispuesto con una lógica silenciosa, como si cada remo, cada kayak, cada bote supiera cuál era su sitio sin necesidad de ser guiado.

Tomás, que había recorrido muchos ríos y conocido muchos lugares destinados a lo mismo, se detuvo un instante.

—Nunca había visto algo así —dijo finalmente—. Aquí no se ha diseñado un lugar para guardar embarcaciones. Se ha creado un sitio desde el que recordarlas incluso cuando no están.

Mateo asintió sin hablar. El edificio, pensó, tenía algo de eso: de memoria contenida. No por nostálgico, sino por sabio.

Aferrados a sus palas, salieron al embarcadero. El Ebro seguía fluyendo. Siempre fluye. Pero ahora, tal vez, lo hacía un poco más cerca de la ciudad. O al menos, más cerca de ellos.

Autor/es María Belloso Crespo, Daniel Álvarez Dueñas y Pablo Calzada Arias (ETSA

El presente proyecto para el concurso del Foro Cerámico Hispalyt 2024/2025 propone la construcción de un Club de Piragüismo en Zaragoza, situado en la ribera del río Ebro. Más allá de responder únicamente a un programa deportivo, el proyecto nace con una voluntad clara de revitalizar el entorno urbano, actuando como punto de encuentro vecinal y remate simbólico del gran corredor verde que atraviesa el barrio.

Durante el análisis del lugar, se identificó una fuerte demanda ciudadana por espacios comunes de reunión, expresada incluso mediante pancartas en las fachadas de las viviendas cercanas. Este hecho se convierte en motor del diseño: el club no se plantea como una instalación cerrada, sino como una infraestructura abierta al barrio, accesible e integradora. La propuesta se adapta con precisión a la topografía en pendiente del solar, generando dos niveles funcionales bien diferenciados: uno inferior, próximo al río y destinado a usos técnicos e inundables; y otro superior, vinculado a la vida social, educativa y recreativa del club. Esta separación funcional responde tanto a criterios de uso racional del suelo como a una lectura atenta de las condiciones naturales del lugar.

Formalmente, el edificio se desarrolla de manera longitudinal, siguiendo la lógica del terreno y de la práctica deportiva que acoge. Todo el proyecto se estructura mediante una retícula constructiva basada en la modulación del ladrillo cara vista, material protagonista de la intervención, empleado no solo como cerramiento, sino también como elemento expresivo, estructural y rítmico.

El edificio busca fundirse con el paisaje, ser respetuoso con el entorno y a la vez ofrecer un nuevo lugar de encuentro para deportistas, vecinos y visitantes, convirtiéndose en un hito cívico y arquitectónico a orillas del Ebro.

2.Análisis del entorno y emplazamiento

Descripción del lugar (entorno físico, social y cultural)

El emplazamiento propuesto para el club de piragüismo se sitúa en la ribera del río Ebro, en Zaragoza, en un área caracterizada por su condición de frontera entre lo urbano y lo natural. Se trata de un espacio abierto de transición, una gran explanada verde que actúa como pulmón del barrio y como corredor ecológico perpendicular al cauce fluvial,

el Parque de Oriente que se culmina con el Reloj Solar, pero que actualmente presenta signos de infrautilización y desconexión social.

Desde el punto de vista físico, el solar presenta una topografía descendente hacia el río, lo que marca una diferencia de cotas significativa entre la parte más próxima a la ciudad (a nivel de calle) y la ribera propiamente dicha. Esta condición se convierte en una oportunidad para organizar los usos del edificio de forma escalonada, minimizando la alteración del terreno y aprovechando las visuales y la accesibilidad natural del lugar.

En cuanto al entorno construido, el área se encuentra próxima a infraestructuras de gran escala, como una autopista elevada, que introduce una barrera visual y acústica entre los barrios residenciales y el espacio fluvial. Sin embargo, también se detecta un potencial urbano latente: la explanada verde antes mencionada (Parque de Oriente) que conecta con el emplazamiento y funciona como un eje peatonal y ciclable, utilizado por los vecinos como vía de paseo, esparcimiento y deporte al aire libre. Desde una perspectiva social, durante la visita al lugar se constató un sentimiento colectivo de abandono o carencia de equipamientos, manifestado explícitamente en pancartas colocadas en balcones y ventanas con mensajes que reclamaban un centro cívico o un espacio común para el vecindario. Esta demanda ciudadana es interpretada como una llamada directa a dotar de contenido y centralidad a este espacio, hoy periférico y fragmentado, pero con gran potencial de transformación urbana y social. Culturalmente, el río Ebro ha sido históricamente un elemento vertebrador de Zaragoza, ligado al ocio, al deporte y al paisaje. Recuperar esa relación activa con el agua, a través de la práctica del piragüismo y de un nuevo equipamiento que fomente el contacto directo con el entorno natural, supone reconectar la ciudad con su memoria fluvial y su identidad territorial.

En este contexto, el proyecto se concibe no solo como un club deportivo, sino como una infraestructura cívica insertada en la estructura verde de la ciudad, capaz de ofrecer servicios, actividad y sentido de pertenencia a los habitantes del entorno.

1.Introducción y Concepto del Proyecto

•Innovación en el Diseño de Instalaciones Deportivas

-Rompe con los edificios deportivos convencionales al integrar de manera fluida el paisaje y los elementos construidos – el deporte se fusiona con el entorno natural.

-Inspirado en la ideología del Ha-Ha del siglo XVII, crea una transición armoniosa entre la arquitectura y la naturaleza.

•Diseño Específico para el Sitio y Contextual

-Se adapta a la topografía de la ribera del río en lugar de imponer una estructura rígida.

-Respeta el paisaje existente, la vegetación y los elementos históricos, aprovechándolos al máximo.

•Fachada de Ladrillo Expuesto y Materialidad

-Utiliza fachadas convencionales confinadas con un enfoque en el rendimiento térmico, respetando el entorno local.

-Garantiza durabilidad, bajo mantenimiento y una estética natural que realza el paisaje.

•Estrategias de Sostenibilidad y Accesibilidad

-Elementos de diseño pasivo (ventilación natural, sombreado y superficies permeables).

-Accesibilidad universal mediante recorridos fluidos y adaptados.

•Calidad Arquitectónica y Representación Cultural

-Se integra visual y simbólicamente en la identidad fluvial de Zaragoza.

-Combina principios de diseño históricos y modernos, consolidando su presencia como un hito público sin interferir con los elementos naturales.

2.Projecte

El contexto urbano y las estrategias priorizan dar visibilidad al entorno.

A escala urbana, el proyecto busca continuar los movimientos verticales (Norte-Sur) y horizontales (Oeste-Este) del río y su entorno. Esto influyó en el énfasis en la topografía y la perspectiva humana dentro del diseño.

El diseño se inspiró en el elemento paisajístico del siglo XVIII conocido como “Ha-Ha”, que permite mantener

vistas ininterrumpidas mientras controla cuidadosamente el movimiento, ya sea mediante elementos arquitectónicos o naturales. La serie de tres pabellones sigue la topografía naturalizada y se ubica estratégicamente por debajo del nivel de visión de la pasarela.

El edificio se separa de la alineación de la calle y del cauce del río. Mediante el uso de la topografía, el proyecto genera espacios paisajísticos que son abrazados y momentáneamente delimitados por envolventes cerámicas homogéneas y tierra elevada. El proyecto Terravista es una iniciativa para recuperar las vistas del hábitat natural en la orilla de Vadorrey. Actualmente, el sitio funciona como punto de partida para los usuarios del centro de piragüismo, un espacio para la práctica deportiva la reconexión con la naturaleza. Sin embargo, esta experiencia comienza sobre plataformas de hormigón amplias y dominantes, que ocupan un espacio que podría servir mejor a su propósito desde el momento del acceso. El diseño se fusiona con la urbanización circundante, utilizando materiales locales y técnicas constructivas tradicionales de hormigon, madera y ceramica para maximizar su integración y el respeto por el entorno existente. Desde el nivel superior (+195.50 – nivel de la pasarela), los techos parecen una extensión del entorno natural, sin obstruir las vistas del río, cuyo carácter delicado y frágil se ha mantenido en esta parte de Zaragoza.

En el nivel inferior (+192.4 – nivel plaza), todo el programa queda inmerso en la topografía. Los pabellones se iluminan a través de aperturas cuidadosamente diseñadas en sus perímetros, donde lucernarios y celosías aparecen estratégicamente para intensificar o difuminar la luz según la orientación solar.

La plaza actúa como una extensión natural de los espacios de actividad del centro de piragüismo, al mismo tiempo que sirve a la comunidad. De este modo, ambos espacios interactúan con límites difusos, favoreciendo una experiencia abierta para todos los usuarios.

[Memoria completa en www.foroceramico.es]

PREMIO LOCAL HISPALYT

El Fallo del Jurado del Premio Local Hispalyt tuvo lugar el 18 de julio de 2025. Se valoraron todos los proyectos presentados de estudiantes y arquitectos recién titulados de Escuelas de Arquitectura de España que no habían convocado Premio Local o que, habiéndolo convocado, éste había quedado desierto (Granada, Madrid UPM, Madrid URJC Aranjuez, Madrid URJC Fuenlabrada, Segovia, País Vasco y Valladolid) y de arquitectos recién titulados en Escuelas que, habiendo celebrado Premio Local, no permitían su participación (Alicante, Barcelona UIC, Navarra, Sevilla y Valencia-CEU). Finalmente, se otorgó una Mención al Lema: EG2324, Autor/ es: Eduardo García Álvaro y Gabriel Ubierna de la Universidad: Escuela de Arquitectura de Madrid UPM.

premios locales

ALICANTE UA

Escuela Politécnica Superior de la Universidad de Alicante

Coordinador: Antonio Macià Mateu (Profesor Titular ProyectosEstructuras)

BARCELONA LA SALLE

Escuela Superior de Arquitectura La Salle

Coordinador: Adrià Sánchez-Llorens (Profesor Sistemas de Representación)

BARCELONA UIC

Universidad Internacional de Cataluña

Coordinador: Iñigo Ugalde (Profesor de Proyectos Arquitectónicos y de Pensamiento Crítico)

BARCELONA UPC

Escuela Superior de Arquitectura de Barcelona

Coordinadora: Belén Onecha Pérez (Subdirectora de Patrimonio, Obras e Infraestructuras de la ETSAB)

CARTAGENA UPCT

Universidad Politécnica de Cartagena

Coordinador: Pedro García Martínez (Profesor del Área de Proyectos y Secretario del Dpto. de Arquitectura y Tecnología)

MADRID CEU

Escuela Politécnica Superior San Pablo CEU

Coordinador: Carlos Miguel Iglesias Sanz (Profesor Área Proyectos)

MADRID UEM

Universiad Europea de Madrid

Coordinadores: Néstor Montenegro Mateos y Javier Mosquera González (Profesores del Dpto. de Proyectos)

MÁLAGA UMA

Escuela de Arquitectura de Málaga

Coordinador: Ferrán Ventura Blanch (Profesor Dpto. Proyectos)

MURCIA UCAM

Escuela de Arquitectura de la Universidad Católica de Murcia

Coordinador: Lorenzo Tomás Gabarrón (Profesor de Tª e Hª General de la Arquitectura y Proyectos Arquitectónicos)

NAVARRA UN

Escuela de Arquitectura de la Universidad de Navarra

Coordinadora: Marta García Alonso (Profesora Área Proyectos)

SEVILLA US

Escuela de Arquitectura de Sevilla

Coordinador: Javier Tejido Jiménez (Profesor Dpto. Proyectos)

TOLEDO UCLM

Escuela de Arquitectura de Toledo

Coordinador: Juan Ignacio Mera González (Director y Profesor de Proyectos)

VALENCIA CEU

Universidad CEU Cardenal Herrera

Coordinador: Javier Lahuerta Ferris (Profesor de Proyectos)

VALENCIA UPV

Universidad Politécnica de Valencia

Coordinadora: Lourdes García Sogo (Profesora Dpto. Proyectos)

ZARAGOZA UNIZAR

Universidad de Zaragoza

Coordinador: Carlos Labarta Aizpún (Profesor Dpto. Proyectos)

En la dirección https://www.foroceramico.es/concurso-proyectos/anos-anteriores pueden descargarse documentos generales del Concurso del Foro Cerámico Hispalyt del curso 2024/2025 (Bases, Actas, etc.) y las propuestas ganadoras y mencionadas en este fallo local.

Autor/es Jorge Buil Teller, Noordin Hassan Burguete y Paula Agudo Vicente (ETSA Granada)

Espacios que navegan Fue Tomás quien insistió en que fueran esa tarde, aunque Mateo, más por costumbre que por entusiasmo, aceptó sin demasiada resistencia. Habían oído que el club había reabierto, reconstruido sobre los restos del antiguo, que apenas se mantenía ya en pie salvo por la memoria de los que, como ellos, lo conocieron cuando aún tenía el aire austero de los lugares hechos para durar poco pero que, paradójicamente, perduran más en el recuerdo que los que se edifican con la intención expresa de la permanencia. Caminaron desde el puente de Hierro, bordeando el Ebro por ese sendero que los sauces y los plátanos han decidido convertir en propio, curvando sus ramas para ofrecer sombra sin que nadie se lo haya pedido. La ciudad, como tantas veces, parecía dar la espalda al río, o al menos mantenerse en una distancia prudente, acaso por respeto o por temor a esa naturaleza que a veces inunda sin previo aviso y sin aparente motivo. Pero allí, entre la vegetación algo domesticada y el rumor constante del agua, apareció la silueta del nuevo edificio.

No era exactamente lo que Mateo esperaba. No se alzaba, como suelen hacerlo los edificios deseosos de ser vistos, sino que parecía hundirse levemente, como si intentara pasar desapercibido o, más aún, fundirse con el terreno. Desde cierta distancia se intuían unas curvas, un gesto contenido en la piel de ladrillo que recubría buena parte de la fachada, pero nada revelaba del todo su forma. Y sin embargo, algo sugería que lo importante estaba dentro, que había que cruzar el umbral para entenderlo.

La puerta —una abertura amplia, de proporciones deliberadamente exageradas— se extendía de lado a lado, ocupando todo el ancho de la bóveda que la acogía. Y fue entonces, justo al atravesarla, cuando el espacio se reveló. No con estruendo, sino con un murmullo suave, como si alguien al otro lado hubiese dicho “adelante” sin abrir la boca.

Dentro, la temperatura descendía ligeramente. El hormigón, cubierto por la tierra desde el exterior, había acumulado la frescura de la ribera, y en su superficie cóncava se proyectaban, de forma tenue pero constante, los reflejos del agua. El sonido del Ebro llegaba amplificado por la forma del edificio, como si el río hablara más claro una vez dentro.

—No lo esperaba así —murmuró Mateo, sin dirigirse exactamente a Tomás, sino más bien al espacio, como si el edificio fuera capaz de escuchar.

Tomás no respondió de inmediato. Caminaba lento, observando. A la izquierda, un volumen de hormigón interrumpía el paso. Era casi un cilindro macizo, sin ornamentos, detrás del cual un recepcionista los saludó con una sonrisa sin levantar la voz. A ambos lados del pasillo que se abría más allá, el programa se desplegaba sin violencia, como si cada función del edificio hubiese encontrado su lugar natural: los vestuarios a la derecha, más allá del tambor; a la izquierda, las oficinas y las salas de formación. Todo con una claridad de uso que no necesitaba de rótulos ni señales.

A medida que avanzaban, descubrieron que desde el pasillo no era posible entender del todo lo que ocurría en las estancias. Solo al entrar en ellas se desvelaba el verdadero carácter del edificio: las exedras. No como decoración ni como capricho formal, sino como núcleos de sentido. En los vestuarios, por ejemplo, las duchas se refugiaban en esos nichos curvos, y la luz que descendía desde una abertura superior dibujaba formas móviles sobre el ladrillo. Era una luz que no iluminaba, sino que acariciaba. Ninguna exedra se revelaba desde el pasillo; era necesario entrar, detenerse, mirar. Cada una de ellas se convertía así en una suerte de secreto, no por oculto, sino por íntimo. Se entendía entonces que el edificio no ofrecía todo a primera vista. Había que merecerlo. Había que avanzar con calma, como se avanza por un río que no se conoce.

En la zona del puerto, el lenguaje cambiaba levemente. Allí, las cubiertas se sostenían con pilares que parecían emerger del mismo ritmo de las estanterías donde dormían las embarcaciones. Todo estaba dispuesto con una lógica silenciosa, como si cada remo, cada kayak, cada bote supiera cuál era su sitio sin necesidad de ser guiado.

Tomás, que había recorrido muchos ríos y conocido muchos lugares destinados a lo mismo, se detuvo un instante.

—Nunca había visto algo así —dijo finalmente—. Aquí no se ha diseñado un lugar para guardar embarcaciones. Se ha creado un sitio desde el que recordarlas incluso cuando no están.

Mateo asintió sin hablar. El edificio, pensó, tenía algo de eso: de memoria contenida. No por nostálgico, sino por sabio.

Aferrados a sus palas, salieron al embarcadero. El Ebro seguía fluyendo. Siempre fluye. Pero ahora, tal vez, lo hacía un poco más cerca de la ciudad. O al menos, más cerca de ellos.

Autor/es María Belloso Crespo, Daniel Álvarez Dueñas y Pablo Calzada Arias (ETSA Valladolid)

El presente proyecto para el concurso del Foro Cerámico Hispalyt 2024/2025 propone la construcción de un Club de Piragüismo en Zaragoza, situado en la ribera del río Ebro. Más allá de responder únicamente a un programa deportivo, el proyecto nace con una voluntad clara de revitalizar el entorno urbano, actuando como punto de encuentro vecinal y remate simbólico del gran corredor verde que atraviesa el barrio.

Durante el análisis del lugar, se identificó una fuerte demanda ciudadana por espacios comunes de reunión, expresada incluso mediante pancartas en las fachadas de las viviendas cercanas. Este hecho se convierte en motor del diseño: el club no se plantea como una instalación cerrada, sino como una infraestructura abierta al barrio, accesible e integradora. La propuesta se adapta con precisión a la topografía en pendiente del solar, generando dos niveles funcionales bien diferenciados: uno inferior, próximo al río y destinado a usos técnicos e inundables; y otro superior, vinculado a la vida social, educativa y recreativa del club. Esta separación funcional responde tanto a criterios de uso racional del suelo como a una lectura atenta de las condiciones naturales del lugar.

Formalmente, el edificio se desarrolla de manera longitudinal, siguiendo la lógica del terreno y de la práctica deportiva que acoge. Todo el proyecto se estructura mediante una retícula constructiva basada en la modulación del ladrillo cara vista, material protagonista de la intervención, empleado no solo como cerramiento, sino también como elemento expresivo, estructural y rítmico.

El edificio busca fundirse con el paisaje, ser respetuoso con el entorno y a la vez ofrecer un nuevo lugar de encuentro para deportistas, vecinos y visitantes, convirtiéndose en un hito cívico y arquitectónico a orillas del Ebro.

2.Análisis del entorno y emplazamiento

Descripción del lugar (entorno físico, social y cultural)

El emplazamiento propuesto para el club de piragüismo se sitúa en la ribera del río Ebro, en Zaragoza, en un área caracterizada por su condición de frontera entre lo urbano y lo natural. Se trata de un espacio abierto de transición, una gran explanada verde que actúa como pulmón del barrio y como corredor ecológico perpendicular al cauce fluvial,

el Parque de Oriente que se culmina con el Reloj Solar, pero que actualmente presenta signos de infrautilización y desconexión social.

Desde el punto de vista físico, el solar presenta una topografía descendente hacia el río, lo que marca una diferencia de cotas significativa entre la parte más próxima a la ciudad (a nivel de calle) y la ribera propiamente dicha. Esta condición se convierte en una oportunidad para organizar los usos del edificio de forma escalonada, minimizando la alteración del terreno y aprovechando las visuales y la accesibilidad natural del lugar.

En cuanto al entorno construido, el área se encuentra próxima a infraestructuras de gran escala, como una autopista elevada, que introduce una barrera visual y acústica entre los barrios residenciales y el espacio fluvial. Sin embargo, también se detecta un potencial urbano latente: la explanada verde antes mencionada (Parque de Oriente) que conecta con el emplazamiento y funciona como un eje peatonal y ciclable, utilizado por los vecinos como vía de paseo, esparcimiento y deporte al aire libre. Desde una perspectiva social, durante la visita al lugar se constató un sentimiento colectivo de abandono o carencia de equipamientos, manifestado explícitamente en pancartas colocadas en balcones y ventanas con mensajes que reclamaban un centro cívico o un espacio común para el vecindario. Esta demanda ciudadana es interpretada como una llamada directa a dotar de contenido y centralidad a este espacio, hoy periférico y fragmentado, pero con gran potencial de transformación urbana y social. Culturalmente, el río Ebro ha sido históricamente un elemento vertebrador de Zaragoza, ligado al ocio, al deporte y al paisaje. Recuperar esa relación activa con el agua, a través de la práctica del piragüismo y de un nuevo equipamiento que fomente el contacto directo con el entorno natural, supone reconectar la ciudad con su memoria fluvial y su identidad territorial.

En este contexto, el proyecto se concibe no solo como un club deportivo, sino como una infraestructura cívica insertada en la estructura verde de la ciudad, capaz de ofrecer servicios, actividad y sentido de pertenencia a los habitantes del entorno. [Memoria

Lema CO2001

Autor/es Álvaro Pérez García y Marco Arellano Pérez

Lema JL0007

Autor/es Nicolás Sancho Cuasante

Lema CS3401

Autor/es Mario Linaes del Valle, Alba González Terceño y Javier San Gil Sánchez

Lema JO2529

Autor/es Joel Cotardo Valcárcel

Lema FI1304

Autor/es María de las Mercedes Herrera Ramos

Lema LB1111

Autor/es Daniel Beato Juarez

Lema HR1209

Autor/es David Leno Luceño

Lema LM0547

Autor/es Juan Luis Vela Miranda

Autor/es Antonio Vázquez Ríos

Autor/es Miguel Ángel Ygoa Fernández de Castro

Zara

Autor/es Andrea Sánchez Sánchez, Mar Sola Sanmartín y Rita Vázquez Padín
Lema MP3118
Lema MX2252
Lema PI2408
Autor/es
Engelen y José María Sánchez Gómez
Lema SE3010

Autor/es Alejandro Gualda Martínez Lema AG7000 PRIMER PREMIO

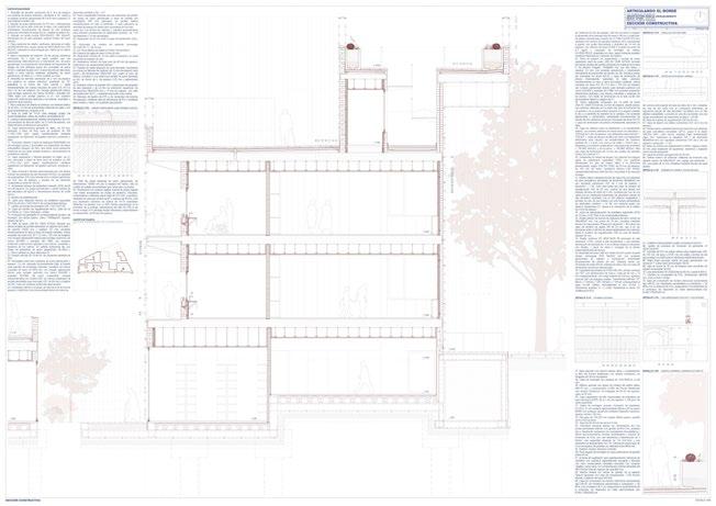
Con vistas al Ebro es un proyecto de regeneración urbana y paisajística que nace de una oportunidad: recuperar un punto de contacto entre la ciudad de Zaragoza y el río Ebro. El lugar, una explanada ribereña con un edificio abandonado, presentaba ya una plataforma y una pasarela que salvaba el leve desnivel entre la ciudad y el borde fluvial. La propuesta parte de eliminar el edificio existente y mantener tanto la plataforma como el eje de la pasarela, prolongándolo hasta el río para convertirlo en un mirador y, a su vez, en el elemento estructurador del proyecto.

Sobre este eje longitudinal y uno transversal que sigue el desnivel entre plataformas, se define una estrategia volumétrica clara: un edificio en forma de L, con dos alas similares unidas en un ángulo obtuso que abre las vistas hacia el río. Esta disposición permite organizar los usos y enfatizar la relación entre ciudad, parque y agua. La pasarela original se convierte en parte de la cubierta transitable del nuevo edificio, integrándose como espacio público y prolongación natural del recorrido urbano.

El edificio se fractura a lo largo de los ejes, permitiendo la continuidad visual y física entre el parque y el puerto fluvial. A su vez, la organización en planta y en sección distingue entre lo privado y lo público: en planta baja se ubican los usos deportivos y administrativos del club de piragüismo, mientras que en la planta superior se sitúan espacios abiertos a la ciudad como la cafetería y los vestuarios. Así, el proyecto articula un nuevo vínculo entre la ciudad y su río, promoviendo el deporte, el encuentro ciudadano y el disfrute del paisaje.

La fachada principal se retranquea tras la celosía y se construye con una hoja doble confinada, con aislamiento térmico y acabado exterior en ladrillo caravista Jerusalén Británico de La Paloma. En la fachada sur, las carpinterías resuelven también los dinteles estructurales. Para el pavimento exterior y zonas públicas interiores como la cafetería, se emplea el adoquín cerámico Camell de Malpesa, colocado en espina de pez. Los techos y el mobiliario se resuelven con tableros OSB, que aportan confort acústico y una textura cálida al conjunto.

Volumen Oeste (bloque deportivo): funcionamiento y programa

Este volumen, que prolonga el eje de la pasarela hacia el río, concentra los espacios vinculados directamente con la actividad del piragüismo. Su planta baja se adapta al desnivel del terreno, generando una doble altura. En el extremo más próximo a la ciudad se ubica el vestíbulo, desde el cual se accede al taller y al control de entrada al almacén de piraguas. El taller, pensado tanto para clases como para mantenimiento, se sitúa a la misma cota que el vestíbulo, mientras que el almacén queda 1,5 metros por debajo, conectado por un corredor alineado con el eje de la pasarela.

La conexión vertical entre estos espacios se resuelve con una escalera que comunica el almacén (cota 0), el taller (cota +1,5 m) y el gimnasio, ubicado en la planta primera. Este último cuenta con su propio vestíbulo y acceso controlado, y se abre hacia las vistas del río. A su lado, en la zona norte del volumen, se sitúan los vestuarios, permitiendo una relación directa y lógica entre todas las funciones deportivas. El diseño del volumen asegura que el recorrido de los usuarios (desde el almacén hasta el gimnasio y los vestuarios) sea fluido, funcional y sin necesidad de salir del edificio.

[Memoria completa en www.foroceramico.es]

El uso del material cerámico es fundamental en el proyecto, tanto por su rendimiento técnico como por su capacidad para articular relaciones entre lo público y lo privado. Las fachadas norte y oeste se resuelven con superficies opacas que refuerzan la orientación del edificio hacia el río y mejoran el comportamiento térmico. En la fachada norte del bloque este, una celosía de ladrillo cerámico permite la ventilación cruzada y tamiza la luz, generando una transición suave entre interior y exterior. Esta solución también se aplica en algunos espacios interiores como elemento de ventilación natural.

Autor/es Marco Kees Dijkstra

1.CONSTRUCCIÓN

1.1. Rehabilitación de la planta baja existente

El proyecto parte de la reutilización de una estructura preexistente de hormigón armado en planta baja, una decisión motivada por criterios tanto ambientales como funcionales. La resistencia del hormigón frente a la humedad y su durabilidad lo convierten en un material especialmente adecuado para esta planta, expuesta ocasionalmente a inundaciones por las crecidas del río Ebro. Su conservación permite aprovechar la robustez del sistema estructural original y adaptarlo al nuevo programa, minimizando la huella de carbono y los residuos de obra.

1.2. Nueva planta superior

La planta primera se construye íntegramente con soluciones cerámicas, utilizando un sistema de muro con cámara ventilada. Esta fachada se compone de un revestimiento exterior de ladrillo cerámico cara vista beige, una subestructura metálica y una hoja interior de ladrillo cerámico del 7. Esta solución no solo favorece el comportamiento térmico del edificio, sino que también responde a un lenguaje constructivo contemporáneo vinculado con la tradición cerámica.

1.3. Elementos estructurales cerámicos

El diseño incorpora bóvedas cerámicas en catenaria como solución estructural y expresiva en distintas zonas del proyecto. En áreas como la fachada noreste (acceso desde la pasarela) o el café-bar, estas bóvedas son autoportantes, trabajando a compresión pura sin necesidad de elementos auxiliares. En otras partes del edificio, donde estas bóvedas soportan cargas adicionales, se recurre al refuerzo mediante perfiles metálicos o mallazos estructurales, garantizando la estabilidad del conjunto sin comprometer la coherencia estética.

2.USO DE MATERIALES CERÁMICOS

2.1. Fachadas

La estrategia de fachada distingue dos tratamientos según la planta:

•Planta baja: Revestida con cerámica extrusionada esmaltada sobre el hormigón armado existente. Esta elección refuerza la resistencia a la humedad en una planta susceptible de mojarse por

crecidas, al mismo tiempo que aporta un acabado estético con referencias al contexto fluvial. La cerámica esmaltada se convierte aquí en un elemento funcional y simbólico que evidencia el conocimiento del comportamiento del río y su impacto en la arquitectura de ribera.

•Planta primera: Se emplea un sistema de fachada ventilada con ladrillo cara vista beige, en contraste con los ladrillos rojos utilizados en los arcos cerámicos de catenaria. Esta dualidad genera una lectura visual clara entre lo nuevo y lo estructural, y entre lo sólido y lo ventilado. 2.2. Flexbrick en elementos móviles

Uno de los elementos innovadores del proyecto es la reinterpretación del sistema Flexbrick, tecnología cerámica desarrollada por Hispalyt, que aquí se emplea no como piel de fachada sino como componente de diseño móvil. Se diseñan puertas correderas compuestas por un bastidor metálico que abraza una celosía cerámica Flexbrick. Estas puertas permiten la ventilación de espacios húmedos como el almacén de piraguas, vestuarios, gimnasio y zonas comunes como el café-bar, integrando estética, ventilación pasiva y tecnología cerámica en un mismo elemento.

2.3. Pavimento urbano y mobiliario integrado

En la planta baja se diseñan espacios urbanos como gradas y bancos que miran hacia el río, ejecutados también con materiales cerámicos resistentes y antideslizantes. Estas piezas no solo cumplen una función de estancia y contemplación, sino que también constituyen una estrategia de adaptación a las variaciones del nivel del agua, al estar dispuestas en cotas capaces de resistir las inundaciones ocasionales.

CONCLUSIÓN

El proyecto apuesta por una arquitectura que pone en valor la cerámica como material constructivo contemporáneo, adaptando su uso a las condiciones climáticas y fluviales de Zaragoza. Desde soluciones estructurales y de envolvente hasta elementos móviles y urbanos, la cerámica se emplea de manera innovadora y sensible al contexto, en consonancia con los objetivos del Concurso del Foro Cerámico Hispalyt.

Autor/es Pablo Manuel García Díaz y Alejandro Fuentes Fuentes

Introducción

La propuesta parte de una lectura sensible, poética y rigurosa del lugar. El río Ebro no se concibe aquí como una frontera ni una línea de contención, sino como un organismo dinámico, en constante transformación, un sistema vivo que respira, avanza y se repliega según los ritmos estacionales y los pulsos meteorológicos. Esta condición de mutabilidad natural ha sido el detonante conceptual que da origen a una arquitectura también viva, flexible y capaz de relacionarse con el agua sin miedo, sin pretensión de domesticarla, sino con la intención de convivir con ella y formar parte de su metabolismo fluvial. Lejos de oponerse a la lógica del cauce, la propuesta dialoga con él, reconociendo sus ritmos y permitiendo que la arquitectura sea a la vez refugio y extensión del entorno natural.

Las tres arquitecturas del agua El proyecto se articula en torno a tres arquitecturas diferenciadas, que responden a los distintos niveles de afección hídrica y que establecen un nuevo lenguaje espacial: la arquitectura seca, la arquitectura inundable y la arquitectura sumergida. La primera se sitúa en las cotas más altas y seguras del solar, alejadas del riesgo de crecidas extraordinarias. Allí se ubican los espacios administrativos, docentes, sociales y de encuentro, configurando un conjunto estable, estructurado, desde donde se gobierna y articula el resto del programa. La segunda arquitectura, la inundable, ocupa una franja intermedia donde el agua puede llegar de manera ocasional y controlada. Los espacios ubicados en esta zona — como talleres, vestuarios, almacenes y zonas técnicas— están preparados para tolerar condiciones de humedad sin ver comprometidas su salubridad ni funcionalidad, gracias al uso de materiales duraderos y soluciones constructivas que permiten la entrada controlada del agua. Finalmente, la tercera arquitectura, la sumergida, se concibe como parte integral del paisaje acuático. Es la prolongación misma del río, el gesto que lo abraza y lo incorpora como parte inseparable del programa, alojando embarcaderos, plataformas de acceso y elementos que permiten una relación directa y constante entre el usuario y el agua.

Estas tres arquitecturas no solo se diferencian en su ubicación altimétrica, sino también en su materialidad, permeabilidad, durabilidad y expresión formal. Su coexistencia define una narrativa arquitectónica que se adapta a los movimientos del agua y al ritmo de la vida náutica. La forma en que se entrelazan estas tres capas da lugar a un edificio cambiante, que varía en percepción y uso según el comportamiento del río, permitiendo una pedagogía del lugar que forma parte del aprendizaje espacial de los usuarios. Estudio topográfico y cotas de riesgo Este enfoque se sustenta en un estudio exhaustivo de los niveles históricos del cauce del río Ebro a su paso por Zaragoza, tomando como referencia los registros de crecidas documentadas y los mapas de riesgo de inundación disponibles en el Sistema Nacional de Cartografía de Zonas Inundables. La cota de máxima seguridad establecida para la arquitectura seca se sitúa por encima de los 203,5 m sobre el nivel del mar, garantizando su integridad incluso en episodios extremos. La arquitectura inundable se proyecta entre las cotas 202,0 y 203,5 m, correspondiéndose con la zona de flujo medio y ocasional. Por debajo de los 202,0 m se define la franja sumergida, conectada directamente al embarcadero y a la lámina de agua. Esta decisión topográfica y estratégica asegura una integración resiliente del edificio con el entorno fluvial y dota al conjunto de una capacidad adaptativa única. Esta zonificación también permite un uso flexible del conjunto, en el que ciertos espacios se encuentran disponibles en todo momento, mientras otros se adaptan o transforman según la estacionalidad, favoreciendo así una relación activa con el río que va más allá de la contemplación pasiva.

[Memoria completa en www.foroceramico.es]

Otros proyectos

Autor/es Antonio Garrigós Gilabert
Lema EN3820
Autor/es Matías Castro Prado
Lema LM0115
Autor/es Ana Riera Guerras
Lema RG1625

PRIMER PREMIO Autor/es Alisa Erhart y Renan Guerra

BIBLIOTECA 829

Ubicada en la histórica ciudad de Zamora, en Castilla y León, España, la Biblioteca 829 emerge como un testimonio de conciencia ambiental arraigada en la contemplación y el respeto por la naturaleza circundante, fomentando una reconexión entre la humanidad y el entorno.

La composición arquitectónica consta de cinco volúmenes, cada uno con medidas de 8x29m, donde uno de ellos sirve como pérgola guiando a los visitantes a través de un corredor, conectando sin problemas la biblioteca con el exterior y funcionando como entrada al espacio interior.

Con vistas panorámicas al parque y su exuberante vegetación, el diseño encapsula un entorno inmerso en la naturaleza, empleando una selección de materiales puros: ladrillo, madera y vidrio. La elección estratégica de la ubicación del proyecto se basa en establecer una estrecha relación entre la biblioteca y la naturaleza, armonizando con la vegetación existente.

Desde su inicio, la forma del edificio ha sido emblemática en el desarrollo del proyecto. En última instancia, se optó por un método constructivo clásico utilizando bóvedas de ladrillo, otorgándole un carácter más tectónico al tiempo que simplifica el uso de materiales para una construcción fácil y respetuosa con el medio ambiente.

Se han integrado patios interiores y terrazas en el diseño para abrir el espacio, romper la rigidez de las bóvedas, proporcionar sombra en las fachadas y mitigar el impacto directo del sol.

El sistema de construcción involucra dos tipos de paredes: aquellas en la misma dirección que las bóvedas, definiendo las paredes estructurales (30 cm de grosor), y las paredes perpendiculares a las estructurales definidas como paredes interiores de partición con un solo ladrillo (11 cm de grosor). Optar por un material único, el ladrillo de color claro, fue una elección deliberada para armonizar con los edificios vecinos, manteniendo coherencia visual en el contexto arquitectónico.

Las paredes estructurales, con un grosor de 30 cm y 7 cm de aislamiento, desempeñan un papel fundamental en soportar la carga de las bóvedas, que a su vez tienen un grosor de 23.5 cm y 13.5 cm de aislamiento, abordando estratégicamente su exposición directa al sol. Esta construcción reflexiva no solo asegura la integridad estructural, sino que también contribuye a la eficiencia térmica.

La repetición de cinco bóvedas en una dirección no solo contribuye a la estética única del edificio, sino que también establece un patrón rítmico. Además, el espacio de 13 cm entre cada bóveda cumple un doble propósito: facilita un drenaje de agua más rápido, reduciendo el riesgo de acumulación, y crea oportunidades para la reutilización del agua.

Autor/es Adrià Quílez Cavallé, Luka Magaldadze y Mario Leonard Dinu

ARGO CENTRE

Our design for the Argo Centre combines horizontal and vertical elements to create a unique and functional space. The large horizontal platform forms the main structure, providing open areas that connect with the surrounding water and landscape. This openness allows visitors to feel fully immersed in the natural environment.

The vertical “towers” rise above the platform, inspired by the iconic towers of San Gimignano in Italy. Like those medieval landmarks, our towers create a striking visual identity and serve practical purposes. They house spaces for observation, storage, and other key functions, ensuring the centre is both efficient and memorable.

Key features of the design:

-Connection to Water: The building sits above the water with easy access for kayaks, making it perfect for both athletes and visitors.

-Layered Movement: Stairs and pathways connect different levels, encouraging visitors to explore the space.

-Materials: Warm, textured brick for the towers adds character, echoing the historic charm of San Gimignano, while the clean, simple design of the platform keeps it modern and inviting.

-Sustainability: Natural light and ventilation are used to minimize energy needs, making the design eco-friendly.

This project is designed to be more than just a kayaking centre. It’s a community landmark that brings people together, celebrates both sport and architecture, and draws inspiration from historical forms to create something fresh and meaningful.

Nuestra propuesta de construcción es irnos al pasado y reencontrarnos con la fábrica de cerámica al completo. Incorporando las nuevas técnicas y los nuevos materiales cerámicos.

Una vez estudiado el entorno y teniendo en cuenta el clima más la forma del diseño del propio proyecto. Decidimos la sustentación del mismo por medio de una estructura muraría. Aquí damos paso a nuestro primer aliado. Los muros están conformados por ladrillos de Termoarcilla que tienen un comportamiento energético perfecto y además pueden suportar la carga de la edificación. Optamos por el bloque de 30x29x19.

En este punto decidimos que queríamos una edificación totalmente vista, tanto en el interior como el exterior. Con la posibilidad de ver todos los elementos cerámicos y mostrar su elegancia. Así que pensamos en cómo podrían ser los forjados que descansarían en nuestros muros de termoarcilla. Y quisimos dar un toque clásico con un forjado unidireccional de viguetas con la utilización de bovedillas Curvas (rojalisa) entre eje de 60.

Una vez ya teníamos pensado el interior decidimos centrarnos en la parte exterior. Primero de todo en cómo se vería la parte opaca de la fachada. Así que decidimos utilizar un ladrillo Caravista Hidrofugado Marrón Sahara que colocaremos en un sistema constructivo de fachada autoportante ventilada GHAS. La ventilación de esta ayudara a disipar la humedad provocada por la cercanía con el rio y a mantener un flujo de aire constante en el aislamiento.

En este caso la unidad completa de sección quedara con el ladrillo de termoarcilla de 29cm + 9cm aislamiento de lana mineral + 3 cm de la cámara de aire ventilada + los 13,5 cm del ladrillo.

Completando así una fachada que protege al edificio delante de puentes térmicos y con un valor de transmitancia 0.213 W/m²K.

En ciertas zonas debemos formar celosías para ocultar algunas ventanas y protegerlas de la luz directa o zonas que necesitan una ventilación como los almacenes donde se guardan y secan los cayacs después del uso. Para formar estas celosías utilizaremos el sistema constructivo Iris (P.Triana) con su propia estructura metálica autoportante.

Finalmente para dar una continuidad del proyecto y hacer que se extienda, urbanizamos partes de pavimento siguiendo algunas partes de nuestra edificación. Este pavimentos lo conformamos con un Adoquín Klinker (A.F.Visíon). Los colores que se utilizan en el exterior intentan recordar a esa tierra y barro que encontramos en el cauce del río.

BARCELONA La Salle Otros proyectos

AE2028

Autor/es Rafael Alonso González, Júlia Quintana Roura y Arnau Saló Blaya

AL4331

Autor/es Laia Aguado Puig, Anna Vadillo Aguilar y Arnau Llucià Ferran

AP2338

Autor/es Pol Canales Palau, Anna Cardoso Berenguer y Anna Barragan Bosch

Victoria Carreras Saiz

Lema
Lema
Lema
Autor/es
Lema GV8713

1.Introducción y Concepto del Proyecto

•Innovación en el Diseño de Instalaciones Deportivas

-Rompe con los edificios deportivos convencionales al integrar de manera fluida el paisaje y los elementos construidos – el deporte se fusiona con el entorno natural.

-Inspirado en la ideología del Ha-Ha del siglo XVII, crea una transición armoniosa entre la arquitectura y la naturaleza.

•Diseño Específico para el Sitio y Contextual

-Se adapta a la topografía de la ribera del río en lugar de imponer una estructura rígida.

-Respeta el paisaje existente, la vegetación y los elementos históricos, aprovechándolos al máximo.

•Fachada de Ladrillo Expuesto y Materialidad

-Utiliza fachadas convencionales confinadas con un enfoque en el rendimiento térmico, respetando el entorno local.

-Garantiza durabilidad, bajo mantenimiento y una estética natural que realza el paisaje.

•Estrategias de Sostenibilidad y Accesibilidad

-Elementos de diseño pasivo (ventilación natural, sombreado y superficies permeables).

-Accesibilidad universal mediante recorridos fluidos y adaptados.

•Calidad Arquitectónica y Representación Cultural

-Se integra visual y simbólicamente en la identidad fluvial de Zaragoza.

-Combina principios de diseño históricos y modernos, consolidando su presencia como un hito público sin interferir con los elementos naturales.

2.Projecte

El contexto urbano y las estrategias priorizan dar visibilidad al entorno.

A escala urbana, el proyecto busca continuar los movimientos verticales (Norte-Sur) y horizontales (Oeste-Este) del río y su entorno. Esto influyó en el énfasis en la topografía y la perspectiva humana dentro del diseño.

El diseño se inspiró en el elemento paisajístico del siglo XVIII conocido

como “Ha-Ha”, que permite mantener vistas ininterrumpidas mientras controla cuidadosamente el movimiento, ya sea mediante elementos arquitectónicos o naturales. La serie de tres pabellones sigue la topografía naturalizada y se ubica estratégicamente por debajo del nivel de visión de la pasarela. El edificio se separa de la alineación de la calle y del cauce del río. Mediante el uso de la topografía, el proyecto genera espacios paisajísticos que son abrazados y momentáneamente delimitados por envolventes cerámicas homogéneas y tierra elevada. El proyecto Terravista es una iniciativa para recuperar las vistas del hábitat natural en la orilla de Vadorrey. Actualmente, el sitio funciona como punto de partida para los usuarios del centro de piragüismo, un espacio para la práctica deportiva la reconexión con la naturaleza. Sin embargo, esta experiencia comienza sobre plataformas de hormigón amplias y dominantes, que ocupan un espacio que podría servir mejor a su propósito desde el momento del acceso.

El diseño se fusiona con la urbanización circundante, utilizando materiales locales y técnicas constructivas tradicionales de hormigon, madera y ceramica para maximizar su integración y el respeto por el entorno existente. Desde el nivel superior (+195.50 – nivel de la pasarela), los techos parecen una extensión del entorno natural, sin obstruir las vistas del río, cuyo carácter delicado y frágil se ha mantenido en esta parte de Zaragoza.

En el nivel inferior (+192.4 – nivel plaza), todo el programa queda inmerso en la topografía. Los pabellones se iluminan a través de aperturas cuidadosamente diseñadas en sus perímetros, donde lucernarios y celosías aparecen estratégicamente para intensificar o difuminar la luz según la orientación solar.

La plaza actúa como una extensión natural de los espacios de actividad del centro de piragüismo, al mismo tiempo que sirve a la comunidad. De este modo, ambos espacios interactúan con límites difusos, favoreciendo una experiencia abierta para todos los usuarios.

Autor/es Bautista Martin Fiamma y Marti Oliveras Jorba

LA FLORA DEL EBRO

El alma de este proyecto es el río Ebro. Actualmente, el club náutico existente interrumpe la continuidad natural de la flora ribereña, separando los ecosistemas de la costa. Nuestro proyecto busca restaurar este equilibrio, recuperando la conexión de la flora y fauna como lo estaba antes del año 2005.

Para lograrlo, el volumen arquitectónico se concibe como un puente entre los dos ejes verdes interrumpidos, integrando la naturaleza circundante mediante una geometría que imita su fluidez. A través de muros curvos, tanto en horizontal como en vertical, el proyecto abraza y reencuentra los espacios naturales, dirigiéndose de este a oeste para amarrar los extremos desconectados del paisaje. Estos muros permiten que la topografía y la vegetación penetren en la planta baja, concebida como un espacio permeable y abierto en caso de crecidas del Ebro. El diseño material también rinde homenaje a la identidad del entorno. Los muros están pensados para evocar el paisaje de Zaragoza, no solo en su relación con el Ebro, sino también con el desierto que lo rodea. Para ello, la planta baja, que permanece abierta al entorno, se construirá con ladrillo fino, mientras que la planta superior utilizará tapial, aprovechando la propia tierra extraída del terreno para fortalecer su vínculo con el contexto.

Las fachadas desde una vista sur y norte se presentan como superficies macizas, preservando la relación visual con la flora en los laterales. Esta luz proveniente de las claraboyas generará una atmósfera de reflexión al impactar sobre los muros, acentuando la textura y el color terroso del material. En la cubierta, la organicidad del diseño se mantiene a través de inclinaciones ascendentes y claraboyas lineales y sutiles, que guiarán la luz a través de los muros, acompañando el recorrido del visitante dentro del espacio.

Este proyecto recupera la esencia natural que alguna vez caracterizó la ribera del Ebro. Al igual que los árboles ribereños, cuyas ramas flotan en el agua sin perder la vida cuando el río crece, nuestro proyecto permanecerá en armonía con la naturaleza, permitiendo que la inundación no lo interrumpa, sino que lo reafirme como parte del ciclo natural del Ebro.

Transformación de un Club de Piragüismo en un Nuevo Nodo Urbano

El proyecto parte de la necesidad de revitalizar la zona de Zaragoza situada sobre el río Ebro, una parte de la ciudad que, en comparación con el lado sur, presenta un menor desarrollo urbano. Para abordar esta problemática, la propuesta gira en torno a la creación de un nuevo nodo urbano, aprovechando la ubicación estratégica del sitio.

Para lograr la integración del club de piragüismo dentro del parque, el diseño se plantea a una escala mayor, generando un flujo natural a través del paisaje. Se han definido plataformas según la topografía, variando los pavimentos para delimitar espacios de circulación, reunión y descanso. Además, estas plataformas han sido diseñadas para ser adaptables a las inundaciones, protegiendo las edificaciones y permitiendo el uso de una plataforma secundaria como muelle cuando el nivel del agua aumenta.

El conjunto está compuesto por tres edificios con funciones diferenciadas. El Edificio A alberga amenidades privadas para los miembros del club, como aulas y un gimnasio. El Edificio B, de uso público, incluye una cafetería y un espacio de coworking, con un patio interior inspirado en el cercano Monasterio de Santa Inés. Finalmente, el Edificio C, ubicado junto al frente marítimo, funciona como almacén y taller al aire libre, con una estructura de muros de celosía y una pérgola, sirviendo como transición entre el río y el parque.

En cuanto a la materialidad, el proyecto emplea el Sistema Iris para la fachada, proporcionando una capa impermeabilizante efectiva para la estructura de hormigón. Además, se utilizan ladrillos prensados en seco CC.24x12x5cm, integrados en barras metálicas, tanto de forma continua como discontinua, para generar control solar en los ventanales y aportar una estética refinada al parque.

Durante el proceso de diseño, se exploraron diversas alternativas, pero todas mantuvieron principios fundamentales como la creación del nodo urbano, la incorporación de un patio interior, la adaptabilidad a inundaciones y el uso del ladrillo como elemento principal. Además, se tomaron como referencia los principios presentados en “Ideal Villa” de Colin Rowe, garantizando un equilibrio entre forma, función y relación con el entorno.

En términos de conectividad, el sitio se vincula con los nodos urbanos existentes y el centro histórico, fortaleciendo la relación entre el parque y la ciudad. Para analizar su comportamiento ambiental, se han realizado diagramas de sol y sombra, asegurando el confort térmico y lumínico dentro de los edificios y espacios exteriores.

En conclusión, este proyecto no solo transforma un club de piragüismo en un espacio dinámico y funcional, sino que también contribuye a la regeneración de una parte de Zaragoza, convirtiéndola en un punto clave para el desarrollo urbano y la integración con su entorno natural.

Lema 0114P23-24

Autor/es Cherifa Imene Maroc

Lema AJ0095

Autor/es Jordi D’alzina Figarella y Wilmwe

Andres Melo Silva

Lema AB4345

Autor/es Sophia Ladurner y Fatima Farooqui

Lema AM0103

Autor/es Maria Torres Lleo y Alessia Maria

Achim

Lema AE6241

Autor/es Alissa Carloni y Eliana Mullis

Lema Canoeing Club 2

Autor/es Saba Ahmadi Jazani y Marius Nicolae Dicu

Lema AG0003

Autor/es Anna Gosa Respetc y Gerard Guixeras Guixeras

Lema DJ0007

Autor/es Daniel Musli y Joana Pubill Jimenez

BARCELONA UIC Otros proyectos

Autor/es Layla Johansen y Dominika Vilinová

Lema Kayako Proyecto

Autor/es Paulina González Villar y Arthur Metz

DM2412

Autor/es Dana Almonte Payade y Mara Stanca Cristian

Lema KB2311

Autor/es Adolf Karagjozi y Jasmine Berrada

EM2004

Autor/es Elena Martínez Bofarull

Lema KA2502

Autor/es Bruno Marcon y Adham El-Halabi

Lema KO1111

Autor/es Leo de Bovée

Lema LN0105

Autor/es Lorena Rivera Vergara y Nicholas Pérez Bangle

Lema DL1626
Lema
Lema

BARCELONA UIC Otros proyectos

Lema ZZ1204

Autor/es Mariam Megrelishvili y Viki Karner

Autor/es Paul Pfeiffer y Luca Pirvulete

Autor/es Andreea Zaharescu y Cezara Zaharia

Autor/es Eva Ramos Ramos y Marcos Montiel Pérez
Lema ME1604
Lema MM0804
Lema PL0114

PRIMER PREMIO ex aequo

Autor/es Javier Arés Marín y Joan Mayor Marco Lema AS2245

1.Contexto territorial y paisajístico El proyecto del Centro de Piragüismo de Zaragoza se sitúa en un enclave de alto valor paisajístico y simbólico: el borde fluvial del río Ebro. Esta ubicación privilegiada, caracterizada por su condición liminar entre lo urbano y lo natural, entre la corriente del agua y la firmeza del suelo, determina el carácter fundamental de la propuesta. Más que implantarse, el edificio se sedimenta. Lejos de imponerse como objeto autónomo, la arquitectura se comporta como una topografía artificial que prolonga el terreno hacia el agua y se adapta a las dinámicas del lugar. El Ebro no es solo el telón de fondo del proyecto, sino su principio generador. El contacto directo con el río permite que la práctica del piragüismo adquiera aquí una dimensión experiencial completa: desde la llegada de los deportistas hasta el embarque, desde el entrenamiento físico hasta el aprendizaje teórico, todo sucede en diálogo constante con la ribera. El proyecto refuerza esa continuidad mediante plataformas horizontales que actúan como terrazas urbanas orientadas hacia el agua, generando nuevos espacios públicos abiertos a la ciudadanía.

2.Implantación y estrategia de ocupación del terreno

La propuesta se articula en una serie de volúmenes abocinados, organizados en franjas paralelas al curso del río. Esta morfología, inspirada en formaciones naturales como los rompeolas o los acantilados erosionados, permite una integración suave en el terreno y una relación gradual con el paisaje. Las piezas se hunden parcialmente en el suelo, reduciendo su impacto visual y térmico, y establecen una relación de escala amable tanto con el entorno como con el usuario.

Cada pastilla se adapta a una función específica: zonas de entrenamiento, aulas docentes, vestuarios, talleres, almacenes de embarcaciones, oficinas técnicas y una cafetería que actúa como bisagra entre lo deportivo y lo social. Esta disposición en bandas

permite un funcionamiento sectorizado, flexible, y con posibilidad de compartimentación según el uso diario olos eventos deportivos que puedan celebrarse. Además, entre las piezas se intercalan vacíos que actúan como patios ingleses, corredores exteriores y zonas estanciales abiertas.

3.Programa funcional El centro responde a una doble vocación: formativa y deportiva. Su programa está orientado tanto a la enseñanza del piragüismo como a su práctica profesional o amateur. Por ello, la propuesta incorpora los siguientes espacios:

-Aulas docentes: para formación teórica, cursos, seminarios y talleres.

-Gimnasio: orientado al entrenamiento físico complementario.

-Vestuarios: independientes por sectores, con accesos diferenciados para deportistas y personal.

-Talleres y almacenes: espacios técnicos para el mantenimiento y guarda de embarcaciones.

-Dique seco y zona de embarque: una franja equipada para la carga, descarga y reparación de kayaks y canoas.

-Cafetería: abierta al público general, con terraza sobre el río, pensada como punto de encuentro entre usuarios, acompañantes y vecinos de la ciudad.

-Espacios exteriores y graderíos: integrados en la topografía, permiten contemplar el río, organizar actividades al aire libre o simplemente recorrer el espacio como prolongación del paseo fluvial.

4.Lenguaje formal y materialidad Formalmente, el conjunto se expresa como una sucesión de masas horizontales erosionadas, talladas en una geometría sobria y contundente. La volumetría abocinada de cada pieza permite una apertura progresiva hacia el exterior, enmarcando vistas, generando umbrales y potenciando la percepción del paisaje.

[Memoria completa en www.foroceramico.es]

El proyecto consiste en el diseño de un club de piragüismo en la ribera del río Ebro en Zaragoza. El Río Ebro en su tramo urbano por Zaragoza, es un espacio idóneo para la realización de actividades náuticas, así como el mejor escaparate para expresar valores relacionados con el respeto al medioambiente a través del ecoturismo fluvial. Se plantea la construcción de club de piragüismo en el recinto del parque acomo-dándose a la urbanización, a los elementos conmemorativos y ornamentales y construcciones existentes.

El objetivo principal al realizar este proyecto ha sido mantener el máximo los arboles existentes.

Se ha conseguido a través de una arquitectura modular con estructura porticada de madera, con vacíos y llenos. El edificio se integra en el entorno abrazando los arboles y adaptandose a ellos.

Para este proyecto se ha usado madera para la estructura, los montantes, los tabiques y la fachada; hormigón armado para los forjados; y cerámica en las celosias (flexbrick).

Las fachadas de cada módulo se subdividen mediante una estructura de montantes, entre los cuales se alternan partes vacías; transparentes; semitransparentes y opacas.

Con estas subdivisiones se consiguen tramos por los que se puede cruzar libremente a los patios; otros que permiten disfrutar de las vistas al río Ebro; tramos que gracias al textil cerámico flexbrick crean un juego entre luces y sombras y dan cierta privacidad en algunos espacios; y, finalmente, tramos que ciegan completamente la vista al exterior.

El nuevo club de piragüismo se dispone junto al azud del río Ebro, en Vadorrey, un pequeño barrio perimetral de Zaragoza. Con la finalidad de defenderse de posibles inundaciones, el programa se eleva y exige que el edificio sea palafítico. La arquitectura tectónica es el punto de partida, desligada de la tierra y conectada a ella con la menor superficie posible. Los pilares alzan un podio, y dos losas de hormigón se superponen para dar una respuesta directa a la distribución de usos, generando espacios intermedios como porches, patios y terrazas, elementos fundamentales del proyecto.

El acceso al club no es inmediato: un porche, en la entrada, juega con la altura de recibida y la altura doméstica que ofrece una misma losa.

La intervención, respetuosa con el recorrido del paseo de ribera y con la vegetación existente, pretende sintonizarse con el parque mediante la curva. Sin embargo, entre las losas nace la ortogonalidad propia de una tradicional estructura muraria. Se trata de cuatro crujías de muros de carga perpendiculares al río, que conservan siempre su planta rectangular, de manera que no se pierde la lectura de muro.

Gracias a la superposición y la yuxtaposición conviven dos sistemas estructurales, evitando el encuentro del muro con la curva de las losas.

La fachada norte es opaca, y la cerámica, que se ha curvado, enmarca el paisaje con una vista horizontal hacia el Ebro.

A la vez, el dintel funciona como un elemento expresivo. 60 centímetros de canto de hormigón descansan sobre cada muro, atravesando el ritmo de lleno y vacío que estos configuran.

Se alargan en el porche de entrada con el objetivo de justificarlo estructuralmente, funcionando como jácenas.

La piel de ladrillo llega hasta los dinteles y forma un patio cubierto que se extiende, en fachada, a lo largo del club.

Se establece una dualidad norte-sur: la cerámica aparece en fachada de dos formas completamente opuestas.

Los dinteles, desde el norte, revelan la perpendicularidad de los muros respecto al río, configurando una fachada sur transparente y ordenada, que se protege del sol mediante el voladizo. En primera línea, la cerámica se manifiesta en el

canto de los muros, buscando la ligereza y la volatilidad.

Interpretando el almacén de piraguas como el único elemento dispuesto a inundarse, se organiza el resto del programa en el nivel superior. El taller de reparación y mantenimiento se dispone justo encima del almacén, y mediante un sencillo sistema de poleas, se trasladan verticalmente las piraguas con el fin de facilitar y acortar sus desplazamientos. La topografía se transforma. Se excava en la cota del camino para generar un espacio público porchado, justo debajo del edificio, y el muro que contiene las tierras define el perímetro del almacén. Persiguiendo el equilibrio ecológico en el que todo lo excavado se devuelve, se escalona el terreno. El club va a buscar el agua de forma perpendicular a través de una rampa, escaleras y pantalán con el objetivo de resolver con practicidad el pronunciado desnivel, a la vez que la actividad de transportar las embarcaciones, evitando giros durante el recorrido.

El almacén de piraguas se considera merecedor de una representatividad añadida, y la cerámica será la encargada de concedérsela mediante celosías inspiradas en el mudéjar, un movimiento artístico genuinamente ibérico, arraigado con fuerza en Zaragoza y patrimonio mundial de la humanidad. Ahora el club se asienta con fuerza a la ribera del Ebro y se opone a la posibilidad de ser arrancado y colocado en cualquier otro emplazamiento. El papel de la cerámica, por lo tanto, es el de establecer relaciones entre los elementos del proyecto, cumpliendo funciones estructurales, de revestimiento, organizativas y representativas. Un material honesto por su imperfección. La intervención funciona como un zócalo para la vegetación, que la abraza y la protege, y trabaja como una unidad horizontal paralela a la orilla. El sol, que incide sobre las losas de hormigón, esconde los muros y pilares en la penumbra (véase el alzado sur diurno). Sin embargo, cuando se hace de noche, el club se ilumina y la transparencia se acentúa a través del cristal, de interior a exterior. Y desde el Ebro, la cerámica es la protagonista. Una comparación de alzados que nos hace tomar conciencia de que el entorno es el que hace aparecer la arquitectura.

Lema AG0000

Autor/es Gemma Ruiz Puig y Anna Navarro Valldeoriola

Lema CP2804

Autor/es Carla Ponce Bueno

Lema AZ0525

Autor/es Ariadna Gallardo Domínguez

BP0812

Autor/es Max Palou Sánchez

Lema EA2779

Autor/es Clara Vila Pérez

Lema EC0927

Autor/es María Serra Darder

Lema CP0143

Autor/es Marina Ballesteros Gómez y Adrián Cordero Álvarez

Lema FF0000

Autor/es Frank Coronel Agreda

Lema

BARCELONA UPC Otros proyectos

Lema JA2005

Autor/es Jana Alèsia Ayats Canadell

Lema JM1967

Autor/es Natàlia Mercadé Fàbregas

Lema LL0674

Autor/es Lucía Lorén Esteban

Lema MP0414

Autor/es Ainhoa Serret Verbist

Lema JV2911

Autor/es Jaume Villaró Marimon

Lema OB0620

Autor/es Oriol Aparicio Sánchez y Marlon Brando Rueda Rodeles

Lema KM0567

Autor/es Arnau Celma Pascual y Ferran Martínez Gili

Lema PJ0104

Autor/es Julen Duran Garrido

PRIMER PREMIO

El proyecto del Club de Piragüismo se desarrolla a orillas del río, estableciendo una relación directa y continua entre la arquitectura y el entorno fluvial, fruto del Plan de recuperación de riberas del Ebro, que ha sido tomado en cuenta a hora de plantear este proyecto. La forma inclinada del edificio responde tanto a criterios funcionales como simbólicos: se eleva suavemente mediante una rampa ascendente que permite el recorrido visual hacia el cauce del río y el jardín lineal, integrando el paisaje como parte activa de la experiencia del usuario.

Bajo esta forma inclinada se genera un espacio de paso, consolidando una plaza pública que prolonga las circulaciones preexistentes. Este gesto potencia la permeabilidad urbana, permite actividades colectivas y refuerza el vínculo entre la ciudad y el río. Así, el edificio no se impone ni se sitúa de manera caprichosa sobre el emplazamiento, sino que se eleva para permitir el flujo, tanto físico como visual. El edificio ha sido concebido con una lógica clara respecto su contexto. La planta baja, en contacto directo con el terreno, alberga el área de almacenamiento de kayaks, que está pensado para ser inundable si fuera necesario, en situación de crecida ordinaria y extraordinaria. El resto del volumen exento representa los programas principales del centro, elevados en su parte baja más de 70 centímetros, lo que evitará la entrada de agua al interior. Los espacios dentro de este último volumen se articulan de manera sencilla, diferenciándose: Los espacios servidores (encapsulados), y los

espacios servidos o abiertos, que en compañía de la galería que los conecta espacialmente, dan una sensación de profundidad y aporta riqueza al espacio. El acceso principal se produce desde la plaza a través de una rampa exterior que conecta con la interior, que se puede entender más bien como una galería inclinada. Esta última se divide en dos: una delantera o principal, que da entrada a los espacios principales y tiene un carácter más público; una trasera o de servicio, que se relaciona con los espacios servidores y es de carácter algo más privado, o incluso si se quiere, descendiente.Las circulaciones internas y externas están pensadas para favorecer la fluidez de movimientos: usuarios, deportistas y visitantes pueden desplazarse de manera intuitiva y sin interferencias.

La materialidad de la fachada es en su mayor parte una celosía cerámica de patrón uniforme. Esto permite la completa visión hacia el exterior en todo el edificio y una entrada de luz difusa y homogénea además de actuar como una especie de lámpara perforada en la noche, que potencia aún más las relaciones sociales y la seguridad en el entorno, actualmente muy pobres. Todo el volumen se unifica mediante el uso de perfiles metálicos cada tres metros creando un ritmo en fachada que hace más concreta su geometría.

En resumen, el proyecto se plantea más como una estrategia paisajística que puramente arquitectónica en su relación con el exterior, haciendo protagonista al entorno en el que se materializa mediante un simple gesto. El rio, los habitantes y los usuarios dan respuesta a la forma del edificio que de manera sencilla pretende ser a la vez un hito en la ciudad.

Ubicado en el embarcadero de Vadorrey, en Zaragoza, se plantea el diseño de un centro de piragüismo que busca trascender la mera funcionalidad arquitectónica para convertirse en una pieza de diálogo con el entorno urbano y natural. La propuesta se articula a través de una interacción entre dos materiales principales: el hormigón y el ladrillo. El hormigón se emplea como un recurso compositivo que da forma a una serie de volúmenes prismáticos. Estos no sólo estructuran el recorrido interior del edificio, sino que se proyectan hacia el exterior, configurando miradores estratégicos orientados a diferentes puntos de la ciudad. Por su parte, el ladrillo actúa como envolvente mediante una celosía permeable, compuesta por la repetición rítmica de dos módulos cerámicos : uno cuadrado y otro rectangular, que, en su conjunto, generan una piel singular con un marcado protagonismo en fachada. El resultado es una única pieza arquitectónica en la que hormigón y ladrillo se interpenetran visual y materialmente. El hormigón parece atravesar la celosía cerámica, emergiendo en forma de volúmenes salientes y contemplativos que rompen la superficie exterior.

En el interior, los núcleos de circulación, las comunicaciones verticales y los espacios encapsulados se alojan dentro de los volúmenes de hormigón. En contraste, las áreas diáfanas, aquellas que demandan mayor altura y luminosidad, se desarrollan tras la celosía de ladrillo, permitiendo una iluminación cambiante y matizada, que varía según la hora del día y la posición solar, generando atmósferas interiores dinámicas y ricas en matices.

Para la realización de la propuesta 87M63Y, se han tenido en cuenta factores del emplazamiento como la subida del nivel del agua, de manera que esta no afecta directamente al edificio gracias a las elevaciones realizadas.

La idea principal del proyecto es el uso de módulos conectados mediante pasarelas, evitando así convertir el proyecto en un ruido visual del paisaje y las vistas del río Ebro. Mediante ese funcionamiento, convertimos la planta en un entramado de plataformas, pasarelas y cubículos conectados tanto con su alrededor como entre sí.

En cuanto a las instalaciones, 87M63Y contiene:

-2 salas de formaciones

-Cafetería con exterior

-Gimnasio y sus respectivos vestuarios

-3 módulos de aseos exteriores

-2 salas de limpieza y taller de canoas y kayaks

-Recepción

-4 despachos

-Almacén

Por otro lado, el proyecto mantiene la construcción que había previamente: el embarcadero Vadorrey, al cual se le pasará a dar el uso de almacén y oficinas/ recepción, además de aprovechar las instalaciones previas.

Respecto a los materiales empleados, se ha hecho uso de fachada industrializada de ladrillo, concretamente de la celosía

FLEXBRICK, mezclada con con otros módulos que son completamente de ladrillo macizo blanco, dependiendo de la necesidad de apertura o privacidad.

El conjunto logra la creación de un espacio ideal para la práctica de remo en kayak y en canoa, además de la posibilidad de darle otros usos, como es el de la cafetería abierta al público, gimnasio y formaciones de todo tipo.

AC2581

Autor/es Amir Pllumbi

DF5415

Autor/es Daniel Murillo Cerezo

Lema MP1331

Autor/es Francisco José Manzanares Martínez

Lema XX1972

Autor/es Raul López Gil

IL0505

Autor/es Antonio Galindo Cruz

Autor/es Alberto García Noguera

Lema
Lema
Lema
Lema MA0154

PRIMER PREMIO

Autor/es Adriana Sánchez Jerez Lema AS2872

1.Idea

Inspirado en los principios espaciales del Pabellón de Barcelona de Mies van der Rohe, este proyecto se concibe como una arquitectura que no domina el paisaje, sino que lo enmarca. El Club de Piragüismo se presenta como una composición horizontal, ligera y permeable, que desdibuja los límites entre el interior y el exterior. La arquitectura actúa como una plataforma de contemplación y transición, más que como un volumen cerrado.

2.Estrategia Formal

La planta se organiza como una sucesión de planos libres, donde los muros no contienen sino que orientan el recorrido, generando un flujo continuo de espacios. Se busca que la experiencia arquitectónica sea una secuencia de encuentros visuales con el río, la vegetación y la luz. Sin embargo, no hay jerarquías evidentes: lo estructural y lo espacial coexisten en un equilibrio preciso.

3.Materialidad y Sistema Constructivo

El uso de la cerámica estructural y ornamental es clave. El ladrillo no es un simple revestimiento, sino un material tectónico que construye el espacio, genera texturas, filtra la luz y regula el confort térmico. La combinación de celosías, bases macizas, y cubiertas ajardinadas establece un diálogo matérico con el entorno natural del Ebro. En adición, el uso de mármol y vidrio como elementos expresivos, aquí el ladrillo cumple ese mismo rol de sofisticación sobria y atemporalidad.

4.Relación con el Paisaje

La implantación del proyecto sigue la pendiente del terreno, posicionándose como una plataforma que flota sobre la ribera. Las plataformas y pasarelas permiten el acceso gradual al río, evocando la idea de un escenario natural desde el cual mirar y habitar el paisaje. El proyecto no es un objeto autónomo, sino una infraestructura que acoge la experiencia del lugar. La arquitectura no compite con la naturaleza, sino que se convierte en el marco a través del cual se percibe.

5.Espacio y Experiencia

El proyecto propone una coreografía arquitectónica: el usuario no entra en un edificio, sino que lo recorre, lo atraviesa, lo descubre. Hay una clara voluntad de crear espacios donde el movimiento y la luz construyen la arquitectura. La estructura no impone un uso fijo, sino que permite diferentes formas de estar, de mirar, de reunirse, de habitar.

6.Conclusión

La propuesta del Club de Piragüismo es una reinterpretación contemporánea del legado de Mies: una arquitectura precisa, esencial y contenida, que celebra la materia, la proporción y el espacio. Una arquitectura que no busca imponerse, sino revelar lo que ya está: el río, la topografía, la luz, el horizonte.

Plaza semiexterior

Creacion de un nuevo espacio en la orilla del Rio Ebro en Zaragoz que cree un nuevo hito en el mismo. Se crea un espacio semiexterior que a su vez funciona como una plaza en el paseo ya existente en el rio.

Consiste en una estructura metalica abovedada que crea espacios cubiertos pero abiertos. La disposicion de los muros responde a la funcion de programa, permitiendo cambiar los espacios que se cierran segun las necesidades con el paso del tiempo.

Las bovedas de ladrillo crean un espacio de paso confortable para los usuarios y un lugar comodo de descanso en zonas como la cafeteria. El club de piraguismo unifica el agua siendo otra parte fundamental del espacio generando una experiencia sensorial al salir con las canoas hacia el rio.

Ademas se organiza de tal forma que en un lado se situe la zona para canoas con la entrada al rio y los almacenes. Al otro lado la zona de deporte con los aseos, el vestuario y el gimnasio. Por ultimo en el corazon del proyecto se situa la zona mas social con los despachos, terraza, cafeteria y zona de talleres de formacion.

Un espacio exterior pavimentado situado a la orilla norte del Rio Ebro en Zaragoza, compuesto de una serie de superficies a distinta cota cosidos por un conjunto de escaleras irregulares que generan las conexiones interiores de la plaza. El programa se encuentra alojado en cavidades interiores de las distintas superficies, manteniendolo oculto, dando la sensacion de plaza tanto desde la cota de la calle como desde arriba, pero permitiendo su visualización tanto desde el rio como desde la otra orilla.

Cuenta con un gimnasio bien equipado, un almacen de canoas amplio, un anfiteatro con capacidad para albergar a mas de 100 personas y una cafetería que proporciona una estancia agradable frente al rio para todos los visitantes que decidan adentrarse en el proyecto.

Los muros longitudinales de ladrillo proporcionan unidad al proyecto, generando una experiencia visual agradable desde la calle, asemejandose a un monticulo y generando intriga desde la otra orilla, ya que desde ahi el proyecto se percibe como un area social y viva, perfecto para todo tipo de actividades ludicas.

Madrid CEU Otros proyectos

Autor/es José Antonio Cuétara Velázquez

Autor/es Javier Vilaseca Martínez

Lema ML2125

Autor/es Antonio Pío Bauzá Laorden

Lema PB2210

Autor/es Luzmery Bedon Carbajal y Ali Mautino Basilio

Autor/es Paulina Victoria Forero Ospino

Lucía Sánchez Labra

Lema 19FE73
Lema CF7708
Lema DP2629
Autor/es
Lema LS0084

Ventus es un proyecto situado a orillas del río Ebro en Zaragoza que nace con la intención de revitalizar un espacio olvidado y transformarlo en un punto de encuentro comunitario en torno al remo.

Inspirado en la materialidad y el color cálido de los ladrillos de la Basílica de Nuestra Señora del Pilar, el edificio se integra con sensibilidad en su entorno natural y urbano.

El diseño se centra en dos conceptos fundamentales: la ventilación y la luz.

La fachada de ladrillo calado permite la entrada controlada del aire y la luz natural, generando una atmósfera confortable durante todo el año. Los paneles de policarbonato giratorios actúan como reguladores térmicos, y el techo inclinado canaliza el agua de lluvia de vuelta al río, reforzando la estrategia pasiva del proyecto.

La modularidad del edificio facilita una distribución clara y funcional de los espacios, desde aulas y oficinas hasta una piscina de remo y muelles públicos. Ventus no solo responde a las necesidades de los deportistas, sino que se convierte en un espacio abierto para la comunidad, un lugar donde relajarse, entrenar o simplemente disfrutar del paisaje del Ebro.

LA ESCELARA DE EBRO

CONCEPTO

La base conceptual del proyecto surgió a partir de un modelo físico compuesto por elementos de escalera en forma de “V”. Al disponerse en secuencia, su geometría expresiva reveló un paisaje estratificado y escultórico, evocando un terreno fluvial escalonado. Mi intención fue conservar la atmósfera agradable y tranquila del lugar existente, al mismo tiempo que hacía accesible y disfrutable el panorama junto al río.

ORGANIZACIÓN DEL EDIFICIO

Como resultado, diseñé un edificio que se puede recorrer por encima y en el que se puede sentar. Los peldaños tienen 50 cm de altura y 100 cm de profundidad, proporciones ideales para sentarse cómodamente y contemplar el paisaje. La diferencia de nivel del pavimento existente genera una pequeña plaza frente al edificio: un espacio que funciona tanto como punto de llegada como lugar de encuentro. En la planta, un pasillo recorre longitudinalmente el edificio para mantener su continuidad. Desde este pasillo se abren los demás espacios, conectados entre sí según su uso.

ESTRUCTURA

La estructura portante del edificio está compuesta por pilares de hormigón armado a lo largo de los pasillos, sobre los cuales se apoyan vigas de hormigón armado en dirección transversal. Sobre estas se construye un forjado de hormigón armado monolítico. Debajo de la escalera hay muros de hormigón armado que también proporcionan el arriostramiento transversal. El arriostramiento longitudinal lo proporciona el forjado de hormigón armado. Los elementos horizontales de las escaleras están hechos de elementos prefabricados.

FACHADA

Para mejorar la iluminación natural, algunas caras verticales de los peldaños están acristaladas, creando una atmósfera interior singular. A lo largo de la fachada orientada hacia la calle, una pared de vidrio continua refuerza la conexión con el exterior. Frente a ella se despliega una celosía de flexbrick girada 45 grados, formando una capa semitransparente que filtra visualmente el entorno y genera un corredor de transición abierto frente a los accesos. Esta celosía sigue una línea quebrada a lo largo de la fachada, aportando ritmo visual y despertando curiosidad mediante su transparencia estratificada. El uso de elementos de pavimento flexbrick en el resto del edificio refuerza un lenguaje arquitectónico coherente y unificado.

PRESENTACIÓN DEL PROYECTO:

El edificio está situado en la ciudad de Zaragoza, en la margen norte del río Ebro. Esta ubicación estratégica garantiza un fácil acceso a la propiedad desde la ciudad, excelente acceso al agua y unas impresionantes vistas de Zaragoza y sus monumentos más representativos. Cuenta con múltiples espacios para brindar la mejor experiencia a deportistas y visitantes. La instalación incluye todo lo que un entusiasta de los deportes acuáticos necesita, incluidos vestuarios, instalaciones de almacenamiento, salas de entrenamiento y un gimnasio. También alberga espacios comunes como cafetería y una amplia terraza.

La idea de este edificio surgió haciendo maquetas conceptuales. Pude trabajar con distintos materiales (metal, arcilla, tela, vidrio, algodón...) creando distintas geometrías, y distintas combinaciones de materiales. Comparando texturas, formas, apariencias, decidí quedarme con la idea de los muros de ladrillo (que recuerdan el lado ondulado del mar), que forman la base principal de mi edificio. Después, durante varias semanas, trabajé en la ubicación y la forma exactas de cada muro para crear algo coherente, práctico y visualmente interesante. Aparte del diseño, la idea principal del edificio es separar el espacio interior en zonas cubiertas, cerradas, y espacios abiertos. Las grandes zonas que necesitan aire acondicionado y aislamiento contra la lluvia están cerradas por un techo rígido, mientras que las zonas de paso entre las habitaciones están completamente abiertas y tienen un techo de tela ligera para protegerse del sol. Esto crea más un paseo que un edificio, y da una sensación más natural y fluida al movimiento en el interior.

El interior del edificio está diseñado para hacer que la circulación sea lo más natural posible. Al comprender las necesidades de los usuarios, el edificio se convierte más en un recorrido que en un destino para llegar al agua, haciendo que la circulación interna sea más fluida. Utilizando muros de ladrillo curvos, la tierra y el agua se conectan de manera fluida.

Los espacios se dividen en dos secciones: La primera es la parte seca, donde se encuentran la administración y también la cafetería. Esta sección está destinada a recibir a los visitantes que no están necesariamente interesados en las actividades, sino que prefieren disfrutar de buenos momentos con una bonita vista al río y a la ciudad de Zaragoza. La segunda está principalmente dedicada a los atletas. Incluye las instalaciones necesarias desde los vestuarios hasta el acceso al agua.

Todas las áreas interiores están diseñadas para seguir los recorridos naturales de los usuarios, desde los vestuarios hasta el gimnasio y las áreas de entrenamiento, pasando por las áreas de almacenamiento de equipos y embarcaciones y, finalmente, hasta la plataforma de acceso al agua. Cada uno puede elegir seguir este camino o crear su propia ruta según sus preferencias. Esto crea múltiples formas de recorrer el edificio, dependiendo de las necesidades específicas de cada persona, manteniendo el concepto básico de conectar la ciudad con el agua. El edificio está diseñado para ser lo más ecológico y sostenible posible, promoviendo la ventilación e iluminación naturales.

El diseño de estos espacios permite un efecto túnel de aire a través del edificio, con ciertas aberturas en los muros divisorios que permiten que el aire pase a través de cada espacio cerrado. Cada habitación está diseñada con ventanas a ambos lados del techo para que la luz solar natural pueda entrar al edificio. Utilice cubiertas ligeras para proporcionar sombra del sol y mayor comodidad a los visitantes.

El sistema de circulación alrededor del edificio es lineal, desde la tierra hasta el agua. Existen dos senderos principales, uno seco y otro húmedo, con desvíos por cada espacio, ofreciendo variedad de recorridos desde la entrada hasta la orilla del agua.

ZARAGOZA ROWING CLUB

Lema AD1973

Autor/es Ali Dia

Lema AO4729

Autor/es Arturo Ortega Vidal

Lema GM1213

Autor/es Gabriel Mazzola Haddad

Lema GO6942

Autor/es Gustav Österberg

Lema BJ05

Autor/es Bianca Rafaëlle Jean-Pierre

EM2211

Autor/es Emma Marzocchi

Lema HU1301

Autor/es June Sperre

Lema JS3480

Autor/es Jonna Stigsdotter

Lema

MADRID UEM Otros proyectos

LE0517

Autor/es Jakob Schreiner Benito

Lema LM1997

Autor/es Eliseo Colangelo

Lema MA7777

Autor/es Mara Catalina Ivanescu

Lema MI0330

Autor/es María Inés Flores Murakami

Lema LM3506

Autor/es Luisandro Ngunza

Lema MA0306

Autor/es Tomás Robles Restrepo

Lema NB1704

Autor/es Chiara Paramidani

Lema NB2323

Autor/es Nina Méndez Bisgaard

Lema
Autor/es Fernanda Paredes Bermúdez
Lema TERRACOTA
Autor/es Túri Levente
Lema TL1552
Autor/es Wane Mutambo
Lema WM556
Autor/es Yousra Bessa
Lema NL1300

PRIMER PREMIO

AGUAS VIVAS

El proyecto propone la creación de un espacio público vinculado al río y al deporte náutico que se integre sutilmente en el entorno natural del embarcadero de Vadorrey, minimizando su impacto visual. Más que un edificio, se busca un paisaje, un lugar que se camufla en el terreno y fomenta el uso público, además de resaltar la presencia del Ebro como eje natural y protagonista del entorno y la Capilla y Basílica de nuestra señora del Pilar, hito histórico, cultural y religioso.

CONTEXTO Y EMPLAZAMIENTO

Ubicado en el embarcadero de Vadorrey, en la margen derecha del Ebro, el proyecto se sitúa en una franja verde de fuerte valor ecológico, urbano y simbólico. Las vistas abiertas hacia la Basílica del Pilar y la presencia del río consolidan este lugar como un enclave estratégico para el deporte y el ocio.

El clima continental semiárido, con veranos calurosos, inviernos fríos y presencia frecuente del cierzo, condiciona tanto la forma arquitectónica como los espacios exteriores. El acceso al embarcadero es fluido desde el Paseo de la Ribera, una vía peatonal y ciclista integrada en la red urbana. En cuanto a los niveles de agua, el tramo del Ebro en el que se encuentra el embarcadero está regulado, pero puede presentar variaciones estacionales o puntuales debido a lluvias o desembalses. CONCEPTO DE DISEÑO

‘No altero el lugar, sino lo reinterpreto’ -Álvaro Siza.

Siguiendo la premisa de ‘ interpretar el lugar ’ más que transformarlo, el edificio nace de la propia topografía y se mimetiza con el terreno. La cubierta ajardinada no es sólo techo, sino un espacio público, un jardín, un mirador. Bajo ella, el programa se entierra parcialmente, dejándole al entorno el protagonismo.

El agua y la vegetación se integran en el proyecto como elementos vivos, que cruzan y envuelven la arquitectura, diluyendo sus límites y generando una experiencia continua entre lo natural y lo construido.

DISEÑO DEL PAISAJE

Se diseña un paisaje orgánico con caminos suaves y vegetación autóctona que favorece la biodiversidad y crea microambientes variados para el disfrute público. La disposición de bancos, miradores y espacios abiertos invita a la interacción social, la contemplación y el contacto directo con la naturaleza, favoreciendo la experiencia sensorial y ambiental. El diseño evita recorridos forzados y fomenta la libertad de movimiento para todos los usuarios.

DISEÑO DEL CLUB DE PIRAGÜISMO (PROGRAMA)

Se accede al edificio mediante una de las formas orgánicas de la cubierta, es una forma ovalada completamente acristalada, para no interrumpir el paisaje. Al entrar, se encuentra el control de acceso con un vigilante y dos tipos de núcleos para bajar al edificio: una escalera en espiral, también con barandillas de cristal y un ascensor. Tanto el hall como la cafetería son los puntos de encuentro del resto de espacios organizados en tres zonas:

Zona destinada a los socios: con espacios como gimnasio, sala de formación, aseos, servicios y vestuarios.

Zona destinada a los empleados: despachos, salas de formación y aseos y servicios privados.

Zona de almacenaje y de piragüismo: taller, hangar y almacén para accesorios.

Todos los espacios cuentan con vistas al Ebro excepto los servicios, baños, aseos y vestuarios, los cuales se organizan de forma paralela a estos, generando así recorridos circulares por zonas, en lo que todo está cercano.

La cubierta ajardinada cuenta con una zona específica para ver competiciones. Son bancos circulares de doble altura próximos al río con vegetación en el centro que aportan confort.

[Memoria completa en www.foroceramico.es]

Autor/es Alba Vargas Tello Lema AP0493

1.Memoria Descriptiva

Este proyecto nace con el objetivo de crear un espacio donde deporte, paisaje y cultura confluyen. Situado junto al río Ebro, el nuevo Club de Piragüismo se plantea no solo como una infraestructura deportiva, sino como un hito arquitectónico integrado en el entorno natural y urbano de Zaragoza.

La propuesta transforma el espacio de entorno en una red de superficies permeables y vegetación, generando una serie de islas verdes que mejoran la relación entre la ciudad, el paisaje fluvial y el nuevo edificio.

Formalmente, el edificio adopta una geometría escultórica e icónica que contrasta con la arquitectura cercana, destacando como punto de referencia. Su implantación responde al sistema de caminos preexistentes: los flujos confluyen hacia el centro del edificio, cuya forma se abre y se adapta para acoger los recorridos.

El volumen se fragmenta en piezas diferenciadas según los usos del programa. La zona más próxima al río acoge los espacios vinculados a la actividad deportiva (almacenamiento de piraguas y vestuarios), mientras que las zonas dedicadas a enseñanza y uso común se sitúan en la parte seca. Una tercera pieza, independiente, alberga la cafetería, pensada como espacio público y punto de encuentro abierto a todos los ciudadanos. Desde el punto de vista climático, el proyecto incorpora estrategias pasivas que garantizan el confort térmico en todas las estaciones. En invierno, los lucernarios orientados permiten la entrada de luz solar directa, acumulando y distribuyendo el calor en el interior. En verano, la forma fragmentada del edificio favorece la ventilación cruzada y el efecto Venturi, facilitando la renovación natural del aire y reduciendo la necesidad de climatización activa.

Materialmente, la fachada se resuelve en ladrillo visto, reinterpretado mediante un sistema compositivo que alterna el canto largo con la testa del ladrillo, tratada en tonos azules mediante esmaltes cerámicos opinturas minerales. Este gesto genera un efecto cromático vibrante que introduce ritmo, textura y contemporaneidad, conectando con la tradición constructiva local.

El interior, en contraste, se define por una superficie continua, neutra en

color y textura, que aporta serenidad y uniformidad al espacio. Esta neutralidad potencia la presencia de la luz natural, que entra de forma cenital a través del lucernario central, convirtiéndose en el verdadero protagonista del espacio interior.

2.Memoria Constructiva

La estructura portante del edificio se compone principalmente de fábrica de ladrillo, utilizando piezas macizas y perforadas combinadas con aislamiento térmico, ladrillo hueco doble y placas de yeso laminado, garantizando confort térmico y acústico en el interior. Esta solución permite mantener una coherencia entre sistema constructivo y lenguaje material.

Para resolver la transición hacia la cubierta inclinada, se prevé un dintel perimetral de hormigón armado que actúa como base estructural para la colocación escalonada de la fábrica de ladrillo, limitando su sobrepaso a un cuarto de su superficie, según criterios técnicos de estabilidad.

La coronación del volumen se resuelve mediante un perfil metálico perimetral sobre el que se apoya el lucernario central. Este elemento, abatible y estratégicamente ubicado, permite controlar tanto la temperatura interior como la evacuación de aire caliente, adaptándose a las condiciones climáticas de Zaragoza.

Las aperturas principales del edificio se orientan hacia el río, buscando enmarcar visualmente el paisaje e incorporar la luz natural de forma controlada. Para proteger el interior de la radiación solar directa, se ha diseñado un sistema de lamas abatibles, que permiten regular la incidencia de luz y aportan una segunda lectura de profundidad a la fachada. Las carpinterías, ejecutadas en PVC de color azul, sobresalen ligeramente del plano del ladrillo, reforzando la expresividad del volumen y estableciendo un vínculo visual con las testas cerámicas esmaltadas de la fachada.

El diseño del edificio cumple con las exigencias del Código Técnico de la Edificación (CTE), especialmente en lo relativo a accesibilidad universal. Se han resuelto adecuadamente las pendientes en rampas, el ancho de pasillos y las condiciones de aseos accesibles, asegurando la inclusión de todos los usuarios.

Introducción

El objetivo del siguiente proyecto es la construcción de un club de piragüismo en el entorno fluvial del río Ebro, el cual posee un gran valor paisajístico. El desarrollo de la propuesta no solo trata de cubrir todas las necesidades de un club deportivo, si no que, además, se convierte en un espacio de encuentro social, donde la infraestructura se asienta en el terreno respetando su entorno y paisaje.

1.Antecedentes y diagnóstico

La parcela en la que se lleva a cabo el proyecto se encuentra en la ribera de un tramo medio del río Ebro, a su paso por Zaragoza, en un área en la que se frecuentan crecidas estacionales. Se trata de un espacio de borde urbano que presenta vegetación espontánea y característica del entorno, y una leve pendiente que separa una zona más urbana de una más natural.

2.Ubicación y accesos

La parcela se sitúa en la orilla norte del río en, aproximadamente su tramo medio. A ella es posible acceder tanto por una vía rodada como por una peatonal, garantizando así un acceso total. Por su parte, el proyecto plante un acceso directo desde el edificio hasta el agua mediante una rampa, permitiendo así un uso cómodo y seguro. La ubicación de la infraestructura permite que el conjunto dialogue activamente con el paisaje del agua y con la vegetación circundante.

Además, los accesos e instalaciones tienen muy en cuenta a las personas con necesidades especiales, colocando rampas perfectamente accesibles y espacios amplios para su correcto movimiento.

(Ver plano de emplazamiento)

3.Programa de necesidades

El programa incluye los siguientes espacios: deportivos, sociales y administrativos; atendiendo al cuadro de superficies

(Ver memoria completa).

Cabe destacar la superficie del almacén en la cual se encuentra anexa el taller con el fin de aprovechar la amplitud del espacio. La parte más social en el interior de la edificación se refleja en la terraza de la cafetería y en la exterior una zona delantera y otra trasera en la que descansar, conversar y contemplar el paisaje.

4.Concepto arquitectónico

El proyecto parte de una pieza rectangular simple a la cual se le superpone una cuadrícula que ayuda a dividir los espacios que son estrictamente necesarios, obteniendo así una planta con espacios ordenados y optimizados y evitando en la medida de lo posible pasillos estrechos o no necesarios.

(Ver planta de propuesta)

Esta planta es elevada hasta la cota más alta de inundación registrada en la zona en los últimos 100 años, siendo esta una elevación de 2,08 m con respecto el nivel del agua en la fachada sur del edificio, es decir, en el punto más desfavorable. Así mismo, se consigue con esta elevación una zona disfrutable con un elemento horizontal que sobresale de la fachada a modo de voladizo y que sirve como refugio para aquel que desee disfrutar de la plataforma.

De este modo el proyecto busca una presencia ligera, abierta y respetuosa con el medio ambiente, con un lenguaje sobrio y contemporáneo, con el predominio de planos horizontales, materiales tradicionales y aperturas hacia el río y el entorno.

5.Organización espacial El edificio se desarrolla en un único nivel el cual está configurado de forma que en su uso tenga recorridos fluidos y directos. Se aísla casi por completo la zona del personal con la zona de los deportistas.

6.Materiales y construcción

La estructura se resuelve mediante pórticos de hormigón armado con un forjado bidireccional y con pilares de sección mínima. Como piel unificadora se hace uso de una celosía de ladrillo cerámico macizo que se dispone justo encima del cerramiento normal, creando un juego de luces muy interesante en el interior y, además, permitiendo una ventilación cruzada en el almacén, donde se concentra gran cantidad de humedad. Esto último se consigue dejando el hueco solo y cubriéndolo con esta misma capa de celosía. En cubierta, un peto perimetral sube la altura justa para ocultar la sala de máquinas, que se encontraría en la misma y, además gracias a este peto, es posible aumentar la altura del almacén y así albergar una mayor cantidad de piraguas. Todo ello con un único tratamiento visible: la celosía.

Otros proyectos

ORB888

Autor/es Gonzalo David Rodríguez Pavón

Lema AC5504

Autor/es Alejandro Calvo Albuger

Lema CA3387

Autor/es Antonio Morilla Callejón y Andrei

Mugurel Cical

Lema CM2413

Autor/es Claudia Castro Pino

AS2008

Autor/es Claudia Solla Afonso

Lema CN0401

Autor/es Luna Navarro García

BR0014

Autor/es Josue Daniel Moreira Mendoza

Lema CP1413

Autor/es Víctor Manuel Moreno Navarro

Lema
Lema
Lema

Lema EO4422

Autor/es Fátima Ezzahra Achemrk Bzioui

Lema ET1408

Autor/es Blanca Esther Ruiz Pérez

Lema HT4886

Autor/es Hugo Barbero Delange

Lema IB9707

Autor/es Inés María Vera Rubí

Lema GG2808

Autor/es Georgina Gaona López

Lema IV29040

Autor/es Irene Rodríguez Vallejo

Lema HF2804

Autor/es Celia Ruiz de Gregorio

Lema LA2716

Autor/es Andrés Domenech Escamilla

Otros proyectos

Lema LG2804

Autor/es Lucía García Gómez

Lema NM1703

Autor/es Natalia Martín Atencia

Lema LM3110

Autor/es Naomi Sánchez López

Lema OP0818

Autor/es Pierre Jore

Lema MC2304

Autor/es Martina Duque Ropero

Lema P05R23

Autor/es Gabriela Adriana Rueda Rodríguez

Lema MM7340

Autor/es Mario Muñoz Martín

Lema PA0303

Autor/es Adrián Alarcón Lucena

Ana

Autor/es Juan López Medina

Autor/es Pablo Guerrero Sedeño

Autor/es Nicolás García López

Lema RS1111

Autor/es Joaquín Mérida Arrabal

Lema TA1035

Autor/es Nadia Cortés Cano

Lema TC9023

Autor/es Lucía Baeza Páez

Autor/es
Pino Martín
Lema PM2020
Lema PN8471
Lema PS3012
Lema RC5024

Autor/es Ana Chicano Cazaña PRIMER PREMIO ex aequo

Para el Club de Piragüismo en la ribera del Ebro se ha optado por el uso del sistema de fachada FLEXBRICK de Hispalyt, tanto por sus ventajas técnicas como por su versatilidad estética, así como por el hormigón rojo como uno de los principales materiales del proyecto.

FLEXBRICK es un sistema cerámico industrializado que consiste en láminas flexibles formadas por una malla de acero inoxidable trenzado, en la que se insertan piezas cerámicas con acabado de ladrillo cara vista.

En este proyecto, dicho sistema de fachada se ha dispuesto a modo de “piel” sobre el hormigón rojo, actuando como una segunda capa de envolvente, más ligera, cuya densidad varía en función de las necesidades de iluminación y privacidad.

1.PRINCIPALES VENTAJAS QUE SIRVEN AL PROYECTO

La principal ventaja que ofrece este sistema es la versatilidad, siendo capaz de generar, “coser”, diferentes patrones. Por otro lado, la capacidad del sistema para adaptarse a superficies curvas sin necesidad de costosos sistemas auxiliares ha sido clave en el diseño del proyecto, permitiendo desarrollar soluciones formales singulares con continuidad en las envolventes.

En este caso, se ha partido de un aparejo “flamenco” en disposición vertical para la envolvente ciega, del cual se han extraído estratégicamente algunas piezas con el fin de conformar una celosía frente a las carpinterías, favoreciendo el paso de la luz natural y generando un juego de llenos y vacíos que enriquece la fachada.

Otra de las razones fundamentales para la elección de este sistema ha sido su ligereza y facilidad de montaje. Al tratarse de un sistema en seco, permite una instalación rápida, limpia y segura, tanto en obra nueva como en rehabilitación. Estas características suponen un ahorro significativo en mano de obra y medios auxiliares.

En cuanto a prestaciones técnicas, el sistema ofrece una elevada resistencia

mecánica, clave en un edificio de uso deportivo. Además, el excelente comportamiento térmico y acústico, resistencia frente al fuego y a los agentes atmosféricos, y un color inalterable con el paso del tiempo. Además, el sistema FLEXBRICK mejora la eficiencia energética de la envolvente mediante su función bioclimática, regulando el control solar, la ventilación y las propiedades higrotérmicas de la cerámica. Su uso contribuye además a la reducción del efecto isla de calor, lo que lo convierte en una solución especialmente adecuada para entornos urbanos.

Todo ello se traduce en un mantenimiento mínimo a lo largo del tiempo, y en caso de ser necesario, el sistema permite la reposición individualizada de piezas, facilitando las reparaciones sin afectar al conjunto.

Desde una perspectiva ambiental, FLEXBRICK es un sistema alineado con los principios de la economía circular, ya no solo por la energía de biogas y materiales reciclados que utiliza en su producción, sino por la durabilidad que ofrece en un panorama donde prima la sostenibilidad.

Finalmente, el sistema FLEXBRICK mejora la eficiencia energética de la envolvente mediante su función bioclimática, regulando el control solar, la ventilación y las propiedades higrotérmicas de la cerámica. Su uso contribuye además a la reducción del efecto isla de calor, lo que lo convierte en una solución especialmente adecuada para entornos urbanos. Por todo ello, FLEXBRICK representa una solución técnica, estética y medioambientalmente coherente con los objetivos del presente proyecto.

2.MONTAJE

Las soluciones de FLEXBRICK con revestimientos adheridos y atornillados ofrecen una garantía adicional de seguridad frente a la que proporciona únicamente el mortero de agarre, ya que las plaquetas cerámicas se insertan en una malla metálica que, a su vez, se fija mecánicamente al soporte mediante tornillos.

Autor/es César Salmerón Sánchez PRIMER PREMIO ex aequo

Lema ZZ5001

Nos encontramos en la Ribera del Río Ebro, en la ciudad de Zaragoza, capital de la comunidad autónoma de Aragón. En esta ciudad, gracias a la presencia de este caudaloso rio, hay una gran cantidad de ciudadanos que realizan diversos deportes náuticos, entre ellos el piragüismo en sus diferentes modalidades, surgiendo así la necesidad de dotar a la ciudad de un espacio arquitectónico que permita la práctica de este deporte de forma cómoda, así como permitir el progreso de los deportistas.

Para ello, se plantea una edificación que se adapta, en primer lugar, a los condicionantes climatológicos y geográficos de el entorno. Por ello, debido al riesgo de crecida del río, se plantea una edificación sobreelevada, con las dependencias que deben permanecer fuera de peligro en la planta superior, estas son recepción, vestíbulo, administración, cafetería y salas de formación. En el nivel inferior, solamente se encuentran los talleres y almacenes, ya que se trata de enseres habitualmente acuáticos, por lo que en caso de inundación no correrían peligro. Además, la situación en planta baja de estas dependencias posibilita el fácil traslado de los enseres hacia el embarcadero. Por último, se plantea una pequeña modificación urbana en la zona de el embarcadero, creando zonas verdes, con escaleras y rampas cómodas y bancada en la cual poder relajarse después de el intenso deporte orecibir lecciones magistrales.

En cuanto a la volumetría exterior, esta obedece principalmente cuestiones funcionales y climatológicas. Las estancias se encuentran separadas en función de su uso, con estancias flexibles como las salas de formación que podrían unirse en una, lo mismo ocurre con la sala de administración. Además, se crea una especie de patio que divide el volumen en 2 con el fin de refrescar la edificación, así como un patio interior que permite iluminar las salas de fomación, así como refrescarlas. Por ultimo, el volumen de acceso se encuentra girado con el fin de adaptarse mejor a el soleamiento, y la cafetería en encuentra en la esquina con el fin de garantizar las mejores vistas a el espacio mas concurrido. En cuanto a la materialidad se ha optado por una fachada confinada de ladrillo cerámico caravista de color crema, con el fin de reflejar la mayor cantidad posible de los rayos de Sol y protegerse así frente a el intenso calor de verano. Además, también se ha elegido una gachada tipo Iris, en forma de celosía, protegida en su interior por un muro cortina de cristal, con el fin de tamizar la luz que entra a la edificación.

Para el concurso del Foro Cerámico Hispalyt se presenta el siguiente proyecto de club de piragüismo localizado en Zaragoza, a orillas del Ebro, cuyo elemento protagonista es el ladrillo caravista, empleado en dos estructuras autoportantes de hormigón armado. El conjunto cuenta con una cubierta ajardinada que mejora el confort térmico y se integra visualmente en el entorno natural.

La propia estructura, de forma inclinada, se prolonga en su parte superior para generar sombra sobre el espacio exterior inferior, donde se dispone una zona de ocio abierta al público, conectada directamente con la cafetería interior.

El programa incluye dos aulas, un cuarto de servicio, aseos públicos, gimnasio, vestuarios, y un almacén-taller para las piraguas. Todas las instalaciones están completamente adaptadas para garantizar la accesibilidad universal.

En el diseño exterior se apuesta por la vegetación autóctona, transformando el entorno en un espacio verde que ofrece distintos accesos desde la calle principal al club de piragüismo.

Se ha jugado con la luz y las sombras generadas por la geometría del edificio y el propio ladrillo, creando espacios dinámicos, sugerentes y de gran valor arquitectónico y sensorial.

La planta baja del edificio se articula a través de un recorrido fluido, intuitivo y luminoso, que comienza en la entrada principal, ubicada en el extremo más accesible desde la vía pública. Desde este punto, el acceso se realiza a través de un vestíbulo abierto que conecta de forma directa y sin interrupciones visuales con el resto de los espacios.

Este vestíbulo se concibe como un eje longitudinal permeable, que atraviesa el edificio de lado a lado y culmina en la puerta trasera, la cual se abre hacia un espacio exterior de circulación generosa. Este recorrido central funciona como espacio articulador, permitiendo un flujo fluido de personas y facilitando la ventilación cruzada y el aprovechamiento óptimo de la luz natural. Las visuales se mantienen limpias y abiertas gracias a la disposición diáfana y jerarquizada de los espacios, donde la transición entre el interior y el exterior se diluye progresivamente.

Nada más acceder al edificio, se encuentra una zona de control y recepción, desde la cual se organiza la distribución de los usos. A la izquierda, se sitúa un gimnasio completamente equipado, orientado estratégicamente para recibir luz natural a lo largo del día. Su fachada está revestida con un aparejo singular de ladrillo caravista, colocado de manera que genera juegos de luz y sombra tridimensionales en el interior. Las sombras proyectadas por los relieves del muro varían según la hora del día, añadiendo una dimensión visual y térmica al espacio deportivo. A la derecha, se ubican los vestuarios y los aseos, también iluminados y ventilados naturalmente. Estos espacios incorporan el mismo lenguaje material que el gimnasio, con composiciones expresivas en ladrillo que actúan como filtro solar y al mismo tiempo dotan al espacio de identidad. Se ha prestado especial atención a la accesibilidad, garantizando recorridos adaptados y cabinas inclusivas.

Continuando el recorrido central, se encuentra el almacén de piraguas, directamente vinculado con el exterior para facilitar el movimiento de material deportivo, y justo enfrente, el taller técnico, concebido como un espacio polivalente para mantenimiento y pequeñas reparaciones. Ambos espacios están pensados con criterios de funcionalidad, durabilidad de materiales y máxima eficiencia logística, manteniéndose en la zona más próxima a las actividades náuticas.

El recorrido concluye en la zona de cafetería, un espacio social y abierto al encuentro, concebido como lugar de reunión tanto para usuarios del club como para visitantes. La coffee shop dispone de una amplia sala interior conectada visual y funcionalmente con una terraza exterior, protegida por el voladizo de la cubierta inclinada. Esta prolongación de la arquitectura actúa como marquesina natural, ofreciendo sombra permanente al espacio de ocio exterior sin perder conexión visual con el paisaje circundante. Esta área, pensada para la relajación y el disfrute, se convierte en un punto clave del proyecto: un nexo entre el deporte, la arquitectura y la naturaleza.

completa en www.foroceramico.es]

Murcia UCAM Otros proyectos

Lema AB2104

Autor/es Ainara Bastida Aparisi

Lema CP2025

Autor/es Paola Valentina Cepeda Fermin

Lema AP1977

Autor/es María Paz Encalada Pesantez

AS2810

Autor/es Marcos Molina Botía

Lema DC2605

Autor/es Daniela Castro Rodríguez

Lema DO2851

Autor/es David Rafael Ontiveros González

CA2517

Autor/es Cristina Alonso Mira

Lema JS1727

Autor/es Javier Serrano García-Minguillán

Lema
Lema

Murcia UCAM Otros proyectos

Lema KP1000

Autor/es Beatriz Sánchez Alarcón

Lema KU09

Autor/es Fernando Egea García

Lema MM0410

Autor/es María Mut Maguilla

Lema MR2421

Autor/es Manuela Roldán Ortega

LZ1969

Autor/es Fernando Asensio Pelegrín

MA1309

Autor/es Bárbara Andrea Méndez Avila

Lema MT1632

Autor/es Raúl Alcázar Alcázar

Lema NS1306

Autor/es Natalia Sáez Aguado

Lema
Lema
Autor/es Ainhoa Sánchez Pintado
Lema RJ7476
Autor/es Elva López Fernández
Lema VA2000
Autor/es Vicente Soler Soler
Lema VS0001

PRIMER PREMIO

Descripción del proyecto

El Club de Piragüismo se sitúa en la ribera del Ebro, en un entorno marcado por el dinamismo natural del agua y la presencia constante de la humedad. Este proyecto no responde con miedo ni resistencia a estas condiciones, sino que las asume como parte esencial del lugar y del concepto arquitectónico. Lejos de alejarse del río, el edificio se construye para recibir el agua. El contacto con la humedad no se oculta ni se evita, sino que se integra en la lógica constructiva del proyecto desde su origen.

El proyecto se articula a partir de una serie de muros paralelos de ladrillo macizo, de un metro de espesor, que se despliegan en el paisaje como estratos construidos, generando una secuencia espacial que acompaña el descenso desde el nivel urbano hasta la orilla del río. Estos muros no sólo estructuran el espacio, sino que lo esculpen, organizando un recorrido oblicuo y continuo que guía de manera natural al visitante hacia el agua.

El sistema de rampas permiten un tránsito fluido tanto para todos los usuarios, creando una transición que se convierte en una verdadera “promenade”, donde la experiencia del descenso se enriquece con la aparición progresiva de vistas enmarcadas del paisaje fluvial. Cada tramo del recorrido ofrece nuevas perspectivas, revelando fragmentos del río Ebro y sus reflejos, en una coreografía especial que despierta la atención y el cuerpo.

Lejos de imponer una presencia imponente en su entorno, el edificio se funde con el paisaje. A su alrededor, se ha preservado una vegetación espontánea y de carácter más silvestre, que envuelve al conjunto y lo oculta parcialmente a la vista. Esta estrategia paisajística busca que la arquitectura se descubra de manera gradual, la vegetación actúa así como un filtro visual que amortigua la presencia de la ciudad y dirige la mirada hacia el horizonte fluvial, estableciendo un diálogo contemplativo entre la construcción, el cuerpo y el agua. Esta visión define el carácter y la materialidad del edificio: una pieza tectónica, un volumen macizo y sereno que acepta la erosión, el paso del tiempo y las transformaciones del entorno como parte de su naturaleza. En este sentido,

la elección del ladrillo cerámico como único material no es solo una respuesta al concurso, sino una afirmación conceptual: un edificio hecho para mojarse, para resistir, para permanecer. Descripción constructiva El uso del ladrillo abarca desde los muros portantes hasta las bóvedas de cubierta, pasando por pavimentos, bancos, rampas y elementos menores. Esta continuidad material refuerza la identidad del edificio, que se presenta como un monolito erosionado, tallado y abierto al agua.

a.Muros

La decisión más significativa desde el punto de vista constructivo fue la de proyectar muros portantes de un metro de espesor. Esta medida responde a una triple lógica: técnica, funcional y conceptual. En primer lugar, desde el punto de vista estructural, este espesor permite configurar un muro compuesto por dos hojas exteriores de ladrillo macizo y un núcleo central de hormigón armado. Esta configuración proporciona estabilidad estructural y resistencia ante las solicitaciones propias de un edificio de uso público y deportivo, expuesto a la humedad y al desgaste.

En segundo lugar, el espesor tiene una función funcional: actúa como barrera frente al agua y la humedad. En una zona inundable como esta, se espera que el edificio entre ocasionalmente en contacto con el agua del río. La lógica constructiva del muro permite que los ladrillos exteriores —los más expuestos a la capilaridad y al desgaste— puedan ser retirados y sustituidos de forma puntual, sin necesidad de intervenir en la masa estructural interior. Esta solución no solo prolonga la vida útil del edificio, sino que facilita el mantenimiento futuro sin comprometer su integridad ni su estética. Finalmente, el espesor tiene un valor simbólico y conceptual. Es la forma en la que el edificio asume la presencia del agua sin resistirse a ella. Los muros gruesos funcionan como una especie de corteza o piel densa que protege su interior y que, al mismo tiempo, dialoga con el paisaje del río y su variabilidad. Son muros que se mojan, que aceptan ser alcanzados por el agua, que se mantienen enteros, como un cuerpo que permanece firme aunque su superficie sufra.

La propuesta arquitectónica tiene como objetivo el diseño de un club de piragüismo ubicado a orillas del río Ebro, en la ciudad de Zaragoza, sustituyendo una construcción preexistente por una intervención contemporánea que responda a las exigencias funcionales del programa, al mismo tiempo que actúe con sensibilidad hacia el contexto natural y urbano.

Desde esta perspectiva, el proyecto se concibe como una intervención que no solo atiende a las exigencias espaciales y técnicas de una instalación deportiva especializada, sino que también establece un diálogo atento y respetuoso con el paisaje fluvial, el clima local y la materialidad constructiva tradicional del lugar. En este sentido, la elección del ladrillo cara vista como elemento constructivo principal para la envolvente del edificio, constituye una decisión proyectual cargada de intencionalidad y significado, que busca articular eficiencia, expresividad y pertenencia cultural.

Zaragoza, ciudad de fuerte carácter histórico, presenta una tradición constructiva arraigada en el uso del ladrillo cocido, visible en sus arquitecturas mudéjares, renacentistas y contemporáneas. El ladrillo, como material versátil y duradero, ha configurado a lo largo de los siglos una identidad arquitectónica reconocible, ligada tanto a los valores tectónicos de la construcción como a las cualidades cromáticas del paisaje urbano. Así, el uso del ladrillo cara vista en este proyecto no responde únicamente a criterios técnicos, sino que se inscribe en una voluntad clara de enraizamiento en el lugar.

La elección específica del ladrillo cara vista fabricado por la empresa española Hispalyt, reconocida por su compromiso con la calidad y la innovación técnica, responde a una doble necesidad: por un lado, garantizar un comportamiento higrotérmico adecuado, especialmente en un contexto climático como el de Zaragoza, caracterizado por inviernos fríos, veranos secos y calurosos, y una considerable amplitud térmica diaria; por otro, construir una imagen arquitectónica sobria pero expresiva, que dialogue con la vegetación circundante, la tonalidad terrosa de la ribera del Ebro y la dimensión pública del club.

Este proyecto contiene una fachada ventilada de ladrillo cara vista. Se trata de un sistema constructivo compuesto por una hoja exterior de ladrillo cara vista colocada con aparejo tradicional, una cámara de aire ventilada, un aislamiento térmico continúo adherido al trasdosado interior y una hoja portante de ladrillo hueco doble revestido interiormente enlucido de yeso. Esta solución responde a una estrategia pasiva de acondicionamiento térmico. La cámara de aire ventilada permite una mejor disipación del calor en los meses cálidos y contribuye a evitar condensaciones, al mejorar el comportamiento higrotérmico del cerramiento. La hoja exterior de ladrillo cara vista, al estar separada de la estructura portante y actuar como envolvente autoportante, se construye con independencia, asegurando una alta durabilidad y reduciendo la aparición de fisuras y patologías asociadas a movimientos estructurales.

Uno de los elementos singulares de la propuesta es la incorporación de un muro de celosía de ladrillo cara vista, concebido como una transición visual y climática entre interior y exterior. Este dispositivo arquitectónico se sitúa en puntos estratégicos del proyecto, principalmente en áreas de acceso, zonas de relación y puntos de conexión entre espacios servidos y servidores; cumple varias funciones a la vez: protección solar, control de vistas, ventilación cruzada y construcción simbólica del umbral.

La celosía se ha proyectado con piezas de ladrillo dispuestas en aparejo abierto. Esta disposición genera un patrón rítmico de llenos y vacíos que filtra la luz natural, crea juegos de sombras móviles a lo largo del día y permite la circulación del aire, mejorando las condiciones de confort interior sin necesidad de recurrir a soluciones activas.

La fachada ventilada de ladrillo no solo responde a criterios compositivos y climáticos, sino que también se articula con las decisiones tomadas en relación a las instalaciones del edificio. Se ha procurado desarrollar una estrategia coherente de eficiencia energética, donde la envolvente actúa como primera barrera de protección frente al ambiente exterior.

El proyecto propone una i ntervención en el borde fluvial de Zaragoza, dinamizando y conectando dos plazas existentes, el embarcadero y la entrada superior derecha por la calzada, mediante la ncorporación de cuatro piezas edificadas que organizan el nuevo club de piragüismo. Esta fragmentación responde a una lógica funcional, hidráulica y urbana: en lugar de concentrar todos los programas en un solo edificio, la propuesta los separa para atender mejor las necesidades de sus usuarios, adaptarse a la topografía y establecer relaciones abiertas con el parque y el río.

Los deportistas de piragüismo requieren un acceso rápido y directo al agua, por lo que los almacenes se sitúan en cotas bajas, cercanas al embarcadero. En cambio, el resto de los espacios, como aulas, gimnasio y cafetería, se ubican en cotas superiores, menos expuestas a las crecidas. Separar los programas permite, además, administrar mejor los distintos ntereses: el uso deportivo, el técnico y el público se desarrollan de forma i ndependiente, sin superposición nnecesaria de flujos. Cada edificio opera con autonomía, pero forma parte de un conjunto articulado por recorridos, rampas y muros que construyen continuidad espacial y visual entre ciudad y ribera. El primer edificio, el más próximo al agua, alberga el taller de reparación y el primer almacén. Su simple construcción despliega la capacidad tectónica de un material pesado como el ladrillo. Esto lo hace envolviendo su cubierta de concreto con una celosía que, más que un recurso estético, permite la ventilación cruzada del i nterior del almacén, facilitando el secado rápido de las piraguas. El volumen se complementa con un porche que conecta transversalmente dos secciones del almacén. Este está hecho con una celosía superior de ladrillo entre pletinas de acero. Crea un espacio ntermedio que ofrece sombra, enmarca una vista aérea sobre el muelle configurable y permite que los visitantes o acompañantes observen la actividad desde un lugar protegido.

El segundo edificio, ligeramente elevado, almacena piraguas de uso profesional, menos frecuentes en uso y más delicadas. Esta diferencia de cota responde a la lógica de las crecidas ordinarias, ya que las piraguas de ocio no se verían afectadas por una crecida que traiga consigo tierra y lodo del río, mientras que las profesionales se mantienen “más protegidas y pacientes”.

Más arriba, a dos metros del nivel del río, el tercer volumen alberga las aulas, oficinas, vestuarios y gimnasio donde “se entrena la piragua sin río”. Este sector constituye el núcleo técnico donde se continúa el entrenamiento cuando las crecidas mpiden la navegación. Las dos entradas se distinguen por ser de recorridos húmedos y secos. Los piragüistas pueden entrar por atrás directamente a los vestuarios, mientras que las oficinas y la recepción se acceden por la otra entrada. El gimnasio en medio conecta estos dos recorridos, envuelto en una fachada que combina el cristal como envolvente térmica y una celosía de ladrillo como protección solar. Finalmente, en la plaza superior, el cuarto edificio funciona como cafetería pública, ofreciendo un “punto de encuentro entre ciudad y ribera: el nicio del descenso hacia el agua”. Extiende la actual plaza para albergar la sección de la cafetería exterior y comienza el camino mediante rampas y brazos de conexión. Su piel de celosía suspendida, anclada con redondos de acero, ofrece confort tanto para los clientes en el i nterior como en el exterior. El conjunto se construye í ntegramente con muros portantes de ladrillo mediante el sistema Murobrick. Esta tecnología permite levantar muros de carga de forma rápida y precisa, mediante un ensamblaje seco con piezas prefabricadas y perfiles metálicos guía. Cada muro está compuesto por un núcleo estructural de hormigón armado con aislamiento térmico y dos caras terminadas en plaquetas vistas. Esta configuración permite mantener la unidad material tanto en el nterior como en el exterior, a la vez que mejora la eficiencia térmica y acústica de los cerramientos.

El uso del sistema Murobrick no solo responde a razones técnicas o de velocidad de construcción, sino que define el carácter del proyecto. El ladrillo es un material resistente y duradero. Su modulación regular permite controlar aperturas, espesor y ritmo en fachada. El ladrillo en el Murobrick y fuera de él demuestra su simple flexibilidad constructiva y su habilidad de ser combinado con varios materiales, dando mayor control solar o ventilación donde lo requiere, o generando fachadas permeables que regulan el paso de luz y aire sin perder unidad con el resto del sistema.

Navarra UN Otros proyectos

CD7467

Autor/es Piero Schievenini Quireza

EB1204

Autor/es Elisa Lechuga Álvarez-Campana

Lema LS0025

Autor/es Leonardo Suárez Birkett

EC2025

Autor/es Gabriel Pereda Prieto

Autor/es Samuel Molina Fernández

Lema M124D4

Autor/es Inés Hurtado Boris

Lema PV0161

Autor/es Leonardo Rafael Teles Pacheco

Lema Un camino que abre aguas

Autor/es Ana Gascón Genua

Lema
Lema
Lema
Lema HS5064

Autor/es Marcela García Fajardo

Autor/es Luisa Paola Zapata Licón

Lema ZG2605
Lema ZP2025

PRIMER PREMIO Autor/es Paula Tena Tena y Antonio Jesús Moncada Martínez Lema

A la hora de proyectar el club de piragüismo en Zaragoza, se considera fundamental las condiciones hidrográficas de la ciudad. Con un río tan poco estable, la ciudad y el espacio público deben ser consecuentes permitiendo adaptabilidad. El proyecto se presenta con esa dualidad generando un paseo fluvial inundable y un paseo superior permanente. El edificio se sitúa en la zona superior generando un frente resistente y casi monumental ante el rio mostrándose como un nuevo hito cerámico en la ciudad.

Con esta misma lógica la vegetación responde a las condiciones climáticas del parque, predominando la vegetación de ribera y la vegetación autóctona, propiciando “jardines polinizadores”.

En torno al espacio público se prevén espacios de descanso, además de espacios que se asoman al paisaje de Zaragoza, acercando a los habitantes a un espacio de relación con el Ebro.

El proyecto cree en la creación de espacios públicos de calidad al servicio de los habitantes y capaces dialogar con el entorno siempre usando materiales cerámicos que aportan frescor y calidez, generando espacios agradables climáticamente.

En torno al centro de piragüismo, el edificio se mimetiza en el entorno de ribera a través de los ritmos en fachada logrados con material cerámico, ladrillo caravista ecológico, que además no es simplemente la envolvente, se le devuelve su capacidad portante a compresión y gran resistencia. Para la zona del embarcadero era necesaria una gran variabilidad por lo que se decide independizar la estructura y la envolvente del propio suelo generando una plataforma flotante que se regirá por las subidas y bajadas del río oscilando desde una cota mínima de 191.00 m a una cota máxima de 194.00 m, lo que permitirá un uso continuo del centro de piragüismo durante todo el año.

SISTEMA CONSTRUCTIVO

La propuesta para el nuevo centro de piragüismo parte de una sensibilidad hacia el entorno natural en el que se inserta: la cercanía del rio, la problemática ambiental generada por los residuos urbanos y el impacto de la actividad humana. Frente a este contexto, el proyecto apuesta por reducir su huella ecológica desde el diseño y los materiales empleados.

Una de las decisiones clave ha sido la elección del ladrillo ecológico caravista como material principal de fachada que, a diferencia del ladrillo convencional, este se fabrica a partir de materiales reciclados, bajo procesos que reducen significativamente las emisiones de CO2. De este modo, el edificio apuesta por un sistema constructivo duradero, de bajo mantenimiento y alineado con los principios del ciclo de vida y economía circular.

La estrategia de sostenibilidad no se limita al material, sino que se extiende a todo el sistema constructivo.

Se emplea para el edificio una fachada de doble hoja con cámara aire no ventilada y aislamiento térmico/ acústico, lo que mejora notablemente el comportamiento térmico del edificio y reduce su demanda energética. Esta envolvente eficiente permite mantener el confort interior durante todo el año sin recurrir a un alto consumo de energía.

Para el embarcadero, se emplea una estructura de muros de contención de hormigón armado revestidos del mismo ladrillo caravista ecológico del edificio. Asimismo, el proyecto aprovecha al máximo los recursos pasivos del entorno. La orientación, la ventilación cruzada y la entrada de luz natural son elementos fundamentales del diseño que ayudan a reducir el uso de climatización y favorecen el bienestar de los usuarios.

En conjunto, el centro de piragüismo se concibe como una arquitectura respetuosa con su contexto, que dialoga con el paisaje fluvial no solo desde lo formal, sino también desde lo ambiental, Cada decisión proyectual ha sido pensada para que el edificio funcione de manera eficiente, genere el menor impacto posible y contribuya a una forma de construir más consciente y sostenible.

Autor/es María Liliane Recchimurzo y Belén Belloso Rodríguez

El presente documento desarrolla la memoria descriptiva del proyecto “Ecos de Caesaraugusta”, propuesta presentada al Concurso de Proyectos del Foro Cerámico Hispalyt 2024/2025. El proyecto plantea la construcción de un club de piragüismo en Zaragoza, en la ribera del río Ebro, enmarcándose dentro de un ejercicio que aúna la tradición constructiva del ladrillo cerámico con una mirada contemporánea hacia el paisaje fluvial y la memoria histórica de la ciudad romana de Caesaraugusta.

La propuesta parte de un análisis histórico y territorial que reconoce el antiguo puerto fluvial romano como origen simbólico y físico del emplazamiento. Se busca una relectura del lenguaje tectónico de la arquitectura romana mediante un sistema estructural de bóvedas de cañón contiguas, ejecutadas en ladrillo cerámico esmaltado rojo jaspe. Este sistema, inspirado en las investigaciones del ingeniero Eladio Dieste, permite combinar la expresividad formal con una eficiencia estructural notable, logrando una configuración arquitectónica coherente, sostenible y de gran carga simbólica.

El edificio se emplaza en una franja estratégica de la ribera del Ebro, siguiendo una lógica paisajística de transiciones. En primer lugar, se interviene en la franja urbana con una extensión del Paseo del Ladrillo, integrando mobiliario cerámico, vegetación autóctona y zonas de estancia que preparan el acceso al parque fluvial. Esta segunda franja, de carácter naturalizado, está concebida como espacio de absorción ante las crecidas del río, funcionando como zona inundable y de esparcimiento. Finalmente, en la franja de contacto directo con el agua se sitúa el club, estrechamente vinculado a la actividad fluvial mediante un graderío cerámico que desciende hasta el nivel de la lámina de agua, resolviendo el acceso de las embarcaciones y ofreciendo un espacio público que actúa como mirador, estancia y punto de encuentro ciudadano.

La organización funcional del club responde a una modulación clara basada en el sistema estructural de bóvedas. Cada módulo abovedado aloja espacios diferenciados según sus requerimientos funcionales y ambientales. Así, se disponen de forma articulada los siguientes usos: vestuarios, gimnasio, foso de entreno, taller, almacenes, cuarto de botes, aulas de formación, oficinas, recepción, cafetería, aseos públicos y zonas técnicas. La planta se estructura mediante accesos

diferenciados para deportistas y para el público general, garantizando una circulación fluida y una apropiación versátil del espacio. El proyecto cumple con los criterios de accesibilidad universal, incluyendo rampas de acceso y recorridos sin barreras arquitectónicas.

Desde el punto de vista constructivo, el edificio se resuelve mediante bóvedas de cañón de tabica armada continua, ejecutadas con hiladas verticales de ladrillo cerámico unidas con mortero de cal y armadas con mallazo metálico en el trasdós. Estas cáscaras delgadas permiten cubrir grandes luces con un espesor reducido, aprovechando el trabajo estructural en compresión del material cerámico. En el eje longitudinal de cada bóveda se inserta un lucernario lineal que permite la entrada de luz cenital controlada, reforzando el concepto de “estructura como expresión de la luz” y definiendo una atmósfera interior cargada de significado. Los muros de carga, también ejecutados en ladrillo cerámico cara vista, transmiten las cargas a una losa continua de cimentación de hormigón armado, reforzada mediante zapatas bajo cada alineación portante. Este sistema garantiza estabilidad frente a la humedad del terreno y seguridad frente a crecidas, incorporando una cámara ventilada inferior sobre la losa para proteger la edificación frente a agentes de degradación.

La envolvente térmica se resuelve mediante cerramientos cerámicos con aislamiento continuo, cámara de aire, lámina impermeabilizante y acabado exterior en ladrillo esmaltado rojo jaspe. Los acabados interiores y exteriores responden a una estética coherente con la materialidad propuesta, privilegiando soluciones de bajo mantenimiento, durabilidad y eficiencia energética. El pavimento también se ejecuta con ladrillo cerámico, asegurando la continuidad matérica entre el interior y el exterior del edificio.

En conjunto, el proyecto “Ecos de Caesaraugusta” representa una propuesta integral que fusiona arquitectura, paisaje e historia, utilizando el ladrillo cerámico no solo como material constructivo, sino como medio expresivo y de relectura contemporánea del patrimonio fluvial zaragozano. Se trata de una arquitectura téctonica y sensible al entorno, que desde la eficiencia constructiva y la riqueza formal devuelve a la ciudad un fragmento de su memoria e identidad en diálogo permanente con el río Ebro.

Autor/es Rodrigo Martínez González y Javier Escobar Crespo Lema

El diseño de un club de piragüismo en la ribera del río Ebro plantea un ejercicio basado en dos premisas fundamentales: las características del entorno, marcado por las crecidas recurrentes del río que inundan por completo la ribera, y la necesidad programática del centro de alojar ciertos espacios en planta baja, como vestuarios, almacén de embarcaciones, talleres y el patio de maniobras, mientras que otros deben mantenerse a salvo del agua en una estructura elevada en forma de edificio puente.

El proyecto parte de la pequeña escala, explorando la modulación y el funcionamiento de una bóveda cerámica prefabricada en taller, optimizada tanto para facilitar su construcción como para resistir las presiones del agua y la tierra en determinados puntos. De este modo, la lógica modular del proyecto lleva estas bóvedas a su máxima expresión, convirtiéndolas en el elemento estructural y formal clave de la propuesta. Las envolventes serán elementos clave del sistema constructivo, aportando no solo cerramiento, sino también funciones estructurales, como soporte formal de resistencia ante empujes de agua y tierras en planta baja, además de eficiencia en montaje.

La envolvente de planta baja consiste en una bóveda vertical prefabricada de tres capas solidarias. La cara exterior e interior están formadas por ladrillo cerámico colocado a sardinel, con distinta orientación según la cara, aportando una identidad visual característica. El núcleo de hormigón armado actúa como elemento resistente y de unión entre las capas. Su diseño permite resistir cargas horizontales, facilita el montaje mediante grúa gracias a puntos metálicos de enganche y permite una ejecución industrializada con alto rendimiento en obra.

Instalada en la planta primera, el segundo tipo de envolvente es un panel prefabricado de GRC que combina ligereza, resistencia y prestaciones térmico-acústicas. Exteriormente, mantiene la estética cerámica de la envolvente abovedad con plaquetas a sardinel, mientras que su interior incorpora trasdosado de cartón-yeso con aislamiento. Además, el sistema integra una celosía de GRC con alternancia de plaquetas que permite ubicar tras ella paños de vidrio completos, generando una continuidad visual en fachada y coherencia estética con el conjunto.

La estructura de planta baja se compone de un sistema porticado metálico (vigas HEB 300 y pilares HEB 700) con forjado colaborante de 15 cm, que sirve como base de apoyo para la envolvente abovedada. La estructura de planta primera, en forma de cercha continua, sostiene la planta primera con perfiles metálicos HEB y doble U cerrada, también con forjado ligero colaborante, y está pensada para integrarse estructuralmente con los paneles prefabricados de la envolvente de planta primera.

Otros proyectos

Lema AC0803

Autor/es Francisco Javier Gómez Toronjo

Lema AC1708

Autor/es Ángel Calvo Delgado

Lema FA2234

Autor/es Gádor Ruiz Guerrero

Lema JH0322

Autor/es Helena Jurecka

Lema AD0015

Autor/es Alfonso Durá Díaz

BA3820

Autor/es Amador Sánchez Martínez

Lema JJ2101

Autor/es Juan José Rojo Arazo

Lema LT0712

Autor/es Guadalupe de Terry Coronel

Lema

Otros proyectos

Autor/es Blanca Gavira Yélamo
Lema MA0105
Autor/es Manuel Mondéjar Martínez
Lema MM1428

PRIMER PREMIO

Alicia Sánchez Martín, Beltrán Martínez García, Laura Garrido y Rebeca Stefanía Costache

La Escuela de Remo de Zaragoza se dispone sobre una retícula cuadrada de siete metros y medio en nueve módulos de bóvedas a distinta cota, de ladrillo cara vista, aparejo flamenco, de dos pies y medio de ancho que emulan la marea del Río Ebro. La planta se compone de naves longitudinales, como lo es un kayak.

Y un muro de ladrillo acompaña el recorrido.

por el sendero, junto a la vegetación ó

por el embarcadero, junto al río, teniendo la sensación de estar adentrándose en un túnel donde se ve el muro mutar en pilar, dejando ver el segundo canal.

Entendemos el lugar como un único espacio, extendido escalonado sobre el terreno, salvando es desnivel existente. Encontrando en él una nueva oportunidad de generar el umbral.

Un primer nivel, de llegada desde el río. Cuatro peldaños, que se inundan con el ritmo del río introducen al segundo nivel, destinado a sala de formación y talleres. Siguiendo el sonido del río, nos encontramos la zona de aseo y vestuario, donde encontramos una pila de agua, dando la sensación de estar lavándose las manos en un manantial.

Un banco de madera como nexo de unión entre el aseo de hombres y mujeres, que actúa de lugar de espera y descanso.

En el siguiente nivel se encuentra la plaza, con una fuente central giradaconectada a la pila - y un hilo de agua a cada lado, dispuesto en diagonal dirigiendo los pasos del visitante. Es un lugar de descanso y reflexión. Colindante con el camino, por practicidad, se dispone la recepción, lugar de reunión y una taquilla que hace de barrera con el almacén, con puertas correderas a modo de cerramiento.

En todo momento las bóvedas dirigen nuestra mirada. En el embarcadero nos obliga a mirar a la Escuela de remo en ese cambio de perspectiva, encontrándonos con un espacio sin bóveda encima de nuestras cabezas. En el vestuario la mirada se dirige al río Ebro, alimentando el anhelo de remar, adentrarse y surcar los mares.

El proyecto para el nuevo club de piragüismo en Vadorrey, Zaragoza, se plantea como un volumen de una sola planta construido en ladrillo visto, inspirado en la geometría sobria y racional de la Brick House de Mies van der Rohe, combinado con una cubierta ligera de madera con viguetas vistas, siguiendo referencias formales de Sverre Fehn.

La organización se desarrolla en torno a un patio central ajardinado que actúa como núcleo de iluminación y ventilación natural, con parte de los recorridos al aire libre. La estructura perimetral define claramente los límites del edificio, mientras que los cerramientos acristalados de suelo a techo abren visuales hacia el río y el interior del conjunto.

El programa se articula de forma funcional, separando áreas públicas y privadas, e integrando zonas técnicas, deportivas y administrativas. el conjunto se adapta al entorno ribereño, manteniendo una escala horizontal y una relación directa con el río.

Se proyecta la construcción de un edificio para albergar las actividades del club de piragüismo, de carácter permanente.

EMPLAZAMIENTO: La construcción se encuentra en la ribera del río Ebro, habiendo en la parcela un pequeño embarcadero para las piraguas.

PROGRAMA: El edificio contará con el siguiente programa, vestíbulo control de acceso, administración, Vestuarios, gimnasio, almacenes, talleres, sala de formación, aseos y cafetería. Con un área total que no supera los 600m2.

CONSTRUCCIÓN: La construcción del edificio se proyecta a base de la repetición de una serie de muros de carga que rematan con una bóveda de ladrillo para los espacios cerrados y una bóveda en celosía en caso de los canales de circulación y el patio interior.

Se parte aprovechando el terreno ya existente, considerándolo como una losa continua en toda la parcela de 30cm de grosor, sobre el que se coloca una tarima de madera de iroko de 3cm de espesor sobre rastreles huecos de acero galvanizado y fijados con escuadras metálicas a la losa, elevándola a una altura de 13cm sobre el suelo.

El cerramiento de la planta baja está resuelto por un ventanal de doble vidrio fijo, en una carpintería de cerco directo colocado al nivel de la tarima gracias a un ladrillo de nivelación. La parte superior de la carpintería se encuentra a una altura de 1.5m de altura sobre la tarima, y está fijada a un dintel de hormigón prefabricado de dimensiones 200x42x20cm con una mueca en la esquina inferior derecha para albergar el cerco.

Sobre el dintel se coloca una pantalla de medio pie de ladrillo cara vista, 5cm de aislante XPS, y una fábrica de un pie, unidas estructuralmente mediante un conector de atado metálico cada 30cm. Mientras que la pantalla de medio pie sigue hasta una altura de 3.7m sobre el suelo, la fábrica de un pie continúa hasta una altura de 2.3m, donde apoya un forjado de hormigón de 30cm, sobre el cual el ladrillo sigue su curso hasta los 3.7m.

A esta altura, tras una celosía de ladrillo para tamizar la luz que llega del sur, se encuentra el inicio de una ventana abatible, con su precerco ocultado por un ladrillo interior y el alféizar, encontrándose debajo de este último un impermeabilizante que va a extenderse hasta ser anclado entre el precerco y el cerco.

Sobre la ventana se encuentra una segundo dintel desde donde inicia la estructura de la bóveda de ladrillo.

En cambio, la bóveda de las zonas de paso no es ciega, sino que esta insinuada mediante una bóveda en celosía apoyada sobre pilares de 1 pie de ladrillo permitiendo el paso de la luz y lluvia y dotándolo de un carácter más público y diáfano. Dicha bóveda en celosía es reinterpretación de las que empleaba Rogelio Salmona en sus obras.

Otros proyectos

Lema 0507VK

Autor/es Minerva López de Carrión Olmedo, Andrea Gómez Aparicio y Luis Alonso García

Lema II2711

Autor/es Hayate Ouami Ouami, Nerea Monagas Domínguez y María Bargueño Cordero

Lema AA2379

Autor/es Alejandra Marcos Muñoz, Aitor Torralba Gutiérrez y Álvaro Bueno Durán

Autor/es Alejandro Navamuel García, Álvaro Rodríguez Prieto y Miguel Izquierdo Hernández Lema MK3000

Lema AP4884

Autor/es Alfredo Martín Baz

Lema SC0025

Autor/es Sofía Plaza Martínez y Claudia Mesquita Bastos

Lema CP2003

Autor/es César Parra Conde, José María Grueso Vicente y José Soriano Mercado

PRIMER PREMIO

Lema

The project is a nursery for 0-3 years old children, situated in Lohmuhleninsel, a peninsula within Berlin, surrounded by the Spree River, and the Wrangelkiez neighborhood.

The nursery is configured around a circular patio, open to the public during the evning, and it creates an infinite space for the children to play and experience their youth safely. In the project, we consider two distinctive wings; one only for adults, and one built specifically for the children, respecting their scale. These two areas are joint by the reception area and the community space open for the public.

For the elevation, we notice different height built for their users, a high ceiling for the adults area, and a low ceiling built respecting childrens’ scale.

As for the facades, we encounter 2 different types of facades: one built with a 50% flex-brick system, and a glass curtain wall, and a second type of facade with only traditional ceramic brick. The common point is their offset from the ground of 1m, a typical height that fits the a child, that will have clear glass to see through from the building to the exterior urban park.

The exterior facade, is made of flexbrick system with 50% bricks, allowing light to enter the building while creating aesthetic pleasing patterns for the children. The facade is installed on a prefabricated steel profiles, directly connected to the structure of the roof.

mención Autor/es Doireann Hales Moloney Lema DH2510

Nursery in Berlin

01 Purpose and Objectives

The primary objective we were given for this project was to create a nursery on the island of Lohmuleninsel in Berlin, catering to at least 30 children ranging from ages 0-3 years. The design brief outlined the necessity of dedicated classrooms for each age group (infants, young toddlers, and older toddlers), each featuring an adjoining outdoor play area. Furthermore, the requirements in the layout of the design involved a multi-purpose area that would be incorporated into the nursery’s programme used both by the nursery and the broader community. The main goals of this brief is to create a safe and nurturing environment but also fostering child development and support for the local community.

02 Design Concept

The conceptual foundation of this design draws inspiration from the anatomy of a tree, with a particular focus on its concentric growth rings, each of which serves a distinct function. This analogy emphasises the interdependence of various components within the system, suggesting that, much like the layers of the tree, the di��erent zones of the building must work cohesively to sustain its overall purpose. This approach establishes a symbiotic relationship between spaces, similar to the dynamics of an ecosystem or forest, creating a harmonious and integrated design.

03 Space Planning

The variation in wall thicknesses serves as a critical design proposal, with each layer fulfilling a specific functional role, whether its related to privacy, thermal regulation, or spatial organisation. The building conceived as a linear form reflects this organic growth by extending along a single axis rather than representing a disparate array of isolated elements. The integration of varied materials and textures further emphasizes the distinct roles of each layer, enhancing both functionality and aesthetic expression.

04 Safety and Security

In terms of safety, the building features rounded surfaces around classrooms, minimising the risk of injury for the children. The smooth, curved edges

eliminate sharp corners, creating a safer environment for the young users. This thoughtful design, combined with the natural benefits of hempcrete alongside the brick walls not only supports sustainability but also prioritises the well-being and safety of the buildings’ occupants.

05 Community and Parental Engagement

As mentioned in our brief we are obliged to have a multi-purpose space adjoining our nursery design. I chose to design a remote lounge/café on the north-facing end of the building. I chose this because it has become very common of late for parents and the working community to avail of online or remote labour. With this addition to the proposal, parents can maintain proximity to their children but also have the workspace environment and the space and time to focus on their work.

06 Construction and Materials

The project adheres to the brief’s requirement for a façade comprising of 50% brick façade. Along with the brick cladding, the structure of the walls is composed of timber studs encased in hempcrete infill in which the bricks are fixed and the joints filled. Hempcrete, made from hemp hurd, lime and water, is an environmentally friendly building material with numerous benefits. Hemp itself is carbon-negative, sequestering more CO2 than is emitted during its production. It also promotes healthier indoor environments by naturally regulating humidity, preventing mould growth and improving air quality. Its thermal and acoustic properties enhance energy e��iciency, reducing the need for mechanical heating and cooling while providing excellent sound insulation – crucial for maintaining a quiet and peaceful atmosphere, especially in places like the classrooms in my nursery. The brick facade not only adds visual interest and vibrancy to the nursery but also o��ers tactile and sensory engagement, enriching the experience of the building’s users.

LOCATION:

Lohmühleninsel, located at the intersection of the Landwehr Canal and the Neukölln Ship Canal, is a peaceful island in Berlin’s Kreuzberg area.

It’s surrounded by a diverse range of uses and personalities, including converted industrial facilities, modern art galleries, and cafés. The canals function as physical and visual passageways, combining natural and urban aspects. The island’s accessi-bility is facilitated by pedestrian and bicycle trails, making it a case study in urban resilience and the integration of built and natural environments.

An organic form in the middle of the capital.

CONCEPT AND PROGRAMME:

The concept reflects children’s energy, joy, and innocence by creating a “village for kids,” characterized by narrow passages, flexible spaces, and numerous intersection points. The form reflects on the energetic movement generated by kids. A mirror of their happiness, innocence, and fun. An organized, functional chaos.

Movable walls and furniture encourage exploration and support dynamic uses, while zoning is carefully structured to differentiate children’s areas, adult spaces, and common areas, filtered through playful architectural elements like “bird cages.” All engulfed under a transparent common roof allowing sunlight and inspiring even further for movement and exploring in this village.

The project balances indoor and outdoor interactions with expansive play areas, landscaped zones, and covered exterior spaces, fostering a connection to nature.

Its spatial organization includes diverse programmatic elements such as greenhouses, multipurpose rooms, dining, storage areas, and of course classrooms both interior and exterior, ensuring functionality and variety.

REFERENCES:

The nursery design is highly influenced by architectural pre-cursors, which shape its notion of user-centric, fun, and flexible environments. One important reference is Sou Fujimoto’s Chil-dren’s Centre for Psychiatric Re-habilitation in Hokkaido, Japan, which emphasises open, linked areas that encourage explora-tion and interaction, fitting with the nursery’s goal of a dynamic “village for kids.”

Similarly, Aldo van Eyck’s Amsterdam Orphanage has an important effect due to its hu-man-scaled design and emphasis on creating a microcosmic world for children, complete with a network of courtyards, path-ways, and carefully zoned areas that blur the boundaries between indoor and outdoor environments.

While the Dessert city by Gar-ciagerman Arquitecto in Madrid, Spain was the main inspiration and core for the ETFE common roof and the creation of a sunlit space characterized by a green-house effect.

CONSTRUCTION:

The construction of the nursery combines tradi-tional and modern materials, emphasizing durabil-ity, sustainability, and a connection to nature. The structure is based on a self-supporting double brick dome, utilizing fair-faced bricks for both structural integrity and aesthetic appeal. The skylights incor-porated into these domes enhance their function-ality by introducing natural light into the interior spaces, The placement and size of the skylights consider the nursery’s layout, ensuring even light distribution and minimizing glare. This choice of material reflects a timeless, sturdy construction method while maintaining a clean and natural finish that complements the design’s ethos.

The flooring consists of laminated wood paired with an integrated floor heating system, providing both warmth and a tactile surface suitable for children’s activities. This material choice is child-friendly, visually appealing, and practical, promoting comfort and ease of maintenance.

A distinctive feature of the nursery is the use of bird cages, represented by a thin timber structure cov-ered with plants and vegetation, resembling domes adjacent to each one, which serve as spatial filters between zones. These elements are lightweight, versatile, and add a playful architectural layer while defining boundaries and maintaining opennvess.

[Memoria completa en www.foroceramico.es]

Lema AK5627

Autor/es Abdullah Khatri

Lema AR9803

Autor/es Renée Accari

Lema BA1609

Autor/es Andra Maria Berescu

Lema CC0507

Autor/es Carlos Enrique Chen Sánchez

Lema CN0023

Autor/es Cristian Nafornita

Lema CS1102

Autor/es Dawson Garlan

Lema E0N1

Autor/es Fernando Marcelino Souto Verdes

Lema FR0708

Autor/es Rebeca-Ioana Negrea Rebeca

VALENCIA CEU Otros proyectos

Lema GS0426

Autor/es Ana Rosa Gallardo Sanders

Lema HB2000

Autor/es Hatoun Jalloud

Lema KK3266

Autor/es Koray Kiliclar

Lema LN2025

Autor/es Daniel Amaya Ríos

Lema LM0710

Autor/es Luiza Mamyan

Lema MH2025

Autor/es Mai Hayashi

Lema MJPC0527

Autor/es María José Pinzon Zabala

Lema NB2324

Autor/es Martina Rodrigo Villanova

VALENCIA CEU Otros proyectos

OH1543

Autor/es Hanna Kaczmarkiewicz

PL0207

Autor/es Paulina Lesser

RD1972

Autor/es Ana Celeste Martínez Fernández

Autor/es Simeon Zorn

Lema
Lema
Lema
Lema SZ2908

PRIMER PREMIO

Objetivos de la propuesta.

Regenerar uno de los nodos que forman parte de la infraestruc-tura verde del cauce del río Ebro en Zaragoza.

Replantar el entorno con el uso de plantas autóctonas.

Espacio público y paisaje urbano.

La propuesta trata de marcar un hito en el transcurrir del Ebro, la arquitectura entre bambalinas. La masa vegetal conforma en un primer plano un telón abierto dando paso al actor y atrás, el telón de fondo delimitando el escenario.

Usos

Un paseo, una plaza, un mirador y un muelle.

Construcción

El trabajo ha pretendido ser un diálogo entre estructura y orna-mento.

Se crea una gran estructura de hormigón in situ que conforma el forjado de la planta segunda y a posteriori se monta el forjado metálico de la última planta. Los volúmenes de la planta primera aparecen suspendidos del forjado de hormigón. Estos están formados por elementos pre-fabricados, por ello aparece una estructura mínima metálica que sirve como apoyo para el montaje de estos volúmenes.

Accesibilidad

La intervención pretende combinar el objeto del concurso con su entorno, para ello se opta por elevar gran parte del programa so-bre el suelo. De esta manera, permitimos el paso inferior desde la plaza hasta el muelle. El acceso a las pasarelas es público y accesible para todos los peatones así como el resto de la intervención.

Se garantiza el acceso rodado para servicios puntuales de emer-gencias y limpieza.

Sostenibilidad y criterios ambientales El emplazamiento en el que nos encontramos forma parte de la infraestructura verde (I.V.) de Zaragoza, encontrándonos noso-tros en la parte más próxima al límite del suelo urbano. Es un es-cenario que nos da la oportunidad de establecer dos objetivos. En primer lugar, comformar un punto que sirva como antesala de la I.V. que continuaría bordeando el Ebro pero por suelo agrícola. Y, en segundo lugar, recomponer la vegetación y arbolado, más próxima a nuestra intervención, aumentando la masa de árboles considerablemente y aumentando la diversidad de plantas au-tóctonas propias de los entornos de un río.

Se propone la sustitución del pavimento preexistente, imper-meable, por uno que garantice la permeabilidad de las bases del suelo favoreciendo el drenaje del espacio y la filtración de los restos contaminantes, posados en el terreno, previo a su retorno al río Ebro.

Se establece bajo las pasarelas puntos de reciclaje para la reco-gida de basuras.

Situado en la última parte del río Ebro que atraviesa Zaragoza, este proyecto surge con una aspiración que va más allá de lo meramente deportivo: convertirse en un punto de llegada, un respiro, un sitio donde el río finaliza su camino y las personas hallan un lugar para residirlo. No solo es un club de piragüismo, sino un entorno social y abierto que recibe a todos aquellos que se desplazan por la orilla, invitándolos a integrarse al ambiente sin buscarlo de manera activa.

El planteamiento se desarrolla en dos niveles. El primero, un volumen con curvatura que sigue la línea del paseo fluvial, funciona como límite que define la llegada. Este acto define y simultáneamente dirige la mirada hacia una plaza que se expande hasta sumergir con la cubierta del segundo volumen, situado a nivel del agua. Este cambio topográfico entre el paseo superior y la orilla inferior del río se interpreta como una serie de áreas públicas que terminan en el agua, reconfigurando el anfiteatro ya existente y otorgándole una nueva dimensión social.

El segundo inmueble, más reducido y compacto, se ajusta a la altura del río y aloja las actividades asociadas al club: gimnasio, vestuarios, talleres, aulas y depósitos. En este punto, se han tenido en cuenta meticulosamente las fluctuaciones estacionales en el flujo del Ebro. Se anticipa un sistema de drenaje eficaz, junto con una arquitectura que pueda manejar inundaciones ocasionales sin afectar la actividad o la integridad del inmueble.

El método de construcción utilizado se enfoca en la eficiencia, la longevidad y la integración con el entorno urbano e hidráulico. El sistema MUROBRICK ha sido empleado, una modalidad de cerramiento industrial que se basa en paneles de hormigón prefabricados con un acabado exterior en placa cerámica de ladrillo cara vista. Esta solución no solo proporciona un óptimo rendimiento térmico y sonoro, sino que también asegura una estética duradera, sustentable y de escaso mantenimiento, integrándose con elegancia en el ambiente fluvial. La instalación a través de anclajes metálicos garantiza la estabilidad de la estructura y facilita una realización ágil y exacta en la obra.

Los utensilios cerámicos utilizados en la fachada proporcionan una textura llena de riqueza y sobriedad, con la capacidad de interactuar tanto con el agua como con la vegetación fluvial. Además, debido a su longevidad y capacidad para resistir condiciones climáticas extremas, se vuelve un material ideal para este tipo de ubicaciones.

En conclusión, este proyecto propone una arquitectura que no se impone, sino que se adhiere. Un club de piragüismo que es, principalmente, un sitio para alojarse. Un término de viaje que se transforma en un nuevo inicio para la vida en la ciudad junto al río.

Memoria constructiva

El proyecto del Real Club de Piragüismo de Zaragoza se desarrolla a la orilla del río Ebro, a su salida de la ciudad. Abarca un ámbito indefinido por su carácter paisajístico y su voluntad de ordenar el terreno y encauzar las circulaciones existentes hacia un espacio que se genera a partir de los muros y los vuelos de las cubiertas.

La intervención parte de la ordenación de la ribera a través del trazado de muros. Muros que responden tanto a criterios funcionales (como el trazado de los recorridos y la contención de tierras) como a intuiciones arbitrarias, que acaban convirtiéndose en parte fundamental del proyecto. Estos muros se construyen con gaviones de cascotes cerámicos. Una forma más de emplear la cerámica en la arquitectura que permite, además, el empleo de materiales de derribo, con el consecuente abaratamiento de costes y de impacto.

Una vez ordenado el espacio se le otorga un carácter. Nunca se deja de lado al gavión. Todo lo que sucede lo hace a un lado del muro. Todas las circulaciones, tanto interiores como exteriores, van acompañadas (y acompañando) al gavión. La presencia del gavión es la presencia constante de la cerámica y del carácter paisajístico de la intervención. El programa se divide en 2 paquetes, en función de su relación de inmediatez con el río. El primero de los paquetes alberga la mayoría de usos y se sitúa al nivel de la calle. Esta se materializa en volúmenes independientes a los que se accede por una circulación exterior que viene marcada por el trazado del gavión más cercano al viario.

Oficinas, aulas, baños, gimnasio… Estos volúmenes se construyen, según su uso, con dos tipos de cerramiento. En las aulas y oficinas se emplea un cerramiento con dos capas. El volumen se cierra con grandes paños de vidrio practicables, junto a los cuales se emplea el sistema Flexbrick a modo de celosía. Este sistema otorga privacidad a la vez que permite la ventilación cruzada cuando esos grandes paños de vidrio se practican.

Los volúmenes de uso más privado como baños y vestuarios se muestran al exterior con cerramientos de fábrica más tradicionales. Muros de ladrillo cara vista que potencian la presencia de la cerámica en la intervención y que representan la forma más tradicional de hacer uso de la misma.

En los interiores, se emplean tabiques de ladrillo o de pavés, en función del carácter que se busca.

El segundo paquete del programa se abre al río. 4 muros de ladrillo cara vista se sitúan cerca del gavión. El espacio entre estos alberga programa, que en ningún caso interior.

Taller, almacén, vestuarios… Estos espacios se conciben como espacios exteriores en sombra, en relación directa con el río y las piraguas. Al gavión y el ladrillo cara vista se suma también en este caso el pavés.

Una pasarela atraviesa la plaza y ata las dos partes del programa, mientras las cubiertas asientan la intervención, apropiándose del espacio público con sus vuelos y apoyos. Estas cubiertas se materializan en losas de hormigón armado, que permiten una libertad en los apoyos del todo necesaria para el proyecto.

Los espacios en sombra que las cubiertas generan en el bosque de pilares que las sostienen, son la principal bondad de un gran espacio público que se matiza, bien con elementos construidos, como pavimentos, o con la relación que mantienen con las cubiertas, los gaviones ola pasarela.

Valencia UPV Otros proyectos

Lema AA2162

Autor/es Aina Marqués Pericás y Anna Mulet Pedro

Lema CN0201

Autor/es Xana Secades Fernández, Mario San José Alonso y Ana María Piñeres Aragón

AM0127

Autor/es Berta García Ferrús y Jorge Durán López

Lema EP2703

Autor/es Laura Elvira Pérez Perez

BE4244

Autor/es Malek Zouini Hajji Zahar

Lema CH1327

Autor/es Diego Mor Tosca y Juan José Álvarez Monsave

Lema EP3939

Autor/es Isabel Fuentes Justicia

Lema EX1999

Autor/es Mario Rosaleny Puchades, Enzo Arcia Aguilar y Daniel Jiménez Velázquez

Lema
Lema

Valencia UPV Otros proyectos

y Paula Sánchez Flores

Autor/es Andrea Rodríguez Pomeda y Martin Pérez Padial
Lema PP1523
Autor/es Pablo Casas Benet
Lema RF2840
Autor/es Laura Casado Belmonte, Lucía Morlán Molina
Lema PL0508

PRIMER PREMIO Autor/es Samuel Plaza Marco y Adrián Serrano Lasheras

El proyecto, dispuesto sobre la ribera del río Ebro a la altura del barrio de Vadorrey, responde a la transformación del actual club de piragüismo.

En un entorno de carácter primordialmente natural, la propuesta se interpreta como una regeneración de la ribera, que supone en consecuencia una renovación del sistema viario peatonal basada en su síntesis, siendo este alejado de la vía de tráfico colindante en favor de la experiencia del viandante.

Junto a la huella del embarcadero, cuya modificación del cauce se respetará, se presenta un ritmo de bóvedas que pone en alza el uso cerámico y sus soluciones y sistemas convenientes, representando un aura fluvial y componiendo la fachada de la ribera. Se establece un rediseño del terreno, siendo su cota el área de actuación, convirtiendo al proyecto en el medio de relación entre el paseo y el río.

Sobre su configuración se ensalza la potencia de los muros estructurales, que generan los espacios interiores optimizando la iluminación y la disposición de las bóvedas. Se presenta un tránsito longitudinal servidor, acompañado de un espacio transversal que recibe al usuario y toma un carácter vestibular, segregando las áreas de actividad física que suponen contaminación acústica de las zonas más tranquilas.

Se dispone un paseo sobre el embarcadero junto a la nueva fachada cerámica de la ribera. El área del taller se propone como un espacio independiente de actividad continuada, y el almacén se interpreta auxiliar a este como un armario en el terreno, configurado por el retranqueo de la contención.

La pavimentación de este espacio, por su relación con el mundo exterior natural, se presenta con una constitución pedregosa de gran formato regular para áreas de estancia, mientras que el pavimento exterior que descansa bajo las bóvedas presenta propiedades cerámicas.

El empleo del material cerámico es protagonista en prácticamente todo el proyecto, siendo imprescindible su aparejo para construir los muros de carga a base de bloques de termoarcilla sobre los que descansan los apoyos

de cada una de las bóvedas tabicadas, aunque reforzadas con hormigón armado, que mantienen una tradición centenaria de la construcción más popular a base de materiales cerámicos y sistemas estructurales clásicos, acentuando la propiedad estructural intrínseca de este material. Estos bloques de termoarcilla se combinan con otros sistemas necesarios para el cumplimiento de las exigencias actuales que se traducen en una fachada confinada consistente en una combinación de capas entre las que destaca visiblemente el ladrillo caravista, empleado como revestimiento exterior en aquellos cerramientos opacos que así lo requieran.

Además, la relación visual, lumínica y sonora entre el exterior y el interior se logra gracias al sistema de celosías incorporados a la envolvente del proyecto. En este caso, el sistema empleado es conocido como Iris, un sistema constructivo muy versátil basado en una serie de perfiles verticales que colocados de forma paralela entre los que se insertan en seco piezas cerámicas con una doble muesca. Este sistema permite la ejecución de celosías cerámicas de diferentes espesores y geometrías. Finalmente, para culminar el diálogo del proyecto con el entorno y la materialidad cerámica, las bóvedas tabicadas son revestidas con Flexbrick, un sistema ligero industrializado cerámico basado en láminas flexibles formadas por una malla de acero trenzada en la que se insertan elementos cerámicos con su tabla vista.

La flexibilidad de las láminas permite almacenarlas y transportarlas plegadas en palets, y una vez en obra, desplegarlas con una grúa para colgarlas sobre una cubierta, como es este caso.

Iris es un sistema desarrollado para la ejecución sencilla y rápida de celosías de diferentes espesores y opacidades que utiliza la nobleza de los productos cerámicos caravista. Permite construir paredes de gran esbeltez, sin la necesidad de mortero ni de un control de ejecución exhaustivo en obra.

mención Autor/es Jorge Centellas Calavia y Pablo Casimiro Aguirre

Se ha abarcado el proyecto desde dos premisas muy claras; acercar al usuario a su entorno natural, el agua, y potenciar la estructura verde urbana ya existente a orillas del rio Ebro.

Conectar con el medio. El punto de partida para este proyecto. En un enclave idílico por su conexión con el rio Ebro, símbolo de la ciudad de Zaragoza, se trata de potenciar esa relación a través de la cercanía y de la conexión visual.

Acercamos las estancias a escasos metros del agua, con el objetivo de que elementos propios del entorno como la humedad, el murmullo del agua o la brisa aborden las dos plataformas de las que se compone el proyecto. Plataformas separadas entre si por una diferencia de un metro de altura, y que agrupan, tal y como se muestra en el esquema central, los diferentes usos para proteger los mas sensibles de posibles crecidas del rio Ebro.

La conexión visual con el agua es otro punto clave del proyecto. Además de potenciar la vista desde el nuevo paseo de la rivera, se construye lo que en la fase de estudio denominamos “Paseo del piraguista”. Un transito que engloba todas las actividades y preparaciones previas que llevan acabo los deportistas antes de su salida al rio. La idea es minimizar el contacto visual con el agua durante ese recorrido, generando un lento acercamiento al agua a medida que uno se prepara para adentrarse en ella.

Entorno urbano. Desde un comienzo se planteó que la propuesta debía mejorar las condiciones actuales de la estructura urbana, anticuada desde su desarrollo y lejos de cumplir con el creciente desarrollo edificatorio que ha sufrido la zona. Asimismo, se pensó que las instalaciones deportivas debían tener el menor impacto posible en la rivera del rio.

La solución a estas dos cuestiones vino dada por el enterramiento de la edificación. Delante de un muro de contención, los volúmenes parten de una cota 3,4 y 4,4 metros inferior a la del paseo de la rivera. De esta manera, se potencia el acercamiento ya comentado previamente y, lo mas importante, se libera la visual hacia el rio de cualquier impedimento visual mas allá de las cubiertas de zinc que pasan a formar parte del plano del rio. Asimismo, la diferencia de cota permite una aproximación visual a las actividades que se desarrollan en las plataformas, acercando el deporte a los espectadores, y sirviendo de graderío en el caso de regatas.

La extensión del pavimento cerámico a la cota superior garantiza la continuidad de la intervención, disminuyendo su impacto, y favorece el uso activo de los nuevos espacios verdes resultantes por parte de los vecinos de la zona.

mención Autor/es Natalia Rodríguez Boned y

El proyecto se basa en las posibilidades de la cerámica para crear estructuras tanto pesadas y sólidas como ligeras y gráciles, una variedad que también se ve complementada por la posibilidad de crear celosías y pavimentos.

Para ello se parte de la creación de grandes muros de carga de fábrica, estos, que se podrían denominar muros técnicos (ya que se introducen en ellos algunos de los usos y condiciones requeridas para el funcionamiento de la escuela, como el almacenamiento de todos los tipos de canoas y remos), sostienen un sistema de bóvedas tabicadas que generan amplios espacios diáfanos. La escuela se descubre de forma direccional, (direccionalidad conseguida gracias a su estructura muraria que se aprovecha para fundirse con el río y propiciar la entrada de las canoas a este) y tiene una entrada clara a la que se llega guiado por la topografía y la cerámica. En este acercamiento percibimos visualmente el río aunque de manera parcial a través de unas celosías, no descubriéndose del todo hasta la entrada en el edificio. Esta entrada se produce por el espacio principal y representativo de la escuela, un vestíbulo amplio que funciona como almacén de las piraguas y distribuidor general hacia los usos de la escuela. Los usos se agrupan por su carácter seco o húmedo en 2 crujías a los lados del gran espacio central, además de una crujía que funciona como terraza de la cafetería que se dispone elevada sobre el río. Estas cubiertas acompañan a los muros más allá de los cerramientos de la envolvente y eventualmente estos se despegan de las bóvedas y se desvanecen con celosías y el río. En las crujías laterales se disponen diversos patios que además de distinguir áreas iluminan las estancias colindantes. La entrada de luz al proyecto se lleva a cabo mediante el uso de varios sistemas de celosías (empleando el flexbrick oel sistema iris, además de celosías creadas por ladrillos a soga alternados), estas se componen dependiendo de las necesidades del ambiente interior o su posición en el proyecto (ya sean los testeros o los frontales al río).

El proyecto puede recordar a unas atarazanas en el Ebro creadas a partir de muros masivos de almacenaje unidos por bóvedas que, en su conjunto, permiten observar deja ver la belleza y versatilidad de la cerámica.

Lema 0305XV

Autor/es Javier Martin Requena y Vlad Lihet

Lema JJ2025

Autor/es Javier Garuz y Javier Baigorri

Lema BC1101

Autor/es Andrea Bañares Riaño y Julieta Carbajal Peloche

Lema JM2503

Autor/es Jara Martín Lorente y Maribel Urrea Vallespín

FM9311

Autor/es Fernando Miguel García Giménez

IC3123

Autor/es Isabel Corchero Ramírez

Lema LM1812

Autor/es Alba Anadón Martín, Julio Hereza Sepúlveda y María Ibáñez garcía

Lema LT2025

Autor/es Luis Tomás Barba

Lema
Lema

LV3003

Autor/es Álvaro Escolar Borjabad

Lema WA1122

Autor/es Natalia López de Diego y Elena Tafalla Jiménez

MS2412

Autor/es Loreto Serrano Gil, Hugo Plaza Sáez y Roberto Pallarés Belio

PH0000

Autor/es Pablo Gíl Simón y Hugo Gonzalvo San Miguel

UL0307

Autor/es Aarón Casalilla Callejas

Lema
Lema
Lema
Lema

PREMIO TRABAJO FIN DE MASTER

El objeto de este Premio es fomentar el conocimiento y la reflexión sobre los materiales cerámicos entre los estudiantes de arquitectura y arquitectos que hayan realizado su Trabajo Fin de Máster (TFM) con ladrillo cara vista.

El Jurado estuvo compuesto por arquitectos de reconocido prestigio, como Beatriz Matos Castaño (Matos Castillo arquitectos) y Adrià Sánchez Llorens, profesor coordinador del Dpto. Cultura – Expresión en la Escuela de Arquitectura de la Universidad Ramón Llull - La Salle), además de Enrique Sanz, coordinador del Foro cerámico Hispalyt, y Elena Santiago Monedero, Secretaria General de Hispalyt (en sustitución de Pedro Rognoni, Presidente de Hispalyt).

• Premio: 1.000 €

• Mención: 500 €

BASES DEL CONCURSO Y OTROS

En la dirección https://www.foroceramico.es/premio-tfm/anos-anteriores se encuentra la siguiente información sobre el XIX Premio Trabajo Fin de Máster (TFM) del Foro Cerámico Hispalyt del curso 2024/2025:

• Nota de prensa Fallo Jurado y Ganadores

• Resumen Ganadores

• Acta con el Fallo del Jurado

• Bases

PREMIO TFM

Podían concurrir a este Premio los estudiantes o arquitectos que hubieran presentado su Trabajo Fin de Máster (TFM) en cualquier Escuela de Arquitectura de España en el curso 2024-2025 y 2023-2024, en el que se utilizara principalmente LADRILLO CARA VISTA, valorándose especialmente su utilización como cerramiento autoportante.

• 1er Premio exaequo: Comitium. Rehabilitación y ampliación de un centro socioeducativo en Pere IV. Xavier Arés Marín (Barcelona UPC)

• 1er Premio exaequo: Foco au coñecemento. Noelia Vázquez Abelenda (A Coruña UDC)

• Mención: Centro Integral de bienestar en la Malvarrosa. Clara Vicente Cayuela (Valencia UPV)

PRIMER PREMIO EX AEQUO

Autor/es Xavier Arés Marín (Barcelona UPC) Comitium.

Rehabilitación y ampliación de un centro socioeducativo en Pere IV

CARÁCTER FORMAL

La pieza arquitectónica se plantea como un reflejo vibrante de la materialidad arenosa y fabril del entorno en el que se inserta. Con esta premisa, y bajo el requisito de emplear obra cerámica, se adopta como estrategia principal el uso de un muro compues-to por costillas nervadas llevadas al límite, evocando un ideario de porosidad y disipaciones convectivas. La imagen resultante remite a una suerte de “dólmenes murarios cerámicos”, que en-cuentran un símil en la composición rítmica de los tramos de una iglesia.

MORFOLOGÍA CERÁMICA

El vínculo con el lugar y con el usuario se establece a través de la materia cerámica, entendida como un recurso vernáculo de continuidad cultural. La tradición estereotómica occidental, basada en lo macizo, pesado y duradero, se convierte en el ref-erente conceptual: aquello que protege, ofrece cobijo y se man-tiene sin artificios se expresa mediante la masa. En este sentido, la propuesta arquitectónica se concibe como una sucesión de llenos y vacíos que adquieren carácter casi lapidario. Su máxima expresión se da en una arquitectura pesante y contundente, que sin embargo articula su equilibrio formal a través de un esquema ojival que transmite ligereza en el descenso de cargas.

EL MÓDULO GENERADOR

El discurso del proyecto se articula en torno a esta dualidad en-tre lo pesado e inmóvil y lo liviano y dinámico. De ahí deriva un sistema constructivo inspirado en la tradición de los maestros de obra, que erigían edificaciones macizas en el exterior y huecas en el interior. En esta línea, el muro nervado se concibe como una envolvente hueca, habitable en sus intervalos. La solución adoptada es la

de un muro formado por dos hojas de ladrillo cerámico de aparejo castellano (24 x 11,5 cm), separadas por un vacío de 8 cm. A efectos prácticos, funciona como un muro ma-cizo sometido a esfuerzo axial, reforzado con hiladas de trabado y coronado por un zuncho de hormigón que reparte las cargas del forjado unidireccional superior.

EL APAREJO

La innovación del sistema radica en transformar el muro tradicional que trabaja por espesor en un elemento hueco que opera por inercia mecánica. En cuanto a la envolvente, el muro perimetral se resuelve con dos hojas de ladrillo castellano GERO, con un aislamiento confinado de 8 cm y conectado mediante anclajes metálicos. Paralelamente, otras tipologías de ladrillo se emplean según su función: el ladrillo catalán (29 x 14 cm)conforma las cos-tillas y el núcleo de comunicaciones.

ENVOLVENTE CERÁMICA

La celosía continua de ladrillos dispuestos en vertical a lo largo de las fachadas este, sur y oeste permite controlar la radiación solar, equilibrando protección y permeabilidad visual. La celosía tamiza la luz, reduce el sobrecalentamiento y al mismo tiempo posibilita la ventilación natural, generando corrientes cruzadas. Además, proyecta juegos de luces y sombras que enriquecen la experiencia espacial junto al presente en el sistema de atrios.

Para reforzar la idea de cavernosidad y fractalidad en relación con los nervios estructurales, se introduce una matriz modular que organiza las particiones interiores y la disposición del mobiliario fijo (armarios, nichos, carpinterías y aperturas de fachada), integrando lo constructivo con lo espacial y lo atmosférico.

PRIMER PREMIO EX AEQUO

Autor/es Xavier Arés Marín (Barcelona UPC) Comitium

Autor/es Xavier Arés Marín (Barcelona UPC) Comitium

Autor/es Xavier Arés Marín (Barcelona UPC) Comitium

El Monasterio Mekhiitarista se encuentra en el barrio residencial de Neubau, junto al Ring de Viena. Su posición privilegiada le permite ver y ser visto, pero a diferencia de los edificios más monumentales del Ring y su relación con los grandes espacios libres que los rodean, clara y directa, la fachada principal del monasterio da a una calle estrecha y con bastante pendiente, como si estuviera agachada. Es su parte trasera, inacabada, la que relaciona el conjunto con esa monumentalidad que se abre a las puertas del Ring.

Por un lado, el hotel, que por su tamaño y posición adquiere demasiada importancia en el espacio en contraposición al Ministerio de Justicia, que queda oculto tras una valla que corta la conexión con la plaza, o el propio conjunto monástico, que muestra su parte trasera a la plaza cerrándose así con un muro que le proporciona privacidad pero que lo desconecta, convirtiéndolo en un claustro inacabado.

FOCO AL CONOCIMIENTO

En la búsqueda de un volumen acorde con el lugar, se propone una pieza que remate el claustro, basada en las conexiones del monasterio con la calle, la iglesia y la plaza trasera, que pasará a ser la entrada principal.

Como un cuerpo que se enrosca sobre sí mismo, se eleva la torre, que se convierte en el punto focal de la propuesta. Además de ser la conexión directa con la zona del museo y la biblioteca existentes, la torre relaciona el edificio con el barrio y la ciudad. De esta manera, el monasterio se completa de forma natural, dotando al conjunto del cierre del claustro y una torre.

La plaza se convierte en la entrada principal al nuevo edificio, al mismo tiempo que desde el lateral de la iglesia se busca una conexión directa con la plaza, como parte de la propuesta, que

entra desde el sur y recorre el volumen horizontal que cierra el claustro, manteniendo así su privacidad y estilo de vida.

Para mantener la privacidad de los monjes, la torre da acceso directo a la zona de biblioteca y museo actual, situados al sur del monasterio. A través del museo, se recorre el edificio hasta llegar al norte, que acogerá la futura ampliación del museo junto con nuevas funciones que se irán articulando al bajar las diferentes plantas.

La torre se erige como un hito dentro del lugar, posicionando tanto al edificio como al barrio, con un gran carácter simbólico.

A través de su materialización, con piezas de ladrillo cerámico formando un tapiz, opaco y cerrado desde lejos pero más permeable y abierto a medida que nos acercamos, la torre pretende ser un símbolo de apertura de la cultura armenia y, en especial, de los Mekhitaristas a la comunidad, la torre como foco de conocimiento y apertura, la torre observadora y observada, que, con esa relación de ciudad, mira directamente al perfil vienés.

SISTEMA ENVOLVENTE: EL TAPIZ CERÁMICO

El revestimiento de ladrillo cerámico, de apariencia continua, está sostenido por un sistema de cables tensados que permiten la posibilidad de componer diferentes secciones de fachada. Colocadas como si se tratara de libros apilados, la disposición de las piezas cerámicas favorece la continuidad y la rotundidad de la pieza.

Desde prácticamente la totalidad del edificio se puede observar la plaza en la que se interviene urbanísticamente, de este modo se busca mantener la relación de la nueva edificación con su entorno, gracias al acabado de ladrillo que actúa como cierre permeable definiendo la personalidad y el porte del edificio.

Autor/es Noelia Vázquez Abelenda (A Coruña UDC) Foco

Autor/es Clara Vicente Cayuela (Valencia UPV)

El Trabajo Fin de Máster se centra en el diseño de un Centro Integral de Bienestar en el barrio del Cabanyal (Valencia), una zona marcada por la precarie-dad laboral, el envejecimiento de la población y la falta de inversión pública, factores que han incidido negativamente en la salud mental de sus habitantes. El proyecto busca dar respuesta a esta situación mediante la creación de dos edificios de nueva planta: un Centro de Talasoterapia, orientado al cuidado físico a través del agua marina, y un Centro de Bienestar Psicoemocional, con terapias psicológicas y actividades grupales. En el TFM se desarrolla en detalle el edificio de talasoterapia.

El planteamiento arquitectónico se apoya en la dualidad conceptual entre lo estereotómico (lo pesado) y lo tectónico (lo ligero). Lo estereotómico se materializa mediante el ladrillo cerámico autoportante, mientras que lo tectónico se resuelve con estructuras y celosías de madera. Esta oposición remite tanto a referentes como Peter Zumthor o Campo Baeza como a la tradición constructiva local, reinterpretada desde un enfoque sostenible.

El ladrillo cara vista se justifica en varios niveles. En primer lugar, responde al arraigo cultural y constructivo del Cabanyal, donde la cerámica y las fábricas de ladrillo han sido históricamente materiales identitarios. En segundo lugar, se trata de un material local y de baja huella de carbono, que minimiza cos-tes de transporte, ofrece durabilidad y permite recurrir a técnicas tradicionales como bóvedas tabicadas o forjados de viguetas y bovedillas.

Funcionalmente, el ladrillo define las cajas cerradas del balneario —vestuarios, saunas, cabinas y salas técnicas—, reforzando la idea de espacios masivos, húmedos y protegidos. Su carácter autoportante confiere estabilidad estructural y consolida estas piezas como elementos pétreos, en contraste con la ligereza de la madera que articula circulaciones y espacios abiertos hacia el mar. Ade-más, su inercia térmica contribuye a regular la temperatura interior en un clima cálido y marino, mejorando el confort ambiental y reduciendo la dependencia energética. El uso del ladrillo se extiende a los vasos de las piscinas, pavimentos, paramentos interiores y bóvedas tabicadas, generando continuidad material y reforzando la identidad del edificio como arquitectura enraizada en la tierra. Así, lo estereotómico no es solo un recurso constructivo, sino también un lenguaje simbólico que expresa tradición, permanencia y solidez, frente a la madera que encarna contemporaneidad, apertura y ligereza.

En conclusión, el ladrillo cara vista en este TFM no se limita a una elección es-tética o técnica: es un material que condensa la tradición local, aporta sosteni-bilidad y responde a la lógica conceptual del proyecto. Su condición masiva y sólida lo convierte en el soporte ideal para los espacios más íntimos y húmedos del centro de talasoterapia, garantizando tanto la coherencia estructural como la expresividad arquitectónica del conjunto.

Autor/es Clara Vicente Cayuela (Valencia UPV) Estereotómica y téctonica
Autor/es Clara Vicente Cayuela (Valencia UPV) Estereotómica y téctonica

entrelazos lineal

las corralas de comedias barrocos, componen una tipología cuya esencia reside en el corredor: un borde perimetral que articula las viviendas en torno un patio central, generando una “calle vertical” que comunica la vida común. Este proyecto propone una reinterpretación contemporánea de esta tipología, tomando como base el uso del ladrillo visto en los espacios interiores, inspirado en las corralas tradicionales. Al estar muchas de estas construidas parcelas sin fachada directa la calle, el ladrillo visto se utilizaba principalmente en el interior del patio, expuesto de forma honesta funcional como estructura acabado. Este gesto arquitectónico restringir el ladrillo visto al interior responde una lógica contextual: un homenaje la vida comunitaria doméstica oculta en los patios interiores de Lavapiés, donde el ladrillo no es solo un material constructivo, sino una expresión de permanencia, austeridad calor humano. Debido este gran catálogo de nacionalidades, que traen consigo objetos, costumbres, rituales formas de vivir diferentes, la Tabacalera acoge los pequeños pero grandes tesoros de estas culturas, transformándose en un gran cofre de singularidades artículos preciados. El proyecto consiste en un museo disgregado, desarrollado a través de piezas introducidas estratégicamente por todas las plantas del edificio, que actúan como cápsulas de memoria representación. Se trata de 15 módulos independientes que, debido su disposición en sección, hacen necesaria la ampliación vertical de Tabacalera, alcanzando una nueva altura total de 30 metros. En esta operación, el corredor como idea sistema se prolonga simbólicamente desde las corralas próximas hasta este nuevo edificio-museo, articulando un recorrido vertical que combina lo doméstico con lo expositivo, lo colectivo con lo íntimo. El ladrill visto, limitado al interior, refuerza esta conexión con las corralas: una expresión material que abraza la vida comunitaria y celebra las historias múltiples que habitan Lavapiés.

orientadas principalmente al sur responde a una lógica de aprovechamiento de los recursos del entorno y a una apuesta por la economía circular. La abundancia de arcillas en la comarca de la Axarquía ha propiciado históricamente el desarrollo de una cultura ceramista que, aún hoy, se mantiene viva en talleres artesanales y en la producción de materiales de construcción. De este modo, el uso de arcilla permite reducir la huella de carbono asociada al transporte, revalorizar recursos locales y mantener viva la tradición material del territorio, al tiempo que se optimizan las prestaciones érmicas e higrotérmicas de la fachada.

IDENTIDAD CULTURAL Y MEMORIA

La cerámica, tanto en forma estructural como ornamental, constituye un material identitario en Andalucía y en la Axarquía. Desde los muros de ladrillo y mampostería revestidos con cal hasta los motivos ornamentales de la tradición andalusí, la arquitectura vernácula ha utilizado siempre la repetición de piezas, la seriación el rabajo manual de la arcilla como base de su expresión constructiva.

La pieza propuesta, de geometría cóncava picuda, abstrae este legado y lo traslada a un lenguaje contemporáneo. Su perfil recuerda las ondulaciones y a las irregularidades propias de los revocos populares, que rara vez eran lisos y uniformes, sino que presentaban volúmenes, sombras texturas variables. En esta reinterpretación, la pieza mantiene la idea de repetición seriada, propia tanto de los sistemas artesanales como de la tradición ornamental islámica, la convierte en un sistema modular que genera ritmo, relieve y un juego dinámico de sombras en fachada. Con ello, se establece un puente entre la memoria constructiva popular y una propuesta arquitectónica actualizada, sintética y rigurosa en su fabricación.

CLIMATOLOGÍA Y CONSTRUCCIÓN VERNÁCULA

El diseño de la pieza responde principalmente a criterios de control climático pasivo. Su forma cóncava saliente proyecta sombras sobre la fachada, reduciendo la radiación directa en las horas de mayor incidencia solar y contribuyendo a la protección térmica del edificio. Al disponerse de manera seriada, genera un ritmo de llenos vacíos, de luces sombras, que permite graduar la relación entre interior y exterior, actuando como un tamiz que filtra la luz y modula la temperatura.

El sistema completo de fachada ventilada se inspira en los principios de la arquitectura vernácula mediterránea, donde el espesor de los muros, la inercia térmica, la ventilación cruzada y las cubiertas cerámicas ventiladas conformaban soluciones adaptadas al clima. Se trata, por anto, de una evolución contemporánea de las técnicas tradicionales, que mantiene la lógica pasiva del control solar y climático, pero con mayores prestaciones y precisión técnica.

Concurso TFM Foro cerámico de Hispalyt

El Trabajo de Fin de Máster plantea la creación de un centro cultural de reciclaje en la ciudad de Getafe bajo el lema “Educar a reutilizar”. La propuesta busca sensibilizar a la ciudadanía sobre la importancia de dar una segunda vida a los desechos urbanos, entendiendo el reciclaje no solo como un proceso técnico, sino como una herramienta educativa y cultural. Para ello, el proyecto establece una estrecha relación con los distintos centros formativos del municipio (colegios, institutos, universidades y centros de formación profesional con el fin de integrar la práctica de la reutilización en la vida cotidiana de los jóvenes.

El edificio se concibe como un espacio público abierto al aprendizaje y la experimentación. Su objetivo es fomentar un cambio de mentalidad en la población, sustituyendo la lógica de consumo inmediato “se me ha roto la mesa, me compro otra” por una actitud más consciente y sostenible “se me ha roto la mesa, la arreglo en el centro”. De esta manera, el proyecto no solo funciona como infraestructura cultural, sino también como catalizador social capaz de modificar hábitos y actitudes hacia los objetos y los materiales.

La denominación Caja de Oz responde tanto a una condición espacial como simbólica. Desde el exterior, el volumen cerrado evoca la imagen de una fortaleza contemporánea, sólida y enigmática. Sin embargo, en su interior aparece un recorrido central, el llamado “camino amarillo”, que remite al imaginario de El mago de Oz (1939). Más que un simple corredor, este eje se convierte en el corazón del edificio: un espacio de trabajo colectivo donde se concentran las actividades de reparación, transformación y creación. La metáfora construida del camino opera así como generadora de experiencias arquitectónicas, otorgando al usuario un papel activo en la narrativa del edificio.

La elección del ladrillo cara vista es clave para la definición del proyecto. Por un lado, permite que el edificio dialogue con el entorno urbano inmediato, manteniendo la continuidad material y formal con el tejido de Getafe. Por otro, establece un contraste intencionado con el interior, d onde el ladrillo desaparece para dar paso a una atmósfera industrial dominada por estructuras metálicas y cerramientos de policarbonato blanco. Esta dualidad genera una transición perceptiva: lo que desde fuera parece masivo y tradicional, se transforma en un espacio ligero, luminoso y contemporáneo al ser atravesado.

Este juego de contrastes tiene un propósito pedagógico y sensorial. El visitante experimenta una revelación progresiva: la fachada de ladrillo, que actúa como umbral protector, se desmaterializa al entrar y deja ver la verdadera esencia del proyecto, un es pacio flexible y abierto a la experimentación. La estrategia material se convierte, por tanto, en un recurso narrativo que explica la propia filosofía del centro: aprender a mirar de otra manera, a descubrir nuevas posibilidades en lo que a primera vista parece cerrado o acabado.

En definitiva, el proyecto Caja de Oz convierte la reutilización y el reciclaje en motores culturales de transformación tanto urbana como social.

Mohamed El Bouazzati

Caja de Oz.
Un mundo escondido entre pieles

E N T R E B A N D A S

Este proyecto tiene lugar en el casco histórico de Cartagena, Murcia, en la zona de Monte Sacro.

Se basa en la inserción de bandas equipadas que integran todos los servicios necesarios creando “vacíos” entre ellas. Estas bandas se disponen de manera longitudinal, sirviendo como organizadores del espacio, las cuales a su vez se verán reflejadas en todas sus fachadas mediante el uso de ladrillo cara vista.

El acabado de fachada alternará revestimiento de paneles GRC (bandas de carpintería), con el uso de termoklinker (bandas macizas). Tras analizar la zona se puede observar como el ladrillo ha sido repetidamente usado para fachadas en el casco histórico de Cartagena. El termoklinker se trata de un sistema integrado de aislamiento y acabado cerámico, el cual se coloca mediante anclajes mecánicos y adhesivos, agilizando el proceso en comparación con los revestimientos tradicionales y creando uniformidad en la fachada.

De esta forma, las bandas que pertenecen a los muros equipados que se observan en planta, llegan a fachada mediante bandas longitudinales completamente macizas que se observan en alzado, donde cobran importancia debido al cambio de materialidad y al uso del ladrillo.

Entre bandas

Punto de Inflexión: Centro Gastronómico Genil Álvaro Rossy Sesé UGR-ESTAG TFM 2024-25 Tema:

El proyecto se sitúa en la antigua piscina paraíso, Granada, en un entorno de convergencia de múltiples factores (cambio de tejidos, transición de ciudad campo, entorno de expansión desordenada de la ciudad, etc) dónde un centro gastronómico se inserta, haciendo de nexo entre el paisaje productivo la ciudad. El proyecto incluye también una propuesta de renaturalización del río Genil, actualmente artificializado por las sucesivas modificaciones del s.XX. Entendiendo la importancia urbanística del lugar (una rótula en el Genil) se busca que el proyecto genere un hito en el camino que una actividades, recorridos y tejidos.

La renaturalización del río se realiza aprovechando la propia naturaleza de un río, la de meandrificarse y variar su curso con el tiempo, el proyecto deja al río diseñarse sí mismo mediante una cuadrícula romboidal de zunchos plataformas de erosión.

El camino se retuerce en dos cruces en los puntos más importantes de implantación, que cosen el paseo del río con los caminos de la colina, ofrecen puntos de fricción que ralentizan el ritmo para ayudar a generar una rótula de actividad, generan espacios d transición de mayor dimensión entre camino río, dejan unos espacios intersticiales entre ellos donde el programa se implantará

La primera idea generadora de la arquitectura es la de la promenade, ya que en un entorno donde el paseo es tan relevante, parece adecuado preocuparse de cómo la forma de la arquitectura y del tejido se percibe desde el usuario.

La arquitectura se implanta buscando generar recorridos, rincones, vistas y espacios que guíen la percepción comprensión de la obra. La arquitectura juega también a esconder y luego revelar, mostrar parcialmente, invitando al usuario a la exploración el descubrimiento, haciendo de éste una parte activa del proceso de apreciación arquitectónica.

En un entorno con poca iluminación en invierno debido a la colina sur, cada volumen busca tener en todo momento del año iluminación solar directa mediante unos lucernarios en altura, que acaban definiendo la altura sección de la pieza.

Se busca un lenguaje arquitectónico común, basado en el muro de fábrica de ladrillo visto como elemento representativo del regionalismo español, contrastando con las volumetrías más modernas. De la misma manera la textura lineal horizontal y tez rojiza del ladrillo contrasta con la caótica verticalidad verde de la vegetación, de gran presencia en la zona. El muro de ladrillo es portante, y por ello define fuertemente el diseño de la arquitectura, conformada primero por cajas individualizadas perforadas únicamente donde sea necesario, aunque se aumenta el grosor de muro para poder utilizarlo como elemento en sí, generando alcobas, zaguanes, etc. Los volúmenes se conectan entre sí mediante distribuidores con techo de madera vista, con un pavimento igual al exterior y con fachadas al exterior vidriadas, mostrándose como una extensión de la calle en el edificio.

La suma de estas condiciones generan formas perfiles que cambian según el ángulo donde se visualicen, ayudando al componente iconográfico que se busca en el conjunto.

Punto de Inflexión:
Centro Gastonomía Genil

De forma previa al fallo del Jurado, la Secretaría del Premio procedió a revisar las obras para confirmar el cumplimiento de las bases y observó que el proyecto “8: Proyecto de ejecución de viviendas” no utiliza ladrillo cara vista, sino que propone una fábrica de ladrillos de adobe para revestir. El Jurado no incluye el proyecto en el fallo, pero reconociendo el alto nivel de la propuesta, recomienda su máxima difusión.

Proyecto

de ejecución de viviendas

LECCIONES APRENDIDAS

EL ARQUITECTO CUENTA SU OBRA

El objeto de esta actividad es que los estudiantes de las Escuelas de Arquitectura (Superiores y Técnicas) de toda de España puedan conocer obras de interés realizadas con ladrillo cara vista a través de charlas de arquitectos de prestigio que presentarán algunas de sus obras y transmitirán su visión y experiencia en la utilización de este material.

En estas conferencias se proyectará la imagen del ladrillo cara vista como un producto con valores asociados a la innovación dentro de un proyecto integral. A continuación, se indican los arquitectos que impartieron durante el curso 2024-2025 las Conferencias “Lecciones aprendidas”, así como las obras con materiales cerámicos de las que hablaron en las charlas. El calendario de “Lecciones aprendidas” pasadas y del próximo curso se puede consultar en https://www.foroceramico.es/lecciones-aprendidas/calendario.

EL ARQUITECTO CUENTA SU OBRA

• Francisco Burgos y Ginés Garrido (Burgos & Garrido Arquitectos)

• Juan José Mateos Bermejo y Camila Aybar (aybar.mateos.arquitectos)

• Joan Roig y Enric Batlle (Batlle i Roig)

• Fermín Vázquez (b720 Fermín Vázquez Arquitectos)

• Juan Manuel Sánchez La Chica (Marina Uno Arquitectos)

• José Carlos Nunes de Oliveira (NOARQ)

• Adrià Guardiet y Sandra Torres (08014 arquitectura)

Granada UGR 23/09/24

Madrid UPM 08/10/24

Valencia UPV 01/10/24

Navarra UN 14/02/25

UNIZAR 06/05/25

San Sebastián UPV/EHU 09/10/24

Barcelona UIC 16/01/25

UVA 01/04/25

Zaragoza
1. La naturaleza del edificio
2. La percepción de la materia
1. Paseo de la Boca de la Mina en Reus
2. Oficinas Badajoz, 97 en Barcelona
Biblioteca en Boadilla del Monte
BATLLE I ROIG
Valladolid
Habitats resilientes
08014 ARQUITECTURA
HARQUITECTES
NÉSTOR MONTENEGRO

FERMÍN VÁZQUEZ ARQUITECTOS

El ladrillo en la obra de b720

Textura, inercia y porosidad: Explorando las prestaciones de la cerámica

Barcelona La Salle 24/10/24

Fuenlabrada URJC 08/04/25

Málaga UMA 15/05/25

Valencia CEU 07/02/25

Muratore di opera grave

Sevilla US 04/11/24

Barcelona UPC 07/04/25

BURGOS

Cartagena UPCT 11/02/25

Murcia UCAM 06/03/25

Ni bloque, ni manzana
& GARRIDO ARQUITECTOS

MARINA UNO ARQUITECTOS

Tradición e innovación en el uso de la cerámica

aybar.mateos.arquitectos

Paisajes materiales

A Coruña UAC 19/02/25

Alicante UA 17/03/25

Toledo UCLM 20/02/25

Madrid CEU 22/04/25

Segovia IE 13/05/25

MESURA

Hijos de la recesión

Madrid UEM 05/03/25

CONFERENCIAS. NUEVOS SISTEMAS CONSTRUCTIVOS CERAMICOS

El objetivo de esta actividad es impartir Conferencias a los estudiantes de las Escuelas de Arquitectura (Superiores y Técnicas) de España, promovidas por los departamentos de Construcciones Arquitectónicas, sobre las innovaciones que la industria ha desarrollado, presentando los nuevos sistemas constructivos cerámicos.

TECNOLOGÍA BIM EN EL SECTOR CERÁMICO

Hispalyt ha publicado una biblioteca BIM de soluciones cerámicas que cuenta con 172 objetos BIM de sistemas constructivos cerámicos (fachadas, medianerías, forjados, cubiertas y pavimentos), 33 objetos BIM de materiales cerámicos, 3 bibliotecas de materiales (ladrillos cara vista, tejas y adoquines) para Revit compuestas por 333 texturas y 66 objetos BIM de detalles constructivos 2D. Además, ha desarrollado el Edificio BIM Hispalyt desde el que se puede ver de forma real y práctica la integración de las soluciones cerámicas de Hispalyt en un proyecto arquitectónico en BIM. Por último, la herramienta PIM Hispalyt es una aplicación para Revit que permite elegir la solución de cualquier tipología cerámica óptima para cada proyecto, mostrando de forma clara las ventajas de las soluciones constructivas cerámicas.

Más información: www.hispalyt.es/es/documentaciontecnica/objetos-bim-y-cad/objetos-bim

SOSTENIBILIDAD Y ECONOMÍA CIRCULAR CON CERÁMICA

Hispalyt ha desarrollado la Declaración Ambiental de Producto (DAP) de los diferentes materiales cerámicos de todo su ciclo de vida (cuna a tumba), demostrando que ofrecen el máximo respeto al medioambiente. Además, se han elaborado las fichas sectoriales de los productos cerámicos para los sellos de certificación VERDE, LEED y BREEAM, que permiten acreditar el comportamiento ambiental de los productos cerámicos y su contribución a la calidad ambiental de los edificios.

Más información: www.hispalyt.es/es/sostenibilidad/presentacion

INDUSTRIA CERÁMICA 4.0

La industria cerámica 4.0 pone de manifiesto el empeño del sector por la modernización e innovación presentando grandes novedades y soluciones constructivas cerámicas 4.0, englobadas en tres bloques temáticos: sistemas cerámicos para edificios sostenibles y de consumo de energía casi nulo (EECN), sistemas cerámicos industrializados y

prefabricados, y productos y sistemas cerámicos digitalizados en BIM.

Más información: https://www.hispalyt.es/es/ jornadas-tecnicas/tematicas#t9

FACHADAS CON LADRILLO VISTO:

INDUSTRIALIZADAS, PASSIVHAUS Y OTRAS

Existe una gran variedad de soluciones de fachada de ladrillo cara vista en el mercado:

ALBAÑILERÍA

CON MORTERO

Confinada

Pasante autoportante / Ventilada

Structura-GHAS

INDUSTRIALIZADAS

SATE

• Termoklinker

• Flexbrick PANELES PREFABRICADOS

• Insupanel

• Maps

• Murobrick

Las fachadas de albañilería de ladrillo cara vista son una opción arquitectónica que ha perdurado a lo largo de la historia, aportando belleza y carácter a edificios de todo tipo. Desde antiguas estructuras históricas hasta modernos diseños contemporáneos. La amplia gama de colores, texturas y tamaños de los ladrillos permite una gran versatilidad en el diseño de las fachadas.

Las fachadas industrializadas de ladrillo cara vista surgen para dar respuesta a la demanda del sector de la construcción de una mayor industrialización de las soluciones constructivas para optimizar los plazos y costes asociados a la ejecución de los proyectos. Estos sistemas se disponen por el exterior de la estructura a modo de piel, fijándose a la estructura del edificio y permitiendo dar continuidad al aislamiento térmico en la envolvente del edificio.

Más información: www.fachadascaravista.es

SOLUCIONES DE ALTAS PRESTACIONES CON BLOQUE TERMOARCILLA

El uso del bloque Termoarcilla es habitual en edificios de consumo de energía casi nulo (EECN)

y Passivhaus, ya que su inercia térmica favorece un mayor amortiguamiento y el desfase de la onda térmica, contribuyendo a la estabilidad de la temperatura en el interior del edificio, mejorando con ello el confort y consiguiendo un ahorro energético. Termoarcilla es válido para muros de carga y cerramiento de todo tipo de edificios, como fachada autoportante o fachada con sistema de aislamiento térmico por el exterior (SATE).

Más información: www.termoarcilla.com

CUBIERTAS VENTILADAS CON TEJA CERÁMICA

Se caracterizan por tener microventilación bajo teja y por la fijación de las tejas en seco, que hacen que la cubierta tenga un excelente comportamiento térmico, una gran durabilidad y que su montaje sea fácil, limpio y rápido. Además, la cubierta ventilada de teja tiene grandes ventajas frente a la cubierta tradicional, no ventilada y con fijación de las tejas con mortero, ya que evita la formación de condensaciones, problemas de heladicidad, mohos, etc.

Más información: www.tejadodetejas.es

CUBIERTAS CON TABLERO CERÁMICO

El tablero cerámico es un material de altas prestaciones técnicas idóneo para su uso como soporte de la cubierta. Pueden emplearse en cubiertas planas o inclinadas, sobre forjado (unidireccional, reticular, losa, etc.), en este caso apoyados sobre tabiques palomeros, o en cubiertas sobre viguetas autoportantes (metálicas, hormigón, madera, etc.). Además, tiene otras aplicaciones, como la formación de escaleras, voladizos, recrecidos de suelos, etc. .

Más información: www.tableroceramico.es

TABIQUES CERÁMICOS SILENSIS-CERAPY Y MURALIT

Avanzando en la industrialización de la tabiquería cerámica, Silensis-Cerapy consiste en aplicar revestimientos de placa de yeso (laminado o natural) a las paredes de ladrillo, consiguiendo soluciones

robustas, de altas prestaciones acústicas, que mantienen las características inherentes a los productos cerámicos, al tiempo que suman las ventajas constructivas de las placas de yeso, permitiendo que los tabiques de ladrillo tengan una planeidad y acabado perfectos. Por su parte, Muralit es un nuevo sistema constructivo para particiones interiores verticales que consiste en revestir las paredes de ladrillo gran formato con placas de yeso laminado (PYL).

Más información: www.paredesdeladrillo.com www.silensis.es www.muralit.es

FORJADOS CERÁMICOS

La bovedilla cerámica es una pieza de entrevigado ideal para su uso en la construcción de forjados. Por su ligereza, supone un ahorro en el armado de la estructura, además de facilitar su transporte y mejorar los rendimientos de ejecución. Además, la durabilidad, reacción al fuego y gran valor estético de la bovedilla hacen que se pueda emplear como elemento visto. Los forjados cerámicos cumplen las exigencias del CTE, existiendo diferentes herramientas de ayuda al proyectista para su correcto diseño.

Más información: www.bovedillaceramica.es

PAVIMENTOS DE ADOQUÍN CERÁMICO

Los pavimentos con adoquín cerámico permiten los más altos niveles de belleza estética y armonía con el entorno, gracias a la amplia gama de colores y texturas disponibles. El adoquín cerámico es un material óptimo para la rehabilitación y pavimentación de todo tipo de espacios públicos (plazas, calles, jardines, etc.). Destacan por encima del resto de pavimentos por sus excelentes prestaciones, su inalterabilidad al paso del tiempo, su nulo mantenimiento y la belleza, así como la calidez y permanencia de sus colores naturales.

Más información: www.hispalyt.es/es/productosceramicos/adoquines/presentacion

VISITAS A FÁBRICA

Illescas, Toledo

El objeto de esta actividad es dar a conocer a los estudiantes de las Escuelas de Arquitectura (Superiores o Técnicas) de España el proceso de fabricación de los materiales cerámicos, de manera que los futuros arquitectos tengan un mayor conocimiento de las prestaciones técnicas y de las enormes posibilidades estéticas que los materiales cerámicos pueden aportar a su trabajo creativo.

Estas visitas a fábrica forman parte de las actividades del Foro Universitario Cerámico Hispalyt, cuyo objetivo es que los futuros arquitectos tengan un mayor conocimiento de las prestaciones técnicas y de las enormes posibilidades que los materiales cerámicos pueden aportar a su trabajo creativo, para que, entre otras cosas, con su ilusión, imaginación y talento, busquen soluciones cerámicas innovadoras, utilizando formatos ya existentes, o desarrollando nuevos sistemas y aplicaciones.

Visita realizada por estudiantes de Arquitectura de la Universidad Rey Juan Carlos (Fuenlabrada, Madrid)

04/02/25

Ladrillos Mora

Programa de actividades

Curso académico 2024/2025

El Foro Cerámico Hispalyt, como parte de su labor divulgativa, ha organizado en el curso 2024/2025 distintas actividades con el objetivo de proporcionar a los futuros arquitectos un conocimiento profundo sobre las prestaciones técnicas y de las enormes posibilidades que los materiales cerámicos pueden aportar a su trabajo creativo.

En este libro se recogen todas las actividades organizadas por el Foro Cerámico Hispalyt durante este año académico que, como en cursos anteriores, han tenido una gran acogida entre los alumnos y profesores de las Escuelas de Arquitectura de toda España:

- Concurso de proyectos, en el que se han convocado Premios Locales en Escuelas de Arquitectura de toda España y el Premio Local Hispalyt, cuyos ganadores y mencionados posteriormente participaron en el Premio Nacional. Este curso consistía en el diseño de un Club de piragüismo en Zaragoza con fachadas de ladrillo cara vista.

- Premio TFM, para premiar a estudiantes de arquitectura y arquitectos que hayan realizado su trabajo Fin de Máster (TFM) con ladrillo visto.

- Conferencias “Lecciones aprendidas: el arquitecto cuenta su obra”, en las que arquitectos de prestigio presentan sus obras más destacadas realizadas con ladrillo visto.

- Conferencias sobre novedades y sistemas cerámicos, para presentar los sistemas más avanzados e innovadores con cerámica desde el punto de vista de la industrialización, digitalización, sostenibilidad, etc.

- Visitas a fábrica, para dar a conocer a los futuros arquitectos el proceso de fabricación de los materiales cerámicos.

Turn static files into dynamic content formats.

Create a flipbook
Issuu converts static files into: digital portfolios, online yearbooks, online catalogs, digital photo albums and more. Sign up and create your flipbook.