Work Experience Design Brief

Page 1


The Park Community Centre

We hope you enjoy your time with us!

I’ve had such a fun time working here and been made to feel very welcome within the team. AWW is an exciting firm with a fantastic front-line approach to relevant industry innovations... I’d love to stay involved with AWW’s projects and I hope that they would consider me again for a future placement.”

Thank you so much for this week I’ve really enjoyed it. It’s also helped me a lot with figuring it out what I would like to continue doing in the future.”

Welcome to your work experience with AWW.

We hope your time with us will provide you with a valuable insight into the workings of an architectural practice, the life of an architect / technologist / interior designer and offer you the opportunity to explore the roles and responsibilities as well as discovering your talents and where you interests lie.

We’re here to help so please ask questions along the way.

Ok here we go...

Routes to Architecture

01 02 03

Apprenticeship

You can get into this role via an architecture degree apprenticeship. This is a mix of workplace learning and academic study at an approved university.

03 University Divided into 3 stages. Five years studying architecture at university and two years’ practical experience.

A day in the life of an architect

AWW is an established, architectural practice with 80 staff and offices in Bristol and London. We are driven to create beautiful places to enhance people’s lives through all of our architecture, interior design and masterplanning designs.

An architect is responsible for the design, planning, and supervision of the construction of buildings.

Buildings are part of the human experience. We live, work, shop, learn, worship, seek care, and spend our leisure time inside these structures.

DaventryRoad

The brief

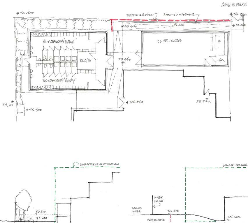
Site Plan: The Park Community Centre, BS4 1DQ

The site: The Park Community Centre, Daventry Road, Knowle, Bristol, BS4 1DQ

The client: The Park Centre

The sector: Education & Community

RIBA Work Stages: 0-7

Background:

The Park Centre is a charitable organisation located in Knowle, Bristol. The Centre supports the community providing rentable space to deliver an

education and community support programme. The Centre is housed in old buildings, previously used by a school, which are scattered across the site. These buildings are in a poor state of repair and are costly to maintain and run.

Project aim:

The Centre’s aspiration is to build on their current success and continue to grow in a new purpose built home.

Your brief:

We would like you to develop a new build design concept for the site that will accommodate The Centre’s current needs and allow the Centre to grow in the future.

The new build component for The Centre, will include the sports hall and surrounding facilities (listed on page 9).

The Site

Site context:

The site is on Daventry Road. It sits in a mainly residential area, but there are also; schools, local amenities, business and retail parks, community centres, religious buildings and sports clubs nearby.

There was once a school on the site, it is now closed and the buildings are used by The Centre.

It is difficult to spot the current entrance to The Centre from Daventry Road to know that it is there.

Current site images

Existing School Site Plan: whole site plan - you will focus on the new build development

Focus Site

Existing Community Centre Site Plan: area for you to develop your design highlighted.

Summary of Accommodation for Site

In your concept for the site you will need to accommodate the following:

• A large sports hall/ multifunctional space big enough for small sports such as badminton, table tennis as well as dining for 150 people and theatre performances

• A secondary space suitable for small fitness classes, nursery groups etc.

• 3 small meeting rooms for 1 to 1 consultation

• Reception desk and office

• Toilet provision

• Kitchen/café/bar space with seating

• Flexible rentable office space suitable for small businesses/start-ups

• Storage

• 6 car parking spaces for use by visitors

• Outdoor space with café style seating

Plan of Work

Day 01

Step 1: Research different styles of architecture that appeal to you.

• How could you bring this to your design?

• What do you like about the style/s or architecture you’ve chosen?

• Why do you think this style will work for this brief?

Step 2: Look at the site that you will be working on and the space available to you.

• How could you fit the sports hall and surrounding facilities onto your site?

» You have some site plans available to you, trace some options over the top.

» You may find you have to try several options before you find the one you like the best.

• How will people move between your buildings? Do you have clear pathways between / connecting your buildings?

Step 3: What colour palette would you like to apply to your design?

• Where will you place your outdoor seating?

• Where will you place your trees / planting?

» What else could you add to your design to encourage people to interact?

» Use colour to bring your sketch to life

Leave Day 1 with a concept design drawn up for your site.

Day 02

Step 4: Moving your sketches into Revit

• Open the base site plan in Revit and start to try out what Revit can do

• Now take your concept sketch and using Revit start to model it

Leave Day 2 with a Revit model of your concept.

Day 03

Step 5: Sustainability

• Learn about best practice in sustainability

• Learn how we measure / analyse a project’s sustainable credentials

• How can your improve the sustainability of your design?

Leave Day 3 with a design that meets sustainability criteria and a basic understanding of these.

Day 04

Step 6: Visit the samples library and explore the differing materials you can incorporate into your design

• What will you choose?

• Do you use one colour / material throughout or do you use differing ones to make elements of your design stand out or to help people identify buildings?

• Why have you made these choices?

Step 7: Apply the samples to your site

• Layout a sample board in Photoshop / InDesign

• Scan in your concept sketches and mark up where the materials will be applied to your design

Step 8: Select an area within your design i.e. the reception to build up an interiors concept

• What do you need to include in your area?

• What do you want to happen in your area? i.e. welcome / relax / eat / drink / study

• Consider:

» Colour

» Lighting

» Furniture

» Flooring

• Collate some images that appeal to you and layout a page of ideas for your space

Leave Day 4 with a materials palette developed and a clear idea for your interior space.

Day 05

Step 9: Put together a presentation to share that explores your ideas for this site

• The architecture that inspired you

• Your positioning of buildings within the site

• How you’ve developed connectivity and connection on the site

• Your choice of colours

• Your choice of materials

Leave Day 5 with a final concept presentation.

Concept Design

Sketch Scheme at 1.100 plans and elevations

Medium: Handrawn

Output: concept scheme, reflecting context, answering stakeholder needs and fulfilling brief.

Day 02

Sketchup / Revit

Bringing concept design to life in a 3D environment

Medium: 3D CAD (Sketchup / Revit)

Output: Concept modelled

Sustainability

Consider sustainability; fabric first then sustainable technology. Adapt design accordingly.

Medium: Enscape

Output: Sustainability incorporated into design concept.

4188 UoB School of Management UoB adopts Climate Action Framework:

‘The University of Bath was the first UK university to have a Carbon Management Plan. Despite significant growth in its estate, investing in new teaching, research and residential facilities, it has reduced its carbon emissions by 35% (against 2005 levels) and cut energy and water use by £1m. The University now sources 100% of its purchased electricity from renewable energy suppliers as well as generating 10% itself on campus. Building on these achievements the Climate Action Framework will provide strategies for further improvements.’ UoB Press Release May 2020

RIBA 2030 Targets vs Project Achievements

Project Metrics

Operational Energy kWh/m2/y 123

Completion

881 9

Design Targets (RIBA 2030 Challenge)

OPERATIONAL ENERGY

:

Target reached Target 158 Designed 123 Actual (TBC)

Target 570 Assessed 881

POTABLE

Target exceeded Target 15 Designed 9 Actual (TBC)

Embodied Carbon kgCO2e/m2 9

Biodiversity impact - Planning requirement Net -Gain 881

Potable Water use Litres/person/day

10% On site renewables - Planning policy - Additional client commitment to use 100%

Occupant health assessment BREEAM (Client Bespoke)

Community & Social Value BREEAM (Client Bespoke)

Lifecycle assessment - IstructE Methodology - Assessment completed

Post Occupancy Evaluation - AWW POE working group notified - BIM CPD

Passivhaus

Materiality & Façade

Consider materials, thinking about sustainability

Medium: Photoshop / InDesign / Samples Board

Output: Materials palette sample board.

Disperse Retreat Reflect Unique

05

Presentation

Pull all you’ve produced together to present to your mentor and other students.

Medium: PowerPoint

Output: Overview of concept; design and development.

Turn static files into dynamic content formats.

Create a flipbook
Issuu converts static files into: digital portfolios, online yearbooks, online catalogs, digital photo albums and more. Sign up and create your flipbook.
Work Experience Design Brief by AWW inspired environments - Issuu