

B ü r o f l ä c h e P i o n i e r p a r k
![]()


B ü r o f l ä c h e P i o n i e r p a r k
Die Bürofläche im 3. Obergeschoss überzeugt durch ihre zentrale Lage direkt beim Bahnhof
Winterthur. Dank der flexiblen Raumaufteilung eignet sie sich ideal für Open-Space-Konzepte oder Einzelbüros. Grosse Fensterfronten auf beiden Seiten sorgen für eine helle und angenehme
Arbeitsatmosphäre.
Die exzellente Anbindung, durch das Parkhaus im Nachbarsgebäude sowie die unmittelbare Nähe zum Bahnhof, macht den Standort besonders attraktiv. Zudem befinden sich zahlreiche
Verpflegungs- und Einkaufsmöglichkeiten in Gehdistanz.
Das Quartier ist ein herausragendes Beispiel für den gelungenen Wandel von einem Industrieareal zu einer modernen, lebendigen Begegnungszone, die Arbeiten, Wohnen und Einkaufen harmonisch vereint.









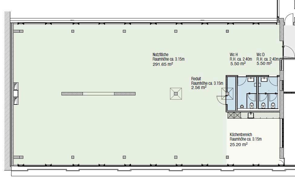
Grosszügige Fläche: ca. 340 m² vielseitig nutzbare Büro- oder Gewerbefläche
Hohe Räume: Angenehme Raumhöhe von 3.20 m für ein offenes und luftiges Ambiente
Barrierefreier Zugang: Grosszügiger Personenlift für ein bequemes Erreichen aller Etagen
Eigene Sanitäranlagen: WC-Anlagen innerhalb der Mietfläche sowie zusätzlich auf dem Geschoss
Hervorragende Erreichbarkeit: Optimal angebunden an den öffentlichen Verkehr und bequem mit dem
Auto erreichbar
Lichtdurchflutete Räume: Grosse Fensterfronten auf beiden Seiten sorgen für viel Tageslicht und eine
angenehme Arbeitsatmosphäre
Besucherparkplätze: Direkt im hauseigenen Parkhaus “Kesselhaus”
Parkmöglichkeiten: Parkplätze, inklusive E-Parkplätze für Elektrofahrzeuge in der Tiefgarage Kesselhaus
Flexibler Mietbeginn: Nach Vereinbarung
Zürcherstrasse 7, 8406 Winterthur
3. Obergeschoss
Mietfläche ca. 340 m²

Dann freuen wir uns auf Ihre Kontaktaufnahme und stehen Ihnen gerne für weitere Informationen oder eine unverbindliche Besichtigung zur Verfügung.

Tanja Gschwend
tanja.gschwend@auwiesen.ch
Tel. +41 52 260 33 56
Auwiesen Immobilien AG
Klosterstrasse 17
8406 Winterthur

Tel. 052 260 33 00
vermarktung@auwiesen.ch www.auwiesen.ch