Revista IE 79

Page 1


EDIFICIO EN ALTURA CON ESTRUCTURA DE ACERO EN ZONA DE MUY ELEVADA PELIGROSIDAD SÍSMICA

TORMENTAS INTENSAS Y SEGURIDAD EN LAS CONSTRUCCIONES: REFLEXIONES Y ENSEÑANZAS

DETERMINACIÓN DE CAUSA DE FISURACIÓN EN EDIFICIO DE HORMIGÓN ARMADO Y METODOLOGÍA DE REHABILITACIÓN

PASARELA PEATONAL ESBELTA CONFORTABLE PARA LOS PEATONES

SUMARIO

REVISTA IE

COMITÉ EDITORIAL

Director: Ing. Marcos De Virgiliis

Mg. Inga. Laura Cacciante

Mg. Ing. Gustavo Gauna

Inga. Gloria Gutiérrez

PRODUCCIÓN EDITORIAL

CONTÉCNICOS I Contenidos Técnicos

Arq. Gustavo Di Costa

EDITOR RESPONSABLE

ASOCIACIÓN DE INGENIEROS ESTRUCTURALES

Hipólito Yrigoyen 1144 1º, C1086AAT

Ciudad Autónoma de Buenos Aires

Tel/Fax: +54 (911) 4381-3452/5252-8838 revista@aiearg.org.ar www.aiearg.org.ar

Prohibida la reproducción total o parcial de textos, fotos, planos o dibujos sin la autorización expresa del Editor. Los artículos firmados son de exclusiva responsabilidad de sus autores o de las firmas que facilitan la información y no reflejan necesariamente la opinión de la AIE.

08

Edificio en altura con estructura de acero en zona de muy elevada peligrosidad sísmica

30 Tormentas intensas y seguridad en las construcciones: reflexiones y enseñanzas

38 Determinación de causa de fisuración en edificio de hormigón armado y metodología de rehabilitación

50 Pasarela peatonal esbelta confortable para los peatones

AIE: 50 años construyendo futuro

Este año nuestra Asociación de Ingenieros Estructurales (AIE) cumple 50 años. Medio siglo de vida institucional no es solo motivo de celebración, sino también de reflexión y renovado compromiso. Es una oportunidad para mirar hacia atrás con gratitud, hacia adelante con convicción, y hacia adentro con la responsabilidad que nos impone el legado de nuestros socios fundadores. La AIE nació en 1975, en un momento donde nuestro país atravesaba profundas transformaciones sociales, económicas y técnicas. Un grupo visionario de profesionales —pioneros de la ingeniería estructural argentina— supo advertir la necesidad de generar un espacio común, un punto de encuentro desde donde compartir saberes, debatir criterios, defender la ética profesional y, especialmente, consolidar una identidad técnica propia en un campo cada vez más desafiante. Gracias a su generosidad, coraje institucional y profunda vocación de servicio, hoy seguimos disfrutando de una comunidad activa y federal, comprometida con el desarrollo estructural del país.

El esfuerzo inicial no fue sencillo. Aquellos primeros años estuvieron marcados por el entusiasmo, pero también por la incertidumbre, donde cada logro institucional fue producto de una construcción colectiva. Las primeras Jornadas de Ingeniería Estructural, la edición de nuestras publicaciones, la creación de comisiones técnicas y la representación activa ante organismos nacionales e internacionales, fueron hitos que consolidaron nuestra presencia y credibilidad.

Esa historia no debe olvidarse: es la base firme sobre la que seguimos edificando.

Hoy, a cincuenta años de aquel comienzo, reafirmamos los mismos valores con los que se fundó esta asociación: la excelencia técnica, la independencia profesional, el intercambio generoso de conocimientos y la formación continua como motor de una ingeniería comprometida con la sociedad. Sin embargo, también sabemos que el mundo ha cambiado, y que con él se transforman los desafíos de nuestra profesión. La evolución digital, la demanda de infraestructuras resilientes, la emergencia climática, la equidad territorial y la eficiencia

energética, forman parte del nuevo escenario en el cual la ingeniería estructural debe desempeñarse con capacidad crítica e innovación. Para ello, creemos firmemente que nuestra institución debe abrir aún más sus puertas a las nuevas generaciones. No solo porque ellas encarnan el porvenir, sino porque ya son protagonistas de un presente en permanente redefinición. Por eso, uno de los principales objetivos de esta gestión ha sido —y seguirá siendo— el incentivo activo a la participación de los jóvenes ingenieros y estudiantes avanzados. Queremos que encuentren en la AIE un espacio donde formarse, expresarse, proponer y crecer. Una comunidad donde se los escuche con respeto y se los desafíe con proyectos concretos. Sabemos que el diálogo intergeneracional no es solo un acto de transmisión, sino también de transformación. La juventud aporta una mirada fresca, crítica y vital que enriquece nuestra práctica profesional. Cincuenta años no son un punto de llegada, sino una plataforma desde la cual impulsar nuevas metas. Estamos convencidos de que la ingeniería estructural argentina tiene un papel clave que jugar en el desarrollo sustentable del país, en la mejora de la calidad de vida de sus habitantes, y en la consolidación de un pensamiento técnico capaz de combinar rigurosidad con sensibilidad social.

A todos los que formaron, forman y formarán parte de la AIE, gracias por mantener viva esta institución. A nuestros fundadores, por su visión y coraje. A nuestros colegas de todo el país, por su trabajo cotidiano. A nuestros jóvenes, por asumir con entusiasmo el desafío de continuar esta historia.

Felices 50 años, AIE. Sigamos construyendo estructuras sólidas, no solo en hormigón o acero, sino también en valores, vínculos y compromiso profesional

Ing. Civil Horacio Pieroni Presidente de la Asociación de Ingenieros Estructurales presidente@aiearg.com.ar

Publicación de la Asociación de Ingenieros Estructurales para la información y divulgación de temas científicos y técnicos

Edición digital 79

ISSN 16671511 / AÑO 29 / JUNIO DE 2025

COMISIÓN DIRECTIVA DE LA AIE

PRESIDENTE:

Ing. Horacio G. Pieroni

SECRETARIO:

Ing. Mariano Travaglia

TESORERO:

Ing. Carlos Gustavo Gauna

VOCALES TITULARES:

Ing. Ing. Gustavo Balbastro

Ing. Alberto Fainstein

Ing. Emilio Reviriego

Arq. Roberto Alfie

VOCALES SUPLENTES:

Ing. Carlos Larsson

REVISORES DE CUENTAS:

Ing. Hugo Chevez

Ing. Alfredo Scotti Vidal

SECRETARÍA:

Lic. María Laura Rivas Díaz

Sandra Orrego

La Revista IE es una publicación técnica que realiza la ASOCIACIÓN DE INGENIEROS ESTRUCTURALES (AIE). El contenido incluye artículos técnicos con temáticas actuales y de interés. Seleccionando el número que le interesa, es posible acceder a la EDICIÓN DIGITAL de la revista, y a los resúmenes de los artículos publicados en esa edición.

CORRESPONSALES

ARGENTINA

Bahía Blanca: Ing. Mario Roberto Minervino

Córdoba: Ing. Carlos Prato

El Calafate: Ing. Otto Manzolillo

Mendoza: Mg. Ing. Carlos Llopiz

Necochea: Ing. Eloy Juez

Neuquén: Ing. Emanuel Guevara

Rosario: Mg. Inga. Yolanda Galassi

Salta: Inga. Susana B. Gea

San Juan: Ing. Alejandro Giuliano

San Miguel de Tucumán: Ing. Roberto Cudmani

Santa Fe: Dr. Ing. Gustavo Balbastro

Trelew: Ing. Hugo Donini

EXTERIOR

Bolivia: Ing. Mario R. Terán Cortez (La Paz)

Brasil: Dr. Ing. Paulo Helene (San Pablo), Ing. Silvio de Souza Lima (Río de Janeiro),

Prof. Darío Lauro Klein (Porto Alegre)

Colombia: Ing. Luis Enrique García (Bogotá)

Chile: Ing. Rodolfo Saragoni Huerta (Santiago)

China: Ing. Carlos F. Mora (Hong Kong)

República Dominicana: Ing. Antonio José Guerra

Sánchez

Estados Unidos: Inga. María Grazia Bruschi (Nueva York)

España: Ing. Jorge Alberto Cerezo, Dr. Antonio Aguado de Cea (Barcelona)

Israel: Ing. Mario Jaichenco (Naharia)

México: Dr. Ing. Pedro Castro Borges (Mérida, Yucatán), Ing. Daniel Dámazo Juárez (México DF)

Paraguay: Ing. Angélica Inés Ayala Piola (Asunción)

Portugal: Prof. Antonio Adao da Fonseca (Porto)

Perú: Ing. Carlos Casabonne (Lima)

Puerto Rico: Ing. José M. Izquierdo (San Juan)

Venezuela: Inga. Oladis Tronconis de Rincón (Zulia)

Edición digital, junio 2025

Por los ingenieros Daniel Quiroga y Carlos Frau 3D Ingeniería SA Contacto: 3dingenieria@gmail.com

EDIFICIO EN ALTURA CON ESTRUCTURA DE ACERO EN ZONA DE MUY ELEVADA PELIGROSIDAD SÍSMICA

En Argentina los edificios en altura se han proyectado, en su mayoría, con estructuras de hormigón armado. En la última década comenzaron a proyectarse algunos edificios con estructura de acero. No obstante, en zonas de elevada peligrosidad sísmica se mantuvo como material tradicional al hormigón armado para el diseño estructural. En este trabajo se presenta un edificio con estructura de acero de 8 niveles emplazado en la ciudad de Mendoza, zona de mayor peligrosidad sísmica de Argentina. La estructura se ha diseñado totalmente con perfilería de acero, tanto para acciones gravitatorias como para acciones sísmicas. Para el diseño sismorresistente se han utilizado pórticos no arriostrados especiales con vigas de sección reducida en zonas de apoyo a efectos de inducir la rotulación plástica, en una dirección, y pórticos arriostrados excéntricamente en la otra. Este proyecto, de reciente construcción, es de los primeros edificios en altura con estructura totalmente de acero en una zona de muy elevada peligrosidad sísmica de Argentina.

1. INTRODUCCIÓN

En Argentina los edificios en altura se han proyectado en su mayoría con estructuras de hormigón armado. En las últimas décadas han comenzado a proyectarse algunos edificios con estructura de acero, particularmente, en Buenos Aires. No obstante, en zonas de elevada peligrosidad sísmica, se mantuvo como material tradicional al hormigón armado para el diseño estructural.

Los eventos sísmicos presentan la particularidad de conformar acciones extraordinarias por su baja probabilidad de ocurrencia, pero tendrán una gran magnitud, en especial, en las zonas de mayor peligrosidad de nuestro país. Por ello se deben considerar en el diseño de cualquier estructura.

La actual filosofía de diseño sísmico contemplada en los reglamentos postula que las construcciones convencionales experimenten un daño estructural de acuerdo con los diferentes niveles de disipación de energía esperado, y su cuantificación se realiza a partir del diseño del mecanismo de plastificación y la asignación de ductilidad por medio de la elección del tipo estructural y del material.

Las normas vigentes de estructuras, y en particular las del acero, tienen previstos diferentes tipos estructurales convencionales capaces de proporcionar este comportamiento dúctil mediante distintas formas de disipación.

Ya en el siglo pasado comenzaron a desarrollarse sistemas de protección sísmica distinguiendo dos grandes grupos: aisladores y disipadores. Estos sistemas denominados “innovadores” han empezado a utilizarse en el país y su implementación se ha hecho con normas extranjeras hasta la aprobación del reglamento nacional correspondiente el cual se encuentra en preparación.

Los sistemas estructurales de acero convencionales para construcciones sismorresistentes aprovechan las propiedades del material en cuanto a su capacidad de disipación de energía, poniendo énfasis en la protección de los fenómenos de inestabilidad característicos.

Entre las estructuras de acero sismorresistentes, los pórticos, tanto arriostrados como no arriostrados, conforman eficientes estructuras capaces de resistir las acciones horizontales tales como viento y sismo. Los pórticos arriostrados excéntricamente presentan una viga corta, llamados links o elementos de enlace, que funcionan como “fusibles estructurales” por su capacidad de disipar energía por fluencia del acero. En los pórticos no arriostrados, el diseño debe garantizar la formación de un mecanismo plástico compatible con los principios del diseño por capacidad.

2. DESCRIPCIÓN DEL PROYECTO

Características Generales

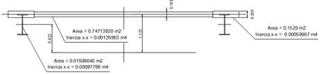
El edificio dispone de cocheras en el subsuelo, locales comerciales en planta baja y oficinas en 6 pisos altos, más amenities en la azotea. Conforma una planta rectangular de, aproximadamente 23,50 m de ancho por 43,50 m de largo.

Las losas sobre el subsuelo son macizas de hormigón armado del tipo placa sin vigas, mientras que las losas de entrepisos de los niveles altos, en correspondencia con la estructura de acero, es de placa colaborante (Steel Deck), con pernos de conexión tipo “Nelson”. Las particiones interiores se conforman con tabiquería liviana de placas de yeso. El cerramiento perimetral se materializa con una piel de vidrio tipo “Curtain Wall”.

Características de la estructura

La estructura principal parte de las fundaciones mediante pilotes de hormigón armado excavados y colados en el sitio. El subsuelo se resuelve con tabiques de hormigón armado y columnas de hormigón armado. Estas últimas contienen en sus cabezas los anclajes para recibir las columnas de acero que arrancan desde planta baja. Desde planta baja hasta el último nivel la estructura se encuentra conformada por perfiles laminados de acero.

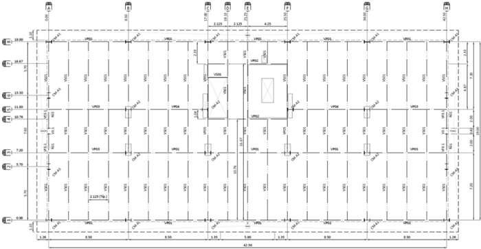
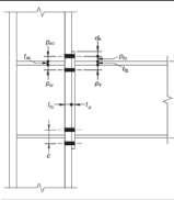
Figura 1. Planta estructural de los pisos altos

Las estructuras de acero son de uso frecuente en construcciones en general. Para el caso de estructuras sismorresistentes, existen diferentes tipologías empleadas comúnmente en el diseño convencional, donde se distinguen dos grandes grupos: pórticos arriostrados y pórticos no arriostrados. En el primer caso, se subdividen en concéntricos y excéntricos. Los del segundo caso, también pueden subdividirse si la viga es de alma llena o reticulada. Estos tipos se encuentran con-

templados en el reglamento sismorresistente vigente [INPRES-CIRSOC 103 Parte IV].

En este caso para la estructura sismorresistente, se adoptó una tipología para cada una de las direcciones principales del edificio. En la planta de la Figura 2 se aprecian las estructuras en sentido longitudinal y transversal y las tornapuntas (barras inclinadas) para control del pandeo lateral de las vigas, como se verá más adelante.

Figura 2. Planta de estructura típica con indicación de secciones

En el sentido longitudinal, la estructura se compone de elementos tipo pórticos sismorresistentes especiales en las caras externas del edificio, según se presenta en la Figura 3, en tanto que en los dos ejes interiores la estructura permanece destinada sólo a las acciones gravitatorias.

En el sentido transversal en los planos exteriores se dispusieron sendos pórticos arriostrados excéntricamente. Con el mismo criterio anterior, los planos intermedios son los responsables de resistir sólo cargas gravitatorias.

Figura 3. Vista del pórtico no arriostrado (dirección longitudinal)
Figura 4. Vista del pórtico arriostrado excéntrico (modelo BIM)

3. ACCIONES

El diseño estructural permitió brindar regularidad en planta y altura de acuerdo con lo establecido en INPRES-CIRSOC 103 Parte I (2013). Se siguieron los lineamientos de INPRES-CIRSOC 103 -Reglamento Argentino para construcciones Sismorresistentes Parte 1 – Construcciones en General- Setiembre 2013.

Esfuerzo de Corte en la Base

Vo = C x W

Coeficiente Sísmico de Diseño (C)

C = 2.5 x Ca x γr / R para T ≤ T2

C ≥ 0.8 x as x Nv / R para zonas sísmicas 3 y 4

Zonificación Sísmica (Z); Zona 4 – Luján de CuyoMendoza

Factor de Riesgo (γr): Grupo B, γr: 1.00

Construcciones destinadas a vivienda unifamiliar o multifamiliar; hoteles, comercios e industrias no incluidos en el grupo A. Construcciones cuya falla puede afectar a una del grupo A. Obras de infraestructura primaria no incluidas en el grupo A.

Valores de (as), (Ca) y (Cv). Zona Sísmica 4.

Tipo Espectral (Sitio) = 2 (SD)

a s = 0.35

Na = 1

Nv = 1.2

Ca = 0.40 x Na = 0.40

Cv = 0.59 x Nv = 0.71

T2 = Cv / (2.5 x Ca) = 0.708

Clasificación del Sitio: según los datos del estudio geotécnico adjunto en la presente memoria de cálculo se obtiene la siguiente clasificación del sitio.

Tipo Espectral = Tipo 2. Sitio = SD

Descripción = Suelo cohesivo consistente, de baja plasticidad. Gravas y/o arenas de baja densidad.

V sm (m/s) = 180 a 360. Nº golpes medio del ensayo

SPT N m = 15 a 50

Resistencia media al corte no drenado S um (kPa) = 50 a 100

Factor de Reducción (R)

Según Dirección X: Pórticos No Arriostrados

Especiales

R = 7 ΩO = 3 Cd = 5.5

Según Dirección Y: Pórticos Arriostrados

Excéntricamente

R = 7 ΩO = 2 Cd = 4

Período Estructura: Tx = 1.36 s Ty = 1.02 s

Límite al Período: T < Cu * Ta Cu = 1.40

Tx máx. = 1.45 s Ty máx. = 1.24 s

Período de Cálculo

Tx = 1.36 s Ty = 1.02 s

Determinación de Sa: Sax = 0.52 Say = 0.69

Cálculo Coeficiente Sísmico (C)

C = Sa * γr / R para T ≥ T2

Cx = 0.075 Cy = 0.099

Sismo Vertical

Cv= Ca x γr/2=0.40 x 1.0/2= 0,20:

Ev= Cv x D = 0.20 x D

PESO DE LA CONSTRUCCIÓN:

W=D + f1*L + f2*S= D + 0,25 * L + 0,7 * S

NIVEL

Total 6º Piso + Azotea

Total 5º Piso

Total 4º Piso

Total 3º Piso

Total 2º Piso

Total 1º Piso

Total Planta Baja

Total Subsuelo

Total General

Peso de la Construcción y Corte

NIVEL

Total 6º Piso + Azotea

Total 5º Piso

Total 4º Piso

Total 3º Piso

Total 2º Piso

Total 1º Piso Total Planta Baja

Tabla 2. Distribución de fuerzas en altura

Tabla 1.
Basal

4. MODELO ESTRUCTURAL

Modelo

Para la determinación de solicitaciones se ha realizado una modelación estructural espacial empleando, para vigas y columnas, elementos tipo barra de dos nodos, para losas elemento tipo shell de cuatro nodos y elementos tipo wall de cuatro nodos para tabiques de Hº Aº, según se aprecia en la Figura 5. Las acciones introducidas en el modelo surgen de los análisis de cargas y de la evaluación del efecto sísmico. La asignación de cargas se llevó a cabo

5.

en los estados permanentes (Dead) y de servicio (Live).

Las acciones del efecto sísmico se encuentran contenidas en los estados Ex, Mx, Ey y My, los cuales representan, respectivamente, efectos traslacionales y rotacionales.

Para representar la interacción suelo-estructura se han empleado las directrices del Código de Construcciones Sismorresistente de Mendoza de 1987 más los parámetros aportados por el estudio de suelos, y se han introducido vínculos elásticos tipo resortes para la restricción en dirección vertical y horizontal.

Las acciones introducidas en el modelo surgen de los análisis de cargas y de la evaluación del efecto sísmico.

Combinaciones de acciones

Para las combinaciones de acciones se ha seguido lo estipulado por el INPRES- CIRSOC 103 Parte I, CIRSOC 301 y la adenda del INPRESCIRSOC 103 para considerar las modificaciones respecto de este tema.

Figura
Vista del modelo estructural MEF 3D

Combinación de Cargas – Estado Límite Últimos [ELU]

COMB1 = 1.2 * DEAD + 1.6 * LIVE + 0.50 * NIEVE

COMB2 = 1.0 * DEAD + 0.25 * LIVE + 0.7 * NIEVE + 1.0 *

COMB3 = 1.0 * DEAD + 0.25 * LIVE + 0.7 * NIEVE - 1.0

0.25

COMB18 = 1.0 * DEAD + 1.0 * LIVE Estado de Servicio [ELS]

5. DISEÑO DE

PÓRTICOS NO ARRIOSTRADOS (PSNA)

Los pórticos sismorresistentes no arriostrados se han desarrollado mediante perfilería tipo “W” con conexiones abulonadas. El dimensionado se ha efectuado de acuerdo con las prescripciones de los reglamentos CIRSOC e INPRES-CIRSOC vigentes y no demandan mayores detalles. La tipología estructural y las

distintas secciones empleadas se indican con diferentes colores en la Figura 6. El diseño estructural responde a criterios estándar y solo se destacan dos elementos distintivos: las vigas de sección reducida (reduced beam section) y las conexiones precalificadas, que sirven para cumplir el objetivo de garantizar el Mecanismo de Plastificación proyectado, esto es, rotulación en vigas en la zona de apoyos.

Figura 6.

Pórtico No Arriostrado

Secciones tipo “W” diferentes Ejes 1 y 8

Elemento

Columna CM-A1

Columna CM-A1

Columna CM-A1

Columna CM-A1

Columna CM-A1

Columna CM-A1

Columna CM-A1

Conexiones Precalificadas

Sección

W 610x155

W 610x155

W 610x140

W 610x140

W 610x140

W 610x125

W 610x125

Elemento

Viga Principal

Viga Principal

Viga Principal

Viga Principal

Viga Principal

Viga Principal

Viga Principal

Tabla 3.

Secciones tipo “W” del Pórtico No Arriostrado

Las uniones en las construcciones de acero son usadas permanentemente y solo ameritan un diseño y verificación cuidadosos que garanticen la transmisión de acciones entre los distintos componentes los cuales conectan. Pero en el caso de construcciones sometidas a eventos sísmicos con acciones extraordinarias y, dadas las fallas observadas en las conexiones en

Sección

W 610x101

W 610x101

W 610x101

W 610x101

W 530x66

W 530x66

W 530x66

pórticos a momento, surge la necesidad de establecer pautas de diseño para uniones coherentes con los principios del diseño por capacidad análogo a lo aplicado en las construcciones de hormigón.

Luego del terremoto de Northridge en 1994, el AISC junto con otras instituciones, desarrollaron un taller internacional en la ciudad de Los Ángeles a los fines de coordinar esfuerzos para la resolución de los problemas observados. Durante el año 1995 se llevaron

a cabo intensos programas de investigación que incluyeron análisis de edificios, revisión del comportamiento de conexiones mediante elementos finitos, y más de 120 ensayos de ensamblajes de uniones a escala natural.

En el año 2000 la FEMA (Federal Emergency Management Agency) crea una “SAC Joint Venture” para recopilar el material y efectuar recomendaciones para construcciones de acero. Las instituciones fueron: Structural Engineers Association of California (SEAOC), Applied Technology Council (ATC) y California Universities for Research in Earthquake Engineering (CUREe), las cuales produjeron documentos identificados como “serie 350” con recomendaciones para el diseño sísmico de construcciones con pórticos a momentos.

Estas investigaciones concluyeron que, dando cumplimiento a esas especificaciones, se logrará obtener un aceptable desempeño en los sistemas estructurales cuando sean solicitadas por un evento extremo. A las conexiones así diseñadas se las denomina “Conexiones Precalificadas”.

TABLE

Connection Type

Lograr una respuesta confiable de toda la estructura será posible a partir de contar con la certidumbre en el comportamiento de las conexiones. Este objetivo se alcanza por dos caminos: a) diseñando las conexiones y comprobando su comportamiento mediante ensayos, o b) seleccionar uniones que ya han sido probadas en ensayos, documentadas y se encuentran homologadas en las normas. Éstas últimas son las uniones pre-calificadas y están registradas en documentos internacionales como el reglamento ANSI/AISC 35816 o las recomendaciones FEMA 350 ya comentadas. Existen dos categorías de uniones, las de uso público o las que se encuentran bajo patente. Ambos grupos, luego de un proceso de validación mediante ensayos, han sido aceptados y homologados por los respectivos organismos, en este caso, el AISC (American Institute of Steel Construction). En la siguiente Tabla, contenida en la última versión de la especificación ANSI/AISC 358-22, se resumen las uniones precalificadas admitidas para ser utilizadas tanto en pórticos especiales como intermedios (Special Moment Frame, Intermedia Moment Frame).

2.1 PREQUALIFIED MOMENT CONNECTIONS

Reduced beam section (RBS)

Bolted ustiffened extended end plate (BUEEP)

Bolted stiffened extended end plate (BSEEP)

Bolted flange plate (BFP)

Welded unreinforced flanged-welded web (WUF-W)

Cast bolted bracket (CBB)

ConXtech ConXL (ConXL)

SidePlate

Simpson Strong-Tie Strog Frame

Double-tee

Slotted

(SW)

IMF

IMF

SMF, IMF

SMF, IMF

SMF, IMF

SMF, IMF

SMF, IMF

SMF, IMF

SMF, IMF

SMF, IMF

SMF

SMF, IMF

Tabla 4.

Conexiones precalificadas a Momento (ANSI/AISC 358/16)

Se puede distinguir tres tipos de uniones de acuerdo a la restricción a la rotación: Totalmente Restringidas (Full Restraint), Parcialmente Restringidas (Partial Restraint), y Articuladas (A). El comportamiento de la conexión se cuantifica a través de la rigidez de rotación relativa entre la propia conexión y la viga conectada. En virtud de esta comparación, las Totalmente Restringidas muestran una rigidez relativa de 20 veces respecto a la de la viga, las Parcialmente Restringidas, entre 2 y 20 veces, y finalmente, las Articuladas entre 0 y 2 veces. El comportamiento a rotación se representa vinculando la rotación y el momento, según se puede apreciar en la siguiente Figura.

7.

Diagrama comparativo Momento-rotación de conexiones [Crisafulli, FJ]

Las conexiones precalificadas han sido parametrizadas para facilitar su uso repetitivo y, de este modo, asegurar que no se produzcan esfuerzos ni situaciones de inestabilidad en el nudo de conexión viga-columna.

Viga de Sección Reducida

Mediante una disminución en el ancho de las alas, se intenta generar una zona de menor resistencia flexional que el resto, y de este modo, fijar perfectamente la posición de la rótula plástica, a la cual por su forma se la conoce como “dog bone” (hueso de perro) como se observa en la Figura 8. Para proteger la zona y lograr estabilidad en la disipación de energía, se deben verificar todos los componentes de la conexión en la hipótesis que la rótula

pueda desarrollar sobre-resistencia asociada a la verdadera calidad del acero estructural empleado. Así en el proceso de diseño se tendrá en cuenta el momento flector esperado o probable en la rótula (por aumento de la tensión de fluencia Fy), y con ese valor, verificar los elementos de la conexión (bulones, soldaduras) y las posibles fallas locales en alas y alma. Para garantizar el comportamiento se deben respetar ciertas limitaciones para los componentes establecidos en los ensayos de caracterización de la conexión.

8

Conexión Viga de Sección Reducida [ANSI/AISC 358-16]

Existen tres tipos de uniones de acuerdo a la restricción a la rotación: Totalmente Restringidas, Parcialmente Restringidas y Articuladas.

Figura
Figura

9.

I) Viga sección disminuida (dog bone)

II) Vista viga y placas extremas para unión precalificada

Figura 10. Conexión de viga reducida

I) Modelo FEM (structuremag.org)

II) Ensayo y rótula plástica (adanengineering.com)

Figura

Procedimiento de diseño de la viga de sección reducida

Se establece un procedimiento para brindar cumplimiento a las exigencias establecidas en la precalificación de la conexión en la siguiente Tabla 5. Por razones de extensión se muestra en forma parcial.

Diseño de viga

Paso 1: Selección de dimensiones tentativas

Confirmar que vigas y columnas resultan adecuadas para todas las combinaciones de cargas de las especificaciones

Controlar distorsiones de piso Para tener en cuenta el efecto de la reducción de la viga, a falta de más precisión, se considera la distorsión efectiva como la distorsión elástica multiplicada por 1,10 (para reducciones de vigas hasta el 50 % del ancho del ala)

Paso 2: Determinación del módulo plástico de la sección reducida

donde:

ZRBS = Módulo plástico de la sección de viga reducida, [mm³]

Zx= Módulo plástico para la sección completa, [mm³]

Paso 3: Determinación del momento probable de la zona reducida, Mpr

donde:

ZRBS = Módulo plástico de la sección de viga reducida, [mm³]

Cpr = factor que considera endurecimiento por deformación, restricciones locales, refuerzo adicional Salvo indicación, C pr se toma de la 2.4-2)

Ry = relación entre tensión de fluencia esperada y la mínima

Fy= tensión de fluencia, [MPa] VRBS = 2.Mpr/Lh + V1,2D+f1L+0,2S

Paso 4: Determinación del corte en zona reducida

donde:

Mpr = momento probable en la zona reducida, [Nmm]

Lh = longitud entre zonas reducidas de la viga, [mm]

V1,2D+f1L+0,2S = corte en zona reducida debido a acciones gravitatorias, [N]

Paso 5: Determinación del momento a cara de columna M

donde:

ZRBS = Módulo plástico de la sección de viga reducida, [mm³]

Cpr = factor que considera endurecimiento por deformación, restricciones locales, refuerzo adicional Salvo indicación, C pr se toma de la 2.4-2)

Ry = relación entre tensión de fluencia esperada y la mínima

Fy= tensión de fluencia, [MPa] VRBS = 2.Mpr/Lh + V1,2D+f1L+0,2S

Paso 4: Determinación del corte en zona reducida

donde:

Mpr = momento probable en la zona reducida, [Nmm]

Lh = longitud entre zonas reducidas de la viga, [mm]

V1,2D+f1L+0,2S = corte en zona reducida debido a acciones gravitatorias, [N]

Paso 5: Determinación del momento a cara de columna, Mf

donde:

Mf = momento máximo a cara de columna, [Nmm]

Mpr = momento máximo probable en la rótula plástica (ec 5 8-5), [Nmm]

Sh = distancia desde la cara de la columna a la rótula plástica, [mm]

= a + b/2, [mm]

VRBS = mayor de los dos esfuerzos de corte en zona reducida, [N]

Tabla 5

Procedimiento de diseño detallado (parcial) Viga de sección reducida

Conexión con placa extrema abulonada

Este tipo de conexión prevé la unión entre la viga y la columna con una placa extrema para brindar cumplimiento a los requisitos de ductilidad de los pórticos sismorresistentes especiales e intermedios. La placa de extremo se suelda a la viga y puede o no

tener elementos de rigidización. Luego, la placa se abulona a la columna mediante 8 o 4 bulones.

Finalmente, la columna puede tener o no elementos de rigidez en el alma, dando lugar a tres tipos de conexión: de 4 bulones sin rigidizar (4E), de cuatro bulones rigidizada (4ES) y de 8 bulones rigidizada (8ES), según se muestra en la Figura 11.

Figura 11

Configuraciones de conexión con placa extrema (AISC-ANSI)

Figura 12

Conexión de viga con placa extrema 4 bulones I) No rigidizada [AISC]. II) Rigidizada, modelo FEM (lusas.com). III) Rig., montaje p/ensayo (lusas.com). IV) No rigidizada, ensayo y evidencia de rótula plástica (iopscienca.iop.org)

Procedimiento de diseño

El procedimiento de diseño describe los pasos para el dimensionado y verificación de todos los componentes de la conexión para garantizar el comportamiento dúctil ante un evento sísmico. Para facilidad se resumen en la Tabla 6 (en forma parcial) los pasos y expresiones para su control. Se explicita la numeración original de las fórmulas para facilitar su seguimiento en el texto de referencia.

El diseño establece los pasos para dimensionar y verificar cada componente de la conexión, asegurando un comportamiento dúctil frente a un sismo.

IV

Diseño de viga

Paso 1: Determinación del tamaño de los miembros conectados (vigas y columnas) y cálculo del momento a cara de columna, Mf

donde:

Mf = momento máximo a cara de columna, [Nmm]

Lh = distancia entre rótulas plásticas [mm]

Lst = longitud del rigidizador (según Figura 6.5, [mm])

Mpr = momento máximo probable en la rótula plástica (ec 2 4-1, [Nmm])

Sh = distancia desde la cara de la columna a la rótula plástica [mm]

= menor distancia entre d/2 o 3.bbf para conexión no rigidizada (4E)

= Lst + tp para conexión rigidizada (4ES, 8ES)

Vg = esfuerzo de corte de la viga para la combinación 1 2D + f1L + 0 2S, [N]

Vu = esfuerzo de corte en el extremo de la viga [N]

bbf = ancho del ala de la viga, [mm]

d = alto de la viga conectada, [mm]

tp = espesor de la placa de extremo, [mm]

Paso 2: Selección de configuración de conexión

Paso 3: Determinación de diámetro requerido de bulón

Para 4 bulones (4E y 4ES sin y con rigidizador):

Para 8 bulones (8ES):

donde:

Fnt = tensión de tracción nominal del bulón

hi = distancia desde eje ala comprimida (viga) a la fila ith del bulón en tracción, [mm]

ho = distancia desde el eje del ala comprimida de la viga a la fila del bulón extremo en tracción, [mm]

φ n = 0 90

Paso 4: Determinación del espesor de placa de extremo tp,req

donde:

Fyp = tensión de fluencia mínima de la placa de extremo [MPa]

Yp = parámetro del mecanismo de línea de fluencia de la placa de extremo (tablas 6 2, 6 3 o 6 4 [mm])

φ d = 1 00

Paso 5: Cálculo de la fuerza factoreada en ala de viga Ffu

donde:

Mf = momento máximo a cara de columna, [Nmm]

tbf = espesor del ala de la viga, [mm]

d = altura total de viga, [mm]

Paso 6: Control de corte de fluencia en placa s/ rigidizar para unión de 4 bulones (4E)

Si no se satisface 6 8-7, aumentar espesor de la placa o cambiar material donde:

Fyp = tensión de fluencia mínima de la placa extrema [MPa]

bp = ancho de la placa extrema, [mm]

tp = espesor de la placa extrema, [mm]

d = 1 00

Paso 7: Control del corte de rotura en placa s/ rigidizar para unión de 4 bulones (4E)

donde:

An = área neta de la placa de extremo = tp [ bp – 2(db + 3)], [mm²]

Fup = tensión de rotura mínima de la placa extrema, [MPa]

db = diámetro del bulón, [mm]

Paso 8: Selección de espesor y soladuras del rigidizador de placa extrema, sólo si conexión de 4 bulones rigidizada (4ES) u 8 bulones rigidizada (8ES)

Para evitar el pandeo del rigidizador se debe respetar la siguiente relación:

donde:

ts = espesor del rigidizador, [mm]

tbw = espesor del alma de la viga, [mm]

hst = altura del rigidizador, [mm]

Fyb = tensión de fluencia de la viga, [MPa]

Fys = tensión de fluencia del rigidizador, [MPa]

E = módulo de elasticidad, [MPa]

Paso 9: Determinación de resistencia a corte de los bulones

La resistencia de rotura a corte de la conexión es provista por los bulones de una de las alas (sólo la de compresión):

donde:

Ab = área bruta de un bulón, [mm²]

Fnv = tensión nominal de corte de bulones, [MPa]

Vu = fuerza de corte en el extremo de la viga (ec 6.8-2, [N])

nb = número de bulones en el ala comprimida

= 4 para conexiones 4E y 4ES

= 8 para conexión 8ES

donde:

ts = espesor del rigidizador, [mm]

tbw = espesor del alma de la viga, [mm]

hst = altura del rigidizador, [mm]

Fyb = tensión de fluencia de la viga, [MPa]

Fys = tensión de fluencia del rigidizador, [MPa]

E = módulo de elasticidad, [MPa]

Paso 9: Determinación de resistencia a corte de los bulones

La resistencia de rotura a corte de la conexión es provista por los bulones de una de las alas (sólo la de compresión):

donde:

Ab = área bruta de un bulón, [mm²]

Fnv = tensión nominal de corte de bulones, [MPa]

Vu = fuerza de corte en el extremo de la viga (ec 6.8-2, [N])

nb = número de bulones en el ala comprimida

= 4 para conexiones 4E y 4ES

= 8 para conexión 8ES

Tabla 6

Procedimiento de diseño detallado Conexión con placa extrema abulonada

6. DISEÑO DE PÓRTICOS ARRIOSTRADOS EXCÉNTRICOS (PSAE)

Los pórticos arriostrados excéntricamente tienen la particularidad de ser un sistema de alta disipación concentrada en algunos elementos denominados “enlaces”, “fusibles” o “links” quiénes serán los responsables de conferir ductilidad al elemento, en particular, y a toda la construcción, en general. Luego de su comportamiento estructural durante un evento sísmico donde hayan desarrollado su capacidad de disipación, deberán ser reemplazados a la espera de un nuevo compromiso resistente.

El criterio general de diseño del resto de los componentes estructurales es conservarlos en un comportamiento casi elástico para que continúen en servicio y evitar deformaciones excesivas capaces de comprometer la estabilidad global estructural. Esto se puede lograr aplicando la filosofía del diseño por capacidad.

Este diseño ha sido descripto en el artículo “Pórticos de acero arriostrados excéntricamente con disipadores por fluencia. 26 Jornadas AIE. 2021; por lo que se remite a ese artículo para ver en detalle el análisis de este tipo de estructuras. En la Figura 13 se resumen distinguidas por colores las diferentes secciones de perfiles tipo “W” utilizados en el diseño de la estructura.

13

Pórtico Arriostrado Concéntrico I) Secciones tipo “W”, II) Modelo BIM

Elemento

Columna CM-A3

Columna CM-A3

Columna CM-A3

Columna CM-A3

Columna CM-A3

Columna CM-A3

Columna CM-A3

Sección

W 610x174

W 610x174

W 610x140

W 610x140

W 610x140

W 610x125

W 610x125

Elemento

Sección

Tubo 357x400x15,9

Tubo 357x400x15,9

Tubo 357x400x15,9

UPN 350 + Placas

UPN 350 + Placas

2 UPN 260 2 UPN 260

Figura

Elemento

Viga VFE-1

Viga VFE-1

Viga VFE-1

Viga VFE-1

Viga VFE-1

Viga VFE-1

Viga VFE-1

7. CONCLUSIONES

Sección

W 610x140

W 610x101

W 610x101

W 610x101

W 610x101

W 530x66

W 530x66

Elemento

Viga Enlace VE-1

Viga Enlace VE-1

Viga Enlace VE-1

Viga Enlace VE-1

Viga Enlace VE-1

Viga Enlace VE-1

Viga Enlace VE-1

Tabla 7

Secciones tipo “W” del Pórtico Arriostrado Excéntrico

Se ha presentado el proyecto de un edificio en altura con estructura metálica emplazado en la zona de máxima peligrosidad sísmica de Argentina, el edificio ya está construido y a punto de ser habilitado. La estructura, desarrollada completamente en acero desde planta baja, ha resultado una alternativa válida en cuanto a costo y viabilidad constructiva frente a los esquemas tradicionales en hormigón armado. La estructura metálica con perfilería estándar conforma un sistema industrializado con las ventajas expuestas por dichas tecnologías como son que una gran parte del trabajo se realiza en taller (fuera de obra) lo que le otorga una mayor trazabilidad, economía y calidad.

8. AGRADECIMIENTOS

A todo el equipo profesional de 3D Ingeniería SA, en especial, a Rodolfo González quien ha participado en el proyecto mencionado y en la redacción del presente trabajo.

9. REFERENCIAS

Sección

W410x60

IPN 380

IPN 360

IPN 340

IPN 320

IPN 280

IPN 240

• AISC. ANSI/AISC 341-16. Seismic provisions for structural steel buildings. American Institute of Steel Construction Inc. Chicago. IL. 2016.

• AISC. ANSI/AISC 358-22. Prequalified conections for special and intermediate moment frames for seismic applications. American Institute of Steel Construction Inc. Chicago. IL. 2022.

• Bruneau, M; Uang, C; Sabelli, R. Ductile design of steel structures. 2ª ed. Mc Graw Hill. 2011.

• Crisafulli, F. Diseño sismorresistente de construcciones de acero. Alacero. 5º edición. 2018.

• INPRES CIRSOC 103. Parte I. Reglamento argentino para construcciones sismorresistentes. Construcciones en General. INTI. 2013. Reglamento y comentarios.

• INPRES CIRSOC 103. Parte IV Reglamento argentino para construcciones sismorresistentes. Construcciones de acero. INTI. 2005. Reglamento y comentarios.

• Quiroga, D; Frau, C. Pórticos de acero arriostrados excéntricamente con disipadores por fluencia. 26° Jornadas AIE. 2021. _

Cerrito 1250 CABA - Ciudad de Buenos Aires, Argentina. Tel (+54 9) 11 2880-9243 cadeci@cadeci@org.ar / www.cadeci.org.ar

Por Dr. Ing. Civil Gustavo Balbastro (UTN-FRP) gbalbastro@frp.utn.edu.ar

Ing. Mec. Ph.D. Bruno Natalini (UNNE) bruno.natalini@ing.unne. edu.ar

Msc. Ing. Construcciones

Claudia A. Morel (UNNE) cmorel@ing.unne.edu.ar

TORMENTAS INTENSAS Y SEGURIDAD

EN LAS CONSTRUCCIONES: REFLEXIONES Y ENSEÑANZAS

Con una frecuencia que parece mayor a la implícita en los reglamentos de estructuras, se tienen noticias de tormentas con vientos que producen daños en construcciones de distinto tipo, las cuales provocan en algunos casos, una destrucción total con el lamentable saldo de lesiones a las personas, e incluso, pérdidas de vidas. No forma parte del comentario y la reflexión pública de estos casos la pregunta de por qué se producen o qué se puede hacer para evitarlos, casi dando por sentada una fatalidad inevitable y, en todo caso, la crónica pasa por la respuesta y la ayuda a los afectados, enfatizando actitudes solidarias muy loables. Partiendo del análisis de algunos eventos, en este trabajo se intenta poner de manifiesto algunos aspectos que, desde la ingeniería, deberían servir a la sociedad para evitar o minimizar los efectos negativos de los citados eventos.

LA SEGURIDAD EN LAS CONSTRUCCIONES

Las construcciones son una parte esencial del desenvolvimiento de la vida en la sociedad. En ellas las personas pasamos gran parte de nuestro tiempo trabajando, descansando, estudiando, curándonos, comerciando o divirtiéndonos. Las usamos también para guardar bienes, protegerlos de las inclemencias climáticas, etc.

Tenemos incorporado que en las construcciones es donde podemos encontrar refugio y protección. Por ello la falla, el colapso, de una construcción representa un hecho singularmente traumático para quienes son afectados.

De los múltiples aspectos que pueden alterar la seguridad en las construcciones, nos ocupan los asociados a las fallas en las estructuras o elementos de cerramiento.

Para evitar las fallas responsables del colapso de las estructuras, o al menos reducir a niveles razonablemente aceptables su probabilidad de ocurrencia, la ingeniería estructural ha ido acumulando un bagaje de conocimientos sobre el comportamiento de los materiales, las acciones sobre las estructuras, los métodos de análisis, y las tecnologías constructivas, que pueden considerarse recopilados en las distintas normas y reglamentos del tema. En particular, en la República Argentina esta función la cumple el cuerpo de los reglamentos CIRSOC, cuya primera generación se gestó hacia finales de los años ‘70 del siglo pasado, en un primer intento por contar con un cuerpo sistemático de alcance nacional. La segunda generación se gestó a principios de este siglo y actualmente asistimos al surgimiento de la tercera.

Para evaluar de manera racional las cargas debidas al viento que se deben considerar en el diseño de una construcción, rige actualmente el reglamento 102 (CIRSOC 2005). Este se debe emplear en conjunto con los demás reglamentos CIRSOC para cada acción, así como los referidos a las especificaciones de diseño y construcción de cada material, complementados en varios casos con normas IRAM específicas.

En manos de un profesional competente, este conjunto, al igual que otros cuerpos normativos de los distintos países, apunta a producir construcciones con una probabilidad de falla y de daños a las personas muy inferior a la asociada a otros eventos potencialmente traumáticos (Melchers 2002).

TORMENTAS INTENSAS Y VIENTOS EXTREMOS

Uno de los posibles agentes a los cuales debe hacer frente una construcción son las presiones debidas al viento. En el uso cotidiano de una construcción, la distribución de diferentes presiones debidas al viento en cada pared y la cubierta puede favorecer la ventilación y el confort de los ocupantes. No obstante, durante severos eventos meteorológicos, la velocidad del viento puede alcanzar valores importantes. Dado que las presiones provocadas por el viento se encuentran asociadas al cuadrado de la velocidad (1) (CIRSOC 2024), las mismas crecen muy rápidamente, así como los efectos de carga provocados sobre la edificación.

qz = 0,613 Kz K zt Kd K e V² (1)

En la ecuación (1) se proporciona la presión dinámica qz, que depende de la velocidad de ráfaga V y está afectada por los coeficientes Ki, los cuales modelan ciertos parámetros tales como el terreno a barlovento, la topografía, direccionalidad e influencia de la altitud en la presión atmosférica.

Existen distintos fenómenos meteorológicos capaces de producir vientos intensos de particular interés. Algunos también pueden generar otros efectos potencialmente serios, tales como lluvias copiosas, granizo, marejadas e inundaciones, no obstante, nos ocuparemos en este trabajo exclusivamente del viento.

El tamaño del área afectada, la duración del evento y las características del campo de velocidades, incluidos los valores máximos, dependen del tipo de fenómeno que le da origen.

Las áreas afectadas pueden ir desde frentes de cientos de kilómetros y varias horas de duración, como en el caso de los ciclones tropicales -conocidos como huracanes, tifones o ciclones, en distintas partes del mundo-, algunos kilómetros cuadrados en las tormentas eléctricas y alrededor de media hora de duración -bastante frecuentes en gran parte de nuestro país-, o franjas del orden de un centenar de metros de ancho por unos pocos kilómetros de largo, en el caso de los tornados, con duraciones de unos minutos.

Los campos de velocidades son también muy diferentes, con una alta rotación y hasta unos 400 km/h durante los tornados, esencialmente horizontales de hasta unos 250 km/h en los ciclones tropicales, y con ráfagas de hasta 180 o 200 km/h, con significativas componentes verticales y direcciones divergentes en las tormentas eléctricas con corrientes descendentes.

UNA CUESTIÓN DE PROBABILIDADES

Si bien queda mucho campo abierto a la investigación, los reglamentos contienen valores de velocidad para cada ubicación basados en el estudio de series temporales ajustadas con alguna distribución de probabilidad de valores extremos, los cuales en la práctica, constituyen una efectiva representación ante lo que, razonablemente, una estructura podrá permanecer expuesta. El actual reglamento CIRSOC 102, por ejemplo, contiene un mapa de velocidades de ráfaga (V) con una recurrencia media de 50 años. Esto significa que una construcción con una vida útil de 50 años observa una probabilidad de excedencia de la velocidad básica correspondiente a su ubicación del 64 % (CIRSOC 2005b).

Puede verse entonces que resulta más probable que esta velocidad sea superada o excedida durante la vida útil de que no lo sea. Por tal motivo, a los fines del diseño, los distintos reglamentos CIRSOC multiplican las presiones debidas a esta velocidad por un factor de mayoración de 1,5 o 1,6 a los fines de obte-

ner el Estado Límite Último (ELU) cuando el viento es acción principal. Esto equivale a considerar una velocidad de viento con un período de recurrencia medio de ≈ 700 años para construcciones de categoría de riesgo medio, como es el caso de las viviendas, oficinas, entre otros usos (ASCE 2019).

Considerando velocidades con recurrencias de este orden, la probabilidad de ser igualadas o excedidas durante un tiempo de exposición de 50 años desciende a un 6,9 % (ASCE 2019) mientras que para un tiempo de exposición de 1 año la probabilidad de excedencia es de un 0,14 %.

Cabe mencionar que el análisis anterior no cambia si se lleva a cabo tomando el proyecto recientemente puesto en discusión pública, con las correspondientes adaptaciones (CIRSOC 2024).

En la República Argentina, existen alrededor de 1.300 municipios. En una aproximación grosera, se podría tomar ese número como representativo de la cantidad de núcleos urbanos donde se concentra la mayor parte de los 17,8 millones de viviendas registradas en el país (INDEC 2023).

Cada uno de los mencionados núcleos experimentará una vez al año una velocidad de viento máxima observable. En una nueva aproximación, podría considerarse que cada una de las citadas observaciones corresponden a eventos independientes, por lo tanto, pueden tomarse como realizaciones de la variable aleatoria “velocidad de viento máxima anual”.

Para colocarse del lado de la seguridad, se acepta que en los grandes municipios, dada su extensión geográfica, podrían observarse más de una realización independiente; como si se trataran de varios núcleos urbanos diferentes.

Con esta suposición, siendo conservadores, se podría estimar que en Argentina el número de realizaciones independientes observables de la variable “velocidad de viento máxima anual” no supera las 1.500. Si la probabilidad de excedencia anual de esa variable es del 0,14 %, como se mostró antes, este porcentaje aplicado a las 1.500 realizaciones independientes de la variable aleatoria es igual a 2,1. Es decir que, en promedio, cada año deberían observarse velocidades por encima de las de diseño en no más de dos núcleos urbanos en todo el territorio nacional; ergo, en un año cualquiera, deberían reportarse daños en no más de dos núcleos urbanos. El resto de los eventos deberían ocurrir en zonas aisladas, donde es mucho menos probable su impacto en una construcción. Lo anterior es sin tomar en cuenta que la excedencia de la velocidad de diseño no debería implicar inmediatamente la falla, ya que justamente, dicha velocidad es la definida por uno de los ELU, conformando requisitos que debe cumplir el diseño estructural. Un análisis detallado de probabilidad condicional excede los límites de este trabajo, sin embargo, puede tenerse un panorama rápido considerando que para las construcciones tipo vivienda, la probabilidad de falla anual objetivo -la que se busca alcanzar con el conjunto del sistema reglamentario- es de p f = 7E-7, como muestra la Tabla 1.13-1 de ASCE (2019), si se

consideran las fallas súbitas y daño generalizado. Por lo tanto, en el parque de viviendas argentino de 17,8 millones podrían esperarse, en promedio, 17,8E6 · 7E-7 ≈ 12 casos de colapsos debidos a vientos, si fuera este el único agente capaz de amenazar la integridad de las construcciones. Dado que la mencionada probabilidad cubre la totalidad de las acciones, el número real de colapsos por causa exclusiva del viento debería ser incluso menor. Si se consideran también las fallas que no producen daño generalizado, la probabilidad anual objetiva es de p f = 3E-5, implicando unos 530 casos por año de daños de menor cuantía.

LO QUE MUESTRA LA PRÁCTICA

Distintos estudios de fallas de construcciones debidas al viento, efectuados mediante inspecciones pos-tormenta de casos concretos (Balbastro y Sonzogni, 2008; Natalini et al. 2012) que incluyeron metaanálisis de fuentes secundarias, muestran que las fallas generalmente se han producido a valores de velocidad de viento bastante menores a las asociadas al reglamento, incluso del orden de la mitad de la velocidad básica del reglamento. Una revisión de notas periodísticas en la provincia de Entre Ríos, entre 2007 y 2013, estimó más de 900

construcciones de categoría viviendas con daños de distinto alcance debidos al viento, con cinco personas fallecidas, en 108 eventos. La máxima velocidad identificada en estos casos fue de 111 km/h (30,8 m/s), y se registraron daños con velocidades de incluso 80 km/h (22 m/s). Esto equivale, aproximadamente, a velocidades entre el 45 % y el 60 % de V, lo cual representa presiones de viento de, a lo sumo, un 25 % de las correspondientes al ELU. El análisis preliminar de eventos más recientes aporta similares relaciones (Balbastro 2024). Se observan dos características, la primera es que las fallas registradas se producen para valores de velocidad de viento muy por debajo de los asociados al cuerpo reglamentario; la segunda es que la cantidad de fallas registradas, incluso considerando el limitado alcance geográfico de los estudios disponibles, es muy superior a las estimables de cumplirse los objetivos de probabilidad de falla. El específico análisis de las fallas muestra distintas causas comunes que pueden atribuirse, en general, a informalidad y falta de controles competentes, incluso, a la subestimación de los efectos del viento o no observación de los reglamentos (GAEMA 2011).

Blessmann (1986) clasifica las causas de las fallas de las construcciones debidas al viento en estructurales y aerodinámicas. Estas causas pueden ser interpretadas directamente desde la ingeniería estructural, y a su adecuada prevención se encuentran dedicados los reglamentos.

Sin embargo, en los casos donde pudo estudiarse se encontró, en general, falta de control de los organismos competentes, ausencia de intervención del ingeniero o participación irregular del mismo en el proceso de diseño y construcción, distorsión de la competencia que presiona la ética de los participantes, y desconocimiento por parte de los comitentes. Por este último aspecto, éste recurre a quienes supuestamente saben, lo cual no siempre es así.

Todo esto configura una verdadera causa sistémica que dificulta el sano desempeño de la profesión de la ingeniería estructural, con un negativo impacto social, el cual se mide en pérdidas de vidas, daños materiales, disrupción de las actividades normales, necesidad de asistencia del Estado, entre otros negativos factores. Los mismos se evitarían si se aplicaran correctamente las reglas compiladas en los reglamentos.

CONCLUSIONES

Resulta necesario un trabajo desde las universidades y las entidades profesionales para difundir la situación, esclarecer y advertir a los comitentes sobre la necesidad de la completa participación del ingeniero estructural en la materia de su competencia. A su vez desde el Estado, ejercer los pertinentes controles. Evidentemente, se van a seguir realizando obras por autoconstrucción, por lo cual, la elaboración y difusión de guías de buenas prácticas, detalles constructivos simples para los casos más habituales -por ejemplo, los anclajes de las correas para cubiertas de chapa- los cuales puedan ser adoptados por improvisados albañiles y constructores, aun sin la participación de profesionales, redundarán en la reducción de las situaciones lamentables descriptas.

REFERENCIAS BIBLIOGRÁFICAS

ASCE (2022). ASCE/SEI 7-22 Minimun Design Loads and Associated Criteria for Buildings and Other Structures. American Society of Civil Enginners. Balbastro, G., Sonzogni, V. (2008). Colapso de estructuras de galpones durante tormentas severas Rev. Int. Desastres Naturales e Infraestructura Civil Vol. 8, No 1, pp. 37-56.

Balbastro, G., Dorella, J. (2017). PID ECOTIPA0004960TC (reporte). UTN.

CIRSOC (2005). Reglamento argentino de acción del viento sobre las construcciones CIRSOC 102. INTI. CIRSOC (2005b). Comentarios al Reglamento argentino de acción del viento sobre las construcciones CIRSOC 102. INTI.

CIRSOC (2024). Reglamento argentino de acción del viento sobre las construcciones CIRSOC 102. Proyecto en discusión pública nacional. INTI. Balbastro, G. (2024/04/01). Tormentas severas y seguridad en las construcciones: reflexiones y enseñanzas. [Seminario]. Asociación de Ingenieros Estructurales (AIE).

GAEMA (2011). Colapso do edifício Real Class sito à travessa 3 de Maio, 1134,1138 e 1146. [Laudo pericial]. UFPA.

INDEC (2023) Censo Nacional de Población, Hogares y Viviendas 2022: resultados provisionales (1a ed.). Instituto Nacional de Estadística y Censos (INDEC).

Melchers, R (2002). Structural reliability analysis and prediction (2nd ed.). Wiley. Natalini, B., Lassig, J., Natalini, M.B., Palese, C. (2012) Damaging wind storms in North Eastern Argentina: seven case studies. Wind And Structures 15(2). DOI: 10.12989/was.2012.15.2.147._

Por los ingenieros en construcciones

Gustavo Palazzo, Marcelo Guzmán, Francisco Calderón, SOLIDUS, Ingenieros Consultores

Universidad Tecnológica Nacional, Ceredetec

gpalazzo@solidus-ing.com

DETERMINACIÓN DE CAUSA DE FISURACIÓN EN EDIFICIO DE HORMIGÓN ARMADO Y METODOLOGÍA DE REHABILITACIÓN

En la etapa final de construcción de un edificio existente, se observaron numerosas fisuras en la estructura de hormigón armado. Este edificio cuenta con una cubierta metálica que se apoya en tabiques de hormigón armado, los cuales forman los muros exteriores e interiores, y toda la construcción descansa sobre una platea de fundación. Este trabajo tiene como objetivo describir la metodología utilizada para relevar las fisuras, identificar sus causas, analizar su evolución, evaluar su impacto en la seguridad del edificio y describir la estrategia de rehabilitación implementada. Además, se realiza una consideración inicial sobre las especificaciones en los reglamentos nacionales e internacionales para estas acciones. Las conclusiones destacan la importancia de diseñar una metodología de evaluación adaptada a las circunstancias particulares de una obra y la necesidad de contar con prescripciones reglamentarias específicas.

INTRODUCCIÓN

En la etapa final de construcción de un edificio con estructura de hormigón armado en Argentina, se registraron numerosas fisuras. Esta deficiencia en la terminación y el aspecto superficial de la estructura generó preocupación, por lo que los autores de este trabajo fueron convocados para evaluar el problema y proponer estrategias de rehabilitación. El objetivo de este trabajo es, tras caracterizar la construcción, describir la metodología de evaluación diseñada para valorar la situación del edificio en relación con las fisuras producidas, analizar los resultados de la evaluación y proponer estrategias de rehabilitación para resolver la no conformidad mencionada. Las secciones siguientes del trabajo se estructuran según estos objetivos.

El reglamento argentino de estructuras de hormigón1 tiene un capítulo, el 24, destinado a la aprobación y recepción de estructuras nuevas, terminadas. La sección 24.5 de ese capítulo, se refiere a criterios para la evaluación y corrección de las no conformidades; considerando en la subsección 24.5.4., la no conformidad con respecto a la terminación y al aspecto superficial de la estructura.

Para la sección 24.5 se especifica que en los artículos allí incluidos se indican los criterios los cuales se deberían aplicar cuando se detecten no conformidades con respecto a los requisitos exigidos para la obra. Las situaciones consideradas en esta sección cubren los casos que ocurren con mayor frecuencia. Los criterios a aplicar cuando se detecten otras no conformidades deben ser decididos por el Proyectista o Diseñador Estructural y/o el Director de Obra, según corresponda, de acuerdo con la naturaleza de la no conformidad.

En relación con la no conformidad mencionada, solo se determina que el pliego de Especificaciones Técnicas Particulares de la obra debería establecer las condiciones a cumplir por las superficies de estructuras expuestas a la vista, en vínculo con su aspecto,

El objetivo de este trabajo es, tras caracterizar la construcción, describir la metodología de evaluación diseñada para valorar la situación del edificio en relación con las fisuras producidas, analizar los resultados de la evaluación y proponer estrategias de rehabilitación para resolver la no conformidad mencionada.

color y textura; y, de presentar deficiencias, cómo deberían ser reparadas, acondicionadas y tratadas. Dada la falta de especificaciones en el reglamento nacional respecto a la deficiencia ocurrida en la obra, se tomó como referencia para el presente trabajo el reglamento americano específico para la evaluación, reparación y rehabilitación de estructuras de hormigón existentes2. Este reglamento considera en particular el problema de las fisuras, vinculándose con otro documento específico referido a causas, evaluación y reparación de grietas en estructuras de hormigón3

CARACTERÍSTICAS GENERALES DEL EDIFICIO

El edificio está compuesto por los sectores A, B, C, D y el núcleo central N, los cuales se identifican en la Figura 1(a). La construcción abarca una superficie aproximada de 3.700 m². Los primeros cuatro sectores mencionados cuentan con dos niveles, como se resalta en azul en la Figura 1(b) para el sector D, y se ubican en el perímetro del edificio. Cada uno de estos sectores presenta una junta constructiva en los cambios de dirección.

Las edificaciones están construidas con losas y tabiques de hormigón armado, al igual que el núcleo central N, que también cuenta con dos niveles. Los sectores mencionados fueron fundados sobre una platea del mismo material. Entre estas edificaciones se encuentran patios internos cubiertos con techos metálicos, que también se observan en la Figura 1, y poseen contrapiso armado.

Figura 1 (a)

Vista general del edificio (identificación de sectores A, B, C, D y N)

Figura 1 (b)

Vista general del edificio (edificación de hormigón armado resaltada en azul en el sector D)

Según la información proporcionada por el director técnico de la obra, hace un par de años se produjo una fuga en un conducto de agua a alta presión en el sector del núcleo N, específicamente, en el lado donde se encuentran los sectores C y D. Este profesional, quien no permanecía en funciones en el momento del incidente, indicó que la cañería fue reparada y rellenado el socavón originado por la fuga.

METODOLOGÍA DE LA EVALUACIÓN

Para abordar la deficiencia especificada en la introducción de este trabajo, se diseñó una metodología de evaluación con el fin de determinar las causas de las fisuras, su evolución, y si las mismas comprometían la seguridad estructural. La metodología incluyó la revisión de la documentación existente, el relevamiento y control de las fisuras, y el análisis del suelo de fundación. Los detalles de cada procedimiento se presentan seguidamente.

Evaluación de la documentación existente

Se consultó la documentación de obra relevante para el estudio, la cual incluyó:

. Ensayos a compresión de núcleos de hormigón.

. Planos con detalles de armado en tabiques (con verificación en obra mediante pachómetro).

. Estudios del suelo de fundación.

Relevamiento de fisuras

Se llevó a cabo una inspección visual para identificar las fisuras presentes en los tabiques de cada sector, tanto exteriores como interiores, tal como se muestra en la Figura 1. Las fisuras fueron fotografiadas y resaltadas en color rojo para facilitar su identificación, como se observa en las Figuras 2 a 5. Este relevamiento tuvo como objetivo determinar los espesores de las fisuras y los patrones de fisuración. Además, se observaron separaciones en las juntas constructivas de los sectores C y D, como se aprecia en la Figura 6.

Figura 2
Fisuras en tabiques exteriores
Figura 3
Fisuras en entrada a uno de los sectores
Figura 4 (a) Fisuras en tabiques interiores
Figura 4 (b) Fisuras en tabiques interiores

Control de evolución de fisuras

Para determinar si las fisuras se habían estabilizado, se colocaron numerosos testigos de vidrio adheridos a cada lado de las fisuras, como se muestra en la Figura 7. El seguimiento de los citados testigos se realizó al mes, a los 3 meses y a los 6 meses.

Evaluación del suelo de fundación

Se fijaron 8 puntos de sondeo en el sector del edificio donde se produjo la falla de la tubería de agua a alta presión, identificados en la Figura 8. Esta evaluación tuvo como objetivo caracterizar el suelo y el terraplén

bajo las plateas y detectar socavones. Las actividades realizadas incluyeron:

. Obtención de curvas granulométricas del terraplén;

. Ensayos de penetración dinámica, como se muestra en la Figura 9;

. Determinación de la capacidad de carga del terraplén;

. Detección de socavones mediante perforaciones en las zonas de veredines y platea de hormigón (ver Figura 10(a)), y excavaciones en el terraplén (ver Figura 10(b)).

Además, se ejecutó una inspección con georadar para evaluar la posibilidad de socavones bajo todas las plateas, como muestra la Figura 11.

Figura 5 (a)
Fisuras en núcleo central N (planta baja)
Figura 5 (b)
Fisuras en núcleo central N (planta alta)
Figura 6
Separación en una junta constructiva
Figura 7
Control de fisuras con testigo de vidrio

8

Zonas de sondeos del suelo de fundación

Ensayo de penetración en uno de los sondeos

RESULTADOS GENERALES DE LA EVALUACIÓN

De las diferentes etapas de la metodología de evaluación implementada se deducen los siguientes resultados:

. Evaluación de la documentación existente

No se hallaron relaciones causales entre las fisuras del edificio y la resistencia del hormigón según los ensayos de núcleos, ni respecto a la situación de la armadura (que en las muestras analizadas con pachómetro correspondía a las separaciones de las mismas con la información dada en los planos). Tampoco se

hallaron datos relevantes para la deficiencia en consideración en el estudio de suelo original de la obra. Del segundo estudio de suelo, efectuado luego de la aparición de las fisuras, se destaca la recomendación referida a ejecutar un recalce de las plateas, para lo cual deberán auscultarse el suelo por el interior del edificio a fin de pasar el estrato de arena y encontrar la grava.

. Relevamiento de fisuras

Se observó una mayor cantidad de fisuras en los sectores C y D del edificio, particularmente, en los tabiques interiores contiguos al núcleo central N.

Figura
Figura 10 (a) Evaluación de socavones
Figura 9
Figura 10 (b) Evaluación de socavones
Figura 11 Estudio con georadar

Los espesores de fisuras eran menores a 1,0 mm, y el patrón de las mismas sugiere un asentamiento diferencial del edificio en el sector mencionado (núcleo central N, del lado de los sectores C y D).

Las juntas de construcción en los sectores C y D también mostraban signos de asentamiento diferencial.

. Control de evolución de fisuras

Durante los 6 meses de seguimiento no se observaron fracturas de los testigos de vidrios, ni desprendimiento de sus extremos; concluyendo entonces que el proceso de asentamiento diferencial se habría estabilizado.

. Evaluación del suelo de fundación

El terraplén presenta una buena resistencia a la penetración; y el suelo bajo el mismo ofrece una capacidad similar a la estimada en el estudio de suelos inicial. En algunos sondeos, se encontró suelo con elevada humedad, probablemente, debido a pérdidas actuales en las cañerías. Además, en sondeos con alta humedad se encontraron estratos de suelo con muy baja capacidad.

En la auscultación del suelo bajo la platea solo se detectaron pequeños socavones en los extremos de los sectores C y D junto al núcleo central N. Sin embargo, no se encontraron otros socavones u oquedades en otras áreas bajo las plateas mediante el uso de georadar.

. Conclusiones generales de la evaluación

∏ Causa de las fisuras: Se atribuye el asentamiento del bloque central y de los bloques contiguos (C y D) a la pérdida de agua en una cañería dentro del núcleo central, mencionada por el director técnico de la obra. Esta pérdida habría provocado el asentamiento del núcleo y de los bloques vecinos.

∏ Estabilización del asentamiento: El hecho de que

los testigos sobre las fisuras no hayan registrado movimiento después de seis meses sugiere que el proceso de asentamiento diferencial podría haberse detenido o avanzar muy lentamente.

∏ Recalce de la platea: De mantenerse la situación actual de los asentamientos, no sería necesario implementar el refuerzo en la platea sugerido en el segundo estudio de suelo.

∏ Pruebas hidráulicas: Todas las cañerías deben someterse a pruebas hidráulicas periódicas para confirmar la inexistencia de nuevas pérdidas de agua capaces de incrementar la humedad del suelo.

∏ Seguridad estructural: Con base en toda la información analizada, se puede suponer que las fisuras en los tabiques de hormigón armado no representan un riesgo de colapso para la estructura. No obstante, sí constituyen una no conformidad respecto a la terminación y al aspecto superficial de la estructura, por lo que debería procederse a su rehabilitación.

∏ Rehabilitación de columnas: Se recomienda la rehabilitación (restablecimiento de su capacidad original) de las cuatro columnas en la entrada de cada sector del edificio, en el segundo nivel del núcleo central N.

METODOLOGÍA DE REHABILITACIÓN

Las metodologías de rehabilitación implementadas, según los resultados de la evaluación, se enfocaron en restablecer la capacidad de las columnas fisuradas y los tabiques de hormigón armado con fisuras. A continuación, se describen ambas estrategias en detalle.

Rehabilitación de columnas del núcleo central N

Las columnas de planta alta del núcleo central, en zona de ventanas, presentaban importantes fisuras. Para su rehabilitación, se propuso la incorporación de polímeros reforzados con fibra de carbono (FRP) en forma de tejido. Este refuerzo fue diseñado para proporcionar una capacidad similar a la del hormigón original sin fisuras.

Rehabilitación

Rehabilitación

El proceso de aplicación del sistema FRP comenzó con el sellado de las fisuras y la preparación de la superficie de las columnas para asegurar una terminación compatible con el material a incorporar. Esta fase se muestra en la Figura 12(a).

A continuación, como muestra la Figura 12 (b) de la izquierda, se aplicaron los imprimantes, adhesivos y tejido FRP que conforman el sistema de rehabilitación elegido. El estado final del material incorporado a la estructura se observa en la Figura 12 (b) de la derecha; el cual se protege finalmente con un recubrimiento, como se aprecia en la Figura 12 (c).

Para asegurar la calidad del sistema FRP, se llevaron a cabo ensayos de pull-off utilizando el equipo expuesto en la Figura 12(d).

Todo el proceso de diseño, instalación y control de calidad con el sistema FRP se realizó siguiendo la guía americana respectiva sobre el diseño y construcción de sistemas de polímeros reforzados con fibras (FRP), adheridos externamente para reforzar estructuras de hormigón4

Figura 12 (a)
de columna (preparación de la superficie de la columna)
Figura 12 (b)
de columna (colocación de FRP)

Rehabilitación de tabiques

En una primera etapa se sellaron las fisuras con una masilla acrílica en base acuosa la cual al secar forma una sellador elástico e impermeable (sellador acrílico multiuso). Esta masilla presenta una excelente elasticidad, logrando adaptarse perfectamente a las contracciones y dilataciones normales sin deformarse. Se empleó para ello el producto comercial Protex Acryl5

Como terminación superficial final se empleó una mezcla cementicia para reparación de hormigón a la vista de la marca

Protex Concrestetic6

Esta rehabilitación de la superficie de los tabiques, que no fue diseñada por los autores de este trabajo, se muestra en sus fases de aplicación y final en la Figura 13.

Figura 12 (d)
Rehabilitación de columna (control de calidad de adhesión FRP al sustrato)
Figura 12 (c)
Rehabilitación de columna (revestimiento de FRP)

Figura 13 (a) Rehabilitación de tabiques

CONCLUSIONES

En este trabajo se ha presentado una metodología de evaluación para determinar las causas de las fisuras observadas en numerosos tabiques de hormigón armado de una construcción nueva, así como las estrategias para su rehabilitación.

La metodología de análisis incluyó:

. Evaluación de la documentación existente: Revisión de ensayos de compresión de núcleos de hormigón, planos de armado y estudios de suelo.

. Relevamiento de fisuras: Inspección visual y documentación de las fisuras presentes en los tabiques interiores y exteriores.

. Control de evolución de fisuras: Seguimiento de la evolución de las fisuras durante seis meses utilizando testigos de vidrio.

. Evaluación del suelo de fundación: Análisis de la capacidad y condiciones del suelo mediante sondeos y pruebas de penetración dinámica.

La estrategia de rehabilitación, basada en los resultados de la evaluación, se centró en:

. Rehabilitación de columnas del núcleo central N: Uso de polímeros reforzados con fibra de carbono (FRP) para restablecer la capacidad estructural de las columnas fisuradas.

. Rehabilitación de tabiques: Sellado de fisuras con masilla acrílica y aplicación de una mezcla cementicia para mejorar la terminación superficial.

A pesar, en este caso particular, de lograr identificarse la causa de la no conformidad en la terminación y el aspecto superficial de la estructura y proceder a su rehabilitación, se considera que es necesario avanzar en la elaboración de especificaciones o recomendaciones reglamentarias a nivel nacional para la evaluación y reparación de construcciones existentes.

Referencias

1CIRSOC 201 (2005). Reglamento Argentino de Estructuras de Hormigón. INTI.

2ACI CODE-562 (2021): Assessment, Repair, and Rehabilitation of Existing Concrete Structures - Code and Commentary.

3ACI PRC-224.1 (2007) Causes, Evaluation, and Repair of Cracks in Concrete Structures.

4ACI PRC-440.2 (2023): Design and Construction of Externally Bonded Fiber- Reinforced Polymer (FRP) Systems for Strengthening Concrete StructuresGuide.

5Protex Argentina. (s.f.). Protex Acryl. Protex Argentina. Recuperado el 20 de junio de 2024, de https://protexargentina.com/productos/protex-acryl/ 6Protex Argentina. (s.f.). Protex Concrestetic. Protex Argentina. Recuperado el 20 de junio de 2024, de https://protexargentina.com/productos/protex-concrestetic/ _

Por los ingenieros civiles

Juan José Villafañe, Pedro Huerta Soaje e Ignacio Assadourian

Contacto: juanjvillafane@yahoo.com.ar pjfhuertas@gmail.com

PASARELA PEATONAL ESBELTA

CONFORTABLE PARA LOS PEATONES

El presente trabajo describe los criterios de diseño de anteproyecto, focaliza el desarrollo en el tablero de la pasarela, centrados en los parámetros del comportamiento dinámico para que se ubiquen fuera de la ventana/intervalo susceptible de amplificaciones dinámicas inducidas por el paso de peatones. Se muestran los diseños conceptuales con los cuales se trabajó para resolver el tablero. Se realiza una verificación independiente del nivel de confort en aceleraciones verticales y horizontales que presenta el proyecto ejecutivo en su comportamiento dinámico al paso de peatones. Se muestran los resultados de las pruebas dinámicas justo antes de ser inaugurada la obra y su correlación con los valores encontrados en la modelación. Se realiza una valoración sobre el nivel de confort esperable en el tramo principal al paso de peatones para varias densidades de 0.02, 0.10, 0.20 y 0.50 personas/m2 mediante el uso de una carga periódica que aproxima la carga vertical y horizontal de los peatones con y sin sincronización, obteniendo la respuesta mediante un análisis Tiempo-Historia Modal.

Ubicación, tipología, luces, materiales y condiciones de contorno

La nueva pasarela conecta el histórico parque Las Heras, puesto en valor, con el parque Austria, en la otra margen del Río Suquía. Cruza la avenida costanera, ubicada en la margen izquierda del río, bordeando el cauce de estiaje, y conecta las orillas sobre el cauce encajonado que contiene las crecidas extraordinarias del río Suquía. Las premisas adoptadas para el desarrollo de la pasarela en este histórico espacio de la ciudad de Córdoba fueron; lograr una obra destacada por su belleza integrada al área histórica; que contemple la circulación vehicular y peatonal por debajo en el espacio de la costanera la cual, esporádicamente, también es parte del cauce de inundación; que la construcción in situ sea sencilla y rápida de ejecutar; que la superficie de tránsito peatonal sea confortable en tiempos calurosos, y en la época de lluvias no sea afectada por los fuertes vientos extremos; que el conjunto presente seguridad y estabilidad durante su vida útil; y que el costo de la obra resulte razonable en comparación con otras similares del mercado. El aspecto global de la nueva pasarela debía identificarse como una cinta responsable de conectar las dos orillas. Un tablero esbelto con tirantes conformó la solución ideal.

La necesidad de mantener un paso inferior para vehículos livianos y peatones en la margen izquierda condicionó la ubicación del pilón único, que permitía anclarlo en el espacio recreativo del parque Las Heras mediante un conjunto armonioso de tirantes.

Al plantear una plataforma esbelta de circulación, el problema central se focalizó en identificar un esquema estructural que presente un comportamiento dinámico alejado de los modos que generan disconfort para los peatones, teniendo muy presente el fenómeno sucedido con la pasarela del London Millennium Bridge.

Al plantear una plataforma esbelta de circulación, el problema central se focalizó en identificar un esquema estructural que presente un comportamiento dinámico alejado de los modos que generan disconfort para los peatones, teniendo muy presente el fenómeno sucedido con la pasarela del London Millennium Bridge.

Con este marco conceptual, se seleccionó el boceto de conjunto el cual impacta por su armonía en el entorno; respeta los condicionantes de circulación vial, peatonal e hidráulico del espacio bajo el tablero, y se lograba con razonables costos. El esfuerzo de diseño se concentró en la respuesta dinámica de la

Figura 1

Proyecto Ejecutivo

pasarela alejada de modos capaces de inquietar a los usuarios, mediante un planteo inicial de una estructura robusta y otra esbelta.

Un ligero emparrillado metálico con losa de hormigón conforma la estructura del tablero. El emparrillado permanece envuelto con una cubierta lisa, con los laterales con formas aerodinámicas para controlar la formación de vórtices con vientos sostenidos y minimizar los efectos torsionales en el tablero.

La pasarela logra conformar un ícono sobre el río

Suquía, en la zona central de la ciudad de Córdoba. El contexto donde se ubica requería una lámina esbelta con sutiles tirantes que cruzara el río encajonado, sin alterar la panorámica vista.

Las luces de cada tramo en el proyecto ejecutivo resultan: 18 m (tramo costanera norte), + 6 m (zona apoyada), + 55.2 m (tramo principal), sumando un total de 79,20 m.

Diseño de anteproyecto

En la etapa de anteproyecto, se plantearon dos formas conceptuales para resolver el tablero. La primera; un tablero rígido conformado por una estéreo estructura con una altura del tablero de 1.20 m. El bastidor de esta propuesta estaba compuesto por perfiles doble T dispuestos como cordones longitudinales superiores e inferiores, vinculados mediante diagonales de tubos estructurales. En el segundo diseño se buscó potenciar la esbeltez del tablero. Para lograrlo, se fueron ajustando los elementos componentes del tablero que conforman los parámetros de rigidez, hasta que la frecuencia de vibración del primer modo vertical y del primer modo horizontal estuvieran fuera de la zona que genera cierta susceptibilidad dinámica al paso de peatones, a la vez de cumplir con los requerimientos de resistencia y deformación.

Figura 2

Sección del tablero en tramo de luz principal Primer Anteproyecto

Figura 3

Sección del tablero en tramo de luz principal Anteproyecto definitivo

4. 1er modo vertical- 1° Diseño de Anteproyecto – Fr = 1.31 Hz – Tablero Robusto

Figura
Figura 5. 1er modo vertical- 2° Diseño de Anteproyecto – Fr = 1.00 Hz
Tablero Esbelto
Figura 4
Figura 5

Análisis modal de la estructura

Se desarrolla, en base a los planos de proyecto y especificaciones técnicas, un modelo de elementos finitos de la estructura de la pasarela que permita identificar formas modales de vibración, masas modales y frecuencias de vibración de los principales modos. Se busca identificar los parámetros de la dinámica de la pasarela, y comprender qué modos de la misma se encuentran relacionados con una mayor o

menor susceptibilidad dinámica de vibraciones verticales y horizontales al paso de peatones.

Se presentan los primeros modos de vibración que resultan de la modelación.

Para realizar el análisis tiempo-historia de la carga de los peatones se necesitaron en total los primeros 11 modos del modelo numérico, ya que los resultados de los ensayos dinámicos arrojaron valores dentro de ese rango de frecuencias (1.39 Hz a 7.26 Hz).

6

Modelo del Proyecto Ejecutivo elaborado en la revisión independiente

9

Figura
Figura
Forma Modal 6to Modo (modelo numérico) - 4.124 Hz - 1er Lateral con parte Torsional del Tablero en el Tramo Central
Figura 7. Forma Modal del 1er modo (modelo numérico) - 1.337 Hz - 1er Flexional Vertical del Tablero en el Tramo Central Figura 8. Forma Modal 2do modo (modelo numérico) - 1.945 Hz - 1er Torsional del Tablero en el Tramo Central
Figura 7
Figura 8

Tabla 1

Frecuencias de los modos de vibración del modelo numérico propio

Caracterización del peatón y su paso

Participación 0.408

1.64E-07

4.44E-06 0.015

1.40E-08

2.86E-08 0.179 0.073

Tabla 2

Factores de participación modal del modelo numérico propio (Relativos a la masa del tablero y mástil metálico)

Se describe el fenómeno de vibraciones inducidas por peatones, la densidad de peatones a analizar, el fenómeno de lock-in. Se indica la densidad de peatones adoptada para evaluar vibraciones en el proyecto ejecutivo. Se define en forma matemática la carga generada por un peatón y una multitud de peatones

(fuerza periódica dependiente del tiempo). La carga que genera el tránsito de un peatón se ha estudiado en múltiples trabajos y en varias guías de diseño. Se destacan diferencias entre un peatón caminando a los que circulan corriendo. A continuación, se presenta cómo varía en el tiempo la fuerza vertical que una persona produce cuando da un paso, en relación al peso de la persona.

Figura 10

Fuerza vertical para la caminata periódica. Evolución de la fuerza ejercida por un peatón a lo largo del tiempo. En el eje horizontal se mide el tiempo.

lateral de vibración

12

lateral u horizontal para la caminata periódica

La fuerza dinámica producida por una persona al caminar también presenta una componente horizontal. Esta fuerza se produce debido a que el centro de gravedad, no solo varía en la posición vertical, sino también varía lateralmente al dar un paso y luego otro. La amplitud del desplazamiento horizontal generalmente permanece en el rango de 1 a 2 cm.

Pocas investigaciones se han realizado acerca de la cuantificación de la magnitud de la carga horizontal, de las cuales, la gran mayoría se han ejecutado en superficies inmóviles, cuyo valor ha sido estimado en un 10 % de la carga vertical, otros autores proponen el valor de 4 % del peso total del peatón.

Cabe destacar que el confort de los peatones se ve más afectado por las vibraciones horizontales respecto de las verticales. En el caso de las vibraciones horizontales, se puede presentar el fenómeno de la sincronización. La sincronización horizontal se debe a que las fuerzas horizontales aleatorias causan un pequeño movimiento de la pasarela en el sentido lateral, y posteriormente, este movimiento puede provocar que algunos peatones, viendo afectado su

13

Aceleración lateral del puente del Milenio y número de peatones

equilibrio, traten de sincronizar sus pasos con el movimiento de la superficie móvil, ya que el peatón trata de compensar ese movimiento con el balanceo de su centro de gravedad. En el caso de vibraciones horizontales se presenta el fenómeno de lock-in (sincronización completa), donde para un determinado número de peatones se produce, de forma repentina, un aumento de las amplitudes horizontales de vibración. Si la pasarela posee un bajo amortiguamiento, puede haber una excitación con grandes oscilaciones.

Figura 11
Mecánica
Figura
Fuerza
Figura

14

Prueba dinámica de personas caminando sobre la pasarela Pedro e Inés en Coimbra, Portugal Máxima aceleración lateral versus número de peatones

Existen dos tipos de modelos: modelos deterministas y modelos probabilísticos. Los modelos deterministas son modelos sinusoidales de la carga, adoptados en la mayoría de los códigos y publicaciones. Sin embargo, debido a que la carga de los peatones es un proceso aleatorio, también se han estudiado modelos probabilísticos.

Este trabajo se va a centrar solo en los efectos de los peatones sobre la pasarela al caminar, utilizando un modelo matemático en el dominio del tiempo que aproxima la carga de los peatones desplazándose como multitud uniformemente distribuida, o sea, como una carga distribuida con una determinada distribución de personas por m2

Figura

Dicha carga se puede aproximar a una fuerza aplicada sobre el piso en función del tiempo. Son muchos los parámetros que podrían afectar y modificar al valor de esta carga, como la forma de caminar, las características de la estructura o la fisonomía de los peatones; sin embargo, diferentes estudios experimentales han determinado que esta carga se aproxima a una fuerza periódica caracterizada por un parámetro fundamental: la frecuencia de paso, entendida como:

Cuando un peatón camina, existe un contacto continuo con el suelo, sin embargo, cuando corre, dicho contacto es discontinuo e interrumpido porque existen instantes donde los dos pies permanecen en el aire. Los rangos de frecuencia de personas caminando o corriendo son los siguientes:

La frecuencia de paso puede ser descripta mediante una distribución normal de media 2 Hz y en torno a 0,20 Hz de desviación estándar. Cuando una persona camina lento, su frecuencia de paso es de 1.4 - 1.7 Hz, por lo contrario, cuando una persona camina rápido, su frecuencia de paso es de 2.2 - 2.4 Hz. La frecuencia lateral permanece en el rango de 0.71.2 Hz al estimarse que la componente lateral de la fuerza se aplica a la mitad de la frecuencia de paso. En la siguiente Figura se muestra, como ejemplo, en el dominio de las frecuencias, los armónicos 1 y 3 de la carga peatonal lateral.

Figura 15

Funciones de densidad espectral de potencia de una media experimental y 95% SF(f) de la carga peatonal ejercida sobre una superficie estática expresada independientemente de la frecuencia del peatón

La función periódica que describe la carga ocasionada F(t) por un peatón puede ser resuelta mediante una Serie de Fourier donde existe una parte constante incrementada por una suma de fuerzas armónicas. Esto es, el efecto de los peatones sobre una superficie rígida puede ser definido en base a modelos de cargas armónicas.

(1)

Cabe aclarar que cuando se analiza el paso de una multitud de peatones con cierta densidad de personas por metro cuadrado, se considera el fenómeno de vibración en un estado de régimen estacionario, donde la carga es uniforme en toda la superficie cargada con peatones, y la densidad de peatones es baja, al omitirse la interacción entre los peatones. En este trabajo, se van a obtener los resultados de aceleración para carga de peatones analizada en el sentido vertical y horizontal para las siguientes densidades de peatones: 0.02 p/m2, 0.10 p/m2, 0.20 p/m2 y 0.50 p/m2 mediante un análisis Historia-TiempoModal. Se analizan dos situaciones: cuando las cargas están sincronizadas y cuando no lo están. En el caso sincronizado, la carga resulta proporcional al número de peatones n. En el caso no sincronizado, la carga resulta proporcional a la raíz cuadrada del número de peatones n.

Según la ISO 10137, las fuerzas periódicas vertical y horizontal se definen como:

Donde Q, es el peso de un peatón.

Se adopta Q igual a 70 kg. Los coeficientes alfa se indican a continuación.

La respuesta se analiza para una frecuencia vertical fv de paso de 2 Hz, y una frecuencia horizontal fh de paso de 1.2 Hz.m.

El momento de la respuesta estudiada se indica, por medio de un ejemplo, a continuación:

Figura 16

Momento del tiempo en el cual se realiza el análisis

Historia-Tiempo Modal

Figura 17

Historia de la variación de la carga distribuida de los peatones en el tiempo. Dirección Vertical – Tiempo graficado = 2 segEl Δt adoptado es: 0,01 seg – Carga distribuida en kg/m2 –

Caso de carga sincronizada – Densidad peatonal de 0.50 p/m2 – Frecuencia de peatones 2 Hz

Figura 18

Historia de la variación de la carga distribuida de los peatones en el tiempo. Dirección Horizontal – Tiempo graficado = 2 seg

- El Δt adoptado es: 0,01 seg – Carga distribuida en kg/m2 –

Caso de carga sincronizada – Densidad peatonal de 0.50 p/m2 – Frecuencia de peatones 1.2 Hz

Figura 19

Historia de las aceleraciones verticales en tramo principal correspondiente al anclaje del Cable 4 –Dirección Vertical – Frecuencia promedio del paso F= 2.0 Hz - Carga sincronizada – Densidad peatonal de 0.50 p/m2. Valor máximo de aceleración vertical 1.48 m/seg2

Figura 20

Historia de las aceleraciones horizontales en tramo principal correspondiente al anclaje del Cable 4 –Dirección Horizontal – Frecuencia promedio del paso F= 1.2 Hz - Carga sincronizada – Densidad peatonal de 0.50 p/m2. Valor máximo de aceleración horizontal 0.54 m/seg2

Rango de frecuencias de susceptibilidad dinámica al paso de peatones

Se analizan las frecuencias naturales del anteproyecto y proyecto ejecutivo (que resultan fuera del rango de susceptibilidad).

La frecuencia natural de las pasarelas varía dependiendo del material, las condiciones de apoyo, luces y características de la sección. Sin embargo, en la bibliografía se indica que la mayo-

ría de las pasarelas presentan una frecuencia vertical en el rango de 1.4 - 2.4 Hz y frecuencia horizontal de 0.7 - 1.2 Hz. Por lo tanto, se observa que las frecuencias al caminar pueden igualar los rangos de la frecuencia natural de las pasarelas, existiendo el riesgo de oscilaciones excesivas. Desacoplar las frecuencias naturales de la pasarela con la de los peatones es la premisa básica para el diseño confortable por cargas dinámicas de peatones.

Los efectos de los peatones son definidos en base a modelos de cargas armónicas. La contribución del primer armónico guía al rango de frecuencias naturales fi:

Para vibraciones verticales y longitudinales:

1.25Hz ≤ fi ≤ 2.3Hz

Para vibraciones laterales:

0.5Hz ≤ fi ≤ 1.2Hz

Para los casos donde las frecuencias naturales se ubican en un intervalo susceptible de excitación debido al segundo armónico provocado por los peatones, la zona crítica se expande a:

1.25Hz ≤ fi ≤ 4.6Hz

Por lo tanto, si nuestra estructura en estudio presenta frecuencias naturales fi en el rango crítico, la misma debe ser sometida a una evaluación dinámica debido a la excitación de los peatones. Hasta ahora no se ha encontrado indicio en la literatura respecto a que la vibración provocada por el segundo armónico de los peatones haya producido algún valor significativo,

pero tampoco se podría descartar hasta no probar lo contrario.

Se diferencian cuatro clases de pasarelas en función del nivel de tráfico que soportan.

• Clase I: Pasarela de conexión entre áreas de gran densidad de población, muy frecuentemente transitada y/o por multitudes que ocupen simultáneamente toda o casi toda la zona de tránsito.

• Clase II: Pasarela de conexión entre áreas bastante habitadas que puede ocasionalmente encontrarse sometida al tránsito de multitudes que ocupen simultáneamente toda o casi toda la zona de tránsito.

• Clase III: Pasarela de conexión estándar, puede ser ocasionalmente ocupada por grandes grupos de peatones, pero nunca se verá ocupada simultáneamente toda la zona de tránsito.

• Clase IV: Pasarela de uso poco frecuente, únicamente para comunicar zonas poco habitadas o asegurar la continuidad de la conexión entre áreas pobladas.

En nuestro caso estamos en presencia de una pasarela de Clase II, donde se debieron determinar, en etapa de Anteproyecto o Proyecto Ejecutivo, las frecuencias naturales de los modos de vibración.

Se verifica que las frecuencias del primer modo vertical y primer modo horizontal no se encuentren dentro del rango crítico de susceptibilidad dinámica al paso de peatones, cumpliendo con el criterio propuesto por SETRA (Service D’études Techniques des Routes et Autoroutes) para una verificación en servicio de la estructura al paso de peatones.

Resultado de ensayos dinámicos de campo

Se registraron frecuencias del tablero en base a ensayos dinámicos sobre la pasarela, en enero 2024. Los registros fueron realizados sobre el tablero en correspondencia con la ubicación de los anclajes inferiores de los cables, sobre la luz principal de la pasarela. La designación CPE1, corresponde al anclaje próximo al Pilón, y CPE6, al más alejado.

Figura 21 Frecuencias verticales y horizontales

Sección

Ensayo - Carga

Valores de las frecuencias de vibración de los principales Modos

Frecuencia [Hz]

Tabla 3

Valores de las frecuencias de vibración de los principales Modos Mediciones realizadas en enero de 2024

Se pudieron medir los amortiguamientos de los primeros modos de vibración utilizando los registros obtenidos en el tablero en coincidencia con la sección de anclaje de los obenques CPE5. Se ejecutó el cálculo de la relación de amortiguamiento por decremento logarítmico en el dominio de la frecuencia para los primeros 4 modos de vibración identificados e informados en los ensayos.

Modo 4

Prueba

Promedio

Canal

Para tener como referencia de comparación, se muestran en la siguiente Tabla los valores más comunes de porcentaje de amortiguamiento crítico en las estructuras según los materiales con los cuales se construyen.

A continuación, se propone un análisis de los modos obtenidos por modelación y su identificación en el espectro de respuesta vertical obtenido por mediciones de campo. Algunos modos no son informados, pero se pueden apreciar en el espectro por sus picos de respuesta. Los que tienen componente horizontal, no se pueden ver, ya que el espectro de velocidades del informe de ensayos es para movimientos verticales. Se identifican los 4 modos medidos e informados en los ensayos:

Tabla 4

Valores de las frecuencias de vibración de los principales Modos Mediciones realizadas en enero de 2024

Tabla 5

Valores típicos del amortiguamiento estructural

Mediciones en campo. Aceleraciones máximas esperables en proyecto. Nivel de confort esperable en proyecto

En los documentos del proyecto ejecutivo facilitados por Vialidad Provincial, la frecuencia del 1er modo se determinó en 0.96 Hz, a través del modelo numérico que elaboraron en la etapa de proyecto para tal fin.

Cuando se llevaron a cabo las mediciones de campo por parte de Vialidad Provincial antes de su habilitación al público, con pequeñas excitaciones, la frecuencia del 1er modo flexional vertical resultó en 1.40 Hz, una diferencia del 46 % con la de proyecto. Como parte del presente trabajo, se investigó porqué había una diferencia entre la frecuencia modelada en la etapa de proyecto, la modelada por esta revisión independiente en forma simplificada, ambas en el orden de 1 Hz, y la medida en los ensayos dinámicos, del orden de 1.40 Hz (comprobada por nuestras mediciones). Esta diferencia se redujo al incorporar la rigidez aportada por el revestimiento de chapa inferior del tablero y sus perfiles de fijación, más la chapa perdida para el encofrado del tablero. La frecuencia del 1er modo flexional medida tiene consistencia con un ajuste del Módulo Elástico del Hormigón del tablero, en un valor de 450.000 kg/cm2 (Ref: H- 30 para losa del tablero), compatible con el módulo elástico tangente en el origen para pequeñas variaciones de tensiones.

Esta diferencia, en base a los resultados de campo, llevó a Vialidad Provincial a efectuar una evaluación dinámica del proyecto terminado, empleando el valor medido de la frecuencia del 1er modo de 1.40 Hz, para una densidad de peatones de 0.50 peatones/m2. Obtuvo por cálculo una aceleración vertical máxima en el punto de mayor desplazamiento de 1.90 m/ seg2, correspondiente a un nivel de confort Clase CL3, que es el valor mínimo de confort, con un rango de aceleraciones verticales límites ubicado entre 1.50m/seg2 y 2.50 m/seg2

Figura 22

Frecuencia del primer modo flexional vertical del tablero Imagen del modelo numérico de proyecto Información facilitada por Vialidad Provincial

Figura 23

Elementos no estructurales tenidos en cuenta para ajustar el 1er modo de vibración flexional vertical del tablero

Figura 24

Geometría del tablero modelada por los autores

Valores de aceleraciones verticales mayores a 2.50 m/ seg2 resultan inaceptables.

Con respecto a la masa de los peatones, HIVOSS (abreviatura de Vibraciones inducidas por humanos en estructuras de acero) recomienda considerar la masa de peatones al determinar las frecuencias naturales, pero sólo si la masa de peatones es mayor al 5 % de la masa modal estructural. En este caso se puede despreciar.

Se muestran a continuación las frecuencias de los modos obtenidos en la modelación propia (sin elementos no estructurales que rigidizan la estructura) y la del proyecto.

En los documentos del proyecto ejecutivo facilitados por Vialidad Provincial, la frecuencia del 1er modo se determinó en 0.96 Hz, a través del modelo numérico que elaboraron en la etapa de proyecto para tal fin.

Figura 25

Resultados Modelo propio Sin elementos no estructurales que rigidizan la estructura

Figura 26

Resultados Modelo Proyecto Ejecutivo Información facilitada por Vialidad Provincial

Análisis de sensibilidad

Para contar con una referencia sobre qué se quiere representar al hablar de distintas densidades de circulación de peatones, se muestran a continuación la siguiente tabla e imagen:

Clase de Tráfico

TC1

Densidad d (p=persona)

Grupo de 15 p; d = 15 /L B

TC2

d = 0,2 p/m2

TC3

d = 0,5 p/m2

Descripción Imagen

Muy poco tráfico

Poco tráfico

Tráfico denso

TC4

d = 1,0 p/m2

TC5

d = 1,5 p/m2

Tráfico muy denso

Tráfico demasiado denso

Características

B = ancho de la superficie L =largo de la superficie

Caminata libre y cómoda, es posible rebasar, cada peatón puede elegir su ritmo de caminata

Tráfico significativamente denso, caminata no restringida, se puede rebasar de forma intermitente

Caminata libre restringida, situación incómoda, rebasar no es posible

Caminata desagradable, se forman multitudes, nadie puede elegir su ritmo de paso

Tabla 6

Referencia de densidades de peatones para diferentes situaciones de tráfico

Figura 27

Referencia de densidades de peatones Guía para el diseño de pasarelas, FIB 2005

Niveles de confort

La evaluación de la vibración horizontal y vertical de una pasarela incluye muchos aspectos “flexibles” como:

• Número de personas que caminan sobre el puente;

• Frecuencia de uso;

• Altura sobre el suelo;

• Posición del cuerpo humano (sentado, de pie, caminando);

• Características de excitación armónicas o transitorias (frecuencia de vibración);

• Tiempo de exposición;

• Transparencia del pavimento del tablero y de la barandilla;

• Expectativa de vibración debido a la apariencia del puente.

Para evaluar el confort en la presente pasarela se va a emplear el criterio de aceleraciones máximas según

rangos de aceleración definidos por HIVOSS y SETRA. En general, existen tres niveles de comodidad: comodidad máxima, comodidad media, comodidad mínima. Estos tres niveles o rangos se consideran aceptables. Hay un 4to rango inaceptable que genera malestar en las personas.

Los resultados de los niveles de confort obtenidos para aceleraciones verticales y horizontales en el tramo principal se muestran a continuación en las siguientes Tablas.

Para ver en forma amplia, y no puntualmente, cómo se comporta el tablero de la pasarela en su luz principal, se eligieron los mismos puntos donde se tomaron los registros para los test dinámicos, a fin de obtener los resultados de las aceleraciones verticales y horizontales. Estos puntos permanecen en correspondencia con la ubicación de los anclajes inferiores de los cables, sobre la luz principal de la pasarela. La designación 1, se refiere al anclaje del cable más próximo al Pilón, y 6, al más alejado.

Aceleraciones máximas aceptables recomendadas por HIVOSS y SETRA

Tabla 7
Tabla 8
Aceleraciones verticales en tramo central

9

Aceleraciones horizontales en tramo central

Campaña de medición de aceleraciones del tablero por circulación controlada de peatones

En base a los resultados obtenidos de aceleraciones verticales y horizontales en el tramo principal, se va a programar una campaña de medición con circulación de peatones en forma controlada.

CONCLUSIONES

- Los resultados de la modelación calibrada en esta revisión independiente mostraron que se ajusta a las observadas en las mediciones de campo existentes en la bibliografía disponible para tránsito con densidad normal de peatones. Esto es acorde a la densidad esperada en un espacio de recreación entre parques, donde no se estima concentración de personas en tránsito de una hacia otra orilla.

- Los niveles de aceleraciones obtenidos mediante el análisis modal Tiempo-Historia, tanto verticales como horizontales cumplen con los criterios de nivel de confort aceptable. En ninguna situación de peato-

nes caminando, con y sin sincronización, se superan aceleraciones verticales de 2.50 m/seg2 y horizontales de 0.80 m/seg2

- Las etapas de Anteproyecto y Proyecto Ejecutivo cumplieron con el criterio de diseño de pasarelas frente a situaciones de servicio de vibraciones inducidas por personas. En ambos diseños se verificó que la frecuencia natural principal de flexión vertical y lateral no se encuentran en los rangos de frecuencia crítica. Por lo tanto, no fue necesario llevar a cabo un análisis dinámico. Este se dio por terminado según lo indican los criterios internacionales.

- Se observó que la frecuencia natural del primer modo, medida en los ensayos dinámicos sobre la pasarela terminada, era de 1.40 Hz. La frecuencia del mismo modo obtenida en etapa de proyecto fue de un valor cercano a 1 Hz. Similar frecuencia se obtuvo en la presente revisión independiente para un modelo simplificado del tablero.

- Esto nos llevó a investigar qué generaba esta diferencia de frecuencias. El aporte de rigidez de las chapas de encofrado perdido del tablero, la chapa de

Tabla

piel que envuelve el emparrillado del tablero por debajo y los perfiles de fijación, junto con un ajuste del módulo en 450.000 kg/cm2, explicaron la diferencia con un error menor al 5 %.

- Los modos 1 y 4 (primero y segundo modo flexional vertical medido en test dinámicos con Fr=1.39 y Hz Fr=2.74 Hz, respectivamente) son modos verticales calibrados en este trabajo. Las aceleraciones resultantes por la excitación de estos modos serán percibidas nítidamente por los peatones si cruzan en un grupo multitudinario y se proponen caminar al ritmo de estos modos de oscilar (participación modal del tablero del 40 % para el primero y de 1.50 % para el cuarto). Esto, llevaría a suponer un uso malintencionado del puente por parte de un importante grupo de personas, por caso, barras bravas de algún equipo que consideren divertido hacer balancear al puente. Por ello, se presenta una cartelería la cual indica expresamente la prohibición de saltar en grupo. Los puentes esbeltos se diseñan para la franja de actividad normal del sector, como recrear la vista al circular por él. La de peatones exaltados no es bienvenida, ni está prevista en este tipo de pasarelas. Si este hecho sucediera, desagradable para los usuarios normales, no lograrían dañarlo a partir del indebido uso, aunque si excitarlo en forma visible.

BIBLIOGRAFÍA

(1) Alternativas para mitigar excesivas vibraciones en puentes peatonales, José Gerardo Rangel Banda. (2) Análisis de las vibraciones en puentes peatonales y determinación del nivel de confort para los peatones, Nicolás Daniel Córdoba Acosta.

(3) A Review of Evaluation Methods of Standards for Structural Vibration Serviceability under Crowd Walking; Jiecheng Xiong, Zhihao Liu, Shuqian Duan and Hui Qian.

(4) Assessment of the Lateral Vibration Serviceability Limit State of Slender Footbridges Including the Postlock-in Behaviour, R. García Curvas.

(5) Crowd Safety and Crowd Risk Analysis, Keith Still.

(6) Design of Footbridges against PedestrianInduced Vibrations, F. Ricciardelli.

(7) Design of Lightweight Footbridges for Human Induced Vibrations, Christoph Heinemeyer.

(8) Modelling Spatially Unrestricted Pedestrian Traffic on Footbridges, Stana Zivanovic et al.

(9) European Design Guide for Footbridge Vibration, Christoph Heinemeyer.

(10) NCHRP 20-07 TASK 244 -LRFD guide Dynamic Analysis of Pedestrian Load Models for Footbridges, Anders Mårtensson.

(11) Pedestrian-induced lateral vibrations of footbridges: A literature review - E.T. Ingólfsson.

(12) Specifications for the design of pedestrian bridges.

(13) Technical guide Footbridges Assessment of vibrational behaviour of footbridges under pedestrian loading – Service D’études Techniques des Routes et Autoroutes (Sétra).

(14) Vertical Vibrations of Footbridges Due to Group Loading: Effect of Pedestrian–Structure. Interaction, Paweł Hawryszków.

(15) Vibration Behaviour of Pedestrian Bridges with Different Construction Systems, Hassan Mazloum. _

Te invitamos a leer las ediciones de Revista IE, publicación de la Asociación de Ingenieros Estructurales para la divulgación e información sobre temáticas científicas y técnicas, en el siguiente link https://issuu.com/asociaciondeingenierosestructurales

340 MIL

BARRILES DE CRUDO SE PROCESARÁN DIARIAMENTE, PRODUCIENDO ASÍ 170 MIL BARRILES DE GASOLINA

Refinería Olmeca Dos Bocas, Paraíso, Tabasco Construimos cinco plantas de proceso y servicios auxiliares, contribuyendo en el presente y futuro energético de México.

Turn static files into dynamic content formats.

Create a flipbook
Issuu converts static files into: digital portfolios, online yearbooks, online catalogs, digital photo albums and more. Sign up and create your flipbook.