DESIGN 7: HABI - Redefining Tutuban's Economic and Environmental Identity| Part 2

Page 1

HABI

Redefining Tutuban's Economic and Environmental Identity

Part II

TUTUBAN MIXED USE

Commercial buildings serve as a platform for the country's advertisements. while providing public spaces where people may work, shop, interact, and unwind.

Half of the facade will be a space for local brand advertisements promoting to support local products that our country can offer. Since Filipinos are known to be a religious race, in the commercial building' rooftop, the designers provided a space for church in order for people to not need to go outside the community to express their faiths.

N LOCAL RETAIL & DEPARTMENT STORE 001 Ingress w/ Plaza 002 Ingress 003 Lounge 004 Open Area/Interior Park 005 Department Store 006 Local Retail Store 007 Public Toilet 008 Fire Exit 009 Staff Room 010 Service & Utility Area 011 Service Parking 012 Pedestrian 013 Bookstore 014 Elevator 015 Service Elevator 016 Customer Parking 017 Drug Store 003 003 004 001 002 012 013 005 007 007 007 008 008 008 008 008014 006 006 006 006 006 006 006 016 011 010 009 015 011 009 006 014 017
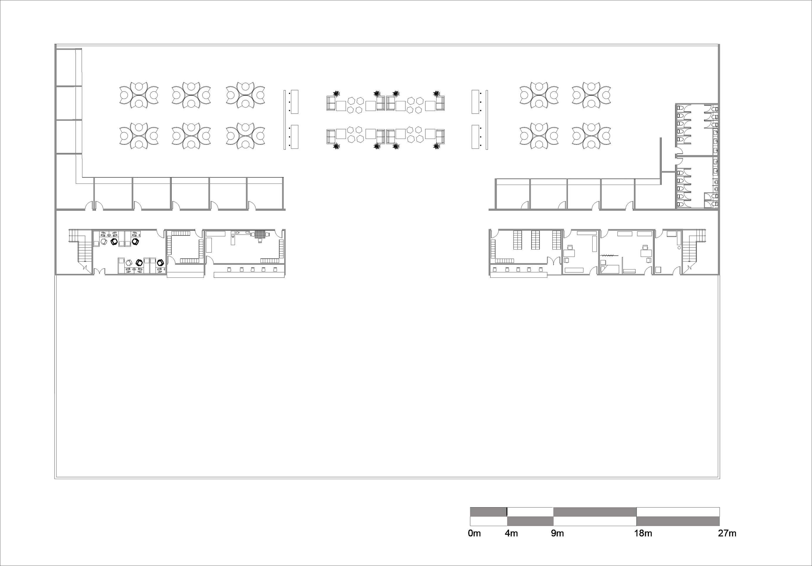
N 001 Open Below 002 Food Court 003 Lounge 004 Escalator 005 Local Retail Store 006 International Retail Store 007 Public Toilet 008 Fire Exit 009 Staff Room 010 Balcony 011 Pedestrian 012 Elevator 013 Service Elevator 014 Mini Stalls 001 003 002 011 006 004 004 008 008 008 008 007 007 008 009 009 009 013 009 008 012 012 007 003 010 005 005 006 005 006 005 006 005 006 005 006 005 005 006 005 006 006 014 014 014 014 014
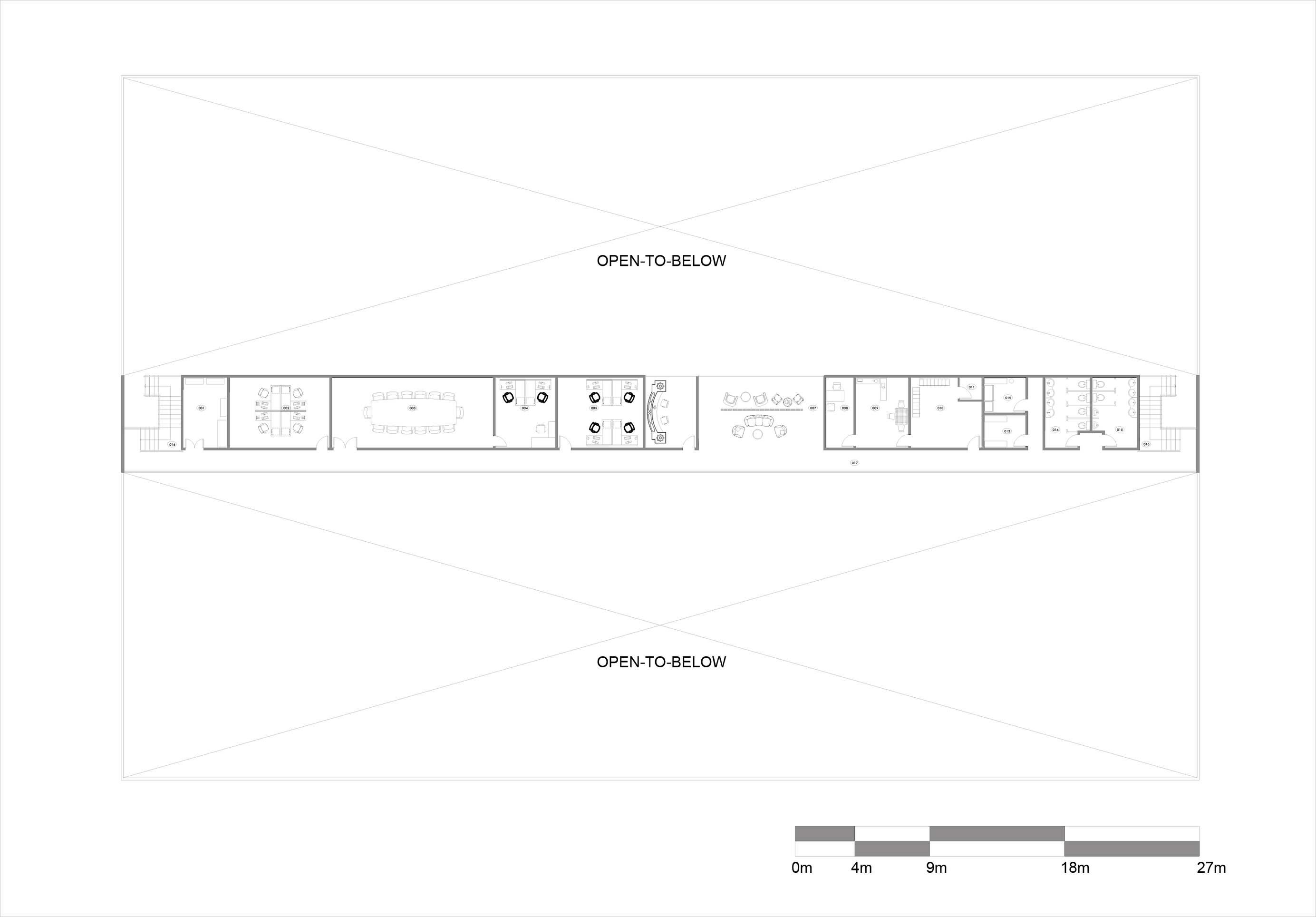
N REANTABLE SMALL BUSINESS OFFICE 001 Escalator 002 Lounge 003 Reception 004 Cafeteria 005 Rentable Office Room 006 Public Restroom 007 Fire Exit 008 Elevator 009 Administration & Security 001 002 009 008 005 005 005 005 005 005 005 005 004 007 007 006 003 005

FRONT ELEVATION

REAR ELEVATION

RIGHT SIDE ELEVATION

LEFT SIDE ELEVATION

PHILIPPINE NATIONAL RAILWAY

TUTUBAN STATION

Since the PNR Station is actually one of the highlights of the current Tutuban making it a famous place to shop and bond with the peers and family, the designers made sure that the redevelopment prioritizes the redevelopment of PNR Tutuban Station. They change the area into a bigger space that can cater more passengers waiting and onboarding, providing food stalls for passengers to have a snack if they want to and creating a more spacious environment for more proper ventilation of the area. The designers also provided design elements such as Luggage room to store luggages, Charging stations, Vending machines, Map board stand, Phone booth, Guide and information displays, and ATM. The waiting area is also 'not your typical' one, it is also a food court that has lounges to make waiting more relaxing for passengers.

001 Entrance 002 Concourse 003 Ticketing Gate 004 Stairs 005 Administration 006 Lost and Found 007 Ticketing Counter 008 Luggage Storage 009 Inspection Room 010 Aid Room 011 Utility Room 012 Food Stalls 013 Dine Area 014 Lounge 015 Charging Station 016 Passenger Corridor 017 Fire Exits 001 004 006 007 008 009 010 015 002 003 011 014 017 003 005 012 012 013 013 015 016 017 PNR STATION GROUND LEVEL
001 Open-to-Below 002 Stairs 003 Electrical Room 004 Engineering Department 005 Meeting Room 006 Research Room 007 Postal Room 008 Security Room 009 Lounge Area 010 Manager's Room 011 Staff Pantry 012 Staff Locker Room 013 Utility Room 014 Storage Room 015 Women's Restroom 016 Men's Restroom 001 001 002 003004 005 006 007 008 009 010 011 014 012 016 002 001 013015 PNR STATION SECOND LEVEL

FRONT ELEVATION

LEFT SIDE ELEVATION

REAR ELEVATION

TUTUBAN IN FUTURE WITH THE PROPOSED DESIGN

The Concept of Redefining Tutuban is from its objective of changing everyone’s perspective about it. The future is something we create so the team makes sure that they have a vivid vision of the future of Tutuban. The design aims to create more jobs for people and create an aesthetic and functional community. In the future, the design could also promote redevelopment and influence other communities to redevelop as well. This project could also make Tutuban a potential tourist spot that can contribute to the economy of the country. Since the team has also provided a specific area for police stations and fire stations, there will be a potential decrease in community crimes and the people will feel safe knowing that there are authorities that could protect them. As the designers redevelop the place, they also aim to redefine it and change ideas that people have about Tutuban. From a chaotic and messy place, with no order and things are random, they organized, planned, shared their thoughts, and combined their ideas to make Tutuban a community that has an order, uniformity, and functionality.

HISTORICAL RESEARCH

Chinatown Museum, September 2022

HISTORICAL RESEARCH

National Library & National Historical Commission of the Philippines, September 2022

SITE INVENTORY Tutuban, Septembet 2022

SITE OCULAR VISIT

Tutuban, September 2022

PROJECT CONCEPTUALIZATION

Tutuban, November 2022

ALCABA, GUAL

Maray na aldaw! I am Gual Alcaba, a National Chair, Committee on Ways and Means of United Architects of the Philippines UAPSA Nationals and Executive Director of Ways and Means at the National University of Manila. I am willing to understand the perspective and different layers of Architecture.

This Design 7 welcomes me to other perspectives and insights in interpreting and translating concepts into visualizations. This technique taught me to become more observant of how powerful the elements and visuals affect the entire board. This subject guides me to do better in oral presentations and organizing my time.

This project entitled "HABI" enlightens me on Transit-Oriented Development and Sustainable Development Goals which encourage me to become more sustainable in designing my future projects. It provides knowledge and inspiration to other Architecture students who will visit and study our research and project conceptualizations. It might not be as perfect as others, but viewers will nurture the knowledge of what we have understood and learned during our time doing this.

This will be my training ground in designing massive and bigger scale. It showcases the importance of small details which has a large impact on the whole project.

There are always positive things in a negative side.

DESIGNERS' PAGE

ANCHETA, JAESON

Mabuhay! My name is Jaeson Ancheta, a passionate and determined architecture student from Subic, Zambales. Entering this track was not my first choice and was not even on my list, but eventually, I learned to enjoy and love my journey in this course.

Being able to work with my former group mates from Design 4 gave me ease in collaborating and brainstorming with our endless ideas. On the other hand, I am beyond grateful for having an opportunity to be guided by Ar. Claudia Montero who allotted her time imparting her knowledge to us.

Transit- Oriented Development project introduced me to a lot of new things to learn and allowed me to explore urban planning. For the past three months, I can proudly say that I have improved in different aspects such as giving solutions to every problem, considering others' ideas, and working with enthusiasm every time. The skills and knowledge that I have earned here in this course will surely help me improve and develop new ideas for solving every architectural design problem as I continue to take this program.

DESIGNERS' PAGE

BOLGA, ANA MARIA

Hello, I’m Ana Maria Bolga, an outgoing person with a strong personality. I grew up in the City of Manila. I may not be the best for now but I am building myself to become an architect I aspire to be. I'm known as the one who always procrastinates but with this studio I feel like I wanted to always do more and excited about each output we're making. The eagerness in me awaken by how great our group works to make the best result. The result make me tell myself that all those sleepless nights are worth it and I'm also grabbing all the opportunities that I can benefit from and would result to a better executions of the designs.

Design 7 have taught me so much things about redeveloping a community. I shared all my thoughts and ideas in order for me to express myself in our design. Digging so much about the site and making all these things possible made me feel assured that "Yes we can" and little by little we are trying our best to create the best designs we have collaborated about. It's great to witness our individual growth and it's a really great experience to get to know more about my team and myself through this project.

This Project really changed my perspective about community development. It's complex yet exciting, we applied our individual perspectives on how a community should provide all the necessary things its residents need. With this output, we have provided our solutions by designing a community that has it all. Not just an aesthetically pleasing place but a functional one. As a member of the group, we built a relationship that became irreplaceable. And All the learnings and takeaways I’ve got made me grow as an architecture student. I am looking forward to incorporating all these into making my own designs.

DESIGNERS' PAGE

ESTOCE, PAULINE BERNADETTE A.

HALUUU! I am Pauline Estoce, a 21-year-old architecture student whose devotion burns through every hurdle. An Executive Director for Press Relations of United Architects of the Philippines UAPSA NU. I've been an officer of this organization since my freshman year. I like to try or explore everything because I know I can learn and experience more things. They always said that I am "palong palo" in everything; even though the deadline is still far away, I am already planning what to do. I admit that I am competitive in everything, especially academics. I just avoid cramming and spend a lot of time doing that task to prepare better and have a good result.

I can say that this Design 7 subject is the most memorable and my favorite design because it gives me a lot of new perspectives and characters of architecture and how you can tell the story of your work. from the layout, visualizing, planning, designing, oral presentation, and solving problems this subject has taught me.

The project "HABI" became very difficult for us but at the same time exciting. it gives us more knowledge and awareness of the transportation we have in our country or our transit-oriented development. as we observe and open our eyes to the real situation of our country because of our poor transportation system, it encourages me to inspire young people through this design.

This project and journey opened my eyes to new perspectives and goals for the community. I'm sure that everything I learned in this journey and project will be incorporated in my future designs and projects.

DESIGNERS' PAGE

PONCE, CHARMAINE

Hi, I’m Charmaine Ponce, 21 years old a fourth-year architecture student who is currently completing Design 7 as part of my journey to become an Architect someday. I'm part of an architectural organization as a Director of Way and means of United Architects of the Philippines UAPSA NU. As I continue this path of career it gradually made me realize that Architecture not just a is a passion, a vocation, or a business. It takes courage to practice architecture because it will provide commodity and delight that could serve the community to build a better and livable place.

The Design Project helps me to develop my skills in conceptualizing and exchanging ideas as it set off a tremendously special endeavor for me in ways that have never previously occurred. Our group visited our site in Tutuban to learn its information and its history. With those analysis, we were able to further understand how we are going to plan and design the redevelopment of the area. I learned to be more aware of how the pieces and visuals influence the entire board using this technique. This topic helps me plan my time more effectively and perform better in oral presentations.

This project, "HABI," educates me on transit-oriented development and Sustainable Development Goals, which motivates me to design my future projects in a more sustainable manner. We have presented our solutions in this output by creating a community that offers everything. Not only beautiful in appearance but also useful. We developed a bond with the others in the group that was indescribable.

DESIGNERS' PAGE

National University - Manila College of Architecture

Architectural Design 7

HABI

Redefining Tutuban's Economic and Environmental Identity through a Proposed Redevelopment Community

Tutuban District, Manila

Ar. Claudia Isabelle Montero Professor

Turn static files into dynamic content formats.

Create a flipbook
Issuu converts static files into: digital portfolios, online yearbooks, online catalogs, digital photo albums and more. Sign up and create your flipbook.