Portafolio Urbano | Arlette Pilapaxi

Page 1

portafolio

ARLETTE PILAPAXI

Itinerario Urbano I

NACIONAL AUTÓNOMA DE MÉXICO

UNAM NACIONAL AUTÓNOMA DE MÉXICO

Al analizar la zona

Al analizar la zona en donde se desenvuelve

ACTIVIDADES LA UNAM NACIONAL AUTÓNOMA DE MÉXICO ACTIVIDADES

LA UNAM NACIONAL AUTÓNOMA DE MÉXICO ACTIVIDADES

Al analizar la zona en donde se desenvuelve la

Universidad Nacional Autónomma de México, determina la existencia de varios clusters principal mente de espacios comerciales como restauran tes y tiendas, además cuenta con varias zonas

Al analizar la zona

Universidad Nacional determina la existencia mente de espacios

Universidad Nacional Autónomma de México, determina la existencia de varios clusters principal mente de espacios comerciales como restauran

Universidad Nacional determina la existencia mente de espacios tes y tiendas, además residenciales para áreas verdes por

Al analizar la zona en donde se desenvuelve la Universidad Nacional Autónomma de México, determina la existencia de varios clusters principal mente de espacios comerciales como restauran tes y tiendas, además cuenta con varias zonas residenciales para estudiantes, asi como grandes áreas verdes por la presencia de reservas ecológi MÉXICO

Al analizar

Al analizar la zona en donde se

UNIVERSIDAD TÉCNICA
| FACULTAD DE
Y ARQUITECTURA
DE AMBATO
DISEÑO
MÉXICO
residenciales para estudiantes, asi como grandes UNAM LA UNAM NACIONAL AUTÓNOMA DE MÉXICO DE LA UNAM NACIONAL AUTÓNOMA
DE MÉXICO
ACTIVIDADES DE
AUTÓNOMA
MÉXICO
DE MÉXICO
LA UNAM
Al Universidad determina
ACTIVIDADES
MÉXICO

PARK se principalrestauran-

desenvuelve la México, se principalrestauranzonas grandes

en donde se desenvuelve la Nacional Autónomma de México, se existencia de varios clusters principalcomerciales como restauran-

zona en donde se desenvuelve la Nacional Autónomma de México, se existencia de varios clusters principalespacios comerciales como restauranademás cuenta con varias zonas para estudiantes, asi como grandes la presencia de reservas ecológianalizar la zona en donde se desenvuelve la Universidad Nacional Autónomma de México, se determina la existencia de varios clusters principal-

se principalrestaurangrandes ecológianalizar la zona en donde se desenvuelve la desenvuelve la

SKATE

01. EJERICICIO 01: Análisis del sitio de estudio.

02. EJERCICIO 02: Diagnostico zona de estudio y FODA.

03. EJERCICIO 03: Referentes - Benchmarking Urbano

04. EJERCICIO 04: Manifiesto y Visión

05. PANEL 02: Estrategias y Criterios de Diseño

06. PANEL 03: Diseño Multiescalar

07. PANEL 04: Intervención Puntual

CIUDADES CIUDADORAS REPENSANDO LA CIUDAD DEL FUTURO
ÍNDICE
ARLETTE PILAPAXI | ITINERARIO “A” | CARRERA DE ARQUITECTURA

ANÁLISIS DEL SITIO DE ESTUDIO

- Plano Nolli: Llenos y Vacíos

- Áreas verdes Naturales

- Radio de Influencia Zonas Verdes

- Visuales y Atractivos

01. EJERCICIO 01
CIUDADES CIUDADORAS REPENSANDO LA CIUDAD DEL FUTURO | 01. ANÁLISIS DEL SITIO DE ESTUDIO ARLETTE PILAPAXI | ITINERARIO “A” | CARRERA DE ARQUITECTURA
CIUDADES CIUDADORAS REPENSANDO LA CIUDAD DEL FUTURO | 01. ANÁLISIS DEL SITIO DE ESTUDIO ARLETTE PILAPAXI | ITINERARIO “A” | CARRERA DE ARQUITECTURA
CIUDADES CIUDADORAS REPENSANDO LA CIUDAD DEL FUTURO | 01. ANÁLISIS DEL SITIO DE ESTUDIO ARLETTE PILAPAXI | ITINERARIO “A” | CARRERA DE ARQUITECTURA

DIAGNÓSTICO ZONA DE ESTUDIO | FODA

- Análisis Factores Externos

-Fortalezas y Debilidades

- Análisis Factores Internos

- Oportunidades y Amenazas

CIUDADES CIUDADORAS REPENSANDO LA CIUDAD DEL FUTURO | 01. ANÁLISIS DEL SITIO DE ESTUDIO ARLETTE PILAPAXI | ITINERARIO “A” | CARRERA DE ARQUITECTURA
EJERCICIO
02.
02
CIUDADES CIUDADORAS REPENSANDO LA CIUDAD DEL FUTURO | 02. FICOA | ANÁLISIS INTERNO ARLETTE PILAPAXI | ITINERARIO “A” | CARRERA DE ARQUITECTURA
CIUDADES CIUDADORAS REPENSANDO LA CIUDAD DEL FUTURO | 02. FICOA | ANÁLISIS EXTERNO ARLETTE PILAPAXI | ITINERARIO “A” | CARRERA DE ARQUITECTURA

03. EJERCICIO 3

REFERENTES | BENCHMARKING URBANO

- Análisis Escala 5 x 5 km

- Análisis Escala 1 x 1 km

- Análisis Escala 100 x 100 m

- Implementación Contexto Inmediato

CIUDADES CIUDADORAS REPENSANDO LA CIUDAD DEL FUTURO | 03. ANÁLISIS DE REFERENTES | BENCHMARKING ARLETTE PILAPAXI | ITINERARIO “A” | CARRERA DE ARQUITECTURA
PARQUES | ÁREAS VERDES| CUERPOS DE AGUA TRANSPORTE PÚBLICO CICLOVÍA Tráfico usual: MAÑANA Tráfico usual: TARDE Tráfico usual: NOCHE L R L R L R Áreas
Rutas
Bicicleta Senderos | PRINCIPALES CLUSTERPRINCIPALESACTIVIDADES DE LA UNAM UNIVERSIDAD NACIONAL | PRINCIPALES ACTIVIDADES CLUSTER UNIVERSIDAD| CLUSTERPRINCIPALES UNIVERSIDAD| PRINCIPALES CLUSTER UNIVERSIDAD| PRINCIPALES UNIVERSIDAD NACIONAL | PRINCIPALES ACTIVIDADES PRINCIPALES UNIVERSIDAD| PRINCIPALES CLUSTER DE UNIVERSIDAD| PRINCIPALES
CIUDADES CIUDADORAS REPENSANDO LA CIUDAD DEL FUTURO | 03. ANÁLISIS DE REFERENTES | BENCHMARKING POYMA PARK|KRASNOGORSK
Verdes Parques Cuerpos de Agua
para
Bus Minibuses Trams

PARQUES | ÁREAS VERDES| CUERPOS DE AGUA TRANSPORTE PÚBLICO CICLOVÍA

Áreas Verdes Parques Cuerpos de Agua

TRÁFICO VEHICULAR

Rutas para Bicicleta Senderos Bus Minibuses Trams

Tráfico usual: MAÑANA Tráfico usual: TARDE Tráfico usual: NOCHE L R L R L R
CIUDADES CIUDADORAS REPENSANDO LA CIUDAD DEL FUTURO | 03. ANÁLISIS DE
POYMA PARK|KRASNOGORSK ARLETTE PILAPAXI | ITINERARIO “A” | CARRERA DE ARQUITECTURA
REFERENTES | BENCHMARKING

C:01|ESCALA 100M X 100M

CIUDADES CIUDADORAS REPENSANDO LA CIUDAD DEL FUTURO | 03. ANÁLISIS DE REFERENTES | BENCHMARKING POYMA PARK|KRASNOGORSK
100m 90m 80m 70m 60m 50m 40m 30m 20m 10m 00 10m 20m 30m 40m 50m 60m 70m 100m 90m 80m ARLETTE PILAPAXI | ITINERARIO “A” | CARRERA DE ARQUITECTURA

RELACIÓN EDIFICADO-ESPACIO PÚBLICO

Directa - Transparente Retranqueo Auto Accesible

Directa - Transparente Retranqueo Peatonal Accesible

Directa - Opaco Retranqueo Auto Accesible

CIUDADES CIUDADORAS REPENSANDO LA CIUDAD DEL FUTURO Vegas City Hall Crocus City Mall Crocus City Oceanarium Ingresos 02 Pisos 02 Pisos 03 Pisos Movimiento Vehicular Movimiento Peatonal
Parqueaderos
Plaza Pública Áreas Verdes
en Planta Baja
ARLETTE PILAPAXI | ITINERARIO “A” | CARRERA DE ARQUITECTURA

DETALLE ACTIVIDADES: Crocus City Mall

COS |CUS APROXIMADO

Área total del Terreno: 145594.83 m2

Perímetro Terreno: 1511.09 m

Área Crocus City Mall: 29569.91 m2

Perímetro Crocus City Mall: 759.01 m

Área PB: 33625.84 m2

Área PA: 31673.30 m2

Cos: 0.23

Cus: 0.44

Entrada

Baños

Ascensor

Restaurantes

Escalera Mecánica

Libre de Impuestos

Devolución de Impuestos para extranjeros

Estacionamiento

Puntos de cambio de moneda

Cajeros automáticos

Servicios de taller

Moda

Sala de estar

Música en vivo

CIUDADES CIUDADORAS REPENSANDO LA CIUDAD DEL FUTURO | 03. ANÁLISIS DE REFERENTES | BENCHMARKING POYMA PARK|KRASNOGORSK
Planta Baja Planta Alta Planta Baja
ARLETTE PILAPAXI | ITINERARIO “A” | CARRERA DE ARQUITECTURA
Planta Alta

DETALLE ACTIVIDADES: Vegas City Hall

SALA DE CONCIERTOS

ARENA DE CONCIERTO

COS |CUS APROXIMADO

PARTERRE DE BAILE SALÓN DE EVENTOS

Área total del Terreno: 145594.83 m2

Perímetro Terreno: 1511.09 m

Área Vegas City Hall: 7344.64 m2

Perímetro Vegas City Hall: 360.11 m

Área PB: 7344.64 m2

Área PA: 7344.64 m2

Cos: 0.05

Cus: 0.10

CIUDADES CIUDADORAS REPENSANDO LA CIUDAD DEL FUTURO | 03. ANÁLISIS DE REFERENTES | BENCHMARKING POYMA PARK|KRASNOGORSK
Planta Baja Planta Alta
ESCENARIO
ESCENARIO PISTA DE BAILE ESCENARIO MESAS
BALCÓN VIP PLAZA DISCAPACITADOS ARLETTE PILAPAXI | ITINERARIO “A” | CARRERA DE ARQUITECTURA
ESCENARIO PLANTA BAJA

DETALLE ACTIVIDADES: Crocus City Oceanarium

BUCEO

Al bucear encontrará que las áreas submarinas son lo suficientemente anchas como para que pueda darse la vuelta, que la profundidad es de cinco metros y los animales en sí son tan grandes que algunos ejemplares son notablemente más grandes que sus parientes de su hábitat natural. Muchos buzos experimentados eligen conscientemente el acuario para bucear. El acuario en el que se sumergen los buzos es el tanque marino principal, es el hogar de rayas, varios tipos de tiburones, tortugas, barracudas, peces Napoleón y otros animales exóticos.

Fuente: https://crocus-oceanarium.ru/entertainment/diving/

1. Exposición "Mar y Océanos"

La cuna de la antigüedad: coloridos pólipos de coral, cardúmenes de peces, estrellas de mar y simpáticos napoleones. ¡Todo aquí es increíble e incluso peligroso: barracudas rápidas, tiburones despiadados, morenas, rayas, arotrones venenosos (fugu) y mucho más.

2. Exposición "Ríos y lagos"

¡La colección más completa de habitantes de agua dulce en la exposición de agua dulce más grande de Europa, así como representantes del mundo submarino de todos los continentes! El Oceanario alberga especies raras de peces de río y lago, como salminus y semaprochilodus, así como enormes arapaima populares o lucios acorazados.

3. Exposición "Selva"

Subiendo al tercer piso, te encuentras en un maravilloso jardín "Jungle". Los milagros te esperan desde la misma puerta: plantas tropicales vivas, pájaros, reptiles, anfibios, monos e incluso un basilisco: todos se sienten geniales. ¡En esta exposición, hemos cancelado jaulas y aviarios!

Fuente: https://crocus-oceanarium.ru/about/

Subsuelo

Planta Baja y Alta

Área total del Terreno: 145594.83 m2

Perímetro Terreno: 1511.09 m

Área Crocus City Oceanarium: 5213.36 m2

Perímetro Crocus City Oceanarium: 330.26 m

Área PB|PA: 5213.36 m2

Área Subsuelo: 8778.36 m2

Cos: 0.04

Cus: 0.07

Información

Estacionamiento

Caza Furtiva

Túnel

Ascensor

Baño

Armario

Anfiteatro

Escalera Mecánica

Zona de juegos

Zonas de Alimentación

Ascensor para silla de ruedas

Sistema de Tratamiento de agua

CIUDADES CIUDADORAS REPENSANDO LA CIUDAD DEL FUTURO | 03. ANÁLISIS DE REFERENTES | BENCHMARKING POYMA PARK|KRASNOGORSK
COS |CUS APROXIMADO
ARLETTE PILAPAXI | ITINERARIO “A” | CARRERA DE ARQUITECTURA

C:02|ESCALA 100M X 100M

CIUDADES CIUDADORAS REPENSANDO LA CIUDAD DEL FUTURO | 03. ANÁLISIS DE REFERENTES | BENCHMARKING POYMA PARK|KRASNOGORSK
100m 90m 80m 70m 60m 50m 40m 30m 20m 10m 00 10m 20m 30m 40m 50m 60m 70m 100m 90m 80m ARLETTE PILAPAXI | ITINERARIO “A” | CARRERA DE ARQUITECTURA

RELACIÓN EDIFICADO-ESPACIO PÚBLICO

El bloque presentado es meramente de uso mixto en el cual predomina el uso residencial. Sin embar go, en la planta baja podemos observar actividades comerciales minoristas como cafeterías, restau

Directa - Opaco Retranqueo Auto Accesible

Directa - Transparente Retranqueo Peatonal Accesible

Directa - Transparente Acceso Peatones Accesible

CIUDADES CIUDADORAS REPENSANDO LA CIUDAD DEL FUTURO | 03. ANÁLISIS DE REFERENTES | BENCHMARKING POYMA PARK|KRASNOGORSK
Residenciales Mobiliario Urbano Arborización Ingresos 18 Pisos Movimiento Vehicular Movimiento Peatonal
USOS Bloques
Plaza Pública Áreas Verdes Parqueaderos en Planta Baja
ARLETTE PILAPAXI | ITINERARIO “A” | CARRERA DE ARQUITECTURA
CIUDADES CIUDADORAS REPENSANDO LA CIUDAD DEL FUTURO | 03. ANÁLISIS DE REFERENTES | BENCHMARKING D|EJEMPLOS AL ÁREA DE ESTUDIO ARLETTE PILAPAXI | ITINERARIO “A” | CARRERA DE ARQUITECTURA

NICOLE

NICOLE VILLACÍS | ITINERARIO A | 7° SEMESTRE |

10

VIALIDAD

NICOLE VILLACÍS | ITINERARIO A | 7° SEMESTRE | N° 10

NICOLE VILLACÍS | ITINERARIO A | 7° SEMESTRE | N° 10

VILLACÍS | ITINERARIO A | 7° SEMESTRE | N° 10

NICOLE VILLACÍS | ITINERARIO A | 7° SEMESTRE | N° 10 CIUDADES CIUDADORAS

NICOLE VILLACÍS | ITINERARIO A | 7° SEMESTRE | N° 10

NICOLE VILLACÍS | ITINERARIO A | 7° SEMESTRE | N° 10

NICOLE VILLACÍS | ITINERARIO A | 7° SEMESTRE | N° 10

NICOLE VILLACÍS | ITINERARIO A | 7° SEMESTRE | N° 10

NICOLE VILLACÍS | ITINERARIO A | 7° SEMESTRE | N° 10

NICOLE VILLACÍS | ITINERARIO A | 7° SEMESTRE | N° 10

REPENSANDO LA CIUDAD DEL FUTURO | 03. ANÁLISIS DE REFERENTES | BENCHMARKING D|EJEMPLOS AL ÁREA DE ESTUDIO

NICOLE VILLACÍS | ITINERARIO A | 7° SEMESTRE | N° 10

NICOLE VILLACÍS | ITINERARIO A | 7° SEMESTRE | N° 10

NICOLE VILLACÍS | ITINERARIO A | 7° SEMESTRE |

NICOLE VILLACÍS | ITINERARIO A | 7° SEMESTRE |

NICOLE VILLACÍS | ITINERARIO A | 7° SEMESTRE |

NICOLE VILLACÍS | ITINERARIO A | 7° SEMESTRE |

NICOLE VILLACÍS | ITINERARIO A | 7° SEMESTRE |

NICOLE VILLACÍS | ITINERARIO A | 7° SEMESTRE |

NICOLE VILLACÍS | ITINERARIO A | 7° SEMESTRE |
Vías principales Vías secundarias Calles locales
Vías principales Vías secundarias Calles locales
NICOLE VILLACÍS | ITINERARIO A | 7° SEMESTRE | N° 10
Vías principales Vías secundarias Calles locales NICOLE
Vías secundarias Calles locales
Vías principales Vías secundarias Calles locales
VILLACÍS | ITINERARIO A | 7° SEMESTRE | N° 10
Vías secundarias Calles locales
Vías principales Vías secundarias Calles locales
Vías principales Vías secundarias Calles locales
Vías secundarias Calles locales
CARRERA
ARLETTE PILAPAXI | ITINERARIO “A” |
DE ARQUITECTURA
CIUDADES CIUDADORAS REPENSANDO LA CIUDAD DEL FUTURO | 03. ANÁLISIS DE REFERENTES | BENCHMARKING E|COLLAGE PAISAJE URBANO ARLETTE PILAPAXI | ITINERARIO “A” | CARRERA DE ARQUITECTURA

MANIFIESTO Y VISIÓN

- Puntos Manifiesto y Visión

- Contexto Espacial

- Contexto Teórico

- Identificación de Problemas

- Parches

- Caja de herramientas

- Referentes

NICOLE
Vías principales Vías secundarias Calles NICOLE VILLACÍS
Vías Vías Calles NICOLE NICOLE VILLACÍS NICOLE VILLACÍS NICOLE ARLETTE PILAPAXI | ITINERARIO “A” | CARRERA DE ARQUITECTURA CIUDADES CIUDADORAS REPENSANDO LA CIUDAD DEL FUTURO | 04. MANIFIESTO Y VISIÓN 04.
VILLACÍS
NICOLE VILLACÍS
EJERCICIO 04

NICOLE VILLACÍS | ITINERARIO A | 7° SEMESTRE | N°

6) ESPACIO PÚBLICO SALUDABLE

Implementar espacios públicos vibrantes a lo largo de todo el sector diluyendo el núcleo de concentracion y generando una distribución equitativa de los equipamientos.

10
Vías secundarias Calles locales
principales Vías secundarias Calles locales CIUDADES CIUDADORAS REPENSANDO LA CIUDAD DEL FUTURO | 04. MANIFIESTO Y VISIÓN
Vías principales
Vías

CIUDAD INTEGRADA

Andiglata, Pinllo y Ficoa en 2027 se conectan fomentando las alianzas e impulsan un entorno recreativo y de convivencia. Dentro de 30 años, la zona se proyecta como una ciudad segura, sostenible, integrada, ecológica e inclusiva generada mediante una regeneración urbana que mejore la calidad de vida de las personas que se desenvuelven dentro de la zona, reactivando los espacios públicos existentes, creando nuevos espacios de desarrollo y mejorando la movilidad urbana.

ARLETTE PILAPAXI | ITINERARIO “A” | CARRERA DE ARQUITECTURA
VISIÓN CIUDADES CIUDADORAS REPENSANDO LA CIUDAD DEL FUTURO | 04. MANIFIESTO Y VISIÓN

CONTEXTO ESPACIAL

Análisis estructural y morfológico del sitio

Diagramas que permitan mapear la situación actual del sitio a intervenir

Estructura identificada Vs. Espacios no edificados Determinación de predios, terrenos, equipamiento

Mapas con relación a la Plataforma Inclusiva

1. Espacios de Intercambio

Mapa de tipos de predios: llenos y vacíos (Nolli)

Mapa de usos y actividades en llenos y vacíos

Mapa de titularidad del sector

2. Conexiones integrales

Mapa jerarquía de vías

Mapa de trama

Mapa de Movilidad

Mapa de Rodaje

Mapa Transporte

Estructura edificada Vs. Espacios no Edificados

Elementos que caracterizan los eventos del diario vivir de la ciudadanía: Nodos, hitos, bordes.

3. Ciudad Policéntrica

Mapa áreas verdes

Mapa de equipamientos

Mapa de uso y actividades en vacíos

4. Ciudad del cuidado

Mapa áreas zonas seguras

Mopa de alumbrado público

Mapa de movilidad

ARLETTE PILAPAXI | ITINERARIO “A” | CARRERA DE ARQUITECTURA
Nodos Hitos Calles y Senderos Visuales Natural Otros Baldíos Áreas Verdes Equipamientos
|
MAPA INTERACTIVO EVENTOS Urbano VÍAS Movilidad
VACIÓS
LLENOS
01
02
PARTE B: CONTEXTO
Llenos
CIUDADES CIUDADORAS REPENSANDO LA CIUDAD DEL FUTURO | 04. MANIFIESTO Y VISIÓN
Senderos Principales Secundarias Terciarias
Vacíos Nodos Hitos Bordes

Espacios de intercambio de conocimiento

Zonas potenciales a convertirse en puntos de intercambio

Zonas de alta influencia económica que pueden convertirse en potenciadores de encuentro

Espacios usados actualmente para propiciar la interacción

ARLETTE PILAPAXI | ITINERARIO “A” | CARRERA DE ARQUITECTURA PARTE C: PROBLEMAS
ESPACIOS DE INTERCAMBIO 01
CIUDADES CIUDADORAS REPENSANDO LA CIUDAD DEL FUTURO | 04. MANIFIESTO Y VISIÓN

CONEXIONES INTEGRALES

Líneas de Transporte

Zona con materialidad: calles adoquinadas

Calles con mayor uso vehicular y peatonal

Congestión Vehicular en horas pico

Barreas que impiden la permeabilidad

ARLETTE PILAPAXI | ITINERARIO “A” | CARRERA DE ARQUITECTURA
02
CIUDADES CIUDADORAS REPENSANDO LA CIUDAD DEL FUTURO | 04. MANIFIESTO Y VISIÓN PARTE C: PROBLEMAS
ARLETTE PILAPAXI | ITINERARIO “A” | CARRERA DE ARQUITECTURA CIUDAD POLICÉNTRICA 03 Colegio San Alfonso Comercio Educación Residencial Deportivo Colegio Sto. Domingo Estadio de Pinllo Monumento a la Primera Imprenta C.C. El Caracol Supermaxi 01 02 03 04 05 06 01 02 03 04 05 06 CIUDADES CIUDADORAS REPENSANDO LA CIUDAD DEL FUTURO | 04. MANIFIESTO Y VISIÓN PARTE C: PROBLEMAS

Flujo alto de personas

Calles solas / inseguras

Zonas inseguras

Barreras

Zonas no iluminadas

ARLETTE PILAPAXI | ITINERARIO “A” | CARRERA DE ARQUITECTURA CIUDADES CIUDADORAS REPENSANDO LA CIUDAD DEL FUTURO | 04. MANIFIESTO Y VISIÓN CIUDAD
04 PARTE C: PROBLEMAS
DEL CUIDADO

CONTEXTO TEÓRICO

CONCEPTUALIZACIÓN

Entender la legibilidad de la ciudad. La creación de mapas cognitivos en base a la experienica de recorrer la ciudad para saber cómo orientarnos en el espacio

Elementos de una ciudad:

Sendas: Calles

Nodos: Puntos eestratégicos

Mojones: Hitos que me ubican

Bordes: Barreras al movimiento

Llamamos ciudades del conocimiento a aquellas donde existe una coexistencia entre:Instituciones de aprendizaje, empresas y Gobierno.

Estos tres entes, trabajan de manera coordinada para la creación, diseño, producción y desarrollo de nuevas ideas que aporten al beneficio económico y crecimiento de la ciudad.

INTERCAMBIO

Conocimiento Multidisciplinar

Mentes creativas

Talentos compartido

COMPARTIR

Espacios de oportunidad Colaboración

Creación de espacios de intercambio

De, R. H. (2020, octubre 12). CIUDAD EN CONFLICTO Y HUMANIDAD EN RESISTENCIA. Hablemos De. https://revistahablandode.wixsite.com/hablemosde/post/ciudad-en-conflicto-y-humanidad-en-resistencia

02

CONCEPTUALIZACIÓN

Las interfaces son las zonas intermedias donde lo privado se vuelve público, es una relación espacial en donde la arquitectura se evidencia como parte de la ciudad, destinando zonas para las actividades sociales y el intercambio, contribuyendo de esta manera a la identidad.

POTENCIADORES

-Fachadas activas, las cuales aportan al desarrollo de una ciudad vital, segura, sana y sostenible (Jan Gehl, 2013).

-Ojos en la calle “Tiene que haber ojos en las calles, ojos pertenecientes a los que podríamos llamar los propietarios naturales de la calle”, el objetivo principal de los espacios públicos es que las personas se sientan cómodas, seguras y protegidas, aunque no se conozcan entre sí. (Jane Jacobs, 1961).

Riofrio, M., & Carlos, J. (2019). Diagnostico de la influencia del proyecto arquitectónico “Sutura urbana mediante dispositivos de multiactividades” en el contexto de Ficoa - Ambato. Universidad Internacional SEK.

-Esquinas vivas, el entorno construido debe prever a sus usuarios un marco esencialmente democrático que enriquezca su posibilidad de elección mediante entornos vitales, que es el resultado de una adecuada legibilidad, permeabilidad, variedad, versatilidad, imagen apropiada, riqueza visual y personalización (Ian Bentley,1999)

ARLETTE PILAPAXI | ITINERARIO “A” | CARRERA DE ARQUITECTURA CIUDADES CIUDADORAS REPENSANDO LA CIUDAD DEL FUTURO | 04. MANIFIESTO Y VISIÓN PARTE B: CONTEXTO
DE LA CIUDAD
LECTURA
01
02
Claudia P Salas, Ismael Aguilar y Gabriel Susunaga. El papel de la innovación en el desarrollo económico regional: Algunas lecciones y experiencias del contexto internacional. Facultad de Economía de la Universidad Monterrey. México.

CONTEXTO TEÓRICO

CONCEPTUALIZACIÓN

Congreso CGLU

Elementos para generar una ciudad Inclusiva y Accesible: accesibilidad y diseño universal, mejor movilidad y espacios públicos seguros.

Planificación y Diseño

Atención permanente a las características físicas y sociales del espacio

Accesibilidad Urbanística

Eliminar barreras en vías y espacios exteriores de uso público

ACCESIBILIDAD Y DISEÑO UNIVERSAL

(S/f). Uclg.org. Recuperado el 9 de diciembre de 2022, de https://www.uclg.org/sites/default/files/ciudades_inclusivas_y_accesibles_documento_de_politica.pdf

ESPACIOS PÚBLICOS SEGUROS

INTEGRACIÓN

MEJOR MOVILIDAD

Transporte

Potenciar el transporte público Acceso en tiempo real a la situación de las vías Transporte eco-friendly Control de tráfico inteligente

ARLETTE PILAPAXI | ITINERARIO “A” | CARRERA DE ARQUITECTURA CIUDADES CIUDADORAS REPENSANDO LA CIUDAD DEL FUTURO | 04. MANIFIESTO Y VISIÓN
PARTE B: CONTEXTO
02
ARLETTE PILAPAXI | ITINERARIO “A” | CARRERA DE ARQUITECTURA CIUDADES CIUDADORAS REPENSANDO LA CIUDAD DEL FUTURO | 04. MANIFIESTO Y VISIÓN PARTE C: PROBLEMAS
ARLETTE PILAPAXI | ITINERARIO “A” | CARRERA DE ARQUITECTURA CIUDADES CIUDADORAS REPENSANDO LA CIUDAD DEL FUTURO | 04. MANIFIESTO Y VISIÓN PARTE D: OPORTUNIDADES
ARLETTE PILAPAXI | ITINERARIO “A” | CARRERA DE ARQUITECTURA CIUDADES CIUDADORAS REPENSANDO LA CIUDAD DEL FUTURO | 04. MANIFIESTO Y VISIÓN PARTE D: PARCHES
ARLETTE PILAPAXI | ITINERARIO “A” | CARRERA DE ARQUITECTURA CIUDADES CIUDADORAS REPENSANDO LA CIUDAD DEL FUTURO | 04. MANIFIESTO Y VISIÓN PARTE D: PARCHES

SUPERMANZANAS

Poca permeabilidad debido a barreras, muros altos y manzanas de gran tamaño

CREAR

Bordes permeables

DISMINUIR

Altura de muros

CONECTAR

Privado con el espacio

Público

ARLETTE PILAPAXI | ITINERARIO “A” | CARRERA DE ARQUITECTURA CIUDADES CIUDADORAS REPENSANDO LA CIUDAD DEL FUTURO | 04. MANIFIESTO Y VISIÓN
D: CAJA DE HERRAMIENTAS
PARTE

INSEGURIDAD

Calles solitarias con poca o nula iluminación

PRORIFERACIÓN

Quebrada contaminada y mal uso del espacio público

AUMENTAR

Luminarias

FOMENTAR

Actividades ancla

REHABILITAR

Quebrada y espacios

públicos

ARLETTE PILAPAXI | ITINERARIO “A” | CARRERA DE ARQUITECTURA CIUDADES CIUDADORAS REPENSANDO LA CIUDAD DEL FUTURO | 04. MANIFIESTO Y VISIÓN
PARTE D: CAJA DE HERRAMIENTAS

DIVISIÓN

Tres sectores divididos por una quebrada y estratos sociales

AUSENCIA DE INTERCAMBIOS

Poca interacción entre los habitantes de estos sectores

IMPLEMENTAR

ARLETTE PILAPAXI | ITINERARIO “A” | CARRERA DE ARQUITECTURA CIUDADES CIUDADORAS REPENSANDO LA CIUDAD DEL FUTURO | 04. MANIFIESTO Y VISIÓN
de internet
Ciclovía
IMPLEMENTAR Red
IMPLEMENTAR
D: CAJA DE HERRAMIENTAS
Mobiliario Urbano PARTE

Parque Botánico Río Medellín (2015)

El Parque Botánico Río Medellín interviene en predios urbanos que limitan con la orilla del río ya que mediante esto se conecta la ciudad con actividades cotidianas. Este proyecto surge como una red que busca articular vacíos verdes, quebradas y estructuras subutilizadas, limitadas por el río Medellín. Este proyecto presenta la oportunidad de permeabilizar zonas de gran vegetación, integrándose a un sistema que busca dar continuidad al eje del río (Cabezas,2013). El programa del parque busca desarrollar conciencia ambiental y protegerla del rápido crecimiento urbano, generar escenarios culturales a lo largo del eje del Río para enriquecer la calidad del espacio público y ofrecer escenarios deportivos para lograr un parque integral donde sus habitantes puedan recrearse y educarse ( Cabezas,2013, s.p).

Adaptación al proyecto

•Río como eje estructurante.

• Recuperación e integración de zonas deterioradas.

• Permeabilizar zonas de gran vegetación .

• Crear un sistema de puentes peatonales que conecten a los margenes del río

https://arquine.com/obra/parque-botanico-rio-medellin/

ARLETTE PILAPAXI | ITINERARIO “A” | CARRERA DE ARQUITECTURA CIUDADES CIUDADORAS REPENSANDO LA CIUDAD DEL FUTURO | 04. MANIFIESTO Y VISIÓN PARTE E: REFERENTES

Copenhague

Bordes suaves

El borde es límite donde el edificio se encuentra con la ciudad también es una parte vital de la calidad que tendrá un complejo residencial y el área urbana que la rodea. La del borde es la zona más activa del espacio exterior dentro de un área residencial. Dentro de él se encuentran las puertas de ingreso -el umbral de intercambio entre el adentro y el afuera-, y a su vez provee el terreno de transición a través del cual las actividades del interior se trasladan a la terraza o al jardín, donde entran en contacto con el espacio público. El borde también es la zona que los peatones observan y experimentan cuando caminan dentro de un tramo residencial de la ciudad.

La importancia de la zona del borde suave "si un complejo es interesante y atractivo a la altura de los ojos, entonces toda la zona lo será. Por lo tanto, concéntrate en que el borde sea un lugar rico en detalles donde la gente se sienta bienvenida, y no te desvivas tanto por lo que ocurre en los pisos más altos, ya que son menos importantes, tanto funcional como visualmente"

grande ejemple es las nuevas áreas residenciales de Copenhague, en 2003, muestran que las actividades que se realizan adentro o alrededor de un espacio semiprivado representan más de la mitad de todas las actividades al aire libre.

https://issuu.com/nicoaugsburger/docs/pfc_issuu

ARLETTE PILAPAXI | ITINERARIO “A” | CARRERA DE ARQUITECTURA CIUDADES CIUDADORAS REPENSANDO LA CIUDAD DEL FUTURO | 04. MANIFIESTO Y VISIÓN
PARTE E: REFERENTES

The Rhone River Banks Lyon

El proyecto realizado en las orillas del río Rodado en LyonFrancia, ocupa una extensión de diez hectáreas, dichas orillas poseen secciones de ancho variable con dos niveles separados por un muro de contención preexistente de piedra. El nivel superior, realiza un recorrido con vegetación para separar el tráfico vehicular de la circulación de peatones, la cual se encuentra junto al río en el nivel inferior. En el recorrido de las orillas se pueden encontrar campos plantados, áreas pavimentadas con asientos y pistas para pasear o andar en bicicleta. Además, el proyecto presenta una zona de instalaciones deportivas denominadoel Centre Nautique du Rhône (Bravo, 2018).

“Después de la intervención, la orilla izquierda del Ródano actúa efectivamente como mediador en la disputa sin sentido entre la ciudad y su río. La estrategia de reconciliación consiste en satisfacer generosamente las demandas de ambas partes. En sentido longitudinal, la intervención se inclina ante las exigencias del río, adoptando una forma coherente y unitaria para fluir hacia su majestuosa presencia. Esto logra una restitución de la continuidad circulatoria en la escala territorial al tiempo que resalta el papel principal del río en la génesis de la ciudad. Se vuelve permeable para responder a las diferentes situaciones urbanas por las que fluye” (Bravo,2018,s.p).

Adaptación al proyecto

• Uso de vegetación

• Circulaciones peatonales junto al río

• Puente peatonal para conectar orillas

• Áreas pavimentadas de estancia y zonas de encuentro

https://bluehealth.tools/51-2-copy-copy-copy-2-copy-40-co-

ARLETTE PILAPAXI | ITINERARIO “A” | CARRERA DE ARQUITECTURA CIUDADES CIUDADORAS REPENSANDO LA CIUDAD DEL FUTURO | 04. MANIFIESTO Y VISIÓN
py-4/ PARTE E: REFERENTES
PARTE E: COLLAGE ARLETTE PILAPAXI | ITINERARIO “A” | CARRERA DE ARQUITECTURA CIUDADES CIUDADORAS REPENSANDO LA CIUDAD DEL FUTURO | 05. PANEL 02: Estrategias y Criterios de Diseño | 04. MANIFIESTO Y VISIÓN

ESTRATEGIAS Y CRITERIOS DE DISEÑO

- Plataformas Conceptuales

- Estrategias de Diseño

- Criterios de Diseño

ARLETTE PILAPAXI | ITINERARIO “A” | CARRERA DE ARQUITECTURA CIUDADES CIUDADORAS REPENSANDO LA CIUDAD DEL FUTURO | 05. PANEL 02: Estrategias y Criterios de Diseño | 04. MANIFIESTO Y VISIÓN
05. PANEL 02

Andiglata, Pinllo y Ficoa en 2027 se conectan fomentando las alianzas e impulsan un entorno recreativo y de convivencia.

Dentro de 30 años, la zona se proyecta como una ciudad segura, sostenible, integrada, ecológica e inclusiva generada mediante una regeneración urbana que mejore la calidad de vida de las personas que se desenvuelven dentro de la zona, reactivando los espacios públicos existentes, creando nuevos espacios de desarrollo y mejorando la movilidad urbana.

ARLETTE PILAPAXI | ITINERARIO “A” | CARRERA DE ARQUITECTURA CIUDADES CIUDADORAS REPENSANDO LA CIUDAD DEL FUTURO | 05. PANEL 02: Estrategias y Criterios de Diseño
VISIÓN

D|EJEMPLOS AL ÁREA DE ESTUDIO

CIUDADES INCLUSIVAS

Una ciudad inclusiva es aquella en la que todos los ciudadanos tienen el mismo acceso a la vivienda, el empleo, la educación y el transporte. Sin embargo, Ambato se está volviendo cada vez más segregada espacialmente. ¿ Cómo podemos identificar las áreas de desventaja y las barreras a las que se enfrentan los residentes? ¿Qué estrategias o intervenciones podrían ayudar a reducir las desventajas?

CIUDADES SALUDABLES

Existe una conciencia cada vez mayor del efecto que puede tener el diseño de la ciudad en la salud humana. El acceso a la atención primaria de salud, la alimentación saludable, el ejercicio formal e informal, la educación sanitaria, la vivienda adecuada y el entorno urbano son todos importantes para la habitabilidad. ¿Qué elementos apoyan la vida sana y el trabajo en el área del sitio? ¿Qué se podría hacer para mejorar la salud de esta zona?

CIUDADES SOSTENIBLES

1 2 3

Las ciudades son enormes consumidoras de energía, agua y alimentos. Así mismo, son las generadoras de residuos y emisiones de CO2. Existe una creciente responsabilidad y potencial para hacer que las áreas urbanas sean más sostenibles y resilientes ambientalmente mediante la creación de sistemas urbanos eficientes, nuevos medios de generación de energía distribuida y el fortalecimiento de la ecología de la ciudad.

CIUDADES CIUDADORAS REPENSANDO LA CIUDAD DEL FUTURO | 05. PANEL 02: Estrategias y Criterios de Diseño

CIUDADES INCLUSIVAS

CIUDADES INCLUSIVAS

CONCEPTOS CLAVE

CIUDAD INCLUSIVA

En una ciudad inclusiva, todas las personas participan y comparten en la vida de la ciudad, sin importar su edad, género, situación económica o social, o si viven en áreas centrales o periféricas.

DISEÑO

Las necesidades de cada grupo –por ejemplo, de los adultos mayores, las personas con discapacidad, los jóvenes, los niños y otros tipos de grupos– se toman en cuenta al momento de realizar actividades y construir espacios.

PARTICIPACIÓN

Una participación equitativa asegurando que la información está disponible en formatos accesibles, la accesibilidad del transporte público y privado, la oferta de oportunidades inclusivas para la educación cultural y cívica y el compromiso voluntario y sin barreras, así como la habilitación de espacios interiores y exteriores

ACCESIBILIDAD

Las necesidades de cada grupo –por ejemplo, de los adultos mayores, las personas con discapacidad, los jóvenes, los niños y otros tipos de grupos– se toman en cuenta al momento de realizar actividades y construir espacios.

IDEAS RELEVANTES

Prioriza el acceso seguro, fácil y equitativo del conjunto de la población a las infraestructuras físicas, sociales y digitales en todos los objetivos y programas de planificación urbanística, a fin de garantizar el derecho a la ciudad en todos los entornos, con independencia del género, la edad y la discapacidad, y reconoce que todas las personas tienen derecho a la accesibilidad.

Eliminación de barreras innecesarias y la adopción de políticas de desarrollo urbano, inversiones y programas inclusivos, las ciudades pueden mejorar los resultados en materia social y económica para todas las personas.

Representatividad: creación de una “marca” o identidad visual para el espacio público que sea incluyente y acoja a las minorías sexuales y de género de todas las edades y capacidades, ayudando a socavar la hostilidad pública y aumentar la sentido de pertenencia.

Prestación de servicios y herramientas inclusivos para facilitar el acceso a instalaciones y espacios públicos, datos, sitios webs y servicios en línea.

INICIATIVAS

1970, Berkeley, California, un grupo de activistas por los derechos de las personas con discapacidad comenzó a desmantelar bordillos e improvisar rampas en las aceras, exigiendo acceso para usuarios de sillas de ruedas. Pero lo que la gente no esperaba era que los usuarios de sillas de ruedas no fueran los únicos que se beneficiarían de la intervención.

La aprobación de los Objetivos de Desarrollo Sostenible (ODS), la Nueva Agenda Urbana y el Marco de Sendai para la Reducción del Riesgo de Desastres, con un claro mandato de no dejar a nadie atrás, ofrecen una oportunidad única a las ciudades de modelar un futuro urbano más inclusivo y accesible.

Jornada inclusiva, deportiva y cultural Juntos por la Inclusión, con la comunidad de San Francisco de Huarcay (suroeste de Quito) con motivo de la conmemoración del Día Internacional de las Personas con Discapacidad que se celebra cada 3 de diciembre.

ARLETTE PILAPAXI | ITINERARIO “A” | CARRERA DE ARQUITECTURA CIUDADES CIUDADORAS REPENSANDO LA CIUDAD DEL FUTURO | 05. PANEL 02: Estrategias y Criterios de Diseño
1

CIUDADES SOSTENIBLES

CIUDADES SALUDABLES 2

CONCEPTOS CLAVE

CIUDAD SALUDABLE

Es aquella que da una alta prioridad a la salud en todas sus actuaciones.

Sigue un proceso para comprometerse a expandir la salud dentro de ella. Se enfoca en crear estilos de vida más sanos, en conseguirlo creando entornos que lo favorezcan. trabajar por la salud y comenzar un proceso para conseguirlo creando entornos que lo favorezcan.

DISEÑO

Promueve la actividad física, se preocupa por la vida productiva de sus edificios y la huella ecológica de los mismos

PLASTICIDAD

Ayuda a comprender el tipo de relación entre el entorno físico y los organismos vivos. Se trata de la dimensión adaptativa de la ecología la cual es diferente a lo largo del ciclo de vida del individuo.

LUGARES SALUDABLES

Representa la interacción de los factores sociales, demográficos, económicos y culturales tanto en la sociedad como en el entorno, así como garantizar que estos sean gestionados conjuntamente para crear unas mejores condiciones para la salud.

IDEAS RELEVANTES

Buscan mejorar los entornos en que las personas pueden ganar o perder salud según los factores externos como: el medio ambiente, el empleo, falta de educación, vivienda y pobreza.

La ciudad es el lugar por excelencia de convivencia y de vida, y tiene un papel relevante en la salud de las personas.

La adaptación al medio no es posible en solitario, se requiere de un entorno colectivo que usa la inmadurez fisiológica del ser humano en su nacimiento y su mayor capacidad intelectual para adaptarlo a un entorno social un base a su propia comunidad de referencia.

El diseño activo Involucra a varios profesionales de la construcción, a fomentar la actividad física como parte integral de la vida.

INICIATIVAS

La OMS ve a las “ciudades saludables” es la manifestación de “Salud para todos” en el ámbito de la ciudad.

Sport England junto con varios profesionales de la planificación urbana y la salud pública concluyeron que el diseño activo era relevante en el contexto

El diseño activo en Nueva York dio inicio a la expansión del mismo por los estados Unidos, creando un enfoque en impactar la salud publica no solo física sino también mental y socialmente

ARLETTE PILAPAXI | ITINERARIO “A” | CARRERA DE ARQUITECTURA CIUDADES CIUDADORAS REPENSANDO LA CIUDAD DEL FUTURO | 05. PANEL 02: Estrategias y Criterios de Diseño

CIUDADES SOSTENIBLES

CIUDADES SOSTENIBLES

CONCEPTOS CLAVE

SUSTENTABLE

Del inglés sustainable. Desarrollo sustentable se define como aquel “desarrollo que no compromete la habilidad de las generaciones futuras para cumplir con sus necesidades, mientras cumple con las nuestras”.

MEDIO AMBIENTE

Es el campo teórico en el que se inscriben las problemáticas en la articulación social/naturaleza.

ECOLOGÍA

Proviene del Oikos “casa o lugar en que vivir”, se entiende a la ecología como el estudio de la relación de los espacios con su medio.

ECO - CIUDAD

Como solución a los cambios y problemas urbanos, intenta reestructurarlos y transformarlos desde los estilos de vida y la forma en la que construyen y operan las ciudades porque es en ella en donde se consume más energía y se produce más desechos.

IDEAS RELEVANTES

Problemas planetarios que amenazan al mundo en el largo plazo: el agotamiento de la capa de ozono, el calentamiento atmosférico y la destrucción de la biodiversidad.

Se identifican espacios públicos como parques lineales y jardines infantiles que cumplen con la función de ser elementos que ayudan a mejorar la cohesión social en los barrios y ayudan a mitigar el impacto del cambio climático mediante el control de inundaciones y fenómenos de remoción de masa.

Para poder conseguir una ciudad sustentable, se debe urbanizar de modo compacto a la ciudad, crear una mayor cantidad de áreas verdes, generar energía aprovechando los recursos renovables, buscar nuevas alternativas para la movilidad urbana.

Las ciudades son las áreas que han recibido los mayores impactos ambientales de los últimos años como consecuencia de los desastres naturales relacionados con el cambio climático

INICIATIVAS

Se desarrolla conceptualmente una propuesta de “Eco barrio” para contribuir con el mejoramiento de la sustentabilidad urbana, actuando de manera local y verificando su incidencia

La ciudad del primer mundo proyecto el diseño urbano “cero carbono” y el diseño arquitectónico sin el uso de combustibles fósiles.

ARLETTE PILAPAXI | ITINERARIO “A” | CARRERA DE ARQUITECTURA CIUDADES CIUDADORAS REPENSANDO LA CIUDAD DEL FUTURO | 05. PANEL 02: Estrategias y Criterios de Diseño
3

Espacios de intercambio de conocimiento

Zonas potenciales a convertirse en puntos de intercambio

Espacio Público recreativo y áreas verdes que faciliten el intercambio de conocimientos y fomente la interacción de los peatones de distintos grupos etarios

Eliminación de barreras innecesarias y accesibilidad universal

Prestación de servicios y herramientas inclusivos para facilitar el acceso

Espacio público que sea incluyente y acoja a las minorías sexuales y de género de todas las edades y capacidades, ayudando a socavar la hostilidad pública y aumentar la sentido de pertenencia.

Zonas de alta influencia económica que pueden convertirse en potenciadores de encuentro

Espacios usados actualmente para propiciar la interacción

Generar espacios de agricultura urbana

ARLETTE PILAPAXI | ITINERARIO “A” | CARRERA DE ARQUITECTURA CIUDADES CIUDADORAS REPENSANDO LA CIUDAD DEL FUTURO | 05. PANEL 02: Estrategias y Criterios de Diseño
ESTRATEGIAS

CRITERIOS DE DISEÑO

Uso del suelo, Forma construida

- Cambio de tipología en lotes baldíos con enfoque residencial hacia un enfoque público, recreativo y de comercio

Bordes Permeables

-Creación de retiros permeables con más vegetación e iluminación

Espacio público: calles y equipamiento

- Nuevos espacios públicos, sitios de agricultura urbana

- Mejoramiento de calles que den prioridad al peatón

Prioridades al Peatón

-Dar prioridad al peatón dentro de las redes de movilidad

Accesos y movilidad

- Implementar una ruta para vehículos no motorizados

Comfort Visual

- Intervención paisajística dentro de las zonas de interacción (Fachadas Activas)

ARLETTE PILAPAXI | ITINERARIO “A” | CARRERA DE ARQUITECTURA CIUDADES CIUDADORAS REPENSANDO LA CIUDAD DEL FUTURO | 05. PANEL 02: Estrategias
de Diseño
y Criterios
con el espacio Público
de muros
CONECTAR Privado
DISMINUIR Altura

y Criterios de Diseño

DIMENSIONES MÍNIMAS CICLOVÍA

En términos generales, todo carril (sentido de circulación) debe tener un ancho mínimo de 1,4 metros, y toda la ciclo-infraestructura debe cumplir o exceder esa medida mínima. Es importante aclarar que otros manuales especializados recomiendan 1,5m mínimo de ancho por carril de circulación

La manera más sencilla de proceder para reasignar el espacio vial para bicicletas es reasignar carriles completos. Esto hace más fácil el dimensionamiento y señalización, y reduce la confusión. Si es necesario reducir espacio, debe hacerse en el carril de tráfico mixto (“vehicular”) pues esto reduce el riesgo de siniestralidad y sigue siendo posible transitar sin problema en un carril hasta de 2,8 metros.

Los sistemas de bicicleta pública hacen uso predominante del espacio público, y cada sistema tiene sus parámetros de operación según la demanda, el modelo de negocio y el modelo de operación. No obstante, es recomendable que la densidad de estaciones sea de una distancia de 300 metros entre estaciones, y que éstas estén ubicadas cerca de centros de actividad y/o de estaciones o paradas de transporte público

ARLETTE PILAPAXI | ITINERARIO “A” | CARRERA DE ARQUITECTURA CIUDADES CIUDADORAS REPENSANDO LA CIUDAD DEL FUTURO | 05. PANEL 02:
Estrategias

DIMENSIONES MÍNIMAS RAMPAS DIMENSIONES MÍNIMAS CIRCULACIÓN PEATONAL

a)Tendrán una anchura mínima igual a 1,20m. El ancho mínimo libre de rampas unidireccionales será de 0.90m.

b)La pendiente transversa máxima será del 2%.

c)Se estable celos siguientes rangos dependientes longitudinales para los tramos de rampa entre descansos, en función de la extensión de los mismos, medidos en su proyección horizontal.

VEGETACIÓN

ARLETTE PILAPAXI | ITINERARIO “A” | CARRERA DE ARQUITECTURA CIUDADES CIUDADORAS REPENSANDO LA CIUDAD DEL FUTURO | 05. PANEL 02: Estrategias y Criterios de Diseño
Jacaranda Arupo Lavanda Hortensias Bomberos

Red de internet

Agricultura urbana

Urbanismo táctico

Áreas verdes recreativas

ARLETTE PILAPAXI | ITINERARIO “A” | CARRERA DE ARQUITECTURA CIUDADES CIUDADORAS REPENSANDO LA CIUDAD DEL FUTURO | 05. PANEL 02: Estrategias
y Criterios de Diseño
INTERVENCIÓN 01| INTERCAMBIO

RUTA NO MOTORIZADOS

HUERTOS URBANOS

URBANISMO TÁCTICO

ARLETTE PILAPAXI | ITINERARIO “A” | CARRERA DE ARQUITECTURA CIUDADES CIUDADORAS REPENSANDO LA CIUDAD DEL FUTURO | 05. PANEL 02: Estrategias y Criterios de Diseño
ARBORIZACIÓN

06. PANEL 03

DISEÑO MULTIESCALAR

- Diseño Escala XL: Plan Ciudad

- Diseño Escala M: Plan Barrio

- Diseño Escala S: Propuesta Intervención

ARLETTE PILAPAXI | ITINERARIO “A” | CARRERA DE ARQUITECTURA CIUDADES CIUDADORAS REPENSANDO LA CIUDAD DEL FUTURO | 06. PANEL 03: Diseño Multiescalar
ARLETTE PILAPAXI | ITINERARIO “A” | CARRERA DE ARQUITECTURA CIUDADES CIUDADORAS REPENSANDO LA CIUDAD DEL FUTURO | 06. PANEL 03: Diseño Multiescalar
ESCALA XL PLAN CIUDAD

CIUDADES CIUDADORAS

REPENSANDO LA CIUDAD DEL FUTURO

ANCLAS CIUDAD

ESPACIOS RECREATIVOS EXISTENTES: Nivel Macro

01. Parque Las Avellanas

02. Parque La Rosaleda

03. Parque Los Quindes

04. Sendero Parque El Sueño

05. Parque Luis A. Martínez

06. Parque Dos Culturas

07. Parque del Deporte

ESPACIOS RECREATIVOS EXISTENTES: Nivel Micro

ESPACIOS RECREATIVOS: Propuesta

01. Parque Recreativo

02. Ruta Vehículos No motorizados

Ruta Ciclovía

Punto Intervención Principal

Red de Parques Estación Bicicletas

SANTA MARIA HUAYNA CAPAC PACCHA LATACUNGA CHINDUL COTACACHI ILINIZA PUERTO DE PALOS GUARANDA CASAGUALA PUYO RODRIGODE BASTIDAS CALICUCHIMA PINTAG CACHA HUALCOPO EPICLACHIMA PORTOVIEJO TULCAN SALAMANCA VALLADOLID GERONA VALENCIA ZARAGOZA PAMPLONA SEVILLA MADRID DUCHICELA CONDORAZO BARCELONA MURCIA VIGO SEVILLA GRANADA CORDOVA TOLEDO CADIZ VIRACOCHA MAINALOA JORGEMANRIQUE PONTEVEDRA MANUEL ZAMBRANO EUSEBIOBARRERA BARTOLOME RUIZ TOMAS SEVILLA FRANCISCOFLOR YAHUIRA GUAYAQUIL CUENCA PRIMERA IMPRENTA QUITO LA NIÑA PUENTEMONTALVO LLINCANDO SOTAURCO SANGAY CARIHUAYRAZO TOA MAYTA CAPAC QUINGALUMBA CHIAQUITINTA TUCOMANGO SERGIONUÑEZ JOAQUIN RIERA MIGUEL SUAREZ UNIDAD NACIONAL LASLILAS MIRAFLORES LASFRUTAS LASLIMAS LAS LIMAS JAMA LOS ANDES CARIHUAYRAZO MANGUS TIOPULLO SERRANIEGAS LOS CHASQUIS ARCHIDONA MILAGROTENA QUERO PELILEO QUISQUIS CHONE BIBLIAN OTAVALO PILLARO JORGERICAURTE ANTONIO DIAZ MIGUEL FREILE JOSE SUAREZ FRANCISCO PIZARRO ATAHUALPA TUPAC YUPANQUI QUISQUIS QUISQUIS NAZACOTA PUENTO QUILLISCACHA NINA CAPAC YUPANQUI CHAPERA CANTOC TUMBALA QUIMBALEMBO RUMIÑAHUI RUMIÑAHUI TOMALAOTOYA YAHUAR HUACAC ZOPOZOPANGUI ROCA INCA CHALCO MAYTA QUILAGO MALAGA ALGECIRAS HUESCATERUELIBIZA SORIA JAEN ARANJUEZ ALMERIA BILBAO CEUTA LUGO LERIDA OVIEDO SEGOVIA DAMASO ALONSO LOS CHASQUIS TERESA FLOR IGNACIO MARTINEZ ANGELACORONADO PIISIMA SANBUENAVENTURA PILLIS URCU LATACUNGA GARCILAZODELAVEGA PORTETE JUAN COELLO ABELARDO MONTALVO AYAPUNGO RIOBAMBA RIOAMBATO ALBACETESANSEBASTIAN RAZO RAZO JOSE PADILLA CHABI CINCODE JUNIO DOCEDENOVIEMBRE DOCEDENOVIEMBRE MARIANO EGUEZ GARCIAMORENO JOAQUINHERVAS OBISPO ITURRALDE LOPEZDELA HUERTA LOPEZDESOLIS JUANMONTALVO PEREZ DE ANDA LIZARDORUIZ SUCRE URDANETA VARGAS TORRES MANUELVASCONEZ HIPOLITOVEGA MARIETADE VEITIMILLA VITERI LAFRONTE RODRIGO PACHANO RODRIGO PACHANO MANUELASAENZ VICENTE PAREDES FIERRO URCU LLOQUEYUPANQUI LOSVOLCANES PASOCHOA EDMUNDO MARTINEZ BAHIA DE CARAQUEZ SANCRISTOBAL LAGO AGRIO LOJA AZUAY TUNGURAHUA CAÑAR CARCHI ELORO COTOPAXI CHIMBORAZO MANABI LOS RIOS ESMERALDAS GUAYAS IMBABURA NAPO MORONA SANTIAGO ZAMORA CHINCHIPE VEINTICUATRO DE MAYO AUTACHI ISIDRO AYORA CAÑARIS PACHACUTEC PALTAS PANTZALEOS IMBABURA PUNAES PURUHAES SALASACAS SARAGUROS SINCHI ROCA DAQUILEMA COLORADOS CARANQUIS HUANCAVILCAS ALMAGRO PEDRODE ALVARADO ALVAREZ CABRAL BALBOA BENALCAZAR HERNAN CORTES DIAZDEPINEDA DOCEDEOCTUBRE DOCEDEOCTUBRE DOCE DE OCTUBRE ELCANO LUQUE MAGALLANES ALONSO DE OJEDA ORELLANA PINTA PIZARRO RABIDA HERNADODESOTO TRIANA DIEGODE VELASQUEZ VESPUCIO ALCALA BALEARES CANARIAS CORUÑA JEREZ MALLORCA IBERICA PINZON COMPOSTELA TENERIFE CASONA GARCIA LORCA AZORIN NEBRIJA PICASSO PEDRO SALINAS VERDAGUER MARIA ZAMBRANO AROSEMENA TOLA LUIS CORDERO JAVIER ESPINOZA JUAN JOSE FLORES POVEDA BURBANO CACIQUE ALVAREZ ANTONIO ARELLANO CAZADORES GUILLERMO BODERO MANUEL FALCONI FLORDELABASTIDA JOSE GARCIA JOSE GODOY IGNACIO INDABURO MANUEL ITURRALDE MANCOCAPAC MANCO CAPAC FRANCISCO DE MARCOS SOLANDA DELAPEÑA PICHINCHA PICHINCHA LUIS SAA ESTANISLAOZAMBRANO CRISTOBALDEACUÑA ALCEDOYBEJARANO HERIBERTO ALVAREZ BALAREZO MONCAYO PASAJE GARCES WILSON GARCES DARIO GUEVARA ANICETO JORDAN JOSEDEMALDONADO MORENO MORA MIGUEL VALVERDE AUGUSTOVILLACRES ISAACROBAYO NATALIAVACA ALFONSO MOSCOSO JUANFRANCISCO MONTALVO CESARSILVA LASFLORES ALEJANDROCHAVEZ LAIDEA JERONIMO CARRION EMIGDIOBENITEZ JOAQUINHERVAS JOACHUIN BACA EUGENIO ESPEJO FLOREANA III FLOREANAII FLOREANA FLOREANA FLOREANA FLOREANAIV TRECEDEABRIL BOLIVAR CEVALLOS LAGOS SOTO CASTILLO MONTALVO MERA MARTINEZ ESPEJO ALFARO ROCAFUERTE ARAUJO COLON MALDONADO FERNANDEZ LALAMA ROCAFUERTE DARQUEA ALTAMIRANO PORTERO AILLON ABRIDORES CACAO HIGOS HIGOS CLAVELES DELICIA MARACUYA POMELOS MELOCOTONES AVELLANAS ANANAS FRAMBUESAS SANDIAS MARACUYA GUANABANAS TAMARINDOSUBILLAS CEREZAS ALMENDRAS OBITOS DATILES DURAZNOS PERAS TUNAS MEMBRILLOS ZARZAMORASGUAYTAMBOS TORONJAS HELECHOSNARDOS AGUACATES JAZMINESAZUCENAS HORTENSIAS MADRESELVAS GLADIOLOS GROSELLAS OLLERO DELICIA MIRABELES CAFE ARANDANOS HIGOS CALABAZAS CAQUIS ORITOS NISPOLAS CHAMBUROS ACEITUNAS PISTACHOS FEILLOAS LIMONES NARANJAS MANDARINAS TOCTES MORAS CUMBES HUERTOS NECTARINOS GUABAS ACEITUNAS UVAS TOCTES MANGOS CAIMITOS BANANAS PIÑAS FRUTILLASALBARICOQUES PAPAYAS MELONES BABACOS ARRAYAN ARAZA CAÑIZARES GUAYABAS MIRABELES CHIRIMOYAS TOMATES AGUACOLLAS AGUACOLLAS RAYMUNDO DE SALAZAR MORTIÑOSPEPINOS UVAS PIMIENTOSBADEAS ANACARDOS BENIGNOVELA POMACEAS SHIRIS SHIRIS SHIRIS ROSAS DALIAS AMAPOLAS RETAMAS ORQUIDEAS MALVAS GERANIOS PETUNIAS ILUSIONES SIEMPREVIVAS PENSAMIENTOS CIRUELAS TAXOS GUINDAS COCOS GIRASOLES CRISANTEMOS CACTUS CAPULIES FRESAS POMARROSAS MANGOSTINOS KIWIS MAMEYESBOROJOACHOTILLOS NARANJILLAS QUITEÑOLIBRE ARGOS RAYOX ALBA JUANORMAZA GRANADILLAS MANZANAS ACEITUNAS REINA CLAUDIAS BERENJENAS OLIVAS COTOPAXI PILLAHUAZO MARGARITAS CLAVIJO GLOXINEASBUGANVILLAS OLMEDO OLMEDO OLMEDO ORIENTE ORIENTE CRONICA PRIMULAS LUISDELEON INCAS INCAS INCAS MONTUFAR FLOREANAI RODO LEQUERICA SOLANO URBINA SALINAS QUIROGA CARANXI I.T.A.S.L.A.M Parque La Merced Colegio Bolivar Estadio Bellavista Parque 12 de Noviembre Estadio Bolivar Cruz Roja Padres Josefinos Colegio Natalia Vaca Central Casa Juan Montalvo Catedral Parque Montalvo Parque Cevallos CEVALLOS CEVALLOS CHIAQUITINTA RUMIÑAHUI ATAHUALPA ARLETTE PILAPAXI | ITINERARIO “A” | CARRERA DE ARQUITECTURA
| 06. PANEL 03: Diseño Multiescalar
12
01. Parque La Merced 02. Parque Cevallos 03. Parque Montalvo 04. Parque
de Noviembre 05. Parque Juan Benigno Vela 06. Parque de Los Enamorados 07. Parque CNT
08. Parque El Arbolito
1:10000
ESC.
ARLETTE PILAPAXI | ITINERARIO “A” | CARRERA DE ARQUITECTURA CIUDADES CIUDADORAS REPENSANDO LA CIUDAD DEL FUTURO | 06. PANEL 03: Diseño Multiescalar
PLAN BARRIO
ESCALA M

Diseño Parque Recreativo

Diseño de red para vehículos no motorizados (ciclovía)

Generar espacios públicos recreativos y áreas verdes

ARLETTE PILAPAXI | ITINERARIO “A” | CARRERA DE ARQUITECTURA CIUDADES CIUDADORAS REPENSANDO LA CIUDAD DEL FUTURO | 06. PANEL 03: Diseño Multiescalar

Intervención paisajística dentro de las zonas de interacción

Creación de retiros pe meables con más vegetación e iluminación

ARLETTE PILAPAXI | ITINERARIO “A” | CARRERA DE ARQUITECTURA CIUDADES CIUDADORAS REPENSANDO LA CIUDAD DEL FUTURO | 06. PANEL 03: Diseño Multiescalar
ESC. 1:2000

ESCALA S

PROPUESTA INTERVENCIÓN

ARLETTE PILAPAXI | ITINERARIO “A” | CARRERA DE ARQUITECTURA CIUDADES CIUDADORAS REPENSANDO LA CIUDAD DEL FUTURO | 06. PANEL 03: Diseño Multiescalar

Zona No Motorizados

Espacio centrado en la implementación de una ciclovía que incentive la interacción.

Zona Deportiva

Espacio donde se concentran pistas de skate y y zonas que otorgan entretenimiento.

Zona de Descanso

Espacio enfocado en crear sitios de descanso (mobiliario urbano) y disfrute de lo natural.

SIMBOLOGÍA

Áreas Verdes y de Descanso

ARLETTE PILAPAXI | ITINERARIO “A” | CARRERA DE ARQUITECTURA CIUDADES CIUDADORAS REPENSANDO LA CIUDAD DEL FUTURO | 06. PANEL 03: Diseño Multiescalar
Aceras Peatonales Jacaranda Arupo Ciclovía
01
ESC. 1:500 01 02 03
ARLETTE PILAPAXI | ITINERARIO “A” | CARRERA DE ARQUITECTURA CIUDADES CIUDADORAS REPENSANDO LA CIUDAD DEL FUTURO | 06. PANEL 03: Diseño Multiescalar LAS FRUTAS LASLIMAS LAS LIMAS HIGOS MARACUYA POMELOS MELOCOTONES AVELLANAS ANANAS FRAMBUESAS SANDIAS MARACUYA GUANABANAS TAMARINDOS UBILLAS CEREZAS ALMENDRAS TORONJAS AGUACATES GROSELLAS CAFE ARANDANOS HIGOS CALABAZAS CAQUIS ORITOS CHAMBUROS ACEITUNAS LIMONES NARANJAS MANDARINAS TOCTES MORAS CUMBES HUERTOS NECTARINOS TOCTES MANGOS ALBARICOQUES PAPAYAS MELONES BABACOS RAYMUNDO FRESAS POMARROSAS MANGOSTINOS KIWIS BOROJOACHOTILLOS NARANJILLAS LASLIMAS PACHANO POMELOS MELOCOTONES TOCTES MANGOS CAIMITOS BANANAS PIÑAS FRUTILLASALBARICOQUES PAPAYAS MELONES BABACOS ORQUIDEAS GUINDAS COCOS GIRASOLES CRISANTEMOS CAPULIES FRESAS POMARROSAS MANGOSTINOS KIWIS MAMEYES 1.20 2.00 0.50 6.00 1.20 01 02 1.70 4.00 2.00 4.00 1.70 0.50 2.00 2.00 0.50 2.00 2.00 Calle Las Limas y Pomelos Av. Los Guaytambos y Avellanas
ARLETTE PILAPAXI | ITINERARIO “A” | CARRERA DE ARQUITECTURA CIUDADES CIUDADORAS REPENSANDO LA CIUDAD DEL FUTURO | 06. PANEL 03: Diseño Multiescalar PUERTO DE PALOS GUARANDA FRANCISCOFLOR PRIMERA PUENTEMONTALVO SOTAURCO QUISQUIS PILLARO FRANCISCO PIZARRO TUPAC QUILLISCACHA TERESA FLOR DOCEDENOVIEMBRE MARIANO EGUEZ JOAQUINHERVAS ITURRALDE HIPOLITOURDANETA VEGA MARIETADE VEITIMILLA VITERI LAFRONTE LOJA ELORO CHIMBORAZO LOS ALVAREZ CABRAL BENALCAZAR HERNAN CORTES ORELLANA PIZARRO DIEGODE VELASQUEZ PASAJE GARCES JOAQUINHERVAS JOACHUIN BACA FLOREANA III TRECEDEABRIL BOLIVAR CEVALLOS LAGOS CASTILLO MONTALVO MERA MARTINEZ ESPEJO ALFARO LALAMA HELECHOS JAZMINESAZUCENAS HORTENSIAS MADRESELVAS GLADIOLOS DELICIA DE SALAZAR MORTIÑOS BENIGNOVELA OLMEDO ORIENTE FLOREANAI SOLANO QUIROGA Colegio Bolivar Parque 12 de Noviembre Padres Josefinos Central Catedral Parque Montalvo Parque Cevallos CEVALLOS HUAYNA CAPAC PACCHA PUERTO DE PALOS PINTAG BARTOLOME RUIZ FRANCISCOFLOR YAHUIRA GUAYAQUIL QUITO TOA MAYTA MIRAFLORES LAS LIMAS FRANCISCO PIZARRO TUPAC YUPANQUI QUISQUIS CAPAC QUIMBALEMBO RAZO RAZO DOCEDENOVIEMBRE LOPEZDELA HUERTA SUCRE VITERI LAFRONTE LLOQUEYUPANQUI AUTACHI CAÑARIS SALASACAS SARAGUROS CARANQUIS HUANCAVILCAS PEDRODE ALVARADO DOCEDEOCTUBRE ELCANO ALONSO DE RABIDA DIEGODE VELASQUEZ PASAJE GARCES BENITEZ FLOREANAII FLOREANAI FLOREANAI TRECEDEABRIL CASTILLO MONTALVO HIGOS DURAZNOS MEMBRILLOS TORONJAS AGUACATES NARANJAS BENIGNO SHIRIS MALVAS REINA CLAUDIAS PRIMULAS INCAS MONTUFAR LEQUERICA SOLANO URBINA SALINAS QUIROGA Estadio Bolivar Cruz Roja CEVALLOS CEVALLOS 1.50 1.50 0.50 6.00 2.30 5.00 7.00 2.86 12.90 03 Calle Las Frutas y Moras 02 Jacaranda Arupo Lavanda Ciclovía Colorimetría Bordes Permeables Mobiliario Urbano

Diseño Parque Recreativo

Creación de retiros permeables con más vegetación e iluminación Zona

Diseño de red para vehículos no motorizados (ciclovía)

Generar espacios públicos recreativos y áreas verdes

ARLETTE PILAPAXI | ITINERARIO “A” | CARRERA DE ARQUITECTURA

CIUDADES CIUDADORAS
CIUDAD DEL FUTURO | 06.
CHINDUL COTACACHI ILINIZA CASAGUALA PUYO IMPRENTA SANGAY CARIHUAYRAZO JAMA LOS ANDES CARIHUAYRAZO MANGUS TIOPULLO ARCHIDONA MILAGROTENA CHONE BIBLIAN PILLIS URCU PORTETE AYAPUNGO DOCE FIERRO URCULOSVOLCANES PASOCHOA DE CARAQUEZ CARCHI MANABI ESMERALDAS GUAYAS NAPO MORONA SANTIAGO ZAMORA CHINCHIPE EUGENIO ESPEJO FLOREANAIV ORIENTE Estadio Bellavista LATACUNGA CHINDUL GUARANDA CASAGUALA PUYO EPICLACHIMA PORTOVIEJO TULCAN LLINCANDO SOTAURCO JAMA CARIHUAYRAZO LOS CHASQUIS ARCHIDONA MILAGROTENA QUERO PELILEO QUISQUIS CHONE BIBLIAN OTAVALO PILLARO NAZACOTA PUENTO QUILLISCACHA NINA YUPANQUI CHAPERA CANTOC TUMBALA RUMIÑAHUI TERESA FLOR PILLIS URCU LATACUNGA PORTETE AYAPUNGO RIOBAMBA NOVIEMBRE JOAQUINHERVAS HIPOLITOURDANETA VEGA MARIETA VICENTE PAREDES BAHIA DE CARAQUEZ LAGO AGRIO LOJA AZUAY TUNGURAHUA CAÑAR CARCHI ELORO COTOPAXI CHIMBORAZO MANABI LOS RIOS ESMERALDAS GUAYAS IMBABURA NAPO MORONA SANTIAGO ZAMORA CHINCHIPE
DE MAYO PURUHAES PICHINCHA JOACHUIN BACA ESPEJO FLOREANA III VELA COTOPAXI OLMEDO ORIENTE ORIENTE
Estadio Bellavista Parque 12 de Noviembre Padres Josefinos Central
REPENSANDO LA
PANEL 03: Diseño Multiescalar
VEINTICUATRO
INCAS
motorizados
Deportiva
de Descanso 01 02 03
No
Zona
Zona
ARLETTE PILAPAXI | ITINERARIO “A” | CARRERA DE ARQUITECTURA CIUDADES CIUDADORAS REPENSANDO LA CIUDAD DEL FUTURO | 06. PANEL 03: Diseño Multiescalar
ARLETTE PILAPAXI | ITINERARIO “A” | CARRERA DE ARQUITECTURA CIUDADES CIUDADORAS REPENSANDO LA CIUDAD DEL FUTURO | 06. PANEL 03: Diseño Multiescalar
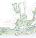
07. PANEL 04 INTERVENCIÓN PUNTUAL
SKATE PARK ARLETTE PILAPAXI | ITINERARIO “A” | CARRERA DE ARQUITECTURA CIUDADES CIUDADORAS REPENSANDO LA CIUDAD DEL FUTURO | 07. PANEL 04: Intervención

Los ejes principales del proyecto se generan a partir de la continuidad del pasaje de la calle Las Frutas y de la proyección transversal de la misma para conectarla con la calle Las Moras

ARLETTE PILAPAXI | ITINERARIO “A” | CARRERA DE ARQUITECTURA CIUDADES CIUDADORAS REPENSANDO LA CIUDAD DEL FUTURO | 07. PANEL 04: Intervención SKATE PARK

PLANTA BAJA VISUALES 3D

ARLETTE PILAPAXI | ITINERARIO “A” | CARRERA DE ARQUITECTURA CIUDADES CIUDADORAS REPENSANDO LA CIUDAD DEL FUTURO | 07. PANEL 04: Intervención SKATE PARK
0 5 10 20 30 60 100 A’ B’ A B
ARLETTE PILAPAXI | ITINERARIO “A” | CARRERA DE ARQUITECTURA CIUDADES CIUDADORAS REPENSANDO LA CIUDAD DEL FUTURO | 07. PANEL 04: Intervención SKATE PARK
Antes: Estado Actual Intervenci[on General 0 5 10 20 30 60
IMPLANTACIÓN ANTES - DESPUÉS
ARLETTE PILAPAXI | ITINERARIO “A” | CARRERA DE ARQUITECTURA 01 02 03

CORTES FUGADOS

ARLETTE PILAPAXI | ITINERARIO “A” | CARRERA DE ARQUITECTURA
LA CIUDAD DEL FUTURO | 07. PANEL 04: Intervención
CIUDADES CIUDADORAS REPENSANDO
SKATE PARK ARLETTE PILAPAXI | ITINERARIO “A” | CARRERA DE ARQUITECTURA

Turn static files into dynamic content formats.

Create a flipbook
Issuu converts static files into: digital portfolios, online yearbooks, online catalogs, digital photo albums and more. Sign up and create your flipbook.
Portafolio Urbano | Arlette Pilapaxi by Arlette Pilapaxi - Issuu