Kitchen Project

Page 1

Kitchen Project New Look for New Englanders Boston Massachusetts Anna Gary Residential Design J. Moorman 11/2/2022

Chapter 1

Preliminary Planning

Chapter 2

Materials & Selections

Chapter 3

Construction Documents

Chapter 4

Elevations

Chapter 5

Table of Contents
Rendered Perspectives

Preliminary Planning

Client Overview

The Clients

Lauren and Calvin Johnson, along with their two teenage children, live in a suburb of Boston, Massachusetts are wanting to renovate their kitchen.

Design Aesthetic

- Luxury materials and items

- Warm white or neutrals, but also popping shades of green, blue, and burgundy

Design Goals

-Use the space to its fullest potential

- Maintain a traditional style of the home

- Large windows

- A pantry for quick grab and go items

- Keep the kitchen the heart of the home

- Space for hosting, hanging out, and doing homework

Conceptual Imagery

Concept Colors

Materials & Selections

F1 C1 P1 C2

Construction Documents

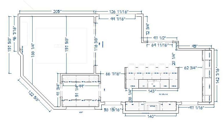
Floor Plan

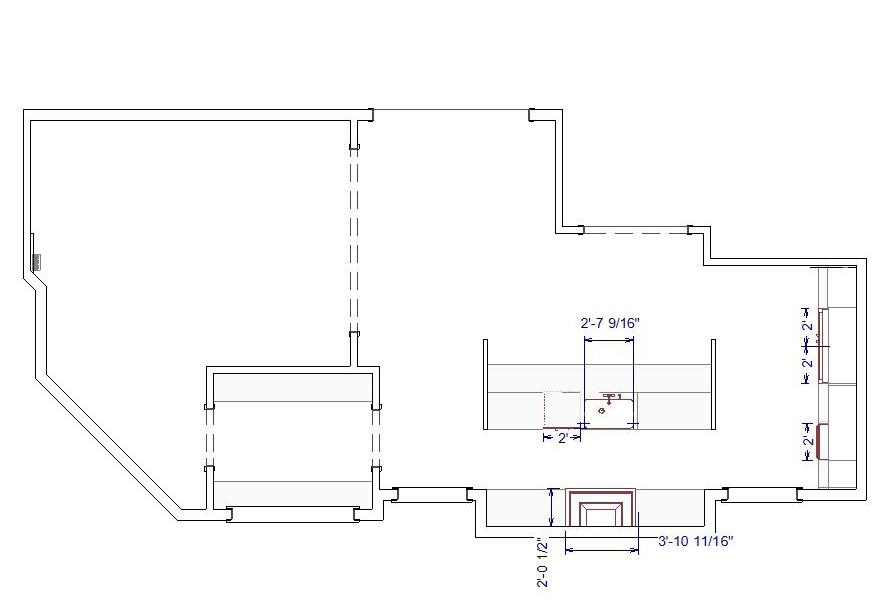
Mechanical Plan

Electrical Plan

Elevations

North Wall Elevation

West Wall Elevation

West Wall Elevation

Pantry Elevation

Rendered Perspectives

Thank you!

Turn static files into dynamic content formats.

Create a flipbook
Issuu converts static files into: digital portfolios, online yearbooks, online catalogs, digital photo albums and more. Sign up and create your flipbook.