Parade of Homes 2023

Page 1

of Homes 2023 Moorman Family Residence Anna Gary J. Moorman Residential Design 2 03/06/2023
Parade

Chapter 1

Schematic Design

Chapter 2

Construction Documents

Chapter 3

Rendered Perspectives

Table of Contents

Wilmington Island, Georgia

- According to a 2020 census, the population is around 15,129 people.

- It is part of the Savannah metropolitan area, the island forms one of the large suburbs of Savannah, Georgia.

- The island lies east of Savannah between the town thunderbolt and the beach community of Tybee island.

Location

Meet the Clients

THE mOORMAN family Hired me to design their new home in Wilmington island, Georgia. Jillissa and Brooks have four kids

Kalya, Kolson, Karder, and Kensley. They also have two Australian Shepard’s, Allie and Macie. The family loves hosting friends and family at their home and live very busy lifestyles.

Design Goals:

- large kitchen

- formal dining room ready to seat up to ten people

- laundry room with an island and space for baskets

- Master Suite

- Separate bedroom for each child

- a room for foster children

- At least three stall garage with space to store their boat

Construction Documents

Laundry Room Mud Room Jillissa’s Office Brooks Office Snack Station
Floor Plan: Level 1

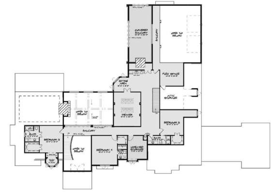
Floor Plan: Level 2

Foster Children Room Kolson’s Room Guest Suite

Elevation

Marble Countertops & backsplash black pendant light Magma

Gray Matters

Sherwin Williams

Elevation

CREAM

FIREPLACE wALL sTONE

First Floor Perspectives

Dining Room

Dining Room

Kitchen: Snack Station

Kitchen

Kitchen

Kitchen

Living Room

Living Room

Living Room

Laundry room

Laundry room

Laundry room

Laundry room

Jillissa’s Office

Hard wood Flooring Meta quartz astek Proper Gray Sherwin williams

Jillissa’s Office

Jillissa’s Office

Master Suite

Master Suite

Master Suite

Master Suite

Second Floor Perspectives

Kalya’s Room

Hard wooD Flooring LotuS PETAL sHERWIN WILLIAMS Palms Green Astek

Kalya’s Room

Kalya’s Room

Kalya’s Room

On the rocks

Kolson’s Room

Sherwin williams Edinburgh Astek Hard wooD Flooring

Kolson’s Room

Kolson’s Room

Kolson’s Room

Karder’s Room

Astrogaphy Astek Innovia Victoria falls Crushed Ice Sherwin Williams

Karder’s Room

Karder’s Room

Karder’s Room

Kensley’s Room

Priscilla Pink Sherwin Williams Belinda silver Trail Astek Hard wooD Flooring Nautica Swing Chair

Kensley’s Room

Room for Foster Children

Room for Foster Children

Room for Foster Children

Thank you for your time & attention!

Turn static files into dynamic content formats.

Create a flipbook
Issuu converts static files into: digital portfolios, online yearbooks, online catalogs, digital photo albums and more. Sign up and create your flipbook.
Parade of Homes 2023 by Anna Gary - Issuu