Senior Living Project

Page 1

THE JEFFERSON FAMILY INDEPENDENT LIVING FACILITY

Anna Gary Residential Design 2 J. Moorman 04/12/2023

Chapter 1. Meet the Clients

Chapter 3: Rendered Perspectives

Chapter 4. Construction Documents

Chapter 2. Inventory List

Chapter 2: Construction Documents

Chapter 3. Materials + Selections

Chapter 5. Rendered Perspectives

Table of Contents

Meet the Clients!

My clients Mr. and Mrs. Jefferson are downsizing and moving into an independent living facility. Mr. Jefferson had some recent health changes that now require him to be in a wheelchair, so ADA accessibility and lots of open floor space is a major requirement for their new home. They love spending time with their grandchildren and hope to this new space has a layout that will still allow them to continue to do so. The Jefferson’s used to be frequent travellers, before Mr. Jefferson’s health changes, so they would like this space to have reminders of their past adventures and a cozy home feeling to it.

Inventory List

Object Quantity Location Lamps 2 Primary Bedroom Dining Table Set 1 Dining Room Bedroom Set (bed frame, nightstands, and dresser) 1 Primary Bedroom Brown Leather Recliner 1 Living Room Blue Recliner 1 Living Room Artwork 1 Primary Bedroom Rocking Chair 1 Primary Bedroom Bells 7 Dining Room Mirror 1 Primary Bedroom
Inventory List

Materials + Selections

WC1 WC2
WC3 R1 M1 TV1

Construction Documents

Site Plan

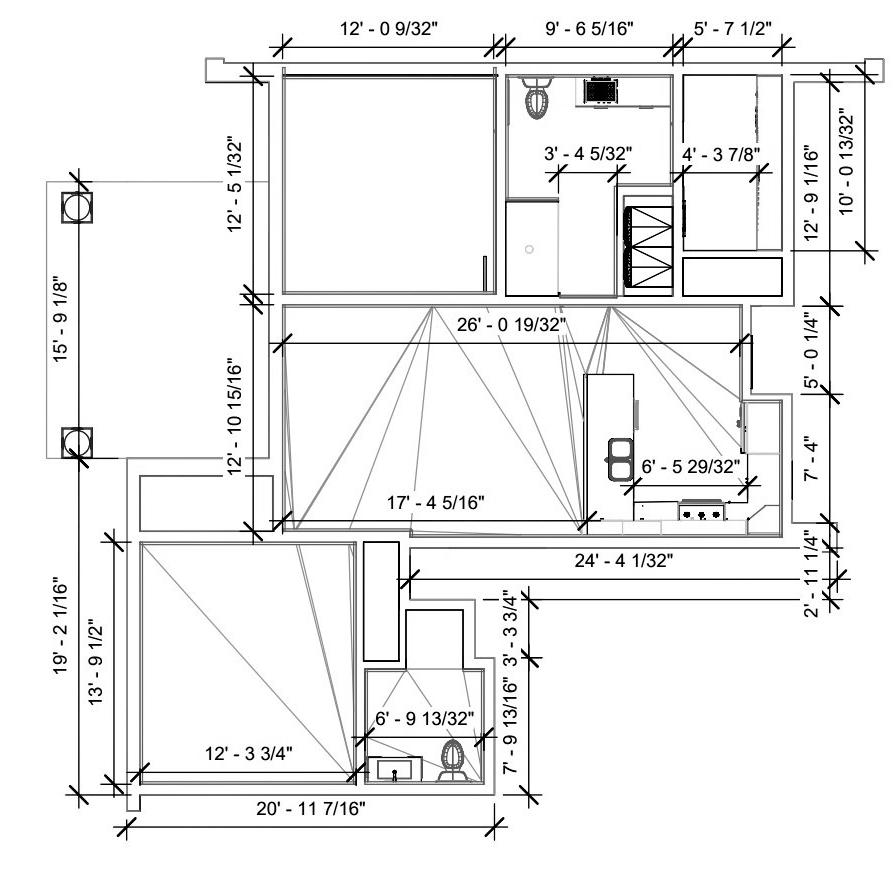
Dimensioned Floor Plan

Life Safety Plan

Plans

Rendered Floor Plan

Rendered Axonometric View

Rendered Perspectives

Kitchen + Dining Perspective

Kitchen + Dining Perspective

Kitchen + Dining Perspective

Kitchen + Dining Perspective

Living Room Perspective

Living Room Perspective

Living Room Perspective

Second Bathroom Perspective

Second Bathroom Perspective

Primary Bedroom Perspective

Primary Bedroom Perspective

Primary Bathroom Perspective

Primary Bathroom Perspective

Primary Bathroom Perspective

Primary Bathroom Perspective

Patio Perspective

Thank you!

Turn static files into dynamic content formats.

Create a flipbook
Issuu converts static files into: digital portfolios, online yearbooks, online catalogs, digital photo albums and more. Sign up and create your flipbook.
Senior Living Project by Anna Gary - Issuu