CENTROS CULTURALES

TALLER DE DISEÑO ARQUITECTONICO VII
CATEDRA:
ARQ. TAVARA CASTILLO, HUGO ROL ANDO

ALUMNA:

CATEDRA:
ARQ. TAVARA CASTILLO, HUGO ROL ANDO
ALUMNA:
1.1 Centro Cultural Ricardo Palma
2.1 Centro Cultural La Moneda
UBICACION
ACCESIBILIDAD:
ASOLEAMIENTO:
Peru Lima Metropolitana
SUPERFICIE:
2700 m2
MODELO DE GESTION: Publico
ARQUITECTO:
Municipalidad de Miraflores
TIPOLOGÍA :
Centro cultural contemporanea
AÑO DE PROYECTO: 1994
USUARIOS:Orientado para publico en general, dividiendose este en :
• Usuario frecuente:Asistente de biblioteca y hemeroteca
• Usuario esporadico:Zona publica(cafeteria,salas de exposicion y auditorio)
El sol da a la cara principal del edificio, pero esto no afecta en nada al usuario , ya que en el ingreso hay un retiro que esta cubierto por una especie de piel que le otorga sombra todo el dia.
FORMA:
• La composicion se rigio por la forma del terreno , se trata de un rectangulo que va a lo largo de la manzana.
• Ademas como eje principal mantuvo la extension de la calle Bolivar.
El retiro le otorgo mas espacialidad al peaton al momento de pasar por el edificio.
CLIMA:
El clima de Miraflores combina un alto nivel de humedad atmosferica y persistente cobertura nublosa, con alguna llovizna en epoca de invierno.
La 1° media anual de la costa litoral limeño es de 18°c.La 1° maxima en meses de verano puede llegar a 30°c y la minima a 8°c.
La gran horizontalidad que tiene el centro le da ese aspecto de monumentalidad , ademas enfatiza el edificio de imagen institucional
Caracteristica importante es la conexión que existe en todos los pisos gracias a este espacio central abierto hasta el techo donde hay una teatina mismo que sirve para iluminar de forma natural a gran parte del proyecto.
INTEGRANTES: Gamonal Jimenez, Andrea
CURSO: Taller de Diseño
Arquitectonico VII
DOCENTES: Arq. HugoRolando Tavara Castillo
CICLO: VII FECHA:15/ 04/2023
• Presenta un solo ingreso a travez de un hall de recibo que contiene una rampa y una escalera ademas de este espacio presenta un hall central que concentra la circulacion vertical dos escaleras y ascensores.
• La circulacion de servicios si se encuentra dispersa en donde es necesario su transito, como en el auditorio.
• La circulacion verticar se concetra en el hall central y la horizontal se ve den diferentes flujos
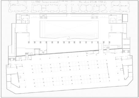
La mayor zona es la biblioteca que ocupa todo el tercer nivel.
Las funciones se organizan alrededir de un espacio central , logrando una planta tipica de 4 pisos.
PUBLICO
LEYENDA:
CONSIDERACIONES DE DISEÑO:
• Los espacios de mayor flujo se concentran en el primer nivel como el auditorio y la cafeteria.
• Las oficians se concentran en el segundo nivel
• La zona mas tranquila se ubica en el tercer nivel y es basicamente la biblioteca
Su recorrido facilita al usuario una manera mas simple de ir hacia el espacio deseado
ESPACIOS INTERIORES:
UNIVERSIDAD
TECNOLOGICA DEL PERU
INTEGRANTES: Gamonal Jimenez, Andrea
CURSO: Taller de Diseño
Arquitectonico VII
DOCENTES: Arq. HugoRolando Tavara Castillo
USO DE SUELO:
TIPO DE USO: Comercio metropolitano
CRITERIOS DE DISEÑO
RADIO DE INFLUENCIA: Su rango de jerarquia es de nivel 3
Volumetria compacta de 3 niveles y un solo frente.Proporciona monumentalidad a travez de las placas que jerarquizan su ingreso y crean un portico.
CICLO: VII
FECHA:15/ 04/2023
LAMINA: L-02
Velocidad del viento
• La forma responde a la combinacion de la trama entre el Palacio de la Moneda y la Plaza de la Ciudadania
• CONSTRUCCION:
Noviembre 2004 - Septiembre
2006
• SUPERFICIE: 7200 m2
• VISITANTES:
1000 personas al dia aprox.
• ARQUITECTO:
Cristian Undurraga
• TIPOLOGÍA :
Centro cultural Rehabilitación cultura / Ocio
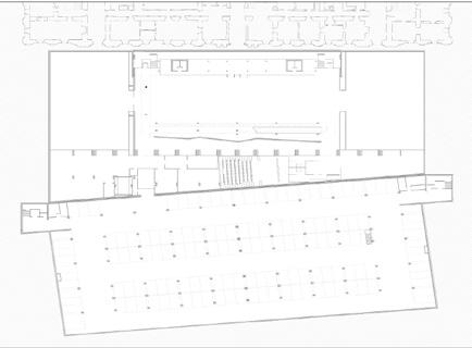
Para ingresar al centro cutural se debe recorrer hasta los extremos del Palacio de la Moneda(reponde a una trama de lleno/ vacio que hay cuadros amarrillo) , esto proporciona un recorrido visual del palacio (si se va por la calle Liber Bernando O”higgins y ademas no compiten el ingreso central de la Moneda.
CIRCULACION
• Creando una espacio intermedio entre estos lugares
Direccion del viento
Los rayos solares ingresan a los espacios netamente por el techo,debido a que sencuetran bajo tierra donde a traves de un entramado de paneles logran entrar y llenar de luz un gran vacion central del centro cultural.
Recorrido de ingreso
UNIVERSIDAD
TECNOLOGICA
INTEGRANTES:
Gamonal Jimenez, Andrea
CURSO: Taller de Diseño
Arquitectonico VII
DOCENTES:
Arq. HugoRolando Tavara Castillo
CICLO: VII
FECHA:15/04/2023
LAMINA:
L-03
ZONIFICACION:
El centro cultural de la Moneda tiene como finalidad ser un reflejo del Palacio de la Moneda invirtiendo papeles de acuerdo a la funcion , forma o espacio que este tenga.
Luz natural controlada
La funcion de el centro cultural esta dado en base a los grados de usuarios que se requieren para cada espacio,ya sea lugares publicos y privados, para una mayor accesibilidad y ademas para copiar la idea que tiene el palacio de la moneda.
UNIVERSIDAD
TECNOLOGICA DEL PERU
INTEGRANTES: Gamonal Jimenez, Andrea
CURSO: Taller de Diseño
Arquitectonico VII
Sala de exposiciones
Acceso
Vacio Hall
Zona de comida
Zona cultural
Oficinas
Administrativas
Cineteca /Auditorio
Bodegas sala
exposicion
Bodega cineteca
Biblioteca
Baños
DOCENTES: Arq. HugoRolando Tavara Castillo
El hormigon posee una elevada inercia termica.Absorbe calor durante el dia para luego desprenderlo progresivamente, manteniedno asi un abiente agradable en su interior con altas temperaturas exteriores.
CICLO: VII
FECHA:15/04/2023
Al emplazarse bajo tierra, se mantiene siempre a una temperatura constante y agradable.
El color blanco no absorbe en abundancia la energia solar y sumado a su espacio interior monumental, ayuda a que no existan altas temperaturas dentro.
LAMINA: L-04