PORTAFOLIO PROYECTO III - ALEXANDRA SILVA

Page 1

PORTAFOLIO 2023-1

20222430

T6N3

Docentes:

Arq. HernánElguera Chumpitazi

Arq. Gonzalo La Hoz Astengo

FacultaddeArquitectura

Ciclo2023 -1

CURRICULUM VITAE

PROGRAMAS

Microsoft Office

AutoCAD 2023

Revit 2023

SketchUp 2022

Photoshop

InDesign

INTERESES

ALEXANDRA SILVA GARCÍA

20/05/2005 | Lima, Perú

940 122 587

alexasilvag921@gmail.com

20222430@aloe.ulima.edu.pe

SOBREMÍ

Soy estudiante de tercer ciclo de la carrera de Arquitectura en la Universidad de Lima. Me considero una persona motivada, creativa y con proactividad para el trabajo en equipo. Además, cuento con un buen manejo del idioma inglés, lo que me permite desenvolverme y expresar mis ideas con facilidad. Por útlimo, me gusta mucho el diseño, el arte y la música; así como viajar y practicar deportes como el vóley.

IDIOMAS

Illustrator Español

Inglés

EDUCACIÓN

ColegioLaInmaculadaConcepción

Educación Primaria

Educación Secundaria

UniversidaddeLima

2011 - 2016

2017 - 2021

Pre-grado2022 - actualidad

RECONOCIMIENTOSMATERIASENCURSO

Cuartopuesto

A lo largo de Educación Secundaria

DécimoSuperior-UniversidaddeLima

2022-1 & 2022-2

ROLESEXTRACURRICULARES

ColegioLaInmaculadaConcepción

Miembro delEstado Mayor 2021

Miembro de laselección devóley

Proyecto de Arquitectura III

Dibujo III

Historia del Arte Construcción I Física

ACTIVIDADESACADÉMICAS

Metodologías proyectuales 6° edición: La forma en la arquitectura. Universidad de Lima, 2023

DIBUJO Y PINTURA VIAJES MÚSICA REPOSTERÍA VOLEY FOTOGRAFÍA 02

CONTENIDOS

TEMASRIBA:1,2,3,4y5 TEMASRIBA:1,2,3,4y5
04 - 0708 - 15 16 - 25
TEMASRIBA:1,2,3,4y5 E01:ESTUDIODECASOSE02:ESPACIOFLEXIBLEE03:CASADOMINO
ODS
T1/T2/T3/T4/T5 3/5/9/10/11/13/15

MUSEO DE ARTE CONTEMPORÁNEO SIGLO XXI

DESCRIPCIÓN:

- Este fue el ejercicio de introducciónaltaller.

Se tuvo que analizar un referente, en este caso el Museo de Arte Contemporáneo Siglo XXI del estudio SANAA, el cual nos sirvió como guía para el siguiente proyecto.

DURACIÓN:

• 2semanas

ENCARGO:

-Maqueta1/750

-Analizar:

• Planimetría

• Estrucutura

• Envolvente

• Programa

• Vectoresdemovimiento

COMENTARIO:

- Con este ejerciciopude aprender principalmente sobre la funcionalidad y los criterios que uno debe tener en cuenta al diseñar un museo o pabellón, lo cual fue una pieza clave al realizar mi siguienteproyecto.

UBICACIÓN

05
1-2-1Hirosaka, KanazawaCity,Ishikawa 920-8590,Japón
MAQUETA VISTA EN PLANTA MAQUETA VISTA 1 MAQUETA VISTA 2
HORIZONTALIDAD
..
CIRCULO ABIERTO
TRANSPARENCIA
06
07
3/5/9/10/11/13/15 ODS
T1/T2/T3/T4/T5

TEMA:

• Sala de exposiciones enMiraflores

UBICACIÓN:

• ParqueGrau

DIMENSIONES:

• 22x22x3

DURACIÓN:

• 5semanas

ESCALA:

• 1/75

PROGRAMA:

• Counterinformativo

• Núcleodebaños públicos

• Zonadecafé

• Saladepinturas

• Saladeesculturas

• Saladeproyecciones

• Saladeinstalaciones

• Galeríadefotografías

REQUERIMIENTOS:

• Mantener la estrutura predeterminada

• El camino es público 24 horas (no puede ocuparse)

• Unsolonivel

ABSTRACCIÓN DEL REFERENTE

• Lo que rescaté de mi referente fueron las franjas de la circulación ya que no sigue un solo camino, sino que el visitante puede decidir el ordenporelquerecorrerá lasdistintasexposiciones.

Museo de Arte Contemporáneo Siglo XXI

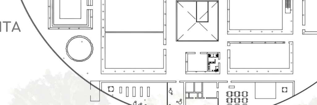
PLANTAS

           
09
  10
ESPACIOFLEXIBLE-ELEVACIONES
  11 ESPACIOFLEXIBLE-ELEVACIONES
  ESPACIO FLEXIBLE - CORTES 12
  ESPACIO FLEXIBLE - CORTES 13
ESPACIO
14
FLEXIBLE-AXONOMETRÍAS

Estefuemiprimerproyectoyestoymásquesatisfecha conelresultado final.Sibien,alprincipiopresentéun poco de dificultades, ya que no dominaba AutoCAD para realizar toda la parte gráfica, puedo decir que demostré una buena capacidad de adaptación a las nuevas herramientas y así poder entregar un trabajo completo. Por otro lado, fue la primera vez que aplicabacelosíasaunproyectoymeparecióungran acierto ya que le brindó un plus alproyecto.

ESPACIO FLEXIBLE - MAQUETA 1/75          
15
ODS
T1/T2/T3/T4/T5 3/5/9/10/11/13/15

TEMA:

• Viviendaunifamiliar

UBICACIÓN:

• Condominio

DIMENSIONES:

• 10.25x6.30x5.60

DURACIÓN:

• 7semanas

ESCALA:

• 1/50

PROGRAMA:

• Sala-comedor

• Dormitorios(2)

• Bañocompleto compartido

• Bañodevisitas

• Estudio

• ClosetLavadorasecadora

REQUERIMIENTOS:

• Plantalibre

• Mantenerloselementos predeterminados: estructuras,losas,escaleras

COMENTARIO

Para este último ejercicio, tuvimos de base la Casa Domino de Le Corbusier. Con esta teniamos que cumplir con el programa planteado y adaptarlo al usuario que nosotros mismos definimos. En mi caso, mis usuarios fueron 2 compositores / productores musicales. Por otro lado, un requisito importante era la planta libre es por ello que existen muy pocos muros en la primera planta. Lo que delimita el primer piso son mamparas que dan la impresión de que todoestá libre y abierto, lo cual va acordea mis usuarios ya que, al ser personas creativas, necesitan tener contacto con el exterior como fuente de inspiración ensu día adía.

17
    
18 CASA DOMINO - PLANOS 
19 CASA DOMINO - PLANOS 
20 CASA DOMINO
- CORTES
CORTE A - A ESC 1/50 CORTE A-A
21 CASA DOMINO - CORTES
CORTE B-B

CASA DOMINO - ELEVACIONES

22
ELEVACION FRONTAL ELEVACION LATERAL 1
CASA DOMINO - ELEVACIONES
23
ELEVACION POSTERIOR ELEVACION LATERAL 2

CASA DOMINO - AXONOMETRÍAS

24
A.SILVA T6 N3
A.SILVA T6 N3
CASA DOMINO
CASA DOMINO

Con este proyecto pude aprender más a jugar con los llenos y vacíos para componer una buena fachada. Por otro lado, pude profundizar sobre las medidas mínimas de los espacios, la antropometría, así como buscar la mejor manera de organizar los espacios para permitir una rápida y efectiva circulación. Por último, lo aprendido en AutoCAD fue reforzado ya que, a diferencia del anterior proyecto, tuve que implementar mobiliario a las axonometrías, lo cual tomó tiempo pero tuvo un gran resultado.

REFLEXIÓN FINAL:

Termino este tercer ciclo sumamente satisfecha con los resultados de mis proyectos. Al principio lo sentí retador ya que sabía que iba a ser muy diferente a taller básico, sin embargo, poco a poco me fui adaptando y disfrutando cada paso del proceso, es por ello que me siento orgullosa por mi mejora continua y progresiva a lo largo de estos meses. Para finalizar, me siento contenta con los nuevos conocimientos adquiridos este ciclo los cuales serán de gran importancia e irán de la mano en mi formación como futura arquitecta.

25 CASA DOMINO - MAQUETA 1/50

Nombre del curso:

Proyecto de Arquitectura III

Sección: 326

Nombre de los profesores:

Hernán Elguera Chumpitazi

Gonzalo La Hoz Astengo

INFORMACIÓN DEL CURSO CONSOLIDADO DE MATRÍCULA 2023-1

Sumilla del curso:

Proyecto de Arquitectura III es una asignatura obligatoria Teórico-Práctica, que forma parte del Taller Vertical. Su desarrollo temático gira en torno al diseño de un objeto arquitectónico dentro de un contexto natural.

Objetivo General:

Componer y elaborar un proyecto arquitectónico a partir de una propuesta conceptual vinculándolo con el contexto natural en el que se emplaza.

Objetivos Específicos:

1. Considerar las bellas artes como una influencia relevante en el diseño arquitectónico.

2. Incluir en el diseño, criterios de antropometría y ergonometría.

3. Vincular la composición del objeto arquitectónico con la organización espacial y una lógica estructural, con especial énfasis en los aspectos estéticos.

4. Objetivos de Desarrollo Sostenible - ODS:

• Lucha contra la pobreza (ODS 3,9,11)

• Cuidado del planeta (ODS 13,15)

• Respeto a la diversidad (ODS 5,10)

5. Temas RIBA desarrollados en la asignatura:

• Tema 1: Salud y seguridad en la vida

• Tema 2: Práctica ética y profesional

• Tema 3: Estructura, construcción y recursos

• Tema 4: Historia, teoría y metodologías

• Tema 5: Pedagogías de diseño y expresión arquitectónica

26
Facultad de Arquitectura Ciclo 2023 - 1
CURSO DOCENTE SECCIÓN DIBUJO III ROSSADO ESPINOZA, PAOLA 329 HISTORIA DEL ARTE CARCEDO MURO, PALOMA 328 CONSTRUCCIÓN LAGOS CANO, BLANCA 321 FÍSICA CHIPOCO FRAGUELA, ADOLFO 324
CURSOS MATRICULADOS PORTAFOLIO 2023-1

EC1-1 : REPRESENTACIÓN ARQUITECTÓNICA EN AUTOCAD 2023

CASA NUFRO

ENCARGO:

Desarrollar con nivel de detalle de proyecto (escala 1/75)

• 3 plantas con exactitud, valorados, con muros pintados de gris, cotas, ejes, nombre de ambientes, niveles de piso y mobiliario.

• 1 corte valorado: con muros y losas en corte pintados de gris, textura de terreno, cotas, ejes, nombre de ambientes, niveles de piso y mobiliario.

• Planos impresos en digital con membrete en espacio papel y ordenados.

DIFICULTAD APRENDIZAJE

COMENTARIO

Personalmente, este ejercicio me ayudó a mejorar mis habilidades de dibujo en AutoCAD. Si bien ya conocía un poco de este programa, puedo decir que, gracias a las clases, realmente aprendí a prestarle atención a cada detalle que uno debe tener en cuenta al representar correctamente un plano o un corte. Asimismo, aprendí a ser más organizada, al trabajar con capas y clasificarlas con colores, y así, al momento de imprimir puedo darle distinta valoración a cada una de estas. Finalmente, puedo decir que aprendí más comandos y herramientas que me permiten optimizar el proceso de dibujo, los cuales me ayudarán a lo largo de la carrera y la vida profesional.

DIBUJO III 323
DINAMO ARQUITECTOS SEVILLA, ESPAÑA
1 A B C D 2 3 4 5 A B C D 1 2 3 4 5 .25 2.95 .25 2.60 1.60 .65 .10 3.05 .25 3.85 .80 1.10 .25 4.10 .25 1.75 .25 1.75 .25 2.95 .25 2.75 .50 .10 1.60 .45 .15 .80 3.00 .25 .90 2.05 .55 .85 .10.30 PATIO PASILLO ESTUDIO BAÑO COCINA SALA GARAJE A A .15 8.80 .15 .15 2.75 .55 .10 .15 14.70 14.70 9.10 9.10 4.075 2.275 2.790 3.025 3.200 3.250 5.225 3.025 3.200 4.000 .25 .10 4.10 .25 .25 1 A B C D 2 3 4 5 A B C D 1 2 3 4 5 2.75 .15 3.10 .25 3.75 BAÑO W.C DORMITORIO PRINCIPAL DORMITORIO DORMITORIO BAÑO A A W.C W.C .15 8.80 .15 2.00 .10 1.55 .10 .65 1.25 2.85 .45 .15 .15 2.75 .25 1.70 .10 1.95 .10 1.35 .25 1.65 .10 4.10 .25 9.10 9.10 14.70 14.70 4.075 2.275 2.790 4.075 2.275 2.750 3.204 3.250 5.225 3.021 PATIO SALA SALA PASILLO WC BAÑO WC COCINA LAVANDERÍA .15 2.70 .30 .90 1.20 .60 .30 2.70 .30 9.15 5 4 3 2 1 PRIMERA PLANTA SEGUNDA PLANTA CORTE A - A'
Docentes: Arq. Verónica Paola Rossado
Temas RIBA: T2/T5
Arq. Claudia Sánchez
28

DIBUJO III

EC2-1 : REPRESENTACIÓN ARQUITECTÓNICA EN REVIT 2023

CASA NUFRO

DINAMO ARQUITECTOS SEVILLA, ESPAÑA

Docentes:

Arq. Verónica Paola Rossado

Arq. Claudia Sánchez

ELEVACIÓN FRONTAL

ENCARGO:

PROYECTO CON REVIT 2023

• 3 Plantas

• 1 Plano de Techos

• 2 Isometrías

• 4 Cortes isométricos

• 4 Cortes de sección

• 2 Elevaciones

• 6 Vistas renderizadas DIFICULTAD APRENDIZAJE

CORTE ISOMÉTRICO 1

Este ejercicio me pareció muy interesante ya que me llamaba la atención la manera en la que este tipo de programa trabaja y todas las ventajas que este posee. Puede aprender desde 0 a colocar muros, pisos, techos, puertas, ventanas y editar sus propiedades para que se adapten al modelo, también a colocar mobiliario externo desde "bimobject", realizar renders y acomodando la posición del sol para que queden de la mejor manera y finalmente ordenar todo en láminas para una correcta presentación.

Si bien Revit era un software completamente nuevo para mí y presenté un poco de dificultades al inicio, puedo decir que estoy realmente satisfecha con el resultado final, ya que demostré que soy capaz de adaptarme rápidamente a los nuevos comandos y herramientas, y así finalmente poder entregar un trabajo de calidad.

A-05 A-06 A-07 A-08 2 2 3 3 4 4 1 1 5 5                                                          ESTACIONAMIENTO HALL ESTUDIO BAÑO DE VISITAS PATIO COMEDOR SALA     A A B B C C D D       COCINA A-01 1 50 Primer piso 1 HALL
323 Temas RIBA: T2/T5
CORTE 1-1
PRIMERA PLANTA VISTA DORMITORIO VISTA PATIO VISTA SALA VISTA EXTERIOR VISTA COMEDOR COMENTARIO
29

EC2-2

: REPRESENTACIÓN ARQUITECTÓNICA EN REVIT 2023

CASA BARAJAS

ARQUITECTOS: NOMIC MÉXICO

ENCARGO:

• Representación de 2 plantas nivel proyecto

• Representación de 2 cortes + 1 elevación nivel proyecto

• Representación de plantas, cortes y elevaciones con efecto artístico

• Representación 1 isometría con topografía + 2 isocortes + explosiva

• 6 Vistas renderizadas (con luz natural y luz artificial)

• Planos impresos en digital con membrete en espacio papel y ordenados.

A B C D 1 1 2 2 3 3 4 4 5 5 6 6 UNIVERSIDAD DE LIMA - FACULTAD DE ARQUITECTURA DIBUJO III ARQ. ROSSADO / ARQ. SANCHEZ SILVA GARCÍA, MARÍA ALEXANDRA 1 50 PRIMERA PLANTA ARTÍSTICA CASA BARAJAS JULIO 2023 A-05 1 50 Primera planta artística 1 A A B B C C D D 1 1 2 2 3 3 4 4 5 5 6 6 UNIVERSIDAD DE LIMA - FACULTAD DE ARQUITECTURA DIBUJO III ARQ. ROSSADO / ARQ. SANCHEZ SILVA GARCÍA, MARÍA ALEXANDRA 1 50 PRIMERA PLANTA ARTÍSTICA CASA BARAJAS JULIO 2023 A-05 1 50 Primera planta artística 1 DIBUJO III 323
Docentes:
Temas RIBA: T2/T5
Arq. Verónica Paola Rossado Arq. Claudia Sánchez
DIFICULTAD APRENDIZAJE PRIMERA PLANTA ARTÍSTICA ISOMETRÍA EXPLOTADA ELEVACIÓN FRONTAL ARTÍSITCA ISOCORTE
2
ISOCORTE 1
CORTE 1-1 30
ISOMETRÍA CON TOPOGRAFÍA

DIBUJO III

COMENTARIO

En este último ejercicio tuvimos que aplicar lo que aprendimos el ejercicio anterior para modelar esta casa. Aprendí aún más herramientas que tiene Revit: colocar topografía, colocar distintos tipos de luces y que estas aparezcan en los renders, también aprendí la función de "model in place" y así poder modelar lo que desee y, por último, nos enseñaron a explotar una isometría.

REFLEXIÓN FINAL

Estoy sumamente orgullosa y satisfecha de lo que aprendí en este curso y la evolución que tuve a lo largo de estos meses. Me siento contenta de las nuevas habilidades adquiridas, las cuales se han convertido en una pieza clave de mi formación como futura arquitecta.

Docentes: Arq. Verónica Paola Rossado
323 Temas RIBA: T2/T5
Arq. Claudia Sánchez VISTA EXTERIOR - NOCHE VISTA COCINA - NOCHE VISTA COCINA - DÍA VISTA DORMITORIO - DÍA VISTA EXTERIOR - DÍA
31

HISTORIA DEL ARTE

EC1

ACT 02: GRECIA Y ROMA

ENCARGO:

El alumno/s comentará y criticará, no solo describirá sino criticará, los elementos formales y hará un comentario sobre las esculturas y edificios abajo mostrados. Deberán hacerlo según la lectura de “Análisis y Comentario de una Obra de Arte” de Morante y Ruiz (1997) concerniente a los capítulos de Grecia (Tema III) y arte Romano (Tema IV) , además de utilizar otras lecturas como el libro de Gombrich y las subidas al Aula Virtual.

ESCULTURAS ANALIZADAS

• El Laocoonte y sus hijos

• Escultura de César Augusto

EDIFICACIONES ANALIZADAS

• El Partenón de Atenas

• Templo de Saturno

DIFICULTAD APRENDIZAJE MOTIVACIÓN

COMENTARIO:

Este trabajo me resultó muy interesante de realizar y analizar ya que los dos temas (Grecia y Roma) fueron de los que más me llamaron la atención en clase. Pude aprender a reconocer los distintos estilos que existieron dentro de estas épocas, así como conocer un poco más del contexto histórico por el que estaban pasando. Asimismo, se muestra la evolución en las técnicas para realizar esculturas, sus características y cómo se puede reconocer un gran cambio al momento de qué y cómo se quiere representar algún hecho. Por el lado de la arquitectura, cómo las razones por las que realizaban alguna edificación cambia, debido a la situación en la que se encontraban.

COMPARACIÓN:
328
Temas RIBA: T2/T4/T5 ODS: 4 / 11
Docente: María de la Paloma Carcedo Muro de Mufarech
32

ACT 04: RENACIMIENTO, BARROCO, NEOCLASICISMO Y ROMANTICISMO

ENCARGO:

El alumno/s elegirá un tema que encuentre transversal en diferentes periodos artísticos estudiados de la semana 9 a la 14 Es decir, que se encuadre en los estilos: renacimiento barroco, neoclasicismo y romanticismo.

En su análisis, deben analizar los elementos formales de la pintura teniendo en cuenta lo aprendido en clase y desde el punto de vista de las lecturas del libro Análisis y Comentario de la Obra de Arte, de Morante y Ruiz Zapata (1997) en los capítulos del Renacimiento, Barroco, Neoclasicismo y Romanticismo y lo leído en Gombrich (2007). Deberán poner referencias tanto en al comentario del texto como al final del trabajo y deberán utilizar fotos o dibujos que expliquen sus comentarios.

TEMA ELEGIDO:

• Retrato de la mujer

PINTURAS ANALIZADAS

• La Gioconda

• La Lechera

• La Gran Odalisca

• Huérfana en el Cementerio

COMENTARIO:

Personalmente, me gustó realizar este trabajo ya que siempre me interesó el proceso de estos 4 estilos y cómo se presentan grandes cambios entre cada uno de estos. Gracias a este trabajo y al tema elegido, pude reconocer más fácilmente las características más importantes de estas épocas y así identificar las diferencias entre estas.

HISTORIA
328 Docente:
Temas RIBA: T2/T4/T5 ODS: 4 / 11
DEL ARTE
María de la Paloma Carcedo Muro de Mufarech
EC2
TRABAJO COMPLETO →
33 LA GIOCONDA Leonardo Da vinci 1503 1519 HUÉRFANA EN EL CEMENTERIO Eugene Delacroix 1824 LA GRAN ODALISCA Jean Auguste Dominique 1814 LA LECHERA Johannes Vermeer 1657
DIFICULTAD APRENDIZAJE MOTIVACIÓN

LAB 3: TRAZO Y REPLANTEO

JUNTAS SÍSMICAS

• Al momento de realizar y diseñar mis proyectos tendré en cuenta esta separación mínima de 3 cm en cada lado de mi terreno, esto ahorrá tiempo en obra ya que las medidas pensadas inicialmente no se verían perjudicadas.

• Como supervisora, tendré muy presente la separación antes de iniciar todo el proceso de trazo y replanteo, y, en el caso de que no se haya considerado la junta sísmica originalmente, tendré la obligación de consultar con el arquitecto/a qué espacios se tendrán que reacomodar.

LAB 4: CIMENTACIÓN

SOLADOS

• Este aísla al concreto del terreno, protegiéndolo así de cualquier agente que prejudique la estructura. Nos explicaron que esto muchas veces no se considera y es la razón por la que la estrucutra de una edificación se vaya deteriorando.

• Es por eso que como supervisora, es clave, luego de un estudio de suelos, corroborar el uso de un solado para proteger la edificación.

APRENDIZAJE DEL LABORATORIO:

En este laboratorio aprendí sobre el proceso de trazo y replanteo para plasmar correctamente las medidas indicadas en el plano.

Asimismo, aprendí a realizar la nivelación con manguera la cual me pareció importante de conocer ya que muchas veces no se realizan todos los pasos a seguir correctamente.

APRENDIZAJE DEL LABORATORIO:

Aprendí sobre los distintos tipos de cimientos y los recubrimientos que se tienen que tener en cuenta de acuerdo al sistema que se emplee. Asimismo, nos enseñaron sobre la importancia de un solado así como el sobrecimiento.

Docente:
Temas RIBA: T2/T3 ODS: 9/11 CONSTRUCCIÓN I 321 34 Cimiento Sobrecimiento
Blanca Lagos Cano

LAB 6: ARMADO DE COLUMNAS

RECUBRIMIENTOS Y SU REPRESENTACIÓN

• Aprendí a representar correctamente las columnas en los planos arquitectónicos, ya que uno debe tener en cuenta el recubrimiento que la estrucutra debe tener de acuerdo al sistema utilizado.

• Por ejemplo, en un sistema de pórticos, el recubrimiento mínimo es de 4cm, entonces, si quiero que la estructura de la columna sea de 25 x 25 cm y un recubrimiento de 5cm:

INCORRECTO

CORRECTO

APRENDIZAJE DEL LABORATORIO:

Al no considerar el recubrimiento, la estructura de la columna se convertiría de 15 cm

En este caso, al considerar el recubrimiento de 5cm, la columna representada en el plano arquitectónico se convertiría de 35 cm.

Aprender sobre el armado de columnas y los cuidados que uno, como supervisor, debe tener, es crucial para el futuro. Cuando llegue el momento en que tenga que supervisar obra, podré saber qué procedimientos están mal, las medidas de seguridad que debo tener en cuenta y qué tipos de acero se deben de rechazar. Asimismo, al momento de representar las columnas en los planos, se deben tener en cuenta los recubrimientos y las medidas exactas para no cometer ningún error al momento de construir.

Docente: Blanca
Temas RIBA: T2/T3 ODS: 9/11 CONSTRUCCIÓN I 321 25 25 35
Lagos Cano
5 5 35
*en el plano se representa solo el cuadrado celeste y pintado*

DISEÑO CON SISTEMA CONSTRUCTIVO:

POSTE Y VIGA CON APANELADO

APRENDIZAJE OBTENIDO:

Este trabajo me pareció complejo ya que tuve que aprender a representar un plano de cimentación, la estructura de un plano de techos, así como representarlos correctamente en los cortes. Además, tuve que investigar para saber todos los pasos que uno debe seguir al construir con este sistema. De la misma manera, logré aprender sobre las distintas medidas de la madera para ser usadas como vigas o viguetas, lo cual será de mucha ayuda para futuros proyectos.

Docente: Blanca
Cano ODS: 9/11 CONSTRUCCIÓN I 321 36
Lagos
1 1 2 2 4 4 B B A A 3 3 A-07 A-08 A-09 A-10                                 UNIVERSIDAD DE LIMA - FACULTAD DE ARQUITECTURA CONSTRUCCIÓN SILVA GARCÍA, MARÍA ALEXANDRA 1 25 PLANTA DE CIMENTACIÓN MÓDULO EN MADERA JULIO 2023 25 PLANTA DE CIMENTACIÓN 1 1 1 2 2 4 4 B B A A 3 3 A-07 A-08 A-09 A-10                                V-6 0.70 2.10 V-4 1.10 0.90 1.20 V-3 1.10 0.90 1.20 V-1 0.90 2.10 V-2 1.10 0.90 1.20 V-5 1.10 0.90 1.20 V-7 1.10 1.80 0.55  BAÑO COMEDOR SALA        UNIVERSIDAD DE LIMA - FACULTAD DE ARQUITECTURA CONSTRUCCIÓN SILVA GARCÍA, MARÍA ALEXANDRA 1 25 PLANTA DE ARQUITECTURA MÓDULO EN MADERA JULIO 2023 PLANTA DE ARQUITECTURA 1 1 2 2 4 4 B B A A 3 3 A-10                         UNIVERSIDAD DE LIMA - FACULTAD DE ARQUITECTURA CONSTRUCCIÓN SILVA GARCÍA, MARÍA ALEXANDRA 1 25 PLANTA DE TECHOS MÓDULO EN MADERA JULIO 2023 A-03 B A  UNIVERSIDAD DE LIMA - FACULTAD DE ARQUITECTURA CONSTRUCCIÓN SILVA GARCÍA, MARÍA ALEXANDRA 1 25 CORTE 3-3 MÓDULO EN MADERA JULIO 2023 A-09 1 25 CORTE 3-3 1 1 2 4  UNIVERSIDAD DE LIMA FACULTAD DE ARQUITECTURA CONSTRUCCIÓN SILVA GARCÍA, MARÍA ALEXANDRA 1 25 CORTE 1-1 MÓDULO EN MADERA JULIO 2023 A-07 1 25 CORTE 1-1 1 PLANTA DE CIMENTACION CORTE 1-1 CORTE 2-2 PLANTA DE TECHOS primera planta
Temas RIBA: T2/T3

CONSTRUCCIÓN I 321

ODS: 9/11

Docente: Blanca Lagos Cano

APRENDIZAJE OBTENIDO:

Asimismo, realicé por primera vez detalles constructivos, los cuales, a pesar de presentar dificultades al inicio, me ayudaron a comprender mejor la información que había leído para realizar este trabajo y, de esa forma, representar de la mejor manera la maqueta. Considero que este trabajo fue importante ya que me servirá como base para futuros proyectos de mi formación académica.

UNIVERSIDAD DE LIMA - FACULTAD DE ARQUITECTURA DETALLE DE CIMENTACIÓN 1             DETALLE DE MURO 2             UNIVERSIDAD DE LIMA - FACULTAD DE ARQUITECTURA CONSTRUCCIÓN SILVA GARCÍA, MARÍA ALEXANDRA DETALLE CONSTRUCTIVO TECHO MÓDULO EN MADERA 07/06/23 A-12      
37 DETALLE CONSTRUCTIVO - CIMENTACION DETALLE CONSTRUCTIVO - MURO DETALLE CONSTRUCTIVO - TECHO
Temas RIBA: T2/T3

LA FÍSICA EN LA GIMNASIA

MRU

Movimiento donde un objeto se desplaza en línea recta, en una sola dirección, recorriendo distancias iguales en el mismo intervalo de tiempo, manteniendo una velocidad constante y sin aceleración.

MRUV CAÍDA LIBRE

TRABAJO Y ENERGÍA

Movimiento donde velocidad cambia con el paso de intervalos de tiempo en iguales cantidades, debido a la presencia de una aceleración constante.

Movimiento donde un objeto cae libre de toda restricción, pero con participación de la gravedad. Es por ello que, mientras el objeto cae va ganando rapidez (aceleración).

VAULT JUMP PROBLEMÁTICAS PLANTEADAS

El "vault jump" forma parte del circuito por el que los gimnastas tienen que pasar en una competencia.

Los gimnastas corren por una pista de 25 metros, llegan a un trampolín donde se impulsan para que las dos manos caigan en el caballete y terminen de ejecutar su salto.

Cinemática en la gimnasia:

- La velocidad que tiene la gimnasta al momento de recorrer la pista de 25 metros antes del salto, en 4 segundos.

El trabajo es una cantidad física escalar asociada con la transferencia de energía entre dos cuerpos debido a una fuerza.

Trabajo y Energía en la gimnasia:

- La deformación del resorte de un trampolín tras el salto de una gimnasta.

- La altura máxima que consigue la gimnasta al ejecutar el salto.

DATOS:

m=60 kg

V=12.5 m/s

K=10 000 N/m

x=?

g=10 m/s²

h₁=1.35 m

FÍSICA 324
Temas RIBA: T2/T3 ODS: 7/9/13 38
Docente: Adolfo Chipoco Fraguela
QR video del vault jump QR video del trabajo
A B C D E 1.35 m 25 m h=?

REFLEXIÓN DEL CURSO

El curso de Física, en este tercer ciclo, si bien al principio me parecía retador y algunos temas me parecían más difíciles que otros, puedo decir que me siento contenta con mi progreso en estos meses, ya que me demostré que, con mucha práctica, puedo llegar a comprender los temas y desarrollar los distintos ejercicios. Asimismo, me dediqué bastante a entender los temas porque cada uno de estos va de la mano con el siguiente, por lo que me pareció clave concentrarme y enfocarme a la hora de estudiar este curso.

Por otro lado, el método de enseñanza me pareció el más indicado ya que seguía un orden con el que no nos "perdíamos" y también se abarcaban temas de nuestro interés, lo cual convertía el curso de física en uno más llevadero y didáctico. Aprendí también que la física en general se encuentra en todas partes y en nuestras actividades diarias, así como nuestros hobbies. Por ejemplo, en el trabajo grupal, decidimos hablar sobre cómo la física estaba presente en los deportes. Decidimos elegir la gimnasia ya que una de las integrantes del grupo había practicado tal deporte y nos pareció también interesante encontrar los temas vistos en clase en la increíbles acrobacias que los gimnastas realizan.

Por último, estoy sumamente satisfecha de lo que aprendí en este curso y la progresiva evolución que tuve durante este ciclo. Me siento contenta de que pude comprender bien los temas enseñados ya que soy consciente que estos conocimientos serán importantes en los siguientes cursos que serán vistos en mi formación como futura arquitecta.

ENERGÍAPOTENCIALELÁSTICA

EQUILIBRIO CONSERVACIÓN DE LAENERGÍ A SONIDO LUZ COLOR
VECTORES
FÍSICA 324
Temas RIBA: T2/T3 ODS: 7/9/13
Docente: Adolfo Chipoco Fraguela
QR ISSUU

Turn static files into dynamic content formats.

Create a flipbook
Issuu converts static files into: digital portfolios, online yearbooks, online catalogs, digital photo albums and more. Sign up and create your flipbook.