Dissertation_Luis Young_Compressed

Page 1


RE–IMAGINING THE CHINAMPERÍA IN XOCHIMILCO

LUIS YOUNG

PROJECTIVE CITIES FLOWS, FRICTIONS, AND FUTURES

FLOWS, FRICTIONS, AND FUTURES RE-IMAGINING THE CHINAMPERÍA IN XOCHIMILCO

Architectural Association

TMPhil in Architecture and Urban Design - Projective Cities

2022-24

a Aurelio
Fig.
Axolotl (Ambystoma mexicanum). (Author)

ACKNOWLEDGEMENTS

I extend my deepest gratitude to all those who contributed to the development of this thesis. First, my heartfelt thanks to Carlota and Tonatiuh for welcoming me so generously into their home during my stay in Xochimilco. Likewise, I am profoundly grateful to those who shared their knowledge and guided me through the chinampería, revealing its amphibious flows. A special appreciation goes to the community of La Conchita in San Gregorio Atlapulco for opening their homes and chinampas to me with warmth and generosity.

I am indebted to María Andrea Contreras, Mariana Margain, Elena Tudela, Ehecatl Morales, Luis del Monte, Sebastián Bidault, Andrea Ruíz, Fernando Negrete, and all those who took an interest in this research, offering their invaluable support, knowledge, and networks in Xochimilco.

To my friends, whose unconditional support kept me afloat through the challenging moments of this journey. A special mention to Lucía Alonso, Eréndira Derbéz, Juliana Castro, Chantal Joris, Paco Franco, Magdalena Picazzo, Emilio Pérez, and Olympia Frangos for their enduring support. I also extend my gratitude to my friends from Projective Cities and the AA, whose camaraderie and solidarity made this process all the more meaningful.

Additionally, I want to express my gratitude to my tutors and professors at the AA who were involved in this dissertation and contributed with their knowledge, experiences, and critiques to the project. To Humberto Ricalde, for instilling in me a passion for architecture that is deeply embedded in life itself. To Michelle, who appeared on one of the drifts through Xochimilco and has since stood by my side with love and unwavering support. Finally, to my parents and Andrea—my deepest gratitude for your boundless love, patience, and encouragement, always.

This research is not an endpoint, but the beginning of new explorations and learning. My sincere appreciation goes to all those who, in one way or another, have contributed to this project.

This dissertation would not have been possible without the generous support of the Arq. Marcelo Zambrano Scholarship from Cemex, the SACPC - FINBA scholarship from the Government of Mexico, and the bursary granted by the Architectural Association.

ABSTRACT

Lake Xochimilco, the last living remnant of the ancient Mexico Valley lake system, preserves the pre-Hispanic chinampa agricultural technique—a network of artificial islands interwoven with canals. This lacustrine landscape once sustained a delicate balance between ecosystem health, agricultural productivity, and human inhabitation, fostering a way of life where water, land, and community were interdependent.

Since the early 20th century, Xochimilco has been progressively absorbed into the expanding urban fabric of Mexico City. Large-scale infrastructure projects, groundwater extraction, and the reinjection of treated wastewater into the canals have altered the relationship between water, land, and everyday livelihoods. These processes reinforce what this thesis defines as the dry paradigm where water is disarticulated as an holistic, visible element of everyday life, and placed instead as a distant, extracted, processed, and commodified resource. In a historically amphibious territory, this shift represents more than environmental degradation; it signals a cultural rupture that severs water from the rhythms of inhabitation, labour, and ritual.

At the core of this shift lies the invisibilisation of water. As modern hydraulic infrastructure—buried aqueducts and deep wells—replaced open, communal water systems, water itself was physically and symbolically erased from local imaginary. As water disappeared from sight, the social and spatial practices historically linked to it were dismantled, disconnecting communities from the lakescape they once sustained.

Alongside these hydrological transformations, Xochimilco’s domestic life has also been redefined. Economic pressures and the lack of accessible housing have led many inhabitants to repurpose chinampas into sites for informal dwelling. These self-built settlements, facilitated by community-managed agencies, now extend into the Conservation Zone, occupying a liminal space: neither fully rural nor urban, neither officially recognised nor entirely invisible.

This thesis bridges historical analysis, fieldwork documentation, and projective design proposals to examine how these transformations have reshaped Xochimilco’s spatial and ecological conditions. Through historical and archival research, the study traces the emergence of the dry paradigm, while fieldwork reveals how domestic and productive practices have adapted and evolved with contemporary life in the chinampería—constructing a visual and spatial narrative that embeds design within the realities of everyday inhabitation.

In response, the dissertation proposes a series of design interventions that reimagine both domesticity and productivity addressing environmental and socio-political pressures. These projective artefacts—ranging from infrastructural devices to collective spaces—emerge from Xochimilco’s hybrid social structures, where agricultural knowledge, festivities, and community organisation remain deeply entangled.

Ultimately, this thesis contributes to broader discussions on water governance, informal housing, urban resilience, and food security within a fragile and politicised landscape. Through a posthumanist lens and a care-based approach, it argues for design as a situated negotiation—one that works with, rather than against, Xochimilco’s amphibious identity, embracing its complexity as the foundation for its future habitability.

The chinampería is the lacustrine agricultural system composed of chinampas interwoven by canals.

DISSERTATION STRUCTURE

QUESTIONS & OBJECTIVES

Introduction

CH. I Between Flows and Frictions

I.I TRANSITION TOWARD THE DRY PARAGIGM

I.II LIQUID TO DRY SPECTRUM

Drift I

CH. II Habitability

II.I CULTURAL HYBRIDISATION

II.II SELF-CONSTRUCTION

II.III LA CONCHITA, A LABORATORY FOR PERMANENCE

II.IV DESIGN BRIEF I

Drift III

CH. III Community

III.I MAYORDOMÍAS

III.II FAENAS

III.III AGRICULTURE AS HERITAGE

II.IV DESIGN BRIEF II

Drift III

CH. IV Productivity

IV.I HARVESTING THE CHINAMPERÍA

IV.II CHINAMPERÍA TODAY

IV.III XOCHIMILCO WITHIN MEXICO CITY

IV.IV DESIGN BRIEF III

CONCLUSION: FLUID FUTURES

LIST OF IMAGES

BIBLIOGRAPHY APPENDIX

1 Pier Vittorio Aureli and Maria Shéhérazade Giudici, ‘Islands’, Log, no. 47 (2019): 175–99.

2 Aureli and Giudici, ‘Islands’.

3 Donna Haraway, ‘Playing String Figures with Companion Species’, in Staying with the Trouble: Making Kin in the Chthulucene, Experimental Futures Technological Lives, Scientific Arts, Anthropological Voices (Durham London: Duke University Press, 2016), 10.

The thesis is structured as a constellation of islands, both as a discursive tool and as a reference to the formation of Xochimilco’s lacustrine landscape. This conceptual approach draws from Aureli and Giudici’s argument on property and care,1 which conceptualises human settlements as islands— autonomous yet interconnected units articulated through collective relations.2 Similarly, the thesis unfolds through a series of autonomous but interwoven reflections, each contributing to the broader argument about habitability, community and productivity in Xochimilco.

Long streams of information weave through and overlap in the chapters, forming discursive canals, navigating the fragmented landscape of the dry paradigm explored in this research. Photographs, literature, drawings, and testimonies inform the projective architectural re-reading of the lacustrine landscape, as a practice of staying-with, partial recuperation, and collective adaptation.3

The introduction presents an overarching argument: that the chinampería is not just a landscape at risk, but a responsive entity where inhabitation, urbanisation, cultural practices and agriculture are deeply intertwined. It frames the thesis as an exploration of how the drying of Xochimilco is simultaneously a material and discursive process, one that demands re-imagining its flows and frictions for the future of water management and livelihoods through speculative design.

Chapter 1, examines the shift from a water-centred landscape to an urbanised territory, defining this process as the dry paradigm. It presents a historical recollection of how colonial and modern infrastructure projects managed water all the way to modern urbanisation that further reshaped the territory and its relationship to water. Through historical analysis and photographic documentation, the first chapter studies irregular settlements and finds the community of La Conchita as a transitional community from liquid to dry.

Chapter 2, explores habitability in the lacustrine landscape. Through concepts such as cultural hybridisation, it revises self-construction within territorial regulations. Here, La Conchita stands as a community in negotiation between environmental constraints and urban consolidation. The chapter presents a design brief for interventions aimed at improving water access, sanitation and sustainability within existing living units and marks the possibility of extrapolating such designs on to a Guide for Permanence in the Chinampería that informs future self-construction over chinampas.

Chapter 3, focuses on community in the chinampería and how structures such as stewardships (mayordomías) and communal work days (faenas) continue to shape social life even as irregular settlements continue to expand. Such structures help maintain the lacustrine landscape through collective organisation and labour. A design for a community centre is proposed, a project that aims to reinforce social cohesion and integrate sustainable water management practices.

Chapter 4, analyses the productive life of the chinampería, positioning agricultural practices as ecological and cultural factors that are deeply interwoven with traditional knowledge and community resilience. It goes through the fragmentation of chinampa agriculture due to conservation policies, urban pressures and market-driven transformations. The chapter explores food sovereignty as a strategy that can reinforce the relationship of the community to the land and to the broader context of Mexico City, as well as advocate for policy shifts that support sustainable territorial futures in the political transformations of the metropolis.

Overall, as the conclusion highlights, this thesis advocates for a necessary dialogue between speculative architectural design and existing regulatory frameworks, arguing for more flexible models that can accommodate the hybrid realities of the Conservation Zones within the lacustrine landscape. The limitations of the study and possible lines of further investigations are outlined, followed by the bibliography and appendices, which document the findings from fieldwork.

RESEARCH QUESTIONS

This research explores the tensions between urban expansion, water management, and informal inhabitation within Xochimilco’s lacustrine landscape, addressing historical processes and contemporary spatial practices. The following questions structure the investigation.

DISCIPLINARY QUESTIONS

How can architecture document, interpret, and critically engage in the evolving relationship between water and urbanity within Xochimilco’s historically amphibious territory?

How do self-building practices emerge as adaptive responses to official, environmental, and socio-economic pressures, and what do they reveal about resilience, informality, and environmental negotiation in ecological conservation zones?

How can architectural and urban interventions reactivate water infrastructures within the chinampería, challenging the dry paradigm that governs its transformation?

In a Conservation Zone under extractive and urban pressures, how can design and architecture operate as a form of ecological negotiation, balancing habitability, agricultural productivity, cultural continuity, and the regeneration of the lacustrine ecosystem?

TYPOLOGICAL QUESTIONS

How has domesticity evolved within the chinampería, and how have selfbuilt domestic spaces adapted to shifting paradigms of water management, agricultural decline, and regulatory ambiguity?

How can new models of habitability integrate water-centred strategies and collective care practices?

What type of community infrastructure could support self-governance, collective organisation, and the transmission of traditional knowledge, reinforcing the link between ritual life, agricultural practices, and social exchange?

How can design in domestic and communal environments mediate between contemporary needs and the fragile ecological dynamics of the chinampería, positioning architecture as a tool for situated adaptation rather than fixed solutions?

RESEARCH OBJECTIVES

Contribute to broader discussions on self-built housing, urban resilience, and water management, particularly within rural-metropolitan peripheries under extractive pressures.

Propose speculative interventions that offer flexible strategies for integrating domestic and productive spaces while sustaining ecological and cultural continuity.

Explore how architecture and urbanism—whether state-driven or improvised—can become a tool for navigating, negotiating, and reimagining the future of habitability in the lacustrine Xochimilco.

Fig. 05 Methodology Diagram. (Author)

1 Bunting, Madeleine. “Review: Dam Buster.” The Guardian, (2001). Accessed January 1, 2025. https:// www.theguardian.com/books/2001/ jul/28/fiction.arundhatiroy.

2 The creation of chinampas generates an extended border surface where vegetation and microbial life can proliferate.

3 Jeffrey M. Banister and Stacie G. Widdifield, ‘The Debut of “Modern Water” in Early 20th Century Mexico City: The Xochimilco Potable Waterworks’, Journal of Historical Geography 46 (October 2014): 36–52, https://doi.org/10.1016/j. jhg.2014.09.005.

4 Peñafiel, Antonio, and Lamberto Asiain. 1884. Memoria Sobre Las Aguas Potables De La Capital De México. Secretaría de Fomento.

5 The government of Porfirio Díaz was a military dictatorship that extended from 1876 to 1911. It’s a period characterised by a modernisation process from the capital into the provinces of the country, limited political freedom and censorship of the media.

6 Astrid Ulloa and Hugo RomeroToledo, eds., ‘Introducción. Hidro-poderes globales-nacionales y resistencias locales’, in Agua y disputas territoriales en Chile y Colombia, Primera edición, Biblioteca abierta colección general: perspectivas ambientales 476 (Bogotá: Universidad Nacional de Colombia, 2018), 19–56.

7 Ulloa and Romero-Toledo, ‘Introducción. Hidro-poderes globales-nacionales y resistencias locales’.

8 Sergio A. Méndez Cárdenas et al., Chinampas de México, Sitio Patrimonio Mundial: Biodiversidad y Cultura, vol. I (México, D.F.: Universidad Autónoma Metropolitana, 2016).

9 ‘Diagnóstico, Logros y Desafíos’ (Ciudad de México: Sistema de Aguas de la Ciudad de México, 2018).

“The lobotomy in the West is that you stop seeing something and then, slowly, it’s not possible to see it. It never existed and there is no possibility of an alternative.”

Mexico City’s lacustrine past has been blurred by its urban grid, buried by successive layers of infrastructure and development. For residents of the central city, the fact of living atop a former lakebed resurfaces every so often through earthquakes or floods—reminders of the water still present beneath. In Xochimilco, however, water remains a visible and inhabited reality. Here, some populations dwell not only above the lake, but within a living network of islands and canals—the chinampas—that have endured despite centuries of colonisation, modernisation, and the relentless expansion of Mexico City.

The chinampas—artificial islands created within the lacustrine system— pre-date the Mexica civilisation. They are among the earliest technologies of landscape adaptation in the basin, shaping an agro-ecological system that brought lasting benefits instead of damaging the ecosystem.2 From a birds-eye view, Xochimilco presents an abrupt contrast to the surrounding city: a fractured mosaic of narrow land strips and waterways, where agriculture and aquatic ecosystems persist—an islanded fragment of the ancient valley landscape.

Once the most prolific agricultural region of the Mexico Valley, the Xochimilco-Chalco sub-basin has been systematically degraded by state-led interventions, most notably the Potable Water Supply Works of the late 19th century.3 This project redefined Xochimilco from a thriving, self-sustained ecosystem into a polluted and depleted hinterland—sacrificed to supply potable water to the growing capital.4

This shift was not merely hydrological, but discursive. Under Porfirio Díaz regime,5 Mexico adopted a Western technocratic view of water, reframing it from a sacred element to an abstract, exploitable resource. “Modern water”, as described by authors María Kaika and Astrid Ulloa, is no longer a locally meaningful substance, but a universal commodity—its cultural and ecological meanings erased in favour of quantifiable flows.6 Central to this process is invisibilisation, where water’s presence in daily life is severed, replaced by underground aqueducts, hidden pipes, deep wells and managed flows channelled out of Xochimilco toward the central city.7

The accelerated extraction of water from the springs of Lake Xochimilco led to a proportional drying up of the lake, causing differential subsidence in the territory.8 To counteract this process, the government decided from the 1970s onwards to re-inject treated sewage to compensate for the lost lake levels,9 which further reinforced the dissonance between the symbolic and material characteristics of the liquid.

Contemporary environmental thought,10 particularly Bruno Latour’s reflections on Gaia,11 suggests an understanding of Xochimilco not as a passive background to human activity, but as a “responsive entity”—a landscape that reacts, adapts, and generates feedback loops between ecological processes, and cultural practices, and political decisions. In this sense, Xochimilco responds—its ecological and social transformations are co-produced through these entanglements. Mediating between modern water and symbolic water thus requires more than infrastructural redesign; it demands seeing Xochimilco as a living territory and speculating on what kinds of habitation this landscape invites or resists—in a very “Gaian” sense.

In Xochimilco, water governance, population pressures, and improvised survival strategies all collide within this “thick present”, a time-space where all actors, human and non-human alike, are “entwined in myriad unfinished configurations of places, times, matters, (and) meanings.”12 The pressure to accommodate new housing and infrastructure further accelerates this process—not by making water disappear, but by disarticulating people’s daily lives from it. The drying of canals is not purely a state project, but also the result of self-constructed urbanisation, where informal dwellings colonise the chinampas, cutting off their hydrological continuity. This contradictory mix of care and neglect echoes María Puig de la Bellacasa’s insight that care is not inherently restorative—it can also be compromised, messy, and politically charged.13

Without coordinated responses, Xochimilco risks disappearing—not only physically, but also symbolically.14 Its loss would mean the disappearance of a 2,600-hectare wetland, one of the city’s last remaining oxygen producers. It would also mean losing a key flood regulator, critical as urbanisation sprawls across the surrounding hills. Beyond environmental functions, Xochimilco’s intangible heritage—its cultural and symbolic place in Mexico’s national imaginary—would vanish too.15

As Latour points out, the “New Climate Regime” is not just an environmental crisis; it signals the collapse of modernity’s foundational assumptions— its belief in a stable, controllable nature.16 In this context, the knowledge held by those who live and work the land—documented through fieldwork— becomes relevant. These “situated knowledges”, forged through daily interaction with water and soil, are not anecdotal—they are resources for navigating the uncertain future.17

This dissertation, then, treats local knowledge not as supplementary data, but as co-produced knowledge, a necessary complement to historical and theoretical analysis. This approach also reflects a broader ethics of care: knowing a place well requires recognising those who care for it—through cultivation, maintenance, and adaptation.18

10 Karen Bakker, ‘Water: Political, Biopolitical, Material’, Social Studies of Science 42, no. 4 (2012): 616–23.

11 Bruno Latour, ‘Fourth Lecture: The Anthropocene and the Destruction of the Globe’, in Facing Gaia: Eight Lectures on the New Climatic Regime (Cambridge, UK Medford, MA: Polity, 2017), 111–45.

12 Haraway, ‘Introduction’.

13 María Puig de la Bellacasa, ‘Introduction’, in Matters of Care, Speculative Ethics in More than Human Worlds (University of Minnesota Press, 2017), 1–24.

14 Alberto González Pozo, ed., ‘¿Hay Futuro Posible Para Las Zonas Chinamperas?’, in Las Chinampas de Xochimilco al Despuntar El Siglo XXI: Inicio de Su Catalogación (Universidad Autónoma Metropolitana, 2010), 257–66.

15 González Pozo, ‘¿Hay Futuro Posible Para Las Zonas Chinamperas?’

16 Latour, ‘Introduction’.

17 Haraway, ‘Sympoiesis’.

18 de la Bellacasa, ‘Introduction’.

19 González Pozo, ‘¿Hay Futuro Posible Para Las Zonas Chinamperas?’

20 de la Bellacasa, ‘Introduction’.

The thesis also aligns with ongoing struggles led by activists, researchers, and local communities, who understand that Xochimilco’s future depends on linking ecological regeneration, cultural continuity, and socio-economic justice. This vast and urgent challenge requires a realistic approach, one that engages with the post-humanist call to be “fully present” and to “make kin”. As González Aramillas and Díaz-Berrio propose,19 necessary actions include actions such as (1) consolidating transdisciplinary knowledge about Xochimilco’s problems and potential futures, (2) actively listening to chinampas communities and ensuring their participation, (3) developing holistic water management plans, including collection and sanitation, (4) exploring low-impact agricultural technologies that strengthen local productivity, (5) restoring the symbiotic relationship between Mexico City and its lacustrine south and (6) communicating, across scales, the cultural and ecological urgency of restoring the lake-scape.

This dissertation contributes to these efforts by reimagining water, reframing inhabitation, and proposing speculative design artefacts that work with—not against—the amphibious reality of the chinampería. Through critical research and fieldwork-driven interventions, it builds speculative proposals that could dialogue with public policy while challenging the inevitability of informal urbanisation.

The goal is not to freeze Xochimilco in time through a nostalgic lens, but to generate flexible, context-sensitive modes of dwelling, production, and governance that allow the chinampería to persist “as well as possible”—signalling a pragmatic form of hope grounded in adaptation and care.20 Ultimately, the challenge is not only to preserve chinampas and canals, but to rethink how to live within them, resisting their erasure while embracing their evolving complexity within Mexico City’s contested future.

Between flows and frictions, the drying of the lake

In this verdant valley, once ran radiant rivers, ashen, chestnut, and purplish, lost and brown; broken, clamorous, bellowing down from the smoking mountain, emerging onto the sluggish plains, tempting the early Tenochtitlan. Today, they go mooing, confined in tubes, diminished, heavy with black waters, swollen with filth; rivers without banks, laughable, bridled, furious, stubby, noisy with cars; stumbling through the deflowered city, flowing into the lethal lakes, and into the marked sea, which no longer loves them.

Homero Aridjis, 1990

Fig. 07 Shortfin silverside (Chirostoma humboldtianum). (Author)

1 Orogenic processes are geological events forming mountain ranges through plate tectonics.

2 Haydea Izazola, ‘Agua y Sustentabilidad En La Ciudad de México’, Estudios Demográficos y Urbanos 16, no. 2 (47) (2001): 285–320.

3 The basin spanned approximately 9,600 km², with dimensions of 110 km in length and 80 km in width. From Izazola, ‘Agua y Sustentabilidad En La Ciudad de México’.

1.1 The Transition Toward the Dry Paradigm

Once a vast, interconnected lacustrine system, the Valley of Mexico has undergone extensive transformation driven by centuries of human intervention, political control, and extractivist policies—processes that have progressively erased water from the landscape and the collective imaginary. What was once a balanced ecosystem, where human settlements coexisted with water through innovative hydrological management, has been reconfigured through centuries of imposed dryness. This trajectory reveals a persistent logic: the systemic negation of water as an active agent in shaping the territory, making way for its commodification and eventual depletion—a process this dissertation defines as the dry paradigm

Geologically, the basin emerged approximately 600,000 years ago,1 shaped by orogenic processes that formed an endorheic depression where water naturally accumulated. Over millennia,2 a dynamic balance evolved between five major lakes: Zumpango, Xaltocan, and Texcoco in the brackish northern section, and Xochimilco and Chalco as freshwater bodies to the south.3 4

This relational understanding of water was violently disrupted in 1521 with the Spanish conquest.5 For the Iberian colonisers, water was neither sacred nor generative—it was an obstacle to the European vision of land-based settlement, agriculture, and property.6 The administration of chinampa lands underwent a profound transformation under colonial rule. Before the conquest, chinampas were held collectively under the calpulli system,7 where kin-based groups managed plots not as private property, but as part of a social fabric that included tribute and collective maintenance of canals. Colonial law redefined this practice as unproductive since it did not conform to the cadastral logic that reduced land to a measurable and taxable asset.8 However, the chinampería resisted full incorporation into this property regime, as their productivity relied on shared hydrological management, which could not be easily enclosed or privatised. This ongoing tension between imposed territorial abstraction and indigenous ecological practice reflects how the territory itself became a site of continuous conflict.9

5 Mesoamérica is a geographical and cultural region encompassing parts of Mexico and Central America, within a timeframe preceding the Spanish conquest.

6 Izazola, ‘Agua y Sustentabilidad En La Ciudad de México’.

7 Edward E. Calnek, ‘Settlement Pattern and Chinampa Agriculture at Tenochtitlan’, American Antiquity 37, no. 1 (1972): 104–15, https://doi. org/10.2307/278892.

8 Pier Vittorio Aureli, ‘Territory’, AA Files, no. 76 (2019): 152–55.

4 Authority of the World Natural Cultural Heritage Zone in Xochimilco, Tláhuac and Milpa Alta, and Government of Mexico City, Chinampa Agricultural System of Mexico City, Mexico, “A Proposal for Designation as Globally Important Agricultural Heritage Systems (GIAHS),” Government Of Mexico City, 2017.

This ecological configuration supported complex human settlements for thousands of years, reaching its apex under the Mexica civilisation. By the 14th century, the Mexica had created an urban and agricultural system that incorporated their livelihood into the aquatic environment through a sophisticated set of hydraulic infrastructures in their capital city of Tenochtitlan. Aqueducts transported potable water, dikes regulated salinity between lakes, and chinampas extended the city’s agricultural productivity within the wetlands. Water, rather than an obstacle, was a structuring medium—foundational to political organisation, agricultural cycles, and cosmological order.

To reshape the landscape according to European ideals of dry, gridded land, Spanish authorities initiated systematic drainage of the lakes10—marking the onset of the dry paradigm. Water was no longer understood as part of life but as a problem to be solved through engineering. A defining political decision sealed this trajectory: the choice to maintain the viceregal capital of the New Spain directly atop Tenochtitlan’s ruins. This symbolic assertion of colonial power irreversibly altered the watershed’s fate, exacerbating flooding, deforestation, and soil depletion.11 In 1556, severe floods reignited debates about relocating the city, but economic, religious and political interests prevailed, entrenching a logic of urban expansion over natural lands.12

9 Aureli, ‘Territory’.

10 Izazola, ‘Agua y Sustentabilidad En La Ciudad de México’.

11 Miguel León Portilla, “Centro Histórico de La Ciudad de México y Zona Lacustre de Xochimilco,” essay, in Chinampas de México, Sitio Patrimonio Mundial. “Biodiversidad y Cultura”. Tomo I. (Mexico City: Universidad Autónoma Metropolitana, 2016).

12 Roberto R os Elizondo, Memoria de Las Obras Del Sistema de Drenaje

Fig. 08. Tenochtitlan and the lake texcoco in 1519. (Source: National Museum of Anthropology, INAH)
Fig. 09 The Santa Cruz Map. Alfonso de Santa Cruz, circa 1550. (Source: Uppsala University)

Profundo Del Distrito Federal, Tomo III (México: Departamento del Distrito Federal, 1975).

13 Méndez Cárdenas et al., Chinampas de México, Sitio Patrimonio Mundial: Biodiversidad y Cultura.

14 A basin where water flows towards the ocean through rivers, streams, and other bodies of water.

15 Alexander Von Humboldt, ‘Capítulo VIII - Nueva España’, in Ensayo Político Sobre La Nueva España (Paris: Paul Renouard, 1827). 303-423.

16 Salomón Abedrop L., ed., El Gran Reto Del Agua En La Ciudad de México. Pasado, Presente y Prospectivas de Solución Para Una de Las Ciudades Más Complejas Del Mundo. (Ciudad de México: Sistema de Aguas de la Ciudad de México, 2012).

Large-scale drainage infrastructure followed: the Huehuetoca Canal in 1607 and the Nochistongo Trench in the early 17th century,13 both designed to evacuate floodwaters rather than work with the natural hydrology. These early macro-infrastructures artificially transformed the Valley from an endorheic system into an exorheic one, fundamentally altering its ecological balance.14. Alexander von Humboldt’s observations in 1803 documented how water management had become a defensive, reactive process—reflecting a colonial mindset that cast nature as an adversary rather than a partner.15 This extractive and oppositional stance persisted well beyond Mexico’s independence in 1821, as water governance remained fragmented and reactive. Rather than embracing sustainable hydrological planning, successive governments intensified efforts to drain Lake Texcoco and its neighbouring lakes, further accelerating environmental degradation.

Fig. 10 Map of Tenochtitlan, printed 1524 in Nuremberg, Germany. (Source: Newberry Library, Chicago)
Fig. 11 Nochistongo Trench. 1883 (Source: INAH)
Fig. 12 General Plan of the Valley of Mexico Basin by Engineer Francisco de Garay, 1856.

By the late 19th century the drainage policies escalated under the discourse of modernisation. In 1856, authorities committed to fully draining Lake Texcoco. By 1920, the completion of the Gran Canal marked the symbolic and material culmination of this project.16 Yet even before the canal’s completion, urban water demand outstripped the capacity of natural springs, prompting the proliferation of private wells and triggering widespread land subsidence.17 In 1886, further diversion of rainwater and sewage through the Gran Canal disrupted the basin’s natural recharge cycles, severing the hydrological feedback loops that had sustained the basin for centuries.18

17 Beth Tellman et al., ‘Adaptive Pathways and Coupled Infrastructure: Seven Centuries of Adaptation to Water Risk and the Production of Vulnerability in Mexico City’, Ecology and Society 23, no. 1 (2018).

18 Luis Zambrano, Rubén Rojas, and Cristina Barros, Xochimilco en el siglo XXI, Primera edición, Turner noema (Ciudad de México, CDMX:

In the 1950s, hydraulic policy shifted once more: the federal government opted to import water from the Lerma basin, embedding Mexico City into a larger extractivist network. This strategy expanded further in 1982 with the inclusion of the even more distant Cutzamala basin. Together, the Lerma-Cutzamala system—which today continues to supply 42% of the city’s water19—creates a dependency into a permanent state of hydrological debt to external territories.

Historian Luis Aboites Aguilar terms this process the “federalisation of water”—the gradual centralisation of water governance under the federal state, stripping local communities of their historical autonomy. This process formalised through the 1888 Water Law and institutionalised with the creation of the Secretaría de Recursos Hidráulicos (Ministry of Water Resources) in 1946, reframed water as a national resource subordinated to state-led projects of economic integration and modernisation.20 In this shift, communal water practices were delegitimised as backward and inefficient.21 As Aboites argues, this legal and administrative reframing accelerated both the material disappearance of water and the symbolic erosion of its cultural significance.22

Turner, 2021).

19 Sistema de Aguas de la Ciudad de México (SACMEX). Programa de Gestión Integral de los Recursos Hídricos, Visión a 20 años. Ciudad de México: Sistema de Aguas de la Ciudad de México (SACMEX), 2012.

20 Luis Aboites, ‘III. Cambios y Continuidades Legales’, in El Agua de La Nación: Una Historia Política de México, (1888-1946), 1. ed (México, D.F: Centro de Investigaciones y Estudios Superiores en Antropología Social, 1998), 83–86.

21 Aboites, ‘VII. Conclusiones’.

22 Aboites, ‘VI. Reglamentar (Centralizar) Todo’.

23 Abedrop L., El Gran Reto Del Agua En La Ciudad de México. Pasado, Presente y Prospectivas de Solución Para Una de Las Ciudades Más Complejas Del Mundo.

24 Anat Itay, ‘Conceptions of Progress: How Is Progress Perceived? Mainstream versus Alternative Conceptions of Progress’, Social Indicators Research 92, no. 3 (2009): 529–50.

25 Sidney B. Fay, ‘The Idea of Progress’, The American Historical Review 52, no. 2 (January 1947): 231, https://doi.org/10.2307/1841272.

Completing the Gran Canal fundamentally altered Texcoco’s endorheic condition, severing its natural cycles. Meanwhile, the intensification of groundwater extraction triggered a new cycle of depletion and subsidence across the basin.23 This process of hydraulic modernisation was not exclusive to Mexico—throughout the globe, nation-states adopted large-scale hydraulic infrastructure as emblems of progress, rational governance, and scientific mastery over nature.24 25 These projects were far from neutral—they redrew territorial boundaries, displaced local governance systems, and subordinated hydro-social practices to the imperatives of state power and corporate interest.

Fig. 14 Stone mask indicating flood level in the city centre. (Source: INAH)
Fig. 13 Flooding of the Plaza de la Constitución in 1930.
(Source: INAH)
Fig. 16 Map of the extension of the Potable Water Supply Network in 1901, Manuel Marroquín y Rivera y Carlos Daza. From Mapoteca Manuel Orozco y Berra.
Fig. 15 Advertisement for the Potable Water Supply from a 1928 issue of “Revista de revistas” from “Polanco Ayer y Hoy” blog.

26 Name given to the period of military dictatorship under General Porfio Díaz from 1876 to 1911.

27 Arnaldo Moya Gutiérrez, ‘Historia, arquitectura y nación bajo el régimen de Porfirio Díaz. Ciudad de México 1876-1910’, Revista de Ciencias Sociales (Cr) III–IV, no. 117–118 (2007): 159–82.

28 María del Carmen Bernárdez de la Granja, ‘La Huella Del Agua Siglo XX. El Acueducto de Xochimilco y El Sistema Lerma’ (Doctoral thesis, México D.F., Universidad Autónoma Metropolitana Azcapotzalco, 2016).

29 Moya Gutiérrez, ‘Historia, arquitectura y nación bajo el régimen de Porfirio Díaz. Ciudad de México 1876-1910’.

30 Ulloa and Romero-Toledo,

Under the Porfiriato,26 hydraulic management became central to the modern national identity. Dams, aqueducts, and drainage works joined railroads and boulevards as physical markers of modernity.27 Of special interest is the development of the Xochimilco Aqueduct, which began construction in 1905, was inaugurated in 1908 and became operational in 1913.28 Water was pumped through four stations at selected springs, conveying a 26-kilometre concrete pipe that ended at the La Condesa pumping station.

These carried an important symbolic weight: they framed Mexico as both a rational modern state while simultaneously invoking an invented lineage that linked all important technical advancements, including hydraulic engineering, to the supposed technological sophistication of the Mexica.29 Such a reading highlights the contradictory discursive approach of the period. As Astrid Ulloa notes, such works didn’t simply move water—they restructured power relations, subordinating local hydrological knowledge to state-imposed technological regimes.30

The following drawings show the four pumphouses that formed part of the extraction, pumping and delivery of potable water to the city via the

Fig. 17 Map of the Xochimilco Aqueduct with the Pumping Houses (Author)
Fig. 18 Section and Floor Plan of the Santa Cruz Pumping House (Author)
Xochimilco aqueduct.
Fig. 20 Section and Floor Plan of La Noria Pumping House (Author)
Fig. 19 Section and Floor Plan of the San Luis Pumping House (Author)
Fig. 22 Section and Floor Plan of La Condesa Main Pumping House (Author)
Fig. 21 Section and Floor Plan of Nativitas Pumping House (Author)

Population growth brought by the economic forces in the capital further accelerated water demand. By the mid-20th century, subsidence rendered the Gran Canal’s gravity drainage unviable, requiring increasingly complex pumping infrastructure.31 In 1975, the Deep Drainage System was introduced, followed by the Túnel Emisor Oriente (Eastern Emissary Tunnel) completed in 2017. Despite these investments, flooding persists, as does the city’s unsustainable reliance on deep wells and distant basins.32

By the 21st century, the once-vast lakes of the Valley of Mexico are reduced to residual fragments with Xochimilco standing as the last trace of what was once a thriving hydrological system. Today, even though practically all water bodies in the Valley of Mexico have been drained, the basin remains hydrologically active—rainfall continues to recharge the aquifer, while yearly floods highlight the limits of engineered control. According to the Basin Commission, a failure in Mexico City’s drainage system could result in flooding up to 217 km2, with floodwaters reaching 5 metres.33 Despite this, water governance still adheres to extractivist logic, perpetuating dependence on increasingly distant and deeper sources.34

Turning to the main interest of the thesis, Xochimilco’s survival becomes deeply paradoxical. While widely celebrated for its cultural and ecological significance, its survival is contingent on the same extractivist policies that have defined the basin’s history. Today, Xochimilco is no longer a self-sustaining wetland, but a hydrological simulation—an artificial lake filled with wastewater, while its high-quality groundwater is extracted for the central city’s consumption. This hydro-social hierarchy privileges urban elites over local inhabitants, perpetuating the same inequalities that have historically shaped water management across the Valley.

This paradox is not confined to Xochimilco alone but reflects a broader reality across contemporary Mexico City—a metropolis of over 9.2 million inhabitants spread across 16 municipalities,35 and part of a metropolitan zone exceeding 22 million people.36 Over the past century, this explosive urban growth has exerted relentless pressure on the region’s natural resources, particularly its water and land systems. The cumulative impact of centuries of drainage, extraction, and infrastructural expansion has pushed the entire basin into a state of deep environmental fragility.

In response to this growing ecological imbalance, authorities designated 59% of the city’s territory as part of the Conservation Zone, aiming to protect critical areas for groundwater recharge and ecological stability.37 Since the 1970s, the Xochimilco-Chalco sub-basin has prompted preservation efforts. Recognising its important cultural and ecological value, the region was designated a Zone of Historical Monuments in 1986 and a year later a UNESCO World Heritage Site.38 Despite its protected status, UNESCO repeatedly warns about the vulnerability of the declared territory, imposing conditions for its continued listing in 2002 due to the ongoing degradation.39

35 Population census conducted by the National Institute of Statistics and Geography (INEGI) in 2020.

36 Starting from 2005, the governments of the Federal District, together with the neighboring states of Mexico and Hidalgo, established the Metropolitan Area of the Valley of Mexico (ZMVM), which includes the 16 boroughs of Mexico City, as well as 59 municipalities from the State of Mexico and one from Hidalgo.

37 Jill Wigle “The ‘Graying’ of ‘Green’ Zones: Spatial Governance and Irregular Settlement in Xochimilco, Mexico City,” International Journal of Urban and Regional Research 38, no. 2 (May 23, 2013): 573–89.

‘Introducción. Hidro-poderes globales-nacionales y resistencias locales’.

31 Raúl J Marsal et al., El Subsuelo de La Ciudad de México: Con Una Revisión de Los Avances En El Conocimiento Del Subsuelo de La Ciudad de México (1959-2016) (Ciudad de México: UNAM, Instituto de Ingener a, 2016).

32 The city experienced flooding on twelve occasions over 35 years (1976-2010). From Tellman et al., ‘Adaptive Pathways and Coupled Infrastructure’.

33 Comisión Nacional del Agua, ‘Compendio Del Agua de La Región Hidrológico-Administrativa XIII. Lo Que Se Debe de Saber Del Organismo de Cuenca Aguas Del Valle de México’ (Gobierno Federal, December 2010).

34 Programa de Gestión Integral de Los Recursos Hídricos, Visión 20 Años’ (Ciudad de México: Sistema de Aguas de la Ciudad de México, October 2012).

Attempts to rehabilitate the area date back to 1989, when the Salinas de Gortari administration proposed a large-scale ecological restoration plan for Lake Xochimilco.40 This project involved the expropriation of 1,040 hectares of ejidal land,41 intended for a privately operated mega-development named Xochimilco Florido 42 The plan aimed to detach traditional productive tenure to make way for capitalist ventures. However, the project failed to materialise and led instead to the establishment of the Xochimilco Ecological Park—a 160-hectare initiative that has struggled with financial sustainability and a disconnect from traditional lake-based livelihoods.

38 In 1972, UNESCO established the “Convention Concerning the Protection of the World Cultural and Natural Heritage” to safeguard sites of cultural or natural significance, acknowledged for their exceptional value at the global level, and to ensure their conservation for future generations.

39 UNESCO World Heritage Centre, UNESCO World Heritage Centre - State of Conservation (SOC 2004) Historic Centre of Mexico City and Xochimilco (Mexico), accessed February 6, 2024.

40 Carlos Salinas de Gortari’s government (1988-1994) was characterised by neoliberal economic policies and the signing of NAFTA. His administration faced criticism for corruption and human rights violations.

41 Further developed in Chapter 2. In 1917, the Mexican Constitution established ejidos and communal lands in response to the Mexican Revolution, recognising territorial rights and traditional community organisation. The Agrarian Law of 1992, during the neoliberal Salinista government, granted ejidatarios full land rights and freedom to sell, marking a significant shift in land administration since the revolution.

42 Zambrano, Rojas, and Barros, Xochimilco en el siglo XXI.

Fig. 24 Eastern Emissary Tunnel. 2017
Fig. 23 Section of the potable water Aqueduct Mexico Xochimilco, km. 20, 1908. (Archivo Casasola)

The following diagrams show the city’s network of aqueducts and water supply, comparing the pre-Hispanic configuration with the modern one. The change from a scheme of simple connections to a complex system of extractivist practices, in which the technification of the elements is opposed to a more holistic conception, is notable.

Tenochtitlan Spring Aqueduct by canal over the roadway

Individual canoe distribution

Ditches

Water flowing into Lake Texcoco Private fountain

Xochimilco Springs

Xochimilco Aqueduct

Pumping Houses

System-independent wells

Valves

Distribution pipe to privates

Tap (closed system)

Public ornamental fountain

Chapultepec Spring
Fig. 25 Linear distribution system of a pre-Hispanic aqueduct (Author)
Fig. 26 Distribution system by circuits of the Xochimilco Aqueduct (Author)

43 Zambrano, Rojas, and Barros, Xochimilco en el siglo XXI.

44 The Ramsar Convention, adopted in the city of the same name in Iran in 1971, is an international treaty that aims to conserve and sustainably use wetlands worldwide. See: “Ramsar Sites Information Service,” Sistema Lacustre Ejidos de Xochimilco y San Gregorio Atlapulco | Ramsar Sites Information Service, accessed April 3, 2024.

45 Interdependence Commission for the Conservation of the Natural and

Over the decades, ejidatarios—communal land owners—have resisted expropriation, working to reclaim and rehabilitate their lands. In 1992, the government designated 2,525 hectares of the Ejidos of Xochimilco and San Gregorio Atlapulco as a Protected Natural Area (PNA);43 but bureaucratic challenges, urban encroachment, and environmental degradation have weakened these protections. Flooding, land erosion, and informal settlements continue to impact the remaining chinampas.

In 2004, Xochimilco was declared a Ramsar Wetland of International Importance.44 The site lacked a comprehensive management framework, and by 2005, a local conservation commission was created45—though its implementation has been criticised as inadequate.46 More recently, in 2017, the FAO designated The Chinampero Agricultural System of Mexico City as a GIAHS (Globally Important Agricultural Heritage System),47 reaffirming the holistic relationship between the local communities and their environment.

The institutions that manage this zone reveal the complexities of governing a fragmented territory where environmental conservation collides with informal land occupation, speculative urbanisation, and the economic needs of communities who inhabit these fragile territories. This tension—between conservation policy and everyday inhabitation—has made the Conservation Zone a contested territory, where informality and land tenure are present as part of the lacustrine landscape.

47 Globally Important Agricultural Heritage

The environmental degradation resulting from these pressures extends far beyond the immediate territory. Air pollution generated by transportation and industrial activity contributes to widespread respiratory illnesses and progressively deteriorates the quality of life, while the loss of green spaces and natural habitats reduces biodiversity and intensifies the urban heat island effect, further weakening the city’s climate resilience.48 Fig. 28 Map of Mexico City showing the Ecological Conservation Zone. (Author)

Fig. 27 Map of Mexico City showing ancient lakes and present-day bodies of water. (Author)
Cultural Heritage of Milpa Alta, Tláhuac, and Xochimilco.
46 Zambrano, Rojas, and Barros, Xochimilco en el siglo XXI.
System by the Food and Agriculture Organization, (FAO), UN.
48 Zambrano, Rojas, and Barros, Xochimilco en el siglo XXI.

At the heart of this environmental crisis lies the city’s water system—a system that, as we have seen throughout this chapter, is now defined by scarcity, deteriorating quality, ageing infrastructure, and acute inequality in access to potable water, especially in marginalised areas. Excessive aquifer exploitation, which still provides 58% of the city’s water, has rendered this system unsustainable, contributing both to subsidence and the progressive depletion of the Valley’s last natural reserves.49 Despite the continuous shift of the discourse of modernisation and progress into one that prioritises caring about the environment, Mexico City’s water management strategy remains rooted in a short-term logic of extraction and external dependency, rather than in a regenerative vision that treats the basin as a living entity.

This deepening crisis has sparked growing concern, amplified by reports of historically low water levels across the city’s Water System. While experts refrain from pinpointing a precise timeline for depletion, public discourse has increasingly coalesced around the looming spectre of “Day Zero”50—a term that underscores the urgency of rethinking water governance. More than a technical emergency, Day Zero signals the culmination of centuries of territorial mismanagement, demanding a new governance framework that understands the basin as a dynamic, interdependent system where ecological restoration, cultural recognition, and social justice must converge if Mexico City—and Xochimilco—are to sustain themselves into the future.

49 ‘Diagnóstico, Logros y Desafíos’.

50 ‘UN Expert Calls on Mexico to Urgently Expand and Improve Water and Sanitation Provision for All’, Press Releases, Special Procedures, United Nations Human Rights Office of the High Commissioner, 15 May 2017.

This series of maps shows the drying up of lakes over 500 years.

Fig. 29 Xochimilco-Chalco Lakes in 1521. (Author)
Fig. 31 Xochimilco-Chalco Lakes in 1925. (Author)
Fig. 30 Xochimilco-Chalco Lakes in 1825. (Author)
Fig. 32 Remnants of lakes within the polygonal of the Conservation Zone in 2024. (Author)
Fig. 33 Map of the Conservation Zone (CZ) within Xochimilco Borough. (Author)

This timeline shows the different protection and safeguarding plans that have been implemented on the territory of Xochimilco and its chinampería since the 20th century, among them the regulatory framework that has had the greatest importance: the 1987 designation of Xochimilco as a World Heritage Site by UNESCO.

Fig. 34 Timeline with Conservation and Regulation Plans in Xochimilco (Author)

The following timeline shows three intertwined themes, analysing the water infrastructures used in the territory of the Mexico Valley basin, the infrastructures (of the dry paradigm) applied to the basin from the 17th century onwards, and their relationship with the constant flooding of the Mexico Valley.

Fig. 35 Timeline with the transformations in the Mexico Valley Basin. 1410-2010. (Author)

1.2 The liquid-to-dry spectrum. Visualising the ontological shift.

“Seeing comes before words. It is seeing which establishes our place in the surrounding world.”

John Berger, Ways of Seeing 51

As part of the research process for this dissertation, I turn to my photographic practice to document the ongoing transformation of Xochimilco— from an amphibious cultural landscape into a fragmented, urbanised territory. This shift is not merely environmental but a reconfiguration of perception and meaning, in which ways of inhabiting tied to water’s fluidity, adaptability, and relationality are replaced by fixed, dry infrastructures that privilege land enclosure, territorial rigidity, and control.

The photographic essay is not a detached section; it is threaded throughout the thesis, developing across three drifts: navigable, terrestrial and aerial, each corresponding to a distinct perceptual scale of transformation. Rather than being merely illustrative, it traces the changing ways in which water is seen, understood, and ultimately governed—a shift that clarifies the emergence of the dry paradigm previously described in Chapter 1.

The navigable drift follows water-based mobility, documenting how canoe transportation persists. It highlights the “logics of disorder”, illustrating how habitability and productivity engage with or sometimes contest the amphibious nature of the territory.

Fig. 36 Headlines from different newspapers, 2023-24. (Source: Various Newspapers)
Fig. 37 First aerial photos of the Chinampería in Xochimilco,1938 (Fundación ICA)

The terrestrial drift traces the transformation of former canals into land routes between the productive and habitable landscape, capturing the material transformations required and the insights they offer about the communities driving these shifts. The photographs reflect on how inhabitants adapt and consolidate their surroundings.

Finally, the aerial drift provides a territorial perspective of Xochimilco, where the overlap of urban and rural logic becomes strikingly evident. Some borders appear sharply defined, while others dissolve into blurred zones of transition. This unique perspective reveals patterns and relationships that can only be perceived from above.

Photography serves here as both a method and counter-discourse, a visual means of questioning the official narratives that frame water’s disappearance as inevitable, or even desirable. It insists that what has disappeared from dominant discourse has not disappeared materially or symbolically. As John Berger suggests, “to look is an act of choice,” and this act of photographic looking becomes a method to bring submerged stories, histories, and imaginaries back into view.

To enrich this visual and cognitive exploration of the liquid-to-dry spectrum, the research also briefly turns to cinematic representation, where Xochimilco has long served as both setting and symbol. Two films in particular frame this transformation over time. María Candelaria (1944)52, directed by Emilio “El Indio” Fernández, romanticises rural Xochimilco before its full absorption into the urban fabric. As part of Mexico’s Golden Age of Cinema, the film draws heavily on nationalist visual tropes, portraying Xochimilco as a timeless aquatic paradise. Beyond its narrative of tragic romance, the film reveals a pre-urban conception of the character’s surroundings where water is fully integrated into mobility, subsistence, and

social life—a world in which canals are pathways, marketplaces, and ritual spaces.53 Yet even this pastoral vision reflects an extractive undercurrent; the same scientific discourses that framed Xochimilco’s springs as sources for Mexico City’s potable water also framed its population as picturesque, yet ultimately expendable.

By contrast, Mi Niño Tizoc (1972)54 marks a transitional moment, where the dry paradigm becomes dominant. Xochimilco is no longer portrayed as an autonomous lacustrine community but as a peripheral borderland between rural and urban life—a friction zone where residents are alienated by encroaching urbanisation. The film’s tight framing, focusing on streets rather than canals, reflects this shift from water to land, while its narrative of displacement mirrors broader processes of indigenous dispossession within Mexico’s modernisation project. Octavio Paz’s essay “Mexican Masks”55 echoes this disappearance: indigenous figures dissolve into the urban backdrop, rendered invisible within the city’s aspirational modernity. Between these two films, a clear trajectory emerges—water is first romanticised, then peripheralised, until it becomes a residual presence within a landscape defined by concrete, roads, and speculative development.

The interpretation of historical and cinematic framings informs the photographic essay, using visual documentation to construct a specific narrative of Xochimilco’s communities in the present. Aerial drone imagery exposes the fragility of the system. From above, Xochimilco is neither fully urban nor fully rural; it is a transitional landscape where canals and chinampas form a unique balance. The boundaries of the Conservation Zone are visibly demarcated, its edges surrounded by a growing development.

51 Berger, John. Ways of Seeing. London: Penguin Books, 2008.

52 María Candelaria, Drama, 1944.

53

54 Mi Niño Tizoc, Drama (1972).

55 Paz writes: “The indian merges with the landscape, blending with the white wall he leans on in the afternoon, the dark earth he lies upon at noon, and the silence surrounding him. His human singularity is so obscured that it is ultimately abolished, and he transforms into stone, earth, wall, silence: space.” from Octavio Paz, ‘Máscaras Mexicanas’, in El laberinto de la soledad, 2. ed., 1. reimpr, Colección popular 471 (Madrid: Fondo de Cultura Económica-España, 1996), 26–41.

Fig. 38 Frames from the Film María Candelaria, 1944.
Fig. 39 Frames from the Film Mi Niño Tizoc, 1972.
Banister and Widdifield, ‘The Debut of “Modern Water” in Early 20th Century Mexico City’.

56 Néstor García Canclini further develops the term “hibridisation” in his book Culturas híbridas: estrategias para entrar y salir de la modernidad (México: Grijalbo [u.a.], 2000).

57 The concept of the dry ontology is proposed within the context of the dry paradigm as a way of understanding the act of being in a dried environment. It is proposed in opposition to Philip Steinberg and Kimberly Peters’ wet ontology, a way of understanding being in the world centered in water’s fluidity, dynamism, and relationality, challenging the land-based, static assumptions. See Philip Steinberg and Kimberley Peters, ‘Wet Ontologies, Fluid Spaces: Giving Depth to Volume through Oceanic Thinking’, Environment and Planning D: Society and Space 33, no. 2 (April 2015): 247–64.

These images capture the ongoing process of hybridisation.56 The expansion of urban land over water follows a logic that has endured through Spanish colonisation, and into modern Mexico. While the claim to the land has changed, the underlying logic of the chinampería persists. Even before colonial times, the imperative has always been to impose stability over water—a drive that later extended to the inherently fluid ground itself.

At the core of this transformation is the chinampa as a territorial device. More than a means of cultivation, it generates land where none previously existed. In doing so, the chinampa introduces a logic of its own, one that negotiates between adaptation and control, fluidity and permanence. On the ground, the liquid-to-dry transformation is experienced as a lived reality. The street-level photography documents how people navigate this evolving terrain, moving between water and land, negotiating the instability of a landscape that is never fully one or the other.

These images reveal two parallel modes of movement: canoe-based navigation, which persists within the conservation area, and pedestrian mobility through repurposed canal beds, where water has been replaced by dry passageways. The materiality of the ground itself—shifting from water to mud, from mud to earth, from earth to cement—embodies a dry ontology that has been adopted out of necessity.57 The liquid-to-dry spectrum is not merely a historical transition but a condition that unfolds through daily choices and constraints.

Yet this transition is not voluntary for many. The turn to the chinampas is not a romantic resurgence but a necessity. The photographs document these ways of living, revealing how residents adapt to an environment that is simultaneously fragile and resistant. The chinampas, originally devices of territorial productive expansion, now provide refuge for those displaced by urbanisation and economic precarity. How can architectural speculation provide tools to persist in this “thick present”?

Beyond its material consequences, the liquid-to-dry spectrum is an aspirational shift. To become dry is to align with the logic of modern governance, where so-called progress is directly linked to control over water and major infrastructural initiatives. The cycle of extraction and re-introduction together with the enclosure of wetlands were framed as necessary steps towards urban order and national development.

Photography, in this context, is not just a means of representation but a method of inquiry. Through aerial perspectives, eye-level documentation, and a focus on human interactions with the changing landscape, this visual study constructs an argument about the liquid-to-dry spectrum. By making these transformations visible, photography becomes a critical tool for questioning. It suggests that the future of Xochimilco is still contested and that the choice between liquid and dry remains open. The visual documentation of this landscape, then, is not just an archive but a space for imagining alternative possibilities.

Fig. 40 Self-portrait in the chinampería detail. 2023. (Author)

Drift I explores the chinampería through a canal-based approach, moving across areas marked by irregular settlements that began emerging approximately six decades ago. Using a hand-colour-coded analysis, this drift traces the progressive transformation of the landscape—from natural to built environments. It illustrates the evolution and presence of vegetation (green), water bodies (blue), and aquatic transport (orange), transitioning towards agricultural technification through greenhouses (purple), and ultimately reaching consolidated built structures (red), terrestrial roads (brown), and landbased modes of transport (navy blue). The vertical representation of this drift visually reinforces the predominant narrow and elongated spatial conditions of the area.

Drift I

Fig. 42 Landscape within the chinampería Xochimilco, 2024. (Author)
Fig. 41 Chinampería along the Canal de Japón, Xochimilco, 2024. (Author)
Fig. 44 Chinampa with micro-tunnels, Xochimilco, 2023. (Author)
Fig. 43 Chinampa with shade mesh covers, Xochimilco, 2023. (Author)
Fig. 46 Canoe and trajinera workshop along the canal, Xochimilco, 2023. (Author)
Fig. 45 Self-built house along the canal, Xochimilco, 2023. (Author)
Fig. 48 Intersection of terrestrial and fluvial routes, Xochimilco, 2023. (Author)
Fig. 47 Self-built house along the canal, Xochimilco, 2023. (Author)
Fig. 50 Consolidated self-built houses along the canal, Xochimilco, 2024. (Author)
Fig. 49 Consolidated two-storey self-built house, Xochimilco, 2023. (Author)
Fig. 52 Consolidated two-storey self-built houses, Xochimilco, 2024. (Author)
Fig. 51 Transition between terrestrial and fluvial mobilities, street beside canal, Xochimilco,

Habitability in the Lacustrine Territory

Listen to the sound of the underground water.

Water Piece, 1963. Yoko Ono

Fig. 54 Acocil (Cambarellus montezumae). (Author)

Habitability in the Lacustrine Territory

The processes of inhabitation in the chinampería involve more than the physical structures of shelter; they are closely intertwined with water, land and traditional socio-cultural practices. This chapter examines how the amphibious condition of Xochimilco has been reconfigured through self-construction, territorial regulations and environmental constraints, forcing new ways of living to adapt to this delicate landscape.

Through the concept of cultural hybridisation and considering land tenure policies and self-built housing, this chapter observes the evolving relationship between communities and their unique context, revealing the frictions that define their present reality. This allows the dissertation to identify key problems that can be addressed through design strategies that engage with the realities of inhabiting the lakescape.

2.1 Processes of Cultural Hybridisation in Xochimilco

The lacustrine territory of Xochimilco has undergone profound transformations in its ways of inhabiting, reflecting not only material changes but also cultural, economic, and political shifts. As Néstor García Canclini argues, modernity in Mexico has not eliminated traditions but rather “hybridised” them, generating new forms of organisation and territorial appropriation. This is evident in the evolution of community organisation structures, such as stewardships (mayordomías) and communal work days (faenas), which remain central to Xochimilco’s identity and continue to operate as mechanisms of cohesion. These structures explored further in Chapter 3, illustrate how collective organisations are an active link between ancestral practices and present-day living.

Despite state interventions and restrictions imposed in the Ecological Conservation Zones, these communal systems have persisted and expanded. These emerging dynamics interweave tradition with contemporary resistance models and demonstrate the communities’ capacity to reconfigure their relationship to space through community and vice versa.2

Regularisation Policies and the Ejidos

A key factor in understanding the habitability crisis in Xochimilco is the impact of territorial regulations, particularly the transformation of the ejido system. The 1917 Agrarian Reform, a product of the Mexican Revolution, established ejidos as a form of communal land ownership, granting land rights to indigenous and peasant communities for the first time in the history of the independent nation.3 This system ideologically safeguarded communal tenure well into the 20th century. However, a constitutional reform in 1992 introduced an important alteration to this model, allowing the sale and privatisation of ejido lands, accelerating the expansion of irregular settlements and favouring the real estate market. Since the sale of ejidos enabled access to cheap land on the city’s periphery, Xochimilco and many other border regions in metropolitan areas became a disputed territory between environmental conservation, agricultural production, and the growing demand for housing.4

2 ‘Chinampa Agricultural System of Mexico City, Mexico. A Proposal for Designation as a Globally Important Agricultural Heritage Systems (GIAHS)’.

3 Adrian Guillermo Aguilar and Clemencia Santos, ‘Informal Settlements’ Needs and Environmental Conservation in Mexico City: An Unsolved Challenge for Land-Use Policy’, Land Use Policy 28, no. 4 (October 2011): 649–62.

4 Wigle, ‘The “Graying” of “Green” Zones’.

1 Néstor García Canclini, Culturas híbridas: estrategias para entrar y salir de la modernidad (México: Grijalbo, 2000).
Fig. 55 Chinampería in Santa María Acalpixca, circa 1940. (Source: Conaculta- INAH)
Fig. 56 Chinampería 2024. (Author)

5 Alejandro Hernández Gálvez, ‘Una Ciudad En Un Lago: Ecología, Política y Crecimiento Urbano’, Arquine, 7 February 2019, https:// arquine.com/ciudad-lago-ecologiavitz/.

6 Beth Tellman et al., ‘The Role of Institutional Entrepreneurs and Informal Land Transactions in Mexico City’s Urban Expansion’, World Development 140 (April 2021): 105374.

7 Wigle ‘The “Graying” of “Green” Zones’.

8 Zambrano, Rojas, and Barros, Xochimilco en el siglo XXI.

The official approach to regularisation policies in Xochimilco has been contradictory. While the state prohibits urbanisation in environmental conservation zones, in practice, informal settlements have been tolerated and, in some cases, facilitated by the authorities.5 This selective yet gradual enforcement has created a landscape of structural informality, where thousands of homes remain in a state of “permanent temporariness”, lacking adequate infrastructure and formal rights over the land they inhabit.6

As Jill Wigle argues, informality is not merely the absence of regulation but a state mechanism of control, where certain activities are legalised or criminalised according to political convenience.7 Within this framework, Xochimilco’s irregular communities have been systematically marginalised, oscillating between the threat of eviction and the promise of regularisation as an electoral bargaining tool.8 These habits in territorial regularisation in Xochimilco have perpetuated legal ambiguity. Oren Yiftachel describes these territories as “grey spaces”, neither fully formal nor entirely illegal, where ambiguity perpetuates long-term precarity in the habitability of the lacustrine environment.9

Historically, the lacustrine landscape of Xochimilco was structured around agricultural chinampas, where chinancallis—huts built with local materials such as tule, reed, and ahuejote trunks—sporadically appeared. These temporary shelters were not designed for permanence but served a critical function within the productive systems, providing spaces for rest, food preparation, and tool storage. Farmers who lived on the lakeside villages outside the chinampería, commuted daily by canoe between their homes and the chinampas, enforcing a rhythm within the territory.

The advance of modernisation and urbanisation in the second half of the 20th century led to the disappearance of traditional chinancallis. They were replaced by makeshift structures, colloquially known as ranchitos, which retain the same functions but incorporate industrial materials such as sheet metal, cardboard, and plastics. Simultaneously, chinampas began to be occupied as residential spaces, marking a new stage in the transformation of the lacustrine territory.

During one of the visits a recreational chinampa was explored, with a chinancalli built for educational and recreational purposes.

Fig. 57 Chinancalli house in San Luis, Xochimilco, 1925. (Source: INAH) Fig. 58 Interior of a Chinancalli in San Luis, Xochimilco, 1925. (Source: INAH)
Fig. 59 and 60 Chinancalli for recreational and educational purposes. , 2024. (Author)
Chinancalli to Ranchitos
0 2 m
Fig. 61 Floor Plan of a Chinancalli (Author)
Fig. 62 Isometric of a Chinancalli (Author)

12

Since the early 20th century, employment opportunities and improved living conditions in Mexico City have drawn rural migrants to Xochimilco, particularly farmers. This phenomenon intensified in the latter half of the century, leading to two main settlement patterns: some workers maintained residences in their places of origin, travelling seasonally to work in the chinampería, while others relocated permanently with their families. In both cases, new residents occupied chinampas that had fallen into agricultural disuse or had shifted from productive to residential use due to economic pressures. Initially, these dwellings were temporary structures, but over time, they acquired a more permanent character as informal settlements expanded across the territory.10

One of the most significant and long-standing migration flows in San Gregorio Atlapulco originates from Hueyapan, a neighbouring town in the state of Puebla.11 This movement, which has persisted for over five decades, has been driven by favourable working conditions in chinampa agriculture. Migrants from Hueyapan, many of whom arrived as seasonal workers, established strong socio-economic ties with the local community, eventually transitioning into permanent residents and “making kin”.12

This process has generated mutual benefits: while migrant workers have secured better economic conditions for themselves and their families, this labour has also been essential for agricultural production in San Gregorio. However, the second half of the 20th century also saw a decline in agricultural activity among local Xochimilco families, as younger generations progressively integrated into the expanding urban economy of Mexico City. The increasing attraction of non-agricultural employment, alongside the challenges of maintaining traditional chinampa farming in an evolving landscape, contributed to a shift in livelihoods. As a result, the migration of external workers not only sustained the remaining agricultural economy but also contributed to the growing complexity of settlement patterns in the region.

The expansion of settlements in Xochimilco has also been driven by population growth among original families. Traditionally, Xochimilco’s lakeside villages followed a patrilineal family structure, where new generations established their households adjacent to their paternal homes. However, due to the increasing scarcity of space in family plots within the towns, many families have opted to move to parcels within the chinampería, which previously had exclusively agricultural use. This phenomenon, known as “family splittings”,13 has transformed land use, turning family-owned chinampas into residential areas to meet the needs of population expansion. It also reflects resilience over necessity and scarcity, in which territorial occupation is adapted to regulatory constraints and conservation policies.

A sustainable approach to Xochimilco’s habitability must balance ecological preservation with the evolving spatial needs of its communities. Beyond nostalgia for a lost past, the focus should be on developing alternatives that integrate traditional structures, such as mayordomías and faenas with architectural and urban solutions.

Faced with ongoing urban expansion and environmental challenges, it is crucial to rethink habitability models that integrate collective memory, self-managed community structures, and territorial sustainability without compromising the future of the lacustrine ecosystem.

13 Asentamientos Humanos Irregulares: Diagnóstico, Prospectiva y Estrategia de Atención Integral’.
9 Wigle ‘The “Graying” of “Green” Zones’.
10 Zambrano, Rojas, and Barros, Xochimilco en el siglo XXI.
11 Hueyapan is a village of 10K inhabitants located in the neighbouring state of Puebla with an important agricultural history.
Appendix and II.
Fig. 63 Farmers travelling along a canal (Author)
Fig. 64 Family in their liquid mobility (Author)

2.2 Self-construction

Self-construction in Xochimilco is not a recent phenomenon but rather the result of ongoing territorial transformations that have altered the relationship between the community and the lacustrine landscape. From the disappearance of the chinancallis to the consolidation of homes made from industrial materials, the built environment has been reshaped by informal appropriation dynamics.

The emergence of self-construction in the lacustrine territory has led to a fragmented built landscape, where each dwelling responds to specific needs and material availability while sharing structural challenges: legal irregularity, lack of basic services, and environmental precariousness. As Mexican contemporary artist Abraham Cruzvillegas highlights, self-construction is not merely an architectural phenomenon but an ongoing process of transformation, in which housing is constantly modified and adapted according to the immediate needs of its inhabitants. In Xochimilco’s chinampería, this dynamic materialises in hybrid dwellings that combine available industrial materials with traditional techniques and locally sourced natural resources, creating a built landscape that is both fragile and resilient. Through self-managed mechanisms, communities have built not only their homes but also the social and economic networks that sustain everyday life in the chinampería

Cruzvillegas encapsulates the experience of inhabiting a constantly evolving environment, where spatial modifications emerge in response to fundamental needs. In his project Autoconstrucción, the artist describes the act of adding, altering, or removing spaces as an involuntary architectural choreography, in which each intervention is part of an accumulative process of adaptation and survival.14 This concept is crucial to understanding the evolution of housing in the chinampería, where self-construction has evolved from a provisional strategy into a permanent condition that aspires to longterm habitability. While it faces structural and environmental challenges, self-construction also represents a form of resistance against an exclusionary urban model that has systematically failed to provide accessible housing solutions.

However, within the environmental conservation zone of Xochimilco, self-construction is not merely an adaptation strategy but also a symptom of structural exclusion. As author James Holston argues, informality is not the absence of planning but the result of governance systems that perpetuate inequalities by restricting access to housing and basic services.15 In this context, self-construction operates as a form of “insurgent citizenship”16 in a regulatory void, where residents are forced to generate their own domestic solutions in the absence of formal alternatives or proper public networks. Far from being solely a manifestation of precariousness, this process also reflects political agency, in which the community challenges official structures by constructing its own environment with logics and rhythms that differ from those imposed by state authorities.

14 Robin Greeley, ed., ‘SelfConstruction’, in The Logic of Disorder: The Art and Writings of Abraham Cruzvillegas (Harvard University Press, 2016), 21–53.

15 James Holston, ‘Insurgent Citizenship in an Era of Global Urban Peripheries’, City & Society 21, no. 2 (December 2009): 245–67.

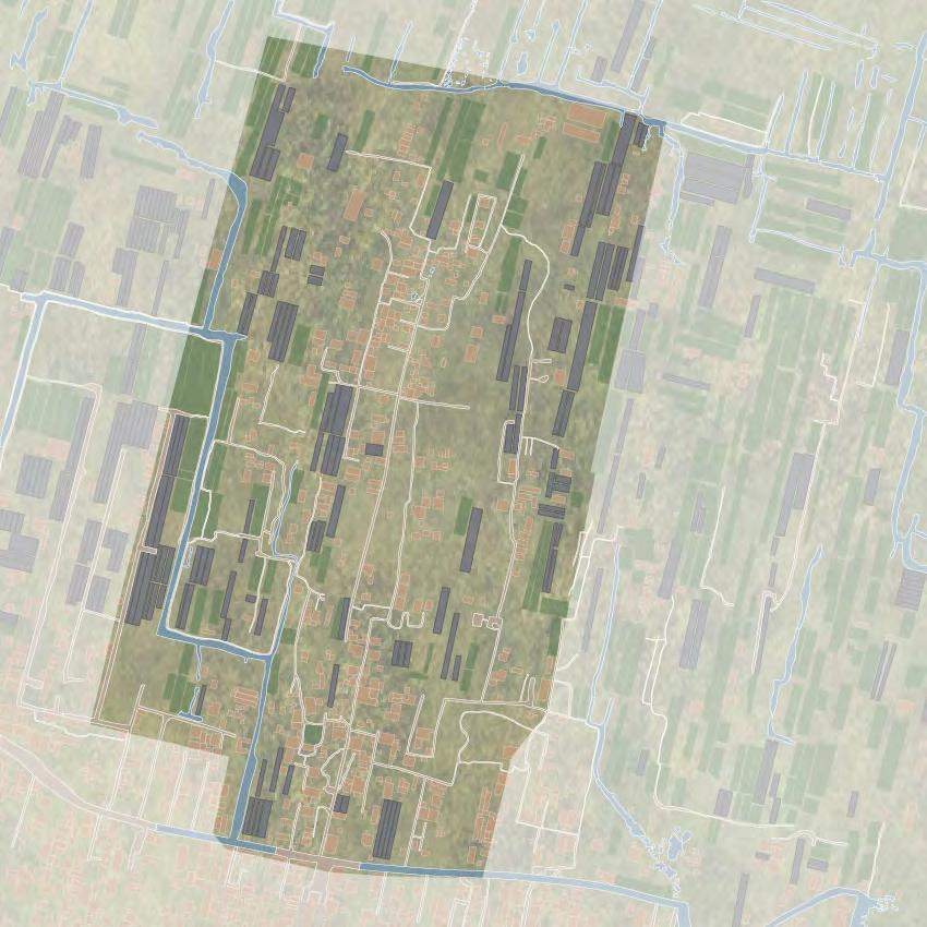
16 Holston, ‘Insurgent Citizenship in an Era of Global Urban Peripheries’. This image presents the neighbourhood of La Conchita through a highresolution photographic mosaic composed of 87 individual drone-captured frames. The resulting composition surveys the multiple layers of complexity that shape this lacustrine landscape— interweaving flows of habitability, productivity, and community.

Fig. 65 La Conchita neighbourhood. Aerial mosaic composed of 87 frames. 2024. (Author)

The consolidation of informal settlements in the chinampería has resulted in a fragmented and discontinuous landscape, where self-constructed homes coexist with traditional chinampas, technified greenhouses, and former canals transformed into roads, scattered between degraded bodies of water. Rather than following a planned layout, this hybrid environment does not conform to a homogeneous morphology but instead emerges from individual decisions and adaptive strategies.

The transformation of the lacustrine has also led to new habitability strategies within self-construction. In an environment where the soil is soft and prone to subsidence, dwellings have adopted improvised structural solutions, relying on concrete foundations and cement block walls—materials associated with formal urban developments and perceived in the collective imagination as symbols of stability and socio-economic progress.

The absence of comprehensive planning and the incompatibility of these materials with the geotechnical conditions of the lacustrine soil have increased the structural vulnerability of these dwellings. Settlements face differential subsidence, recurrent flooding, and water contamination, exposing their inhabitants to constant risks. Paradoxically, in their attempt to consolidate themselves as habitable spaces, these constructions reproduce new forms of precariousness, in a process where community resilience and adaptation remain the primary tools for survival.

Far from being an anomaly or a failure of the system, self-construction in Xochimilco is a testament to the community’s ability to generate alternative habitability strategies. However, this phenomenon should not be romanticised, as it also exposes the structural issues of Mexico’s urban planning models.

Recognising the role of self-construction in the lacustrine territory requires the development of intervention models that integrate community memory with sustainable architectural solutions. This calls for more inclusive public policies, strategies for access to basic services, and flexible regulations that do not underestimate informality but rather incorporate it. Adaptive urban strategies should be seen not as external impositions but as collaborative solutions developed with and for the communities.

Analysis of Irregular Settlements

Urban sprawl on the chinampería has developed progressively over more than eight decades at different scales and intensities. This process is particularly relevant for the thesis given that irregular conditions have a direct impact on the formal establishment of housing, the development of productive areas, and the coexistence between the inhabitants of these settlements.

The documentation of urban expansion in Xochimilco began around 1965 through aerial images, in which constructions can already be observed. This date coincides with the development of roads and land transport infrastructure triggered by the organisation of the 1968 Olympic Games. Another key moment is the year 1986 when the chinampería of Xochimilco, Tláhuac and Milpa Alta were declared Historic Monuments by presidential decree. A year later, in 1987, UNESCO recognised the same area as a World Heritage Site in parallel to the Historic Centre of Mexico City.

Since these declarations, both population censuses and official records of urban expansion show a notable bias, as settlements after 1986 are not considered in these statistics due to the incompatibility that the preservation of the landscape and its cultural richness have with the growing demand for urban housing. This exclusion from official statistics has resulted in a systematic marginalisation, in which the realities of these communities remain ignored, and thus their challenges lack official solutions.

The following is a visual analysis of satellite images provided by Fundación ICA based on archival and census data of irregular settlements, conducted by CORENADR (2024) that document the process of expansion of irregular settlements in the chinampería. The images correspond to the years 1965, 1986, 2000 and 2024, and show urban consolidation in six specific settlements: Santiago Chilico, Santa Rosa Chilico, Ampliación Caltongo, Recodo Caltongo, La Huerta Tulapa and Barrio Caltongo.

This visual analysis supports one of the central arguments of this thesis, that urban development in the chinampería will not slow; therefore, instead of overlooking it, the institutions in charge of regulating and governing the territory should actively collaborate with the local communities and other actors involved to define optimal conditions that allow for a sustainable settlement in the chinampería, adequately integrating housing and productive uses for the direct benefit of its inhabitants.

Fig. 66 Map of Xochimilco showing the six analysed irregular settlements. (Author)
List of settlements analysed:
1. Santiago Chilico
2. Santa Rosa Chilico 3. Ampliación Caltongo 4. Recodo Caltongo 5. La Huerta Tulapa
6. Barrio Caltongo. and its territorial relation with the neighbourhood of La Conchita (LC), to be analysed below.

30 people

136 people

85 people

525 people

Santiago Chililico in 2000
Santiago Chililico in 2024
Santiago Chililico in 1965
Santiago Chililico in 1986
Fig. 67 Map of Irregular Settlement Evolution, Santiago Chililico, 1965. (Author)
Fig. 69 Map of Irregular Settlement Evolution, Santiago Chililico, 2000. (Author)
Fig. 68 Map of Irregular Settlement Evolution, Santiago Chililico, 1986. (Author)
Fig. 70 Map of Irregular Settlement Evolution, Santiago Chililico, 2024. (Author) Houses and structures
Chinampas and green areas Canals Roads Greenhouses

12 people

68 people

people

147 people

Santa Rosa Chililico in 2000
Santa Rosa Chililico in 2024
Santa Rosa Chililico in 1965
Santa Rosa Chililico in 1986
Fig. 71 Map of Irregular Settlement Evolution, Santa Rosa Chililico, 1965. (Author)
Fig. 73 Map of Irregular Settlement Evolution, Santa Rosa Chililico, 2000. (Author)
Fig. 72 Map of Irregular Settlement Evolution, Santa Rosa Chililico, 1986. (Author)
Fig. 74 Map of Irregular Settlement Evolution, Santa Rosa Chililico, 2024. (Author) Houses and structures
Chinampas and green areas Canals Roads Greenhouses

30 people

544

292 people

525 people

Ampliación Caltongo in 2000
people
Ampliación Caltongo in 2024
Ampliación Caltongo in 1965
Ampliación Caltongo in 1986
Fig. 75 Map of Irregular Settlement Evolution, Ampliación Caltongo, 1965. (Author)
Fig. 77 Map of Irregular Settlement Evolution, Ampliación Caltongo, 2000. (Author)
Fig. 76 Map of Irregular Settlement Evolution, Ampliación Caltongo, 1986. (Author)
Fig. 78 Map of Irregular Settlement Evolution, Ampliación Caltongo, 2024. (Author) Houses and structures
Chinampas and green areas Canals Roads Greenhouses

6 people

228 people

159 people

1270 people

Recodo Caltongo in 2000
Recodo Caltongo in 2024
Recodo Caltongo in 1965
Recodo Caltongo in 1986
Fig. 79 Map of Irregular Settlement Evolution, Recodo Caltongo, 1965. (Author)
Fig. 81 Map of Irregular Settlement Evolution, Recodo Caltongo, 2000. (Author)
Fig. 80 Map of Irregular Settlement Evolution, Recodo Caltongo, 1986. (Author)
Fig. 82 Map of Irregular Settlement Evolution, Recodo Caltongo, 2024. (Author) Houses and structures
Chinampas and green areas Canals Roads Greenhouses

12 people

356 people

80 people

1211 people

La Huerta Tulapa in 2000
La Huerta Tulapa in 2024
La Huerta Tulapa in 1965
La Huerta Tulapa in 1986
100 m
Fig. 83 Map of Irregular Settlement Evolution, La Huerta Tulapa, 1965. (Author)
Fig. 85 Map of Irregular Settlement Evolution, La Huerta Tulapa, 2000. (Author)
Fig. 84 Map of Irregular Settlement Evolution, La Huerta Tulapa, 1986. (Author)
Fig. 86 Map of Irregular Settlement Evolution, La Huerta Tulapa, 2024. (Author) Houses and structures
Chinampas and green areas Canals Roads Greenhouses

234 people

1908 people

1500 people

2881 people

Barrio Caltongo in 2000
Barrio Caltongo in 2024
Barrio Caltongo in 1965
Barrio Caltongo in 1986
Fig. 87 Map of Irregular Settlement Evolution, Barrio Caltongo, 1965. (Author)
Fig. 89 Map of Irregular Settlement Evolution, Barrio Caltongo, 2000. (Author)
Fig. 88 Map of Irregular Settlement Evolution, Barrio Caltongo, 1986. (Author)
Fig. 90 Map of Irregular Settlement Evolution, Barrio Caltongo, 2024. (Author) Houses and structures
Chinampas and green areas Canals Roads Greenhouses

17 Appendix

18 Appendix II

This section delves into elements of daily life in La Conchita, one of the informal settlements located within the chinampería in the Conservation Zone of San Gregorio Atlapulco. In the latter half of the 20th century, the first buildings began to appear on the chinampas of the Ejido de San Gregorio, initially serving as small-scale agricultural infrastructures. However in the 1970s, driven by the migration flows and family splittings previously described, the chinampas that now make up the territory of La Conchita began to be occupied for residential purposes. This process led to fluctuating population flows and the consolidation of self-built housing. Today, La Conchita is home to approximately 400 families, with an estimated population of between 3,500 and 4,000 inhabitants, making it the largest informal settlement in San Gregorio Atlapulco.17

As La Conchita is located within an ecologically regulated area where only agricultural land use is permitted, there are no official demarcations for residential land use within its designated polygon. As a result, irregular communities have developed a self-territorialisation system, structuring the area into informal units known as parajes According to chinampero farmer Andrés Vázquez, parajes function as interaction spaces between producers and inhabitants, similar to neighbourhoods.18 However, significant disparities exist in territorial designations and governmental jurisdiction, as informal settlements are not included in the official census, leading to inconsistencies in population records and discrepancies in demographic and spatial information.19

La Conchita is situated within the paraje of Axayopa, bordered to the south by the consolidated urban fringe of San Gregorio. To the north, a canal separates it from the Ejido de San Gregorio Atlapulco and its eponymous lagoon, while two additional canals mark its eastern and western boundaries, separating it from neighbouring parajes. 20

Drawing from the conceptual framework proposed by architects Aureli and Giudici, La Conchita can be understood as an “island”—a delimited space where inhabitants collectively perceive and structure their environment. Within this space, “care begins to take material form and have tangible effects”.21 Unlike urban areas, where public services are managed by the government, in informal settlements such as La Conchita, the collective agency assumes this responsibility. Due to its informal status, residents lack access to essential services such as education, sports, and healthcare, among others, reinforcing socioeconomic and spatial exclusions.

19 Eduardo López Ramírez et al., Alternativas Viables Para La Provisión de Servicios Básicos En Áreas Periurbanas: Lecciones Desde Xochimilco, Ciudad de México (Jiutepec, Morelos: Instituto Mexicano de Tecnología del Agua, 2015).
20 Appendix I 21 Aureli and Giudici, ‘Islands’.
Fig. 91 Map of Xochimilco showing San Gregorio Atlapulco and the Conservation Zone (Author)
Fig. 92 Map of San Gregorio Atlapulco in relation to La Conchita neighbourhood (Author)
This polygonal map of the borough of Xochimilco shows the location of the original neighbourhood of San Gregorio Atlapulco.
This map of the polygonal boundary of San Gregorio Atlapulco shows the location of the neighbourhood of La Conchita within the limits of the Ecological Conservation Zone.
2 km
1 km

Based on the current outline of canals and roads, this study proposes a hypothetical reconstruction of the chinampería in the neighbourhood of La Conchita previous to its current fluxes, focusing on its original agricultural functions.

The territory is made up of multiple, overlapping layers that are interconnected atop the foundational basis of the chinampería The fragmented canal grid constitutes the main network through which the other layers are interlinked.

Canals
0 250 m
0 250 m
Canals Chinamill Chinampas
Fig. 93 Former chinampería and canal grid, before the chinampas inhabitation. (Author)
Fig. 94 Current fragmented Canal grid, La Conchita. (Author)

Many canals have been converted into roads, while new paths have also been developed, shaping the resulting grid of interconnected canals and roads.The original longitudinal layout of the canals continues to influence contemporary paths structures, resulting in distinctly elongated spatial configurations.

Traditional agricultural methods associated with chinampas persist in La Conchita, although areas employing these conventional practices are increasingly scarce due to the ongoing technification of agriculture.

Canals
Canals 0 250 m
m Chinampas Roads Roads
Fig. 95 Current Terrestrial network, La Conchita. (Author)
Fig. 96 Current traditional chinampas, La Conchita. (Author)

Currently, there is a balance between traditional chinampas and technologically advanced techniques; however, the proliferation of greenhouses, microtunnels, and modern agricultural tools highlights a progressive fragmentation of the traditional agricultural framework characterised by interactions between water, soil, and mud.

The last layer examines the dwellings in La Conchita that have emerged as part of irregular settlements—an outcome of non-compliance with current ecological regulations governing the chinampería in Xochimilco. It is estimated that approximately 400 families currently reside in the area.

Canals
Chinampas Roads Greenhouses
Canals Chinampas Roads Houses and structures Greenhouses
Fig. 97 Current greenhouses, La Conchita. (Author)
Fig. 98 Housing within La Conchita. (Author)

Community Organisation and Public Services

Electricity Supply

The residents of La Conchita have established a self-governance structure, electing representatives through an organisational system based on electrical boards, which distribute electricity throughout the neighbourhood. Each electrical board supplies an average of twenty households, with elected representatives serving as intermediaries between residents and the general community representative.22

Electricity is supplied through two transformers located along the southern border, adjacent to the urbanised area. These transformers were installed through community negotiations with personnel from the Federal Electricity Commission, bypassing formal contractual agreements. Consequently, residents do not pay for the electricity they receive from the state grid.

Daily life in irregular settlements operates within a framework of informality, where inhabitants must navigate governmental structures that technically function within legal frameworks, yet maintain degrees of flexibility. In this manner, self-organisation fills governance gaps, ensuring access to basic services that would otherwise remain unavailable.23

Potable Water Supply

The collective agency of La Conchita has established an independent water network, bypassing official channels by illegally connecting to the city’s central water system through pipes and hoses. This infrastructure branches out from main water connectors, extending through plastic piping that delivers water to households via roads and canals. Authorities are tacitly aware of this situation, embedding it within clientelist political structures.24

This system presents significant risks of pollution, as frequent fissures in the hoses can lead to potable water mixing with treated canal water. Additionally, local authorities exert political control over the population by periodically interrupting the supply, a strategy that has prompted collective action among residents to negotiate the restoration of services during extended periods of scarcity.25

Drainage and Waste Management

Like other informal settlements in Xochimilco, La Conchita lacks a formal drainage system. Residents usually rely on septic tanks and other solutions connected to the subsoil, while some homes discharge waste directly into the canals, exacerbating contamination in the water bodies essential for local agricultural production.26

The absence of a formal drainage network has contributed to the emergence of pollution hotspots throughout the water cycle, leading to an increase in gastrointestinal and respiratory diseases, particularly affecting vulnerable groups such as children and the elderly.27

24 Appendix

25 Appendix I, II and

26 These issues are constantly addressed by interviewed inhabitants in the appendices.

27 María Guadalupe

Fig. 100 Potable water via the hoses network and sewage discharge directly into a canal. 2024. (Author)
Figueroa Torres et al., eds., E-Bios: Manejo Integral de La Cuenca de Xochimilco y Sus Afluentes (Universidad Autónoma Metropolitana, 2014).

Additionally, La Conchita lacks a formal rubbish collection service. Residents must manually transport waste to the only access bridge, where municipal services from the urban zone collect it. However, informal dumping sites are visible along pathways, particularly construction debris from self-built housing.

Chinampero farmer Andrés Vázquez highlights the lack of regulatory enforcement regarding clandestine wastewater discharges. He states that although local authorities are aware of the issue, they fail to implement definitive solutions. As he explains: “With the government, everything operates under electoral control. If officials shut down a discharge in a household, that translates to fewer votes in the next elections” 28

His testimony reinforces the idea that service provision in informal settlements is not solely dictated by technical or environmental considerations but is highly influenced by political interests and clientelist structures, perpetuating territorial precariousness and structural dependence on governmental institutions.

Mobility and Accessibility

Access to La Conchita is regulated through a single terrestrial node—a bridge over a canal located at the southern edge of the settlement, bordering the urban zone. This passage restricts vehicular access to small-scale transport, allowing only motorcycles, bicycles, and local transport services operated by bicitaxis and bicimotos. Consequently, mobility within the neighbourhood primarily occurs at a pedestrian scale.

Interviews with residents highlight the vulnerability associated with La Conchita’s irregular status within governmental regulatory frameworks. Like other informal settlements in Xochimilco, its community agency aspires to achieve legal regularisation through mitigation and land-use planning programmes. As urban consolidation advances and public service provision improves, opportunities for long-term permanence are expected to gradually increase.29

La Conchita exemplifies the contradictions between community self-management dynamics and restrictive land-use policies in Xochimilco. The lack of official recognition continues to perpetuate socio-spatial inequalities, impacting the daily lives of its inhabitants and limiting their right to dignified habitability.

Fig. 102 Access-Exit Bridge, La Conchita. 2024. (Author)
Fig. 101 Aerial view of La Conchita, looking towards the San Gregorio lagoon
29 ‘Asentamientos Humanos Irregulares: Diagnóstico, Prospectiva y Estrategia de Atención Integral’.

Materialities and the Relationship with Water in Self-Built Housing

As it’s been observed, housing in this unique context develops through self-building, evolving over time based on available resources and community dynamics. These homes remain adaptable, expanding and changing in response to families’ needs and opportunities. Based on fieldwork research, the next section presents a case study analysis that aims to understand the spatial configuration of different housing models within the self-built systems that dominate the Conservation Zone. Through these examples, the analysis explores the materialities that are employed—ranging from industrial materials to those sourced directly from the lacustrine environment, such as specific types of wood and carrizo (reed). Additionally, it examines the temporalities of construction, highlighting how homes emerge and expand.

A central element of this analysis is the relationship between these homes and the water cycle during all its phases: collection, storage, consumption, and disposal. Community-managed water systems are essential in the chinampería, as its homes lack access to formal hydraulic infrastructure. The case studies reveal the strategies currently employed for water access—primarily through the self-managed network of hoses that run along canals and pathways—how water is stored in tanks and reservoirs, distributed within domestic spaces, and ultimately disposed of, often directly into the canals or the subsoil without treatment.

This study informs design strategies that aim to strengthen local self-built practices by integrating sustainability criteria and promoting territorial resilience in the chinampería, all picking up on ongoing dynamics. The observations derived from this analysis support the design proposals presented in this chapter’s brief, which presents interventions that can improve inhabitants’ quality of life through their relationship with the water cycle and foster the permanence of the productive lacustrine landscape, acknowledging that progressive self-building will continue to shape the urban fabric of the chinampas

Fig. 103 Outdoor laundry, La Conchita. 2024. (Author)
Fig. 104 Self-built house, La Conchita. 2024. (Author)

This plan maps the houses of the five case studies examined in the next section. The selected houses in La Conchita share key features in habitability, materials, and self-construction, yet each presents distinct spatial characteristics. The analysis explores spatial arrangements and community-based water systems through surveys and isometric drawings— tracing collection, storage, use, and disposal. These drawings reveal how untreated wastewater is often discharged into the subsoil or drains into nearby canals. A complementary photographic series captures daily life and residents’ interactions with the aquatic environment, offering insights into spatial practices and lived realities.

Fig. 108 Case Study 03. (Author)
Fig. 106 Case Study 01. (Author)
Fig. 110 Case Study 05. (Author)
Fig. 109 Case Study 04. (Author)
Fig. 107 Case Study 02. (Author)
Fig. 105 Master plan displaying the analysed case studies. (Author)
Fig. 113 Case Study 01, Master Plan. (Author)
Fig. 112 Case Study 01, Plot Isometric. (Author)
Fig. 111 Case Study 01, Hernández Family, 2024. (Author)
Potable Water Supply via Hose Network Greywater Discharge

1. Block House

At the entrance of the property, there is a two-storey house built with cement blocks and a concrete structure. Both the ground and first floors have concrete slabs.

The volume lacks windows and doors; instead, openings are covered with wooden panels serving as makeshift doors, while sheets or plastic cover the window apertures. There is no dividing wall between the property and the neighbouring house.

2. Entrance and Altar

Upon entering, a table serves as an altar, displaying images of Catholic saints, the Virgin Mary, and crucifixes. These religious elements coexist with everyday objects such as toiletries, machinery, footwear, and household appliances.

5. Front Courtyard

To the left of the main entrance, a courtyard contains fruit trees and a cultivation area used for growing ornamental plants for sale, as well as edible crops for family consumption. There are also cages housing rabbits and domestic

Adjacent to the house, a toilet is enclosed by three block walls. The roofing consists of a loose metal sheet secured by stones placed on top of the walls. A curtain provides privacy. Wastewater is discharged directly into the ground without any treatment, highlighting the absence of sanitation infrastructure in the area.

3. The ground floor is divided into three sections of similar size: the central section serves as the vestibule, providing access to the staircase leading to the second level, while two bedrooms are situated on either side. Both rooms show an accumulation of clothing and household items due to the lack of storage spaces such as wardrobes or cupboards, and privacy is achieved through curtains and makeshift clotheslines, adapting to daily needs.

4. Second Level. Unfinished.

The second level remains unfinished and is therefore not yet inhabitable. The perimeter walls of three rooms have been erected; however, the concrete slab for the ceiling has not been poured, leaving the structure partially exposed to the elements. As a temporary measure, some sections have been covered with metal sheets. Currently, one of the rooms has been adapted for storage.

7. Kitchen

Adjacent to the porch, a wooden and corrugated metal room serves as the kitchen. A fabric sheet covers a window opening to allow ventilation and natural light.

The kitchen features a gas stove but also includes an outdoor wood-burning stove. The mix of traditional cooking methods and modern appliances highlights a balance between customary and contemporary domestic practices.

6. Social Area

Beyond the courtyard, a covered porch serves as a family and social gathering space. Built with wooden logs and metal profiles supporting a corrugated metal roof, it provides shelter and shade, functioning as an outdoor dining area and a focal point for celebrations and everyday interactions.

8. Wooden Room

Opposite the kitchen and the porch, there is a separate room designated as a bedroom. Built with a wooden structure and walls, most of the space is occupied by boxes and clothing, with only a bed positioned inside.

Fig. 114 Photographs and annotations showing ways of living (Author)

9. Passageway and toilet

A roofless passageway runs longitudinally from the front courtyard (south), linking the kitchen, dining area, and bedrooms to the rear courtyard (north).

10. Water Storage

11. Rear Courtyard

The rear courtyard (north) serves several purposes, including areas for washing, a zone for growing ornamental plants that contributes to the family’s income, an animal pen, and storage for various domestic and agricultural tools.

Next to the passageway, a metal tower supports two water storage tanks, each with a capacity of 1,100 litres. These tanks are supplied through a network of hoses connected to informal water sources from nearby urbanised areas.

12. Storage and Toilet

The rear courtyard accommodates both domestic and agricultural activities. A second toilet is located here, housed in a wooden structure with a corrugated metal roof. Like the first toilet, waste is discharged directly into the ground without treatment.

In self-built environments, objects and materials are often stored for potential future use in construction or modifications.

The courtyard houses tricycles, bicycles, and a motorcycle, which serve as the family’s

13. External Storage Shed

Taking advantage of the back walls of the block-built bedroom and kitchen, an external storage shed has been set up. The shed holds agricultural tools, construction materials, wooden logs, stones, and other household items. Storage is done directly on the bare ground, partially covered by a plastic tarp supported by wooden poles.

14. Washing Area

On the eastern side of the courtyard, a lightweight metal sheet roof supported by metal profiles and wooden beams covers the washing area. This space features three washing machines (two of which are no longer in use) and two concrete basins for handwashing clothes and kitchenware, as the house lacks a dedicated sink.

Around the washing area, buckets and containers store water, reflecting strategies to cope with intermittent supply shortages. Both the basins and washing machine discharge greywater directly into the adjacent canal through exposed hoses.

15. Burned Storage Shed

At the back of the courtyard, the remnants of a storage shed that was destroyed by fire are visible. This space previously housed agricultural tools and materials for ornamental plant production. The remaining walls consist of stacked, unsealed concrete blocks and metal sheets loosely placed without proper fastening.

primary means of transportation.

16. Pig Pen

Next to the burned shed, a pig pen accommodates livestock for family consumption. The structure combines different materials: a low cement block wall, wooden plank enclosures, and a corrugated metal roof supported by wooden logs and metal profiles. This pen marks the property’s boundary (south) with the canal.

Fig. 115 Photographs and annotations showing ways of living (Author)
Potable Water Supply via Hose Network Greywater Discharge
Fig. 118 Case Study 02, Master Plan. (Author)
Fig. 117 Case Study 02, Plot Isometric. (Author)
Fig. 116 Table of information about Case Study 02 (Author)

1. Greenhouse House

Under two greenhouse structures supported by arched metal frames and covered with shade mesh, a hybrid programme integrates ornamental plant production with domestic habitation. The enclosures between the columns consist of tarpaulins and corrugated metal sheets.

2. Bedroom Module

In the greenhouse located to the east, half of the space is occupied by a habitable module that contains a bedroom. This volume, enclosed within the greenhouse structure, is framed with metal profiles and walls of corrugated metal panels. A metal door serves as both access and the sole point of ventilation and natural lighting.

5. Wooden Room

In the front garden of the property (south), an independent bedroom is built with a wooden structure, wooden panel walls, and a corrugated metal roof. Inside, there are two single beds. This volume is located within a garden that serves both as a space for growing ornamental plants and as a source of food crops for family consumption.

6. Outdoor Washing Area

3. Kitchen

Outside the bedroom, within the greenhouse, a gas stove serves as an outdoor kitchen. Plastic containers store plates and other utensils. The metal sheet wall of the bedroom is covered with aluminium foil to reflect the heat emitted by the stove burners and prevent it from accumulating inside.

Beneath a sunshade in the front garden (south), a washing area is set on a paved surface with a counter made of cement blocks, supporting a concrete washbasin. This space is used for washing clothes and kitchen utensils. Two 250-litre water tanks, connected to the community-managed hose network, supply water to the area. Wastewater is discharged directly into the canal without treatment.

4. Water Storage and Shower/Laundry Area

Next to the entrance to the greenhouse (south), two 1,100-litre water tanks are connected to the community-managed distribution system via hoses. These supply water for plant cultivation as well as the shower and laundry area, which is located in the opposite corner of the greenhouse. This wet space is enclosed only by tarpaulins tied to the metal structure, functioning as makeshift walls and a roof. The greywater from both facilities is discharged directly into the adjacent canal.

7. Storage Shed and Rear Pig Pen

At the rear of the property (north), behind the greenhouse structure, two volumes are located. Both are enclosed by low cement block walls and metal grilles, sheltered under a lightweight metal sheet roof supported by metal profiles and plastic tarps. The left volume serves as a storage for agricultural tools, while the right one houses a pig pen for family consumption.

8.

Adjacent to the rear volumes is the only toilet on the property. It is a dry toilet for solid waste, while liquids are discharged directly into the canal without prior treatment.

Toilet
Fig. 119 Photographs and annotations showing ways of living (Author)
Potable Water Supply via Hose Network Greywater Discharge
Fig. 122 Case Study 03, Master Plan. (Author)
Fig. 121 Case Study 03, Plot Isometric. (Author)
Fig. 120 Table of information about Case Study 03 (Author)

Herbal Medicine Workshop

A wooden structure with a corrugated metal roof (east) functions as an herbal medicine workshop, the primary economic activity of Liliana, the household’s mother. This volume is located in the front garden of the property, which consists mainly of grass and medicinal plants for production.

2. Inside, the workspace is organised for drying and macerating herbs. Bundles of plants hang directly from the wooden structure, while a wooden cabinet stores concentrated formulas used in preparing medicinal remedies.

3. At the opposite end of the workshop, two armchairs serve as a relaxation and family gathering area, as well as a space for receiving visitors.

Toilet

Located along the access corridor to the house, the toilet is a wooden cabin with a corrugated metal roof. Waste is discharged directly into the ground without any treatment.

5. House

The house is centrally located on the plot and is built on a cement slab. Its structure consists of repurposed wooden posts and sections, while the walls are assembled from a collage of various wooden panels and planks. The roof is made of corrugated metal sheets. A plastic tarp at the entrance provides shade, creating an outdoor social space.

6. Inside, the kitchen is situated to the right of the entrance and consists of wooden furniture, a stove, an oven, and a refrigerator.

8. Shower

7. The open-plan interior lacks internal partitions, with a shared living space that contains only a floor mattress. A TV, kitchen utensils stored in plastic containers, and a bookshelf are also present. A central concrete column supports the roof structure.

In front of the kitchen, adjacent to the bedroom, is the shower area. The space is enclosed by a low cement block partition, followed by a wooden panel, while the opposite wall is also made of wooden panels. Water for bathing is carried in buckets from the kitchen, and bathing is done by pouring water with a small container. Wastewater is drained directly into the canal bordering the property.

Behind a partition made of wooden panels, the bedroom contains four bunk beds, where all family members sleep.

4.
1.
Fig. 123 Photographs and annotations showing ways of living (Author)

9. Washing Area

A passageway between the shower and the kitchen leads to a mosquito-screened wooden door that connects to an outdoor washing area (west). This space is used for washing clothes and kitchen utensils.

A metal sink is supported by two low cement block walls and is covered by a wooden pole structure with a plastic sheet roof. In this area, three 250-litre water tanks are stored, along with buckets and other containers for water storage, a common strategy to prevent shortages.

Water supply for this household operates through the community’s self-managed hose network.

10. Boundary with the Canal

The washing area is located at the eastern edge of the property, which is directly bordered by the canal. All greywater from the household is discharged into this body of water without any prior treatment. Currently, the canal is entirely covered by water hyacinth, making navigation impossible.

Storage Room

In front of the washing area, along the same boundary with the canal, there is a storage room constructed with a structure of wooden poles and beams, with walls and a roof made of corrugated metal sheets.

12. Inside, domestic tools, construction materials, and gardening equipment are stored. Outside, materials such as metal sheets, cement blocks, and wood are stacked for fu ture modifications or expansions of the living spaces.

11.
Potable Water Supply via Hose Network Greywater Discharge
Fig. 126 Case Study 04, Plot Isometric. (Author)
Fig. 125 Table of information about Case Study 04 (Author)
Fig. 124 Photographs and annotations showing ways of living (Author)

1. House Perimeter

The house is enclosed with plastic sheets previously used for agricultural micro-tunnels in the chinampas, secured by wooden logs. A wooden plank door marks the entrance. The house consists of a single room built with a wooden pole structure and plywood panel walls.

3. The porch serves a dual function, providing a shaded outdoor sitting area and a storage space for tools, agricultural machinery, and bicycles, the family’s primary mode of transport.

2. Adjacent to the wooden room, a porch is structured with wooden logs and poles, covered with a woven reed roof. This element acts as a transitional space between the enclosed bedroom, the semi-open kitchen, and the productive chinampa, integrating domestic and agricultural activities.

4. Sleeping Area

Inside the wooden bedroom, all four family members sleep in a double bed and a single bed. A central provides a surface for household activities, while clothing is stored in plastic crates, commonly used in agricultural production for transporting crops.

Fig. 127 Case Study 04, Master Plan. (Author)
Fig. 128 Photographs and annotations showing ways of living (Author)

5. Kitchen

The kitchen is adjacent to the wooden bedroom and is structured with three thick wooden trunks as primary columns. A secondary wooden framework of smaller logs and beams supports the corrugated metal roof.

The space has a dual cooking system: An outdoor wood-fired stove (brasero), accompanied by a pile of firewood.

7. The walls of the kitchen are enclosed using plastic sheets recycled from the micro-tunnels. The floor is compacted earth.

6. Inside, a gas stove serves as the primary cooking appliance. Pots and other utensils hang directly from the wooden structure. The space is completed with a set of cut tree trunks as benches, plastic stools, and two wooden tables.

8. Outdoor Washing Area and Storage

9. Productive Chinampa

The reed-covered porch serves as a threshold to the rest of the property, where two-thirds of the land remain as a productive chinampa. The crops are protected with micro-tunnel struc-

10. The household’s agricultural activity is supplemented by two additional chinampas rented by Andrés.

11. The crop beds are covered by arched microtunnels, wrapped in plastic sheeting, ensuring climate control for cultivation.

Outside, a concrete washbasin is supported by a large tree trunk. Next to it, a 250-litre water tank, along with 20-litre jugs and other containers, ensures water availability, accessed through the community’s hose network.

In this area, small livestock such as rabbits and chickens are raised for family consumption.

12. Toilet

At the southern edge of the plot is the only toilet, a dry toilet that separates solid waste and channels liquids directly into the ground. The structure is made from various materials: wooden poles and logs for the framework, wooden planks for the access ramp, and recy cled plastic sheets for the walls and roof.

Fig. 131 Case Study 05, Plot Isometric. (Author)
Potable Water Supply via Hose Network Greywater Discharge
Fig. 132 Case Study 01, Open-air dining room, 2024. (Author)
Fig. 130 Table of information about Case Study 05 (Author)

1. House Perimeter

The plot is enclosed at the front (south) by a stacked cement block wall, complemented by a chain-link fence. This material arrangement functions both as a temporary boundary and as a stockpile for future construction, reflecting the incremental self-building process characteristic of housing in the chinampería

2. “La Torre” – Bedrooms

In the southeast corner of the property, the family has recently built a two-storey volume known by them as La Torre (“The Tower”). The structure consists of concrete frames and cement block walls. The second level currently has a corrugated metal roof, although the owners plan to replace it with a concrete slab in the future.

4. A metal staircase with a wooden pole handrail leads to the second level, which contains another bedroom occupied by the parents and the younger daughter. This space includes a bed, a wardrobe, and a sofa. The walls are plastered and painted, but the temporary corrugated metal roof is exposed.

3. On the ground floor, a metal door gives access to the eldest daughter’s bedroom. The block walls are plastered and painted, while a sheet metal partition separates the sleeping area from a storage space where household tools and supplies are kept.

5.

Living Room / Secondary Kitchen

The main volume of the house is built with a mixed structure of metal profiles and secondary wooden elements. The walls are made of plywood panels clad on the exterior with blue-painted sheet metal. The corrugated metal roofing varies in size and proportion, showing the additive nature of the selfbuilding process.

6. Inside, the space is divided into two sections. The first section functions as a secondary kitchen, which previously served as the only kitchen in the house. It has a gas stove, a refrigerator, and a shelving unit for storing food and kitchen utensils.

7. The second section serves as the living room, furnished with a set of sofas, a central table, and a few side tables. The walls expose painted white wood, and the concrete floor is covered with a patchwork rug of different colours and textures.

8. The only water source in this space is a washbasin located in the living room. Adjacent to this area, there is a closet for clothes and other household items.

Fig. 133 Photographs and annotations showing ways of living (Author)

9. Courtyard / Washing Area / Bathroom

A wooden door from the kitchen opens into the outdoor patio and garden. On the eastern wall, a metal structure supports an asbestos water tank that supplies the washbasin and washing area.

11. Primary Kitchen

The eastern volume, built with a wooden structure and corrugated metal roofing, houses the main kitchen. This space, adjacent to the living room/kitchen volume and La Torre, is an extension of the house.

13. Garden / Communal Area

10. A covered walkway, made of metal profiles and shade mesh, connects the kitchen with the eastern volume of the property. Here, a toilet cabin is located, where waste is discharged directly into the ground without treatment.

Next to it, the washing area consists of a concrete washbasin supported by a metal framework and a washing machine. Wastewater from both units drains directly into a nearby dry canal.

12. The kitchen includes a large dining table and shelving units made from wooden planks. It also has a second gas stove and refrigerator. The secondary kitchen is used as a support space when increased cooking capacity is needed, particularly during family or community gatherings.

Between the three volumes that make up the house, there is a garden with food crops for self-consumption. A large tree provides shade, under which a table is placed, serving as a space for family gatherings and social interaction.

14. Storage / Secondary Toilet

Adjacent to the kitchen volume, a structure with a mixed framework of metal and wooden profiles supports a corrugated metal roof. This area serves as a storage space and a secondary bathroom.

A metal bracket extends from the structure, holding a 500-litre water tank, which is also supplied through the self-managed community hose system.

A curtain separates the toilet area from the storage space, with waste being discharged directly into the ground without treatment.

15. Storage

Next to the storage area, there is a 1,100-litre water tank, along with a reused bicycle taxi cabin, which functions as an improvised storage unit.

The storage area houses the family’s bicycles, as well as construction tools and materials.

The structure is built on a concrete slab, reflecting the informal yet evolving nature of the property’s self-built infrastructure, as seen in the previously studied cases.

2.4 Design Brief 1

Habitability in Informal Settlements

Context and Problematic

The communities inhabiting the Environmental Conservation Zone within Xochimilco’s chinampa system lack access to public services, as their location within a legally protected area prohibits formal housing and, consequently, state-provided infrastructure. Despite living in a water-rich environment, these populations lack access to potable water, exposing the contradiction between their proximity to water sources and their inability to utilise it for domestic needs. In that sense, the project proposes a set of artefacts designed to optimise water access, storage, and disposal within the self-built housing schemes found in the area.

The proposed structures are built over standardised wooden bases. They provide a flexible framework, allowing partitions and enclosures to be adapted based on the locally available materials, like those used in self-construction within the chinampería. The design prioritises lightweight adaptable materials such as metal sheets, wood or natural elements like reed or wattle and daub (bajareque), ensuring it is compatible with the existing techniques and integrating into the aesthetics of self-construction in the site.

Design Objectives

Three artefacts are proposed for integrated water cycle management:

• A rainwater collector to reduce dependency on external sources that pose a risk of contamination

• A dry toilet module that provides sanitation in the absence of sewage infrastructure, minimising pollution in both canals and groundwater A greywater biofiltration system that treats domestic wastewater before it is discharged back into the canal network

Fig. 135 Landscape Floor Plan of La Conchita. (Author)
Fig. 131 Landscape Floor Plan of La Conchita. (Author)

This artefact consists of a lightweight structure supported by three wooden columns and topped with a metal sheet that serves as a rainwater collection surface. The harvested water is channelled into a storage tank for accumulation and later use. Its adaptable and easily relocatable design allows for flexible positioning based on site-specific needs.

Fig. 136 Rainwater Collector, Isometric (Author)
Fig. 137 Rainwater Collector, Plan and Elevation (Author)
Fig. 138 Rainwater Collector, Illustration (Author)

This modular system addresses key water-related challenges identified in previous case studies, including collection, use, and wastewater management. Built from lightweight wooden frames, the central pavilion serves as the core structure, capable of interconnecting with up to three complementary modules: a dry toilet, a shower, and a washing area.

The walls of these modules can be constructed using locally available lightweight materials commonly used in self-built environments—wood, metal sheets, reed (carrizo), wattle, or daub (bajareque). Designed for adaptability, the module is further linked to the biofiltration system proposed in this brief.

Fig. 140 Water Module, Plan and Section (Author)
Fig. 139 Water Module, Exploded Isometric (Author)
Fig. 141 Water Module, Exploded Isometric with emphasis on materiality (Author)

The biofilter consists of a series of water traps connected to a wetland treatment pond, filtering and purifying greywater for reuse in irrigation or safe return to nearby canals. By integrating natural filtration processes, this system improves the quality of used water.

Fig. 143 Biofilter, Plan and Section (Author)
Fig. 144 Biofilter, Exploded Isometric (Author)
Fig. 145 Biofilter, Illustration (Author)

This diagram outlines the various stakeholders—government agencies, community actors, organisations, and institutions—that currently operate or hold influence within the contemporary chinampería. Any future strategy for inhabiting the lacustrine environment must involve an integrated approach involving all actors with a stake in the territory. This initial schemes maps these dynamics as part of the research, offering a clearer understanding of the intersecting agencies at play. It also proposes a preliminary foundation for potential models of action, organisation, and governance to ensure life’s long-term continuity and viability within the chinampería

Additionally, by recognising the ongoing and uncontrollable expansion of informal settlements within the chinampería, the brief identifies the potential for developing a ‘Guide for Permanence’. Such a guide is a set of annotations and outlined strategies to respond to the specific conditions, constraints and possibilities of inhabiting a chinampa, building upon the processes mentioned before.

Rather than fully developing this manual, this thesis presents an initial outline of how a framework could evolve and operate. This aims to support future efforts in reconciling preservation with the realities of habitability, guiding community members that engage in progressive self-construction in the chinampas so they can install context-sensitive strategies that reinforce their autonomy and sustainability, as well as promote the health of the system.

Fig. 147 Framework of intervention
Fig. 146 Diagram of the actors involved in a Guide for Future Permanence

The study proposes future research and interventions focused on using lightweight construction materials to enhance habitability without compromising the environmental sustainability of the lacustrine ecosystem. It advocates for integrated schemes that combine agricultural productivity with residential use within individual plots.

Suggested materials include those already common in local self-construction practices—such as lightweight metal frames and sheeting, timber, reeds, and traditional wattle and daub (bajareque) techniques. This initial reflection seeks to encourage strategic thinking on how material choices and land-use configurations can support both community permanence and ecological stewardship—within the chinampería and the wider environmental framework of Mexico City.

Fig. 148 Exploded isometric with a house within the Guide for Future Permanence (Author)
Fig. 148 Isometric with a plot house within the Guide for Future Permanence (Author)

Drift II

Drift II follows a terrestrial route through the neighbourhood of La Conchita, an irregular settlement within the chinampería, where residential habitation and agricultural productivity coexist. The route begins at the main access point into La Conchita and gradually moves deeper into the territory, transitioning from consolidated housing areas to chinampas and open plots. Along the way, it reveals how the original linearity of the canals has shaped the current morphology of streets and roads, preserving the narrow, elongated patterns that recall their aquatic origins. As the path progresses, hard pavements give way to earthen floors, reflecting a shift from formal infrastructure to more rural conditions. Like the previous drift, this route captures a transition from predominantly natural and productive areas to increasingly consolidated living spaces—a shift evidenced by variations in ground materials and the gradual change from natural to built elements, both intrinsically linked to one another.

Fig. 151 Canal marking the southern boundary between the neighbourhood and the urban area. (Author)
Fig. 152 Main access road to La Conchita, Xochimilco, 2024. (Author)
Fig. 150 Access-Exit Bridge to the Neighbourhood La Conchita, Xochimilco, 2024. (Author)
Fig. 153 Neighbourhood access road. La Conchita, Xochimilco, 2024. (Author)
Fig. 154 Neighbourhood access road. La Conchita, Xochimilco, 2024. (Author)
Fig. 155 Earthen-floor alley. La Conchita, Xochimilco, 2023. (Author)
Fig. 156 Pathway with cobblestone pavement. La Conchita, Xochimilco, 2023. (Author)
Fig. 157 Pathway next to a micro-tunnel. La Conchita, Xochimilco, 2023. (Author)
Fig. 158 Cobblestone pathway by the Hdez. Family. La Conchita, Xochimilco, 2023. (Author)
Fig. 159 Pathway next to a foundation. La Conchita, Xochimilco, 2023. (Author)
Fig. 160 Earthen pathway next to a brick wall. La Conchita, Xochimilco, 2023. (Author)
Fig. 161 Concrete pathway between crops. La Conchita, Xochimilco, 2023. (Author)
Fig. 162 Concrete pathway next to a microtunnel. La Conchita, Xochimilco, 2023. (Author)
Fig. 163 Horse and pathway. La Conchita, Xochimilco, 2023. (Author)
Fig. 164 Path between chinampas and greenhouses. La Conchita, Xochimilco, 2024. (Author)
Fig. 165 Wooden bridge over a canal. La Conchita, Xochimilco, 2023. (Author)
Fig. 166 Chinampa La Conchita, Xochimilco, 2024. (Author)
Fig. 167 Canal running through La Conchita, Xochimilco, 2023. (Author)
Fig. 168 Canoe and canal. La Conchita, Xochimilco, 2023. (Author)

Community in the Lacustrine Landscape

Community is an outcome that demands a practice. The practice is for our words and actions to be worthy of trust; as they build a long path from birth to death that others walk along with me.

May the path I make be flat for the old. Steady for the child that is learning how to walk. Filled with wonder and predictability for the women in my life. And may it teach the men how to build the paths that are a testament to their love.

A structure for my thoughts and practice.

Fig. 170 Black-crowned night heron (Nycticorax Nycticorax). (Author)

1 Sergio A.

Cárdenas et al., Chinampas de México, Sitio Patrimonio Mundial: Biodiversidad y Cultura, Tomo II. (México, D.F.: Universidad Autónoma Metropolitana, 2016).

2 Latour, ‘How to Convene the Various Peoples (of Nature)?’

Understanding the community of Xochimilco requires an approach that acknowledges the interwoven nature of habitability, productivity, and social structures as this dissertation proposes. These elements cannot be fully separated, as they flow in an entanglement that sustains the territorial and ecological dynamics of the landscape. Unlike habitability and productivity— both of which have undergone visible material transformations—the persistence of community structures predates and enables the territorial and environmental changes that made the chinampería possible. The deeply rooted system of collective organisation, allowed the transformation of this liquid territory into productive islands.

The survival of the lacustrine landscape, often referred to as a “water culture”,1 depends on the continuity of community life. The transmission of knowledge surrounding inhabitation, agricultural cycles, and landscape maintenance remains the foundation upon which resistance to urban expansion and ecological degradation is built. This persistence can be understood as an accumulation of relationships between humans and other-than-humans, forming what Bruno Latour refers to as an “actant network”2—where the canals, soil, crops, and agricultural cycles are not passive backgrounds to human life but active participants in shaping the conditions of possibility for habitation. This chapter examines how community networks sustain the chinampería, exploring how these relationships extend beyond cultural traditions to operate as spatial and territorial mechanisms for preserving the landscape.

3.1 Mayordomías: Cultural and Spatial Maintenance of the Territory

One of the most distinctive traits of the lacustrine community is how religious and cultural festivities shape its social and spatial organisation.3 These celebrations that occur throughout the year4 structure religious life and agricultural calendars.5 Before the Spanish conquest, agricultural cycles were intimately tied to deities governing fertility, rainfall, and land renewal. The colonial evangelisation process did not erase these relationships but instead absorbed and reshaped them, creating a hybrid ritual calendar where Catholic figures aligned with pre-Hispanic cycles.6

In Xochimilco, there are seven main Mayordomías, each one is responsible for overseeing the veneration of a patron saint, whose celebration remains deeply intertwined with agricultural cycles that trace their origins to pre-Hispanic cosmologies.7 The Mayordomía of San Gregorio Atlapulco, for instance, is celebrated in early March, aligning the Saint Gregory the Great festivities with those of Tlaloc, the rain god—a synchronisation that represents the continuity of territorial rituals despite colonial disruptions.

In San Gregorio Atlapulco, the mayordomo system consists of 32 stewards, each managing eight minor charges responsible for organising processions and celebrations such as the posadas during Christmas.8 The responsibilities of the mayordomías, however, extend beyond religious events. They play a critical role in decision-making regarding the collective use of space, reinforcing both spiritual and material commitments to the territory.

3 Leticia Sánchez in Chinampas de México, Sitio Patrimonio Mundial: Biodiversidad y Cultura. Tomo II.

4 Méndez Cárdenas et al., Chinampas de México, Sitio Patrimonio Mundial: Biodiversidad y Cultura. Tomo I.

5 Mario Ortega Olivares, ‘Familias y Patios En Los Pueblos Originarios de Xochimilco’, in Cuadernos DEC: Estudios de Familias, ed. Armando Ortiz Tepale, 1st ed. (México, D.F: UAM Xochimilco, CSH, Educación y Comunicación, 2018).

6 Mario Ortega Olivares in Chinampas de México, Sitio Patrimonio Mundial: Biodiversidad y Cultura. Tomo II.

7 Chinampas de México, Sitio Patrimonio Mundial: Biodiversidad y Cultura. Tomo II.

8 Ortega Olivares, ‘Familias y Patios En Los Pueblos Originarios de Xochimilco’.

Méndez
Fig. 171 Altar to the Virgin of Guadalupe in a chinampa, 2023. (Author)
Fig. 172. Members of the Mayordomía of Xochimilco with the Niñopa. (Source: INAH).

9 Mtra. Delia Pérez Lozano, Dra. Judith Cavazos Arroyo, and Mtro.

Alejandro Melchor Ascencio, ‘Abandoning the Catholic Religion in Mexico: Leading Factors’, 2009, 10 Haraway, ‘Tentacular Thinking: Anthropocene, Capitalocene and Chthulucene’.

11 Ortega Olivares, ‘Familias y Patios En Los Pueblos Originarios de Xochimilco’.

12 Appendix Entrevista con Andrés

13 Appendix.

Rather than declining due to urbanisation or the decreasing influence of Catholicism,9 mayordomías have expanded, incorporating new residents from recently established settlements. In this way, new inhabitants integrate into the structures of community organisation that have persisted in the lacustrine territory. This reveals their flexibility as a form of territorial inscription, one that does not fix identity through rigid heritage but through ongoing acts of place-making10—what Haraway describes as a process of “becoming-with”, where social and spatial relations are continuously reconfigured rather than preserved as static forms. This capacity for integration ensures that mayordomías remain embedded within the socio-territorial fabric of Xochimilco, maintaining communal governance and reinforcing social continuity even as the physical landscape transforms.11

3.2 Faenas: Territorial Collective Labour

While mayordomías ensure cultural continuity, faenas—communal workdays—play a fundamental role in the material maintenance of the chinampería These routine work sessions seek to keep canals navigable, agricultural plots maintained, and communal infrastructure such as paths, electricity, and water supply networks, collectively managed.12 Unlike municipal maintenance, which is often absent or inefficient in irregular settlements, these community-led interventions emerge from necessity, embodying principles of territorial care.13

Faenas, however, should not be reduced to their practical function. They are acts of territorial reconstitution, where the landscape is not simply an object to be managed but a participant in an ongoing negotiation of survival.14 This is particularly evident in the faenas dedicated to dredging the canals and maintaining paths, a practice that not just enables mobility but actively maintains the landscape itself, reinforcing the amphibious condition of the chinampería. As described in fieldwork interviews conducted in La Conchita, faenas are also a space of negotiation, helping integrate new residents that are not familiar with chinampa-based agriculture or water management.15

Faenas are informal governance structures. Testimonies from local residents indicate that those who actively participate in community work often receive infrastructural benefits, such as access to electricity or potable water, without additional fees, ensuring a system of reciprocity16 At a territorial level, faenas reflect the autonomy of the landscape itself. The water culture of Xochimilco is an active agent requiring constant intervention, making communal work days responses to a landscape that asserts its agency.17 This dynamic plays a critical role in managing urban expansion and conservation efforts.

Faenas can also be theoretically understood as networks of care, where communal solidarity ensures that when essential services such as potable water or electricity become unavailable to one household, others step in to assist. Building on Puig de la Bellacasa’s arguments that define care not as a merely human activity but an ongoing negotiation between social and material worlds, then, faenas are not just about maintenance but about care as a territorial practice.18

3.3 Agriculture as a Living Heritage

Chinampas are sites of cultural transmission and intergenerational knowledge.19 Even as the percentage of the population engaged in agriculture declines due to professionalisation and the gradual transition towards urban activities, agriculture remains a crucial element of identity formation. Elder generations reinforce the symbolic importance of farming, linking younger generations through the accumulated knowledge on water, soil, and cycles of productivity.20

Moreover, as previously mentioned regarding migration, Xochimilco’s productive landscape attracts seasonal and permanent agricultural workers from other regions. These external actors operate chinampas and contribute to their upkeep, ensuring that both the canals and the agricultural cycles remain active.21 This “hybridisation” of the community, where traditional producers, new inhabitants, and external farmers interact, creates a multilayered social structure that performs in hand with the informal habitability patterns and supports the operative and economic viability of the contested chinampería. 22

While the integration of newcomers through faenas and the continuity of agricultural practices through intergenerational transmission help sustain Xochimilco’s communal fabric, significant gaps remain in spatial accessibility and knowledge transmission. Religious and agricultural structures shape communal life, yet they also present limitations. The patrilineal structure of traditional agricultural practices can exclude women and younger generations from acquiring critical knowledge, often limiting their participation in both the stewardship system and economic activities.23

14 Latour, ‘How to Convene the Various Peoples (of Nature)?’

15 Appendix - Entrevista con Andrés

16 Appendix Entrevista Lili

17 Latour, ‘How to Convene the Various Peoples (of Nature)?’

18 de la Bellacasa, ‘Introduction’.

19 Gisela Landázuri Benítez and Liliana López Levi, ‘San Gregorio Atlapulco, Xochimilco: Frente a la vorágine modernizadora y urbanizadora’, in El México bárbaro del siglo XXI, ed. Carlos Andrés Rodríguez Wallenius and Ramses Arturo Cruz Arenas, Primera edición, Colección Teoría y análisis (México, DF Culiacán de Rosales, Sinaloa: Universidad Autónoma Metropolitana, 2013).

20 Appendix Nota entrevista Miguel Poblano

21 Ortega Olivares, ‘Familias y Patios En Los Pueblos Originarios de Xochimilco’.

22 Landázuri Benítez and López Levi, ‘San Gregorio Atlapulco, Xochimilco: Frente a la vorágine modernizadora y urbanizadora’.

23 López Ramírez et al., Alternativas Viables Para La Provisión de Servicios Básicos En Áreas Periurbanas: Lecciones Desde Xochimilco, Ciudad de México..

Fig. 173 Altar to the Virgin and saints in a Chinamill, 2024. (Author)

Unlike the original villages of Xochimilco, where public spaces such as the central plaza and the main church function as community gathering points, irregular settlements lack collective infrastructure or dedicated meeting spaces due to the precarious conditions in which these communities have formed. In response, inhabitants adapt to the specific spatial conditions of their environment to develop forms of collective organisation.

As fieldwork showed, there is a desire for dedicated spaces that facilitate community integration and knowledge transmission within the neighbourhood that also serve as platforms for sharing and learning. Despite the absence of built infrastructure, a shared plot in La Conchita has already become an informal gathering space, presenting an opportunity to formalise and strengthen its role in supporting these emerging communal needs. Within La Conchita, this plot represents a central location in the neighbourhood’s social life. However, with ongoing residential expansion and land speculation, the permanence of this plot as a site for the community might be at risk. In this context, formalising the social and spatial significance of this land becomes essential to ensure its continuity as a collective space.

In this context, the neighbourhood of La Conchita emerges as a microcosm of the broader territorial dynamics explored throughout this chapter. Although it is an informal settlement, it operates within the socio-cultural logic of the chinampería. Some residents actively participate in the mayordomía structures of San Gregorio Atlapulco, while community agency is largely expressed through faenas, linking them to the collective traditions that have sustained the region for generations.

However, despite cohesive forms of social organisation, the lack of formal infrastructure in La Conchita highlights the need for spatial interventions that support and strengthen existing social practices. Consequently, the proposal for a Community Centre addresses a spatial shortfall and responds to the need for platforms that foster intergenerational transmission and the sharing of knowledge embedded within the community.

The concentric structure of the diagram reveals the deep interweaving of temporal, ritual, and agricultural cycles that define the cultural life of Xochimilco. At its core, the annual religious stewardships (mayordomías) align with the Catholic calendar, but they are deeply embedded in a broader temporal matrix shaped by pre-Hispanic agricultural rituals. The ring of the Gregorian months serves as a scaffold where multiple layers converge: community-based mayordomías linked to patron saints are celebrated on specific dates, yet these often coincide with key moments in the agricultural cycle, originally marked by indigenous ceremonies. Under colonial rule, these rituals did not disappear, but were instead reconfigured and syncretised with Catholic feasts. The outermost ring — dedicated to seasonal crops, completes the cycle, illustrating how the chinampería system still responds to these inherited timeframes.

Fig. 174. Diagram of ritual and agricultural calendars of Xochimilco. (Author)

Community Centre in La Conchita

Context and Problematic

In irregular settlements like La Conchita, community life is structured around shared spaces that serve as sites for gatherings, religious festivities, and patron saint celebrations. These traditional social structures have persisted through collective organisation systems, such as mayordomías and faenas, which coordinate the management of communal spaces and resources. However, the absence of adequate infrastructure has resulted in temporary solutions that limit the implementation of community activities in the long term, integrating these activities into the daily life of the social fabric.

This proposal builds upon the existing mechanisms of self-building, present throughout irregular settlements within the chinampería, where construction emerges from a combination of industrial products employed in self-building and natural materials present in the area. By integrating

rainwater collection, ecological technologies, and an infiltration system, the Community Centre is thought of as an inclusive and resilient pavilion.

The project is a light and flexible structure designed modularly so it can be easily assembled and disassembled over the land without making an extensive impact. Its modules adapt to the length of the plot and the necessities that surge over time. The materiality of this proposal follows the same logic as the artefacts proposed in the previous brief consists of lightweight wooden structural frames, and the partitions can be completed with locally sourced materials.

Design Objectives

Creating a communal gathering space that provides areas for rest, social interaction, and knowledge-sharing, taught by community members and external visitors.

Reinforcing the relationship with water by making it visible again in the public space. The project aims to restore water’s symbolic and functional role within the landscape, reconnecting community members to the holistic value of water in Xochimilco.

Expressing the linearity of the canals through spatial design. The project seeks to symbolically reclaim the presence of water through linear architectural elements within the design composition.

Integrating a water collection system using the project’s roofing structures to harvest rainwater, promoting sustainable water management in a region facing water scarcity. Water becomes an active spatial and conceptual element, guiding the experience of the space.

Empowering the community to self-organise, by ensuring the infrastructure remains flexible and adaptable. The design will include movable partitions that allow users to reconfigure the space to suit various activities.

Fig. 175 Community plot in La Conchita, 2024. (Author)
Fig. 176 Community Centre, Plan and Section. (Author)
Fig. 177 Community Centre, Axonometric view. (Author)

Drift III

Drift III presents an aerial view through drone photography, expanding the scale of analysis to a territorial dimension. From this elevated viewpoint, the relationships between different land uses become evident, making visible boundaries that can only be fully perceived from the air. This drift reveals distinct demarcations, transition zones, and areas where borders progressively blur—highlighting the stages of landscape transformation from traditional chinampas to technified greenhouses and, ultimately, to settlements fully integrated into the urban fabric. Two primary photographic formats are employed: zenithal shots, capturing broad spatial relationships, and horizontal views, adding depth to the visual representation of the studied landscape.

Fig. 181 Consolidated residential zone built over former chinampa fields, 2024. (Author)
Fig. 179 Border between urban and rural land use, 2024. (Author)
Fig. 180 Bridge crossing a canal, 2024. (Author)
Fig. 184 Consolidated zone of greenhouses and housing, 2024. (Author)
Fig. 182 Transitional boundary between greenhouse cultivation and residential housing, 2024. (Author)
Fig. 183 Bifurcation of canals within the chinampería, 2024. (Author)
Fig. 185 Productive chinampas 2024. (Author)
Fig. 188 Chinampería with Mexico City in the background, 2024. (Author)
Fig. 189 Chinampería 2024. (Author)
Fig. 187 Chinampa 2024. (Author)
Fig. 186 Football field built over a former chinampa 2024. (Author)
Fig. 192 San Gregorio Atlapulco Lagoon and town, 2024. (Author)
Fig. 193 Chinampería in San Gregorio Atlapulco, 2024. (Author)
Fig. 191 Confluence of canals, 2024. (Author)
Fig. 190 Canal during the dry season, 2024. (Author)
Fig. 196 Conservation Zone bounded by darkness, 2024. (Author)
Fig. 197 Fragmented canal as seen from Puente de Urrutia, 2024. (Author)
Fig. 195 Farmer navigating the canal, 2024. (Author)
Fig. 194 Farmer and his dog navigating, 2024. (Author)

Productivity in the Lacustrine Territory

Feel the shifting edges.

Go for a walk.

Barefoot.

Walk so gently that your feet hear the histories of the ground beneath them.

Inhale.

Consider where the environment ends and you begin.

Walk that line. Where is it?

On your skin? In your mouth? In your lungs? In your blood?

Exhale.

Is the CO2 ‘you’? [...]

Is it part of you? Or of the world?

Listen to the silences, absences, presences.

Read the deep faultlines of geology and control.

Ingest the atmospheric consequences of another era.

Feel other entities, other places and other times.

Life forms defy boundaries at every level.

1 Sanders, William T., Jeffrey R. Parsons, and Robert S. Santley. Map. The Basin of Mexico: Ecological Processes in the Evolution of a Civilization. New York: Academic Press, 1979.

2 Nemer E Narchi and Beatriz Canabal Cristiani, ‘Subtle Tyranny: Divergent Constructions of Nature and the Erosion of Traditional Ecological Knowledge in Xochimilco’, Latin American Perspectives 42, no. 5 (2015): 90–108.

3 E Narchi and Canabal Cristiani citing Bruno Latour in ‘Subtle Tyranny: Divergent Constructions of Nature and the Erosion of Traditional Ecological Knowledge in Xochimilco’.

4 Section 02 of Appendix II.

5 Section 02 of Appendix II.

The lacustrine Xochimilcan villages developed their culture within a symbiotic relationship with the lake and the technological development of chinampas, which formed the foundation of their livelihoods. This ecosystem-integrated agricultural system maximised the natural resources of the wetland, ensuring sustainable food production while maintaining ecological balance. At its peak, this amphibious landscape could produce food for a population of approximately half a million people across a productive area of around 10,000 hectares.1

Despite the pressures of modernisation and urban expansion, today, the chinampería persists as a fragmented yet resilient system, shaped by centuries of adaptation and resistance. Its productivity is a living testament to traditional ecological knowledge, which has been passed down through generations despite ongoing environmental, political, and economic pressures. Authors such as Nemer E. Narchi and Beatriz Canabal2 argue that traditional knowledge is not static but continuously reinterpreted through cultural adaptations and environmental negotiations. Such an affirmation is particularly evident in the case of Xochimilco’s lakescape, which, following Latour’s ideas, is shaped by political and economic forces that have transformed it into a distinct entity, one with a unique identity and meanings.3

As an example of this integrated cycle, the planting process itself can be taken as a reference, which begins with the extraction of agualodo—a nutrient-rich water mud—from the canals, using a tool known as leather mud or zoquimaitl. This mud is then spread on a horizontal bed, 7–12 cm thick, and cut into cubes known as chapín. These cubes, which function as natural seedbeds, retain high moisture levels and nutrients essential for plant germination.4 Each chapín is manually indented to accommodate seeds, with variations in size and depth depending on the plant species. Once the seedlings reach an optimal size, they are transplanted onto the chinampa, a process facilitated by a draga—a wooden board with a grid of wooden spikes— pressed against the soil to create holes.5 Water, soil, and human agency together shape the very holistic cycle of this productive landscape.

Nowadays, the autonomy of Xochimilco’s original towns in managing their natural resources has been severely restricted by territorial policies and extractivist practices implemented for over a century. Traditional land knowledge and its associated ways of life have often been dismissed, rendered invisible, and caricatured, framed as archaic mythology rather than legitimate scientific knowledge6. This delegitimisation prioritises shortterm benefits without safeguarding the integral system that sustains them. Despite these pressures, communal and ejidal agricultural practices collectively hold over 70% of the chinampería’s land tenure within the officially designated Conservation Zone.7

7

6

and Informal Land Transactions in Mexico City’s Urban Expansion’.

The contemporary chinampería is divided into five main zones:

1. Xochimilco, 34 ha.

2. San Gregorio Atlapulco, 230 ha.

3. San Luis Tlaxialtemalco, 43 ha.

4. Tláhuac, 58 ha.

5. Mixquic, 59 ha.

E Narchi and Canabal Cristiani, ‘Subtle Tyranny: Divergent Constructions of Nature and the Erosion of Traditional Ecological Knowledge in Xochimilco’..
Tellman et al., ‘The Role of Institutional Entrepreneurs
Fig. 200 Chapín 2024. (Author)
Fig. 201 Map of the Chinampería. (Author)
2 km

This chapter examines the productive dimension of the chinampería, tracing its historical transformations and contemporary challenges. It explores the fragmentation of this once-cohesive structure, the policy frameworks that have shaped its deterioration, and the role of self-organised agricultural communities in sustaining its future. The analysis frames the chinampería as a contested territory, where food sovereignty, ecological resilience, and urban expansion intersect. By addressing both its constraints and potentialities, the chapter proposes strategic interventions to strengthen the productive lacustrine landscape, embedding it within the contemporary hybrid chinampería and its diverse actors.

Fragmentation of the Chinampería

The decline of the chinampería can be traced to multiple factors, as explored in previous chapters. From an agricultural perspective, federal policies implemented starting from the Green Revolution of the 1960s prioritised high-yield monoculture at the expense of integral harvests.8 This shift, coupled with the widespread use of agrochemicals and pesticides, disrupted the regenerative cycles of water and soil within the chinampería. It marked a turning point in Xochimilco’s territorial logic, as external agricultural models were imposed onto an ontological landscape historically sustained by cyclical crop rotation.

Unlike the Mexican Revolution of the early 20th century, which sought to empower rural communities, neoliberal policies from the 1960s onward largely neglected rural development. Authors Benítez and López highlight this paradox, noting that the very sector responsible for national food security was systematically abandoned, marginalising a population that is both economically and culturally invaluable.9 This shift not only weakened land productivity but also disrupted the transmission of agricultural knowledge, severing the intergenerational exchange embedded in the chinampería tradition.10

In response to the decline of traditional farming, government initiatives from the 1990s onwards promoted greenhouse installations as a means to modernise agricultural production.11 While these structures initially increased yields, they also introduced new dependencies—on external inputs, chemical fertilisers, and potable water—ultimately undermining the ecological balance of the chinampería 12 Greenhouse cultivation is not only capital-intensive but also incompatible with the traditional irrigation system, as most rely on potable water rather than from the canals. This shift has severed contemporary agricultural practices from the hydrological cycles, reinforcing a model of production that is detached from the landscape’s natural rhythms.

9 Landázuri Benítez and López Levi, ‘San Gregorio Atlapulco, Xochimilco: Frente a la vorágine modernizadora y urbanizadora’.

10 E Narchi and Canabal Cristiani, ‘Subtle Tyranny: Divergent Constructions of Nature and the Erosion of Traditional Ecological Knowledge in Xochimilco’.

11 Yair Merlín-Uribe et al., ‘Environmental and Socio-Economic Sustainability of Chinampas (Raised Beds) in Xochimilco, Mexico City’, International Journal of Agricultural Sustainability 11, no. 3 (August 2013): 216–33, https://doi.org/10.1080/1473 5903.2012.726128.

12 Zambrano, Rojas, and Barros, Xochimilco en el siglo XXI.

8 The Green Revolution, emerging in the 1960s, introduced high-yield seeds and agrochemicals for boosting food production and enhancing food security. It faced criticism due to its adverse effects on the environment and local communities.
Fig. 202 Canal between greenhouses and dwellings, 2024. (Author)
Fig. 203 Greenhouses, 2024. (Author)

13 A body of water with high nutrient concentrations, promoting excessive algae growth and oxygen depletion, potentially causing ecological damage, often linked to human-induced pollution.

14 Nemer E Narchi, ‘Deterioro Ambiental En Xochimilco. Lecciones

Para El Cambio Climático Global’, Veredas, Revista Del Pensamiento Socioecológico, Cambio climático y desarrollo sustentable, no. 27 (2014).

15 Farmer Andrés Vázquez recounts occasions where they had to rush to the chinampa in the middle of the night to set up “the plastics” and safeguard the harvest, preserving the efforts of an entire season.

The widespread use of agrochemicals has led to contaminant runoff, polluting natural waterways and destabilising the hydrological balance. Additionally, the abandonment of traditional fertilisation methods—which relied on aquatic plants—has accelerated eutrophication,13 degrading water quality and further limiting the viability of canal irrigation. This transition has also resulted in a decline in crop diversity, exacerbated by water scarcity and market-driven pressures that prioritise floriculture, often under monoculture greenhouse production.14

As an alternative, farming practices15 have adopted microtunnels—lightweight structures covered with plastic or mesh—to protect crops while maintaining soil-based cultivation. These structures offer a compromise between traditional and industrial agriculture, preserving some connection to the chinampa’s soil and ecological logic. However, the widespread use of plastic in microtunnels has introduced a new form of environmental degradation, as discarded plastic coverings accumulate in the landscape, contaminating soil and water.

State-led conservation policies have further exacerbated the fragmentation of the chinampería by restricting land use exclusively to agricultural purposes, failing to account for the complex socio-territorial realities. Although these policies claim to protect the remaining chinampería, their rigid frameworks fail to reconcile the intertwined social, environmental, and conservation challenges that define the region. The paradox of conservation policies in Xochimilco lies in their approach to regulating the territory as a “natural” landscape, disregarding its current entanglement with expanding urbanisation and the complex socio-environmental dynamics that shape its transformation.

The Fragmented Grid

The chinampería was historically structured through an interwoven canal network, ensuring connectivity between productive chinampas and commercial markets in Xochimilco and central Mexico City. This water-based mobility system enabled farmers to transport produce efficiently, reinforcing the reciprocal relationship between the city and its rural peripheries. However, over the last decades, this connectivity has been systematically dismantled through terrestrial infrastructure,16 land speculation, and detached agricultural policies, cutting the historical link between production and consumption.

The canal grid historically structured the spatial organisation of the lake, defining the division of chinampas according to canal type and function. Much like a modern road network, canals vary in size and capacity. Today, Xochimilco’s canal system extends approximately 180 kilometres, with varying degrees of deterioration—when including the Tláhuac region, the total length surpasses 200 linear kilometres.17

The canal hierarchy still reflects its pre-Hispanic structure. Larger canals (up to 100 metres wide) historically facilitated navigation and agricultural transport, though they are now primarily used for tourism. Smaller communication canals (5–10 metres wide) function as secondary routes, maintaining local mobility within the lacustrine landscape. These canals are further segmented by acalotes, branching connections that provide internal access between chinampas. The smallest canals, known as apantles, measuring less than one metre wide, serve as irrigation channels supplying water and mud. Due to their narrow width, these channels remain navigable only by small canoes,18 sustaining the water-based logic of the chinampería

16 Echoing John Urry’s account of Southern Californians “adding wheels to their anatomy” in the 1930s, a similar logic prevails in Xochimilco: mobility has replaced oars with tyres, marking a transition towards mechanised transportation. From Urry, ‘Inhabiting Cars and Roads’.

17 Figueroa Torres et al., E-Bios: Manejo Integral de La Cuenca de Xochimilco y Sus Afluentes.

18 Méndez Cárdenas et al., Chinampas de México, Sitio Patrimonio Mundial: Biodiversidad y Cultura.

This drawing illustrates the different configurations of the canal grid in Xochimilco:

1.Main Canal

2. Secondary or Communication Canal

3. Acalote 4. Apantle

Fig. 204 Micro-tunnels in a chinampa (Author)
Fig. 205 Diagram with types of canals. (Author)

19 Trajineras are traditional flatbottomed wooden boats designed to navigate in shallow waters. Their structure and operation make them ideal for transporting people and agricultural products within the canal grid.

20 Section 06 of Appendix V.

As informal settlements expand, canals are filled in and repurposed as streets, with pathways following the original canal dimensions. Retired chinampero farmer and trajinero19 operator Don Miguel Poblano describes this transformation: “People start pouring concrete as if the canals were already dry. They say they get mud on their shoes daily, so they prefer cement. Ten or fifteen neighbours agree, and in one day, they lay the ground—this is how a street (suddenly) appears.”20

22 Méndez Cárdenas et al., ‘Introducción’.

The connection of the canals with the broader commercial networks that once linked Xochimilco and central Mexico City since pre-Hispanic times has been severed. The most significant rupture occurred in 1954 with the drainage of the Canal de la Viga, which used to be the primary waterway between the two regions, was drained and transformed into a boulevard, forcing farmers to rely on land-based distribution networks. Today, only the vestiges of the canal persist in the name of the avenue, a repetitive phenomenon across the city.21

Before this disconnection, the canal grid supported the cycle of production and commercialisation: farmers would load their canoes with the produce cultivated in the chinampas and navigate to the Jamaica Market near the city centre, where they sold directly to consumers and distributors. This practice involved farmers and their families in the entire production cycle, from cultivation to marketing.22

Andrés Vázquez, a chinampero farmer highlights how, on a regional scale, the fragmentation of the canal network has divided mobility in the production and sales chain. Now, produce still begins its journey towards markets by canoe, but only as far as the nearest dock. From this point on, transportation is handled by a hired service that takes their products to the Central de Abasto, where they receive and sell it.23 This shift renders visible the profound adaptation and adoption of the dry paradigm: waterways replaced by roads, communal agricultural knowledge displaced and logistic networks that privilege motorised land transport.

The infrastructural shift from liquid to terrestrial flows also reflects how the dry paradigm transcends into cultural and political transformations, as policies prioritising automotive mobility came to symbolise modernity itself, maybe even one step further than large water infrastructure projects. John Urry suggests, by citing Longhurst, that the car became ‘a symbol of adulthood, a marker of citizenship, and the foundation of sociability and networking,’ emphasising the generalised desire for a motorised lifestyle, In the case of Mexico City this marks yet another layer of complexity, given that piped rivers make way for many of its most important highways.24

21 Across the Mexico Valley basin, multiple waterways have been piped to make way for car infraestructures. For example, La Piedad, Magdalena and Churubusco rivers.
24 Urry John. Mobilities. Cambridge: Polity Press, 2013.
The following image comparison illustrates the historical amphibious trade that once took place along the canal network between Xochimilco and Mexico City. Today, agricultural products are transported by land.
Fig. 206 Roldan Street and its Wharf in 1859. (Source: C. Castro & J. Campillo, 1869) (Image coloured by the author)
Fig. 207 Canal de la Viga by the Jamaica Market, circa 1900. (Source: INAH)
Fig. 208 Truck at the productive edge of La Conchita, 2024. (Author)

25 de la Bellacasa, ‘Introduction’.

26 Tellman et al., ‘Adaptive Pathways and Coupled Infrastructure’.

27 Chinampa Agricultural System of Mexico City, Mexico. A Proposal for Designation as a Globally Important Agricultural Heritage Systems (GIAHS)’.

28 Méndez Cárdenas et al., ‘Introducción’.

29 Section 05, 06 of Appendix II and VII.

To critically reassess the trajectory of Xochimilco is to confront the broader contradictions of Mexico’s governance. The invisibilisation of water has not erased the geological realities of inhabiting a basin; rather, it has intensified them, producing a landscape of scarcity, vulnerability, and ecological precarity. The challenge ahead is not merely one of preservation but of reconfiguration and care—to reclaim water not as an obstacle to development, but as a fundamental organising force in the spatial and political construction of the city. The politics of care for the lacustrine landscape must move beyond rhetoric towards a hands-on agency—one that produces material consequences and actively reshapes the conditions for its ecological and social regeneration.25

The chinampería, though diminished, persists as a hydrological compendium of knowledge, offering an alternative model to the dominant extractivist paradigm. However, its long-term viability remains uncertain, caught between conservation policies that prioritise heritage over function and state neglect that fails to integrate traditional knowledges of water management into broader urban strategies. As Tellman suggests, the challenge is not merely to condemn the transformation but to engage in a democratic negotiation of adaptation—one that acknowledges the socio-economic forces driving these changes while fostering pathways towards the recuperation of the lakescape.26

4.2 Chinampería today

Despite these challenges, the chinampería remains a key agricultural territory, covering approximately 2,215 hectares within the Conservation Zone. In the Xochimilco borough, the majority of these agricultural islands— about 74%—lie within the ejidos of San Luis Tlaxialtemalco, San Gregorio Atlapulco, and Xochimilco. This amounts to 1,646 hectares of agricultural land, supporting over 3,500 active chinampas. However, this represents only a fraction of its historical extent, and the majority remain inactive or abandoned. Recent studies suggest that up to 17,000 chinampas could be rehabilitated,27 significantly increasing local food production and ecological stability.

By the 1980s, before conservation measures were implemented, the lacustrine landscape had suffered severe degradation, with only 15% of the historical chinampería remaining in cultivation by the turn of the century.28 Despite this decline, chinampa productivity has seen a resurgence over the last two decades, driven by a new generation of farmers, retired adults returning to agriculture, and urban collectives advocating for sustainable food systems. Additionally, a wave of urban collectives, researchers, and independent producers has emerged, advocating for the reintegration of chinampa farming into the broader sustainability and food independence initiatives.29

The centralisation of Mexico City’s food distribution system has also played a crucial role in marginalising chinampa-based agriculture. The commercialisation of agricultural products has been consolidated at key distribution points, primarily at the Central de Abasto, a wholesale market established in the late 1970s on former lake beds and chinampa lands. Spanning 327 hectares, this mega-market was designed to modernise and streamline food logistics in the capital. However, rather than supporting small-scale, sustainable farming, the system favours large-scale industrial suppliers, placing traditional producers at a disadvantage.

The fragmentation of the chinampería has significantly reduced its agricultural output. Once a primary supplier of fresh produce to the city, production has steadily declined since the mid-20th century due to the imposition of industrial agricultural models. Today, active chinampas produce enough to supply 400,000 people, but if inactive plots were rehabilitated, the system could potentially sustain another one million.30

30 Laura Camacho Latz et al., ‘Chinampas of Xochimilco: Urban Agriculture from the Ancient Americas Until Today’, in Urban Agricultural Heritage, ed. Frank Lohrberg et al. (De Gruyter, 2022), 158–66.

Fig. 209 Plan and section of a chinampa. (Author)

31 Secretaría de Agricultura y Desarrollo Rural. “La Central de Abasto, El Mercado Más Grande Del Mundo.” Government of Mexico. Accessed April 18, 2024.

32 At the Central de Abasto, price dictates demand over quality or ecological value. Andrés explains that buyers prioritise cost, disregarding origin or production methods. Like many farmers, he competes in auction-based sales, where tons of unsold produce are discarded daily. Appendix II.

33 Section 03 of Appendix II.

34 “Diana Laura Vázquez Mendoza et al., ‘Etiqueta Chinampera. Guía de Etiquetado Ecológico Para La Producción Agroecológica En Chinampas-Refugio de Xochimilco.’ (Laboratorios de la UNAM, El Claustro de Sor Juana y personas chinamperas, September 2022).

35 Section 03 of Appendix II.

A key factor in this decline has been the centralisation of food distribution at the Central de Abasto, a wholesale market established in the 1970s on former chinampa lands. Designed to optimise logistics, it has instead favoured large-scale industrial suppliers, marginalising traditional farmers.31 Andrés Vázquez, a local chinampero, highlights the struggle of competing in this system, where price dictates demand over ecological value.32 Every day, approximately 60 tons of produce from San Gregorio enter the market, with a significant portion discarded.33

New initiatives seek to reposition chinampa agriculture within a sustainable framework. One such effort is the Etiqueta Chinampera (Chinampa Label), a certification developed with universities and research centres to ensure agroecological production methods and counteract concerns over water pollution, which have historically diminished consumer confidence in chinampa produce.34

Vázquez underscores the importance of these efforts: “When you engage with someone who values the product, you’re not just selling the chapín, but also the story and the effort behind it. By purchasing my product, you’re helping preserve the essence of Mexico City.”35 His words highlight the broader role of chinampas as more than agricultural plots, but as key ecological infrastructures, contributing to water filtration, carbon sequestration, and urban temperature regulation.

Although Xochimilco’s chinampas can no longer sustain the metropolis as they did five centuries ago, their reintegration into local and regional supply chains could reduce the dependence on long-distance food transport and high-carbon food imports, offering a scalable model for urban food resilience in the short and medium terms.

While different efforts seek to restore and revalue the chinampería in local networks, these initiatives exist within a much larger context of urban and environmental policy. The relationship between Xochimilco and Mexico City is an intrinsic network of governance, infrastructure and ecological survival. How the lacustrine landscape is understood from the central city reflects the tensions between the capital and its surroundings, its necessity for natural landscape conservation, and economic development among others.

In recent decades, environmental sciences have developed the concept of ecosystem services—assigning a quantifiable monetary value to ecological functions like carbon sequestration, water filtration, and temperature regulation.36 While this framework seeks to legitimise environmental preservation within policy and market-driven contexts, it might risk reducing landscapes like the chinampería to passive resource providers, rather than recognising them as dynamic socio-ecological systems. Xochimilco’s wetlands are often valued concerning Mexico City’s needs, rather than as actant landscapes with their own cultural and agricultural legacies.37 This oversight reflects broader governance failures, where short-term economic resolutions often take precedence over long-term ecological sustainability.

Urban expansion continues to encroach upon the Conservation Zone, where policies oscillate between strict environmental protections and real estate pressures, failing to integrate the productive and cultural values of the chinampería Architects Daou and Tudela argue that addressing Mexico City’s ecological and urban crises requires moving beyond anthropocentric frameworks, towards post-humanist perspectives that recognise the entanglement of human and non-human actors, infrastructures, and material flows.38

36 E Narchi and Canabal Cristiani, ‘Subtle Tyranny: Divergent Constructions of Nature and the Erosion of Traditional Ecological Knowledge in Xochimilco’..

37 Luis Zambrano, Rubén Rojas, and Cristina Barros, Xochimilco en el siglo XXI, Primera edición, Turner noema (Ciudad de México, CDMX: Turner, 2021)..

38 Daniel Daou and Elena Tudela, ‘La Ciudad de México Como Laboratorio de Diseño’, Arquine, 17 May 2021.

39 Aureli and Giudici, ‘Islands’.

4.3 Xochimilco within Mexico City
Fig. 211 Chinampas within La Conchita neighbourhood, II. 2024. (Author)
Fig. 210 Chinampas within La Conchita neighbourhood. 2024. (Author)

This site plan depicts the chinampa cultivated by farmer Andrés Vázquez. Despite the use of some chemical inputs and protective microtunnels, the plot maintains many key elements of traditional chinampa agriculture, reflecting a balance between ancestral practices and contemporary adaptations.

0 250 m

At this stage, projective interventions aim to optimise the lacustrine landscape through strategic devices that enhance chinampa productivity while simultaneously generating public infrastructure within the territory. These proposals acknowledge that productivity, habitability, and collective life in the chinampería are deeply interwoven, requiring integrated solutions that support agriculture, community dynamics, and environmental sustainability.

Future transformations of Mexico City’s governance must embed Xochimilco within a broader ecological vision, rather than treating it as a fragmented, peripheral territory. As Aureli and Giudici suggest, rethinking urbanity demands a redefinition of territorial belonging, shifting from an extractive model towards coexistence with landscapes.39 In this sense, local community agencies must play a central role in shaping both local and regional dynamics, ensuring governance structures that foster shared responsibility between communities and authorities. Without such a paradigm shift, the extended degradation of the chinampería will not only erode its cultural and productive strengths but also weaken Mexico City’s urban resilience.

Rather than imposing rigid models, these interventions aim to support existing agricultural practices based upon efficient water-management infrastructures, creating conditions for the permanence of agriculture within the evolving hybrid landscape of the chinampería

later place chapines containing pre-germinated seeds.

Fig. 212 Plan displaying the analysed productive chinampa. (Author)
Andrés using the tabla (board) to prepare holes in the soil, where he will
Fig. 213 Andrés Vázquez working on his chinampa 20204 (Author)
Fig. 216 Case Study 06, Master Plan. (Author)
Fig. 215 Case Study 06, Plot Isometric. (Author)
Water pumped from the canal for chinampa irrigation
Fig. 214 Table of information about Case Study 06 (Author)

1. Within the neighbourhood of La Conchita, some chinampas remain entirely dedicated to agricultural production without residential use. An example of this is the chinampa operated by the farmer Andrés Vázquez, who rents the land to an elderly owner who no longer cultivates it personally.

3. Between the micro-tunnels is a small hut. Its structure combines wooden logs, metal and wooden profiles, with walls clad with irregular sections of reed and plastic and sheet metal panels. The roof is made of corrugated metal sheet too.

2. The longitudinal extension of the is primarily covered by four rows of microtunnels with metal structures, partially enclosed with plastic sheeting.

4. Its programme is similar to that of the traditional chinancallis that no longer exist in the chinampería, where there is a storage area, elementary food preparation and a resting area.

Inside there is a cot, a reed (carrizo) mezza nine used for storage and a table where work ers perform various tasks.

Fig. 217 Photographs and annotations showing ways of living (Author)

Context

As the previous chapter has shown, agriculture is the foundation of the chinampería, and it faces challenges derived from extractivist practices, urban expansion, policy implementation and cultural deterioration. This design brief thus envisions a series of artefacts designed to revalue and enhance agricultural production, attempting to counteract larger pressures.

In a sort of architectural acupuncture, these artefacts seek to optimise local resources to provide solutions to observed issues. While individually limited in scope, their repetition and interconnection can create a grid system embedded within the hydrological and agricultural fabric of the chinampería.

Objectives

To create water bodies that enhance agriculture and its inhabited surroundings by improving water availability and quality.

To generate natural infrastructures that can be integrated into the landscape without disrupting the delicate ecological balance and supporting communal activities.

To reduce dependency on external water supply networks, reinforcing self-sufficiency and autonomy for agricultural producers and residents.

A water purification system integrated into the canal grid, consisting of parallel mesh frames attached to the chinampa’s borders and filled with gravel, sand, and aquatic vegetation with high contaminant absorption properties. Strategically placed along the canals, these filters significantly improve water quality for irrigating chinampa crops.

Fig. 218 Canal biofilter. Plan and section. (Author)
Fig. 219 Canal biofilter. Isometric (Author)

Rainwater

Designed for areas where the canal grid is scarce or deteriorated, this artefact facilitates the collection and storage of rainwater for agricultural irrigation through a large-scale indentation on the soil. It enables the reinjection of surplus water into the subsoil, reinforcing the hydrological cycle of the region. Its dimensions and depth are adaptable to site-specific soil conditions, ensuring efficient integration with the surrounding environment.

Collector Pond
Fig. 137 Rainwater Collector, Plan and Elevation (Author)
Fig. 222 Rainwater Collector Pond. Isometric. (Author)

A modular and longitudinal adaptable structure that serves as a meeting and resting point within the landscape for agricultural producers and community members. The roof integrates a rainwater harvesting system, directing rainfall into a storage tank to attempt to provide continuous water availability while providing shade and shelter.

Fig. 224 Water Pavilion. Plan and section. (Author)
Fig. 225 Water Pavilion. Isometric. (Author)

1 Haraway, ‘Introduction’.

2 de la Bellacasa, ‘Introduction’.

3 Aureli and Giudici, ‘Islands’.

4 Aureli and Giudici, ‘Islands’.

5 Aureli and Giudici, ‘Islands’.

FLUID FUTURES

“Our task is to make trouble, to stir up potent response to devastating events, as well as to settle troubled waters and rebuild quiet places.”

Donna Haraway, Staying with the Trouble

The territory examined in the dissertation constantly resists erasure—both as a landscape configuration and as a way of living. The development of the chapters showed that, while the expansive forces of state infrastructure and commodification seek to filter through it, the chinampería persists through adaptation, negotiation and care. Furthermore, the research and fieldwork have revealed that embedded within the original techniques of inhabiting the chinampería are the guidelines for strategies for endurance into the future.

In a global context where extractive urban logics dictate our relationship with the environment, the chinampería offers a refreshing counterpoint— one of unceasing interdependence rather than separation. The adaptation of dwellings into the originally agricultural chinampas exemplifies a mode of resilience grounded on fluid self-built strategies, ancestral cultivation rhythms, and acts of care. However, care is never neutral;2 it is an ethical, political and material practice. To focus solely on human habitation within this delicate lakescape is to ignore the agency of other-than-human life that coexists within it.

Today, the environmental crisis is no longer an abstract or distant concern; it is an urgent, tangible, and omnipresent reality. In Mexico City, policies aligned with the dry paradigm—such as the overexploitation of groundwater, which weakens the subsoil, and the disregard for territorial development plans—have led the basin to extreme vulnerability. This fragility manifests through increasingly frequent unseasonal climatic phenomena and destructive earthquakes. Extractivist models have not only deteriorated geological layers but have also undermined social structures and non-human life forms.

Looking back to the past—listening to and recognising the ancestral knowledge that, for centuries, allowed pre-Hispanic cultures to live in balance with ecosystems— becomes relevant. This approach invites us to re-imagine natural resources, not from a logic of possession,3 but as part of a fabric of multi-scalar integration between humans and other forms of life within the chinampería It is also essential to return to the roots, to the place of origin, and the practices of care as gestures of reconnection with environments that are simultaneously sustenance and a reflection of identity.

The projective designs in this dissertation invite us to reflect on systems of organisation that assume responsibilities and generate responses based on the specificities of a habitat. These territorial structures should not be interpreted with regressive nostalgia,4 but as opportunities to integrate contemporary technologies—creating canals of encounter and cooperation through “tentacular thinking”, a vision that conceives existence as a web of relationships in a complex and interconnected world, sustained by the immense network of “the commons”.5

As this dissertation has argued, urban and ecological policies have frequently framed economic development and landscape conservation in terms of the quantifiable benefits the chinampería can provide. Yet, this shifting lakescape continuously reaffirms its presence.

Care in the chinampería is also manifest in the tending of the canals, in the rituals that reaffirm the relationship to water, soil and mud, and in the initiatives that allow other-than-human life to thrive. In this sense, the argument of the thesis provides a framework for studying an overflowing site. If, as Haraway suggests, our task is to “stir up and settle troubled waters” , then the conditions of the lacustrine landscape are uniquely special to help us understand the “thick present”. And if, as Robin Greeley suggests about Abraham Cruzvillegas, disorder is not a failure but a methodology,6 then this dissertation has not sought to impose order. Rather, through the development of site-informed artefacts, it has aimed to work with the rhythms and contingencies of the chinampería.

If there is an overarching takeaway from this study—one that extends beyond the specificities of Xochimilco—it is that present-day (and “thick-future”) modes of inhabitation on Earth are not fixed. Now than ever, they must be understood as a process of constant harmonisation with others rather than as exercises of control, prediction or standardisation. For architecture and urbanism, this means reconsidering their role—not as tools of top-down policymaking, but as practices of situated adaptation. This requires an engagement with the urgencies of the present that is, as Haraway would say, “response-able”7—capable of responding in ways that embrace instability and recognise the knowledge embedded in informal adaptations.

To engage with the chinampería is to enter into a conversation with a landscape that refuses to be still. Its constant flow of events is met with persistent frictions that shape its transformation. This thesis began as an attempt to comprehend a territory that, in retrospect, resists being fully grasped. The historical journey from the formation of the lake basin was gradually filtered and reduced into details as precise as the chapín blocks— searching for resilience strategies that have been inherent to the communities and physical configuration of the land itself. Architectural thought and design strategies have informed proposals that work with the water cycles, embracing the apparent disorder and irregularity of the territory.

Naturally, this research opens new questions for further exploration. For example, how might academic approaches engage with marginalised communities and fragile landscapes without imposing top-down hierarchies? How do the adaptation strategies of the chinampería resonate with other amphibious, silted, or wet territories across the world?

6 Greeley, ‘Introduction’.
7 Haraway, ‘Making Kin. Anthropocene, Capitalocene, Plantationocene, Chthulucene’.

What new possibilities emerge from studying the intricate grid of inhabitation, community and productivity— particularly when the aim is not stabilisation but engagement with inherent fluidity? These are inquiries that remain open for future investigation.

Flows, Frictions and Futures acknowledges the dynamic nature of the chinampería It shifts, it halts, but it is never fixed. In this sense, the argument, the design proposals and the engagement with the site presented in this dissertation are all situated acts— responses to a configuration that resists rigid categorisation and instead embraces spectrums. Future research on this topic should continue to recognise that the future of this amphibious landscape, along with all its components, does not lie exclusively in preservation or restoration, but in the ability to continue improvising, adapting and caring. The challenge, then, is not only how to sustain these processes but how projective practices themselves continue to learn from them.

Fig. 01 Axolotl (Ambystoma mexicanum). (Author)

Fig. 02 Flooded Chinampería, 2023. (Author)

Fig. 03 Self-portrait in the chinampería, 2023. (Author)

Fig. 04 Flooded Chinampería II, 2023. (Author)

Fig. 05 Methodology Diagram. (Author)

Fig. 06 Flooded Chinampería III, 2023. (Author)

Fig. 07 Shortfin silverside (Chirostoma humboldtianum). (Author)

Fig. 08 Tenochtitlan and Lake Texcoco in 1519. (Source: National Museum of Anthropology, INAH)

Fig. 09 The Santa Cruz Map. Alfonso de Santa Cruz, circa 1550. (Source: Uppsala University)

Fig. 10 Map of Tenochtitlan, printed 1524 in Nuremberg, Germany. (Source: Newberry Library, Chicago)

Fig. 11 Nochistongo Trench, 1883. (Source: INAH)

Fig. 12 General Plan of the Valley of Mexico Basin by Engineer Francisco de Garay, 1856.

Fig. 13 Flooding of the Plaza de la Constitución in 1930. (Source: INAH)

Fig. 14 Stone mask indicating flood level in the city centre. (Source: INAH)

Fig. 15 Advertisement for the Potable Water Supply from a 1928 issue of “Revista de revistas” from “Polanco Ayer y Hoy” blog.

Fig. 16 Map of the extension of the Potable Water Supply Network in 1901, Manuel Marroquín y Rivera y Carlos Daza. From Mapoteca Manuel Orozco y Berra.

Fig. 17 Map showing the Xochimilco Aqueduct with the Pumping Houses (Author)

Fig. 18 Section and Floor Plan of the Santa Cruz Pumping House (Author)

Fig. 19 Section and Floor Plan of the San Luis Pumping House (Author)

Fig. 20 Section and Floor Plan of La Noria Pumping House (Author)

Fig. 21 Section and Floor Plan of Nativitas Pumping House (Author)

Fig. 22 Section and Floor Plan of La Condesa Main Pumping House (Author)

Fig. 23 Section of the Aqueduct Mexico-Xochimilco, km. 20, 1908. (Source: Archivo Casasola)

Fig. 24 Eastern Emissary Tunnel, 2017. (Source: Bessac)

Fig. 25 Linear distribution system of a pre-Hispanic aqueduct. (Source: Bernárdez de la Granja, 2016). (Author)

Fig. 26 Distribution system by circuits of the Xochimilco Aqueduct. (Source: Bernárdez de la Granja, 2016). (Author)

Fig. 27 Map of Mexico City showing ancient lakes and present-day bodies of water. (Author)

Fig. 28 Map of Mexico City showing the Urban and Zonservation Zones. (Author)

Fig. 29 Xochimilco-Chalco Lakes in 1521. (Author)

Fig. 30 Xochimilco-Chalco Lakes in 1825. (Author)

Fig. 31 Xochimilco-Chalco Lakes in 1925. (Author)

Fig. 32 Remnants of lakes within the polygonal of the Conservation Zone (Author)

Fig. 33 Map of the Conservation Zone (CZ) within Xochimilco Borough. (Author)

Fig. 34 Timeline with Conservation and Regulation Plans in Xochimilco. (Author)

Fig. 35 Timeline with the transformations in the Mexico Valley Basin. 1410-2010. (Author)

Fig. 36 Headlines from different newspapers, 2023-24. (Source: Various Newspapers)

Fig. 37 First aerial photos of the Chinampería in Xochimilco, 1938. (Fundación ICA)

Fig. 38 Frames from the Film María Candelaria, 1944.

Fig. 39 Frames from the Film Mi Niño Tizoc, 1972.

Fig. 37 First aerial photos of the Chinampería in Xochimilco, 1938.

(Fundación ICA)

Fig. 41 Chinampería along the Canal de Japón, Xochimilco, 2024. (Author)

Fig. 42 Landscape within the chinampería, Xochimilco, 2024. (Author)

Fig. 43 Chinampa with shade mesh covers, Xochimilco, 2023. (Author)

Fig. 44 Chinampa with micro-tunnels, Xochimilco, 2023. (Author)

Fig. 45 Self-built house along the canal, Xochimilco, 2023. (Author)

Fig. 46 Canoe and trajinera workshop along the canal, Xochimilco, 2023. (Author)

Fig. 47 Self-built house along the canal, Xochimilco, 2023. (Author

Fig. 48 Intersection of terrestrial and fluvial routes, Xochimilco, 2023. (Author)

Fig. 49 Consolidated two-storey self-built house, Xochimilco, 2023. (Author)

Fig. 50 Consolidated self-built houses along the canal, Xochimilco, 2024. (Author)

Fig. 51 Transition between terrestrial and fluvial mobilities, street beside canal, Xochimilco, 2024. (Author)

Fig. 52 Consolidated two-storey self-built houses, Xochimilco, 2024. (Author)

Fig. 53 Canal grid between greenhouses and housing, Xochimilco, 2023. (Author)

Fig. 54 Acocil (Cambarellus montezumae). (Author)

Fig. 55 Chinampera zone in Santa María Acalpixca, circa 1940. (Source: Conaculta- INAH)

Fig. 56 Chinampería, 2024. (Author)

Fig. 57 Chinancalli house in San Luis, Xochimilco, 1925. (Source: INAH)

Fig. 58 Interior of a chinancalli house in San Luis, Xochimilco, 1925. (Source: INAH)

Fig. 59 & 60 Chinancalli rebuilt from recreational and educational purposes

Fig. 61 Floor Plan of a Chinancalli (Author)

Fig. 62 Isometric of a Chinancalli (Author)

Fig. 63 Farmers travelling along a canal (Author)

Fig. 64 Family in their liquid mobility (Author)

Fig. 65 La Conchita neighbourhood. Aerial mosaic composed of 87 frames. 2024. (Author)

Fig. 66 Map of Xochimilco showing the six analysed irregular settlements. (Author)

Fig. 67 Map of Irregular Settlement Evolution, Santiago Chililico, 1965. (Author)

Fig. 68 Map of Irregular Settlement Evolution, Santiago Chililico, 1985. (Author)

Fig. 69 Map of Irregular Settlement Evolution, Santiago Chililico, 2000. (Author)

Fig. 70 Map of Irregular Settlement Evolution, Santiago Chililico, 2024. (Author)

Fig. 71 Map of Irregular Settlement Evolution, Santa Rosa Chililico, 1965. (Author)

Fig. 72 Map of Irregular Settlement Evolution, Santa Rosa Chililico, 1985. (Author)

Fig. 73 Map of Irregular Settlement Evolution, Santa Rosa Chililico, 2000. (Author)

Fig. 74 Map of Irregular Settlement Evolution, Santa Rosa Chililico, 2024. (Author)

Fig. 75 Map of Irregular Settlement Evolution, Ampliación Caltongo, 1965. (Author)

Fig. 76 Map of Irregular Settlement Evolution, Ampliación Caltongo, 1985. (Author)

Fig. 77 Map of Irregular Settlement Evolution, Ampliación Caltongo, 2000. (Author)

Fig. 78 Map of Irregular Settlement Evolution, Ampliación Caltongo, 2024. (Author)

Fig. 79 Map of Irregular Settlement Evolution, Recodo Caltongo, 1965. (Author)

Fig. 80 Map of Irregular Settlement Evolution, Recodo Caltongo, 1985. (Author)

Fig. 81 Map of Irregular Settlement Evolution, Recodo Caltongo, 2000. (Author)

Fig. 82 Map of Irregular Settlement Evolution, Recodo Caltongo, 2024. (Author)

Fig. 83 Map of Irregular Settlement Evolution, La Huerta Tulapa, 1965. (Author)

Fig. 84 Map of Irregular Settlement Evolution, La Huerta Tulapa, 1985. (Author)

Fig. 85 Map of Irregular Settlement Evolution, La Huerta Tulapa, 2000. (Author)

Fig. 86 Map of Irregular Settlement Evolution, La Huerta Tulapa, 2024. (Author)

Fig. 87 Map of Irregular Settlement Evolution, Barrio Caltongo, 1965. (Author)

Fig. 88 Map of Irregular Settlement Evolution, Barrio Caltongo, 1985. (Author)

Fig. 89 Map of Irregular Settlement Evolution, Barrio Caltongo, 2000. (Author)

Fig. 90 Map of Irregular Settlement Evolution, Barrio Caltongo, 2024. (Author)

Fig. 91 Map of Xochimilco showing San Gregorio Atlapulco and the Conservation Zone (Author)

Fig. 92 Map of San Gregorio Atlapulco in relation to La Conchita neighbourhood (Author)

Fig. 93 Former chinampería and canal grid, before the chinampas inhabitation. (Author)

Fig. 94 Current fragmented Canal grid, La Conchita. (Author)

Fig. 95 Current Terrestrial network, La Conchita. (Author)

Fig. 96 Current traditional chinampas, La Conchita. (Author)

Fig. 97 Current greenhouses, La Conchita. (Author)

Fig. 98 Housing within La Conchita. (Author)

Fig. 99 Diagram of community organisation through electrical boards, La Conchita. 2024. (Author)

Fig. 100 Potable water via the hoses network and sewage discharge directly into a canal. 2024. (Author)

Fig. 101 Aerial view of La Conchita, looking towards the San Gregorio lagoon

Fig. 102 Access-Exit Bridge, La Conchita. 2024. (Author)

Fig. 103 Outdoor laundry, La Conchita. 2024. (Author)

Fig. 104 Self-built house, La Conchita. 2024. (Author)

Fig. 105 Plan displaying the analysed case studies. (Author)

Fig. 106 Case Study 01 (Author)

Fig. 107 Case Study 02 (Author)

Fig. 108 Case Study 03 (Author)

Fig. 109 Case Study 04 (Author)

Fig. 110 Case Study 05 (Author)

Fig. 111 Table of information about Case Study 01 (Author)

Fig. 112 Case Study 01, Plot Isometric. (Author)

Fig. 113 Case Study 01, Master Plan. (Author)

Fig. 114 Photographs and annotations showing ways of living (Author)

Fig. 115 Photographs and annotations showing ways of living (Author)

Fig. 116 Table of information about Case Study 02 (Author)

Fig. 117 Case Study 02, Plot Isometric. (Author)

Fig. 118 Case Study 02, Master Plan. (Author)

Fig. 119 Photographs and annotations showing ways of living (Author)

Fig. 120 Table of information about Case Study 03 (Author)

Fig. 121 Case Study 03, Plot Isometric. (Author)

Fig. 122 Case Study 03, Master Plan. (Author)

Fig. 123 Photographs and annotations showing ways of living (Author)

Fig. 124 Photographs and annotations showing ways of living (Author)

Fig. 125 Table of information about Case Study 04 (Author)

Fig. 126 Case Study 04, Plot Isometric. (Author)

Fig. 127 Case Study 04, Master Plan. (Author)

Fig. 128 Photographs and annotations showing ways of living (Author)

Fig. 129 Photographs and annotations showing ways of living (Author)

Fig. 130 Table of information about Case Study 05 (Author)

Fig. 131 Case Study 05, Plot Isometric. (Author)

Fig. 132 Case Study 05, Master Plan. (Author)

Fig. 133 Photographs and annotations showing ways of living (Author)

Fig. 134 Photographs and annotations showing ways of living (Author)

Fig. 135 Landscape Floor Plan of La Conchita. (Author)

Fig. 136 Rainwater Collector, Isometric (Author)

Fig. 137 Rainwater Collector, Plan and Elevation (Author)

Fig. 138 Rainwater Collector, Illustration (Author)

Fig. 139 Water Module, Exploded Isometric (Author)

Fig. 140 Water Module, Plan and Section (Author)

Fig. 141 Water Module, Exploded Isometric with emphasis on materiality (Author)

Fig. 142 Water Module, Illustration (Author)

Fig. 143 Biofilter, Plan and Section (Author)

Fig. 144 Biofilter, Exploded Isometric (Author)

Fig. 145 Biofilter, Illustration (Author)

Fig. 146 Diagram of the actors considered for a Guide for Future Permanence within the Chinampería

Fig. 147 Framework of intervention of artefacts towards the implementation of the Guide for Habitability in the future

Fig. 148 Isometric with volumes for Guide for Future Permanence within the Chinampería, Isometric (Author)

Fig. 149 Exploded isometric with a house within the Guide for Future Permanence (Author)

Fig. 150 Access-Exit Bridge to the Neighbourhood La Conchita, Xochimilco, 2024. (Author)

Fig. 151 Canal marking the southern boundary between the neighbourhood and the urban area. (Author)

Fig. 152 Main access road to La Conchita, Xochimilco, 2024. (Author)

Fig. 153 Neighbourhood access road. La Conchita, Xochimilco, 2024. (Author)

Fig. 154 Neighbourhood access road. La Conchita, Xochimilco, 2024. (Author)

Fig. 155 Earthen-floor alley. La Conchita, Xochimilco, 2023. (Author)

Fig. 156 Pathway with cobblestone pavement. La Conchita, Xochimilco, 2023. (Author)

Fig. 157 Pathway next to a micro-tunnel. La Conchita, Xochimilco, 2023. (Author)

Fig. 158 Cobblestone pathway by the Hdez. Family. La Conchita, Xochimilco, 2023. (Author)

Fig. 159 Pathway next to a foundation. La Conchita, Xochimilco, 2023. (Author)

Fig. 160 Earthen pathway next to a brick wall. La Conchita, Xochimilco, 2023. (Author)

Fig. 161 Concrete pathway between crops. La Conchita, Xochimilco, 2023. (Author)

Fig. 162 Concrete pathway next to a microtunnel. La Conchita, Xochimilco, 2023. (Author)

Fig. 163 Horse and pathway. La Conchita, Xochimilco, 2023. (Author)

Fig. 164 Path between chinampas and greenhouses. La Conchita, Xochimilco, 2024. (Author)

Fig. 165 Wooden bridge over a canal. La Conchita, Xochimilco, 2023. (Author)

Fig. 166 Chinampa. La Conchita, Xochimilco, 2024. (Author)

Fig. 167 Canal running through La Conchita, Xochimilco, 2023. (Author)

Fig. 168 Canoe and canal. La Conchita, Xochimilco, 2023. (Author)

Fig. 169 Flooded Chinampería, 2023. (Author)

Fig. 170 Black-crowned night heron (Nycticorax Nycticorax). (Author)

Fig. 171 Altar to the Virgin of Guadalupe in a chinampa, 2023. (Author)

Fig. 172 Members of the Mayordomía of Xochimilco with the Niñopa. (Source: INAH).

Fig. 173 Altar to the Virgin and saints in a chinamil, 2024. (Author)

Fig. 174 Diagram of rituals and agricultural calendars of Xochimilco. (Author)

Fig. 175 Community plot in La Conchita, 2024. (Author)

Fig. 176 Community Centre, Plan and Section. (Author)

Fig. 177 Community Centre, Axonometric view. (Author)

Fig. 178 Community Centre, Illustration. (Author)

Fig. 179 Border between urban and rural land use, 2024. (Author)

Fig. 180 Bridge crossing a canal, 2024. (Author)

Fig. 181 Consolidated residential zone built over former chinampa fields, 2024. (Author)

Fig. 182 Transitional boundary between greenhouse cultivation and residential housing, 2024. (Author)

Fig. 183 Bifurcation of canals within the chinampería, 2024. (Author)

Fig. 184 Consolidated zone of greenhouses and housing, 2024. (Author)

Fig. 185 Productive chinampas, 2024. (Author)

Fig. 186 Football field built over a former chinampa, 2024. (Author)

Fig. 187 Chinampa, 2024. (Author)

Fig. 188 Chinampería with Mexico City in the Background 2024. (Author)

Fig. 189 Chinampería 2024. (Author)

Fig. 190 Canal during the dry season, 2024. (Author)

Fig. 191 Confluence of canals, 2024. (Author)

Fig. 192 San Gregorio Atlapulco Lagoon and town, 2024. (Author)

Fig. 193 Chinampería in San Gregorio Atlapulco, 2024. (Author)

Fig. 194 Farmer and his dog navigating, 2024. (Author)

Fig. 195 Farmer navigating the canal, 2024. (Author)

Fig. 196 Conservation Zone bounded by darkness, 2024. (Author)

Fig. 197 Fragmented canal as seen from Puente de Urrutia, 2024. (Author)

Fig. 198 Chinampería, 2024 (Author)

Fig. 199 Common gallinule (Gallinula galatea). (Author)

Fig. 200 Chapín, 2024. (Author)

Fig. 201 Map of the Chinampería. (Author)

Fig. 202 Canal between greenhouses and dwellings, 2024. (Author)

Fig. 203 Greenhouses, 2024. (Author)

Fig. 204 Micro-tunnels in a chinampa, 2024. (Author)

Fig. 205 Diagram with types of canals. (Author)

Fig. 206 Roldan Street and its Wharf in 1859. (Source: C. Castro & J. Campillo, 1869) (Image coloured by the author)

Fig. 207 Canal de la Viga by the Jamaica Market, circa 1900. (Source: INAH)

Fig. 208 Truck at the productive edge of La Conchita, 2024. (Author)

Fig. 209 Plan and section of a chinampa. (Author)

Fig. 210 Chinampas within La Conchita neighbourhood. 2024. (Author)

Fig. 211 Chinampas within La Conchita neighbourhood, II. 2024. (Author)

Fig. 212 Plan displaying the analysed productive chinampa. (Author)

Fig. 213 Andrés Vázquez working on his chinampa, 20204 (Author)

Fig. 214 Table of information about Case Study 06 (Author)

Fig. 215 Case Study 06, Plot Isometric. (Author)

Fig. 216 Case Study 06, Master Plan. (Author)

Fig. 217 Photographs and annotations showing ways of living (Author)

Fig. 218 Canal biofilter. Plan and section. (Author)

Fig. 219 Canal biofilter. Isometric (Author)

Fig. 220 Canal biofilter. Illustration (Author)

Fig. 221 Rainwater Collector Pond. Plan and section. (Author)

Fig. 222 Rainwater Collector Pond. Isometric. (Author)

Fig. 223 Rainwater Collector Pond. Illustration. (Author)

Fig. 224 Water Pavilion. Plan and section. (Author)

Fig. 225 Water Pavilion. Isometric. (Author)

Fig. 226 Water Pavilion. Illustration. (Author)

Abedrop L., Salomón, ed. El Gran Reto Del Agua En La Ciudad de México. Pasado, Presente y Prospectivas de Solución Para Una de Las Ciudades Más Complejas Del Mundo. Ciudad de México: Sistema de Aguas de la Ciudad de México, 2012.

Aboites, Luis. El Agua de La Nación: Una Historia Política de México, (1888-1946). 1. ed. México, D.F: Centro de Investigaciones y Estudios Superiores en Antropología Social, 1998.

Aguilar, Adrian Guillermo, and Clemencia Santos. ‘Informal Settlements’ Needs and Environmental Conservation in Mexico City: An Unsolved Challenge for Land-Use Policy’. Land Use Policy 28, no. 4 (October 2011): 649–62. https://doi.org/10.1016/j. landusepol.2010.11.002

Aridjis, Homero. Imágenes para el fin del milenio. Nueva expulsión del paraíso. 1. ed. Las dos orillas. México: J. Mortiz, 1990.

Aureli, Pier Vittorio. ‘Territory’. AA Files, no. 76 (2019): 152–55.

Aureli, Pier Vittorio, and Maria Shéhérazade Giudici. ‘Islands’. Log, no. 47 (2019): 175–99.

Bakker, Karen. ‘Water: Political, Biopolitical, Material’. Social Studies of Science 42, no. 4 (2012): 616–23.

Banister, Jeffrey M., and Stacie G. Widdifield. ‘The Debut of “Modern Water” in Early 20th Century Mexico City: The Xochimilco Potable Waterworks’. Journal of Historical Geography 46 (October 2014): 36–52. https://doi.org/10.1016/j.jhg.2014.09.005

Bernárdez de la Granja, María del Carmen. ‘La Huella Del Agua Siglo XX. El Acueducto de Xochimilco y El Sistema Lerma’. Doctoral thesis, Universidad Autónoma Metropolitana Azcapotzalco, 2016.

Bunting, Madeleine. ‘Dam Buster’. The Guardian, 28 July 2001. https://www.theguardian.com/ books/2001/jul/28/fiction.arundhatiroy

Calnek, Edward E. ‘Settlement Pattern and Chinampa Agriculture at Tenochtitlan’. American Antiquity 37, no. 1 (1972): 104–15. https://doi. org/10.2307/278892

Comisión Nacional del Agua. ‘Compendio Del Agua de La Región HIdrológico-Administrativa XIII. Lo Que Se Debe de Saber Del Organismo de Cuenca Aguas Del Valle de México’. Gobierno Federal., December 2010.

Daou, Daniel, and Elena Tudela. ‘La Ciudad de México Como Laboratorio de Diseño’. Arquine, 17 May 2021. https://arquine.com/ciudad-laboratorio/.

Bellacasa, María Puig de la. Matters of Care Speculative Ethics in More than Human Worlds. University of Minnesota Press, 2017. http://www.jstor. org/stable/10.5749/j.ctt1mmfspt.3

E. Narchi, Nemer. ‘Deterioro Ambiental En Xochimilco. Lecciones Para El Cambio Climático Global’. Veredas, Revista Del Pensamiento Socioecológico, Cambio climático y desarrollo sustentable, no. 27 (2014). https://veredasojs.xoc.uam.mx/index.php/veredas/article/view/321

E. Narchi, Nemer, and Beatriz Canabal Cristiani. ‘Subtle Tyranny: Divergent Constructions of Nature and the Erosion of Traditional Ecological Knowledge in Xochimilco’. Latin American Perspectives 42, no. 5 (2015): 90–108.

Fay, Sidney B. ‘The Idea of Progress’. The American Historical Review 52, no. 2 (January 1947): 231. https://doi.org/10.2307/1841272

Figueroa Torres, María Guadalupe, Francisco Linares Jauregui, María Jesús Ferrara Guerrero, and Jorge Castro Mejía, eds. E-Bios: Manejo Integral de La Cuenca de Xochimilco y Sus Afluentes Universidad Autónoma Metropolitana, 2014.

García Canclini, Néstor. Culturas híbridas: estrategias para entrar y salir de la modernidad. México: Grijalbo [u.a.], 2000.

González Pozo, Alberto, ed. ‘¿Hay Futuro Posible Para Las Zonas Chinamperas?’ In Las Chinampas de Xochimilco al Despuntar El Siglo XXI: Inicio de Su Catalogación, 257–66. Universidad Autónoma Metropolitana, 2010.

Greeley, Robin, ed. The Logic of Disorder: The Art and Writings of Abraham Cruzvillegas. Harvard University Press, 2016.

Haraway, Donna J. Staying with the Trouble Making Kin in the Chthulucene. Durham, UNITED STATES: Duke University Press, 2016. http://ebookcentral.proquest.com/lib/aaschool/detail. action?docID=4649739.

Hernandez, Bertha, David Manuel-Navarrete, Amy M. Lerner, and Jesus Mario Siqueiros. ‘Making Informal Water Distribution Work: Collective Agency and Self-Organization in Informal Areas of Xochimilco, Mexico City’. International Journal of the Commons 17, no. 1 (14 February 2023): 54–68. https://doi.org/10.5334/ ijc.1209

Hernández Gálvez, Alejandro. ‘Una Ciudad En Un Lago: Ecología, Política y Crecimiento Urbano’. Arquine, 7 February 2019. https://arquine.com/ ciudad-lago-ecologia-vitz/

Holston, James. ‘Insurgent Citizenship in an Era of Global Urban Peripheries’. City & Society 21, no. 2 (December 2009): 245–67. https://doi. org/10.1111/j.1548-744X.2009.01024.x

Izazola, Haydea. ‘Agua y Sustentabilidad En La Ciudad de México’. Estudios Demográficos y Urbanos 16, no. 2 (47) (2001): 285–320.

Landázuri Benítez, Gisela, and Liliana López Levi. ‘San Gregorio Atlapulco, Xochimilco: Frente a la vorágine modernizadora y urbanizadora’. In El México bárbaro del siglo XXI, edited by Carlos Andrés Rodríguez Wallenius and Ramses Arturo Cruz Arenas, Primera edición. Colección Teoría y análisis. México, DF Culiacán de Rosales, Sinola: Universidad Autónoma Metropolitana, 2013.

Latour, Bruno. Facing Gaia: Eight Lectures on the New Climatic Regime. Cambridge, UK ; Medford, MA: Polity, 2017.

Latz, Laura Camacho, Sophie Laukemper, Katharina Christenn, and Axel Timpe. ‘Chinampas of Xochimilco: Urban Agriculture from the Ancient Americas Until Today’. In Urban Agricultural Heritage, edited by Frank Lohrberg, Katharina Christenn, Axel Timpe, and Ayça Sancar, 158–66. De Gruyter, 2022. https://doi.org/10.1515/9783035622522-020

López Ramirez, Eduardo, Daniel Murillo Licea, Jose Luis Martínez Ruiz, and Pablo Chávez Hernández.

Alternativas Viables Para La Provisión de Servicios Básicos En Áreas Periurbanas: Lecciones Desde Xochimilco, Ciudad de México. Jiutepec, Morelos: Instituto Mexicano de Tecnología del Agua, 2015.

Méndez Cárdenas, Sergio A., Romero Malpica Francisco J., Ricardo Ortiz Salas, Alejandra Verde Medina, Tadeo Monterrubio Rubio, María G. Méndez Cárdenas, Diego Reyadas Prado, and Alejandra Meléndez Herrada. Chinampas de México, Sitio Patrimonio Mundial: Biodiversidad y Cultura. Vol. I. México, D.F.: Universidad Autónoma Metropolitana, 2016.

Merlín-Uribe, Yair, Carlos E. González-Esquivel, Armando Contreras-Hernández, Luis Zambrano, Patricia Moreno-Casasola, and Marta Astier. ‘Environmental and Socio-Economic Sustainability of Chinampas (Raised Beds) in Xochimilco, Mexico City’. International Journal of Agricultural Sustainability 11, no. 3 (August 2013): 216–33. https://doi.org/10.1080/1473 5903.2012.726128

Moya Gutiérrez, Arnaldo. ‘Historia, arquitectura y nación bajo el régimen de Porfirio Díaz. Ciudad de méxico 1876-1910’. Revista de Ciencias Sociales (Cr) III–IV, no. 117–118 (2007): 159–82.

Mtra. Delia Pérez Lozano, Dra. Judith Cavazos Arroyo, and Mtro. Alejandro Melchor Ascencio. ‘Abandoning the Catholic Religion in Mexico: Leading Factors’, 2009. https://doi.org/10.13140/2.1.1360.5129.

Ono, Yōko. Grapefruit: A Book of Instructions + Drawings. New York: Simon & Schuster, 2000.

Ortega Olivares, Mario. ‘Familias y Patios En Los Pueblos Originarios de Xochimilco’. In Cuadernos DEC: Estudios de Familias, edited by Armando Ortiz Tepale, 1st ed. México, D.F: UAM Xochimilco, CSH, Educación y Comunicación, 2018.

Paz, Octavio. El laberinto de la soledad. 2. ed., 1. reimpr. Colección popular 471. Madrid: Fondo de Cultura Económica-España, 1996.

SACMEX. ‘Sistema de Aguas de La Ciudad de Mèxico’. Ciudad de México: Gobierno de la Ciudad de México, 2019.

Steinberg, Philip, and Kimberley Peters. ‘Wet Ontologies, Fluid Spaces: Giving Depth to Volume through Oceanic Thinking’. Environment and Planning D:

Society and Space 33, no. 2 (April 2015): 247–64. https://doi.org/10.1068/d14148p

Tellman, Beth, Julia C. Bausch, Hallie Eakin, John M. Anderies, Marisa Mazari-Hiriart, David ManuelNavarrete, and Charles L. Redman. ‘Adaptive Pathways and Coupled Infrastructure: Seven Centuries of Adaptation to Water Risk and the Production of Vulnerability in Mexico City’. Ecology and Society 23, no. 1 (2018): art1. https://doi.org/10.5751/ ES-09712-230101.

Tellman, Beth, Hallie Eakin, Marco A. Janssen, Felipe De Alba, and B.L. Turner Ii. ‘The Role of Institutional Entrepreneurs and Informal Land Transactions in Mexico City’s Urban Expansion’. World Development 140 (April 2021): 105374. https://doi. org/10.1016/j.worlddev.2020.105374

Ulloa, Astrid, and Hugo Romero-Toledo, eds. Agua y disputas territoriales en Chile y Colombia Primera edición. Biblioteca abierta : colección general: perspectivas ambientales 476. Bogotá: Universidad Nacional de Colombia, 2018.

Urry, John. Mobilities. Cambridge: Polity, 2007.

Vázquez Mendoza, Diana Laura, Luis Zambrano, Carlos Uriel Sumano Arias, Miguel Ignacio Rivas Bejarano, and Marisa Mazari-Hiriart. ‘Etiqueta Chinampera. Guía de Etiquetado Ecológico Para La Producción Agroecológica En Chinampas-Refugio de Xochimilco.’ Laboratorios de la UNAM, El Claustro de Sor Juana y personas chinamperas, September 2022.

Von Humboldt, Alexander. ‘Capítulo VIII - Nueva España’. In Ensayo Político Sobre La Nueva España. Paris: Paul Renouard, 1827.

Wigle, Jill. ‘The “Graying” of “Green” Zones: Spatial Governance and Irregular Settlement in X Ochimilco, M Exico C Ity’. International Journal of Urban and Regional Research 38, no. 2 (March 2014): 573–89. https://doi.org/10.1111/1468-2427.12019

Zambrano, Luis, Rubén Rojas, and Cristina Barros. Xochimilco en el siglo XXI Primera edición. Turner noema. Ciudad de México, CDMX: Turner, 2021.

‘Programa de Gestión Integral de Los Recursos Hídricos, Visión 20 Años’. Ciudad de México: Sistema de Aguas de la Ciudad de México, October 2012.

United Nations Human Rights Office of the High Commissioner. ‘UN Expert Calls on Mexico to Urgently Expand and Improve Water and Sanitation Provision for All’. Press Releases, Special Procedures, 15 May 2017. https://www.ohchr.org/en/press-releases/2017/05/ un-expert-calls-mexico-urgently-expand-and-improve-water-and-sanitation?LangID=E&NewsID=21618

‘Chinampa Agricultural System of Mexico City, Mexico. A Proposal for Designation as a Globally Important Agricultural Heritage Systems (GIAHS)’. Mexico City: Government of Mexico City. Authority of the World Natural and Cultural Heritage Zone in Xochimilco, Tláhuac and Milpa Alta, 7 July 2017.

‘Diagnóstico, Logros y Desafíos’. Ciudad de México: Sistema de Aguas de la Ciudad de México, 2018. https://issuu.com/helios_comunicacion/docs/ libro_blanco-sacmex_2018

‘Asentamientos Humanos Irregulares: Diagnóstico, Prospectiva y Estrategia de Atención Integral’. Ciudad Inovadora y de Derechos. Gobierno de la Ciudad de México, 2022.

INTERVIEW 01
Félix Hernández Rivera, Andrea Hernández and Reyna Hernández
INTERVIEW 02
Andrés Vázquez
INTERVIEW 03
Renato Flores
INTERVIEW 05
Miguel Poblano
INTERVIEW 04
Liliana Ángel

INTERVIEW 01

September 21, 2023

Félix Hernández Rivera (FH), Andrea Hernández (AH), Felix’s wife, and Reyna Hernández Serralde (RH), Felix’s mother-in-law

Inhabitants of La Conchita

(01) Félix Hernández opens the conversation with this reflection: How does a farmer dress? With his sandals and a little hat, all sunburned, dark-skinned, just like me. And a soccer player, with his gala uniform, well-dressed, posing. Who do you think gets more applause? The soccer player, of course, because he is an important person, someone who has excelled in his sport. But who do you think feeds him? The farmer. With the farmer, the soccer player is good due to good nutrition. They should applaud the farmer, the one who nourishes the people and the citizens, and not the soccer player, who becomes famous for what he does, a highly renowned sport. And the farmer, who recognises him? No one. On the street, they see a farmer and an important person, and they greet the important person. The farmer should be more important because he is behind the production, generates life, and contributes to the people’s well-being. Without that farmer, man does not survive and does not eat well. Imagine when the world is full of cities and no fields to sow. There will be no more farmers. There will be no one to feed the world.

LY Thank you very much for taking the time to have this conversation. Could you please tell me your name and where we are?

FH My name is Félix Hernández Rivera. We live in the La Conchita neighbourhood in San Gregorio, Xochimilco. We are farmers dedicated to the production of vegetables and ornamental plants.

LY Have you noticed that the younger generations no longer want to work in the field?

FH Yes, it has happened. There are many professionals here. For example, this town (San Gregorio) is full of teachers, graduates, and more teachers, and their fields were all abandoned. They hired people from outside, but it wasn’t the same. There were times when the workers themselves stole the tools, and they got disappointed. So when it was time for them to retire…

RH The first ones to come here (San Gregorio) to work were from Toluca (State of Mexico) and then from Hueyapan (Puebla). Before, everyone used to work what belonged to them.

LY And around what year did the first native settlers from Toluca start coming?

RH During the revolution, it’s been a long time.

LY Are you from Xochimilco?

RH Yes, for a lifetime.

Before the train arrived, the little guajoloteros trucks were the only way to get to Mexico City. There were no cars; only those who really had money had cars.

Here where we are, nobody lived; this was all fields to grow food. (02) LY And where did people live?

RH We had the house in the centre of San Gregorio.

LY So people lived in the town (San Gregorio), and here (La Conchita), did they only come to work?

RH Yes, people came to work during the day and returned home.

LY Were there houses on the chinampas?

RH No, there was nothing. In all the surroundings, the first little houses here belonged to my cousin and my comadre Blanca. They were the first to arrive. There were no houses here, only canoes. The canoes were one meter wide or half a meter, depending on the ditch. There were three-meter canoes where the vegetables were placed.

LY And could you only reach it by canoe?

RH We took poppy seeds to the centre of Xochimilco; they were sold as flowers, gardenias, and snapdragon. We walked from here (San Gregorio) to the Xochimilco market. If someone planted romaine or Italian lettuce, that was carried with baskets and wooden crates. Cauliflower was also carried to Jamaica (Jamaica Market in Mexico City) by canoe. People here didn’t even know what pants were; they

walked in shorts, underwear, and a white shirt (made of cloth), and that’s how the Indian walked with his hat.

LY Do you remember seeing people dressed like that as a child?

RH I saw them.

LY Who taught you to cultivate?

RH Our father taught us. He liked yoking (the joint work of two oxen or mules pulling a plough to till the land) because tractors weren’t used at that time. It was only later that tractors were introduced, but here, animals were used.

(03) LY Around what year did the tractor come in use?

[Félix intervenes] About twenty years ago.

LY When you were a child, do you remember the relationship between Mexico City and Xochimilco?

RH San Gregorio and Xochimilco were separated from the City, and nobody would go to Mexico City to buy things because people had to walk (to Mexico City).

LY And how did you get to Mexico City?

RH We crossed the Urrutia bridge, a giant stone bridge connected to the road leading to the City.

LY And could you also get there by water?

RH You left from Xochimilco on canoes that went to the City.

LY How do you remember seeing the City getting closer and closer to Xochimilco until everything merged?

RH They started building on the productive lands and building small rooms. By the time we realised it, everything was already populated. The railway was also removed.

LY What was the relationship with the countryside like when you were a child?

RH Well, we worked on the land where our house stands now, and across the street, Cauliflower, marigold, radish, and all kinds of vegetables were planted here.

(04) LY And did the chinampa work differently than it does now?

RH Before, it was muddy; my father would get tulancho, which we call tule (Schoenoplectus acutus), to tie bundles of vegetables. If it was muddy, they made bundles of tule and buried them to fill the land.

[Félix intervenes] All that material was taken from the same canals.

A chinampa that flooded they threw in all the aquatic lilies, mixed with the leaves, the tule, and the land would rise. During the rainy season, many lands flooded, so they followed that procedure, took out all the lilies, and with the mud they extracted, the chinampa level rose.

For example, after the earthquake (1985), many chinampas were flooded due to the movement. The underground settled, and the floods began. There was a need to build dams. What are these dams?

For example, in the upper part, Canal Nacional, the main canal that supplies water to this entire area (San Gregorio), as there were cracks, all that water flowed down and away.

I don’t know how many centimetres Mexico City descends each year. So, they began constructing dams with costaleras (barriers made of sandbags) so that the level of the upper part would rise. They added pipes so the lower part could be supplied so that no area ran out of water, and everyone had the opportunity to irrigate their production.

LY That started after ‘85; before that, there were no problems?

FH No, because all of Xochimilco was at the same level. And with seismic movements, cracks formed, and the water leaked out. Due to water scarcity, everything extracted from the underground is depleting. So there are settlements; water is running out. The citizens in this southern part suffer greatly due to the lack of water. There is a line from here (San Gregorio) to Mixquic of wells that supply Mexico City and part of the State of Mexico. The government had created a line to extract more potable water; they were missing a very short stretch to connect and start extraction when the citizens noticed. That’s why access to the town of San Gregorio was closed, an event that became widely known and viral. We closed the entire town in May (2023); it was closed between San Gregorio and Santa Cruz. What is the government afraid of in San Gregorio? They sent riot police and the National Guard. We, a small town, yes, spirited because we didn’t allow that construction to finish. That water belongs to us.

We know the pipes’ lines; they are marked differently for rainwater, drainage, and potable water. Potable water has the blue line. The government claimed this new infrastructure was to prevent flooding in the Caltongo area, but someone realised and said, “This is for drinking water.” And they were very close to connecting the last bits and getting started!

The town stood guard and prevented it, but we also suffered a lot with the riot police... we are defending what is ours. What will happen to future generations? The children will suffer a lot. But the government doesn’t understand that; they want to make money by extracting drinking water from here, from the high areas, and taking it to private companies because they generate a lot of money, and we don’t.

[Félix asks his mother-in-law, Reyna] Some time ago, do you remember the government saying that water wouldn’t be paid for here in Xochimilco?

RH That’s what they said.

FH But they broke that agreement; they started charging for water.

RH Water wouldn’t be paid for because they took the springs.

FH They piped them.

LY When was that agreement?

FH That agreement was about 50 years ago or more.

RH We used to have water in the streets (public hydrants) like the one at the kilometre (reference in San Gregorio). That tap has been there for years. We used to pass by from the chinampas and get drinking water there. It’s still there. Whether there’s water here or not, it comes out there. When there’s no water in the town, we go there to get water. The line is very long because everyone wants water.

LY How does the water supply work in your house?

FH By pumping, water comes from the town, flows through pipes, passes over the avenue, and there are connections for each area (internal divisions in irregular zones). They connect to secondary pipes from the main line, and then branches are set up, which are the hoses.

LY And does the government install that?

FH It’s partly the government and partly us. We have meetings to organise ourselves. For example, we will buy this hose to supply all of us so everyone has water. – Okay, how much does it cost? We need to get a budget. – It comes out to this much: how much does each of us contribute?

LY And do people usually come together?

FH Yes, we are quite united.

(05) LY Is this idea of San Gregorio as a very united and spirited town something that has always been like this?

FH Always!

LY And what is the reason?

FH Because the government doesn’t understand the people’s ideas. This might go back to the time of the Aztecs. There’s a demonym for those from San Gregorio called chicuarotes Many people say, ‘damn chicuarotes.’ – Why are they called chicuarotes? – Because they are dirty, foul-mouthed, and tough. Tough because they defend what’s theirs, dirty because they work in the fields. But that’s not the only reason; they were called chicuarotes because of a chilli that started being produced here at the time of the Aztecs. That chilli is native to San Gregorio. Chicuarote comes from Nahuatl – what does it mean? – thick-skinned chilli. Right now is the season because they are in season. Chicuarotes can be a derogatory term used for the people of San Gregorio.

LY And within San Gregorio, is there pride in being called chicuarotes?

FH Yes, although many people don’t understand it. They say, “What’s up, chicuarote?” – “What’s up, my chicua?” I feel proud to be called chicuarote People from Xochimilco are called carpas because there used to be many fish carp. Each town has its nickname.

LY What are the indigenous towns of Xochimilco?

FH San Gregorio, Santa Cruz, Nativitas Santa Cruz, San Luis Tulyehualco, and others in the other municipalities. The towns still have their traditions and customs. For example, many festivals are held here. San Gregorio is the town that celebrates the most, burning a lot of fireworks with a lot of pollution. Then, it talks about the origin of Xochimilco

(which is not relevant; it’s part of it) and also about how chinampas were built. Regarding chinampas Previously, there were no pumps for irrigation; they irrigated using buckets and watering cans. And if they planted a lot, imagine how many comings and goings they would have to make because they had to draw water from the canal to irrigate the entire production.

LY Wasn’t the chinampa just floating over the water irrigated by itself?

FH Sometimes, no. When droughts came, the water level dropped, and they had to irrigate. On the other hand, during the rainy season, they could sometimes flood, and they had to raise the level again with mud. They took out mud for plastering. What does chapín mean? It’s a part of the mud that has already rotted from the canal. There wasn’t as much pollution before as there is now. With so many people living here, they throw in so many things that the mud already has many metals that harm the body, like lead.

As the chinampa area grew, many people built their ranchitos (small cabins on the chinampas) to manage the production and store the tools. At first, there were very few houses here (La Conchita), but ranchitos were used to shelter when it rained, protect from the sun, and rest. In the evening, people would return to their homes. (06) LY And how were those ranchitos? How were they built?

FH They were made of branches of tule that they used for their constructions based on pure sticks. The floor was made of earth, with only one room. Over time, many people started coming to live here. At first, people made their little houses out of sheet metal.

LY And when would that have been?

FH About 60 to 70 years ago.

LY If people had their houses in the town, why did they start coming here?

FH Families were growing, and there was no longer enough space. So, parents would tell their children: -You know what? I have a little chinampa there. Go there.” That’s how it was with us; my motherin-law told us, why don’t you go to the chinampa over there, practically kicked us out (jokingly), and that’s how we started building a cardboard house. Over time, working with sacrifices, we built a brick house and surrounded it with iron sheeting. That was about 30 years ago.

AH Nobody lived here; only the animals were here, and my mom, my sister, and I used to come to feed the animals at 10 or 11 at night. There was nothing but Doña Blanca’s house. When I was a child, we used to come and play in Rosis’ chinampa, which was the entire space of my grandparents which was a planting chinampa

LY How far was it from your house in the town?

AH A quarter of an hour because we used to walk. There were already paths.

[Luis to Reyna] Did you have paths as a child?

RH No, only with canoes; you could only get there by canoe. LY And in what year did the paths start?

RH It must have been about 60 to 70 years ago. Here is where the entrance to the house is now, where we tied the canoe. There were one-meter and three-meter wide canoes. The wide one was for carrying the cut vegetables, and the small one was for transporting ourselves only. We took the vegetables to the Jamaica market to sell. When I was a girl, everything was taken walking to Jamaica market, and then with the roads, there was a man who lent his vehicle and took everything by car; there was no need to walk anymore.

(07) LY What do you remember being taken from the canals for food?

RH Fish, axolotls, frogs. Now, there’s nothing left; they say they’re going fishing, but the water is dirty; there’s nothing left.

LY In what year do you think there stopped being good fish and axolotls for consumption?

RH In the time of Porfirio Díaz, there were still some, and from then on, everything began to be lost. Now everything is lost. Now, we all go to the tortillería; nobody makes their tortillas anymore. They won’t let us burn firewood anymore because it smokes; before, there wasn’t even gas; a log was thrown into the pot, and everything was cooked. Before, people ate better; they ate a lot of vegetables that were harvested. People don’t get sick like they do now; now we don’t.

INTERVIEW 02

January 8, 2024

Andrés Vázquez Gómez (AV) Farmer and resident of La Conchita

(01)

LY First of all, thank you for your time for this conversation and the walks and visits we have taken throughout the day. I would like to start the conversation by asking: Where are we, and what is your name?

AV My name is Andrés Vázquez Gómez. We are in the Paraje Axayopa, which is like a neighbourhood, but here in San Gregorio, they are called parajes. It’s a space where producers and neighbours interact. If you come to San Gregorio, the chinampería is divided into parajes, for example, Axayopa, Potrero, La Fábrica, Puente de Urrutia, Tlilac, and La Espejera. It makes it easier to locate. Here we are in Axayopa.

LY Is La Conchita part of Axayopa?

AV No, it’s separate. La Conchita belongs to the paraje La Fábrica.

LY Do you live in La Conchita?

AV That’s right. The boundary is the walkway, the path that goes down from my house.

LY After your plot, does La Conchita end?

AV No, there are still about twenty more metres this way (east), and then it changes to this paraje In fact, there is no exact boundary. The former landowners knew more precisely where the parajes ended; nowadays, it’s just an approximation, like a reference.

LY Does Axayopa have any meaning?

AV Axayopa is Nahuatl and means “water below.”

LY Are you originally from Xochimilco?

AV No, I am originally from the state of Puebla, the northern Sierra in Zacapoaxtla. A small community called Soactepan belongs to the municipality of Xochitlán. I used to work in construction and, later on, ended up working here by chance, and for this, I will always be grateful. When I arrived here, I rested for 15 days and was lazy until I decided it was enough. I went out to walk and looked for work. I asked a neighbour: Hey, do you have work? And he said: Yes, but you won’t like it. – Why I asked. He said: you will get dirty here, with the heat and the air, working from six in the morning to eight at night; I’ll give you lunch, dinner, and a soda. I’m telling you, you won’t like it”. I said: It’s not about liking it or not; I need work. He said: I’ll give you a week of work, and then we’ll see; the salary is this much. I said: The main thing is to have something to eat. Blessed God, I will always be grateful; I worked for a year and a half with this guy. This was fifteen years ago, the age of my daughter today. Afterwards, a man who has since passed away said: Andrés, it seems you want to excel; I’ll allow you to work with me to a certain extent. That means he provided the land, equipment, and plastic (micro-tunnels), and I provided the effort and work. I said: I really don’t know anything about agriculture. He said: But you know how to work; you have the desire; I’ll watch and guide you. Blessed be God, everything went very well. After a year, we sat down to talk. I asked him: Don Luis, what do you like about my way of being? These talks help me improve. He replied: Keep putting in effort; everything is going well. Thanks to that start, I now have several rented chinampas which help me support my family.

(02) LY You mentioned before: “Thank God, I ended up in good hands”. How did you arrive in San Gregorio?

AV My wife worked here in San Gregorio for about a month. I used to work in construction around Nezahualcóyotl, Tlanepantla, and Ecatepec and even reached Huehuetoca (northeast of Mexico City and the State of Mexico). During that time, I used to visit her; we weren’t married yet. She told me about the people working in this (agricultural producers). I used to visit her every eight days; during that time, my daughter was born. I would arrive on Saturdays at eleven at night and spend Sundays sleeping because I was exhausted. My wife told me I wasn’t giving enough time to my daughter. She said: make a decision, work, or your family. If you continue like this, you’ll lose us because you’re not present in our lives. So, I decided to look for work around here, but I never thought I would settle in so well.

LY Before that moment, had you ever worked in agricultural production?

AV Not entirely, although I grew up in Puebla with my father, who worked in agriculture a few months a year. My father works growing corn and beans, but it’s only in the rainy season. The advantage here (San Gregorio) is pressurised irrigation with water from the canals, allowing year-round production.

LY What would you say is the difference between your fieldwork experience growing up, working with your father, and the work in Xochimilco?

AV I might sound drastic, but I believe it’s the mindset. You can work and produce there, but only to get by in life. Since it’s seasonal and relies on rain, it may or may not go well, and you’ve invested a whole year. Here, the advantage is having water. If you finish harvesting today and want to excel, you can start the next crop tomorrow by planting seeds. When this becomes your source of income, and your family depends on it, you have to put in the effort. There is no other option. That’s the difference. In Puebla, on my ranch, the production isn’t guaranteed, you depend on other income, like construction. If corn succeeds, you’re in luck, but don’t rely solely on it.

LY Regarding the tradition of chinampa farming, what is unique about agriculture here?

AV Something traditional here is the chapín. It’s an ancestral job.

LY What is chapín?

AV Chapín is the mud extracted from the canal. Sediments form in the water from everything flowing into the canal. Using a tool called cuero, like a bucket with a mesh at the bottom, we move it along the canal floor to extract the mud. Typically, it contains stones, branches, and trash that needs cleaning. This mud is emptied into the canoe and taken to the chinampa On the chinampa it’s placed in what’s known as an almácigo, a small plot of land with the necessary height determined by the plant to be sown. If it’s cabbage or cauliflower, which takes four to six months, you need a thicker mud (thick almácigo) of six to seven centimetres. On the other hand, if it’s purslane or cilantro, it can be four or five centimetres because it takes less time.

(03) LY Did you have to learn specific agricultural production techniques when you arrived in Xochimilco?

AV That’s correct.

LY Does working like this make more sense to you than the seasonal way you knew in Puebla?

AV Yes, I’ve done well here. If you want something in life, you need to put in effort and sometimes lose hours of sleep. A chinampero’s work can be 16 to 20 hours a day, working from six in the morning until seven in the evening, taking a break, and sending the produce to the Central de Abastos (Mexico City’s main market), where everything is sold, heading there at eleven or twelve at night. If sales were good, there was demand; then, the workers returned home around three or four in the morning. However, in the season, sales can extend due to supply and demand, and they might be there until six, eight, or even ten in the morning. When it hits ten, sales can’t continue because the auction location becomes a parking lot and opens at ten.

Everything that’s left goes to the container.

LY And is that product no longer used?

AV Generally, no. Some people have space to store their produce, but most don’t, and they have to go back to the chinampa. If you have workers, you must be back by eight in the morning to tell them what to do. That’s why the Central de Abastos has a certain amount of products that go to waste. It is tons every day. It usually happens more when there is overproduction. For example, in this season, there is very little surplus from October to March (winter).

LY In the auction sales area at the Central de Abastos, how many of the products come from San Gregorio and Xochimilco, and how many are from other places?

AV Only from here in San Gregorio, around 60 tons are easily extracted daily.

LY Tell me more about the process so I can understand the entire chain.

AV When my production is ready, I notify the truck driver who provides the service to transport my product. On that day, I start at

eight in the morning, for example, for purslane, which comes in rolls of 20 kilos. They are tied with a special base, brought near the canal, washed and soaked, and left loaded in the canoe. At four in the afternoon, they are soaked again to revive the rolls, and by six in the evening, everything has to be ready in the canoe and moved along the canal about 200 meters south, reaching the dock. That’s where the truck arrives to load. I and my workers have to bring the rolls to the sidewalk. Around seven seven-thirty in the evening, the truck arrives. They count how many rolls I am delivering; the driver notes it down because he has products from various producers. The driver goes around collecting from all the parajes of San Gregorio since they already have established clients, which are the producers. Around nine at night, the truck heads to the Central de Abastos. It arrives at around eleven at night, unloads the merchandise, and separates it by producers.

You have to go there and find your product. For example, if it’s all purslane, you have to identify it by the quality of the production, by the type of tying, and whether the knot is made upwards or downwards. Everyone knows what their product is.

After that, each person has to take care of their own sales; the truck is only the transportation service.

After the pandemic, there were many changes. For me, now it’s more productive to hire someone who goes to sell, and then I can rest in the early morning and get some sleep. The person tells me how much was sold, and he takes between 10% and 20% of the profit.

There are times when he says, you know, Andrés, there were no sales. Trust matters a lot there. If I don’t trust him, I’d rather not hire him and go sell myself. The person earns around 40-50 pesos per roll of purslane, but this way, I wake up fresh the next day because I’ve already rested.

LY Does all of your production go to the Central de Abastos?

AV 70% of my production does. The other 30% is local sales. There’s a man who comes to buy radish and purslane from me. I also have sales for a Foundation. The advantage is that they understand the product’s added value from San Gregorio. I’ve always said it’s not just about purslane; you’re selling a story and contributing to the stability of the temperature of Mexico City and climate change.

In the Central de Abastos, you compete evenly with all the producers. The buyer is not interested in where your product comes from or how you produce it; the only thing that matters to them is the price. On the other hand, when you approach someone who adds value to the product, you sell the “chapín,” the story, the time. By buying my product, you’re contributing to maintaining the temperature of Mexico City.

(04) LY So now there’s also a new market interested in the product’s added value?

AV People have started looking at San Gregorio differently in recent years.

LY Who would you say is interested in this value of chinampa production?

AV Foundations, civil associations. Since 2014, agronomists have approached us through these organisations with good intentions to help. Sometimes, for the chinamperos (chinampa’s farmers), it’s difficult to accept that help because we’ve been producing in a certain way for years; it’s very complicated to uproot something, but over time, we realise that there are certain things they are right about, and things can be done better. Similarly, agronomists learn from us and our practices.

LY Do you think there would be a possibility for a circular economy within La Conchita where a portion of your production could be sold right here?

AV It already happens; the market in the centre of San Gregorio is supplied by the chinampas. Organic markets are also turning to San Gregorio; in that case, certifications must be met; it’s a whole process.

LY What certifications exist?

AV The PUMA focuses on the good use and management of completely agroecological agrochemicals and The Green Seal. I am in the certification process.

LY So, there is local consumption of chinampa products in San Gregorio with sales in the market. Is there a similar space within La Conchita?

AV No, people from La Conchita go to buy at the general market in San Gregorio.

LY Would having a space for product sales within La Conchita work?

AV Yes, later on. The urban sprawl continues, and more houses and people live in La Conchita. Sometimes, people prefer to buy here without going to the market due to time constraints.

(05) LY Moving on to another topic, you’ll tell me if this approach is correct… I perceive that there are three types of relationships with the territory of La Conchita. People who live here and work in the chinampa, those who only live here but no longer work in agricultural production, and people who do not live here but come daily to work.

AV That’s correct; that’s how it works.

LY Of the producers who work here, what percentage do you think are people who live here?

AV Only 10-20% live inside here; the rest, 70-80%, come in and out daily. They live in the urban areas of San Gregorio and Xochimilco.

LY Of those who come in and out daily, how many do you estimate are initially from the Xochimilco area, and how many are from other regions of the country?

AV Of the 70-80% I mentioned, 50% come from the State of Mexico, Hidalgo, Puebla, and other places. The other 20% are natives of San Gregorio, many of them older individuals who have retired from a job in the city and, in retirement, decided to work their chinampas more as a hobby because they enjoy spending time on their lands.

LY Why do you think people originally from Xochimilco have stopped working the chinampa, making room for farmers from other regions?

AV It’s a phenomenon that is difficult to explain, but many times, people from San Gregorio have had the opportunity to study a career, and there’s not enough time for them to practice their profession while working their chinampas Chinampa work requires 100% of the time, which is why the chinampas have been neglected. Many owners have decided to rent their chinampas, and when they are older and retire, some decide to start planting and working their chinampas, but that’s after 30 or 35 years.

LY How do you perceive the new generations? Is there an interest in chinampa farming?

AV Some young people show interest, but definitely not 100%. Many youngsters already have other sources of income and don’t dedicate much time to production, and that’s not feasible.

LY From your group of chinamperos in the area, are many from outside Xochimilco?

AV Yes, many come from Hueyapan, Puebla. There’s a large community of people originally from there. Many go there to visit for two or three days and then return.

(06) LY Why do you think there’s such a distinctive dynamic with people from Hueyapan in San Gregorio?

AV That’s a good question; I believe it happened over time. Initially, a few arrived, and word spread. Nowadays, around 40% of chinampa producers in San Gregorio are from the state of Puebla. Four years ago, there was a count of chinampa producers in San Gregorio, and there were around 400. Today, I estimate we are around 1000. Of those outside, the ratio is practically 2 from Puebla and 1 from the State of Mexico.

LY Do you know how many producers work in this area (Axayopa)?

AV Around 120 producers. Most of them live outside the chinampa area.

LY Of the residents of La Conchita, do you know how many people work in chinampa farming?

AV Around 40%.

LY In the 15 years you’ve lived in La Conchita, what changes have you perceived?

AV Before, you would see rubbish bags in any chinampa along the road. This has been addressed; for example, with the government, you can request a truck, and a cleaning day is organised to remove all the rubbish. As a producer, you must know that plastic (greenhouses) has

a life cycle. Before when that happened, it was thrown into the ditch, and that was it. Today, there’s more awareness of taking out the garbage and putting it in the truck, both by producers and neighbours.

On Sundays, a rubbish truck arrives outside La Conchita; people put their trash in wheelbarrows. Before, everything went directly into the ditch. It’s also true that there were more ditches before, and there wasn’t much awareness.

LY From my understanding, water is crucial for you, right?

AV Exactly, without water, there’s no life.

LY How have you perceived the relationship of La Conchita’s residents with water and the canals in the 15 years you’ve lived here?

AV There are clandestine sewage discharges, which are challenging to tackle. The municipality is aware, but it’s very difficult for them to come and close the discharges in the houses.

With the government, everything works by votes and electoral control. If officials close a house’s discharge, that means two or three fewer votes for them in the next elections. It’s a tug-of-war between the government and the inhabitants, but we get caught in the middle as producers.

I believe that, with inhabitants who have a clandestine discharge, the government should not come in an authoritarian way only to close it but should come up with alternatives. Those who live here do so out of necessity; where will the discharge go? Alternatives need to be considered.

(07) LY How do control dynamics between authorities, residents, and producers work in the chinampería, which is classified as a Conservation Zone, for example, in La Conchita?

AV We are starting in 2024; this year, there are elections. The candidates for the mayorship, local and federal deputies, etc., will soon come in. They will begin their rounds and see what is needed. The authorities in power start to see what is lacking, be it lighting, construction materials, etc.

I believe these dynamics could be better channelled. For example, with politicians’ support, solar panels, solar heaters, bowls for dry toilets, and water collectors could somehow contribute to ecology. But that doesn’t happen; it’s just my idea of what would be ideal.

The reality is that they have control over the population through elections.

LY How do authorities exert pressure in these processes?

AV It’s a chain; the mayor has a neighbourhood or area liaison, who is the representative. The mayor called for a political rally and requested residents to attend his event. If the representative says they can’t attend, the mayor or the authorities threaten to cut off water or electricity. That’s how it’s managed and will continue to be managed, and it happens more during election seasons. The candidates and the mayors I’ve encountered know La Conchita well; they have been on tours with them and know the chinampería.

Chinampa farming and politics shouldn’t mix; one always comes out burned in politics.

As a representative of the producers in the Axayopa area, I have to be careful because trust is being lost. For example, the municipality promised me five new canoes, but in the end, they only gave me one, and the authority told me: You know what, Andrés, just keep it for yourself. -I can’t accept it because trust among the other producers is being lost. Politics divides friendship and camaraderie among us. Maybe I say that I won’t fall for their games, but there will be someone who does. The authorities have been dividing chinampa producers for about five years. Before, the areas were very united; 20 to 30 people would gather to do communal work. The municipality should do certain maintenance work in the chinampería, for example, in the canals, but it doesn’t always happen. We, as producers, don’t wait for them to do everything, and, as it’s our need and source of employment, we organise ourselves once a month here in the area to do communal work and clean the canal.

Today, as the representative of the Axayopa area, I oversee water management, specific needs, and any canoe needed. The producers in the area gather, and the representative is chosen through a vote. I was elected in 2019 and will finish in October 2024.

Previously, some representatives stayed for six years or more and didn’t do anything but continue to receive resources from the government; later, they brought their cars and didn’t even work. When they chose me, they gathered about eight days before all farmers originally from San Gregorio. Still, some of them said it had to be an inclusive election and consider all producers, even if we weren’t originally from here. When I was elected, it was temporary; after a year, some local producers began to be dissatisfied. I arrived and introduced myself at a meeting with a large crowd. Some producers started saying that I hadn’t done anything and that I was only looking out for my personal benefits. I told them, “Good afternoon; for those who don’t know me, my name is Andrés Vázquez Gómez. I was elected a year ago temporarily, but don’t worry, if it’s about the representative position, here it is, and choose whoever suits you best to manage. If at any time I can contribute with an idea or knowledge or some contact, I’m here to support.” That’s what I said.

The group started getting agitated. Some favoured me, but some producers from San Gregorio didn’t want me because I’m not originally from here. Until a local producer said, “Folks, let’s not get caught up in the native or non-native debate; let’s focus on ideas, on how we work.” Three contenders were chosen, and in the end, I secured 60% of the votes from 80 producers.

LY How many producers are there in total in the area?

AV We are 120; 40 didn’t participate. There was some initial conflict because someone from outside (Xochimilco) was chosen; things started calming down. Some even told me to go back to work in my hometown. I envision all the producers working together, seeking solutions collectively rather than dividing ourselves. Besides my work in the chinampas I’ve been in this role for almost four years.

These days, CORENA (Commission of Natural Resources and Rural Development) has divided us through annual financial support given to each producer. They also establish operational rules and send technicians to each area. Meetings with them are held every 15 or 20 days for proper production management and cultivation techniques. This programme has been running for about two years. While the resource is beneficial, it has also created division. Before, everyone used to work together on communal tasks; now, some who don’t receive the resource say, “Why should I participate in communal work if I don’t get the resource?

LY Does the representative position for the paraje consume much of your time?

AV Honestly, it does, but I enjoy doing it. If a Mexican peso or income comes in, it should be for everyone. We have to look out for everyone’s benefit. My primary obligation as a representative is to ensure everyone has water.

LY Do you receive a salary for representing the producers in the paraje?

AV No. Sometimes, neighbours contribute for transportation when we have to go somewhere, but I do this out of conviction. I believe the person chosen should be passionate and interested in learning.

The canal is crucial; here, we have two main ones. One passes by Lili’s house (Liliana Ángel’s interview), and that’s La Fábrica’s canal (the western boundary of La Conchita). The other is the Zacapa canal (east of La Conchita, used by the producers of the Axayopa area), which is still navigable and reaches the Lecaroz Bakery on Chapultepec Avenue; there’s the pier where trucks are loaded with products.

LY Does that canal connect with the one parallel to Chapultepec Avenue, marking the beginning of La Conchita?

AV Yes, it used to connect with the Canal Nacional. That canal further west was closed because it had a significant crack, and all the water was draining away.

(08) LY Did that happen after the 2017 earthquake?

AV No, it happened much earlier, after the 1985 earthquake. They had to seal it. People said the crack would swallow a large log if you threw it. People cancelled that section, and it became a street.

LY If you wanted to navigate in your canoe towards Xochimilco through the Canal Nacional, towards the Urrutia Bridge, is it possible?

AV Nowadays, there are dams due to level differences caused by

ground subsidence. What has been done is to build costalera dams (sacks filled with dirt) to raise the level and let it flow down to lower levels; this way, the dams fill up, and everyone has water. That’s why it’s not navigable anymore. This has caused conflicts because some fellow farmers say, “Why can you navigate in your canal, and I can’t?”

I tell them, “Let me see. Do you want water to irrigate your crops, or do you want to navigate?” We haven’t decided on these issues, which have arisen due to ground subsidence.

LY Could it be viable to level the different levels in the canals?

AV That’s what is done with costalera but a single navigable level is impossible. The chinampa area is settling up to 30 centimetres per year in some parts, and it’s irregular subsidence.

LY What causes such accelerated subsidence?

AV Due to the water extraction used to supply Mexico City. On the edge of the Canal de Chalco, many water extraction pumps supply the City. It’s complicated; sometimes, people from the area stage protests demanding that their water not be taken away, and they are right, but it’s also a necessity for Mexico City.

In fact, further down (southward), a lagoon (Laguna de San Gregorio Atlapulco) used to overflow during the rainy season and flood the chinampa area. That has been resolved; now, there’s an outlet to the Canal de Japón, and all the excess water is sent to La Lumbrera.

LY What is “La Lumbrera”?

AV La Lumbrera is a megastructure beneath Mexico City that diverts all surplus water to the deep drainage system.

Another crazy idea I sometimes have is that, from the Canal de Japón, all that excess water going to the outlet and then to the deep drainage, a pipeline could be created to send that water to the high ground (hilly area of Xochimilco); up there is a hill called Teuhtli. Why not send all that wasted water up there? They have a regulating basin up there; life could be brought to the entire hill. People might say I’m crazy, asking how much money would be needed.

LY There is money to extract water but not return it.

AV Exactly, about eight years ago, I proposed the idea, and we even went to check the water quality of the Canal de Japón; the truth is, it’s not so optimal for irrigation, but it could be cleaned along the way to the hill. The idea is for that water to reach Teuhtli; there are neighbours up there who could connect and bring life to the hill to make it green. Just as you see everything white from the air here due to all the plastic from the greenhouses, but in reality, it’s green below; why not make the hill green? People on the hill could also be producing up there.

(09) LY Do you know how much water is sent to the outlet?

AV No, that would need to be investigated, but it’s considerable because it happens daily. It would generate two things: water for agricultural production and infiltration into the subsoil.

LY To understand the whole process, where does that excess water come from?

AV That water is what comes down; in San Pedro, there’s a treatment plant. San Pedro is the highest part of the hill. It comes from San Pablo and San Lucas, which are small communities, and all their drainage goes towards Milpa Alta. At the border with San Gregorio, there’s a treatment plant; they send that water to the chinampa area. There’s another treatment plant in San Luis that supplies water to the San Gregorio chinampería and another in San Lorenzo.

LY Does the one on Cerro de la Estrella also supply water to San Gregorio?

AV No, only to Xochimilco, but that plant is only operating at 20% capacity due to different sinking levels; the water doesn’t reach here properly anymore. What maintains the water level from Urrutia Bridge to the Axayopa area, which is at the height of Vicente Suárez Street, comes from Canal 55. A bit below the Urrutia Bridge, a pump re-pumps the water; there are pumps managed by the Municipality at the bridge. All that water comes through a pipeline network and is the water that keeps us alive on this side of San Gregorio. The idea is for the Municipality to care for the water’s quality and quantity.

Producers frequently contact me as a representative, saying, “Andrés, I don’t have water here.” Then another person has the same situation. With its resources, why doesn’t the Municipality assign

someone to tour the chinampa and see where it’s dry so that water can be sent? It’s sometimes annoying that we, as individuals, have to do the job for the agencies.

LY Regarding La Conchita, you mentioned that 40% of its residents are still producers.

AV That’s correct.

LY The remaining 60% live in La Conchita but are not chinampa producers. How do you perceive the advancement of urban sprawl over La Conchita and the Conservation Zone? And how do you imagine La Conchita will be in 20 or 30 years?

AV It’s foolish to live here, but necessity leads us to it. If people were to become aware at some point, I believe that 70% of the properties used for housing could be allocated to continue producing and installing a dry toilet, a water collector, or solar cells. Urban sprawl will continue, but it could be done with some alternatives to contribute to the area; that would be ideal.

LY This vision is yours; do you think it’s a shared vision in the community?

AV No, people come, build their little houses, and say, “This is mine,” they’re not interested in anything else. I’ve been saying for several years that we should work with the children; I’m interested in focusing on the kids thinking about a school. They are the foundation, the future. We should raise awareness in them, explaining what should and shouldn’t be done. I think the urban sprawl can keep expanding but contribute to the ecological aspect of the living area. (10) LY This vision you have would be the possibility of making changes in the future, right?

AV That’s correct.

LY If changes in this regard aren’t made, how do you envision the advancement of urban sprawl?

AV I believe urban sprawl will continue to progress disorderly without considering the importance of preserving and sustainably using the chinampa area. It could lead to further space fragmentation and the loss of the characteristics that make La Conchita unique. The lack of awareness about the importance of preserving the chinampas and their ecological surroundings could result in urban development that doesn’t consider the long-term needs and sustainability of the area.

In my view, it’s essential to work on the education and awareness of the community, especially focusing on children, to encourage practices that benefit both the community and the natural environment.

LY This vision you have would be the possibility of making changes in the future, right?

AV That’s correct. For thirty years, authorities and researchers had already considered the chinampería dead; after those thirty years, here we are. I’ve always said the damage that’s already done can’t be reversed. What’s done is done. Saying that it will return to its original state would be a lie, for example, removing houses or reopening the ditches and canals that have been filled. All the chinampas were initially surrounded by canals. Rescuing it to its original state is illogical; I’m not negative but realistic. That can’t be done.

LY Why can’t it be done?

AV It’s a matter of time and money. Removing the houses that are already there would be very difficult. The logical approach would be that if a house is to be removed, every gram of cement and rebar should be removed from the conservation area. It would be pointless to demolish the house and leave all the rubble there; it would be worse. So, the truth is that the government can’t do that task and completely sweep away all the houses. They are focused on other things.

LY Why do you think the population in the chinampería of Xochimilco, especially in San Gregorio, decided over time to dry and block the canals, using materials like cement and block and forgetting natural materials?

AV It’s the people’s necessity; there’s no space left in San Gregorio to live. Before, the grandparents and past generations had space in the town, and the chinampa area was very separate. But the children and grandchildren, when they start their new families and no longer fit, the parents tell them, “You know what, go over there” (the chinampas in the conservation area).

LY Within that need for new spaces, why have the canals been closed to become roads?

AV It’s something done by the owners themselves. In the past, when the chinampas were only for production, owners opened the ditches and let the water flow. Today, owners, on the contrary, decide to close the ditches and canals to gain a little more from the land; that’s the reality. (11) LY Since you arrived in La Conchita fifteen years ago, how many canals and ditches have you considered lost?

AV In the last ten years, very few have been lost. Before that, yes, there was a time when many were lost; it was about gaining as much land as possible. I don’t know if it’s due to awareness, civil associations, or what has changed, but it has reduced. Some ditches are still being lost, but not as rapidly as before. Also, some canals and ditches have been lost recently due to cracks in the ground where the water seeps.

LY As producers, you can’t afford to continue losing water because it’s your main resource. How do you control the canals and water?

AV I always say: you’ve come to live here. You can’t tell people, “You know what, leave because living here is foolish.” So, why not establish coexistence links between producers and neighbours? It’s challenging, but the chinampa area was already here. You come in and want to adapt to the way of life and work here. How? By taking care of the canals, disposing of your rubbish, and being responsible for your waste. It’s challenging because it can turn into a personal problem. When this happens, we can have discussions with CORENA. We can talk to the engineers and say, “You know, we have this problem; how can we solve it?” In general, these issues with some neighbours have been resolved positively. For example, as producers, if a section of the canal is blocked, we organise and have a collective effort with about 10 or 15 people. We clean the canal and remove fallen objects. We tell the neighbours: look, we’re not against you; you threw these objects into the canal, no problem. But help us keep the ditch open because this water reaches down. If we block it, the water won’t flow to the crop chinampas We try to keep things peaceful through dialogue. We cannot lose our temper in these situations; we can’t come shouting and fighting. In a group, there always has to be someone with a dialogue, someone with a strong character, and someone who can negotiate.

LY Earlier, you mentioned your vision of organising the plots, leaving 70% for agricultural production and 30% for housing.

AV Yes, that’s my vision. However, not many share it.

LY Who should take the initiative, and what would be the dynamic to reach agreements in this regard?

AV In this case, it would be a neighbourhood-level meeting to explain to everyone in the community. Everyone has inherited or acquired the plots in some way. If we leave 70% of the plot with a garden, crops, etc., we will contribute to the continued rainwater filtration. In contrast, if we lay concrete floors because I don’t want to get my feet dirty, the soil becomes impermeable, and water is lost.

For example, if you lay a 50cm x 50cm concrete floor, you should know that it won’t filter water to the aquifers, perhaps 100 or 200 litres. Besides, by laying on the floor, you not only stop the water from filtering, but you’re also killing living beings. The living above are 20%, and the other 80% of the earth’s beings are below. Laying the floor kills everything, everything.

LY What do you think could be improved at the community level?

AV The most concerning thing is that 90% of the houses have septic tanks, contributing to contaminants continuing to seep into the aquifers. I believe the majority of houses should implement dry toilets. Obviously, there will always be contamination, but to a much lesser extent.

LY What percentage of houses do you think have septic tanks in La Conchita?

AV I believe 90% have septic tanks. Based on my conversations, I set up an improvised dry toilet.

(12) LY Do you think there are enough gathering spaces at the community level?

AV There aren’t enough. I believe we can contribute to change in the new generations. I think of my children in 10 or 15 years telling me, “You know what, Dad, I want to build a little room for myself.”

And that’s where I contradict myself because if I said I wouldn’t build more, necessity forces me. Maybe I could tell my children, “You know what? You can only build in this 10m x 10m space, following certain construction methods and contributing to ecology.” Perhaps my son will say, “But why, Dad? if it’s more complicated to build that way.”

– It might be more complicated, but you need to do it this way. Otherwise, what example am I setting for my children, for those who come? It’s complicated, but it has to be done.

LY What is your perception of public space in La Conchita?

AV Yes, it’s needed. The problem is that there are no plots. In fact, there’s a plot where general neighbourhood meetings and dances are held. The problem is that this field has an owner, and while he doesn’t use it now, he lends it. But it must be understood that if the owner has children or grandchildren at some point, he will likely use it.

LY Are there others in La Conchita with similar characteristics to that plot?

AV No, that’s the only one. It’s very difficult to find plots for La Conchita’s gatherings.

LY Would obtaining common-use plots be viable for the La Conchita neighbourhood organisation?

AV If there’s interest, the problem is that it hasn’t been done. What has been discussed in the area is that if a producer is going to sell his chinampa, he should offer it to other producers before offering it to an outsider. This way, production continues.

LY At the beginning of our conversation, you discussed the specific characteristics of agricultural production in the chinampa. How do you perceive the changes from traditional techniques and tools to modern ones?

AV Before, production was outdoors, irrigated with canal water but mainly with rainwater. Nowadays, microtunnels or plastics (greenhouses) are used. This expedites production. If you get four crops a year outdoors, you can get five with microtunnels. More is invested in plastics and tubes, but more is gained.

LY Nowadays, how do most farmers produce?

AV Most have greenhouses. The advantage is that production can continue from October to March (winter season). Without plastics, harvesting is impossible during those months because of frost. (13) LY Is there any impact from the plastics?

AV I would think not because it’s only to cover the plants when they’re growing. When the plastic is no longer helpful, a CORENA truck collects it. Canoes of plastic and rubbish go out for collection when the truck arrives.

Just as people tell me I’m crazy for my ideas, good solutions begin. Initially, with plastics (greenhouses), it was two or three crazy people who put them up to have crops in December, and now we’re all crazy. In San Gregorio, purslane was domesticated because it was a wild weed; some enlightened person tried to domesticate it and succeeded. That’s been over thirty years. Today, more than 50% of the chinampa in San Gregorio is purslane.

LY What is the other 50% of the production?

AV 30% is various types of lettuce, and the remaining 20% is diverse: beets, cauliflower, broccoli, and edible flowers. Many of these flowers are produced in the San Luis neighbourhood, but that area is a red flag for agrochemicals. 5% of abandoned chinampas produce nothing because the owner has passed away or doesn’t want to put it to work. Nowadays, chinampa farming is very much alive.

LY What type of production do you have in your chinampas?

AV I would say 50% is organic, and 50% still involves agrochemicals and fertilisers. As discussed earlier, if I send all my organic production to the Central de Abastos, they’re not interested; they just want a good price. We’re working on more organic production for local sales and foundations in San Gregorio. In the long run, I would like to transition more towards organic farming; it has higher value and can contribute to giving more life to the chinampa because it doesn’t contaminate as much. It also has a smaller impact on the consumer when it’s chemical-free. Twenty years ago, people sprayed

pesticides barefoot; there was no awareness of the damage. It was believed that more chemicals were better; besides acquiring a future disease, you were spreading illness.

LY Why do you think they stopped working traditionally and started using greenhouses and agrochemicals?

AV It’s simply economics. Chemical sellers passed by with samples of their products. When producers saw that their vegetables grew bigger, faster, and prettier, they asked for more chemicals. There was no awareness that these are harmful products, which are still being used. Large agrochemical companies do their marketing and brainwash you. Some products are prohibited by the government, but you can get them informally.

LY Do you think there’s an evolution towards organic production?

AV Yes, there’s a boom in green, organic, and chemical-free products. If we’re realistic, it’s impossible to be 100% organic here due to the water quality in the canals. To be completely organic, one needs control over the water quality, which is challenging to control due to contaminants in the water. Possibly, the authorities can control the water quality it sends to San Gregorio from the treatment plants, but it gets contaminated on its way to the canals with clandestine discharges.

LY Could something be done to have quality water in the canals and ditches?

AV Filters have been tried, but they didn’t work due to their location. Unfortunately, people used and walked on them as a walkway; they deteriorated very quickly.

The most practical thing, in my moments of madness, when I imagine the most useful would be to have a personal filter for each producer. For that, having a large container with a pump, taking water from the canal to the storage tank, and filtering it would be the process. Economically, it’s complicated; it might require an investment of about three or four years. Another practical option, from my crazy ideas, would be to encapsulate the canal. Close two sections of the canal and filter the water; that canal shouldn’t have any discharges from neighbours. The only thing to control is that in times of rain when the water level rises, it doesn’t overflow into the rest of the canal and contaminate the contained water.

(14) LY Could some rainwater harvesting system be considered?

AV Yes, but for small cultivation areas. The extensions I plant would hardly be sufficient with rainwater.

LY Do you know how much water consumption you need for irrigation?

AV You can calculate it using the irrigation pump. It has a 5-horsepower motor that works for about two hours. Even we, as producers, should keep a daily log of production and expenses, although we often don’t. Most producers would say that only 5% keep good records. The other 95% only know they made a profit because they didn’t starve.

LY I’ll move on to another topic I’d like to discuss with you. From what I’ve been researching, there used to be ranchitos (small resting and refuge cabins on the chinampas) made of chinamil (local reed). Do you know if they still exist?

AV No, they disappeared due to the lack of chinamil (reed), which used to grow naturally on the edges of the chinampas It has disappeared because people are no longer interested in producing it.

LY Did you still get to see traditional ranchitos with chinamil?

AV Yes, even this one we’re in now still has some reeds. This one was traditional; it’s just that at some point, it was changed, and it was covered with plastic for practicality and economy.

LY What is the use of this ranchito we’re in now?

AV It’s a storage shed; it belongs to the owner who rents me this chinampa. Sometimes, he comes, strolls around here, rests for a while, talks, and eats a taco. He also keeps his things here. I keep my things in that corner. Upstairs on the mezzanine, the owner has some boxes and a blanket that he uses to rest.

The ranchito still has a very similar use to before. Here, you prepare your tacos and rest for a little while; in hot times, you take a one-hour nap, continue working, and store your tools. Since no one lives here permanently, taking others’ things happens frequently (theft), so we don’t leave valuable tools.

LY Do you think there could be any improvement in the ranchitos?

AV For example, in my case, where I plant several chinampas maybe it would work for me to have a ranchito that serves as the operations centre for all the chinampas

LY Thank you very much, Andrés, for your time and for the interesting conversation we’ve had.

INTERVIEW 03

September 7, 2023

Renato Flores (RF) Farmer at Chinampas en movimiento

(01) LY Thank you very much for taking the time to have this conversation. Could you please tell me your name?

RF My name is Renato Flores González, and I’m 43 years old.

LY How long have you been in Xochimilco?

RF The first time I arrived in Xochimilco was in 1992 when I was around 12 years old.

LY Where are you from?

RF I’m from the State of Mexico, the municipality of Acambay, the northwest part of the state, bordering Querétaro.

LY The first time you came here, you were about 12 years old, right?

RF Yes, my parents brought me. There was little work in the rural area before, and everyone was looking for employment. They came here for that reason. My first job in the chinampería was when I was around 13 years old. I wasn’t deeply involved because I was still studying, just part-time.

LY Do you know why your parents decided to come to Xochimilco?

RF Because more work was here, the area grew, and more houses were being built.

LY Was it agricultural work?

RF Yes, mostly. Since some relatives had lived here before, it was easier for us to come.

(02) LY How was the situation when you first arrived, looking for a place to live?

RF We never saw it to build a house; we only came to work temporarily. As my parents worked here, I only came during vacation seasons. Only later, around 1996-97, did we start working here more regularly, doing various jobs like chinampa work and masonry, among others.

LY How did the temporary work model function?

RF For me, it was only during vacation periods. I only completed middle school, and after that, I stayed longer here, three months, half a year.

LY During that first period when you only visited your parents during vacations, where did you live?

RF We were given a small room in the hilly area of San Pablo Oztotepec (Milpa Alta).

LY What were the conditions like in San Pablo at that time?

RF San Pablo was even more rural than Xochimilco. It was the countryside.

LY How has the area changed in these thirty years since you first arrived?

RF It has changed a lot. Before, there were agricultural work plots; nowadays, they are residential areas; the chinampas have been lost, and houses have been built.

LY Later, did you move to San Gregorio?

RF Yes, later, we moved to live in the San Gregorio area. At that time (1992), it felt like the urban sprawl was growing, but it was physically limited by the Canal Nacional. San Gregorio hadn’t crossed the urban sprawl between 1992 and 1995. (03) LY And how is it now?

RF Now, houses are inside the chinampería. You can walk about 500 meters to the back of the conservation zone and find houses.

LY How did the growth in that area occur?

RF There hasn’t been a regulation that allows construction. Since chinampas are private properties, the government does not have regulations for building within those spaces. Recently, for about two or three years, limitations have been imposed. There’s always corruption everywhere; you can pay a certain amount, and they extend the permit for construction. It has always been handled this way; nothing has changed. Now, people are considering friendlier constructions instead of rough constructions with bricks, like a well-built house with

heavy construction materials that cause sinking. You take the risk because it sinks, and there are no sanitation services like drainage in the chinampa areas. All of this adds to the pollution in the area. There is no knowledge to say, “Okay, if you’re going to build your house, use a dry toilet or understand how wastewater is treated.” For example, there are biofilters, grease traps, and many ways. But there haven’t been regulations to cover all of that.

LY Regarding the people who settle irregularly, do you think they know waste and its treatment?

RF Waste is managed in septic tanks, but it reaches the aquifers. Some time ago, around 2010-2012, the government of Mexico City gave Xochimilco mobile booths called baños secos (dry toiltes) because they worked like dry toilets, and waste management for composting was done there. People received support but never received training for proper use. A problem with septic tanks outside the urbanisation limits is that sometimes trucks come to extract sewage, but in the Chinampa area, that service doesn’t exist. Many things can be done for waste management, but there should be learning and training courses. I see that people here are not very aware of the subject because they don’t know the impact of sewage on water. Water is always a problem everywhere. In other places where there is no water, you utilise even graywater. Unfortunately, as there is water in the chinampería people are unaware of their resources. Unfortunately, I believe that at some point, this will end the way we are going. In the years we have been in this chinampa (Chinampas en Movimiento), we have seen a decrease in water. There are times when the water level recovers, and others don’t. While in this chinampa, I’ve seen the water level drop about 20 cm, if not more.

LY In how much time?

RF In the last ten years approximately.

LY What do you attribute these level changes to?

RF Water extractions, the city itself (Mexico City) no longer builds treatment plants and directs all wastewater out of the city. These parts were piped to other places. There are many drains, and all the water goes to drainage. Previously, recharges were made naturally from the hills to the chinampería Now, with sewers, they are channelled elsewhere. The big problem is that the city government (Mexico City) cannot build treatment plants. As far as I know, there is only one Cerro de la Estrella treatment plant. To my knowledge, that plant doesn’t work even at half its capacity; it’s currently the only recharge that feeds Xochimilco.

LY In the years you’ve been in the chinampería, how have you felt the evolution of agricultural work? Have there been changes in the use of chinampas? What has that process been like?

RF When you own a chinampa it’s difficult because your products aren’t given the proper value; they don’t pay well in the market. Here in the chinampa area, there’s what we call the coyote or intermediary who pays you three or four pesos for lettuce and then sells it for seven or eight pesos. That part makes it even more difficult. It’s not produced the same as before because it requires a lot of work, for example, moving the soil, feeding it, adding compost, and organic matter. The chinampa is hard work; unfortunately, if you bring an agroecological product to the local market, they will never give it that value. People want a large product; they don’t care if it has some chemical fertiliser or if pesticides control pests. They are not interested in the consumerism in the city; we always go for the big products, a tomato that looks very large and shiny, an apple that looks like a mirror because of how shiny it is. Still, they don’t know how many chemicals are put on that apple to make it shine like that. In a course I had the opportunity to take in 2002 with an agronomist from the University of Chapingo, my first contact with agroecology, he told us that when we go to the local market, we try to consume products that are in season. For example, suppose you go to the supermarket and see tomatoes or some fruit in the middle of December or January. That’s not recommended in that case because those fruits are cut early and stored, and their ripening is accelerated with chemicals. I learned a lot from this agrochemical; he taught us to value the agro-agricultural part.

(03) LY What do you think was the main change that made the chinampa profitable and sustainable in the market before but does not value and pay for the work it involves today?

RF Water; everyone always says, “No, that product comes from Xochimilco, Xochimilco is very contaminated.” Unfortunately, Xochimilco is seen with those eyes, but people forget that we are doing this part (agroecology). If we bring a product to the local market and say it’s from Xochimilco, people say it’s contaminated. The issue has always been water. Around 2016 or 2017, I remember there was a newspaper article saying that Xochimilco produced radioactive vegetables. That kind of misinformation is promoted by big companies that want to close a part of Xochimilco; for example, the inhabitants are well-organised in San Gregorio. They fight to get water and value their product; the canals are already covered, dry, and become streets. In contrast, Xochimilco (the town) doesn’t have that concern because it now has two main things: tourism and land use change. Here in Xochimilco, you can still navigate with traditional canoes. What the youth are doing now in Xochimilco is saying, “Well, I have a chinampa; let’s put some grass on it, level it, and put a football field.” Or, “I bring recreational tourism, and we stop planting.”

LY Do you think these land use changes affect the overall balance of the lake, canals, and chinampas?

RF I think, as long as no construction is made, it helps because, in the end, the chinampa area serves as a lung for Mexico City. Waste management is crucial for water issues in the chinampería For example, with motorised boats, the practice is to stir up all the canal bottoms, move all the sediment, and muddy the water. That contributes to the idea that Xochimilco is dirty and contaminated, even though it’s just turbid water.

LY Does this mean the tourism boom has resulted in more motorised boats?

RF Yes, quite a few more. It generates a negative impact. When motorised boats pass by, they create waves that break the edges of the chinampa, which doesn’t happen with paddles.

LY So, could we say that maybe soccer fields per se don’t generate a direct negative impact, but the transportation of people to the fields on the chinampas does?

RF Yes, that’s what’s affecting; they go hand in hand. There should be regulation.

On the one hand, you’re dealing with motorised boats that, through waves, break the chinampa edges, and on the other hand, you’re dealing with carp and tilapia that break the edges of the chinampas by nibbling, looking for food, and laying their eggs. These are introduced species that are not native to the lake.

LY So, there are two factors affecting the chinampas

RF Yes, speaking of water, lilies also consume much of it. So, motors, carp, tilapia, and waste management are all that affect them.

LY Going back to the chinampa we’re in now, could you tell me where we are, how it works, and how it fits into the market?

RF We are in the Chinampas en Movimiento, a Reeduca association project, and we have been working here for three years. Previously, another association called Redes managed this chinampa During the pandemic, Redes could no longer afford the rent for the chinampa, so they had to close it and transfer it to another organisation. That’s when Reeduca with Chinampas en Movimiento came in. Here, we cultivate agro-ecologically, without the presence of chemicals, all-natural. We rotate crops according to the season and try not to use rubber and plastics that generate waste later. The model that Chinampas en Movimiento follows is that we have co-farmer partners. They pay a monthly and annual fee to cover Juan’s and my own salary. In return, we try cultivating as many vegetables as possible and send them to their homes every eight days. They receive a box of vegetables produced during the week within the monthly fee. The fee includes the trip to deliver them directly to their homes.

(04) LY Do the partners come to the chinampa?

RF As a chinampa partner, you can come rowing in a canoe, come with your family and friends, and work on the chinampa

LY A while ago, you told me about how you came to Xochimilco; I forgot to ask: How is the dynamic of moving to live in

Xochimilco? How do the local people interact with those coming from other places?

RF Currently, it’s already a mix; many people have bought their lands here. There are even people from outside who already have their rental homes. Previously, I interacted with people from San Gregorio and the area; they sometimes gave us places to stay in the chinampería– “I lend ranchito (little hut), and in return, you take care of my tools and the chinampa.” People used to be very kind before; we still interact with the owner of these chinampas, the owner of La Isla de las Muñecas, and other neighbours from here.

LY What are the ranchitos?

RF We call them ranchitos, a small shed, like a little house.

LY Were those traditional ranchitos? What were they like?

RF Yes, they were traditional. They would lay down some ahuejote (willow tree) logs and stand them as posts, putting reeds or the thin branches of ahuejote around them. On top, they would put a tule (hardstem tule) to cover. They were mainly for shade.

LY Did you see any of those original ranchitos? Are there still some?

RF Yes, I saw some, but there are none left.

LY Why do you think they ceased to exist?

RF Currently, makeshift shelters known as ranchitos are constructed using boards, plastic sheets, or cardboard. They store tools, avoiding the need to carry them back and forth between home and the chinampa, and protect seeds from getting wet.

LY Finally, could you tell me what this chinampa produces?

RF Many things can be produced, but sometimes the production timelines are lengthy. Various lettuce varieties are typically grown in a chinampa, along with root vegetables like beets, radishes, kohlrabi, and black radishes. We also grow fruits such as tomatoes, zucchini, cucumbers, etc. Currently, we are experimenting with melons and watermelons. We also produce broccoli, cauliflower, onions, and quelites Quelites are very traditional, and they sell quickly in the local market. The younger generation is uninterested; they opt for fast food like fries. However, people aged fifty or older appreciate it, including those from rural areas in the State of Mexico and other states.

LY It’s been great, Renato. The conversation was very interesting. Thank you very much.

RF With pleasure, we’re here.

INTERVIEW 04

January 8, 2024

Liliana Ángel (LA) Inhabitant of La Conchita

(01) LY Thank you very much for taking the time to discuss this. I’d like to start by asking your name and where we are.

LA My name is Liliana Ángel Hernández, and we are in the neighbourhood of La Conchita.

LY Are you originally from here?

LA No, I was born in the state of Oaxaca. My parents brought me here when I was one year old. I’ve practically spent my whole life here in Xochimilco. I’ve only been in La Conchita for two years; I celebrated my second anniversary here last August.

LY Do you know why your parents came to Xochimilco from Oaxaca?

LA I imagine it was searching for opportunities because the situation is complicated.

LY Did they have any connection to farming or agriculture?

LA Yes, from Oaxaca. In fact, my dad used to grow tomatoes, beans, and corn, which were the usual crops there. He started as an employee in the chinampas here, planting plants. Then, he became independent and wanted to try planting on his own. Currently, he still works in the greenhouses.

LY Do you think the decision to come to Xochimilco was related to his past in farming?

LA Well, he was already used to rural life. He now focuses on cultivation but doesn’t like to go out and sell the produce.

LY How much did you learn from him about land, planting, and agriculture?

LA A lot, very much. I started working with plants when I was between 14 and 15 years old. There weren’t many opportunities for me in terms of education. My parents’ ideals are rooted in rural life, and are very attached to it. Women don’t have as many opportunities for education as men do. I got involved not out of choice but more of an obligation. They were cultivating sun-loving plants then, and later, they started growing poinsettias. They’ve been cultivating poinsettias for over 20 years now.

(02) LY Where are your parents located?

LA In the chinampería of Xochimilco Centro.

LY Did you live there since they arrived in Xochimilco?

LA Yes.

LY How do you feel the territory has transformed since your earliest memories of arriving and growing up?

LA TremendousLY There’s been a lot of change. From what I remember, where we used to live is in the same situation as here in La Conchita, an ecological reserve. When I was between 7 and 8 years old, very few people lived here, and the houses were very spaced out, almost 200 metres apart. Now, that whole area is populated.

LY Are chinampas still in that area (Centre of Xochimilco)?

LA There are still chinampas, but many are being developed.

LY So, has much natural territory and chinampas been lost?

LA Yes, a lot, mainly because people no longer continue working at the chinampas. The new generations don’t like the agriculture and original farming here in Xochimilco.

LY Why do you think there has been this change of interest or abandonment of the chinampas?

LA Because people got educated and pursued careers, they abandoned the chinampas. (03) LY When the chinampas are abandoned, is that when land use changes?

LA Yes.

LY And what is that transition?

LA Well, many of the chinampas used to produce are now being used for housing; there are now houses further in than before, but they don’t cultivate any more. The greenhouses, or what used to be

cultivated fields, have ceased to be so and are now rented for event gardens, used for different things, or just abandoned altogether.

LY In that sense, do you think there is a change in the new generations?

LA Well, I perceive disinterest.

LY With what you’ve told me about your childhood background and what you’ve seen about the transformation and the disinterest in farming and chinampas how do you imagine the future of Xochimilco in terms of production, territory, and preserving the territory as a conservation zone?

LA Well, I think it will be more inhabited because most people are looking for places to live, and obviously, the chinampas are being populated. I definitely believe many people prefer to leave the chinampa, especially if they have a career or a profession, but I understand them. They also sell those chinampas, which are used for housing.

LY Going back to when you arrived with your parents, what was the process like renting or arriving at the place where they lived?

LA Quite complicated, that’s quite a story. When they came here, they had nowhere to go; they came here on an adventure. I think an aunt of mine was renting at that time, and that’s where they went.

EventualLY, we ended up in the San Marcos neighbourhood, far from here. There is some distance from that area to the downtown of Xochimilco. We started renting from one place to another until they decided and had the opportunity to rent a chinampa and it was in that chinampa that they started planting poinsettias.

LY And did they live in those chinampas themselves?

LA Later, when they started to produce more and have more stability, they decided to live in that chinampa But the house was made of cardboard with wooden planks, the bottoms of the canoes were already falling apart, those were the walls, and the floor was dirt. (04) LY So, the chinampa was both for living and production?

LA Yes.

LY Do you remember how the native people received those who came from outside then?

LA Well, they still do it to this day; it’s discriminatory. For those who are initially from here, whether from San Gregorio or the Centre of Xochimilco, the locals have rights, and they exclude those who come from outside because they don’t give them the same importance, and it’s a bit harder for them. Whether in San Gregorio or if you arrive in a locality or a new place, they don’t give you the same opportunities. They make access to water, electricity, and everything else difficult for people outside Xochimilco.

LY Do they limit your access to services in any way?

LA Yes, a lot.

LY You mentioned that you arrived in La Conchita two years ago; how was the process, or how did you come to La Conchita if your family was already in Xochimilco?

LA I isolated myself from my family. I chose isolation to break ties, patterns, and everything related to their teachings. I didn’t like the idea of limiting women; I’m the rebel in the house. I’m against all that, so I decided not to be close to them since being close meant following the same customs I disagree with.

LY Did that personal decision lead you to choose to live in La Conchita rather than elsewhere?

LA My decision was out of necessity.

LY And did you find opportunities here?

LA Yes, this was the only place where I found opportunities, even though it has been tough for personal reasons. My story here is very different; nobody knows or understands it. Why am I forced to hide that part of myself? Because of the same situations, I told you about, they don’t give you services if you’re not from here. I don’t have any services here because I’m not originally from San Gregorio. We came to La Conchita because our place was taken from us, and they asked us to leave the house. We agreed with the owner to buy the land, but that didn’t happen.

LY In Xochimilco?

LA Near Xochimilco, between San Gregorio and Xochimilco. After a year of his passing, I became very ill and ended up in the

hospital. After that, we were asked to leave the house, we had to move, and I didn’t want to go back to my parent’s house because I knew that going back there meant going back to the same situation I had left, and I didn’t want that. I thought, “No matter what, I won’t return; I don’t want to teach my children that.” Talking to the godfather of one of my children, the opportunity arose, and he said to me, “Don’t be silly; go to La Conchita. There’s this land there, and you can stay there.” But I didn’t want to go to a place lent to me; I wanted a place that was mine, and for my children, where no one could kick them out, so I embarked on this decision the best I could. It has been something complicated. It has been something difficult. I showed you photographs of the land, including everything: land, plantation, and cultivation, and we had to start from scratch.

(05) LY You told me earlier that many chinampas were abandoned. Was your plot in production at some point?

LA Yes, in fact, it was rented out, and on this side, there was a cabin; onLY the front looked good, but it was all collapsed.

LY Had it been in production, and then the chinampa was abandoned?

LA Yes.

LY So, the government’s official stance is that this is a conservation area, and it is only suitable for agricultural production? According to the law, you can’t live here.

LA No, you can’t live here. That was also one of the reasons why I didn’t decide to build beyond that. Firstly, I didn’t have the means, and secondLY, I know the problems here. My children also liked the idea of the house being made of completely recycled materials, and well, among all that has been done, trying not to harm the ecosystem. Similarly, the water used for washing dishes is from the hose, and all the plants are watered with that. We try not to affect our surroundings.

LY The government says it’s a conservation area, but people say they have owned a piece of land for many generations and can build or live there if they want to. How do you think that before, they were agricultural lands, and now they are inhabited?

LA First of all, yes, there were abandoned lands, and there were few people here in the chinampas It was rare for anyone to want to come and live here. But with the earthquake of 2017, many people lost their homes and were forced to leave where they were and come here. As a result of the earthquake, many people came down and came to build or inhabit. They no longer plant, and many rent them for planting, but due to the earthquake, urbanisation on the chinampas became more common.

LY How do you feel that process has been in La Conchita?

LA People leave their places to inhabit this area here. The first thing they do is put up bricks, cement, and rebar. They make septic tanks, or it’s easier for them to throw everything (waste) into the canal, and that’s where the ecosystem is affected. obviously, for more reasons, the government does not want these areas to be inhabited because of everything urbanisation entails. That’s why I came here, trying not to affect it so much. If we tour La Conchita, everything is cement rebar. You’ll see very few houses built with wood or that try not to affect the ecosystem.

LY And why do you think they opt for that type of construction with those materials instead of wood? Why do most people build like this?

LA I say it’s a lack of vision and convenience. I don’t know how to say it because if they see you with a wooden house or a house that is not in line with other people’s, they label you as having no money or being poor.

(06) LY Given what you said last, do you think there is a perception that the house has more value if you use materials like rebar and cement?

LA That’s right.

LY Even if it is detrimental to the place or nature?

LA Sadly, yes.

LY What do you think is people’s relationship with the canals and the water?

LA First of all, the water crosses here in apantles (ditches) because they are no longer canals.

LY What is the difference between apantles (ditches) and canals?

LA The canal is broader and deeper; a canoe can still fit like the canals in the tourist area down there. There are apantles which are onLY for crop irrigation, and there are no fish. You find fish, vegetation, and many things in the canals. Here, it’s only irrigation water, and that’s it, that’s the difference, and to begin with, it’s no longer clean water; it’s treated water sent to us from Cerro de la Estrella, and I don’t know where else. When it rains, all that water comes down from the hill, and it’s no longer clean; it’s already treated. Besides, the water from the sink or the same bathrooms goes there.

LY Do you think some houses don’t have septic tanks?

LA Most do, but the other part doesn’t.

LY Does the community do something or turn a blind eye (pretend they don’t see the impact of their actions)?

LA Supposedly, the Ministry of the Environment came last year, and there were several tours on their part. Calls were made, and they even put their logos on to warn them, but many people don’t understand.

(07) LY What was the warning?

LA Fines a certain minimum wage, but many people don’t consider it.

LY And is it enforced?

LA I understand that it is.

LY But how can they enforce a fine if they don’t officially exist for the government itself?

LA I don’t know, I don’t know about that.

LY Why did you mention the government’s threat in an irregular area?

LA Well, because we’ve had those warnings for years and years.

LY Throughout La Conchita?

LA Not throughout La Conchita, but in this case, to the people who have drainage leading to the canal, houses with two or three floors, well-built houses, apartments, and those types of residences.

LY And have they never executed anything in that regard?

LA Well, not in the past year.

LY Not since you’ve lived here?

LA No, just suddenly, the threat arises.

(08) LY What are the dynamics like during election seasons?

LA It’s complicated because you know everything is political here; they’re campaigning and making visits. Even here, sometimes politicians hold meetings. They tell us it’s for one thing, but it turns out it’s for another; they distribute aid and ask for a copy of your voter ID. They come with a basket of goods or other assistance, making promises that vanish into thin air. And this happens every three or six years.

LY Do you feel that happening now?

LA Right now, we’re in exactly those situations. They ask for your voter ID to ensure your vote, and ultimately, they put forward the candidate they want.

LY Is that when threats arise, you could be evicted if you don’t support them?

LA Yes, it’s a never-ending story with politicians.

LY Did the same dynamics occur when you were a child on your parents’ land?

LA Yes, it’s been like that for as long as I can remember.

LY We were talking about water again. Once more, if the government doesn’t officially recognise the population, what’s the process for obtaining or connecting to electricity and water services? How do those dynamics work?

LA Because it’s conservation land, you can’t go to the government to request a water connection because you don’t have rights here or pay taxes. Because you don’t contribute like those outside, they can’t give you a connection. The other option is that in these informal settlements, as they call them, there’s always a leader or the community, and he works to tap into the water to make a connection. Those who have worked since the community’s inception decide whether you get the service. You won’t get it if you just arrived and didn’t contribute.

LY Is it an illegal connection outside the official SACMEX (Mexico City Water System) system, controlled or regulated by representatives?

LA That’s right. They can decide whether to give you water, and there’s also a local support system.

(09) LY Once they authorise the service, what’s the process for connecting?

LA Each alley has its branch (boards); in this case, from the moment you enter from Cempasúchil Alley until the end of it (referring to the board she belongs to), you must call a meeting. In that meeting, you express your situation, you have to expose yourself to the entire neighbourhood, and they decide whether to give you water or not. So, you’re subjected to interrogations where you must tell them your life story, which I find silly. Regardless of the need and the fact that it’s a priority service, you can’t deny anyone.

LY So, it becomes a matter of control over the population?

LA Yes, they calculate from when they installed the hose to the time they worked, and based on this, they make calculations and ask for a contribution.

LY DO you think the tax not officially paid to the government is paid here locally and informally?

LA That’s right.

LY How does the electricity issue work?

LA Again, it’s the same situation. There is no official connection to the Federal Electricity Commission (CFE). In fact, CFE came last year to install metres, and very few people agreed. The vast majority didn’t want it, which is silly because they could have had many benefits.

LY Like what?

LA Well, for starters, if your cable burns out, you don’t have to do anything because CFE is obligated to change it. That’s why you’re paying for the service. If there’s an accident here, you need to pay certain amounts, not $10 or $100, and it has to be as soon as possible to maintain the electricity service.

LY So, did CFE officially enter a year ago?

LA They did. They offered possibilities, but people didn’t want them.

(10) LY So people prefer to continue without paying for electricity?

LA That’s right, it’s more convenient. In fact, I understand there’s a huge fine here. InterestingLY if you request electricity, you don’t get it (from representatives), but everyone is considered for paying the fine.

LY Will that fine supposedly be distributed among all families?

LA That’s right.

LY So, how does the transition of La Conchita with its representatives to connect to electricity work without it being official or regular?

LA Again, everything here operates under the table: bribes. The neighbourhood bought their transformers.

LY With the same CFE personnel but off the record?

LA It’s all quite dreadful. Yes, the residents of the neighbourhood bought the transformers.

LY Who did the installation?

LA Likewise, they hired CFE people to do the installation.

LY How many transformers are there?

LA two or three.

(11) LY What’s the process for requesting electricity?

LA You must find the person who leads the neighbourhood; another “confessional” session is needed. Tell them you’ll live here and ask for permission to build. After you’ve “confessed” to the neighbourhood leader and the representatives of each alley, they decide whether to give you electricity or not. They told me then, “Just because you’ve come to live here doesn’t mean we’ll easily give you electricity,” obviously, I had to figure out how I could get electricity. The truth is, they were asking for an amount I didn’t have. I had to explore possibilities, loans, and other means to gather the amount they were asking for, and when I told them I had that amount, they said, “Yes, but you’ll wait until we want to give you electricity; you’ll wait until the

neighbours indicate that you can connect.” And I understand some people still in that situation who’ve already paid for their lines and don’t have water.

LY What’s the reason they make them wait?

LA Control.

LY If they intended to connect them to the services, could they connect the next day?

LA ExactLY. The need is there, but not the availability or human kindness. And aside from selfishness and envy, well, you know. As many of the neighbours here see it, “Well, let them suffer a little like we did.” I mean, it’s shameful to say and think that way.

LY How long did it take from when you arrived until you were connected to electricity and water?

LA When I arrived here, I talked to the neighbours; there are two taps. I’m not connected to the neighbourhood tap nor to water or electricity. I’m connected to a small hose that comes from “this side over here,” and I talked to the neighbours. I told them I would be living here, and some people connected to that tap were accommodating in exchange for helping with what was being done at the time. We were building the road because there was no road from one part down (north). ObviousLY, I said, “Yes, that’s fine.” There are ways to understand each other, and I started helping in that situation. I didn’t see it as complicated; we had communal work every eight days.

LY What are these faenas (communal works)?

LA Helping every now and then to improve the conditions.

LY Who organises these faenas (communal works)?

LA The people who are in charge of what’s being done. I had to help up to the lower part (north) to lay down the pavement, and that’s when they told me I could connect to the water. There were no problems; they didn’t charge me a single peso, and thanks to them, I’m connected.

(12) LY So you got connected to the services in exchange for work and communal work?

LA That’s right.

LY How does your water supply work?

LA There are many flaws because the hose runs along the canal’s edge, and twice a year, CORENA (Commission of Natural Resources and Rural Development) comes to clean the canal banks. When they come, the guys cut the hose, so if we’re short of water for a day or two, we have to go out and find the hose to see where it’s damaged and repair it.

LY Is your connection through a single hose that reaches there, or does it come from a branch, and you connect from it at some point?

LA The hose runs through here (along the canal behind my house), and I connect from there. That hose supplies several houses.

LY So, when there’s no water, do you organise yourselves and have to trace the entire length of the hose?

LA That’s right.

LY And is that hose floating in the canal?

LA It runs along the edge of all the properties.

LY Assuming there are no leaks, do you have a good water suppLY or does it also get cut off?

LA We lack water two to three days a week, so when it arrives, we must seize the opportunity to fill up what we can. Sometimes, the water can get quite murky when repairing the pumps, with drainage water coming out.

(13) LY Why is that?

LA I don’t know, it gets mixed.

LY So, does the same hose get contaminated?

LA Exactly. Sometimes, even after two or three hours, dirty water keeps coming out, and well, that water ends up watering my plants.

LY Would you say there’s an issue with suppLY and quality?

LA That’s correct.

LY What’s your routine for fetching water?

LA I have several buckets and containers ready as reserves. On the days when water does arrive, and it’s good, I have to make the

most of it for washing and everything else that requires water. I have to use it wisely to avoid running out of it. Sometimes, we run out of water; I was without water for about two months last year.

LY Why?

LA I was told that one of the pumps broke down and pulled in rocks, blocking the pipeline. Until the pipeline was cleared, the issue wasn’t resolved. We had to call people to clear it because a good hose stretch was affected. It was under the pavement, and the neighbours wouldn’t let us dig under it, so we had to find a different way.

LY How did you manage those two months?

LA My neighbours shared water with me.

(14) LY So, there was cooperation?

LA Yes.

LY How do you perceive the territory of La Conchita?

LA Some people come here and like it because it’s peaceful, very beautiful, and surrounded by vegetation; you can hear the birds chirping, something you don’t experience outside of here. They say, “Oh, it’s very beautiful; I’d like to come and live here.” – “Please don’t, don’t come to live here!” I explain to them the reasons why it’s not possible to live here, and they say, “Oh, well then, maybe not.” But I think if there weren’t those kinds of situations, I would tell them, “Well, if you can afford the land, go ahead. As long as it doesn’t harm the ecosystem too much, there’s no problem.”

LY What’s your personal perception of the territory?

LA Peaceful because you don’t hear the noise of cars; here, nobody bothers you, nobody disturbs you, very peaceful.

LY You and your children live here; how many are there?

LA Three children.

LY What do you think about them growing up in this environment?

LA Well, what can I say? The two little ones love it because they go out to play, pick flowers, plants, and herbs, and play to have a “restaurant.” If we lived outside (in an urban area), they would be locked up with the noise of cars, and I would have to make sure they don’t get run over by a car, but here, none of that happens.

LY Considering everything you’ve told me about the dynamics of how La Conchita operates, what do you think are the needs that could be improved for habitation? Considering the conservation of the site it’s located in, what actions or problems do you think are the main ones that should be addressed?

LA Well, the main issue would be for people to know their place. Mostly that, but sadly, it doesn’t happen.

(15) LY What do you do, and what’s your occupation? Does it relate to La Conchita, the site, landscape, and nature?

LA Yes, it relates a lot. I told you earlier that I was forced to work with plants, and working with plants involves using pesticides. I had contact with pesticides for many years, and they affected my health. It was one of the main reasons I decided to distance myself from my famiLY. I was sick, and my parents didn’t like the idea that I couldn’t help them anymore. I was forced to find alternatives; how could I earn money? I started reselling plants, buying them, cutting them, and selling them. I have a stall in the Xochimilco Sports Complex where I sell them, but I don’t run by myself 100%. Obviously, because of the health issues, I had to find a more natural way to take care of myself and my health to deal with the damage I already had to my liver and kidneys. I had several poisonings, but I’m alive.

LY Does your family still work with pesticides?

LA Yes.

LY Do they have health problems too?

LA Yes, but they’re not interested in that.

LY So, you looked out for your health and started getting into other things?

LA Yes, mainly I started buying plants to resell. When I started getting sicker, I started looking for alternatives, and I started with the doctor and conventional medicine. When I ended up in the hospital after my husband died, I was forced to look for more natural remedies. That was when I started looking into alternative medicine. Back then, I fell into the hands of what is now my teacher. My doctor healed me and saved me from surgery using tinctures. Tinctures are made from

herbs. Once I finished my treatment with her, I decided to learn it myself. I already had some knowledge from my grandmother because she was the one who always took me to the countryside and explained to me what each herb was for, but obviously, I was young, I never paid attention, and I didn’t know I was going to need it in the future. But well, I already had some idea of the herbs, which ones worked for headaches, etc., so I wouldn’t have to go to the doctor and take pills. Taking up what my grandmother taught me and learning what my doctor still teaches me took me to set up my own herbal pharmacy.

LY How long have you been into this?

LA Three years already.

(16) LY What’s the relationship between your new facet, the territory, and La Conchita?

LA Back then, when a plot of land was weeded, everything was killed, everything had to be removed, and pesticides were used so that no weeds would grow back. Not anymore. Everything I used to kill off now serves me because with what I’ve learned from herbalism, I go to the paths here in La Conchita to collect all those herbs to make my medicines. Also, in the hills. After all this, life told me, “No, you’re going natural!” Before, I saw them as insignificant; now, I dedicate myself to collecting those herbs.

LY Do you carry out these activities in La Conchita?

LA Exactly. I have to go out and collect them, bring them, wash them, and dry them, so I do the whole process of herbalism here in La Conchita. Here at home, all my plants serve me for medicinal purposes.

LY Could specific services or infrastructure issues be worked on and improved?

LA Public spaces. There’s a headquarters where the community’s children can come to play, do homework, and socialise, and I’m also involved in that part. Despite how badly the people of La Conchita have treated me, I’m contributing to changing the mindset of the children who come here. I try to show them that not everything is what they hear and learn at home and that there is more to that.

LY You built your house with recycled materials. What would you like to add to it to improve your daily life?

LA I have a crazy idea because I told my children a few months ago I want to create a space; I already have it visualised. A space where I treat greywater so the water from the washing machine and sink doesn’t go out dirty towards the plants. Treat greywater and make the water come out a little cleaner for the plants. Firstly, because I water some of the plants with water from the ditch, but in the dry season, I have to water them with washing machine water, and I don’t wash them every day. During the week, I have to water with ditch water, which is dirty water, mixed with treated water and drainage water, and I use several of the herbs I have here for making remedies. It’s complicated because I need to treat that greywater so that the medicine has better quality. As you can see, the bathroom is a dry toilet or compost toilet; I didn’t want to make a latrine because even if you dig, it affects the water in a certain way.

LY How does it affect you?

LA Because all the waste mixes with the liquids and seeps. LY Are there more dry toilets in La Conchita?

LA People don’t like dry toilets; it’s uncomfortable for them. (17) LY Why?

LA It carries great responsibility. First, you have to see how you will treat the waste. We dug about a metre in my house because we thought we would make a septic tank. Ultimately, I regretted it, and we used that hole to bury what came out of the dry toilet. In my dry toilet, the urine is separated from the solids. I made a hole about 60cm deep with gravel and sand for the urine, and the hose goes directly into that hole.

LY What tools do you use in your daily activities, both at home and in herbalism, and how do you transition between traditional and modern?

LA I mix both. If we talk about modernity, I would have to use machinery I don’t have. To sow, I use the hoe, the shovel, and other tools that have been used for plants for a long time. Regarding the home, I use my molcajete (Mexican volcanic stone mortar for grinding spices and herbs) I will never leave because a salsa made in a

molcajete tastes nothing like one from a blender. I have modern things like the refrigerator and stove. I want to make a smoke kitchen; I still heat the water with firewood because I don’t have a boiler. I want to buy a roll of hose to place on the roof, heat the water with the sun, and bathe with that water. So I wouldn’t burn firewood anymore, firstly because there’s not much left, and secondly because of pollution. In the long run, it’s cheaper for me with the hose and less polluting. In herbalism, I use a manual mill.

LY What a great chat, Lili. Thank you very much.

LA You’re welcome. It was my pleasure, and whatever you want to talk about, we can continue another day.

INTERVIEW 05

September 5, 2023

Miguel Poblano Lugo (MP) Inhabitant of El Paraíso and trajinera boat operator.

(01) LY Thank you very much for taking the time to have this conversation. Could you please tell me your name and where we are?

MP Good morning. My name is Miguel Poblano Lugo, at your service. I am originally from Xochimilco and live here in the Caltongo neighbourhood. We dedicated our time to cultivating chinampas and have seen how it has transformed over the years. Our grandparents, not only mine but everyone’s, taught us to cultivate epazote, verdolaga, and all that. But I learned that we must ask the land for permission, give thanks to the water, and ask for its blessings on the crops. We specialise in cultivating zucchini, radishes, beets, tomatoes, and more.

Over the years, we have noticed that this has been changing. In what way? Well, the urban sprawl has been spreading. Sometimes, it’s out of necessity because a certain family member doesn’t fit in a certain space anymore, and the grandparents or parents say, “You know what? I have space in the chinampa; do you want to go?” and out of necessity, they go to the chinampas. Then they start getting electricity and water; they try to cover their needs. So, what happens? Some people no longer dedicate themselves to this (agriculture), but overall, they are good people who lend us a hand.

LY What year were you born?

MP I am 61 years old, born in 1962.

LY You mentioned that your grandparents were from Xochimilco. How far back do you have records of your ancestors?

MP As far as I know, some came from Toluca, State of Mexico, and the others from the town of Tláhuac. My grandfather came from Toluca and fell in love with my grandmother, and that’s how my dad was born, and then we. My other grandfather is indeed from Xochimilco, from the Xaltocan area.

LY What are your earliest childhood memories of living in Xochimilco?

MP My earliest memories of living in Xochimilco are of everything being unpaved. We walked around without worrying about being run over by a bicycle or a car; that was the experience, in nature, with the air and the dust. Also, in my childhood, I remember that my grandmother sent me to the chinampa that my grandfather had. She would say, “Go and deliver the pulque from Caltongo to here (Puente de Urrutia).” I would tell my grandfather here in the chinampa Grandpa, I’m thirsty. And he would dip a glass directly into the canal and give me the water to drink straight from the canal. I remember the crystal clear water; you could see the bottom. I thought if he gave it to me without doubting it, I have to drink it, trusting it was clean because my grandfather’s grandparents taught him that, and I had to follow what he told me. He grew Swiss chard, spinach, beets, radishes, and many vegetables. He told me that when his grandparents took him, they rowed from Xochimilco to Santa Anita. My grandparents would row at three or four in the morning to be there by six or seven in the morning, and by eleven or twelve, they would load their merchandise and bring it home. Those are the memories I have of my grandfather.

LY Around what years did you recall when the water was crystal clear and drinkable?

MP I was 8 years old, around the 1970s. Even in the 80s, when they filmed the movie No tiene la culpa el Indio (The Indian is not to blame) with Mauricio Garcés and Chucho Salinas, you could still see the bottom of the Nuevo León Avenue canal. Even after people washed with their soap in the canal, and the soap spread, eventually, the water became clean and clear again; you could see the bottom.

LY In what year do you think the change occurred when the water became polluted?

MP The change began in the 80s, precisely when the movie I mentioned was released. The water hyacinth started growing. At that time, they even said that Xochimilco had dried up because, in an aerial shot

from a helicopter or aeroplane, all you could see was water hyacinth, no water. So much water hyacinth grew that it became impossible to navigate, neither in the Canal Nacional nor in the Canal Apatlaco, nor the Canal Cueztitla, Apampilco, Trancatitla. I can keep naming many canal names, and they were all saturated with water hyacinth. (02) LY What was the reason for this?

MP Someone brought the water hyacinth. They say that the first lake infested with water hyacinth was Apatzingán in Michoacán. Since the water hyacinth produces a beautiful flower, people brought it to Xochimilco to see if it would thrive. It has its advantages and disadvantages. The advantage is that it oxygenates the water, which is good for fish. The disadvantage is that it absorbs a lot of water. Around the 70s, they also planted many casuarina trees. Casuarina releases seeds, and since they are brown, they colour the water that same colour, making it look dirty. Today, there are various shades of water: brown, yellow, and transparent. In some parts, very few, you can still see somewhat transparent water, but it is far away from here. You put your hand in the water, and at 40 cm, it starts to disappear.

LY In which areas can you still see somewhat transparent water?

MP The dairy basin, through the Canal de Japón (Japan Canal), because, in a way, they are untouched canals that very few people go to.

LY Are chinampas working in that area?

MP Yes, they are worked on, but very few people work there.

LY How far is it from here to the Canla de Japón?

MP It’s about five hours round trip. It’s very remote, and it remains a bit more untouched.

LY When you mentioned that Xochimilco used to be unpaved, did Nuevo León Street already exist when you were a child?

MP Yes, it already existed.

LY And the bridges, too?

MP No, at the bridge where the Caltongo dock is, a platform now spans from one level to another. That bridge did not exist, nor the one here at the Curve. There were just beams to cross. The one at the curve was indeed a beam; I swear it scared me. I would crawl over it with my grandfather’s pulque because I didn’t know how to swim, and if I fell… I would not know what to do. One day, I saw a person crawling across, and I said, “I’ll cross the same way.”

(03) LY Did the change in canal-to-canal levels already exist?

MP No, not at all. The change in level occurred after the World Cup here in Mexico in 1986. Since 1980, the water level has started to drop in the tourist canal, canal 27, Santa Cruz Canal, Xaltocan Lagoon, Belem, and Caltongo, and the level has begun to drop. That’s why the costalera (sandbag dyke) was implemented, and that platform was put in place to retain the water and prevent it from falling so much. One day, the costalera burst, and the upper part was left empty, and here, the houses in Paraíso, Ampliación Caltongo, were flooded up to a meter and a half. All the water ended up in the Apatlaco Canal. LY What caused this change in levels?

MP Mexico City sinks five centimetres each year. Every year, the weight they put on it, the structures they have built, and the buildings make it sink on one side and raise the terrain on other parts. I hope I never see it, but at the rate we’re going, the water is going to the lowest point, and there are also some leaks. Years ago, there was a sinkhole in the Manantiales restaurant, and it went into the water. Today, thank God, it’s covered. The maximum water level we have here in this part is two meters, two and a half meters. On that side, it’s three to four meters at the deepest. And the commercial area that we call the tourist area, the neighbourhoods of San Esteban, San Lorenzo, La Santísima, and San Diego, are an average of 40 cm deep. If we go further to the San Juan neighbourhood, where the Fernando Celada dock is, they also have 40 cm of depth today. At some point, they were left empty; the canoes and trajineras (traditional touring boats) were left in the mud. They had to go and get them; it made me sad, and I started crying. I thought there was so much water because I also paddled there for several years and went swimming, and it had four to five meters of depth. The day I went, the carp were swimming sideways. Seeing the water going away, we can’t do anything.

LY There’s a stream of water in front of Club Antares; where does that stream come from?

MP That stream of water in front of Club Antares comes from Cerro de la Estrella, from Ermita Iztapalapa. Water also falls in the Ecological Park. They are treated water dams. Trajinera services are also provided in the Ecological Park, but they can no longer leave due to the water level. They only make trips to the artificial lagoon made by the government as part of the Ecological Park. Next to it is the Cuemanco dock, and from there, you can circulate up to here if you want; there can be eight to ten-hour trips.

LY What are the water conditions from Cerro de la Estrella?

MP It’s treated water. Right in front of the Fernando Celada pier were natural springs; in Xaltocan Lagoon, another spring, and in San Juan Lagoon, one more. Even in Toro Lagoon, water would gush, and you could swim, feeling the water emerge. This maintained water purification. Nowadays, some people with solar panels have been here to clean the water. They create nanobubbles, purifying and cleaning the water. Solar filters are also being used to filter and irrigate with cleaner water. As an embarkation point, if these systems weren’t implemented, we would have to work day and night to purify the water.

LY You mentioned the Ecological Park; when was it established?

MP The Ecological Park was inaugurated on June 6, 1992, with President Salinas de Gortari in attendance, as it is considered World Environment Day. On that day, we toured the artificial lagoon. However, it’s closed now, and just like them not being able to go out with their canoes, we can’t enter from here either. Those from the Cuemanco pier navigate through Canal del Bordo, Tlilac Lagoon, Cuemanco Canal, National Canal, Atrancatitla Canal, Apampilco Canal, Tezhuilo Lagoon, and the Island of the Dolls, taking a four to five-hour journey for tourists. Likewise, we offer a three- to four-hour round trip from Urrutia Bridge.

LY Where do you go on your boat tours?

MP We take the Tezhuilo Canal through the entire Apatlaco Canal and reach Tezhuilo Lagoon, next to the Isla de las Muñecas (Island of the Dolls). Before that, we pass by the Axolotl Biological Station, where they explain the properties of the axolotl. We also pass by demonstrative chinampas, the restaurant, shipyards, how a trajinera is constructed, what woods it has, and what the structure of the trajinera is called. (04) LY Was the park a result of UNESCO declaring it a World Heritage Site?

MP No, because when Xochimilco was declared a World Heritage Site, the water hyacinth had contaminated all the canals. The Delegation, during that time, brought in manatees. They brought two manatees to eat the water hyacinth, let’s say in 200 linear km of canals, but imagine how much one manatee can eat. How much can two manatees eat? The canals vary from one meter to 60 m wide to Apatlaco. Imagine those poor animals. When were they going to eat all that water hyacinth?

In 1982, they brought in a machine to clean the water hyacinth. It took about four or five years to clear it all. On December 11, 1987, UNESCO declared Xochimilco a cultural heritage of humanity. I should also clarify that by that time, the manatees were already dead; they drowned due to so much contamination. If they had introduced a hundred, maybe it would have worked, but with two, no. LY UNESCO declared it a World Heritage Site in 1987, which led to environmental protection by the Mexican government. Do you believe that the recognition by UNESCO and the protection by the federal government were truly implemented, or did it remain just maps on paper and in political speeches?

MP The reality is that if we, as natives of Xochimilco, were to harm the area, we don’t. The government has tried to clear the water hyacinth; here, we talk to our colleagues to tell them where there is a lot of water hyacinth, and they clear it. Nowadays, they listen to us; this place is already whole.

To preserve our roots, we have to listen. Here, we try not to have live music, mariachis (typical Mexican band), northern music, trios, or anything else during the boat rides with us. Because we want people to enjoy what Xochimilco used to be, an ecotourism or nature-protected ride. Here, you see herons, diving ducks, gallinules and coots. For next month, in October, the pelicans arrive, and it’s a very

grand spectacle. If we were to play music, the pelicans would be scared away, and we would be participants in scaring the birds. Nowadays, the birds are not disturbed, and they adapt to our presence. We could use motorboats, but what will happen when the government comes? They will ask us -what happened here? We would be the ones causing the disaster, but no! We continue rowing. Many people see us sweating, so sometimes people leave us tips, but it doesn’t matter because it’s our job, and we do it with pleasure, with the enthusiasm of fifty-something years ago when I started, and I still do it with the same pleasure and satisfaction. When a customer leaves happy and tells us he wants to revisit us, it makes me happy.

LY When would you say tourism in trajineras in Xochimilco began?

MP When they were filming ‘El Violetero’ (the violinist) with Tin Tan in the 1940s, they started filming at the Santa Cruz Acalpixca Museum and in the Nativitas area. During a break, the actors saw a canoe, without a canopy, without seats, just the canoe, and they asked the paddler: hey, give us a ride in your canoe. He took the actors on a ride, and they liked it, and as I was saying, they wanted to return. On another break, they came back. That’s when locals realised that it might be possible to charge for these tours. My mother told me that previously, when the tours started here in Nativitas, the trucks would arrive at the Nativitas forest, and people had to cross the cornfields to get to the pier, where the Manantiales restaurant is now. From there, they would board. You can see it in another movie that I can’t remember the name of now; you can see the trajineras with sticks but without a canopy. Previously, we called it a half-moon, and it was covered with grass, and the names were written with natural flowers. They are still women’s names because there is nothing more beautiful in the world than a woman. For example, if I have a trajinera and my wife’s name is ‘Toñita,’ I name it after her. Nativitas was the first tourist pier, but history tells that it was in Santa Cruz Acalpixca, which means ‘place of canoe caretakers,’ where the first tourist trips happened. Later, the Manantiales, Las Flores, María Candelaria restaurants and the Nativitas pier appeared. Then, piers in Nuevo Nativitas, Belém, Zacapan, San Cristóbal, Salitre, and many later moved to Caltongo. Caltongo has been around for about 45 years; they started moving operations there and providing services. Later, the Fernando Celada pier was built in 1978. That is an independent pier that has been managed by themselves with their own resources. In 1992, the Cuemanco pier surged, and we, on September 16, 1999, as the ‘Puente de Urrutia’ pier, are fighting for the government to recognise us someday. We have no record, but everyone already knows that we are here. Currently, there are 11 recognised piers and ours. We started this pier from scratch.

LY Why do you think the government doesn’t want to recognise it?

MP Because this is a protected natural area, they have already built concrete structures and diverted water. Those from San Gregorio are the beneficiaries because they throw the water over there, just like those from Nuevo León in Caltongo. They are like steps where they raise the water level, which is already controlled. I don’t blame them for taking the water there; in the end, I won’t take it with me when I die. Let it be beneficial for everyone; it’s for sharing.

LY What happened after returning to the tradition of decorating trajineras with natural flowers? Why was that lost?

MP When the government discovered that poppies were growing on all sides of the canals, they started sweeping away all those flowers. So, wild natural flowers ceased to exist; one had to buy them, which became impractical. When there were no more flowers, they began making them with crepe paper, later with paint and, more recently, fluorescent paint. That’s how the covers are made now.

LY You mentioned earlier that you try to conduct boat tours in a way that is more in tune with nature. Do you think all the other operators share that vision?

MP No, the shift in boat tours happened when I used to paddle in Nativitas and came here (Puente de Urrutia). There were lily pad mountains here, but from Nuevo León onwards, it was all chinampas, pure farming. I used to take customers on six to eight-hour trips. There were

no houses; it was an all-natural chinampería. You would find rabbits, squirrels, opossums, skunks, weasels, and all kinds of animals that were accustomed to people. Over time, urbanisation has been expanding.

Urbanisation is not to blame; the authorities are at fault for not regulating the urban sprawl, but we are also to blame—I have been a participant. For instance, we bought land in ‘El Paraíso,’ and we actually gave it that name. It was a natural reserve, but we purchased it for necessity and built the bridge. When the first bridge was built, I told everyone: “What a pity about the bridge!” they asked why. I said the bridge is excellent; it will withstand trucks and all the weight, but the canal will dry up in ten, fifteen, and twenty years. “Oh, why do you say that, Don Miguel?” Well, you see, as people pass by, trucks loaded with stones, sand, and materials will drop small rocks, and they will end up in the canal. A single small rock means nothing but two, three, four, a hundred. After a few months, they become considerable and will close it off.

Nowadays, I realise I was right, and sadness overwhelms me. Also, the government allowed us to build the bridge and move to live there without saying anything. Perhaps if we hadn’t moved there, that natural area would still exist, but necessity led us to live there. Today, the “yellow bridge” has no water; the “green bridge” still has a good level, and the “colourful bridge” still has a reasonable level. But on the side of the costalera, towards Nativitas, the water level is dropping to prevent excess water from coming here, leaving Manantiales, Canal 27, and Santa Cruz without water. Sometimes, they run out of water, and here it comes, rising by about a meter.

(05) LY So, were you among the first to arrive at ‘El Paraíso’?

MP Not the first, but among the first.

LY In what year was that?

MP That was in 1990.

LY Was there still farming at that time?

MP Before 1990, yes, because in 1985, during the earthquake, all that was the chinampería

LY So, was ‘El Paraíso’ not recognised by the government?

MP Yes, it wasn’t recognised. Initially, the government tried to kick us out, but all the locals resisted. What did we do? We threw stones—well, not me—but they stoned the patrols and set them on fire. The government tried to make us understand that it was a protected natural area, but necessity blinds us to these things. We have no electricity poles or sewage system, but there’s telephone, electricity, and water.

LY What about waste disposal?

MP In our house, we dug a pit for that purpose. Many people have pits because, if not, it’s an offence. If I see someone throwing their waste directly into the canal, I take a photo with my cell phone and report it. Any citizen witnessing such anomalies can report them.

LY In what year would you say ‘El Paraíso’ was regularised and began to have services?

MP Well, it’s still not regularised; it remains a protected natural reserve.

(06) LY And to understand the legal status of the property, for example, if you wanted to sell your house, can you do it?

MP Yes, I can sell it, but not with deeds. I have a sales contract with a justice of the peace. The government still doesn’t recognise ‘El Paraíso’ as a residential area. Today, leaders are considering changing land use. Even this part here is being considered to be recognised as urban in ‘Ampliación Caltongo.’ It’s still an Ejido (communal land) and a protected area today. It’s from Magnolia Street, which is still Ejido land. If the government decided to take it away, they could do so because it should be used for cultivation, so it would be fair.

LY As you mentioned, the occupation of ‘El Paraíso,’ do you think this phenomenon will continue in the coming years?

MP Yes, over time, necessity will provoke the same thing. Families keep growing. The first people who arrived at ‘El Paraíso’ already have children and grandchildren; in fifteen years, they will have great-grandchildren and won’t fit there anymore—they will have to come this way. Suppose someone has the necessity, and a friend sells them a piece of chinampa They have children who grow up in twenty years, and the cycle repeats.

There are houses where you can only get there by canoeing to the market, school, church, store, etc.

LY How do you imagine Xochimilco in fifty years?

MP I don’t think I’ll see it, but I imagine the future in fifty years. For example, this canal here at the dock, we won’t be here; it will be much drier because it will be drying up. As I mentioned earlier, the urban area will keep growing; they throw a small rock, then a hundred, and the canals dry up. Here in Caltongo, canals that used to be deep are now turned into streets. As they built the costalera and changed the canal levels in this area, they closed off; they barely had any water, so people preferred to pave them and turn them into streets. People say they pave them so they don’t get muddy and their shoes don’t get dirty.

LY Do people do that directly?

MP Yes, people start pouring cement as it’s already dry. They say they get their shoes dirty with mud daily, so they’d rather pour cement. Ten or fifteen neighbours agree, and in a day, they lay the floor, and that’s how a street appears. If the costalera were removed, that canal would flood with two meters of water. The problem is that if the costalera were opened here where we are, we wouldn’t flood due to the levels. What needs to be done is to raise the level. All the bridges in Nuevo León would disappear because the level would rise. We put up the bridge in 1992 at my house, and it’s been thirty years since then, and the canal has dried up, whereas it used to have a depth of a meter and a half.

LY Can you imagine any actions or strategies regulating these issues?

MP Yes, there are solutions, but they involve substantial expenses. Log piles have been implemented here to prevent soil erosion. If the government implemented systems to allow water to flow without the costaleras, the production area would increase. The areas I mentioned that currently have a depth of forty centimetres would reach ninety centimetres. As the president, I would install gates to maintain water levels properly. LY Going back to what you told me about the chinampas, your grandfather used to work on them. Did you, as a child, get taken to them?

MP Yes, they used to take me, and I still do it. On Saturdays and Sundays, I take my grandchildren. I extract the mud, which is called almácigo here. An almácigo has five centimetres of mud, and I cut it into small squares; the square is called chapín The ancestral way of extracting the mud was by throwing nets into the canoe. That’s how our ancestors raised the land so well, filling the chinampas with the same mud that comes from the canal. As a joke, we call ourselves loderos (mudmen) because people see us extracting mud. That doesn’t offend me; on the contrary, I feel very proud to participate in something my ancestors did—my grandparents did it, my uncles did it. They used to take me against my will, but nowadays, I understand it because we have to do it. Today, I have the gift of teaching my grandchildren; one of my grandchildren loves it. He says, “Grandpa, I’m going with you!” I tell him, “I’m going to the chinampa,” and he asks, “What are you going to plant now, Grandpa?” I have several grandchildren, but he’s the only one interested.

When children come to plant trees, they come with schools. We sell them the trees, and they plant them. After four or five years, the kids return, telling me, “Hey, Don Miguel, this is my tree.” Their little trees are growing; some are already in high school and university. We have trees that are 23 years old.

(07) LY Regarding your childhood memories, how was the diet based on lake resources?

MP The water from the Xochimilco canals has always been beneficial for the locals, whether from Tulyehualco, Mixquic, Tláhuac, San Luis Tlaxialtemalco, Santa Cruz, or any other neighbourhood benefited by the water. The water was crystal clear and used for washing clothes, and they didn’t need tap water; they used soap, and it disappeared. The water provided fish and vegetables.

In the lake were petos, small fish eaten dried, just like charales acociles (small shrimp-like creatures), axolotls, frogs, and carp.

We ate axolotl. It was cleaned, opened, the innards removed, and cooked in a tomato-based stew. All that was part of the diet accompanied by the corn my grandfather grew.

LY Are there still axolotls?

MP Previously, you could catch 100 in 500 meters. Nowadays, if you catch one in 500 meters, if you’re lucky, they are endangered animals. The main predator today is the mojarra or tilapia.

In 1985, the Municipality launched a programme to plant 100,000 carp of four species: barbona, barrigona espejo and cabezona Only the barbuda, barrigona, and a crossbreed called carpa Israel with red meat remain.

Water snakes, some cincuates, rattlesnakes, and scorpions still live here.

LY I’ve read and heard from Xochimilco natives that people used to live in the town and only went to work in the chinampas

I’ve also seen records of small rustic resting houses found on the chinampa

MP As I mentioned earlier, my grandfather came from a house in the centre of the chinampa, where he had a little ranch. That’s what the small house was called. Made of the same mud, with grass known as tule, a mixture created the famous adobe and the blocks were stuck together with mud. A base of one meter was made, and from there, the chinamil sticks were placed, and the roof was made of tejamanil (traditional wooden shingles), 10-centimeter by oneand-a-half-meter boards, overlapped to prevent water from getting through. Those are the famous little ranchitos made of adobe, chinamil, and tejamanil

LY Are any of those still around?

MP None remain.

LY What was the function of those little ranches?

MP They provided shade and a space to warm up their food. My grandmother made the tlecuil (rustic hearth) there, with three adobes and a clay griddle, where the food was heated.

LY Were they used to sleeping there, too?

MP Very rarely. People returned to sleep in their houses in the town. (08) LY What were the spaces like inside?

MP One meter high of adobe, then the chinamil sticks, and the roof was made with tree branches, either pitched or not. The floor was made of earth. It was a single space, about three by three meters. The structure was made with tree trunks; a hole was dug and buried in the ground. It lasted as long as the tree took to rot. Sometimes, the same tree from the structure sprouted again and grew. My grandfather cut the tree straight and not pointed so that it would grow roots and grip better. When the trunk rotted, it had to be replaced, and if the tree had sprouted again and grown, it just had to be pruned to prevent it from lifting the roof.

LY Around what time did the little ranches stop existing?

MP The last ones, around 2000, are very recent.

LY Why do you think they disappeared?

MP Urban sprawl has grown. In 1987, I participated in a survey to find out how many producers there were in the chinampería and the number was around 3700. For 2005-2007, quantification was done again, which wasn’t fair because I plant, and when it’s ready, others harvest because they steal it. That has been taking away the interest in continuing to plant in many native people. That’s why many chinampas have become unproductive. CORENA and the Municipality have programs to reactivate the chinampas; they provide various types of seeds.

LY So, do you think there is a return to the countryside now?

MP Exactly, many people who have lost interest, now their children or grandchildren are interested in taking it up again.

LY Why do you think there was a loss of interest in the countryside?

MP It was lost because many studied and went to the city. I have an office and am more comfortable there than in the chinampa under the sun. If I’ve already studied, why would I be in the countryside? And on top of that, what one plants, another harvests; the interest is lost. Now, some young people are getting interested again in their grandparents’ chinampas They want to make the chinampa beautiful for production or rent it for events, increasing tourism, and we all benefit.

LY It seems city people are now interested in planting, seeding, and being in contact with nature. What is your opinion on this?

MP It’s something positive because someone from outside comes and invests, leaving us with a good economic impact. For us, as service providers, it helps. We don’t make enough for our expenses if we don’t have anyone.

(09) LY The other day, I took a boat tour with a motorised trajinera; during the trip, I saw about eight trajineras with motors. Is that allowed?

MP In 2012, they lent us a canoe with a motor. For me, it was easier to start the motor and make less effort. But what happens with the motor? When the trajinera passes quickly, the carp on the surface don’t have time to dive, and the propeller shreds them. And the most serious thing is that it creates a giant wave that erodes the edges of the chinampas. Also, the oil that the engines emit is highly polluting. If you leave a motorised boat with the engine in the water, you’ll see the oil stain; if you leave ten, it’s not just a stain, and so on. Here in Xochimilco, there are about 5,000 trajineras providing services at all the docks. The traditional way is to continue using the oar. There is a way to get permits, but it’s very murky due to corruption; they are only granted to associations in special cases. However, some people obtain these permits, and what should take four hours for a tour is done in half an hour.

LY Do you think many people are switching to motorised vehicles?

MP On this side, yes, for production and cargo boats. On the other side, there are no motorised boats for tourism because people want tranquillity.

LY You mentioned that many chinampas are abandoned; is that correct?

MP Yes, many chinampas are abandoned. I honestly don’t know the current number. In 2008, 350 hectares of work were made in the neighbourhoods of San Lorenzo, Asunción, and the Ciénega in the Ejido from San Gregorio to San Diego. Maybe today, there are around 1,000 hectares of chinampas, although many are already being invaded by houses. Sometimes, you visit someone you know, and they say, “Hey, but you used to plant here,” and they say, “Yes, but now I live here. My nephew lives here,” etc. Simply here in San Lorenzo, they had already closed the canal and made a road, and bridges were built.

LY Thank you very much for your time and this conversation.

Cover sheet for submission 2023-2024

Programme: Projective Cities, Taught MPhil in Architecture and Urban Design

Name(s): Luis Young

Submission title: Dissertation

Course tutor(s): Platon Issaias, Hamed Khosravi, Anna Font Vacas

Declaration:

“I certify that this piece of work is entirely my/our own and that any quotation or paraphrase from the published or unpublished work of others is duly acknowledged.”

Dissertation submitted in partial fulfilment of the requirements of Thaught Master of Philosophy and Urban Design – Projective Cities

Turn static files into dynamic content formats.

Create a flipbook
Issuu converts static files into: digital portfolios, online yearbooks, online catalogs, digital photo albums and more. Sign up and create your flipbook.