Portafolio Taller 5 Valeria Ramirez

Page 1

VALERIA RAMIREZ

20204032
PORTAFOLIO PROYECTO ARQUITECTURA V Docente: Sebastián Tejeda de Romaña
CG1, CG5, CG6 Propuesta -1.50 CG1, CG5, CG6 ÍNDICE EJERCICIO 1: CAFÉ EN PLAZA FRANCIA ESTACIONAMIENTO E INTEN CIONES PROYECTUALES ENTREGA PARCIAL: PLANIMETRÍA EN 1:500 1 2 Propuesta +1.50 Estacionamientos 1 2 Paneles T2 T1 CG1, CG5, CG6,CG7,CG9 PLanimetría 1 2 maqueta T3 P. 5 P.12 P30
Proyecto en 1:200 ENTREGA SEMANA 13 Planimetría en 1-500 2 Planimetría en 1-200 CG1, CG5, CG6, CG7, CG9 CG1, CG5, CG6,CG7, CG9 1 Planimetría 1 2 Maqueta y escenas T4 CG1, CG5, CG6, CG7, CG9 P.40 P.65 P.86 PLanimetría ENTREGA FINAL 1 2 Maquetas y Escenas T6 CG1, CG3, CG7 P.133 Infromación del curso INFORMACIÓN 1 2 CV i 3 T5

CAFÉ EN PLAZA FRANCIA

CG1, CG5, CG6

T1
4

DESCRIPCIÓN

El primer trabajo sirvió como un reconocimiento y análisis del terreeno asignado en la pLaza Francia del centro de Lima. Consistió en crear un collage que represente los límites entre lo público y privado. La segunda etapa fue diseñar dos propuesta, una enterrada y otra elevada de un café en la Plaza. Se dibujaron plantas, cortes y corte fugado en la escala 1-50,

VALORACIÓN ENSEÑANZA APRENDIZAJE DIFICULTAD

COMENTARIOS

Este trabajo sirvió para refrescar nuestras mentes sobre todo lo aprendido el ciclo anterior. Pude aprender sobre la importancia de tener una expresión gráfica clara para que el proyecto se pueda entender. Tener una idea clara fue clave para este trabajo, ya que me ayudó a mantener el órden.

5

T1 COLLAGE DE PLAZA FRANCIA

PROCESO

La primera clase consisitión en el recono cimiento y análisis de la zona que se traba jará en el ciclo. Fuimos a la plaza Francia y documentamos con fotos diferentes aspec tos de la zona como los materiales, y relaciones tre lo publico y lo privado. Luego se realizó un collage que demuestra los límites formados por los edificios, dónde el color demuestra edificios sin relación con el espacio público y a color edificios que tienen espacios de transición.

6
7

T1 CAFÉ EN PLAZA FRANCIA

PROCESO

Las propuestas del café en la plaza francia partía de la idea de generar espacios sin limites forzados en el espacio publico. La primera idea partió desde la acción de voltear una hoja de un libro. Se tomó la forma de la hoja para levantar un trozo de la plaza, formando un recorrido continuo hasta su terraza, evitanto la interrupción del espacio público.

Por otro lado, la propuesta elevada a 1.5m parte también de concepto de involucrar el recorrido como parte de la arquitectura, por eso el centro de atención está en las rampas circulares que rodean el gran árbol.

FOTO DE IDEA INICIAL
8
PRIMEROS BOCETOS

ISOMETRÍA PROPUESTA -1.50

ISOMETRÍA PROPUESTA +1.50

9
10 PLANTA -1.50 ESC. 1-50
PLANTA TECHOS -1.50 ESC. 1-50 11
18 CORTES -1.50 ESC. 1-50
19 MAQUETA CONCEPTUAL 1/200
18 PLANTA 1 +1.50 ESC. 1-50

PLANTA 0.00 +1.50 ESC. 1-50

PLANO TECHOS +1.50 ESC. 1-50

19
CORTES +1.50 ESC. 1-50

CORTE FUGADO +1.50 ESC. 1-50

ISOMEYRÍA +1.50 ESC. 1-50

1919
PRIMERAS
DISEÑO
CG1, CG5, CG6 12
ESTACIONAMIENTOS Y
INTENCIONES DE
T2

DESCRIPCIÓN

Esta actividad fue la introducción alt rabajo del taller del ciclo. El objetivo es explorar cómo el programa de comercio, cultural y de oficinas se intersectan y la relación que mi proyecto tendrá con la ciudad. La entre consiste en 2 paneles que demuestren en planos 1-500 los tres programas y las intenciones proyectuales. También se entregaron los planos de estacionamientos.

VALORACIÓN ENSEÑANZA APRENDIZAJE DIFICULTAD

COMENTARIOS

Realizar el estacionamiento en un terreno tan estrecho e irregular fue un reto. Sin embargo, e roporcionó una guía de cómo empla zar el resto de los edificios. En cuanto a la forma, traté de arriergar y jugar con ejes diagonales y distribución del programos en los sotanos y hasta el 7 pisos.

13

INTENCIONES DE DISEÑO

PROCESO

Las primeras intenciones de mi proyecto fuerin tener un recorrido continuo desde la calle hasta la ona cultural y comercial del proyecto. Al tener edificios colindantes altos, encontré la manera de abrir el espacio estrecho elevando las zonas más privadas del programa. Utilizé 3 colores para mostras la reción entre los 3 programas .

T2
14
15
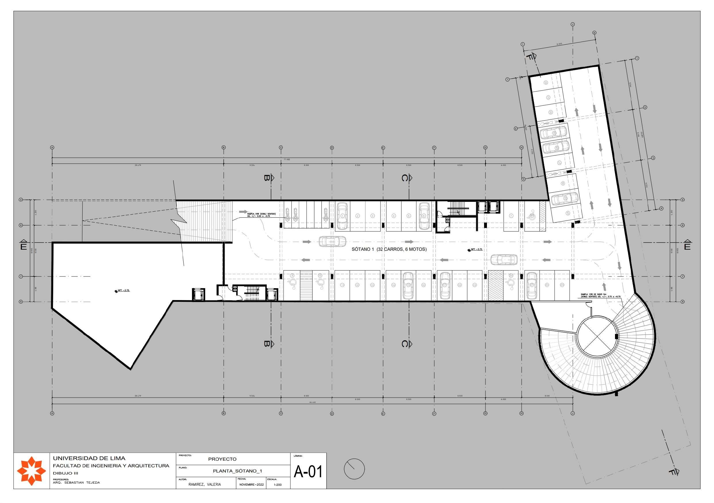
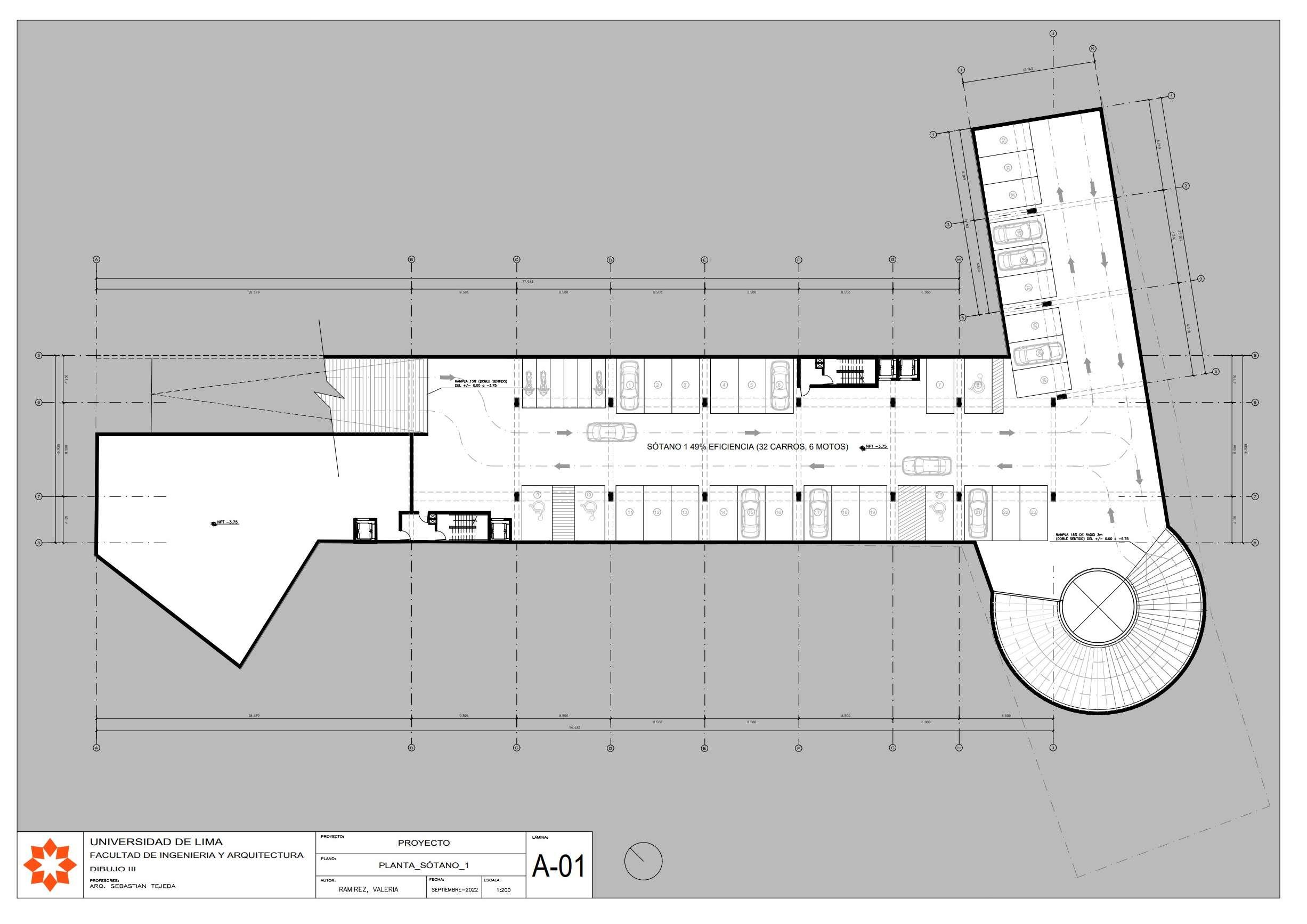
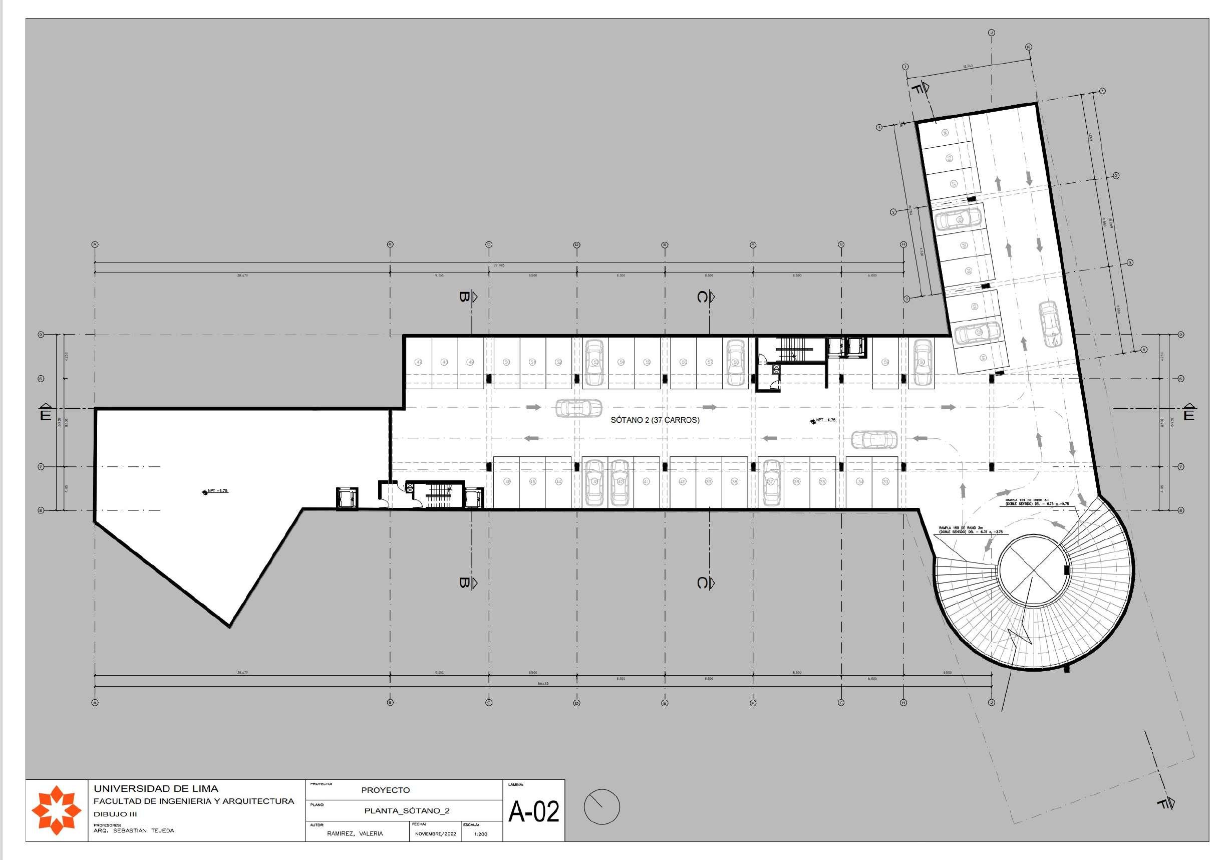
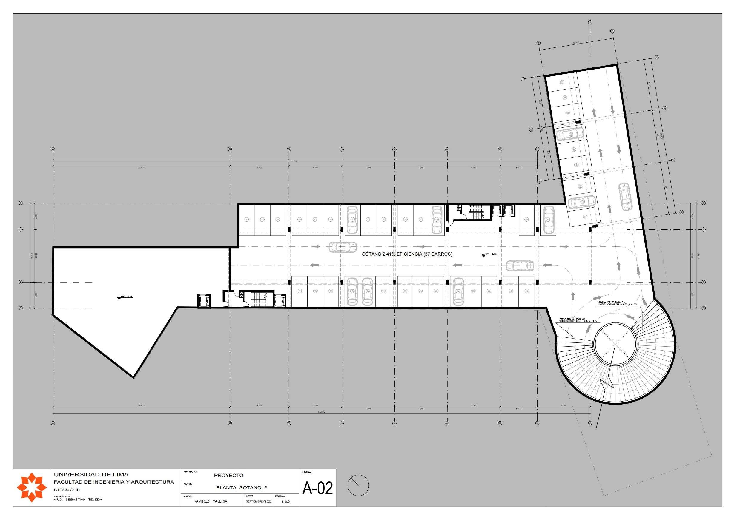
1615 PLANTA ESTACIONAMIENTO 1 1-200
17
18
19
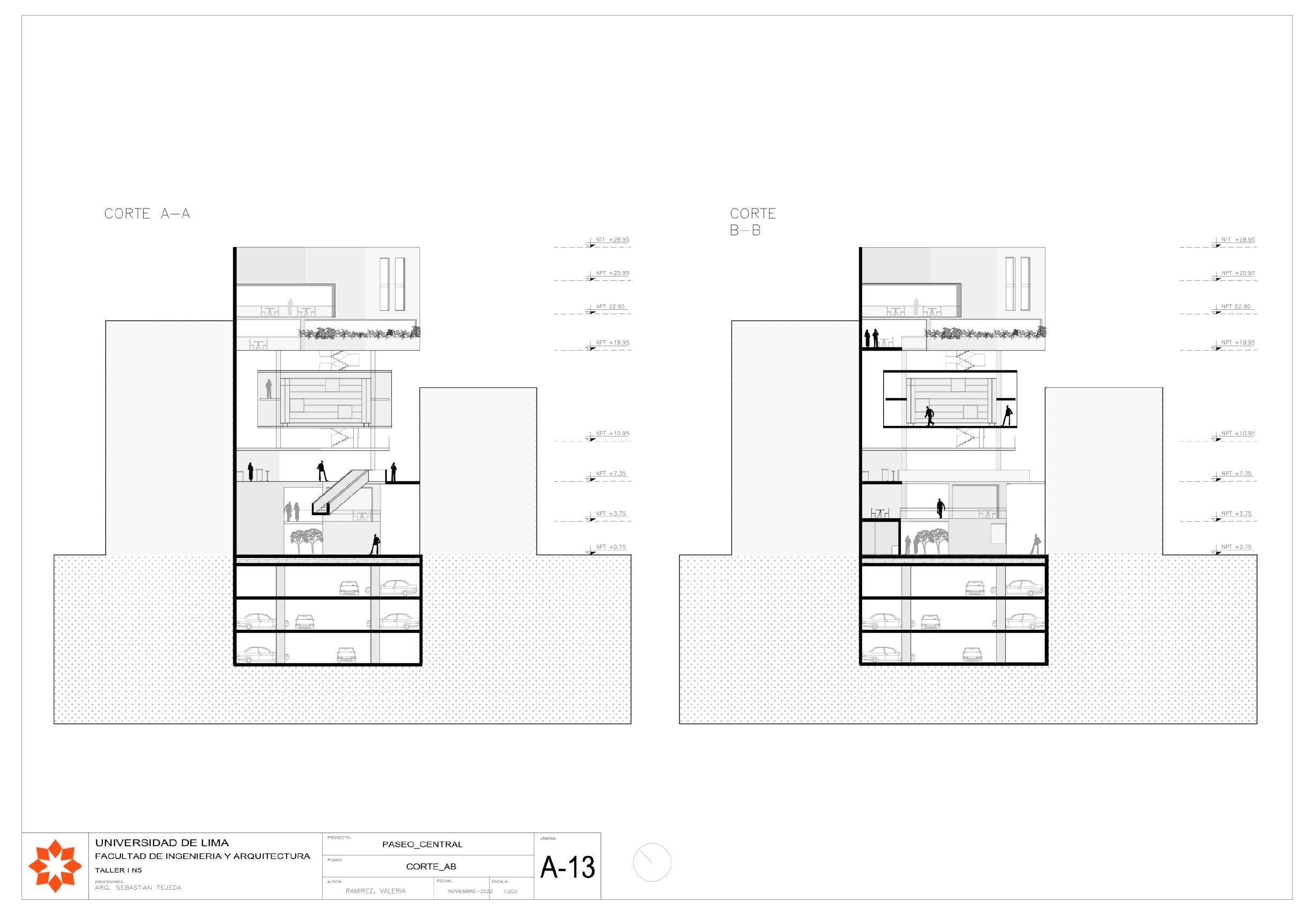
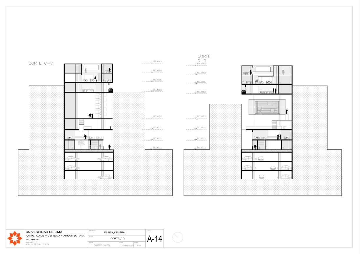
18 CORTES -1.50 ESC. 1-50
19
ENTREGA PARCIAL: EMPLAZAMIENTO T3 CG1, CG5, CG6, CG7, CG9 20

DESCRIPCIÓN

La entega parcial utilizó la plinimentría en 1-500 para poder definir la distribución del programa en el terreno. A parte de la correcci pon de estacionamientos, se entregó las plantas y 8 cortes en papel canson para poder ver cómo evoluciona el programa. También se entregó una maqueta volumétrica en 1-500.

VALORACIÓN ENSEÑANZA APRENDIZAJE DIFICULTAD

COMENTARIOS

Trabajar en la escala 1-500 me ayudó a pensar en el proyecto como un todo sin concentrarme en pequeños detalles. Dibujar muchos cortes fue clave para poder mantener un proyecto dinámico en su totalidad. Al hacer la maqueta me sorprendí con la forma, y me ayudó a ver los puntos fuertes y débiles de mi proyec

21
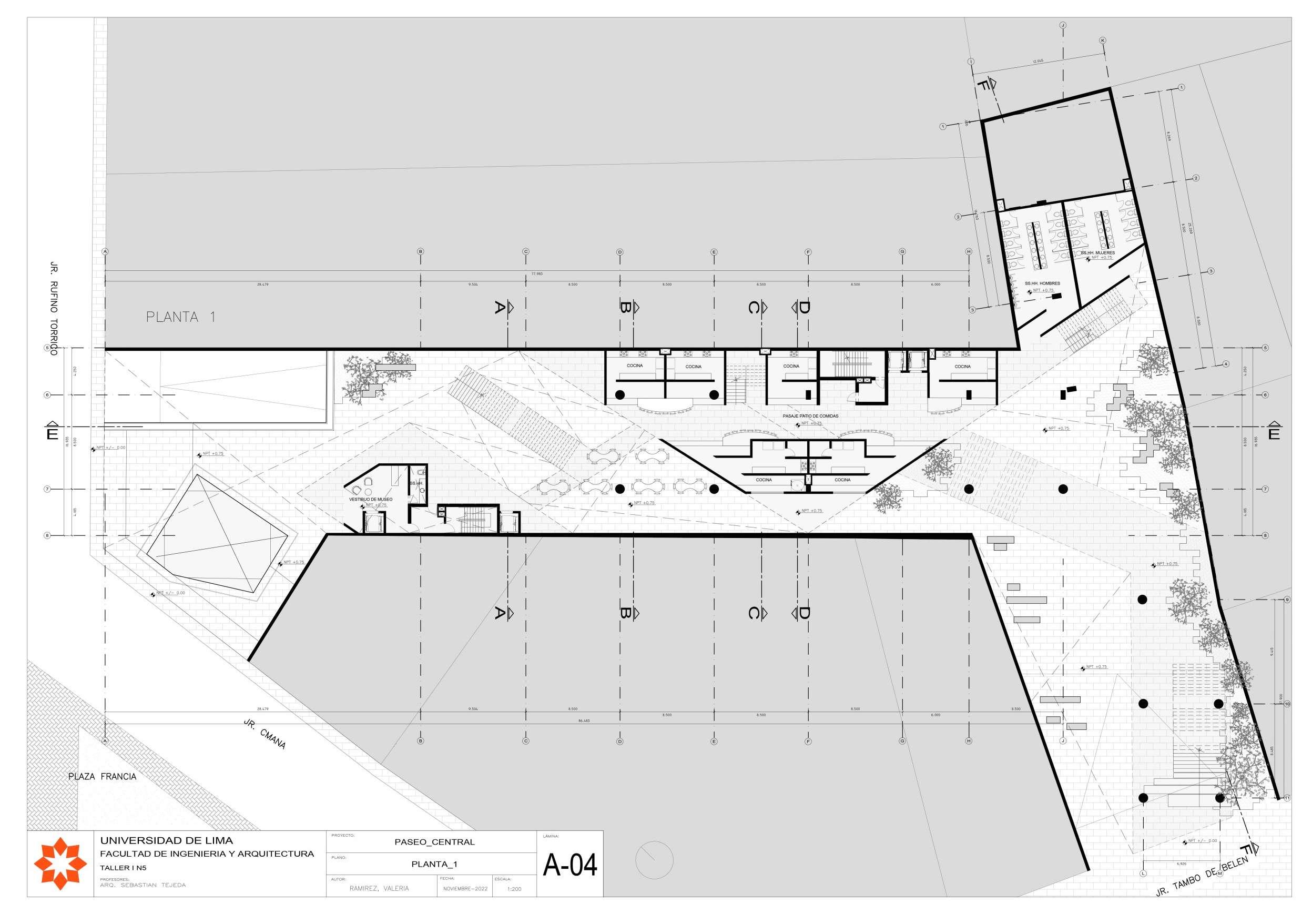
22 PLANTA 00 1-200
23
24 PLANTAS 1-500
25 CORTES 1-500
26 CORTES 1-500
27 MAQUETA 1-500

VALERIA RAMIREZ TI. N.5

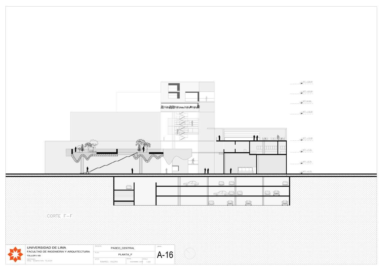
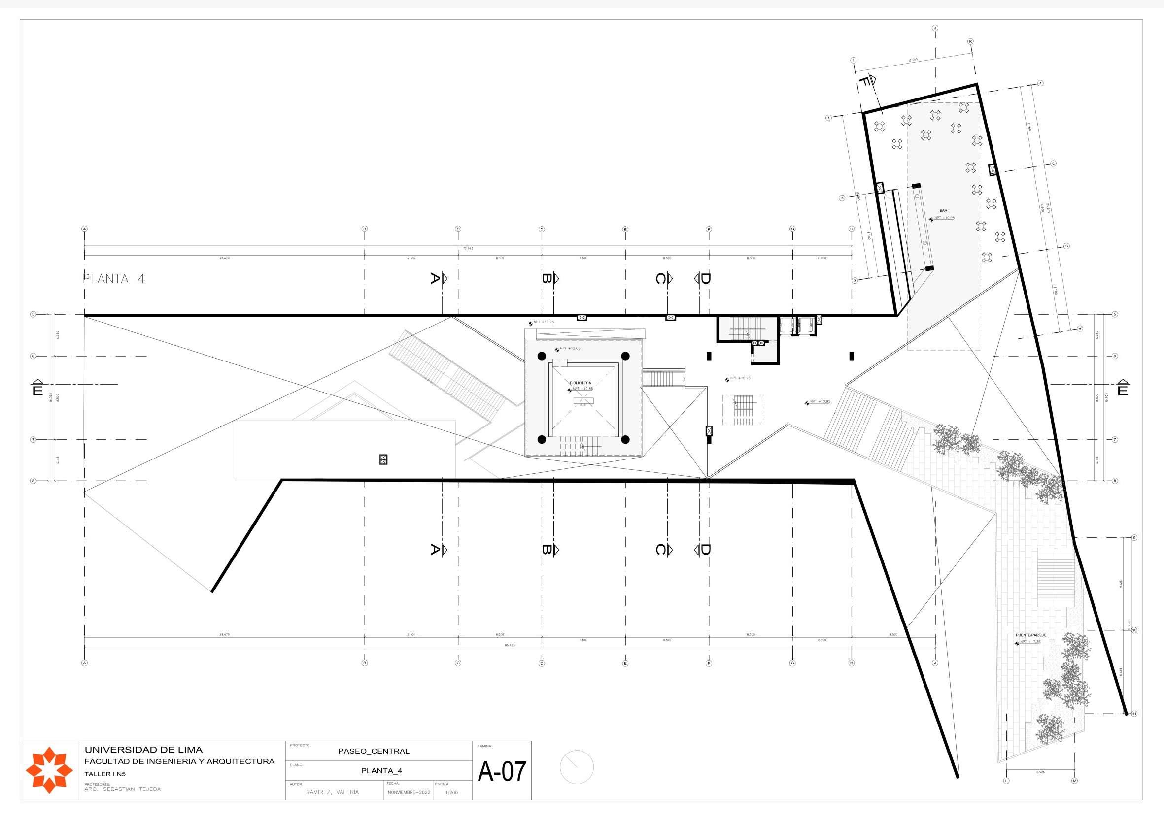
PASEO CENTRAL
CULTURAL PROGRAMA COMERCIAL PROGRAMA DE OFICINAS CIRCULACIÓN
SECCIONES
1 2 3 4 SECCIÓN C-C SECCIÓN D-D SECCIÓN E-E SECCIÓN A -A
PROGRAMA
VOLUMETRÍA
RESUMEN

PROGRAMA: MIXTO

UBICACIÓN: JIRÓN CAMANÁ, LIMA

ÁREA DEL TERRENO:2619m2

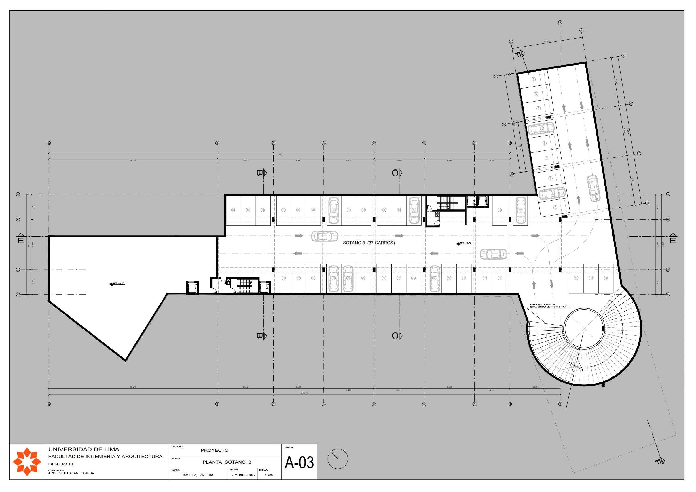
ÁREA LIBRE: 1418 m2 (54%) 109 estacionamientos

PLANO DE UBICACIÓN

19
SECCIÓN F-F SECCIÓN B-B
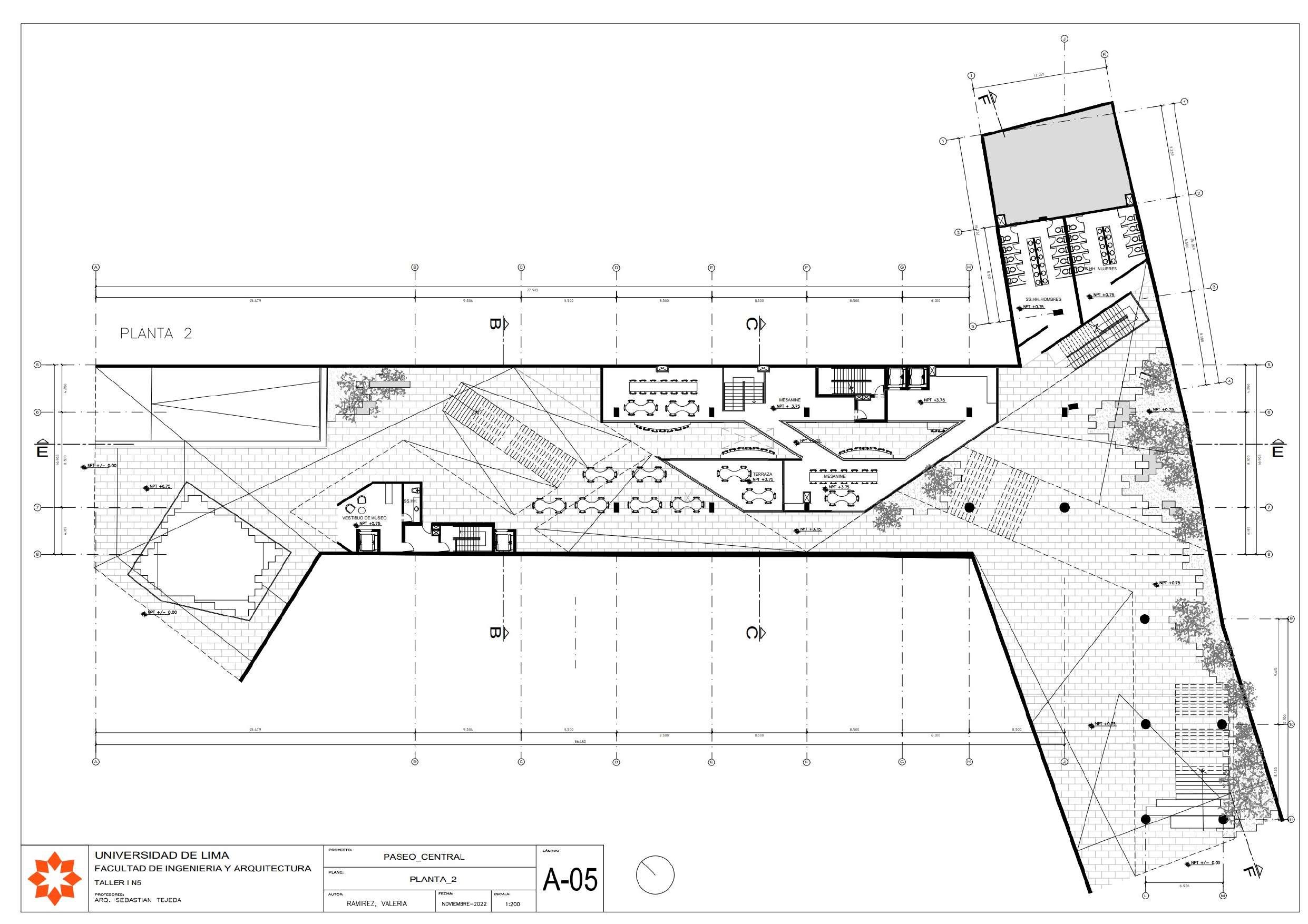
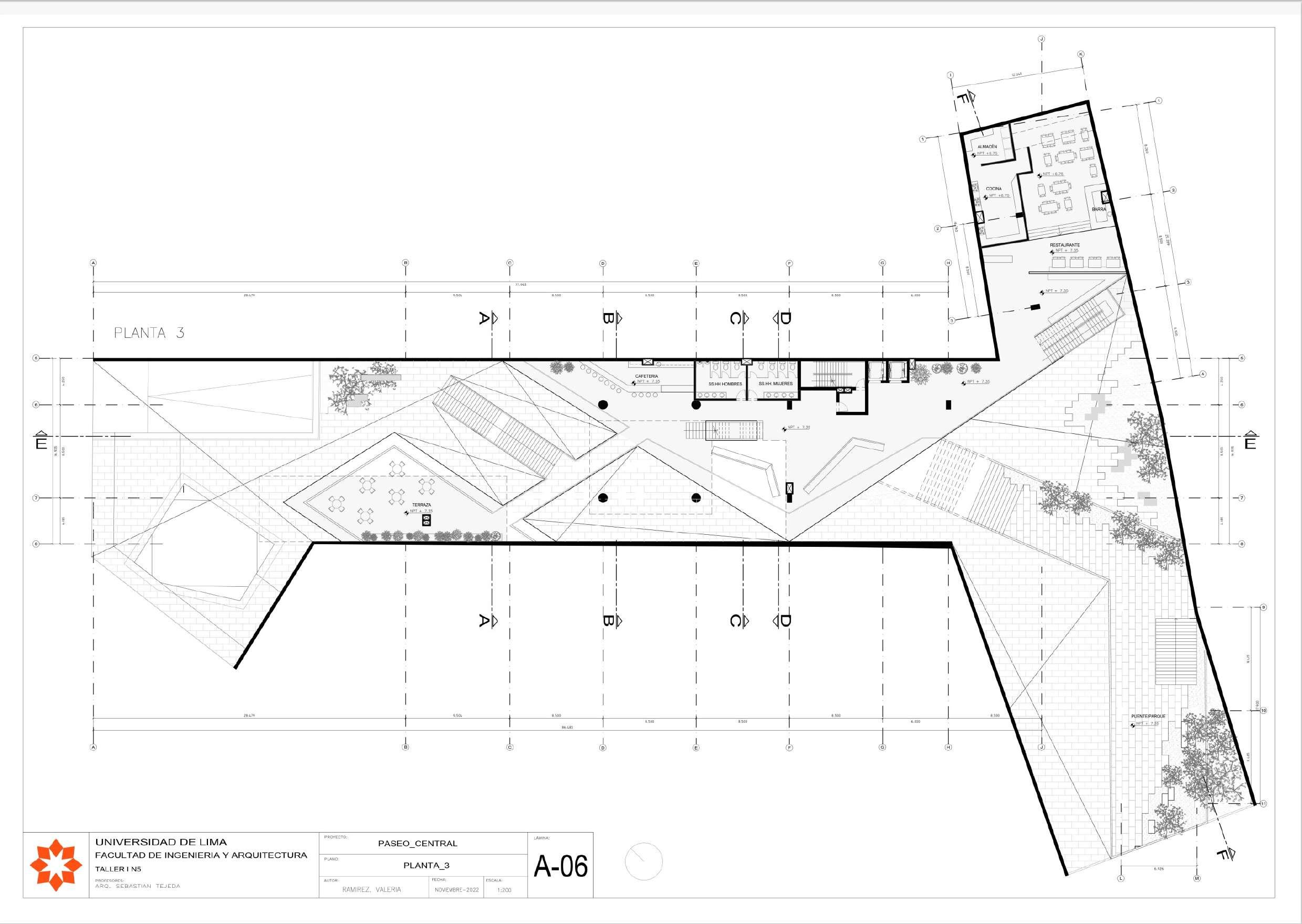
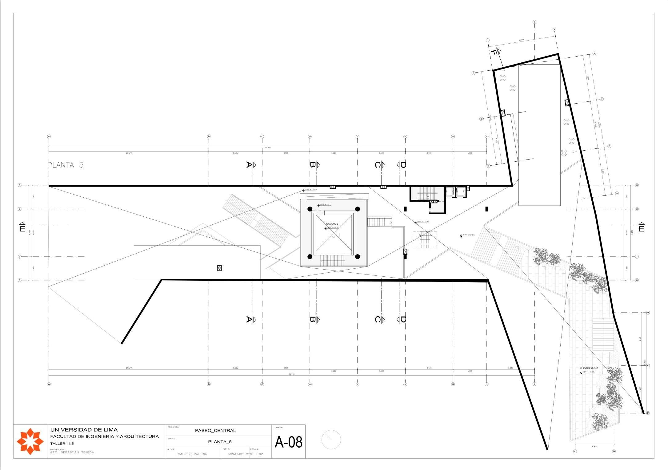
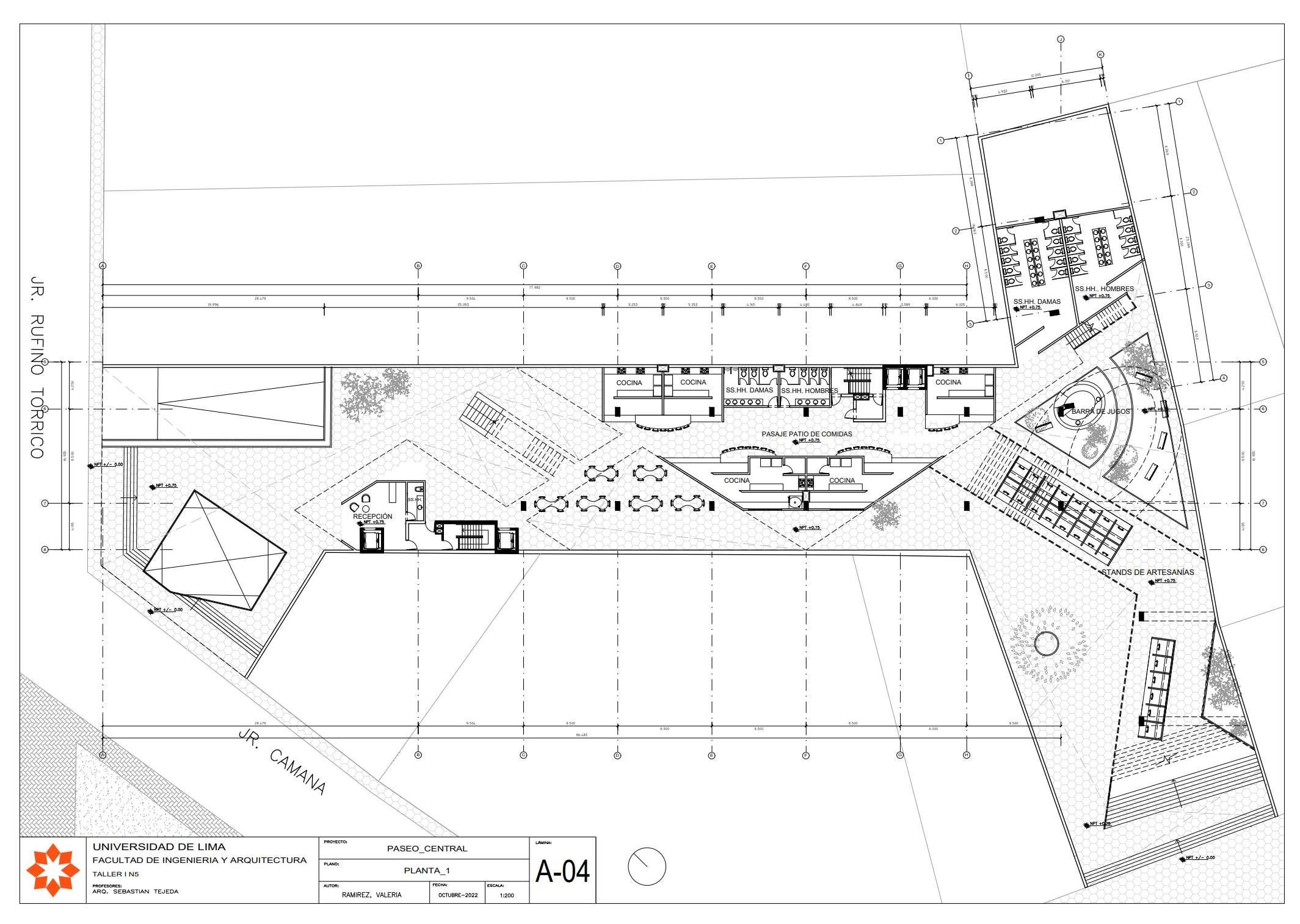
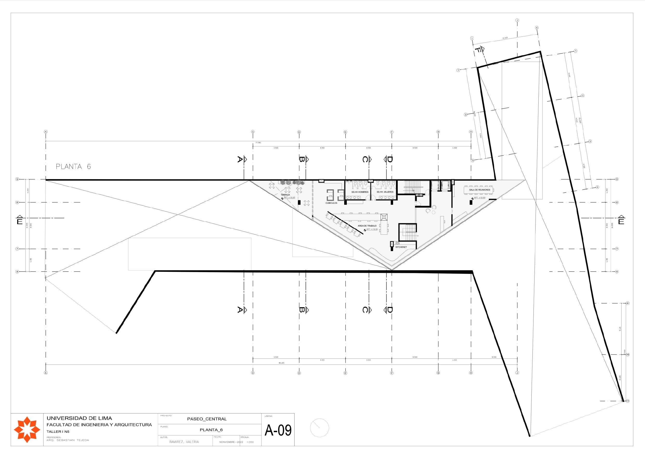
ENTREGA SEMANA 11: PLANIMETRÍA EN 1-200 T4 CG1, , CG5, CG6, CG7, CG9 28

DESCRIPCIÓN

Para la semana 11 se cambió la escala del proyecto, pasando a trabajar en 1-200. La entrega consistió en el desarrolo de las prim eras pantas en 1-200, acompañados por 4 cortes en escala 1-200.

VALORACIÓN ENSEÑANZA APRENDIZAJE DIFICULTAD

COMENTARIOS

La dificultad en esta etapa sis duda fue mucho mayor, pero me ayudó a tomar desiciones dificiles que formaron mi poryecto, manteniendo los elementos más importantes y descartando los que no le sumaban valor.

29

CAMBIO DE ESCALA

PROCESO

empezé a plantear nuevas ideas para agregar complejidad espacial al proyecto. Para empezar, investiguél el refer ente del High Line en Nueva Yprk para descubrir las dimensiones de la estructura y la lista de árbole con raizes pequeñas para poderlas plantar sobre el nivel del suelo. Además agregué macetas en forma derretida que ayudarán a sostener los árboles más grandes.

30
T4
31
PLANTAS 1-500

1-500

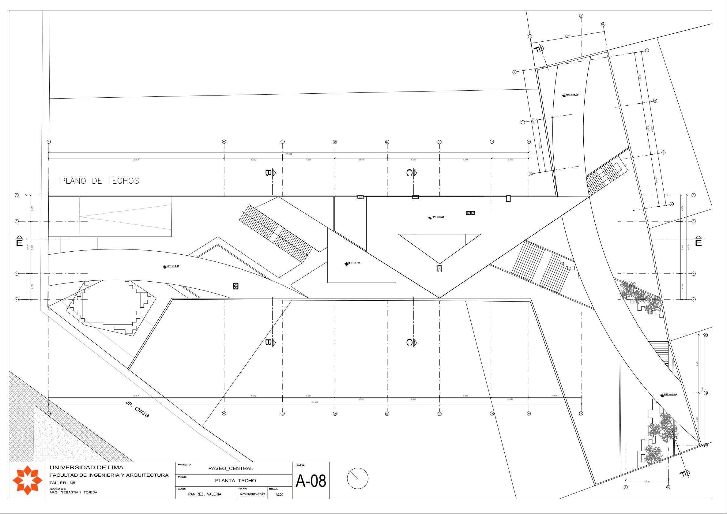
E E B B C C F F UNIVERSIDAD DE LIMA FACULTAD DE INGENIERIA Y ARQUITECTURA PLANTA_TECHOS A-20 PASEO_CENTRAL 32 PLANTAS

CORTES 1-500

33
34
35
18
19 MAQUETA 1-200

SEMANA

CG6, CG7, CG9 36
ENTEGA
13 T5 CG1, CG5,

DESCRIPCIÓN

La entrega de la semana 13 consistió en teminar la entrega gráfica del proyecto, inclutendo plantas, cortes, y escenas. Además se entregó los planos en 500 actualizados y también una maqueta de trabajo en escala 1-200.

VALORACIÓN ENSEÑANZA APRENDIZAJE DIFICULTAD

COMENTARIOS

Esta entrega fue la que encaminó mi proyecto en la mejor direc ción. Encontré la manera para expresar mis ideas gráficamente y sacarle porvecho a las fortalezas de mi diseño. Para esta entre experimenté con la madera balsa para decidir si sería el mejor material para la maqueta final.

37
38
45
ESCENAS
45 MAQUETA 1-200

SEMANA

CG6, CG7, CG9 36
ENTEGA
13 T6 CG1, CG5,

DESCRIPCIÓN

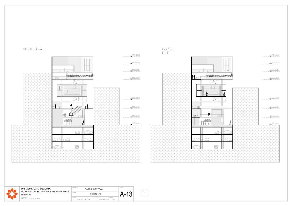
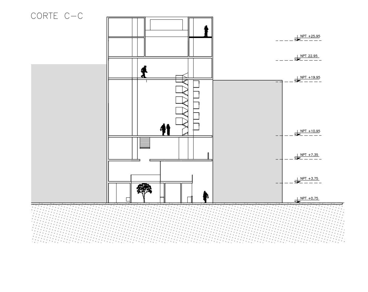
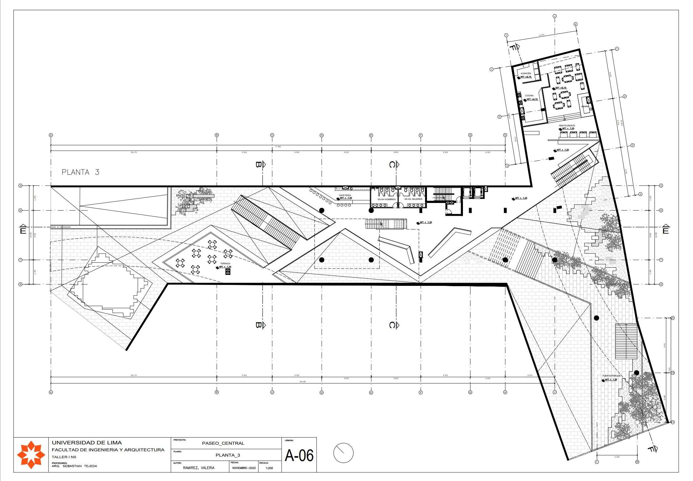
La entrega final del taller abarca todo lo desarrollado durante el ciclo. Para esta etapa, se incluyeron los cortes en 1-50 que nos obligaron a ver una sección del poryecto con más detalle. Esto vino acompañado con una maqueta en corte en esa escala también.

VALORACIÓN ENSEÑANZA APRENDIZAJE DIFICULTAD

COMENTARIOS

Esta etapa final me ayudó a poder ver mi proyecto en su contexto. Escoger las escenas y construir las maquetas me demostró cómo mis inteciones proyectuales se hicieron realidad, y cómo mi rpoy ecto puede darle vida a una zona de Lima que esta olvidada. Este ciclo fue más dificil de lo que me esperaba, pero de motivó a mejorar en cada entrega y lograr mi objetivo final.

3744
PLANIMETRÍA 1-200
CORTES 1-50
ESCENAS
MAQUETA 1/200
19
MAQUETA 1/50
19
46

INFORMACIÓN DEL CURSO

NOMBRE DEL CURSO: Proyecto Arquitectura V

SECCIÓN: 525

PROFESORES: Sebastián Tejeda de Romaña

SUMILLA

Proyecto de Arquitectura V, es una asignatura obligatoria Teórico-Práctica, que forma parte del Taller Vertical. Su desarrollo temático gira en torno al diseño de un objeto arquitectónico o un conjunto de objetos arquitectónicos vinculados o tributarios a un espacio público urbano.

OBJETIVO GENERAL

Intervenir el espacio urbano y proyectar un edificio de uso mixto en función a las dinámicas entre los usuarios y lo construido.

OBJETIVOS ESPECÍFICOS

1.Enfatizar el rol de la arquitectura dentro del paisaje.

2. Considerar el rol de los usuarios dentro de la configuración del paisaje urbano.

3. Conceptualizar la relación entre espacio público, espacio semipúblico y espacio privado.

4. Objetivos de Desarrollo Sostenible - ODS:

- Objetivo 5: Lograr la igualdad entre los géneros y empoderar a todas las mujeres y las niñas

- Objetivo 10: Reducir la desigualdad en y entre los países

- Objetivo 11: Lograr que las ciudades sean más inclusivas, seguras, resilientes y sostenibles

131

Soy Valeria Ramírez, y decidí estudiar arquitectura porque es el balance perfecto de la investigación, estructura y creativi dad. Soy una alumna perseverante, dedicada y perfeccionista que siempre está dispuesta a considerar distintos puntos de vista.

Tuve la gran oportunidad de poder vivir en Curitiba, Brasil durante ocho años. Es una ciudad pequeña, sostenible y ordenada donde las áreas verdes son abundantes y protago nistas en la ciudad. Pude tener una experiencia de primera mano de sistemas de urbanismo que sirvieron de ejemplo para el resto del mundo, como los sistemas de buses que fueron la inspiración para el metropolitano. Teniendo presente dos ciudades tan diferentes (Lima y Curitiba) a lo largo de mi vida, me di cuenta de que hay mucho que aprender en el mundo y por eso espero poder viajar para lograr entender la arquitectura de otras ciudades y emplear en mis proyectos los mejores aspec tos de cada una de ellas.

El Perú es un país que está en un proceso de desarrollo y crecimiento constante, sin embargo, carece de orden. Mi misión personal es lograr crear proyectos con los que el Perú pueda crecer en armonía, donde la estética, ambición y sostenibilidad vayan mano a mano.

EMAIL vramirezquevedo21@gmail.com TELEFONO 51.1. 982280303 FECHA DE NACIMIENTO 21/02/2002 DIRECCION Av. Cerros de Camacho 884. Dpto. 1002 Santiago de Surco
CONTACTO CV - VALERIA ALEJANDRA RAMIREZ QUEVEDO 132
SOBRE MI

EDUCACIÓN

Primaria (2008 - 2014).

International School of Curitiba Secundaria (2014 - 2020).

International School of Curitiba y Colegio Franklin Delano Roosevelt Pre-grado (2020 – Actualidad) Universidad de Lim

ACTIVIDADES ACADÉMICAS

Catedra UNESCO, Ciudad Compacta/ Zoom / 14/10/2020

Conversatorio con egresados / Black board / 16/10/2020

RECONOCIMIENTOS

Proyecto Parcial 1 del curso Proyecto de Arquitec tura I 2020-2 Seleccionada para exposición.

Proyecto Final del curso Proyecto de Arquitectura I 2020-2 Seleccionada para exposición.

Proyecto Final del curso Proyecto de Arquitectura II 2021-1 Seleccionada para exposición.

Proyecto Final del curso Proyecto de Arquitectura III 2021-2 Seleccionada para exposición.

Proyecto Final del curso Proyecto de Arquitectura IV 2022-1 Seleccionada para exposición.

Proyecto Final del curso Proyecto de Arquitectura V 2022-1 Seleccionada para exposición.

Certificado IELTS (idioma inglés)

US Gold Presidential Award Diploma de Bachillerato Internacional Medalla de oro voley de South American Activities Conference

y Pintar

IDIOMAS

MATERIAS EN CURSO 2022-2 INTERESES 13

PROGRAMAS
Adobe InDesign Adobe Photoshop Adobe Ilustrator Imovie Excel Autocad Revit Sketchup
Iglés Español Portugués
Voley Dibujar
Diseño
Proyecto Arquitectura V Dibujo y presentación de proyectos Historia de la arquitectura peruana Acondicionamiento ambiental II Instalaciones I Viajar Repostería
Gráfico

Turn static files into dynamic content formats.

Create a flipbook
Issuu converts static files into: digital portfolios, online yearbooks, online catalogs, digital photo albums and more. Sign up and create your flipbook.