Portafolio Instalaciones I valeria ramirez

Page 1

VALERIA RAMIREZ

20204032
PORTAFOLIO INSTALACIONES I Docente: Erick Redy Calderon Lozano
CG1, CG5, CG8, CG9, CG11 Memoria descriptiva CG1, CG5, CG8, CG9, CG11 ÍNDICE DISEÑO DE RED DE AGUA FRÍA Y CALIENTE DIEÑO DE RED DE DESAGUE Y AGUA CONTRA INCENDIO Laboratorio de agua fría y caliente 1 2 Red de agua fría y caliente Red de desague 1 2 Red de agua contra incendio T2 T1 CG1, CG5, CG8, CG9, CG11 T3 P. 4 P.8 P36
CG1,
P.52 Infromación
INFORMACIÓN 1 2 CV i 3 T5
Laboratorio de razado de tubería agua fría y caliente de un baño Laboratorio de desague y caja de registro CG1, CG5, CG8, CG9, CG11 CG1, CG5, CG8, CG9, CG11 T4 CG1, CG5, CG8, CG9, CG11 P.40 P.44 P.48 Laboratorio de construcción T6
CG3, CG7
del curso

DISEÑO DE RED DE AGUA FRÍA Y CALIENTE

4
T1 CG1, CG5, CG8, CG9, CG11

DESCRIPCIÓN

Este trabajo consistió en realizar el diseño de redes de agua fría y caliente de un edificio multifamiliar de 3 pisos. Además, cálculo de dotación diaria y unidades Hunter, cisterna y tanque elevado. Se realizó también una memoria descriptiva del edificio.

VALORACIÓN ENSEÑANZA APRENDIZAJE DIFICULTAD

COMENTARIOS

Trabajar en grupo para desarrollar la red de agua de un edificio multifamiliar me ayudó a poner en práctica todo lo aprendido en clase. Poder tener en consideranción la red de agua al momento de diseñar es crucial y me servirá para el resto de mi carrera. Saber realizar la dotación tambiés es importnate para poder estimar el gasto de agua propable de un proyecto.

5
6
7
8
9
10
11
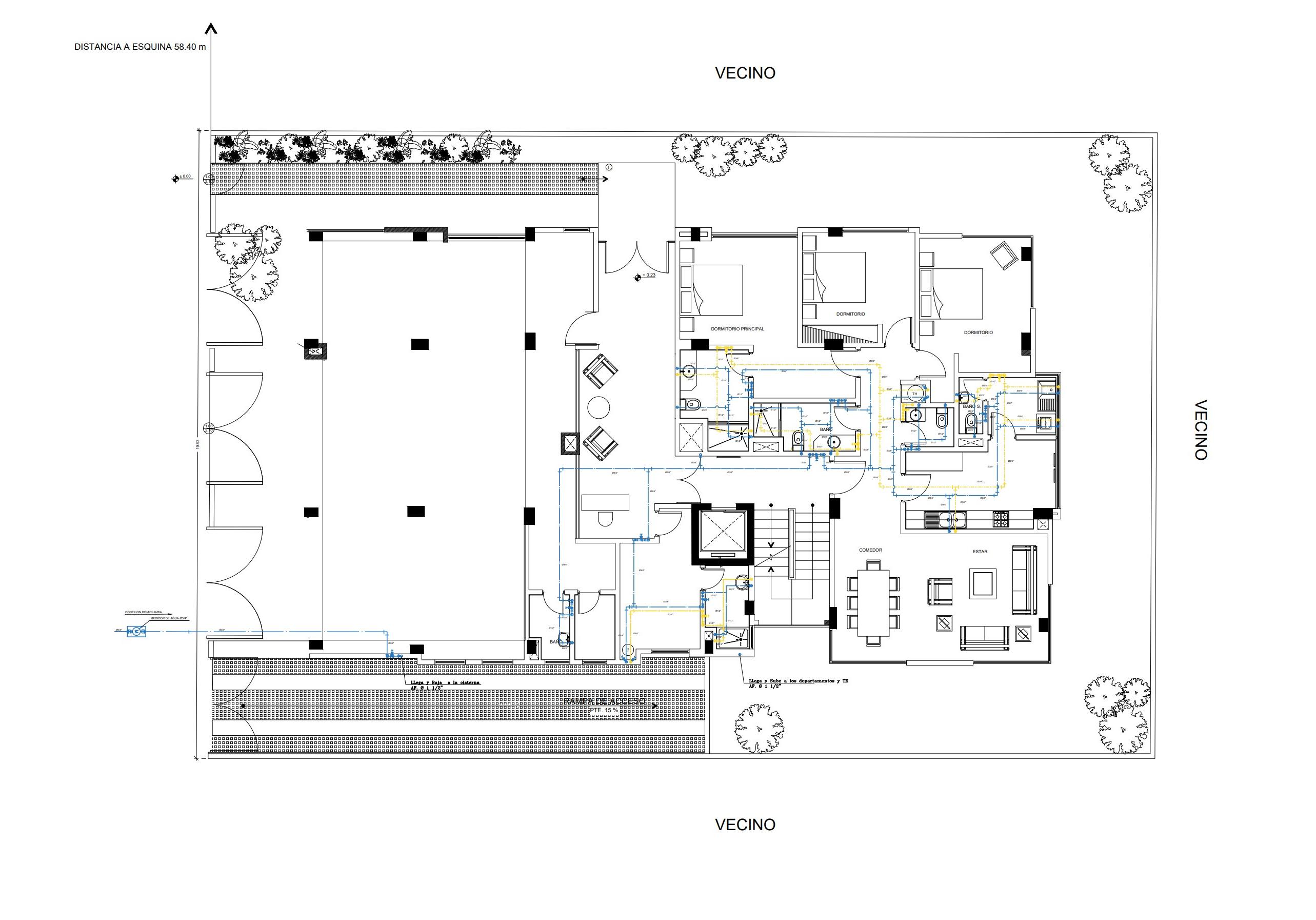
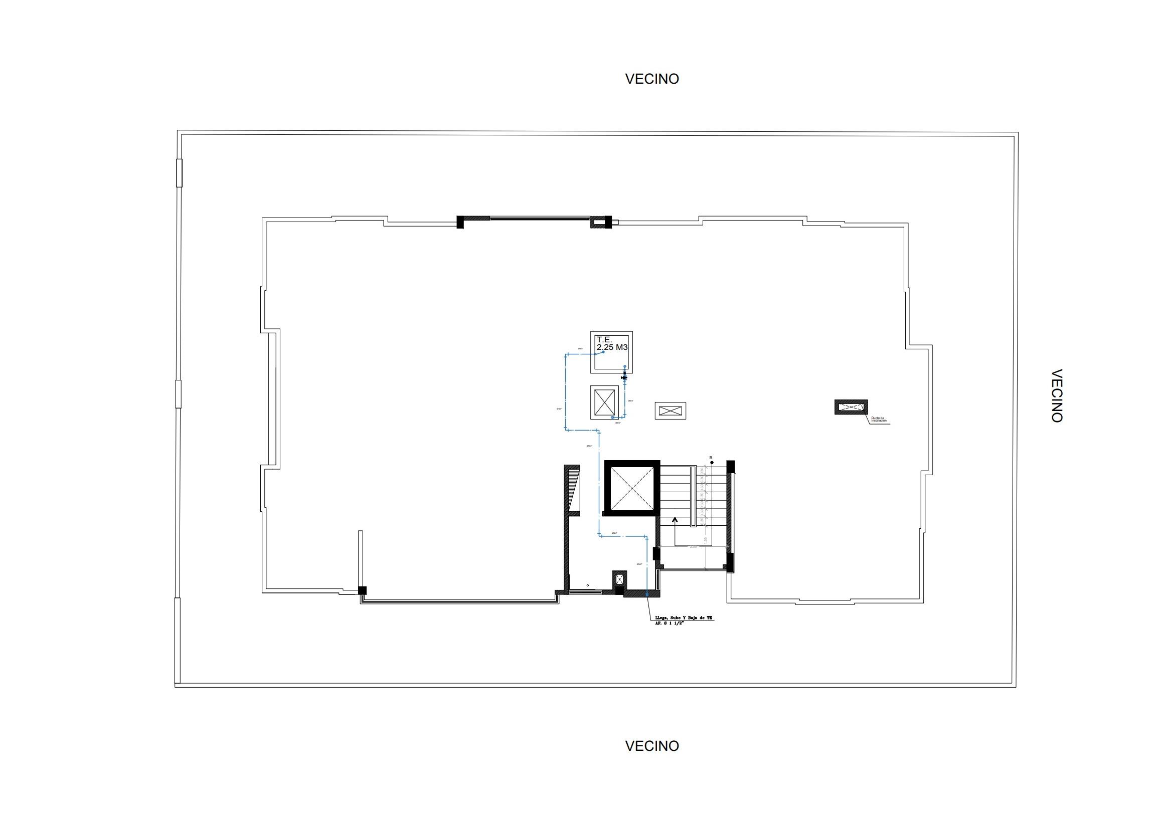
18 PLANTA SÓTANOS
19
18
1
PLANTA
19
PLANTA TÍPICA
19
PLANTA TECHO
19
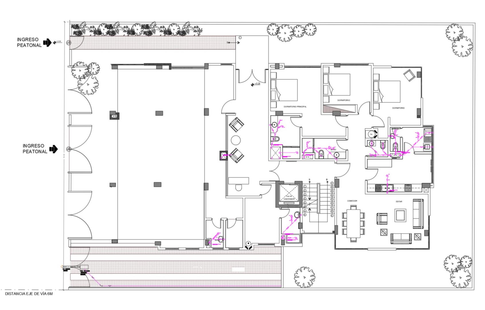
DESAGUE
AGUA CONTRA INCENDIO
CG1, CG5, CG8, CG9, CG11 12
DISEÑO DE
Y
T2

DESCRIPCIÓN

La segunda parte del curso consistió en el diseño de la red de agua contra incendios y desague del edificio multifamiliar elejido, tomando en cuent alas normas de RNE.

VALORACIÓN ENSEÑANZA APRENDIZAJE DIFICULTAD

COMENTARIOS

Esta etapa de curso me ayudó a comprender la red de desague y cómo cambia dependiendo de la necesidades de cada espacio. Es importnate siempre tener el reglamento ala mano. Aprendimos a dimensionar las cajas de registro y dónde localizarlas dentro de una casa o edificio. Este trabajo me dio confianza para poder realizar bien el examen.

13
14 PLANTA SÓTANO
15
1615 PLANTA 1
17
18 PLANTA TÍPICA
19
18 PLANTA TECHO
19
18
CG1, CG5, CG8, CG9, CG11 20
LABORATORIO 1: AGUA FRÍA Y AGUA CALIENTE T3

DESCRIPCIÓN

EL primer laboratorio consistió en la identificación de elementos de la red de agua fría y caliente en una casa para poder armar la muestra de uno de lo baños siguien el plano en Autocad rpopor cionado por el profesor.

VALORACIÓN ENSEÑANZA APRENDIZAJE DIFICULTAD

COMENTARIOS

Este laboratorio nos ayudó a comprender con profundidad lo aprendido en clase. Armar la red con nuestras porpias manos, siguiendo las medidas y reglamento. También pude entender la importancia de tener una red eficiente y precisa para facilitar la intalación.

21

LABORATORIO 2: TRAZADO DE AGUA FRÍA Y CALIENTE DE UN BAÑO

T4 CG1, CG5, CG8, CG9, CG11 2428

DESCRIPCIÓN

El segundo laboratorio consistión en el trazado de la red de agua fria y caliente de un baño en grupos, teniendo en cuante el regla mento y las medidas requeridas entre tubería y sus alturas.

VALORACIÓN ENSEÑANZA APRENDIZAJE DIFICULTAD

COMENTARIOS

Este laboratio fue realizado por cada grupo sin la ayuda del profe sor, lo cual nos obligó a tomar desiciones solor y usar nuestro criterio para diseñar la red, Este labortorio sirvió de práctica para poder realizar las redes del nuestro proyecto.

2925
26
27
3: DESAGUEY CAJA DE REGISTRO
CG1, CG5, CG8, CG9, CG11 36
LABORATORIO
T5

DESCRIPCIÓN

El tercer laboratorio consistió en armar las cajas de registro de una casa. Se aprendió sobre las pizas y accesorios del desague y luego cada grupo armó su caja de registro.

VALORACIÓN

ENSEÑANZA APRENDIZAJE DIFICULTAD

COMENTARIOS

19 18
El laboratorio no enseñó sobre la función de cada accesorio, lo cual es crucial para poder identificar errores en una red de desa gue. Después de constuir las cajas de registro, aprendimos sobre la inclinación de la red dependiendo del diametro de la tubería., lo cual nos ayudó a identificar las inclinaciones de cada tramo de la red de nuestro proyecto, Aprender esto requisitos es muy impor tante para evidad atoros en las tubería y asegurar el flujo del desa gue, 37
CG8, CG9, CG11 30
LABORATORIO 4: CONSTRUCCIÓN DE RED DE DESAGUE T6 CG1, CG5,

DESCRIPCIÓN

El último laboratorio consistión en el diseño de red de desague de un baño. Cada grupo se encargó de determinar los accesorios necesarios para completar la red y conectarla a la caja de registro.

VALORACIÓN ENSEÑANZA APRENDIZAJE DIFICULTAD

COMENTARIOS

Aprender sobre la red de desague y poder aplicarla a diferentes situaciones es una habilidad crucial para un arquitecto y nos servirá durante toda la carrera y nuestra vida profesional par apoder supervisar obras y eviitar errores en etapas tempranas.Este curso fue algo completamente nuevo y desconocido, pero lo aprendido será siempre relevante.

31
32
33
34

INFORMACIÓN DEL CURSO

NOMBRE DEL CURSO: Instalaciones I

SECCIÓN: 521

SUMILLA

Instalaciones 1 es una asignatura de carácter teórico práctico obligatoria destinada a desarrollar la capacidad de definir, desarrollar, representar, coordinar, y supervisar los sistemas de instalaciones sanitarias y gas de un proyecto de edificación según la normativa vigente, así como desarrollar la capacidad de trabajo en equipo con compromiso ético y de calidad.

OBJETIVO GENERAL

Desarrollar la capacidad de definir, desarrollar, representar, coordinar y supervisar las instalaciones sanitar ias y de gas de un proyecto de edificación, tomando en cuenta los estándares de calidad para ejercer el rol de coordinador principal de proyectos, así como conocer las consideraciones necesarias para su correcta aplicación y compatibilización durante el proceso de diseño arquitectónico, optimizando el funcionamien to y seguridad de la edificación y de los usuarios.

OBJETIVOS ESPECÍFICOS

Comprender el proceso de diseño, construcción, operación y mantenimiento de las instalaciones sanitarias y de gas para proyectos de edificación, desarrollando el pensamiento crítico para enmarcarse dentro de los requerimientos arquitectónicos y regulatorios aplicables, y de sostenibilidad a través del desarrollo de un trabajo escalonado y progresivo que va integrando los diseños de los componentes básicos de las instalaciones sanitarias para una edificación multifamiliar.

2. Desarrollar un enfoque crítico y creativo para el procesamiento de la información mínima necesaria para el diseño, construcción, operación y mantenimiento de las instalaciones sanitarias y de gas para proyectos de edificación, recon ociendo los requerimientos básicos para su integración y compatibilización con el diseño arquitectónico, estructural, eléctrico y demás instalaciones complementarias a través de la revisión de estudios de casos aplicativos.

3. Desarrollar las habilidades para desarrollarse y la capacidad de trabajar en equipo, planificando gestionando adecuadamente la participación de sus integrantes, demostrando capacidad de autocrítica y compromiso ético.

4. Objetivos de Desarrollo Sostenible – ODS:

- Objetivo 5: Lograr la igualdad entre los géneros y empoderar a todas las mujeres y niñas.

- Objetivo 10: Reducir la desigualdad en y entre los países

35

Soy Valeria Ramírez, y decidí estudiar arquitectura porque es el balance perfecto de la investigación, estructura y creativi dad. Soy una alumna perseverante, dedicada y perfeccionista que siempre está dispuesta a considerar distintos puntos de vista.

Tuve la gran oportunidad de poder vivir en Curitiba, Brasil durante ocho años. Es una ciudad pequeña, sostenible y ordenada donde las áreas verdes son abundantes y protago nistas en la ciudad. Pude tener una experiencia de primera mano de sistemas de urbanismo que sirvieron de ejemplo para el resto del mundo, como los sistemas de buses que fueron la inspiración para el metropolitano. Teniendo presente dos ciudades tan diferentes (Lima y Curitiba) a lo largo de mi vida, me di cuenta de que hay mucho que aprender en el mundo y por eso espero poder viajar para lograr entender la arquitectura de otras ciudades y emplear en mis proyectos los mejores aspec tos de cada una de ellas.

El Perú es un país que está en un proceso de desarrollo y crecimiento constante, sin embargo, carece de orden. Mi misión personal es lograr crear proyectos con los que el Perú pueda crecer en armonía, donde la estética, ambición y sostenibilidad vayan mano a mano.

EMAIL vramirezquevedo21@gmail.com TELEFONO 51.1. 982280303 FECHA DE NACIMIENTO 21/02/2002 DIRECCION Av. Cerros de Camacho 884. Dpto. 1002 Santiago de Surco
CONTACTO CV - VALERIA ALEJANDRA RAMIREZ QUEVEDO 132 18
SOBRE MI

EDUCACIÓN

Primaria (2008 - 2014).

International School of Curitiba Secundaria (2014 - 2020).

International School of Curitiba y Colegio Franklin Delano Roosevelt Pre-grado (2020 – Actualidad) Universidad de Lim

ACTIVIDADES ACADÉMICAS

Catedra UNESCO, Ciudad Compacta/ Zoom / 14/10/2020

Conversatorio con egresados / Black board / 16/10/2020

Adobe

RECONOCIMIENTOS

Proyecto Parcial 1 del curso Proyecto de Arquitec tura I 2020-2 Seleccionada para exposición.

Proyecto Final del curso Proyecto de Arquitectura I 2020-2 Seleccionada para exposición.

Proyecto Final del curso Proyecto de Arquitectura II 2021-1 Seleccionada para exposición.

Proyecto Final del curso Proyecto de Arquitectura III 2021-2 Seleccionada para exposición.

Proyecto Final del curso Proyecto de Arquitectura IV 2022-1 Seleccionada para exposición.

Proyecto Final del curso Proyecto de Arquitectura V 2022-1 Seleccionada para exposición.

Certificado IELTS (idioma inglés)

US Gold Presidential Award Diploma de Bachillerato Internacional Medalla de oro voley de South American Activities Conference

MATERIAS EN CURSO 2022-2

Proyecto Arquitectura V Dibujo y presentación de proyectos Historia de la arquitectura peruana Acondicionamiento ambiental II Instalaciones I

InDesign Adobe Photoshop Adobe Ilustrator Imovie Excel Autocad Revit Sketchup PROGRAMAS
Iglés Español Portugués
13
IDIOMAS Voley Dibujar y Pintar Diseño Gráfico Viajar Repostería INTERESES

Turn static files into dynamic content formats.

Create a flipbook
Issuu converts static files into: digital portfolios, online yearbooks, online catalogs, digital photo albums and more. Sign up and create your flipbook.