2023 - Portfolio

Page 1

PORTFOLIO YADER III MORRAZ 2017 - 2023

ARCHITECTURAL DESIGN

Year: 2022

Built Area: 684.61 m²

Location: Waspan & Alamikamba, RAAN, Nicaragua

This project consists of a group belonging to a mixed typology which consists of offices and assistance spaces because it belongs to the Nicaraguan Red Cross.

The project was designed to be built in two places in the RAAN (Waspan and Alamikamba) because they are strategic points visualized within the CRN action plans.

Its design is formally designed to implicitly separate public spaces from private spaces without losing the administrative dynamics that certain offices in the complex must exercise.

The shape arises in response to the most obvious problems in the area, which are related to strong winds during hurricane seasons.

CRN - AID STATION INSTITUTIONAL

EXTERNAL PERSPECTIVE

INTERNAL PERSPECTIVE

CRN - AID STATION INSTITUTIONAL

EXTERNAL PERSPECTIVE

Year: 2021

Built Area: 113.42 m²

Location: Managua, Nicaragua

Machado Zeledon’s Residence is a one-story house, located at km 10 south highway, managua.

As internal spaces it has: Living room/kitchen/dining room

3 bedrooms

3 bathrooms

The design is inspired by rationalism as an architectural reference.

Structurally it is designed in reinforced masonry, and also has a single pitch roof with overhangs.

MACHADO ZELEDON’S HOUSE RESIDENTIAL

MACHADO ZELEDON’S RESIDENCE

LÁMINA TROQUELADA CAL 26 TIPO FERROMAX E-25 PREPINTADA 7% PENDIENTE

FLASHING DE LÁMINA DE ZINC GALVANIZADO CAL 26 DOBLADO EN FRÍO IMPERMEABILIZAR CON DOS CAPAS DE IMPERFAST EN UNIONES Y REMACHES

PARED DE DENSEGLASS- PERFILERÍA USG CAL 26 3-5/8"

PARED DE MAMPOSTERÍA REFORZADA, BLOQUE DE 6" - REPELLO 1:5, VER REFUERZOS EN PLANOS ESTRUCTURALES

CASCOTE DE PISO DE 2000 PSI + ENCHAPE DE BALDOSA FORMATO 45 x 60 - COLOR SELECCIONADO POR EL

RESIDENTIAL GSPublisherVersion 0.0.100.100 ACCESO W LAVANDERÍA 113 BODEGA 2 114 TANQUE 114 116 PORCHE 100 1 9 A A G G 2 4 3 E E D D 8 7 5 C C F F 6 10 B 7.500 1.715 1.285 1.500 1.000 0.450 1.550 16.500 3.150 1.700 2.650 0.500 1.700 1.300 3.000 1.000 1.500 PASILLO 105 S S P 103 W C 104 HAB 2 106 HAB 3 108 HAB P 102 SALA COMEDOR 101 S S 109 BODEGA 1 110 COCINA 111 S S 107 TERRAZA 112 D01 A300 ±0.000 +2.800 +3.400 0.850 0.650 0.750 1.150 4.272
FALSO SEGÚN CASO
CIELO
CLIENTE COMPACTACIÓN DE TERRENO AL 95% PROCTOR
9 8 7 6 5 3 2 1 D03 #LayID 15.000 1.000 3.000 1.300 1.700 3.150 1.700 3.150 -0.450 ±0.000 +2.800 +3.400 3.850 0.450 2.800 0.600 N.P.T:±0.000 N.C:+2.800 N:+3.400 2.250 0.550 P2 P2 SALA / COMEDOR F1 C1 F1 C1 F1 C1 M1 A2 M1 A2 C3 C3 C4 C4 F3 M1 A2 M2 A3 M2 A3 M1 A2
MACHADO ZELEDON’S RESIDENCE RESIDENTIAL
EXTERNAL PERSPECTIVE LIVING ROOM / DINING ROOM

Year: 2018

Built Area: 390.43 m²

Location: Managua, Nicaragua

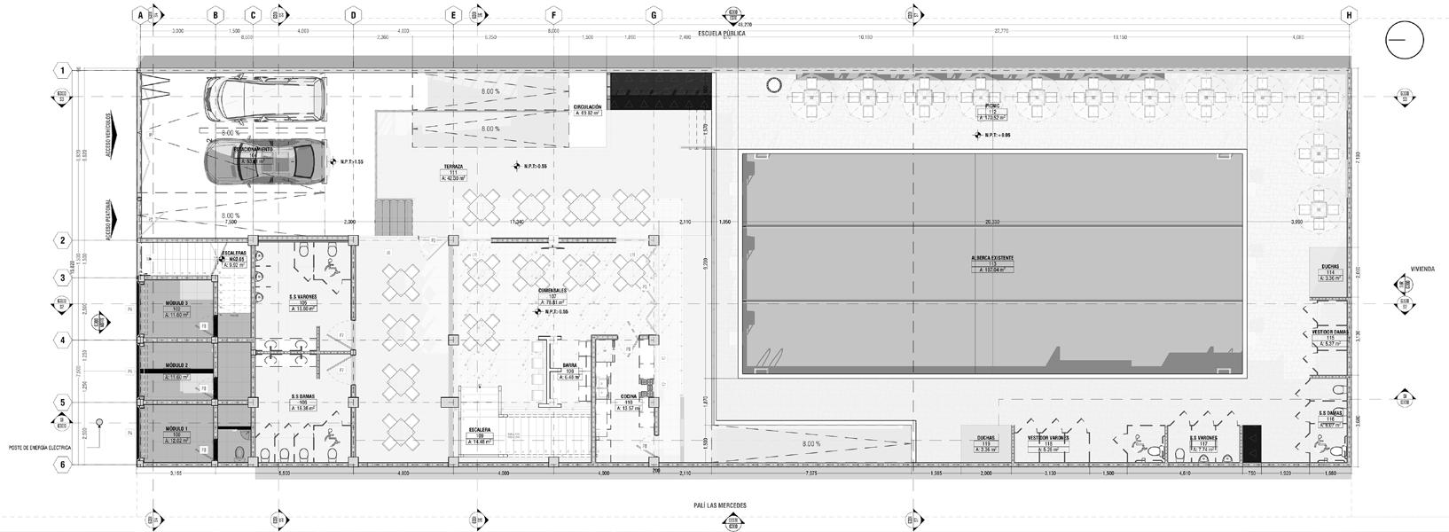
The design takes as its starting point the rehabilitation of an existing pool in order to use it to provide training for CRN staff. Among the most relevant criteria are:

· Rehabilitate the pool and integrate complementary areas such as changing rooms, bathrooms and showers.

· Design a terrace on the second level with a view of the pool.

· Design five commercial modules in front of the architectural complex with independent access.

· Due to the topographic configuration of the site, which is divided into three terraces, it is necessary to create elements that facilitate the movement of people with reduced mobility.

Its structural system is designed as a reinforced concrete frame with isolated foundations and its construction system as confined masonry of concrete blocks.

EXTERNAL PERSPECTIVE

TRAINING CENTER LAS MERCEDES - CRN INSTITUTIONAL

EXTERNAL PERSPECTIVE

EXTERNAL PERSPECTIVE

TRAINING CENTER LAS MERCEDES - CRN INSTITUTIONAL
TRAINING CENTER LAS MERCEDES - CRN INSTITUTIONAL

Year: 2018

Built Area: 200.15 m²

Location: Granada, Nicaragua

The Morales Cordonero Residence is a two-story house, located in the department of Granada.

It has a designed into two levels and two volumes. As interior spaces it has:

2 living rooms/kitchen/dining room

4 bedrooms

3 bathrooms

1 maid’s room

The design is inspired by rationalism as an architectural reference.

Structurally it is designed in confined masonry, and also has a single pitch roof with overhangs at different levels.

EXTERNAL PERSPECTIVE

MORALES CORDONERO’S HOUSE RESIDENTIAL
GSPublisherVersion 0.0.100.100 P2 P2 4 V P P5 P6 P2 P P 6 P 7 a V 8 P 5 PE PE P 6 P 7 V P 4 P 1 CPA10 A450 PA20 A450 PA30 A452 PA41 A500 0.315 2.160 0.600 1.440 0.300 1.800 1.125 1.275 4.500 0.900 1.625 0.215 3.815 1.260 1.000 1.240 0.935 2.000 0.900 1.690 1.210 2.300 1.150 0.985 0.215 0.900 2.500 0.215 0.315 4.200 0.300 3.200 2.750 1.500 1.565 1.135 1.290 0.500 0.315 4.200 0.300 4.200 1.750 0.500 0.315 3.653 0.548 0.300 0.900 1.275 0.600 2.050 0.950 0.150 0.900 0.625 0.600 1.550 1.625 0.215 1.185 0.200 1.000 1.135 3.300 1.000 2.100 1.000 0.800 2.070 0.800 1.605 0.075 0.990 0.975 0.090 1.605 0.800 O IE-01 450 N S O IE-02 450 W IE-03 452 ACOMETIDA ELÉCTRICA SALA DE ESTAR 113 N P T:+0 00 HAB 1 112 N P :+0 00 S S 1 111 N P T:+0 00 S S 2 110 N P T:+ 00 HAB 109 N P T:+0 00 PATIO INTERNO 114 N P T:+0 00 SALA 2 102 N P T:+0 00 COMEDOR 103 N P T:+0 00 PASILLO 107 N P T:+0 00 ÁREA DE SERVICIO 108 N P T:+ 00 JARDÍN 101 N P T:+ 00 ESTACIONAMIENTO 101 N P :+0 00 TERRAZA 100 N P T:+ 00 JARDÍN 2 100 N P T:+0 00 JARDÍN N P T:+ 00 JARDÍN 4 100 N P T:+0 00 PASILLO 100 N P T:+ 00 S S 105 N P T:+0 00 3 10 11 12 13 14 15 16 17 18 19 20 R B B C C F F G G 2 2 5 5 11 11 13 13 E E 7 9 12 12 14 14 10 10 6 6 4 4 3 3 D D A A H H 8 8 CD 5 V P2 V b P2 V P3 16.255 0.090 0.075 4.500 3.000 1.500 1.500 3.000 0.075 2.400 0.115 11.150 0.075 0.075 1.450 2.050 0.075 0.275 1.100 2.050 0.275 0.075 1.080 1.340 1.080 0.075 0.075 16.255 0.090 0.075 4.500 3.000 1.500 1.500 3.000 0.075 2.400 0.115 11.150 0.075 0.075 1.450 2.050 0.075 1.375 2.325 0.075 1.080 1.340 1.080 0.075 -06 300 S-06 300 -07 300 S-07 300 -08 300 -08 300 S09 A 30109 A 301 S10 A 301 S10 A 301 S11 A 301A 301 SA-01 500 SA-01 A500 SA02 A 500 SA02 A 500 CF-01 300 CF-01 A300 CF02 A 301 CF03 A 301 # DrgID # LayID 200 N 200 O A 200 S 200 COCINA 104 N P T:+ 00 HAB 3 106 N P :+0 00 I H G F E D C B A CF-01 A300 N.P.T:±0.000 N.P.T:+3.000 N.P.T:±0.000 N.P.T:+3.000 0.350 2.650 1.000 1.400 0.600 6.000 2.800 0.200 0.900 1.500 0.600 3.000 3.000 3.200 0.550 0.500 1.900 16.050 2.400 0.075 3.000 1.500 1.500 3.000 4.500 0.075 BARANDAL DE ACERO CONTRAPISO DE CONCRETO CON MALLA ELECTROSOLDADA CON BALDOSA MONOCOLOR SATINADA FORMATO 45 60 COLOR GRIS CLARO 1A ENTREPISO DE CONCRETO CON MALLA ELECTROSOLDADA CON BALDOSA MONOCOLOR SATINADA FORMATO 45 60 COLOR GRIS CLARO 1A PARED DE BLOCK DE CONCRETO FORMATO 40x20x15cm PUERTA DE MADERA MACIZA Y VIDRIO DE mm TRANSPARENTE DOS HOJAS CORREDIZAS Y UNA HOJA FIJA P PUERTA DE MADERA MACIZA Y VIDRIO DE mm TRANSPARENTE DOS HOJAS CORREDIZAS Y UNA HOJA FIJA P6 VENTANA TIPO GUILLOTINA MARCO DE MADERA Y VIDRIO V10 VENTANA CORREDIZA MARCO DE MADERA Y VIDRIO LÁMINA TROQUELADA MAX ALUM40 PENDIENTE DEL 50% CIELO FALSO DE GYPSUM DE 1 2 ACABADO THINSET COLOR BLANCO MATE ABANICO DE TECHO MODELO DEFINIDO POR CLIENTE ABANICO DE TECHO MODELO DEFINIDO POR CLIENTE CONTRAPISO DE CONCRETO CON MALLA ELECTROSOLDADA CON BALDOSA MONOCOLOR SATINADA FORMATO 45 60 COLOR GRIS CLARO 1A P3 VENTANA CORREDIZA MARCO DE MADERA Y VIDRIO CIELO FALSO DE DUROCK DE 1 2 ACABADO THINSET COLOR BLANCO MATE 106 104 103 102 200 MORALES CORDONERO’S HOUSE RESIDENTIAL

EXTERNAL PERSPECTIVE

INTERNAL PERSPECTIVE

MORALES CORDONERO’S HOUSE RESIDENTIAL

Year: 2017

Built Area: 287.36 m²

Location: Matagalpa, Nicaragua

This project consists of a modular building designed to function as a clinic and laboratory. The building has two levels and is planned to be constructed in two stages.

The first stage contains on its first level two laboratories assisted by a sampling space. On the other hand, its second stage includes four medical offices on the first level and a second conference room designed to function as a meeting space for the clinic staff.

EXTERNAL PERSPECTIVE

ALFA MEDICAL / COMMERCIAL

ESPECIFICACIONES TECNICAS EL EDIFICIO ESTA DISENADO PARA SER CONSTRUIDO EN DOS ETAPAS DIFERENTES LAS CUALES SERAN EJECUTADAS EN DOS MOMENTOS RESPETAR LOS RETIROS PROYECTADOS EN CADA UNO DE LAS PRESENTES LAMINAS SE RECOMIENDA EL USO DE LOS MATERIALES INDICADOS EN LAS ESPECIFICACIONES PARA EVITAR PROBLEMAS CON EL DIMENSIONAMIENTO ESPACIAL INTERNO FAVOR RESPETAR EL ESPACIO DE AREAS VERDES DEBIDO A QUE ESTOS ESTAN PENSADOS COMO FUTUROS ESPACIOS DE CRECIMIENTO UN DADO CASO QUE EL EDIFICIO REQUIERA IMPLEMENTAR NUEVAS ESCALERAS O SERVICIOS SANITARIOS

ALFA MEDICAL / COMMERCIAL 1 2 4 P/ /3 P 3 P / 2 V / 5 V / 5 P 5 V / 7 P / P/ /3 V / 8 / P/ /3 P 3 V 6 P 3 P / 4 P 3 V / 10 E F F J ACCESO 21.80 8.57 1.00 21.80 1.00 3.30 1.80 1.00 2.30 3.30 1.80 3.30 1.90 4.60 1.90 2.00 3.50 2.00 0.75 2.75 2.00 3.00 3.00 1.70 5.50 2.75 1.25 1.50 2.00 3.00 3.00 1.70 8.60 6.25 2.32 8.40 20.70 0.15 0.85 20.70 1.13 A500 A500 501 A501 A 202 A 201 A200 A200 A 203 A 201 201 A200 EI-02 A600 EI-01 600 SEGUNDA ETAPA SEGUNDA ETAPA 6#12 Ø #12 Ø 2 LOBBY 100 LABORATORIO 101 TOMA 102 MUESTRAS E 103 MÓDULO 1 101 PASILLO MÓDULO 3 104 MÓDULO 2 103 MÓDULO 4 107 MÓDULO 5 105 S S 102 SERVICIO 106 INCINERADOR 105 ÁREA VERDEÁREA VERDEÁREA VERDEA A 1 5 5 O O 3 3 4 4 B D D K K L L M M N N 2 H H V / V / 2 A301 A300 A301 300 A303 A301 A303 A301 304 A301 304 A301 305 A301 305 A301 A300 201 300 A201 A302 A300 A302 300 A306 301 A306 301 400 400 400 400 401 401 401 401 A402 A401 A402 A401 A403 A401 A403 A401 307 400 307 400 P 3 / P 3 P/ P 3 P / 3 P / 3 C G A501 202 201 A200 A200 203 201 20.86 8.56 1.80 1.00 2.30 1.80 3.30 8.55 2.00 3.50 20.70 8.40 8.40 2.75 2.00 3.00 3.00 1.70 2.75 #DrgID #LayID #DrgID #LayID SEGUNDA ETAPA PASILLO SALA DE CONFERENCIAS 206 MÓDULO 6 203 MÓDULO 7 204 MÓDULO 8 205 S S V 208 S S M 207 A 1 O 3 3 4 4 B D K L M N 2 H V / 2 A301 A300 A301 300 A303 A301 304 A301 305 A301 A302 A300 A302 300 A306 301 401 401 401 401 A402 A401 A402 A401 A403 A401 307 400 V / 7 P / 2 V / 10 V / 10 P / 2 /9 V / 10 /2 V / 10 V / 2 V / 2 TABLA DE AREA ID100 101 101 102 102 103 103 104 105 105 106 107 AMBIENTE ÁREA VERDE PASILLO LOBBY LABORATORIO MÓDULO 1 S S TOMA MÓDULO 2 MUESTRAS E MÓDULO 3 INCINERADOR MÓDULO 5 SERVICIO MÓDULO 4 AREA CALCULADA 13 04 24 30 30 05 11 55 18 15 2 79 6 60 9 90 11 55 9 90 3 23 9 90 3 23 9 90 164 09 m² OBSERVACIONES 01 AREA SEGUNDO NIVEL ID200 201 202 203 204 205 206 207 208 AMBIENTE PASILLO SALA S S H S S M MÓDULO 6 MÓDULO 7 MÓDULO 8 SALA DE CONFERENCIAS S S M S S V AREA CALCULADA 19 80 6 93 5 61 5 61 9 90 9 90 9 90 50 40 2 81 2 81 123 67 m² OBSERVACIONES 6.25 0.92 0.77 0.15 0.15 0.50 0.83 0.83 0.83 0.83 0.83 0.83 0.50 0.15 500 CALLE CIPRES CIPRES CIPRES CIPRES CIPRES CIPRES CIPRES 0.90 0.65 4.45 0.63 0.63 0.63 0.63 0.35 HACIA PASILLO AGAVE AGAVE AGAVE AGAVE AGAVE A101 PLANTA
ARQUITECTÓNICA - PRIMER NIVEL 1:50
2.98 0.43 0.10 3.02 0.48 3.50 3.50 1.00 8.00 N.P.T:±0.00 +1.50 +2.10 NC:+2.98 N.P.T:+3.50 +5.20 +6.50 +6.80 +7.00 NS:-0.30 CUBIERTA DE LÁMINA TROQUELADA MAX ALÚM -25 PENDIENTE DEL 5 25% CIELO RASO DE GYPSUM DE SOPORTADO POR PERFIL USG CAL# 26 PASTEADO LIJADO COLOR BLANCO MATE LOSA DE ENTREPISOS GALVADECK CAL#20 P75 INODORO AMERICAN STANDARD MODELO SELECCIONADO POR PROPIETARIO CASCOTE DE CONCRETO REFORZADO CON MALLA ELECTROSOLDADA BLOQUE DE CONCRETO DE REPELLO AMBAS CARAS COLOR BLANCO MATE CIELO FALSO DE GYPSUM DE SOPORTADO POR PERFIL USG CAL# 26 PASTEADO LIJADO COLOR BLANCO MATE DUROCK DE 1 ACABADO THINSET SOPORTADO POR PERFILERIA USG CAL#26 FASCIA DE DUROCK DE 1 2 COLOR BLANCO FLASHING DE LÁMINA LISA GALVANIZADA CAL#26 CABADO CORROSTOP 2 MANOS VENTANA DE MARCO DE ALUMINIO COLOR NEGRO MATE VIDRIO 4MM CUBIERTA DE LÁMINA TROQUELADA MAX ALÚM -25 PENDIENTE DEL 15 23% DUROCK DE 1 ACABADO THINSET SOPORTADO POR PERFILERIA USG CAL#26 VENTANA DE MARCO DE ALUMINIO COLOR NEGRO MATE Y VIDRIO MM LAMPARA CUADRADA ESCOGIDA POR PROPIETARIO BALDOSA 33 33 COSTA AVOREO HUESO 2 5 3 3.50 3.54 1.40 0.30 0.10 0.30 ±0.00 +1.50 +3.00 +3.50 +7.00 +3.80 +5.20 +6.60 0.30 1.40 1.40 1.40 0.44 CUBIERTA DE LÁMINA TROQUELADA MAX ALÚM -25 PENDIENTE DEL 25% CIELO RASO DE GYPSUM DE 1 SOPORTADO POR PERFIL USG CAL# 26 PASTEADO LIJADO COLOR BLANCO MATE CIELO FALSO DE GYPSUM DE 1 SOPORTADO POR PERFIL USG CAL# 26 PASTEADO LIJADO COLOR BLANCO MATE PARTICIÓN DE COVINTEC DE REPELLO AMBAS CARAS COLOR BLANCO ACABADO MATE FLASHING DE LÁMINA LISA GALVANIZADA CAL#26 CABADO CORROSTOP 2 MANOS BLOQUE DE CONCRETO DE REPELLO AMBAS CARAS COLOR BLANCO MATE BALDOSA 33X33 COSTA D AVOREO HUESO A LABORATORIO MÓDULO VENTANA DE MARCO DE ALUMINIO COLOR NEGRO MATE Y VIDRIO 4MM VENTANA DE MARCO DE ALUMINIO COLOR NEGRO MATE Y VIDRIO 4MM B LOSA DE ENTREPISOS GALVADECK CAL#20 P75 CASCOTE DE CONCRETO REFORZADO CON MALLA ELECTROSOLDADA TIPO P 1 / P 3 P 4 P 5 VISTA BOQUETE 85× 40 65×2 10 90×2 10 00× 10 1 50× 10 TABLA DE PUERTAS TIPO V/ V 2 V 3 V 4 VISTA BOQUETE 80×0 50 0 50×1 40 35× 55 1 30× 55 TABLA DE VENTANAS A402 CORTE POR FACHADA 1:25 A401 CORTE POR FACHADA 1:25 yader tercero arquitectura PROYECTO: CLINICA DE ESPECIALIDADES UBICACIÓN SEBACO MATAGALPA INFORMACIÓN DE LA PROPIEDAD N CATASTRAL A O B K L M N D H ± 00 ± 00 + 50 + 50 + 00 + 00 2.00 3.50 2.75 2.75 2.00 3.00 3.00 1.70 20.70 8.30 3.50 3.50 2.40 0.58 0.43 0.40 2.75 1.45 1.00 7.30 3.50 3.50 0.30 0.30 2.10 1.40 1.60 0.50 1.40 NS:-0.30 NS:-0.30 PARTICIÓN DE COVINTEC DE REPELLO AMBAS CARAS COLOR GRIS OSCURO ACABADO MATE CIELO RASO DE GYPSUM DE 1 2 COLOR BLANCO CUBIERTA DE LÁMINA TROQUELADA MAX ALÚM -25 PENDIENTE DEL 15 23% VENTANA DE MARCO DE ALUMINIO COLOR NEGRO MATE VIDRIO MM PUERTA ABATIBLE DE MADERA MACIZA ESPECIE ESCOGIDA POR PROPIETARIO DUROCK DE 1 2 ACABADO THINSET SOPORTADO POR PERFILERIA USG CAL#26 CUBIERTA DE LÁMINA TROQUELADA MAX ALÚM E-25 PENDIENTE DEL 15 23% DUROCK DE ACABADO THINSET SOPORTADO POR PERFILERIA USG CAL#26 VENTANA DE MARCO DE ALUMINIO COLOR NEGRO MATE VIDRIO MM LOSA DE ENTREPISOS GALVADECK CAL#20 75 CIELO FALSO DE GYPSUM DE SOPORTADO POR PERFIL USG CAL# 26 BLOQUE DE CONCRETO DE REPELLO AMBAS CARAS COLOR BLANCO MATE CASCOTE DE CONCRETO REFORZADO CON MALLA ELECTROSOLDADA SEGUNDA ETAPA CELOSÍA METÁLICA EMPOTRADA PAREDES DE MAMPOSTERÍA PASILLO PASILLO PUENTE SALA DE ESPERA PASILLO PATIO SALA DE CONFERENCIAS P 3 P 3 P 3 P V 3 3 3 4 V V V 4 V V A301 SECCIÓN ARQUITECTÓNICA 1:50
ALFA MEDICAL / COMMERCIAL
HALL PERSPECTIVE SECOND LEVEL HALL

VISTANA VICTORIA’S MALL COMMERCIAL / OFFICES

Collaboration with ESTUDIO84

Year: 2018

Built Area: 11,495.57 m²

Location: Managua, Nicaragua

AERIAL PERSPECTIVE

Collaboration in a team led by Architect Yuri Blandino. Participation consisted in architectural design of facades and development of architectural plans of the complex.

The architectural complex consists of two blocks; within one of these blocks there are two old buildings that were previously used as warehouses, which were renamed Building H and Building I.

The design of the complex contains 9 buildings which have been named from the letter A to the letter I. The project integrates 31 modules for wholesalers, 2 modules for retailers, 2 modules for banks, a building dedicated to gastronomy, a general store and 4 modules for wholesale merchants with a higher sales volume or companies that require a large space.

Collaboration with ESTUDIO84

COMMERCIAL / OFFICES
VISTANA VICTORIA’S MALL
I
G
E / D / C
E
BUILDING
BUILDING
BUILDING
BUILDING
1 2 3 4 5 6 7 8 9 10 11 12 13 14 15 16 13 12 11 10 9 8 7 6 5 4 3 2 1 15 14 1 3 4 5 6 7 8 9 10 11 12 13 14 15 16 17 18 19 20 21 1 2 2 3 4 5 6 7 8 9 13 12 11 10 9 8 7 6 5 4 3 2 1 R 2500 < MARKERDRAWINGNUMBER R > < MARKERSHEETNUMBER R > O GNA200 N GN-A200 GN-A200 # DrgID # LayID MARGINAL CARRETERA PANAMERICANA NORTE MARGINAL CARRETERA PANAMERICANA NORTE ÁREA VERDE CASETA DE VIGILANCIA CASETA DE VIGILANCIA CONJUNTO PLANTA ARQUITECTÓNICA DE CONJUNTO PROPUESTO ESCALA 1:300
DESARROLLO PBX 88136000 -mail info@estudio84 net www estudio84 net EDIFICIO FECHA 10 05 2018 CONTENIDO EDIFICIO CORTE POR FACHADA - 01 CORTE POR FACHADA - 02 CORTE POR FACHADA - 03 PROPIETARIO DISEÑO Y DESARROLLO DEL PROYECTO ARQ YADER TERCERO MORRAZ ESTUDIO84 ARQUITECTURA ARQ FRANCIS ZEPEDA RIVERA LIC MTI N° 10579 FIRMA PROFESIONALES RESPONSABLES PROYECTO PLAZA COMERCIAL INFORMACIÓN DE LA PROPIEDAD MOD MODIFICACIONES RESP DESCRIPCIÓN FECHA DIBUJÓ LÁMINA 1 2 DA- 9 E- 500 DA- 22 E-A501 N.P.T:+52.380 N.P.T:+55.880 N:+60.880 N:+55.180 8500 150 2400 400 700 750 2575 1525 150 N:+54.780 3500 5000 1351 MONITOR DE TECHO DE LÁMINA GALVANIZADA COLUMNA METÁLICA TIPO CM5 VENTANA DE GUILLOTINA DE ALUMINIO ANODIZADO ACABADO NATURAL VIDRIO DE MM REFLECTIVO COLOR GRIS 2400 400 324 376 CUBIERTA DE LÁMINA TROQUELADA REF LÁMINA BANDEJA SSP500 SOLCON PENDIENTE DEL 14 05% BARANDAL DE ACERO DE TUBO REDONDO 38mm SISTEMA DE ENTREPISOS PLYCEM VER CATÁLOGO DE PROVEEDOR PARA CONOCER DIMENSIONES Y CRITERIOS CONSTRUCTIVOS PARTICIÓN DE LÁMINA TROQUELADA REF= LÁMINA BANDEJA SOLCON SSP380 SOPORTADA POR ESTRUCTURA METÁLICA PARED DE MAMPOSTERÍA CONFINADA DE BLOQUE DE 6 ACABADO APARENTE LADRILLO O BLOQUE SISADO LOSA DE CONCRETO LUJADO CRYSTAL CONCRETE DE CRM SE DEBERÁ UTILIZAR LAS PROPORCIONES NECESARIAS PARA NO INCREMENTAR LA PULIDA Y OBTENER UN ACABADO NO RESBALISO MARCO METÁLICO ESTRUCTURAL DIMENSIONES FUNDACIONES DEFINIDAS POR ESPECIALISTA LÁMINA DE POLICARBONATO CELULAR REF= MAKROLON 3 MULLTI-UV COLOR OPAL ESPESOR 16mm 50cm DE ANCHO VIGA DE CONCRETO TIPO VC VIGA METÁLICA TIPO VE1 FLASHING DE LÁMINA DE ACERO ESMALTADO 24 ATORNILLAR PARED DAR DOS MANOS DE PINTURA ANTICORROSIVA CORROSTOP PENDIENTE DEL 2% CLAVADOR DE PARED TIPO P2 CORTINA METÁLICA ARROLLABLE PARED DE POLIURETANO ISOBOX DE 6 EN ACABADO ACANALADO Y FIJACIÓN A VISTA REF=(MARCA ISOCINDU COLOR GRIS SILVER G9006 BARANDAL DE ACERO DE TUBO REDONDO 38mm SOLDADO A ESTRUCTURA DE ESCALERA METÁLICA COLUMNA METÁLICA TIPO CM5 A A´ DA-E E- 500 DA-E10 E- 500 N:+55.180 N:+54.780 N.P.T:+55.880 N:+59.880 2400 400 700 3413 587 7500 N:+59.143 N.P.T:+52.380 COLUMNA METÁLICA TIPO CM5 FLASHING DE LÁMINA DE ACERO ESMALTADO 24 ATORNILLAR PARED DAR DOS MANOS DE PINTURA ANTICORROSIVA CORROSTOP PENDIENTE DEL 2% CUBIERTA DE LÁMINA TROQUELADA REF= LÁMINA BANDEJA SSP500 SOLCON PENDIENTE DEL 14 05% MARCO METÁLICO ESTRUCTURAL DIMENSIONES Y FUNDACIONES DEFINIDAS POR ESPECIALISTA PARTICIÓN DE LÁMINA TROQUELADA REF= LÁMINA BANDEJA SOLCON SSP380 SOPORTADA POR ESTRUCTURA METÁLICA BARANDAL DE ACERO DE TUBO REDONDO 38mm VIGA DE CONCRETO TIPO VC CORTINA METÁLICA ARROLLABLE SISTEMA DE ENTREPISOS PLYCEM VER CATÁLOGO DE PROVEEDOR PARA CONOCER DIMENSIONES Y CRITERIOS CONSTRUCTIVOS LOSA DE CONCRETO LUJADO CRYSTAL CONCRETE DE CRM SE DEBERÁ UTILIZAR LAS PROPORCIONES NECESARIAS PARA NO INCREMENTAR LA PULIDA Y OBTENER UN ACABADO NO RESBALISO CANAL DE AGUA PLUVIAL DE LÁMINA DE ZINC LISO CAL#24 CLAVADOR DE PARED TIPO P2 VIGA METÁLICA TIPO VE1 PARED DE POLIURETANO ISOBOX DE 6 EN ACABADO ACANALADO Y FIJACIÓN A VISTA REF=(MARCA ISOCINDU COLOR GRIS SILVER G9006 ACERA DE CONCRETO ACABADO ARENILLADO PENDIENTE DEL % D DS- 76 -S509 DS-C76 -S509 N:+55.130 N:P.T+52.380 N:+58.380 N:+59.880 2100 650 3250 1350 N:+54.480 FLASHING DE LÁMINA DE ACERO ESMALTADO 24 ATORNILLAR PARED DAR DOS MANOS DE PINTURA ANTICORROSIVA CORROSTOP PENDIENTE DEL 2% CUBIERTA DE LÁMINA TROQUELADA REF= LÁMINA BANDEJA SSP500 SOLCON PENDIENTE DEL 14 05% LOSA DE CONCRETO LUJADO CRYSTAL CONCRETE DE CRM SE DEBERÁ UTILIZAR LAS PROPORCIONES NECESARIAS PARA NO INCREMENTAR LA PULIDA OBTENER UN ACABADO NO RESBALISO CANAL DE AGUA PLUVIAL DE LÁMINA DE ZINC LISO CAL#24 PARED DE POLIURETANO ISOBOX DE EN ACABADO ACANALADO FIJACIÓN A VISTA REF=(MARCA ISOCINDU COLOR GRIS SILVER G9006 VENTANA DE GUILLOTINA DE ALUMINIO ANODIZADO ACABADO NATURAL VIDRIO DE MM REFLECTIVO COLOR GRIS PANEL DE POLIESTIRENO EXPANDIDO ONDULADO CON MALLAS DE ACERO GALVANIZADO ELECTROSOLDADAS MORTERO AMBAS CARAS REF EMMEDUE PSME80 REPELLO Y FINO PINTURA COLOR BLANCO MATE LÁMINA DE POLICARBONATO CELULAR REF= MAKROLON x MULLTI-UV COLOR OPAL ESPESOR 16mm 50cm DE ANCHO ACERA DE CONCRETO ACABADO ARENILLADO PENDIENTE DEL 2% CORTINA METÁLICA ARROLLABLE PUERTA DOBLE HOJA ABATIBLE DE ALUMINIO ANODIZADO ACABADO NATURAL VIDRIO REFLECTIVO mm HERRAJES Y ACCESORIOS DEFINIDOS POR CONTRATISTA COLUMNA METÁLICA TIPO CM VIGA METÁLICA TIPO VM CF-A01 CORTE POR FACHADA - 01 ESCALA 1 25 CF-A02 CORTE POR FACHADA - 02 ESCALA 1 25 CF-A03 CORTE POR FACHADA - 03 ESCALA 1:25 PROYECTO PLAZA COMERCIAL DA-D15 D-A501 N.P.T:+52.540 N.P.T:+56.040 7550 VARIABLE 3500 4050 2400 400 700 2000 2050 LÁMINA TROQUELADA REF= LÁMINA BANDEJA SS500 SOLCON PENDIENTE DEL 75% PARED DE MAMPOSTERÍA CONFINADA DE BLOQUE DE ACABADO APARENTE LADRILLO O BLOQUE SISADO PARTICIÓN DE LÁMINA TROQUELADA REF= LÁMINA BANDEJA SOLCON SSP380 SOPORTADA POR ESTRUCTURA METÁLICA CIELO FALSO DE GYPSUM DE ACABADO PASTEADO Y LIJADO PINTURA COLOR BLANCO MATE ENTREPISO DE CONCRETO LUJADO CRYSTAL CONCRETE DE CRM SE DEBERÁ UTILIZAR LAS PROPORCIONES NECESARIAS PARA NO INCREMENTAR LA PULIDA OBTENER UN ACABADO NO RESBALISO BAJANTE DE AGUA PLUVIAL DE PVC Ø150mm SDR 26 EN EL TRAMO EXPUESTO SDR 32 5 EN TRAMOS SOTERRADOS FLASHING DE LÁMINA DE ACERO ESMALTADO 24 ATORNILLAR A PARED DAR DOS MANOS DE PINTURA ANTICORROSIVA CORROSTOP PENDIENTE DEL % LOSA DE CONCRETO LUJADO CRYSTAL CONCRETE DE CRM SE DEBERÁ UTILIZAR LAS PROPORCIONES NECESARIAS PARA NO INCREMENTAR LA PULIDA OBTENER UN ACABADO NO RESBALISO ACERA DE CONCRETO ACABADO ARENILLADO PENDIENTE DEL % DA-D01 D-A600 DA-D16 D-A501 3500 5900 150 N.P.T:+52.540 N.P.T:+56.040 N:+61.940 9400 LÁMINA TROQUELADA REF= LÁMINA BANDEJA SS500 SOLCON PENDIENTE DEL 75% CIELO FALSO DE GYPSUM DE ACABADO PASTEADO Y LIJADO PINTURA COLOR BLANCO MATE ENTREPISO DE CONCRETO LUJADO CRYSTAL CONCRETE DE CRM SE DEBERÁ UTILIZAR LAS PROPORCIONES NECESARIAS PARA NO INCREMENTAR LA PULIDA Y OBTENER UN ACABADO NO RESBALISO ACERA DE CONCRETO ACABADO ARENILLADO PENDIENTE DEL 2% PANEL DE POLIESTIRENO EXPANDIDO ONDULADO CON MALLAS DE ACERO GALVANIZADO ELECTROSOLDADAS MORTERO AMBAS CARAS REF=EMMEDUE PSME80 REPELLO Y FINO PINTURA COLOR BLANCO MATE VENTANA FIJA DE ALUMINIO ANODIZADO ACABADO NATURAL CON VIDRIO DE mm TRANSPARENTE FASCIA DE EMMEDUE COLOR GRIS OSCURO ACABADO MATE N:+61.720 9180 3500 5680 2950 550 1100 4580 PANEL DE POLIESTIRENO EXPANDIDO ONDULADO CON MALLAS DE ACERO GALVANIZADO ELECTROSOLDADAS MORTERO AMBAS CARAS REF EMMEDUE PSME80 REPELLO FINO PINTURA COLOR BLANCO MATE LOSA DE CONCRETO LUJADO CRYSTAL CONCRETE DE CRM SE DEBERÁ UTILIZAR LAS PROPORCIONES NECESARIAS PARA NO INCREMENTAR LA PULIDA OBTENER UN ACABADO NO RESBALISO ENTREPISO DE CONCRETO LUJADO CRYSTAL CONCRETE DE CRM SE DEBERÁ UTILIZAR LAS PROPORCIONES NECESARIAS PARA NO INCREMENTAR LA PULIDA OBTENER UN ACABADO NO RESBALISO PANEL DE POLIESTIRENO EXPANDIDO ONDULADO CON MALLAS DE ACERO GALVANIZADO ELECTROSOLDADAS MORTERO AMBAS CARAS REF EMMEDUE PSME80 REPELLO FINO PINTURA COLOR BLANCO MATE LÁMINA TROQUELADA REF LÁMINA BANDEJA SSP500 SOLCON CUMBRERA DE LÁMINA DE ACERO ESMALTADO CAL 24 VER DETALLE DE ACCESORIO DE FORRO TIPOTIPO 3 ESCALERAS METÁLICAS VER LÁMINAS ESTRUCTURALES BARANDAL DE ACERO DE TUBO REDONDO 38mm VIGA METÁLICA TIPO VM3 CF-A01 CORTE POR FACHADA ESCALA 1:25 CF-A03 CF-A02 CORTE POR FACHADA ESCALA 1 25 DA-G05 G- 500 DA-G08 G- 500 N.P.T:+51.400 N.P.T:+54.900 7176 223 3500 3676 2400 1100 1100 800 500 1276 CORTINA METÁLICA CON MECANISMOS DUELAS GALVANIZADAS CAL 22 EJE DE 38 1 2mm GUÍA DE 25x50 4mm PLATO DE 3 mm ENTREPISOS CON LÁMINA DE ACERO GALVANIZADO CAL #22 TIPO METALDECK Y LOSA DE CONCRETO REFORZADO DE 100mm DE ESPESOR SOBRE CRESTA CUBIERTA DE TECHO DE LÁMINA TROQUELADA DE ACERO RECUBIERTA DE ALUMINIO Y ZINC 150 gr m2 CAL 24 PENDIENTE DEL 5 % CANAL DE AGUA PLUVIAL DE ACERO ESMALTADO CAL # 24 PANEL DE POLIESTIRENO EXPANDIDO ONDULADO CON MALLAS DE ACERO GALVANIZADO ELECTROSOLDADAS MORTERO AMBAS CARAS REF EMMEDUE PSME80 VENTANA CORREDIZA DE ALUMINIO ANODIZADO ACABADO NATURAL COLOR NEGRO CON VIDRIO DE mm TRANSPARENTE BARANDAL DE ACERO DE TUBO REDONDO 38mm LOSA DE CONCRETO 10cm CON MALLA ELECTROSOLDADA 6 DE 4 mm LÁMINA DE POLICARBONATO CELULAR REF= MAKROLON 3 MULLTI-UV COLOR OPAL ESPESOR 16mm 50cm DE ANCHO CIELO FALSO DE DUROCK DE 1 2 ACABADO THINSET COLOR BLANCO MATE ESTRUCTURA USG CAL #24 D CF-A01 CORTE POR FACHADA ESCALA 1:25 CF-A

SUPERVISION

NATIONAL TRAINING CENTER - CRN INSTITUTIONAL

Year: 2019

Built Area:400.00 m²

Location: Managua, Nicaragua

This project belongs to the Nicaraguan Red Cross and is located at the National Training Center in Ciudad Sandino, Managua. Of the 7 existing modules in the complex, 2 were carried out under the supervision of Architect Yader Tercero.Both constructive interventions consisted of architectural improvements.

ADMINISTRATION BUILDING AUDITORIUM #3

Improvements to the administrative module included:

• Replacement of the structure and roof covering.

• Replacement of the electrical system and installation of lighting fixtures.

• Installation of false ceilings

• Installation of doors and windows

• Interior floor polishing and replacement of the sidewalk floor.

The auditorium module improvements were:

• Change of the structure and roof covering

• Replacement of the electrical system and installation of light fixtures.

• Installation of false ceilings

• Installation of doors and windows

• Floor polishing

NATIONAL TRAINING
INSTITUTIONAL INITIAL STATE CONSTRUCTION
FINAL STATE
CENTER - CRN
PROCESS
NATIONAL TRAINING
CRN INSTITUTIONAL INITIAL STATE CONSTRUCTION
FINAL STATE
CENTER -
PROCESS

CONSTRUCTION

Year: 2020

Built Area: 12.00 m² + 69.71 m²

The constructive intervention in the obando-medina residence consisted of the construction of a front perimeter wall with the adaptation of an existing metal gate and the construction of an annex containing the kitchen and terrace spaces on a second level.

The construction of the annex has a construction area of 12 m² on the first floor, consisting of reinforced masonry, concrete slab and a helical metal staircase.

EXTERNAL PERSPECTIVE

OBANDO MEDINA’S HOUSE RESIDENTIAL
INITIAL STATE CONSTRUCTION PROCESS FINAL STATE OBANDO MEDINA’S RESIDENCE RESIDENTIAL
ACCESS PERSPECTIVE YARD’S PERSPECTIVE

YADER III MORRAZ

Architectural Designer

I’m an architect with more than 6 years of experience in the Nicaraguan work environment. With an avant-garde vision of architectural design I intend to join the international working environment of architectural design and development of BIM projects to apply the knowledge acquired and acquire new creative skills.

Email yterceromorraz@gmail.com Address Homestead, FL 566 NE 6 PL

Phone +1 (786) 400-3842

Date of Birth

14-12-1994

Nationality Nicaraguan Link

Facebook https://www.facebook.com/yterceroarquitecto Instagram https://www.instagram.com/yterceroarquitecto Architectural Design 16,912.00 m² Vertical Building Supervision 1,106.18 m² Vertical Construction Management 81.71 m²

Youtube Channel: Yader Tercero Morraz Project Development - BIM 26

https://www.linkedin.com/in/ yader-tercero-arquitecto LinkedIn https://www.linkedin.com/in/yader-tercero-arquitecto/
YADER III MORRAZ yterceromorraz@gmai.com | +505 88209507

Turn static files into dynamic content formats.

Create a flipbook
Issuu converts static files into: digital portfolios, online yearbooks, online catalogs, digital photo albums and more. Sign up and create your flipbook.