

DIDIER PUENTESTAR
Soy un Arquitecto en formación, con una amplia visión del mundo que me rodea.
Mi pasión por la filosofía es una herramienta que me ayuda a reflexionar sobre mis trabajos y sobre la relación entre las personas y el entorno construido.
Esto influye en mi diseño y la transformación del espacio, ya que mi objetivo es crear lugares que inspiren y mejoren la calidad de vida de las personas que los habitan

BACHILLERATO
2014 - 2020
COLEGIO TÉCNICO SALESIANO DON BOSCO
EDUCACIÓN SECUNDARIA
SOFTWARE
AUTOCAD
SKCETH UP
REVIT
CARRERA PROFESIONAL
2021 - ACTUAL
PONTIFICIA UNIVERSIDAD CATÓLICA DEL ECUADOR
ARQUITECTURA
DAU I
2021 - 1
PABELLÓN EN EL LAGO
MENCIÓN HONORIFICA
DAU II
2021 - 2
ESPACIO DE PROMOCIÓN ARTÍSTICA
MENCIÓN HONORIFICA
DAU III
2022 - 1
ESPACIO DE ENCUENTRO COLECTIVO A ESCALA MEDIA
MENCIÓN HONORIFICA
PHOTOSHOP
ILUSTRATOR
V-RAY
IDIOMAS
ESPAÑOL
EDUCACIÓN HABILIDADES RECONOCIMIENTOS
INGLÉS
ALEMÁN
RUSO
didierpuentestar@gmail.com
TELÉFONO
+593 969 375 336
CONTENIDO
FUNDACIÓN “ERHELLEN TIER”
Centro de Investigación y Protección de Fauna Marina
CUBIERTA VIVA



Espacio de encuentro colectivo a escala media
FÜHRE PLATZ
Espacio de promoción artistica, La Tolita - Guapulo
FUNDACIÓN “ERHELLEN TIER”

Centro de Investigación y Protección de Fauna Marina


Los habitantes de Las Tunas, se han propuesto proteger los nidos de tortugas marinas, que llegan por el océano a sus playas para dejar sus huevos y volver al mar.
El cuidado de los nidos cuenta copn el apoyo de la embajada de Reino Unido en Ecuador y la fundación “Jocotoco”, una ONG ambientalista.

La fundación Erhellen Tier nace como respuesta a la falta de infraestructura y logistica necesaria para llevar a cabo la protección de este tipo de fauna. Muchas de estas especies en peligro de extinción.

Esto representa la creación de nuevos espacios adecuados para llevar a cabo investigaciones, analisis y cuidado de las especies. Reactivando el entorno aprovechando terrenos valdios y transformandolos a lugares aptos para la comunidad.

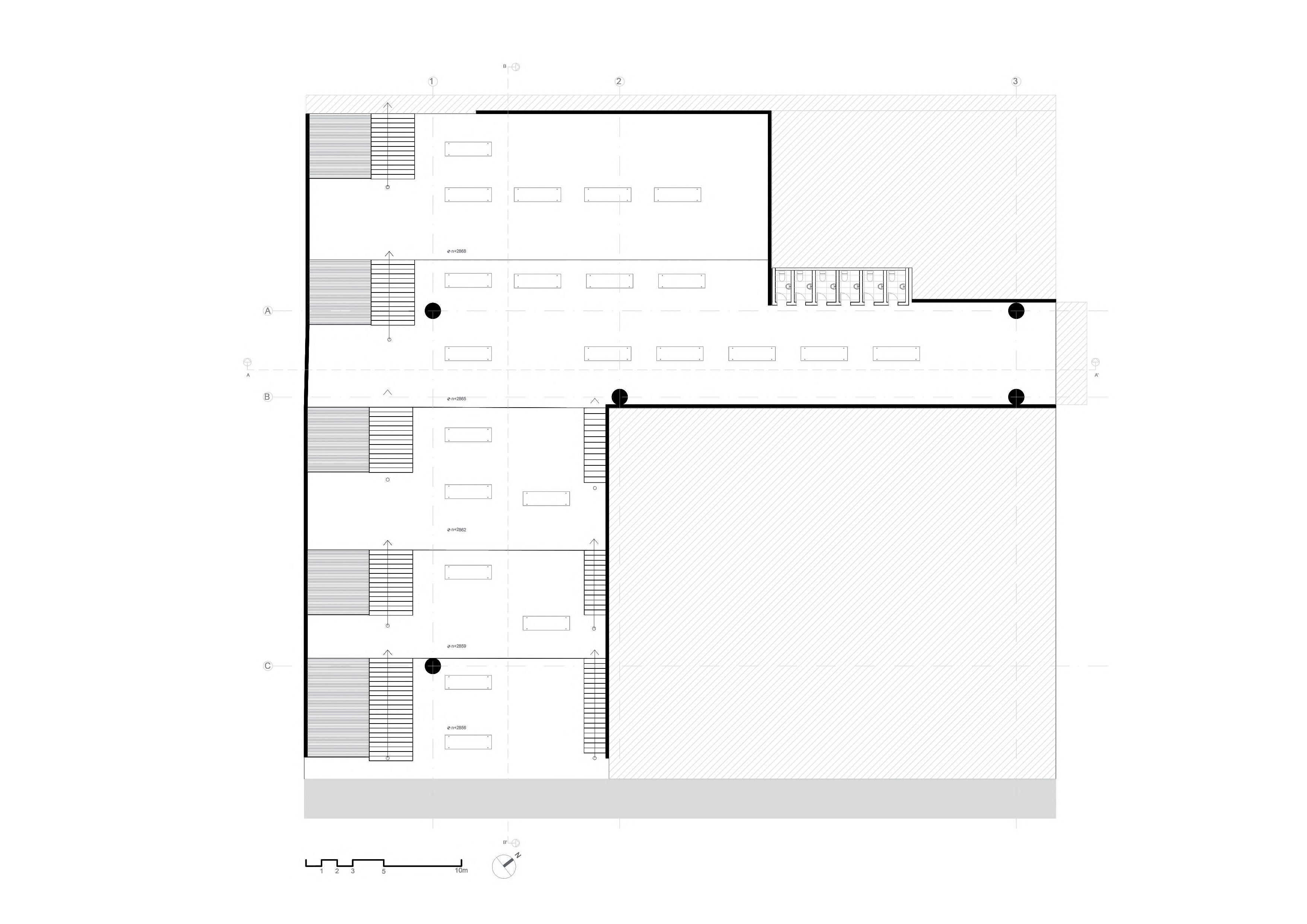
DE DÓNDE NACE EL PROYECTO?


ERHELLEN TIER
Parte del rectangulo que forma una figura mas grande completando los 1000m2 de construcción.
FORMA Y ESPACIO
Descomposición del rectangulo en un poligono y un triangulo como resultado.
Transformación del triangulo rectangulo en trinagulo equilatero.


El rectangulo y el triangulo juntos conforman el modulo de laboratorios de investigación de la construcción.

El poligono contiene laboratorios y zona común para los investigadores. El triangulo es usado como espacio de monitoreo, dada su forma facilita este tipo de trabajo.

1 Jefe de laboratorio
2 Repositorios
3 Almacenaje
4 Zona de desinfección
5 Mesas de trabajo
6 Baños
7 Pasarela Exterior



B-B’
FACHADA NORTE FACHADA OESTE



CUBIERTA VIVA

Espacio de encuentro colectivo a escala media


En el barrio el Dorado en Quito muchas personas, ya sean adultos, personas de la tercera edad, niños o adolescentes utilizan las escalinatas pues son un medio para ahorrarse tiempo, al momento de dirigirse a sus lugares de tranajo, estudio o a sus casas.


Cubierta Viva nace como respuesta a la inseguridad y la reactivación de las escalinatas emblematicas del barrio. Con la creación de espacios de encuentro que unan a la comunidad para que se cree una relación mas cercana entre moradores.
La unión de la comunidad velaría por los problemas de mantenimiento, haciéndolo un lugar mas acogedor y seguro.

DE DÓNDE NACE EL PROYECTO?


Espacio de encuentro que provoque curiosidad y maximo aprovechamiento de lote valdio con ubicacion central a las escalinatas y con un frente a la calle publica.
FORMA Y ESPACIO

Espacio destinado al comercio y eventos culturales. Espacio multifuncional con levantamiento de mega - estructura.

Espacio transformable pero reconocible, debe evitar a toda costa lo monotono. Utilizacion de recursos como la mega - estructura y diversos modulos que se mueven a traves de la misma.

Espacio destinado a la comunidad, debe crear un efecto “llamada” y se logra este objetivo respondiendo a la pendiente fuerte con una pendiente fuerte.









FÜHRE PLATZ
Espacio de promoción artitica, La Tolita - Guapulo



El terreno posee una cualidad multidireccional que comprende: estancias, circulaciones y visuales. Dando lugar a un conflicto que otorga libertad y en consecuencia, caos en el espacio.

De modo que vamos a aprovechar la cualidad caótica del lugar para establecer espacios sin restringir la libertad que este proporciona al usuario.

Con la creación de un espacio de promoción artistica, que active el parque, e incentive a la comunidad a ser mas activa y a cuidar de los espacios publicos que disponen, teniendo en cuenta la colaboración y el impulso de cursar en el arte para las personas de todas las edades.

DE DÓNDE NACE EL PROYECTO?

Transformación del Parque en un lugar activo central, que evoque curiosidad al usuario que utiliza las dos canchas existentes. Espacio Jerarquico no abusivo.
FORMA Y ESPACIO

Creacion de zonas externas activas, implementación de una pequeña plaza, una rampa externa, y murales con disposición a ser utilizados por el arte callejero.

Establecer un espacio monumental y semi-cerrado, con el objetivo de contener en el interior la mayor parte de actividades que se interrelacionan, ya sea con usuarios espectadores como los que usaran activamente el lugar.

El espacio debe generar fluidez con el uso de la doble altura, recurso que ayuda a crear un lugar dinamico, con luz cenital, luz difusa en los laterales.









