Arquitetura Brasileira - TAP Yan Castro

Page 1

3 - Introdução 5 - Paulo Mendes da Rocha 10 - Vilanova Artigas 15 - Lina Bo Bardi 19 - Oscar Niemeyer 2
SUMARIO ´

INTRODUCAO ~ ~

A arquitetura brasileira é destacada por arquitetos renomados como Oscar Niemeyer, Lina Bo Bardi, Paulo Mendes da Rocha e Vilanova Artigas.

Suas contribuições diversificadas e inovadoras enriquecem o cenário arquitetônico do país. Niemeyer com suas formas curvas e projetos icônicos como Brasília; Bo Bardi com seu foco na inclusão social; Mendes da Rocha com sua arquitetura brutalista; e Artigas como líder do movimento moderno brasileiro. Esses arquitetos deixaram um legado duradouro, combinando criatividade, sensibilidade ambiental e expressões únicas na arquitetura brasileira.

3
4

Paulo Mendes da Rocha foi um arquiteto brasileiro altamente aclamado, conhecido por seus projetos inovadores e ousados. Nasceu em 25 de outubro de 1928 e faleceu em 23 de maio de 2021. Mendes da Rocha foi uma figura de destaque no movimento modernista brasileiro e ganhou reconhecimento internacional por suas contribuições arquitetônicas. Seu estilo arquitetônico foi caracterizado pela simplicidade, uso de matérias-primas e integração com o meio ambiente.

Mendes da Rocha recebeu vários prêmios ao longo de sua carreira, incluindo o prestigiado Prêmio Pritzker de Arquitetura em 2006. Seus projetos continuam a inspirar arquitetos em todo o mundo, e ele é considerado um dos arquitetos mais influentes do Brasil.

5
6

O PROJETO

Construído na última década do século dezenove para abrigar o Liceu de Artes e Ofícios nunca foi totalmente concluído. Já em

Novembro de 1905 foram executadas as primeiras obras de adaptação, ainda sob o plano e direção do arquiteto Ramos de Azevedo, para receber a primeira coleção de quadros pertencentes ao Estado e que passaram a constituir a Pinacoteca.

7

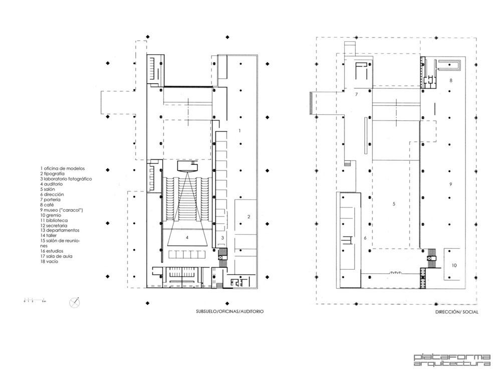
intervenção de Paulo Mendes da Rocha na Pinacoteca ocorreu entre os anos de 1993 e 1998. Seu projeto arquitetônico buscou uma integração harmoniosa entre a estrutura original do edifício, que remonta ao século XIX, e as novas adições que ele propôs. Mendes da Rocha projetou um bloco anexo à Pinacoteca, que se conecta ao edifício principal por meio de uma passarela suspensa. Essa adição proporcionou um aumento significativo na área de exposição do museu, permitindo a exibição de um maior número de obras de arte. Além disso, o arquiteto criou um novo acesso à Pinacoteca, com uma ampla escadaria de concreto que se tornou um dos elementos mais marcantes de sua intervenção. A escadaria conduz os visitantes ao hall de entrada do museu, estabelecendo uma relação visual e física entre a rua e o espaço expositivo.

8
9

João Batista Vilanova Artigas, mais conhecido como Vilanova Artigas, foi um renomado arquiteto brasileiro. Ele nasceu em 23 de junho de 1915, em Curitiba, no estado do Paraná, Brasil, e faleceu em 13 de janeiro de 1985, em São Paulo.

Vilanova Artigas foi uma das figuras mais importantes da arquitetura moderna brasileira. Ele foi um defensor fervoroso do movimento modernista, que buscava romper com as tradições arquitetônicas históricas e adotar uma linguagem arquitetônica contemporânea, funcional e socialmente engajada.

Vilanova Artigas foi professor da Faculdade de Arquitetura e Urbanismo da Universidade de São Paulo (FAU-USP) e exerceu uma grande influência sobre gerações de arquitetos brasileiros.

10

FAUUSP FAUUSP

11

O PROJETO

João Batista Vilanova Artigas inicia o projeto do edifício da FAU em 1961 com Carlos Cascaldi, seu colaborador em diversas obras realizadas no período. Professor da Escola de Arquitetura da USP, que funcionava até então na antiga Vila Penteado –casarão art nouveau localizado à rua Maranhão, no bairro paulistano de Higienópolis–, Artigas realiza um projeto para a faculdade, que evidencia as linhas mestras de sua concepção de arquitetura, bem como suas idéias a respeito da formação do arquiteto.

12

No terreno plano da cidade universitária, testa e aprimora soluções já experimentadas, por exemplo, em dois colégios estaduais paulistas, o de Itanhaém (1960-1961) e o de Guarulhos (1961), realizados também em parceria com Cascaldi. O uso do concreto bruto, do vidro, a simplicidade de suas linhas, assim como a ênfase na integração dos espaços caracterizam esses edifícios, econômicos, funcionais e plasticamente originais. A proposta central do projeto reside na idéia de continuidade espacial, que o grande vazio central explicita. Os seis pavimentos, ligados por suaves e amplas rampas de inclinações variáveis, dão a sensação de um só plano. Todos os espaços do prédio encontram-se fisicamente interligados: as divisões utilizadas para separá-los não os seccionam de fato, apenas marcam diferenças de usos e funções.

13
14

Lina Bo Bardi foi uma renomada arquiteta e designer de origem italiana, nascida em 1914 e falecida em 1992. Ela é reconhecida por suas contribuições significativas para a arquitetura moderna brasileira e por seu compromisso com a valorização da cultura e do patrimônio.

Nascida em Roma, Lina Bo Bardi formou-se em arquitetura pela Universidade de Roma em 1939. Em 1946, juntamente com seu marido Pietro Maria Bardi, mudou-se para o Brasil, onde se estabeleceu e realizou grande parte de seu trabalho.

Lina Bo Bardi foi uma defensora do modernismo e acreditava que a arquitetura deveria estar enraizada nas tradições e na cultura local.

15

MUSEUDEARTESP

16

O PROJETO

O Museu de Arte de São Paulo foi construído graças à ideia de Pietro María Bardi, marido de Lina, junto a Assis Chateaubriand, que em 1946, decidem criam um novo museu de arte em São Paulo. Inicialmente, este museu funcionava no segundo andar do edifício dos Diários associados, com uma área de 1000 metros quadrados, inaugurado em 1947. A ideia sempre foi realizar exposições periódicas, promovendo os aspectos didáticos da arte com concursos e conferencias, e abrir escolas sobre diversos temas.

17

O edifício foi erguido no terreno do antigo Belvedere Trianon, na Avenida Paulista, em 1968. Nele foram inauguradas escolas de gravura, pintura, design industrial, escultura, ecologia, fotografia, cinema, jardinagem, teatro, dança e até moda. Encontra-se num ponto privilegiado da cidade, o cruzamento de dois eixos viários

18

Oscar Niemeyer foi um arquiteto brasileiro de renome mundial, conhecido por suas contribuições icônicas para a arquitetura moderna. Ele nasceu em 15 de dezembro de 1907, no Rio de Janeiro, Brasil, e faleceu em 5 de dezembro de 2012.

Niemeyer foi um dos principais expoentes do Movimento Moderno na arquitetura. Ele era conhecido por sua abordagem orgânica e escultural, que incorporava formas curvas e fluídas em seus projetos. Suas obras eram caracterizadas pelo uso inovador do concreto armado, resultando em estruturas elegantes e ousadas.

19

MACNITEROI ´

20

O PROJETO

Um único cilindro surge numa ponta da Baía da Guanabara. Dele desabrocha em flor o edifício branco, circular, embelezando a natureza verde. Um espelho d’água dá continuidade visual ao mar. E o museu que de longe parecia brotar da terra, surge em verdade do mar. A forma circular do museu, com 16 metros de altura, juntamente com grandes vãos, resultou em uma solução estrutural essencialmente radial, dividida em seis setores. A grande rampa de concreto exterior leva os visitantes, através de 98 metros de espaço livre, até as entradas aos andares superiores.

21

A estrutura principal foi projetada para suportar um peso equivalente a 400 kg/m e ventos com velocidades de até 200 km/h.Os vidros foram fabricados exclusivamente para o projeto. Os quadros são de perfis de aço e estão inclinados a 40 graus em relação ao plano horizontal. Com o espaço circundante da sala de exposição

hexagonal disponível como varanda, se trabalhou a ação da paisagem, buscando a invasão da baía ao interior, numa tentativa de museificação da natureza. No subsolo, se encontra um auditório para 60 espectadores, e o restaurante, onde uma janela horizontal permite vistas à baía. Na entrada do primeiro andar estão a recepção e a administração.

22
23

AUTORIA DE YAN CARLOS DE CASTRO MONTEIRO, REGISTRADO SOB A

MATRÍCULA 1200103794. ESTE EXEMPLAR FOI DESENVOLVIDO PARA A DISCIPLINA DE TÉCNICAS DE PROJETO, MINISTRADA PELA PROFESSORA CAROL BULCÃO.

Turn static files into dynamic content formats.

Create a flipbook
Issuu converts static files into: digital portfolios, online yearbooks, online catalogs, digital photo albums and more. Sign up and create your flipbook.
Arquitetura Brasileira - TAP Yan Castro by Yan Castro - Issuu