JPA CORE - Compexo multifuncional

Page 1

Autor: Yan Carlos de Castro Monteiro | Davi Marinho Cerqueira | Disciplina: Projeto multifuncional sustentável |

Professor: Wilder Ferrer | Instituição: Universidade Veiga de Almeida | Campus: Barra da Tijuca | Turno: Manhã

CONCEITO

Viver Jacarepaguá. Desenvolver para o local uma "Joia" no qual o entorno faça uso. Um equipamento que extraia o melhor de Jacarepaguá. Um resgate ao regionalismo e da qualidade de vida.

PARTIDO

Desenvolver uma arquitetur utilização do espaço de form

Enfase na sustentabilidade e fazer com que ela esteja presente de forma visual no projeto.

Desenvolver o equipamento de modo que seja um polo dentro da região, com atividades que promovam a ativação urbana em diferentes períodos do dia.

CONDICIONANTES DE TOMADA DE DECISÃO

Destaque x Relevância.

Moldar-se a forma do terreno e entorno.

Peculiaridades do entorno.

- Questões Históricas

- Questões Socio-econômicas.

- Questões Urbanísticas.

- Questões de Vias e trasporte.

COMERCIAL - Função exercida anteriormente no terreno, vocação natural para a funcionalidade.

CORPORATIVO - Demanda constante da funcionalidade, tanto por proprietários quanto usuarios.

EVENTOS - Falta de espaço dedicado nas adjacências, nova opção de ponto para população e uso do equipamento em período noturno.

LAZER - Integração com entorno fornecendo acesso a lazer com qualidade e segurança.

Á R E A D O T E R R E N O A T E G A B A R I T O V A G A S R E S E R V A T O R I O T A X A D E P E R M E A B I L I D A D E 3 3 6 6 6 M ² 5 9 5 3 0 M ² 3 8 M E T R O S / 1 0 P A V 1 0 6 5 V A G A S 1 5 2 0 0 1 5 L I T R O S 2 0 . 4 3 % O P R O J E T O

ACESSOS HORIZONTAIS

PEDESTRE SOCIAL ACESSO SERVIÇO

ACESSOS VERTICAIS

CIRC. VERTICAL

ENTRADA VEÍCULOS

SAÍDA VEÍCULOS

SUBSOLO

SUBSOLO

ACESSOS EDIFÍCIOS

COMERCIAL EVENTOS CORPORATIVO

ACESSOS EDIFÍCIOS

CORPORATIVO

ACESSOS EDIFÍCIOS

COMERCIAL EVENTOS CORPORATIVO

ESTUDO SOLAR

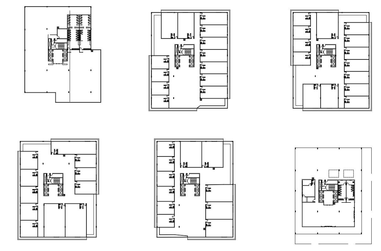
EDIFÍCIO CORPORATIVO

CONCEPÇÃO CORPORATIVO

VOLUMETRIA CORPORATIVO

4 6 . 4 M ² 9 1 . 9 M ² 4 4 . 3 M ² 1 1 3 . 9 M ² 3 3 . 3 M ² 8 8 . 5 M ² 7 7 . 5 M ²

PLANTA BAIXA CORPORATIVO

Térreo
A
Pav.1 Tipo
Tipo
B
C
Tipo
D
Tipo

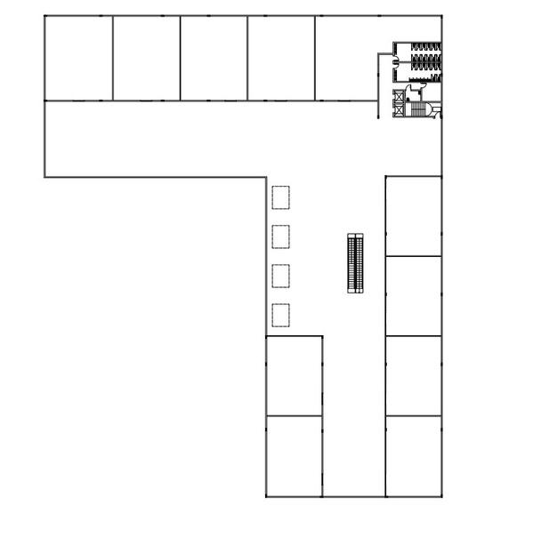
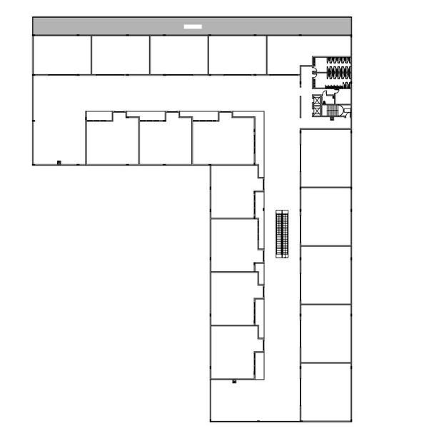
EDIFÍCIO COMERCIAL

VOLUMETRIA COMERCIAL

L O J A S Í M P A R E S : 1 - 3 : 1 2 0 . 3 M ² 5 : 2 1 2 . 1 M ² 1 1 9 . 3 M ² P A R E S : 1 4 2 M ² 1 1 0 M ² T É R R E O L O J A S Í M P A R E S : 1 - 7 : 1 2 0 . 3 M ² 9 : 2 1 2 . 1 M ² 1 1 - 1 3 : 1 1 0 M ² L O J A S P A R E S : 2 - 8 : 1 4 2 M ² 1 0 : 1 2 0 . 2 M ² 1 2 - 1 8 : 1 1 0 M ² P A V . 2 Í M P A R E S : 1 2 0 . 3 M ² 1 4 1 . 2 M ² 1 1 - 1 3 : 1 1 0 M ² L O J A S P A R E S : 2 - 1 0 : 1 4 2 M ² 1 2 : 1 2 0 . 2 M ² 1 4 - 2 0 : 1 1 0 M ² 1 R E S T A U R A N T E S Í M P A R E S : 1 - 3 : 1 4 0 . 3 M ² R E S T A U R A N T E S P A R E S : 2 - 8 : 1 4 0 . 3 M ² 1 0 : 2 2 4 . 6 M ² 1 2 - 1 8 : 1 7 9 . 7 M ² R O O F T O P

PLANTA BAIXA COMERCIAL

Pav.

Térreo
1
Pav.
2
Rooftop

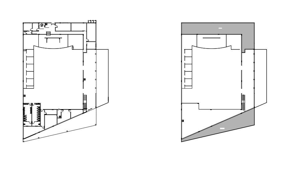
EDIFÍCIO EVENTOS / LAZER

VOLUMETRIA EVENTOS

PLANTA BAIXA EVENTOS

Térreo
1
Pav.

GALERIA

Turn static files into dynamic content formats.

Create a flipbook
Issuu converts static files into: digital portfolios, online yearbooks, online catalogs, digital photo albums and more. Sign up and create your flipbook.