MAISON XLS - PROJECT - THE DOMAIN OF RUA - SUMBA, INDONESIA

Page 1


The Domain of

Discreet luxury in the heart of a wild island

Luxury as simplicity, silence, and place

A low-density, six-hectare estate overlooking ocean, rice fields, and hills. Villas as observatories of nature architecture, landscape, culture in harmony. An emerging destination with high-end potential and scarcity value.

A RARE, CULTURALLY-ANCHORED ESTATE IN SUMBA

SUMBA AUTHENTICITY PRESERVED

Sumba is a unique Indonesian island, still untouched by mass tourism. Its landscapes alternate between sparkling rice fields, rolling hills, cliffs, and deserted beaches. Here, nature remains intact, and life flows to the rhythm of ancestral traditions. In the west, Nihiwatu Beach has earned the island worldwide recognition. But beyond its beaches, Sumba captivates with its authenticity, its way of life, and its bond with the land.

Rua Beach, a 2.5 km stretch of immaculate white sand, remains free of any construction; Nihiwatu Beach, ranked among the world’s finest, has become iconic thanks to the success of the Nihi resort. This

rarity untouched, beautiful, and wild beaches enhances the island’s appeal for guests in search of discreet luxury and authenticity.

With a sparse population across a vast territory, Sumba retains an intimate and confidential dimension. Here, space is everywhere: in the horizon, in the villages, in the solitude of a beach at sunrise. It is this exclusive character that underpins the value of The Domain of Rua.

One Island, One Vision

Resilent Spiritual Traditional"

The Sumba people of Indonesia preserve rich traditions through ikat weaving, Marapu ancestral worship, Pasola festivals, and peaked houses, blending spirituality, ritual, and artistry into a unique cultural identity.

TIMELY MARKET ENTRY

Growing global demand for authentic, nature-immersed destinations.

Accessibility proven by established luxury resorts like Nihi via Tambolaka. Limited availability of panoramic coastal sites guarantees long-term exclusivity and sustained property value.

BENCHMARKED, NOT REPLICATED

Inspired by iconic brands like Nihi, Aman, and Zannier proving market demand. Differentiated through cultural depth and landscape storytelling, positioned as poetic luxury with discreet scale and timeless architectural elegance.

Inspired by Icons , defined by Identity

Zanier Resort
Zanier Resort
Nihi Sumba Resort

A rare, panoramic site across six hectares

A LIVING HORIZON ON ALL FOUR SIDES

West : Sunsets over the Indian Ocean

North : 180° sea panorama at the sunset

East : Rice field at the morning

South : Rolling prairie-like hills

HIDDEN, YET CONNECTED

1 h flight from Bali to Tambolaka Airport.

1 h15 transfer by road to the site.

Close to Rua Beach (2.5 km pristine sand) and established highend resorts (Nihi, Lelewatu, Haweri).

TAMBOLAKA AIRPORT
SUMBA SITE B
SUMBA SITE A
PANTAI TANJUNG KAROKA

Trend of International Tourists & Domestic Visiting Sumba Island (2018 - 2024)

Tourism in Sumba shows recovery after the 2020 decline. Domestic visitors rebounded strongly, peaking in 2022, while international arrivals recovered slowly, indicating steady post-pandemic growth driven by local travel.

Graphic statistic tourism

Accessing maps and site location

A

B

C

D

E

F

G

“A terraced village shaped by the land”

Communal heart as a contemporary village square.

Orientation : sea to the north, rice fields east, sunsets west, hills south.

Landscape integrated into circulation.

SIZE LAND = 6 HA

TRADITION REINTERPRETED

Inspired by Sumba’s iconic thatched-roof houses, the architecture reinterprets tradition with clean lines, refined volumes, and green roofs blending into the terrain. Communal areas evoke the Sumbanese village square, hosting lobby, restaurant, spa, and wellness spaces. The design humbly retreats, allowing nature and culture to define the experience.

Powerful forms, Quiet presence

Praesent ac ipsum sed velit dapibus molestie vitae in mi.
Praesent ac ipsum sed velit dapibus molestie vitae in mi.

LISTENING TO THE LAND

Architecture here is not a gesture it is a listening.

Listening to the wind that shapes the hills, to the lines of the land that guide the steps, to the silence that gives depth to space.

The project of The Domain of Rua was born from this dialogue between nature and construction. The architecture does not dominate the landscape; it follows its rhythm, its undulations, its pauses. Each villa grows from the ground like a fragment of topography anchored, discreet, inevitable.

The ambition was to design a place that blurs the boundaries between inside and outside, between built form and living environment. Light, air, and vegetation become materials in their own right. Walls frame the view rather than close it. Every space opens toward the horizon, toward the wind, toward the sound of the sea.

The architectural vocabulary is minimal yet rooted in vernacular memory. The project takes inspiration from the traditional Sumbanese village its central gathering space, its orientation, its sense of community and translates these values into a contemporary language of stone, wood, and concrete.

In this reinterpretation, the tall roofs of the ancient houses become horizontal lines; the clustered village becomes a terraced landscape; and the community spirit turns into a new way of inhabiting nature.

The Domain of Rua is not an object placed in the landscape it is a living architecture that coexists with it. A project where architecture becomes a bridge between land and life, between intimacy and immensity, between the essence of Sumba and the universal idea of home.

THE TROPICAL BOYAGE

Moodboard landscape with view and vegetation
The village with bougainvillea plantation and colorful grasses

A Poetic, Resilent Mosaic

Colorful grasses and bougainvillea flourish naturally on Sumba’s rocky terrain. Rainwater guided by the land’s contours sustains gardens and rice fields. Using simple, climate-adapted techniques rooted in local agricultural wisdom, the landscape evolves as both a scenic backdrop and a living, self-sustaining ecosystem that harmonizes with the island’s natural rhythms.

A HORIZON OF CALM & WELL-BEING

Infinity pools open onto the ocean. Fire pits glow at sunset. Guests move between shaded clearings, terraces, and natural pathways, immersed in a landscape that breathes.

From Landscape to Living Domain

A VISION ROOTED IN PLACE

The Domain of Rua was born from a vision to reveal the exceptional beauty of Sumba through a project that unites architecture, landscape, and authenticity.

Rather than imposing a resort, the ambition is to create a living domain: a constellation of villas discreetly integrated into the land, each framing the horizon and celebrating the spirit of place.

Sumba remains one of Indonesia’s last preserved territories a land of powerful hills, untamed coastlines, and ancestral traditions. Its unspoiled environment and limited infrastructure make it both a natural sanctuary and a new frontier for refined living. Its proximity to Bali just a one-hour flight away offers a rare balance between accessibility and exclusivity.

The Domain of Rua embodies this vision:

• to respond to the growing demand for high-end experiences rooted in nature and local identity;

• to offer travelers and investors a rare destination combining intimacy, architecture, and landscape;

• to enhance land value through a sustainable, low-density model respectful of the site and its resources.

Conceived as a series of villas scattered along Sumba’s western slopes, the project opens onto panoramic views of the ocean and rice fields. Each villa becomes an observatory of the landscape a calm retreat where contemporary comfort meets the timeless rhythm of nature.

This project is not merely real estate.

It is a belief that luxury can be simple, silent, and deeply grounded in place.

The villa with material combination as a foreground of the nature

The concrete finish to match the ground color

The old wood tone match the environment

Honest feature, Back to Nature

The sirap roof brings rustic warmth, the concrete ceiling blends seamlessly with the earth tone, limestone walls ground the structure in natural texture, while parquet floors add refined organic elegance.

Lime stone which found around the site
Sirap roof, traditional wood panel roof

A DOMAIN DESIGNED AS A BALANCE

1 - PRIVATE VILLAS

Total number of villas: 43

Total surface : 6,630 m²

Villas 1BR (indoor) – 23 units – 60 m² indoor and 40 m² terrace – Total: 1,380 m² + 920 m²

Villas 2BR (indoor) – 12 units – 90 m² indoor and 60 m² terrace – Total: 1,170 m² + 780 m²

Villas 3BR (indoor) – 5 units – 120 m² + Terrace 60 m² – Total: 600 m² + 350 m²

Villas 4BR (indoor) – 2 units – 150 m² + 90 m² – Total: 300 m² + 190 m²

Villas 5BR (indoor) – 1 unit – 700 m² + 400 m² – Total: 700 m² + 400 m²

“PrivateIntimacymeets communalspirit”

2 - COMMON GUEST AREA

Total surface: 800 m²

Main lobby (semi-open) – 150 m²

Reception & Concierge – 50 m²

Main Restaurant – 200 m²

Bar & Lounge – 100 m²

Boutique / Gallery – 20 m²

Spa & Wellness – 200 m²

Yoga / Meditation space – 80 m²

Gym – 80 m²

Communal Pool – 350 m²

3 – BACK OF HOUSE & STAFF – TECHNICAL

Total surface : 1,530 m²

4 – TECHNICAL INFRASTRUCTURE

Total surface : 1,000 m²

TOTAL BUILT TOP AREA = 10,060 m²

5 – ROADS & UTILITIES (VRD)

Total surface: 3,200 m²

6 – LANDSCAPE & ECOLOGY

Total surface: 40,000 m²

FIVE PILLARS OF DESIRABILITY

1. Brand & Storytelling : Create a distinctive identity rooted in Sumba’s soul.

2. Architecture & Landscape : Turn place itself into a sensory experience.

3. Experiential Offer : Sell a rare lifestyle, not rooms.

4. Cultural & Sustainable Commitment : Anchor modern luxury in authenticity.

5. Communication : Build selective desirability through crafted narratives.

Crafting a myth before building walls

1. BRAND & STORY TELLING

Evocative name and manifesto sentence expressing vision. Narrative anchored in poetry, serenity, and cultural transmission. Cohesive moodboard: architecture, landscape, materials, photography.

2. ARCHITECTURE & LANDSCAPE AS LANGUAGE

Villas as destinations in themselves. Natural pools, endemic gardens, seamless indoor-outdoor experiences. High-quality visuals (Aman / Nihi / Zannier spirit).

The infinity pool and the colorful garden
The Infinity pool from the Villa

3. HIGH-END EXPERIENTIAL OFFER

Private chefs, in-villa spa, sunrise yoga. Horse riding, surfing, cultural walks, artisanal workshops. Signature moments (e.g. roaming dinners in the savannah at sunset).

4. CULTURAL ANCHORING & SUSTAINABLE COMMITMENT

Collaborations with local communities (ikat, carving, landscape). Clear environmental commitments: water, energy, zero plastic. Cultural transmission as core experience, not accessory.

Local communities with ikat or weaving Sumba identity
Sunrise yoga in the Villa terrace and spa massage in the Village

5. COMMUNICATION STRATEGY & CHANNELS

Cinematic photo/video campaigns during construction. Collaborations with storytellers and selective publications (Wallpaper*, AD, Travel+Leisure Asia). Soft launch with ambassadors and creators; poetic, non-commercial tone.

Create emotional photo/video campaign sunset landscape

Create storrytelling about in and out rooms

Phase 1 : Land preparation, infrastructure, landscape base

Phase 3 : Full villa rollout, marketing amplification

Phase 2 : Core villas and communal heart

Phase 4 : Launch and operational refinement

FROM LAND TO LIVING DOMAIN

PHASE 1 Foundation

PHASE 2 Formation

PHASE 4 Realization

PHASE 3 Expansion

“A clear, strategic rollout”

Strong Fundamentals on A Rare Site

INVESTMENT OVERVIEW

NAME POSITION

Etiam bibendum elit ac nibh porttitor, et accumsan enim fringilla. Sed tristique vehicula nisl, eget rutrum metus vehicula et. Phasellus ac mi efficitur, euismod nunc

NAME POSITION

Etiam bibendum elit ac nibh porttitor, et accumsan enim fringilla. Sed tristique vehicula nisl, eget rutrum metus vehicula et. Phasellus ac mi efficitur, euismod nunc

NAME POSITION

Etiam bibendum elit ac nibh porttitor, et accumsan enim fringilla. Sed tristique vehicula nisl, eget rutrum metus vehicula et. Phasellus ac mi efficitur, euismod nunc

NAME POSITION

Etiam bibendum elit ac nibh porttitor, et accumsan enim fringilla. Sed tristique vehicula nisl, eget rutrum metus vehicula et. Phasellus ac mi efficitur, euismod nunc

WHY RUA WINS ?

THE UNIQUENESS REVEALED

Scarce site with four-axis horizon.

Distinct cultural signature; low-density design. Experiential edge; credible sustainability.

Desirability engine built into architecture & landscape. Balanced access / exclusivity near Bali.

“Scarcity, Aauthenticity & Vision”

PARTNER WITH US

CONFIDENTIAL INVESTMENT MEMORANDUM

Luxury Branded Villa Resort Development West Coast, Sumba Island, Indonesia

UNTAPPED MARKET POSITIONING

Strategic gap between ultra-luxury Nihi Sumba ($1,500-3,500/night) and local boutique offerings ($300-700/night). Target ADR of $900-1,300 addresses underserved premium traveler segment with significant pent-up demand.

MASTER VILLA DIFFERENTIATOR

Unique 10-bedroom Master Villa created by recomposing two 3-bedroom villas and one 4-bedroom villa, enabling full property buy-outs, private events, and corporate retreats. Projected revenue of $8,000-10,000 per night with minimal incremental operational cost, creating a competitive moat and operational flexibility.

INSTITUTIONAL-GRADE STRUCTURE

PT PMA SPV structure with clear governance, foreign ownership permitted, and free USD dividend repatriation. Exit-ready as single asset with established operational track record.

EMERGING DESTINATION MOMENTUM

Sumba transitioning from remote island to sought-after luxury destination. New airport infrastructure, increasing international flights, and sustained global press coverage driving awareness.

PREMIUM QUALITY STANDARDS

Six Senses-inspired design and operational standards. International-grade FF&E, sustainable practices, and authentic local integration creating differentiated guest experience.

COMPELLING UNIT ECONOMICS

Cost per key of $567k delivers 30% discount to Nihi benchmark while maintaining premium positioning. Conservative underwriting with multiple revenue optimization opportunities.

“Own a share of a living horizon”

Editorial

Architecture here is not a gesture — it is a listening.

Listening to the wind that shapes the hills, to the lines of the land that guide the steps, to the silence that gives depth to space.

The project of The Domain of Rua was born from this dialogue between nature and construction. The architecture does not dominate the landscape; it follows its rhythm, its undulations, its pauses. Each villa grows from the ground like a fragment of topography — anchored, discreet, inevitable.

The ambition was to design a place that blurs the boundaries between inside and outside, between built form and living environment.

Light, air, and vegetation become materials in their own right. Walls frame the view rather than close it. Every space opens toward the horizon, toward the wind, toward the sound of the sea.

The architectural vocabulary is minimal yet rooted in vernacular memory. The project takes inspiration from the traditional Sumbanese village — its central gathering space, its orientation, its sense of community — and translates these values into a contemporary language of stone, wood, and concrete.

In this reinterpretation, the tall roofs of the ancient houses become horizontal lines; the clustered village becomes a terraced landscape; and the community spirit turns into a new way of inhabiting nature.

The Domain of Rua is not an object placed in the landscape — it is a living architecture that coexists with it. A project where architecture becomes a bridge between land and life, between intimacy and immensity, between the essence of Sumba and the universal idea of home.

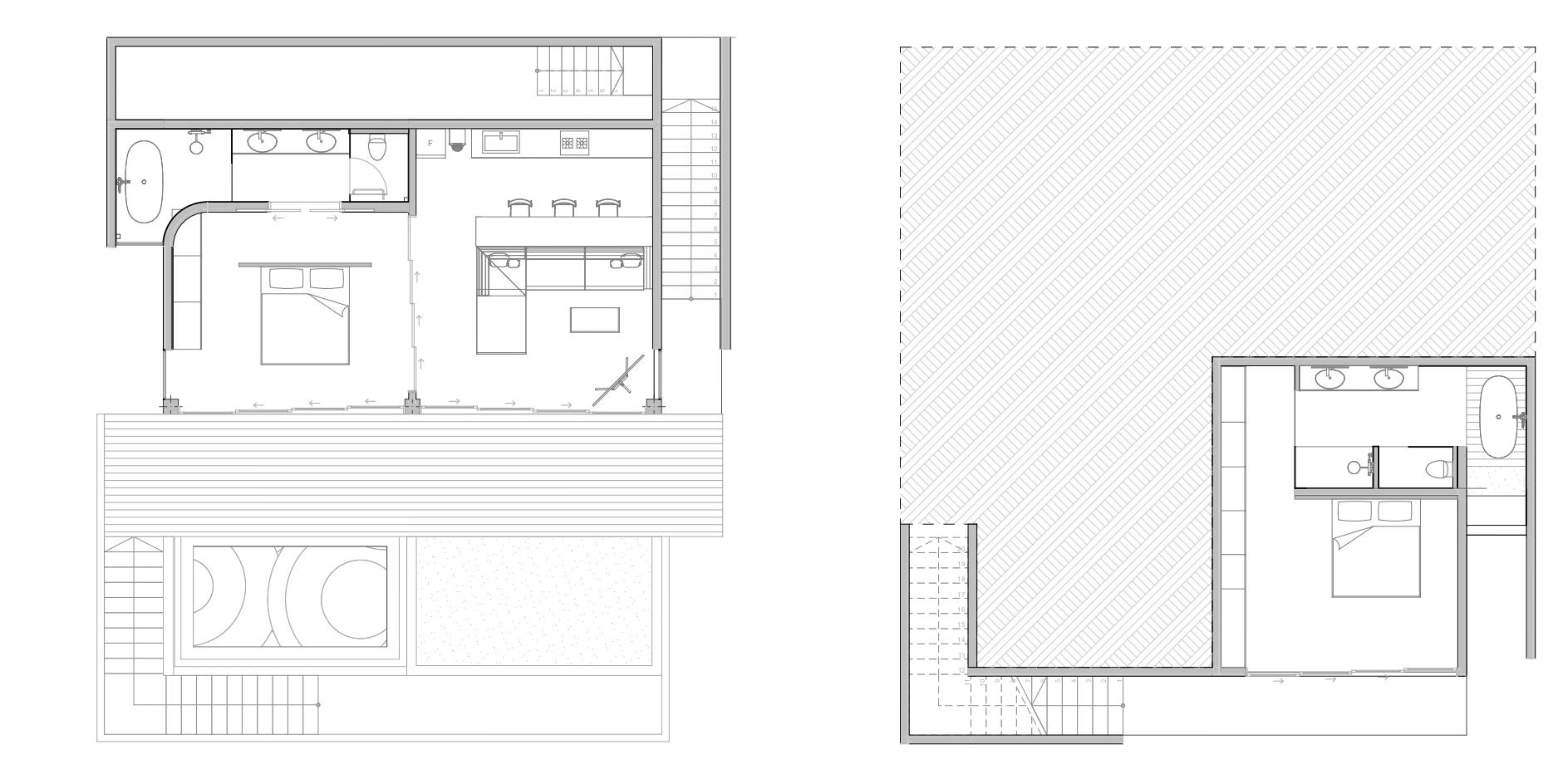
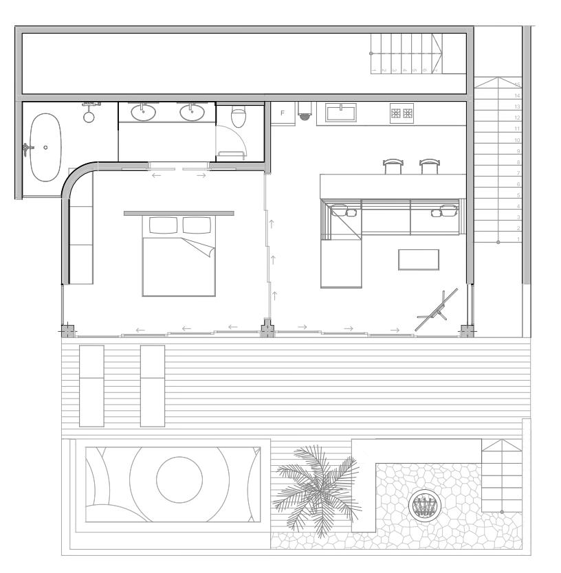
100 m2 (60 m2 of interior + 40 m2 terrace)

A villa designed for couples or individual stays, with private pool, large terrace open to the landscape, and fluid interiors bathed in light. The ideal balance be- tween intimacy and immersion in nature.

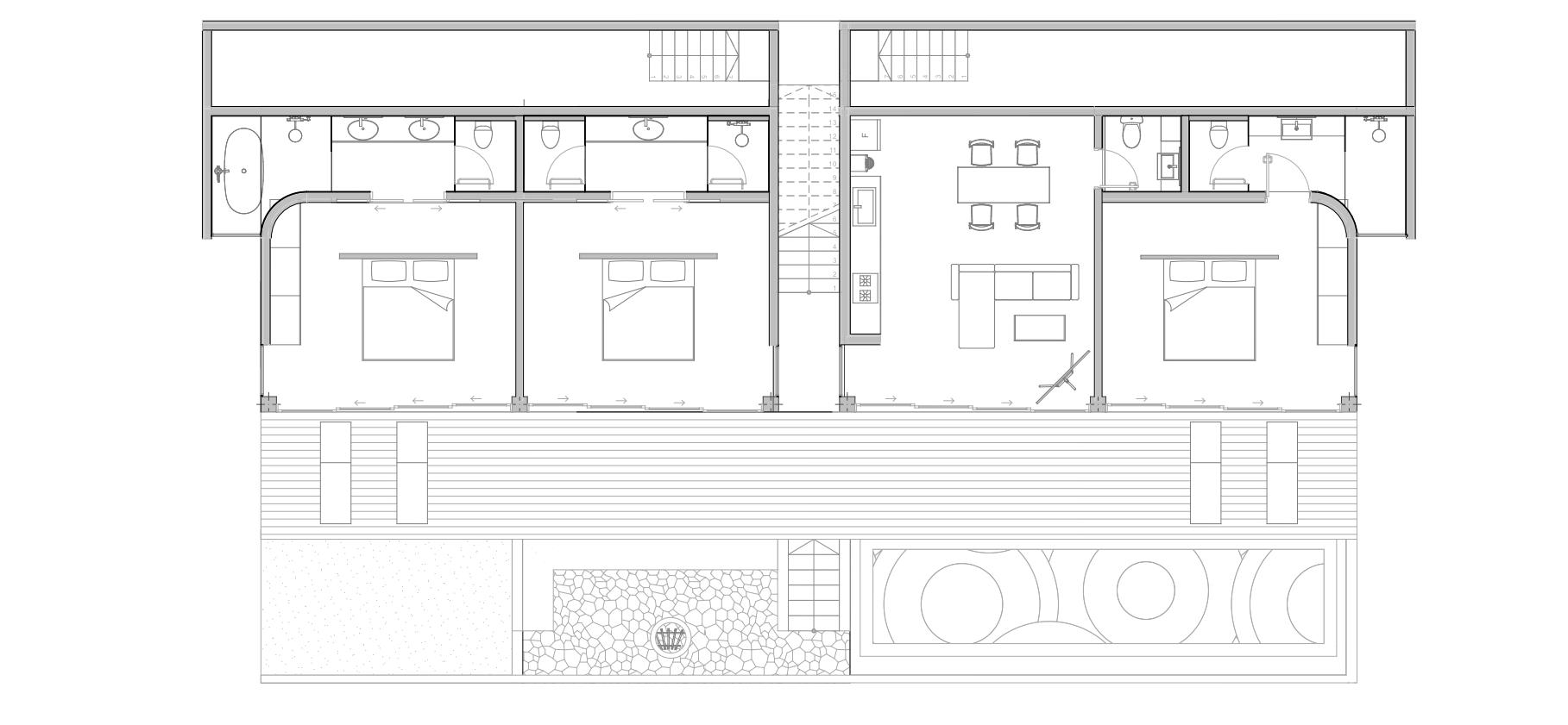
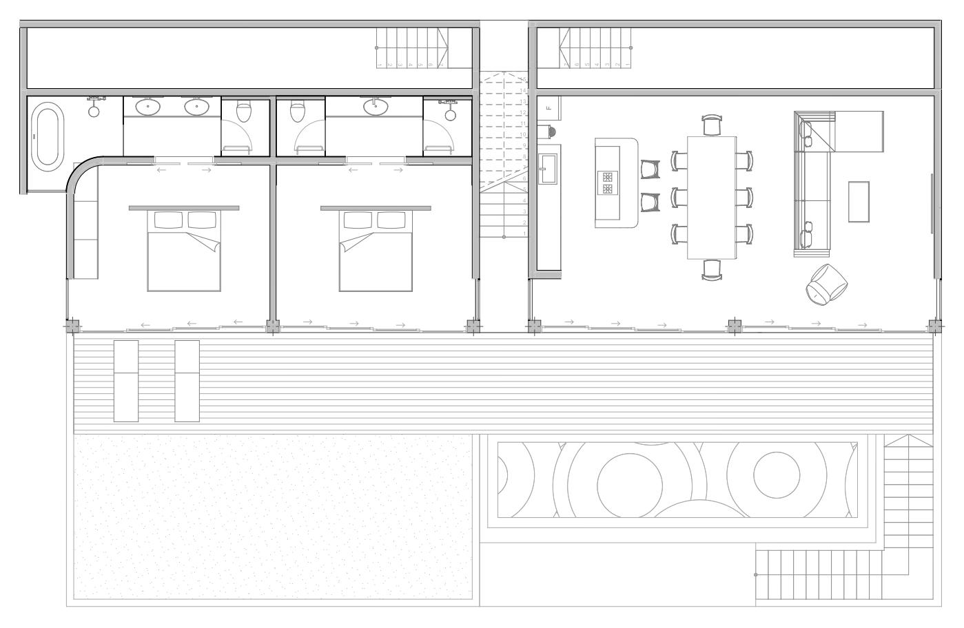
170 m2 (120 m2 of interior + 50 m2 terrace)

Spacious villa, designed for extended stays with family or friends. Three bedrooms with unobstructed views, large living space open to the outside, large shaded ter- race and private pool. Discreet luxury, friendliness and comfort.

UMA Villa 1 BR
UMA Villa 3 BR

130 m2 (90 m2 of interior + 40 m2 terrace)

Family or friendly villa, designed to share friendly moments. Central living room open to the pool, two independent bedrooms, large bay windows on the horizon. A functional and refined setting.

210 m2 (150 m2 of interior + 60 m2 terrace)

The signature villa of the Domain, positioned on the best points of view. Four bedrooms, panoramic terraces, infinity pool. A rare space, suitable for large stays or resale as an “estate villa”.

UMA Villa 2 BR
UMA Villa 4 BR
THE VILLA

Turn static files into dynamic content formats.

Create a flipbook
Issuu converts static files into: digital portfolios, online yearbooks, online catalogs, digital photo albums and more. Sign up and create your flipbook.