Woon!magazine Hilversum, Monnikenpark - fase 1

Page 1


www.monnikenpark.nl

INFORMATIE EN VERKOOP

Voorma en Walch Makelaars in Het Gooi

‘s-Gravenlandseweg 27 1211 BN Hilversum

T 035 - 525 31 35 www.voorma-walch.nl nieuwbouw@voorma-walch.nl

De Koster Burgersdijk Makelaars

Melkpad 34 1217 KD Hilversum

T 035 - 62 33 641

www.burgersdijk.com nieuwbouw@burgersdijk.com

AANNEMER

Bouwbedrijf Van Grootheest Argonstraat 26 6718 WT Ede

T 0318 - 41 90 15 www.grootheest.nl mail@grootheest.nl

ARCHITECT

DOK architecten www.dokarchitecten.nl

NOTARIS

Kienhuis Legal Newtonlaan 265 3584 BH Utrecht

T 088 - 480 41 50 www.kienhuislegal.nl utrecht@kienhuislegal.nl

SHOWROOM KEUKENS EN BADKAMERS

INITIATIEF

Monnikenpark BV

Onderdeel van VWOV

Huysinc | keukens, badkamers & tegels

Regterweistraat 5 4181 CE Waardenburg (A2, afrit 16)

T 0418 - 55 66 66

info@huysinc.nl www.huysinc.nl

Dit Woon-magazine is bedoeld om de sfeer en de mogelijkheden van dit project te laten zien. De in dit Woon-magazine aangegeven keuken, huishoudelijke apparaten en inrichting c.q. aankleding geven een impressie van de mogelijkheden en behoren niet tot de standaard uitrusting van de woning. De juiste positie van elektra/schakelmateriaal, rookmelders, afzuigpunten t.b.v. ventilatie e.d. staan op de verkooptekeningen vermeld en zijn niet in de plattegronden opgenomen. Aan de beelden, illustraties, plattegronden en teksten in dit Woon-magazine kunnen geen rechten ontleend worden. veelzijdig

MONNIKEN

INHOUD

IN DE OMGEVING

Heerlijk wonen in Hilversum 04

Voorzieningen 08

Wonen tussen het groen 10

HET BOUWPROJECT

Architect aan het woord 06

Wonen in Monnikenpark 07

Het woonpark 14

Situatie 16

Gevels 17

De verdiepingen 18

ALGEMEEN

Gasloos wonen 12

Daarom een nieuwbouwwoning 13

De koop van een appartement 46

Stappenplan voor jouw appartement 49

BADKAMER EN KEUKEN

Laat je inspireren bij Huysinc 50

MONNIKEN PARK

HILVERSUM

veelzijdig wonen bewust leven

GROEN WONEN IN MEDIASTAD

HILVERSUM IN HET HART VAN NEDERLAND

HILVERSUM

CENTRAAL GELEGEN EN OMRINGD DOOR BOSSEN VAN NATUURMONUMENTEN EN HEIDES VAN GOOIS NATUURRESERVAAT VORMT HILVERSUM HET BRUISENDE MIDDELPUNT.

RUST EN VERTIER

HEERLIJK WONEN IN ENORM LEUK

Een bruisende stad in het groen en de grootste stad van de Gooi & Vecht streek.

Het hart van het Nederlandse entertainmentindustrie en daarom de Mediastad van Nederland. Met een bevolking van ruim 90.000 inwoners is het relatief klein in vergelijking met andere steden in de Randstad. Dankzij de schitterende natuurlijke ligging is Hilversum de ideale stad om te ontsnappen aan de drukte van grote steden.

Van verschillende woonmogelijkheden in de mooiste buurten van het Gooi tot een levendig stadshart met veel activiteiten en evenementen. Het heeft 3 treinstations en ligt tussen de snelweg A1 en A27 in. Het is een stad voor elke leeftijd en elk budget, dat maakt Hilversum gevarieerd en zeer geliefd.

ARCHITECT AAN HET WOORD

“EEN UNIEKE WOONERVARING,

COMFORT EN EEN STERKE VERBINDING MET DE NATUUR”

Monnikenpark, gelegen op het voormalige ziekenhuisterrein in Hilversum, is een nieuw woningproject dat streeft naar een harmonieuze integratie met het omringende landschap. Ons doel is om de bewoners van de 329 nieuwe woningen zo veel mogelijk direct aan het groen te laten wonen, waardoor de verbinding met de natuur centraal staat in het ontwerp.

CONTINUÏTEIT

VAN HET LANDSCHAP

In lijn met de karakteristieke driehoekige brinken en landschappelijke velden van Hilversum, bouwt Monnikenpark verder op deze traditie. Het ontwerp, geïnspireerd door de stedenbouwkundige visie van Dudok, omvat driehoekige ‘groene longen’ die de heide voortzetten en een vloeiende overgang creëren tussen de stad en het omliggende landschap. Deze groene elementen bevorderen een

geleidelijke overgang van stedelijk naar landelijk gebied, en zorgen ervoor dat het natuurlijke karakter van de omgeving behouden blijft en versterkt wordt.

HET VERANDA-GEVOEL

Een van de belangrijkste kenmerken van Monnikenpark is de ruime veranda.

Deze veranda vormt de overgang tussen de woning en het omliggende groen. Bewoners kunnen hier buiten eten, terwijl kinderen vrij kunnen spelen in de natuur.

De ontwerpen zijn voorzien van een gedeelde vormentaal van ritmische lijnen, met het gebruik van materialen zoals hout, baksteen en stalen gevelbanden.

Deze materialen worden afwisselend toegepast om niet alleen een esthetische samenhang te creëren, maar ook om een duurzame veroudering van de gebouwen te waarborgen. Dit draagt bij aan de algehele uitstraling en duurzaamheid van het project.

DUURZAAMHEID EN

BEREIKBAARHEID

Het ontwerp van Monnikenpark omvat efficiënte ontsluitingswegen en slimme parkeeroplossingen, waardoor het project autoluw is en de voetganger de prioriteit krijgt. Dit bevordert een veilige en aangename leefomgeving, waarin de nadruk ligt op wandel- en fietsvriendelijkheid. De bouw van de 329 woningen wordt in twee fasen uitgevoerd.

VARIËTEIT EN TOEGANKELIJKHEID

Binnen het project wordt een ruime variëteit aan woningtypen aangeboden, geschikt voor verschillende prijscategorieën. Deze variëteit maakt Monnikenpark aantrekkelijk voor een breed scala aan bewoners, van jonge gezinnen tot ouderen en alleenstaanden. Door deze diversiteit en het streven naar een nauwe integratie met het groene landschap, biedt Monnikenpark een unieke woonervaring die zowel comfort als een sterke verbinding met de natuur combineert.

WONEN IN

MONNIKEN PARK

HET PLAN HEEFT GEVOEL VAN BUITEN. EEN COMBINATIE VAN APPARTEMENTEN EN VERSCHILLENDE WONINGEN.

KNIKKEND EN KNAKKEND VAN BUITEN, ZACHT VAN BINNEN. GROEN EN HARMONIEUS.

EEN MOOI NIEUW STUK HILVERSUM Het terrein van ziekenhuis Tergooi blijft in ontwikkeling. De gemeente Hilversum en Monnikenpark BV zijn tot overeenstemming gekomen over het woonprogramma van 300 tot 330 woningen en de voorwaarden voor overname van toekomstige openbare ruimte. De nieuwe woonwijk met projectnaam Monnikenpark komt op de plek van het huidige parkeerterrein en het oude ziekenhuis.

Monnikenpark BV heeft deze locatie in 2020 verworven van Tergooi. “We zijn zeer content met deze overeenkomst,” zegt verantwoordelijk wethouder Bart Heller. “Het is een grote hoeveelheid woningen, met een goed percentage sociale huur, middeldure huur en koop. Dat levert een mooie bijdrage aan het woningaanbod in de stad”.

VOORZIENINGEN

DOORDAT HILVERSUM DE GROOTSTE STAD IS VAN HET

GOOI- EN VECHTSTREEK HEEFT HET VEEL TE BIEDEN:

EEN EIGEN ZIEKENHUIS, EEN GROOT WINKELGEBIED,

GENOEG HORECA EN IS DE STAD OOK ALTIJD VOLOP IN BEWEGING EN ONTWIKKELING.

BEREIKBAAR

Hilversum is door de centrale ligging van de stad zeer goed bereikbaar met de auto via de A1 (Amsterdam-Duitsland) en de A27 (Breda-Almere).

Daarnaast beschikt de stad over vele parkeervoorzieningen. In het centrum zijn verschillende parkeerplaatsen en parkeergarages te vinden.

Hilversum is uitstekend bereikbaar met het openbaar vervoer. Het beschikt over 3 treinstations (Centraal, Mediapark, Sportpark). Dichtbij Monnikenpark bevindt zich een bushalte.

SPORTEN

In Hilversum zijn er diverse sportscholen voor workouts. Je kunt verschillende sporten beoefenen zoals voetbal, golf, cricket, tennis, hockey, paardrijden, atletiek, volleybal, basketbal. Met de bijbehorende faciliteiten, sportscholen, verenigingen, zwembad.

ONDERWIJS

In Hilversum zijn verschillende scholen voor basisonderwijs, er is een internationale school en een school voor speciaal onderwijs. Er zijn meerdere scholen voor middelbaar onderwijs op verschillende niveaus. Voor vervolgonderwijs is er het MBO en HBO onderwijs. En de universiteitssteden Amsterdam en Utrecht zijn zeer goed te bereiken met openbaar vervoer.

WINKELS

Een dagje shoppen in de winkelstraten van Hilversum is een aanrader. In de leuke straatjes vind je verschillende mooie, grote en kleine winkels. Daarnaast is er een overvloed aan gezellige tentjes om even uit te rusten met een drankje of een hapje.

Hilversum Centrum MONNIKEN PARK

GROEN

DE

NATUUR VAN HET GOOI IS NU VERBONDEN MET DIE VAN DE UTRECHTSE HEUVELRUG!

EEN GROTE AANWINST VOOR NATUUR EN RECREATIE.

LAARDER WASMEER LANDGOED MONNIKENBERG

Het laagst gelegen gebied binnen het Gooi. Daardoor stroomde jarenlang afvalwater van Hilversum naar deze plassen. Halverwege de jaren 2000 is het gebied ingrijpend gesaneerd en heringericht. De toevoer van stadswater is gestopt. Het gebied wordt begraasd en ontwikkelt zich tot een open landschap met stuifzand, enkele vennen en vochtige valleien. In verband met de natuurontwikkeling is het gebied niet vrij toegankelijk, en niet voorzien van wandel-, ruiter- en fietspaden. Er worden regelmatig publieksexcursie gehouden onder begeleiding van een gids, op iedere derde zondag van de maand. Rondom het Laarder Wasmeer is een wandelroute ‘Rondje Laarder Wasmeer’ aangelegd. Deze wandelroute is ongeveer 4,5 km en is bewegwijzerd met bordjes.

Een in landschapsstijl aangelegd landgoed met oude beukenlanen uit 1863, weilanden en een waterpartij waarin de kamsalamander voorkomt. Vanuit het landhuis en het voormalige kloostergebouw is er een doorkijk op de Sint-Vituskerk van Hilversum.

Het landgoed vormt onderdeel van de Groene Schakel, de ecologische verbinding tussen ’t Gooi en de Utrechtse Heuvelrug. De Groene Schakel bestaat uit een grote faunatunnel onder de rijksweg A27 en een natuurbrug over de busbaan, de verlegde weg over Anna’s Hoeve en de spoorbaan. Er is een rustgebied ingesteld voor de fauna bij de ingangen van de faunatunnel en de natuurbrug. Uit onderzoek is gebleken dat onder het weiland een ven aanwezig is. Door zand te verwijderen is dit hersteld. Een deel van het landgoed is rustgebied en niet toegankelijk voor publiek.

Door gebruik van goede isolatie en warmtepomp verlaag je je energierekening aanzienlijk!

GASLOOS WONEN

MISSCHIEN STA JIJ OP HET PUNT OM

EEN NIEUWBOUWAPPARTEMENT TE KOPEN.

DIT APPARTEMENT WORDT GASVRIJ OPGELEVERD.

MAAR WAT LEVERT HET JE NU PRECIES OP?

Door je appartement op een duurzame manier te verwarmen kun je een bijdrage leveren aan vermindering van de CO2-uitstoot.

lagere energierekening verlaging uitstoot

Betere isolatie en ventilatie zorgen voor een gezonder binnenklimaat en meer wooncomfort. Dat merk je elke dag!

gezonder binnenklimaat voordeliger koken

Koken op inductie kan voordeliger zijn omdat de belasting op elektriciteit daalt. De belasting op gas stijgt.

EEN NIEUWBOUWAPPARTEMENT

Meerwaarde

Nieuwbouwappartementen stijgen sneller in waarde dan bestaande appartementen. Dat is niet verwonderlijk. Je steekt geen geld in overdrachtsbelasting of kostbare vervanging van een keuken of badkamer. De waarde van jouw appartement is daardoor al snel hoger dan je hypotheek.

Kwaliteit & duurzaamheid

De materialen die wij voor de bouw van jouw appartement toepassen zijn geselecteerd op kwaliteit en duurzaamheid. Er wordt gewerkt met traditionele materialen, hardhouten kozijnen en inbraakwerend hangen sluitwerk. We leveren je appartement te allen tijde op inclusief afwerkvloeren, een complete badkamer- en toiletruimte (inclusief wand- en vloertegels en sanitair).

Geen zorgen

Heerlijk, je stapt in een splinternieuw appartement. Oftewel, geen zorgen over repareren of vervangen.

De komende jaren heb je nauwelijks onderhoud aan je nieuwe appartement. Heel aangenaam.

Lage energielasten

Energiekosten vormen een belangrijk deel van je maandelijkse woonlasten. Bij onze nieuwbouwappartementen zijn die aanmerkelijk lager. We bouwen onze appartementen namelijk opvallend energiezuinig.

Garantie

Het project is aangemeld bij Woningborg. Je ontvangt na aankoop het zogenaamde garantiecertificaat van Woningborg. Een bewijs dat je kiest voor een goed project en een betrouwbare bouwer. Gaat er iets mis tijdens de bouw, dan wordt het voor je opgelost. Je krijgt niet voor niets jarenlange garantie.

Financieel voordeel

Een nieuwbouwappartement koop je vrij op naam. Je betaalt dus geen overdrachtsbelasting.Wist je dat je extra financieringsruimte (hypotheek) kunt krijgen als je nieuwbouwappartement duurzaam is/wordt uitgevoerd? Vraag naar de (optionele) mogelijkheden bij de makelaar of je hypotheekadviseur.

Volop keuze

Je kunt jouw appartement meteen naar je smaak (laten) inrichten. Je hoeft het dus niet te doen met de keuken of de badkamer die vorige bewoners mooi vonden. Je kunt uit tal van opties kiezen. Dat levert je veel extra woonplezier en een gezonde trots op!

Goede sfeer

Je zult zien hoe snel er een nieuwe buurt ontstaat. De bewoners van een appartementencomplex willen elkaar graag leren kennen. Het is opvallend hoe snel er een vriendelijke sfeer groeit.

MONNIKENPARK LANDSCHAP

HET WOONPARK

MONNIKENPARK IS GENESTELD IN HET LANDSCHAP

MET BOSSEN, VENNEN EN HEIDERESTANTEN.

HET WOONPARK SLUIT AAN BIJ HET GOOIS NATUURRESERVAAT (MONNIKENBERG EN ANNA’S HOEVE) EN HET GEZONDHEIDSPARK (TERGOOI).

SAMEN VORMT HET EEN GROOT LANDGOED.

KRACHTIG GROEN LANDSCHAPSBEELD UNIEKE NATUURLIJKE KWALITEITEN

Aansluitend op de grotere landschappelijke opbouw begint in het noorden een dichte beplanting van bomen met struiken. Deze bos-zoom zorgt voor een stevige afscherming van spoor en HOVbaan, sluit nauw aan bij de ecologie van omgeving en vormt een mantel die goed samengaat met de appartementen die de randen van het plan vormen.

De vier, incidenteel vijf, bouwlagen verhouden zich prettig met de bomen; een aanzienlijk aantal is aanwezig, en zijn zorgvuldig ingepast.

De bossfeer gaat geleidelijk over in meer open velden. Via boomgroepen in het gras, waar je onderdoor kijkt en de continuïteit van de groene ruimte kunt beleven, naar losse bomen. Naast gras, deels voor de bruikbaarheid kort gemaaid, deels lang en bloemrijk, komen glooiingen met heide bij. Uiteindelijk mondt deze ruimten uit in de grote wig die doorloopt in het landgoed Monnikenberg en sluit aan op de heide aldaar. De wadi’s die het regenwater van Monnikenpark opvangen, bufferen en infiltreren, vormen een echo van het ven van Monnikenberg. In de overgang naar het ziekenhuis verdicht de boombeplanting zich weer, zodat het landschapsbeeld krachtig groen blijft.

Zichtbare biodiversiteit, dagelijks beleefbare rijke natuur en rust en ruimte resulteren in het gevoel opgenomen te zijn in het landschap. Direct vanaf je veranda of balkon begint het natuurrijke landschap; dat is een bijzondere en tegelijk dagelijkse ervaring. De groene longen in het hart van het park zorgen voor vrije ruimten om vrij te spelen en te bewegen, veilig zonder confrontatie met auto’s. Daartoe ligt de ontsluiting van de woningen en de appartementen aan de rand van het park. Het woonpark is ‘Best of Both Worlds’; uitstekend bereikbaar én ingebed in de natuur. Met een optimale wisselwerking tussen wonen en landschap doet Monnikenpark recht aan de unieke natuurlijke kwaliteiten van de plek.

Lodewijk Baljon & Robert van der Horst BALJON landschapsarchitecten

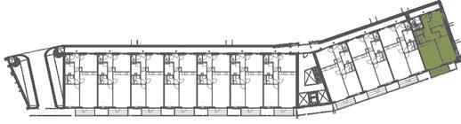
SITUATIE GEVELS

TYPE C

3-kamer appartement begane grond: bwnr 2 t/m 10

1e verdieping: bwnr 35 t/m 44

2e verdieping: bwnr 69 t/m 78

3e verdieping: bwnr 105 t/m 114

Van Riebeeckweg

TYPE D

3-kamer appartement begane grond: bwnr 1

1e verdieping: bwnr 34

2e verdieping: bwnr 68

3e verdieping: bwnr 104

TYPE Z

4-kamer appartement

2e verdieping: bwnr 79

3e verdieping: bwnr 115

type D bwnr 104, 68, 34, 01

Noordgevel zuidgevel

type C bwnr 105, 69, 35

type C bwnr 106, 70, 36, 02

type C bwnr 107, 71, 37, 03

type C bwnr 108, 72, 38, 04

type C bwnr 109, 73, 39, 05

type C bwnr 110, 74, 40, 06

type C bwnr 111, 75, 41, 07

type C bwnr 112, 76, 42, 08

type C bwnr 113, 77, 43, 09

type C bwnr 114, 78, 44, 10

type Z bwnr 115, 79

type Z bwnr 115, 79

type C bwnr 114, 78, 44, 10

oostgevel

type C bwnr 113, 77, 43, 09

type C bwnr 112, 76, 42, 08

type C bwnr 111, 75, 41, 07

type C bwnr 110, 74, 40, 06

type C bwnr 109, 73, 39, 05

type C bwnr 108, 72, 38, 04

type D bwnr 104, 68, 34, 01

type C bwnr 107, 71, 37, 03

type C bwnr 106, 70, 36, 02

type C bwnr 105, 69, 35

type D bwnr 104, 68, 34, 01

BEGANE GROND

VERDIEPING

3E VERDIEPING

TYPE C RUIM 3-KAMER APPARTEMENT

KENMERKEN

Gesitueerd op de begane grond, 1e, 2e, 3e verdieping

Prachtig wonen in een groene setting (parkgevoel)

Bijzondere architectuur met ronde vormen en lichte baksteen

Woonoppervlakte circa 77 m²

3-kamer appartement met 2 slaapkamers

Privé berging en collectieve fietsenstalling in de kelder welke via een hellingbaan te bereiken zijn

Privé parkeerplaats in stallingsgarage die in een latere fase wordt gerealiseerd

De app artementen zijn gasloos en worden uitgevoerd  m et een individuele warmtepomp en collectieve bodemlussen en b alansventilatie met warmteterugwinning

De app artementen hebben een Energielabel A+++,  waardoor lage energielasten

GASLOOS WONEN

Zie pagina 12

BIJZONDERHEDEN

Woonoppervlakte circa 77 m²

2 slaapkamers Licht appartement door grote raampartijen Woonkamer/keuken met toegang tot een op zuid gelegen balkon/terras Appartementen op de begane grond beschikken naast een terras aan de achterzijde ook over een terras aan de voorzijde Complete badkamer,  voorzien van inloopdouche en wastafel Separaat toilet  Technische/wasruimte met wasmachine aansluiting en opstelling warmtepomp

BEGANE GROND

TYPE D FRAAI 3-KAMER HOEKAPPARTEMENT

KENMERKEN

Gesitueerd op de begane grond, 1e, 2e, 3e verdieping

Prachtig wonen in een groene setting (parkgevoel)

Bijzondere architectuur met ronde vormen en lichte baksteen

Woonoppervlakte circa 71 m²

3-kamer appartement met 2 slaapkamers

Privé berging en collectieve fietsenstalling in de kelder welke via een hellingbaan te bereiken zijn

Privé parkeerplaats in stallingsgarage die in een latere fase wordt gerealiseerd

De app artementen zijn gasloos en worden uitgevoerd  m et een individuele warmtepomp en collectieve bodemlussen en b alansventilatie met warmteterugwinning

De app artementen hebben een Energielabel A+++,  waardoor lage energielasten

GASLOOS WONEN Zie pagina 12

TYPE D

BIJZONDERHEDEN

Woonoppervlakte circa 71 m² 2 slaapkamers Licht appartement door grote raampartijen, ook in de kopgevel Woonkamer/keuken met toegang tot een op zuid gelegen balkon/terras Appartementen op de begane grond beschikken naast een terras aan de achterzijde ook over een terras aan de voorzijde Complete badkamer,  voorzien van inloopdouche en wastafel Separaat toilet Technische/wasruimte met wasmachine aansluiting en opstelling warmtepomp

BEGANE GROND

TYPE Z ROYAAL 4-KAMER APPARTEMENT

KENMERKEN

Gesitueerd op de 2e en 3e verdieping

Prachtig wonen in een groene setting (parkgevoel).

Bijzondere architectuur met ronde vormen en lichte baksteen

Woonoppervlakte circa 97 m²

4 -kamer appartement met 3 slaapkamers

Privé berging en collectieve fietsenstalling in de kelder welke via een hellingbaan te bereiken zijn

Twee privé parkeerplaatsen in stallingsgarage die in een latere fase wordt gerealiseerd

De app artementen zijn gasloos en worden uitgevoerd  m et een individuele warmtepomp en collectieve bodemlussen en b alansventilatie met warmteterugwinning

De app artementen hebben een Energielabel A+++,  waardoor lage energielasten

GASLOOS WONEN Zie pagina 12

TYPE Z

BIJZONDERHEDEN

Woonoppervlakte circa 97 m²

3 slaapkamers Licht appartement door grote raampartijen Woonkamer/keuken met toegang tot een op zuid gelegen balkon Complete badkamer,  voorzien van inloopdouche en wastafel Separaat toilet Technische/wasruimte met wasmachine aansluiting en opstelling warmtepomp

BEGANE GROND

DE KOOP VAN

EEN APPARTEMENT

DE APPARTEMENTEN MAKEN DEEL UIT VAN EEN WOONGEBOUW. DIT GEBOUW BESTAAT UIT DIVERSE APPARTEMENTEN EN GEMEENSCHAPPELIJKE RUIMTEN. VOLGENS DE WET IS DE OFFICIËLE BENAMING VAN EEN APPARTEMENT: EEN ‘APPARTEMENTSRECHT’.

APPARTEMENTSRECHT

Deze officiële benaming geeft aan dat er onderscheid wordt gemaakt tussen enerzijds het eigendom en anderzijds de gebruiksrechten. Het eigendom van het gehele gebouw behoort aan alle eigenaren gezamenlijk; daarnaast heeft iedere eigenaar het gebruiksrecht van een privégedeelte, het appartement, de berging en eventueel één of meerdere parkeerplaatsen, en het mede gebruiksrecht van die gedeelten van het gebouw, die voor gemeenschappelijk gebruik zijn bestemd. Bij dit laatste kun je onder meer denken aan het trappenhuis en de lift, de entree en de gezamenlijke installaties. Bijvoorbeeld de algemene verlichting.

Appartementsrechten ontstaan door de splitsing van het gebouw in juridische zin. Om het gebouw in appartementsrechten te splitsen wordt door de notaris een zogenoemde splitsingsakte opgesteld.

De splitsingsakte wordt tezamen met de splitsingstekeningen, waarop de grenzen van de gezamenlijke en privégedeelten van het gebouw staan aangegeven, ingeschreven in de openbare registers. Pas als dit laatste heeft plaatsgevonden is de splitsing formeel een feit. Dan ontstaan de zogeheten ‘appartementsrechten’. De eigendomsoverdracht geschiedt door middel van de ‘akte van levering’ bij de notaris.

VERENIGING VAN EIGENAREN (VVE)

De eigenaren van de appartementsrechten zijn verplicht lid van de Vereniging van Eigenaren die door de notaris zal worden opgericht. In het reglement van deze vereniging zullen alle gemeenschappelijke verantwoordelijkheden worden geregeld tussen eigenaren onderling, evenals het beheer en onderhoud van de gemeenschappelijke ruimten en gemeenschappelijke installaties. In het kort kan de doelstelling van de vereniging als volgt worden weergegeven: het beheren en onderhouden van de gemeenschappelijke gedeelten en de gemeenschappelijke zaken van het onderhavige gebouw zoals de entree, het trappenhuis en de lift, het dak, etc.

Het zal duidelijk zijn dat deze verantwoordelijkheden kosten met zich meebrengen. Deze kosten worden omgeslagen in de servicekosten. Daartoe zal, overeenkomstig het bepaalde in de statuten van de vereniging, een vergadering met alle eigenaren worden gehouden, waarin de exploitatiebegroting wordt besproken en de servicekosten worden vastgesteld. Bij deze vergadering(en) is de Vereniging van Eigenaren gebonden aan de bepalingen van het splitsingsreglement.

AKTE EN HET REGLEMENT

VAN

SPLITSING

In de notariële akte van splitsing is een aantal belangrijke items opgenomen, zoals:

• een beschrijving van het gebouw; een beschrijving van ieder ‘afzonderlijk gedeelte’, de appartementen;

• een beschrijving van het aandeel dat iedere eigenaar heeft in het hele gebouw. Het zogenaamde ‘breukdeel’; het splitsingsreglement.

HET SPLITSINGSREGLEMENT

Vooral het splitsingsreglement is van belang. Hierin staat namelijk beschreven: hoe de ‘Vereniging van Eigenaren’ is samengesteld en zal functioneren; hoe het huishoudelijk reglement eruit zal zien; welke lasten en kosten voor rekening van alle eigenaren gezamenlijk komen; hoe het gebruik, het beheer en het onderhoud van de gemeenschappelijke gedeelten en privégedeelten van het gebouw zijn geregeld; hoe de jaarlijkse begroting voor beheer en onderhoud, de exploitatie- rekening, eruit moet zien; • hoe en wanneer de voorschotbijdragen in de ‘servicekosten’ moeten worden betaald; hoe het gebouw verzekerd moet zijn en op welke wijze bij schade uitkering wordt gedaan.

EIGENAARSLASTEN

Tot de eigenaarslasten behoren de publiekrechtelijke lasten, zoals de onroerende zaakbelasting, het lozingsrecht en de lasten voor het reinigingsrecht. Deze lasten zullen door de diverse instanties rechtstreeks aan elke eigenaar afzonderlijk worden opgelegd.

Stappenplan voor jouw appartement

6 Keuzes maken uit optielijsten ruwbouw

1 Verkoopgesprek bij de makelaar

7 Onherroepelijke omgevingsvergunning / vervallen opschortende voorwaarden

5 Gesprek met de kopersbegeleider

2 Ondertekenen koop- en aannemingsovereenkomst

12 Kijkdagen op de bouw

8 Notarieel transport

4 Vervallen ontbindende voorwaarden koop- en aannemingsovereenkomst (twee maanden na stap 2)

11 Tijdens de bouw blijf je op de hoogte via nieuwbrieven

9 Start bouw

10 Keuzes maken uit optielijsten afbouw

13 Voorschouw appartement

14 Oplevering appartement

15 Verhuizen en inrichten. Genieten van je nieuwe thuis!

3 Bezoek showroom voor keuken en sanitair/tegelwerk

Laat je inspireren bij Huysinc

Een interactieve showroom waar ruim 3.500 m 2 aan keukens, badkamers, tegels en woonstijlen samenkomen. In de vier stijlgebieden en compleet aangeklede stijlhuizen vind je volop inspiratie.

Keukencheque

Je ontvangt als koper van een van onze appartementen een keukencheque. Deze kan binnen de aangegeven termijn ingewisseld worden bij Huysinc. De waarde van de keukencheque zal in mindering worden gebracht op de aankoop van een complete keukeninrichting. Onder een complete keukeninrichting wordt tenminste verstaan: een keukenblok (bestaande uit meerdere onder- en eventuele bovenkasten), inclusief werkblad(en), spoelbak, mengkraan, afzuigkap en overige apparatuur (zoals bijv. een koelkast, oven,magnetron, vaatwasser).

De keukencheque is geregistreerd op naam van de koper, is niet overdraagbaar aan derden en kan niet voor contanten worden ingewisseld.

Beleef je nieuwe keuken en badkamer

In de showroom loop je virtueel door je nieuwe keuken en badkamer. Een unieke beleving! Zo ervaar je of de ruimte helemaal naar wens is.

Heb je wel voldoende loopruimte?

Bevinden alle apparaten zich wel binnen handbereik? Is de werkhoogte wel goed? Kom het zelf testen in de showroom.

Jouw droombadkamer

Elke dag begint en eindigt in de badkamer. Rust en comfort in de badkamer is daarom wel zo belangrijk. Ga je voor een bad om lekker in te ontspannen?

Of geniet je van handige dubbele wastafels? Er is keuze genoeg om in jouw badkamer je eigen wellness te creëren.

Laat je inspireren

Laat je in onze showroom inspireren met uitleg, noviteiten en overzichtswanden. Met een QR scanner kun je op groot beeldscherm de tegel van jouw keuze in een vloer- of wandoppervlak in verschillende ruimtes in de woning zien. Combineer totdat je jouw ideale (badkamer)tegels hebt gevonden.

Turn static files into dynamic content formats.

Create a flipbook
Issuu converts static files into: digital portfolios, online yearbooks, online catalogs, digital photo albums and more. Sign up and create your flipbook.