Walker Architects for Technical College System of Georgia

Page 1

Design for an Agile World Putting People

First, by Design

Prepared for

Agile World

At Walker Architects, we believe there is a better approach to design. Our founder, Joe Walker, began the firm in 2009 because he thought that clients would benefit by having an architectural partner who focused on putting people first by design.

Typically, the clients we serve have many changing needs and limited resources. We believe that agile spaces allow the people who occupy them to be more successful by removing the things that get in the way, and give the building owner the best return on their investment.

Our Agile Design approach is a mindset for design that is all about meeting people's needs—especially the wide range of student and educational needs.

Our clients are trying to do more with less. We offer more flexibility, removing the barriers to success and bringing more value for every dollar spent.

Hundreds of projects over the last decade have taught us that when we remove the limits of creativity and prioritize our clients’ voices, we create dynamic, agile spaces that stand the test of time and lead to better outcomes for all.

Design for an Agile World

One of the guiding principles of our studio's philosophy is Agile Design. We gain a clear understanding of the needs of the people that are affected by a space, then provide multiple, flexible ways to meet those needs not only today, but for years down the road.

Our process yields a more efficient design, allowing you to do more with your limited resources.

4 Walker Architects, Inc. 2035 Northwest 13th Street Gainesville, Florida 32609 352 672 6448 walker-arch.com AA26002009 design builds people v
An
space is not just about openness; it's about choice.

An ecosystem of spaces brings choice and control into the equation.

A variety of choices within an environment provides people the tools they need to collaborate efficiently and think creatively. A diverse ecosystem allows people to control information and stimulation, increasing engagement and productivity.

People require a combination of open and private spaces for both individual and group-oriented work. While open areas build community, bolster trust, and nurture creativity, areas with more privacy meet the needs of analytical task-doing and focused meetings.

agile
emotional BE HAPPIER! privacy teamwork connect mental THINK BETTER! focus learn collaborate physic a l FEEL BETTER! flexibility comfort nature wellbeing

INDIVIDUAL

Controlled access of self to group, not a departure from the team— think invite-only, not hermit

PRIVATE OPEN

Controlled stimuli, not deafening silence— think library, not waiting room

innovate focus share meet

GROUP

Feeling part of a group, not the center of attention— think town square, not center-stage

A healthy amount of stimuli, not sensory-overload— think cafe, not carnival

A variety of furniture types offer different levels of comfort, from casual to more formal.

Classrooms are infinitely reconfigurable using mobile furniture and technology.

Power and technology are widely available in the open communal space.

Mobile furniture outside of classrooms allow for breakout sessions and provide opportunity to continue class discussions.

Private offices feature glass walls to encourage interaction between faculty, staff, and students.

Meeting rooms range in scale and comfort level.

Testing rooms are quiet and allow focus without interruption.

Comfortable seating areas throughout the open communal space attract people and provide opportunities to interact, connect, study, or work.

8 7 6 5 INDIVIDUAL PRIVATE OPEN GROUP 8 7 6 5 4 3 2 1
1 2 3 4 8 7 6 5 4 2 3 1

Putting People First, By Design

For the past two decades…

Fortune 500 companies, leading public universities, and top construction managers have all relied on our passionate team of experts to design agile spaces throughout the Southeast. We have grown through the years because of our ability to listen, collaborate, and solve facility challenges with value-driven designs.

We consistently invest in technology and communication infrastructure that rivals what is associated with global design firms. Our systems empower our team to do big things with small project budgets from anywhere without sacrificing client service.

What is it like to work with us?

Working with Walker Architects, stakeholders feel confident and heard throughout the design process.

We understand your vision and needs and effectively communicate them to the team. Our commitment is to deliver successful design solutions that exceed expectations.

We act as your unwavering advocate, executing your vision and maintaining consensus through purposeful meetings. We prioritize prompt response, continuous updates, and exceptional support throughout the project.

FUNDAMENTAL #14

Deliver Legendary Service

It's all about the experience. With every experience, do the little things, as well as the big things, that surprise people. Make every interaction stand out for its helpfulness.

Create the "WOW" factor that turns customers into ravings fans. This includes both internal and external customers.

The Walker Way

What makes Walker Architects different?

It's the way we work.

Our 26 core fundamental behaviors guide our approach to working with clients, partners, and each other.

Every team member receives a "Walker Way" card as a reminder of the values and professionalism we embody in our work. We reflect on our Fundamentals weekly as a team, sharing what they mean to us and how we apply the practices to our work.

By regularly teaching and practicing these Fundamentals, we have created a high-performance culture that consistently strives for excellence.

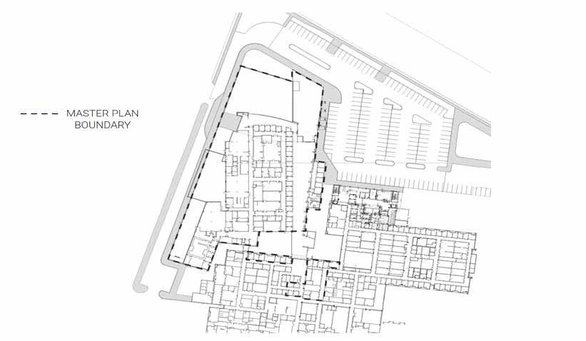
UF College of Veterinary Medicine Master Plan

PROJECT DESCRIPTION

The UF College of Veterinary Medicine provides leading-edge care for animal patients and teaches veterinarians of the future. The college continues to grow and is in need of additional space to be able to serve more patients.

We worked closely with Dr. Dana Zimmel and her team to examine existing program space and establish a concept design for expansion. The campus is already densely populated and there are few viable options where space can be added. With considered input from the end-users, we identified areas in the building that could be renovated with the least impact to daily operations. We then provided concept design options for an expansion. The preferred option was a 72,000 SF building addition that meets the program needs for growth and offers new highly visible building entrances for Emergency and Oncology.

Many of the animals being serviced are sick, injured, or geriatric, and need to be able to comfortably access outside space with limited travel time. The design offers a new ground level and rooftop dog walk areas. Active conversations and a thorough understanding of the Veterinary Medicine team's needs and priorities allowed us to deliver a Master Plan that will support the college in advancing the science of animal, human and environmental health.

PROJECT DATA

Construction Cost: $4.0M

Size: 84,700 gsf

Completion Date: 1/2022

OWNER CONTACT

Tori Hughes, UF Planning Design & Construction 245 Gale Lemerand Suite 232, Gainesville, FL 32611 US v.hughes@ufl.edu

The selected scheme for the proposed building addition is presented in the below images, proposing a nor thward expansion towards NW 16th Avenue, and wrapping along the west side of the existing building.

6
WA21049 age

Santa Fe College Blount Campus Expansion Master Plan

PROJECT DESCRIPTION

The Master Plan for the Santa Fe College Blount Campus is intended to address immediate and future space needs as the institution expands its academic services as well as civic, business, and professional partnerships. In keeping with the mission of the Blount Campus, the Master Plan is a holistic strategy to develop Santa Fe College's existing downtown campus in order to further its position as a learning institution and a prominent community hub and outreach center.

This expansion intends to establish a permanent home for the Information Technology and Business academic programs. These programs are best supported by a setting that fosters dynamic innovation and connectivity among students, faculty, and professional networks. Santa Fe's presence downtown supports the functions of its outreach mission.

The Blount Campus provides a home campus for incoming students from East Gainesville and the downtown community. Its intent is to offer an inviting, personal one-on-one environment for learning.

PROJECT DATA

Construction Cost: $26.3M

Size: 86,310 gsf

Completion Date: 11/2017

OWNER CONTACT

Rebecca Rogers, Santa Fe College 3000 NW 83rd Street F026, Gainesville, FL 32606 US

rebecca.rogers@sfcollege.edu

The Nature Conservancy Feasibility Study & Concept Design

PROJECT DESCRIPTION

This multi-phase project involved master planning and a feasibility study as well as schematic design for two separate locations owned by The Nature Conservancy: Blowing Rocks Preserve on Jupiter Island, Florida, and Disney Wilderness Preserve in Poinciana, Florida. Planning efforts included utilities, accessible paths and docks, parking lot and road improvements, classrooms and offices, event spaces, and living accommodations.

The study analyzed the constructability of proposed site implements and identified programmatic needs. The approach emphasized each site's unique natural and preexisting built conditions and employed sensitive design strategies to convey the unique story of each site.

A detailed cost analysis and development plan for each site provided the framework for the team's subsequent schematic design efforts. Walker Architects is now providing design and construction administration for the new bunkhouse and learning lab at the Disney Wilderness Preserve.

PROJECT DATA

Construction Cost:

Size: 62,770 gsf

Completion Date: 04/2022

OWNER CONTACT

Matthew Marino, Oelrich Construction Inc

275 NW 137th DR Suite A, Jonesville, FL 32669

matt@oelrichconstruction.com

Exactech Master Planning

PROJECT DESCRIPTION

Exactech is a company that is "Surgeon Focused, Patient Driven". The design team used this premise as a filter to make decisions about the expansion requirements, department zoning, and teaming adjacencies outlined in the Exactech Master Plan.

Though Exactech manufactures products in house, they are not a manufacturing company. Therefore, all design alternatives in the Master Plan sought to create and reinforce the primary relationship of Sales & Marketing with Engineering and Manufacturing, rather than purely expand space for manufacturing and storage needs.

The findings in this report were intended to guide the growth of the company in a fashion that continues this relationship with each addition and/or renovation. The report also outlined manageable scopes of work that can be built independently, or as a single effort, and provides renovation options that lead to as little downtime as possible. This modular approach allows for a fluid growth pattern depending on highest priorities and available funding.

Through working closely with stakeholders, Walker Architects provided a Master Plan for the Exactech headquarters campus that addressed immediate and future space needs while emphasizing a people-centered atmosphere in order to attract and care for high-caliber customers and employees.

PROJECT DATA

Completion Date: 07/2016

OWNER CONTACT

David Petty, Exactech 2320 NW 66th Court Gainesville, FL 32650 US david@exac.com (352) 519-3494

Year
5
Plan
Manufacturing Building Program Campus Master Plan

Exactech Headquarters Expansion

PROJECT DESCRIPTION

Exactech exists to improve the quality of life for individuals by maintaining their activity and independence. They may manufacture premier medical implants, but they're an innovation company at heart, and purpose drives their product.

When they approached Walker Architects to design a new stand-alone building, they believed they simply needed more space. After hours of on-site interviews, workshops and observations to create a first-ever master plan, we helped discover that what they really wanted was more connectivity among their teams and in daily operations.

Centered around collaboration, the new plan was designed with ‘happy collisions' in mind. A restructuring of not only the space in which people worked but also how they worked has led to an increase in raw attendance and transparency in production.

The new building marries business and manufacturing by concentrating a variety of work and collaborative spaces—open, closed, mobile and stationary— around the production floor. Now showcased, the heart of the company has become the axis of the workplace.

By looking at the company culture holistically, Walker was able to design more than a building. The spaces created strengthened what Exactech already did well and now shapes employee and customer work lives for the better.

PROJECT DATA

Construction Cost: $23M

Size: 37,000 gsf

Completion Date: 01/2019

OWNER CONTACT

David Petty, Exactech 2320 NW 66th Court Gainesville, FL 32650 US david@exac.com (352) 519-3494

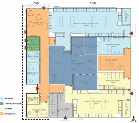
Santa Fe College Athletics Master Plan

PROJECT DESCRIPTION

The Santa Fe Athletics program is rich in history and tradition with intramural athletics tightly woven into the campus fabric. The primary goal of this master plan concept report was to explore the possibilities for a new 6,000 square foot Fieldhouse Building at Santa Fe College (SFC), and associated site improvements to the existing 26 acre Athletics Complex.

Currently, there are no locker room facilities on campus, creating logistical issues for the athletes and staff. In addition to a Fieldhouse, safety, wayfinding, accessibility, and other site concerns for the complex at large were identified as critical needs to be addressed in order to provide a safe place for visitors, spectators, and the community.

This Concept Master plan provided conceptual design options for the Fieldhouse and established a phasing plan and a preliminary budgetary cost analysis for the Athletics Complex. Considering input from stakeholders, mulitple consultants, discussions, and conducting multiple site visits resulted in our master plan that will allow the new Fieldhouse and Athletics Complex to meet the college's vision for the Athletics program.

PROJECT DATA

Size: 6,000 gsf

Completion Date: 07/2023

OWNER CONTACT

Scott Travis, Santa Fe College

3000 NW 83rd Street F026, Gainesville, FL 32606

scott.travis@sfcollege.edu

Fieldhouse

UF IFAS Austin Cary Forest Learning Center

PROJECT DESCRIPTION

The Austin Cary Learning Center enables the UF School of Forest Resources and Conservation to host a variety of educational programs as well as a wide range of events for organizations throughout Gainesville and North Florida.

The original building accommodated around 7,000 people annually. When it burned down in a fire in 2011, UF found an opportunity to expand, increasing capacity to 25,000 annual users. They wanted the new building to uphold the spirit of its predecessor, embracing its natural forest surroundings and welcoming in the community.

Because the Austin Cary Forest is focused on sustainable forestry, the client challenged the Walker team to celebrate the forest through architecture. Actual Cypress tree trunks and heavy timber trusses frame the main entry, and storefront mullions emulate the branches of a tree reaching to the sky. Donated wood makes up the framing and siding of the building. The back deck reaches out over Lake Mize, inviting visitors to immerse themselves into the natural environment. With new fire-safety features to prevent future fires, the new Austin Cary Learning Center welcomes larger groups of students, staff, and visitors, inspiring them to embrace the forest that surrounds them.

PROJECT DATA

Construction Cost: $1.3M

Size: 4,750 gsf

Completion Date: 04/2014

OWNER CONTACT

Ronnie Cooper, IFAS Facilities Planning & Operations

1390 Date Palm Dr. Ganesville, FL 32611-0850

rlcooper@ufl.edu

(352) 294-3802 ext. 238

Agriscience Center at Camp John Hope

PROJECT DESCRIPTION

The Agriscience Building at Camp John Hope represents a pioneering initiative to revitalize agriscience education in Central Georgia. Nestled within the picturesque grounds of Camp John Hope in Fort Valley, GA, this project is poised to help emphasize the importance of agricultural education for the region.

At the heart of the project are the meticulously planned North and South additions, designed to harmoniously integrate with the existing Activity Center while enhancing its capabilities. The South Addition, a 7,500 square foot preengineered metal building (PEMB) structure, serves as the cornerstone of the expansion. It features an Agri-Mechanical science lab, a horticulture lab, a spacious classroom, an office suite, and a convenient unisex restroom.

Additionally, the South Addition boasts nearly 6,000 square feet of covered outdoor space, providing students with ample opportunities for hands-on learning in a natural setting. A new building entrance with a welcoming covered porch further enhances the facility's accessibility and elegance.

Complementing the South Addition, the North Addition encompasses a 1,200 square foot conventionally framed structure, seamlessly connected to the original building. This addition houses two new classrooms, offering expanded learning opportunities for students and educators alike.

Together, these thoughtfully designed additions elevate the Camp John Hope Agriscience Building to new heights, providing a dynamic environment empowering students to excel in the field of agriscience.

PROJECT DATA

Construction Cost: $3M

Size: 13,570 gsf

Completion Date: Unbuilt

OWNER CONTACT

Nelson McCracken, Director of Development and Leadership, Georgia FFA-FCCLA Centers

270 Washington Street, Atlanta, GA 30334 nmccracken@gaaged.org

UF College of Nursing Innovation & Learning Lab

PROJECT DESCRIPTION

In collaboration with the University of Florida's College of Nursing, we transformed existing space into a cutting-edge simulation and learning lab for modern, experiential nursing education.

The thoughtful renovation plan not only meets the current program's needs, but also offers flexible design solutions to accommodate artificial intelligence and virtual reality learning adaptations in the future. The new space includes classrooms, patient and procedure simulation rooms, control room simulation, a cross-disciplinary innovation studio, skills lab, and equipment storage.

Every aspect was planned to accurately represent hospital-like conditions for the expert training of nursing students. This includes wall units and patient beds complete with oxygen, air, vacuum regulators, suction canister, blood pressure cuff with mount and basket, sharps containers, and more. In this setting, it's safe to make — and learn from — your mistakes. Learning via these simulations builds confident and skillful nurses, ready from day one to deliver expert patient care.

PROJECT DATA

Construction Cost: $1.6M

Size: 6,000 gsf

Completion Date: 11/2020

OWNER CONTACT

Robert Hatker, UF Planning Design & Construction

245 Gale Lemerand Suite 232, Gainesville, FL 32611

rhatker@ufl.edu

(352) 294-3572

UF Health Shands Hospital Facility Administration Building

PROJECT DESCRIPTION

When UF Health Shands Facilities was in need of a new administration building, we were presented with a unique challenge to create a space that could accommodate the needs of multiple departments. We set out to design a building that would not only meet these needs, but surpass expectations.

The result is an impressive 15,000 square foot metal structure with an open mezzanine level, seamlessly blending functionality and creativity. Through meticulous planning and strategic design choices, we provided UF Health with a haven for collaboration and growth.

The open plan layout offers unparalleled flexibility for the evolving needs of its departments. Recognizing the importance of interaction and dynamic workflows, we incorporated innovative concepts such as landing areas that enable staff to connect and work efficiently in a more relaxed setting. Integrated collaborative spaces throughout the building strike the perfect balance between privacy and openness. This ensures that teams of all sizes can thrive, sharing ideas and nurturing a culture of collaboration without sacrificing the needs of individuals.

This project exemplifies the concept of putting people first by design. We created conditions for the building's occupants to do their best work by providing the autonomy they need to thrive and grow, while creating opportunities for teams to collaborate.

PROJECT DATA

Construction Cost: $2.38M

Size: 15,000 gsf

Completion Date: 05/2013

OWNER CONTACT

Du Meyer, Shands HealthCare / Facilities Development Dept

P.O. Box 100366, Gainesville, FL 326100366

nguydt@shands.ufl.edu

(352) 594-5075

Albany Technical College Transportation Center

PROJECT DESCRIPTION

President Anthony Parker envisioned Albany Technical College as the premier regional center for transportation education. A key part of that vision was the Anthony O. Parker Transportation Academy building, which was named in honor of the college president after he passed away during the planning for the project.

The building features the latest equipment and technology, and specializes in providing hands-on training in Diesel Equipment and Auto Collision services. The building's physical location on campus provides stylistic independence while complementing the campus's aesthetic while embodying a modern feel to reflect the technologically advanced work occurring within.

The building's interior is spacious and well-equipped, with classrooms and training labs for students to learn and practice their skills. The labs feature the latest technology, including diagnostic equipment, lifts, alignment machines, paint booths, welding equipment, a heavy-duty crane, and a variety of specialized tools and equipment, including two high-bay shops, a print lab, and a sewing lab. The facility also frees up space, enabling the Automotive Repair Department to upgrade its current facility to meet its growing needs and achieve certification of its program. This upgrade allows the college to embrace electric vehicle technology and training by creating a dedicated EV laboratory and eventually providing infrastructure for all bays to service electric vehicles. This project is an example of Kevin Lackey's work with a previous firm.

PROJECT DATA

Construction Cost: $7.7M

Size: 22,210 gsf

Completion Date: 12/2024

OWNER CONTACT

Dr. Emmett Griswold, Albany Technical College

egriswold@albanytech.edu

(229) 430-3500

Southern Crescent Technical College Industrial and Technology Building

PROJECT DESCRIPTION

Prior to joining Walker Architects, Kevin Lackey was the Project Manager for the development of an 80,000 sf new home for Southern Crescent Technical College's Automotive Repair, Automotive Collision, Advanced Manufacturing, and Health Sciences programs. As the second building on the college's Henry County campus, the project truly transformed the site into an activated campus with a sense of identity, place, and community.

The spaces in and around the building included educational training mechanical laboratories, multi-purpose classrooms, gathering nodes, offices, support spaces, and covered outdoor training areas. An essential goal of the design was to replicate “real-world” laboratory environments in a safe, learning environment and to celebrate and proudly display each department's activities and attributes. This project is an example of Kevin Lackey's work with a previous firm.

PROJECT DATA

Construction Cost: $20M

Size: 80,000 gsf

Completion Date: 10/2018

OWNER CONTACT

Alan Stanfield, Southern Crescent Technical College (770) 233-6139

Hitchcock Field & Fork Food Pantry

PROJECT DESCRIPTION

Walker Architects provided Phase II design and documentation for this addition based on the owner-provided concept design. The final design of the Phase II Expansion, which tripled the area of the Food Pantry, came about from a thorough and hands-on design process with the user group.

The Walker Architects design team developed a plan to use existing walls on site to minimize waste and reduce unnecessary expense to the project. With much of the budget returned to the project, those funds were directed into the interior of the expanded space. The project involved careful cross-discipline coordination, incorporating helical pile foundations and a new modified bitumen roof. The new design helps to turn the vulnerable experience of receiving charity into one of comfort and confidence, through carefully selected materials that express a warm and welcoming environment. This project has become a space that improves the lives of students across campus every day.

PROJECT DATA

Construction Cost: $600,000

Size: 1,300 gsf

Completion Date: 11/2019

STAFFING

Principal: Joe Walker

OWNER CONTACT

Robert Hatker, UF Planning Design & Construction

245 Gale Lemerand Suite 232, Gainesville, FL 32611 US

rhatker@ufl.edu

(352) 294-3572

UF Health Graduate & Professional Student Lounges

PROJECT DESCRIPTION

Students in the medical sciences at the University of Florida's Health Science Center had few places to call their own. Whether for studying, socializing, or unwinding after long shifts, the College of Medicine partnered with Walker Architects on two small but impactful renovations to create new lounges for both graduate and professional students.

We transformed several unused storage and classroom spaces in the Communicore building to give students their very own lounge spaces. With foosball, ping pong, and pool, the graduate lounge is vibrant and fun. The professional lounge features gaming and conferencing technologies and a large storefront to bring in natural light and natural views to the campus setting.

PROJECT DATA

Construction Cost: $255,000

Size: 3,490 gsf

Completion Date: 02/2017

OWNER CONTACT

Lori Martens, UF Planning Design & Construction

245 Gale Lemerand Suite 232, Gainesville, FL 32611

martensl@ufl.edu

(352) 273-4593

Mercedes-Benz of Birmingham

PROJECT DESCRIPTION

The new 54,000 SF Mercedes-Benz of Birmingham facility sits atop a picturesque hill, offering stunning views both from within the showroom and for passersby.

Positioned in close proximity to the Mercedes-Benz factory just west of the city, this dealership holds a significant role as the prominent face of Mercedes-Benz for retail sales and service in North America.

The service shop, bathed in natural daylight, boasts 22 service bays equipped with in-ground lifts, 2 alignment bays, dedicated open and secure tool storage areas, and a compressor/fluids room strategically designed for potential future expansions. A "U"-shaped internal drive aisle surrounds the service bays, terminating at each end with high-speed overhead coiling doors to facilitate quick turnover.

Adjacent to the shop, a car wash tunnel and 5 detail bays provide added functionality, with the flexibility to transform into a vehicle photobooth if needed. The shop is further supported by a tech parts area designed in a dialoguetower format, facilitating seamless communication between parts managers and technicians. This setup also ensures easy access to fast-moving parts and convenient entry to the full parts storage area and mezzanine.

Prioritizing the well-being of technicians and enhancing recruitment efforts, the facility includes a flexible training/break room and comfortable, well-appointed locker rooms.

Notably, the construction of the shop, showrooms, and the entire 9-acre display and in-service parking area has been future-proofed with infrastructure prepared for the evolving needs of electric vehicles (EVs), anticipating the growing demand for EVs in the automotive industry.

This project is an example of Kevin Lackey's work with a previous firm.

PROJECT DATA

Construction Cost: $13.5M

Size: 54,000 gsf

Completion Date: 01/2018

OWNER CONTACT

Dan Agresti, Dream Motors Group dan82657@gmail.com 832-349-6531

Equine Sports Performance Complex

PROJECT DESCRIPTION

Walker Architects provided architectural services for the design and construction of a new covered horse Arena space on the south side of the Large Animal Compound at the University of Florida College of Veterinary Medicine.

The new structure features fenced, open air sides with four (4) large gate access, large fans for air circulation.

PROJECT DATA

Construction Cost: $408,000

Size: 13,770 gsf

Completion Date: 04/2014

OWNER CONTACT

Miles Albertson, UF Planning Design & Construction

245 Gale Lemerand Suite 232, Gainesville, FL 32611

amaufledu1@yahoo.com

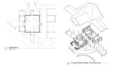
Santa Fe College Fine Arts Building

Renovation

Master Plan

PROJECT DESCRIPTION

Santa Fe College of Fine Arts is a destination for creativity, community and innovation. Through cultural networking and the use of advanced technology, the college prepares students and staff to be formative thinkers in their field. A carefully renovated new space has the potential to help Santa Fe College (SFC) attract and retain first-rate faculty, as well as inspire current and potential students to become involved in the fine arts and engage more deeply with the college community.

Working closely with SFC, we created a phased Master Plan to re-examine existing Fine Arts program space in the M-Building, update it for current needs, and establish a design for future expansion into the entire building. The conceptual design aspires to create a destination where students and faculty want to spend time, and prioritizes connected, visible, and flexible spaces that support modern teaching and learning methods and technologies.

We engaged with the owner and end-users in some unique ways that led to a deeper understanding of their needs and priorities. Activities with play-dough and decks of “mood cards” helped spark conversations and generate ideas. Through a fun and collaborative experience, we provided SFC with a thoughtful and achievable concept to help the Fine Arts program reach its highest aspirations.

PROJECT DATA

Completion Date: Unbuilt

OWNER CONTACT

Mark Thomas, Santa Fe College 3000 NW 83rd Street F026, Gainesville, FL 32606

mark.thomas1@sfcollege.edu

Lake Wauburg Concept Study

PROJECT DESCRIPTION

The conceptual design for a new Cypress Lodge at Lake Wauburg expands capacity for a more diverse range of events and meetings and endeavors to increase awareness and enjoyment of the Lake Wauburg park facility. Site, view, and presence were topics maintained as the core of the project's identity, informing the team's decision-making and discussions with the UF user group throughout the entire design process.

Informing the basis for the project design are the fundamentals of Floridian architecture, which influenced everything from building layout to roofline; onto this set of “rules” the design team explored in different ways to respond to sitespecific conditions, resulting in a final design which pays careful consideration to the relationship of visitor to the site throughout their entire experience, from the first impression, to entry, to the passage onward through to the lake.

The design for the new facility recalls the existing Cypress Lodge in terms of its architectural design, program, and purpose, while simultaneously providing the University with opportunity to expand, modernize, and diversify the activities hosted on site.

At its heart, the design focuses on the atmosphere of retreat and reflection unique to this site. The project seeks to foster fellowship between the visitors and the lake, a place for visitors not only to connect with each other but to their natural setting.

PROJECT DATA

Size: 12,850 gsf

Completion: Unbuilt

OWNER CONTACT

UF Department of Recreational Sports 3150 Hull Road, Gainesville, FL 32611-2061 (352) 273-2425

IFAS Beef Teaching Unit Classroom Building

PROJECT DESCRIPTION

This new one-story, fully sprinklered, pre-engineered metal building for the Beef Teaching Unit includes classroom and multi-purpose areas totaling 6,355 square feet, as well as a 17,100 square foot outdoor covered cattle pen. Project site work includes new site grading, retention basin stabilized parking areas and utility connections.

PROJECT DATA

Construction Cost: $1.44M

Size: 23,460 gsf

Completion Date: 10/2016

OWNER CONTACT

Kevin Heinicka, IFAS Facilities Planning & Operations

1390 Date Palm Dr. PO. Box 110850, Ganesville, FL 32611-0850 US kmhgolf@ufl.edu

(352) 318-3752

Santa Fe College Building Construction Institute

PROJECT DESCRIPTION

The 27,000 GSF facility, pre-engineered metal building provides teaching space for the Building Construction Institute at Santa Fe College. The building features traditional teaching classrooms and large, open building trade studios to give students hands on experience in their respective trades including masonry, carpentry, electrical, HVAC and plumbing.

The building integrates many innovative approaches to LEED including solar hot water heating and solar power supplement. One unique feature of the building is that the building itself functions as a teaching tool, exposing much of the internal structure and systems. The structural components of the building are a combination of pre-engineered metal building with insulated exterior gasketed panels and traditional construction techniques (CMU, drywall on metal stud, etc.). This project is an example of Joe Walker's work with a previous firm.

PROJECT DATA

Construction Cost: $5.3M

Size: 27,000 gsf

Completion Date: 05/2009

OWNER CONTACT

Rebecca Rogers, Santa Fe College

rebecca.rogers@sfcollege.edu (352) 395-5521

Chi Institute Equine Facility

PROJECT DESCRIPTION

Walker Architects provided a master plan study, design, and construction administration for a 9,600-square-foot Equine Teaching Facility. The master plan study explored options for future campus organization and expansion opportunities of the Chi Institute, including placement of the Equine Teaching Facility, future small animal clinic and dormitory.

The new 20,000 square foot Chi Institute Equine Education Center is composed of a horse arena and overnight stables. The attached stable facility contains 12 individual horse stables with an entryway lobby, restrooms, and storage rooms. The horse arena is a pre-engineered metal building with bleacher seating and open areas for horse exercises/therapies. Now operated by the University of Florida, the facility provides equine acupuncture services that can treat large animal musculoskeletal conditions, respiratory disorders, neurological conditions, and more.

PROJECT DATA

Construction Cost: $3.49M

Size: 8,230 gsf

Completion Date: 08/2018

OWNER CONTACT

Zhen Zhao, Chi University 9650 W. hwy 318, Reddick, FL 32686 zhen@chiu.edu

Walker Architects is a Just Label Organization, committed to diversity and inclusion.

Our retention and promotion strategies are focused on providing a culture and work environment where racially and ethnically diverse employees have the opportunity to be successful in their careers and to be represented at all levels of the organization, including senior leadership.

Design for an Agile World CONTACT Atlanta 770.702.0261 wa-atlanta@walker-arch.com Gainesville 352 672 6448 info@walker-arch.com Connect with us on social: @walker_architects_ Listen to our Design for an Agile World Podcast!

Turn static files into dynamic content formats.

Create a flipbook
Issuu converts static files into: digital portfolios, online yearbooks, online catalogs, digital photo albums and more. Sign up and create your flipbook.