Charlottesville, VA
Agenda
5
Welcome to Ethos 4.0
9
Introductions
The People That Make VMDO Welcome
15
Goals Design of Practice
19
K12 Education (K12) Studio
K12 Studio Report Studio Discussion
K12 Project Report Winchester Public Schools
Emil & Grace Shihadeh Innovation Center
43
Athletics + Community (A+C) Studio
A+C Studio Report
Studio Discussion
A+C Project Report
3 Projects at University of Virginia 1. Student Health & Wellness 2. Contemplative Commons 3. School of Data Science
75
Higher Education (HE) Studio
HE Studio Report
Studio Discussion
HE Project Report Piedmont Virginia Community College Advanced Technical Training Center
101
Building Performance & Climate Action
105
Unfinished Business Visual Ideas Action Items
121
Next Steps The Way Forward
Welcome
Welcome to ETHOS v4.0
This is a book about architecture. We see Ethos as an extension of our architecture, as a means to celebrate architecture at VMDO in printed form. Ethos gives a sense of our work and the process we go through to make it. It is an ongoing dialogue about design at VMDO, a yearbook of current challenges and accomplishments, and a journal about who we are and what we value. Publishing in print our conversations, design process, and ideas helps us to lead an examined architectural life as we make progress on meaningful work together. Ethos can help to align and empower us all to act more effectively - putting design quality to work for us and rendering the purpose of our work visible.
What does design look like? What is good design? How do we best design together? Does it make the place better? Does it make the most of the resources it commits? Is is simply, beautifully, of use?
Here’s the agenda. It starts with us - Introductions of who we are and who we want to be together, the people responsible for all the work represented in Ethos and the Goals we establish. We ask ourselves, how do we set up conditions for good
design to happen? Designing the way we work together with focus on clarity, execution, and innovation is our most important design project. Each of VMDO’s three studios will discuss their work (K12 Studio Report, A+C Studio Report, and HE Studio Report) and present a single project (K12 Project Report, A+C Project Report, and HE Project Report)...except this year, five projects sneak in - all currently under construction. Throughout Ethos v4.0, the concept of time - project timelines, making time, construction sequences and durations, the search for time affluence rather than time poverty, slowing down and speeding up - seems to come up again and again. Building performance and climate action continue to be Action Items, with shifted focus from net zero performance to total carbon. The ideas that bring architecture to life are Unfinished Business we return to, worth remembering. This year’s graphic theme features Very Peri PANTONE 17-3938, a dynamic periwinkle blue hue with a vivifying violet red undertone, whose courageous presence encourages personal inventiveness and creativity. Very Peri helps us to embrace an altered landscape of possibilities, opening us up to new vision as we rewrite our lives. We’ll wrap up with the Next Steps needed to trust the process of teaching and learning architecture. We hope you enjoy.
ETHOS v1.0
What Does Design Look Like?

ETHOS v2.0 Why Good Design Matters.

ETHOS v3.0 How We Approach Design.

ETHOS v4.0
Designing our Practice.

PROJECTS:
1. Fauquier County New Middle School Proposal
2. Liberty University Athletics Center
3. University of Miami Centennial Village
1. Alice West Fleet Elementary School
2. Lubber Run Community Center
3. University of Richmond Basketball Practice Facility + Well-Being Center
1. Forest Middle School Expansion + Renovation
2. University of Virginia Softball Stadium at Palmer Park
3. George Washington University Thurston Hall Renovation
1. Emil & Grace Shihadeh Innovation Center
2. University of Virginia Student Health & Wellness University of Virginia Contemplative Commons University of Virginia School of Data Science
3. Piedmont Virginia Community College Advanced Technical Training Center

















Introductions
T H E PEO PLE
that make
This year, we wanted to learn what makes the strong community at VMDO! With all of us sharing a passion, a goal and unique talents, we sent out a survey with a few questions that helps us draw deeper connections within that community.
VMDO
Some questions we asked:
What are some talents you pursue outside of your office roles?
Did you share experiences with your colleagues before your time at VMDO? For how many years have you been contributing at VMDO?
Emily Tenhundfeld

1980
moved here in the 1980s
Joe Atkins

Shawn Mulligan
Evangeline Sherard

glimpses the big picture originally from NJ, but has been in Cville for 17 years
Lauren Shumate
friends call me Rock

was married to Lorenzo before joining VMDO!
Hayley Owens

is always ready to have a conversation about cool design and/or geopolitics
When did you move to where you now work?


1960
moved here in the 1960s
Rebecca Shealy

has worked at VMDO for 22 years and counting!
Wyck Knox

hosts croquet tournaments (and mostly wins them)!
Diana Fang

is a charlottesville local and was mentored by Kelly in high school!
Robin Eshleman

professional bench jeweler, educator, gardener, knitter, you name it
Maria Casarella

has been involved in the profession of architecture for 40+ years!
Tyler Jenkins

is a farmer and gardener with cute cows.
Frances Lengowski

has a talent in all things creative including illustrations!
Kelly Callahan

inspires everyone around her to design through sketching
Kirk Jansen

has hiked all of the trails in the Shenandoah national park
Milo Oakland

has a true talent and passion for coaching soccer teams!

has worked at VMDO for 18 of her 20 years in the profession

Maria Bninski has experience designing affordable housing
Ken Thacker

worked as a Steam Locomotive Fireman before designing buildings!
Joe Celentano

doubles as a rock band guitarist off hours.
Bryan Ireland

also has the skills for industrial design!
Jim Kovach

had an early career as a landscape architect
Kim Smith


shared an undergraduate experience with Kelly!
Lauren Shirley

is also a great writer.
Terry Forbes

enjoys jazz more than most.
Ben Thompson

contributes as a music director of his church!
Rob Winstead has been playing soccer and practicing yoga for 40 something years!
Randy Livermon

loves playing tennis in his free time!
Michele Westrick

has been practicing architecture for 40+ years!
Mervin Temple

VMDO’s own thoroughbred racer
Bryce Powell
Tricia Schroeder has been volunteering for good causes for 30 years.
JP Mays

construction / wood working could easily be his second profession.
Michael Nolan

1990
moved here in the 1990s
Bethany Pritchard
Have a philosophical question? Talk to him!

plays and coaches football in his spare time

is passionate about all arts and creating jewelry!

Maggie Thacker

loves running and knitting, do not be surprised if you find her multitasking on them.
Rena Thomas

loves hanging around her kids on lakes!
Michelle Amt has been making this profession sustainable for 30+ years!

moved here in the 2000s
Jim Richardson

would rather be surfing
Dade Van Der Werf

is remaining silent or otherwise pleading the fifth
Ryan Carbone

is gaining expertise in construction & carpentry
is a talented baker and curious explorer
Hana Nguyenky

Athena Hann y loves to bake and actively volunteers at Young Life.

Macy Carman-Goeke

equestrian sports and capturing landscape photos? She’s your pro.
Nina Comiskey
moved here in the 2020s
John Ottinger

could easily become a standup comedian
Thomas Bates

2010
moved here in the 2010s
Mallory White
loves hip-hop

is trained as a pastry chef!
Jing Huang

is the reason HE always has baked treats.
Jon Shealy

Drew Fleming

got his start as a child actor for a 1980s slinky commercial is a soccer enthusiast and player
Katie Breckinridge

will keep you up to date about MB hot chocolate month!

enjoys photography, gardening, and mom-ing 3 kiddos
Martin Neira

whose younger self wanted to become a musician
Nupoor Maduskar

is keen on taking photographs, and maybe takes too many.
Jenna Pye

climbs rocks and hike them too
Brian Gruetzmacher

cheesehead
Mert Kansu

fixes things, makes desserts and cocktails.
Nathan Fitz Simmons

Brady Scott Andres Pacheco


is also a songwriter and musician will run into you by the coffee machine
Tyler Pitt

enjoys running places
James Atkins

is always the singer in K12, singing along to taylor swift.
Michael Spory

has spent some years teaching architecture!
Sue Mills

Scott Dunn
Lorenzo Battistelli

races Diana for treats around the office
Alexander Jack

crafts for joy! known to fix a dryer or a car

spends his evenings making theater and his weekends writing comics.
Kristen Hill

loves planning community workshops, and playing with her pup, Bean!
Noah Bolton

knew and was at Randy’s wedding when he was 7!
John Trevor

James Vidoni

has been woodworking and building things long before he got into design
Michael Deitz

though a marketing wizard, went to school for architecture!
Lawrence Lazarides

jams on instruments in his spare time
Julia Kwolyk

is VMDO’s resident watercolor tutor is a professional violinist AND singer!
Tatum Conner

will be crocheting anytime she is away from her keyboard
Christina Filippini

had an early training in graphic design
Teresa Hamm-Modley

knows how to make a paddle board and build a house!

loves to volunteer in the charlottesville community.
Goals
Design of Practice
Designing the way we work together is our most important design project. In the book simply titled Working, Studs Terkel writes that work across time is about “the search for daily meaning as well as daily bread, for recognition as well as cash, for astonishment rather than torpor; in short, for a sort of life rather than a Monday through Friday sort of dying.” VMDO is a practice of teaching and learning by Architecture. Our version of success expresses the joy of people who are passionate about the built environment’s contribution to quality of life. We must live up to and sustain it. Through our workour designs, service, business, voices, and imaginations - we caretake the built and natural environment. Our process evaluates and focuses work in three key areas: clarity, execution, and innovation.
How do we give everyone a chance to take
Where do your personal purpose and your professional
There is design in everything we do. How What forum or opportunity for design dialogue best
How do we set up conditions for good design
How can a design direction narrow Can we keep dialogue open yet commit to a
How is our work & process discussed?
How can we use our visualization tools to help our What does design vision mean?
What is one unique quality that Each project should stretch us in some way. How can we decide how, Are fear and risk sensations central to the design Be who we are. Don’t apologize. Right?
How has firm leadership affected design
How can we make the time?
to happen?
something on? responsibility converge? do we inspire and encourage this? satisfies your needs? focus for deeper explorations? coherent direction and expression? process? conveys a prevailing spirit of design? make it known, and follow through? experience? & execution decision making?
Clarity is the driving idea that helps inform design decisions, down to each detail, throughout the process. In today’s world of information overload, a skill needed is to sort, filter, and synthesize; to have the patience to wait until the mud settles and the water is clear. Clarity becomes our shared commitment to the project - the internal coherence and outward harmony that we search for. Clarity requires a sharp eye that recognizes the nuances of each site, enabling people to connect profoundly with their environments. Before it can be constructed with materials, architecture is constructed in drawings, models, and words. We have to communicate succinctly and powerfully, with precision. It takes discipline to separate reliable signals from deceptive ones, to filter out prejudice, expectation, and fear. But it’s worth the trouble because what’s left is the truth.
Execution is the direct connection to making at VMDO. It takes a huge effort to bring a building into being. And we want to build, not just discuss. Architecture is an act of creativity and the way we draw, the material choices we make, and the assemblies we detail, all contribute to the clarity and meaning of the architecture. We cannot separate product and process. Execution is about the care and joy with which we produce, a collective intelligence made manifest through design and construction. Action is commonplace. Right action is not, and we owe it to ourselves, to our discipline, and to the world to do it well. Michelangelo said, “one must keep chiseling to set free the angel in the marble.” We’re working on it, with energy and persistence, with capability and full participation. We’re getting closer. We’ll verify it in the field.
Innovation permeates our thinking - from the luminous big idea to the myriad of decisions made together along the way that can make or break a project. Energy and experience are rarely found together. But counter to common perception, breakthrough innovations are not the result of chaotic, random, singular efforts. Instead, innovation is a well-defined process of iterative search and focused evaluation. Innovation is leadership that sets the environment. Design can be a precipitating event, generating momentum and impelling a change in behavior or performance. Our innovation stems from large heartedness. Like a well - the more it is used, the more it produces. But we know that when we aim high, pressure and stress obligingly come along for the ride. So VMDO is characterized by learning, where people spark new ideas and explore alternatives, where we are united by curiosity, and where we must prepare for adversity and turmoil, but practice cheerfulness in our pursuit of better solutions.
We bring these values to our work in service of our clients and the communities in which we are given the privilege to work.
Report K12
Studio
Studio Survey Questions:
FORM: How does the project develop a compelling and resolved relationship to site?
LEARNING: What has the project offered to VMDO’s culture of accumulated knowledge?
TRANSFORMATION: In what ways does the project provide the best service to the client and community?
SUSTAINABILITY: How does the project push performance, resilience, and climate adaptation?
WELLNESS: What is the overall experience to its users?
ENGAGEMENT: Does the project tell its story using visual and verbal methods?
CRAFT: How does the project advance the craft of our work?
Studio Discussion
Across the firm, three themes emerged from last year’s discussions: clarity, innovation, and execution. We have to have clear communication of the ideas behind the work, clear communication in the way we describe the work itself, and clear communication through design—both spatially and graphically. We have to lead the way with innovation, to demonstrate design leadership through what we do every day. Finally, the way that things get built matters to us and we can’t forget about that. Otherwise, a lot of our work gets undervalued or goes undelivered.
The four K12 projects up for discussion this year, based upon your survey results, are Emil & Grace Shihadeh Innovation Center, Cardinal Elementary School, Crozet Elementary School Renovation + Addition, and Poolesville High School
The idea is to try and talk about our work openly and honestly: what happened that was great, what do we want to celebrate?
I’m surprised that the DODEA project (Humphreys East Elementary School) didn’t make the final four. I think that it is a really impactful project, but maybe it didn’t make the final four because it only affected a few members of the studio; because there wasn’t as much studio participation.

Poolesville HS and Cardinal ES are very comprehensive projects. And yet look at the transformation at Shihadeh and Buford Middle School!
Emil
& Grace Shihadeh Innovation Center
Cardinal ES
Crozet ES
Poolesville HS
Stafford ES
DODEA Humphreys East ES
Burnley Moran ES Reno
CCS Buford MS
CCS Walker PreK
Lancaster MS
APS ES Reno
Greenbrier ES Reno
The Heights Phase 2
ENGAGEMENT
WELLNESS
Another interesting question for our studio is, from year to year, or generally, does our studio prioritize form, learning, transformation, sustainability, wellness, engagement, or craft? Do we weight one or more more than others? Are these all equally-weighted concepts?
I think transformation and sustainability are complicated subjects. When a client comes to you asking to do what we do, it’s going to be a sustainable project. When a client comes to you and they don’t want that and we help get them closer, that’s transformative and it moves the sustainability needle.
Of the seven measures, transformation was probably the one that was most discussed last year. I think what I always find helpful in these discussions is the two-minute elevator pitch for each of the projects, so everybody understands what it’s about even if they didn’t work on it.
Let’s do that.
Shihadeh Innovation Center is a unique, relatively small renovation of an underutilized, open-pod, circa-1972 building. We transformed it into a really vibrant, community-centered, workforce trades center. I think the transformation happened largely on the interior of the building, being really sensitive to how we built walls
and why we built walls, so that it wasn’t an open pod elementary school anymore. We thought hard about if we’re going to draw a line, if we’re going to build a wall, why? Expressing all the dynamic programming in the project was exciting. Basically, we had an attitude that if it’s here, we’re gonna leave it alone, and we’re gonna try to make it better. We tried to express everything within that building so that students could understand how things were built.
The interesting thing about this project is the impact of this small facility, which is walking distance from Handley High School—a gigantic neoclassical comprehensive high school. The innovative curriculum and kind of learning culture that is happening here is now having pretty dramatic effects on the larger high school and their expectations for learning there. So not only is it an interesting study in contrasts between the traditional high school and this rock-and-roll garage, but the way that the learning and culture is being affected by this new project I think is really interesting.
Being there for the photo shoot, I got this sense that students had agency and independence in the building. The interaction between teachers and students was a very calming and accepting atmosphere, and the design helps to create more opportunities for that.

It’s literally a learning environment without bells. In that three-hour block, the students have complete agency over how they use that time. I think that’s the first time in a K12 project that I’m aware of where the students really do have more of a Higher Ed autonomy and agency over their time and their location. It’s a great match up for space and operations beyond even Handley High School. It’s affecting the whole community because they have night classes. The vision was building is going to operate from 8:00 AM till 10:00 PM and it does.
And that took a lot of detailed process conversations both with the Handley educators, but also local community partners. How can the school really be used 24 hours a day? It was really exciting to see the educators co-creating new curriculum for this space as we were designing it. I remember one of the early meetings they came with like a sample lesson plan of different lessons at the students would do and what today would look like so they could get to this no-bell schedule.
Shihadeh is really sort of new territory for us. As K12 education ventures into new territory and new thinking and I think that’s worth noting.
I think it is very different for VMDO as far as crafting materiality as well. We kept a restrained, limited, raw palette that celebrated the joinery on the plywood and the transparency of the polycarbonate.
Cardinal Elementary School is an addition and renovation to an existing elementary school. The addition part is on the footprint of what was a one-story, 10-yearold LEED Gold building that is now a four-story learning tower, designed for 732 with expansion. Now the school system has taken advantage of the expansion, it will hold 800 without changing the footprint of the building. The design of the building actually was derived a lot from
community engagement with a desire to maintain as much green space as possible on the site. That really drove where the building was sited.
The design and detailing of the building started the conversation about transitioning a lot of our defaults from spray foam to mineral wool. That pattern has gone through many different projects now in the office. I think this is our first net-zero-ready project that has a significant portion of the building as renovation. We’ve done a lot of new construction, but making a renovated building perform at that level was another challenge and one that’s going to be important in the future. I thought the public engagement process was not only very robust, but the team was very innovative in the way that we leveraged tools like 3D printing, community design charrettes, the gamification of planning, forcing community members to do value engineering and things like that. Those resulted in an innovative scheme that was really developed through consensus building. The way that we approached construction administration— partnering really strongly with the construction team and building scientists to do the pressurization testing, figuring out tricky expansion joint details—demonstrated a much higher level of engagement during CA in order to deliver a building that would perform at this level.
0.11 cfm/sf: the tightest building we’ve done.

The schematic design approach was unique for us in that the entire studio was involved for a brief time in pulling schematic design together. I don’t remember if that was a function of a really tight schedule or the availability of everybody in the studio or just a desire to harness the expertise of a wide variety of practitioners.
The project started concept design with a team of five; then, one left, and two were recalled to a different studio. So, we needed to do this; but, I think that as a model it was excellent. I didn’t look at Ajera and we all piled on. Lo
and behold, when we finished, we still had like a 2% profit on the phase. And then we carried the project forward with essentially three people... and made a lot of money. We actually made all of our schematic design decisions during the schematic design phase. DD was really about DD, and CD was really about construction. I think the building also may be our best example of building as a teaching tool. It’s hard to top Discovery with the bells and whistles over there, and the solar calendar. But, in terms of just the environmental graphics and finishes, I think it’s our best one.
I’m excited to see what the POE results are on Cardinal. As we walked through, I was impressed by the care taken with separating cafeteria noise from the different wings. Some of the lessons learned from Bluestone or Discovery in terms of acoustics were all incorporated at Cardinal.
In terms of practice development, Cardinal is being referenced in all the current projects. Even if we don’t always use the same details and materials, it’s a very strong design foundation.
Yeah, there were some neat design ramifications of some of those responses. Fleet has that gorgeous heavy timber ceiling. Then you go and look in the room, and it’s just junked-up with all kinds of unfortunate crap: supports of the basketball goals, ducts, a curtain. So, we were going to cover it and we use that as opportunity to tackle the acoustic issue of having classrooms over as gym.
Crozet Elementary School is an addition and renovation to an existing elementary school. The addition is subservient to the existing school. It has a compact and efficient footprint, it faces south to harvest daylight, and it’s also the first geothermal system in the county. It seems like there’s another big story here about adding to a building that was already important to VMDO. The original Crozet Elementary School by VMDO won the Test of Time award from the AIA Virginia a couple of years ago. I feel like we made the submission in part to protect the existing school and help everybody who’s there now appreciate its architectural legacy.
I feel like the project is notable also because we began schematic design on March 1st, 2020, right at the start of the pandemic. Every meeting that we had with the owner was on a virtual platform. It’s pretty bizarre to reflect back. I just remember meeting with the client and educator team every week to create

a work plan for the project and how we’re going to move forward. And every week the whole world changed again and we had to reevaluate. It was pretty fun to get students involved even during a really intense, scary time. We have heard sense from the client that that’s now their model for how they want to do engagement on all projects moving forward.
The project has been a poster child for our innovative process. When I think about this client and where they were, they hired us because we were a known quantity. We were dependable, reliable, not necessarily because we were at the top of the list of high designers. Albemarle has traditionally always been a conservative place; but, in the two years since then, they’ve identified geothermal energy as their standard for all new construction. That’s transformative.
The move to kind of push the addition down and stay aligned with the corner cornice line of the existing building and let the Rotunda library maintain its prominence was very smart and humble way to approach the project. We’re doubling the size of the student population, but trying not to screw up a building with such a strong parti. It’s a challenging design problem.
Poolesville High School is a phased-occupancy addition/renovation project. We are operating on an existing campus of buildings that total over 170,000 square feet. The community has been waiting for this for a long time - politically, culturally, and financially. It was an extraordinarily challenging project. The client had a $25 million deficit delta between their budget and their program that we battled from two different feasibility studies through to completion. The project demolishes roughly 50% of the existing building and uses the
remaining big box spaces to gyms and an auditorium and the connecting tissue. Around those spaces it adds new learning space that increases the capacity the school from 1200 students up to 1500 students with a core capacity for 1800 students. Through a really intense, allvirtual and at-distance engagement with both the client and the community, we were able to draw out a real pride in the school. Poolesville is the number one high school in Maryland. It’s four magnet houses are four nodes that the school really wanted to have places to gather everyone together. And we were able to work with MCPS to create some pretty innovative spaces for them. While we were developing the design, MCPS changed their rules around sustainability, and I think we were able to move in a great direction. We were approved to use geothermal until the town said that we couldn’t because we were going to potentially ruin their aquifer. But I’m very proud that we brought their EUI from a 75 in 2019 to 24.

It was very challenging process in a lot of ways. This was the first project that we really, truly had a hybrid team between DC in Charlottesville. Twenty-two people touched this project, maybe more. It certainly influenced a lot of people, and provided an incredible learning process for everybody, especially during pandemic times when we were learning how to work from home, how to work across offices, and how to work with the new client.
It started because we were the second choice for the client. It fed the firm through difficult times. They called us and said, “show us what you can do for $60 million by Monday.”
We were the only project that was allowed to use geothermal in their new set of projects, until it was taken away from us, because of our experience and proven track record in sustainability. The wake of our previous work really helped kind of push this client towards making a much-improved learning environment.
Well, it just reinforced that this will be a high-performance building without geothermal.
I would argue in many ways that it is not our highestflying project; but in terms of distance traveled, it traveled along way. It was a complicated, twisty journey; but we went a long way with this client in our first project.
Given that we’re running over time here, how about we do a quick sorting and see where we stand. Rising from your chairs, let’s have Cardinal over there, Shihadeh over there, Poolesville here, and Crozet here. Just sort.
Well, I’ll stick up for Cardinal.
Oh man, this is so much pressure. I wasn’t prepared to be an active tie-breaker.
So, Poolesville dropped out. It’s now between Cardinal and Shihadeh.
Well, now that they dropped out, they get to re-sort. I’m afraid it’s Shihadeh, my friends, right? Do you have something to say about the demographics of the voting?
Four principals and Christina are tucked over in the Cardinal corner and pretty much everybody else is on the other side.
I just want to say that I think Shihadeh is such an exciting project because it serves a K12 community and then does so much more with a building that many communities would have left abandoned or torn down. They turned it into an engine that can change the economy and the trajectory of that area.
Right. And Michelle will agree that the most sustainable thing you can ever do is to reuse an old building.
Absolutely, which is also why I have a little soft spot for Poolesville. I love them all, I love my kids.
Alright, I think that’s the end of the conversation. It’s just starting to get good too.
Thanks everybody for speaking passionately about the work.
K12 Project Report
Winchester Public Schools
Emil & Grace Shihadeh Innovation Center
Winchester, Virginia





Master Planning begins
Concept Design Presentation
Schematic Design begins Design Development ends PPEA?
Client decides on CMaR delivery
Construction begins
Start of WFH due to global pandemic
First day of school!
VMDO officially back in office summer of 2021
Karen and Fred Schaufeld made a donation in honor of Karen’s parents, Emil and Grace Shihadeh. Emil, a former welding teacher, and his wife Grace (pictured second from right) became the namesake of the Innovation Center.


“Someone is taking our ideas of how school should be and making this into reality.”
-Emily Badman, Secondary Instructional Specialist

TRIAL ERROR REFLECT EVOLVE
The Five C’s at Emil & Grace Shihadeh Innovation Center
Critical Thinking - student owned projects that solve authentic problems through critical thinking with engaging student designed activities requiring reflection, revision, and renewal
Creative Thinking - projects blended with personal choice and developmental solutions while finding resources and discovering answers to in depth questions for contemporary problems
Citizenship - student owned learning processes that will encompass a global sustainability with authenticity
Collaboration - mastering competencies, acquiring time management, perseverance, and team conceptual understanding for the modern workplace through blended instructional strategies
Communication - projects based on interactive community partnerships with businesses focusing on a “work local, think global” directive requiring student-initiated collaboration

Located two blocks west of John Handley High School, the Shihadeh Innovation Center provides new and expanded space for the Career and Technology Education programs. The Innovation Center houses three academies - Health Sciences, Professional Skills, and Advanced Technologies - that prepare students for the work force.











“...being really sensitive to how we built walls and why we built walls, so that it wasn’t an open pod elementary school anymore. We thought hard about if we’re going to draw a line, if we’re going to build a wall, why?”



“The space invites students to be themselves and not feel confined...it gives them freedom and choice.”
-Nadine Johnson-Hamm, math teacher
HEALTH SCIENCES

Blues / Blue-Greens:
• Suggest Healing
• Calming Influence
• Combat Tension
• Promote Thoughtfulness
PROFESSIONAL SKILLS ADVANCED TECHNOLOGIES

Greens:
• Promote Security
• Enhance Concentration
• Facilitate Judgment
• Offer Balance


Yellows:
• Indicate Innovation
• Inspire Creativity
• Raise Alert Level
• Encourage Spontaneity






“I urge my fellow citizens of Winchester squarely to face the Innovation Center from Jefferson Street and imagine an elegant painting by Piet Mondrian (one of the Bauhaus masters) embedded in the tableau.”
-Carl Ekberg, Letter to the editor, Winchester Star









Working on an existing building is an archaeological dig. As we discovered unforeseen conditions - like low head heights, sloping floors, and shallow foundations - we had to improvise to preserve the design intent.


Report A+C
Studio
Studio Survey Questions:
FORM: How does the project develop a compelling and resolved relationship to site?
LEARNING: What has the project offered to VMDO’s culture of accumulated knowledge?
TRANSFORMATION: In what ways does the project provide the best service to the client and community?
SUSTAINABILITY: How does the project push performance, resilience, and climate adaptation?
WELLNESS: What is the overall experience to its users?
ENGAGEMENT: Does the project tell its story using visual and verbal methods?
CRAFT: How does the project advance the craft of our work?
Studio Discussion
The four projects that rose to the top, according to your survey responses, are UVA Contemplative Commons, UVA Student Health & Wellness, Original Mount Vernon High School, and Stead Park Community Center.
Has there ever been two projects picked for one studio? Or should we consider picking a project not preferred by the survey?
Let’s do that.
Now you’re really trying to break the rules.
Well, I thought the question you were gonna bring up is when we’re working as Architect-of-Record, or Executive Architect, with other design-lead architects on several projects, does that change our approach to Ethos?
What has it done to us in terms of changing our design approach? You know it’s the same client, but it’s definitely different flavors of what design can be.
With UVA, we’re at a high point right now where we’re perceived to have a lot of work there, and we’re doing a lot of the most important work that’s happening at the university right now. We’re going to look back on this time and be like, wow, look at that, we did these four huge projects there and look at the impact they had not just on the campus but on our studio and the learning that came from those three projects (including UVA School of Data Science) across the boardevery single member of the studio.
There are so many things that we’ve learned in translating certain design ideas into our own details, and they have influenced the way we approach documentation, the way we perform CA ... or any number of other things throughout the process. I mean, I’m conscious of the fact that a lot of the work was done by the hands of our partners and not us. What’s the right way to tell that kind of story?
How do we work with other architects? That’s an idea that we talked about a lot and some
UVA Contemplative Commons
UVA Student Health + Wellness
Original Mt. Vernon HS
Stead Park Community Center
Lubber Run (won last year)
UVA School of Data Science
Cincinnati Bengals IPF
Marlow Heights Community Center
WELLNESS
people say it’s not their preferred delivery method. Others say, let’s do it again, or I loved working with a partner architectural firm.
Absolutely.
It seems like UVA Contemplative Commons has had the longest history in the studio. That project has been around for so many years. Here we are, years later, and it’s starting construction.

Regarding telling a long story in a format like Ethos, Contemplative Commons has the most history. I will say that it’s the one I’m most intrigued by because it still feels very ethereal to me. I mean, I just observe it from afar.
I don’t even actually understand kind of what shapes the building. It’s sort of built into the land and all the renderings are kind of misty.
Clients want stuff that isn’t always available in a program, and to me it is on the leading edge of how to provide an
SUSTAINABILITY
answer to a question that isn’t definitive architecturally.
That’s kind of interesting to talk about. The other thing that I was imagining is that between the three UVA projects on the board for discussion, the design approach seems so different between them. I was wondering if someone could talk about that a bit. On the one hand, they all seem like they might be squares in plan, right?
Or rectangles, but I feel the formal approach to all of them is very different, the way that we’re trying to depict them, the atmosphere, the quality we’re trying to create, seems like the three are very different. So I was wondering what you all thought about that observation, true or not true, and if that helps to sway you or the conversation in a different direction?
Some of the early concept design ideas for Contemplative Commons were developed in watercolor. It was so loose and a bit theoretical. And our partners are unwavering in the design excellence of the project, but they do kind of waver in their opinions sometimes, so it kind of goes with the flow. And that’s been the process. I see the School of Data Science process with Hopkins being very linear, very rigorous.
You know, what we’re talking through is how much of VMDO’s values and beliefs actually came through, or shine through in the design process.
Alright, three projects at UVA.
do it.
One project, one client.
Three buildings.
Three design approaches.
Redesigned approaches.
Ooh, that’s a good one. Burn after reading. Invisible ink.
Yeah. It’s interesting to think about ways that, you know, our teaming opportunity or relationships have influenced us and changed things that we do. And then also, like you were saying, the ways we may have influenced them. I know that Aidlin Darling does a lot of SketchUp, but now they have purchased the plug-in for Enscape and now they do a lot of Enscape because of what we were doing and able to show from Revit. So that’s pretty cool.
And the way that Hopkins, for the School of Data Science, uses Revit was very different than how we use Revit. They were still doing a lot of 2D drawing in a 3D program.

While Hopkins had the kind of rigor to track 2D changes through 3D space, I think we probably taught them some model etiquette.
How much do we trust the partner and let them do what they do and do their process? And when do we put up some guardrails and say no? When do we have to enforce something?
30 or 50 times I’ve had to ask myself that question. Is this a moment where we pull it back, or is this a moment where we trust them?
They were different from us in a number of ways. Yeah, they’re smaller. They’re building type experience is different. I think they really needed us. And that makes it successful if you feel like you need your partner,
It wasn’t like, ok, Hopkins is responsible for this and VMDO
is responsible for this. You know, they’re doing design, we’re doing code. We each have our camps, but on the actual production of the work, I feel like we’ve found a good place. I think we really came together was as a team. And respected each other’s individual contributions more than staying in certain camps.
I mean, this whole conversation is interesting because as a group of designers sitting around the table when we are the design architects, that’s an entirely different way of thinking.
In the circumstances of the UVA collaborations, we’re forced to be a translator as well as a designer and a production architect, so it’s interesting to think that as a designer you have to be adept enough to understand someone else’s design approach and ideology that may be completely contrary to your own viewpoint of architecture.
Understanding how we provide service to our client, as well as a partner architect on a job is a fascinating problem because it does require a malleability to how you think about design. I think in the end it makes us better independent designers going through tasks like that, even though they can be painful.
There are 2 words that come up with these relationships: respect and trust. Yeah - between the two firms, and also between the owner and the team.
I feel like there’s just fundamentally something inefficient about having two teams, and the idea that we split one fee.
When you moved on to another project, what did you take in your backpack?
I did take the align tool in my backpack.
I think that gets back to the initial reason that we teamed with some of these partners in the first place - their typological expertise in certain areas. So Aidlin Darling had done a contemplative center for another university; Duda Paine had done the Student Health and Wellness project at Duke, for example.
I want to add that everyone in the studio has also spent many hours on these jobs and I think just acknowledging the financial impact it has had on our studio and the kind of other work that it’s facilitated.
Three projects, one client it is!
A+C Project Report
Project
Report A+C
Three Projects at University of Virginia
1.
Student Health & Wellness with Duda Paine Architects
2. Contemplative Commons with Aidlin Darling Design
3. School of Data Science with Hopkins Architects
Project Kick-off
2016
Student Health & Wellness Project Interview
2017
2018
Team creates multiple iterations of Fly-through Animation for Fundraising
2017
Early Package: Grading, Shoring, Utilities
New Condensed Plan; VMDO Exterior Redesign
2019
Early Package: Garage Concrete
Early Package: Deep Foundations
Early Package: Structural Steel
Start of Program Refinement Re- Kick-off
2018 2019
Project On Hold while UVA CSC seeks funding Concept Design concluded Contemplative Sciences Center Project interview
School of Data Science Project interview
Construction Begins on Bid Package 5
Start of WFH as global pandemic set in.
VMDO officially back in office summer of 2021
Substantial completion Aug 2021!
VMDO back in office, June 2021
Projected completion Nov 2023
2021
Team grows significantly to develop documents
Start of WFH
2022
2023 2020
Broke ground Oct 2021
Broke ground Fall 2021
VMDO back in office, June 2021
Projected completion Aug 2023

















To design and build within UVA’s rich historic context, it’s critical to understand the proportions and principles that guide other building designs on Grounds.
Duda Paine’s process for undertaking a contextual study on Student Health and Wellness included the study of the UVA Law School and Pavilions. Later in the project, our VMDO team took over the study of the exterior design. We had the opportunity to develop our own take on contextual design in this new Brandon Avenue precinct. What developed was an exterior language with a clear hierarchy. The top, middle, and base similar to a classical column factored into elevation and proportional studies.

STUDENT HEALTH ELEVATIONS [OPTION 4A]









ChoreographedThresholds




oPtion a - the Lantern

oPtion B - the CLoister

oPtion C- the PaviLion

On Contemplative Commons, Aidlin Darling Design focused their contextual analysis on the adjacent buildings (Bavaro and Ridley Halls) as well as the Academical Village. A rigorous study of datums and structural bays led to proportional studies and alignments.

MASSING AND ELEVATIONAL APPROACHES
UVA Contemplative Sciences Center I Conceptual Design
Left Bottom: Proportional analysis diagram over Bavaro Hall drawing (credit: Aidlin Darling Design)
Right Bottom: Early Conceptual Design studies of the project (credit: Aidlin Darling Design)
Above: Watercolor and color pencil sketch site analysis diagrams (credit: Aidlin Darling Design
On the School of Data Science project, Hopkins had a systematic approach to proportional studies, looking to international examples as well as projects on Grounds.
Right: Color pencil elevation study (credit: Hopkins Architects)
Bottom: Precedent images and Lawn Pavilion proportional study (credit: Hopkins Architects)





Duda Paine brought their expertise on student health facilities to the teaming effort. The program was complex, including clinical facilities, administration, specialty wellness and counseling programs, a pharmacy, and public outreach space. One of the biggest challenges the team faced was fitting the square footage into the footprint while establishing a hierarchy of public-facing spaces. Duda Paine’s process was heavy on study models - both for blocking and stacking of program as well as for massing studies. VMDO supported by analyzing the square footages and efficiencies.



A reminder of the power of physical models in the design process - for massing study and as a client engagement tool.
What We Learned from Aidlin Darling Design

We learned that a clean and minimal design often results in complicated details! Engineering judgments were needed in order for the AHJ to agree to details where glulam columns supported steel beams. Right: Section details of glulam and steel connections


Top: Material palette study (credit: Aidlin Darling Design)
Bottom: Photo of site visit to precedent stone wall at UVA


Top right: Shop drawing markups from glulam manufacturer
Lower right: Reclaimed heart pine floor mock-up comments (credit: Aidlin Darling Design)


Detail of design intent for steel beams to be aligned with drop ceilings

2.
Adapted detail with steel channel extension to provide a lower ceiling for clearance of coordinated systems (during Construction phase)

3.
Adapted detail with welded extension plate that provided 6” additional inches for coordinated systems. Cover strip plate set back to reveal full beam flange







Report HE
Studio
Studio Discussion
Here’s where we ended up in terms of your survey responses and the top four projects. The four top projects are University of Miami Centennial Village, University of Florida Gator Village, Piedmont Virginia Community College Advanced Technical Training Center, and New City Library.
I think it’s striking that there was so little emphasis placed on sustainability amongst any of the top four projects.
PVCC rang the zero-energy bell.
This might not be true, but many of our projects were in the CD phase this year, and sustainability conversations crescendo earlier in design.
I have been thinking that the survey results might need a disclaimer. When I took this survey I felt like I didn’t know all of our projects that well. I felt myself guessing. We have such a breadth of work and they are in many different phases. It would be helpful to have a preamble for each project
Studio Survey Questions:
FORM: How does the project develop a compelling and resolved relationship to site?
LEARNING: What has the project offered to VMDO’s culture of accumulated knowledge?
TRANSFORMATION: In what ways does the project provide the best service to the client and community?
SUSTAINABILITY: How does the project push performance, resilience, and climate adaptation?
WELLNESS: What is the overall experience to its users?
ENGAGEMENT: Does the project tell its story using visual and verbal methods?
CRAFT: How does the project advance the craft of our work?
before we answer the Ethos survey.
It could be that the remote nature of our work this year, not being in person in the studio, made it hard to get the project osmosis of what’s going on.
I felt that way.
Well, here’s an idea. What if we went down the list and hit a few high points of each of these projects?
Libraries and theaters are two new topics that we haven’t addressed in the last three seasons of the Ethos show. New City Library and Randolph Macon pop out to me at just a very macro level.
...Recognizing health and wellness as having gotten a good bit of air time.
Logically, the Hourigan Office Design was kind of a high-flyer with the interior tenant upfit - I think it was a blast. Will be beautiful.
U Miami Phase 2B/2E
UF Honors Housing
PVCC ATTC
New City Library
ODU Owens House
VT CID Housing
RM Blackwell Performing Arts
ODU Health + Wellness
Hourigan HQ
GWU Mitchell Hall
ODU Biology
Write-Ins:
Muni Lagoon (Winneba)
GWU Thurston
VT CID CAUS
ENGAGEMENT
CRAFT LEARNING TRANSFORMATION
WELLNESS
Yeah, can’t wait to see it.
And here in our backyard.
Regarding New City Library, I think everybody knows that I would probably be one of the many champions for that typology. It’s interesting to talk about because I think we all know what a library is, but if we were to take a poll, I would guess most of you haven’t been in a library in many years. And that’s not a suggestion that you’re not all incredibly smart. But it’s suggesting that the library has really changed, and I think a lot of us think of it as a place to go to check out books. But the library is a pretty magical convergence of a lot of the different typologies we’ve done for 25 years.

And so it overlays on a single project the opportunity to talk about the study spaces and cafes and meeting rooms and in the display of historical artifacts. It’s a really special opportunity for us and the handful of folks that have been lucky enough to work on them for a couple of years. So I love it and I’m very grateful that this group has allowed them to continue to be a part of our portfolio for the last couple of years, so I’m looking forward to doing many more.
We might not do a lot of libraries, but if you break it down, probably 95% of the program is something that we do all the time
The challenge with them, like the ones that we’ve been lucky enough to pursue lately, is that they are on the rather small side on the fee spectrum. And so they take up a lot of our effort, and you gotta have the right team to do them, and it’s just that it leaves a lot to be desired from the standpoint of a large studio reward. That’s a little hard to swallow, right? But again, it’s fortunate that we feel like they are important enough to continue to prioritize.
For me what is exciting is that we have a very well established and huge amount of experience in residence life and we have these embryonic cells that are starting to burst and it’s pretty fantastic.
One of the cool things about working on a campus is the kind of public space that you get, which is very special
and unique. We’re not talking about parking lots all that much, though parking is important. Libraries, I don’t want to say, are all public space, ‘cause you’re still talking about books to some degree, and that’s a unit, and you stack them and move them around, maybe like you do designing beds in a housing project, but it seems like more and more libraries are one of the few public institutions left. It’s about a public service and inviting people in and not having to charge admission.
More and more, it’s about making one really great public space that’s connected. And that sounds really cool. I could see how that would be compelling, and it seems like that plays up some of our best skills as a collective, regardless of whether it’s a campus library or new city library.
It is one of the only places you can be without having to buy something.
What makes New City library better than any other public library? Is there a design parti that we did that really brings value to it? That’s the kind of question that I want to ask in this setting, so we can communicate to the outside world when given the chance.
I would urge us to park the New City thing for a bit and talk a little bit more about some of the other projects on this list. But in closing comments about New City, it’s an incredibly small project. We inherited a 30,000sf building, and put a 4,000sf addition on it. Yet it’s that little 4,000sf chunk that made the entire overhaul of the building a possibility.
I think this is the third or fourth year University of Miami Centennial Village has been on the list.

And it was in the OG Ethos.
And I totally recognize that there are 18 phases to it and that you all are designing every inch. But, maybe we can consider, like, some of the other housing projects.
Definitely, but I think it’s also going to be on the list for four more years.
It is going to take four more years of intense effort to bring to fruition all the key early promises. We shouldn’t underestimate that, but I agree we have so much other good work across the studio. Centennial Village couldn’t be more different than New City Library in scale and climate.
The residence hall projects we’re working on now may be similar to today’s libraries in that they aren’t just cellular dormitories. It’s like a student center and a dining hall and a learning commons, classroom spaces, a conference center, landscape spaces, all with a place to live too. It’s like the best kind of a monastery where everything you need is there.
Yeah, with lots of scooters.
University of Florida Gator Village might be a small city itself. It’s really everything that students would want or need, including inside/outside space, all wrapped into one on the programmatic side. And, of course, a very different delivery method - criteria documents. It’s a pretty fantastic project in a very different way.

From my standpoint, Virginia Tech CID is our best housing work. It’s a weird one because it was a bridging document delivery opportunity, but look at the energy that’s exploding out of the project.
The Virginia Tech CID project stands up as a housing project, and it also stands up as lab space, and as art. There’s a lot of good stuff in there.
And there’s a cool materiality to it. It seems really grounded.
It relates back to campus in a strong way, but seems like it’s got its own instinctive style. It has the glassy connectors that we need to have in all of our projects. Just from the way it sits, it’s pretty fun to look at and, yeah, with the mountains in the background, it’s a very compelling image.
It’s interesting that it keeps drifting back to program. The types of things in the building, the types of buildings.
When we’re talking about transformation, what comes to mind is “transformation of what?” You’re not talking about space; you’re talking about program.

How are space and program different in that context?
When I think of transformation of space, I tend to think of the nature of public space in that part of campus. Physically, experientially. Program and experience collide in space.
Ok. Lightning round of transformation: transformation is somewhat relative - ODU Owens House having the Hugo Owens exhibit on the ground floor of the building, CID was just mentioned, Miami we talked about, at Greer it was finishing the quad, or it’s a gateway. In each project the switch gets flipped.

To me Higher Ed talks about transformation the most. I like that.
For me, PVCC becomes one of the really big ones when we are talking about transformation.
I know the Muni Lagoon Environmental Education Center isn’t in the running for various reasons, but from the standpoint of trying to understand place through design, it’s a remarkable project. Oftentimes it takes knowing place really well to be able to do something really well.
And though we haven’t gotten to spend a lot of time on the ground there, the team that has worked on it has done a pretty admirable job trying to understand how to work in that context - politically, socially, ecologically.

And I also just think that it’s a really beautiful schematic design.
It’s a program type that is appealing. An environmental education center.
The strangest thing for me was the idea that we weren’t going to use air conditioning or insulation. What would we do? And that was incredibly challenging, and enlightening. Right or wrong, we were all-in on natural ventilation for comfort, and I’d love to bring that kind of focus to all of our projects. We admit being visitors and novices in the Ghana context, but the project shows a genuine striving for complete appropriateness.
Let’s talk about the Randolph Macon Blackwell Arts Center transformation. Convince us.
That’s not gonna happen.
Well, the biggest transformation was the original Blackwell building. It was really a kind of a sarcophagus. Like, no one ever went in there. You know, it was literally just a pre-function space in the front of a small lobby. There was never anyone in there. So I think that there has been a significant transformation in terms of how the building is used — there are now students there all the time. it’s really activated.
I have a particular love for the Blackwell project, it was one of the first projects I worked on. But the construction phase was difficult. The dark Ethos. From a transformation point of view, the theater just became this remarkable space. And you knew how great it would be. When we turned the lights on and drew the shades, it became a true black box. It went from a painted CMU box to a venue that really popped.

Are we voting? Vote by going to one of these four corners.
Wherever the beer is, that’s what I’m voting for.
Its 6-6-3. You three have to split up and chose PVCC or New City.
Here’s a pitch for New City.
The existing building, which by current library standards is very much beyond its functional life and so our renovation was a small, subtle change, but it really unlocks the whole building. I think along the way we did a lot of very powerful design moves with a minimum of means. It’s gonna be a really beloved space for this town.
PVCC.
Piedmont Virginia Community College Advanced Technical Training Center.
We talked earlier about PVCC being a transformational project, which undoubtedly it is. But I think if you take away the net-zero aspect of the project, it is still transformational for the campus. It is going to be the center of campus. You have a great dining hall, the labs, of course, a lot of really nice administrative offices, and student support services. Add on the net-zero aspect to it and it’s good for the campus, but its transformation will provoke the Community College system. So I think the story is really interesting. I think what’s gonna come up in the future is how does this affect Virginia community colleges?
These are both great projects. Which one?

So, PVCC is in our community and I think for me that makes it personal, and makes a difference. Some of our children could go there. It is a once in a lifetime opportunity to have an effect in our community. It is not about the architecture, though it is a wonderful building, but it’s about that opportunity.
It’s kind of a treasure chest because we snuck in a whole bunch of stuff that wasn’t necessarily imagined in the beginning. It’s a hybrid building. It brings together a lot of programs.
Yes.
What? What? What ended up winning? PVCC.
HE Project Report
Project
Report HE
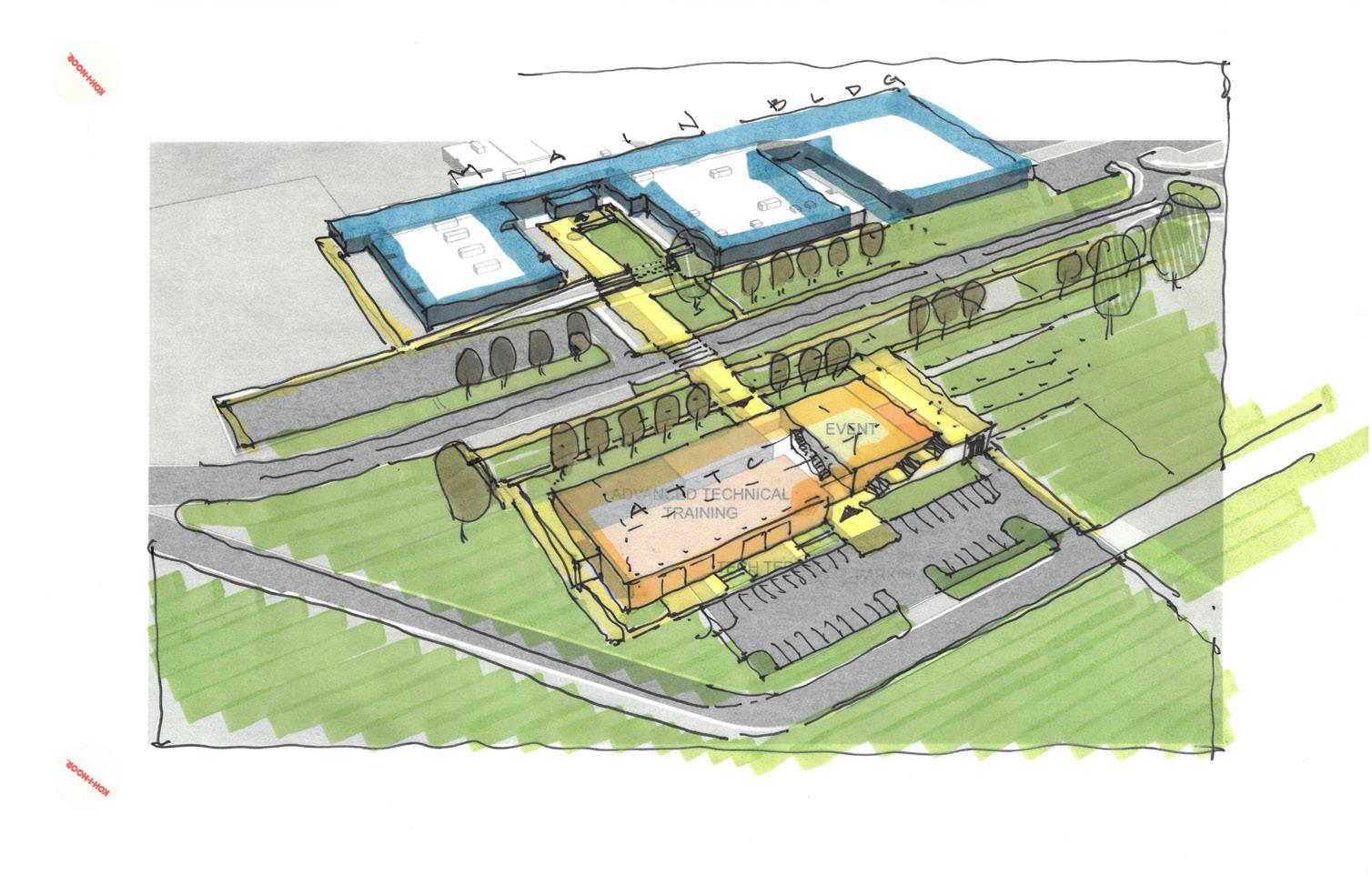
Piedmont Virginia Community College
Advanced Technical Training Center
Charlottesville, Virginia

PVCC is the Higher Education Studio’s first net-zero energy project. It is also the first net-zero community college building in the Southeast.


“There’s really no “there” there right now. Our work with the college was focused on creating a building that took the next step towards fulfilling the master plan promise of that quad.”
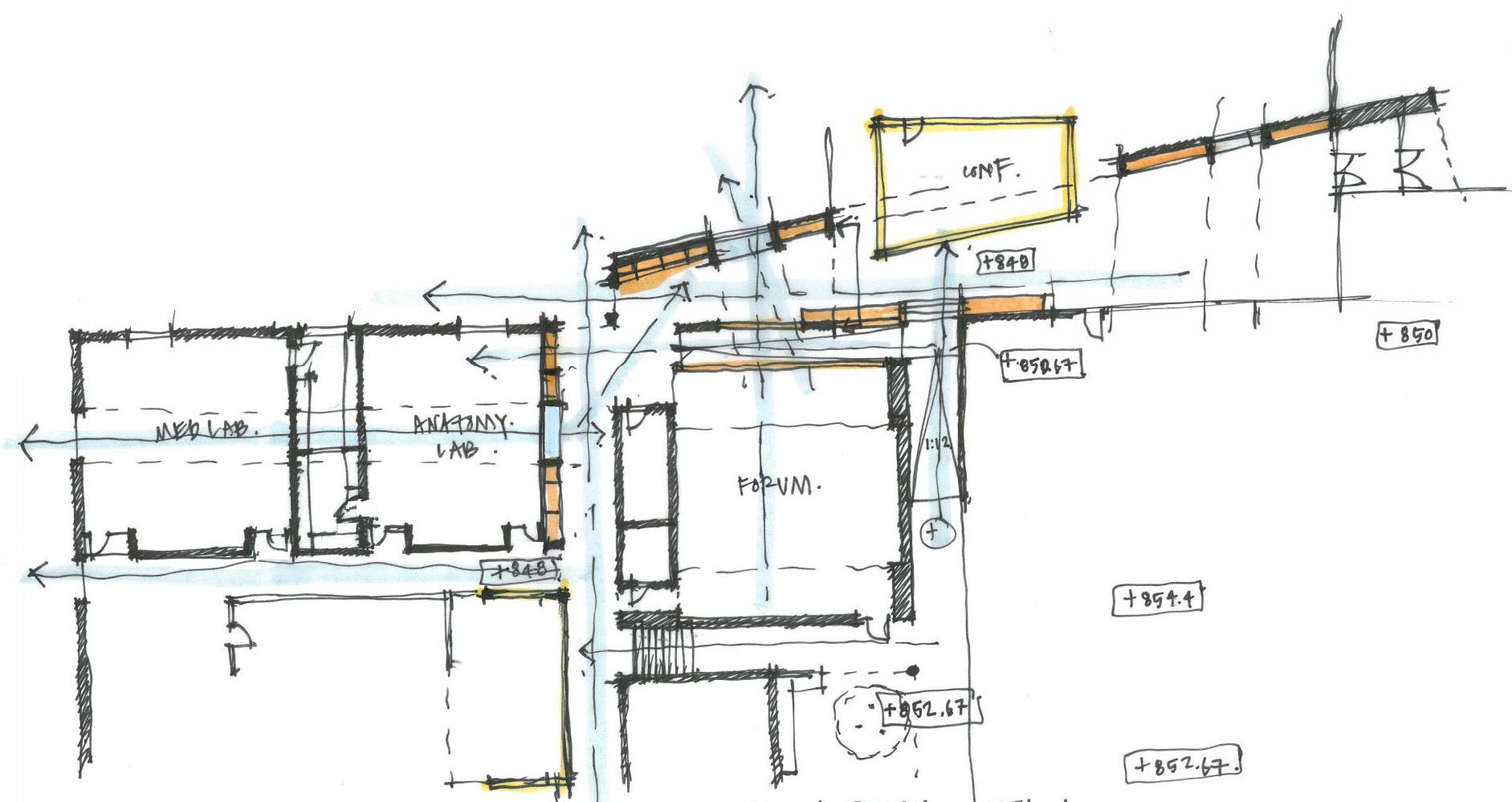
The first design work for us was the verification of the site indicated in a pre-existing master plan. Originally the building site was south of where the building wound up going. We determined that from the standpoint of synergies with existing programs and how students use the existing main building, shifting the building north made a lot of sense it. It helped create a gateway into the campus that didn’t really exist, and it also took up a very prominent position that was visible from 64.
The other big question was: how will this building contribute to the proposed master plan development of a central pedestrian spine on the campus? I think one of the disappointments for me was not being able to directly plug the building into the quad. There were constructional challenges and financial challenges that meant that the building had to move westward a bit, and then we would only really be able to reconnect to the quad via three foot bridges.



FuturePedestrianSpine






The constructibility was really a key part of that decision. You can build anything anywhere if you’ve got enough money. Shoring up the earth and supporting the roadway were just factors that were not able to be absorbed based on this budget.
So we chose to push it down hill and take advantage of the elevation with a higher floor-to-floor, That higher floor-tofloor serves us well in terms of program functions on the lower level being the wood and metal shops and a more lofty space in the multipurpose meeting room. There was a benefit to that in the long run but not having a building that’s directly connected to the campus green is going to have an odd feature that people in the in the future will look back and go, “Why did they do that?”
It is really good for the lab spaces downstairs, but from my standpoint, it was really not good from the arrival and the
movement through the building sequence standpoint. By shifting the building down the slope, one of the cons for me was putting a lot of distance between arrival and main quad on the east side of the building.
We had to infuse some qualities in the stair that make it not feel like it’s such a challenge to traverse to get to the next level when you arrive and you’ve got so much space between you without a meaningful landing. We tried to focus attention on the integrated service hub so that just kind of calls you up the steps.
Back on the back on the building shift topic, One of the things that is maybe a benefit of having the bridges is that we were able to daylight the lower level classrooms which would have windowless otherwise. That came later on in the project after it was redesigned for net-zero.










I was thinking back on a challenging moment of the project during an AARB presentation.
I can’t remember who it was, but it was someone who’s more inclined toward traditional historic buildings. They were fixated on the idea of the way that the fenestration was grouped around the edges of the larger square and he had locked into this idea of googly eyes. Like he saw it as being something reminiscent of, you know, eyeballs that were cross eyed and couldn’t get over it.
It is a good point. I think we were so focused on developing and revising the plan throughout SD that we were less focused on the elevations.










































LEVEL2FLOORPLAN
















































LEVEL1FLOORPLAN















































































































“Its called the Advanced Technical Training Center, but it’s really in my perspective much more of a student center that just happens to have some pretty great labs at the lower level.”

The combination of programs was a result of nescessity. They needed and wanted a student center and then they also had a need for technical training as a result of some of the legislation about supporting workforce training.
Putting the four different or five different program types in the in the one building is pretty cool. There are lots of students support programs on the 2nd floor. Technical training on the lower level, the CAFÉ student clubs and activities on the upper level and then the big kind of flexible room in the headpiece down at the the lower level than getting all that into one building is pretty amazing. Its called the Advanced Technical Training Center, but it’s really in my perspective much more of a a student center that just happens to have some pretty great labs clean and messy labs and the lower level.
Project Kick-off
2018 2019
Project interview Fall 2018
Achieving Net-Zero “the twins”
Start of WFH as global pandemic began.
Schematic Design 2020 “Preliminary” Design DEB / AARB Review
State provided an additional $4 Million in funding to make the building Net-Zero. Project underwent 4 month redesign.

Original Design + Solar
Additional cost:
$4,062,000
Without any changes to the origional building design or systems, the Energy Use Intensity (EUI) was 59.1 kBTU/ SF/YR. If no changes were made to the building, it would require 37,250 square feet of solar panels to power it -- and an extensive amount of panels would need to be distributed throughout PVCC’s campus. The cost of achiving net-zero this way was the cost of solar panels and site work estimated at $4,062,000.
VMDO offically back in office summer of 2021
Working Drawings
Out for Bid
Opportunity to develop the construction drawings more thoroughly. CD set benefits from the expertise of the entire HE Studio.
Permit Drawings

Broke ground on June 7th!
Building expected to open Fall 2023
With Energy Reduction
Additional cost:
$3,502,000 37.6 EUI
Drawing from a menu of energy saving measures, the final building design achives an EUI of 33.6 -- a 68% energy reduction conpared to other buildings of its type before renewables. With the energy saving measures, like the improved thermal performance of the exterior wall, a 20% window/wall ratio, and a ground source heat pump, the building needed a far reduced PV array in order to be self sustaining.



FULL SYSTEM & FOUNDATION ENGINEERING BY VENDOR, 30' TYPICAL, SEE A001 TO LOCATE FOUNDATION CL OFF GRI
SET LOWEST T.O.F. ELEV. @ 1'-0" ABOVE GRADE. MAINTA FOOTING ELEV FOR ALL.
COORDINATE LOCATION & ROUTING OF CONDUIT THROUGH FOOTING & HOLD TIGHT TO VERTICAL SUPPORT. HOLD COND TIGHT TO CANOPY SUPPORTS -WHERE POSSIBLE LOCATE JBOXES.
AUTHORITY HAVING JURISDICTION (AHJ): VIRGINIA DIVIS APPLICABLE BUILDING CODES(S): VIRGINIA UNIFORM STAT 2015 VA STATEWIDE FIRE PREVENTION CODE, ADA 2010
PURPOSE: OCCUPANT LOAD : 0 HIGH PERF. BLDG. ACT: VEES TYPE OF CONSTRUCTION:IIB NON COMBUSTIBLE HEIGHT: GROSS AREA: NUMBER


Along with energy saving measures, the additional funding to make the building net-zero presented new opportunites to increase quality, natural daylight throughout the building. Solar tubes were added to bring in light to an internal corridor with clerestory connection to offices. Polycarbonate panels comprise sections of the ceiling to help diffuse the light from the skylights. Elseware on the building, clerestory windows were added to daylight classrooms built into the hillside, and exterior fins and building integrated PVs were added to shade storefront windows and reduce glare in public spaces.
Energy Reduction Strategies
Created in collaboration with CMTA
What stragegies could you use in your project?


Using this table, the design team picked energy conserving strategies that lowered the EUI to 37.6!
South
Original design’s EUI Specific strategies to lower the building’s EUI are sorted from most impactful to the least. Here, the

(0.3. might not seem like a lot, but shading the glazing lowers peak loads and the mechanical systems can be downsized)
East/West





Construction as of January 2023. With the framing going up, one can start to get a sense of the mass of the new building in relationship to the rest of the campus.
The drilling process for the geothemal wells has taken months. There are 40 wells, 500 feet deep, each taking about 3 days to drill. Switching to a geothemal system was the biggest energy savings for the project -- lowering the building’s EUI by 15.
Under the parking lot is 28,000 cubic feet of storm water retention. After a storm event, the water will be slowly discharged through a filtration system to a nearby stream.



Action Items
Building Performance & Climate Action
“We may feel immense pressure to save the planet in this lifetime, and we may be afraid that we can never do enough. The stark truth is that the planet doesn’t need to be saved only once; it needs to be saved countless times, for eons to come. It’s impossible to save the planet once and for all, all on our own. The planet that is here now is a miracle, born of countless favorable causes and conditions over billions of years. And the planet will continue to need countless favorable causes and conditions going forward. This realization is good news. We belong to a stream of life, and this moment is our time and our turn to do our part, and to do whatever we can to pass on what we learn to future generations, so they can do theirs.”
2021 was the fifth year of VMDO’s reporting for the 2030 Commitment. That yearly reckoning brought up the question we continue to wrestle with: what does success look like?
According to the 2030 Commitment, success is achieving carbon neutrality, which up until 2021 was measured by a project’s net EUI. But is that how VMDO defines success in terms of sustainability? Does our commitment to 2030 mean we shouldn’t work on project types or for clients where carbon neutrality is unlikely or unachievable? Where do we account for the hard-won victories against the odds, for the continuous search to improve our work, or for changing hearts and minds of our collaborators, clients, and communities?
- Thich Nhat Hahn Zen
and the Art of Saving the Planet (2021)
Within every project there are countless opportunities to make a positive impact; most are impossible to measure. Could success best be defined as realizing as many of these opportunities as we can—together?
In 2021-2022, the conversation around climate action shifted from a focus on net zero performance to total carbon. As a metric, total carbon combines operational carbon over a set duration, embodied carbon from construction materials and processes, and carbon sequestered by landscapes and bio-based materials over time. This year’s Ethos winners show the complexities of
mapping total carbon: a zero-energy community college building on a large parcel of land; a K12 renovation without much sitework; and new construction projects connected to UVA’s central plant. Using EHDD’s EPIC Tool, scenarios for reducing total carbon, and possibly making them climate positive, are illustrated below.
Data Science: As Built
Data Science: FSC certified CLT, everything else the same
Shihadeh: As Built
Shihadeh: Reduced EUI to 35 (added geothermal) + 25,000 sf high-sequestration plantings + 50kw demonstration PV Array (2100 sf)
PVCC: As Built
PVCC: Wood frame (not CLT) construction, everything else the same.
This graph shows the cumulative carbon impact of each project over 30 years, and the relative impact of each carbon source.
from Base Case
Unfinished
Business
Visual
Ideas
What Do You Do With An Idea? by Kobi Yamada and illustrated by Mae Besom is the story of one brilliant idea and the child who helps to bring it into the world. As the child’s confidence grows, so does the idea itself. And then, one day, something amazing happens.
This is a love letter to ideas. Their sensuous representation. Their vivid communication. Their disciplined refinement. Where they come from. The potential they yield. The stories within them. The care it takes to nurture them. Ideas whose realizations may be deferred, but not lost. The importance of remembering them, because they can have long incubation periods, or might fade over time.
Ideas are simply our main way to bring value to our work at VMDO. An idea is a network, not a thing. As a joint imagining, you need help for it to emerge. Ideas create value, stoke curiosity, and motivate action. They cause new collisions and connections. They can become part of
other people’s purposes, ambitions, and hopes. Visual ideas are a transformation of energies into thoughtful expression, a visual catalyst, as we dare to imagine. Visual ideas bring architecture to life. The welling up must be clarified and ordered if the inspiration is to be carried forward to completion by means of architecture.
In the story, there is little use of color in the beginning, but as the boy begins to warm to the idea, when he decides to ignore his detractors and nurture his idea, more color is introduced. The boy discovers that his idea gives him the feeling of being alive and also perspective on seeing life differently. With his attention and dedication, the idea beautifully becomes part of everything around him in full color, with power to change the world. What makes this message so unique is the simple yet beautiful way it’s delivered. It’s a story to inspire you to welcome that idea, to give it some space to grow, and to see what happens next. Because your idea isn’t going anywhere. In fact, it’s just getting started.


At first, I didn’t think much of it. It seemed kind of strange and fragile. I didn’t know what to do with it. So I just walked away from it.
I acted like it didn’t belong to me. But it followed me.






1. Clemson University Bryan Mall Renovation Proposal
2. University of Education Winneba, Ghana: Muni Lagoon Environmental Education Center
3. Stead Park Recreation Center
4. University of Miami Centennial Village
5. Alexandria City Public Schools TC Williams Howard High School Campus Redevelopment Proposal - Block Concept




But there was something magical about my idea. I had to admit, I felt better and happier when it was around. It grew bigger. And we became friends.







1. Alexandria City Public Schools
TC Williams Minnie Howard High School Campus
Redevelopment Proposal - the Village
2. Virginia Tech Creativity & Innovation District Maker Space
3. Virginia Tech Randolph Hall Proposal
4. Alexandria City Public Schools
TC Williams Minnie Howard High School Campus
Redevelopment Proposal - the Perimeter
5. Old Dominion University New Biology Building









I decided to protect it, to care for it. I worked with it, I played with it. But most of all, I gave it attention.
I couldn’t imagine my life without it.











Next Steps
The Way Forward
EB White, the American author known for writing Charlotte’s Web, admitted “I arise in the morning torn between a desire to improve the world and a desire to enjoy the world.” As architects, we are learning how to do serious work but not take ourselves too seriously, how to cultivate vision while also enjoying our time together. If we all learn this way, then we will teach this way. The life of any architect is filled with bumps in the road. These live with you. But you begin to trust the process. You begin to trust your teammates. And so twists and turns bring a sense of optimism - moments of reflection, moments of change. We are learning how to build.
Architecture is never complete. It has a beginning, but it has no end. It’s a work in progress, based on the premise that we don’t know what will happen and that in the spaciousness of uncertainty is room to act. When you recognize uncertainty, you recognize that you
may be able to influence the outcomes. It is the belief that what we do matters, even though how and when it may matter, who and what it may impact, are not things we can know beforehand. We may not, in fact, know them afterward either, but they matter all the same. Architecture requires us to throw ourselves actively into what is becoming, to which we ourselves belong.
Our practice will have many chapters. We hope Ethos stays close to hand, carrying thoughts and observations to help mark and measure progress. These words are written by six voices and many voices:
Michelle Amt
James Atkins
Nupoor Maduskar
Hayley Owens
Jim Richardson
Lauren Shumate
Charlottesville, VA
Washington, DC
To Be Continued