
Emil & Grace
![]()

Emil & Grace



The Shihadeh Innovation Center is a hub of workforce development for the community – preparing students and the community to meet the demands of the regional job market.
The average age of skilled workers is 56 years old, and by 2025, there will be a 10 million job shortfall in the skilled labor market in the US. Rising to meet these challenges, the new Emil and Grace Shihadeh Innovation Center will prepare Winchester Public Schools students and community members for the new workforce of tomorrow. The project is a product of multiple funding sources, including private donations, grants, and an unprecedented amount of state funding. A radical transformation of an existing unused elementary school, the mission of the Center is to ensure that every student is prepared and empowered with a marketable skill that leads to full, high-paying employment and that every regional industry has access to dedicated, skilled workers that will sustain and improve their business model.
A joint venture with Laurel Ridge Community College and local industry partners, the Shihadeh Innovation Center will be a hub of workforce development for the community. Using hands-on learning strategies, students will develop the necessary skills that will lead to marketable certifications. Industry partners will play an active role in the development of the program of study while also committing to work-based learning opportunities for students. Laurel Ridge Community College will provide instructors and equipment for certification and credit bearing courses.
The Center will embody Winchester Public School’s motto of “Learning for all, whatever it takes.” The culture at the Center will be interdisciplinary and organized into industry themes where CTE teachers, academic teachers, and students will be working together on real-world problems. All John Handley High School students will have an opportunity to apply their academic knowledge to practical skills at the Center, and adults and professionals wilh have the opportunity to mentor youth interested in their professional field or learn a new trade to re-enter the workforce.
Shihadeh Innovation Center
The Innovation Center occupies a transformed 1970’s elementary school located a short walk from Handley High School.

Originally built in 1923, Handley High School was conceived with powerful, progressive ideals at its core. Handley’s legacy focuses on the heritage of the school as a central civic institution and a focus of regional programs and pageantry. The majestic landscape and powerful 2010 renovation (by VMDO) in many ways reinforces Winchester’s “educational promise” to the surrounding community.

Shihadeh prepares students for the future with smartly designed spaces and empowers teachers with novel means of educating 21st century learners.
The culture at the Innovation Center is interdisciplinary and organized into industry themes where CTE teachers, core academic teachers, and students work together on real-world problems. Laurel Ridge Workforce Solutions will also partner to increase opportunities. The Innovation Center is organized around three academies
• Health Sciences Academy
• Advanced Technology Academy, and
• Professional Skills Academy
Each offer programs that will equip students with the skills and credentials needed for their future career. The building will house CTE classes currently offered at Handley High School, featuring high intensity trades and professional skills labs, a health sciences suite, and lab spaces that support cybersecurity, digital design, robotics, and computer technology.
High visibility work labs, dynamic collaboration and presentation spaces, abundant natural daylighting, healthy materials, indoor air quality, and reduced energy use were all design-drivers.
“If we can help educate and give people the chance to make good wages, and also give back to the community while we’re doing it, what bigger win can there be?”
– Jimmy Robertson Coordinator of Innovation, Career Technical Education & Business Partnership Winchester Public Schools







Key to the philosophy of the Center’s curriculum is “Project Based Learning,” acquiring educational knowledge or skill sets by engaging in real-world projects and scenarios.
The Innovation Center includes specialized spaces to support the intended curriculum and a diverse range of academic programs. “The Five C’s” of the Shihadeh Innovation Center provide guiding principles for how learning happens in the Center and connects to the larger global job market:
1. Critical Thinking - Student owned projects that solve authentic problems through critical thinking with engaging student designed activities requiring reflection, revision, and renewal.
2. Creative Thinking - Projects blended with personal choice and developmental solutions while finding resources and discovering answers to in-depth questions for contemporary problems.
3. Citizenship - Student-owned learning processes, mentorships with community partners, and a visible celebration of place.
4. Collaboration - Mastering competencies while acquiring time management, perseverance, and team conceptual understanding for the modern workplace through project and blended instructional strategies.
5. Communication - Projects based on interactive community partnerships with businesses focusing on a “work local, think global” directive requiring student-initiated collaboration.
Prior to building design, a programming and planning phase sought to explore how space can support “Project Based Learning.” Engagement with Winchester Public Schools educators and leadership directly informed the range of programming that the Innovation Center ultimately includes, with a focus on flexible, collaborative learning environments and high-intensity, “realworld” workshops. In addition, preference was expressed for less “finished” spaces with the ability to adapt easily, as needed.


The Innovation Center is organized around three academies –each offering programs that will equip students with the skills and credentials needed for their future careers. Technical spaces are stitched together with open commons, hubs, a forum, a cafe, and a roof terrace to promote interdisciplinary collaboration.
Civic + Social
Synapse Hubs
Genius Bar
Forum
Community Cafe
South Lobby
Secure Entry Vestibule
West Entry and Roof Terrace
East Entry
Food Service
Reception
Administration Suite
Community Commons
Advanced
Arch. / Eng. Drafting Lab
Computer Tech Lab
Cyber Security Lab
Nursing Lab
Physical Therapy
Med Lab
Anatomy Lab
EMT Training
Shared Classroom
Prof. Skills Labs
Welding Lab
Carpentry Lab



As all learning is fundamentally social, students must learn to collaborate, laying an important foundation for communication — an essential prerequisite for students to practice critical thinking and creative innovation... which ultimately helps develop the confidence to take risks and iterate on failures.
To do this, civic learning needs to be part and parcel of the current movement across many schools in America to equip young people with 21st-century skills. Advances in the science of learning have bolstered the 21st-century skills movement. Learning scientists offer that young people master math, reading, and science much better if they have an educational experience that develops their social and emotional learning competencies—like self-awareness and relationship skills which are the foundation of later workplace skills—and puts academic learning in a larger, more meaningful context.
Alongside academic competencies, these students have support spaces to spearhead small group projects and collaborative work. Universal design principles (illustrated at left) were used to make all spaces accessible, and corridors were purposed for independent learning and collaboration while making programming visible. The Community Cafe is a choice touchdown space for independent learning and sharing a meal.

The Community Forum accommodates direct instruction, collaboration, and project sharing via tiered seating, writable surfaces, and large format projection. Overhead sun-tubes provide natural daylighting to this internal space.

“This is once again proof, beyond a doubt, that when good people work together, good things happen.”
– J Hamilton Lambert Executive Director & Trustee Claude Moore Charitable Foundation



Students within the Health Sciences Academy gain skills and knowledge in lab spaces that emulate real-world settings.
The Health Sciences Academy provides students a foundation for postsecondary education or work force readiness in certified health-related professions. Students explore core content with technology through integrated projects, case studies, and focused learning experiences
Highly specialized equipment and professionally planned lab spaces allow students to obtain clinical laboratory practice in a safe and supervised learning environment. The Nursing Lab emulates a real-world hospital environment with state-of-the-art equipment donated by community partners. Adjacent Simulation Labs and an ambulance pad allow for supervised emergency scenario simulations and testing.

Architectural / Engineering Drafting Lab


by John S. Whetzell, Jr.
The mission of Advanced Technologies Academy is to keep pace with innovation to prepare and empower students for careers in high-tech roles.
To compliment the adjacent academic programs of Handley High School, the Innovation Center is infused with flexible, technologically advanced spaces that support discovery and experimentation. Spaces that support architectural design, engineering, cybersecurity, computer networking, and systems technology are custom-designed for hands-on learning and co-located to promote visibility and collaboration.
The Architectural / Engineering Drafting Lab supports a vibrant program of design and fabrication. Shared 3D printers and plotters located on the adjacent mezzanine make fabrications visible to all students, and there is an adjacent Computer Tech Lab on display through the original stage opening.

“We connect Career Technical Education with core academic education - there is truly innovative learning happening in this building.”
–
Dr. Jason Van Heukelum Superintendent Winchester Public Schools



• 1/2" thick acrylic cut to shape and sanded smooth on all sides
• Paint all exposed planes (1) of (3) colors (PNT-3B, PNT-5B, PNT-6B)
• Paint mask decoration on face of panel in PNT-1
• Finish with a low VOC satin clear coat
• Blind-stud mount flush to wall surface Installation
• Install to existing plywood panels
• Install next to existing dimensional letters shown in installation elevations, existing dimensional letters are not in contract (NIC)
• Installation elevations provided by designer. Final installation should be in relation to existing dimensional lettering already on site

by Dave and Kathy Holliday
The Professional Skills Academy addresses the skills gap in our workforce by equipping students with technical skills and training in state-of-the-art lab spaces that support hands-on, real-world projects.
Maker Foundations, Welding, and Carpentry Labs include equipment and tools to support hands-on training of materials assembly and construction techniques. Adjacent shared classrooms are utilized for lessons on safety, compliance, and technical content.
In addition, flexible lab spaces are equipped for instruction on Plumbing, Mechanical, and Electrical trades and support evening classes in partnership with the local community college.
Primary ID

“We should have this in every single region of the Commonwealth. That’s how we’re going to be successful.”
– Terry McAuliffe, Former Governor of Virginia



Environmental Graphic Design helps promote pride, encouragement, and community by rooting the Innovation Center in a sense of place and highlighting common goals.
Throughout the Innovation Center, large-scale graphics incorporate local photography to cultivate student community and shared values, which translates into the project-based work performed in classes. In addition, each of the Center’s core programs include a specific color branding to support the ease of wayfinding throughout the facility and reinforce professional identities.
Civil/Social: The color red is used as the main branding accent for the Innovation Center and its exterior, establishing an identity of movement and vitality.
Health Sciences: The color blue is known to lower blood pressure and as a healing color for nervous disorders. It also helps to promote general health and wellness and provides a calming influence to combat the tension of high-stakes healthcare environments.
Professional Skills: The color green promotes security and enhances concentration, providing an ideal color accent to areas that require more quiet and extended concentration, as well as high amounts of visual activity.
Advanced Technology: The color yellow suggests spontaneity and innovation and raises visual alertness. This helpds balance settings with active creative projects and where socialization is encouraged.
2000 Pennsylvania Avenue NW Suite 7000 Washington, DC 20006


There are significant gaps in how schools prepare all students for jobs in the future workforce. “The great majority of high school students want to attain a bachelor’s or advanced degree — because many high school students and their parents know that such degrees provide access to managerial and professional jobs with higher salaries, attractive working conditions, and greater employment security — but in fact, only about one in three will complete a bachelor’s degree. If high schools only try to prepare students for four-year colleges and universities, many young people will finish their schooling without any technical knowledge or skill to earn a living.” (Visher & Stern, 2015).
Rather than letting students slip through the cracks, our clients are discovering that they need to offer more non-traditional learning opportunities that will provide their students with the skills and experiences necessary to thrive after graduation. They are focusing on the student as a whole person—considering their mental, physical, and emotional health and well-being—as well as designing student-centered learning opportunities for all.


One way to provide students with more holistic learning opportunities is by offering career and technical education (CTE) opportunities within the K-12 school system. In recent years, school systems have revived and modernized their CTE programs in response to a growing body of data that shows many jobs will disappear or require new skills in the next few decades.
Therefore, school districts want to better support and prepare their students for the future workforce. “According to a 2017 Brookings Institution report, in 2015 alone 39 states created 125 new laws, policies, or regulations concerning CTE, some of which involved the allocation of state funding” (Simmons, 2018). The desire to better prepare students for what may come after high school is also reflected here in Virginia. Virginia’s statewide “Profile of a Virginia Graduate” describes the knowledge, skills, experiences, and attributes students must attain to be successful in college and/or the workforce. “Life-ready” skills include appropriate academic and technical knowledge, workplace skills, responsible community, and civic engagement, and the ability to align personal interests with career opportunities (VDOE).
VMDO Architects has witnessed this emergence of wanting to better prepare students— academically, emotionally, and mentally—in many of our clients. We’ve had the opportunity to design CTE centers and see firsthand how these dynamic, innovative educational programs can benefit students and their communities. Most notably, we’ve worked closely with clients to develop CTE programs, curricula, and flexible learning spaces in Winchester, Arlington, Fairfax, and Charlottesville, Virginia, and the District of Columbia. As architects that specialize in happy, healthy, and high-performing learning environments, we truly believe that our work can make a positive impact in communities. As the demand for CTE programs and learning environments increases, we believe the architecture industry can play a crucial and impactful role in helping to advance the future of education.




Winchester, Virginia




The Shihadeh Innovation Center is a hub of workforce development for the community – preparing students and the community to meet the demands of the regional job market.
The average age of skilled workers is 56 years old, and by 2025, there will be a 10 million job shortfall in the skilled labor market in the US. Rising to meet these challenges, the new Emil and Grace Shihadeh Innovation Center will prepare Winchester Public Schools students and community members for the new workforce of tomorrow. The project is a product of multiple funding sources, including private donations, grants, and an unprecedented amount of state funding. A radical transformation of an existing unused elementary school, the mission of the Center is to ensure that every student is prepared and empowered with a marketable skill that leads to full, high-paying employment and that every regional industry has access to dedicated, skilled workers that will sustain and improve their business model.
A joint venture with Laurel Ridge Community College and local industry partners, the Shihadeh Innovation Center will be a hub of workforce development for the community. Using hands-on learning strategies, students will develop the necessary skills that will lead to marketable certifications. Industry partners will play an active role in the development of the program of study while also committing to work-based learning opportunities for students. Laurel Ridge Community College will provide instructors and equipment for certification and credit bearing courses.
The Center will embody Winchester Public School’s motto of “Learning for all, whatever it takes.” The culture at the Center will be interdisciplinary and organized into industry themes where CTE teachers, academic teachers, and students will be working together on real-world problems. All John Handley High School students will have an opportunity to apply their academic knowledge to practical skills at the Center, and adults and professionals wilh have the opportunity to mentor youth interested in their professional field or learn a new trade to re-enter the workforce.
Shihadeh Innovation Center
The Innovation Center occupies a transformed 1970’s elementary school located a short walk from Handley High School.

Originally built in 1923, Handley High School was conceived with powerful, progressive ideals at its core. Handley’s legacy focuses on the heritage of the school as a central civic institution and a focus of regional programs and pageantry. The majestic landscape and powerful 2010 renovation (by VMDO) in many ways reinforces Winchester’s “educational promise” to the surrounding community.

Shihadeh prepares students for the future with smartly designed spaces and empowers teachers with novel means of educating 21st century learners.
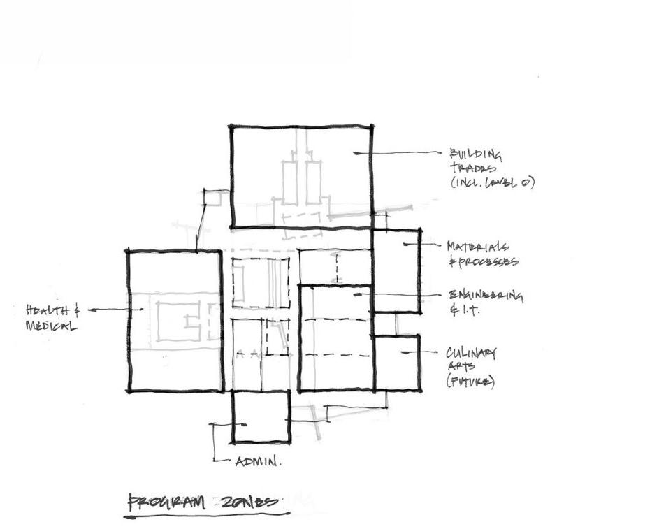
The culture at the Innovation Center is interdisciplinary and organized into industry themes where CTE teachers, core academic teachers, and students work together on real-world problems. Laurel Ridge Workforce Solutions will also partner to increase opportunities. The Innovation Center is organized around three academies
• Health Sciences Academy
• Advanced Technology Academy, and
• Professional Skills Academy
Each offer programs that will equip students with the skills and credentials needed for their future career. The building will house CTE classes currently offered at Handley High School, featuring high intensity trades and professional skills labs, a health sciences suite, and lab spaces that support cybersecurity, digital design, robotics, and computer technology.
High visibility work labs, dynamic collaboration and presentation spaces, abundant natural daylighting, healthy materials, indoor air quality, and reduced energy use were all design-drivers.
“If we can help educate and give people the chance to make good wages, and also give back to the community while we’re doing it, what bigger win can there be?”
– Jimmy Robertson Coordinator of Innovation, Career Technical Education & Business Partnership Winchester Public Schools







Key to the philosophy of the Center’s curriculum is “Project Based Learning,” acquiring educational knowledge or skill sets by engaging in real-world projects and scenarios.
The Innovation Center includes specialized spaces to support the intended curriculum and a diverse range of academic programs. “The Five C’s” of the Shihadeh Innovation Center provide guiding principles for how learning happens in the Center and connects to the larger global job market:
1. Critical Thinking - Student owned projects that solve authentic problems through critical thinking with engaging student designed activities requiring reflection, revision, and renewal.
2. Creative Thinking - Projects blended with personal choice and developmental solutions while finding resources and discovering answers to in-depth questions for contemporary problems.
3. Citizenship - Student-owned learning processes, mentorships with community partners, and a visible celebration of place.
4. Collaboration - Mastering competencies while acquiring time management, perseverance, and team conceptual understanding for the modern workplace through project and blended instructional strategies.
5. Communication - Projects based on interactive community partnerships with businesses focusing on a “work local, think global” directive requiring student-initiated collaboration.
Prior to building design, a programming and planning phase sought to explore how space can support “Project Based Learning.” Engagement with Winchester Public Schools educators and leadership directly informed the range of programming that the Innovation Center ultimately includes, with a focus on flexible, collaborative learning environments and high-intensity, “realworld” workshops. In addition, preference was expressed for less “finished” spaces with the ability to adapt easily, as needed.


The Innovation Center is organized around three academies –each offering programs that will equip students with the skills and credentials needed for their future careers. Technical spaces are stitched together with open commons, hubs, a forum, a cafe, and a roof terrace to promote interdisciplinary collaboration.
Civic + Social
Synapse Hubs
Genius Bar
Forum
Community Cafe
South Lobby
Secure Entry Vestibule
West Entry and Roof Terrace
East Entry
Food Service
Reception
Administration Suite
Community Commons
Advanced Technology
Arch. / Eng. Drafting Lab
Computer Tech Lab
Cyber Security Lab
Nursing Lab
Physical Therapy
Med Lab
Anatomy Lab
EMT Training
Shared Classroom
Prof. Skills Labs
Welding Lab
Carpentry Lab



As all learning is fundamentally social, students must learn to collaborate, laying an important foundation for communication — an essential prerequisite for students to practice critical thinking and creative innovation... which ultimately helps develop the confidence to take risks and iterate on failures.
To do this, civic learning needs to be part and parcel of the current movement across many schools in America to equip young people with 21st-century skills. Advances in the science of learning have bolstered the 21st-century skills movement. Learning scientists offer that young people master math, reading, and science much better if they have an educational experience that develops their social and emotional learning competencies—like self-awareness and relationship skills which are the foundation of later workplace skills—and puts academic learning in a larger, more meaningful context.
Alongside academic competencies, these students have support spaces to spearhead small group projects and collaborative work. Universal design principles (illustrated at left) were used to make all spaces accessible, and corridors were purposed for independent learning and collaboration while making programming visible. The Community Cafe is a choice touchdown space for independent learning and sharing a meal.



Students within the Health Sciences Academy gain skills and knowledge in lab spaces that emulate real-world settings.
The Health Sciences Academy provides students a foundation for postsecondary education or work force readiness in certified health-related professions. Students explore core content with technology through integrated projects, case studies, and focused learning experiences
Highly specialized equipment and professionally planned lab spaces allow students to obtain clinical laboratory practice in a safe and supervised learning environment. The Nursing Lab emulates a real-world hospital environment with state-of-the-art equipment donated by community partners. Adjacent Simulation Labs and an ambulance pad allow for supervised emergency scenario simulations and testing.



The mission of Advanced Technologies Academy is to keep pace with innovation to prepare and empower students for careers in high-tech roles .
To compliment the adjacent academic programs of Handley High School, the Innovation Center is infused with flexible, technologically advanced spaces that support discovery and experimentation. Spaces that support architectural design, engineering, cybersecurity, computer networking, and systems technology are custom-designed for hands-on learning and co-located to promote visibility and collaboration.
The Architectural / Engineering Drafting Lab supports a vibrant program of design and fabrication. Shared 3D printers and plotters located on the adjacent mezzanine make fabrications visible to all students, and there is an adjacent Computer Tech Lab on display through the original stage opening.



The Professional Skills Academy addresses the skills gap in our workforce by equipping students with technical skills and training in state-of-the-art lab spaces that support hands-on, real-world projects.
Maker Foundations, Welding, and Carpentry Labs include equipment and tools to support hands-on training of materials assembly and construction techniques. Adjacent shared classrooms are utilized for lessons on safety, compliance, and technical content.
In addition, flexible lab spaces are equipped for instruction on Plumbing, Mechanical, and Electrical trades and support evening classes in partnership with the local community college.
Alexandria, Virginia


The Original Mount Vernon Welcome Center honors its past while looking to the future with an environmentally responsible design that shifts the concept of a community center to a human development center.
Built in 1939 the Original Mount Vernon High School stands as a classic example of Colonial Revival architecture on a 22-acre site that was once part of George Washington’s estate. With a renewed sense of purpose, robust public engagement, comprehensive renovation, and historic preservation and adaptive reuse strategies, the former high school will now offer the South Fairfax County community a place to gather, learn, innovate, and be inspired: The Original Mount Vernon Welcome Center (OMVWC).
The culture of the OMVWC is to provide pathways of opportunity for all patrons at every stage of life. To bring this vibrant energy into existence, the OMVWC had to be radically shifted from its previously vacant state and redesigned. The entire facility now has a refined sense of flow through three distinctive anchor spaces: Education, Performance, and Health.
The design of the revitalized space creates a circular flow pattern through the building where many community programs, once housed in neighboring buildings, are now centrally located, and new programs and opportunities are unified.
Each program equips patrons with skills, information, and opportunities to connect more deeply to their community and create career and economic pathways. The building will house classes, training sessions, performances, cultural events, non-profit operations, and more.


The new Original Mount Vernon Lifetime Center will be a vibrant hub built to create opportunity, create career pathways, connect different generations, and better integrate residents into the local Virginia economy. Achieved through the innovative transformation of a historic high school, this new hub will serve as a lasting thread through the fiber of Fairfax County’s civic landscape.

The above diagram, provided by the Virginia Department of Historic Resources (DHR), shows additions to the OMVHS facility by year. The following study charts building massing over time.
The above diagram, provided by the Virginia Department of Historic Resources (DHR), shows additions to the OMVHS facility by year. The following study charts building massing over time.

Additional classrooms were added to the east arm of the Academic Building in 1951. This was to support a growing student population.

The originally constructed Academic Building featured an iconic brick facade and historic cupola. This portion primarily housed classrooms and administrative offices.
The originally constructed Academic Building featured an iconic brick facade and historic cupola. This portion primarily housed classrooms and administrative offices.
1944 saw construction of two stand-alone the Old Shop building (south) and the Home Economics Cottage (west).

Additional classrooms were added to the east arm of the Academic Building in 1951. This was to support a growing student population.
By 1953, several additions completed construction, including the theater, gym, cafeteria, and library.
Additional classroom space was also constructed south of the main Academic Building.
By 1953, several additions completed construction, including the theater, gym, cafeteria, and library. Additional classroom space was also constructed south of the main Academic Building.
The New Shop neighbored its predecessor the south side of the property in Economics Cottage also received to the west.
Preservation and revitalization of historic buildings for the purpose of expanding community access to resources, opportunities, and cultural experiences can be challenging. The Original Mount Vernon Welcome Center, located on the historic Mount Vernon grounds (aka George Washington’s estate), embodies this challenge and addressed it by illuminating pathways of opportunity for the community and embracing environmental responsibility at the same time.
This community-centered campus will capture the historic stories of the building and the historic community’s past, while helping to write new stories filled with purpose for Fairfax’s residents. Within those stories, and within the walls of the reimagined campus, community members can learn more about who they are and who they have yet to be.





constructed Academic Building iconic brick facade and historic cupola. primarily housed classrooms and
ces.
Building historic cupola. classrooms and construction, and library.
1944 saw construction of two stand-alone additions: the Old Shop building (south) and the rst portion of the Home Economics Cottage (west).
1944 saw construction of two stand-alone additions: the Old Shop building (south) and the rst portion of the Home Economics Cottage (west).
Extensions to both the original Academic Building and the Home Economics Cottage were added in 1947 to expand the western edge of the property.
Extensions to both the original Academic Building and the Home Economics Cottage were added in 1947 to expand the western edge of the property.





constructed
additions completed construction, theater, gym, cafeteria, and library. classroom space was also constructed main Academic Building.
The New Shop neighbored its predecessor on the south side of the property in 1954. The Home Economics Cottage also received its nal addition to the west.
The New Shop neighbored its predecessor on the south side of the property in 1954. The Home Economics Cottage also received its nal addition to the west.
OMVHS’s most recent additions featured a kitchen addition to the cafeteria (west), a third annex building to connect the Old and New Shops (south), and a T-shaped end to the Gym Building (east).
OMVHS’s most recent additions featured a kitchen addition to the cafeteria (west), a third annex building to connect the Old and New Shops (south), and a T-shaped end to the Gym Building (east).
Key to the philosophy behind the creation of this project is to provide support and opportunity to each member of the community at every stage of their lives.
In collaboration with the Fairfax County client team, we identified four guiding principles to usher in the new era of this important community destination:
1. Build communities of opportunities by placing emphasis on flexible incubator spaces that encourage people to gather and collaborate.
2. Create career pathways through partnership with private, public, and non-profit firms to offer career counseling and training.
3. Connect different generations with vibrant intergenerational contact zones where different generations can come together in a number of ways and for a variety of reasons.
4. Better integrate residents into the economy by enhancing their lives and skill-sets.
Prior to undertaking the building design, a programming and planning phase sought to explore how space can best promote these principles. With the principle of creating pathways toward a lifetime of learning and support, the building itself also needed a high degree of pathway clarity. So, due to the complexity of programming, careful attention was given to the design of the Center’s navigation and movement between spaces.
There are three large anchor programs – the theater, the library, and the gym – that define the overall organization of the Center. The smaller spaces were first organized around these three anchors and then adjusted based on their acoustic and lighting needs. Based on this strategic orientation, we designed a truly multi-functional building operation that can deliver concurrent functions at multiple times of day and be navigated with clarity and ease.



The project is organized around learning, performance, health-centric, and entertainment spaces. By providing members of the community with access to resources and services that they would otherwise not have access to in their own homes or places of work, the new “third space” facility will open the door for Fairfax County residents to be lifted up into a better and brighter future. A collective of sophisticated non-profit partners will deliver varied services within the site, bringing to the community focused support in various aspects of their livelihood.
LEARN
Library
Incubator Spaces
Private Classrooms
Shared Classrooms
Early Childhood Center
Childhood Education Programs
Financial Development
Consulting
GROW
Teen + Senior Center
Workforce Training
Multi-use Theatre
Community Health Training
ACTIVATE Gym Pool Gardens
Through the reutilization of a former high school campus, the creation of this facility is first and foremost taking a strong stance on the importance of carbon emission reduction. In addition, the new facility incorporates sophisticated new technology and modern design research and thinking, pointing toward this same ambition.
At the central crux of this development’s undertaking is a programmatic reinvention that drove a significant portion of the project’s decision making. This project expands the notion of what a community center can provide by stitching together a diverse set of programs that support overall human development. Services span from childcare to elderly services, as well as career services and spaces to promote health and wellness.
The team sought to showcase the historic nature of the building, even amidst the many eras of architecture and construction technology that have been utilized through building renovations and additions over time. Thus the grand, columnar facade structure remains in place, with a new, modern glazed face and arrival experience flipped toward the opposite side of the building.


Charlottesville, Virginia


As a vibrant hub for academic life, PVCC’s new educational facility includes advanced manufacturing and robotics labs, cyber-security and forensics labs, instructional spaces, administrative offices, a café, student group spaces, and improved outdoor public spaces.
Completed Fall 2024, the Center is on track to be the first higher education facility in Virginia and one of just a handful of community college facilities in the United States to achieve net zero energy. In joining the race to net zero, the Center provides a compelling example of how Virginia is taking steps to attain 100% clean energy by 2050, as outlined in Governor Northam’s 2020 Virginia Clean Economy Act. The ATSSC creates a campus destination that meets the unique and diverse needs of today’s community college student while also inspiring a sense of community and connection. As a first step in fulfilling the vision of a central pedestrian campus landscape, the building serves as a new visual landmark from I-64 that showcases PVCC’s comprehensive commitment to workforce training and career development for the region.




The combination of programs was a result of necessity. They needed and wanted a student center and then they also had a need for technical training as a result of legislation.
The two-story north bar of the building houses the academic / advising wing, which includes the Advanced Technical Training Department on Level One and a one-stop On-Boarding Center on Level Two. Advanced manufacturing and robotics spaces, instructional spaces, and study areas benefit from direct connection to a proposed work terrace via a pair of large overhead garage doors. These doors also enable the labs to receive deliveries of equipment, instrumentation, and materials that their curricula depend on. The OnBoarding Center provides everything a new student needs to begin their journey at PVCC and is organized into suites of rooms that integrate related personnel and functions around common resources and shared circulation.

The building is composed of three interconnected volumes: the pavilion, the portal, and the academic / advising wing. The pavilion houses a large multipurpose event space, café, student lounge spaces, student organization offices, and quiet study spaces.
Given the public nature of the pavilion, emphasis has been placed on transparency between the various spaces and between interior spaces and the campus and landscape beyond. The exterior of the pavilion is a collage of both solid and visually transparent assemblies that react to views, solar orientation, and adjacent landscape spaces that support the various programs within.
The portal serves as the primary vertical circulation space for the building and campus, and provides clear visual wayfinding landmarks to aid navigation to the various parts of the building. A two-story cylindrical tower acts as a focal point within the space and houses a number of front-line support specialists that will guide new and enrolled students to their destinations – both within the building and beyond. The east and west walls of the portal are designed to be nearly-transparent exterior planes of curtain-wall to promote visibility through the building.



Designed to elevate PVCC’s comprehensive commitment to workforce training and career development, the Advanced Technical and Student Success Center is leading the way in training a new generation of students for the clean energy economy.
The programmatic elements of the building include: advanced manufacturing, robotics, cyber-security and forensics labs, active instructional spaces, and a large event room with improved outdoor public spaces for multi-use programming. In addition, the center’s layout includes a hub for admissions, advising, and career services as well as a welcoming, student-centered commons bolstered with a café, dining, student group spaces, gaming area, and a veterans’ resource center.
On one side of the building, there’s a technical training center on the lower level and student support programs on the second floor. The building has two upper levels for a cafe and student activities and a lower level with big flexible rooms for meetings and events that are separated from the rest of the building so that it is functional during expande hours.




Drawing from a menu of energy saving measures, the final building design archives an EUI of 37.6 — a 68% energy reduction compared to other buildings of its type before renewables. With the energy saving measures, like the improved thermal performance of the exterior wall, a 20% window/wall ratio, and a ground source heat pump, the building needed a far reduced PV array in order to be self sustaining.

VMDO has designed several net zero energy buildings including, notably, the first LEED Zero school in the world (Discovery Elementary School), the largest net zero energy building in the U.S. (Alice West Fleet Elementary School), and what is expected to be the first net zero energy community center in Washington, DC (Stead Park Recreation Center).
According to the National Buildings Institute’s annual Getting to Zero report, net zero energy schools and municipal buildings have been increasing in number across the country, yet higher education facilities have tended to lag in comparison. The Woodrow W. Bolick Advanced Technology + Student Success Center is helping to set the bar for building sustainability in higher education while implementing pragmatic clean energy solutions that double as teaching tools for students.
Washington, D.C.



Infrastructure is one of the fastest-growing industries in the country, soon to be amplified by the passage of the $550 billion Federal Bipartisan Infrastructure Bill in 2021. Recognizing the significance of these trades, the District of Columbia has partnered with private enterprises to develop workforce training focused on viable employment opportunities in energy, construction, and information technology. The DC Infrastructure Academy (DCIA) coordinates, trains, screens, and recruits DC residents to fulfill local infrastructure needs and provide direct pathways to jobs with leading companies. With its offerings and enrollment expanding, the Department of Employment Services (DOES) and the Department of General Services (DGS) decided to transition the Infrastructure Academy to a larger facility: the 1950’s-era Spingarn High School campus. The VMDODC / BELL Architects team was chosen to lead the complete programming and design necessary to modernize Spingarn High School to serve as the new home of DCIA.
Key to the project is the notable historic significance and sensitivity of the Spingarn site. The DC Preservation League notes that the school was constructed in 1951 as a dedicated facility for African American students in order to relieve overcrowding at other segregated high schools in the District. As such, Spingarn is considered to be the District’s last segregated high school, with the process of desegregation beginning only two years after its opening. Notably, Spingarn’s curriculum focused on life skills including home economics, trade workshops, and laboratories. Although the school was closed and abandoned in 2013, its community role has made it a natural predecessor for the new DC Infrastructure Academy.
The modernization of Spingarn High School will occur through four key tasks, with a commitment to historic preservation and navigation through DC agency and review boards. Task One will begin with a much-needed stormwater management plan. This will be coupled by a thorough programming and concept design phase, including engagement with DGS, DOES, and potential private stakeholders such as PEPCO, WMATA, DC Water, Washington Gas, DC Solar Works, and more. Building assessment and stabilization will determine the building’s structural needs. Finally, full design services will provide a biddable package intended to move forward into construction.
The DC Infrastructure Academy is set to be a significant contribution to the local economy and a promising opportunity for DC residents. The modernization will redefine the next chapter of Spingarn High School with sensitivity, continuing its original promise of providing education, enrichment, and resources for its community.
Level 0

Level 1

Level 2





vmdo.com | 434.296.5684
