Aniko Nebozuk_Y4 | Unit 14 | Bartlett School of Architecture

Page 1


SPRAY LAKES MOUNTAIN RESCUE BASE

ANIKO NEBOZUKYEAR 4

All work produced by Unit 14 Cover design by Charlie Harris

https://www.ucl.ac.uk/bartlett/architecture

Copyright 2025 The Bartlett School of Architecture, UCL All rights reserved.

No part of this publication may be reproduced or transmitted in any form or by any means, electronic or mechanical, including photocopy, recording or any information storage and retrieval system without permission in writing from the publisher.

@unit14_ucl

aniko.nebozuk@gmail.com @anianikoko

SPRAY LAKES MOUNTAIN RESCUE BASE

A CENTRALISED RESCUE SERVICES BASE IN THE CANADIAN ROCKIES

Spray Lakes, Canada

Inspired by the Swiss-Canadian mountain guides of the early 1900s and the legendary monks of Switzerland’s St. Bernard Hospice, the Spray Lakes Mountain Rescue Base will serve as a headquarters and training hub for all emergency services operating across Alberta’s Rocky Mountains, including mountain, fire, and avalanche rescue. These first responders contend with everything from unforgiving terrain and volatile weather to wildfires that have devastated the region in recent decades.

Currently, these essential services are dispersed, understaffed, and heavily reliant on volunteers, resulting in delayed and inconsistent responses. This new base will consolidate them in one location, nestled in the on the tranquil shores of Spray Lakes. Oriented to face the iconic Three Sisters peaks—Faith, Hope, and Charity—the building is a physical embodiment of the core values guiding every mission.

Furthermore, this facility is envisioned as both a hub of coordination and a place of sanctuary. Casual hikers, climbers, mountaineers, and backcountry skiers who come upon it will find safety and warmth within its walls. Visitors descend via a glass funicular running along the building’s spine, offering immersive views and audio recordings, telling the stories and showing the activities of their backcountry guardians. At the base of the building lies a central fire, a space for reflection and storytelling. There, guests can learn about those who dedicate their careers to keeping the mountains safe.

ROBUST CANADIAN STRUCTURES A HAT AGAINST THE ELEMENTS ROOF FORMS A RETURN TO THE VERNACULAR ROCKY MOUNTAIN ARCHITECTURE

HISTORY OF MOUNTAINEERING CULTURE CURRENT PROBLEMS IN THE WILDERNESS PROJECT NARRATIVE SITE

MASSING ITERATIONS BUILDING GENESIS PROGRAMME

STRUCTURAL STRATEGIES RESPONDING TO THE ENVIRONMENT

TENSILE EXPERIMENTS MODULAR THATCH UNIT FURTHER ROOF FORM EXPERIMENTS EARLY FRAGMENT OF THE RESCUE BASE EARLY PROGRAMME FRAGMENTS

FRAGMENTS AND EXPLORATIONS

1.1 ROBUST CANADIAN STRUCTURES

Initially I explored vernacular structures found in Alberta, Canada. My province has a history of using mobile architecture to traverse and settle the unruly landscapes. I explore a mobile structures through out time starting with the earliest, tipis then prairie schooners and lastly, air stream trailers. All of these structures need a certain hardiness, being robust enough to endure bumpy journeys. Tipis used wood poles less prone to weathering, schooner’s wooden wheels where wrapped in wrought iron protectors and airstream trailers were structured like airplane fuselages with their aluminum hulls holding up well against road vibrations.

Due to discovering the limitations of mobile architecture, I instead wanted to further explore the themes of sturdiness and robustness in such a harsh environment.

PRAIRIE SCHOONER

LOCATION:

CONSTRUCTED:

NOTES: Great Plains & Canadian Prairies of North America

19th C.

A horse drawn wagon that carried settlers across the grass plains for north American during the westward expansion in the 19th century. Wagons were constructed mostly out of wood and minimal iron parts to keep them light weight.

1. LEATHER (COW) 5. WROUGHT IRON
CANVAS
WOOD
HEMP ROPE

TIPI

LOCATION:

CONSTRUCTED:

NOTES: Great Plains & Canadian Prairies of North America

4,000 B.C. - Present

A portable conical tent made of skins, cloth or canvas on a frame of wooden poles, used by the North American Indigenous People of the Plains.

1. LEATHER (COW) 2. CANVAS
WOOD

1.2 A HAT AGAINST THE ELEMENTS

Continuing on the theme of defending a building in the harsh Canadian climate I indulged in one of my favourite roof typologies, gabled thatched roofs. I took a closer look at Japanese, gassho-zukuri style house.

These roofs are assembled by layering bundles of natural materials like straw or reeds onto a steep roof frame. The bundles are laid in overlapping rows, starting at the eaves and working upward. Each layer is compressed and secured with wooden spars or metal wire. The ridge at the roof’s peak is reinforced and often decorated. Afterward, the roof is trimmed and shaped for a smooth finish. This process creates a durable, water-resistant, and insulating roof.

Thatched roofs are architecturally compelling because they blend functionality with aesthetics, offering unique design possibilities. Their organic shape and texture create a soft, natural look, complementing traditional and rural architecture. The material allows for creative, flowing roof lines, often with steep pitches or rounded edges, giving buildings a distinctive bold character. Your eye is immediately drawn to this thick hairy hat hovering above the ground.

GASSHO-ZUKURI STYLE HOUSE

LOCATION:

CONSTRUCTED:

NOTES: Shirakawa, Gifu Prefecture, Japan

17th C.

Gassho-zukuri houses’ steep, thatched roofs resemble hands in prayer, which efficiently shed heavy snow and provide spacious lofts for sericulture. They use ingenious adaptations to face the harsh climate and are key to the rural economy in Japan.

1. WOOD
HEMP ROPE

THATCH ROOF ASSEMBLY

SASU-GUMI (BRACE TRUSS ROOF)

COMMONLY USED FOR THATCH ROOFS ALONGSIDE THE WAGOYA GUMI ROOF STRUCTURE

GASSHO-ZUKURI

HOUSE SECTION

1.3 ROOF FORMS

I wanted to evolve upon the traditional thatch roof and discover what kind of forms I could create with it. I first abstracted the roof lines of famous buildings by Dorte Mandrup, Patkau, and Terunobu Fujimori to gain inspiration for my own iterative experiments.

I would then take my experiments am make them respond to a natural terrains below, creating moments of compression and relief.

The goal was to combine more unconventional, whimsical shapes with exaggerated angles, steep pitches, and irregular, organic silhouettes departing from conventional planar geometry normally found in traditional architecture. The tactile, earthy quality of the thatch contrasts with the bold geometric forms its shaped into. These designs are meant to evoke a sense of playfulness hence why I used many kinds as scale figures exploring these forms.

1.4 A RETURN TO VERNACULAR ROCKY MOUNTAIN ARCHITECTURE

Returning to Canada to explore more vernacular architecture, I investigated the Edelweiss Village in Golden, BC, Canada. It was a small collection of 6 houses built for the Swiss guides hired by the Canadian Pacific Railway (CPR) in 1989 to lead a new age of mountaineering tourism in Western Canada.

The houses are eclectic testaments to the cross-cultural interplay of Swiss-Canadian heritage. Composed of a concrete plinth and wood stud structure above, the two-storey houses feature intricate bargeboards, half-timber work, large carved brackets supporting wide gable roof eaves and ornate balconies loosely interpreting the Swiss Chalet style.

SWISS GUIDE HOUSE (CHALET EDWARD AND WALTER FEUZ)

LOCATION:

CONSTRUCTED:

NOTES: Golden, BC, Canada 1910

The Swiss Guides houses in Golden, BC were significant to Canadian architecture as they introduced alpine building traditions—such as steep gable roofs, exposed timber framing, and deep eaves—that harmonized with the mountainous landscape and helped shape the rustic architectural identity seen in Canada’s national parks and wilderness lodges.

1. WOOD
2. CONCRETE

SECTION 2

BRIEF AND SITE

2.1 HISTORY OF MOUNTAINEERING CULTURE

Mountaineering culture in Canada began in the late 19th century, largely driven by the Canadian Pacific Railway (CPR) to promote tourism in the Canadian Rockies. The CPR brought Swiss guides to Canada in the early 1900s to lead climbs and ensure the safety of tourists, helping establish a mountaineering tradition. These guides built chalets (like those in Edelweiss Village, Golden, BC) and helped popularize the sport. Iconic early ascents, such as Mount Robson (1913) and Mount Logan (1925), attracted global attention. Over time, Canadian mountaineers took over, and the culture expanded, with alpine clubs, guide services, and a focus on wilderness conservation, making Canada a renowned mountaineering destination.

FIRST SETTLEMENT EDELWEISS VILLAGE

Six homes were built for the first Edelweiss Village Swiss Guides AS permanent residences for the Swiss mountain guides and their families, allowing them to remain in Canada year-round rather than returning to Switzerland each winter.

4. CHALET EDWARD & WALTER FEUZ
5. CHALET HEIMANN
6. CHALET HAESLER SR.
3. CHALET HAESLER JR.
2. CHALET AERMER
1. CHALET ERNEST FEUZ
1. CHALET ERNEST FEUZ
4. CHALET EDWARD & WALTER FEUZ
5. CHALET HEIMANN
6. CHALET HAESLER SR.
3. CHALET HAESLE JR.
2. CHALET AERMER

KEY PROJECT NARRATIVE INSPIRATION

Search and rescue as we know it was first formalized at the St. Bernard Hospice in Switzerland, where monks and their dogs pioneered alpine rescue techniques— skills and knowledge that were later carried across the Atlantic and helped lay the foundation for mountain rescue in Canada.

2.2 CURRENT PROBLEMS IN WILDERNESS

Exploring the Alberta Rockies today presents serious safety challenges. Heavy snowfall increases avalanche risk, while the region’s low population density and remote terrain mean that injured or lost individuals can be stranded far from help. Limited cellular coverage further hampers communication, and encounters with dangerous wildlife—including bears and cougars—add to the risks Also the combination of dispersed, understaffed, volunteer-run fire, mountain, and avalanche rescue services leads to delayed emergency response times. Currently, self-reliance and preparedness critical for survival if you find yourself in a pickle.

DANGERS IN THE WILDERNESS

PROBLEMS:

SOLUTION:

• A lack of people, cell service can easily lead people exploing the back country to get lost

• Heavy snow falls especially in the mountains can get people caught in sudden avalanches

• Encountering an attack from a danergous mammal requires immediate medical aid

A centralised mountain rescue base that can assist you from any crevice in the Rocky Mountains

HELICOPTER RESCUE RESPONSE TIMES

BASED ON DISTANCE TRAVELED IN THE ALBERTA ROCKY MOUNTAIN REGION

2.3 PROJECT NARRATIVE

Inspired by the Swiss mountain guides of the early 1900s I aim to develop a headquarters and training base that centralises all the valiant emergency services operating across Alberta’s Rocky Mountain region. These include mountain, fire, and avalanche rescue team. These first responders face everything from unforgiving terrain, weather and wildfires that have devastated culturally significant communities like Jasper in recent years. Currently, these critical services are scattered, understaffed, and often reliant on volunteers, leading to delays and inconsistencies in emergency response. This new mountain rescue base will consolidate all of these services into one place in the Kananaskis backcountry, on the tranquil shores of Spray Lakes. Its entrance faces the iconic Three Sisters peaks—Faith, Hope, and Charity— serving as daily reminders of the core values guiding every rescue mission. Inspired by the legendary monks and avalanche dogs of the St. Bernard Hospice in Switzerland, the facility will not only be a beacon of coordination and resilience but also a place of pilgrimage and sanctuary. Hikers, climb ers, mountaineers, and backcountry skiers who stumble upon this base will find warmth and safety within its walls. At the heart of the building, a central fire offers a place for reflection and storytelling— where visitors can learn about the public guardians who keeping a watchful eye in the backcountry, ensuring the mountains remain safe and accessible.

KEY USER GROUPS

• MOUNTAIN & FIRE RESCUE TEAMS

• OUTDOOR ENTHUSIASTS & TOURISTS

• LOCAL RESIDENTS

PROJECT STAKEHOLDERS

MAIN FUNDING

Kanasksis Improvement District (KID is an unincorporated municipality) is the main funder and manages rescue services in the area.

FUNDING STRATEGY

CORPORATE SPONSORS FOR BASE SUPPLIES

The mountain rescue base will be situated on the edge of Spray Lakes in Kananskis Country which is just a 20 minute drive away from the town of Canmore.

3.1 MASSING ITERATIONS

I distilled the Swiss Guide house into its essential architectural elements: a strong overarching gabled roof, a timber superstructure expressing alpine craftsmanship, and a heavy concrete plinth anchoring the building to the rugged terrain. From these components, I explored multiple design iterations, refining proportions, materials, and massing to develop a final building form that captures a contemporary interpretation of Swiss-Canadian architecture while remaining deeply rooted in its historical and environmental context.

DESIGN GUIDES

3. STEEL (FOR CONNECTIONS)
1. WOOD
2. CONCRETE

FORM ITERATION EVOLUTION

ROOF ITERATIONS

OVERHANG TILT

GABLED LAYERED ROOF
ORTHAGONAL SLITS
CAPPED LAYERED ROOF
DIAGONAL SLITS
CURVED ROOF

STRUCTURE ITERATIONS

TYPES OF ATTIC ROOF TRUSSES

ROOF STRUCTURE TESTS

WHOLE BUILDING ITERATIONS

GOING FORWARD

SELECTED EDELWEISS VILLAGE ROOF FORM:

GABLE ROOF WITH AN ADDITIONAL BACK SLOPE

ROOF STRUCTURE:

ATTIC TRUSS SYSTEM WITH A STANDARD OVERHANGS

PROGRAM LAYOUT:

EMBEDDED INTO AND CASCADING DOWN THE SLOPE

3.2 BUILDING GENESIS

4. PROGRAMME: PUBLIC, RESCUE SERVICES & PRIVATE QUARTERS

5. PUBLIC VISITORS ARE EDUCATED ABOUT VICES WHILE RIDING THE GLASS

2. CASCADING DOWN

DOWN THE SLOPE

ABOUT AND OBSERVE THE RESCUE SER-

GLASS FUNICULAR DOWN

4. A UNIFYING SWISS STYLE ROOF WITH LARGE OVERHANGS THAT ALSO ALLOWS PASSIVE SOLAR GAINS AND EASY SHEDDING OF ACCUMULATED SNOW

6. PUBLIC VISITORS REACH THE GRAND REVEAL OF THE 180 DEGREE LAKE AND MOUNTAIN VIEWS AT THE BOTTOM LOUNGE

3.3 PROGRAMME

SPRAY LAKES
SMITH DORRIEN TRAIL

PROGRAMMES SPACES

DISPATCH

Vehicle hangar

EER room

EMS room

Medical supply storage

Dispatch equipment closet

Hose tower

Equipment tuning shop

Emergency operations centre

ADMINISTRATIVE

Board room

Offices

Emergency Operations

Control room

Map room

K9S

Indoor / outdoor kennels

Dog food storage

Dog Equipment Storage

Grooming room

Training room

Outdoor play space

PRIVATE

Dorms

Kitchen / dining

Common room

Mechanical room

Electrical room

TRAINING

Training tower

Training rooms

Gym

Locker rooms

PUBLIC

Fireplace lounge

Cafe/bar

Viewing balcony

Toilets

3.4 STRUCTURAL STRATEGY

CORE OBJECTIVE

The combination of a concrete plinth dug into the slope and a mass timber superstructure reflects the traditional Swiss Edelweiss chalet typology, where a robust stone or masonry base anchors the building to the mountainside while the timber superstructure express warmth, craftsmanship, and harmony with the alpine landscape.

MASS TIMBER SUPERSTRUCTURE

CONCRETE PLINTH

STRUCTURAL OVERVIEW

A scaled up an attic truss system with a standard overhangs was chosen to create the overall structural form, as attic trusses allow for habitable space within the roof zone using larger timber sections to support additional loads. This approach maximized headroom and exposed the timber ceiling, reducing visual clutter from extra truss members to enhance spatial quality and connection to the structure.

LOAD PATH

TIMBER BRACKETS (TO SUPPORT ROOF OVERHANGS)

MASS TIMBER GABLE ROOF

GLULAM COLUMNS

CONCRETE MASS TIMBER HYBRID FLOOR SYSTEMS

CONCRETE PLINTH (FOUNDATIONS AND RETAINIG WALLS)

MATERIAL STRATEGIES

ALPINE WILDFLOWER GREEN ROOF

INSULATED CORRUGATED METAL ROOF CLADDING

GLASS ROOF OVER FUNICULAR

GABLED GLULAM ROOF STRUCTURE SUPPORTED WITH GLULAM DOUGLAS FIR COLUMNS

CLT - CONCRETE COMPOSITE FLOORS

SITE POURED CONCRETE STEPPED FOUNDATIONS AND RETAINING WALLS EBEDDED INTO THE SLOPE

GROUND COMPOSITION

The ground on the edge of Spray Lakes consists primarily of well-drained glacial till and compacted moraine, providing a stable, load-bearing substrate ideal for construction with minimal risk of shifting or waterlogging.

EMBEDDING INTO THE GROUND

STEPPED CONCRETE FOOTINGS

CONCRETE RETAINING WALLS

STEEL PILES

MATERIALS TYPES

CONCRETE - FOUNDATIONS

The mountain base’s concrete for it’s foundations and plinth will be sourced from Lafarge’s ready-mix plant in Canmore. It is located just 30 kilometers from the building site, significantly reducing transportation emissions and dramatically lowering concrete’s typically high carbon footprint. The mix incorporates locally extracted limestone and glacial till aggregates from the Kananaskis region, which not only supports regional resource economies but also ensures climateappropriate durability and performance for the mountain environment.

FABRICATION PROCESS

MASS TIMBER - MAIN STRUCTURE

The main structure using Douglas cross-laminated Castlegar, BC, poured concrete and Glulam are but CLT layers two directions, and column strength.

WOOD SELECTION PERKS:

• SHORT TRANSIT embodied to imported

• HIGH STRUCTURAL of elasticity strength ~7–10

• DURABILITY:

3 moderately lifespan

• LOW MOISTURE than spruce dimensional

FABRICATION PROCESS

STRUCTURE

structure of the building will be constructed Fir harvested and processed into timber (CLT) and glulam panels in which will be assembled atop locally concrete foundations and robust plinth. CLT both made by gluing layers of lumber, them crosswise for panel strength in while Glulam aligns them for beam strength.

DOUGLAS FIR

TRANSIT DISTANCE: reduces carbon by up to 30–50% compared imported mass timber

STRUCTURAL STRENGTH: modulus

elasticity of ~12,400 MPa and compressive ~7–10 MPa, ideal for structural panels

DURABILITY: Naturally rot-resistant and Class moderately durable, extending building

MOISTURE MOVEMENT: More stable spruce or pine, reducing warping and dimensional change

STEEL - CONNECTORS & REINFORCEMENT

Locally sourced recycled steel from Edmonton’s AltaSteel plant will be used to fabricate the steel connectors and tension cables for the mass timber structure, as well as the rebar reinforcement for the poured-in-place concrete foundations.

FABRICATION PROCESS

MATERIALS SOURCING

3.5 RESPONDING TO THE ENVIRONMENT

My building design is fundamentally driven by a deep response to the local context—shaped by the extreme climate of the Rocky Mountains, it is designed to withstand heavy snow loads, powerful winds, and fluctuating temperatures while maintaining energy efficiency and occupant comfort. The structure is carefully sited and elevated to minimize disruption to the natural flow of water and wildlife movement, ensuring a light footprint on the land. Given the area’s increasing vulnerability to wildfires, the building incorporates fire-resilient strategies.. Accessibility is also a core principle: the building is fully inclusive, allowing visitors of all abilities to engage with its public spaces. Injured patients can also be brought in easily and access all necessary facilities without barriers.

DESIGN ENCOURAGING BIODIVERSITY

These native plants were carefully selected for landscaping to promote biodiversity by supporting birds and pollinators, while their perennial, drought-tolerant, and hardy nature makes them well-suited to the local climate, reliably re-emerging each spring to strengthen the ecological resilience of the site; importantly, none of the shrubs bear fruit, helping to discourage bears from being attracted to the area.

MOUNTAIN WILD FLOWER GREEN ROOF

NATURAL GRASS MEADOW GREEN ROOF FOR K9s

INDOOR MOUNTAIN GRASSES AND SHRUBBERY

GRASSES & GROUND COVER

WILDFLOWERS

WATER MANAGEMENT

Spray Lakes was transformed into a reservoir by Calgary Power Company (now TransAlta) when they built the Canyon Dam in 1951 as part of a hydroelectric development project. The damming flooded the original Spray Lakes valley to create the Spray Lakes Reservoir, which supports hydroelectric generation at the Spray and Three Sisters power plants downstream.

The lakes with a max depth of 50 - 60m are a drainage basin for 500 sq km of land. Spray Lakes remains susceptible to flooding, particularly during periods of heavy rainfall or rapid snowmelt. Despite flood mitigation measures Spray Valley Provincial Park has experienced closures due to flooding in 2013.

PEAK WATER LEVELS:

July and August

FOREST FIRE BUFFER

The Spray Lakes area is prone to forest fires during the dry summer season, so the mountain rescue base will incorporate defensible buffer zones with cleared vegetation and fire-resistant landscaping to reduce the risk of external wildfire spread.

FIRE SUPPRESION DESIGN

The mountain rescue base will use a high-capacity lake-fed fire pump system to draw water directly from Spray Lakes, supplying the building’s sprinkler and hose systems in case of an internal fire.

Since the building has its own on-site fire department, it can respond immediately to internal fires, but if a blaze exceeds its capacity, additional firefighters from Canmore can quickly access the site via the main access road to provide support.

FIRE ESCAPE ROUTE

PEAK RISK FOREST FIRE SEASON: May - August

USING FIRE RESISTANT MATERIALS

SPRINKLERS

SMOKE SECTION

ACCESSIBILITY

The mountain rescue base is fully accessible to differently abled users, with all floors connected by a funicular lift, completely level public areas, and integrated ramps wherever a single-step elevation occurs.

ACCESSIBILITY ROUTE

ACCESSIBILITY STRATEGIES

LEGEND

1. EMERGENCY VEHICLE HANGAR

2. EMS

3. HOSE TOWER

4. MOUNTAIN RESCUE DISPATCH EQUIPMENT

5. MOUNTAIN/FIRE RESCUE STORAGE

6. MEDICAL SUPPLIES

7. FIRE RESCUE DISPATCH EQUIPMENT

8. AVALANCHE RESCUE DOGS EQUIPMENT

9. RECEPTION

10. FUNICULAR ENTRANCE

11. AVALANCHE DOG STORAGE

12. GROOMING ROOM

13. KENNELS

14. DOG TRAINING ROOM

15. OUTDOOR DOG PLAY AREA

LEGEND

3.

1. SAUNA
2. THERMAL SPRING
WOMEN’S LOCKER ROOM
4. MEN’S LOCKER ROOM
5. GYM EQUIPMENT STORAGE
6. GYM

1. OPEN OFFICE FOR RESCUE BASE OPERATIONS / ADMIN

2. WOMEN’S TOILET

3. MEN’S TOILET

4. EMERGENCY OPERATION CENTRE

5. CONTROL ROOM

6. MAP ROOM

7. BOARD ROOM

LEGEND

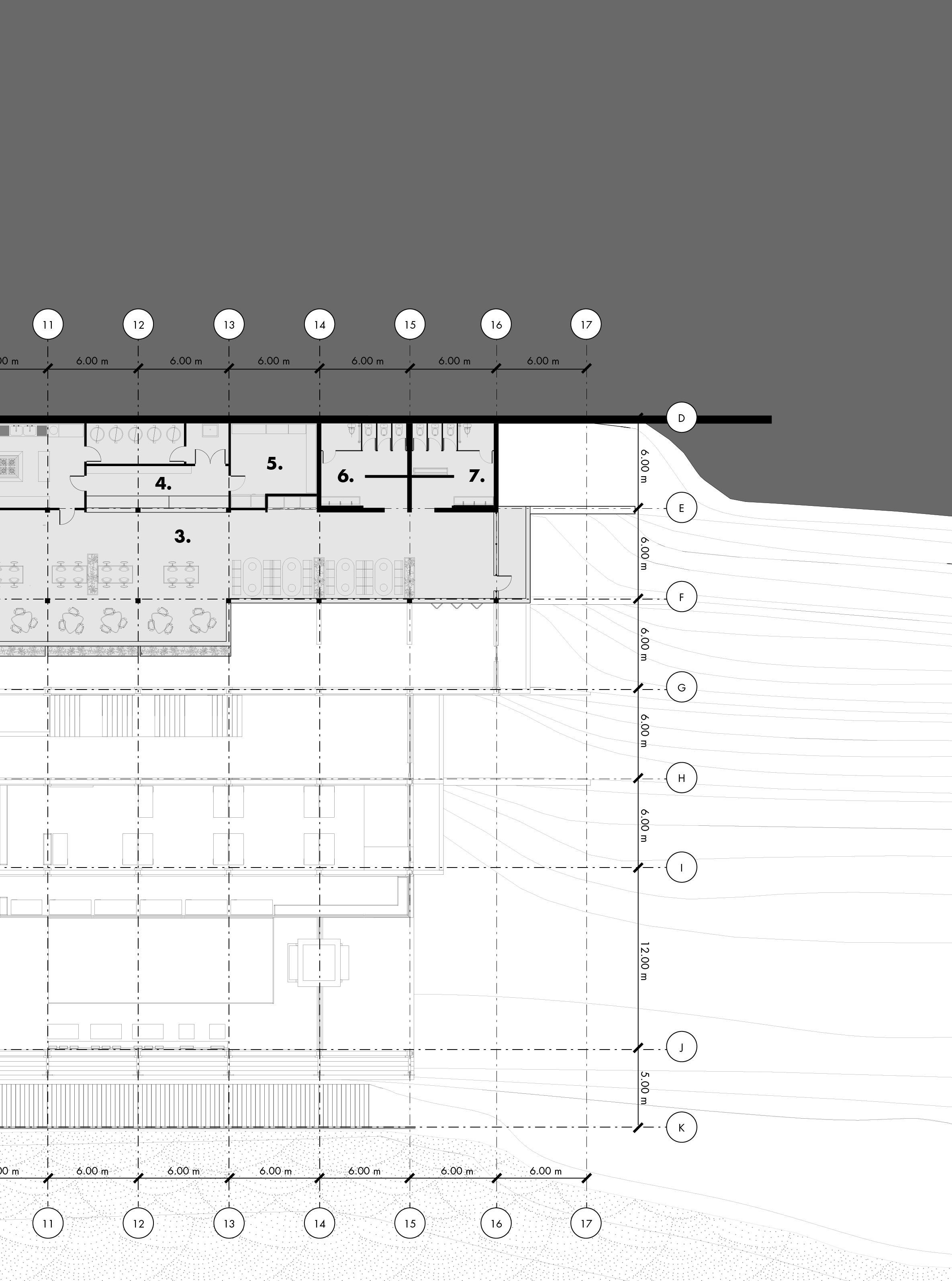
LEGEND

1. FUNICULAR

2. WOMEN’S TOILET

3. MEN’S TOILET

4. CAFE

5. DINING NOOKS

6. LOUNGE

7. FIRE PLACE

8. OUTDOOR PATIO

9. LAKESIDE BOARDWALK

10. BAR

6.1 TENSILE EXPERIMENTS

6.2 MODULAR THATCH UNIT

6.3 FURTHER ROOF FORM EXPERIMENTS

6.4 EARLY FRAGMENTS OF THE RESCUE BASE

6.5 EARLY PROGRAMME FRAGMENTS

TRIPLE STOREY HALLWAY IN BASE

LAKE BOARDWALK

CAFE BESIDE THE FIRESIDE LOUNGE

All work produced by Unit 14

Cover design by Charlie Harrishttps://www.ucl.ac.uk/bartlett/architecture

Copyright 2025 The Bartlett School of Architecture, UCL All rights reserved.

No part of this publication may be reproduced or transmitted in any form or by any means, electronic or mechanical, including photocopy, recording or any information storage and retrieval system without permission in writing from the publisher.

INVESTIGAIVE DOMAIN 2025

At the center of Unit 14’s academic exploration lies Buckminster Fuller’s ideal of the ‘The Comprehensive Designer’, a master-builder that follows Renaissance principles and a holistic approach. Fuller referred to this ideal of the designer as somebody who is capable of comprehending the ‘integrateable significance’ of specialised findings and is able to realise and coordinate the commonwealth potentials of these discoveries while not disappearing into a career of expertise. Like Fuller, we are opportunists in search of new ideas and their benefits via architectural synthesis. As such Unit 14 is a test bed for exploration and innovation, examining the role of the architect in an environment of continuous change. We are in search of the new, leveraging technologies, workflows and modes of production seen in disciplines outside our own. We test ideas systematically by means of digital as well as physical drawings, models and prototypes. Our work evolves around technological speculation with a research-driven core, generating momentum through astute synthesis. Our propositions are ultimately made through the design of buildings and through the in-depth consideration of structural formation and tectonic. This, coupled with a strong research ethos, will generate new and unprecedented, one day viable and spectacular proposals. They will be beautiful because of their intelligence - extraordinary findings and the artful integration of those into architecture.

The focus of this year’s work evolves around the intrinsic chance and professional desire for creative and systematic investigation. The explorative and intellectual process of iterative learning through informed experiment, catalysed by potent discoveries and ultimately seeking an architectural application. An intensely investigative approach enables the architect’s fundamental agency and core competency of the profession to anticipate the future as the result of the highest degree of synthesis of the observed underlying principles underpinned by strong research. Constructional logic, spatial innovation, typological organisation, environmental and structural performance are all negotiated in a highly iterative process driven by intense architectural investigation. Through the deep understanding of principles, we will generate highly developed architectural systems of unencountered intensity where spatial organisation arises as a result of sets of mutual interactions. Observation as well as re-examination of past and contemporary civilisational developments will enable us to project near future scenarios and position ourselves as avant-garde in the process of designing a comprehensive vision for the forthcoming. The projects will take shape as research based, imaginative architectural visions driven by speculation.

Thanks to: ARUP, DKFS.io, Foster+Partners, KLASKA LTD, Populous, RSH+P, Seth Stein Architects, ZHA, knippershelbig

Turn static files into dynamic content formats.

Create a flipbook
Issuu converts static files into: digital portfolios, online yearbooks, online catalogs, digital photo albums and more. Sign up and create your flipbook.