


![]()



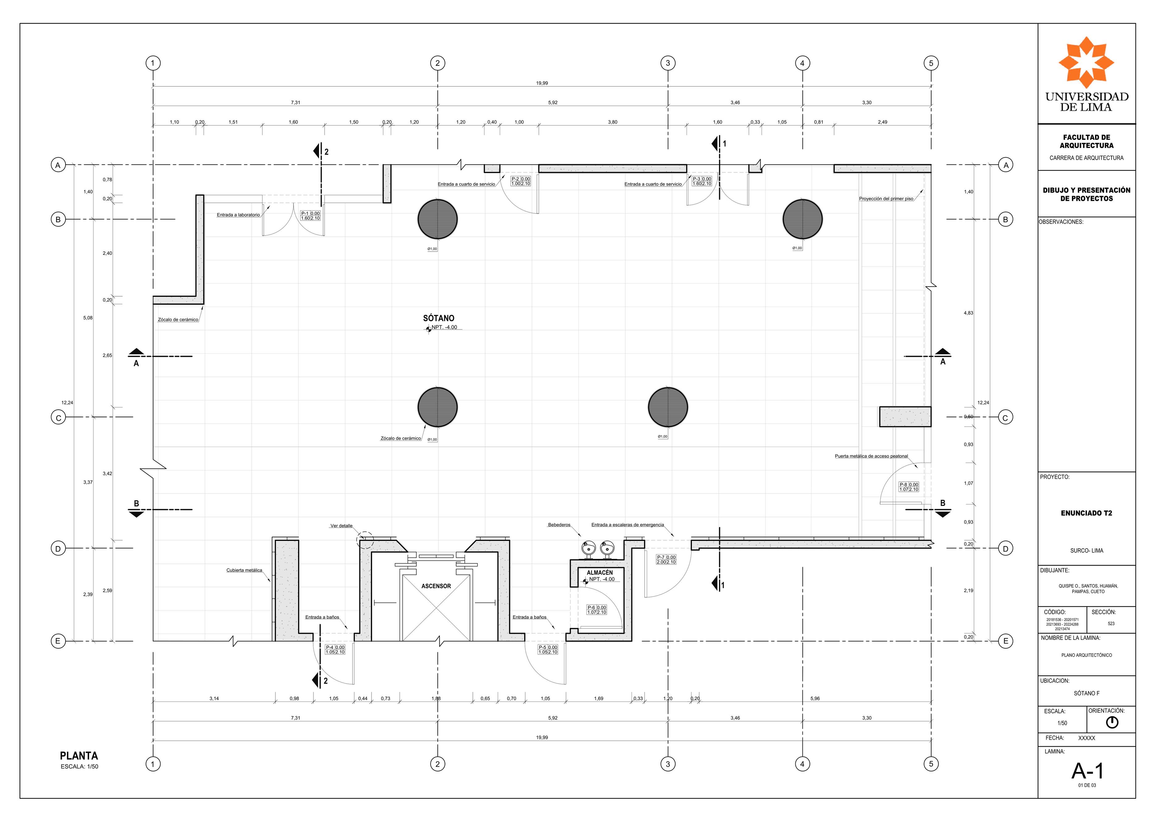
En este proyecto se desarrolló la documentación y representación gráfica de un espacio del edificio I1 de la univers dad Se seleccionó un área espec fica del sótano, donde se representaron gráficamente todos los detalles y se especificaron los elementos presentes en dicho sector
OBJETIVOS
Aprender a realizar la representación gráfica de los planos de forma adecuada Realizar levantamientos con medidas precisas
Luego de elegir el sector , se procedio a realizar el levantamiento de el lugar en grupo
Se inicio con el dibu o de las plantas y respectivamente de los cortes Se critico en clase las observaciones y correcciones
Finalmente , se entrego el folder con :
-Planta arquitectonica
-Planta de piso
-Planta falso c elo raso
-Cortes transversal
-Corte longitudinal
COMPRESIÓN


En este ejercicio enfrentamos ciertas dificultades al asignar los diseños, lo cual complicaba la claridad de la representación gráfica y dificultaba su comprensión S n embargo, gracias a las crít cas y observaciones recibidas, pudimos realizar las correcciones necesarias, lo que nos permit ó presentar planos de calidad con una interpretación visual adecuada
-Briggitte Pampas
-Claudia Quispe
-Karla Huaman
-Maricielo Cueto
-Melany Santos O1, O2 ODS 11 / RIBA T2, T3, T5
Resaltar la importancia de los diferentes layouts y los grosores específicos de cada uno para lograr una representación clara y precisa. Acotar los elementos al eje con el objetivo de facilitar una mejor lectura y comprensión del diseño
Indicar los n veles de piso y techo en los cortes para proporc onar una referencia espacial adecuada
Apl car hatch (sombreado) para diferenciar y distinguir los materiales utilizados en la representación gráfica
DESCRIPCIÓN
En este proyecto se elaboró la documentación y los planos detallados de los servicios higiénicos del ed ficio I1 de la universidad, incluyendo los accesorios y los materiales que se reemplazarían De esta manera, los materiales serán espec ficos en el cuadro de acabados
OBJETIVOS
Aprender a realizar la representación gráfica de los planos con sus diseños de forma adecuada
Realizar levantamientos con medidas precisas
PROCESO
Se realizó el levantamiento de manera grupal, pero el desarrollo fue de manera individual
Se criticaron las plantas y se realizaron observaciones sobre las anotaciones en clase
Finalmente , se entrego el folder con :
-Planta arquitectonica 1/25
-Planta de piso
-Planta falso c elo raso
-Cortes transversal
-Cortes longitudinal
-Cuadro de acabados
COMPRESIÓN

En este ejercicio fue diferente, ya que debíamos encargarnos de colocar un nuevo mobiliar o o modificarlo sin alterar la distribución existente La parte interesante fue elegir distintos acabados, adaptándolos a nuestro gusto, pero también teniendo en cuenta la calidad y que fueran adecuados para los servicios higiénicos
Sin embargo, la tarea que llevó más tiempo fue la representación gráfica ya que debíamos inclu r varios detalles y presentar informac ón diversa en cada plano, pero de una manera que no resultaría recargada A pesar de las dificultades, se consiguió un trabajo satisfactorio y se cumpl eron los objetivos planteados Además, se comprendió la cantidad de información que debe incluirse en una escala 1/25 , asegurando que los textos y las cotas sean adecuadas
Resaltar la importancia de los diferentes layouts y los grosores específicos de cada uno para lograr una representación clara y precisa.
Acotar los elementos al eje con el objetivo de facilitar una mejor lectura y comprensión del diseño.
Indicar los niveles de piso y techo en los cortes para proporcionar una referencia espacial adecuada
Aplicar hatch (sombreado) para diferenciar y distinguir los materiales utilizados en la representación gráfica
Informarse sobre qué materiales son adecuados para usar en los servicios higiénicos y la calidad de los mismos
Comprender la distinta información grafque conlleva cada plano
En este proyecto se llevó a cabo la documentación y representación gráfica de una jardinera ubicada en el edificio F1 de la universidad Se seleccionó este elemento mobiliario con el objetivo de detallar de manera precisa cada uno de sus aspectos Para ello, se realizaron representaciones en dos escalas diferentes 1/5 y 1/10, que permitieron var ar el nivel de detalle según las necesidades del diseño
En este ejercicio enfrenté algunos desafíos al investigar los detalles internos de la jardinera, ya que presentaban cierta inconsistencia Para resolver este problema, me enfoqué en armonizar los hatches, asegurándome de que permitieran diferenciar claramente los distintos elementos Asimismo, dediqué especial atención a las escalas más pequeñas, procurando que la incorporación de más detalles no sobrecargara el diseño, sino que mantuviera su claridad y facil dad de interpretación Resultó gratificante alcanzar los objetivos establecidos para este ejercicio
1 Luego de elegir el mob procedió a reali levantamiento de investigar sobre los sis anclaje



realizar la representación gráfica de los orma adecuada vantamientos del detalle y del sistema con medidas precisas r el nivel de detalle necesario para cada
mportanc a de los diferentes layouts y específicos de cada uno para lograr una ón clara y precisa elementos al eje con el objetivo de mejor lectura y comprensión del diseño veles de piso y techo en los cortes para una referencia espac al adecuada. ch (sombreado) para diferenciar y los materiales utilizados en la ón gráfica. la nformación que se debe colocar en
DIFICULTAD
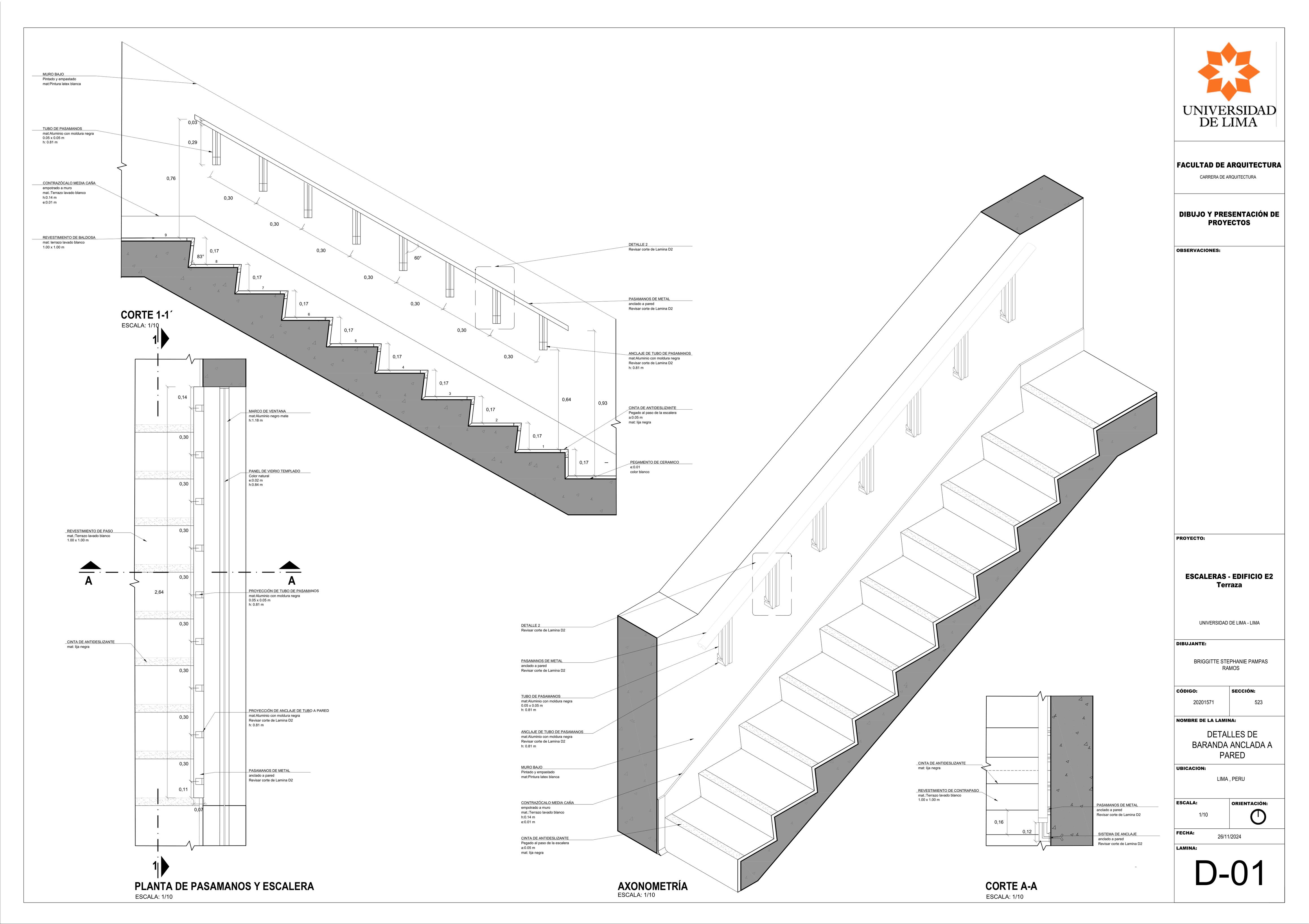
DESCRIPCIÓN
En este proyecto se realizó la documentación y representación gráfica de las escaleras del edificio E2 de la universidad Se llevó a cabo el desarrollo de las escaleras, así como el análisis de detalles interesantes encontrados en algunos de sus elementos. Para ello, se elaboraron representaciones en dos escalas diferentes 1/5 y 1/10, lo que permitió var ar el nivel de detalle.
PROCESO
Luego de realizar el levantamiento de las escaleras, se procedió a elaborar los planos y cortes
En la búsqueda de qué detalle se debía realizar, se escogió el anclaje del pasamanos a la pared
Se realizaron las cr ticas necesarias para incorporar las sugerencias y observaciones planteadas, logrando de este modo los ajustes requeridos
Finalmente , se entrego el folder con
-Planta arquitectonica 1/25
-Corte transversal
-Corte longitudinal
-Axonometria
-Detalles en 1/10
-Detalles en 1/5
O1, O2 ODS 11 / RIBA T2, T3, T5


OBJETIVOS
Aprender a realizar la representación gráfica de los planos de forma adecuada.
Realizar levantamientos del detalle y tomar las medidas adecuadas.
Comprender el nivel de detalle necesario para cada escala.
Resaltar la importancia de los diferentes layouts y los grosores específicos de cada uno para lograr una representación clara y precisa
Acotar los elementos al eje con el objetivo de facilitar una mejor lectura y comprensión del d seño
Indicar los niveles de piso y techo en los cortes para proporcionar una referencia espacial adecuada

Aplicar hatch (sombreado) para diferenciar y distinguir los materiales utilizados en la representación gráfica.
Acotar la altura de las barandas desde el suelo para obtener una medida de referencia. Informarse sobre los anclajes en el interior de las barandas.
DIFICULTAD


