Vector Sports | Senior Thesis Volume II

Page 1

INTERIOR DESIGN THESIS VOLUME II CONCEPT Mission ........................................................ Design Concept .......................................... VR Design Elements ................................... Vector Sports Companion App................... SPATIAL DESIGN Diagrams ...................................................... Floor Plans.................................................... Ceiling Plans................................................ Sections + Axons ........................................ COLOR + MATERIAL JUSTIFICATION Material Board ............................................. WELL Standards ......................................... IBC Considerations ..................................... PERSPECTIVES Main Entry .................................................... Self Check-out ............................................. Cash Wrap + Shoe Customization Area .... Shoe Racks and VR Treadmill Rooms....... Personalized New Arrivals Display............. VR Treadmill Rooms ................................... VR Fitting Room .......................................... 6 8 10 12 16 18 20 22 28 34 36 40 42 44 46 48 50 52

CONCEPT | SPATIAL DESIGN | COLOR + MATERIAL JUSTIFICATION | PERSPECTIVES

CONCEPT

MISSION

DESIGN CONCEPT

VR DESIGN ELEMENTS

VECTOR SPORTS COMPANION APP

CONCEPT SPATIAL DESIGN

COLOR + MATERIAL JUSTIFICATION PERSPECTIVES

PERSPECTIVES

MISSION

6 CONCEPT

UX/UI should not be the sole cause of the closure of brick-and-mortar stores, it's essential to recognize that rather than being seen as a threat, UX/UI can serve as a powerful tool to revitalize the in-store shopping experience. By leveraging technology such as augmented reality (AR) and virtual reality (VR), retailers have the opportunity to augment the physical space with digital enhancements, thereby creating immersive and engaging environments for customers.

Incorporating high-tech product testing within these experiences enables customers to interact with products in a personalized and dynamic manner, transcending the limitations of physical space. Ultimately, by embracing UX/UI technologies in brick-and-mortar stores, retailers can not only adapt to evolving consumer preferences but also elevate the shopping experience to new heights, fostering customer loyalty and driving business success.

INTERIOR DESIGN THESIS VOLUME II
7 MISSION

DESIGN CONCEPT

8 CONCEPT

Vector Sports is an exclusive retail destination tailored specifically for running and marathon training enthusiasts. This innovative store redefines the traditional sportswear and sports equipment retail experience, immersing customers in a dynamic space that mirrors the energy and excitement of the running field. Navigating through the store feels like exploring different sections of a sports arena, thanks to a layout featuring dynamic pathways and a vivid, energetic color palette. Interactive displays, specialized sports zones, and cutting-edge technology, including virtual reality simulations, elevate the shopping journey to new heights.

From kinetic merchandising strategies to captivating sports-themed audiovisuals, every aspect of Vector Sports is meticulously designed to encapsulate the true spirit of running. Beyond being a mere store, Vector Sports stands as a haven where the essence of running converges with the excitement of retail, delivering a multisensory adventure that transforms shopping into a uniquely invigorating experience.

There are 5 Virtual Reality features in the program, including a VR fitting room, "Find Your Perfect Fit", Shoe Customization Area, VR Mannequin Display, and VR Treadmil Pods.

INTERIOR DESIGN THESIS VOLUME II
9 DESIGN CONCEPT
“CUSTOM

BY YOU"

VR shoe customization zone featuring plain white shoes as canvas.

Interactive interface for users to select from various colors and patterns.

Real-time laser projection visually applies selected designs onto shoes for instant preview.

Option to add customized shoes to cart and choose shipping: in-store pickup or delivery to home address.

“FIND

YOUR PERFECT FIT”

"Find Your Perfect Fit" features an interactive floor plate that scans customers' feet for size, pressure points, and walking dynamics.

Based on the analysis from the floor plate, the system suggests optimal shoe types tailored to individual foot assessments.

This personalized approach ensures that each customer receives recommendations for shoes that provide the best support and comfort, catering to their specific needs and preferences.

NEW ARRIVALS

The personalized, display is activated through a sensor customer's unique entry.

As the particular past the display, their unique purchase dynamically showcased.

This innovative that every customer different display, individual preferences

10 CONCEPT

ARRIVALS DISPLAY

personalized, digital mannequin activated for app users sensor that detects each unique profile upon particular customer walks display, products based on purchase history are showcased. approach ensures customer encounters a display, tailored to their preferences and needs.

VR FITTING ROOM

The VR fitting room offers customers the ability to visualize themselves in various environments using an interactive mirror.

Each piece of product is tagged, enabling the fitting room to detect every article of clothing present.

Through this technology, the room suggests popular pairings with the merchandise chosen, enhancing the customer's shopping experience.

Additionally, the room prompts customers if they would like the suggested items to be added to their rooms by a team member, providing personalized assistance and convenience.

VR TREADMILL ROOMS

VR treadmill pods enable customers to immerse themselves in virtual environments that replicate various terrains and settings.

Customers can visualize and experience their daily walks or upcoming race routes within the VR room.

The integrated system offers a comprehensive and tailored shoe fitting and testing experience, allowing individuals to test recommended shoes in different conditions.

INTERIOR DESIGN THESIS VOLUME II 11 VR DESIGN ELEMENTS
12 CONCEPT

VECTOR SPORTS COMPANION APP

1. The Vector Sports Companion App allows customers to utilize the store's VR and UX/UI features at their fullest potential. Features Include:

2. Door sensor detects app users and displays personalized merchandise based on their purchase history

3. Saves customers' running assessments and personalized shoe size scans.

4. Offers real-time virtual try-ons using AR technology.

5. Tracks and analyzes walking patterns to recommend optimal shoe types.

6. Provides access to exclusive shoe releases and discounts for app users.

7. Provide an interactive map within the app for easy navigation through different sections and themed zones within the store.

INTERIOR DESIGN THESIS VOLUME II
13 VECTOR SPORTS COMPANION APP

CONCEPT | SPATIAL DESIGN | COLOR + MATERIAL JUSTIFICATION |

SPATIAL DESIGN

DIAGRAMS

FLOOR PLANS

CEILING PLANS

SEC TIONS + AXONS

PERSPECTIVES

DESIGN

SPATIAL DESIGN

COLOR + MATERIAL JUSTIFICATION PERSPECTIVES

PERSPECTIVES

LEVEL 1 BUBBLE DIAGRAMMING

16
SPATIAL DESIGN

MEZZANINE BUBBLE DIAGRAMMING

17
DIAGRAMMING INTERIOR DESIGN THESIS VOLUME II
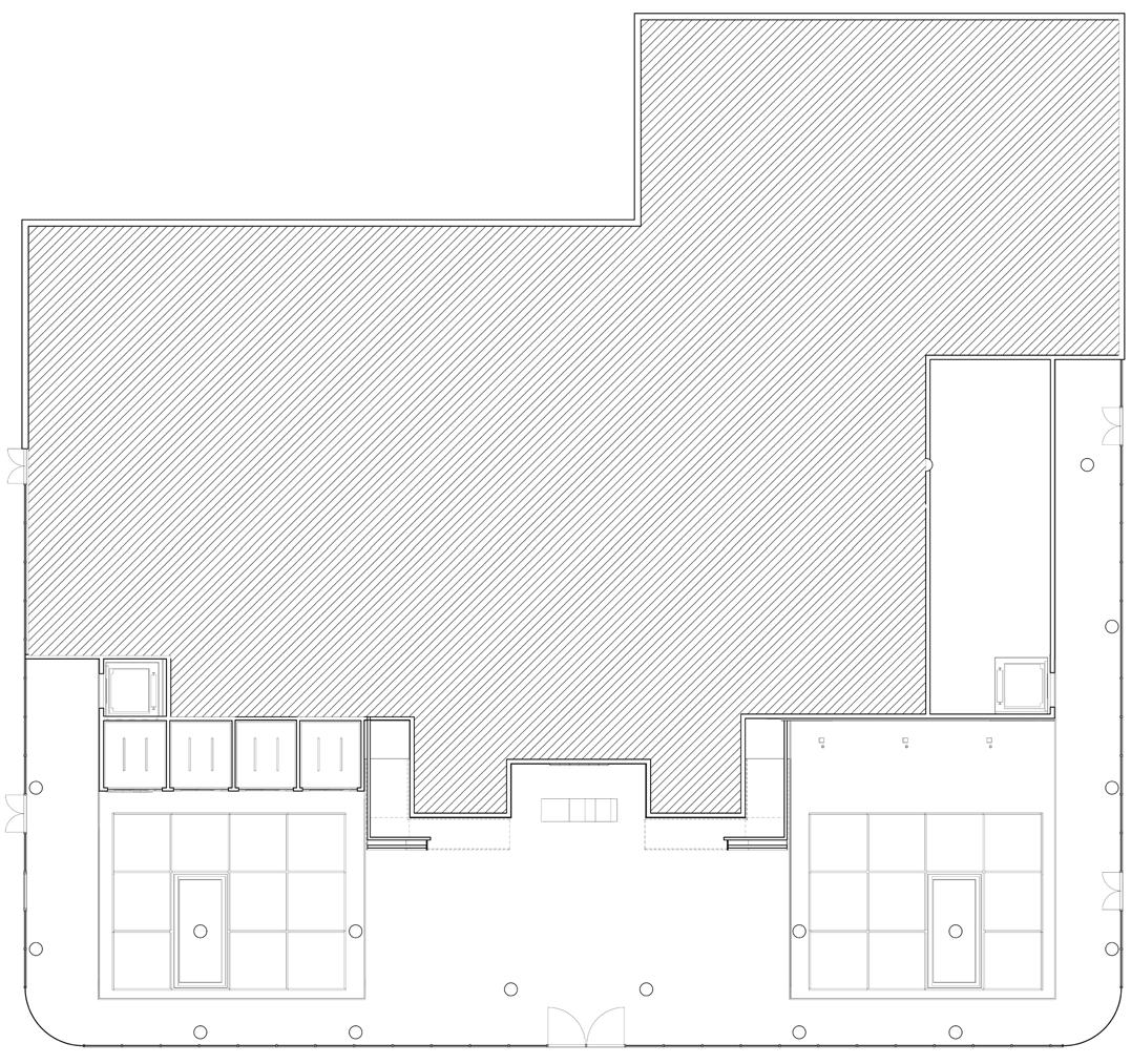
18 SPATIAL DESIGN LEVEL 1 FLOOR PLAN NTS 1 "FIND YOUR PERFECT FIT" 6 "CUSTOM BY YOU" 2 VR TREADMIL PODS 7 SELF CHECKOUT 3 PERSONALIZED NEW ARRIVALS DISPLAY 8 BOH STORAGE 4 GRAND ENTRANCE/MIRROR WALL 9 RESTROOMS 5 CASH WRAP/PICKUP STATION NIC 1 2 3 3 4 5 6 7 8 9

10

19 FLOOR PLANS
MEZZANINE FLOOR PLAN NTS
VR FITTING ROOMS 11 BOH STORAGE/EMPLOYEE LOUNGE 12 WOMENS FIT APPAREL 13 MENS FIT APPAREL NIC 10 11 12 13 INTERIOR DESIGN THESIS VOLUME II

LEVEL 1 CEILING PLAN NTS

20 SPATIAL DESIGN

CEILING PLAN NTS

21
CEILING PLANS
DESIGN THESIS VOLUME II
MEZZANINE
INTERIOR

EAST SECTION NTS

22 SPATIAL DESIGN

WEST SECTION NTS

23
AXONS
SECTIONS +
INTERIOR DESIGN THESIS VOLUME II
24 SPATIAL DESIGN
25 SECTIONS + AXONS INTERIOR DESIGN THESIS VOLUME II

CONCEPT | SPATIAL DESIGN | COLOR + MATERIAL JUSTIFICATION

COLOR + MATERIAL JUSTIFICATION

MATERIALS

WELL STANDARDS

IBC CODES AND CONSIDERATIONS

PERSPECTIVES
|

MATERIAL JUSTIFICATION

COLOR + MATERIAL JUSTIFICATION PERSPECTIVES

PERSPECTIVES
28 COLOR + MATERIAL JUSTIFICATION

MATERIAL JUSTIFICATION:

The design of Vector Sports pays homage to its urban surroundings by incorporating dark, rough, and polished materials that resonate with the city's industrial aesthetic. These materials not only reflect the grit of New York City but also evoke a sense of energy and sophistication. Additionally, Vector Sports' interior design draws inspiration from the film "The Matrix," with sleek, futuristic elements that transport visitors into a space of of heightened sensory experience. This intentional design choice serves as a metaphor for our mission to revitalize the retail experience and draw customers back into physical stores, breaking free from the digital "matrix" of online shopping and reengaging with the tactile, immersive environment of brick-and-mortar retail.

ACCENT LIGHTING JUSTIFICATION:

In Vector Sports, the color red emitted throughout the space via LED ambient lighting symbolizes the intensity of marathon training, reflecting the dedication and passion of athletes striving for excellence. This intentional design element not only adds vibrancy and WWdynamism to the environment but also reinforces the theme of endurance and commitment.

29 MATERIALS
INTERIOR DESIGN THESIS VOLUME II

ITEM: Flooring

LOCATION: Level 1 Salesfloor, Level 1 Restroom

DESCRIPTION: Ancona Terrazzo, Colorway: "Diana"

MANUFACTURER: Garden State Tile

SUSTAINABILITY: EPD Recycled Content, CARB Compliant, low-emitting/low VOC, zero VOC

RATING: This product may contribute to LEED credits

ITEM: Flooring

LOCATION: Level 1 flooring, indoor track

DESCRIPTION: Performance Rally, Colorway: "Basic Black"

MANUFACTURER: Ecore

SUSTAINABILITY: Recycled Content - Post-Consumer, Environmental Product Declaration (EPD), LEED Compliant, Recycled Content, CDPH / CHPS 01350 Compliant, Health Product Declaration (HPD), Low Emitting/Low VOC, SCS

Global FloorScore Certified

RATING: This product may contribute to LEED credits

ITEM: Wall Tile

LOCATION: Level 1 Checkout Area

DESCRIPTION: GB-60 Stainless Steel

MANUFACTURER: Zahner

SUSTAINABILITY: Declare Label - Red List Free RATING: This product may contribute to LEED credits

ITEM: Wall Tile

LOCATION: Foyer/Staircase Lobby

DESCRIPTION: NuMetal Aluminum

MANUFACTURER: Decorative Ceiling Tiles

SUSTAINABILITY: Low Emitting/Low VOC RATING: This product may contribute to LEED credits

30 COLOR + MATERIAL JUSTIFICATION

ITEM: LED Display Panel

LOCATION: VR Treadmill Rooms, Level 1 Checkout Area

MANUFACTURER: Planar

SUSTAINABILITY: Low energy consumption

RATING: N/A

ITEM: Wall Paint

LOCATION: Level 2 Salesfloor

DESCRIPTION: Mopboard Black CW-680

MANUFACTURER: Benjamin Moore

SUSTAINABILITY: Asthma and Allergy Friendly, Green Seal®, EPD, MPI, U.S. Green Building Council (USGBC) LEED® v4.1

RATING: LEED Compliant

ITEM: Wall Paint

LOCATION: Level 1 Restroom, Level 1 and Level 2 BOH DESCRIPTION: Stormy Sky 1616

MANUFACTURER: Benjamin Moore

SUSTAINABILITY: Asthma and Allergy Friendly, Green Seal®, EPD, MPI, U.S. Green Building Council (USGBC) LEED® v4.1

RATING: LEED Compliant

ITEM: Wall Tile

LOCATION: Foyer/Staircase Lobby

DESCRIPTION: Laminated Mirrored Glass

MANUFACTURER: Dreamwalls by Gardner Glass

SUSTAINABILITY: The glass and plastic used in its production can be recycled, reducing waste and conserving resources.

RATING: This product may contribute to LEED credits

31 MATERIALS
INTERIOR DESIGN THESIS VOLUME II

ITEM: Wall and Ceiling Gypsum Board

LOCATION: Level 1 Restroom Wall and Ceiling, Level 2 Salesfloor Wall, Level 1 and Level 2 BOH Wall and Ceiling

DESCRIPTION: Drywall

MANUFACTURER: National Gypsum

SUSTAINABILITY: UL 2818 - 2022 Gold Standard for Chemical Emissions for Building Materials, Finishes and Furnishings

RATING: Greenguard Gold Certification

ITEM: Wall Paint

LOCATION: Level 2 Salesfloor

DESCRIPTION: Mopboard Black CW-680

MANUFACTURER: Benjamin Moore

SUSTAINABILITY: Asthma and Allergy Friendly, Green Seal®, EPD, MPI, U.S. Green Building Council (USGBC) LEED® v4.1

RATING: LEED Compliant

ITEM: Wall Paint

LOCATION: Level 1 Restroom, Level 1 and Level 2 BOH

DESCRIPTION: Stormy Sky 1616

MANUFACTURER: Benjamin Moore

SUSTAINABILITY: Asthma and Allergy Friendly, Green Seal®, EPD, MPI, U.S. Green Building Council (USGBC) LEED® v4.1

RATING: LEED Compliant

32 COLOR + MATERIAL JUSTIFICATION

ITEM: Concrete

LOCATION: Level 1 and Level 2 Ceiling

DESCRIPTION: Panbeton Classic, Colorway: "Nautral Gray"

MANUFACTURER: Concrete LCDA North America

SUSTAINABILITY: Low Emitting/Low VOC

RATING: LEED Compliant

ITEM: Wall Panel

LOCATION: Level 2 Sales Floor

DESCRIPTION: Vapor® Pixel, Alluminum

MANUFACTURER: Arktura

SUSTAINABILITY: Low Emitting/Low VOC

RATING: LEED Compliant

33 MATERIALS
INTERIOR DESIGN THESIS VOLUME II

WELL STANDARDS

34 COLOR + MATERIAL JUSTIFICATION

WELL BUILDING STANDARD CONCEPTS:

1. Air: Several materials selected have low or zero VOC emissions, contributing to better indoor air quality. Examples include the flooring from Garden State Tile and Ecore, wall paint from Benjamin Moore, and gypsum board from National Gypsum.

2. Light: LED wall panels from Planar and illuminating wall tiles from Barrisol Welch enhance lighting efficiency and quality, promoting visual comfort and productivity.

3. Movement: The choice of flooring materials like Ancona Terrazzo and Spacia Wood promotes safe and comfortable movement, especially in areas like sales floors and VR treadmill rooms.

4. Thermal Comfort: The selection of low-emitting and low-VOC materials contributes to a healthier indoor environment, enhancing thermal comfort for occupants.

5. Sound: Acoustic considerations are taken into account with materials like Acoustic Light Panels from Barrisol Welch, which can help control noise levels in areas like VR treadmill rooms.

6. Material: Sustainable materials such as recycled flooring from Ecore, stainless steel wall tiles from Zahner, and concrete from Concrete LCDA North America align with the WELL Building Standard's focus on material transparency and resource conservation.

7. Mind: The sustainable design elements and aesthetic features can positively impact occupants' mental well-being by creating a visually appealing and environmentally conscious space.

UNIVERSAL DESIGN PRINCIPLES:

1. The selection of flooring and wall materials considers durability, ease of maintenance, and accessibility, ensuring that the design accommodates users of all abilities.

2. The use of LED wall panels and illuminating wall tiles enhances visual contrast and wayfinding, aiding individuals with visual impairments.

3. Low-emitting and low-VOC materials contribute to a healthier indoor environment for all occupants, including those with sensitivities or respiratory conditions.

4. Barrier-free design elements such as wide and smooth flooring surfaces and accessible restroom facilities promote inclusivity and ease of movement for individuals with mobility challenges.

35 WELL STANDARDS
INTERIOR DESIGN THESIS VOLUME II
36 COLOR + MATERIAL JUSTIFICATION
37 IBC CODES + CONSIDERATIONS INTERIOR DESIGN THESIS VOLUME II

PERSPECTIVES

MAIN ENTRY

SELF CHECK-OUT

CASH WRAP + SHOE CUSTOMIZATION AREA

SHOE R ACKS AND VR TREADMILL ROOMS

PERSONALIZED NEW ARRIVALS DISPLAY

VR TREADMILL ROOMS

VR FITTING ROOM

JUSTIFICATION | PERSPECTIVES
CONCEPT | SPATIAL DESIGN | COLOR + MATERIAL

PERSPECTIVES

PERSPECTIVES
PERSPECTIVES
40 PERSPECTIVES
41 MAIN ENTRY INTERIOR DESIGN THESIS VOLUME II
42 PERSPECTIVES
43 SELF CHECK-OUT INTERIOR DESIGN THESIS VOLUME II
44 PERSPECTIVES

INTERIOR DESIGN THESIS VOLUME II

45 CASH WRAP + SHOE CUSTOMIZATION AREA
46 PERSPECTIVES

INTERIOR DESIGN THESIS VOLUME II

47
SHOE RACKS AND VR TREADMILL ROOMS
48 PERSPECTIVES
49 PERSONALIZED NEW ARRIVALS DISPLAY
DESIGN THESIS VOLUME II
INTERIOR
50 PERSPECTIVES
51 VR TREADMILL ROOMS INTERIOR DESIGN THESIS VOLUME II
52 PERSPECTIVES
53 VR FITTING ROOM INTERIOR DESIGN THESIS VOLUME II

Turn static files into dynamic content formats.

Create a flipbook
Issuu converts static files into: digital portfolios, online yearbooks, online catalogs, digital photo albums and more. Sign up and create your flipbook.