Tugas A1_212100153_Sherlie Hanita Lysander

Page 1

PERUMAHAN

TINGGI

BERKEPADATAN
TUGAS A1 STUDI PRESEDEN Architecture and Sustainable Design
Sherlie Hanita Lysander
212100153

Meyer House / WOHA

Kategori : Arsitektur perumahan

Lokasi : Sing

Arsitek : WO

Luas : 1568

Tahun : 20

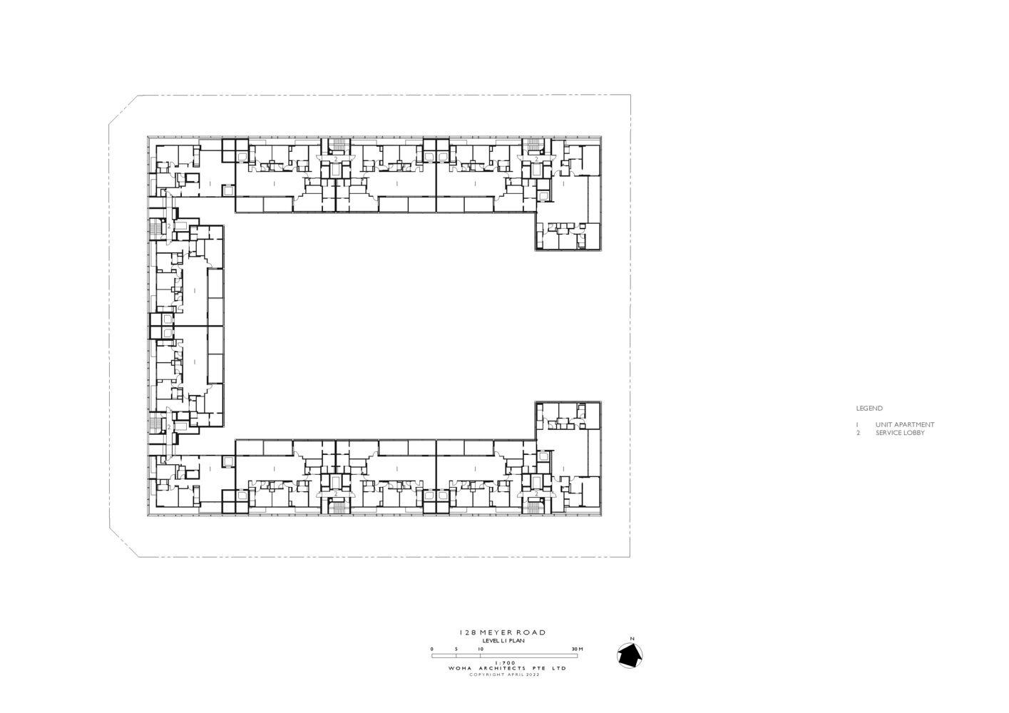
Merupakan sebuah kondominium lima lantai yang

dapat menampung sekitar 56 unit dan berlokasi

berdekatan dengan taman hutan. Dalam konfigurasi

bangunan berbentuk huruf C, sekat kayu berfungsi

sebagai pelindung sinar matahari untuk unit yang

menghadap ke kolam renang dan taman sekitarnya.

Penggunaan kisi-kisi pada bagian fasad dimaksudkan

untuk mengamankan privasi unit dari permukaan jalan

serta memaksimalkan udara masuk ke dalam ruangan

dan balkon. Selain itu, jalan masuk diterangi oleh

cahaya alami yang terbuka/ langsung menuju ke

halaman air.

Tirai venetian ini mampu dikontrol oleh para pemilik

hunian dalam mengatur privasi maupun seberapa

banyak pencahayaan yang ingin dimasukkan ke dalam ruangan.

Masing-masing hunian memiliki akses lift pribadi

langsung ke unitnya yang memberikan kesan eklusivitas. Di samping itu, terdapat beberapa komunal area seperti kolam renang, ruang makan, lounge.

Material : Beton bertulang serat kaca (GFRC).
2 Meyer House |
Tirai venetian, tirai berbahan PVC yang digunakan untuk melengkapi dekorasi interior ruangan. Fotografer : Patrick Bingham-Hall, Darren Soh

Ada empat tipe unit di Meyer House, yaitu tipe A, B, C, dan penthouse. Di samping kemewahan dan fasilitas yang disediakan di Meyer House ini, satu hal yang dapat

dipelajari adalah sustainability yang diterapkan dalam bangunan ini. Dengan menggunakan tirai yang dapat diatur

sesuai dengan keinginan penghuni serta sekat-sekat pada bagian fasad, mempermudah masuknya cahaya alami

maupun ventilasi udara ke dalam bangunan.

Tampak depan - Jalan masuk disambut dengan kolam reflektif yang membantu mencapai iklim sejuk. Tampak dari balkon yang menghadap ke taman sekitar Site Layout Plan - Terdapat area yang cukup luas untuk bermain maupun untuk beristirahat Floor Plan - Unit tipe A
3 Meyer House |
Floor Plan - Unit tipe B

Kategori : Apartemen, perumahan sosial

Lokasi : São Paulo, Brazil

Arsitek : Biselli Katchborian Arquitetos

Luas : 31330 m ²

Tahun : 2014

Terdiri dari 420 unit dalam dua tipe dengan konsep model blok perkotaan tradisional Eropa yang menyesuaikan halaman dengan akses publik untuk kenyamanan penghuni blok. Proyek ini telah diselesaikan dalam program Balai Kota Sao Paulo untuk re-urbanisasi daerah miskin.

Titik akses tingkat yang berbeda memungkinkan konstruksi setinggi delapan tingkat tanpa memerlukan elevator. Titik akses tersebut sesuai dengan ruang rekreasi tertutup dari

blok.
4 Heliópolis Social Housing |
Diagram - Skywalk, struktur metaliknya membedakan dari bagian bangunan lainnya. Fotografer : Nelson Kon

Sistem bangunan dari pasangan bata struktural digunakan pada sebagian besar bangunan, sedangkan beton bertulang digunakan pada pintu masuk halaman. Distribusi apartemen dan penggunaan warna membedakan bangunan secara visual.

Diagram - Connections, hubungan antara jembatan dengan tiap unit bangunan. Tampak kiri dari pintu masuk utama - Menunjukkan playground sebagai salah satu communal area.
Floor Plan - Unit
tipe
A Floor Plan - Unit
tipe
B
5 Heliópolis Social Housing |
Diagram - Communal spaces, tempat untuk berkumpul/ bermain.

Las Americas Housing Complex / SO-IL

Kategori : Perumahan sosial

Lokasi : León, Mexico

Arsitek : SO-IL

Luas : 3000 m ²

Tahun : 2021

Perumahan ini dirancang dalam mengimbangi perluasan kota Meksiko yang tidak terkendali. Berfungsi sebagai regenerasi perkotaan serta peningkatan kualitas hidup masyarakat yang berpenghasilan rendah. Memiliki desain dimana adanya pemikiran kembali model perumahan di kota serta mengembangkan struktur yang hemat biaya. Terletak di lokasi yang cukup strategis, seperti sekolah, gereja, pasar, jalur transportasi, dan lain-lain.

Dalam menanggapi perluasan rumah-rumah baru di pinggiran kota, dibangun bangunan 56 unit di pusat Kota Léon, menghasilkan bangunan enam lantai dengan berbagai skala apartemen yang dipenuhi cahaya .
6 Las Americas Housing Complex |
Bangunan ini menganggap penting komunitas, baik di dalam gedung maupun lingkungan sekitarnya. Fotografer : Iwan Baan

Desain memaksimalkan tapak bangunan yang kemudian menghasilkan dua halaman interior yang menyediakan ventilasi silang dalam pembangunan. Sesuai dengan rasa privasi pada rumah tradisional, tidak ada dua unit yang saling berhadapan. Para arsitek memberi bangunan sudut ini konfigurasi angka delapan yang dimodifikasi, terfokus di sekitar dua halaman lanskap. Terbuka untuk sinar matahari dan sirkulasi udara, setiap unit memiliki ventilasi silang dengan pemandangan kota dan halaman.

Karena anggaran proyek terbatas, rancangan ini dibangun dari komponen prefabrikasi. Pilihan yang sangat ekonomis ini dapat bersumber secara lokal. Fasad yang dirakit dari balok beton dikembangkan secara unik untuk meningkatkan privasi dan perlindungan. Selain itu, material ini menghasilkan suasana interior yang unik serta memberikan karakter pada eksterior bangunan.

Las Americas berfokus pada regenerasi Kota Mexico dalam peningkatan lingkungan perkotaan, dimana memanfaatkan area perkotaan yang ada daripada membangunnya di pinggiran kota di mana fasilitasnya terbatas. Batu bata beton dikembangkan dalam proyek Las Americas untuk membentuk cara perusahaan berpikir tentang material maupun praktik tenaga kerja.

Massing bangunan yang menyerupai angka delapan ini menjadikan bangunan ini unik serta terbuka untuk sinar

matahari dan sirkulasi udara di sepanjang tepi angka 8.

Denah bangunan melengkung dan fasad pahatan yang

ekspresif, telah menghasilkan beberapa bentuk ruangan yang

unik serta dinding zig-zag di sepanjang tepi luarnya. Secara penerapannya, bangunan telah mencapai sustainability

melalui tamannya, ventilasi alami, dan lokasi yang dapat dijangkau dengan berjalan kaki/bersepeda.

1 2. 3 4 5.

One bedroom unit

Two bedroom unit

Three bedroom unit

Shared patio

Ground floor courtyard

Tempat tinggal menghadap ke dua halaman interior. Material : Beton prefabrikasi
7 Las Americas Housing Complex |
Unit-unit pada pembangunan berpenghasilan rendah ini memiliki lantai beton sederhana dan jendela ukuran penuh Fotografer : Iwan Baan

Kesimpulan:

1. PENCAHAYAAN DAN BUKAAN

Menggunakan material yang sustainable seperti kayu, dimana bangunan akan menerapkan banyak bukaan dalam memanfaatkan energi alami yang ada. Bentuk / desain bangunan juga mempengaruhi pertukaran udara di bagian dalam ruangan.

2. PENGGUNAAN MATERIAL

Pentingnya karakterisistik dari sebuah material yang akan digunakan baik dari segi harga maupun dari segi sustainabilitynya yang membawa dampak bagi bangunan.

3. KOMUNITAS

Penting untuk menciptakan ruang publik/ area komunal yang cukup demi membangun komunitas serta meningkatkan ikatan antara masyarakat sosial.

4. FASAD

Mampu menciptakan tampak yang menarik dalam aspek estetika yang tidak terlalu kompleks namun sesuai dengan tapak lokasi rumah susun.

8 Kesimpulan |

SOURCE :

https://www.archdaily.com/988059/meyerhouse-woha

https://www.meyer-house.sg/

https://www.archdaily.com/536147/heliopolis-social-housing-biselli-katchborian-arquitetos

https://www.e-architect.com/brazil/heliopolis-social-housing-in-sao-paulo

https://www.archdaily.com/960836/las-americas-housing-complex-so-il

https://www.dezeen.com/2021/04/15/so-il-builds-las-americas-affordable-housingdevelopment-in-mexico/

https://www.architecturalrecord.com/articles/15164-las-americas-housing-by-so-il

9 Sumber |

Turn static files into dynamic content formats.

Create a flipbook
Issuu converts static files into: digital portfolios, online yearbooks, online catalogs, digital photo albums and more. Sign up and create your flipbook.