Tugas A.1 - 212100158 - Shanya Jackwin

Page 1

STUDIPRESEDENPERUMAHAN BERKEPADATANTINGGI ASD2012 - Studio Desain IV : Teknologi Bangunan Tingkat Tinggi Shanya Jackwin Calvin Institute of Technology 212100158 / SEMESTER 4 A.1 ||||||| ARCHITECTURE AND SUSTAINABLE DESIGN

SENTMENAT

Kategori : Rumah Susun

Lokasi Sentmenat, Spain

Arsitek : MIRAG

Luas : 18300 m²

Tahun : 2011

Visi :

Memberikan kualitas pada keseluruhan kompleks

melalui fasad yang dinamis dan juga untuk memenuhi

kebutuhan yang diminta oleh proyek perumahan sosial.

Misi :

Fokus pada fasad yang fleksibel untuk menghindari

kekakuan perencanaan kota.

Sentmenat | 2

Fotografer : Jordi Surroca Perspektif dalam area

1 1 2 2

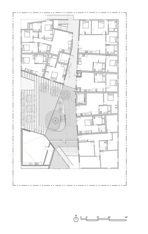
Rumah susun ini didistribusikan menjadi 4 blok berbeda seperti dalam perencanaan kota yang telah di tentukan sebelumnya bernama Can Vilar. Keempat massa ini dipertahankan dan ditambah kualitas fasadnya

Rumah susun ini terbagi menjadi 2 tipe, yaitu tipe 01 dan 02.

TIPE 01

5 Unit rumah / lantai

2 Ruang Komersial

2 kamar tidur, 1 wc, dapur dan ruang keluarga, serta fasilitas tambahan seperti balkon

TIPE 02 4

Unit rumah / lantai

3 kamar tidur, 2 wc, dapur dan ruang keluarga, serta fasilitas tambahan seperti balkon.

Denah Tipe 02
Sentmenat | 3
Denah Tipe 01

KELEBIHAN :

Setiap unit rumah memiliki balkon yang berguna untuk meningkatkan masuknya intensitas cahaya, memberi manfaat baik untuk

kesehatan (berjemur), serta berperan sebagai kanopi jendela untuk lantai di bawahnya (menghalau panas dan silau matahari menyorot langsung ke jendela).

Menerapkan area kolektif untuk penghuni dapat saling bercengkrama, bermain, dan melepas jenuh dari rutinitas sehari hari.

KEKURANGAN :

Meskipun ruang tengah / teras / taman dibiarkan terbuka dan diakses

semua orang, tapi tidak ada program

ruang mengenai aktivitas yang akan

dilakukan Sehingga area tersebut

hanya menjadi jalur sirkulasi tanpa

aktvitas tertentu yang bisa

mempengaruhi penghuni

Setiap unit memiliki jumlah kamar

tidur lebih dari satu sehingga kurang

cocok untuk mereka yang belum berkeluarga.

Ruang tengahnya terbuka dan dapat diakses oleh semua orang, dengan makna sebagai teras bersama yang terlindungi dari area luar

Perspektif Depan Site U
Sentmenat
| 4

MLK1101 SUPPORTIVE HOUSING

Kategori : Rumah Susun

Lokasi : Los Angeles, United States

Arsitek : Lorcan O’Herlihy Architects

Luas : 34000 ft²

Tahun : 2019

Visi :

Menciptakan lingkungan yang mendorong kesehatan dan komunitas, mengakui bahwa ruang sosial yang sukses datang melalui berbagai strategi terencana dan organik.

Misi :

Menggabungkan beberapa strategi desain yang

membuka bangunan ke arah jalan dan menumbuhkan

rasa kebersamaan di lingkungan sekitar

DESKRIPSI :

Rumah susun memiliki 26 unit rumah yang dikhususkan untuk para tunawisma bisa berkembang. Harganya tergolong cukup terjangkau bagi mereka yang berpenghasilan rendah

Fotografer : Paul Vu Photography Perspektif
MLK1101 Supportive Housing | 5

Perspektif mata burung

Tipologi bangunan ini menggunakan bentuk L yang memungkinkan setiap unit menerima sinar matahari dan ventilasi silang, mengurangi kebutuhan akan pemanas, pendingin, dan cahaya buatan.

Ketak teras hijau didesain lebih tinggi untuk penghuni bisa bersantai dna bersosialisasi jauh dari kebisingan jalan

Unit pada rusun ini dirancang untuk individu dan keluarga, dengan ukuran mulai dari satu hingga tiga kamar tidur masing-masing dengan kamar mandi sendiri, dan semuanya idlengkapi dengan dapur dan ruang tamu.

Penghuni didorong untuk menggunakan fasilitas bersama di ruang komunitas, seperti kelas memasak, terapi kelompok, pertemuan atau acara-acara bersama.

KELEBIHAN :

Rumah susun di rancang sangat memperhatikan segi penghawaan, cahaya, keberlanjutan, serta menumbuhkan relasi kebersamaan antar penghuni.

CROSSVENT LAT ON HEATEXCHANGER
KEYPLAN
SUMMERSOLTICE WINTERSOLT CE MLK1101 Supportive Housing | 6
SOLARCOLLECTORARRAY

SANJAYNAGAR SLUM REDEVELOPMENT

Kategori : Rumah Susun

Lokasi : Ahmednagar, India

Arsitek : Community Design Agency

Luas : 1431 m²

Source:communitydesignagencycom
Fotografer : Rajesh Vora Perspektif
| 7
Sanjaynagar Slum Redevelopment

Sanjaynagar Slum Redevelopment | 8

Rumah susun ini diperuntukan untuk mereka yang berpenghasilan rendah dan didesain memprioritaskan jumlah unit serta komunitas yang akan menghuni.

Perancang menyatakan bahwa bangunan ini tentang membangun komunitas, dimana keseimbangan terjadi antara ruang pribadi dan komunal, sehingga ikatan sosial meningkat dan manusianya dapat berkembang.

SOSIAL

Proses perencanaan dan desain melibatkan kontribusi penduduk Sanjaynagar (desain partisipatif) untuk menciptakan bangunan yang sesuai dengan penduduk desa

Bangunan diatur di sekitar delapan cluster dengan berbagai ukuran untuk meningkatkan infrastruktur sosial.

Terbuka untuk cahaya dan udara segar memasuki unit rumah.

DESKRIPSI : 1 2 3 4 5 6 7 8

Kasur dekat dapur merupakan bentuk kontribusi penduduk Sanjaynagar.

Detail denah siteplan
Denah

Selain desain, proyek ini memperhatikan kualitas konstruksinya, seperti :

Menggunakan dinding bata bertulang dengan papan vernakulllar dan sistem lempengan balok.

Mengunakan sekat bambu dan pergola sebagai alat peneduh seluruh bangunan

Melebarkan koridor untuk interaksi sosial, serta pencahayaan alami dan ventilasi yang memadai

KEKURANGAN :

Kemungkinan baju dijemur di railing cukup besar sehingga nantinya akan merusak estetika fasad bangunan.

Perspektif koridor Perspektif interior Perspektif bangunan
| 9
Sanjaynagar Slum Redevelopment Tempat pertukaran udara dan masuknya cahaya ke unit rumah. Menggunakan bahan lokal yaitu bambu sebagai peneduh. Koridor dirancang cukup lebar.

SENTMENAT

KESIMPULAN

MLK1101 SUPPORTIVE HOUSING

SANJAYNAGAR SLUM REDEVELOPMENT

2. KESEHATAN

Memberikan kualitas estetika dan fungsional pada rumah susun melalui fasad yang dinamis.

Menciptakan lingkungan yang mendorong kesehatan dengan memungkinkan setiap unit menerima sinar matahari dan ventilasi silang

3. KEBERLANJUTAN

Menciptakan lingkungan yang mendorong penghuninya mengurangi kebutuhan akan pemanas, pendingin, dan cahaya buatan.

4. KOMUNITAS SOSIAL

Mendorong terbentuknya komunitas yang saling dapat mengikat satu sama lain dengan cara menggunakan fasilitas secara bersama-sama. Contohnya, seperti kelas memasak, terapi kelompok, pertemuan mendadak, dan acara-acara bersama lainnya

FASAD 1.
Kesimpulan | 10

Turn static files into dynamic content formats.

Create a flipbook
Issuu converts static files into: digital portfolios, online yearbooks, online catalogs, digital photo albums and more. Sign up and create your flipbook.