

La búsqueda formal y el dominio tipológico
Carlos Nárdiz Ortiz Director Revista de Obras Públicas.
Conocí a Javier Manterola cuando empezó a dar clases en la Escuela de Madrid en el curso 1976/77.
Aprobé la asignatura y repetí asistiendo a clase en el curso siguiente, después de terminada la carrera. Sus clases eran muy exhaustivas sobre los puentes de hormigón pretensado (puentes rectos, puentes oblicuos, puentes curvos) y partía siempre del comportamiento resistente que dibujaba en el tablero, y lo complementaba con que aprendiésemos a dimensionarlos y a comparar su coste. Las clases se acompañaban con diapositivas, pero no se parecía a las enseñanzas de su antecesor y maestro, Carlos Fernández Casado, a quien le gustaba, según me contaron, fundamentalmente que aprendiesen los alumnos a ver puentes, con gran despliegue de diapositivas. En esos años, Javier Manterola llevaba 13 años en la oficina de Carlos Fernández Casado y sus realizaciones en hormigón pretensado todavía no habían dado el salto hacia la búsqueda formal que presidirá sus puentes a partir de los años 90, a pesar del extraordinario puente atirantado de Sancho el Mayor (1978), proyectado con Leonardo Fernández Troyano. Tampoco se había introducido en los puentes metálicos y
en los puentes mixtos, con los que producirá después sus principales aportaciones estructurales y formales. Le teníamos por calculista, desde la experiencia de los puentes franceses y alemanes, pero no por un gran proyectista o diseñador. Habíamos visitado el puente de Barrios de Luna en 1983, nada más inaugurarse, y sabíamos de su atrevimiento estructural, en donde nunca desligaba los aspectos estructurales de los constructivos.
En las cuatro grandes etapas que establecía Miguel Aguiló de su obra (Fundación Esteyco, 2004), la primera se correspondía con edificios y puentes de hormigón pretensado, con el paso superior de Cuatro Caminos como primera referencia, junto a otros pasos superiores. En la segunda etapa se centraba, desde finales de los 70, en los puentes pórtico y los puentes atirantados, con el puente de Barrios de Luna como gran referencia, con el que obtuvo el récord mundial de puentes atirantados. Será en los años 90 cuando recuperará el arco y la celosía, con la aproximación a los problemas estéticos que plantean los puentes urbanos, como en el caso del puente de Euskalduna. La cuarta etapa, a partir de


finales de los años 90, se corresponde con el dominio tipológico y el enriquecimiento formal, con el aprovechamiento de las formas curvas, de los arcos tubulares, como el puente sobre el río Escudo, en Cantabria. En esta época, que se continuará en el nuevo siglo, usará todas las tipologías, buscando el diseño y el espacio, con pasarelas separadas que cuelgan de los cables de atirantamiento, o la preocupación por la iluminación de sus puentes, como el cuarto puente sobre el río Ebro, en Logroño. El puente de la Constitución de 1812 de acceso a Cádiz será su colofón.
La alta velocidad le ofreció la posibilidad de renovar sus puentes, por las consecuencias estructurales del frenado y los efectos dinámicos de la velocidad, con
tipologías clásicas en arco, como los viaductos sobre los embalses de Contreras y de Alcántara, con los que obtendrá nuevos récords de luz; o con nuevas tipologías, derivadas de su invención, como el que atraviesa el Ebro en Aguilar del Ebro, cerca de Zaragoza, con una viga tubular en cajón, que recuerda al Puente Britania, en cuyo interior circula el ferrocarril.
Escribió varios artículos en la Revista de Obras
Públicas, y en la segunda mitad de los años 90 le preocupaba el futuro de los puentes por la eclosión de los arquitectos en puentes urbanos: “El enorme desarrollo producido en la tecnología de los puentes les ha hecho más vulnerables. El puente se convierte en un objeto y, en el peor de los casos, en puentes-objeto.
Esta situación ha permitido la incursión de otros profesionales en el mundo de los puentes, profesionales entrenados en los problemas formales, y los resultados de su presencia han sido diversos”. Él mismo buscará sus propias alternativas, apoyadas en el entendimiento de las formas resistentes (Revista de Obras Públicas, n.º 3336. 1997)
En este número extraordinario de la Revista, que ha coordinado Antonio Martínez Cutillas, se insiste en la labor de Javier Manterola como proyectista de puentes —cuyos conocimientos recogió en los seis tomos de apuntes de la Cátedra de Puentes y en los dos tomos de Puentes, apuntes para su diseño, cálculo y construcción (2007)—, pero Javier ha sido
mucho más, aunque sus escritos, sin bibliografía, mayoritariamente los haya dedicado a explicar las razones proyectuales de sus puentes desde la estética y el comportamiento resistente.
Le preocupó la arquitectura, que conocía desde sus primeras colaboraciones con Sáenz de Oiza en Torres Blancas y en el Banco de Bilbao en Madrid, que luego continuarán con Lamela en las Torres de Colón o, más tarde, con su amigo Rafael Moneo en la estación de Atocha y en el Kursaal, de quien recogemos en la Revista una entrevista.
Teorizó sobre las relaciones entre la estructura resistente y la arquitectura actual en dos magníficos artículos en la revista Informes de la Construcción

(números 452-456, vol. 50. 1998). En una conferencia en la Fundación COAM, decía: “Yo soy de la opinión firme de que, en arquitectura, el concepto de la resistencia, de la estructura resistente, es tan importante en su propia configuración, y me parece que podría llegar a ser otra cosa si se aceptase ese dicho de Zaha Hadid de que siempre habrá un ingeniero que lo sostenga” (Arquitectura e Ingeniería, Fundación COAM, 2007).
Hay muchas maneras de entender lo resistente y hay muchas maneras de darle forma. Decía: “Unir estos dos conceptos es sugestivo y, sin embargo, no está bien. Lo resistente no tiene forma, como tampoco la tiene la hermosura… Lo que sí tiene forma es un puente o una estructura, lo cual depende de su función, del lugar donde se instala. Y, desde luego, de la manera de entender lo resistente del autor” (Ingeniería y Territorio, n.º 81. 2008).
La relación entre la estructura resistente y la forma fue el título de su discurso en la Real Academia de Bellas Artes de San Fernando, en donde reflexionaba sobre esta relación, tanto en la arquitectura como en los puentes, las presas y las carreteras. Era, sin embargo, crítico respecto a la relación de los puentes con el paisaje: “No existe una relación biunívoca puente-terreno y la interpretación que del paisaje hace el puente, aunque es inevitable, es muy difícil y hermosísima cuando se realiza bien”.
Cuando visitamos algunos puentes de Manterola, vemos que hay un problema de escala, como si la solución tipológica y constructiva se hubiera impuesto al lugar. Sus argumentos hay que buscarlos en las reflexiones que hacía en sus escritos, y siempre era tremendamente generoso ante cualquier petición de colaboración. En los últimos años de su vida, se vio
en la necesidad de explicar su obra y darle un sentido estético, más allá de lo constructivo, como en sus libros La obra de ingeniería como obra de arte (2010), Historia de los puentes (2017), Consideraciones sobre Estética, Arquitectura e Ingeniería (2023).
La música, como nos explica su hijo, Carlos Manterola, en este número de la Revista, fue otra de sus pasiones. Admiraba a Beethoven, pero también a Bach y a otros compositores clásicos. La música le ayudaba a estar consigo mismo cuando proyectaba. Otra de sus pasiones era la escultura, visitando museos en sus viajes de verano o recorriendo exposiciones de arte. En un artículo que escribió en la revista Ingeniería y Territorio, empezaba diciendo: “Siempre he pensado que la relación de la ingeniería con la escultura es más estrecha que la que aparentemente existe entre la ingeniería y la arquitectura” (n.º 78. 2006).
Cuando presenté en el Colegio el libro Entre la Arquitectura y la Ingeniería 6+6 (2017), estaban sentados juntos Javier Manterola y José Calavera. Ambos nos han dejado recientemente y estamos perdiendo a los ingenieros que han sido referencia en nuestra profesión. A ellos se acaba de añadir Javier Rui-Wamba, como ingenieros proyectistas.
Cuando miramos cómo nuestras Escuelas se están vaciando de alumnos, nos debemos preguntar por la ausencia de referencias para los nuevos alumnos. Es como si la profesión se nos estuviera escapando de las manos. Este número extraordinario sirve para que quienes lo lean miren más allá de una obra proyectada y construida, fundamentalmente de puentes, pero también de ingenieros de caminos que se enriquecían con otras aficiones que mejoraban sus obras, con una actitud generosa de reflexiones que nos permite entenderla mejor.

Una conversación pausada en torno a Javier Manterola
Javier Manterola ha liderado la generación más brillante que ha existido en ingeniería estructural en España, formada, entre otros, por José Antonio Fernández Ordóñez, Julio Martínez Calzón, Juan José Arenas y Leonardo Fernández Troyano y heredera de la labor docente y profesional que inició José Eugenio Ribera y continuó Eduardo Torroja y Carlos Fernández Casado. Esta generación ha llevado el campo de las estructuras a un nivel tal que internacionalmente es reconocida como una auténtica Escuela Española de Ingeniería Estructural, que participa de forma muy activa en las grandes obras que se están realizando por todo el mundo, tanto en la fase de proyecto como de construcción.
Javier Manterola dejó una gran obra pensada, realizada y escrita, y se han publicado también varios libros y artículos sobre su trayectoria personal y su obra. En vida recibió todos los premios que un ingeniero puede tener tanto a nivel nacional como
internacional; era algo que agradecía y que le orgullecía «por provenir de sus compañeros de profesión». Todavía recordamos con emoción y alegría el acto de la concesión del título de Colegiado de Honor en el que sería su último homenaje en vida, pocas semanas antes de fallecer, y que, para él, constituyó una oportunidad para despedirse con agradecimiento de sus compañeros de profesión.
Por todo ello, el objetivo que nos hemos planteado para la coordinación de este número monográfico de la revista dedicado a Javier Manterola ha sido realizar una aproximación a su figura por parte de aquellas personas que han convivido y han estado próximas a él en distintas facetas vitales y profesionales: su vida, su obra proyectada, su obra construida, su labor docente e investigadora, su persona… Aunque esta proximidad puede hacer perder un poco de perspectiva, sirve, sin lugar a dudas, como un primer paso para seguir realizando un estudio más amplio y crítico de su obra.


Su hijo Carlos escribe desde la perspectiva familiar. Leonardo Fernández Troyano —como amigo, compañero y socio fundador junto a su padre, Carlos Fernández Casado, de la Oficina de Proyectos donde Javier Manterola desarrolló toda su actividad profesional— realiza un estudio crítico de las primeras obras conjuntas.
Miguel Aguiló, amigo, compañero, en la Academia de Bellas Artes de San Fernando, ha llevado a cabo en su carrera una gran labor crítica de las obras de ingeniería y, entre ellas, las de Javier Manterola. Como compañero de viaje, nos desvela reflexiones profundas y sugerentes de la obra de Javier a partir de una visita que ambos realizaron juntos a Micenas.
Rafael Moneo, arquitecto y amigo desde la juventud, accedió a ser entrevistado y habló sobre el entrelazamiento de sus vidas profesionales, ya que ambos coincidieron y colaboraron en varias obras arquitectónicas emblemáticas; esto nos ha permitido una aproximación a la intervención de Javier en obras de arquitectura.
Miguel Angel Astiz, profesor universitario, compañero y colaborador en su oficina, desglosa, como
Javier Manterola ha liderado la generación más brillante que ha existido en ingeniería estructural en España
continuador en la cátedra de Puentes, la labor docente e investigadora de Javier.
José Romo, Javier Muñoz-Rojas y Conchita Lucas, como alumnos e ingenieros que han desarrollado la faceta de proyectistas y constructores de puentes, escriben sobre el impacto de la vida y la obra de Javier. Javier Torres, profesor universitario y amigo, ha escrito una reflexión muy personal que sitúa la obra de Javier Manterola en el contexto del arte vasco y navarro.
Juan José Jorquera, alumno y profesor universitario, conocedor de la obra de Javier, realiza una revisión contextual muy completa y crítica de su obra y de su forma de hacer
Jiri Strasky, uno de los proyectistas de puentes más brillantes y contemporáneo de Javier Manterola, homenajea y hace un reconocimiento de su obra a nivel internacional.
Esperemos que este número que presentamos pueda satisfacer el objetivo planteado y que sirva como una «conversación pausada» en torno a la persona de Javier Manterola, como esas que a él tanto le gustaba mantener.


1
La búsqueda formal y el dominio tipológico
Carlos Nárdiz Ortiz
6
Una conversación pausada en torno a Javier Manterola
Antonio Martínez Cutillas

Sumario
36
Con Manterola en Micenas, donde el tiempo se detiene
Miguel Aguiló Alonso
Edita: Colegio de Ingenieros de Caminos, Canales y Puertos
La labor investigadora y docente de Javier Manterola
Miguel Ángel Astiz Suárez

Donde nacen los puentes
Carlos Manterola Jara 26 Biografía profesional del ingeniero
Javier Manterola Armisen
Pere Macias Arau
Isabel Pardo de Vera Posada
Fernando Sáenz Ridruejo
José Luis Manzanares Japón José Luis González Vallvé
COMITÉ EDITORIAL Y DE REDACCIÓN
María Luisa Domínguez González
Rosario Cornejo Arribas
José Romo Martín
Francisco Esteban Lefler
Francisco Hijós Bitrián
César Lanza Suárez
José Manuel Vassallo Magro
Rosa Arce Ruiz Ana Rivas Álvarez
Domínguez Herrera
54
Javier Manterola y Rafael Moneo: conversación en torno a dos caminos entrelazados
Antonio Martínez Cutillas


José Romo Martín Caminos entrelazados

Leonardo Fernández Troyano 66
En recuerdo de Javier Manterola
Javier Muñoz-Rojas Fernández
Diseño e innovación en la obra de Javier Manterola
86
Javier Manterola, una aproximación a su persona
Antonio Martínez Cutillas
98 Un ingeniero valiente
Conchita Lucas Serrano
106 Trazos de aire
Javier Torres Ruiz
114
Javier Manterola: invariantes y transiciones
Juan José Jorquera Lucerga
126
Profesor Javier Manterola Armisén, in memoriam
Jiri Strasky





Gestión de Proyectos y Comunicación
Donde nacen los puentes
Una mirada a la vida de Javier Manterola Armisén
Preparando este artículo, me ha llenado de emoción revisar los cuadernos y libretas de mi padre. Pasear la mirada por sus páginas es adentrarse en su parte más íntima. Siempre iba con un cuaderno en la mano, en el bolsillo, y en la mesa. Llegaba de la oficina a casa, se cambiaba de calzado, nos saludaba a todos, cogía su cuaderno, se sentaba en el salón y se ponía a dibujar. Escuchaba música clásica y proyectaba. Gran parte de los puentes que ha diseñado en su vida, los ha comenzado en casa, en sus cuadernos de tapa rígida. Sus libretas son verdaderas joyas. Varias decenas de ellas son testimonio vivo de su evolución como ingeniero y como persona. Diseños de pilas y de tableros intercalados con pequeños cálculos; el número de teléfono de alguien al que llamar; una carta al ministro de Obras Públicas; pensamientos políticos y filosóficos; cartas a sus amigos; ideas que le suscitan otras obras de ingeniería y de arquitectura; una cita; los resultados de unas elecciones generales; ideas para el siguiente
artículo… En definitiva, un verdadero diario de lo que realmente llenaba su vida, la ingeniería, los puentes y sus pensamientos.
Javier Manterola Armisén nace el 17 de junio de 1936 en Pamplona, en la casa familiar, el número 12 de la plaza del Castillo.
Su padre, Pedro Manterola Escodin, fue el apoderado general de la sociedad Irati, dedicada, entre otras cosas, a la producción de energía hidráulica, y su madre, Pilar Armisén

Huici, era una mujer fuerte, de grandes convicciones y gran aficionada a la lectura y el arte, en especial a la novela negra y al ajedrez. Pasa su juventud en su Pamplona natal yendo al colegio y jugando a indios y vaqueros. «Me encantaba. Yo siempre era el vaquero, con mis pistolas y cartucheras, que no me quitaba ni para dormir. En invierno, meterse en la cama era toda una aventura en una casa solo calentada por braseros». Estudia en los Hermanos Maristas, donde destaca como buen estudiante, y por las tardes, tras tomar la merienda, va con sus amigos y hermanos (Cándido, José Miguel, Pedro, Carlos y Maribel) al río Arga donde, entre otros juegos, disfruta tirando piedras planas al agua para hacer el chipi-chapa, que, años más tarde, fue su inspiración para diseñar el puente de los Poetas de Zamora.
Disfruta del deporte, especialmente el futbol, como centro izquierda en el equipo del colegio y llega a entrenar en los juveniles del Osasuna. «Hasta llegué a pensar que me podría dedicar profesionalmente al futbol. Fue

sueño de juventud. Mi padre me quitó la idea rápidamente». En esos tiempos era también muy religioso y llegó a plantearse entrar en el seminario.
Terminado el bachillerato, Javier Manterola piensa en estudiar Ingeniería Industrial en Bilbao; sin embargo, su padre le animó a estudiar la carrera «más difícil del momento», Ingeniería de Caminos, tomando como ejemplo a su tío abuelo Serapio Huici, ingeniero de caminos, emprendedor, empresario, cofundador de Cementos Portland, y amigo de Ortega y Gasset.
«El tipo de razones que te llevan a elegir una profesión nunca son exactas del todo. Cuando estudiaba el bachillerato en el colegio, se me daban bien las matemáticas. Y el dibujo siempre ha estado presente en
mi vida. Además, era capaz de esforzarme mucho. En aquella época, este tipo de cosas eran importantes para estudiar Ingeniería de Caminos. Digamos que tenía la aptitud».
A los 17 años marcha a Madrid para preparar el ingreso en la Escuela de Caminos. Manterola recordaba que, estando en la estación de autobuses acompañado de su primo José Ángel y de un amigo, que también iban a estudiar a Madrid, la madre de este último comentó: «¡Ay Javier, qué carrera tan difícil has elegido! Para cuando tú ingreses en Caminos, estos ya serán boticario y médico». Eso le hizo sentir mucho respeto por lo que iba a estudiar. Esa idea se reforzó porque en la Academia
Luz de preparación para el ingreso, todos los días les ponían siete u ocho problemas para resolver. Se pasaba toda la tarde trabajando
como «una bestia» y resolvía uno o ninguno. No pasaba lo mismo con los otros compañeros de la Academia, que en su mayoría llevaban los problemas resueltos y además les daba tiempo de disfrutar del Madrid de la década de 1950.
Esto le hizo dudar de sus capacidades y aptitudes para la carrera. Tanto es así que pensó que en navidades les diría a sus padres que invirtieran el dinero en «otra cosa». Sin embargo, antes de volver a casa, algo le hizo sospechar que quizá sí podía con ello. Se instala en la Residencia Montserrat, cercana a la glorieta de San Bernardo. Un año después se traslada a la Residencia Loyola, en el barrio de Argüelles: «Yo estaba en un colegio mayor, el Loyola, de jesuitas; ahí había estudiantes de todas las carreras y eso, dentro



del ambiente represivo de la época, abría un poco ‘las ventanas’, aunque tampoco mucho, pues los jesuitas te cercaban para que no cayeras en la tentación».
Estudiaba los siete días de la semana, reservando algunos momentos para escuchar música clásica y filosofar con su primo José Ángel y solo descansando las tardes de los domingos. Así fue, como en un guateque, conoció a la que sería su compañera de vida, María Dolores Jara Pan, Lolacha.
En 1957 ingresa en la Escuela de Caminos, Canales y Puertos, licenciándose en 1962, a los 25 años, con el número 6 de su promoción.
En la Escuela, recibe las enseñanzas de grandes e ilustres profesores del claustro, entre los que se encuentran Eduardo Torroja, José Entrecanales, José María Aguirre y
Carlos Fernández Casado, su gran maestro y referente. Pronto se decanta por las estructuras, de las que posteriormente diría que no son solo elementos técnicos que resuelven un problema, sino que también son formas con sentido, expresiones culturales y manifestaciones del pensamiento humano. Para él, una estructura era algo más que un conjunto de piezas que soportan cargas: era una obra de autor que debía ser resistente, tener belleza, lógica y emoción. La estructura debía ser honesta, sencilla y eficiente, como expresión de respeto por la sociedad y el entorno.
«La carrera fue bien y había profesores de mucho prestigio que me abrieron los ojos y la mente. En tercero de carrera empecé a trabajar en Huarte y el dinero me servía para que mi padre no tuviera que enviar tanto.
Trabajaba con don Carlos y estuve haciendo edificios y naves industriales, pero es una cosa que la aprendes enseguida y yo tenía muchas inquietudes; quería hacer cosas nuevas y tenía mucho interés en investigar». «Con don Carlos, el puente se te hacía próximo; los vivía con tal intensidad que transmitía ese conocimiento profundo, ese que nace del conocimiento de aquello que se ama, como decía Leonardo Da Vinci.»
Permanece dos años más en la Oficina Técnica de Huarte y Compañía, donde desarrolla labores de análisis y cálculo estructural. En este periodo proyecta la estructura y participa en el diseño constructivo de dos edificios en Pamplona, obra de los arquitectos Redón y Guibert: la iglesia del barrio de la Chantrea y las Torres Hisa.
Asimismo, interviene en uno de los hitos de la arquitectura contemporánea en España: el edificio de Torres Blancas, un edificio residencial de 23 plantas proyectado por el arquitecto Francisco Javier Sáenz de Oiza, excelente ejemplo de arquitectura organicista y brutalista.
La singularidad formal del proyecto exigía la resolución de complejos problemas estructurales, tanto por la disposición espacial como por las cargas derivadas de su configuración cilíndrica y orgánica. «Pasábamos muchas tardes reunidos Félix Huarte, Sáenz de Oiza, y yo, diseñando la estructura del edificio. Yo había aprendido lo que era una losa rectangular, una circular, pero aquí teníamos losas de formas muy variadas. Tuve que estrujarme mucho la cabeza. Hablábamos y hablábamos del edificio, muchas digresiones que no iban a ningún lado, pero otras sí, las importantes. Aprendí mucho diseñando esa estructura». Posteriormente, Sáenz de Oiza vuelve a contar con Manterola para el proyecto estructural del edificio del Banco de Bilbao, situado en el complejo AZCA de Madrid. Esta línea de trabajo, centrada en la ingeniería estructural aplicada a edificaciones de alta complejidad arquitectónica, se convierte en una constante en su trayectoria profesional hasta 1978. Tras casi cuatro años de ejercicio en Huarte, Javier Manterola se incorpora al Instituto Eduardo Torroja de la Construcción y del Cemento iniciando una nueva etapa centrada en la investigación y el desarrollo científico en el ámbito de las estructuras. Se dedica en cuerpo y alma a investigar el hormigón armado, sus límites, cuándo y cómo se deforma y se rompe, cómo le afectan las temperaturas, cómo evoluciona en el tiempo y de qué manera su comportamiento
se puede aprovechar al máximo en el diseño de estructuras más eficientes. Pero donde Manterola encuentra su pasión es en los puentes. «Es la estructura por



excelencia: no tiene fachada ni envolvente, no oculta su función. Todo lo que se ve es estructura, y todo lo estructural debe responder a una necesidad real. Eso lo convierte en un campo de estudio y creación muy exigente, pero también muy honesto desde el punto de vista del ingeniero. El puente es estructura pura. No hay trampas. Es ingeniería en estado esencial».
Cuando Fernández Casado le llama, Manterola estaba totalmente metido en investigación de estructuras y muy contento. Dudó mucho, pero finalmente poder diseñar, o proyectar, como se decía antes, era algo que le atraía enormemente y eso acabó decidiéndole. «Diseñar y trabajar con Fernández Casado era algo que no podía dejar pasar».
Don Carlos crea la oficina de proyectos Carlos Fernández Casado a finales de 1963 junto con dos jóvenes discípulos —Leonardo Fernández Troyano, su hijo, y Javier Manterola Armisén— especializada en el desarrollo y supervisión de proyectos de estructuras, especialmente puentes.
Gracias a don Carlos y a sus relaciones nacionales e internacionales, tuvieron acceso a material técnico de todas partes del mundo.
«Entonces descubrí la cantidad de información que se puede sacar de una revista técnica alemana cuando no se tiene ni idea de alemán».
Y no solo eso, sino que: «Don Carlos traía proyectos que de otra forma nunca habrían llegado a nuestras manos, que sobrepasaban mi capacidad y eso era bueno». Al inicio estaban completamente solos trabajando como proyectistas. Sus únicos clientes eran Huarte y Cía. y el Ministerio de Obras Públicas. Poco a poco aumentó la

plantilla de la oficina: «Nos compramos un ordenador, un IBM 1620, y creo que fuimos la primera empresa tan pequeña que compró un ordenador grande, bueno, grande para la época».
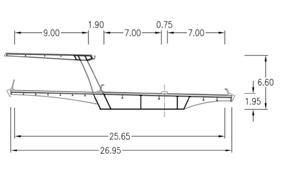
En 1968, con 32 años, Javier Manterola diseña su primer puente. Se trata del viaducto de Torre Baró, en la autopista de Barcelona a Gerona. Tiene una longitud de 400 m y una anchura de 15,4 m, para dos calzadas.
A partir de aquí desarrolla toda su carrera profesional diseñando puentes y estructuras en diversos ámbitos y modalidades.
La variedad de tipologías que desarrolla en sus proyectos se suceden ininterrumpidamente. De los más de 150 proyectos, tanto nacionales como internacionales, citaré 10
puentes en España, que son muy significativos en su carrera profesional:
1. El puente Carlos Fernández Casado sobre el embalse de Barrios de Luna (1983), récord mundial en puentes atirantados y récord en insomnios de Manterola.
2. El puente de Euskalduna en Bilbao (1999), una celosía curva que trabaja simultáneamente a torsión y flexión, una solución estructural innovadora en su momento.
3. El puente para el AVE de Osera del Ebro en Zaragoza, (2001), una oportunidad para reinterpretar el concepto de viga de celosía.
4. El cuarto puente sobre el río Ebro en Logroño (2003), ejemplo de solución estructural que armoniza funcionalidad, estética e innovación, en un entorno urbano.
5. La pasarela del Voluntariado sobre el Ebro en Zaragoza (2008), un «diseño resistente que se manifiesta de manera estricta».
6. El puente del embalse de Contreras en Cuenca (2009). Viaducto que ostentó el récord europeo como puente ferroviario de arco de hormigón con mayor luz, alcanzando 261 m.
7. El puente de los Poetas en Zamora (2013), cuyo diseño se fraguó sesenta años antes jugando al chipi-chapa (hacer la rana) en el río Arga.
8. El puente de la Constitución de 1812 sobre la bahía de Cádiz (2015), uno sus puentes más emblemáticos y que cuenta con el mayor gálibo de Europa.
9. Y el puente sobre el embalse de Alcántara, en Cáceres (2016), que podríamos considerar como su última gran obra, que cuenta
con un con un arco de 324 m de luz de una belleza extraordinaria.
10. El puente sobre el río Narcea, en Asturias, (2016) donde primó la integración de la estructura en el bello entorno asturiano.
En su construcción como ingeniero no solo hubo mucho conocimiento de la profesión, de lo resistente, de cálculo, sino también de arte, música, filosofía y otras disciplinas que le aportaron conocimientos en los que se apoyó para diseñar.
A lo largo de su carrera recibió gran número de premios tanto a nivel personal como por sus proyectos, entre los que destacamos:
• Colegiado de Honor del Colegio de Caminos, Canales y Puertos de España en el año 2024;
• Premio de Ingeniería Civil por la Fundación José Entrecanales Ibarra en el año 2020;
• Medalla de Oro del Círculo de Bellas Artes en Madrid, en 2010;
• Premio al Mérito de la Asociación Internacional de Ingeniería Estructural IABSE en 2006 en Budapest;
• Ingreso en la Real Academia de Bellas Artes de San Fernando en Madrid en el 2006;
• Premio Príncipe de Viana de Cultura. Pamplona, 2005;
• Premio Nacional de Ingeniería, en su primera edición, otorgado por el Ministerio de Fomento de España en el año 2001;
• Medalla de Oro de la Federación Itnal. del Pretensado (F.I.P.) en Londres, en 1996.
Igualmente ha dejado varios libros:
• Consideraciones sobre Estética, Arquitectura e Ingeniería. (2023). Colegio de Ingenieros de Caminos, Canales y Puertos. Colección Ciencias, Humanidades e Ingeniería;
• Javier Manterola. Ingeniero de Caminos. Vida, obra y pensamiento. 2021. Doce Calles;
• Historia de los Puentes. 2018. Colegio de Ingenieros de Caminos, Canales y Puertos. Colección Ciencias, Humanidades e Ingeniería (96);
• El oficio de ingeniero. 2016. Ediciones Arte y Estética. Círculo de Bellas Artes. Madrid.
• La obra de Ingeniería como obra de arte. 2010. Fundación Arquitectura y Sociedad. Laetoli.
• Relación entre la Estructura Resistente y la Forma. 2006. Real Academia de Bellas Artes de San Fernando. Discurso de acceso.




Puente para el AVE de Osera del Ebro
Récord mundial en puentes atirantados y récord en insomnios de
Celosía curva que trabaja simultáneamente a torsión y flexión.
Oportunidad para reinterpretar el concepto de viga de celosía.
Solución estructural que armoniza funcionalidad, estética e innovación, en un entorno urbano.

del Voluntariado
Pasarela peatonal, diseño resistente que se manifiesta de manera estricta.

Viaducto de Contreras
Ostentó el récord europeo como puente arco de hormigón de mayor luz.

Puente de los Poetas
Su diseño se fraguó sesenta años antes jugando al chipi-chapa (hacer la rana).


de la Constitución
Uno sus puentes más emblemáticos y que cuenta con el mayor gálibo de Europa.

Puente sobre el embalse de Alcántara
Su última gran obra. Arco de 324 m de luz de una belleza extraordinaria.
Integración de la estructura en el bello entorno

• Puentes, apuntes para su diseño, cálculo y construcción. 2006. Colección Escuelas. Tomos I y II. (1102 páginas).
• Pensamiento y obra. 2004. Fundación Esteyco. España.
A ello hay que añadir numerosos artículos. Siempre quiso ser profesor y enseñar. En 1975 Carlos Fernández Casado se jubila y la cátedra de Puentes queda vacante. Manterola se presenta y queda en primer lugar. (Era julio de 1976). «La mejor mesa para el estudio es una puerta lisa sobre dos borriquetas. Ahí preparé la oposición. Llegaba a casa del trabajo hacia las ocho y media, cenábamos y luego me ponía a estudiar unas 3 o 4 horas. Los fines de semana al completo». «Treinta y cinco promociones de ingenieros de caminos hemos tenido la suerte de recibir las enseñanzas de Javier, y algunos privilegiados, entre los que me cuento, hemos podido aplicarlas en nuestro trabajo profesional. Y, seguramente, quienes no hayan tenido la oportunidad de construir alguno, mantendrán tan vivo el cariño trasmitido por su profesor hacia los puentes como el primer día. No debe de ser sencillo combinar rigor y cariño, pero él lo conseguía: sus análisis críticos de los puentes construidos eran implacables y, a la vez, trasmitían respeto y admiración», comenta Miguel Aguiló, gran amigo de Javier. «Me gustaba enseñar. Había alumnos buenísimos, inteligentísimos, bien formados y te hacían unas preguntas muy complicadas, me buscaban las vueltas y así debía
ser. Yo aprendí mucho de ellos. Porque tienes que tener muy claros los conceptos para poder explicarlos bien y eso te hace penetrar mucho en el asunto que estás enseñando».
Javier Manterola accede como ingeniero miembro de la Real Academia de Bellas


Artes de San Fernando en 2006, en la sección de Arquitectura. Su discurso de ingreso versa sobre la «Relación entre la estructura resistente y la forma. Notas en torno a la valoración estética de los puentes» y es contestado por un arquitecto, Antonio Fernández Alba. La estética en la ingeniería es un tema recurrente en él, ha escrito mucho sobre cómo hay que mirar las obras de ingeniería. «Primero hay que configurar el propio entendimiento y después mirarlos, mirarlos y mirarlos». Mi padre era un enamorado de su profesión, su familia, la música y del dulce. …de su profesión, ya hemos hablado. …de su familia. Conoce a Lolacha en un guateque y a partir de ahí comienzan a salir; por supuesto, siempre con carabinas. Mi madre iba con su queridísima amiga Mariu y mi padre llevaba a algún compañero de preparación. Y así paseaban los cuatro por las calles de Madrid. En esos tiempos, mi madre pasaba los veranos en Oleiros, un pequeño pueblecito de La Coruña y mi padre le enviaba cartas todos los días y en el sobre ponía «Para Lolacha, la más guapa de Oleiros». Incluso le pidió que se escribieran en el correo de la mañana y el de la tarde. Mis padres se casan en 1963 y al año siguiente nací yo; a los tres años, mi hermano Santi y a los siete, mi hermana Lolacha. Los veranos, mi madre y él cogían el coche y se iban a Europa a ver puentes y museos, puentes y museos. A ver los puentes con los que él aprendió la profesión. Supongo que
Era un hombre íntegro, de fuertes principios, un padre excelente, severo cuando tenía que serlo, y cariñoso, cuando tocaba
por esto mi padre siempre pensó que uno de los mayores reconocimientos que pudo tener en la vida era que un alumno que tuviera un problema, encontrase la solución viendo uno de sus puentes.
Tenía un sentido muy fuerte del deber y de la responsabilidad. Era un hombre íntegro, de fuertes principios, un padre excelente, severo cuando tenía que serlo, y cariñoso, cuando tocaba. Siempre fue un ejemplo de constancia, tesón y tenacidad. «Y con eso llegarás a donde te propongas. Siempre he pensado que hay que enfrentarse a los problemas; aunque creas que no puedes, sí puedes. Te pones, profundizas en el conocimiento, te enfrentas a él; nunca te des por vencido y si algo no te sale, vuelve y vuelve hasta que lo consigas. Y siempre arriesgándote. Si no te arriesgas, muchas veces no llegas», decía. Aunque nos dedicase poco tiempo, siempre lo hacía con intensidad y era suficiente. Su mirada lo decía todo. …de la música. La música fue otra de sus pasiones. Empieza muy pronto, hacia
los 15 años, escuchando Scheherezade de Rimski-Kórsakov, que le produce una de sus primeras experiencias musicales intensas, Tchaikovski…. La música le proporcionaba un estado de recogimiento e intimidad emocional. Disfrutaba de piezas melancólicas y delicadas, que le ayudaban a «estar consigo mismo». Henry Purcell con El Lamento de Dido y Eneas, las óperas de Vivaldi; Händel y Gluck; La Creación y la Misa in Tempore Belli de Haydn; Mozart y Beethoven, que reconoce como un compositor fundamental en su formación musical. «Una vez que entras en Beethoven, te quedas. Yo me quedé mucho tiempo».
Durante una temporada, escuchó exclusivamente a Bach. Todas sus obras, pero, sobre todo, La Pasión según San Mateo, y utilizaba su música como una especie de «filtro de calidad» para sus propias ideas creativas: «Si mis ideas resisten la comparación con Johann Sebastian Bach, es que voy por buen camino». Comentaba que muchos ingenieros admiran a Bach por su precisión, estructura
matemática y belleza formal. Lo considera un modelo de equilibrio entre lógica y emoción. Brahms, Prokófiev, Bartók, Héctor Villalobos y Erik Satie, con las Gymnopédies, que descubrió tarde, pero le llegaban al corazón, sobre todo en sus últimos años, donde le pedía a su nieto Gustavo que se las tocara al piano.
…del dulce. Siempre fue su perdición. De recién casados, mis padres salieron a cenar a un restaurante y mientras que mi madre tomó primero, segundo y postre, lo acostumbrado, mi padre tomó postre, postre y postre. Era tal su devoción por el dulce que cuando salíamos a comer en familia, pedíamos tres postres cada uno, eso sí, en un plato: un hojaldre de crema y nata acompañado de un tocinillo de cielo y un par de bolas de helado como bajativo.
Mi padre tuvo una vida plena, dedicándose a lo que más le gustaba. Fue un hombre justo, integro, y perseverante, y todo eso se transluce en sus obras. Mi padre murió el 12 de mayo de 2024 en Madrid.


Biografía profesional del ingeniero Javier Manterola Armisen
Desde su origen hasta el puente Ingeniero Carlos Fernández Casado
A Javier Manterola Armisen terminó la carrera de ingeniero de caminos, canales y puertos en 1962. Dos años antes de terminar, empezó a trabajar por las tardes en la oficina técnica de Huarte y Cía., empresa constructora creada por Félix Huarte que, como Javier Manterola, era de origen navarro, lo cual fue un salvoconducto, innecesario en su caso, para entrar en esa empresa.
En la Escuela de Ingenieros de Caminos, Canales y Puertos conoció a Carlos Fernández Casado (Javier Manterola le llamó siempre don Carlos, y así le llamaremos en este artículo), catedrático de Puentes de Fábrica en dicha Escuela; más adelante, tuvo contacto con él en la oficina técnica de la constructora Huarte y Cía., que dependía de don Carlos y donde empezó a trabajar.
Terminada la carrera, pasó a trabajar a tiempo completo como ingeniero en dicha oficina, donde se dedicaba principalmente a proyectar estructuras de edificios.
Ahí empezó su relación con el arquitecto Francisco Sainz de Oiza, también navarro, con el que colaboró en las estructuras de algunos edificios proyectados por este arquitecto, que tenía una estrecha relación con la empresa Huarte y Cía. De esta colaboración hay que destacar el edificio Torres Blancas en Madrid, promovido por Juan Huarte, copropietario de la empresa, que tenía un gran interés por el arte en general y por la arquitectura en particular, y que, como promotor, siguió con gran interés el proyecto y la construcción de ese edificio. El proyecto se inició con conversaciones entre Sainz de Oiza y don Carlos, y muy pronto se incorporó Javier Manterola, que luego llevó a cabo el desarrollo de la singular estructura, formada principalmente por losas de hormigón de formas irregulares y pantallas de borde. La estructura de los discos de remate del edificio los proyectó Javier Manterola años después, en la oficina Carlos Fernández Casado S. L.

La relación de Sainz de Oiza con Javier Manterola se prolongó en otros proyectos, ya en la oficina de Carlos Fernández Casado, S. L. El principal fue el edificio del Banco de Bilbao en Madrid, terminado en 1976. La estructura es singular, porque bajo el solar cruzaba oblicuamente el túnel de enlaces del ferrocarril entre las estaciones de Atocha y Chamartín, lo que se resolvió con dos núcleos de hormigón verticales cimentados a los lados del túnel a un nivel inferior a este, unidos por una serie de emparrillados de vigas pretensadas cada seis plantas que servían de apoyo a la estructura metálica de los pisos intermedios. Después de trabajar menos de dos años en la oficina técnica de Huarte y Cía., a Javier Manterola le pareció que las estructuras de edificios no daban más de sí y decidió cambiar de trabajo; por ello ingresó en el Instituto de Ciencias de la Construcción Eduardo Torroja, en la sección de Investigación, donde
coincidió con su compañero Julio Martínez Calzón y se dedicó, entre otras actividades, al ensayo hasta rotura de losas. Fueron años en los que disfrutó realmente con su trabajo en la investigación del hormigón armado. En los años que trabajó en el Instituto Eduardo Torroja, fuera ya de Huarte y Cía., Javier Manterola volvió a entrar en contacto con don Carlos, que en 1963 había montado una oficina personal, independiente de la oficina técnica de Huarte y Cía.. Ahí trabajaba el hijo de don Carlos, Leonardo Fernández Troyano, autor de esta biografía, quien, por aquel entonces, acababa de terminar la carrera de ingeniero de caminos. Durante estos primeros años trabajó en estrecha colaboración con Javier Manterola (razón por la cual se usa la primera persona del plural en algunas partes). Este nuevo contacto con don Carlos llevó a Manterola a una colaboración con su oficina en trabajos puntuales, que hacía desde su casa.
En 1966, ante el incremento de trabajo de la oficina de don Carlos, este decidió, junto con la empresa Huarte y Cía., convertirla en una sociedad anónima con capital de ambos. La idea era que Huarte y Cía. le pasara los puentes y estructuras especiales que surgieran en la empresa y que pudiera también llevar a cabo proyectos para otros clientes independientes de la constructora. Esta colaboración con Huarte y Cía. dio lugar, durante muchos años, a una gran cantidad de obras, algunas de ellas de las más importantes realizadas por dicha oficina de proyectos, que años después pasó a sociedad limitada. La necesidad de ampliación llevó a don Carlos a proponer a Javier Manterola el ingreso a tiempo completo en la empresa. Como hemos dicho, Javier estaba muy contento en su trabajo en el Instituto Eduardo
Torroja, pero la posibilidad de trabajar en proyectos de puentes y estructuras especiales en la oficina de Carlos Fernández Casado, con la que ya había trabajado externamente


desde su casa, le resultaba demasiado atractiva para dejarla pasar, y por ello abandonó el Instituto Eduardo Torroja y se incorporó a la empresa recién creada a tiempo completo. En una primera época, el trabajo en la oficina consistió en los proyectos que le llegaban a don Carlos y que nosotros desarrollábamos. En 1964 se hicieron los pasos superiores de la autopista de las Rozas a Villalba. Era el inicio de las autopistas en España, y por ello podemos decir que los pasos superiores eran un tipo de obras nuevas en nuestro país. Algunos de los pasos se resolvieron con pórticos de células triangulares. En la oficina se hicieron los de Hoyo de Manzanares y de Torrelodones y, en 1966, con la empresa ya creada, los pasos superiores del nudo Villalba fueron uno de sus primeros proyectos. Igual que los anteriores, también estos se resolvieron mediante pórticos de células triangulares; uno de ellos, muy curvo, fue desarrollado por Manterola triangulando las pilas cilíndricas de los pórticos y sustituyendo las péndolas por diafragmas, con lo que se conseguía la rigidez transversal necesaria para resistir los efectos transversales debidos a la curvatura en planta.
De esta primera época son los proyectos de la variante de la carretera del pantano de Iznájar: el puente Priego y el viaducto de Iznájar; el puente de Castejón, sobre el Ebro, con una luz de 101 m sobre el río; un nuevo acceso a Pamplona desde el sur; el puente de los Vados sobre el río Genil, en Granada, y el de la dársena del Guadalquivir en Sevilla. Todos ellos fueron proyectados para construirse por voladizos sucesivos mediante dovelas prefabricadas.
Para la división de proyectos en la demarcación de Madrid, se hicieron en esa época los pasos superiores del nudo Manoteras y
el paso de Mauricio Legendre, todos ellos proyectados por don Carlos. Algunos de estos proyectos tardaron tiempo en construirse después de haber sido proyectados. Otro proyecto importante de esta primera época fue la presa de Quentar, en la que llevábamos trabajando varios años hasta que se hizo el proyecto definitivo. Se trata de una presa bóveda de 140 m de altura, situada en un desfiladero del río Aguas Blancas y destinada al abastecimiento de agua de Granada. En este proyecto trabajamos todos. Era una presa de encaje difícil por la sinuosidad del desfiladero, por lo que hubo que situarla en su origen, aguas arriba. La presa se terminó en 1968.
Ese año se puede considerar como el inicio de una nueva etapa, porque la cantidad de trabajo permitió que iniciáramos proyectos desde el origen. Diría que los primeros trabajos que hicimos ambos en colaboración fueron los pasos superiores de la transformación en autopista de la salida de Madrid N-1, que requirió los pasos del Real Automóvil Club y el de San Agustín de Guadalix. Una vez definidos, cada uno desarrolló uno; Manterola hizo el de San Agustín. Esta forma de trabajo, desde la idea inicial conjunta al desarrollo individual, fue evolucionando; inicialmente participábamos los tres y cuando don Carlos dejó de trabajar, continuamos los dos, si bien evolucionó a una mayor independencia individual desde el origen, incluso con equipos independientes, y así funcionó la empresa durante muchos años. Los primeros años coincidieron con un tiempo de fuerte evolución y desarrollo de los puentes en Europa. Es la época del desarrollo del hormigón pretensado, de los puentes de hormigón construidos por voladizos sucesivos, de los puentes metálicos
de alma llena con uniones enteramente soldadas y de los tableros metálicos resueltos con losa ortótropa; de las estructuras mixtas con vigas metálicas y tableros de hormigón



y del desarrollo en Alemania de los puentes atirantados, los puentes por excelencia de la segunda mitad del siglo XX. Todo ello nos llevó a estar pendientes de todo lo que se hacía fuera de España a través de las muchas revistas que recibía don Carlos y que pasaron a pertenecer a la empresa. Fue una época de intenso aprendizaje.
Volviendo a 1968, ese año Manterola proyectó y desarrolló el proyecto del viaducto de Torre Baró para las autopistas catalanas. Es un viaducto de vigas simplemente apoyadas, de 35 y 40 m de luz, con la particularidad de que requirió unos vanos de mayor luz para el paso del ferrocarril que se resolvieron con un emparrillado de vigas ortogonales solidarias de las pilas que, si bien están equilibradas para peso propio porque en las vigas de ambos bordes se apoyaban las vigas de los tableros contiguos, debían resistir los efectos de la sobrecarga asimétrica. A este proyecto Manterola le tenía especial cariño, seguramente porque lo desarrolló él al completo. Siempre fue partidario, cuando el lugar era adecuado, de los viaductos clásicos de vigas simplemente apoyadas. En 1969 salió a concurso del Ayuntamiento de Madrid el paso sobre la plaza de Cuatro Caminos. Presentamos varias soluciones y ganó la de Javier Manterola, que fue la que desarrolló y construyó: un paso de siete vanos de canto constante con luces de 34 m. Fue una solución innovadora que tuvo trascendencia en la morfología de los viaductos urbanos posteriores porque, si bien este tipo de obras se resolvían transversalmente con vigas principales en cajón y voladizos laterales, en Cuatro Caminos hizo una sección unitaria que, partiendo de un núcleo principal iba disminuyendo transversalmente hasta el borde. La disminución

Una obra bastante espectacular que tuvo importancia en su momento fue el paso inferior de la avenida —hoy Gran Vía— Carlos III en Barcelona en su cruce con la Diagonal
gradual de la sección transversal se logró mediante una poligonal y no con una curva continua, como hizo después en otras secciones análogas, pero creo que la poligonal destaca en este caso la forma de la sección transversal. El paso de Cuatro Caminos es un hito importante en la trayectoria profesional de Javier Manterola. Son muchos los puentes y estructuras que hizo Manterola a partir de esos años, y por ello, para que esta biografía no se convierta en una enumeración de obras, voy a referirme a las que considero que han tenido más importancia en el desarrollo y evolución de su trabajo, aunque su importancia puede deberse en algunos casos al momento en que se hicieron. En 1970 proyectó el puente de Caparroso sobre el río Aragón con un vano principal de 60 m sobre el cauce, que se construyó por avance en voladizos sucesivos para evitar la cimbra en el río, aprovechando el carro de avance que tenía Fernández Constructor, contratista de la obra.
Una obra bastante espectacular que tuvo importancia en su momento fue el paso inferior de la avenida —hoy Gran Vía— Carlos III en Barcelona en su cruce con la Diagonal,


una obra compleja por la superposición de carriles a diferentes niveles que obligó a grandes voladizos. Se terminó en 1971. En Alemania, la solución de viga continua se empezó a utilizar en pasos y enlaces apoyada en pilas cilíndricas centradas en el eje del tablero, lo que obligaba a resistir las torsiones de este en los estribos, solución que pronto empezamos a utilizar. En 1972 Manterola proyectó con ella el Nudo Norte de Madrid, un enlace en estrella que requería tres niveles con luces de 25 m. Esta misma solución, con mayor complejidad, se utilizó en 1973 en los accesos a la estación de Chamartín de Madrid, el Hiedra Norte y el Hiedra Sur.
En los años 60 y 70 del siglo XX, la mayoría de viaductos de las autopistas de España se hacían con tableros de vigas simplemente apoyadas, lo que daba lugar a un número considerable de juntas. Para optimizar el trabajo resistente y suprimir las juntas, en 1971 Manterola proyectó el viaducto BT II en la autopista Barcelona-Tarragona con tableros de vigas a los que se daba continuidad únicamente para sobrecarga, mediante el hormigonado de las juntas entre vigas y




la continuidad de la losa superior, que se realizaba con armadura pasiva. Esta solución, perfectamente factible, se ha utilizado posteriormente en pocas ocasiones; en algún caso para conseguir mayor esbeltez del tablero. La solución que se ha utilizado con mayor frecuencia es la de dar continuidad a la losa sin dar continuidad a las vigas, independizándola en el entorno de los apoyos para que admita los giros que le transmiten las vigas.
En 1973 proyectó la estructura de las Torres Colón de Madrid, una estructura compleja, porque para dejar lo más diáfano posible el sótano, los edificios se apoyaban únicamente en unos núcleos centrales que llegaban hasta la coronación de las torres. Sobre ellos se montaban unos emparrillados de vigas pretensadas, de las que partían los tirantes en los que se apoyaban los bordes de los forjados de las plantas de las torres. Toda la estructura, incluidos los tirantes, es de hormigón pretensado.
En los pasos y viaductos que hicimos en el nuevo acceso a La Coruña en 1973,
Manterola proyectó el viaducto de San Pedro de Mezonzo con una solución de «setas» que había iniciado en Alemania la empresa Dywidag, dirigida por el ingeniero Ulrich Finsterwalder. Las «setas» consisten en tableros cuasi cuadrados, en este caso de 25 m de longitud y 22 de ancho, solidarios a unas pilas centrales desde las que el tablero crece de canto longitudinal y transversalmente, cuya repetición completa el viaducto. Es una obra singular que proporciona una gran diafanidad por debajo de la contrucción. En 1975, entre las obras que hizo Manterola en Vitoria destacamos el cruce de Alí, un paso superior de gran envergadura resuelto con una extraordinaria solución que consiste en tres vanos de canto variable, en el que las pilas y parte de los vanos laterales quedan enterrados en los terraplenes de acceso, quedando fuera de ellos únicamente el vano central de 45 m de luz. Soluciones análogas a esta, pero no tan potentes, se han hecho después en numerosas ocasiones. La pasarela atirantada de La Paz sobre la M-30 tiene un vano principal de 85,8 m y
unos vanos laterales de 21 m. El vano principal tiene cuatro tirantes, dos desde cada torre. Los tirantes traseros se anclan en los extremos de los vanos laterales y, para compensar su componente vertical, se añaden unos contrapesos a los estribos. La estructura es de hormigón pretensado y toda ella se prefabricó completa: las torres se hicieron en el suelo y se levantaron con una grúa. El vano principal se montó en tres piezas que se apoyaron en castilletes sobre las medianas. Una vez hormigonadas las juntas, se colocaron los tirantes y se pretensó el tablero. Una actividad importante en su vida profesional, a la que se dedicó con especial acierto e interés, fue la enseñanza. Por ello, en 1976 se presentó a la oposición de cátedra para la asignatura de Puentes de Fábrica que había dejado Carlos Fernández Casado al jubilarse, y la ganó. Don Carlos había sido su profesor de Puentes en la Escuela. Para ganar la cátedra, estuvo estudiando durante mucho tiempo y preparando toda la documentación necesaria. Además de ello, un año antes había estado dando clases en la
Escuela de Valencia como entrenamiento, hasta donde se desplazaba los días de clase. Fue catedrático de la Escuela de Madrid durante más de 30 años, hasta que se jubiló. Una de las obras de mayor envergadura que proyectó Javier Manterola en esta primera etapa fue el acueducto del canal del Alto Aragón sobre el río Alcanadre. Se utilizó la enorme caja del acueducto como viga resistente de hormigón pretensado, lo que dio lugar a una viga continua de nueve vanos de 60 m de luz excepto en los extremos. La construcción se hizo por empujes sucesivos mediante dovelas de 20 m de longitud que se construían en un parque fijo situado detrás de uno de los estribos. Para reducir los esfuerzos durante el lanzamiento, al tener que pasar en voladizo los distintos vanos, se utilizó un «pico» metálico de 30 m de longitud unido al frente de dicho voladizo. El acueducto se terminó en 1977 y fue una de las primeras grandes obras construida por este método en nuestro país. Un tema que a partir de esos años sería fundamental en la biografía profesional de
Javier Manterola fue el estudio y construcción de los puentes y viaductos de la autopista Campomanes-León, que culminó con la obra seguramente más importante de su carrera profesional: el puente sobre el pantano de Barrios de Luna, después llamado puente Ingeniero Carlos Fernández Casado, que luego veremos. En principio, la autopista iba a necesitar varios viaductos de gran envergadura que luego se redujeron y algunos de ellos pasaron a terraplenes. Para proyectar estos viaductos, se estudiaron distintas soluciones: una consistía en hacer con cimbra autoportante una viga cajón de 6,60 m de ancho, al que posteriormente se le adosaban unas costillas laterales prefabricadas que se unían mediante pretensado transversal. Posteriormente se hormigonaba la losa, completándose así los 22 m de ancho de la autopista. El mayor viaducto de la autopista, el del Huerna, se iba a hacer con este sistema; sin embargo, por razones de plazo, se convirtió en una solución totalmente prefabricada, como luego veremos. Únicamente en el Luna III, un
viaducto de 128 m longitud con luces de 32 m, curvo en planta y muy oblicuo, se aplicó esta solución, con la dificultad añadida de que era curvo en planta y oblicuo. Debido a su corta longitud, no resultaba económico utilizar una cimbra autoportante, por lo que la viga cajón se construyó por fases mediante cimbra.
El viaducto de Huerna, al que ya nos hemos referido, tiene 492 m de longitud y 13 vanos, de los cuales la mayoría, salvo los extremos, son de 38 m de luz, con pilas de altura máxima de 33 m. Por razones relacionadas con la construcción de la autopista, este viaducto se retrasó y se convirtió en un camino crítico para terminarla dentro del plazo. Por ello, la condición fundamental del proyecto era buscar la solución que permitiera construirlo en el mínimo plazo posible. Esto se consiguió a base de una solución en la que todos los elementos de la superestructura eran prefabricados; el tablero se hizo con una solución clásica perfectamente dominada como es el tablero de vigas apoyadas con la losa superior hormigonada in situ, que no
planteaba ningún problema de plazo. El problema más complejo era la prefabricación de las pilas, que se resolvió con pórticos prolongados con voladizos cuyas pilas estaban formadas por cajones fabricados en dos piezas con sección en U, que se unían en la factoría y se transportaban y montaban completas: el dintel del pórtico consistía en una viga en U invertida que se unía a las pilas prolongando la sección de estas y con un pretensado vertical. Con esta solución, se consiguió terminar el viaducto en menos de seis meses desde que se iniciaron las cimentaciones hasta que se terminó el montaje.
La obra principal de esta autopista, y en mi opinión el puente fundamental de todos los que hizo Javier Manterola a lo largo de su vida profesional, que fueron muchos, es el del pantano de Barrios de Luna. Es un proyecto en el que se empleó a fondo, porque la solución que adoptó fue un paso de gigante en los puentes atirantados, tanto en los españoles como en los de todo el mundo. No fue una solución que se adoptara de origen en este caso, sino que fue el resultado de un largo y elaborado estudio de una serie de soluciones con pilas en el pantano que se fueron eliminando por diversos motivos. El definitivo fue que era inviable cimentar en el fondo del pantano con su profundidad de agua posible y por la dificultad del terreno, porque el pantano de Barrios de Luna no admitía ningún tipo de regulación de la cota de agua debida a la construcción del puente. Por ello, la luz de 440 m resultó obligada dadas las dificultades que planteaba el terreno de cimentación de una de las torres incluso sin agua. En ese momento, la solución más adecuada para esa luz era la de un puente atirantado,
aunque era mayor que la de todos los puentes atirantados que se habían construido hasta entonces. Debido a la fuerte pendiente de las laderas en los extremos del puente, los vanos de compensación resultaron extraordinariamente cortos: 66 m frente a los 440 m del vano principal. Esto en cualquier puente plantea dificultades, pero más en un puente atirantado donde los tirantes traseros deben compensar a los delanteros para equilibrar las torres. Para conseguir ese equilibrio, fue necesario hacer unos contrapesos en prolongación de los vanos laterales de 35 m de los que partían dichos vanos. Al fijar los vanos laterales a los contrapesos, el tablero se hacía continuo en toda su longitud, sin posibilidad de los desplazamientos longitudinales necesarios, debido principalmente a la temperatura y a la retracción y fluencia del hormigón. Para permitirlos, fue necesario disponer de una articulación deslizante en el centro del vano principal que admitiera dichos desplazamientos.
Un asunto que era necesario decidir antes de iniciar el proyecto definitivo eran los materiales que se debían utilizar en los distintos elementos del puente. Para los cimientos y las torres, el hormigón era claramente más económico, pero el tablero podía ser también metálico. Los mayores puentes atirantados que se habían construido hasta entonces tenían tablero metálico, pero ya se habían construido varios con tablero de hormigón. Los metálicos son más caros, pero más ligeros y, por ello, necesitan menos acero en tirantes y torres más ligeras. Para decidirlo, fue necesario estudiar y dimensionar una solución con cada material de las que se concluyó que era más económica la
solución de hormigón. Después de estudiar distintas soluciones de la sección transversal, se llegó a un cajón tricelular con diafragmas transversales, determinado entre otras razones por el área necesaria para resistir el esfuerzo axil generado por los tirantes, máximo en el entorno de la pila. Por ello en la parte central del vano principal, para aligerar el tablero, se suprimió la losa inferior del cajón entre las dos almas internas. La construcción del vano de 440 m se hizo por voladizos sucesivos con carros de avance, partiendo simultáneamente de los vanos laterales; se hicieron in situ sobre apoyos provisionales que se fueron suprimiendo según avanzaba el vano central. El cierre en clave se hizo con el montaje de la articulación deslizante. Se terminó en 1983.
Durante tres años el puente de Barrios de Luna tuvo el récord mundial en puentes atirantados, tanto metálicos como de hormigón, hasta que se terminó el puente de Annacis en Canadá, de 465 m de luz.
De puentes atirantados de hormigón fue récord mundial durante ocho años, hasta que se terminó el puente de Skarnsundet, en Noruega, de 530 m de luz. Es el único caso en la historia de los puentes que, en un determinado tipo, la solución de hormigón pasa a la metálica.
Con el puente de Barrios de Luna —después llamado Ingeniero Carlos Fernández Casado—, finalizó una etapa fundamental del trabajo profesional de Javier Manterola, que le llevó a un prestigio nacional e internacional que se mantendría a lo largo de toda su vida profesional gracias a los puentes que continuó haciendo, que fueron muchos y muy buenos.


Con Manterola en Micenas, donde el tiempo se detiene

En primavera y otoño, Javier Manterola realizaba viajes de aprendizaje por todo el mundo junto con varios amigos ingenieros de caminos y arquitectos. Defendía que para conocer y disfrutar de la ingeniería era imprescindible viajar, y así lo hizo con este grupo durante más de diez años. En un viaje a Grecia, los monumentos prehelénicos de Micenas suscitaron unas reflexiones sobre los procesos constructivos y sobre el efecto temporal de lo construido, que se sitúan aquí, en el contexto de sus publicaciones anteriores y posteriores.
El recuerdo del profesor Carlos Fernández Casado en los pasillos de la Escuela de Ingenieros de Caminos está asociado con las diapositivas. Su inconfundible figura avanzando hacia el aula se acentuaba con dos carros de diapositivas bajo el brazo: cientos de imágenes de puentes, acompañadas de cortas explicaciones, constituían su método docente. Ante una enorme aula, siempre atiborrada de alumnos, don Carlos mostraba ejemplos y más ejemplos. Consideraba que no se puede proyectar sin conocer lo ya construido y que a ello había que aproximarse desde la estética: «al proyectar un puente, estamos afectados por todos los que conocemos, y esto en grado directo con su belleza».
Su sucesor en la cátedra, Javier Manterola, mantuvo esa posición y la activó con la
experiencia de mirar, algo que era necesario aprender. Con el tiempo, formuló esta nueva exigencia de varias maneras en sucesivos artículos para precisar su alcance y relacionarlo con el arte. En un artículo de 2004 titulado «El arte y los puentes», afirmaba que «para disfrutar es necesario entender y para entender hay que mirar y ver» (Manterola, 2004, p. 74).
Con ello pretendía extender el conocimiento de los puentes más allá de lo necesario para el proyecto, hacia el disfrute de su belleza en la contemplación: «para comprender es necesario relacionar y no es preciso conocer todos los intríngulis de la resistencia de materiales. Pues un puente no es solo el sustrato tecnológico donde se instala, ni la estructura resistente es la única dimensión conceptual e intelectual de los puentes».
Defendía que por muchas explicaciones que se ofrezcan sobre su estructura resistente o su sustancia formal, «no somos capaces de definir la totalidad del puente». Razonaba que los puentes, como cualquier manifestación humana, incluidas las consideradas artísticas, «crean su propia estética». Afirmaba que «vivimos entre puentes», entre las configuraciones que a lo largo del tiempo han ido aportando uno y otro ingeniero: «los puentes son el resultado de su historia, y esa historia es la única definición acertada de su esencia» (Manterola, 2004, p. 75).
En 2009 ampliamos el campo de los puentes a toda la ingeniería en un artículo conjunto, publicado en esta Revista de Obras Públicas, titulado «Saber ver la ingeniería» (Manterola & Aguiló, 2009). Allí se afirmaba

que «para apreciar la obra de ingeniería, hay que aprender a mirar». El ambicioso propósito era pasar revista a tres claras manifestaciones del quehacer ingenieril: carreteras, presas y puentes. Se trataba de destacar su valor formal, configurador de una nueva familia de objetos capaces de configurar el territorio como principal responsabilidad de los ingenieros de caminos, a lo que debemos responder con todo nuestro talento.
El paso de la propuesta inicial de «Aprender a mirar los puentes» al título definitivo de «Saber ver la ingeniería» se autoexplica por la confluencia y adición de los saberes de los autores en cuanto al objeto, y por su diferente madurez en cuanto a la actitud. Pero no fue fruto del debate para redactar el artículo, sino de la mutua convicción de que viajar es la única posibilidad real de acercarse a la realidad de la ingeniería civil y de la común experiencia de muchos viajes compartidos.
De hecho, nos conocimos mirando puentes desde un barco en un viaje a Nueva York en 1975. Nuestro amigo común, Julio Martínez Calzón, también ingeniero y constructor de puentes, planeaba entonces un
Javier Manterola siempre viajaba en vacaciones para ver arte, arquitectura y puentes
viaje sistemático por Inglaterra y Escocia para ver catedrales góticas. A su vuelta, Julio organizó un pase de diapositivas, que motivó un viaje mío similar, cuyo itinerario incluía los primeros puentes metálicos ingleses, que hice al año siguiente. Se publicó en 1977 como «Un viaje por viejos puentes» (Aguiló, 1977).
Javier Manterola, que siempre viajaba en vacaciones para ver arte, arquitectura y puentes, se entusiasmó con las imágenes de los puentes ingleses de Coalbrookdale, Menai Straits, Britannia y Firth of Forth. Al año siguiente repitió ese viaje con Lolacha Jara, su mujer, y a partir de entonces compartimos descubrimientos e hicimos muchos viajes juntos y con otros ingenieros.
Grecia, caminos y bóvedas en Micenas
En 1998, Julio Martínez Calzón reorganizó estos viajes de conocimiento a dos por año, uno en primavera y otro en otoño, con destinos que se elegían el último día del viaje anterior. A estos viajes se sumaron enseguida otros ingenieros de caminos, como Enrique Pérez Galdós, Álvaro García Meseguer, Javier
Asencio, Alberto Corral López-Dóriga y el arquitecto Esteban Terradas Muntanyola, junto con sus parejas.
En octubre de 2002, el destino del grupo de los catorce viajeros fue Grecia, con un itinerario que empezaba en Atenas y, con una parada corta en Corinto, continuaba por Micenas, Epidauro, Nauplia, Olimpia y seguía a través de las llanuras de Ilia y Ahaia hasta Patras. Allí se cruzaba el golfo de Lepanto en ferry para llegar a Delfos y terminar seis días después en Atenas.
El tramo que se recuerda aquí es el trayecto entre Micenas y Epidauro, cuya historia antigua he encontrado de forma inesperada en un reciente libro de filosofía y arqueología titulado Objetos intempestivos (Witmore & Harman, 2024). El tramo fue alterado por la carretera E070, emprendida como una sustancial mejora de los antiguos caminos prehelénicos del sureste del Peloponeso. Esos caminos recorrían los restos construidos de las antiguas ciudades, fortalezas o monumentos, y permitían entender las relaciones de sus pobladores con aquel territorio. La primera carretera para automóviles redujo el tiempo de viaje a unos cincuenta minutos, una sexta parte de lo que
requería el viaje por los caminos micénicos. La nueva autopista E7 redujo ese tiempo a media hora, ya que transcurre por el centro del valle en vez de recorrer su límite norte (Witmore & Harman, 2024, p. 70).
En las afueras de Micenas se encuentra el tesoro de Atreo —la gran tumba de Agamenón—, situada en una colina y construida en torno al 1250 a. C. Está considerada como la tumba abovedada más monumental del país, y su interesante estructura revela las enormes dificultades constructivas de cubrir estos espacios en la Edad del Bronce. Como es sabido, en realidad se trata de una falsa cúpula, construida por el gradual avance en voladizo de los sillares del muro, que van formando un cono que no transmite empujes horizontales a la base como ocurre en las cúpulas. Como apuntó Angulo Íñiguez en su clásica Historia del arte, en los monumentos prehelénicos de Micenas es típico el recurso de «aligerar la carga del dintel, formando encima, por el gradual avance de los sillares del muro, un vano triangular». Debido a ese mismo avance progresivo de los sillares para disminuir la longitud del dintel, las puertas son, con frecuencia, trapezoidales (Íñiguez, 1967, p. 68).
Angulo afirma que, aunque estos monumentos funerarios del periodo prehelénico son menos importantes para el futuro de la arquitectura, son muy bellos y poseen una indudable grandiosidad. Con su largo corredor y su gran cámara circular al fondo, cubierta por una falsa bóveda, es la más bella manifestación del tipo de dolmen de cámara prehistórico (Íñiguez, 1967, p. 69). El grupo de nueve enterramientos de Micenas es el más importante; en su conjunto de murallas, tumbas y corredores destaca la Puerta de los Leones,
construida con grandes sillares de piedra y cubierta por un gran dintel y un enorme bloque triangular encima, donde se encuentran, esculpidos en relieve, dos leones afrontados con una columna en el centro.
La técnica estructural de avance en voladizo de cada hilada de sillares sobre la inferior fue muy elogiada por Julio Martínez Calzón y por Javier Manterola, que la consideraban un claro precedente de las «estructuras progresivas» que avanzan sobre sí mismas hasta completarse, aunque no se dejó de remarcar su clara inferioridad frente al arco. Por su parte,

el hermoso conjunto del dintel con la pieza triangular de los leones encima, para aliviar la carga, consiguió la unánime apreciación del grupo.
El puente de Kazarma Cerca de allí, desde la entrada a la nueva autopista, la E070 retoma su antiguo camino con abundantes curvas. En lo alto de la colina, a lo lejos, aparecen las desnudas alturas de Arakneo, donde según el viajero romano Pausanias había altares a Zeus y Hera (Witmore & Harman, 2024, p. 76). Más adelante, en la entrada de un barranco cerca de la aldea de Agios Ioannis, está señalizado el puente ciclópeo de Kazarma, también conocido como de Arkadiko, que salva la torrentera con una sabia disposición de los grandes bloques de piedra de un pedraplén para dejar pasar el agua. Por aquel entonces, el grupo no conocía su existencia y fue motivo de una prolongada visita con posterior discusión estructural. El debate sobre aquella estructura ciclópea, de 18 m de longitud y 4 m de alto, se centró en la apertura de poco más de un metro de vano y 2,5 m de alto. La cuestión era si se podía considerar como un arco o si se trataba de un nuevo ejemplo de sillares en avance progresivo. Para Javier Manterola, el asunto del dintel siempre fue crucial, pues entendía «la flexión como elemento exterminador de la forma resistente» (Manterola, 2008, p. 4). Además, en esos años estaba renaciendo el empleo del arco para puentes que venían siendo atirantados (Manterola, junio 2002); sin embargo, abrumados por la anterior experiencia del tesoro de Atreo y por la sorpresa del puente ciclópeo, en la visita no se logró aclarar y hubo que proseguir el viaje.
Un pausado análisis formal de la fotografía revela que los primeros bloques se apoyan sobre una base rocosa inclinada, pero su cara superior es horizontal. En la segunda hilada, los bloques son sillares con las caras superior e inferior horizontales, pero su forma trapecial avanza sobre el vano. En la tercera hilada, la cara inferior de los bloques es también horizontal, pero la superior está inclinada hacia abajo y al centro. Su forma se acerca a un pentágono en el estribo izquierdo y en el derecho es difusa, mientras que el bloque central superior es un claro pentágono que encaja de forma casi perfecta, como una verdadera «clave», en las caras inclinadas de los bloques inferiores.
Según ello, los tres bloques superiores podrían trasladar empujes horizontales al pedraplén, como si formaran un arco enjutado, mientras que la hilada de debajo sería pasiva y los bloques de base en ambos lados podrían transmitir reacciones inclinadas, como las del arco, aunque también contrarrestadas por el pedraplén.
Al día siguiente seguimos viaje hacia Patras, donde cruzamos en ferry el golfo de Lepanto y visitamos la obra del puente atirantado Rion-Antirion, que responde de lleno al concepto constructivo de estructura progresiva, anticipado unos treinta siglos por la cultura micénica.
Significados patrimoniales
Entre los puentes micénicos del antiguo sistema de caminos, el mejor conservado es este puente de Kazarma, que está datado entre los 1300 y 1200 a. C., lo que lo convierte en el puente más antiguo de Europa. Su pequeño tamaño y aparente sencillez no debe oscurecer la importancia que tiene, ya que los
puentes y santuarios resultan fundamentales para abordar el origen de lo clásico. Javier Manterola utilizó este puente en alguna de sus publicaciones, aunque tenía algunos reparos por su pequeño tamaño, si bien apreciaba la «dimensión heroica» de la ingeniería y el reto que suponía. En una entrevista de 2010, afirmaba: «[…] me admira la capacidad de penetración de la arquitectura para traducir la función en espacio. En cambio, lo nuestro es mucho más simple; pasar de un lado a otro un puente es fácil, pero nuestro problema es la escala» (Aguiló, 2011).

De hecho, lo utilizó como referencia dimensional, como «puente objeto» en un ensayo sobre ingeniería y escultura: «El puente más antiguo de Grecia está en el Peloponeso y es la máxima simplicidad, la mínima técnica dentro de una gran lógica constructiva». Utilizaba el tamaño para diferenciar ambas disciplinas: «Nuestras obras son objetos grandes colocados en la naturaleza y que sirven. Una escultura también es un objeto, generalmente pequeño, pero que también sirve, aunque este servir sea mucho menos explícito. Y ambos pueden llegar a tener misterio y ser artísticos» (Manterola, 2007, p. 60). La consideración de estos monumentos como «objetos», sin perder de vista su dimensión territorial, preside la tesis del reciente libro antes mencionado, cuyo título, Objetos intempestivos, recoge la dimensión temporal (Witmore & Harman, 2024). La Real Academia Española explica que «intempestivo» es lo que está fuera de tiempo y razón, lo cual es bien cierto.
Las cosas, ese puente y los caminos, esos «objetos» construidos, siguen siendo realidades materiales tangibles con medidas que definen espacios, que están ahí, que permanecen, aunque su uso haya desaparecido. El tiempo no ha terminado con ellas y siguen siendo testigos de uno anterior, pero el puente y el camino siguen sirviendo para pasar sobre un torrente; mantienen su función. No se convierten en objetos inoportunos, extemporáneos, inadecuados, desacertados, improcedentes o impropios, que son los sinónimos sugeridos por la RAE a la voz «intempestivos». Más bien, su permanencia logra detener el tiempo y nos recuerda que esa concentración de restos es lo que en realidad define el pasado, y no el paso lineal del tiempo. Bien
MAKING IT HAPPEN


sabemos que lo construido se apropia de todo lo preexistente y lo pone a su servicio. Como se dice en el libro que ha sugerido esta reflexión:
Hoy día, cualquier persona puede caminar junto a esas murallas, a través de esa puerta, dentro de ese recinto, a lo largo de estos caminos. Dirigidos por formas geológicas inflexibles, enraizadas a principios del Jurásico, por formas construidas trazadas al final de la Edad de Bronce, que estabilizan los logros durante más de un milenio de habitabilidad, los visitantes deambulamos (Witmore & Harman, 2024, p. 81).
Referencias
1 Aguiló, M. (1977). Un viaje por viejos puentes. Hormigón y acero, 28 (123), pp. 61-81.
2 Aguiló, M. (2011). La belleza de un puente. Una conversación con Javier Manterola. Minerva Círculo de Bellas Artes. [Entrevista realizada el 1 de diciembre de 2010].
3 Íñiguez, D. A. (1967). Historia del arte EISA.
4 Witmore, C.; Harman, G. (2024). Objetos intempestivos. Filosofía y arqueología orientada a objetos. Materia Oscura
5 Manterola Armisén, J. (Junio 2002). Puentes. Nuevos planteamientos. Conferencia en Arezzo. Arezzo.
6 Manterola Armisén, J. (2004). El arte y los puentes. Fabrikart (4), pp. 68-85.
7 Manterola Armisén, J. (2007). Ingeniería y escultura. Ingeniería y territorio (78), pp. 60-71.
8 Manterola Armisén, J. (2008). La forma de lo resistente. Ingeniería y territorio (81), pp. 32-37.
9 Manterola Armisén, J.; Aguiló, M. (Marzo de 2009). Saber ver la ingeniería. Revista de Obras Públicas (3497), pp.7-28.

Miguel Ángel
Astiz Suárez
Ingeniero de caminos,
La labor investigadora y docente de Javier Manterola
Javier Manterola ha sido un hombre que ha dejado huella. No solo entre los que le hemos tratado de forma más directa y continuada en el tiempo, sino también a través de su pensamiento, de su obra, de sus escritos y de sus clases. El objeto de este artículo es analizar esa huella circunscribiéndonos a su labor investigadora y docente.
Labor investigadora
La investigación científica no suele ser la labor más destacable de un ingeniero con una dedicación profesional importante. Esto es así porque el tiempo para las realizaciones no es el mismo que para la investigación. La urgencia del proyecto o de la construcción es contraria a la paciencia necesaria para el estudio profundo de los problemas. Sin embargo, hay formas de combinar ambos campos, y Javier Manterola lo consiguió.
Cuando terminó la carrera, en 1962, siguió el camino de muchos ingenieros jóvenes, que es entrar en una empresa constructora,
en su caso, la desaparecida Huarte y Cía. (en realidad entró antes de acabar la carrera).
Allí tuvo la ocasión de participar, bajo la dirección de Carlos Fernández Casado, en el estudio de la estructura de Torres Blancas, el edificio icónico obra de Francisco Javier Sáenz de Oiza. Ahí, Manterola tuvo que comprobar una estructura endiablada para la que no valían los métodos de cálculo de la época; sin embargo, se las arregló para salir del paso investigando sobre formas de comprobar esa estructura (Sáenz de Oiza et al., 1970). Él siempre contó sus discusiones y la formación que recibió de su intensa relación con Sáenz de Oiza en este proyecto.
Esta labor en la oficina técnica de una constructora, sin embargo, no debía de satisfacerle, ya que en 1964 salió de Huarte e ingresó en el Instituto Torroja, esta vez sí, para llevar a cabo una verdadera labor de investigación.
Allí nació su colaboración y su amistad con Julio Martínez Calzón. Fue un período corto —solo dos años— pero fructífero, ya que le
permitió por fin ahondar en el conocimiento de las losas armadas, más en concreto, en el punzonamiento, que había proyectado en la empresa constructora (Manterola, 1967, 2014; Martínez Calzón & Manterola, 1967).
Él se refería a este período como un tiempo que le permitió profundizar en el estudio del comportamiento resistente. Por otra parte, el Instituto era entonces un puente hacia el exterior a través de contactos con la ingeniería puntera que se hacía en Europa.
Al cabo de esos dos años, Fernández Casado, que había sido su profesor en la Escuela y que lo había introducido en Huarte, lo llamó para incorporarlo al estudio que acababa de fundar con su hijo Leonardo Fernández Troyano. A partir de ese momento, se puede decir que voló solo, con la colaboración de Leonardo Fernández Troyano y la supervisión, probablemente benévola, de Fernández Casado. El estudio contaba en aquella época con un laboratorio de ensayo de estructuras en modelo reducido,



que entonces en España solo se podía encontrar en instituciones oficiales, como el Laboratorio Central del Centro de Estudios y Experimentación de Obras Públicas (CEDEX) o el Instituto Torroja. En esa primera época, la dedicación al estudio fue una de las actividades más relevantes de Manterola. El objeto de ese estudio era, una vez más, el conocimiento del comportamiento resistente de diversas formas estructurales con aplicación a los puentes. Escribió artículos sobre la losa ortótropa, los métodos armónicos (Manterola, 1977a) y sobre el método del emparrillado (Manterola, 1977b).
A partir de esos años, y coincidiendo con su toma de posesión de la cátedra de Puentes de la Escuela de Ingenieros de Caminos de Madrid, sus publicaciones y sus trabajos de
Este último trabajo tuvo una gran repercusión en el mundo del proyecto de puentes, ya que estableció las reglas básicas del método y lo emplearon todos los proyectistas de puentes españoles hasta la generalización del uso de programas comerciales completos. Estos fueron sus únicos trabajos sobre métodos de cálculo, salvo el de la sección abierta y la sección cerrada, que se mencionará después; más adelante, y con ocasión del proyecto del puente de Barrios de Luna, también participó en una publicación sobre los problemas no lineales en puentes atirantados (Astiz & Manterola, 1980).
investigación se inclinaron más hacia la tipología de las estructuras y, particularmente, de los puentes. Escribió una serie de artículos que tenían mucho que ver con su actividad docente, pero que también tuvieron gran impacto entre ingenieros que, por edad, no habían sido sus alumnos. Se trata de la serie que publicó en Hormigón y Acero con el título genérico de «Estudio sobre tableros de puentes», que incluía el tablero de vigas (Manterola, 1977c), la sección cajón (Manterola, 1977d), el puente curvo (Manterola, 1977e) y el tablero oblicuo (Manterola, 1977f). Dentro de estos artículos sobre tipos de tableros, hay que destacar su estudio comparado de la sección abierta y cerrada bajo
solicitación excéntrica ( Manterola, 1976). Se trata de un trabajo de enorme importancia tanto por lo que expone como por lo que indica sobre el conocimiento del autor respecto a las secciones de tableros de puentes y el uso que hizo de dicho conocimiento en proyectos posteriores de innumerables puentes de sección cajón, como en el puente Euskalduna de Bilbao. Un artículo reciente, escrito como homenaje a Manterola, pone en valor su trabajo y lo actualiza y extiende a la viga curva (Monleón et al., 2019).
Su participación en el proyecto de varios edificios de altura, como el previamente mencionado Torres Blancas, el del Banco de Bilbao o el del Banco de Santander en el
complejo Azca de Madrid (ninguno de los dos se llama ya así), dio pie a una publicación más sobre la estructura de los edificios de altura (Manterola, 1984).
Sin embargo, es en el campo del diseño de las estructuras de puentes donde la labor investigadora de Manterola es más destacable. Fueron desarrollos novedosos con una larga reflexión detrás, cuyo objetivo era resolver un problema geométrico de encaje de un puente en un entorno complicado, o plantear una solución a partir de un método de construcción nuevo. Se trataba, en definitiva, de hacer posible algo que, a priori, parecía imposible. Aunque otros artículos en esta misma revista pueden hacer referencia a este aspecto, es
importante citar aquí algunos de los proyectos que se podrían considerar fuera de la norma, porque son una muestra de cómo se puede desarrollar una investigación profunda en el campo del diseño de puentes. Esto se puede apreciar en artículos que explican dichos proyectos novedosos y también en los últimos trabajos de Manterola, que contienen su reflexión sobre el oficio de proyectar puentes. La colaboración estrecha con los constructores trajo desarrollos muy interesantes, como la posibilidad de construir un puente de 90 m de luz mediante elementos prefabricados de no más de 30 m de longitud, y por ello transportables por carretera (Manterola,
Sección transversal y perspectiva de la estructura del tablero.
Vista desde el aire durante el proceso de construcción.
Vista general del proyecto terminado.




1999). Se trata del proyecto del puente sobre el río Mente, que es un puente viga con jabalcones inclinados que lo convierten en pórtico. Asimismo, el montaje de la sección transversal mediante dos vigas artesa, losas prefabricadas y losas in situ es el resultado de una experimentación ensayada y una puesta a punto en puentes anteriores, que permite lograr el objetivo de alcanzar luces importantes solo mediante elementos de dimensiones reducidas.
En el campo de los puentes atirantados —en el que muy pronto batiría el récord mundial de luz en esta categoría con el puente Carlos Fernández Casado sobre el embalse de Barrios de Luna—, se debe mencionar, por parte de Manterola, el estudio de sistemas de atirantamiento espaciales en una serie de pasarelas notables: la del Malecón en Murcia, la del Manzanares
en Madrid, o la del Voluntariado sobre el Ebro en Zaragoza (Manterola et al., 1999).
A ellos habría que sumar el trabajo pionero de Fernández Troyano con la pasarela de las Glorias en Barcelona. Todas ellas demuestran el proceso de reflexión necesario para equilibrar los mecanismos resistentes del tablero sometido a fuerzas excéntricas. El estudio de estos mecanismos está en la base de trabajos de investigación recientes (Galante & Astiz, 2021).
El estudio de los mecanismos resistentes en estructuras complejas —como son los puentes atirantados espaciales— y los primeros trabajos de Manterola sobre las secciones abiertas y cerradas (Manterola, 1976), cristalizaron en un puente singular como es el Euskalduna en Bilbao, en el que se mezclan todos los conceptos anteriores en un puente curvo con elementos de sección cajón,
celosías y mecanismos resistentes de secciones abiertas (Manterola et al., 1997).
Este no es más que un muestrario reducido de algunos de los desarrollos originales de Manterola que se pueden adscribir a una actividad genuinamente investigadora. No son los únicos, pero la concisión obligada del presente artículo requiere dejar a otros la exposición de sus proyectos más innovadores.
Labor docente
Javier Manterola tenía indudablemente una vocación docente que lo llevó a presentarse a la cátedra de Puentes de la Escuela de Ingenieros de Caminos de Madrid en 1976, que ganó en una oposición en la que sus oponentes eran nada menos que Juan José Arenas y Avelino Samartín. Sucedía así, de forma natural, a su maestro Fernández Casado, que se había jubilado un año antes.
Desde 1976 hasta 2006 —año en que se jubiló—, Manterola estuvo cuarenta años al frente de dicha cátedra y formó en su especialidad a cuarenta promociones de ingenieros. Su huella en la profesión es enorme. El autor de este artículo fue alumno de Fernández Casado y ha sido el sucesor de Manterola en la cátedra de Puentes; como conocedor del punto de partida y de llegada de esa enseñanza, está en una muy buena posición para evaluar el papel de Manterola en la enseñanza de los puentes.
Su principal aportación es probablemente la forma que tenía de abordar la enseñanza, distinguiendo tres vertientes complementarias en la ingeniería de puentes —de importancia relativa variable en función de las épocas, el tipo de puentes o la trinchera desde la que se ejerza la profesión— y que son el diseño, el cálculo y la construcción.
La enseñanza de los puentes se ha vertebrado alrededor de estos tres conceptos, sin olvidar nunca que son complementarios y necesarios.
A lo largo de los cuarenta años de docencia, Manterola fue redactando diversas publicaciones que sirvieron de apoyo a sus clases y que cristalizaron en sus últimos años en dos voluminosos tomos de apuntes que recogen su experiencia en el proyecto de puentes. Son una ayuda inestimable para el que quiera aprender la técnica de proyectar, construir o, simplemente, apreciar los puentes (Manterola, 2007). Se trata de una referencia que ha servido de apoyo para la docencia en todas las escuelas de ingeniería de caminos de España.
Además, en sus últimos años, Manterola se volcó más en el significado de su actividad en el mundo de los puentes para tratar
de dilucidar el fin último de su motivación. Así, nos ha legado una serie de publicaciones y conferencias en las que ha plasmado lo que podríamos llamar su forma de pensar la ingeniería, como una actividad trascendente para el hombre, tan noble como otras más prestigiosas desde el punto de vista intelectual (Manterola, 2010, 2018, 2019). También esta faceta forma parte de su labor docente.
Conclusión
Javier Manterola será recordado como el gran proyectista de puentes que fue, pero su huella, por la que nos preguntábamos al principio de este artículo, es también la de sus aportaciones originales al conocimiento de los puentes y la larguísima lista de alumnos, presenciales y a distancia a través de sus publicaciones, que se han interesado, gracias a él, en los puentes y las estructuras.
Imaginamos y creamos infraestructuras que nos hagan avanzar.



Referencias
1 Sáenz de Oiza F.J., Fernández Casado C., & Manterola J. (1970). Estructura de «Torres Blancas». Informes de la Construcción, 23(226), 43-64
2 Manterola J. (2014). El Instituto Torroja. Informes de la Construcción, 66(536).
3 Manterola J. (1967). Punzonamiento de placas sin armadura de esfuerzo cortante (mecanismos de redistribución de esfuerzos y rotura). Hormigón y Acero, 18(83).
4 Martínez Calzón J & Manterola J. (1967). Estudio experimental en modelo reducido (escala 1:5) de un tramo de puente de hormigón pretensado. Hormigón y Acero, 18(83).
5 Manterola J. (1977a). Cálculo de tableros diferentes por métodos armónicos. (Monografía 343). Instituto Eduardo Torroja.
6 Manterola J. (1977b). Cálculo de tableros de puente por el método del emparrillado. Hormigón y Acero, 28(122).
7 Astiz M. A. & Manterola J. (1980). The non-linear structural problem in cable-stayed bridges. En I International Conference on Numerical Methods in Non-Linear Problems, Swansea.
8 Manterola J. (1977c). Estudio sobre tableros de puentes I: El tablero de vigas. Hormigón y Acero, 28(122).
9 Manterola J. (1977d). Estudio sobre tableros de puentes II: La sección cajón. Hormigón y Acero, 28(122).
10 Manterola J. (1977e). Estudio sobre tableros de puentes III: El puente curvo. Hormigón y Acero, 28(122).
11 Manterola J. (1977f). Estudio sobre tableros de puentes IV: El tablero oblicuo. Hormigón y Acero, 28(122).
12 Manterola J. (1976). La sección abierta y cerrada bajo solicitación excéntrica. En Hormigón – Puentes II (Monografía 15). Asociación Francesa del Cemento y el Hormigón (A.F.C.E.).
13 Monleón, S., Lázaro, C., & Casanova, J. (2019). La sección abierta y cerrada bajo solicitación excéntrica… en una viga curva. Un tributo a Javier Manterola. Hormigón y Acero, 70(289), 7-24.
14 Manterola J. (1984). La estructura resistente de los edificios altos. Informes de la Construcción, 36(359–360), 5-30.
15 Manterola J. (1984). La estructura resistente de los edificios altos. Informes de la Construcción, 36(359–360), 5-30.
16 Manterola J. (1999). Idea e innovación. Puente sobre el río Mente. Construmat
17 Manterola, J., Gil, M. A., Astiz, M. A., & Martínez, A. (1999). Pasarelas. Revista de Obras Públicas, 146(3384), 17-32.
18 Galante, D., Astiz, M. A. (2021). Design method for curved stayed cable bridges deck directrices for different cable systems. Curved and Layered Structures, 8(1), 327-336.
19 Manterola, J., Fernández Troyano, L., & Gil, M. A. (1997). El Puente de Euskalduna, en Bilbao: Acero para una ciudad de acero. Cauce, (81) 48-55.
20 Manterola, J. (2007). Puentes: Apuntes para su diseño, cálculo y construcción. Colegio de Ingenieros de Caminos, Canales y Puertos.
21 Manterola, J. (2010). La obra de ingeniería como obra de arte. Laetoli.
22 Manterola, J. (2018). Historia de los puentes Colegio de Ingenieros de Caminos, Canales y Puertos.
23 Manterola, J. (2019). Puentes que me ayudaron a entender y diseñar. Informes de la Construcción, 71(553), 2279.
dos
Caminos entrelazados



Javier Manterola y Rafael Moneo
Conversación en torno a dos caminos entrelazados
La conversación está planteada bajo el hilo conductor de Javier Manterola y Rafael Moneo como dos personas que ocupan un lugar de primer orden en la ingeniería estructural y en la arquitectura, respectivamente, de finales del siglo XX y comienzos del XXI, tanto a nivel nacional como internacional. Sus vidas han llevado caminos paralelos que se han entrelazado varias veces. Este entrelazamiento se produce de igual forma en los mundos en que tanto Javier Manterola como Rafael Moneo han participado estudiando, mirando y creando en la obra escrita y construida del mundo de la ingeniería estructural y la arquitectura. Estos mundos llevan también caminos paralelos que se entrelazan continuamente.
Javier Manterola valoraba mucho la labor de estudio, el reto que suponía el contacto con los estudiantes

Vida
Javier y tú sois navarros y de la misma generación. Javier nació en Pamplona en 1936 y tú, en Tudela en 1937. Javier comentó varias veces que os conocisteis cuando erais estudiantes en Madrid, antes de comenzar vuestras respectivas carreras de ingeniería y arquitectura. Viajamos muchas veces juntos: en verano, Semana Santa o Navidad, íbamos en el automotor de Pamplona a Madrid, que yo tomaba en Castejón desde Tudela. Me veo todavía conversando con él de intereses comunes respecto a los estudios, pero también de todo aquello que inquietaba a dos jóvenes estudiantes con ganas de vivir y con atrevidas aspiraciones intelectuales y profesionales. También como estudiantes ya ingresados en las respectivas escuelas trabajasteis juntos en una obra que se convertiría en emblemática, las Torres Blancas, en Madrid, de Francisco J. Sáenz de Oiza. ¿Qué recuerdos tienes de ese trabajo? ¿Erais conscientes de la singularidad de la obra? Celebré mucho que, a propuesta de Juan Huarte, don Carlos Fernández Casado situase a Javier Manterola como inmediato responsable de su estudio en el proyecto de Torres Blancas de Oiza. Yo había dejado ya el estudio de Oiza en otoño de 1961, por lo
que no tuve tanto que ver ni en el desarrollo del proyecto definitivo ni en la ejecución de la obra. Pero tanto Oiza como Javier me tuvieron al corriente de cómo iba el proyecto, y me consta la admiración y respeto con que ambos se trataron.
Tras finalizar vuestras carreras, Javier colabora con Carlos Fernández Casado, trabaja en el Instituto Eduardo Torroja de la construcción y del cemento realizando investigaciones en el campo del hormigón, y tú trabajas con Jørn Utzon en Dinamarca y posteriormente obtienes una beca para estudiar en la Academia de España en Roma durante dos años. ¿Estarías de acuerdo en que tanto tú como Javier comenzasteis vuestras carreras literalmente «sentados sobre hombros de gigantes»?
Citar a Newton me parece demasiado. Con seguridad, les hubiera parecido lo mismo tanto a don Carlos como a Utzon. Pero, sin duda, lo mejor que les puede pasar a quienes se inician en el conocimiento de una disciplina es contar con maestros como ellos.
En este recorrido paralelo de vuestras vidas está la faceta docente. Javier colabora en la cátedra de Puentes con Carlos Fernández Casado y se convierte en catedrático de la asignatura en 1975 en la Universidad Politécnica de Madrid. Tú, por tu
parte, obtienes la cátedra de Elementos de Composición en la Escuela de Arquitectura de Barcelona en 1971 y la de Composición en la Escuela de Arquitectura de Madrid en 1980, así como el Decanato del Departamento de Arquitectura de la Universidad de Harvard en 1985. Javier valoraba mucho la labor de estudio, el reto que suponía el contacto con los estudiantes, y los que hemos sido alumnos suyos reconocemos sus enseñanzas transmitidas a más de treinta promociones de ingenieros. ¿Qué ha significado esta labor docente para ti y qué crees que has aportado a tus estudiantes? La enseñanza obliga a quien se dedica a ella a ser exigente con uno mismo acerca de lo que es la transmisión del conocimiento, a dar razón de la visión que uno tiene de aquello que intenta contar y explicar a los estudiantes. Creo que no hay mejor ejercicio para quien luego trabaja como profesional. Por otra parte, el trato con los estudiantes te hace sentir vivo, te hace no perder contacto con lo que es el correr del tiempo. Una faceta importante en la carrera de Javier Manterola es la creación de equipos de trabajo. Él, junto con Carlos Fernández Casado y Leonardo Fernández Troyano, crean la Oficina de Proyectos Carlos Fernández Casado S. L., y en tu
En ACCIONA somos líderes en desalación por ósmosis inversa, la más sostenible, avanzada y utilizada, capaz de mejorar la calidad del agua disminuyendo el impacto sobre el entorno. Hoy más que nunca, se refleja nuestro compromiso contra la emergencia climática.


estudio han colaborado buenos equipos de arquitectos. Durante tu carrera ¿cuál es tu visión de la evolución de estudios más personales a estudios más grandes y multidisciplinares?
Hay que entender los grandes estudios como la prolongación de la enseñanza; ahí los recién titulados tienen la oportunidad de ver de cerca lo que el trabajo profesional reclama. Son una extensión de las escuelas y hay que contar con ellos como instrumentos capaces de responder a lo que hoy se reclama de los proyectos tanto en términos estrictamente técnicos y legales como de plazos y calendarios. Ello no quiere decir que estudios de menor tamaño no garanticen respuestas más adecuadas, incluso me atrevería a decir que mejores, para determinado tipo de proyectos. Ambos habéis sido miembros electos de la Real Academia de Bellas Artes de San Fernando en la división de Arquitectura. Ese es un destino ocupado por arquitectos, así que la presencia de ingenieros ahí es una excepción: Carlos Fernández Casado, José Antonio Fernández Ordóñez y ahora, Miguel Aguiló. ¿Qué recuerdos tienes del trabajo conjunto en la Academia?
Tuvimos la suerte de reencontrarnos en la Academia de Bellas Artes, como en los viejos tiempos. Javier se sentía muy contento al ver ingenieros constructores presentes en la Academia, colaborando codo a codo con los arquitectos. Entendía que las obras de ingeniería civil no son algo ajeno a las bellas artes, sobre todo los puentes, por los cuales él sentía tanta debilidad. Para Javier, un puente era capaz de asumir toda la carga estética — incluso me atrevería a decir metafísica— a la que una cultura aspira.
El paralelismo vital llega al reconocimiento del mundo de la cultura y de vuestros compañeros a nivel nacional e internacional. Javier y tú habéis recibido el Premio
Príncipe de Viana de la Cultura por parte


del Gobierno de Navarra; Javier recibió el Premio Nacional de Ingeniería Civil, en su primera edición en 2001; tú, por tu parte, el Premio Nacional de Arquitectura. Recibiste también el Premio Pritzker en 1996 y Javier el Premio IABSE (Asociación Internacional de Puentes e Ingeniería Estructural), que pueden ser considerados, respectivamente, como los Premios Nobel de la arquitectura y la ingeniería estructural. Javier estaba muy orgulloso de estos premios por lo que significaba de reconocimiento personal y a la ingeniería de nuestro país. ¿Qué supone para ti estos reconocimientos y otros muchos que has recibido en tu carrera?
Muchas veces comenté con Javier que tanto él como yo podíamos sentirnos bien pagados por parte de la sociedad respecto a nuestro trabajo. No todos los profesionales tienen la fortuna de ver reconocido su esfuerzo y entrega.
Obra construida
En vuestra primera etapa profesional tanto Javier como tú trabajasteis en Pamplona. Javier, en la estructura de la iglesia de Santiago Apóstol, del arquitecto Francisco Javier Guibert, y en edificios de viviendas con Fernando Redón Huici. Tú, por tu parte, proyectaste el edificio de viviendas de la calle Plazaola. ¿Conociste a estos arquitectos? ¿Se puede hablar de una escuela navarra de arquitectura?
Conocí a Javier Guibert y a Fernando Redón. Javier Guibert era un arquitecto interesado en las estructuras, y me consta la admiración que sentía por su paisano. Junto con Fernando Redón, hicieron un notable conjunto de
edificios en Pamplona. Pero de ahí a pensar que con ellos se instaura una escuela navarra de arquitectura me parece demasiado. Javier Manterola, desde la Oficina Técnica de la empresa constructora Huarte y Cía., y trabajando en la Oficina de Proyectos junto con Carlos Fernández Casado y Leonardo Fernández Troyano, tuvo una intervención destacada en el proyecto de las estructuras de tres edificios muy importantes en Madrid: las Torres Colón, de Antonio Lamela; el Banco de Bilbao, de Francisco Javier Saenz de Oiza, y el edificio del Banco de Santander, de José Antonio Ridruejo. En tu opinión, ¿tuvieron algún impacto en el mundo de la arquitectura en su momento? En tu caso no es conocida una aproximación a edificios en altura.
Son tres proyectos muy distintos. El del Banco de Santander habría que calificarlo de convencional. Las circunstancias singulares que se daban en la cimentación del Banco de Bilbao dieron lugar a una estructura compleja para la que Javier Manterola volvió a colaborar con Oiza, contribuyendo muy notablemente a lo que es su arquitectura. En cuanto a las Torres de Colón, pienso que en ellas Lamela utilizó la experiencia adquirida, dando pie a un edificio cuya reciente historia se sigue escribiendo. Sin duda, de las tres, la de mayor impacto ha sido la del Banco de Bilbao.
Con respecto a mi aproximación a edificios en altura, de más de veinte plantas, se reduce a los laboratorios para la Universidad de Columbia en Nueva York (Northwest Corner Building), la Torre Puig en Barcelona y a un edificio de viviendas recién terminado en Seúl (Eterno Cheongdam).
En la década de los 90, Javier y tú coincidisteis en el proyecto de ampliación de la estación de Atocha en Madrid. El proyecto arquitectónico, especialmente el de la sala hipóstila, planteaba una serie de retos estructurales y constructivos que abordasteis de forma conjunta. ¿Tienes algún recuerdo especial de esta colaboración?
El proyecto inicial contemplaba una sala hipóstila resuelta en hormigón. La urgencia que la construcción de la estación reclamaba hizo que se considerase la conveniencia de ejecutarla en acero, y fue ahí donde apareció la precisa intervención de Javier. Este trabajo trajo consigo nuevas colaboraciones en las ampliaciones sucesivas de la estación.
En efecto, la oficina de Carlos Fernández Casado quedó desde entonces adscrita a un proyecto que, dada la importancia que En

©Michael Moran
Atocha tiene para la red ferroviaria española, no ha dejado de crecer.
Una obra fundamental en tu carrera es la obra del solar K de San Sebastián: el auditorio del Kursaal. En esta obra, Javier colaboró contigo desde el proyecto. ¿Qué recuerdos tienes de esta colaboración?
Más que recuerdos, una pregunta como esta me hace pensar en cómo nuestras carreras profesionales quedaron anticipadas en aquellas largas conversaciones en el automotor Madrid-Pamplona.
El proyecto planteaba unos grandes retos estructurales: fachadas inclinadas y transparentes, las pantallas y graderíos de los auditorios, las escaleras… Aunque pueda parecer otra cosa, la estructura de un edificio como el Kursaal es clara, ya que es posible distinguir en ella una estructura de hormigón que soporta el programa y otra metálica acristalada que la envuelve, resolviendo así la construcción de una propuesta arquitectónica en la que una concepción abstracta prevalece. La metáfora que pretendía hacer ver lo construido como un episodio pseudogeológico, como unas rocas varadas, se veía así cumplida mediante una estructura como esta.
En el planteamiento de la obra tengo entendido que la propuesta de Rocas Varadas hace referencia a la obra escultórica de Jorge Oteiza y Eduardo Chillida. En este sentido, puede ser interesante conocer tu opinión sobre si el mundo de la arquitectura y el de la escultura pueden considerarse mundos entrelazados.
Con una propuesta estética tan cercana a la metafísica, se entiende que la obra de Oteiza



Javier Manterola realizó una labor de reivindicación de la ingeniería “como obra de arte”
en entender de qué modo se producen los continuos préstamos entre disciplinas que pueden parecer diversas.
Obra pensada y escrita
Dentro de lo que podría denominarse la obra pensada y escrita de Javier Manterola, está su mirada al mundo de la arquitectura y, desde luego, su mirada al mundo de la ingeniería, reivindicando su valor en todas las áreas: la ingeniería estructural, la ingeniería de las obras hidráulicas, la ingeniería de las obras lineales de carretera y ferrocarril… Parafraseando la conocida obra de Bruno Zevi, vendría a ser un «saber ver la ingeniería». Tu obra, también pensada y escrita, es una auténtica lección sobre tu visión del mundo de la arquitectura para «saber ver la arquitectura». ¿Tienes alguna mirada del mundo de la ingeniería?
Toda obra humana —que por su misma naturaleza requiere manifestarse materialmente— necesita el soporte de una forma, y toda actividad constructora, cualquiera que sea, reclama la ayuda de principios derivados de la visión completa del mundo que una sociedad tiene y que impregna todo aquello que hacemos, esto es, la cultura mediante la cual se manifiesta. Así las cosas, las obras de
ingeniería civil o de infraestructura no son ajenas a lo que entendemos como obra de arte. De ahí que haya siempre que dar lugar, en toda forma construida, a una presencia, consciente o no, de la cultura en que vivimos y que da pie a decir que las formas no están predeterminadas ni inevitablemente sometidas a leyes y normas.
Javier Manterola, en su etapa de académico de la Real Academia de Bellas Artes de San Fernando, realizó una labor de reivindicación de la ingeniería ‘como obra de arte’. Fruto de ello, la obra del puente sobre la bahía de Cádiz figura como una propuesta innovadora en el Museo de la Academia. Aunque la conceptualización de lo que puede considerarse obra de arte no está resuelta, y en mi opinión es una cuestión difícil, ¿cuál es tu opinión al respecto? ¿Crees que existe alguna relación entre el mundo de la escultura, la ingeniería y la arquitectura? El caso del puente sobre la bahía de Cádiz puede que exceda, dada su escala, la consideración de una obra concreta de infraestructuras, pues su significado debe entenderse —y por tanto valorarse— en unos términos medioambientales tan amplios que trascienden los juicios y opiniones meramente formales.
tres
In memoriam


En recuerdo de Javier Manterola
Tres ejemplos de su aproximación al problema del diseño de los puentes: Zamora, Valladolid y Endarlatsa
Una de las cualidades que distingue a Javier Manterola es su faceta de maestro. Entendido esto en su acepción más amplia: no solo por la calidad técnica de sus obras, sino también por ser una figura que, más allá de lo académico, transmite una dimensión ética, formativa y humana que ha servido —y sigue sirviendo— de modelo para quienes tuvieron el privilegio de aprender de él.
Además de su excelencia como ingeniero y profesor, Manterola fue siempre extremadamente generoso tanto al compartir su conocimiento con la profesión en general como al estimular, de forma cercana y constante, a los colaboradores que trabajamos directamente con él a lanzarnos sin miedo al ejercicio del diseño. Esa actitud ha hecho posible que, junto con un legado excepcional de obras y publicaciones que han influido profundamente en alumnos, discípulos y en cualquier
apasionado por el mundo de los puentes, su ejemplo personal siga siendo, sin duda, una fuente viva de inspiración para las futuras generaciones de ingenieros estructurales.
Los numerosos artículos, conferencias y libros que produjo a lo largo de más de cincuenta años de trayectoria abarcan desde los aspectos más técnicos del cálculo estructural hasta sus reflexiones sobre la estética en la ingeniería y su relación con la arquitectura y otras disciplinas. Muchos otros pueden abordar con mayor propiedad que yo esos aspectos técnicos o estéticos. Por ello, mi aportación a su recuerdo y a la difusión de su obra la he querido enfocar desde una experiencia personal: la de haber sido miembro de su equipo en la oficina de proyectos que cofundó junto con don Carlos Fernández Casado, y en la que desarrolló prácticamente toda su vida profesional.
Mi trayectoria junto a él, desde los inicios hasta llegar a ser uno de sus colaboradores y finalmente coautor de algunos de sus últimos proyectos, me permitió ser testigo directo durante años de su forma única de enfrentarse al problema del diseño estructural, en particular al de los puentes. En este artículo intento, a través de tres obras concretas, transmitir parte de esa experiencia de trabajar con un ingeniero irrepetible, y con ello, contribuir a una mayor apreciación de sus diseños y de su legado. Las tres obras elegidas no están necesariamente entre las más grandes o conocidas de su carrera, pero para mí son obras donde se aprecia muy bien su sello y ejemplifican con claridad su genialidad al abordar el problema del puente en tres escenarios muy distintos, que resolvió con aproximaciones diversas, pero siempre fiel a su forma de pensar como ingeniero.

1. Alzados de las alternativas estudiadas para el emplazamiento final de la obra.
2. Vista desde aguas arriba de los tramos sobre el río.
3. Vista escorzada del nuevo puente.
4. Vista escorzada del puente de piedra medieval situado 1 km aguas arriba.
5. Vista del intradós de los vanos asemejando el salto de una piedra rebotando sobre el agua.




Puente de los Poetas sobre el río Duero, Zamora (2005–2014)
Aunque se trata de una obra de apariencia sencilla, con una solución estructural relativamente convencional, es uno de los diseños de Javier que considero más acertados y del que conservo un recuerdo especialmente valioso. Además de haber sido la última obra en la que participé como coordinador de uno de sus diseños, tuve la oportunidad de acompañar el proyecto desde sus estudios iniciales hasta su finalización.
El nuevo cruce respondía a una necesidad largamente sentida por los habitantes de esta singular ciudad castellanoleonesa. Se trataba de resolver un importante problema urbano, de tráfico y patrimonial: ya entrado el siglo XXI, uno de los dos únicos cruces verdaderamente urbanos sobre el Duero seguía siendo el puente de piedra medieval. A pesar de las
importantes modificaciones sufridas a principios del siglo XX, aquel puente es un elemento imprescindible en la historia y el paisaje urbano de Zamora.
En paralelo al estudio del emplazamiento para el nuevo puente, se analizaron distintas alternativas tanto constructivas como formales para cada posible ubicación. Las interacciones con los responsables del proyecto, así como con agentes clave como las comisiones de patrimonio, condujeron a la decisión de situar el nuevo cruce aguas abajo del puente histórico, alejándolo del centro monumental.
En este contexto, Javier planteó una serie de soluciones que iban desde propuestas audaces —como estructuras de celosía o tableros atirantados— hasta diseños más contenidos que evocaban los arcos, pero que, en realidad, eran vigas de canto variable. Finalmente, se adoptó la solución que Javier denominaba «clásico-moderna», por
ser la que mejor conciliaba las exigencias de integración visual con el río y con la ciudad, así como la preocupación que generaba una intervención de envergadura tan próxima al centro histórico monumental. Todo ello sin renunciar a las dimensiones propias de un puente contemporáneo.
La solución adoptada fue un dintel continuo de canto muy variable, que remite visualmente a una arcada múltiple. Incorporaba además grandes huecos circulares en los vanos centrales, un guiño deliberado a los arquillos de descarga de los puentes de fábrica tradicionales. Este diseño cristalizó finalmente en una realización que, de alguna manera, logró sintetizar los deseos, opiniones y condicionantes que rodearon al proyecto. Conviene subrayar aquí que Javier nunca comulgó con la obsesión por la protección sistemática de toda obra antigua, ni con el rechazo casi automático a introducir formas

nuevas en entornos consolidados bajo el argumento de conservar su pureza o identidad. Sin dejar de valorar el mérito histórico y técnico de las obras realizadas por arquitectos e ingenieros a lo largo del tiempo, consideraba que la antigüedad por sí sola no debía ser un criterio absoluto para impedir el desarrollo de soluciones contemporáneas. No era raro escucharle afirmar que, en muchos casos, «lo nuevo es mejor que lo antiguo». Con todo, la obra pretendía ser respetuosa y discreta, pero sin renunciar a una presencia firme y moderna. Desde el punto de vista estructural, se trata de una solución relativamente convencional: un puente viga, con sección en cajón de hormigón pretensado formado por dos calzadas independientes, con luces no extraordinarias (92 m) y construido mediante el procedimiento de avance en voladizo, una técnica bien asentada y ampliamente conocida.
Lo realmente interesante del proyecto reside en el modo en que Javier, partiendo de esta configuración convencional, consiguió generar una obra singular, cuidadosamente integrada en su entorno y respetuosa con el puente histórico próximo. Por un lado, acentuó de forma deliberada el canto del tablero sobre los apoyos para reforzar su semejanza visual con una solución en arco. A esto añadió los grandes huecos circulares mencionados, que, si bien no tienen función hidráulica —como en los antiguos puentes de sillería—, cumplen aquí un papel fundamental aligerando visualmente la estructura y estableciendo un vínculo formal con la tradición de los constructores medievales (Manterola et al., 2014a, 2014b)
El intradós curvo de la obra ofrecía además una dimensión poética: evocaba, según contaba él mismo, el movimiento ondulado de una piedra saltando sobre la superficie del agua. El chipi-chapa de sus juegos infantiles en Pamplona, como solía llamarlo con afecto al hablar de este proyecto. Así, mediante unos pocos ajustes a una solución ortodoxa de sección cajón, logró una geometría dinámica y ligera, y, en definitiva, una obra que ha terminado por integrarse plenamente en el paisaje urbano de Zamora. Aunque inicialmente se proyectó revestida en piedra natural, la solución final se ejecutó en hormigón blanco con tratamiento de textura en las caras visibles. El borde curvo del intradós queda destacado mediante una moldura que refuerza la percepción de su perfil dinámico. Desde la plataforma del puente se abren nuevas vistas inéditas del promontorio histórico de la ciudad, con la catedral como espolón visual destacado. Esto ha hecho que el puente se haya convertido también en un itinerario muy frecuentado por los propios habitantes de Zamora.
Pasarela Pedro Gómez del Bosque sobre el río Pisuerga, Valladolid (2005-2010)
1. Alzado longitudinal.
2. Vista aérea de la implantación de la pasarela y de la zona de intervención en las márgenes.
3. Vista frontal desde aguas arriba.
4. Vista de las piezas prefabricadas acopladas.
5. Colocación de las piezas prefabricadas.
6. Vista desde aguas arriba de la obra terminada
7. Sección transversal tipo del tablero y vista inferior del mismo.



Pasarela Pedro Gómez del Bosque sobre el río Pisuerga, Valladolid (2005-2010)
Esta obra nace de una iniciativa del Ayuntamiento de Valladolid, en colaboración con la Confederación Hidrográfica del Duero, que pretendía recuperar la margen izquierda del río Pisuerga a lo largo de su paso por la ciudad mediante la creación de un itinerario peatonal ininterrumpido. En ciertos puntos estratégicos donde las márgenes estaban mal comunicadas, se plantearon nuevos cruces exclusivamente peatonales.
El cruce que nos ocupa se sitúa en el tramo final del recorrido urbano del río, en una zona de desarrollo relativamente reciente. La pasarela conecta una plaza pública en la margen izquierda con una zona baja, inundable, en la margen derecha, precisamente donde el río describe una marcada curva. La propia dinámica fluvial explica las diferentes
condiciones de sus orillas: escarpadas en la curva externa, donde se produce la mayor erosión, y tendidas donde históricamente se han ido depositando sedimentos. Durante la visita al emplazamiento en la fase de concurso (2004), Javier identificó rápidamente que esas condiciones eran idóneas para plantear una pasarela colgada tipo span band, esto es, de banda tesa. Se trata de una disposición estructural especialmente atractiva para los ingenieros, ya que ofrece una conexión casi ideal entre forma y función, tema por el que él sentía un profundo interés.
Las bandas tesas se caracterizan por relaciones flecha/luz muy reducidas —en el orden de 1/50—, lo que genera grandes fuerzas de tracción que deben ser absorbidas por estribos concebidos como verdaderos macizos de anclaje. Esta alta tracción es precisamente la que permite controlar las deformaciones bajo sobrecargas, aunque a cambio
se introduce un comportamiento estructural marcadamente no lineal.
Aunque ya había diseñado una pasarela con esta tipología —en aquel caso en hormigón pretensado—, finalmente no llegó a construirse. Cuando me comentó su idea de emplearla en Valladolid, le pregunté qué opinaba sobre las soluciones que había desarrollado Jörg Schlaich, utilizando pletinas metálicas como elementos portantes y plataformas de hormigón no colaborante. Javier las conocía perfectamente y, de hecho, ya las tenía en mente. Aquella experiencia previa con hormigón le había dejado claro que los problemas de fluencia y retracción, inherentes al material y acentuados por la flexibilidad del sistema, dificultaban el control geométrico de la estructura.
Se adoptó esta disposición; inicialmente con dos pletinas de acero continuas, pero luego, durante la obra, se modificaron a




propuesta del constructor por una sola sobre la que se situaron losas prefabricadas de hormigón ligero sin contribución al trabajo longitudinal de la estructura. De este modo se evitaron los citados problemas de deformaciones diferidas.
El proyecto incluía también la estabilización de los taludes y la protección de la margen izquierda para evitar que la erosión progresiva comprometiera las edificaciones próximas.
El diseño final resultó en una pasarela de 100 metros de longitud total, con un vano colgado de 85 metros, que —según los datos que manejábamos en aquel momento— constituía la mayor luz realizada hasta entonces con pletinas metálicas como elementos portantes. (Manterola et al., 2010, 2014 y 2011)
Tuve la responsabilidad de desarrollar el proyecto incluyendo el dimensionamiento estructural, lo que supuso una experiencia
apasionante, precisamente por el carácter novedoso del sistema. Empleé para ello los recursos de cálculo más avanzados disponibles en la oficina en ese momento: modelos de elementos finitos tipo lámina, análisis no lineales, simulaciones dinámicas… Todo con el objetivo de reproducir con precisión el comportamiento real de la estructura. Se estudiaron la fuerte no linealidad geométrica de la respuesta, las flexiones parásitas en el contacto entre las pletinas y las sillas de anclaje, y el comportamiento dinámico frente al paso de peatones —entonces era reciente aún el caso emblemático de la pasarela del Milenio de Londres.
Recuerdo especialmente cuando presenté los resultados a Javier. Tras revisar los documentos, rebuscó entre sus notas personales hasta encontrar una cuartilla con unas conclusiones que había elaborado años antes, fruto de su estudio sobre este tipo de
estructuras. En una sola hoja tenía sintetizado prácticamente todo lo necesario para diseñar la pasarela, algo que me había ocupado semanas.
El resultado es realmente magnífico: una estructura de extrema sencillez y transparencia, tanto en su visión diurna como en la nocturna, gracias a la cuidadosa iluminación LED que la acompaña.
Probablemente se encuentra entre las obras más ligeras y esbeltas diseñadas por Javier, algo favorecido por la propia tipología colgada, en la que plataforma y elemento sustentante se funden visual y estructuralmente. Esa claridad visual, como tantas veces ocurre, oculta una gran complejidad técnica, tanto en el diseño como en el cálculo y en la ejecución. Pero precisamente por eso refleja algunos de los ideales más queridos por Javier en sus obras: esbeltez, ligereza y tensión contenida.


1. Alzado longitudinal y planta del puente.
2. Vista aguas debajo de la obra terminada.
3. Secciones transversales tipo de tablero y arco.
4. Situación intermedia durante el abatimiento de los semiarcos.

Puente de Endarlatsa sobre el río Bidasoa, Navarra-Guipúzcoa (2006-2010)
Para Javier, este proyecto, como todas las obras que realizó en Navarra y el País Vasco, tenía un significado especial ya que se sentía profundamente vinculado a estos territorios por su origen navarro. A ese vínculo personal se sumaba en este caso un componente afectivo: el nuevo puente venía a sustituir un arco de hormigón construido en los años 50 del siglo XX por su pariente Jesús Redón, también él un notable ingeniero navarro.
El emplazamiento tenía un carácter simbólico, pues unía a las dos comunidades autónomas, pero además poseía un elevado valor ambiental y paisajístico. Por ello, el diseño del puente debía minimizar el contacto con el cauce del río, tanto durante la fase de ejecución —para preservar el ecosistema— como en su estado en servicio, evitando
interferencias en el curso del agua, especialmente durante episodios de avenida.
A estas restricciones ambientales se sumaba otra condicionante importante: el trazado de la carretera requería que el nuevo cruce se resolviera en un tramo curvo. Este conjunto de factores permitió a Javier proponer, de forma casi natural, una solución en arco con tablero superior, pero incorporando una tipología que llevaba tiempo estudiando con interés: el arco espacial.
Es bien sabido que, a menos que su geometría siga con precisión una forma antifunicular tridimensional, los arcos no planos están sometidos a fuerzas fuera de su plano, lo que genera momentos flectores y esfuerzos cortantes transversales adicionales (Manterola et al. 2011, Jorquera & Manterola, 2007).
Existen distintas estrategias para afrontar estas solicitaciones, como el uso de cables activos para contrarrestar los efectos de desviación (como en el puente sobre el río Galindo (Manterola et al. 2011) (Manterola & Gil, 20008), o bien el incremento de la rigidez transversal del arco mediante el ensanchamiento de su sección.
En el caso de Endarlatsa, dado que la curvatura en planta era moderada, se optó por esta última solución: aumentar ligeramente el ancho del arco bastó para dotarlo de la rigidez transversal necesaria sin comprometer la limpieza formal de la obra.
El nuevo cruce, además, se producía con una importante desviación respecto al eje del cauce, lo que implicó que la luz principal de la nueva estructura (100 m) fuera



aproximadamente el doble de la del puente anterior. Las condiciones de apoyo permitieron entonces adoptar la solución de arco con tablero superior, pero con un rebajamiento notable (flecha/luz ≈ 1/10), que proporcionaba a la obra una tensión visual muy acusada, una cualidad que Javier apreciaba especialmente en los puentes arco.
El resultado es una estructura de 190 metros de longitud total, resuelta con 10 vanos: 15,00 m + 8×20,00 m + 15,00 m. Los cinco vanos centrales, de 20 metros de luz cada uno, se apoyan sobre un arco parabólico de 100 metros de luz y 10 metros de flecha en clave (Manterola et al. 2008, 2010) (Manterola et al. 2011).
El tablero está constituido por una viga cajón metálica en forma de artesa, con
vuelos laterales apoyados en costillas metálicas. Sobre estas se dispone una losa de hormigón armado que colabora estructuralmente con la viga metálica, formando un sistema de acción mixta.
El arco está formado por dos tubos de borde de 1,00 m de diámetro, rellenos con

hormigón sin retracción, y unidos entre sí mediante chapas tangentes horizontales de dimensiones variables, configurando así una sección cerrada que aporta rigidez torsional y eficiencia estructural.
Para evitar afectar al río durante las obras, el arco se montó mediante el procedimiento de abatimiento, una técnica que permite ensamblar la estructura sin intervenir directamente sobre el cauce, desplegando el arco desde posiciones laterales hasta su configuración final.
Dado el carácter simbólico de la unión entre ambos territorios que representaba esta obra, el acto de cierre del arco contó con la presencia institucional del presidente del Gobierno de Navarra y del lehendakari del Gobierno Vasco.
Referencias
1 Manterola J., Muñoz-Rojas J., Navarro G., Valerio J.A., Fernández S., Faúndez H. (2014). Puente de los poetas sobre el río Duero en la ciudad de Zamora VI Congreso de la Asociación CientíficoTécnica del Hormigón Estructural, Madrid.
2 Manterola J., Muñoz-Rojas J., Navarro G., Valerio J.A., Fernández S., (2014). The Puente de los poetas (Poets Bridge) over the Duero River in the City of Zamora. 37th IABSE Symposium, Madrid.
3 Manterola J., Muñoz-Rojas J., AlonsoVillalobos J. (2010). Pasarela peatonal “Pedro Gómez del Bosque” sobre el río Pisuerga en la ciudad de Valladolid. Un nuevo récord de longitud en pasarelas colgadas de banda tensa. V Congreso de
Manterola fue siempre extremadamente generoso al compartir su conocimiento con la profesión
la Asociación Científico-Técnica del Hormigón Estructural, Barcelona.
4 Manterola J., Muñoz-Rojas J., AlonsoVillalobos J. (16-18 de julio de 2014). “Pedro Gómez del Bosque” Stress ribbon footbridge over the River Pisuerga in Valladolid 5.º Congreso Internacional Footbridges 2014–Past, present & future, Londres.
5 Manterola J., Muñoz-Rojas J & Gil M. Á. (2011). Spatial arch bridges over the Galindo and Bidasoa rivers. Structural Engineering International, 21(1), 114–21. https://doi.org/10.2 749/101686611X12910257102794
6 Manterola J., Muñoz-Rojas J. (24–27 de noviembre de 2008). Nuevo puente sobre el río Bidasoa Endarlatsa. En: IV Congreso de la Asociación
Científico-Técnica del Hormigón EstructuralCongreso Internacional de Estructuras, Valencia.
7 Manterola J., Muñoz-Rojas J. (27-29 de abril de 2010). Nuevo puente sobre el río Bidasoa Endarlatsa. II Jornadas sobre puentes. La construcción en el proyecto y el proyecto en la construcción. Donostia-San Sebastián.
8 Jorquera J.J., Manterola J., Estudio del comportamiento resistente de los puentes de arco espaciales Tesis doctoral-E.T.S.I. Caminos, Canales y Puertos (UPM). 2007. Madrid.
9 Manterola J, Gil M. Á. (24-27 de noviembre de 2008). Puente sobre el río Galindo en Baracaldo En: IV Congreso de la Asociación CientíficoTécnica del Hormigón Estructural–Congreso Internacional de Estructuras, Valencia.


José Romo
Diseño e innovación en la obra de Javier Manterola
La relevancia de la obra de Javier Manterola se refleja en los numerosos libros y artículos que destacados colegas le dedicaron en vida, así como en el interés que sus proyectos han despertado entre ingenieros de puentes de todo el mundo. Muestra de ello es el gran número de galardones tanto nacionales como internacionales que recibió a lo largo de su carrera.
Es imposible realizar aquí un análisis completo de su extensa obra. La intención es otra: ofrecer una visión de lo que, a mi juicio, constituye el núcleo de su legado. Porque, si
hay un factor común en toda su trayectoria, es una forma muy particular de ejercer la disciplina. Una manera de hacer que se apoyó siempre en dos pilares esenciales: el diseño y la innovación.
Tal vez al lector le sorprenda que el punto de partida de este análisis sea el diseño. Para aclararlo, me remito a la entrevista, publicada en el número 3636 de la ROP, en la que él mismo reivindicaba con claridad la distinción entre proyecto y diseño. Allí afirmó con convicción que se consideraba, ante todo, un diseñador de puentes. Para él, estaba claro
que diseñar, en el sentido más profundo, es proyectar con intención.
El segundo rasgo distintivo de su obra es la innovación. No se trata de una innovación asociada al uso de nuevos materiales o sistemas constructivos —como sucede en la obra de Freyssinet—, sino de una innovación centrada en la exploración de las posibilidades resistentes asociadas a las formas. Manterola fue, sobre todo, un creador de formas resistentes: configuraciones que respondían tanto a los condicionantes específicos del contexto como a una búsqueda deliberada






¿Hacemos realidad el tuyo?
















La innovación en la obra de Manterola radica en la concepción de formas y sistemas estructurales inéditos
de la eficacia estructural, conjugada con una formalización de alta calidad. En este sentido, puede decirse que su línea de trabajo es paralela a la realizada por Eduardo Torroja en el ámbito de la edificación singular —con ejemplos como el Hipódromo de la Zarzuela o el Frontón Recoletos—. La innovación en la obra de Manterola, al igual que en la de Torroja, radica en la concepción de formas y sistemas estructurales inéditos.
Las primeras obras: clasicismo y valentía Para comprender en profundidad el impacto de la innovación y el diseño en la obra de Manterola, es necesario comenzar reflexionando sobre sus primeros puentes. Estas obras iniciales constituyen ejemplos de la aplicación precisa de soluciones clásicas y canónicas. Sin duda, estos primeros proyectos fueron un campo de aprendizaje crucial que cimentó los principios técnicos y formales sobre los cuales más tarde desarrollaría su propio lenguaje estructural.
Entre estas primeras intervenciones destacan los puentes de dintel constante y trazado curvo del nudo Norte-La Paz en Madrid (1973) y, sobre todo, dos hitos tempranos: la pasarela atirantada sobre la M-30 (1976), una estructura precisa y contenida;
y su colaboración en 1978 con Leonardo Fernández Troyano en el puente Sancho el Mayor, uno de los primeros puentes atirantados del mundo con un sistema de atirantamiento tridimensional que, además de ser estructuralmente eficaz, genera una espacialidad inédita en el ámbito de los puentes. Sin embargo, el verdadero punto de inflexión en su trayectoria llegó con el puente de Barrios de Luna —hoy conocido como puente Ingeniero Carlos Fernández Casado—. Concebida alrededor de 1980 y construida entre 1981 y 1983, esta obra marcó un hito

en la ingeniería civil internacional: con una luz principal de 440 metros, estableció un récord mundial en puentes atirantados con tablero de hormigón. Es importante destacar la valentía de Javier Manterola, quien tenía apenas 44 años cuando concibió esta obra monumental. En un momento en que los métodos de análisis disponibles se basaban principalmente en cálculos manuales, herramientas gráficas y, en el mejor de los casos, programas informáticos muy básicos, era un tiempo en que los ordenadores comenzaban a introducirse en las oficinas de ingeniería. El resultado fue un puente que no solo resolvía con eficacia el cruce del embalse del río Luna, sino que también deslumbró a la ingeniería internacional por sus dimensiones y por la claridad formal de su diseño. Esta fase inicial, regida por el empleo de soluciones clásicas, es una etapa común en todos los ingenieros estructurales y debe ser vista como un paso fundamental en su evolución. Solo a través de esta consolidación teórica y práctica de saberes se afianzan las bases que luego permitirán dar el salto hacia un diseño más refinado y la innovación. La ortodoxia, o si se quiere, el clasicismo, lejos de ser una limitación, se convierte en el trampolín necesario para la creación de formas estructurales más originales y audaces.


Reinterpretación de los tipos estructurales
Superada la etapa inicial de aprendizaje y consolidación profesional, Javier Manterola inicia una etapa de madurez creativa en la que reinterpreta las soluciones canónicas con un lenguaje propio, combinando rigor técnico con sensibilidad formal.
Esta evolución se manifiesta en una serie de puentes, proyectados a partir de los años noventa, que no solo resuelven con solvencia los retos técnicos, sino que también exploran
nuevas formas resistentes. El puente sobre el río Ebro en la Ronda de la Hispanidad de Zaragoza (2002) es paradigmático en este sentido. Aquí, Manterola propone un arco con tablero inferior y sección triangular, donde el mecanismo de torsión se resuelve desde el propio tablero.
En esta misma línea de reinterpretación de los tipos estructurales, el viaducto ferroviario sobre el Ebro en Osera (2001), perteneciente a la línea de alta velocidad Madrid-Barcelona, representa un ejercicio
de recuperación crítica de soluciones históricas. El paso del tren por el interior de un tablero en cajón, en un tramo de escasa altura sobre el río, es una decisión cargada de sentido. La sección de hormigón pretensado, con grandes aligeramientos circulares en las almas, no solo optimiza el comportamiento resistente, sino que confiere a la obra un carácter singular y reconocible.
El puente sobre el Guadalquivir en Córdoba (2005) supone una nueva exploración tipológica, al introducir un único mástil
central con un haz de cables rebajado y puntales longitudinales. Esta solución permite aligerar el tablero y lograr una esbeltez notable, a la vez que construye un gesto formal claro y elegante. Este mismo principio, adaptado a una escala mayor y a las exigencias del tráfico mixto (carretera y ferrocarril), se desarrolla posteriormente en el puente sobre el Danubio entre Vidin y Calafat (2012), donde Manterola vuelve a demostrar su capacidad para adaptar ideas estructurales a contextos complejos sin renunciar a la claridad formal.
El encaje en el terreno es otro de los ejes que articulan su obra. Los viaductos de Gorostiza (2012), que cruzan el embalse con calzadas en curva y no paralelas, son una demostración de cómo una solución técnicamente exigente puede resolverse con sobriedad y belleza.
Esta búsqueda de síntesis alcanza una expresión ejemplar en el Puente de los Poetas de Zamora (2013), donde una simple viga cajón se convierte en un ejercicio de depuración formal y coherencia estructural. La
curvatura en planta, la ley variable de cantos, el perfil del alzado y los aligeramientos circulares sobre las pilas se integran en una composición que, sin abandonar la ortodoxia estructural, alcanza una alta calidad plástica y se inscribe con naturalidad en el paisaje fluvial de Zamora. Más que una sucesión de obras singulares, este conjunto constituye un manifiesto construido de lo que significa para Manterola «proyectar con intención»: entender la estructura como una síntesis entre
lógica resistente y expresión formal. Cada puente responde a su contexto y a sus condicionantes específicos, pero todos comparten una misma voluntad de fondo: alcanzar una unidad inseparable entre apariencia y esencia, entre técnica y belleza.
Lo curvo: la innovación formal y resistente
Aunque en muchos de los puentes anteriores se muestra no solo la rica interpretación que hace Manterola de los tipos estructurales canónicos, sino también cómo introduce variaciones en ellos, es quizás en los puentes curvos donde, a partir de la innovación estructural, ha conseguido formas y sistemas realmente espectaculares. El conocimiento profundo de los fenómenos de torsión y
flexión, junto con las capacidades que brindaron las herramientas de cálculo a partir de mediados de los años 90 del siglo XX, le permitieron crear estructuras rigurosas y dotadas de gran fuerza plástica.
La exploración de estas formas es, de alguna manera, paralela a la realizada en esos años por otro coloso de la ingeniería estructural: Jörg Schlaich. Mientras que este las desarrolló para estructuras colgantes, Manterola lo hizo en estructuras atirantadas y arcos.
Ejemplos notables de estas obras son la pasarela del Malecón (1996), la pasarela sobre el río Manzanares y la M-30 (2003), y el arco de Galindo (2007).
Pero quizá la estructura más rotunda dentro del conjunto de esos puentes curvos es la Pasarela del Voluntariado, construida
con motivo de la Exposición de Zaragoza de 2008. La curvatura del tablero, la inclinación del mástil con sus tirantes de compensación y la sustentación lateral del tablero mediante un sistema de atirantamiento le otorgan a la estructura una gran fuerza expresiva. Si bien la máxima espectacularidad la alcanza Manterola con la pasarela de Zaragoza, quizá la obra más innovadora es el puente Euskalduna de Bilbao (1998). La estructura cuenta con una única celosía vertical de planta curva, que sirve como elemento de separación entre el tráfico rodado y los peatones. La falta de capacidad a torsión de la celosía se compensa gracias al par de fuerzas horizontales que se genera entre el tablero, trabajando en su mismo plano, y la celosía horizontal superior, que además

funciona como visera de protección para los peatones.
La composición en las grandes luces En las dos primeras décadas del siglo XXI, Manterola proyecta varias obras de gran luz. Son puentes generalmente atirantados o en arco con tablero superior, con luces que oscilan entre los 230 y 540 metros. Estas obras de gran porte destacan por el cuidado en las proporciones, las formas, la composición del conjunto y su encaje en el lugar. Se trata de trabajos realizados desde la ortodoxia (la envergadura no permitiría otra cosa), pero siempre con un cuidado formal exquisito y un lenguaje propio.
Entre los ejemplos más representativos de estos grandes puentes se encuentran el
puente atirantado de Waterford (230 m, 2009), el puente de Magdalena (380 m, 2014), el puente de Cádiz (540 m, 2015), así como los puentes de arco de Contreras (261 m, 2009) y Alcántara (324 m, 2019).
Lo que distingue a estos puentes es la forma en que Manterola abordó su proyecto, preocupándose no solo por la resolución del vano principal, sino también por la composición del conjunto: la continuidad de cantos de los tableros al pasar de los accesos al vano principal, la secuencia continua de luces en los accesos y sobre los arcos, etc. Estas decisiones de diseño son constantes en su obra. Estos aspectos no solo reflejan su rigurosidad técnica, sino también su visión integral, que ha creado escuela en la ingeniería de puentes española.

En definitiva, la obra de Manterola vuelve a demostrar en estos puentes que un buen diseño no requiere especulaciones formales innecesarias. Lo fundamental es el manejo adecuado de las fuerzas, un cuidado riguroso de la composición del puente y de su encaje en el terreno. Esta forma de diseñar genera formas estrictas y esbeltas, sin derrochar recursos, creando puentes que son funcionales y, al mismo tiempo, visualmente atractivos.
El cuidado del detalle
El análisis de la obra de Manterola resulta incompleto sin una consideración de los detalles en sus proyectos. Para él, los puntos de conexión —la articulación entre los distintos elementos estructurales que conforman sus puentes— constituían un componente

Prescripción
Lider en la fabricación de productos químicos para la construcción
Edificación, Obra Civil e Industria
Asistencia Técnica a Profesionales y Proyectistas Teléfono: 933 415 842 asistenciatecnica@mapei.es

Soluciones para:
· Reparación del hormigón
· Refuerzo de estructuras
· Anclaje químico
· Protección frente a agentes ambientales

· Impermeabilización de depósitos, cubiertas, canales, presas, piscinas, tableros de puente
· Sellado de juntas
· Pavimentos continuos en industria

· Protección química en industria y EDARs
· Actuaciones en elementos de fábrica con morteros de cal
· Pistas deportivas y carriles bici
Sus puentes se han convertido en elementos emblemáticos de su entorno
esencial de su concepción del diseño. La forma nítida de transmitir los esfuerzos y la formalización elegante de esas conexiones son algunos de los aspectos que distinguen la obra de Javier Manterola.
Con el transcurso del tiempo, a estos detalles estructurales se incorporaron otros elementos de igual relevancia que, sin ser estructurales, tienen una influencia fundamental en la experiencia del usuario: las barandillas, la iluminación e incluso algunos elementos puramente escultóricos en los puentes urbanos fueron resueltos por Manterola con el cuidado propio de un auténtico maestro. La gran luminaria en arco del puente de Ventas (1999) es un ejemplo de esa intención artística que se manifiesta en muchas de sus obras.
El legado
El legado de Javier Manterola trasciende la mera construcción de puentes: constituye una verdadera filosofía de diseño, basada en

el potencial técnico y plástico de las formas estructurales. Su obra es el resultado de una reflexión constante sobre la esencia misma de la ingeniería estructural.
Desde sus primeros trabajos, Manterola mostró una clara orientación hacia formas estructurales eficientes y visualmente expresivas, rechazando soluciones ornamentales superfluas, que ocultan la naturaleza real de la estructura. Este enfoque técnico, combinado con una reflexión profunda sobre los aspectos formales, se convirtió en un sello distintivo de su práctica profesional y en un ejemplo para otros ingenieros.
Más allá de su impacto técnico, la obra de Manterola posee un valor cultural de gran trascendencia. Sus puentes no son simples obras funcionales; muchos se han convertido en elementos emblemáticos de su entorno. Son prueba indiscutible de su capacidad para integrar tecnología y belleza, esencia y forma, ingeniería y cultura.

Los puentes de Javier Manterola son mucho más que estructuras: representan la expresión simbólica de una época en la que la ingeniería española alcanzó una nueva dimensión. Preservar su obra no es solo un homenaje merecido, sino también un acto indispensable para conservar un capítulo fundamental de la historia de nuestra ingeniería. Corresponde a las futuras generaciones de ingenieros conocer, valorar y proteger este legado, no solo desde la perspectiva técnica, sino también como parte esencial del patrimonio construido contemporáneo.
Manterola, maestro insigne, nos dejó no solo una obra ejemplar, sino también una visión profunda y duradera sobre cómo pensar y ejercer la ingeniería. Aunque lamentamos profundamente su partida, su huella permanece entre nosotros, y confiamos en que seguirá siendo referencia e inspiración para las generaciones venideras.



Antonio Martínez Cutillas Dr. Ingeniero de caminos, canales y puertos.
Javier Manterola: una aproximación a su persona
Javier Manterola fue mi profesor de Puentes y una persona con la que he compartido gran parte de mi vida profesional —más de 37 años—, lo que supone para mí un auténtico privilegio y agradecimiento.
Javier Manterola nos enseñaba a mirar los puentes y la forma mediante la cual cada uno tenía que completar su propio proceso de aproximación al mundo de los puentes. Él, sin mencionarlo, compartía con nosotros su propio recorrido vital por este su mundo. Ejerció de profesor universitario —entendiendo el concepto de universitas como «totalidad»—, a pesar de que había sido un estudiante de transición de una de las últimas promociones que accedieron por medio del examen de ingreso específico a la Escuela Especial del Cuerpo de Ingenieros de Caminos, Canales y Puertos, una institución que primero dependía del Ministerio de Obras Públicas y que a partir de la ley de 1957 pasó a depender del Ministerio de Educación. Recibió clases de José A. Jiménez Salas y Carlos Fernández Casado, quienes habían accedido por oposición a las respectivas
cátedras de Cimentaciones y Puentes de Fábrica.
Nos transmitía que el puente es la estructura por antonomasia: «Hay que conocer la historia de los puentes, lo que han hecho nuestros predecesores, situarlo en su contexto histórico y tecnológico. Hay que conocer el comportamiento de las estructuras».
En sus clases nos hablaba con naturalidad de los distintos fenómenos resistentes, que nos servían como estímulo de síntesis de los conocimientos que habíamos adquirido en los cursos anteriores, y que él se encargaba de completar a lo largo de las dos asignaturas que impartía. En la primera, introducía los fenómenos específicos de las estructuras de los puentes: las características del reparto transversal de los tableros de vigas y losas o el comportamiento frente a cargas concentradas y repartidas; en la segunda, nos detallaba
el comportamiento de la sección cajón, el fenómeno de la torsión y la distorsión, los fenómenos de redistribución de fluencia y retracción a nivel estructural y seccional…
Todos los procedimientos de cálculo que él había conceptualizado para su aplicación específica en el campo de los puentes. Creo que había hecho suya la máxima de Carlos Fernández Casado según la cual «hay que dominar el cálculo para que él no te domine». Planteaba el estudio a partir de las distintas tipologías: tableros de vigas, losa, secciones cajón, puentes viga, arco, atirantados en los que el procedimiento de construcción era fundamental. Para determinadas luces, el puente es lo que es y la forma en que se ha construido…
Mantenía una actitud estimulante, de diálogo y escucha y de gran respeto hacia sus alumnos algo que, como indicaré, también






Aportar, innovar, aprender y enseñar
Puente sobre el río Segura, Alcantarilla, Murcia (1992).
Puente Andarax, Almería (1990).
Puente sobre el río Sella, Asturias (1992).
Puente de los Franceses, Madrid (1998).
Puente sobre el río Piloña, Arriondas (1992).
tenía en otras facetas vitales y profesionales. Cuando había que plantear la solución de un proyecto, nos animaba a desarrollarla, aunque no fuese la que se esperaba. Los alumnos lo ponían a prueba —reconocía a menudo—: «Son muy buenos». Javier tuvo la generosidad de compartir estas enseñanzas. Primero, como apuntes que al final de su carrera docente actualizaría y completaría en forma de libro, algo que le hizo una gran ilusión. Consideraba la obra única en el panorama bibliográfico —como no podía ser de otra forma—, ya que recogía su visión personal sobre cómo se debían enseñar, aprender a mirar y proyectar los puentes (Manterola, 2006)
Esa generosidad la demostró durante toda su vida en forma de libros, artículos y conferencias sobre los puentes, la arquitectura, el diseño y la obra de ingeniería en general (Manterola, 2010, 2017, 2023)
Javier nos enseñó a escuchar. A escuchar el pasado aprendiendo de los grandes; a escuchar el presente, el mundo de la tecnología,
el de la cultura. Escuchar y mirar, saber ver desde cada momento, de forma única y personal.
Javier proyectista, Javier compañero
He tenido el privilegio de haber colaborado en la Oficina de Proyectos de Carlos Fernández Casado S. L. en distintas facetas, y con Javier Manterola en muchos proyectos. La Oficina la había fundado con Carlos Fernández Casado y Leonardo Fernández Troyano.
En una primera etapa, el trabajo era conjunto, entre don Carlos, Javier y Leonardo. Fueron innumerables las obras que realizaron para la empresa constructora Huarte y Cía.; es el caso de las estructuras de la autopista Madrid-Villalba y el edificio de Torres Colón. Con el estudio de las realizaciones en Alemania en el campo del hormigón pretensado, la Oficina participó en la introducción y aplicación de procedimientos de obra específicos: construcción por dovelas prefabricadas,
construcción vano a vano mediante cimbras, construcción por empuje, etc.
El puente Ingeniero Carlos Fernández Casado sobre el embalse de Barrios de Luna y las obras de la autopista CampomanesLeón constituyen el culmen de esta etapa (Fernández Troyano, 2025)
A continuación, me gustaría dar unas pinceladas del modo de proceder de Javier Manterola, sobre cómo cualquier proyecto o intervención, con independencia de su escala, se convertía en una oportunidad para aportar, innovar, aprender y enseñar. Para el puente de carretera sobre el río Andarax (Almería), localizado en una zona de alta sismicidad, con luces moderadas de 23,5 m, se planteó un tablero en losa maciza de 1 m de canto de hormigón armado con un estricto control de flechas y fisuración. La solución de aislamiento con apoyos de neopreno, y la propuesta de unas pilas esbeltas en forma de marco trapecial de gran rigidez transversal, se adaptaban perfectamente a las exigencias hidráulicas y sísmicas del terreno.
En la variante de Arriondas (Asturias), Javier propuso una solución de pórtico de 90 m de luz para el cruce, muy paralelo y esviado, sobre el río Piloña, manteniendo pilas circulares estriadas en el cauce para conservar la máxima neutralidad posible. En la misma variante, en su cruce sobre el río Sella, dadas las malas condiciones de cimentación, planteó una solución muy original para resolver el cruce del río y los paseos de ribera.
Se trata de un arco metálico de tablero superior —mixto hormigón-acero— que actúa de tirante, en el que las componentes horizontales del arco son transmitidas por medio de puntales a dicho tablero.
Es la primera obra en arco metálico en la que los arcos inferiores se encuentran en planos paralelos. En proyectos posteriores, Javier planteará soluciones espaciales del arco o del tablero, ya sea de forma individual o conjunta: la pasarela de Plentzia, en Vizcaya; el puente sobre el río Vinalopó, en Elche; el puente sobre el río Ebro, en Logroño; la
pasarela sobre el río Guadalentín, en Lorca; el puente sobre el río Escudo, en Cantabria; el puente sobre el río Bidasoa, en Endarlatza, entre Navarra y Guipúzcoa; o el puente sobre el río Galindo, en Baracaldo. El puente sobre el río Segura, en Alcantarilla (Murcia), establece un criterio habitual en el modo de proyectar de Javier Manterola. Se trata de un viaducto de doble calzada de autopista de gran longitud sobre la vega del río Segura, en una zona de alta sismicidad, con luces típicas en torno a los 33 m y un cruce singular sobre el río de 64 m. Con una modalidad de proyecto y construcción, se planteó un viaducto continuo de losa aligerada de hormigón pretensado construido vano a vano con una cimbra autoportante, conectando las dos calzadas sobre el río con una estructura de arco central superior mediante un cordón lenticular y vigas transversales. Este vano se construyó con la misma cimbra, ayudado de pilas provisionales que después serían demolidas. Añadiendo un sistema resistente complementario —en este
caso un arco superior—, se buscaba una unidad conceptual y constructiva de los vanos tipo y los vanos singulares. Este concepto unitario se repite en varias ocasiones, como en el puente sobre el río Ebro, en la Ronda de la Hispanidad en Zaragoza, con un arco superior mixto hormigón-acero; en el puente sobre el río Guadalquivir, en Córdoba, en este caso con un sistema combinado de atirantamiento extradosado y puente pórtico; o en el puente sobre el río Danubio VidinCalafat, entre Bulgaria y Rumanía. El proyecto de los puentes urbanos siempre supuso para Javier Manterola una oportunidad y un gran reto. Estos proyectos normalmente van asociados a un concurso previo o a concursos de proyecto y construcción en los que las componentes de diseño, integración y procedimientos de construcción tienen que ser cuidadosamente aunadas. En el caso de los puentes del Pilar de Zaragoza, Javier planteó rehabilitar el puente de Hierro y convertirlo en un paso peatonal, proyectando dos puentes curvos construidos
por empuje que se «abrazaban» con unas pilas inclinadas de gran dimensión escultórica, que «separaban el tráfico viario» del peatonal. La actuación se completaba con cuatro grandes luminarias, con un tubo de acero de gran esbeltez y barras pretensadas.
En el proyecto del nuevo puente de Ventas en Madrid, la demolición del antiguo puente, la construcción del nuevo y sus respectivas rampas debían realizarse manteniendo el tráfico sobre la M-30. El puente debía dar continuidad a la calle Alcalá y aislar al peatón del cruce de la M-30, creando una marquesina transparente a modo de gran imposta. Una lámpara en forma de arco de 90 m de luz completó la actuación.
En el puente de los Franceses, en Madrid, resuelve un complejo nudo viario con una «cinta en el aire» por medio de un tablero mixto muy esbelto soportado con un trípode de gran dimensión escultórica y pilares metálicos reducidos a la mínima expresión. Este entorno urbano «ya no se entendería sin este puente». El concepto de pórtico espacial lo llevaría al límite en el puente de San Pedro, sobre el río Arga, en Pamplona. La inclinación de la pila principal obligó a incluir el estribo como elemento fundamental del
El puente de Euskalduna en Bilbao es un ejemplo de “encuentro y descubrimiento” en la forma de trabajar de Javier Manterola
comportamiento resistente. Una gran luminaria inclinada de 60 m de altura forma parte de esta propuesta «en movimiento».
El puente de Euskalduna en Bilbao es un ejemplo de «encuentro y descubrimiento» en la forma de trabajar de Javier Manterola. La intención era separar el tráfico viario del peatonal mediante una estructura en celosía —responsable del trabajo a flexión—, completada con la sección cajón de la plataforma —responsable de la torsión—; por último, la necesidad de la cubierta peatonal, que sirve como elemento resistente fundamental debido a la curvatura en planta del puente, configura una gran sección en C que da sentido a todo el conjunto. La construcción, realizada por medio de empuje con torre de atirantamiento provisional, culmina lo que es un gran puente. Los proyectos de viaductos para las autovías españolas que se desarrollaron en la última década del siglo pasado fueron una gran oportunidad de innovación. En el puente sobre el río Mente, en la autovía de las Rías Bajas, Javier resuelve el reto de construir un puente de 90 m de luz y 90 m de altura con vigas artesas prefabricadas de 30 m de longitud y un peso máximo de 100 t. La solución es un puente pórtico construido con un
sistema de atirantamiento provisional en el que las distintas conexiones —viga-viga, viga-puntal, puntal-pilar— son un ejemplo de innovación en el campo de la prefabricación. En un tramo de la autovía del Cantábrico de gran valor ambiental, entre Unquera y Lamadrid, además de establecer una tipología de pasos superiores, se proyectaron tres puentes, cada cual único: en el puente sobre la ría Tina Menor se emplea un tablero mixto con cajón único apoyado en puntales en cruz de San Andrés; en el puente sobre el río Escudo, un arco tubular mixto, y en el viaducto de la Acebosa se utilizan vigas artesas prefabricadas y voladizos artesonados. Todo proyecto era una oportunidad para dar un paso más e innovar. Es importante destacar el reto que supuso para la ingeniería española enfrentarse, en un periodo de tiempo muy corto, a la construcción de las nuevas líneas de ferrocarril de alta velocidad. Ante los nuevos condicionantes que suponía el proyecto de los nuevos puentes, Javier emprendió, junto con todos nosotros, la forma de actuar con la que se había enfrentado toda su vida: entender las nuevas restricciones, los problemas dinámicos, la longitud de los viaductos y su relación con


los problemas de interacción vía tablero; los problemas constructivos y las nuevas soluciones para los mismos. Para ello, estudiamos estos problemas, analizamos las soluciones que habían hallado la ingeniería alemana y francesa y que Javier tenía mucho interés sirviese de referencia para toda la comunidad ingenieril (Manterola et al., 1999). En paralelo, se plantearon soluciones para viaductos de gran altura y longitud en la línea de alta velocidad Madrid-Barcelona-frontera francesa, optimizando la sección transversal con esbelteces muy ajustadas. Las pilas debían tener una geometría variable transversalmente, «con cintura», llevándolas al límite de la esbeltez para que se alejasen del concepto de viaducto «pesado ferroviario», pues tenían que «quedar bien integradas». Se plantearon diversas soluciones para los viaductos de gran altura y longitud y se pusieron a punto procedimientos de construcción por empuje o construcción vano a vano con cimbra autoportante, resolviendo los nuevos requisitos técnicos. Creo que, en este sentido, se consiguieron parte de los objetivos que Javier había planteado. Por lo que respecta al cruce de la línea sobre el río Ebro en Osera, se convocó un concurso de proyectos para el que Javier planteó una solución innovadora: la reinterpretación del puente ferroviario en celosía clásico de acero al campo del hormigón pretensado. El proyecto de la sección transversal —con aligeramientos circulares—, la integración del tablero y las pilas, la transición sin solución de continuidad entre los vanos principales —con una luz máxima de 120 m— y los vanos de acceso, así como el planteamiento constructivo, definen claramente la aproximación y la integración de Javier con su obra y, asimismo, muestran cómo de necesario es, en todos los grandes proyectos, el trabajo en equipo entre el cliente y el equipo constructor.
Durante todo este periodo de desarrollo de las líneas ferroviarias, planteamos soluciones que resolvían, en cada caso, los problemas específicos de longitud, luz y construcción de los viaductos. El viaducto de El Portal, sobre el río Guadalete, en la línea Sevilla-Cádiz, tiene una longitud de más de 3 km; por medio de una solución de vigas artesas prefabricadas y simplemente apoyadas de 30 m de luz, combinadas con arcos continuos prefabricados para los cruces singulares de 50 m de luz, se lograron compaginar, en una zona de alta sismicidad y malas condiciones de cimentación, los requisitos estructurales con los de la continuidad de la plataforma de la vía sin juntas. El proyecto y la construcción de los grandes arcos ferroviarios, como el puente sobre el embalse de Contreras en la línea Madrid-Valencia —de 261 m de luz—, o el puente sobre el río Tajo en la línea MadridExtremadura —de 324 m—, representan el culmen de estos proyectos ferroviarios. El encaje, la esbeltez la coordinación con los viaductos de acceso, los procedimientos de construcción… Todo era un reto, un paso más. La oportunidad que supuso trabajar en Italia fue un gran reto que Javier afrontó con ilusión. Participar en proyectos en el Véneto o la Toscana, cruzar el río Brenta, el Arno o el Ticino, suponía una contribución desde su forma de entender los puentes a la ingeniería italiana, por la que sentía un enorme respeto, en un contexto delicado donde el arte de construir tiene un enorme peso histórico. Participamos en varios concursos de proyectos en los que esta aproximación de Javier era valorada, por ejemplo, en el puente Leonardo sobre el río Arno, que se resolvió por medio de dos arcos atirantados de tablero inferior con distintas luces que se adaptaban a la configuración del río, con un cauce principal y un cauce de avenidas.
El puente Darwin, en la entrada este a la ciudad de Padua desde la autopista MilánVenecia, constituyó un reto a la hora de intentar integrar un puente perteneciente a un nudo viario al que se incorporaban distintas rampas en un entorno urbano. Para ello, se redujeron al máximo el número de pilas y apoyos por medio de pilas en V a nivel transversal, con costillas soportando las rampas de acceso.



Estas realizaciones y proyectos se hicieron entre visitas a los frescos de Giotto en la Capilla de los Scrovegni, a los diseños de Andrea Palladio —la Villa Capra en Vicenza y el puente sobre el río Brenta en Bolzano—, así como a las bienales alternativas de Arquitectura y Arte Contemporáneo de Venecia. Todo ello entrelazado, necesario e imprescindible. En mi caso fue un aprendizaje; en el de Javier, una «nueva relectura». De entre las grandes obras finales de Javier, hay que destacar el puente de la Constitución de 1812 sobre la bahía de Cádiz. Nos enfrentábamos al puente de mayor luz que habíamos proyectado hasta entonces: 540 m y una longitud total de 3 km. A partir del vano principal atirantado con una sección mixta hormigón-acero de 3 m de canto, se planteó, de forma coherente, la distribución de luces de los vanos de compensación y de los viaductos de acceso. En la zona sobre el mar, se utilizó una sección mixta o metálica para facilitar su construcción mediante empuje o izado; sobre tierra, se empleó una sección de hormigón pretensado para ser construida por medio de cimbra apoyada. Las torres principales y las pilas de los viaductos de acceso se idearon con una gran coherencia formal. En proyectos y obras de esta magnitud, Javier Manterola era consciente de la necesidad de coordinar equipos grandes tanto durante el proyecto como durante construcción, y atendía a todos con una actitud de escucha y colaboración.
Como ya he indicado en su faceta de profesor, un aspecto muy importante de la personalidad de Javier Manterola era su actitud vital de «escucha» en su sentido más amplio. Como sostiene el teólogo Franz Jalics, «escuchar para ser».
Javier escuchaba con atención cualquier propuesta técnica, encaje, detalle estructural
o resultado de un cálculo; se preguntaba y te preguntaba poniendo de manifiesto el rigor que había construido durantes su vida. Una vez que el proceso de diálogo pasaba ese filtro, lo hacía suyo, nuestro; lo hacía de todos.
Esta forma de actuar la extendía a todas las demás facetas, ya fuesen técnicas, culturales, filosóficas, sociológicas, políticas, humanas… Por todo ello, durante su vida mantuvo esa actitud de escucha en los
ámbitos que creía que le ayudaban a progresar en el mundo de los puentes: arquitectura, escultura, pintura, música, filosofía o cine. Javier leía, estudiaba, asistía a representaciones y visitaba las obras de museos; dialogaba y discutía con todos aquellos que tuviesen las mismas inquietudes y capacidad de escucha que él.
Javier elogiaba la claridad de exposición y no le gustaba la opacidad, ni siquiera con la excusa académica.
A modo de conclusión En las múltiples conversaciones que mantuve con Javier Manterola, coincidíamos en que vivimos un momento de transición. Como pasa siempre en este tipo de contextos, se abría todo un nuevo abanico de posibilidades que cuesta vislumbrar, pero que resulta fascinante. Tras el gran desarrollo de la humanidad en los dos últimos siglos en el ámbito de la sociología, de la ciencia y de la tecnología, seguimos haciéndonos

EN SIKA NO SÓLO MEJORAMOS EL HORMIGÓN. CREAMOS POSIBILIDADES.








www.sikacircularconcrete.com
dos, pero han llegado a ser como una sola. Están entrelazadas.
2 Fernández Casado, C. (2005). La arquitectura del ingeniero (2.ª ed.). Colegio de Ingenieros de Caminos, Canales y Puertos.
3 Fernández Troyano, L. (2025). Biografía profesional del ingeniero Javier Manterola Armisen: desde su origen hasta el puente Ingeniero Carlos Fernández Casado. Revista de Obras Públicas (3656)




las mismas preguntas que nos hacíamos hace 2.500 años. ¿Qué nos hace humanos? ¿Qué es el mundo y cómo nos relacionamos con él? De la misma manera que las ciencias físicas han introducido el concepto de emergencia para explicar y conectar las distintas escalas de la naturaleza, que podemos definir en una dirección vertical, resulta revelador que uno de los conceptos más fascinantes de la física de lo pequeño, el «entrelazamiento», sirva a los investigadores en ciencias cognitivas y su relación con la inteligencia artificial para conectar las distintas preguntas en una dirección horizontal: ciencia, arte y filosofía, oriental y occidental (Laughlin, 2007)
Este entrelazamiento, en un plano más allá de lo material, lo expresó de manera profunda Pau Casals cuando escribió sobre Johann Sebastian Bach: «Despojar a la naturaleza humana hasta que sus atributos divinos queden claros, informar las actividades corrientes con fervor espiritual, dar alas de eternidad a lo que es más efímero; hacer que las cosas divinas sean humanas y las cosas humanas, divinas; así es Bach». Así son los grandes; así es Javier Manterola.
4 Jalics, Franz (2021). Escuchar para ser Ediciones Sígueme.
5 Laughlin, R. B. (2007). Un universo diferente: la reinvención de la física en la Edad de la Emergencia. Katz Editores.



En su aspiración a trascender, Manterola manifestó que lo que más ilusión le haría es que cualquier ingeniero pudiese encontrar un detalle en una de sus obras que le sirviese de inspiración. En definitiva, que lo encontrase a él en su obra.
Carlos Fernández Casado ya reivindicó La arquitectura del ingeniero para todas las facetas de la ingeniería estructural (Fernández Casado, 2005)


6 Manterola Armisén, J. (2006). Puentes: Apuntes para su diseño, cálculo y construcción (2 vols.). Colegio de Ingenieros de Caminos, Canales y Puertos.
7 Manterola Armisén, J. (2010). La obra de ingeniería como obra de arte. Laetoli.






Alva Noë, uno de estos investigadores, establece una conexión semejante con el diseño, que podríamos hacer extensible a proyectos de ingeniería o arquitectura (Noë, 2023). Como en la ciencia, en la arquitectura o en la ingeniería el diseño es una techne (técnica), a diferencia del arte o la filosofía. Por ello, el arte y el diseño funcionan como esferas separadas. Sin embargo, los diseñadores diseñan en un mundo que ha sido abierto por el arte. El arte y el diseño, en este sentido, están entrelazados. A veces resulta imposible dilucidar si una obra de diseño pertenece a una u otra categoría, si es arte o técnica. Pero en realidad, el entrelazamiento entre la ciencia y la filosofía es tal que la ciencia denota diferentes «momentos» o aspectos de nuestro único proyecto vital. La filosofía «ocurre» dentro de la ciencia, porque la ciencia necesita a la filosofía, así como la filosofía necesita a la ciencia. Son
En una época en la que se discute «el fin del arte» (Danto, 1999), Manterola reivindica la obra de ingeniería como obra de arte (Manterola, 2010). Y es que nos enseñó —y sin duda lo sigue haciendo— que toda persona puede y debe aspirar a ser, en sí misma, una «obra de arte». Javier Manterola, sin lugar a duda, lo ha conseguido.
Referencias
8 Manterola Armisén, J. (2017). Historia de los puentes. Colegio de Ingenieros de Caminos, Canales y Puertos.
9 Manterola Armisén, J. (2023). Consideraciones sobre estética, arquitectura e ingeniería. Colegio de Ingenieros de Caminos, Canales y Puertos.
11 Noë, Alva (2023). The Entanglement: How Art and Philosophy Make Us What We Are. Princeton University Press. Para ser más sostenibles, acceder a mejores proyectos y contar siempre con las tecnologías y aditivos necesarios para que tu hormigón sea exactamente lo que necesitas. Por eso te ofrecemos la mayor gama de soluciones a medida y un equipo de especialistas que te acompaña en todo el proceso para lograr la combinación perfecta y alcanzar tus objetivos
1 Danto, Arthur C. (1999). Después del fin del arte: el arte contemporáneo y el linde de la historia. Paidós.
10 Manterola Armisén, J., Astiz Suárez, M. Á., Martínez Cutillas, A. (1999). Puentes de ferrocarril de alta velocidad. Revista de Obras Públicas, 146 (3386), 43–77.

Conchita Lucas Serrano
Ingeniera de caminos, canales y puertos.
Jefa del Departamento de Infraestructuras de Transporte Dirección Técnica. Dragados S.A.
Un ingeniero valiente
Javier Manterola fue mi profesor de Puentes en la Escuela de Madrid. Desde que comencé a estudiar, sus diseños me parecieron sobresalientes. Heredó de su maestro, Carlos Fernández Casado, esa visión racionalista de la ingeniería, y por eso muestra en sus obras la estructura de la forma más pura posible, eliminando lo superfluo, con una elegancia sin igual. Hay grandes ingenieros en nuestro país, pero pocos capaces de diseñar puentes tan elegantes y sutiles. Probablemente esa capacidad —en parte innata, y en parte forjada a base de trabajo— es la combinación de su afición al dibujo a mano alzada y la clarividencia estructural que poseía, que fue haciéndose más y más grande a medida que fue probando diferentes soluciones estructurales a lo largo de su carrera. Ningún puente diseñado por Javier Manterola ha sido intrascendente; en todos ensayaba algo, siempre primero a pequeña escala, normalmente con una pasarela, de forma que posteriormente el experimento pudiera trasladarse a un puente mayor. Eso le dio una lucidez estructural única. Y esas aportaciones estructurales han quedado incorporadas al catálogo de recursos colectivo, del que se han beneficiado muchos
diseñadores posteriores. Fue el primero en eliminar las vigas riostras de los puentes de vigas, cosa que ahora es habitual en nuestro país; popularizó los arcos inclinados, como en su pasarela sobre la Ronda de la Hispanidad en Zaragoza o en el puente sobre el río Arno en Arezzo (Italia); abrió la puerta a soluciones poco convencionales con


De arriba a abajo, Pasarela sobre la M-30, Madrid. Puente sobre el río Galindo, Bilbao.
tirantes, como demostró en su puente sobre el río Galindo; mostró como nadie las posibilidades de la viga curva y el acoplamiento entre los esfuerzos de torsión y flexión, como en el puente Euskalduna de Bilbao; y fue aún más allá, sustentando los tableros curvos con tirantes solo en uno de los bordes, como en el puente de Logroño sobre el Ebro, en el puente sobre el río Vinalopó en Elche o en la pasarela sobre la M-30, tristemente desmontada.
Y rizó el rizo, como le gustaba decir, con la pasarela para la Exposición Internacional de 2008 en Zaragoza, donde dispuso un mástil inclinado, un tablero curvo y tirantes a un solo lado.
Durante mis primeros años en Dragados, coincidí con él en algunos proyectos (arco y pasarela de la Ronda de la Hispanidad en Zaragoza, canal de Aragón), pero cuando realmente lo conocí fue durante la construcción del puente de Cádiz, oficialmente llamado Puente de la Constitución de 1812. En los puentes grandes, la influencia del sistema constructivo es trascendental, pues pueden darse durante la construcción situaciones provisionales o fases intermedias en las que la estructura debe resistir esfuerzos superiores a los que tendría que hacer frente


Puente al progreso
Esta obra es una moderna infraestructura atirantada inaugurada en 2015, símbolo de progreso, que conecta la ciudad de Cádiz con Puerto Real sobre la bahía.

Manterola era un ingeniero que no se limitaba a su papel de diseñador, sino que también se preocupaba de la construcción
una vez concluida, bien porque se encuentre en una situación estructural más precaria — como pasa con los puentes construidos por avance en voladizo—, o porque deba soportar cargas mayores a las de servicio, como, por ejemplo, el peso de los carros de izado de dovelas. Por eso es preciso considerar, en el dimensionamiento de las grandes estructuras, no solo la situación final de servicio, sino también las fases intermedias que se vayan a producir según el proceso constructivo elegido, que se deben estudiar con gran detalle. Por esta razón, si se cambia el sistema constructivo respecto al método inicialmente previsto por el diseñador, se debe recalcular el puente. Esta interdependencia entre dimensionamiento y construcción hace necesario el trabajo conjunto entre el equipo de diseño y el de construcción. En un puente como el de la bahía de Cádiz, esto adquirió una importancia extrema, pues nos enfrentábamos al mayor puente diseñado y construido en nuestro país. Durante los años que duró la obra, nos reuníamos todos los viernes en su oficina para analizar y debatir todos los pormenores de la construcción. Explicábamos cómo queríamos abordar cada una las maniobras y la diseccionábamos entre todos para ver la incidencia que cada una de ellas podía tener en el diseño.
Javier Manterola era un ingeniero que no se limitaba a su papel de diseñador, sino que, como hacen los grandes ingenieros, también se preocupaba de la construcción. Durante el proceso creador, siempre tenía en cuenta cómo se levantaría su puente; no se metía en el detalle de la forma en que se llevaría a cabo ni tampoco en el diseño de las maniobras, lógicamente, pero analizaba si lo que estaba proyectando era construible o no. Más adelante, en la fase de ejecución disfrutaba mucho debatiendo con el equipo encargado de construir su puente todas y cada una de las alternativas planteadas, y participaba de manera muy activa en las decisiones. Se le encendía la cara cuando se planteaba una idea

nueva en la que él no había pensado, y nos decía: «¡Qué barbaridad, qué cosas hacéis!». El trabajo conjunto entre el diseñador de un gran puente y el equipo de construcción, cuando todas las partes miran la obra con un único objetivo común, sin personalismos ni estrecheces de miras, sintiendo que efectivamente todos empujamos hacia el mismo lado, es una de las tareas más gratificantes y motivadoras con las que me he encontrado a lo largo de mi vida profesional. Un trabajo muy exigente, pero tremendamente ilusionante. Y no solo es muy enriquecedor, sino imprescindible cuando se afronta una obra de la magnitud del puente de Cádiz. Fue durante este periodo de trabajo conjunto cuando lo conocí más de cerca y descubrí otras facetas de su persona que también me dejaron una gran huella: su osadía y su honestidad. Le gustaban los proyectos que suponían un reto, de ahí su famosa frase «la ingeniería tiene una vertiente heroica». No tenía ningún problema en admitir que nunca había hecho algo similar, o que le daba un cierto vértigo abordar determinados proyectos. Su franqueza era tal que era capaz de admitir delante de los constructores encargados de levantar el puente que una obra determinada le quitaba el sueño. Decía que sufría, pero en el fondo
disfrutaba de los proyectos en los que tenía que ir más allá de lo que había hecho antes, o en los que abordaba algo nuevo. El hecho de salvar luces cada vez más grandes con sus obras le fascinaba; esa tensión durante la redacción del proyecto y luego en la fase de obra le motivaba sobremanera. Durante muchos años, para ejemplificar este sentimiento mencionaba siempre el puente de Barrios de Luna, al que se enfrentaron él y Leonardo Fernández Troyano a una edad bastante temprana: 440 m de luz. Fue récord del mundo de puentes atirantados cuando se inauguró, en 1983. Años más tarde, su referencia sería el puente de Cádiz: 540 m entre las torres de su vano principal, “100 m más que Barrios de Luna, un salto enorme”, decía. Y así fue. Lo fue desde muchos puntos de vista. El diseño constituyó, sin duda, un alarde técnico, pues es en las grandes luces donde se manifiestan los verdaderos problemas resistentes, pero no solo por la luz del vano principal —esos 540 m—, sino por la concepción general del puente, en la que los vanos de retenida son también enormemente ligeros, al no estar presente la habitual sucesión de pilas de retenida, que aumenta la eficacia del sistema de atirantamiento, pero empeora claramente la estética del puente. Ese espíritu algo temerario de Javier se contagiaba. Durante la construcción del puente de Cádiz, nos espoleaba, nos retaba, nos forzaba a pensar cómo resolver los distintos problemas constructivos que se iban planteando. En cada reunión nos animaba y nos presionaba para plantear y ejecutar maniobras novedosas que resolvieran el problema constructivo:
• ¿Cómo ejecutar el gran encepado del mástil situado en el medio de la bahía?
Montando una caja metálica de 49 x 37 m2 y 1.300 t de peso como encofrado del encepado, en el medio de la bahía, con ayuda
de la mayor cabria del mundo traída exprofeso desde Holanda.
• ¿Cómo acelerar la construcción del tramo atirantado? Izando dovelas de 20 m de longitud (el doble de la longitud típica de 10 m) y de 34 m de ancho, que pesaban 400 t, para avanzar más rápido y reducir a la mitad el número de soldaduras en obra.
• ¿Cómo montar el tramo desmontable de 150 m de luz y 4.000 t de peso sobre las pilas que estaban en el mar? Fabricándolo




en las instalaciones de Dragados Offshore y montándolo en una pontona para luego transportarlo en ella, cruzar la bahía, y colocarlo sobre las pilas.
• ¿Cómo hacer el cierre del vano central gestionando los dos enormes voladizos de 270 m cada uno, que estaban sometidos a la acción del viento de levante, tan fuerte en Cádiz, y a las variaciones térmicas? Moviendo todo el tablero hacia atrás para evitar interferencias entre ellos y, una vez soldada la dovela de cierre, desplazándolo de nuevo hacia adelante para cerrar el vano central.
No era fácil. Sufríamos. Era una exigencia continua, pero a la vez nos transmitía su absoluta confianza en que seríamos capaces de resolver el problema constructivo de manera brillante. Porque Javier siempre se jactaba de trabajar con grandes profesionales. Tanto en su oficina —se sentía tremendamente orgulloso del equipo que había formado a lo largo de los años—, como en el lado de constructora, que éramos los encargados de hacer realidad sus diseños y de esa forma, con esa combinación de exigencia y confianza, Javier sacaba lo mejor de nosotros. Esa era otra de las grandezas de trabajar con Javier Manterola: que en esa confianza ciega que mostraba, unida al reto constante, sacaba lo mejor de ti.
Javier Manterola ha sido un referente para los ingenieros de varias generaciones, un símbolo de la excelencia en el diseño, de la elegancia y del buen hacer. Nos deja una cantidad de obras soberbias que lo mantendrán como un referente también para las generaciones futuras. Tenemos la responsabilidad de conservar su legado y prestar la debida atención a su c onservación. Aquellos que, además de contemplar su trabajo, tuvimos la fortuna de trabajar con él y de conocerle personalmente, nos guardamos el recuerdo de su extraordinaria personalidad. Muchas gracias, Javier.


Trazos de aire

Holgura de ser: La Mirada al Norte que se hace Trazo de Aire Mirando al Sur
Javier Manterola, hace ya muchos años, me decía que había que Materializar la magnífica panorámica que se divisaba desde la altura del siglo XX, que había que hacer Roca la Ecuación. Esa sugerente idea dio lugar a lo que sigue.
Todo comienza cuando, Jorge Oteiza, en su investigación de la escultura, descubre la esencia de lo vasco en el silencio del crómlech del alto de Agiña y nos dice: «El crómlech es una obra de arte que en vez de colocar formas ocupando el espacio, es el espacio desocupado, es la obra de arte concebida como desocupación espacial. Un día, delante de uno de estos pequeños crómlechs en el alto de Agiña, preocupado por entenderlo, sentí la emoción de usar una estatua que durante tantos siglos no había vuelto a ser utilizada. Mientras lo receptivo sea el hombre y no la consistencia espacial de la obra, el arte quedará limitado en lo concreto incapaz de la abstracción, y el hombre reducido a un papel secundario de espectador. Sin embargo, el crómlech neolítico, desde lo abstracto, inventa al artista, en el mismo espacio exterior de la realidad, su habitación metafísica» (Oteiza, 1963).
Ahora bien, como para todas las cosas importantes, hace falta un Cuento que nos explique toda esta Historia.


Por aquellos años cincuenta, se construye la Basílica de Aránzazu (1950-1954) por Francisco Javier Sáenz de Oiza (Cáseda, Navarra, 1918-Madrid, 2000) y Jorge Oteiza. Hacen del interior de la Basílica el Vacío del crómlech; la fachada, de Jorge Oteiza, es su Plano; y su Apóstol es su Figura. Esa intuición de la Materialización del Vacío sucede durante el siglo XX entre el País Vasco y Navarra, en un camino imparable hacia la Abstracción, hacia el Aire.
Se inicia con José María Arizmendiarrieta (Marquina-Jeméin, 1915-Mondragón, 1976), fundador de la cooperativa Mondragón, muy cerca de Aránzazu. Arizmendiarrieta le hace Holgura a la Amistad Cooperativa en la Fábrica, un crómlech. «La línea de montaje, como comenzaba a intuir, no era una tecnología en sí misma, sino más bien un concepto teórico y muy abstracto sobre la propia naturaleza del trabajo» (Drucker, 2009).
«Arizmendiarrieta hace un crómlech de la Línea de Montaje en la Fábrica»



De arriba a abajo, Diseño de Balenciaga. © Louise Dahl-Wolfe / Diana Vreeland Estate Photography Collection
La Holgura de la Mujer. Caja metafísica por conjunción de dos triedros Homenaje a Leonardo, 1958-1958 (Ejemplar de 1965-1974). Construcción en chapa de acero pintada de negro sobre base de piedra. 26,5 x 32 x 26 cm. Colección Fundación Museo Jorge Oteiza, CE 00162, Alzuza (Navarra). La Holgura del Pensamiento. Gravitación. Eduardo Chillida, 1988. La Holgura del Espacio.
No lejos de Mondragón, en Guetaria, Cristóbal Balenciaga (Guetaria, 1895-Jávea, 1972) vuelve a hacer lo mismo y crea la Holgura entre la Mujer y el Vestido con sus diseños. «La profundidad hay que esconderla. ¿Dónde? En la superficie» (Hugo von Hofmannsthal).
«Balenciaga hace del crómlech, Figura» Justo al lado, en Orio, Oteiza (Orio, 1908San Sebastián, 2003) hace la abstracción del vestido de Balenciaga en su Caja Metafísica por conjunción de dos triedros. Oteiza crea la Holgura para que habite la Palabra en el crómlech de su Caja Metafísica, hace Holgura al Vacío. «Espero que lleguéis a entender que la arquitectura no tiene nada que ver con la invención de formas. No es un entretenimiento para niños o mayores. La arquitectura es el campo de batalla real del espíritu» (Mies Van der Rohe, 1951).
«Oteiza hace de la Figura, Dirección» Y Eduardo Chillida (San Sebastián, 19242002), un poco más allá, en San Sebastián,
logra congelar en un Pliegue la Holgura del Espacio Desocupado con sus Gravitaciones.
«La obra nace de la traza, la obra nace de la línea de presión. La obra no nace nunca del cálculo; es el cálculo el que resulta de la traza» (Torroja, 1976).
«Chillida hace de la Dirección, Pliegue» Y ya en Pamplona, mirando al Sur, Javier Manterola (Pamplona, 1936-Madrid, 2024) hace del Pliegue Gesto Resistente, y sumerge en él la Holgura del Aire. Atravesar los puentes de Javier es usarlos como Oteiza utilizó el crómlech. «El artista, como el Dios de la creación, permanece dentro, o detrás, o más allá, o por encima de su obra, trasfundido, evaporado de la existencia… indiferente… entretenido en arreglarse las uñas» (Joyce, 1995). Manterola hace de la Traza Vacío de Aire para que albergue al hombre. «Una cosa es absolutamente segura: si dejas de apreciar a Bach o a Henry Moore, todo tu interés por los puentes desaparecerá. Pocas cosas tengo yo tan claras como esta afirmación» (Manterola,
2004). La percepción, la ingeniería, el arte y la historia se funden en la «Materialización del Aire», una forma como espacio de contemplación y libertad.
«Javier Manterola hace del Pliegue, Aire» Al despedirse de todos nosotros en abril del año pasado en Madrid, en el Colegio de Ingenieros de Caminos, Javier volvió a trazar Un Puente de Otra Especie. Carlos, su hijo, leía lo que él ya no podía. Javier, en un momento dado, lo interrumpió, nos miró y dijo:
«¡Gracias a las gentes que me impulsaron a ser Aire!», y se hizo Holgura.
«Aire como Espacio que revela lo invisible. Lo invisible hecho tangible».
Como bien advertía Xavier Zubiri (San Sebastián, 1888-Madrid, 1983), después del Espacio y el Tiempo viene la Materia (Zubiri, 1996), que ampara el Aire.
«El crómlech se hace Edificio, luego Vestido, después Caja, más tarde Pliegue, y últimamente Gesto que libera el Aire»
De arriba a abajo, Suspensión Vacía (estela funeraria homenaje al constructor aeronáutico René Couzinet)1957. Construcción en chapa de acero pintada de negro con eje pivotante sobre base de piedra. 51,5 x 65 x 42,5 cm. Colección Museo Nacional Centro de Arte Reina Sofía, AS 10881, Madrid. Puente la Reina (Navarra). Javier Manterola, 2004. ©CFCSL. La Holgura del Aire. Puente de la Constitución (Cádiz). ©CFCSL. Javier Manterola, 2015. Y se hizo Holgura.

«Si es verdad que soy poeta por la gracia de Dios, o del demonio, también lo es que lo soy por la gracia de la técnica y del esfuerzo, y de darme cuenta en absoluto de lo que es una poesía» (Federico García Lorca).
«Ellos se quedarían con el Puente, él se quedaría con el Aire».
En esa última aparición pública antes aludida, le pude dar respuesta a esa visión por la que él preguntaba tanto. La Materialización del Vacío, del Aire, era Él Mismo. Sonrió con aprobación y agradecimiento. Como a él le gustaba repetir, se sentía bien en ese Aire. De este modo, después del apasionante camino de Ocho Siglos hacia la Técnica Moderna, resulta ser que esa historia es más importante para el Arte.
«Al principio hemos dicho que el puente de Maillart, el Salginatobel, había sido descubierto por Giedion. Los tiempos actuales y sus amplios planteamientos sobre lo que es arte no tardarán mucho en descubrir la formidable belleza de los puentes, las presas, las carreteras, etc., etc. Y este


De izquierda a derecha, Bóvedas autoportantes de cerámica armada de la Fábrica Domingo Massaro (Juanicó, Canelones. Uruguay).
Domingo Massaro S. A. Eladio Dieste, 1978. ©Ziegel.at. Pabellón de Barcelona. Mies van der Rohe, 1929. ©Lluís Casals. Puente de la Constitución de 1812 (Cádiz). Javier Manterola, 2017. ©CFCSL.



es un hecho que no es demasiado importante para las obras públicas, pero sí es muy importante para el arte de nuestro tiempo» (Manterola, 2004).
La Abstracción de la Técnica libera el Aire de la Arquitectura. Aire como Espacio que nos permite contemplar el Universo.
«La arquitectura es un arte, quizá el más importante, ya que conforma el espacio en el que nos movemos, y tiene en común con todas las artes el ayudarnos a la contemplación del universo, por su misma definición infinito y por tanto inasible del todo» (Dieste, 1996).
«Todo acto humano debe ser arte, contemplación, y surgirá de su inconsciente, dictado por un instinto que resume todas las experiencias acumuladas en nosotros por herencia desde el primer ser viviente, y tendrán el carácter y la necesidad que acompaña a todas las creaciones
del instinto, proporcionándole una satisfacción definitiva» (Freyssinet, 1975).
De tal forma que la Estructura es la unificación de lo Esencial en lo Estricto.
«Utilizar la idea para llegar a la realidad efectiva de las cosas. Desarrollando esta fórmula podemos hacer, a posteriori, un esquema del proceso mental que nos llevó hasta nuestra Colección. Por recolección de las notas dispersas en los puentes de tramo recto construidos, obtuvimos los problemas de este tipo de puentes, y al unificarlos en lo esencial, llegamos hasta la idea del mismo. En el paso de los datos de la realidad por el crisol de la idea, tuvimos ocasión de purificarlos de todo lo accidental, y esta es la significación de lo estricto, aunque aparentemente califique solo la altura de nuestros puentes» (Fernández Casado, 1934).
«Cuando la Técnica se hace Señal por el Arte, lo estructural se vuelve poético; lo calculado, contemplativo; lo estrictamente útil en profundamente donal».
Y es ahí, en ese Aire liberado por la Estructura, donde toda la Historia se hace Poesía, Gesto. Ese Arte es donde el hombre puede albergarse en una Brisa que no sabe de dónde viene ni a dónde va. Lográndose, de esa forma, el milagro de hacer Connadas, como decía Oteiza, es decir, un Menos en el que se libera el Más de la Historia. «Menos es Más» (Mies Van der Rohe). «La técnica pasa a ser arquitectura como expresión de una época, no a través de la invención de formas. Esta es la razón por la que tecnología y arquitectura están íntimamente relacionadas. Nuestra verdadera esperanza es que
se desarrollen juntas, que algún día una sea expresión de la otra. Solo entonces habremos conseguido una arquitectura digna de este nombre: la arquitectura es verdadero símbolo de nuestro tiempo» (Mies Van der Rohe, 1950).
«En mi opinión la arquitectura no está relacionada con la técnica; es técnica… La técnica correctamente aplicada es la belleza» (Paulo Mendes da Rocha).
«El Aire donde se da Todo lo Demás».
La Historia como Aire, el Aire como Sugerencia de lo Invisible. Materializar el Aire
«El Aire que No ilustra, No representa, No impone: Deja Aparecer, Acoge y Respira». En el cruce entre la ingeniería y la arquitectura, entre la materia y el símbolo, entre el
cálculo y la contemplación, surgen obras que trascienden su tiempo. No por su espectacularidad, sino por su silencio. Estableciendo un diálogo entre dos figuras mayores del siglo XX y XXI: Ludwig Mies van der Rohe y Javier Manterola, podríamos admirar cómo se unen la percepción, la técnica, la poesía, la estructura y la historia, haciendo visible aquello que suele permanecer oculto: el aire que sostiene la forma, el gesto que libera el pensamiento.
Desde el Pabellón de Barcelona hasta el Puente de la Constitución de Cádiz, existe una línea que no es cronológica, sino existencial: la línea que une a quienes entienden que la verdadera creación consiste en dar forma a lo invisible. Una reflexión sobre el diseño como acto total, sobre la Holgura como espacio de
sentido, y sobre el arte de construir no cosas, sino lugares para el alma.
«El Pabellón es un estado que no quiere significar, sino permitir, sino sugerir; permitir el silencio, la pausa, la contemplación. El visitante se desplaza libremente, como si lo albergara el Aire que te habita».
«La Holgura cada vez más concreta, cada vez más pequeña, cada vez más sutil, cada vez más material, cada vez más Aire».
«El Puente es la Resistencia de la Curva Serena, suspendida en el viento, que escucha, enmarca, revela y atraviesa el Vacío de la Bahía con Elegancia, como Holgura Suspendida».
«La técnica se depura hasta volverse invisible y, por eso mismo, poderosa, inevitable».
«Cuando con el Aire se entrega Todo».
Seguro Vida Orfandad
Garantiza a tus hijos una prestación mensual hasta que cumplan 25 años. Tú eliges la cobertura.
Si tienes...
30 años
35 años
Pregúntanos por tu caso
91 319 10 00
En el caso de hijos recién nacidos...

8,60€/mes 15,35€/mes


Asegurado: Padre/madre

Para una cobertura de 1.000€/mes hasta cumplir los 25 años Oferta exclusiva por ser Ingeniero
Prima: Constante
Beneficiarios: Hijos menores de 25 años Prestación: Mensual revalorizable
de Caminos COLEGIADO
Referencias
1 Oteiza, J. (1963). Quousque tandem…! Ensayo de interpretación estética del alma vasca Pamiela (pp. 93-96)
2 Drucker, P. F. (2009). Mi vida y mi tiempo. Ediciones Deusto. p. 299.
3 Van der Rohe, L. M. (1951). Skyscrapers En J. Dupré (Ed.), Skyscrapers. Black Dog & Leventhal, p. 51.
4 Torroja, E. (1976). Razón y ser de los tipos estructurales. Instituto Eduardo Torroja de la Construcción y del Cemento, p. 375.
5 Joyce, J. (1995). Retrato del artista adolescente. RBA Editores.
6 Manterola Armisén, J., Aguiló, M., Onzain, M., & Rui-Wamba, J. (2004). Javier Manterola Armisén: pensamiento y obra Fundación Esteyco, p. 121.
7 Zubiri, X. (1996). Espacio, tiempo, materia Alianza Editorial / Fundación Xavier Zubiri.

Atravesar los puentes de Javier es usarlos como Oteiza utilizó el crómlech

Cabeza de apóstol n.º 1. Retrato de Inazio Sarasua. 1953 (Fundición de 1972-1973).Fundición en bronce.
45 X 30 x 30 cm. Colección Fundación Museo Jorge Oteiza, CE 00779, Alzuza (Navarra).
8 García Lorca, F. Declaración Poética
9 Manterola Armisén, J. (2004). El arte y los puentes. Fabrikart (4), pp. 68-85.
10 Dieste, E (1996). Eladio Dieste. 1943-1996 Dirección General de Arquitectura y Vivienda, Consejería de Obras Públicas y Transportes, Junta de Andalucía, pp. 235-238.
11 Freyssinet, E. (1975) En Fernández Casado, C. La arquitectura del ingeniero Alfaguara. pp. 543-544.
12 Fernández Casado, C. (1934). Colección de Puentes de Altura Estricta. Revista de Obras Públicas. En Carlos Fernández Casado Fundación Esteyco, Contraportada.
13 Van der Rohe, L. M.
14 Van der Rohe, L. M. (1950). Address of Illinois Institute of Technology [Discurso]. En R. Usón García (2004). La forma de la arquitectura deportiva: visión retrospectiva y actual del problema estético. Ingeniería y Territorio (86), p.24.
Javier Manterola: invariantes y transiciones

Javier Manterola fue, como todos los ingenieros, un hombre de transición. En este artículo se observa la evolución de su obra a la luz de un conjunto de rasgos de su personalidad y quehacer profesional que permanecieron esencialmente inalterados durante toda su carrera, así como de otros que variaron a consecuencia de su propia evolución personal y de las transformaciones en el entorno de la ingeniería estructural de finales del siglo XX, tales como el sobredominio técnico para los puentes de luces cortas y medias.
Es imposible entender la ingeniería estructural española reciente sin la aportación, especialmente al mundo de los puentes, de Javier Manterola. Este mismo número especial ilustra lo amplio y contundente de su contribución, y cómo se puede encontrar inspiración suficiente en cada una de las muchas facetas de su magisterio. Este artículo solo es, pues, uno de los muchos posibles, y quizá su leitmotiv sea trivial: Manterola fue un hombre de transición porque fue ingeniero Ciertamente, los ingenieros descubren en su madurez que el mundo que esperaron heredar de jóvenes ya ha desaparecido,
en parte debido, irónicamente, a su propia labor transformadora. Esto les obliga, para no verse desfasados, a adaptarse al mundo que han alterado, tanto más frenéticamente cuanto más profundas son sus transformaciones. No se puede, pues, ser ingeniero sin cambiar el mundo ni sin aceptar, a su vez, ser cambiado por este. Pero, a la vez, en todos nosotros pervive un núcleo, invariante con el tiempo o con las adversidades, en el que nos reconocemos y que configura nuestro modo de habitar el mundo. Esta combinación de rasgos invariantes y transiciones nos asemeja a
una chacona, la danza barroca construida a partir de unos pocos compases en la voz grave, continuamente repetidos e inalterados durante toda la pieza —el llamado bajo obstinado—, sobre el que suenan las voces superiores con sus variaciones melódicas. Este artículo describe cómo en Manterola, al igual que en todos nosotros, conviven rasgos que permanecieron numantinamente constantes con otros —acaso los de mayor aliciente— que hacen de él un hombre de transición. Sin embargo, al igual que las voces superiores de la chacona no pueden evolucionar con independencia,


El proceso de cálculo
Pasarela del Voluntariado, Zaragoza
Vista del proyecto terminado con la solución adoptada. Solución en C no construida: vistas de la pasarela y tensiones de Von Mises.








Durante el periodo de transición entre lo estricto y lo barroco, Manterola nunca dejaría de ser un ingeniero ortodoxo
sino en consonancia con el bajo obstinado, Manterola evolucionó solo hasta donde se lo permitió su personalidad y su concepción de la ingeniería. Como veremos, no reaccionaría de la misma manera que sus contemporáneos a las mismas variaciones del entorno, como ocurrió, por ejemplo, con la generalización de la informática, las particularidades de las empresas consultoras o el sobredominio técnico para los puentes de luces cortas y medias de finales del siglo XX. Confío en que este artículo contribuya a la comprensión de su figura y a apreciar mejor la evolución de su obra.
Algunos invariantes (o quizá no tanto)
La entrega. Manterola trabajó incansablemente durante una carrera que se prolongó hasta una edad muy avanzada. Aceptó que la entrega total era un peaje justo por ejercer una vocación que exige mucho más de lo que da. En algún texto reconoció su adicción al trabajo, para el cual la ya exigente jornada habitual resultaba insuficiente, hasta confesar que sus hijos no le siguieron por no vivir como él. Pero también declaró que el único acercamiento posible a su profesión es amarla. Y ya se sabe que el que ama no escatima.
La artesanía. Consideraba la ingeniería como una suerte de artesanía, y reprodujo en su entorno de trabajo la estructura con la que un artesano —o un artista— habría
organizado su taller. Al contrario que otros contemporáneos suyos, que crearon equipos en continua rotación y de tamaño oscilante al compás de los ciclos económicos, Manterola trabajó en la misma empresa durante décadas y con el mismo grupo de colaboradores —altamente cualificados y en un número deliberadamente reducido—, quizá por conjurar el riesgo de perder el control creativo de sus proyectos. Conservó la mentalidad de artesano hasta el final de su carrera, cuando la ingeniería de autor —donde el mérito es personal— ya había sido destronada por la ingeniería coral y anónima de los grandes equipos, en unos años en que las pequeñas oficinas estaban siendo fagocitadas por empresas generalistas.
La excelencia. Este planteamiento empresarial, intrínsecamente menos rentable (algún año hubo de carestía), le desvió a un nicho de mercado especializado entre los ya especialistas. Antes que competir por el puente convencional, abaratado al límite en un mercado cada vez más saturado y cainita, Manterola se ladeó y optó por la excelencia como sello. Lo frecuente para él fue lo singular para los demás. Encontró su camino en los puentes de grandes luces, como el de Cádiz; en los puentes de luces moderadas pero de gran complejidad técnica, como el del río Galindo; en las innovaciones tipológicas, como en el Euskalduna; en los puentes en entornos urbanos, como en Logroño; o
incluso en las pasarelas intencionadamente icónicas, como la del Voluntariado de Zaragoza, que además le servirían como campo de pruebas para sus puentes. Trabajó sobre todo en España, hasta que la falta de inversiones le impuso la internacionalización, al igual que a tantas empresas españolas mayores a las que acompañó con frecuencia. La técnica. Como el artesano competente o el artista en busca de la libertad creativa, el concepto que Manterola tenía de su trabajo solo es posible cuando los aspectos técnicos no son el objetivo, sino la herramienta. Dominar el cálculo para que no le domine a uno. La técnica, que casi monopolizó su obra escrita de juventud, acabó relegada en sus textos de madurez, pues como escribió George Blond, para el artista llegado a la plena posesión de la técnica, el detalle no cuenta: es algo natural. Con este fin, recurriría al seguimiento incansable de las novedades técnicas internacionales, a una biblioteca singularmente bien provista, a la presencia en foros profesionales y al uso pionero e intensivo de la informática. El cálculo. A este respecto, Manterola perteneció a la generación de transición entre el cálculo casi manual —la última edición del libro de don Carlos sobre el método de Cross es de 1967— y los sofisticadísimos programas modernos, anticipando el famoso aforismo de Rui-Wamba que afirma que no se debe dimensionar con ordenador una estructura que no se sepa calcular
La audacia

La ortodoxia

Lo estricto


manualmente. Su generación hizo de la necesidad virtud, y, gracias a verse obligada a desarrollar programas propios ante la ausencia de software especializado, adquirió un profundo conocimiento del cálculo, hoy irrepetible por antieconómico. Este proceso es implacable, pues no se puede programar nada que no se comprenda en todas sus sutilezas y bifurcaciones, y establece un criterio binario (algo muy informático) que segrega al que sabe del que no. Sin embargo, la informática no deja de ser un exoesqueleto que amplifica virtudes y defectos: la misma automatización que permite a otros reincidir en las mismas soluciones estereotipadas, permitió a Manterola abstraerse de las tareas repetitivas y concentrarse en lo conceptual. La audacia. Manterola se referiría constantemente al concepto de atreverse. «Para hacer buenos puentes hay que arriesgarse», afirmaba siempre, incluso en la que sería su última charla (Colegio de Ingenieros de Caminos, Canales y Puertos, 2025). Ya al inicio de su trayectoria, don Carlos Fernández Casado le
confiaba puentes —siempre de hormigón; los metálicos y mixtos no llegarían hasta más tarde— que iban más allá de su experiencia. Y se acostumbró a afrontar retos profesionales para los que no se sentía capacitado. Ese rodaje le preparó para el gran atrevimiento de su carrera: el puente de Barrios de Luna, récord mundial. En este proyecto el camino resultó casi más importante que la posada, pues, tras tres años de insomnio, emergería con una enorme reputación, con aún más querencia por la novedad, y con la combinación de humildad y autoconciencia de la propia valía que distingue a los genuinamente grandes.
Los puentes. Aunque proyectó estructuras para edificios muy relevantes —como Torres Blancas, el Banco de Bilbao o el Kursaal—, optó por mudarse de la edificación a los puentes, una decisión nada banal. La autoría de un puente era entonces un patrimonio exclusivo de los ingenieros, mientras que la del edificio lo era de los arquitectos. Trabajar para ellos le habría relegado a ser
el posibilitador anónimo de ideas ajenas, algo que no podía aceptar, a diferencia de otros contemporáneos suyos, como Martínez Calzón, que sí aceptaron esa subordinación. Por otra parte, al contrario de lo que sucede en los puentes, el problema estructural en la edificación es secundario comparado con el funcional. «La gran estructura es el puente», afirmaba Manterola. Y, por último, la escala es otra: mientras que la de la arquitectura es la escala humana, la de la ingeniería es la del problema que resuelve. Por eso, en los planos de arquitectura aparecen personas y en el alzado general de un puente aparece el río o el valle sobre el que cruza. Quizá las pasarelas, donde las personas son el módulo, y los edificios altos, por lo ineludible de su estructura, habiten la tierra de nadie entre ambas disciplinas. Según Aguiló, tomó esta decisión cuando ganó la cátedra de Puentes en 1976 (Colegio de Ingenieros de Caminos, Canales y Puertos, 2025). Desde entonces, decidió ser protagonista del puente antes que actor secundario del edificio.
La historia. Manterola se percibía a sí mismo como el último eslabón de la historia milenaria de los puentes, que le retrotrajo, pasando por Sejourné o los puentes metálicos del siglo XIX, hasta el mundo clásico. Hasta Alcántara, que cubre una pared de su oficina de Madrid y del que don Carlos dijo que sin conocerlo no se pueden proyectar puentes. El entusiasmo de don Carlos por la historia fue fecundo: de la misma manera que su hijo Leonardo unos años antes (Fernández Troyano, 1999), su discípulo Manterola escribiría en sus últimos años un libro sobre la historia de los puentes (Manterola, 2018). Manterola sabía que la ingeniería es continuidad o no es, y que los manifiestos que pretenden demoler la arquitectura y reconstruirla sobre sus ruinas son imposibles en ingeniería. La historia fue para él una fuente constante de aprendizaje e inspiración; y lo demostraba dedicándole las primeras clases de cada curso de puentes o incluyendo cada vez más referencias históricas en sus textos. Pero, sobre todo, lo demostró enraizando su
obra en las tipologías clásicas, como los arcos y las celosías, que transformó sin adulterar (ahora debería sonar música de Brahms), explotando sus posibilidades hasta los mismos límites de la ortodoxia.
La ortodoxia. Otra invariante de su obra es que fue, durante toda su carrera, un ingeniero profundamente ortodoxo, en el sentido de que jamás extendió un cheque estructural sin fondos conceptuales. Él mismo se autodefinía como ortodoxo al asignar el carácter ortodoxo o heterodoxo de las propuestas que se realizan desde dentro o fuera, respectivamente, del mundo de los puentes (Manterola, 2023). La ortodoxia sin fisuras fue acogida inicialmente de buen grado por un Manterola que termina sus estudios en 1962. El contexto era muy propicio, pues toda la ingeniería europea occidental —de la que estaba metódicamente informado— estaba permeada por un concepto de lo estricto que surgió de modo natural entre los ingenieros encargados de reconstruir la Europa devastada por la guerra y que, siguiendo a
Loos, eliminaba el ornamento de los objetos útiles. Pensemos en Finsterwalder, con esa austeridad formal, muy admirado por Manterola, y en su puente de los Nibelungos en Worms (1953), o en el de Bendorf sobre el Rin (1965).
Como consecuencia, el difuso pero inapelable concepto de verdad estructural se convertiría en el primer mandamiento de los ingenieros de puentes. Y, aunque después renegaría repetidamente de ese concepto, Manterola no se pudo sustraer a la influencia de don Carlos, epítome de lo estricto, ni a las consecuencias de trabajar principalmente para Huarte, en donde, como buena constructora, primaba la economía y la simplicidad de ejecución. Recordemos además que los medios de análisis y cálculo, los materiales o las posibilidades constructivas no eran ni de lejos las actuales. Baste mencionar las dovelas de los voladizos del puente de Castejón, limitadas a diez toneladas de peso y montadas con blondín todavía en 1972. Manterola perteneció en su juventud a esa

Arcos espaciales



última generación que aún pudo encontrar épica en los puentes de luces medias. La docencia. Siempre quiso ser profesor. Enseñar le hacía ser mejor ingeniero y viceversa. Los alumnos que se acercaban a sus clases, sin duda atraídos por su reputación fuera del aula, encontraban a un docente magnífico y cercano, sin imposturas. Fue un maestro, en el sentido artesanal del término. En nuestras conversaciones después de su jubilación, manifestó a menudo añoranza de sus clases en la Escuela. Durante su vida, la docencia española de la ingeniería basculó del modelo de la Escuela del Retiro, muy entreverado con la práctica de la ingeniería, al actual, donde las asignaturas más relacionadas con la profesión a veces se encomiendan a quienes jamás la han ejercido. Hoy, con los criterios modernos, Javier Manterola no sería catedrático. Menudo disparate.
El arte. Los ingenieros no solamente apreciamos la proporción, la geometría o las texturas en las obras de ingeniería, sino que el significado estructural añade capas a nuestra
percepción, del mismo modo que el pintor aprecia la composición o el color y el músico las progresiones armónicas. La percepción física de una estructura y la comprensión simultánea de su comportamiento o de su relación con el entorno excitan una especie de sinestesia estructural —a falta de mejor término—, que está vedada al profano. Sinestésicos fueron Liszt, que pedía más amarillo a sus músicos, o Klee, que pintó su Nocturno para trompa en 1921. Quiero pensar que Manterola estaría razonablemente de acuerdo con esta idea. Atraído desde joven por la música, las artes plásticas o la arquitectura, evolucionó hasta vindicar una nueva forma de ver la ingeniería —ese saber ver prestado de Zevi (Aguiló & Manterola, 2009)— que la hiciera acreedora de un lugar junto a las obras de arte. No diré más: escribir sobre arte me resulta escurridizo, como un pez en un estanque. La relación entre Manterola y el arte (véase, por ejemplo, Manterola, 2006) merece otra mirada más serena y formada que la mía.
Transiciones, ma non troppo De lo estricto a lo barroco. Ya se han descrito, al paso, algunas transiciones en Manterola, como la que supuso empezar a enseñar y dejar de hacerlo, el crecimiento de su autoconfianza, la formación de su equipo, la inclusión de los puentes metálicos y mixtos en su repertorio, la internacionalización de su cartera de trabajos o la progresiva consideración de la ingeniería como arte. Pero quizá la gran transición en el mundo de los puentes para Manterola y toda su generación se produjo en la segunda mitad del siglo XX, y se resume en que en las tres décadas que van de 1962 —cuando Manterola terminó sus estudios— a la Expo de Sevilla de 1992 —cuando el puente del Alamillo de Calatrava se convierte en un icono de resonancia mundial— se pasa de lo estricto a lo barroco, en el sentido borgiano del término, entendido como la etapa final de todo arte en la que éste exhibe y dilapida sus medios. El estudio de este proceso excedería con mucho la extensión prevista para este
Explotación ortodoxa de las tipologías canónicas




La curva, la celosía y el arco



artículo, pero resulta ineludible para entender lo estructural en la ingeniería y arquitectura españolas contemporáneas, así como para la caracterización, todavía pendiente, de la que podría denominarse la Escuela Española de Puentes, de la que Manterola sería su figura más destacada. Todo comienza cuando los avances en materiales, medios de ejecución y herramientas informáticas vuelven las posibilidades constructivas claramente desproporcionadas respecto de los fines necesarios. Todo es calculable y construible. Lo antaño épico se vuelve rutinario. La multiplicidad de soluciones reemplaza a la solución única, y se transmite a la sociedad una aparente imagen de omnipotencia. Al igual que se da por supuesto que las sillas nos sostendrán y que los relojes serán precisos, se dan triunfalmente por superados los problemas técnicos asociados a los puentes de luces cortas y medias. Sin embargo, el sobredominio que proporcionan los propios ingenieros degenera en un río revuelto donde la ganancia es para algunos arquitectos y escultores, ajenos al
mundo de los puentes y su historia: las tipologías canónicas se desechan por trilladas y la originalidad se vuelve premisa en vez de consecuencia. En los puentes urbanos se demandan los iconos propios de una sociedad del bienestar y de la imagen. Prima lo emocional sobre lo reflexivo; la inspiración sobre la perseverancia y las decisiones se justifican en base a valores subjetivos, intangibles, políticos. Ya no se trata de convencer a ingenieros capaces de percibir la sutileza estructural, sino de seducir a los profanos y sus gobernantes, que exigen posmodernidad (quiera decir eso lo que quiera decir). Pintan bastos para la ortodoxia. Es el momento del puente garabato, producto de un rapto de inspiración antes que del estudio sereno de alternativas. Lo formal y lo estructural pasan de fases simultáneas a sucesivas aunque, irónicamente, para hacer un mal puente haya que hacer muy buena ingeniería. Aparecen los puentes de marca, asociados al starchitect de moda. Se compran Hadids o Calatravas con la esperanza de que sean el próximo Guggenheim
(Moix, 2010). Es el tiempo de la seducción, del alarde técnico, de la pirotecnia. Evolución. Estas circunstancias sorprenden a contrapié a toda una generación de ingenieros educados en lo estricto y, en particular, a un Manterola en su cincuentena, en plena madurez personal y profesional. La última etapa de su obra, que Aguiló describe como de «dominio tipológico y enriquecimiento formal» (Manterola, Aguiló, Onzain & RuiWamba, 2011), se desarrolla, pues, en este contexto. Es cierto que una parte no menor de su trabajo, los grandes puentes, no se vio afectada, pues lo estricto no se cuestiona cuando lo estructural se impone. No hay artificio (no puede haberlo) en los grandes arcos y puentes atirantados de su etapa crepuscular. Pero con respecto a los puentes de luces cortas y medias, donde sí se puede tomar partido, su actitud quedó clara al escribir: «la ortodoxia resistente permite y ha derivado en configuraciones nuevas, que no se deducen necesariamente de las optimizaciones formales alcanzadas a finales de los 60 y 70 del
siglo XX. No se quiere decir con esto que las optimizaciones de los años 50 hayan dejado de tener vigencia, sino que se puede ampliar el repertorio formal dentro de la ortodoxia más exigente» (Manterola, 2023). Es decir, la ortodoxia se convirtió en la cera con la que Manterola taponó sus oídos a los cantos de sirena que le incitaban al exceso formal y que sí seduciría, sin embargo, a otros ingenieros, desorientados, que no mencionaré. Como en la analogía de la chacona a la que nos referíamos antes, este entorno que incita al virtuosismo hueco no suena en consonancia con el bajo obstinado de Manterola. De hecho, no lo necesitó para crear el catálogo de formas nuevas que desarrollaría en este periodo, pues no cambió su modus operandi, basado en el conocimiento, el trabajo y el dominio técnico. «La complejidad aventura formas diferentes y solo las revela a los que buscan significados en profundidad» (Manterola, 2008), escribiría en 2008. Para vencer las últimas reservas posibles, Manterola solo hubo de suavizar el concepto
de lo estricto que había heredado —con un significado ascético, asimilable a lo mínimo o lo óptimo, pero relegado ya solo a las grandes luces— para sustituirlo por un concepto menos severo, compatible con el sobredominio técnico. Junto con otros destacados ingenieros coetáneos, como Arenas (Arenas de Pablo, 2003), Fernández Ordóñez (Navarro Vera, 2009), Fernández Troyano o Martínez Calzón (Martínez Calzón, 2006), entre otros, o Schlaich (Holgate, 1996) y Virlogeux, por citar dos extranjeros, Manterola no dejó de ser un ortodoxo en un tiempo barroco. Toda esta generación, cada uno con sus propios matices, se distinguiría por una exploración exhaustiva de las posibilidades de los conceptos resistentes y las tipologías estructurales canónicas (veánse fotografias en la página anterior), por la prevalencia de la ortodoxia en el diseño conceptual, el cuidado del detalle y la búsqueda estética, aunque autocontenida y esquiva al alarde formal.
La obra de Manterola en este periodo se caracterizó, entre otras innovaciones, por
la introducción deliberada de la curvatura, imposible sin la comprensión profunda del acoplamiento flexión-torsión como mecanismo resistente vertebrador de los tableros, y que está en su repertorio desde la acertadísima solución del puente del Pilar en Zaragoza (1992), con ejemplos soberbios como la glorieta circular de Zizur (2004); la recuperación de la celosía para los dinteles como en el puente del Centenari en Montserrat (2003), y la revisitación de los grandes arcos, con toda su carga histórica, en realizaciones de tablero superior como el del Escudo (1999) e inferior, como en el puente sobre el Ebro (2002) (veánse fotografias en esta página). Pero quizá lo que resulte incluso más interesante son las formalizaciones que siguen de las combinaciones de dos o más de estos conceptos en el mismo puente o pasarela. Por ejemplo, al combinar la curvatura con el arco se obtiene el arco de planta curva de Endarlatza (2008), que necesita de una elevada rigidez transversal en el arco, o el puente sobre el rio Galindo (veánse fotografias en la







página anterior), del mismo año, con un arco superior de planta curva, donde las fuerzas de desvío hacia el exterior del arco espacial se recogen por un atirantamiento de contrarresto anclado en el borde interior del tablero. De manera similar, combina el dintel curvo con el atirantamiento excéntrico, anclado en un solo borde del tablero (que resulta estable precisamente por ser curvo), una tipología que se retrotrae a la pasarela de las Glorias (1974). Así, un lado presenta una vista libre de obstáculos, creando un mirador sobre los sitios de paso, mientras que, en el otro lado, la superficie reglada creada por los tirantes guía y acompaña al peatón mientras cruza. La combinación de curvatura y atirantamiento proporciona además espacialidad a soluciones que a priori carecen de ella. Alternativamente a Schlaich —que utiliza pretensado para contrarrestar la torsión mediante dos anillos horizontales superpuestos (Holgate, 1996)— Manterola prefiere utilizar secciones cerradas de elevada rigidez torsional. Suspenderá excéntricamente los
dinteles curvos desde arcos, como en Elche (1995), Logroño (2003) y Lorca (2003), o de pilonos, como en las pasarelas de Murcia (1996), sobre el Manzanares en Madrid (2003) o en la del Voluntariado en Zaragoza (2008) (veánse las fotografias en esta página). Como último ejemplo, Manterola combinará la curvatura en planta con el uso de la celosía y su dominio de la torsión en el puente de Euskalduna en Bilbao (1999), sin duda uno de sus puentes más brillantes. El alma en celosía de su sección transversal en forma de Z separa de forma natural el tráfico de vehículos del peatonal, que queda protegido bajo el ala superior, compuesta por una celosía horizontal. La forma en la que resisten la flexión y la torsión acopladas ha merecido con justicia la atención de la literatura técnica (véase, por ejemplo, Manterola, Aguiló, Onzain & RuiWamba, 2011) y no se insistirá más.
Epílogo y exhortación
Epílogo. Cuando escribo estas líneas, hace poco más de un año que nos falta Manterola.
Los recuerdos, todavía nítidos, que atesoramos quienes lo conocimos en persona han comenzado ya, inevitablemente, a desdibujarse. Por esto ahora, y no más tarde, es el momento de transmitir a los demás (y, a la larga, a los que no lo conocieron) cómo influyó en nuestras vidas, cómo contribuyó a ahormarnos a cada uno como ingenieros y, lo más importante, como personas. Sin Manterola, me pregunto de quién habríamos sido alumnos, qué solución se habría construido en lugar de Barrios de Luna, o quién habría entrado en la Academia de Bellas Artes de San Fernando (Manterola, 2006). Sin duda, no seríamos los mismos. Como buen ingeniero, Manterola cambió nuestro mundo. Igual que Glenn Gould afirmaba que «a cada hombre su propio Bach», a cada uno de nosotros nos corresponde nuestro propio Javier Manterola.
Exhortación. Pero sus textos siguen intactos y a nuestra disposición, y sus obras seguirán, por lo menos unas pocas generaciones más, como testimonio construido. Por eso
quisiera terminar este artículo exhortando al lector a que lea lo escrito por él y sobre él — compile sus textos, libros, artículos y comunicaciones a congresos y léalos en el orden que prefiera— empezando por el estudio de su obra que llevó a cabo Miguel Aguiló en Manterola, Aguiló, Onzain & Rui-Wamba, 2011— y que vea también los vídeos de sus conferencias —comenzando por la última, en 2024, en el Colegio de Ingenieros de Caminos, Canales y Puertos. Pero, sobre todo, que visite sus obras, que cruce sus puentes. Ningún texto es comparable a la emoción de cruzar el puente de Cádiz o el Euskalduna por primera vez. Y que se detenga a observarlos, a analizarlos, hasta percibirlos como propios, pues los puentes pertenecen a los hombres capaces de comprenderlos. Como en la parábola de los talentos, algún día nos pedirán cuentas de la herencia que se nos ha confiado. Esperemos estar a la altura de su legado.
Gracias por todo, Javier.
Referencias
1 Aguiló, M., & Manterola, J. (2009). Saber ver la ingeniería. Revista de Obras Públicas (3497), 7-28.
2 Arenas, J. J. (2003). Caminos en el aire: los puentes. Colegio de Ingenieros de Caminos, Canales y Puertos.
3 Colegio de Ingenieros de Caminos, Canales y Puertos. Concesión del título de Colegiado de Honor a Javier Manterola Armisén [Video]. YouTube. https:// www.youtube.com/watch?v=OQNFyR6cIAU
4 Fernández, L. (1999). Tierra sobre el agua: visión histórica universal de los puentes. Colegio de Ingenieros de Caminos, Canales y Puertos.
5 Holgate, A. (1996). The art of structural engineering: The work of Jörg Schlaich and his team. Edition Axel Menges.
6 Manterola, J. (2006). Relación entre la estructura resistente y la forma: notas en torno a la valoración estética de los puentes. Real Academia de Bellas Artes de San Fernando.
7 Manterola, J. (2008). La forma de lo resistente. Ingeniería y Territorio (81), 32-37.
8 Manterola, J. (2018). Historia de los puentes. Colegio de Ingenieros de Caminos, Canales y Puertos.
9 Manterola, J. (2023). Ortodoxia y heterodoxia en el diseño de puentes. En Consideraciones sobre estética, arquitectura e ingeniería Colegio de Ingenieros de Caminos, Canales y Puertos
10 Martínez Calzón, J. (2006). Puentes, estructuras, actitudes Turner Publicaciones.
11 Moix, Ll. (2010). Arquitectura milagrosa: hazañas de los arquitectos estrella en la España del Guggenheim. Editorial Anagrama.
12 Navarro Vera, J. R. (Ed.). (2009). Pensar la ingeniería: antología de textos de José Antonio Fernández Ordóñez. Colegio de Ingenieros de Caminos, Canales y Puertos.
13 Manterola, J., Aguiló, M., Onzain, M., & Rui-Wamba, J. (2011). Javier Manterola Armisén: pensamiento y obra. Fundación Esteyco.





Profesor Javier Manterola Armisén, in memoriam
Comencé mi carrera profesional en 1969, un año después de que las tropas rusas ocuparan nuestro país y arruinaran nuestras esperanzas de una vida libre y creativa. Afortunadamente, trabajaba en una constructora en la que diseñábamos y construíamos puentes de hormigón pretensado; por ello, aunque estábamos confinados en el país, la empresa logró enviarme al congreso de la FIB, celebrado en Londres en 1974. En aquel congreso asistí a la presentación del profesor Carlos Fernández Casado que describía el diseño y la construcción de un puente atirantado sobre el río Ebro en Navarra. El puente había sido proyectado por él junto con Leonardo Fernández y Javier Manterola. Me impresionó la excelente combinación de eficiencia estructural, tecnología de
construcción y belleza arquitectónica y deseé poder diseñar estructuras similares. Desde entonces, seguí el trabajo de la Oficina de Proyectos Carlos Fernández Casado, que siempre me ha parecido original, innovador e interesante.
Tras el fallecimiento del profesor Carlos Fernández Casado, el doctor Leonardo Fernández y el profesor Javier Manterola continuaron con la filosofía de diseño de la Oficina, aunque los dos eran unos ingenieros muy originales y con un estilo propio. En 1987, cuando tuve la oportunidad de viajar a España, me atreví a preguntarle al profesor Manterola si podía visitar la Oficina de Proyectos. Nos recibió a mis dos compañeros y a mí en la biblioteca de la Oficina, donde vi muchos libros y maquetas. Debo admitir que
envidié mucho el ambiente creativo que se respiraba ahí. Él fue muy amable, nos mostró sus últimos diseños, y nos explicó con amabilidad su enfoque de trabajo. Después de la Revolución de Terciopelo de 1989, coincidí con el profesor Manterola en varias conferencias en las que él presentaba trabajos. Lo vi por última vez en Madrid, durante la conferencia que le dedicaron en 2020. Me alegré muchísimo cuando me dijo que le gustaba parte de mi obra. Como ya he mencionado, los diseños del profesor Manterola combinan siempre eficiencia estructural, innovación tecnológica y belleza. Se trata de una arquitectura significativa que, sin embargo, se integra en el paisaje sin llegar a superarlo. Tiene una escala humana e incorpora detalles artísticos.




De entre tantas estructuras, me gustaría mencionar algunas en concreto:
• El puente de La Acebosa, construido en la autovía del Cantábrico, combina vigas cajón central prefabricadas y voladizos nervados prefabricados con una losa de tablero hormigonada in situ que, junto con el pretensado, confieren al puente su integridad estructural. La combinación de pilas de curvatura simple, el intradós liso de la viga central y los voladizos nervados crean una estructura de puente muy ligera y transparente.
• El puente sobre el río Ebro en Zaragoza está formado por un arco atirantado compuesto por un único arco de acero-hormigón mixto que se sitúa en el eje del puente del que se suspende un amplio tablero de hormigón pretensado, modelado por una viga cajón central con grandes voladizos nervados. El intradós de la viga cajón central y los voladizos están ligeramente curvados. Los pilares de formas sencillas, junto con el intradós curvo del tablero y el arco de bellas formas, crean una estructura de singular unidad y belleza.
• El puente sobre el río Piloña está formado por una viga esbelta que se apoya en pilares en forma de V en el tramo que cruza el río. El diseño resuelve con elegancia un cruce oblicuo mediante pilares circulares con puntales trapezoidales, para tramos largos, y capiteles trapezoidales para tramos cortos.
• El puente La Reina, en Navarra, está formado por una estructura porticada, de elegantes formas, con una luz de 120 m. El tablero está formado por dos estrechos cajones que se mueven entre los puntales inclinados vertical y horizontalmente. Al estar situados cerca del eje del puente, el tablero presenta grandes voladizos que, junto con la gran inclinación de los puntales, le confieren una gran audacia y libertad estructural. Parece como si el puente volara sobre el río.
• El puente ferroviario sobre el río Ebro, en Aragón, desafía nuestra imaginación sobre las estructuras ferroviarias de la era industrial. El tablero del vano principal, con sección transversal en canal, presenta almas laterales aligeradas por aberturas circulares. El puente transmite una sensación de robustez y seguridad que combina con la ligereza y eficiencia estructural.
• El puente sobre el río Guadalquivir, en Córdoba, está formado por un tablero de hormigón atirantado en el eje del puente sobre un pilono central situado en el río. En este caso, el tablero, compuesto por una viga cajón de tres células con amplios voladizos, se apoya en un pilar en forma de V. Los puntales inclinados rigidizan significativamente la estructura y, junto con el pilono situado en el centro, crean un punto de cruce de gran eficiencia estructural y alto interés arquitectónico.
• El puente sobre la bahía de Cádiz es una maravilla de la ingeniería, no solo por su longitud total y la extensión del vano principal, sino también por su estética. Si bien el puente tiene diferentes luces en los vanos de acceso y principales, y utiliza acero y hormigón para su tablero, el estilo se mantiene uniforme en toda su longitud. Sorprendentemente, el tramo desmontable se integra a la perfección en el concepto general. El diseño del puente es una auténtica obra de arte estructural. Es evidente que Javier Manterola dedicó gran atención a los puentes, tanto de pequeña como de gran luz, y siempre encontraba para ellos la solución más adecuada combinando su profundo conocimiento con una gran sensibilidad estética. Continuó y perfeccionó el estilo de Carlos Fernández Casado. Además, creó una oficina de proyectos muy respetada, con un ambiente amigable y creativo que ha permitido a sus ingenieros proyectar estructuras de puentes innovadoras por todo el mundo.
Manterola no solo proyectó puentes, sino que también impartió clases de estructura de puentes en la Universidad Politécnica de Madrid y escribió excelentes libros sobre la materia. Influyó significativamente en generaciones de ingenieros españoles y se granjeó una excelente reputación mundial. En definitiva, el profesor Javier Manterola Armisén tuvo una vida rica y completamente fructífera.

año 172 2025 Precio 20€
Javier Manterola 1936 - 2024 N Ú MERO
ORDINARIO EXTRA 3658