


JUNE 5TH, 2024


P A S T A N D P R E S E N T
![]()



JUNE 5TH, 2024


P A S T A N D P R E S E N T
Q Construction Solutions is an award-winning construction managing firm owned by engineers that specializes in building beautiful spaces that bring joy to your everyday life Since 2008, Q Construciton has been managing sophisticated residential and commercial projects in Austin TX and its surrounding cities
NARI 2024 National Award Winner
HBA 2024 Remodeler of the Year
Multiple Regional and Local Awards





Q Construction Solutions is an award-winning construction management firm owned by engineers and specialized in building beautiful spaces that bring joy to your everyday life
Since 2008, Q Construction has been managing sophisticated residential and commercial projects in Austin, TX and its surrounding cities
NARI 2024 National Award Winner
HBA 2024 Remodeler of the Year
Multiple Regional and Local Awards







This is the incredible journey of 5311 Valburn Circle, a 1970s estate nestled in the beautiful NW Hills of Austin, TX This home, with stunning views of the Bull Creek greenbelt, recently underwent a thrilling makeover Preserved in its original state for years, the Cohan family entrusted Q Construction Solutions to bring their vision to life
The adventure kicked off with a bold demolition and gutting of the house, where our team tackled the challenge of reinforcing the hillside foundation and addressing waterproofing issues. We shored up the framing and handled foundation repairs with the help of our engineering experts Antique gems, like a vintage telephone booth, were carefully removed before we started waterproofing to protect against ground moisture To manage water flow from the hillside, we installed a cutting-edge French drain system and repaired the retaining walls with fresh concrete
Next, we navigated the tricky task of updating the mechanical, electrical, and plumbing systems. We replaced water lines and electrical wiring, relocated HVAC ductwork, and installed a brand-new HVAC unit Structural changes were made to reframe damaged areas and accommodate a refreshing layout in the main bathroom, stairs, and kitchen area All mountainside windows were replaced, and a new foldable glass door was added to seamlessly connect the interiors with the stunning views from the back deck
The interior decor now beautifully blends modern and transitional styles, featuring a chic mix of patterns, colors, and textures. Standout features include a striking Hunt Club green island in the kitchen, blue grass corduroy walls in the master bath, and exposed white oak beams throughout Expansive glass doors, picture windows, and skylights flood both levels with natural light Modern luxuries like staircase lights, a steam shower, towel warmers, fogless mirrors, and under-cabinet lighting add a touch of sophistication
Today, 5311 Valburn Circle is a true masterpiece of style and luxury The Cohan family’s dream of a forever home has come true a place where they’ll create cherished memories for generations Join us in celebrating this awe-inspiring transformation!


Demolition involved gutting the house and removing unnecessary walls and infrastructure according to the demo plan








There were amazing discoveries during demo such as an antique telephone However, we also encountered unwelcome surprises like termites, mildew, uneven subfloors, Leaks, and water damage



The foundation of the house was compromised in several areas due to erosion and water intrusion structural reinforcement, waterproofing and proper drainage were done.







The entryway was transformed with white oak millwork, large picture windows showcasing the stunning views, and a gorgeous chandelier





The striking staircase design now acts as the centerpiece of the house, showcasing elegant black railings, inviting wooden steps, and innovative lighting It expertly combines industrial and natural elements for a more modern look





The combination of sophisticated finishes, abundant natural lighting and panoramic views provide an ideal sanctuary to unwind and appreciate the beauty of nature,







The game room underwent a remarkable transformation from a dated space to an open and functional area with wood faux beams, recessed lighting, larger windows, and a stunning wet bar





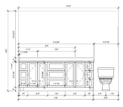
Farewell to the outdated carpeted bathroom floors! welcome to a beautiful blend of glass, porcelain, wood, and wallpaper, paired with Arctic White Quartz countertops and a lavish steam shower.










The guest bath is elegantly and universally stylish in a deep blue picket tile, moody blue custom cabinetry and sophisticated champagne bronze fixtures




The kids bath now features a fun and vibrant aesthetic with an adventurous and cohesive combination of turquoise crackle fishscale tile, lemon twist walls and positive line patterned floor tile. Champagne bronze fixtures ties together the entire design





The powder bath combines the gorgeous aesthetic of Lemieux et Cie Ferrandi anthropology wallpaper, an exquisite vanity and cohesive fixtures.




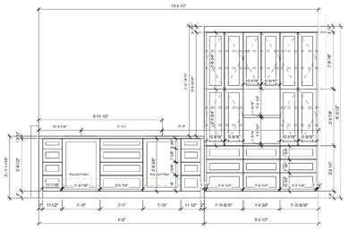
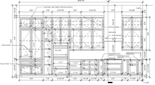
The heart of every home this once-dated kitchen with a hideous lightbox has been completely transformed It was completely gutted, the ceiling was raised, new windows were added, and beautiful and functional finishes with vibrant colors and textures were incorporated The kitchen’s dividing wall was removed to create an impressive open-concept layout














-From the management and staff of






