

![]()


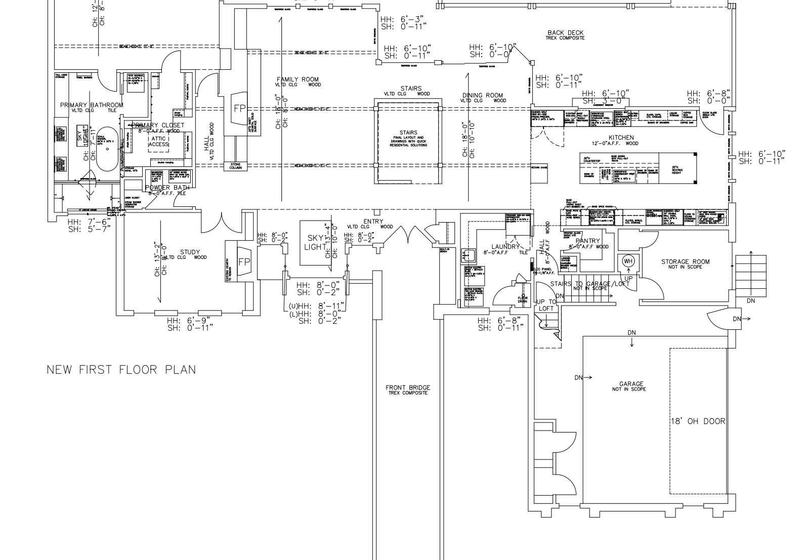
This 1970s estate nestled in scenic hills has undergone an incredible kitchen transformation. Entrusted by a vibrant, multi-generational family, we modernized the space while preserving its charm. By raising the ceiling to 12 feet and removing dividing walls, we created an open voluminous layout. New windows and a glass door connect the kitchen to the greenbelt views while flooding the space with natural light. The design blends modern and transitional styles with a gorgeous mix of white shaker cabinets, white oak accents, and a bold Hunt Club green island. Luxe gold fixtures and a hand-made forest-green tile backsplash add elegance, making this kitchen the heart of the home.

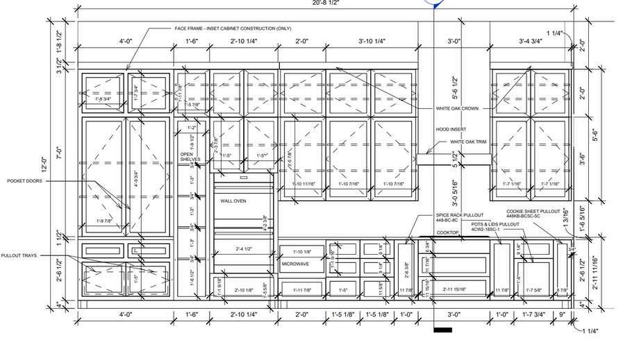
B A K I N G S T A T I O N



Enhance the grandeur of the kitchen with spaciousness and elegance. Maximize storage to improve functionality. Modernize the aesthetic while maintaining cohesiveness throughout the home and maintain its original charm.
Improve flow with an open, inviting layout that connects nearby rooms.
Prioritize safety and longevity by updating electrical and plumbing systems and addressing structural deficiencies.
Raised ceilings maximizing the openness of the space in the kitchen.
Baking station with pocket door system dedicated for baking and storage convenience.
Eliminated dividing walls in the kitchen to allow for an openconcept design and better flow to nearby rooms.
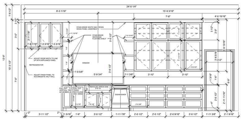
White oak accents including hood bands, cabinet bridges and floating shelves add cohesion throughout the home.
Extra large Island with storage and seating for casual dining and entertaining or realistically for the kids while mom is in the kitchen.
Task lighting for specific activities e.g. cooking and baking.
Operable kitchen windows allow communication with the kids on the pool deck. Enhances ventilation and brings in natural light.
Functional pull-outs were incorporated throughout the kitchen for enhanced usability, along with two sinks to optimize workflow. S


This once-dated kitchen with a hideous lightbox has been completely transformed. It was completely gutted, the ceiling was raised, new windows were added, and beautiful and functional finishes with vibrant colors and textures were incorporated.


The kitchen’s dividing wall from the dining and living room was removed. The kitchen ceiling was raised from 8ft vaulted to a consistent 12ft feet high This enlarged the space and allows for a seemless transition between living spaces





We removed the kitchen’s dividing wall to create an impressive open-concept layout. We raised the vaulted ceiling from 8ft to a consistent 12ft feet high. This required major structural and MEP work. In the end, this took the kitchen to a “grand” kitchen standing and resulted in an impressive open-concept layout with seamless transition between the living spaces
This new kitchen now has great openess, plenty of natural light, tons of storage and new features including: windows, floors, lighting fixtures, plumbing fixtures, appliances, custom cabinets by Cabin et Couture (cabinetcouture.com) featuring shelves, cubbies, dividers, racks, pullout trays and trash bins, baking station, two sinks, filtration system and soft close hardware.



A fun and convenient feature in the newly remodeled kitchen is this stylish and functional baking station, cleverly hidden behind sleek pocket doors by Cabinet Couture (cabinetcouture.com). This design keeps the space looking clean and uncluttered when not in use. The station offers ample shelving, work surface with outlets, task lighting and drawers to store all the essential baking equipment.




