
BATH

We transformed the main bathroom of this stunning 1970s hillside home. Left untouched for decades, the remodel was entrusted to us by a multi-generational family to modernize while preserving its charm. With the client's vision in mind, we removed dated carpeting and demolished the dividing wall between the vanity area and the rest of the bathroom. We raised the ceiling to a uniform 10' to enhance the bathroom’s grandeur. The bathroom now features blue grass corduroy wall tiles, porcelain slab shower surround, a luxurious steam shower system, custom stained cabinetry, and woodenaccented fixtures for a cohesive and lavish retreat. This reimagined space has brought the family’s dream main bathroom to reality.




Enhance the grandeur of the bathroom with spaciousness and elegance.
Maximize storage to improve functionality.
Modernize the aesthetic while maintaining cohesiveness throughout the home.
Improve flow with a more open and logical layout.
Prioritize safety and longevity by updating electrical and plumbing systems. Luxurious material selections
Features
Raised ceilings to maximize the openness of the bathroom
Eliminated the dividing walls between the vanity area and the rest of the bathroom to allow for an open-concept design.
We installed a Luxury Smart Steam Shower feature in the main bath with chroma and sound therapy features.
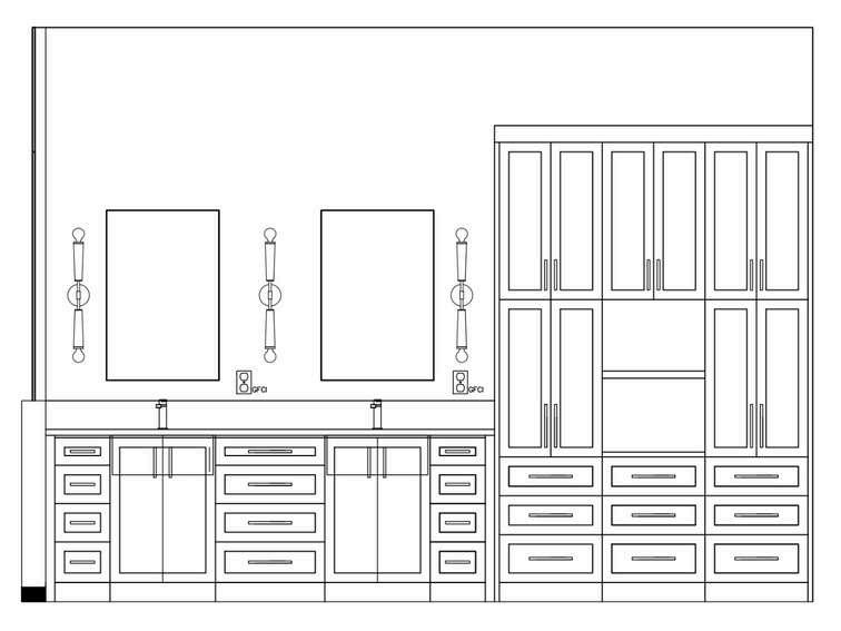
Custom stained white oak vanity and wooden accented fixtures harmonize with the natural wood elements throughout the home
Functional Elements
Fogless mirrors to withstand the shower steam. Towel Warmers to add luxury and functionality to the bathroom
The floor-to-ceiling shower glass design accommodates the luxury steam shower
Ample cabinetry linen, towels and supplies storage

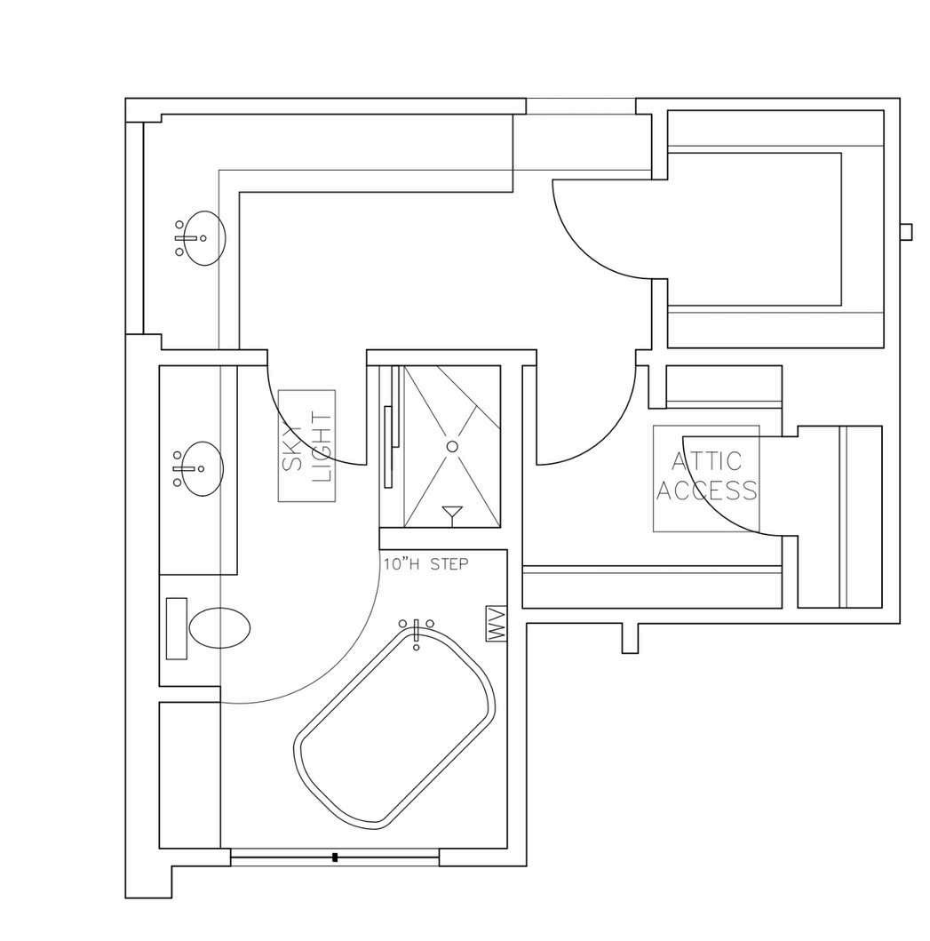
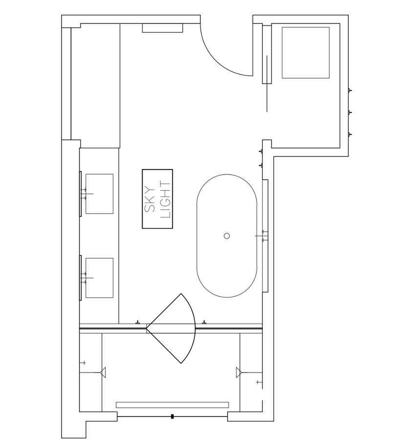
Proposed Floorplan Existing Floorplan M a i n









