


JUNE 25TH, 2024

![]()



JUNE 25TH, 2024

Q Construction Solutions is an award-winning construction management firm owned by engineers and specialized in building beautiful spaces that bring joy to your everyday life.
Since 2008, Q Construction has been managing sophisticated residential and commercial projects in Austin, TX and its surrounding cities.
NARI 2024 National Award Winner
HBA 2024 Remodeler of the Year
Multiple Regional and Local Awards









This is the remarkable transformation journey of a 1999 modern ranch-style home, tucked away in a picturesque neighborhood of West Austin, the remodel has infused the space with character, charm, and contemporary elegance all thanks to a complete renovation driven by Ashley and Ryan’s vision for their family’s forever home Our goal was to bring their forever home to life, blending transitional updates with timeless appeal
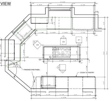
The main reason for this remodel was the kitchen layout The biggest concern was that the kitchen had inefficient access from the living room It also lacked storage The pantry closet was like a minuscule cabin As part of the remodel, the adjacent hallway and bar were annexed and reshaped into a new spacious walk-in pantry and wet bar area The new access to this area was cleverly disguised with a concealed cabinet doorway This thoughtful reconfiguration involved complex structural and MEP modifications As a result, we dramatically increased storage We also improved the home’s flow while eliminating a meaningless hallway and creating an open inviting layout connecting the living room and expanded kitchen seamlessly
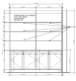
During the remodel, we discovered a huge termite colony that lived in the entire kitchen’s subfloor This led to the removal of the impacted kitchen subfloor members and flooring and pest control intervention The kitchen itself underwent a full-scale remodel, showcasing a sophisticated, transitional design Floor-to-ceiling custom cabinetry brings a striking visual balance with additional storage Vertically stacked Avio subway tile polished nickel fixtures and stainless steel appliances complete the sleek aesthetic
Ryan has an exquisite musical taste , As a result, the old office space was enclosed and transformed into the listening room, a haven for music lovers The open space was enclosed with a wall extension and new double doors Acoustic wall insulation and decorative panels enhance the listening experience Inky color walls, ceiling, and trimwork help set the mood A custom-built bookcase now holds the family’s extensive record collection The room now marries elegance with acoustical precision
Meanwhile, the main bathroom has been turned into a serene retreat Ashley wanted an oasis after each exhaustive day Featuring an elegant combination of white and baby blue Cloe tile, a frameless glass shower, and a vaulted arched window that bathes the room in natural light The tub surround was extended to serve as a bench in the shower Herringbone floors and dual custom shaker vanities complete the look, combining both style and functionality
Other improvements were made throughout the home, including refinishing the hardwood floors, painting, updating light fixtures, and updating the staircase railing to create a cohesive, polished aesthetic
This project was the culmination of months of thoughtful planning and close collaboration with the wonderful Wigley family and the incredible team from O’Hara Interiors The result? A stunning, functional home that honors its original charm while embracing modern living Join us in celebrating this extraordinary transformation where this lovely family will continue to build their beautiful family in their forever home
The demolition phase involved a complete gut of the house, follo strategic restructuring of walls in the kitchen and pantry areas in a with the demo plan








on, we discovered a large termite colony beneath the kitchen s subfloor, causing extensive damage We removed the affected areas, inspected the rest of the house for further issues, and brought in exterminators to ensure the pests were permanently eliminated



The load-bearing wall between the pantry and kitchen was dem replaced with a beam for support After significant framing, mechan plumbing reconfiguration, we reclaimed the wasted hallway space for pantry storage and created a more open layout that integrates the kitchen and the living room








nger constricted and has seamless access to the living ace has been repurposed and turned into a walk-in pantry. and the living room now features a larger media wall



Beautiful and functional finishes with vibrant colors and textu incorporated into the new space appliances and fixtures were relo allow for a more logical layout of the kitchen










With a touch of cabinetry magic, the pantry was concealed with a secret cabinet doorway, unveiling a hidden room with ample pantry storage, a sleek wet bar, and a stylish coffee bar This clever installation adds an element of surprise and charm to the already stunning kitchen.










several infrastructural obstacles, we were able to expand the space and provide ample pantry storage on both sides of the walls.




Hidden behind a cabinet door lives the new pantry & bar area Custom and built-ins, new countertop, backsplash, hardware, and fresh pa elevate this room





d a stunning upgrade with new wood treads seamlessly the home. Sleek, modern balusters were added to create a fresh and sophisticated look

in progress

in progress







s converted into a bookcase with fresh paint and a new rs and mantle were refinished, and the opposing wall now houses the TV and credenza, creating a more open, family-friendly layout between the kitchen and living room








as enclosed and transformed into haven for music lovers. nclosed with a wall extension and new double doors Acoustic wall insulation and decorative panels enhance the listening experience. Inky color walls, ceiling, and trimwork help set the mood. A custombuilt bookcase holds the family’s extensive record collection The room now marries elegance with acoustical precision.

Custom Records Cabinet




With a combination of sophisticated finishes, a gorgeous chandelier, r floors, and paint, the dining room feels completely refreshed The window shutters were also removed to update the space and welcome in an abundance of natural light. BEFORE





on of white and baby blue Cloe tiles get accentuated by and window that radiates natural light Herringbone floor tiles, quartz tub deck, new plumbing and electrical fixtures and hardware, and dual custom vanities complete the look, combining both style and functionality










hower the white and baby blue Cloe tiles continue a r was installed and the quartz tub decking extends inside the shower to serve as a bench. High-efficiency plumbing fixtures were also incorporated




Custom dual shaker vanities, quartz countertops, custom mirrors w edging, and sophisticated linear lighting elevate this elegant and sere











