Memoria Proyecta 2023

Page 1

MERMORIA PROYECTA 2023

PROYECTA representa a nuestra escuela y nuestra escuela se proyecta aquí. El proyecto como parte fundamental de la formación arquitectónica y de la propuesta de una escuela de arquitectura es la base del trabajo aquí presentado. Ideas, intenciones y anhelos se ven plasmados en propuestas que buscan cambiar, mejorar y regenerar el medio en el que vivimos. El taller de proyectos funciona como esa plataforma donde se plantean, se discuten, se producen y se presentan todas estas propuestas que conforman la arquitectura y forma al arquitecto. La intención de MEMORIA PROYECTA es funcionar como testigo de este proceso, documentándolo y reconociendo a sus autores.

En esta segunda edición de MEMORIA PROYECTA, se reúnen los mejores proyectos realizados en los talleres de arquitectura durante el año 2023, pero también se incluyen por primera vez los propuestos en la carrera de urbanismo, conformando así un panorama más amplio de los trabajos realizados en los programas relacionados con el ambiente construido de la EAAD, campus Monterrey.

De la misma manera, por primera vez se incluyen aquí los reconocimientos otorgados a aquellos estudiantes que, por sus continuas participaciones a lo largo de su carrera en PROYECTA, han sido acreedores a la distinción PROYECTA TRAYECTORIA, una manera de reconocer su esfuerzo, dedicación y talento plasmado en sus trabajos realizados en su paso por nuestra escuela. ¡Enhorabuena a todos ellos!

Pero todo este trabajo no hubiera sido posible sin el esfuerzo, dedicación, empeño y generosidad de la Sociedad de Alumnos de Arquitectura. Un reconocimiento muy especial a Luis Mares Guevara, Mishelle López Compeán, Fernanda Garza Espinosa, Vannia Salinas Ayala, Frida Monroy Roesch, Andrea Rodríguez López, Marco Rucks Henríquez, Eugenio Quijano Wolberg, y Katya Salomón Molina; Son ustedes un parte muy importante de nuestra escuela. Nuestro más sincero agradecimiento.

Agradecemos igualmente a los estudiantes que participaron en la elaboración de este documento MEMORIA PROYECTA 2023. Muchas gracias a Gael Ulin Briseño, Diana Ortiz Cárdenas, Ana Lucía Leal González, Emilio Presiado Hernández y Mariana Elizondo Osete.

Y finalmente un reconocimiento a toda la comunidad estudiantil y docente de los programas en Arquitectura y Urbanismo del campus Monterrey por su voluntad e interés por participar escribiendo una página de nuestra historia.

PROYECTA MAYO 2023

52 Proyectos participantes realizados por 129 estudiantes durante el semestre Agosto-diciembre 2022.

Categorías:

Tensoestructuras

De la idea al modelo arquitectónico

Hábitat efímero

Vivienda unifamiliar

Vivienda colectiva

Proyectos V

Arquitectura participativa

Modelación y gestión de la información

Arquitectura avanzada

Emprender ciudad

Estancia de investigación

Proyectos integradores 1

Proyectos integradores 2

La realización Proyecta Mayo 2023 estuvo a cargo de la Sociedad de Alumnos de Arquitectura 2023, compuesta por:

Luis Manuel Mares Guevara

Vannia Salinas Ayala

Fernanda Garza Espinosa

Frida Monroy Roesch

Mishelle López Compeán

Andrea Rodríguez López

En el jurado participaron los arquitectos Addiel Dominguez, Gabriela Palomera y Marisol González como parte del Colegio de Arquitectos de Nuevo León.

Patrocinadores oficiales de Proyecta Mayo 2023

Grafic Digital Publicidad Konstruedu.com

Compre Soluciones en prefabricados

Crest

Vector Laser

El Gato bodega de flores

Koch Catering & Food

Legorreta + Legorreta Arquitectos

Clycsa Construcción

Uniblock

Mensaje inaugural Proyecta Mayo 2023

Decano de la Escuela de Arquitectura, Arte y Diseño Región Norte

Que tal, soy Rodolfo Barragán, Decano de la Región Monterrey, de la Escuela de Arquitectura, Arte y Diseño del Tecnológico de Monterrey. He preparado un mensaje inaugural con motivo de la exposición PROYECTA en donde se reúnen los trabajos más destacados de las Carreras de Arquitectura y de Urbanismo del Campus Monterrey.

De acuerdo a la Visión 2030 del Tecnológico de Monterrey la educación es un medio fundamental para lograr el florecimiento humano y se apoya en el saber científico, humanístico y de las artes. El Florecimiento Humano es un proceso para estar en balance y procurar una buena vida buscando un sano equilibrio entre la persona, la comunidad y el planeta.

La semana pasada estuvo con nosotros el historiador y ensayista mexicano Enrique Krauze presentando su libro “Spinoza en el Parque México” como parte de las celebraciones por el octogésimo aniversario del Tec. Cerró su participación recordándonos que la libertad es un recurso que sólo existe en primera persona. La libertad no puede ser dada por alguien más; es algo que la persona misma debe tomar pero sin olvidar a la comunidad y al planeta.

De acuerdo a Krauze las caricaturas de Abel Quezada son un digno ejemplo de como ejercer la libertad profesionalmente. Es la expresión de la libertad con el humor, con la sonrisa, con la ironía, pero nunca con el sarcasmo. Es una revelación, es un alto arte intelectual y plástico. Quezada sostenía que su oficio no tenía nombre. Decía que hacía textos ilustrados que la gente les llamaba “cartones” pero para definir su profesión a él le gustaba decir que él era dibujante. Dibujaba sólo o acompañado, hablando por teléfono y conversando con una persona. Dibujar era un placer que pocos conocían.

Las disciplinas de nuestra escuela tienen en un sentido equivalente al dibujo como un medio fundamental de nuestro quehacer profesional. Pero como los dibujos ilustrados de Abel Quezada debe darse de manera sensible, inteligente y responsable. El pensar y el actuar libremente nos da la posibilidad de proyectar pensando y dibujando, como arquitectos y urbanistas, las distintas facetas y escalas del habitat humano, Casa, Calle, Plaza, Barrio, Ciudad, Urbe, Región. Aclaro que el dibujo puede darse tanto de manera análoga como digital como sucedió en el curso CADi que impartíó el Dr. Joaquin Lorda hace 10 años a docentes de nuestra escuela. El dibujaba con gis en el pizarrón, algunos docentes con bolígrafo sobre hojas de papel y otros con pluma y tableta electrónica.

Así como Krauze convocó a Quezada, yo convoco al arquitecto Carlos Mijares Bracho, citando el texto que publicó el arquitecto Juan Palomar, quien a modo de epígrafe, hace referencia a su calidad humana y profesional como persona libre.

“Rigor intelectual y amabilidad, impecable buena educación y alegre sencillez, ardua erudición y llaneza. La verdadera elegancia que el arquitecto desplegó a lo largo de su vida tiene quizá que ver con todo esto: y con la asombrosa unidad que su trato humano, sus enseñanzas orales y escritas y su arquitectura guardan.”

Decía Spinoza que la persona libre tiene el control de su vida. Actúa en lugar de reaccionar. Así fue el quehacer académico y profesional del arquitecto Mijares. Entre sus varias reflexiones decía que el proceso de enseñanza/aprendizaje en arquitectura debía de darse en gerundio. La arquitectura se va aprendiendo. Ese pensamiento que se refleja en su arquitectura, en sus clases y en sus textos, es una constante. Tiene como premisa obligarnos a afinar nuestra capacidad de observación para poder crear relaciones, para construir con tabiques, o con palabras, para imaginar un espacio o un texto mediante un lenguaje que comunique. (1)

Los croquis, por ejemplo, son especulaciones abiertas, procesos de pensamiento que sirven más aun a quien los hace que a quienes están dirigidos. Son sugerencias abiertas y distan de querer ser respuestas concisas y definitivas. (2)

Los croquis revelan el procedimiento, el cómo de las cosas, y no son necesariamente la solución a los problemas. Los croquis dicen poco pero incluyen mucho. O dicen sólo una parte, muy abocetada y genérica. (3)

¿Por qué se hace un croquis? Porque el lenguaje no basta. A veces son sólo ejercicios para mantenerse en forma. Un croquis sirve para abrir y abrirte posibilidades. En ese sentido es que es muy rico porque permite muchas lecturas. (4)

Los trabajos que fueron seleccionados para montarse en la exposición de PROYECTA que nos reúne el día de hoy son el resultado de un proceso de trabajo en gerundio y en primera persona. Demandó de las y los estudiantes un proceso de estar proyectando, sintetizando y representando las propuestas arquitectónicas y urbanas aquí expuestas capaces de propiciar el florecimiento humano en el ambiente construido. Celebro que este evento se ha realizado de manera ininterrumpida desde su primera edición en Agosto del 2012 hasta la fecha por el compromiso de la SARQ y ahora de la SALUB.

Me alegra que en esta ocasión tan especial nos acompañen familias y el cuerpo docente de las y los estudiantes reconocidos. Su formación integral es una tarea que demanda a todos los involucrados un esfuerzo conjunto e inagotable de disciplina, paciencia, respeto y reconocimiento. Agradezco a los arquit ectos Addiel Domínguez y Marisol Gonzalez del CANL por participar como jurado y a todos los que han hecho posible este evento el cual declaro formalmente inaugurado.

(1) Paloma Vera, Arquine, 2015 (2-4) Fernando Fernández, Arquine, 2015.

Saludo

a los participantes

Hola buenas noches me da mucho gusto el poder estar aqui en compañía de jueces,directivos,maestros, nominados , con el mismo objetivo, galardonar y reconocer el esfuerzo de los alumnos que día con día se levantan con la intención de ser una mejor versión de ellos mismos y se ve reflejado en estos proyectos.

Asímismo recordar el compromiso que tenemos como futuros profesionistas de la construcción en fomentar la excelencia y calidad en cada uno de nuestros proyectos y así marcar una pauta en nuestra sociedad que cada vez necesita de arquitectos con pensamiento crítico e innovadores que puedan dar soluciones a cualquier problema que se enfrenten en su día a día.

PROYECTA TRAYECTORIA

MAYO 2023

Como un reconocimiento especial a todos nuestros estudiantes que han participado continuamente en PROYECTA a lo largo de sus estudios nace PROYECTA TRAYECTORIA. Un reconocimiento que es un reflejo del esfuerzo, dedicación y talento demostrado por los estudiantes durante todos estos años. Para la Escuela es muy importante reconocer el valor que las aportaciones de estudiantes como ellos dieron a nuestra escuela. ¡Enhorabuena arquitectos!

Ana Lucía Martínez Rodríguez

Alejandra Aurora Hanún Garza

Andrea García López

Luis Gilberto Rodríguez Sustaita

Mateo Rule Togno

Mónica Paola Ríos Rodríguez

Diego Martín Espino García

Diego Vázquez Anaya

Ernesto Vázquez Garza

Helena López

Mario Gabriel Rinza Román

Mónica Leal Isla Flores

VELARIA MORA Y PALOMAR

TENSO ESTRUCTURA| SEMESTRE FEBRERO-JUNIO 2023

PROFESORES:

JUAN FELIPE TALAMÁS, MARIO COVARRUBIAS NARRO, GAUDY OYERVIDES

La velaria Mora y Palomar tiene la misión de brindar un espacio de descanso y transito para los alumnos del Tec Campus Monterrey, presentando un área para poder escapar de los días calurosos del verano y su intenso sol. Esta velaria consta de 3 unidades compuestas por módulos que se repiten, creando un sentido de unidad entre ellas, teniendo estos módulos una característica muy importante, los arcosparabólicos, inspirados en los arcos de la Purísima, iglesia de él Arq. Enrique de la Mora, el cual también diseñó los edificios originales de nuestro campus, por lo cual se buscó homoajenarlo de cierto modo y siendo estos arcos la manera perfecta, además de recibirsus apellidos como nombre. En el área central de las 3 velarias se creó un pequeño parque donde se espera se pueda plantar un árbol y dejar como un área verde, ya que es una zona que si recibirá rayos de sol durante el día, aparte de ser una zona por la que el agua suele pasar, tras el análisis de los escurrimientos se concluyó que la parte de abajo de las velarias tendrá una plataforma en lugar de pasto, ya que tendrá muy poca exposición a la luz solar, teniendo esta una forma orgánica, que siga con el concepto de curvaturas en la tenso-estructura.

GERARDO RODRÍGUEZ LÓPEZ

La tenso-estructura esta diseñada para bloquear el sol de verano mientras se permite la entrada del mismo en invierno, creando un espacio en el que se puede convivir en un espacio semi abierto durante las horas más críticas de sol y calor en Monterrey, encontrando estos espacios bien ilumindados gracias a las grandes aperturas en forma de arco. Se busca limitar la altura de la velaria para no quitar horas de luz solar a los árboles y vegetación existente, llegando a los puntos máximos de la misma a los 9m.

CORNUS FLORIDA

Aida Natalia González Meneses

Bruno García González

Ovidio Limón Lara

TENSO ESTRUCTURA| SEMESTRE FEBRERO-JUNIO 2023

PROFESORES:

JOEL VALENCIA DE LOS RIOS, CRISTINA ANCER

Transforma la realidad por medio de un espacio pluridimensional mezclado de membranas y cables de acero que induce una gran cubierta donde conecta simbólicamente al ambiente construido de los edificios de Arte y Diseño, Centro de Biotecnología y CIAP. El origen del proyecto reside en la caracterización de su forma de flor silvestre “Corona de San Pedro”, con la intención de concretar un espacio que sirviera de recreación y relación para los alumnos de ambas escuelas.

Se pretende que el alumnado se junte para realizar actividades recreativas como tocar instrumentos, cantar, pintar, etc. Inspirada en flor endemica de la región de Nuevo León Monterrey “Cornus Florida”. Predomina la gama de colores de la planta.

CORNUS FLORIDA

AIDA NATALIA GONZÁLEZ. MENESES| BRUNO GARCÍA GONZÁLEZ| OVIDIO

LIMÓN LARA

PABELLÓN INTI

Luis Pablo Vargas

DE LA IDEA AL MODELO| SEMESTRE FEBRERO-JUNIO 2023

PROFESORES: SYLVIA RAMÍREZ, ROLANDO LEAL

Imspirado en el dios Inca del Sol, “INTI”, el pabellón adopta su forma conceptual por medio de una composición de armaduras de aluminio galvanizado que invita, desde el extremo de sus rayos, a la exploración de YAKU (dios INCA del Agua), representado en un espejo de agua central. Ubicado en un terreno hipotético de 50m x 50m en el corazón de la capital de Ecuador, Quito se plantea una plaza como contexto construido del “Pabellón INTI”, que, nombrada de la misma manera, rescata la arquitectura Inca de cultivos para la creación de un graderio que rodea al elemento efímero. De esta forma, y de manera simbólica, son combinados los tresprincipales elemetntos y deidades de la cultura prehispánica, siendo estos:

INTI/ SOL: Representado por el pabellón como elemento de mayor jerarquía.

YAKU/ AGUA: Espejo de agua central dentro del Pabellón INTI con rol de eje céntrico.

ALLPA/TIERRA: Graderio inspirado en las terrazas de agricultura Inca prehispánica.

LUIS PABLO VARGAS

El propósito del presente proyecto, es el de la incorporación de las raíces culturales de Ecuador en sus ciudades, y, de la misma manera, la creación de un símbolo de unión entre las culturas indígenas con la cultura contemporanea, por medio de la incorporación de estas en la imagen urbana de la capital.

PABELLÓN INTI

PABELLÓN QUADRIFOGLIO

Ana Regina Rodríguez Juárez

DE LA IDEA AL MODELO| SEMESTRE FEBRERO-JUNIO 2023

PROFESORES:

SYLVIA RAMÍREZ, ROLANDO LEAL

Un pabellón diseñado a partir de módulos que permitan la entrada de luz solar y que pueda ser montado y desmontado en cualquier lugar. Crear una isladentro de la ciudad que funcione como un pulmón entre todo el espacioconstruido y le transmita a las personas el sentimiento de estar rodeado por la naturaleza, lo cual es casi imposible encontrar hoy en día al igual que un trébol de cuatro hojas.

La estructura se compone de dos módulos circulares con puntos de ensamble. El diseño y acomodo de los módulos toma como referencia el nudo de origen Celta que representa la unidad entre los elementos tierra, aire, agua y

DE LA IDEA AL MODELO| SEMESTRE FEBRERO-JUNIO 2023

PROFESORES:

RENA PORSEN OVERGAARD, PATRICIA TORRES SANCHÉZ

Antonella Tarantini Hernández HALF.

Uso multifuncional, dedicado especialmente al evento de la Feria de la Naranja. Gradas/ asientos de pasto inclinadas, tarima, jardineras, camerinos, baños, cuarto de equipos y producción, almacen

ANTONELLA TARANTINI HERNÁNDEZ

HALF

CERRO DEL PENSAMIENTO

Maximiliano González Torre

DE LA IDEA AL MODELO| SEMESTRE FEBRERO-JUNIO 2023

PROFESORES:

DAVID ALEJANDRO RAMÍREZ LARSEN, FRANCISCO BAUTISTA MADRIGAL

El espacio propuesto se sitúa en uno de los bordes del Tecnológico de Monterrey, Campus Monterreyy. Este proyecto desfía el pensamiento de que una edificación no puede tener ambos, un diseño artístico y buena funcionalidad. Sin embargo, esto se logra a través de tomar como inspiración uno de los símbolos regios y el diseño de una planta en la que se desrolló una transición, recorrido y uso de los espacios. El diseño fue inspirado en el Cerro de la Silla, donde se optó por reducir aspectos de valor del cerro que contribuyeran de manera significativa a la esencia del proyecto. Por ello se diseñó un espacio cuya altura y tamaño impusiera una sensación de despersonalización, asimismo también de trascendencia y a la ascención. Por otro lado, el interior fue diseñado con el pensamiento de que los espacios fueran percibidos como cuevas dentro de la montaña, por ello las inclinaciones de estosy que algunos muros estén en diagonal.

MAXIMILIANO

Los aspectos físicos del “Cerro del Pensamiento” invitaran a la comunidad del Campus Monterrey a acercarse al espacio y entrar. La transición entre espacio se puede apreciar desde que uno se encuentra afuera del espacio, ya que afuera uno lleva a cabo una vida social y de interacción con lo que le rodea. Sin embargo, al entrar al espacio la situación cambia ya que la organización de los espacios nos guia a un viaje así en el interior, tanto del espacio como de cada uno. El primer espacio al que uno puedeacceder es la recepción, donde con ayuda de un gran muro en diagonal y un techo inclinado invita al usuario a pasar a la librería. Este espacio en semi social y que sirve como ante sala para el espacio de meditación semi social donde uno puede hacer reflexión en grupo o trabajar de forma silenciosa. Dentro de este espacio se encuentra un corredizo angosto con escaleras que llevan a un piso subterráneo. En esta planta se tienen dos espacios de reflexión individuales y uno privado, donde deberá existir silencio absoluto. Esto con el fin de permitir que cada usuario pueda reflexionar, meditar o llevar a cabo alguna práctica religiosa.

PENSAMIENTO
GONZALEZ TORRE CERRO DEL

PREESCOLAR COMUNITARIO

“LA ESTACIÓN”

Luis Rey Robledo Mauricio

Emiliano Ortega Ruiz

HÁBITAT EFÍMERO | SEMESTRE AGOSTO-DICIEMBRE 2022

PROFESORES:

EDMUNDO J. REYES GUZMÁN, SYLVIA RAMÍREZ DELGADO

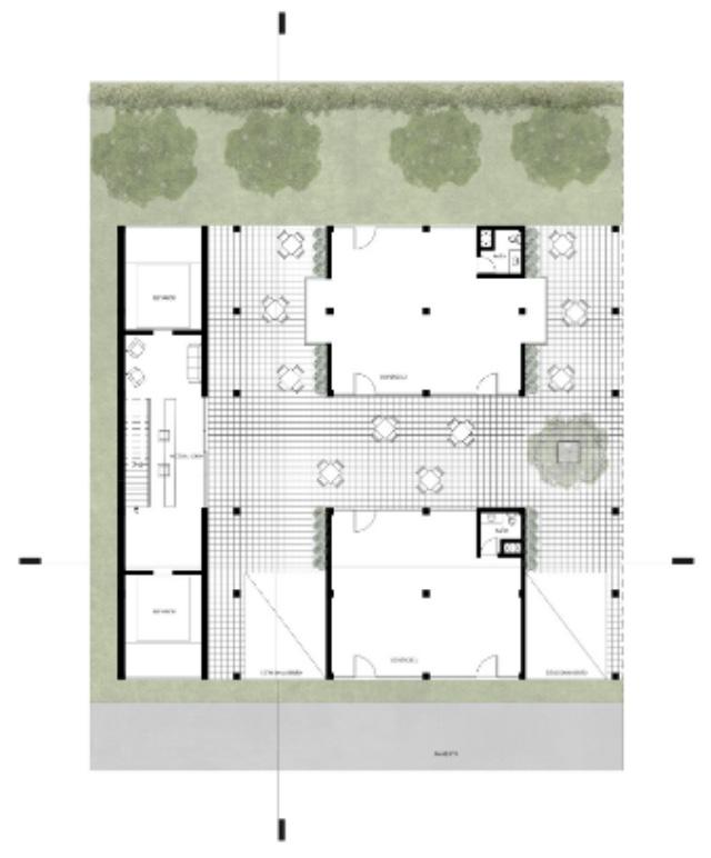
El Preescolar Comunitario “La Estación” se ubica en San Mateo, Juárez, Nuevo León, en un terreno de 228 m² con una construcción de 56 m². El diseño busca proporcionar un entorno seguro y versátil para los niños, con un espacio polivalente que se conecta al patio central.

El objetivo de este proyecto es brindarle a la comunidad de San Mateo un espacio en el que los niños puedan aprender y desarrollar sus capacidades en un ambiente seguro pero que no los prive del mundo exterior, por lo que se decidio incorporar un espacio polivalente en donde parte de sus muros y su techo sean removibles, resultando en un espacio abierto que protege hacia la calle pero que conecta hacia el patio central.

Se contempla el uso de muros prefabricados ligeros, que están hechos de láminas de poliestireno y recubiertos con concreto o yeso. Estos muros son de instalación rápida y sencilla mediante el uso de pernos.

PREESCOLAR COMUNITARIO “LA ESTACIÓN”

LUIS REY ROBLEDO MAURICIO | EMILIANO ORTEGA RUIZ

ELEVACIÓN ESTE

CORTE LONGITUDINAL

OFICINA
ELEVACIÓN NORTE

ÁREA POLIVALENTE

BAÑO PROFESOR ALMACÉN

VIVIENDA E

Aída Rodríguez Quintanilla

Ramón Jardiel Llanos Hernández

HÁBITAT EFÍMERO | SEMESTRE AGOSTO-DICIEMBRE 2022

PROFESORES: PATRICIA TORRES SÁNCHEZ, ELFIDE MARIELA RIVAS GÓMEZ

Vivienda e es un modelo de hábitat de emergencia diseñado para la iniciativa Arroyo Vivo con el objetivo de construir resiliencia en la comunidad y responder al impacto negativo de los fenómenos naturales en la zona colindante con el Arroyo Seco. Con la suma de diferentes actores este proyecto visibiliza las acciones de remediación y prevención en esta zona vulnerable, sumando a los Objetivos de Desarrollo Sostenible para el 2030.

PREDIO TENTATIVO A 1.4 KM

DEL ÁREA AFECTADA. AV. BATALLÓN DE SAN PATRICIO

• Fuera de riesgos de inundaciones y deslizamientos

• Facilidad de construcción por terreno plano

• Mejor regulación de temperatura en las viviendas

REUBICACIÓN DE 100 AFECTADOS

VARIANTE 1

VARIANTE 2

VIVIENDA E AÍDA RODRÍGUEZ QUINTANILLA | RAMÓN JARDIEL LLANOS HERNÁNDEZ

Ventilación cruzada con ventanas altas que permiten la salida del aire caliente.

Techados que evitan la entrada directa de radiación UV en verano, pero la permiten en invierno.

Uso de madera OSB: accesible y de mayor densidad.

Módulo de servicios Alimentación y aseo

Variante 1 2 - 4 personas

Módulo de descanso Sueño, descanso y almacenamiento

Variante 2 4 - 8 personas

CASA ZAJA

Antonella Tarantini

Vanessa Ortiz Belmares

HÁBITAT EFÍMERO | SEMESTRE AGOSTO-DICIEMBRE 2022

PROFESORES: DIANA LAURA RIVERA VILLARREAL, MAYELA ABIGAIL SALAZAR GARCÍA, MARIANA CABELLO CAMPUZANO

El proyecto fue diseñado para la organización socioformadora TECHO y el usuario principal de la vivienda: un padre de familia y sus 2 hijas, una de ellas en la espera de un bebé.

PÚBLICO

PRIVADO

ÁREAS DE SERVICIO Y PATIO INTERIOR

CASA ZAJA

ANTONELLA TARANTINI | VANESSA ORTIZ BELMARES

SOLUCIONES TECNOLÓGICAS

Parrilla eléctrica portátil en lugar de utilizar gas o un fogón por seguridad, captación de agua pluvial por canaletas de PVC y Tamboplas 250L para reúso en lavandeía y cocina, baño húmedo doble de Rotoplas, los desechos se van al biodigestor y luego al registro de lodos y optimización de espacio con puertas plegables de PVC.

AULA COMUNITARIA

Osiris Abarca de la Cruz

Sebastián Verástegui Sánchez

HÁBITAT EFÍMERO | SEMESTRE AGOSTO-DICIEMBRE 2022

PROFESORES:

EDMUNDO JOSÉ REYES GUZMÁN, SYLVIA RAMÍREZ DELGADO

En el municipio de Juárez Nuevo León, en la comunidad San Mateo, se encuentra el prescolar comunitario “Hacienda San Mateo”. Ya sea que se derumbe o se rehabilite el aula existente esta será modificado y mejorada en cuanto a sus espacio existentes y ubicación de puertas y ventanas. La nueva aula comunitaria aprovechará el terreno disponible que existe dentro del lote de propiedad para asentar un módulo completo adjunto a lo actual.

PLANTA ARQUITECTÓNICA

AULA COMUNITARIA

OSIRIS ABARCA DE LA CRUZ | SEBASTIÁN VERÁSTEGUI SÁNCHEZ

SUKHA

Qihuan Juno Liang Zheng

Karla Paola Pérez Torres

HÁBITAT EFÍMERO | SEMESTRE AGOSTO-DICIEMBRE 2022

PROFESORES:

PATRICIA TORRES SÁNCHEZ, ELFIDE MARIELA RIVAS GÓMEZ

El proyecto SUKHA consiste de un espacio efímero diseñado para un aproximado de 96 personas, con el fin de generar un ambiente donde estas personas, que fueron afectadas por el paso de un fenomeno hidrometeorológico, puedan recuperarse de sus perdidas.

PLANTA MODULO1 CORTE MODULO1 PLANTA DE CONJUNTO

SUKHA QIHUAN JUNO LIANG ZHENG | KARLA PAOLA PÉREZ TORRES

PLANTA MODULO 2

CORTE MODULO 2

Se orientó el proyecto de tal manera que aprovecha los elementos naturales para favorecer la ventilación e iluminación. Debido a que es un espacio efímero se decidió el uso de madera como principal material de construcción debido a que es un aislante térmico, renovable, reciclable y tiene un costo no tan elevado.

CASA APENINOS

Fátima Arlethe Aguirre Ponce

VIVIENDA UNIFAMILIAR | SEMESTRE AGOSTO-DICIEMBRE 2022

PROFESORES: MANUEL MARTÍNEZ, DARÍO CAMISAY, JOSÉ BRIAN

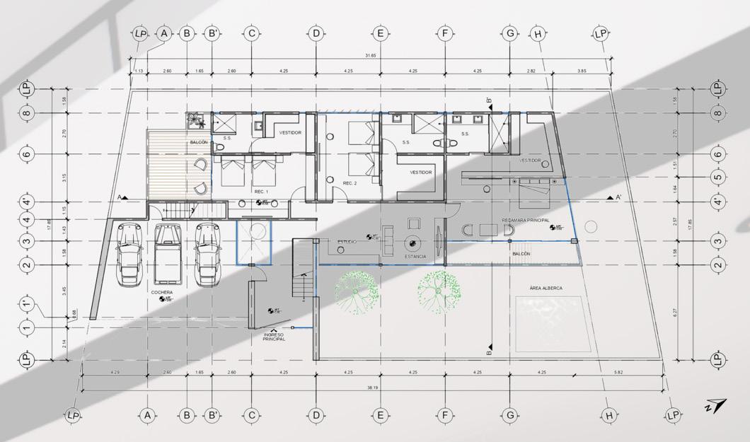
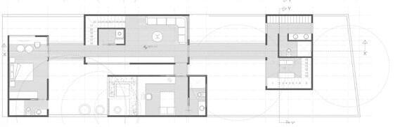
La Casa Apeninos es una residencia unifamiliar en forma de “L”. La idea del proyecto nace del sitio, siendo así, la orientación del proyecto respeta el sol. La casa cuenta con dos plantas y el programa consiste en tres recámaras, sala familiar y lavandería en planta alta, mientras que en planta baja podemos encontrar área social, cuarto de servicio, cocina, sala y comedor.

PLANTA ALTA PLANTA BAJA

CASA APENINOS

FÁTIMA ARLETHE AGUIRRE PONCE

1. ANÁLISIS DEL

3.

4.

2. SE GENERA EL CORAZÓN DEL PROYECTO SE EXPERIMENTA CON VOLÚMENES, ALTURAS Y PLANOS SE GENERA EL PROGRA-

ELEVACIÓN SUR

CORTE LONGITUDINAL

ELEVACIÓN ESTE

CASA BAIX

Isabella Morales Suchini Alejandro Corral Hinojosa

VIVIENDA UNIFAMILIAR | SEMESTRE AGOSTO-DICIEMBRE 2022

PROFESORES: CLAUDIA CARREÑO, DANIELA AMBRIZ, JARENNY TOVAR

Casa Baix es una vivienda que se define no por su altura o monumentalidad sino por su proporción, escala, funcionalidad y privacidad, donde el proyecto no destaque por la altura sino por su esencia, mientras que otros volúmenes aledaños buscan crecer verticalmente, Casa Baix mantiene una línea horizontal que se alinea al nivel de calle dejando la impresión de una casa de baja verticalidad adaptándose a la pendiente del terreno.

PLANTA BAJA PLANTA ALTA

CASA BAIX

ISABELLA MORALES SUCHINI | ALEJANDRO CORRAL HINOJOSA

CASA “DOS”

VIVIENDA UNIFAMILIAR | SEMESTRE AGOSTO-DICIEMBRE 2022

PROFESORES: MARCELO ESPINOZA, BERNARDO GIL

Vivienda unifamiliar en Uro, Monterrey con terreno de 370.12 m². Construcción de 418.38 m² en un límite permitido de 481.15 m². Área verde de 112.41 m² y espacio libre de 58.58 m².

CASA

“DOS” MISHELLE LÓPEZ COMPEÁN

CASA SENDERO

Mónica González

Eduardo Estrada

Valeria Hernández

VIVIENDA UNIFAMILIAR | SEMESTRE AGOSTO-DICIEMBRE 2022

PROFESORES:

JOEL VALENCIA, IRMA HERNÁNDEZ, MARIEL DE ALEJANDRO

Una de las principales intenciones de diseño en la vivienda fue crear una conexión con la naturaleza por medio de espacios amplios que permitan vistas al exterior. Los espacios públicos se encuentran unidos y abiertos, sin olvidar brindar mayor privacidad en los espacios privados. Además de hacer uso de vegetación en zonas específicas.

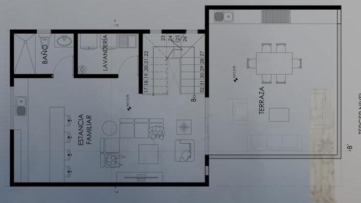
TERCER NIVEL

SEGUNDO NIVEL

PRIMER NIVEL

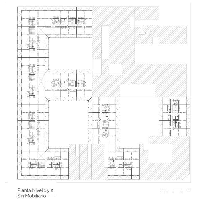
CASA SENDERO MÓNICA GONZÁLEZ | EDUARDO ESTRADA | VALERIA HERNÁNDEZ

CASA FERRO

Maira Sofía Medrano Moya

Hannia Alexa Palagot Rodríguez

Daniela Elizabeth Salomé Martínez

VIVIENDA UNIFAMILIAR | SEMESTRE AGOSTO-DICIEMBRE 2022

PROFESORES:

ROBERTO GARCÍA, JOSÉ GARCÍA TOLEDO, IVETTE CAVAZOS ELIZONDO, JUAN CARLOS LÓPEZ AMADOR

En Casa Ferro los patios y el jardín son distinguidos como los elementos principales que permiten crear un vínculo con el exterior mientras el usuario se desplaza a través de los espacios interiores. Su escencia es generar una conexión con el ambiente natural por medio de vistas desde diversas perspectivas, comenzando con un cuerpo de agua, después un patio y finalizando un jardín posterior.

CORTE LONGITUDINAL

PLANTA BAJA PLANTA ALTA

CASA FERRO

MAIRA SOFÍA MEDRANO MOYA | HANNIA ALEXA PALAGOT RODRÍGUEZ | DANIELA ELIZABETH SALOMÉ MARTÍNEZ

La vivienda cuenta con un área de 262 metros cuadrados aproximadamente,en donde existen espacios sociales como la sala, comedor, patios interiores, el estudio y la cocina, así tambien espacios privados como las recámaras, oficina y cuarto de música.

CASA SUMA

Elena Jacqueline Funes Avila

Jorge Alberto Figueroa Castillo

VIVIENDA UNIFAMILIAR | SEMESTRE AGOSTO-DICIEMBRE 2022

PROFESORES: MILDRED SAUCEDA, CÉSAR DÍAZ, LORENA LOZANO

Ubicado en la calle Lourdes de la ciudad de San Pedro Garza García en Nuevo León, este proyecto residencial busca satisfacer las necesidades y la rutina diaria de una familia conformada por 4 miembros, entrando en contacto con la naturaleza y estableciendo una relación más abierta hacia el contexto.

PLANTA BAJA PLANTA ALTA

CASA SUMA

ELENA JACQUELINE FUNES AVILA | JORGE ALBERTO FIGUEROA CASTILLO

El predio presentaba un desnivel de 4 metros, por lo que adaptar nuestro programa arquitectónico a esta morfología representó uno de los principales retos. Sin embargo, esta característica también le dotó grandes vistas privilegiadas hacia la ciudad, las montañas y el arbolado existente que el proyecto buscó destacar.

CASA ARMADA

José Luis Sánchez Villaseñor

VIVIENDA UNIFAMILIAR | SEMESTRE AGOSTO-DICIEMBRE 2022

PROFESORES: JOSÉ BRIAN BUSTOS CHÁVEZ, DARIO SEBASTIÁN CAMISAY, MANUEL MARTÍNEZ RODRÍGUEZ

Localizada en el corazón de la gran urbe regiomontana, Casa Armada converge la vida moderna con el patrimonio natural e histórico, con vistas hacia Chipinque y El Obispado, y a su vez, privatiza la vivencia del ocupante en sus jardines internos, terrazas cubiertas y espacios amplios que se acoplan al relieve sinuoso del terreno.

La distribución de los espacios se acopla las tradiciones de la familia que la habite, maximizando el flujo natural entre espacios servidos sociales y su conexión con sus servicios. Las áreas privadas son aisladas en la segunda planta de las públicas en la baja, al igual que permitir un acceso privado al estudio para servir como oficina independiente.

PLANTA BAJA PLANTA ALTA

CASA ARMADA JOSÉ LUIS SÁNCHEZ VILLASEÑOR

FACHADA PRINCIPAL

FACHADA LATERAL

CORTE T1

CORTE L1

VILLA NABELA

Mishelle Compeán

Catalina Maass

Paulina Villarreal

Carlos Brown

Fernando Pozas

VIVIENDA COLECTIVA | SEMESTRE AGOSTO-DICIEMBRE 2022

PROFESORES:

ADRIANA DÍAZ , MARCELO ESPINOZA, BERNARDO GIL

Se ubica en la colonia del Uro, en Monterrey, Nuevo León. Le favorecen lugares cercanos como tiendas de conveniencia, super mercados, plazas comerciales y la accesibilidad a distintos servicios básicos.

VILLA NABELA

MISHELLE COMPEÁN | CATALINA MAASS | PAULINA VILLARREAL | CARLOS BROWN |FERNANDO POZAS

El conjunto tiene diferentes amenidades pensadas para los residentes de todas las edades por lo que ser propone una casa club, gimnasio, canchas deportivas, alberca, pet park, área infantil, un andador, asadores, terrazas, área de comercio, entre otros.

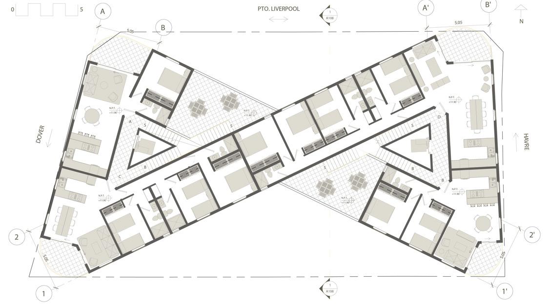
BRICK TOWER PLAZA

Molid Morán Aurelí Pérez

Alexandra Hernández

VIVIENDA COLECTIVA | SEMESTRE AGOSTO-DICIEMBRE 2022

PROFESORES:

CLAUDIA LÓPEZ, RAÚL BADÍA, ERNESTO POLENDO

Es un edificio compuesto de diferentes niveles de departamentos y un nivel comercial, ubicado sobre el Paseo de Santa Lucía considerado una de las 13 maravillas de México creadas por el hombre. El predio tiene colindancias con distintos edificios de salud como el IMSS, viviendas como Torre Luzía y La Capital. A unos metros se encuentra el metro y por supuesto el Paseo de Santa Lucía junto con Parque Fundidora ideal para habitantes de todas las edades. El diseño de Brick Tower se basa en un estilo contemporáneo-industrial.

VIVIENDA TIPO B

VIVIENDA TIPO A

VIVIENDA TIPO C

BRICK TOWER PLAZA

MOLID MORÁN | AURELÍ PÉREZ | ALEXANDRA HERNÁNDEZ

ACACIA

Vannia Salinas Ayala

Ernesto Viveros Alfonzo

Marcela Sáenz Bazán

VIVIENDA COLECTIVA | SEMESTRE AGOSTO-DICIEMBRE 2022

PROFESORES:

IRMA HERNÁNDEZ GONZÁLEZ, JOEL VALENCIA DE LOS RIOS, MARIEL DE ALEJANDRO TREVIÑO

Nuesta propuesta se enfoca en la convivencia familiar dentro de un entorno natual, en donde se encuentra el terreno donde se desarrolla el proyecto. Este proyecto está dirigido a personas que buscan empezar una familia y establecer relaciones saludables en un entorno positivo, especialmente aquellos que están dando sus primeros pasos en la vida. Una de las cualidades de Torres Acacia es la altura obtenida del sitio, beneficiando a los departamentos con vistas panorámicas que enmarcan hacia la sierra madre y el cerro de la silla.

TIPO 1
ESTACIONAMIENTO
PLANTA CONJUNTO TIPO 2

ACACIA

VANNIA SALINAS AYALA | ERNESTO VIVEROS ALFONZO | MARCELA SÁENZ BAZÁN

ISOMETRÍA

CORTE LONGITUDINAL

LABRANZZA

Grecia Flores Moctezuma

Adyeli Sánchez Vargas

Raúl Alonso Jiménez Morales

VIVIENDA COLECTIVA | SEMESTRE AGOSTO-DICIEMBRE 2022

PROFESORES:

CLAUDIA MARÍA CARREÑO CARRANZA, DANIELA AMBRÍZ MACÍAS, JARENNY TOVAR

Labranzza es un desarrollo de usos mixtos integrado a su contexto. Diseñado para enriquecer el estilo de vida de los usuarios bajo el concepto de modernidad y vanguardia.

PLANTA BAJA
AZOTEA

LABRANZZA

GRECIA FLORES MOCTEZUMA | ADYELI SÁNCHEZ VARGAS | RAÚL ALONSO JIMÉNEZ MORALES

2

NIVEL 3 Y 4

NIVEL 4

NIVEL

APENINOS 2745

Janeth Nohemí Juárez Zamarrón

VIVIENDA COLECTIVA | SEMESTRE AGOSTO-DICIEMBRE 2022

PROFESORES:

DARIO SEBASTIÁN CAMISAY, JOSÉ BRIAN BUSTOS CHÁVEZ, MANUEL MARTÍNEZ RODRÍGUEZ

Ubicado en una de las zonas más aglomeradas de Monterrey, este proyecto nace de la idea de ser una extensión vertical del parque que une a la colonia, dándole la importancia debida mientras que le da espacios sociales a los habitantes del lugar, además de socializar con proyectos vecinos a través de la planta baja para así crear espacios compartidos.

PLANTA DE COMERCIO

PLANTA
PLANTA DE AMENIDADES PLANTA BAJA DEPARTAMENTOS
ALTA DEPARTAMENTOS

APENINOS 2745

ROMALDA

Rodrigo Ortiz Ochoa

Maira Sofía Medrano Moya

Hannia Alexa Palagot Rodríguez

Daniela Elizabeth Salomé Martínez

VIVIENDA COLECTIVA | SEMESTRE AGOSTO-DICIEMBRE 2022

PROFESORES:

ROBERTO GARCÍA, IVETTE CAVAZOS ELIZONDO, JUAN CARLOS LÓPEZ AMADOR, JULIETA CARINA JARAMILLO HERNÁNDEZ

El predio de 831.44 metros cuadrados está ubicado entre las calles Avenida Del Estado y Río Pánuco en la ciudad de Monterrey, Nuevo León. Dado que esta ubicado dentro de la zona del Tecnológico de Monterrey, a sus alrededores existen distintos tipos de comercios y zonas de entretenimiento. El edificio cuenta con una planta baja comercial y de usos recreativos junto con jardínes, cinco niveles departamentales que cuentan dos tipologías diferentes por nivel y una azotea exclusiva para los residentes del edificio.

PLANTA BAJA PLANTA TIPO 1 PLANTA TIPO 2 PLANTA AZOTEA

ROMALDA

RODRIGO ORTIZ OCHOA | MAIRA SOFÍA MEDRANO MOYA | HANNIA ALEXA PALAGOT RODRÍGUEZ | DANIELA SALOMÉ MARTÍNEZ

TORRE HEXAGON

Mauricio Galván

Karen Benites

VIVIENDA COLECTIVA | SEMESTRE AGOSTO-DICIEMBRE 2022

PROFESORES: CLAUDIA LÓPEZ, RAÚL BADÍA, ERNESTO POLENDO

El proyecto partió de una idea simple que se fue configurando hasta lograr la Torre Hexagon. Desde un inicio se tuvieron en mente alcances de diseño accesible, inclusivo y estético. Se quiso enfatizar la comodidad de todas las personas que tuvieran alguna interacción con el edificio. Así se planteó un concepto (panal de abeja) que se fue desarrollando para obtener la orientación, forma y diseño del proyecto. Al final se obtuvo una vista en planta de dos prismas hexagonales entrelazados, que evolucionaron a ser dos prismas rectangulares que giran a medida que se sube de nivel.

PLANTA ACCESO PLANTA TIPO 2 PLANTA TIPO 1 PLANTA AZOTEA

TORRE HEXAGON MAURICIO GALVÁN | KAREN BENITES

FACHADA ESTE FACHADA NORTE FACHADA OESTE FACHADA SUR

TORRES MAEVA

Mónica González

Eduardo Estrada

Valeria Hernández

Karla García

VIVIENDA COLECTIVA | SEMESTRE AGOSTO-DICIEMBRE 2022

PROFESORES:

JOEL VALENCIA, IRMA HERNÁNDEZ, MARIEL DE ALEJANDRO

Torres Maeva es un complejo de dos torres de departamentos que se encuentran en el residencial Montellán, ubicado a un costado de carretera nacional, al sur de Monterrey, una zona que en los últimos años se ha desarrollado para convertirse en un punto de interés. El complejo contempla un amplio estacionamiento, en donde además podemos encontrar áreas para los empleados, seguridad, delivery room, áreas de servicios y entradas a las torres; área de amenidades tales como una casa club, área de asadores, juegos infantiles y áreas de descando y por último dos torres de departamentos.

TORRES MAEVA MÓNICA GONZÁLEZ | EDUARDO ESTRADA | VALERIA HERNÁNDEZ | KARLA GARCÍA

NIVEL DE DEPARTAMENTOS

NIVEL DE ESTACIONAMIENTO

TORRE ANDES

VIVIENDA COLECTIVA | SEMESTRE AGOSTO-DICIEMBRE 2022

PROFESORES:

DARÍO CAMISAY, MANUEL MARTÍNEZ, JOSÉ BRIAN BUSTOS

Rebeca Gutiérrez Zambrano

Ubicado en la Colonia Jardín, en la zona Obispado de la ciudad de Monterrey, Nuevo León, el polígono de estudio se identifica como punto de partida para el desarrollo del proyecto. Al caracterizarse como un nodo tanto para la comunidad de la colonia como para la ciudad de Monterrey se busca la apertura con su contexto inmediato; el parque.

1

2

PLANTA
BAJA PLANTA AMENIDADES
PLANTA TIPO PLANTA TIPO

TORRE ANDES REBECA GUTIÉRREZ ZAMBRANO

COLONIA JARDÍN

CORTE AA CORTE BB

APENINOS 2757

VIVIENDA COLECTIVA | SEMESTRE AGOSTO-DICIEMBRE 2022

PROFESORES:

DARÍO CAMISAY, MANUEL MARTÍNEZ, JOSÉ CHÁVEZ

Lia Margarita Miramontes Alarcón

El proyecto de vivienda colectiva desarrollado se encuentra ubicado en la calle Apeninos 2757, El Obispado, Monterrey, Nuevo León. El proyecto cuenta con un área de comercios en la planta de acceso, amenidades y terraza, así como un parque lineal trasero público conectado con el resto de las edificaciones y un parque central de la comunidad como parte del desarrollo de un máster plan del mismo, esto con el fin de promover el aprecio y cuidado por la naturaleza, el acondicionamiento físico y la interacción social de los usuarios.

PLANTA BAJA DE DEPARTAMENTOS TIPO

PLANTA DE ACCESO Y COMERCIOS

PLANTA ALTA DE DEPARTAMENTOS TIPO

PLANTA BAJA DE AMENIDADES

PLANTA ALTA DE DEPARTAMENTOS TIPO

PLANTA ALTA DE AMENIDADES

APENINOS 2757

LIA MARGARITA MIRAMONTES ALARCÓN

CORTE LONGITUDINAL CORTE TRANSVERSAL

FACHADA OESTE FACHADA SUR

TORRE 35

Fernanda Flores Zuazua

Isabella Morales Suchini

Regina González Garza

Sofía Lorena Enciso Monroy

Ángela De La Fuente Guerrero

VIVIENDA COLECTIVA | SEMESTRE AGOSTO-DICIEMBRE 2022

PROFESORES:

RODRIGO MAISTERRENA, MARIELA GONZÁLEZ, JULIETA JARAMILLO

Exclusivo desarrollo de usos mixtos con departamentos y locales comerciales en la colonia Santa María. Siete niveles con treinta departamentos, amenidaes, áreas sociales y un frente comercial. En Torre 35 encuentras en sus apreciables distribuciones el entretenimiento, bienestar y calidad de vida.

NIVEL 7

NIVEL 3

5

2

PLANTA BAJA NIVEL NIVEL

TORRE 35

FERNANDA FLORES ZUAZUA | ISABELLA MORALES SUCHINI | REGINA GONZÁLEZ GARZA | SOFÍA LORENA ENCISO MONROY | ÁNGELA DE LA FUENTE GUERRERO

EDIFICIO ZAN

Elena Jacqueline Funes Avila

Jorge Alberto Figueroa Castillo

VIVIENDA COLECTIVA | SEMESTRE AGOSTO-DICIEMBRE 2022

PROFESORES:

MILDRED SAUCEDA, CÉSAR DÍAZ, LORENA LOZANO

Este proyecto consta de un edificio de usos mixtos conformado por dos locales comerciales y 9 departamentos. Su principal objetivo es ser una construcción abierta y amable con su contexto, de manera que invite a vivir más en densidad para crear ciudades más compactas, densas y diversas. Reflejándose tanto en su forma, colores, tipologías de vivienda y mediante la donación de gran parte de su territorio al espacio público.

EDIFICIO ZAN

ELENA JACQUELINE FUNES AVILA | JORGE ALBERTO FIGUEROA CASTILLO

ALPES 302

José Luis Sánchez Villaseñor

VIVIENDA COLECTIVA | SEMESTRE AGOSTO-DICIEMBRE 2022

PROFESORES:

JOSÉ BRIAN BUSTOS CHÁVEZ, DARIO SEBASTIÁN CAMISAY, MANUEL MARTÍNEZ RODRÍGUEZ

Enmarcando un privilegiosa vista de la Sierra Madre Oriental, los departamentos de Alpes se extienden al exterior con sus muros corredizos de cristal y terrazas aparasoladas que se abren al parque lineal. Simplifica la vida de sus habitantes dividiendo los lofts entre espacios servidos y de servicio, al igual que las zonas privadas de las públicas por plantas.

PLANTA BAJA DE DEPARTAMENTOS

PLANTA ALTA DE DEPARTAMENTOS

PLANTA BAJA DE ACCESO PLANTA BAJA DE AMENIDADES

ALPES 302

JOSÉ LUIS SÁNCHEZ

VILLASEÑOR

FACHADA PRINCIPAL

CORTE T1

FACHADA LATERAL

CORTE L1

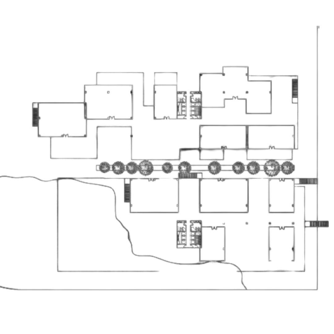
FABRICA DE ALIMENTOS Y VIVIENDAS

PROYECTOS V:CONJUNTO DE USOS MIXTOS| FEBRERO-JUNIO 2023

PROFESORES: RODRIGO FERNANDO LOBEIRA PÉREZ

El proyecto esta ubicado en Saltillo, Coahuila en el ecosistema de montaña. Consiste en el diseño de una fabrica, en este caso se seleccionó una panificadora y se consideró un área de viviendas para los trabajadores de la fábrica, más el área de oficinas administrativas con una capacidad para 200 obreros, el 80% tiene oportunidad a una vivienda, sumando 160 viviendas divididas en 5 torres con 32 viviendas para los trabajadores.

FABRICA DE ALIMENTOS & VIVIENDAS

JENNIFER G. PATRACA MEZA

PROYECTOS V: CONJUNTO DE USOS MIXTOS

PROYECTOS V:CONJUNTO DE USOS MIXTOS| SEMESTRE FEBRERO-JUNIO 2023

PROFESORES: RODRIGO FERNANDO LOBEIRA PÉREZ

La fabrica es una fabrica de cacahuates y de crema de cacahuates, la maquinaria que se utilizo cuanta desde la limpieza del cacahuate hasta el envasamiento.

Con las proporciones de la maquinaria, el espacio de fabricación cuenta con 7 líneas de producción. La fabnrica mantiene su propio acceso interior adentro del predio, este acceso es exclusivo para las necesidades de la fábrica y esta contemplado para la maniorabilidad de transportes de carga. El acceso de las viviendas se encuentra en la calle aledaña al predio. De esta manera ambos accesos son independientes. Las aperturas de las viviendas estan orientadas a espacios abiertos, de esta manera cada apartamento cuenta con vistas amplias a los cerros. El panel sandwich fue contemplado para la construcción de la fábrica, su fácil instalación y sus cualidades aislantes fueron ideales para el sistema de acero armado de la estructura. Panel sandwich para el muro con un acceso más convencional y económico, pudiéndose colocar tanto en posición vertical como horizontal. Las superficies de metal son muy finas, con espesores entre 4 y 7 mm. A pesar de su espesor limitado, son los suficientemente robustas. Panel sandwich para techo. Ideal para grandes coberturas. Son muy resistentes ya que deben soportar cargas, el espesor de su superficie exterior es mayorque la de los paneles sandwich para muro.

PROYECTOS V: CONJUNTO DE USOS MIXTOS

RICARDO DAVID ORDÓÑEZ MEDRANO

Estas vistas no estan bloqueadas por alguna estructura a su alrededor, lo que la provee de gran iluminación, ventilación y calidad visual. Las oficinas estan enfrente del estacionamiento, de fácilo acceso para visitantes y tranajadores. Se aprovecho su apertura hacia el norte para ser iluminada naturalmente y que esa misma iluminación permite al interior de la fábrica.

El aire sirve como conductor térmico mientras que el tubo sirve como intercambiador térmico al mismo tiempo que lleva el aire hasta la construcción.

Se basa en el hecho de que la temperatura subterranea: es diferente de la temperatura supérficial, variación con base en dos funciones, la estacional y la diaria, variación diaria, a menor profundidad, es desfasada en el tiempo respecto a la variación del aire superficial debido a la inercia térmica de la tierra, la temperatura media estacionalo subterránea a partir de los dos metros de profundidad se aproxima a la temperatura de confort (18-26°C) tanto en verano como en invierno, el tubo dberá ser enterrado al menos 1,5m de profundidad.

La abertura enjh la estructura del techo está orientada al norte, esto favorece tanto en la entrada de iluminación neutral como previene de un aumento de temperatura por radiación solar.

JARDINES DE WASHINGTON

Kathia Arrambide

Marcela Cabrera

Paula J. Cortés

ARQUITECTURA PARTICIPATIVA DE MEDIANA COMPLEJIDAD| SEMESTRE FEBRERO-JUNIO 2023

PROFESORES:

HÉCTOR DÍAZ, MARIO GARZA, LUIS VILLARREAL, JUAN LUIS HIGUERA

Ubicado en el centro de la ciudad de Monterrey, sobre la avenida Washington. Jardines de Washington se diseña en torno a la preservación del edificio preexistente de sillar y del árbol ubicado en la parte central del terreno. El hostal consta de 5 niveles, conforme van subiendo los niveles, el volumen del edificio va contrayéndose hacia atrás creando terrazas para uso de huéspedes. Ese escalonamiento tiene como objetivo crear una mejor relación con el edificio preexistente del sillar. Asimismo, se propone un espacio de cafetería en planta baja abierta al público.

JARDINES DE WASHINGTON

KATHIA ARRAMBIDE| MARCELA CABRERA| PAULA J. CORTÉS

GALERÍA H3

Grecia Monserrat Simón Camargo

Mario Gabriel Rinza Román

Vanessa Valentina Arnaud Ibarra

ARQUITECTURA PARTICIPATIVA DE MEDIANA COMPLEJIDAD| SEMESTRE FEBRERO-JUNIO 2023

PROFESORES:

CARLOS A. ESTRADA ZUBÍA, DIANA LAURA RIVERA V. FEDERICO GUERRA GONZÁLEZ, PABLO COTERA ELIZONDO, CARLOS HERRERA FUENTES

Galería H3 es un proyecto de expansión y paisajismo del actual museo del horno 3 en parque fundidora en Mty. Nuevo León. durante el desarollo del proyecto se tuvo la intención de generar una propuesta que fuera respetuosa con la jerarquía del horno, y permitiera la reactivación e integración del área noreste y patio de maniobras del actual museo

GRECIA MONSERRAT SIMÓN CAMARGO| MARIO GABRIEL RINZA NROMÁN| VANESSA VALENTINA ARNAUD IBARRA

Respetar la jerarquia vertical del contexto inmediato fue un reto a lo largo del diseño del proyecto, pero se realizaron distintas estrategias que permiten convertir a nuestro sótano en un espacio ameno y lleno de luz y vida con la ayuda de haha walls, domos y gradas que permiten la entrada directa de luz natural, así como un flujo contante y versátil de usuarios debido a la forma y concepción del proyecto

GALERÍA H3

LAZO

Adrián González

Antonio Balboa

Christian Olivas

Mónica Ponce

Valerie Garcia

Mariana Cantu

ARQUITECTURA PARTICIPATIVA DE MEDIANA COMPLEJIDAD| SEMESTRE FEBRERO-JUNIO 2023

PROFESORES:

LORENA G. ZAZUETA VALENZUELA, RODRIGO MAISTERRENA LLAGUNO, BENJAMIN AMARO, FRANCISCO C. MATIENZO CRUZ, ANA MARIA DE LA CRUZ MALDONADO

Es un centro de fabricación y diseño que fomenta la innovación a través del trabajo interdisciplinario entre ingeniería y diseño. Es una obra proyectada de concreto, acero y un sistema prefabricado de losas alveolares, con una envolvente de paneles de policarbonato translúcido. El proyecto busca generar una conexión con el medio ambiente y la comunidad interna y externa del Tecnológico de Monterrey (Distrito Tec). Dentro de los espacios existe un vínculo visual vertical a través de muros cortina y terrazas que permiten a los usuarios inspirarse, aprender y exponer su trabajo de forma libre.

LAZO

ADRIÁN GONZÁLEZ| ANTONIO BALBOA| CHRISTIAN OLIVAS| MARIANA CANTÚ| MÓNICA PONCE| VALERIE GARCÍA

GALERÍA H3

Ana Laura García

Jorge Correa

María José Treviño

ARQUITECTURA PARTICIPATIVA DE MEDIANA COMPLEJIDAD| SEMESTRE FEBRERO-JUNIO 2023

PROFESORES:

PABLO COTERA, CARLOS ESTRADA, DIANA LAURA RIVERA, CARLOS HERRERA, FEDERICO GUERRA

Galería H3 es un proyecto de incorporación al Museo del Acero Horno 3 ubicado en Parque Fundidora en la ciudad de Monterrey, Nuevo León. Aludiendo al carácter industrial histórico del sitio, este incorpora en su materialidad el acero y el concreto, emplazando así 2 volúmenes de distintos tamaños que invitan al público visitante a disfrutar de un recorrido por la galería de historia, ciencia y tecnología. Al exterior, se forja una fuerte conexión con el Parque respetando ejes peatonales pre existentese incorporando áreas verdes públicas de descanso y convivencia a las que todos tienen acceso.

GALERÍA H3

85 BLOQUE DE VIVENDAS

Carolina Pérez Aróstegui

Paola Nava Villa

Ernesto Vázquez Garza

ARQUITECTURA PARTICIPATIVA DE MEDIANA COMPLEJIDAD| SEMESTRE FEBRERO-JUNIO 2023

PROFESORES:

ARQ. JUAN CARLOS LÓPEZ AMADOR, ARQ. ROBERTO GARCÍA ROSALES, ARQ. FRANCISCO M. BAUTISTA, ARQ. CRISTINA ANCER

El proyecto forma parte del diseño de una supermanzana ubicada en el Centro de Monterrey, México. El diseño del proyecto de vivienda colectiva parte de buscar reactivar la habitabilidad en comunidad, permitiendo la coexistencia entre los habitantes de la zona de distintos grupos de edad tales como niños, adolescentes, jóvenes, adultos y ancianos. Para lo cual, se decidió ofrecer distintas tipologías de diseño modular de los espacios para brindar mayor flexibilidad, versatilidad y accesibilidad para las múltiples necesidades de usos que requieren a todos los habitantes adaptandose a los diversos esltilos de vida.

El bloque tipo de viviendas se compone de 4 distintas tipologías que comparten un solo acceso vertical. Todas las distintas tipologías de vivienda mantienen la misma cualidad de habitabilidad en términos del tamaño de los espacios, iluminación y ventilación natural. Las puertas corredoras que separan las recámaras y los balcones en las dobles fachadas permiten aumentar el espacio de cada recámara a la comodidad y necesidad de cada persona, generando una mayor flexibilidad. Varios escenarios se muestran posibles en las habitaciones tales como: espacios de descanso, socialización, trabajo, recreación y educación.

El uso comercial y público de la planta baja mantiene la planta activa por las mismas personas de la comunidad, lo que proporciona una mayor seguridad.

PÉREZ ARÓSTEGUL| PAOLA NAVA VILLA| ERNESTO VÁZQUEZ 85 BLOQUE DE VIVIENDAS
CAROLINA

ESTACIÓN BARLOVENTO

Diego Vázquez Anaya

Diego Espino García

ARQUITECTURA AVANZADA| SEMESTRE FEBRERO-JUNIO 2023

PROFESORES:

MARCELO ESPINOSA, JUAN TALAMAS

Estación Barlovento surge del planteamiento del gobierno del estado de Nuevo León por diseñar las nuevas líneas del metro de la ciudad de Monterrey debido a los graves problemas de movilidad a los que se enfrenta dicha ciudad. Dado esto, se nos asignó como estudiantes de Arquitectura Avanzada plantear el diseño holístico de la nueva estación “Torre Administrativa”, ubicada a un lado del Parque Fundidora. Esta estación debía contemplar el uso de la tecnología y la sustentabilidad en el proceso de diseño y en la vida útil de dicha estación. No obstante, el reto de este proyecto fue diseñar una estación con un sentido conceptual lógico para plasmar la forma del proyecto, y sobre ello diseñar plantas arquitectónicas funcionales para una estación elevada a más de 15 metros de altura sobre el nivel de la calle.

2do.

El proyecto consta de 3 niveles, en la planta base se encuentran los principales accesos del proyecto, cuenta con 6 escaleras mecánicas, 4 elevadores, y 2 escaleras fijas para la circulación vertical de la estación. Como parte de servicios al usuario también cuenta con baños, módulos de atención y seguridad, y 2 pequeños locales listos para almacenar un café o tienda de alimentos. En el segundo nivel se encuentran los torniquetes y filtro de seguridad para pasar posteriormente al andén, así como también cuenta con sus 2 galerías o espacios de arte para distintas exposiciones, dándole su toque artístico y cultural a la estación. Por último en la planta alta, o anden, se encuentran

ANDÉN

ESTACIÓN BARLOVENTO

DIEGO VÁZQUEZ ANAYA | DIEGO ESPINO

El concepto lógico del proyecto parte de cuestionarnos cómo se podría ver afectado un cuerpo de agua ubicado en el sitio del proyecto por diferentes fuerzas de viento que soplan en distintas direcciones. Para ello, se decidió utilizar Rhino 3D y Grasshopper como simuladores de los efectos del viento sobre el cuerpo. Con esto, se programó un código en el que planteamos la dirección y velocidad del viento utilizando los datos promedio de las cuatro estaciones del año 2022 (invierno, primavera, verano y otoño).

Esto nos entregó cuatro resultados diferentes, los cuales unimos posteriormente en un solo volumen considerando el orden de las estaciones del año. Con esto, simpl ficamos el volumen obteniendo su perfil para que de esta manera pudiéramos representar el resultado del factor viento sobre nuestro cuerpo del sitio. Una vez teniendo el perfil, se replicó por cinco veces para utilizarlos como anillos estructurales, los cuales se rotaron y escalaron para buscar adaptar la forma al sitio, al contexto y al uso funcional de la estación.

GRAVITAS

Ángel Antonio Marín Villaseca

Astrid Badhía Huidobro

Carolina González Aranda

Elena Cerón Cisneros

Erick Alejandro Hernández Estrada

EMPRENDER CIUDAD| SEMESTRE FEBRERO-JUNIO 2023

PROFESORES:

TALÍA GONZÁLEZ CACHO, CACILIA ELIZABETH BAUTISTA HERNÁNDEZ, FRANCISCO JAVIER DE LA FUENTE FLORES, MIGUEL ALEJANDRO FLORES SEGOVIA, ÁNGEL ALFREDO PEREZA PÉREZ, JUAN JOSÉ RICO URBIOLA, MIGUEL ANGEL RODRÍGUEZ MONTES, JORGE GERARDO SALINAS DOMENE, CARLOS ISRAEL VALADEZ TAMEZ

Gravitas ha sido concebido como el nuevo polo de atracción y retención de talento para el nuevo Distrito de Innovación. El proyecto busca brindar las facilidades de hospedaje y trabajo desde corto hasta largo plazo para investigadores y emprendedores que no radiquen en Monterrey, esto con la finalidad de generar dinamismo y atracción en el Distrito.

GRAVITAS

ANGEL ANTONIO MARÍN VILLASECA| ASTRID BADHIA HUIDOBRO| CAROLINA GONZALES ARANDA| ELENA CERÓN CISNEROS| ERICK ALEJANDRO HERNÁNDEZ ESTRADA

El programa se diseño con base en las necesidades de nuestros potenciales usuarios y las actividades que vendrán a realizar al Distrito de Inno-

VIRTE

K. Nicole de la Torre Lugo

Isabel Amarante Portilla

Fernanda E, Campos

Alan Rembao García

EMPRENDER CIUDAD| SEMESTRE FEBRERO-JUNIO 2023

PROFESORES:

ALÍA GONZÁLEZ CACHO, CACILIA ELIZABETH BAUTISTA HERNÁNDEZ, FRANCISCO JAVIER DE LA FUENTE FLORES, MIGUEL ALEJANDRO FLORES SEGOVIA, ÁNGEL

ALFREDO PEREZA PÉREZ, JUAN JOSÉ RICO URBIOLA, MIGUEL ANGEL RODRÍGUEZ MONTES, JORGE GERARDO SALINAS DOMENE, CARLOS ISRAEL VALADEZ TAMEZ

El objetivo de este proyecto es el diseño de un inmueble que promueva la innovación e invite a distintos emprendedores, empresarios, investigadores, inversionistas, etc. a traer consigo su talento y crear conexiones entre dichos usuarios al Distrito Tec. Con nuestro proyecto tenemos el objetivo de desarollar un modelo de negocio que sea capaz de generar un impacto en el futuro, ayudando a crear no solo nuevas experiencias, tambien espacios que motiven a conectar, participar, innovar y emprender utilizando nuevas tecnologías.

K. NICOLE DE LA TORRE LUGO|ISABEL AMARANTE PORTILLA

FERNANDA E. CAMPOS|ALAN REMBAO GARCÍA

VIRTE

GALERÍAS SALTILLO GRUPO CERTUS

Cassandra Rodríguez

Daniela Rodarte Salazar

Fidel Alejandro Villarreal

Helena López

Luis Ángel Martínez Reyes

Rodrigo Crespo Rivero

Victoria Zúñiga Martínez

MODELADO Y GESTIÓN DE INFORMACIÓN DE LA CONSTRUCCIÓN | SEMESTRE FEBRERO-JUNIO

PROFESORES:

ADRIANA DIAZ MARCHETTI, RAQUEL VERONICA GUTIERREZ, DIEGO RODRIGUEZ RENOVALES, JOSE LUIS DEL CASTILLO CASTILLO

La llegada de nuevas tecnologías a la industria de la construcción ha aumentado el interés del sector por adoptar estas metodologías en sus proyectos para MODELO ARQUITECTÓNICO mantenerse a la vanguardia y cumplir con estándares de ejecución. BIM implica la creación y gestión de modelos digitales de proyectos de construcción para respaldar los procesos de toma de decisiones a lo largo del ciclo de vida del proyecto, desde el diseño hasta la construcción y el mantenimiento. BIM permite que los arquitectos, ingenieros, constructores y otras partes interesadas colaboren de manera más efectiva al compartir y analizar la información del proyecto en tiempo real, lo que lleva a una mejor comunicación, mayor precisión y costos reducidos. Es por ello que este proyecto responde a la solicitud de nuestro socioformador, Liverpool, para la creación de un modelo BIM de Galerías Saltillo, un centro comercial ubicado en Saltillo, Coahuila. Con la mentoría de BIM MX desarrollamos vistas interiores, recorridos virtuales, presupuestos, un análisis de interferencias en instalaciones MEP y el modelado de familias para la ambientación de áreas comerciales.

GALERÍAS SALTILLO: GRUPO CERTUS

CASSANDRA RODRÍGUEZ| DANIELA RODARTE SALAZAR|

ALEJANDRO VILLAREAL|

LÓPEZ|LUIS

MARTÍNEZ REYES|RODRIGO CRESPO RIVERO| VICTORIA ZÚÑIGA MARTÍNEZ

El diseño y la ingeniería del marco del edificio incluye las columnas, vigas y otros elemento que soportan el peso de la estructura y distribuyen las cargas a los cimientos. El modelo estructural del centro comercial se creó utilizando planos base de AutoCAD, los cuales interpretamos y modelamos en Revit, permitiendo a los ingenieros simular el comportamiento de diferentes materiales y configuraciones bajo diversas condiciones, como el viento y las fuerzas sísmicas.

La integración de las ingenierías en la estructura y arquitectura permite la previa detección de interferencias en el modelo, dando lugar a la planeación estratégica para corrección de errores, generando ahorros en costos y tiempos de construcción. Por medio de Navisworks detectamos interferencias dentro del modelo, para las cuales propusimos alternativas que solucionaran el problema.

Utilizamos Neodata para el cálculo de construcción de la sección B de Galerías Saltillo, el programa nos facilitó acceder en tiempo real a los datos y análisis del proyecto, y tomar decisiones informadas para optimizar los flujos de trabajo y mejorar los resultados del proyecto.

GALERÍAS SALTILLO

HEPTA DESIGN

Benjamín Nieto

Karen Garza

Luis Cortés

Carlos Gutiérrez

Valeria Mantilla

Andrés Baca

Alejo Seáñez

MODELADO Y GESTIÓN DE INFORMACIÓN DE LA CONSTRUCCIÓN

2023

PROFESORES:

ADRIANA DIAZ MARCHETTI, RAQUEL VERONICA GUTIERREZ, DIEGO RODRIGUEZ RENOVALES, JOSE LUIS DEL CASTILLO CASTILLO

El objetivo del proyecto consistió en el modelado de la tienda “Liverpool Galerías Saltillo” mediante la metodología BIM (Building Information Modeling).

El almacén se encuentra ubicado en Blvd. Nazario Ortiz Garza No. 2345 Col Tanque de Peña. CP. 25279 Saltillo Coahuila. Cuenta con un total de 7.909.2 metros cuadrados, repartidos en 3 niveles. La metodología de modelado basado en información permite obtener datos precisos al diseñar las instalaciones de suministro y extracción de aire, el número de inyectores, el modelo de manejadora y las toneladas necesarias para enfriar áreas específicas. Permite una planificación más eficiente sistemas de aire acondicionado. Optimización de circuitos y el cálculo automático de grosores de cables, la metodología BIM también ofrece la posibilidad de modelar la ubicación y especificaciones de paneles eléctricos, transformadores y dispositivos de protección, así como la disposición y ubicación de puntos de luz e interruptores en el proyecto. Es posible modelar trayectorias de los sistemas de suministro y drenaje hidráulico y pluvial, se modela su ubicación y especificaciones de las tuberías, válvulas, bombas, tanques de almacenamiento y otros componentes. Se pueden realizar simulaciones hidráulicas para analizar comportamiento del sistema.

GALERÍAS SALTILLO: GRUPO CERTUS

BENJAMÍN NIETO| KAREN GARZA| LUIS CORTÉS, CARLOS GUTIERREZ|

Se pueden modelar los diferentes tipos de elementos estructurales como vigas, columnas y losas, así como los detalles constructivos como las uniones y anclajes. Además, fue posible pueden calcular las cantidades de materiales, lo que permiteuna mejor planificación en costos y recursos en construcción.

Con la creación de una biblioteca de elementos de mobiliario parametrizados reutilizables, se logró ahorrar tiempos y recursos valiosos en futuros proyectos. Además se obtuvo mayor eficiencia en el modelado y una flexibilidad mucho mayor en la ediciónj y modificación de los elementos.

Podemos evaluar ala relación del proyectocon los predios aledaños, las vialidades y las regulaciones urbanas para asegurar su viabilidad. Se pueden tener en cuenta las características específicas del entorno, como la topografía, la vegetación y los servicios públicos, así se pudo obtener información más precisa.

La creación de schedules permite la cuantificación de elementos y su exportación a pregramas como Neodata o Excel BIM permite el modelado de objetos inteligentes con información de costos, como materiales, mano de obra y equipos, lo que facilita la generación de presupuestos y estimaciones de costos más precisas y detalladas.

EL ARREGLO DEL MOBILIARIO Y SU EFECTO EN LAS HABILIDADES

COGNITIVAS DE LOS ESTUDIANTES UNIVERSITARIOS

Mariana Pérez Chantes

ESTANCIA DE INVESTIGACIÓN NEUROARQUITECTURA| SEMESTRE FEBRE-

PROFESORES:

JUAN LUIS HIGUERA TRUJILLO

La arquitectura busca mejorar el desarollo de las actividades mediante el diseño (Zifferblatt, 1972). Se han estudiado variables de diseño que se relacionan con el diseño del espacio impactan al rendimiento de la atención y memoria de los estudiantes, color (read, 1987), iluminación (Gilavand,206, Linares et ai., 2021), ventilación (Olson & Kellum, 2003), y temperatura (Org % Earthman, 2002). Adicionalmente, existe otra variable relacionada con el orden: arreglo mobiliario, del cual se sabe poco sobre su efecto en las habilidades cognitivas de los estudiantes. El objetivo es determinar el efecto es determinar el efecto de la oprganización del mobiliario de las aulas en el rendimiento de la atención y memoria de los estudiantes universitarios.

Se realizó un trabajo de campo de laboratorio a una muestra de 24 estudiantes (11 hombres; 12 mujeres; y uno identificado con otro género). Las pruebas fueron realizadas siguiendo un mismo ptrotocolo y en el mismo laboratorio Consistió en 4 fases: (1) recepción, (2) introducción, (3) aplicación detareas y (4) cierre.

Se ejecutaron dos pruebas psicológicas para evaluar rendimiento en las capacidades cognitivas que cuantifican la atención y memoria. En cuanto a la atención se basó en la prueba de rendimiento auditivo continuo (Seidman et al., 1998), consistió en la reproducción aleatoria de 8 sonidos objetivo y 32 distractores, se cuantificó mediante el tiempo de reacción de cada participante. La tarea de memoria, consistió en la reproducción de una lista de 10 palabras que posteriormente era repetida por el participante, la prueba fue similar a los experimentos del paradigma de Deese, Roediger y McDermott (DRM)(Beato et al.,2001).

EL ARREGLO DEL MOBILIARIO Y SU EFECTO EN LAS HABILIDADES COGNITIVAS DE LOS

ESTUDIANTES UNIVERSITARIOS

Se realizaron cuatro escenarios. Su diseño se basó en un aula universitaria tomando en cuenta su mobiliario, illuminación y materiales. Cada escenario tenía similitud en capacidad de estudiantes y tamaño, es decir 40 estudiantes y tamaño, es decir 40 estudiantes en 12x8.5 metros cuadrados. Se modelaron en Autodesk 3ds Max (v2023) y el renderizado en V-Ray Hotfix (v6.0). Fueron visualizados a través de los lentes de realidad virtual HTC Vive Pro Series.

Se obtuvieron mejores puntajes en el arreglo “individual”, seguido del arreglo 2linea”, “en V” y “en grupos” sucesivamente. La figura 1 muestra los datos expresados en medias. Los estudiantes tuvieron más aciertos en el arreglo “en linea”, seguido por el orden “en grupos”, en tercera posición “en V”, y la “individual” en último lugar. En la figura 2 se muestran los valores de rangos medios obtenidos.

El acomodo del mobiliario tiene una influencia en la atención de los estudiantes universitarios. En concreto, los resultados obtenidos indican que los estudiantes adquieren mejores puntuaciones de atención en el arreglo “en linea” y más errores en el arreglo “individual”. El conocimiento del efecto esta variable puede ser de utilidad para arquitectos y diseñadoresque busquen potenciar el rendimientop académico de los estudiantes en etapa universitaria.

Diego Laija Arellanes

ESTANCIA DE INVESTIGACIÓN NEUROARQUITECTURA|-JUNIO 2023

PROFESORES:

JUAN LUIS HIGUERA TRUJILLO, JAVIER MARÍN MORALES

UN
EN CONTRA DE LA ARQUITECTURA GENERADA POR INTELIGENCIA ARTIFICIAL Y SU IMPLICACIÓN EN EL APRENDIZAJE
SESGO

La inteligencia artificial se ha desarrollado vertiginosa durante los últimos años y su presencia es cada vez más notoria en la vida humana. Su desempeño en actividades cuya ejecución se creía exclusiva para el ser humano sorprende cada vez más. Una de estas actividades es la arquitectura. Aunque actualmente la intromisión de la inteligencia artificial no supone un riesgo para los profesionales de la arquitectura, existen ciertos reparos a su incorporación como herramienta de diseño por parte de los estudiantes. ¿Existe, como ante obras pictóricas, un sesgo en contra de las obras generadas por computadora? Específicamente, este es el objetivo del presente estudio: la identificación de la presencia de un sesgo cognitivo en contra de las obras arquitectónicas generadas por inteligencia artificial y la identificación de si éste se modula con base a la expertise. Para abordarlo, se aplicó una encuesta online que consistía en la valoración de una serie de conceptos mediante los cuales se valoraron fotografías de obras arquitectónicas producidas por inteligencia artificial y por humano, etiquetadas como producidas por inteligencia artificial o por humano. La encuesta fue respondida por estudiantes de la primera y la última parte de la carrera de arquitectura. Los resultados sugieren que existe un sesgo generalizado en contra de las obras arquitectónicas generadas por inteligencia artificial, pues aquellos estímulos etiquetados como producidos por una inteligencia artificial recibieron una peor valoración que sus contrapartes etiquetadas como producidas por un humano. Las valoraciones también difirieron de acuerdo al expertise. En conjunto, los resultados sugieren que el sesgo que se ha encontrado ante obras pictóricas generados por inteligencia artificial también está presente en la arquitectura; y apoyan la línea de que su presencia se modifica con el expertise. Los resultados pueden ser de interés para docentes y profesionales del ámbito de la arquitectura, y contribuirán a la apertura de nuevos caminos en la enseñanza y la aplicación del uso de la inteligencia artificial en la arquitectura.

UN SESGO EN CONTRA DE LA ARQUITECTURA GENERADA POR INTELIGENCIAARTIFICIAL Y SU IMPLICACIÓN EN EL APRENDIZAJE.

Identificar la injerencia de un sesgo en contra de las obras arquitectónicas generadas por inteligencia artificial y su posible modulación según el grado de expertise del sujeto. Para esto se recogieron valoraciones psicométricas de obras arquitectónicas generadas por IA y humanos, cuya autoría se indicaba aleatoriamente (a veces con verdad, ya veces con falsedad) como tales. Para abordar el objetivo de esta investigación se llevó a cabo una encuesta en línea de amplia muestra. La encuesta constaba de una serie de preguntas a tr vés de las cuales se valoraban estímulos fotográficos de obras arquitectónicas de dos estilos contemporáneos diferentes, etiquetados tanto como producidas por humanos o por inteligencia artificial. Fue respondido por participantes de diferentes perfiles para comprobar su efecto. El análisis se dividió en dos fases: (1) análisis de las valoraciones ofrecidas a las obras etiquetadas como producidas por un autor humano y a las obras etiquetadas como producidas por inteligencia artificial; y el (2) análisis de las valoraciones en función del perfil del participante. El presente estudio prueba la existencia de un sesgo en contra de las obras arquitectónicas generadas por AI y su modulación con base al expertise. La presencia del sesgo fue notable en los estudiantes del segundo ciclo. Al sesgo lo delatan las valoraciones dadas a las obras etiquetadas como generadas por AI (significativamente negativas cuando se comparan con las dadas a aquellas etiquetadas como generadas por un ser humano). Tampoco existe una diferencia significativa en el juicio de las imágenes verdaderas: el participante no le da importancia a las imágenes en sí, sino que parece emitir su juicio

ESPACIO DE CONEXIÓN FLESA

Carolina Ávila Cardona Bárbara Vega Salazar

PROYECTOS INTEGRADORES I| SEMESTRE FEBRERO-JUNIO 2023

PROFESORES:

DIANA LAURA RODRÍGUEZ, DIEGO ALBERTO RODRÍGUEZ

Transformar un edificiopermite a la arquitectura celebrar lo que una vez fue, la historia y cultura de un lugar y su carácter arquitectónico. La rehabilitación de la fabrica textil FLESA crea una combinación de espacios públicos y edificios en los que se llevan a cabo actividades tanto para turistas como para turistas como para la población local de Parras de la Fuente, Coahuila.

Nuestra intención es crear un sentido de comunidad, conectar el proyecto con el entorno a través de la a pertura de espacios públicos que inviten a los visitantes a entrar. Queremos agregar valor a este hito de la ciudad para celebrar la memoria del programa original.

EL MOLINO WELLNESS CENTER

PROYECTOS INTEGRADORES I| SEMESTRE FEBRERO-JUNIO 2023

PROFESORES:

DIEGO RODRIGUEZ, DIANA RIVERA

María Alejandra Nava Camila Arredondo

The year the mill was constructed is unknown. The site started as a flour mill where corn was most likely grown on the land. It was abandoned around the year 1850 as new techniques became more popular. The site was later used for livestock and their feeding. Nogal trees were planted to create an economic income. The site today belongs to the family Rivero Gónzalez, owners of FLESA and RGMX Winery.

The idea is to preserve all of the existing spaces to mantain the historical essence of the place but assigning them a new use to bring them back to life. Add new volumes to the molino to contrast the old with the new and create dialogue. Transform the land with a water mirror and landscape design with regional vegetation.

MARIA ALEJANDRA NAVA| CAMILA ARREDONDO
EL MOLINO WELLNESS CENTER

CONJUNTO MITRAS

PROYECTOS INTEGRADORES 2 | SEMESTRE AGOSTO-DICIEMBRE 2022

PROFESORES:

LILIANA TOSCANO GARZA

Conjunto de edificios de usos mixtos y de vivienda familiar basado en 5 principios: versatilidad, caminabilidad, antropocentrismo, permeabilidad y sustentabilidad. Se busca tener un espacio con diferentes usos en el cual los usuarios puedan caminar cómodamente por sus grandes espacios libres y su amena escala, fomentando conectividad de la comunidad; asimismo teniendo un enforque sustentable.

El proyecto se basa en un diseño modular, en donde los módulos de departamentos se sobreponen uno encima de otro, teniendo la posibilidad de crear diversas configuraciones para cada edificio. Este diseño permite una construcción más eficaz y sustentable al minimizar desperdicios y siendo fácil de armar y desarmar.

PLANTA EDIFICIO DE VIVIENDA

PLANTA EDIFICIO DE USOS MIXTOS

CONJUNTO MITRAS

MARIANA MIJARES MADERO

COMERCIO = 50 m²

DEPARTAMENTO

TIPO A = 50 m²

DEPARTAMENTO

TIPO B = 75 m²

DEPARTAMENTO

TIPO C = 100 m²

H HOUSING

PROYECTOS INTEGRADORES 2 | SEMESTRE AGOSTO-DICIEMBRE 2022

PROFESORES:

LILIANA TOSCANO GARZA

H housing permite un estilo de vida compartido y saludable en donde los usuarios podrán disfrutar de sus amenidades abiertas y accesibilidad incluyente. Se busca crear un ambiente de comunidad con los vecinos del complejo y entre ellos. El uso mixto permitirá disminuir el uso del vehículo para obtener las necesidades básicas.

H HOUSING

ANA LUCÍA MARTÍNEZ RODRÍGUEZ

MITRAS PONIENTE

PROYECTOS INTEGRADORES 2 | SEMESTRE AGOSTO-DICIEMBRE 2022

PROFESORES:

LILIANA TOSCANO GARZA

Mauricio Hernández de la Cueva

Mitras Poniente, un desarrollo en García, Nuevo León, se compone de un Masterplan que involucra cuatro lotes del área norponiente de la Zona Metropolitana de Monterrey. Como trabajo individual se desarrolló el polígono más grande, con forma irregular triangular. La solución es un desarrollo de cinco edificios de vivienda vertical con planta baja activa comercial, donde existen tres tipologías de vivienda.

PLANTA BAJA CON COMERCIO PLANTA TIPO DE VIVIENDA

MITRAS PONIENTE MAURICIO HERNÁNDEZ DE LA CUEVA

PASEO OLENKA

Gabriela Torres

Ivanna Villarreal

Valeria Pérez

PROYECTOS INTEGRADORES 2 | SEMESTRE AGOSTO-DICIEMBRE 2022

PROFESORES: RIGOBERTO ALMAGUER

El proyecto se encuentra frente al parque “Rufino Tamayo”, en un principio el parque llevó el nombre de Olga Tamayo, esposa de Rufino. Con el tiempo se le fue conociendo como “Parque Rufino Tamayo”; es por esto que surge el nombre del proyecto “Paseo Olenka”, ya que significa Olga.

PLANTA TIPO A PLANTA TIPO B PLANTA TIPO C PLANTA TIPO D

PASEO

OLENKA

GABRIELA TORRES | IVANNA VILLARREAL | VALERIA PÉREZ

MERAKI TOWERS

Alejandra Hanun Garza

Andrea García López

Adolfo Narváez Carmona

PROYECTOS INTEGRADORES 2 | SEMESTRE AGOSTO-DICIEMBRE 2022

PROFESORES: RIGOBERTO ALMAGUER

Meraki Towers es un proyecto ubicado en la zona Valle Oriente de San Pedro Garza García, México; como una extensión del Parque Rufino Tamayo. Trata de dos volúmenes que parten de una retícula donde se levanta su estructura y se basa el comportamiento de su forma. También se realizó un estudio del paisaje, clima y contexto, donde la volumetría fue evolucionando al considerar estos puntos.

Meraki Towers contiene departamentos, oficinas, hotel, galerias de arte y locales comerciales. Los edificios cuentan con una serie de respiros o terrazas para crear divisiones en el programa. El tener dos torres permite generar espacios públicos y privados en diferentes niveles, aprovechando las vistas panorámicas de la ciudad y siempre pensando en la comodidad de los usuarios.

HOTELES

DEPARTAMENTOS

COMERCIO OFICINAS

MERAKI TOWERS

ALEJANDRA HANUN GARZA | ANDREA GARCÍA LÓPEZ | ADOLFO NARVÁEZ CARMONA

PROYECTA NOVIEMBRE 2023

28 Proyectos participantes realizados por 82 estudiantes durante el semestre Febrero-junio 2023.

Categorías:

Hábitat efímero

Equipamiento comunitario

Vivienda unifamiliar

Vivienda colectiva

Arquitectura participativa

Diseño regenerativo

Arquitectura avanzada

Ciudades competitivas

Ciudades emergentes

Proyectos integradores 2

Diseño de interiores

Proyecto fin de carrera

La realización Proyecta Noviembre 2023 estuvo a cargo de la Sociedad de Alumnos de Arquitectura 2023, compuesta por:

Luis Manuel Mares Guevara

Marco Rucks Henríquez

Vannia Salinas Ayala

Eugenio Quijano Wolberg

Katya Salomón Molina

Mishelle López Compeán

Andrea Rodríguez López

Participaron en el jurado los arquitectos Celia Arredondo, Julieta Cantú, José Villalobos, Roberto Chapa, Fernando López y César Rodarte, por parte de la Academia Nacional de Arquitectura Capítulo Monterrey.

Patrocinadores oficiales de Proyecta Noviembre 2023

Hexágonos Mexicanos

Bimétrica.MX

Vector Laser

Compre Soluciones en prefabricados

El Gato bodega de flores

Clycsa Construcción

Mensaje inaugural Proyecta Noviembre 2023

Mi experiencia de los últimos años como profesor de historia de la arquitectura me ha dado la oportunidad de reflexionar acerca de la arquitectura que se ha construido a lo largo del tiempo y a lo ancho del mundo. Gracias a este estudio he podido ver como, salvo algunas constantes que permanecen, la historia está hecha de los cambios y las evoluciones. Materiales, usos, costumbres, gustos, cambian y con ellos evidentemente modifican las construcciones que la gente realiza; y de ahí la importancia de su documentación. Los libros de historia en general atestiguan estos cambios y los documentan. Gracias a ellos hoy podamos saber cómo fue la arquitectura construida antes de la nuestra; cuales fueron las circunstancias que las produjeron, las problemáticas que buscaron resolver, los ideales que los motivaron y finalmente las formas que construyeron.

Todo ello no habría sido posible evidentemente sin la ayuda de todas aquellas personas que se tomaron el tiempo para estudiar y documentar las construcciones de su momento. La aportación de creadores y documentadores resulta por tanto de suma importancia para nosotros que nos estamos formando en la profesión. De ahí la relevancia de un momento como este. Proyecta significa para nosotros esa página de nuestra propia historia. Una historia hecha de los esfuerzos y las propuestas que salen de nuestros talleres y Aulas. Construida por profesores y estudiantes que han dado lo mejor de ellos mismos para poder llegar finalmente aquí y formar parte de nuestra historia. Felicito a todos los participantes y agradezco a nombre de la escuela de manera personal a los organizadores: Luis Mares, Michelle Compeán, Vannia Salinas, Marco Rucks, Eugenio Quijano, Andrea Rodríguez, Katia Salomón, Eryn King, Frida Monroy.

PROYECTA TRAYECTORIA

AGOSTO- DICIEMBRE 2023

Reconocimiento a los estudiantes candidatos a graduarse con participaciones continuas en PROYECTA a lo largo de sus estudios.!Enhorabuena arquitectos!

Ana Karen Ruelas Moreno

Ángela Luna Torres

Arturo Nogueira Ávalos

Brenda Martina Aguilar Serrato

Carlos Guzmán Jiménez

Carolina Alejandra Ávila Cardona

David Isaac Márquez Oyervides

Jennifer Fernanda Zavala López

María de la Luz Nava Rodríguez

Mariana Mijares Madero

Mauricio Hernández de la Cueva

Mariana Pérez Chantes

Raúl Eduardo Balderrama

María Teresa Canales

LABORCITAS INSTITUCIÓN

Natalia González Meneses

Osvaldo Martínez Damián

MENCIÓN HONORÍFICA

DISEÑO Y CONSTRUCCIÓN DE UN HÁBITAT EFÍMERO | AGOSTO - DICIEMBRE 2023

PROFESORES:

EDMUNDO JOSÉ REYES GUZMÁN, SYLVIA RAMÍREZ DELGADO

El deber de la arquitectura en zona de desarrollo es planteado en el proyecto al buscar como principal objetivo teJer la sociedad. Partiendo de este supuesto, se sabe que la construcción de una escuela conlleva como un lugar estrictamente relacionado con la forma en que aprendemos a percibir el espacio y las relaciones, en una época de la vida extremadamente delicada en la que los estudiantes. Según esta perspectiva, el proyecto “Laborcitas” se concibe en torno a tres acciones de diseño principales: núcleo central abierto, distribución circular de las aulas enfrentadas, sin recurrir al uso de vallas perimetrales, será la propia arquitectura se articule para proteger a los alumnos dentro de la escuela.

LABORCITAS INSTITUCIÓN

La propuesta del proyecto es concebida siguiendo la curvatura del río existente en el predio en cuestión, el cual a su vez, forma un patio de “U” al que se accede a través de la entrada que forma la misma. Las aulas y espacio presentados en el programa dan al patio, donde se desarrolla la vida colectiva y la construcción de la comunidad. En la parte central, se proyecta un árbol que engloba al diseño, de igual forma predomina un agora en la edificación con el fin que los miembros de la escuela puedan reunirse, contribuyendo a la cohesión social y creación de una sensación de comunidad, así resolviendo la problemática de desventajas sociales y económicas que presenta la zona.

NATALIA GLEZ. MENESES | OSVALDO MARTÍNEZ DAMIÁN

Parque Juventud

EQUIPAMIENTO COMUNITARIO | SEMESTRE FEBRERO-JUNIO 2023

PROFESORES:

PATRICIA TORRES, ELFIDE RIVAS, BERNARDO SALAZAR

Alejandra De La Garza Ximena Arrambide

La intención principal de diseño es otorgarles a los adolescentes y demás habitantes del Distrito Campana-Altamira, una comunidad vulnerable con viviendas autoproducidas, un espacio para la activación deportiva y el esparcimiento.

Planta Arquitectónica

Planta de Conjunto Sitio

ALEJANDRA

Alzado de Conjunto

Corte de Conjunto

El predio se encuentra al borde del “Arroyo Seco”, entre el Cerro de la Campana y el Cerro de la Altamira, y frente a la preparatoria C.B.T.is 99, cuyos estudiantes son nuestros usuarios principales.

DE LA GARZA | XIMENA ARRAMBIDE PARQUE JUVENTUD

Casona Esperanza PROYECTO GANADOR

Vanessa Ortiz

Fernanda García

David Lozano

EQUIPAMIENTO COMUNITARIO | SEMESTRE FEBRERO-JUNIO 2023

PROFESORES:

PEDRO PACHECO, LUIS ARCOS, ERNESTO RAMOS

Casona Esperanza está ubicado en San Bernabé 221, col. Nueva Morelos, Monterrey, Nuevo León. Fue diseñado gracias a los esfuerzos de la organización socio formadora Fuerza y Esperanza y del equipo de trabajo con el propósito de albergar a niños con cáncer y sus tutores para hospedar, alimentar y brindar servicios de salud y educación cumpliendo con un enfoque espiritual; donde se transmita paz y serenidad a través de la arquitectura.

Actualmente la sede ya cuenta con un edificio que es el área administrativa de la organización, además de dos cuartos que se utilizan como cocina y bodega. Para esta construcción se propone la implementación de manera gradual de un nuevo programa adaptado а las necesidades, es decir, que es capaz de funcionar sin que esté construido al cien por ciento.

Por este motivo se plantean tres fases para completar el albergue y que empiece sus actividades lo antes posible. La primera con lo esencial en planta baja: la cocina donde se encuentra actualmente, consultorios, el jardín y un máximo de tres habitaciones. La fase dos consiste en agregar las aulas flexibles y el tapanco con el entrepiso como área libre y finalmente la fase tres sería añadir los módulos de las habitaciones restantes y reorganizar el enfoque de cada módulo.

Planta Baja Planta Alta Corte

CASA ESPERANZA

VANESSA ORTIZ | FERNANDA GARCÍA | DAVID LOZANO

Detalles Constructivos

Planos Constructivos

Es importante mencionar que anterior a la etapa de anteproyecto se implementaron metodologías de diseño participativo con el objetivo de cumplir con nuestros propósitos de diseño [sinergía con el ambiente, centrado en el usuario, accesibilidad universal, flexible y sostenible] y asegurar la satisfacción de las necesidades de los usuarios.

Centro Comunitario Iskali

Ana Lucia Martinez

Bruno Barron

Esteban Murillo

Fernanda Anaya

Liliana Segovia

Andrea Salazar

EQUIPAMIENTO COMUNITARIO | SEMESTRE FEBRERO-JUNIO 2023

PROFESORES:

IRMA BEATRIZ, RENA PORSEN, JOEL VALENCIA

El Centro Comunitario ISKALI cuenta con una arquitectura modular progresiva con una variedad de instalaciones con flexibles a las necesidades de la comunidad.

Programa

CENTRO COMUNITARIO ISKALI

ANA LUCIA MARTINEZ | BRUNO BARRON | ESTEBAN MURILLO | FERNANDA ANAYA | LILIANA SEGOVIA | ANDREA SALAZAR

Planta Arquitectónica

ISKALI significa crecimiento en náhuatl huichol. A través de un diseño minimalista se promueven los espacios abiertos, con módulos de autoconstrucción que permiten el crecimiento a futuro. Será un punto de encuentro para fomentar el crecimiento personal y de la comunidad, asi como la generacion de ideas para fortalecer la zona.

Cortes

Centro de Manejo de Residuos

EQUIPAMIENTO COMUNITARIO | SEMESTRE FEBRERO-JUNIO 2023

PROFESORES:

PATRICIA TORRES, ELFIDE RIVAS, BERNARDO GIL

Marcelo Tonel Maximiliano Gónzalez

El proyecto se desarrolla en México, Nuevo León, en la metrópolis regiomontana de Monterrey. su ubicación se encuentra en una posición céntrica entre el municipio de Monterrey y San Pedro Garza García. en el distrito Campana Altamira, en lo que actualmente funge como el “nuevo parque Altamira” su ubicación privilegiada lo ubica en un punto de unión entre el cerro de la Campana y Altamira, en un eje crucial de movimiento para el distrito, asimismo se encuentra situado alado del arroyo seco, uno de los pocos cuerpos de agua en Monterrey.

CENTRO DE MANEJO DE RESIDUOS

El proyecto se desarrolla debido a la creciente necesidad de una cultura del cuidado ambiental en el distrito. la cercanía del arroyo incita a que muchas personas depositen sus residuos al arroyo mismo o en terrenos sin ocupar debido a la falta de infraestructura y zonas de depósito en la zona. esto afectando aspectos naturales y urbanos del distrito, asi como tambien perjudicando el golfo de méxico. es por eso que la ubicación del predio es ideal para plantear un centro que promueva una cultura ambiental y a su vez maneje residuos, como lo son vidrio y textiles. de esta manera se brinda un espacio cercano y facil de accesar para que se desechen los residuos, evitando la contaminación del arroyo.

MAXIMILIANO
MARCELO TONEL |
GÓNZALEZ
Planta Baja Planta Alta

Arca de Noé

Ramón Llanos

Liliana Tamez

Juliana Pizano

Regina Jardines

EQUIPAMIENTO COMUNITARIO | SEMESTRE FEBRERO-JUNIO 2023

PROFESORES:

BERNARDO GIL, CESAR DIONICIO DÍAZ, LORENA GUADALUPE LOZANO

El proyecto se desarrolla debido a la creciente necesidad de una cultura del cuidado ambiental en el distrito. la cercanía del arroyo incita a que muchas personas depositen sus residuos al arroyo mismo o en terrenos sin ocupar debido a la falta de infraestructura y zonas de depósito en la zona. esto afectando aspectos naturales y urbanos del distrito, asi como tambien perjudicando el golfo de méxico. es por eso que la ubicación del predio es ideal para plantear un centro que promueva una cultura ambiental y a su vez maneje residuos, como lo son vidrio y textiles. de esta manera se brinda un espacio cercano y facil de accesar para que se desechen los residuos, evitando la contaminación del arroyo.

El lote de intervención se encuentra entre las calles San Marcos y Gustavo Díaz Ordaz, teniendo como vecino el campo de fútbol de Los Pinos.V

Diagrama Bioclimático

ARCA DE NOÉ

RAMÓN LLANOS | LILIANA TAMEZ | JULIANA PIZANO | REGINA JARDINES

Planta Arquitectónica

El refugio no solo desempeñará el papel de centro de atención para los animales, sino que también abarca un proyecto más amplio que busca englobar una visión de concientización a la ciudadanía sobre la importancia del cuidado y la responsabilidad que implica tener una mascota, contemplando así la inclusión de un salón multiusos donde se ofrezcan charlas informativas que promuevan la reconstrucción de la comunidad.

Un elemento clave que esta en el entorno del proyecto, es el mural “ave de los sueños” que se caracteriza por su uso de colores vibrantes, que integramos tanto en el interior como en el exterior del refugio como símbolo representativo de la comunidad.

Cortes

Victoria Mendivil

Santiago Treviño

Oscar Alanis

EQUIPAMIENTO COMUNITARIO | SEMESTRE FEBRERO-JUNIO 2023

PROFESORES:

CLAUDIA CARREÑO, JARENNY TOVAR, DANIELA AMBRIZ

Alesco

ALESCO es un Albergue en Escobedo Nuevo Léon. el cuál busca por medio del diseño adaptarse a un terreno en forma de L con una topografía irregular y hermosos ébanos y cenizos que dan vida a espacio. Esto se logró por medio de 3 módulos conectados por un gran eje central elevado, que permite la circulación de aire e iluminación natural.

Planta de Conjunto Plantas

VICTORIA MENDIVIL | SANTIAGO TREVIÑO | OSCAR ALANÍS

También se buscó un diseño amigable para los adultos mayores, por medio de espacios compactos y sencillos, pasamanos en el eje central con texturas suaves, espacios que promuevan la convivencia, pero también espacios privados que den resguardo y privacidad a los usuarios.

ALESCO
Isometría

Parque Punta del Este MENCIÓN HONORÍFICA

Ivanna Robles

Aída Rodríguez

Katia González

EQUIPAMIENTO COMUNITARIO | SEMESTRE FEBRERO-JUNIO 2023

PROFESORES:

MARIANA CABELLO, ERNESTO RAMOS, PERLA VARELA

El proyecto del Parque Punta del Este es una propuesta de revitalización diseñada para la iniciativa distritotec, con la intención de recontextualizar el espacio público de la Colonia Primavera, generando nuevos espacios vde encuentro, integración, desarrollo físico y cultural de la comunidad vecinal.

Planta de Conjunto

PARQUE PUNTA DEL ESTE

La propuesta responde a las necesidades de los diversos usuarios demográficos de la colonia identificados a partir de un diagnóstico participativo: residentes de la tercera edad, un gran grupo de población escolar media flotante y una comunidad emergente de estudiantes universitarios; resultando en un espacio multigeneracional y polivalente que permite el desarrollo integral de la comunidad a través del tiempo, así como una fácil comunicación entre sus habitantes. La propuesta de revitalización del parque representa un nuevo pulmón verde para la colonia y la ciudad de Monterrey, mejorando la relación entre los ciudadanos, el espacio construido y el medio ambiente.

IVANNA ROBLES | AÍDA RODRÍGUEZ | KATIA GONZÁLEZ
Paleta Vegetal

Casa Orgullo

José Grajeda

Jaime Orantes

MENCIÓN HONORÍFICA

VIVIENDA UNIFAMILIAR | SEMESTRE FEBRERO-JUNIO 2023

PROFESORES:

JUAN CARLOS LÓPEZ, IVETTE CAVAZOS, ROBERTO GARCÍA

La propuesta está formada por dos volúmenes que dividen el terreno en tres jardines, uno público, otro semi-público y uno totalmente privado. Ambos patios públicos están conectados por la cocina, la cuál es el corazón de la casa y tiene la conexión más fuerte con el exterior. El volumen posterior tiene el propósito de ser una sala de juntas, estudio arquitectónico, cuarto de visitas y salón para batería, así que está separado del volumen principal con el fin de evitar que el ruido de la batería perturbe el resto de la casa.

Casa Orgullo

JOSÉ GRAJEDA | JAIME ORANTES

Isometría Explotada

Plantas arquitectónicas

La propuesta toma muchos elementos de la arquitectura funcionalista de diferentes edificios, como la Casa Estudio de Diego Rivera y Frida Kahlo, como es el puente que conecta los dos volúmenes o el gran ventanal dirigido hacia el Norte en el estudio.

Casa Unión

MAURICIO MANDUJANO

RODRÍGUEZ

VIVIENDA UNIFAMILIAR | SEMESTRE FEBRERO-JUNIO 2023

PROFESORES:

JUAN CARLOS LÓPEZ, ROBERTO GARCÍA, IVETTE CAVAZOS

PROYECTO GANADOR

IAN

La concepción de este proyecto fue la de crear una residencia que honrase la ubicación de los árboles en el terreno, aprovechando esta singularidad para dar forma a dos estructuras flotantes en los flancos de la edificación, con el propósito de evocar la sensación de habitar en una casa en medio de los árboles.

Plantas Arquitectónicas

Casa Unión

MAURICIO MANDUJANO | IAN RODRÍGUEZ

Guiados por la visión de una vivienda que emulase la experiencia de una casa en el árbol, se trazaron tres puentes que conectan armoniosamente los espacios comunes con las áreas privadas. Esta elección persigue la dualidad de crear una sensación de amplitud al tiempo que se resguarda la intimidad de sus ocupantes. Es importante destacar que los dos puentes principales han sido concebidos con paredes y techos de vidrio en su totalidad, otorgando una vista panorámica única y envolvente, y se han complementado con una celosía estratégicamente diseñada, que ha sido seccionada para proporcionar privacidad y una apariencia estética excepcional.

Corte longitudinal

Vivienda Liverpool PROYECTO GANADOR

Agustín Sañudo

Jaime Orantes

Gabriel Martínez

VIVIENDA COLECTIVA| SEMESTRE FEBRERO-JUNIO 2023

PROFESORES:

JUAN CARLOS LÓPEZ, IVETTE CAVELI, ROBERTO GARCÍA

El edificio se levanta sobre la calle Liverpool, a espaldas del teatro Luis Elizondo del Instituto Tecnológico de Monterrey, desplegando 16 viviendas propuestas en 4 tipologias diferentes de 1 a 4 recámaras. El principal concepto al cual se apega la propuesta es el diferenciar dos patios por su uso semipúblico y semiprivado. Para ello se necesita mantener una huella mínima, sin llegar a comprometer la calidad de los espacios interiores. La composición en planta de los niveles residenciales indica dos volúmenes laterales con crujías de 4 metros para las áreas sociales, y dos volúmenes superpuestos, de mayor longitud para las áreas privadas, con 5.3 metros de crujía. Ambos volúmenes centrales se intercalan con tres objetivos principales:

Variabilidad en la orientación de las viviendas

Unidad y coherencia en el volumen exterior

Generación de terrazas internas colectivas para mayor conexión con el exterior.

Plantas

La configuración de los volúmenes da especialmente dos espacios apropiados para las circulaciones verticales, que dan servicio cada una, y en cada planta, a dos viviendas. El proyecto es complementado en su planta baja con dos locales comerciales orientados hacia el patio semipúblico y una sala de estudio para residentes, con vista hacia el patio semiprivado, en respuesta a la cercanía del predio con un centro educativo de alto impacto social.

JAIME ORANTES | GABRIEL
VIVIENDA
AGUSTÍN SAÑUDO |
MARTÍNEZ
LIVERPOOL
Isometría Alzado Corte

Pablo del Ángel

Isabela Carcoba

Mauricio Mandujano

VIVIENDA COLECTIVA | SEMESTRE FEBRERO-JUNIO 2023

PROFESORES:

JUAN CARLOS LÓPEZ, RPBERTO GARCÍA, IVETTE CAVAZOS

Ryuko
MENCIÓN HONORÍFICA

RYUKO es una torre modular que redefine la movimiento y experiencia de vida al proporcionar un entorno en constante adaptabilidad. estructura compuesta por Con unos cuatro núcleos principales, los espacios clave se replican en cada nivel, una asegurando distribución eficiente. Su versatilidad radica en la capacidad de intercambiar módulos de habitaciones, balcones, escaleras y baños, gracias a una grúa integrada en la torre. Además, cuenta con un sistema estacionamiento automatizado. RYUKO representa un avance revolucionario en el diseño arquitectónico, ofreciendo un estilo de vida dinámico y adaptativo.

PABLO DEL ÁNGEL | ISABELA CÁRCOBA | MAURICIO MANDUJANO

RYUKO
Cortes

LEGACY

Isabella Morales Suchini

Manuel I. Gil Bringas

Emilio Rodríguez Cortés

Sandrra M. Reina Astudillo

Ana P. Juárez Mendoza

Melissa A. Ríos Guajardo

ARQUITECTURA PARTICIPATIVA | SEMESTRE AGOSTO - DICIEMBRE 2023

PROFESORES:

ANA MARÍA DE LA CRUZ MALDONADO, LORENA ZAZUETA, RODRIGO MAISTERRENA, BENJAMIN AMARO, KEVIN LUNA

Dejar un legado y regalar una buena la comunidad que implica el lugar donde los vínculos fueron y son creados.

Tipología del proyecto: desarrollo multifamiliar y de usos mixtos Área todo de construcción: 32,421m2

Dirección: Av. Fernando García Roel, S/N, Tecnológico, Monterrey, Nuevo León.

Ubicado en el corazón del Distrito Tec, siendo su entorno inmediato un elemento fundamental de estrategia de conexión. Legacy invita a su comunidad a vivir en la zona más privilegiada, donde los recorridos peatonales y vehiculares son predominantes.

LEGACY

ISABELLA MORALES SUCHINI | MANUEL I. GIL BRINGAS | EMILIO RODRÍGUEZ CORTÉS | SANDRA M. REINA ASTUDILLO | ANA P. JUÁREZ MENDOZA | MELISSA RÍOS GUAJARDO

Este complejo de usos mixtos engloba todas las instalaciones hidrosanitarias, eléctricas y de HVAC. Se consideró el cálculo de tuberias, ductos, cisternas, suministro de energía, toneladas de refrigeración, entre otras. Generándose un modelo integrado, utilizando los estándares BIM y de ingenerías del Tecnológico de Monterrey.

HVAC

Hidrosanitario

Modelo integrado

Eléctrico

Su altura máxima de 107m genera las vistas destacadas hacia el Cerro La Silla, el Parque Central y el Estadio Banorte.

Corte Isométrico

Corte Longitudinal

LEGACY

ISABELLA MORALES SUCHINI | MANUEL I. GIL BRINGAS | EMILIO RODRÍGUEZ CORTÉS | SANDRA M. REINA ASTUDILLO | ANA P. JUÁREZ MENDOZA | MELISSA RÍOS GUAJARDO

Planta baja - comercios

Segundo nivel - comercios Amenidades 1

Planta tipo de departamentos Amenidades 2 Amenidades 2 - Mezzanine

HOTEL ÍNDIGO MENCIÓN HONORÍFICA

Catalina Maass Flores

Oscar Carlos Brown Herrera

ARQUITECTURA PARTICIPATIVA | SEMESTRE AGOSTO - DICIEMBRE 2023

PROFESORES:

DIANA LAURA RIVERA, DIEGO RODRÍGUEZ, CLAUDIA LEDEZMA

Ubicado en el estado de Coahuila, Parras es principalmente conocido por la industria vinícola. Hay alrededor de 11 viñedos en la ciudad. RGMX es uno de los viñedos más relevantes en Parras, inaugurado en 1998. En el corazón de Parras está ubicada la antigua fábrica textil, FLESA. La intervención toma parte en dos edificios dentro de la fábrica conocidos como "Anden" y "Acabado".

El propósito de diseño del proyecto busca generar una experiencia en la cual se preservan elementos históricos como lo es el acueducto y el andén. Combinado con la creación de caminos que, a través de la implementación de nuevos espacios, los usuarios puedan apreciar la fusión de arquitectura contemporánea con una arquitectura industrial.

HOTEL ÍNDIGO

Fue esencial hacer una investigación histórica, topográfica, natural y arquitectónica del lugar para proponer una solución ideal y que responda al contexto e historia.

La distribución fue colocada estratégicamente, tomando en consideración la cercanía con el acueducto y las gatoneras. El lobby es una inserción sobre el acueducto. La intención es crear un contraste de una pieza histórica con la construcción moderna. CATALINA MAASS | OSCAR CARLOS BROWN HERRERA

El programa consta de un parque público al oeste, seguido por el andén en el cual habrá una zona comercial y un recorrido cultural. Al sur se encuentra el restaurante y el lobby. Cruzando el lobby, encontramos las oficinas y amenidades como el spa y el gimnasio. Posteriormente, se encuentra el hotel, el cual está dividido en dos torres, con un total de 45 recámaras. Por último, se implementó un parque inundable respetando la topografía y una cancha de tenis.

El área del andén ofrece comercios y exhibiciones efímeras dependiendo de la temporada, para que los usuarios puedan conocer más sobre la ciudad en un sentido cultural y artístico. Un ejemplo puede ser la vendimia de Parras.

HOTEL ÍNDIGO

CATALINA MAASS | OSCAR CARLOS BROWN HERRERA
Recámara del hotel Facha del hotel Interior del lobby Parque público, acueducto, andén y lobby

BURÓCRATAS DE GUADALUPE

Maira Sofía Medrano Moya

Jose Ángel Chapa Ledezma

Daniel Rodrigo Cantú Treviño

Daniela Elizabeth Salomé Martínez

ARQUITECTURA PARTICIPATIVA | SEMESTRE AGOSTO - DICIEMBRE 2023

PROFESORES:

ROBERTO GARCÍA ROSALES, JUAN CARLOS LÓPEZ AMADOR

Ubicado en el municipio de Juárez, Nuevo León, el Centro Habitacional Burócratas de Guadalupe cuenta con un total de 867 habitantes y un total de 324 viviendas, de las cuales 239 son habitadas.

En el año 2006 comenzaron desarrollos (en su mayoría habitacionales) alrededor de la zona, lo que ocasionó marginación y falta de interés del gobierno para dar mantenimiento al predio. Por consi-guiente, el descuido de la zona ha llevado a niveles muy bajos de densidad poblacional, reduciendo la oferta de equipamiento, de servicios, menor actividad económica y falta de infraestructura.

de ubicación y equipamientos

Mapa

BURÓCRATAS DE GUADALUPE, JUÁREZ

MAIRA SOFÍA MEDRANO MOYA | JOSÉ ÁNGEL CHAPA LEDEZMA | DANIEL RODRIGO CANTÚ TREVIÑO | DANIELA ELIZABETH

SALOMÉ MARTÍNEZ

Gráfica de densidad por manzana

Metodología para la vivienda adecuada

Construyendo proximidad, diversidad y densidad

Calle Secundaria Principal Calle Secundaria Aledaña Calle Terciaria

BURÓCRATAS DE GUADALUPE, JUÁREZ

MAIRA SOFÍA MEDRANO MOYA | JOSÉ ÁNGEL CHAPA LEDEZMA | DANIEL RODRIGO CANTÚ TREVIÑO | DANIELA ELIZABETH

SALOMÉ MARTÍNEZ

Parque Búho Kobán Luna Reuso de llantas y Playa Urbana Pasarela Peatonal

BURÓCRATAS DE GUADALUPE, JUÁREZ

MAIRA SOFÍA MEDRANO MOYA | JOSÉ ÁNGEL CHAPA LEDEZMA | DANIEL RODRIGO CANTÚ TREVIÑO |

DANIELA ELIZABETH SALOMÉ MARTÍNEZ

Vivienda Aislada

Vivienda Superpuesta

Vivienda Adosada

BURÓCRATAS DE GUADALUPE, JUÁREZ

MAIRA SOFÍA MEDRANO MOYA | JOSÉ ÁNGEL CHAPA LEDEZMA | DANIEL RODRIGO CANTÚ TREVIÑO | DANIELA ELIZABETH

SALOMÉ MARTÍNEZ

EL MOLINO

Paulina Villarreal Villarreal

Ilse Edith Estrada Frías

PROYECTO GANADOR

ARQUITECTURA PARTICIPATIVA | SEMESTRE AGOSTO - DICIEMBRE 2023

PROFESORES:

DIEGO ALBERTO RODRÍGUEZ LOZANO, DIANA LAURA RIVERA VILLARREAL, CLAUDIA BERENICE LEDEZMA GARZA

INTENCIÓN DEL PROYECTO

Durante nuestro proceso de diseño, uno de nuestros principales objetivos fue optimizar la utilización de las estructuras ya existentes al descubrir aplicaciones alternativas para las mismas.

El complejo cuenta con 4 edificios con diferentes funciones para los huéspedes del Molino Resort. Un restaurante, el edificio Isabel que contiene un espacio de wine tasting. una vinoteca y espacios multifuncionales. Por otro lado, las zonas más privadas que son el hotel, las amenidades y las villas. Estos espacios están creados para huéspedes y propietarios de las residencias.

Casa Club

EL MOLINO

PAULINA

VILLARREAL VILLARREAL | ILSE EDITH ESTRADA FRÍAS

El Hotel "El Molino" pretende ofrecer a sus huéspedes una experiencia única de relajación, diversión y amenidades para todas las edades. Este hotel boutique cuenta con área de bar. piscina, salón de juegos, además, ofrece habitaciones con vistas impresionantes y todas las comodidades necesarias para garantizar una estancia inolvidable.

EL MOLINO

PAULINA

Se decidió preservar la fachada original del edificio debido a que simbolizaba la rica historia de Parras, al considerar este aspecto, se eligio implementar una doble fachada que no comprometiera la estructura original. Uno de los puntos clave al momento del proceso de diseño, fue el respetar la altura original del molino, por lo que la nueva estructura pretende replicar dicha altura.

Corte Elevación

ESTRADA
VILLARREAL VILLARREAL | ILSE EDITH
FRÍAS

Sección Estructural

RESTAURANTE MARGARETTA

ARQUITECTURA PARTICIPATIVA | SEMESTRE AGOSTO - DICIEMBRE 2023

PROFESORES:

LUIS VILLARREAL, JUAN HIGUERA, HÉCTOR DÍAZ, MARIO GARZA

Miriam Andrea Guzmán Elena Funes Avila Jorge Figueroa Castillo

Ubicado en el Centro de Apodaca en el estado de Nuevo León, el restaurante "Margaretta" busca cumplir con los deseos del cliente de continuar expandiendo su negocio restaurantero hacia un nuevo giro de comida italiana.

Al tratarse de un establecimiento comercial, el edificio debe captar la atención desde el exterior e invitar a entrar a los posibles usuarios, por lo que una de las premisas más esenciales del proyecto fue tomar la fachada suroeste como la principal protagonista, pues gracias al derecho de paso aledaño y a la dirección de circulación de la vialidad, permite tener una vista más amplia hacia el edificio. Esto conlleva a posicionar el área de estacionamiento y de servicios en la parte posterior, y es a través del pasillo de arcos y vegetación que el edificio acompaña a los visitantes en su recorrido hacia la entrada.

La torre con celosía vertical de metal y vegetación colgante alberga el recibidor de doble altura para sorprender desde el primer momento, así como a unificar desde el exterior la materialidad de ambas plantas.

Análisis solar del edificio.

Mapa de ubicación y contexto del proyecto.

El uso de materiales naturales y neutros como el ladrillo, la piedra, y el color blanco, permiten que el restaurante pueda relacionarse con la cocina italiana, pero a su vez ofrece la adaptabilidad para distintos tipos de gastronomía, pues son acabados flexibles que reconocen la volatilidad de los negocios comerciales.

Debido a que el terreno presenta una orientación suroeste altamente expuesta a la incidencia solar y no presenta vistas atractivas hacia el exterior, el edificio decide cerrarse en si mismo para generar sus propias vistas y atractivos interiores. En donde el protagonista principal es el patio de luz y vegetación, acompañado de una apertura hacia el horno de piedra que vuelve posible adentrarse al proceso de preparación de los alimentos.

Un factor clave fue crear la experiencia gastronómica del usuario, conociendo su perspectiva por medio de entrevistas e integración de realidad virtual. Finalmente, otro aspecto fundamental en el desarrollo de este proyecto fue la modulación espacial para lograr una eficiencia estructural y así permitir que el edificio tenga vida propia, volviendo posible mutar su programa arquitectónico de ser necesario.

| ELENA FUNES AVILA | JORGE FIGUEROA CASTILLO
MARGARETTA
MIRIAM ANDREA GUZMÁN
RESTAURANTE
MARGARETTA
MIRIAM ANDREA GUZMÁN | ELENA FUNES AVILA | JORGE FIGUEROA CASTILLO RESTAURANTE
Tocador planta alta Recibidor y sala de espera de doble altura Comedor primera planta con vista hacia el horno y el jardín interior

HACIENDA GUADALUPE, LINARES

Gabriela Carmona Alfaro

Valeria Hernández González

Javier Alejandro Zamora Vásquez

ARQUITECTURA PARTICIPATIVA | SEMESTRE AGOSTO - DICIEMBRE 2023

PROFESORES:

ROBERTO GARCÍA ROSALES, JUAN CARLOS LÓPEZ AMADOR

El ejido Hacienda de Guadalupe está ubicado en el municipio de Linares en el Estado de Nuevo León. Sus inicios datan del año 1667 como una hacienda con el propósito de ser sede para la explotación de minerales y el cultivo de caña de azúcar. El ejido actualmente forma parte de una de las cuatro localidades del municipio de Linares y tiene una extensión total de 1,146,531m2

El acueducto colonial ubicado a 500 metros de Hacienda de Guadalupe es el único ejemplar en pie en el estado de Nuevo León. Tuvo un valor histórico para el ejido y en su momento se construyó para facilitar el traslado del agua para las plantaciones de caña de azúcar. La conexión e importancia que alguna vez tuvo el acueducto con el ejido fueron destacadas ya que éste fue la base para el desarrollo del sitio.Y con este proyecto se busca recrear ese sistema por irrigación para el agua de los cultivos y llevarlo a otros elementos como la vivienda, los puntos de conexión y las vialidades. Volviendo a lo que alguna vez se uso.

HACIENDA DE GUADALUPE, LINARES

GABRIELA CARMONA ALFARO | GABRIELA HERNÁNDEZ GONZÁLEZ | JAVIER ALEJANDRO ZAMORA VÁZQUEZ

Una particularidad del ejido es su relación con el agua y su proximidad a una de las presas más importantes del Estado de Nuevo León, la presa Cerro Prieto. Un elemento que ha cobrado fuerza en los últimos años al ser el foco de una gran crisis hídrica que vive el Estado y que ha afectado desde comunidades rurales hasta grandes ciudades.

HACIENDA DE GUADALUPE, LINARES

GABRIELA CARMONA ALFARO | GABRIELA HERNÁNDEZ GONZÁLEZ | JAVIER ALEJANDRO ZAMORA VÁZQUEZ

CENTRO DE MANZANA - PLAZA

Este espacio se diseñó con la finalidad de generar un espacio de conviviencia para la comunidad, en donde incidan los tres ejes pricipales de la propuesta (cultivo, agua y vivienda). La cubierta central incluye un sistema de inclinación de los vértices que permiten el flujo del agua de lluvia hacia la acequia central.

ACEQUIA

Canal intervenido en suelo para conducir el agua hacia los cultivos de la viviendas. El agua que llevan estas conexiones proviene del agua de lluvia y/o la infiltración del suelo que involucren los cultivos. La vivienda está elevada 60cm del suelo con el propósito de conectar en los cuatro ejes la red hídrica de la manzana creada por las acequias.

ACCESOS

Se propone un acceso en cada frente de la manzana, estos accesos están seccionados en movilidad peatonal y vehicular. De tal manera que los pórticos de las tipologías se mantengan despejados para el uso del comercio.

VIVIENDAS

Tipologías de vivienda combinadas en cada frente de la manzana, frentes activos orientados hacia el interior de la manzana con la finalidad de crear una red de comercio interno, asi como hacia el resto de las manzanas para generar conexión con el resto del ejido.

HACIENDA DE GUADALUPE, LINARES

GABRIELA CARMONA ALFARO | GABRIELA HERNÁNDEZ GONZÁLEZ |

JAVIER ALEJANDRO ZAMORA VÁZQUEZ

PROPUESTA EQUIPAMIENTO

Se propone en la escuela primaria la creación de un ecomuro sustentable, un sistema de recolección de agua pluvial vertical modular que utiliza como material principal botellas reciclables PET de aproximadamente 3 litros de capacidad máxima. Las dimensiones de la propuesta pueden variar según la necesidad del espacio y de la conexión con este.

PROPUESTA INTEGRADORA

La visión del ejido Hacienda de Guadalupe a 30 años integra los elementos antes presentados y se sintetiza en un diagrama isométrico donde se representa el funcionamiento del agua a una escala habitacional y local por medio de las acequias y s u comportamiento con el subsuelo. El cuidado y manejo del agua es y seguirá siendo prioridad en la unidad habitacional para ser la base para futuros proyectos y referencia para futuras generaciones.

HACIENDA DE GUADALUPE, LINARES

GABRIELA CARMONA ALFARO | GABRIELA HERNÁNDEZ GONZÁLEZ | JAVIER ALEJANDRO ZAMORA VÁZQUEZ

ESTACIÓN JUÁREZ MENCIÓN HONORÍFICA

Samantha Juárez

Cristóbal Hernández

Marco Marcelo Rucks

ARQUITECTURA AVANZADA| SEMESTRE AGOSTO - DICIEMBRE 2023

PROFESORES:

MARCELO ESPINOSA, JUAN TALAMÁS, JOSÉ BUSTOS, SANTIAGO JASSO, RICARDO ROBERTS, OMAR AVELLANEDA

Ubicada en México, Nuevo León, Monterrey, la estación Juárez es parte del plan de expansión del sistema de metro de la ciudad. Esta pertenece a la futura línea número 4 y se ubica sobre la avenida Constitución y Avenida Benito Juárez.

El concepto se basa en una simulación de asoleamiento sobre un objeto adyacente al contexto del sitio de trabajo (Auditorio Pabellón M). Con los resultados del comportamiento de sombras en verano e invierno, se hace una sobreposición de los resultados, de la cual se identifica una forma tipo espiral.

ESTACIÓN JUÁREZ

SAMANTHA JUÁREZ | CRISTÓBAL HERNÁNDEZ | MARCO MARCELO RUCKS

La estructura principal de la estación es una parrilla de vigas y columnas de acero, reforzada por un sistema de tensores. Esta estructura sostiene una membrana que envuelve la estación.

Estructura y envolvente

Parrilla tipo waffle Tensores

El segundo nivel de la estación Juárez da acceso a los monorrieles. Se destaca la estructura tipo Waffle y las aperturas que ofrecen vistas al entorno circundante.

Primer nivel de la estación. Incorporación del puente del papa como acceso. Conexión con Pabellon M, vestíbulo y área abierta.

Nivel Acceso Nivel Andén

ESTACIÓN JUÁREZ

SAMANTHA

Isométrico Explotado

1 - Conexión Pabellón M. 2 - Conexión Puente del Papa. 3 - Acceso hacia Andén. 4 - Oficinas y cuartos de servicio. 5 - Vestíbulo y área abierta. 6 - Av. Constitución. 7 - Av. Benito Juárez. 8 - Río Santa Catarina.

JUÁREZ | CRISTÓBAL HERNÁNDEZ | MARCO MARCELO RUCKS
Corte Transveral

RUBVN PROYECTO GANADOR

Paola Ríos Juaristi

Jorge Eriott Chapa García

Mayra Paulina Martínez Isojo

ARQUITECTURA AVANZADA| SEMESTRE AGOSTO - DICIEMBRE 2023

PROFESORES:

MARCELO ESPINOSA, JUAN TALAMÁS, JOSÉ BUSTOS, SANTIAGO JASSO, RICARDO ROBERTS, OMAR AVELLANEDA

El proyectos surge a partir de la maleabilidad que el viento le da a materiales blandos, como los listones.

Los vientos predominantes en la zona determinan la forma de la envolvente, facilitando la ventilación interna de la estación.

Temperatura anual

Asoleamiento

RUBVN

Vientos dominantes

VOLUMETRÍA

El primer estudio con el parámetro del viento fue dirigido hacia un cilindro para entender como el viento reaccionaba ante un sólido. Se puede apreciar como frena el viento al chocar con una superficie y es redirigido.

ENVOLVENTE

A partir del estudio anterior, se obtuvieron las partes de la forma donde se debía de cortar, generando superficies exteriores que crearon la forma de la cubierta. Al hacer las últimas pruebas se puede apreciar como permite la entrada en toda la estación frenando su velocidad.

MAYRA
PAOLA RÍOS JUARISTI | JORGE ERIOTT CHAPA GARCÍA |
MARTÍNEZ ISOJO

Proceso de diseño

Materialidad

Estructura

RUBVN

PAOLA RÍOS JUARISTI | JORGE ERIOTT CHAPA GARCÍA | MAYRA MARTÍNEZ ISOJO

Puente Armadura

PARQUE LAS TORRES

EL AGUA COMO CONECTOR DE ECOSISTEMAS

MENCIÓN HONORÍFICA

Lia Margarita Miramontes Alarcón

Monserrat Gómez Hernández

Ana Sofía Ortiz Torres

Mishelle Compean López

DISEÑO REGENERATIVO | SEMESTRE AGOSTO - DICIEMBRE 2023

PROFESORES:

DIANA LAURA RIVIERA VILLARREAL, MAYEELA ABIGAIL SALAZAR, CARLOS A. ESTRADA ZUBÍA, PABLO COTERA ELIZONDO

El proyecto es un parque público que se encuentra ubicado en el sur del municipio de Monterrey ene las faldas del norte del Cerro del Chupón.

Se busca reestructurar la flora, la fauna y la topografía del sitio para potencializar la conexión de corredores verdes desde el Cerro del Chupón hasta el Río de la Silla, que se conectan con otros ríos como el Río Santa Catarina que desemboca en el mar, es por esto que el parque funge como un nodo conector para el paso de la fauna y filtración y captación de los escurrimientos naturales.

Debido a la topografía del lugar influenciado por su cercanía del Cerro del Chupón, descienden los escurrimientos naturales por las calles hasta el parque en el cual se estanca el agua del lado sureste del punto más bajo del mismo, el cual llega a generar problemas viales por la inexistencia de drenaje y sistemas de captación de agua.

FOTOS ACTUALES

El parque se dividió en 7 áreas, en las que se destacan elementos naturales importantes, considerando sus factores naturales y potencialidades. Todos los espacios actuales se rigen principalmente por la topografía modificada a través de los años, por lo que se busca devolver la pendiente original e instalar diversos sistemas de captación de agua como canaletas en las banquetas, jardines de lluvia y jardines de tormenta. Asimismo, se busca restaurar la flora nativa con especies de arbustos y árboles organizados en base a sus familias y consumo de agua.

PARQUE LAS TORRES

LIA

MARGARITA MIRAMONTES | MONSERRAT GÓMEZ HERNÁNDEZ | ANA SOFÍA ORTIZ TORRES | MISHELLE

COMPEAN LÓPEZ

LA CALLE SAN ÁNGEL COMO

CONECTOR NATURAL PROYECTO GANADOR

Mónica González

Andrea Flores

Lizbeth Tinajero

DISEÑO REGENERATIVO | SEMESTRE AGOSTO - DICIEMBRE 2023

PROFESORES:

DIANA LAURA RIVIERA VILLARREAL, MAYEELA ABIGAIL SALAZAR, CARLOS A. ESTRADA ZUBÍAGA, PABLO COTERA ELIZONDO

El área a intervenir es la calle San Ángel, ubicada al sur de la ciudad de Monterrey. La calle se encuentra entre “El Cerro de la Silla” y “El Río La Silla”; dos elementos naturales emblemáticos de Monterrey. Se busca aprovechar dichos elementos para crear las estrategias regenerativas a proponer en la zona.

PLAN MAESTRO

La propuesta principal es implementar corredores biológicos en áreas de escurrimientos. La calle San Ángel cuenta con dos intersecciones con el corredor biológico, siendo uno de ellos público y el otro privado. El público consta de los corredores que tienen camino en las vías públicas. Mientras que el privado pasa por áreas privadas (casas y manzanas).

Se propone implementar disques de piedra en los escurrimientos que se encuentran a las fladas del “Cerro La Silla”, para que eel agua llegue a menor velocidad a incorporarse con los jardines de lluvia presentes en los corredores biológicos. Se plantea la incorporación del agua de los jardines de lluvia al “Río La Silla” por medio de muros de gaviones escalonados que permitan la filtración y dirección del agua.

LA CALLE SAN ÁNGEL COMO CONECTOR NATURAL

MÓNICA GONZÁLEZ| ANDREA FLORES | LIZBETH TINAJERO

CORREDOR BIOLÓGICO SOBRE VÍA PÚBLICA

A continuación, se presenta la propuesta arquitectónica a implementar en la intersección de la calle San Ángel con el paso de corredor público.

Recordando que la principal característica de esta tipología de corredor es quue tiene camina en la vía pública.

Se logra apreciar que los escurrimientos pasan por donde la vegetación resalta más. Colocando en esa misma área los jardines de lluvia, techos verdes, vegetación, pasos de fauna, los cuadros de agua que pasan por debajo del paso vehicular y el puente vehicular que permite el paso. Todo lo anterior ubicado en la vía pública.

Planta arquitectónica de la intersección de la calle con el corredor público.

Detalle del paso de fauna

Detalle del techo verde

Fotomontaje del protecto intersección corredor público

LA CALLE SAN ÁNGEL COMO CONECTOR NATURAL

MÓNICA GONZÁLEZ| ANDREA FLORES | LIZBETH TINAJERO

CORREDOR BIOLÓGICO SOBRE ÁREA PÚBLICA

A continuación, se presenta la propuesta arquitectónica a implementar en la intersección de la calle San Ángel con el paso del corredor privado.

Recordando que la principal característica de esta tipología de corredor es que tiene camino en áreas privadas, ósea, su camino cruza con casas y/o pasa por en medio de las manzanas de la zona.

Se logra apreciar que los escurrimientos pasan por donde la vegetación resalta más. Los jardínes de lluvia tienen lugar en áreas privadas, y para lograr transportar el agua a través de la calle, se propone la implementación de un puente para permitir el paso del agua por debajo de este. Colocando en esa misma área techos verdes, vegetación y pasis de fauna.

Planta arquitectónica de la intersección de la calle con el corredor privado.

Fotomontaje del proyecto interseccción corredor privado

Luis Vargas

María Alejandra Martínez

DISEÑO Y CONSTRUCCIÓN DE UN HÁBITAT EFÍMERO | SEMESTRE AGOSTO - DICIEMBRE 2023

PROFESORES:

EDMUNDO JOSÉ REYES GUZMÁN, SYLVIA RAMÍREZ DELGADO

GANADOR
BEEHIVE PROJECT PROYECTO

Ubicado en un terreno rentado por la CONAFE, se plantea el desarrollo de un proyecto efímero de carácter educativo, que, en búsqueda de reemplazar la preexistencia en mal estado que ocupa el establecimiento hoy en día. Este se conjuga con la necesidad de una inversión inmobiliaria de características desmontables, reorganizables y desplazables. Debido al constante movimiento del centro educativo entre los terrenos en los alrededores. Dadas las características presentadas, el propósito de este proyecto radica en módulos arquitectónicos hexagonales.

Los módulos arquitectónicos hexagonales permiten una distribución equitativa y flexible del espacio. Al conectar múltiples módulos, se crea un tejido único que se asemeja a una colmena, generando un hábitat efímero que se adapta a necesidades cambiantes. Su diseño modular facilita su desmontaje y reorganización, lo que lo hace ideal para eventos temporales, como ferias, exposiciones, refugios de emergencia, o en este caso, una escuela educativa. Gracias a esta arquitectura hexagonal, la eficiencia espacial se maximiza y fomenta la creatividad en la creación de hábitats temporales únicos y funcionales.

Le estructura del proyecto se fortalece con perfiles de acero inoxidable y tablones de OSB tratado, mejorando la resistencia y el aislamiento. Las aberturas se colocan estratégicamente para lograr ventilación cruzada y un efecto Venturis que refresca el interior. Así mismo, con una dimensión mínima por módulo de 20.25 m2, BeeHive permite el acoplamiento de varios módulos de distintas variantes, permitiendo extender el área total del proyecto cuanto se desee y requiera.

BEEHIVE PROJECT

SUZUME PROYECTO GANADOR

DISEÑO DE INTERIORES | SEMESTRE AGOSTO - DICIEMBRE 2023

PROFESORA:

LORENA GUADALUPE LOZANO

José Alfredo Hinojosa de la Torre

El departamento será el donde la ciudad y la vida ajetreada queden atrás, serpa el bosque donde descansar y olvidar. El concepto interior hace énfasis en esta premisa en donde los materiales crean esta separación mediante textura y color.

La intención de los espacios dentro de Suzume es que el usuario tenga una experiencia en donde se sienta cómodo, en donde no tenga que pensar en los problemas de la semana y donde pueda desarrollar sus hobbies y actividades de una forma placentera.

La paleta de materiales se basa en madera, piedra y yeso pintado. Estos materiales fueron elegidos por sus tonos y texturas, se les acentuará por el uso de metal y telas.

OBSERVACIONES DE ENTREVISTA CON EL CLIENTE

El usuario principal del departamento será un hombre de 26 años de edad, quiere un espacio donde realizar actividades recreativas como ver películas, jugar videojuegos y a la vez poder trabajar. Tiene necesidad por un cuarto de visitas, una cocina ampia y además de ello quiere una oficina que a la vez sea un estudio y lugar donde poder usar más de una computadora.

JOSÉ ALFREDO HINOJOSA DE LA TORRE SUZUME

JOSÉ ALFREDO HINOJOSA DE LA TORRE SUZUME

GANADOR

PROYECTOS INTEGRADORES II | SEMESTRE FEBRERO-JUNIO 2023

PROFESORES:

LILIANA TOSCANO

Agustín Flores Luis Soto Albero PROYECTO Planta de conjunto

Planta Arquitectónica

Tipos de viviendas

FLORES | LUIS SOTO
AGUSTÍN
ALBERO

CENTRO CULTURAL

DISTRITO TEC PROYECTO GANADOR

Maria Luisa Trujillo

Eugenia Vita

Gerardo Flores

Eugenio Alvarez

PROYECTO FIN DE CARRERA | SEMESTRE AGOSTO - DICIEMBRE 2023

PROFESORES:

RODRIGO MAISTERRENA, MARIELA GONÁLEZ

El proyecto desarrollado para el nuevo Centro Cultural busca fortalecer la experiencia creada por el Master Plan del distritotec y ser un espacio para la recreación y cultura de la zona a través de un espacio que cuente con auditorios, salas de exposición, galerías y talleres para los eestudiantes y público general siguiendo los compromisos del Tecnológico de Monterrey como fortalecer las relaciones entre el distrito y la ciudad, facilitar el crecimiento de alianzas de investigación y fortalecer el ambiente de emprendimiento y colaboración.

ESTUDIO DE SOMBRAS Y RELACIONES

La caja negra es un espacio versátil que permite tener múltiple iteraciones de acomodos. Con esta variedad el espacio se transforma según las necesidades del usuario, redistribuyendo los asientos y así darle un aprovechamiento mayor al espacio.

El arte es una expresión cambiante que tiene diferentes maneras de expresarse al igual que representarse. La necesidad de un espacio que pueda tener flexibilidad necesaria para las diferentes expresiones que el Tecnológico de Monterrey es algo importante que se debe de representar.

CENTRO CULTURAL DISTRITO TEC

MARIA LUISA TRUJILLO | EUGENIA VITA |GERARDO FLORES | EUGENIO ALVAREZ

SÓTANO 1

- Sala de resguardo

- Escenografía

- Bodegas

- Laboratorios

- Grupo musical

- Salón ensayos coral

- Orquesta

NIVEL 1

- Auditorio

- Salas de espera

- Salas audiovisuales

- Área de ensayo teatral

- Área de ensayo de baile

- Sala de tránsito

- Concept store

- Taquilla

- Sala profesores

- Cocina

- Área oficinas

- Talleres multiusos

- Salas audiovisuales

NIVEL 2

- Restaurante

- Sala de tránsito

- Camerinos

- Área lounge actores

- Auditorio

NIVEL 3

- Salas de exposiciones

- Galerías

- Sala de tránsito

PLANTA BAJA

ELEVACIÓN ESTE

ELEVACIÓN FRONTAL

CORTE LONGITUDINAL

CENTRO CULTURAL DISTRITO TEC

MARIA LUISA TRUJILLO | EUGENIA VITA |GERARDO FLORES | EUGENIO ALVAREZ

CIRCUITO INNOVATEC SPRINTER ELÉCTRICO AUTÓNOMO

Miguel Ortíz Díaz

CIUDADES COMPETITIVAS | SEMESTRE AGOSTO - DICIEMBRE 2023

PROFESORES:

NATALIA GARCíA CERVANTES, IVONNE JAIMES, DANIELA MONTIEL

DISTRITO

DE INNOVACIÓN - Un espacio de co-creación e investigación

El principal objetivo de esta ruta de un sprinter autónomo, es el poder analizar a través de la investigación, cómo los vehículos autónomos interactúan con el espacio social y construido actual, muy enfocado a la premisa de un living lab, se busca promover alternativas más amigables con el medio ambiente y homogenizar estas nuevas tecnologías con lo actual.

NECESIDADES DE LA VIALIDAD - Creación de espacios inteligentes

Parte de la limitantes que tiene esta tecnología son los problemas con el gps o sensores Lidar y la velocidad máxima que llega a 40km.

Debido a esto, es necesario:

1. Señalización en perfectas condiciones

2. Velocidades bajas

3. Constante mantenimiento

CIRCUITO

MIGUEL ORTÍZ DÍAZ

INFRAESTRUCTURA DE CALIDAD - Incorporación de nuevas tecnologías

Electrolineras

Aplicación móvil Semáforos inteligentes

PRINCIPIOS DE DISEÑO - Calles compeltas

Metodología de Involucramiento

Diseño participativo

Presupueesto participativo

Panel de expertos

Proceso de diálogo multiactor

INNOVATEC

SECCIÓN AV. RÍO PANUCO

Un rediseño vial en la Av. Río Panuco, enfocado en un diseño inclusivo e inteligente con pacifiación cial, incorporación y rehabilitación del señalamiento vertical y horizontal, así como la amplicación de las banquetas y el aumento del espacio público con la rehabilitación de un parque.

MAPA GENERAL DE LA RUTA - Espacios sensoriales e inteligentes

Ubicada en distritotec, en el municipio de Monterrey, la ruta busca conectar con las vialidades secundarias y centrales del distrtito, como Av. Junco de la Vega y Av. del Estado, aprovechando que estas calles ya se encuentran previamente intervenidaes para economizar el proyecto. Así como generar una conexión con las paradas de transporte público para que su impacto no solo sea de investigación, sino también tenga un impacto metropolitano.

Simbología

Electrolinera

Paradas de autobus

Punto de Intervención

Semáforos inteligentes

Calles no intervenidas

Calles intervenidas

PIPORRO

CIUDADES EMERGENTES | SEMESTRE AGOSTO - DICIEMBRE 2023

PROFESORES:

NÉLIDA ESCOBEDO, SHEILA FERNIZA, NATALIA GARCÍA

Arturo Balvanera Garza

El Presupuesto Participativo en el municipio de Monterrey permite a la ciudadanía proponer y decidir proyectos urbanos que resuelvan problemáticas o situaciones puntuales de manera más cercana a la ciudadanía. El sector Médico González y Obispado es uno de los 30 sectores designados dentro del ejercicio.

Cuenta con 12 colonias y 18,695 habitantes los cuales comparten el presupuesto para decidir cuál será el proyecto en el que se invertirá. En 2023, se propusieron 6 propuestas en este sector, La "Remodelación Plaza Eulalio González PIPORRO" en la Colonia Mitras Centro, fue elegido por los vecinos como la propuesta ganador con el 25% de los votos. El proyecto pertenece al sector de Cultura y Deporte, y su objetivo es rehabilitar la plaza Eulalio Gonzalez, para crear espacios de ejercicio, y fomentar la cultura a través de eventos culturales gratuitos.

PIPORRO

La plaza Piporro cuenta con distintas potencialidades para su remodelación. Su ubicación estratégica se beneficia de una excelente conectividad, respaldada por la línea 1 del metro, lo que la hace de fácil acceso para la comunidad. La efectiva nomenclatura y morfología urbana y la presencia de servicios básicos e infraestructura sólida simplifican el desarrollo del proyecto. La topografía relativamente plana se presta favorablemente a la remodelación, y la participativa comunidad, con un historial exitoso en el presupuesto participativo, está dispuesta a involucrarse en el proceso. Además, el uso de suelo indica su potencial para aumentar la densidad habitacional, lo que lo convierte en un lugar atractivo para la atracción de población y una inversión significativa en el futuro.

El suelo se encuentra mal aprovechado, pues cuenta con una mala distribución tanto en lo natural como en lo construido. La cobertura vegetal se encuentra degradada y en riesgo ante sequías, y especies invasoras. La visibilidad nocturna es baja con luminarias mal distribuidas ocultándose entre algunas copas de árboles. Las vialidades cuentan con una distribución vial desaprovechada, donde la gran mayoría del espacio se destina a los vehículos. Existe un deficiente manejo del agua pluvial, la cual no cuenta con ninguna estrategia de captación. Los andadores cuentan con obstáculos peligrosos como tensores y postes. Existe una falta de aprovechamiento del espacio con actividades y espacios culturales.

ARTURO BALVANERA GARZA
Banquetas Vegetación en deterioro Uso de suelo Antigüa fuente sin uso Forma urbana Desaprovechamiento en agua pluvial

El proyecto de remodelación de la plaza Piporro se enfrenta a varios desafíos en su entorno y accesibilidad. Las vialidades para vehículos requieren una revaluación debido a la falta de una distribución adecuada y la alta velocidad del tráfico, lo que afecta negativamente la seguridad de los peatones que desean acceder a la plaza. La presencia de obstáculos en los andadores, como postes y cables peligrosos, también complica el acceso y la movilidad de la comunidad hacia la plaza. Además, se enfrenta a problemas de contaminación visual en la zona, la infraestructura del metro elevado, así como elementos obsoletos y desordenados que impactan la estética del entorno. La contaminación ambiental, con altos niveles de partículas contaminantes, afecta la calidad del aire en la zona circundante, al igual contar con una isla de calor ante las bajas cantidades de areas verdes. La baja densidad de viviendas al contar con una gran mayoría de viviendas unifamiliares, a pesar que dentro del uso de suelo se cataloga como multifamiliar, mantiene una baja densidad poblacional, indicando un uso ineficiente del suelo.

Obstáculos Contaminación visual Baja densidad poblacional

PIPORRO

El proyecto de la remodelación de la plaza, se piensa como parte de un Plan Maestro donde se definen estrategias direccionadas a un mejoramiento y optimización del suelo para impactar en la colonia de una manera positiva y mejorar la calidad de vida de los habitantes y vecinos de la zona.

Este Master plan cuenta con cuatro objetos principales los cuales son:

DENSIFICACIÓN

- Aumentro de densidad habitacional asequible.

- Fachadas activas.

- Escala barrial controlada.

- Incientivo de uso de transporte público

- Aumento de densificación poblacional.

ESPACIO PÚBLICO

- Remodelación de las 4 plazas por etapas:

- Remodelación y diseño de vialidades

- Mejoramiento visual de infraestructura de metro.

- Soterramiento de cableado

CULTURA Y COMUNIDAD

- Actividades culturales, deportivas y de encuentro.

- Fortalecimiento de comunidad vecinal

REGENERACIÓN NATURAL

- Arborización

- Manejo y captación de agua pluvial

- Regeneración de flora y fauna nativa

- Calidad del aire y calor

ARTURO BALVANERA GARZA

El Plan Maestro es una herramientas esenciales para asegurar la continuidad, guiar y gestionar el desarrollo de manera ordenada, sostenible y coherente, promoviendo la calidad de vida de las personas y la preservación del entorno.

Como primera etapa, se interviene el espacio público remodelando la Plaza Eulalio González "Piporro" la cual cuenta ya con un prespuesto incial por parte del presupuesto participativo para su remodelación.

El proyecto incluye la transformación y redistribución de las vialidades, aumentando el tamaño de las banquetas, generando espacios de retención de agua a través de Jardines de lluvia al igual que la reducción del arroyo vial. Se colocará adoquín en los estacionamientos asignados para permitir la infiltración de agua al subsuelo y se colocarán cerca de 900 m2 de pasos pompeyanos que permitirán una mejor conectividad peatonal que armonice la plaza con la cancha de beisbol, y con las cuatro intersecciones de sus vialidades (Matehuala con Múzquiz y Cuatro Ciénegas, Matehuala con Piedras Negras, Piedras Negras con Cuatro Cienegas y Cuatro Ciénegas con Tehuacán) y la estación del metro S. Bolívar.

PIPORRO

La rehabilitación de la plaza el Piporro busca generar un espacio de encuentro, donde la creación de un anfiteatro central se convierta en el corazón cultural de la comunidad, un espacio de apreciación del arte, la naturaleza, y de esparcimiento que refleje la identidad de la comunidad.

BALVANERA GARZA
ARTURO

El rediseño de la plaza incluye la modernización del entorno, eliminando la infraestructura en desuso así como la vegetación excesiva y no local que daña el ecosistema y la percepción de la plaza. Se colocarán nuevos espacios de juegos infantiles que además contarán con baños públicos diseñados con parámetros de seguridad. Se implementará un espacio de activación física en conjunto donde se desempeñarán actividades de calistenia y activación física para adultos mayores. Se instalará un recorrido de 280 metros de vitapista donde se pueda realizar actividad física cardiovascular como trotar o correr. Se considera la implementación de mobiliario urbano que permita a los usuarios permanecer en un entorno cómodo, seguro y de esparcimiento, donde también podrán tener encuentros sociales y poder usar como un espacio para poder almorzar, trabajar y realizar más actividades. Se implementará en el diseño la colocación de un sistema de captación de agua pluvial, que permitirá introducir el flujo externo de agua a la plaza y distribuirla por todo el terreno, permitiendo la regeneración de los beneficios ecosistémicos de una manera sostenible e inteligente. Esta distribución de agua, permitirá a los jardines de lluvia mantenerse en mejores condiciones a lo largo del año y eliminando el gasto del agua potable en la plaza. El agua, la vegetación, los andadores, la cultura, el arte, y la comunidad se unirán en el proyecto central de esta intervención que es la implementación del anfiteatro central que tendrá capacidad natural de hasta 300 espectadores. Estará formado por tres niveles anulares con diámetros de 25, 19, y 13 metros respectivamente, contando con un escenario central de forma circular de 50 m2. La plaza contará con 10 entradas conectadas con sus andadores modernos que permiten a la naturaleza continuar su camino al contar con un diseño que permeable con la vegetación.

El diseño permeable permite difuminar la vegetación con los andadores creando un diseño único, estético y con beneficios en el manejo de flujo e infiltración del agua.

PIPORRO

Socialmente, promueve el bienestar y la cohesión comunitaria al crear espacios culturales y de encuentro; politicamente, fomenta la participación ciudadana a través del Plan Maestro, fortaleciendo el compromiso político; económicamente, atraerá visitantes, generará empleo y apoyará a los negocios locales, impulsando la economía local; y desde una perspectiva ambiental, contribuirá a la restauración del ecosistema local, mejorará la calidad del aire y promoverá la infiltración al subsuelo para preservar el entorno natural y el bienestar de la comunidad en su conjunto.

ARTURO BALVANERA GARZA

El proyecto de remodelación de la Plaza Piporro en Mitras Centro aborda una serie de desafíos urbanos que van desde la falta de espacios culturales y deportivos hasta problemas de infraestructura y medio ambiente. A través de un plan maestro integral, busca revitalizar el área, comenzando con brindar a la comunidad un espacio de calidad para el esparcimiento y la cultura. A pesar de su viabilidad en términos de beneficios sociales y ambientales, el proyecto enfrenta obstáculos económicos que requieren la búsqueda de financiamiento externo. Sin embargo, esta iniciativa promete meiorar significativamente la calidad de vida de los residentes y contribuir al desarrollo sostenible de la zona, lo que justifica su importancia y el esfuerzo necesario para su realización.

Turn static files into dynamic content formats.

Create a flipbook
Issuu converts static files into: digital portfolios, online yearbooks, online catalogs, digital photo albums and more. Sign up and create your flipbook.
Memoria Proyecta 2023 by Luis Fernando Villarreal Ugarte - Issuu