PBDW Architects - Residential and Cultural 2

Page 1

Reaching Back | Designing Forward
Powerhouse Arts
Moise Safra Community Center Hillside Elementary School Riverdale Country School, The Egg
Cooke School & Institute
14 Street Y Atrium
New-York Historical Society
Columbia Grammar and Prep School
Equinox 92nd Street The Educational Alliance
Equinox Hudson Yards
Broadway + 110 St
Powerhouse Arts, Brooklyn, NY

Founded in 1965, PBDW Architects provides creative, sensitive, and innovative responses to a wide range of institutional, commercial, and residential design challenges. We are a collegial, 33-person practice of partners, associates and staff who consistently deliver evocative designs that enrich their contexts and satisfy our clients’ objectives.

Firm Culture

We believe in fostering the growth of the “whole architect” in our practice. PBDW’s size and mix of projects exposes our staff to all aspects of design and construction. Expertise is cultivated through an open exchange of knowledge and further participation in focus groups for various topics such as material research, sustainability, and technology. This interchange underlies an informed curiosity about new design possibilities.

Client-Centered Practice

We consider ourselves to be our clients’ partners. The needs of our clients define the project. Throughout the project we listen, learn, and adapt as required to develop our client’s goals and realize their vision. We maintain a continuous and close collaboration with our clients and provide a consistent project team from start to finish to strengthen the relationships that define a successful partnership.

Diversity, Equity, and Inclusion

We have made significant strides toward creating a more equitable, inclusive, and ultimately diverse practice, based on priorities aligned with our 2021 DEI Strategic Plan. In addition to internal staff-led DEI work groups on topics of design, process, learning, mentoring, and wellness, PBDW’s staff serve on non-profit boards and the Landmarks Preservation Commission and teach at various architecture schools in NYC. Our staff also mentor, write articles, and give lectures, engaging the firm in constant dialogue with others in intersecting fields and keeping the firm in the forefront of knowledge sharing and innovation.

Sustainability

A central part of PBDW’s work ethos is the commitment to developing environmentally responsible projects. PBDW is a signatory to the AIA 2030 Commitment, fostering energy performance improvements as we work towards a goal of carbon-neutral buildings by 2030. We strive to specify environmentally friendly materials as much as possible and take special pride in working on restoration and adaptive reuse projects, valuing the embodied carbon footprint of existing buildings along with their intrinsic historic value.

Reaching Back | Designing Forward

Award Winning Architecture

NY Landmarks Conservancy, Lucy G. Moses Award

MASterworks Award, Urban Amenity

OHNY, Open Cities Award

American Architecture Award Religious Buildings

Preservation League of NYS: 2021 Pillar of New York State

Architizer A+ Awards, Popular Choice Architecture + Sustainability

Architizer A+ Awards, Finalist Architecture + Stone

CTGreen Building Council Award

AIA New York Chapter Design Award

Powerhouse Arts

Powerhouse Arts

Powerhouse Arts

Moise Safra Community Center

Firm Award, PBDW Architects

Williams College, Fellows Hall

Moise Safra Community Center

Williams College, Fellows Hall

Powerhouse Arts

The New 42nd Street Studios

Saginaw Art Museum

New-York Historical Society

Cooper Union, Foundation Building

AIA New York State Design Award

Powerhouse Arts

The New 42nd Street Studios

Reece School

Dana Discovery Center

Cooper Union, Foundation Building

AIA Michigan Design Award

AIA National Honor Award

The Chicago Athenaeum: American Architecture Award

AIA/CAE: Educational Facility Design Award

Saginaw Art Museum

The New 42nd Street Studios

Cooke School & Institute

Saginaw Art Museum

Reece School

Moise Safra Community Center

LearningSpring School

Selected Clients

14th Street Y

462 Broadway

Archdiocese of New York

Brooklyn Conservatory of Music

Central Synagogue

Cooke School & Institute

Columbia Grammar & Prep School

Educational Alliance

Fordham University

Green-Wood

Hotel Beacon

LearningSpring School

L&L Holdings

MacArthur Holdings

Marymount School

Maefield Development

Meringoff Properties

Milstein Properties

Moise Safra Center

New-York Historical Society

Park Avenue Armory

Park Lane Hotel

Powerhouse Arts

Regis High School

Related Companies

Riverdale Country School

Saginaw Art Museum

SJP Properties

St. Joseph’s Seminary

Vassar College

Williams College

Powerhouse Arts Cooke School & Institute Moise Safra Center
PBDW Overview

POWERHOUSE ARTS

BROOKLYN, NEW YORK

Rising from the vestiges of the Brooklyn Rapid Transit power station, Powerhouse Arts is a new 170,000SF art fabrication facility in Gowanus providing workshops for large scale art production in 5 mediums: metal, wood ceramic, textiles and printmaking. PBDW teamed up with Herzog & deMeuron to integrate the station’s majestic but long-abandoned Turbine Hall into a larger complex to serve as a home for the dynamic new institution.

The new complex echoes the original power station in its massing and site usage, maintaining a distinction between modern and historic components while combining them into a harmonious whole. The design retains vestiges of the artistic grittiness and flourish of the Turbine Hall remnant, which had become a renowned exhibition site for graffiti artists before the renovation. The new volume, reminiscent of the station’s original Boiler House, is rendered in cast red concrete that is sympathetic in color and sheen to the Turbine Hall’s brickwork, but distinctly modern in its craft. The interplay between the original, annotated industrial surfaces and the modern addition creates a refreshingly vibrant environment for creating and experiencing art.

AT A GLANCE

Cultural Facility

Adaptive Reuse

Preservation

Industrial Architecture

Waterfront

SERVICES

Preservation

New Construction

Renovation

Executive Architect

HIGHLIGHTS

2023 AIANYS Design Award Winner

2023 MASterwork Award Winner, New Urban Amenity

2023 Open House New York, Open Cities Award Winner

Workshops in 5 Mediums

Grand Hall and Exhibition Hall

Material Library and Administrative Offices

Lecture Hall

Photography by Albert Vecerka/ESTO and PBDW Architects

20 TIMES SQUARE

NEW YORK, NEW YORK

This 42-story development incorporated the renovation of an existing commercial building and construction of approximately 370,000 SF of new space. The client sought to build a multi-use development that included an integrated urban hotel, retail shopping, and an entertainment destination.

PBDW developed a design solution on the tight urban site that is comprised of a 6-story commercial base within the existing building structure, 4 stories for entertainment use, 27 floors of hotel guestrooms and base building mechanical spaces within a tower above the commercial podium. Prominently oriented towards the “bow-tie” of Times Square, the building provides one of the largest, uninterrupted outdoor LED media walls in the world. It is designed to be an immediate global attraction and a new “must-see” New York City destination by offering an unmatched shopping, hospitality, entertainment, and media experience, all within the heart of Times Square.

AT A GLANCE

Mixed-Use Development

Hotel

Retail

Entertainment

SERVICES

Programming

Zoning Analysis

NYC Zoning and Building Approvals

Alteration/New Building Hybrid

Fast-Track Delivery

Design-Assist Process for Façade and MEP Systems

HIGHLIGHTS

452-Key Hotel

60,000 SF of Retail Space

18,000 SF High Definition LED Billboard

Cabaret Theater

5 Separate Food and Beverage Venues

TSX BROADWAY

NEW YORK, NEW YORK

In 2013, PBDW was engaged to design TSX Broadway: a redevelopment project facing Father Duffy Square, at the heart of Times Square. In collaboration with the same development firm of PBDW’s EDITION Times Square project across 47th Street, the “sibling” buildings were envisioned by the owner as a new gateway to the “bow tie” of Times Square where Broadway and Seventh Avenue converge. PBDW prepared multiple design schemes for the existing property and alternative options that included the adjacent landmarked Miller building.

PBDW developed the Master Plan for the entire TSX project featuring retail, entertainment and hospitality programs pivoting around the visionary concept of elevating the iconic Palace Theatre 30 feet above grade to allow for retail use below.

The complicated zoning analysis included the retention of 25% of the existing Double Tree Hotel, built atop the 1912 theater in 1988. The project features one of the largest LED screens in the world, for which Zoning determinations and a revokable consent from the city were required. The design integrated innovative ideas, such as an LED screen which opens to reveal a stage facing the Square, provisions for a new theater lobby on 47th Street with an increased public engagement at street level, and improved front of house and back of house facilities for the theater.

PBDW coordinated the scope of design disciplines in the preliminary documentation stages, including the building envelope and early energy analysis, through late 2016. From this point on, the firm’s role was primarily that of design and preservation architects for the landmarked Palace Theatre. The team worked closely with the theatre lift consultant and engineers on the stabilization, vibration and environmental monitoring required to prepare the theater for the lift. After almost a decade of working on the restoration and new design interventions within the theater’s landmarked interiors, it is scheduled to be completed in the Fall 2023.

PALACE THEATRE

NEW YORK, NEW YORK

The Palace Theatre is a New York City Interior Landmark designed by Kirchoff & Rose and built for vaudeville mogul Martin Beck in 1913. Over its life it has functioned as a vaudeville playhouse, a movie theater and a legitimate Broadway theater. The ongoing project relocated the historic theater 30 feet vertically as part of the TSX Broadway development and restored its significant fabric while bringing the theater into the 21st century. Raising the building adds over 10,000 SF of newly accessible circulation and back-of-house space. The theater is part of the 47-story development that brings together high-end retail, entertainment, and hospitality programming. From 2013 through 2017, PBDW was the architect for the entire development, designing and obtaining all regulatory approvals and preparing construction documents up to design development phase.

The new entrance to the theater is being moved to 47th Street, with a new 80-foot marquee. Patrons will ascend by escalator to a new lobby at the orchestra level and enter the auditorium through its original doors. The stage house is being rebuilt, including new gridiron, rigging, stage lifts, orchestra pit and trap room with elevators. The restoration includes the elaborate decorative plaster, new custom light fixtures, careful retrofitting of MEP and state-of-the-art theatrical equipment, and a finish scheme inspired by the theater’s early appearance.

This transformation will elevate the Palace physically, functionally, and experientially, while restoring its original grandeur.

AT A GLANCE

Theater Restoration

New Stage House and Back-of-House Construction

Vertically Raising Theater 30’

SERVICES

Programming

Restoration

Renovation

HIGHLIGHTS

Restoration of the Landmarked Interior

Reconstruction of the Stage House and Back-of-House

New Lobby and Circulation

PARK LANE HOTEL

NEW YORK, NEW YORK

Originally completed in 1971, the hotel, designed by Emory Roth & Sons for the prominent NYC developer Harry Helmsley, was considered a modern addition to the luxury hotel district along Central Park South. PBDW was hired as the architect for the complete interior renovation of the existing 630 guestrooms along with all the public amenity spaces.

The existing concessions at the ground floor lobby were transformed into a breakfast bar and evening cocktail area. The original reception area with offices was completely opened to make room for a concierge desk and a more welcoming front desk experience. The second-floor amenity offerings and event spaces were re-designed and a generous access to a previously unused roof terrace from the main ballroom was created for more public outdoor space.

A rooftop pool room, previously connected to the private Helmsley penthouse apartment, was transformed into a public bar/lounge with an outdoor terrace overlooking Central Park. An ADA-compliant elevator and new egress stair created the possibility for these spaces to be publicly accessible.

All the guestrooms, including two Presidential Suites on the top two floors, were renovated and some guestrooms were combined to increase the number of suite types throughout the building.

AT A GLANCE

Hospitality

Food and beverage

SERVICES

Interior renovation and alteration

Phased regulatory filings and approvals

HIGHLIGHTS

630 guestroom renovation and combination

Improved reception and lobby experience

Renovated public amenity spaces

Full ADA compliance throughout the building

2022 AHEAD Americas, Winner in the Hotel Renovation & Restoration category

462 BROADWAY

NEW YORK, NEW YORK

Erected in 1880 with frontage on Broadway, Grand, and Crosby Streets, 462 Broadway is the largest fully-clad cast iron structure within the SoHo-Cast Iron Historic District. PBDW was retained to restore the entire façade, including all 400 linear feet of ground level storefront. We replaced 11’ tall double-hung wood windows, repainted the entire six-story elevation in the original color, and restored more than 1,550 of the original 2,000 cast iron pieces that made up the 108 Corinthian capitals.

All work is based on our Landmarks approved Master Plan, which allows different layouts while retaining the building’s historic character. After PBDW’s restoration, 462 Broadway has regained its original grandeur as one of the most impressive buildings in the SoHo-Cast Iron Historic District. Our restoration was recognized with a Restoration Award from the Municipal Art Society, a Stanford White Award from the Institute for Classical Architecture & Art, and a Lucy Moses Award from the New York Landmarks Conservancy.

AT A GLANCE

Historic Restoration

Commercial Structure

Cast Iron Building

SERVICES

Historic Research and Paint Analysis

Façade Restoration

Master Plan for Future Interventions

Landmarks Preservation Commission Approvals

HIGHLIGHTS

Cast Iron Capitals

2-Color Paint Scheme

Monumental Storefronts

Residential Projects

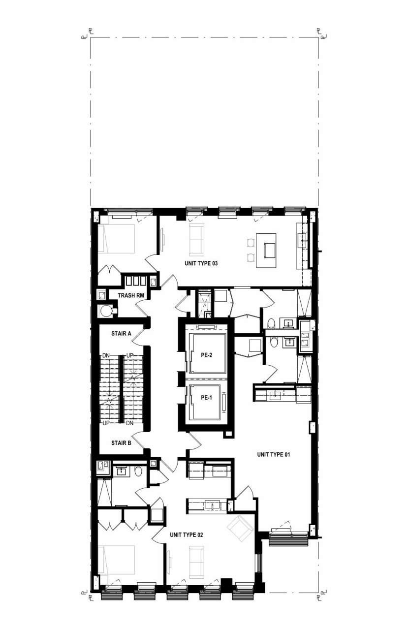
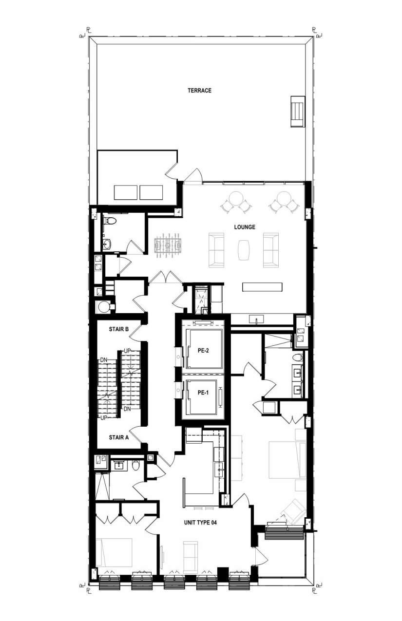
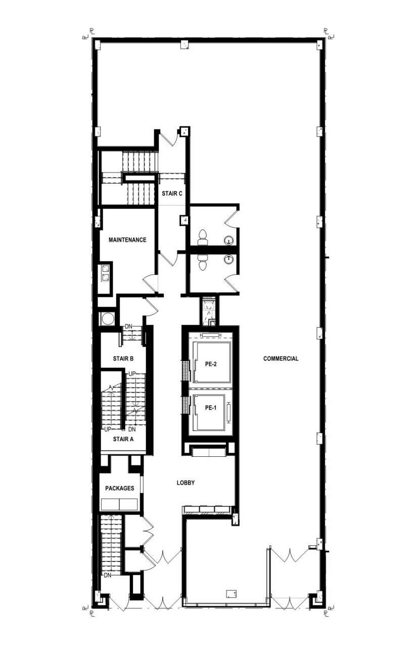
711 WEST END AVE

NEW YORK, NEW YORK

Located within the Riverside-West End Historic District Extension II, 306 West 95th Street residential development consists of a new 125,000 SF residential building constructed above an existing 148,000 SF seven-story residential building. Nine additional floors with 64 loft-like luxury apartments will take advantage of the city and river views. The apartments have 10’ ceilings and range from 1,215 SF two-bedroom units to 3,900 SF five-bedroom units.

A series of articulated setbacks in the form of the building create opportunities for private residential terraces in all directions with landscaping features throughout. The new building will rest on a large 16’ deep steel truss transfer table with external columns that carry the new building loads down to the foundation. The floor level located within the steel transfer trusses will house residential amenities including social spaces, wellness areas, mechanical rooms, and egress transfer corridors and stairways.

AT A GLANCE

New Construction

Multi-Family Residential

9-Story Addition Over Occupied Existing Building

SERVICES

Programming

Architectural Design

Zoning Analysis

NYC Zoning and Building Approvals

HIGHLIGHTS

64 Loft-Like Apartments

Social and Wellness Amenity Spaces

Structurally-Independent New Addition

1st NYC DOB-Approved Structure of its Kind

BROADWAY + 110

NEW YORK, NEW YORK

PBDW was given the opportunity to design a high-end residential condominium building in Morningside Heights on the corner of Broadway and 110th Street. The client sought a compelling façade design within the constraints of an as-of-right zoning envelope that would accommodate residential, retail, and parking garage functions at ground level. One of the key challenges was the shallow and substandard lot depth. The project also posed geotechnical challenges, requiring deep rock excavation for the parking garage immediately adjacent to the Broadway subway station and tunnel.

What emerged from these constraints was a condominium complex that introduced 98 new dwelling units into a sunny corner with views of Riverside Park and the Hudson River. Our design embraced the as-of-right zoning form using a precast concrete expression on the lower levels and curtainwall expression on the set back upper levels. The design is knitted together using concrete balconies on the curtainwall areas and window-wall and other metal details in the precast concrete areas.

AT A GLANCE

New Construction

Multi-Family Residential

Ground-Floor Retail

SERVICES

Architectural Design

Interior Design

Zoning Analysis

NYC Zoning and Building Approvals

Fast-Track Delivery

HIGHLIGHTS

98 Condominium Units

Subgrade Levels for Retail and Parking

47 EAST 91ST STREET

NEW YORK, NEW YORK

This ten-story residential building at 47 East 91st Street in the Expanded Carnegie Hill Historic District contains seven full-floor apartments, a duplex apartment with a penthouse, and the Citibank branch that previously occupied the site. Our design allowed for active commercial use below the new structure during the construction process through a long-span steel transfer system.

The exterior façade features extensive use of narrow sight line steel casement windows and rusticated limestone at the building base. The building is sized and proportioned to create a harmonious streetscape with the row houses, mansions, and taller apartment buildings on the avenue that are typical of the Carnegie Hill Historic District. At the same time it marks, honors and completes the north side of 91st Street where it crosses Madison Avenue, among the most distinguished streetscapes in New York City.

AT A GLANCE

New Construction

Residential

Historic District

SERVICES

Architectural Design Landmarks Preservation Commission Approval

HIGHLIGHTS

Seven Full-Floor Apartments Duplex Penthouse

Cultural Projects

MOISE SAFRA CENTER

NEW YORK, NEW YORK

The Moise Safra Center is a new institution organized around the need for a place to worship and celebrate, as well as to nurture its members. Drawing from our deep understanding of similar institutions, PBDW helped guide the Center to develop a building that would act as a second home for the Jewish community it serves, as well as unite a broad range of programming inclusive of both community center and religious functions. We were also challenged to create distinct identities for the religious and community spaces that would ensure that the building, as a whole, remained cohesive.

The 65,000 SF building is packed with community and religious spaces in a vertical campus spread over 14 floors. The program includes a wellness center and pool, classrooms, and flexible spaces designed to adapt to varying program needs. Religious spaces include a double-height sanctuary space and a smaller daily sanctuary, a generous library/study, and offices for the rabbinical staff. We located banquet rooms on the building’s upper floors with an outdoor terrace. This floor’s fully retractable glass wall allows events to flow seamlessly from interior to exterior.

AT A GLANCE

Vertical Campus

New Construction

Religious and Community Functions

SERVICES

Programming

Space Planning

Architectural Design

HIGHLIGHTS

Double Height Formal Synagogue

100-Seat Daily Synagogue

Half Basketball Court

4-Lane Pool

Dining Facilities with Outdoor Terrace

2021 American Architecture Award, Religious Buildings category

2021 Architizer A+ Awards, Finalist in the Architecture + Stone category

NEW-YORK HISTORICAL SOCIETY

NEW YORK, NEW YORK

Established in 1804, the New-York Historical Society is New York’s first museum and one of the city’s premier cultural institutions. Working with the Society since 2005, PBDW helped transform the closed-off and reserved building into one that invites the public through its architecture and programming. The initial project, following the creation of a master plan, included renovations to the Central Park West and 77th Street entrances, and redesign of the entrance gallery, auditorium and children’s gallery.

In 2013, PBDW renovated the Society’s fourth floor galleries. The project included the first-of-its-kind gallery dedicated to the role of women in American history, the renovation of the Luce Center galleries, a new education technology center, a gallery lounge and a new gallery to exhibit the Society’s collection of Tiffany lamps, designed in coordination with Eva Jiřičná Architects.

Completed in 2020, the Meet the Presidents Gallery includes a recreation of the White House Oval Office. PBDW researched and designed the recreation, including replica furniture, fabrics and carpet.

AT A GLANCE

Exterior and Interior Renovation

New Exhibit Galleries

Upgraded Infrastructure

Improved Accessibility

SERVICES

Programming

Master Planning

Renovation

Accessibility

HIGHLIGHTS

Renovated Entrance, Galleries and Auditorium

New Exhibit Spaces

Upgraded Museum Infrastructure

Accessible Entrance

PARK AVENUE ARMORY

NEW YORK, NEW YORK

Built in 1880 as both a military and a social club, the Seventh Regiment Armory houses a rare collection of significant period rooms designed by the most prominent artists and designers of their time. As a design counterpoint, the soaring, industrialscaled Drill Hall celebrates the structural innovations of the era. Since 2006, PBDW has worked closely with the Park Avenue Armory Conservancy (PAA) and Herzog & de Meuron to renovate and upgrade the building for contemporary use while showcasing a well-crafted balance between the patina of time and the evolution of the building which makes its history so unique.

From the outset, PBDW applied an investigative approach to develop an intimate understanding of the building’s cultural and construction history. This informs each element of the renovation, from the integration of modern infrastructure to the restoration of decorative paint schemes.

We have worked collaboratively with the PAA to define and refine each new project phase to best meet their evolving programming objectives as they have grown from a small group of concerned visionaries into one of New York’s most vibrant cultural institutions. The multi-phased renovation has transformed the Armory’s historic environs into a world-class arts and performance venue.

AT A GLANCE

Landmark Restoration

Visual and Performing Arts Venue

LEED Silver Certified

SERVICES

Historic Preservation

Renovation

Phased Construction

Timed Egress Analysis

Building Systems, Code Compliance, and Accessibility Upgrades

HIGHLIGHTS

55,000 SF Clear-Span Drill Hall

Historically Important Period Interiors

Women’s Shelter Facilities, Administrative Offices, and Rehearsal Space

On the Boards

34TH STREET RESIDENTIAL TOWER

NEW YORK, NEW YORK

Currently on the boards, this 15-story, 39 residential rental unit new building will sit adjacent to the Midtown Tunnel entrance on 34th Street. The 40ft x 100ft lot presented a challenge to the development as the NYC zoning “sliver law” limits the height of new buildings on lots with less than a 45ft width, which, as-of-right design would cap the building to 10 stories. Upon our hiring, we challenged the law through the ZRD1 review process and discovered an exception which allowed the building to contain 5 additional stories, adding 15 more residential units to the project.

The limited width of the site demanded a very efficient core and apartment layout, utilizing every inch available. The bulk of the apartment units will be studios and 1-bedrooms with 2-bedroom units at the top floor and along the 2nd floor street façade. The ground floor will contain a rental commercial space. Outdoor recreation spaces will be provided at the 2nd floor setback roof and on the main roof.

Ground Floor Plan
Second Floor Plan
Typical Floor Plan

OFFICE TO RESIDENTIAL CONVERSION

NEW YORK, NEW YORK

NEW YORK ATHLETIC CLUB SOLARIUM

NEW YORK, NEW YORK

144 GREENPOINT

BROOKLYN, NEW YORK

Construction begins this fall on 144 Greenpoint, a com-mercial project within the Greenpoint Historic District, designed by PBDW Architects for Mac-Arthur Holdings. The anticipated completion date is spring 2025.

The mixed retail and office development transforms a much-altered 19th-century structure—originally a theater, more recently a beloved Polish banquet hall, and vacant since 2019—distinguished by a generous 80-foot-wide street frontage. Since no original architectural fea-tures remain on the derelict façade, PBDW is replacing it with a new one while preserving the building’s footprint, internal structure and, wherever possible, the character and materials of the loftlike interior spaces, including original masonry walls, wood joists, cast-iron columns, and 11-to-15-foothigh ceilings.

As approved by the Landmarks Preservation Commission, 144 Greenpoint will comprise three stories plus a setback fourth-floor penthouse, with expansive paved and planted terraces on the top three levels—a total of 27,185 rentable square feet and 4,540 square feet of outdoor space. Substantial columns will divide the building’s light-gray brick facade into four 20-foot-wide, aluminum-framed bays that at street-level define three storefronts and an entrance lobby, all with aluminum canopies supporting signage. A new metal cornice ensures that the single-story metal-and-glass curtain-wall penthouse will not be visible from the street. “In its scale, materi-als palette, and crisply articulated exterior detailing, the development aligns with the character and rhythm of the surrounding historic streetscape, which encompasses a variety of 1-to-4-story mixed-use, commercial, and residential buildings,” notes PBDW partner Leonard Leung, AIA.

When complete, 144 Greenpoint will provide storefront space for restaurant, market, retail, or similar businesses. Accessed by a new elevator, the higher floors are designed for commercial tenants, who will enjoy plentiful natural light from floor-toceiling windows on the front and rear of the building, providing a sense of well-being along with ecological advantages. Additionally, the structure will conform to [the latest/2020] energy code standards through the use of high-performance glazing, heat pumps, advanced mechanical systems, and well-insulated walls and roof.

14TH STREET Y

NEW YORK, NEW YORK

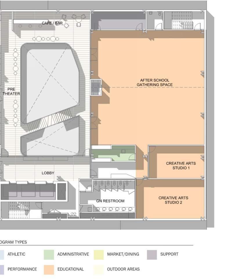
The 14th Street Y is a multi-generational community center in New York City. Their vision for the new Y is to serve simultaneously as a “town square” for the East Village community as well as provide a cutting-edge cultural destination that explores four programmatic pillars – arts and culture, education, health and wellness, and civic engagement.

Since 2005, PBDW has been working with the 14th Street Y to prepare their current facilities for future growth through various adaptive reuse schemes. The comprehensive space planning articulated in 2017 resulted in a design that is inspiring, welcoming, spacious, modern, sustainable, and reflective of its community. Programming includes a lobby with café, market and gathering areas, theater and arts education center, preschool and parenting center, fitness and wellness center, community event space, rooftop recreation and gathering spaces. The complex programming is organized around a 7-story atrium created in the middle of the existing building. This symbolic “town square” floods the building with natural light, activating the “heart” of the complex while providing a comfortable place for community members to gather and socialize.

AT A GLANCE

Community Center, Preschool, and Parenting Center

Fitness and Wellness Center with Indoor and Outdoor Gymnasiums

Performance and Black Box Theaters

Community Events Space and Roof Terrace

SERVICES

Feasibility, Programming, Concept Studies, Masterplanning

Zoning

New Construction

Interior Design

HIGHLIGHTS

7-Story Central Atrium

Symbolic “Town Square”

Cutting Edge Cultural Destination

Lobby for Cafe, Market, and Gathering

Platt Byard Dovell White Architects LLP 49 West 37th Street, 4th Floor, New York, NY 10018 info@pbdw.com | 212-691-2440 | www.pbdw.com © PBDW Architects 2023 - All Rights Reserved

Turn static files into dynamic content formats.

Create a flipbook
Issuu converts static files into: digital portfolios, online yearbooks, online catalogs, digital photo albums and more. Sign up and create your flipbook.