PRÁCTICA PROFESIONAL

![]()

Julián Mclean Arquitectos
Tutor interno: Julián David Gómez
Tutor externo: Mateo Osorio
2024
PERFIL PROFESIONAL
Hoja de vida estudiante
Misión - Visión - Lugar de práctica

CONCURSO TINY HOUSE Saguaro House

Proyectos vivienda

Proyectos vivienda
APRENDIZAJES
Conclusiones - rúbricas


EDUCACIÓN
IDIOMAS
Universidad Pontificia Bolivariana Español
Facultad de Arquitectura (FAUPB) Promedio: 4,34 Medellín, Colombia.
Colegio El Carmelo
Educación Media Sabaneta
I. E Santo Ángel
Educación Básica Guayabal
SOFTWARE Cad / Bim
AutoCAD (Alto) SketchUp (Alto) Revit (Básico)
Adobe CC
Photoshop Indesign
Render
V-Ray Lumion Enscape
MS Office
Word Powerpoint Excel (Básico)
Email mariap.montoyaa@upb.edu.co / paulinaarenas22@hotmail.com
Lengua Materna
Inglés
B2
Universidad Pontificia Bolivariana Noviembre 2023.
PERFIL Medellín, Colombia.
Estudiante de décimo semestre de arquitectura, apasionada por retos creativos que vinculen la sensibilidad por lo social y ambiental. Con capacidad para aprender, trabajar de manera colaborativa, abierta a los cambios y a proponer soluciones creativas. Con alta habilidad y sensibilidad para desarrollar, representar y comunicar ideas, con sentido crítico para analizar impactos en los diseños de manera integral.
INTRODUCCIÓN
Este portafolio se estructura en cuatro momentos. Inicia con la presentación del perfil profesional a través de la hoja de vida, seguido de una introducción que contiene la información general sobre la oficina donde se realizaron las prácticas y las tareas principales cumplidas. La tercera sección abarca los proyectos en que se apoyó, junto con los aportes a detalle en cada uno y evidencia gráfica. Finalmente, el último momento incluye las rúbricas de calificación y una conclusión de los aprendizajes durante los meses de práctica.
DISTINCIONES
Mención de honor Investigación en arquitectura
Trabajo de grado
Por: Experiencia autobriográfica del espacio.
INTERESES/CUALIDADES
Pasión por las artes baile, técnica vocal, diseño Idiomas Italiano, francés, inglés. Aprender nuevos software mejoramiento en representación
Cualidades trabajo en equipo, habilidades comunicativas, liderazgo, creatividad, compromiso y orientación al logro.
EXPERIENCIA
Julian Mclean Arquitectos / Práctica Profesional (2024)
Apoyo dibujo técnico, modelado y gráficos
REFERENCIAS
Maryori Arenas Uniban
Cargo: Líder de Desarrollo del Talento Humano Cel: +57 3173916794
Yuli Muñoz Bancolombia
Cargo: Gerente de Sucursal Cel: +57 3175881580
PERFIL DEL ARQUITECTO
Arquitectura UPB
Comprometido con las transformaciones sociales y humanas de su tiempo, el arquitecto de la Universidad Pontificia Bolivariana es un profesional integral reflexivo, creativo y ético; con capacidades para proyectar, comunicar, gestionar y construir espacio arquitectónicos y urbanos de diversas escalas, en grupos de trabajo interdisciplinar, interpretando críticamente las dimensiones propias de cada contexto. Conocedor de la historia y de las técnicas de su profesión, articula por medio del proyecto arquitectónico las tecnologías locales, las condiciones urbanas y los criterios decalidad de la edificación, según las normas de la profesión, la sostenibilidad y el medio ambiente.
MISIÓN
Arquitectura UPB
La Universidad Pontificia Bolivariana tiene por misión la formación integral de las personas que la constituyen, mediante la evangelización de la cultura, en la búsqueda constante de la verdad, con procesos de docencia, investigación y servicios, reafirmando los valores del humanismo cristiano, para el bien de la sociedad
VISIÓN
Arquitectura UPB
a Universidad Pontificia Bolivariana tiene como visión, ser una institución católica de excelencia educativa en la formación integral de las personas con liderazgo ético, científico, empresarial, académico y social al servicio del país.
ARCHITECT PROFILE
MISION


















Committed to the social and human transformations of its time, the architect from the Pontifical Bolivarian University is a comprehensive, reflective, creative, and ethical professional; capable of designing, communicating, managing, and constructing architectural and urban spaces of various scales within interdisciplinary workgroups, critically interpreting the unique dimensions of each context. With a deep understanding of the history and techniques of the profession, they integrate local technologies, urban conditions, and building quality criteria through architectural projects, adhering to professional standards, sustainability, and environmental considerations
The Pontifical Bolivarian University’s mission is to provide comprehensive education to its members, through the evangelization of culture, in constant pursuit of truth, through teaching, research, and services, reaffirming the values of Christian humanism for the betterment of society.
The Pontifical Bolivarian University’s vision is to be a Catholic institution of educational excellence in the comprehensive formation of individuals with ethical, scientific, entrepreneurial, academic, and social leadership for the service of the country.

JULIAN MC LEAN Arquitectos
La oficina de diseño Julián McLean Arquitectos y Entable se compone de tres divisiones interconectadas que abarcan diversos aspectos del diseño y la construcción. Entable se especializa en la creación de mobiliario, combinando tradición y tecnología para ofrecer soluciones personalizadas de alta calidad. Enpie se encarga de la construcción y la gestión de obras, asegurando la correcta ejecución de los proyectos en el terreno. Por su parte, Julián McLean Arquitectos lidera el equipo de diseño, ideando y desarrollando proyectos desde su concepción inicial hasta la implementación del mobiliario interior. Juntas, estas divisiones trabajan de manera integral para brindar un enfoque completo y coherente en cada proyecto, desde el diseño conceptual hasta la ejecución final.

TINY HOUSE
Sahuaro House INVESTIGACIÓN
El concurso desafía a los participantes a repensar radicalmente la organización espacial, a introducir una estética distintiva y a implementar tecnologías y materiales de vanguardia. El objetivo final es impulsar la microcasa desde una mera forma arquitectónica a un género revolucionario por derecho propio. No existen restricciones geográficas en cuanto a los emplazamientos hipotéticos para estos diseños, lo que permite una creatividad ilimitada. Ya sea urbano o rural, cualquier lugar del mundo puede ser el escenario de estas microcasas. Se dará preferencia a los diseños que prioricen la sostenibilidad y presenten soluciones a los desafíos económicos, sociales y culturales mediante métodos arquitectónicos novedosos.

En la fase inicial, mi papel fue revisar los requisitos del concurso para comprender a fondo el encargo y llevar a cabo una investigación sobre el entorno y sobre ejemplos arquitectónicos y gráficos. Durante esta etapa, era esencial determinar las directrices fundamentales que el equipo deseaba para el diseño y el concepto general del tipo de edificio a proponer, en este caso, una tiny house situada en Slab City, California, por elección del equipo debido al desafío social, humano y arquitectónico que representaba. Esta decisión se tomó a través de sesiones diarias en los talleres de diseño.


ELEMENTOS GRÁFICOS
Todo el diseño de la tiny house se realizó de la mano del equipo de arquitectos de la oficina, mi apoyo se enfocó en la elaboración de los esquemas en su totalidad, se utilizaron softwares como sketchup, autocad, photoshop y enscape. La idea principal era lograr un proyecto en el cual se evidenciarán temas fundamentales del concurso como: la modularidad, la sostenibilidad, adaptabilidad y el uso de materiales más sostenibles como las empresas asociadas al concurso.
ELEMENTOS GRÁFICOS
Las reuniones con el equipo me permitían tener claridad de a donde se quería llegar desde la idea hasta la representación de cada esquema que formarían parte de las memorias. En cada gráfico se buscaba dar solución a una problematica en especifico logrando de esta manera abordar desde lo micro hasta lo macro cada situación u obstáculo que podría presentar el lugar en donde se realizó la tiny house. Logrando superar desafios desde el diseño, el clima y la vida de la comunidad de Slab City
Por último, poder participar so me ofreció la oportunidad creación de un proyecto cómo se originan y evolucionan un equipo de diseño ciones diferentes a una conocimientos sobre la de software, y la importancia ideas desde los textos,

participar en todas las fases del concuroportunidad de entender el proceso de proyecto como lo es una tiny house, entender evolucionan las ideas, especialmente en en el cual todos tienes visiones y soluuna misma problemática. También adquirí la visualización de cada gráfico, el uso importancia de expresar de manera clara las hasta cada esquema explicativo.


CASA CASCABELES
APRENDIZAJES
En gran parte de la práctica profesional se me dió la oportunidad de diseñar mobiliario interior de algunos proyectos, esto me permitió entender como cada cliente es un mundo totalmente diferente y como un estilo interior es único y permite que la imaginación cree espacios irrepetibles, además, logré entender de esta manera como trabaja la oficina, cuales con sus preferencias, en diseño, en materialidades y en estilos. Asimismo, el trabajar en equipo me permitió ver desde una perspectiva más amplia todo lo que conlleva la creación de una casa.

APRENDIZAJES
CASA TOSCANA
Gracias a estos proyectos aprendí mucho sobre el manejo de sketchup, tanto el flujo de trabajo, como el manejo de la información y el modelado. Entender todo lo que conlleva el desarrollo de un proyecto que va a ser construido, el proceso normativo y creativo, como se debe realizar un estudio previo de cada cliente para entender su gusto, sus inquietudes y sus sueños y deseos plasmados en su hogar.





CASA YERBABUENA

ESQUEMA - MODELO
Casa cascabeles fue un encargo en el cual se pidió realizar el diseño de la propuesta para el cliente, en este caso mi apoyo se basó en el diseño de la cocina, la sala de estar, las escaleras, y la habitación principal con su vestier y baño, para este diseño se tuvo en cuenta el estilo Wabi sabi, este destaca la belleza en la imperfección y la modestia, creando ambientes acogedores y serenos mediante el uso de materiales naturales, formas orgánicas y una paleta de colores neutros. Finalmente, vale destacar que todo el modelado se realizó en el software Sketchup.


ESQUEMA - MODELO
Para este proyecto, estuve apoyando en el diseño de la escalera principal de la casa, la cual tiene por estilo principal el repúblicano, este estilo a menudo incorpora elementos como molduras decorativas, cortinas pesadas y accesorios de lujo, creando un ambiente sofisticado y ordenado. Por tal motivo, para el diseño de la escalera se tuvo presente cada uno de estos elementos logrando transmitir al cliente ese ambiente elegante pero a su vez moderno, incorporando siempre esa relación con la naturaleza.
ESQUEMA - MODELO
En Casa Yerbabuena el estilo interior que predomina es el minimalista, por ello en todo su diseño se ve una sutileza, limpieza y orden en sus espacios, sin dejar de lado lo estético y moderno. Mi apoyo en este proyecto fue en el diseño de las habitaciónes, los baños y vestieres de cada una, en ellas busqué darles un toque de simpleza logrando esto con la mateirliadad, la cual en este caso fue la madera y el concreto, cada elemento buscaba generar una armonía desde muros, hasta el cielo, el piso y el mobiliario.






















Detalles
APRENDIZAJES - LA PORTE
Este proyecto “La porte” es un hotel que actualmente se encuentra en fase de construcción y está ubicado en la vía las palmas, para este encargo mi apoyo estuvo enfocado en los detalles de cada mobiliario del restaurante, estos planos fueron desarrollados en revit, incluso, este es el único proyecto de la oficina que se realiza en este software, pues, todos los demás se planean y ejecuctan desde autocad y sketchup. Por este motivo, este fue un proyecto único pues me permitió desarrollar mis habilidades en revit, permitiendome ahorrar tiempos y ser más precisos.


APRENDIZAJES - LA PORTE
Es importante tener en cuenta que gracias a estos proyectos (La porte, el guadual, toscana, y otros más) pude comprender todos los aspectos del desarrollo de un proyecto de arquitectura, incluyendo los requisitos normativos y la colaboración con diferentes disciplinas como la ingeniería estructural, la topografía y el análisis de suelos. Esto me ha proporcionado una visión integral y realista de lo que implica una obra, abarcando desde su concepción inicial hasta su construcción y entrega final.


































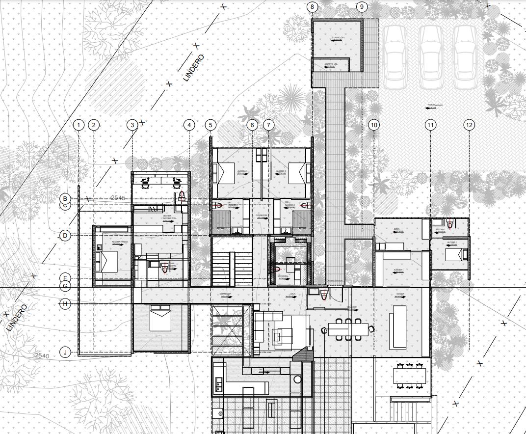
CASA EL GUADUAL
El encargo en este proyecto ubicado en el Retiro, antioquia, fue realizar una vivienda de un solo nivel con un estilo sobrio, industrial, y para ello se le hizo al cliente una propesta de diseño la cual incluía el desarrollo de toda la planimetría que sería entregada a ellos y a licencia para su aprobación, en este caso este paquete de planos estuvo a cargo mío y para ello realicé en autocad con ayuda del modelo de sketchup las plantas de localización, cubiertas, primer nivel, con sus respectivas secciones y fachadas
















































































Este proyecto ha tenido varias fases de las cuales he participado, pues, inicialmente apoyé en la elaboración de la planimetría, especialmente de las fachadas en autocad y posteriormente trabajé el proyecto desde cero en revit, con el prop+osito de crear allí todos los detalles constructivos y sacar cantidades de obra para realizar el prepuesto para los clientes. Por ello, este proyecto se trabajo en paralelo en varios software como skethup, autocad y revit, permitiendo de esta manera que el proyecto me permitiría entender desde varios frentes todo lo que se necesita para su construcción.







































CONCLUSIONES: Aprendizajes
Mi experiencia en la oficina de diseño Julian McLean Arquitectos ha sido profundamente enriquecedora, tanto en el ámbito profesional como en el personal. Durante mi práctica, tuve la oportunidad de fortalecer mis habilidades en diseño, comunicación y trabajo en equipo. Asimismo, estuve inmersa en todas las fases de desarrollo de los proyectos desde el diseño inicial hasta la construcción del mobiliario interior, lo que me permitió comprender a fondo el proceso integral implica cada encargo arquitectónico. Aprendí que cada proyecto es único y refleja el estilo particular de cada cliente, y que es fundamental seguir un proceso metódico para alcanzar resultados exitosos.

Las visitas a las obras me ofrecieron una perspectiva práctica del campo de la arquitectura y me ayudaron a perfeccionar el uso de herramientas como AutoCAD, SketchUp y Revit. Además, la oportunidad de participar en un concurso internacional me permitió aplicar y demostrar las habilidades adquiridas tanto en mi formación universitaria como en los talleres de proyecto. En conjunto, esta experiencia ha sido crucial para mi desarrollo profesional y personal, consolidando mi capacidad para abordar y ejecutar proyectos arquitectónicos con una perspectiva integral y bien fundamentada.



