

![]()


Varaklassitsismist historitsismini kolme hoonenäite põhjal
PALLAS 2024
Rosett ja selle muutumine interjööri dekooris
Koostajad: Kõrgema Kunstikooli Pallas tudengid (loetletud eessõna lõpus)
Juhendajad: Heli Tuksam, Riina Padar
Toimetaja: Riina Padar
Konsultant: Kurmo Konsa
Fotod: Liisa Perend, Malev Toom, Indrek Aavik, Toomas Aasmaa, Heli Tuksam, Sille Annuk (Scanpix)
Joonised: Geterly Sepp
Küljendus ja kujundus: Maarja Roosi
ISBN 978-9949-7421-6-5 (köites)
Kõrgem Kunstikool Pallas 2024
Heli Tuksam



Rosett on ruumi koondumispunkt ja samas vaatenurkade suunaja. Keskse dekoorielemendina võib roseti kaudu iseloomustada ajastut ja interjööri kujundustrende. Selles raamatus käsitletakse rosetti kui laedekoori olulist elementi, mis on nii kaunistus kui ka sümbol, millele on tihti omistatud õnne toov tähendus. Seda koondavat detaili on kasutatud läbi kõikide stiilide, kuid oma kandvat rolli mängib element laedekooris klassitsismi ja historitsismi perioodil, mida on ka siinses ülevaates käsitletud.
Ülevaate aluseks on kahe mõisa ja ühe aadlielamu interjöörid, millega on olnud pikaajaline koostöö Kõrgema Kunstikooliga Pallas läbi restaureerimistegevuse. Tartu Kunstikoolis alustati restauraatorite koolitamist 1990. aastate alguses kooli direktor Krista Roosi eestvedamisel. 2000. aastal läks kool üle kõrgharidust andvaks õppeasutuseks. Seega on tänaseks Tartus õpetatud noori restauraatoreid ligi kolmkümmend aastat, mille jooksul
on olnud võimalus kaasa aidata mitme olulise arhitektuurimälestise säilitamisele.
Kolm objekti on siia valitud ka selle järgi, et nende konserveerimis-restaureerimiskontseptsioonid on erinevad ja eriilmelised. Ajaliselt kõige vanem on Kiltsi mõis Lääne-Virumaal. Meieni jõudnud kujundus pärineb omaniku von Benckendorffi aegadest (18. sajandi lõpp), mida iseloomustab antiigiilmeline varaklassitsism. Pidulikku teist korrust ilmestavad rikkalikud maalingud, mille eeskujude skaala on lai: alates Domus Aureale omastest detailidest kuni antiikse paradiisiaiani lõunatornis (foto 1). Lisaks on näha mõjutusi Robert Adami ning varaklassitsistlike Prantsuse arhitektide loomingust.
Lõunatorni ees asub pompeilikult jõulise ookri värvi ruum, mille seinte tahvlite kaarealuseid pindu katavad antiiksetelt vaasidelt tuttavad figuurid. Sarnaseid vaasimaalile omaseid võtteid võime kohata veel Järvamaal asuva Aruküla mõisa supraportidel ja ka Purila mõisa
1. Kiltsi mõisa lõunatorni maalingud. Foto: Toomas Aasmaa


friisil. Kiltsi lõunatorni eesruumi lagi järgib pompeilikus stiilis lahendust, mille võtab kokku oktogoonil põhineva kompositsiooniga rosett. Sarnast käsitlust näeme ka lõunatorni roseti puhul. Põhjatorni antiikmotiividega rosett on teiseilmeline nagu ka selle ees oleva salongi lagi. Juba selle mõisa puhul näeme moe muutumist: pool sajandit hiljem valitseb ruumides hoopis teine meeleolu. Värvigamma muutub märksa vaoshoitumaks ja ornamendid kujundatakse peamiselt grisaille ,i tehnikas. Seda muutust kajastab hästi põhjatorni laerosett. Restaureerimisel eksponeeriti mõlemad kihistused, kuigi hilisem joonis oli säilinud vaid aimatavana. Samuti on mitmes ruumis eksponeeritud akantusfriisi fragmendid. Saalis teostati rekonstruktsioon terve perimeetri ulatuses (foto 2). Friisi iseloomustab katkev joon, mis on ampiirstiilile tunnuslik. Sarnaseid akantusfriise võib kohata piirkonnas veel Koigi ja Vääna mõisas.
Klassitsismi perioodi maalingud teostati liimvärvidega. Mustri pealekandmiseks kasutati peamiselt kahte meetodit: alusjoonis kanti pinnale läbi trafareti või tekitati jäljend pauseerimismeetodil. Motiivid viimistleti käsitsi üle maalides, lisades ornamentidele valgust ja varju, muutes
2. Kiltsi mõisa saali akantusfriisi rekonstruktsioon. Foto: Liisa Perend
nii kujundid ruumiliseks. Nii võib kokkuvõtvalt öelda, et Kiltsi mõisa maalinguid iseloomustab varaklassitsism ja ampiirstiil. Kogu restaureerimiskontseptsioon lähtus ajalooliste ruumide tundlikust taasloomisest ja ajaloolise suursugususe taastamisest.
Järgmise olulise mõisahoonena vaatleme Esna mõisa peahoonet. Mõis pärineb Rootsi ajast ja kindlasti asus siin hoone juba barokiperioodil. Sellest ajast on paaris ruumis säilinud talamaalingud. Meieni jõudnud interjööride kujundamine toimus samuti klassitsismi perioodil. 19. sajandi algusest pärinevad ruumide kirjeldused uuest ilmest, kuid käegakatsutavat on säilinud vähe: peamiselt ruumilahendus ja uhked pika anfilaadina avanevad topeltuksed. Klassitsistlikku liimvärvimaalingut võib ainult oletada lagede hilisemate, rikkalike historitsistlike maalingute all olevas kihis. Nähtavale on tulnud üksikud värvifragmendid, mis viitavad heledale ja rõõmsale tonaalsusele.
Selle mõisa nähtavat osa iseloomustab peen historitsistlik dekoorikäsitlus ja huvitavalt kombineeritud uusrenessanslikud rosetid. Ka materjalikäsitlus muutub: liimvärvi katab õliemulsioonvärv, mis on vastupidavam

ja ajas kestvam. Kujundused seonduvad pikaaegsete omanike Grünewaldtide perekonnaga. Kõrgem Kunstikool Pallas (siis Tartu Kõrgem Kunstikool) liitus restaureerimistöödega 2004. aastal. Selle mõisa restaureerimiskontseptsioon lähtus ennekõike ajaloolise miljöö säilitamise soovist, eesmärgiga sekkuda võimalikult vähe (foto 3). Nii on tööd interjööris sujunud rahulikus tempos enam kui kümme aastat. Seega on siin tegu täiesti erineva restaureerimise kontseptsiooniga.
Kolmas objekt asub Tartus Lai tn 36 ja kuulub linnahäärberite hulka. Hoone on silmapaistva arhitektuuriga ja peidab endas juba 18. sajandist pärinevaid tarindeid. Uuringute käigus tuli esimesel korrusel nähtavale mitu kihti maalinguid. Varasem, klassitsistlik pompeilike sugemetega kihistus jäi hilisema, selgete tunnustega biidermeierlikus stiilis maalitud dekoorikihi alla (foto 4).
Siiski paelub kaasajal külastajaid peamiselt teise korruse historitsismile omase materjalikäsitlusega luksuslik kujundus. Käsitööna teostatud maalingute asemel on näha kataloogidest tellitud detaile, mis oskuslikult kombineerituna jätavad ruumide kujundusest rikkaliku mulje. Teise korruse lagesid ehivad stukk- ja papjeemašeest rosetid, mis on omased 19. sajandi lõpukümnenditele. Erinevates ruumides võib leida veidi varieeruvat käsitlust. Kõige silmapaistvamaks peetakse saali külluslikku, uusrokokoolikku kujundust (foto 5). Sarnased interjöörid on liigitatud zopf- või Louis XVI stiili alla. Kunstiajaloolane Epi Tohvri hindab siinjuures palju suuremaks Robert Adami mõju. Madalreljeefne akantusväänlatest moodustuv arabesk, mille keskmeks on antiikne urn, on üks Adami lemmikmotiiv. Kolmemõõtmeline dekoor moodustub osaliselt komposiitmaterjalist, mille pealmine kiht on kaetud õhukese kipsikihiga. Uuringud näitasid, et varasemates kihistustes kasutati heledatoonilist polükroomiat ning seinatahvlite helmesvöö on olnud kullatud. Kullatise jälgi leiti ka saali keskselt rosetilt.
3. Esna mõisa sisevaade.
Foto: Heli Tuksam
4. Biidermeierstiilis akantusfriis Lai 36 kunagises eluruumis. Foto: Indrek Aavik


Teistest ruumidest eristub puiduaaderdusega söögisaal. Töö on teostatud meisterlikult ning õnneks oli võimalik seda ruumi restaureerimistööde järgselt originaalilähedaselt eksponeerida. Keskne laerosett on samuti aaderdatud ning selle alus on valmistatud papjeemašee tehnikas. Teiste ruumide rosette iseloomustab madal reljeef, kuid peen ja rikkalik ornament. Siin võib võrdluseks tuua Kuremaa lossi stukid, mis moodustuvad madalatest kipselementidest, kuid on oma motiivikäsitluselt sarnaselt rikkalikud (foto 6).
Laia tänava hoone restaureerimine lõppes 2023. aastal. Kõrgema Kunstikooli Pallas tudengid ja vilistlased osalesid protsessis alates suuremahulistest viimistlusuuringutest 2019. aastal. 2023. aasta muinsuskaitse tunnustuste jagamisel pälvis von Knorringi aadlimaja hästi restaureeritud interjööri tiitli.

Raamatus väljatoodud rosette iseloomustatakse eelkõige läbi ülesehituse, püüdes need elementideks lahti võtta. Läbi kolme objekti, mille interjöörid pärinevad erinevatest aegadest, näidatakse roseti ja selle elementide stiililist muutumist. Raamatu lõpus on väike sõnastik, mis täidab ka õppevahendi eesmärki. Rosette kirjeldavad tekstid on koostanud tudengid, kes läbi mitme aasta on õppetöö raames käsitlenud interjööri dekoori. Koostamisele panustanud tudengid on: Inge Annom, Hanna Guthan, Kadri Kalve, Hedi Kuhi, Hanna Kuusvere, Caroliina Luhamets, Triinu Meresaar, Polina Richter, Geterly Sepp, Gertu Soosaar, Melissa Tihhonova, Aleksandra Vlasova, Danel Ülper.
Näide Kuremaa lossi stukist. Foto: Liisa Perend

Lääne-Viru maakond, Väike-Maarja vald
Kultuurimälestiste registri nr 16079

Kiltsi mõisa peahoone on tänaseni hästi säilinud, seda kindlasti tänu järjepidevale kasutusele. Mõisa peahoone koos kaarjate kõrvalhoonetega jätab suursuguse mulje. Hoone on pika ajalooga ja teinud läbi väga mitmeid ehitusetappe, alates keskaegsest kindlusest kuni klassitsistliku fassaadiga imposantse hooneni. Stiilimuutused kajastuvad selgelt ka sisekujunduses. Renoveerimisele eelnenud põhjalike uuringute käigus avastati mõisa põhikorruse ruumidest varaklassitsistliku dekoori säilinud kihistus, mis sai peamiseks aluseks interjööride restaureerimisel. Kiltsi mõisas on antiigiainelisi maalinguid kuues ruumis: nn Pompei toas, raamatukogus, põhja- ja lõunatornis, kunagise söögitoa otsaseinas ning endises vannitoas. Kõigi nimetatud ruumide dekoor asub esimesel viimistluskihil, mis annab alust arvata, et need on tehtud mõisa ümberehituse ajal ehk 18. sajandi lõpukümnendil.
1383. aastast on teada, et mõis kuulus Assenite suguvõsale, millest on tuletatud mõisa saksapärane nimi Schloß Aß. Eestikeelne nimi seostub aga perekonnaga Gilsen, kelle kätte sattus mõis 16. sajandi alguses. Kiltsi mõisahoone fassaadile märgitud aastaarv 1292 ei ole usaldusväärselt tõendatud, sellele vaatamata on mõis väärika ajalooga. Mõisa keskaegse vasallilinnuse ehitamise täpset aega ei ole teada, kuid arvatakse, et see võis alata 15. sajandi algupoolel, kui mõisa omanikuks olid Wrangellid. Wrangellid olid Eestimaa üks mõjukamaid aadlisuguvõsasid ja omasid palju valduseid, sealhulgas Kiltsi naabruses asuvat Kärsa (sks Kersel ) mõisat. Kiltsi vasallilinnus oli nelinurkse põhiplaaniga paekiviehitis, mille müürid võisid kohati ulatuda kuni kahe meetri paksuseni. 16. sajandi alguses lisati linnusele ümartornid, et see oleks paremini kaitstud tulirelvade eest. Kuigi Kiltsi linnus oli väike, aitasid tema kaitsevõimet parandada tugevad veetõkked ja allikate
rohkus tagas kindlustuse veevarustuse. 16. sajandi sõjalistes sündmustes oli tema roll märkimisväärne. Suurim kokkupõrge toimus Liivi sõja ajal 1558. aasta talvel Liivi ordu ja Vene väesalkade vahel. Tolleaegne Kiltsi omanik Robrecht von Gilsen pani tõhusalt vastu, kuid Liivi sõja lõpuks oli linnus varemetes.
Aastal 1588 pärandus Kiltsi mõis Robrecht von Gilseni tütre Margaretha kaudu Otto von Uexküllile. Uus hingamine mõisale tuli alles pärija Otto Reinhold von Uexkülli ajal, mil muuhulgas ehitati mõisale 1650. aastate alguses uuesti katus peale. 18. sajandi alguses puhkes Põhjasõda, mille käigus mõisasüda põles. 1778. aastal ostis mõisa major Hermann Johann von Benckendorff perekond Rosenitelt.
Benckendorffist sai Kiltsi mõisasüdame peamine väljaehitaja ja ta plaanis sellest teha uhkema kui naabritel. Kerkisid uued hooned, sealhulgas suured tallide-karjalautade kompleksid ja vesiveski. Enamik neist olid valmis enne 18. sajandi lõppu, ka härrastemaja sai lõplikult valmis 1790. aastal. Hoone sai varaklassitsistliku ilme, muudeti algset ruumijaotust ja kujundati antiigist inspireeritud interjöörid. Sellest annab märku ka pealiskiri “Renoviert 1790 “ hoone fassaadil. 1784. aastal, kui vanad linnusevaremed ümber ehitati, leiti keldrist luustikke, mis tõenäoliselt kuulusid nendele, kes Põhjasõja lahingute eest põgenedes linnusesse olid jäänud ja siis põlengus hukkusid.
Kiltsi mõis oli Benckendorffide valduses kuni 1816. aastani, mil see läks meresõitja Adam Johann von Krusensterni kätte. Krusensternil õnnestus mõis osta suhteliselt odava hinnaga, kuna mõisate hinnad olid tol ajal madalad. Kuigi mõned hooned vajasid renoveerimist, jätkas Krusenstern mõisas elamist. Lisaks rajati inglise stiilis park. Pärast tema surma pärandus mõis tema pojale Julius von Krusensternile, kes oli hiljem senaator ja Riiginõukogu liige. Julius veetis suurema osa ajast välismaal ja jättis mõisa rentnike hooleks. 1869. aastal läks mõis tema nooremale vennale, viitseadmiral Paul Theodor von Krusensternile.
Viimane Krusenstern, kes oli Kiltsi mõisa omanik, oli Julius von Krusensterni vanim tütar Sophie, kes oli abiellunud Kuramaa krahv Friedrich Rüdigeriga. Nad veetsid suurema osa ajast mujal, kuid ei saa väita, et nad poleks Kiltsis käinud. Selle tegi mugavaks juba 1887. aastal Kiltsi külje all avatud raudteejaam, mis võimaldas ühendust pidada nii Valga, Tallinna kui ka Peterburiga. 1911. aastal otsustasid nad mõisa müüa ja kinkida kogu mõisas leiduv teaduslik pärand Eestimaa rüütelkonnale. Seejärel, 1915. aastal, läks mõis Peterburi mereministeeriumi valdusesse. Kiltsi mõisa omanikuks sai lühikeseks ajaks Alfred von Uexküll-Güldenband, kuid ta ei asunud sinna elama ja veetis suurema osa ajast Riias. Siiski lasi ta mõisa remontida ja lisas sinna kaasaegseid mugavusi, nagu veevärk ja keskküte. Ta ehitas ka moodsa meierei Kiltsi raudteejaama lähedale.
Eesti Vabariik kuulutas välja maareformi, millega mõisnikelt võõrandati peaaegu kogu maa. Kiltsi mõisast sai kohalik algkool ning see anti üle vallale 1924. aastal. Alates 1980. aastatest hakati mõtlema Kiltsi mõisahoone täielikule renoveerimisele. Direktor Lembit Keeruse juhtimisel moodustasid kooli õpetajad A. J. von Krusensterni nimelise mittetulundusühingu, mis tegi ettepanekuid ja plaane mõisa taastamiseks. Renoveerimine sai alguse 1990. aastate keskel, kui lõunapoolne tiibhoone renoveeriti. Põhjapoolse tiibhoone renoveerimine võttis aega veel viis aastat.
Aastal 2002 käivitus riiklik programm, mida koordineeris
Kultuuriministeerium ja milles Kiltsi mõis aktiivselt osales. Tänu sellele tehti ulatuslikult renoveerimistöid, nagu kütte- ja elektrisüsteemide korrastamine ning vundamentide kindlustamine. 2007. aastal sai Kiltsi mõisahoone taastamisprojekt Norra Kuningriigi rahastuse ja Norra Grants nõustus toetama mõisahoone restaureerimist.
Projekti käigus tuli esile palju huvitavaid avastusi, sealhulgas seinamaalingud ja mõisa ajalugu kajastavad esemed. Restaureerimistööd lõpetati 2010. aastal ja nomineeriti maakonna aasta teo tiitlile.
Kiltsi mõisahoone esinduskorrusel on mitmeid olulisi ruume, mis on renoveerimise käigus saanud tagasi ajaloolise ilme. Sellel korrusel on ballisaal, avar söögisaal, salongid, raamatukogu, kabinet ja kunagised eluruumid. Restaureerimistööde käigus puhastati ja taastati mõisa ajaloolised lae- ning seinamaalingud, mis andsid aimu mõisa ajaloost ja dekoorist.
Aastatel 2007–2010 oli Tartu Kõrgem Kunstikool (nüüd Kõrgem Kunstikool Pallas) oma õppejõudude, tudengite ja vilistlastega peatöövõtja AS Ervin Ehituse kõrval mõisa seina- ja laemaalingute konserveerimise ja restaureerimise peamine teostaja. Restaureerimistööde projekti autor oli Nele Rohtla OÜ-st Mõisaprojekt. Kiltsi mõisa renoveerimine on olnud pikaajaline ja põhjalik protsess, mis on toonud esile palju huvitavaid avastusi ning loonud võimaluse suursuguse interjööri esiletoomiseks.
Hoone on rajatud endisaegsetele linnusemüüridele ning 18. sajandi lõpu ehitistele omaselt lähtuti klassitsismi kaanonitest. Plaanil on näha kaht paralleelset anfilaadi, mis on sobitatud vanasse kehandisse. Müüritornid jäid alles, kuid nende vahelt eendub uus stiilne fassaad. Keskel lai risaliit, ülal kolmnurkfrontoon ja külgedel dekoratiivne rustika. Kõrvalhoonetega piirnev väljak moodustab piduliku, kaarja ansambli.
Sissepääsu juurest viib avar kahe jooksuga trepp teisele korrusele. Trepihallist vasakule jääv antrees ehk saali eesruum on kujundatud kõige rikkalikumalt. Siinsete tahveldiste poolkaares ülaosadesse on kujutatud antiiksete vaasimaalide eeskujul figuraalsed grupid. Kogu ruumi
kujundus kannab antiikkultuuriga seonduvaid elemente ja sümboleid nagu ka lae keskel ilutsev rosett (foto 8). Sellest ruumist pääseb nii pidulikku saali kui ka kaunilt kujundatud torniruumi. Lõunapäikeses särav ruum on kujundatud paradiisiaeda meenutavaks lehtlaks. Ka selle ruumi lae keskmes on pompei eeskujul kujundatud rosett.
Trepihallist paremale jääb samuti kaunite maalingutega ruum, mille elementide eeskuju võib otsida otse Roomast, Domus Aureast. Siit pääseb edasi väikesesse salongi ning põhjatorni, kus A. J. Krusensterni ajal asus raamatukogu. Laes aga ilutseb rosett, mille algne kujundus toetub samuti antiigist pärinevatele motiividele. Sellesse tiiba jäävad veel hilisem söögisaal ja väike nurgatuba. Kõik ruumid on algselt olnud rikkalikult dekoreeritud.

Kiltsi esinduskorruse (II korruse) põhiplaan aastast 2011. Joonis: OÜ Mõisaprojekt

Ajaloolised maalingud katavad lae ja seda ümbritseva peegelvõlvi. Kuna seintelt maalinguid ei leitud, võisid ümara ruumi seinu juba varasemas perioodis katta kõrged raamaturiiulid.
Põhjatorni rosett kujutab endast ringile ülesehitatud ornamentaalset laemaalingut. Eksponeeritud rosett koosneb kahest eri ajastust pärit dekoorikihist. Viimase restaureerimise käigus 2010. aastal otsustati eksponeerida mõlemad maalingukihid, kombineerides varasema kihistuse pompeilikku kujundust koos hilisema biidermeierliku kujundusega. Hallides toonides grisaille-maaling kuulub hilisemasse kihistusse. Võib oletada, et selle kihistuse põhiliseks dekoorielemendiks olid akantusmotiivid või lillornamendid.
8. Maalingud ruumis 205.
Foto: Heli Tuksam
Liimvärvidega teostatud pompeiliku roseti alustooniks on hele sinakasroheline, ornamentika on maalitud sarlakpunases toonis. Keskmes on kuus stiliseeritud punast akantuselehte, mille tipud pöörduvad. Akantusmotiivi ümbritseb vahevöö, mida raamib peene punase joonega maalitud ornamentikaga ring. Selle sisemises servas on kolmekordne ringjoon, mis on omakorda ümbritsetud lihtsa taimevääte imiteeriva kujundusega, mida ilmestab neli 8-kroonlehelist lillekujutist ja veidi laiem luikedega ornamendivöö.
Ornamentika on kaheksaharulise jaotusega ning tsentraalsümmeetriline – veerandid on korduvad. Neli paari luikesid on kohakuti sümmeetriliste 8-kroonleheliste lillemotiividega ning vahepealne ornamendiriba on kaunistatud graatsiliste pompeilike mustritega (ornamentaalsed jooned, mis meenutavad taimevääte). Luigepaari

9. Põhjatorni II korruse lagi, ajalooline, Adam Johann von Krusensterni aegne raamatukogu. Foto: Liisa Perend
nokkade vahel on ülestõstetud 5-kroonleheline lillemotiiv, markeerides tõenäoliselt lootoseõit, mis kasvab välja kokkuseotud lehekimbust. Sarnast motiivi võib tihti kohata Robert Adami kujundatud dekoorides, kuigi enamjaolt hoiavad vaasi sfinksid, greifid või harpüiad. Pompei stiilile viitab kreeka mütoloogiast pärinev lugu Ledast ja luigest, kelle kuju võtab armusuhte loomise eesmärgil peajumal Zeus. Luikesid ja taimevääte ümbritseb lai vahevöö, mida raamib kahekordne punane ringjoon (foto 10). Lagi jätab väga kerge ja õhulise mulje. Maaling jätkub edasi peegelvõlvil, mille lõpetab hammaskarniis.
Põhjatorni lae konserveerimise teostas lõputöö raames Vesta Narusk 2010. aastal. Lage retušeeriti mõõdukalt liimvärvidega, eesmärgiga mitte liigselt sekkuda originaali. Selle tulemusel on varasem, pompeilik dekoor üpriski selgelt loetav, hilisem, biidermeierlik maalingukiht on aga ainult õrnalt aimatav.

Rosett koosneb kahest peamisest osast, mille põhimotiiv on tsentraalsümmeetriline kaheksanurk ehk oktogoon, mida ümbritseb delikaatne taimornamentikast lehepärg. Kaheksanurk meenutab tähte ja sarnaneb oma ülesehituselt 18. sajandi kompassi kujundile. Oktogoon koosneb kahest teemandikujulisest nelinurgast, mis on teineteisest läbi põimunud. Nurkade tippusid kaunistavad fleur de lis ,d meenutavad ornamendid, mis koosnevad voluudist ja odaotsast. Voluutornament harmoneerub ruumi seintele maalitud butafoorsete sammaste joonia stiilis kapiteelidega (foto 12). Teemandiornamentide põimumiskohtadest ulatuvad välja kiired, mis on otsast ümarad ning põimingust väljudes muutuvad vormilt vähehaaval jämedamaks.
10. Fragment rosetist, millel näha luikedega ornamendivöö. Foto: Liisa Perend
Oktogooni raamib delikaatne lehtedest pärg. Põimunud taimornament väändub ümber keskse ringjoone ning lehed paiknevad üksteise järel ringi kesktelje erinevatel pooltel. Pärja lehed on kõik paaritud ja nende vahel on võimalik märgata köitraage. Selline elementide kooslus viitab Robert Adami kujundustes levinud viinapuu väätidele, kuid Kiltsi laes tundub lehemotiiv sarnanevat pigem põhjamaisele sirelile või kasele (foto 13).
Põimunud geomeetriline tsentraalelement ja kiired on maalitud sarlakpunase tooniga, odaotsad ja voluudid on oranži tooni. Voluutide puhul on kasutatud läbivalt ühte tooni, aga odaotste puhul on variatsioon, jagunedes kaheks, valguseks ja varjuks. Rosetti on võimalik selle järgi ka täpselt pooleks jagada: nelja odaotsa vari langeb vasakule küljele ja ülejäänud nelja odaotsa vari langeb



13. Roseti fragment. Foto: Liisa Perend
paremale. Selline värvikäsitlus loob odaotsad ruumilisteks ja tõstab need ülejäänud geomeetriast esile. Lehestik on maalitud sinakasrohelisega, lehtedele ja vesivõsudele on antud soojema ja tumedama rohelise tooniga kerge varjund, mis annab pärjale juurde ruumilisust ja liikuvust.
Roseti värvinüansse ei märka põgusal vaatlusel. Tegelikkuses aga vahelduvad ornamentides valguse-varju toonid nii rohelistes kui ka punastes värvides. Geomeetriline kese eristub taimepärjast vastandvärvi kaudu ning harmoneerub lõunatorni rohekassinises koloriidis maalitud (paradiisi)aia kujutisega. Rosett on teostatud liimvärvidega.
Lõunatorni laemaalingud restaureeris vilistlane Eve Hermann.
Roseti põhimotiiv on ka siin ruumis kaheksanurk ehk oktogoon. Algselt sümboliseerisid nii kaheksanurkne rist kui ka kaheksakand Maad ehk nelja või kaheksat ilmakaart. Nurkasid rõhutavad odaotste teravad tipud välisääres, samas mahendab teravikke lihtne punasevärviline voluut- ja palmett-ornamentika sümmeetriliselt roseti välisringis. Rosetti võib lugeda geomeetrilise ornamentika valda kuuluvaks, mis harmoneerub toa üldise dekooriga. Seda ruumi nimetatakse ka Pompei toaks ning rosetti kirjeldades ei saa mööda vaadata ruumi teistest maalingutest. Seinapind on jaotatud tahvliteks, mida jagavad tripoodimotiividega päädivad piilarid. Seina üldkoloriit on ookerkollane, mis vastab antiigi traditsioonile. Seinatahveldiste kohal asuvatel lünettidel ja seina ülemisse tsooni jäävatel rombidel asuvad mustjaspruunile taustale
14. Saali eesruumi ehk antreesi rosett (plaanil ruum 205). Foto: Liisa Perend

maalitud punased lineaarsed figuurigrupid, mis viitavad nii teostuses kui ka motiivitüübis eelkõige kreeka-etruski vaasimaalile.
Roseti värvigamma sulab harmooniliselt ühte seinte koloriidiga. Selle kese on ookerkollane ja see on ääristatud valge, mustjaspruuni ning rohelise värvigammaga. Rosetti ääristab punasevärviline voluut- ja palmett-ornamentika. Rosett on teostatud liimvärvidega.
Varasema perioodi maalingud on maalitud mõisa taastamise aastatel 18. sajandi lõpus. Euroopa uueks moesuunaks sajandivahetusel kujunes antiikpärandist inspireeritud dekoor. Umbes samal ajal lasi Joséphine de Beauharnais, Napoleon Bonaparte ,i abikaasa, kujundada Château de
Malmaisoni, oma Pariisi lähedal asuva lossi, antiigist inspireeritud maalingutega. Siin töötasid tema heaks Charles Percie ja Pierre Fontaine, keda saab pidada ampiirstiili rajajateks ja antiigist inspireeritud neoklassitsismi ideede kandjateks.
Põhjatorni laeroseti kujunduses on tuntavad jooned, mis on selgelt inspireeritud inglise arhitekti Robert Adami (1728–1792) töödest. Väga sarnase ülesehitusega, ehkki palju suuremaid, rosette võib näha Suurbritannias nii Kenwood Hallis kui ka Osterley Halli aatriumis. Sealjuures on ka Osterley laeroseti keskmes leheornamentikaga kujundus, mis on sarnane Kiltsi mõisa akantusmotiiviga.
Torniruumi luigemotiividega sarnaneb Londonis asuva Lansdowne’i maja laekujundus, millel on kaks sfinksi ja vaas. Sarnaseid variatsioone motiivist esineb paljudes Robert Adami kujundustes. Väga sarnase motiivi greifidega leiab Tartust Lai 36 hoonest (foto 15).
Antiikpärandi vaimust on kantud ka Kiltsi mõisahoone lõunatorni rohekassinises koloriidis (paradiisi)aia kujutis, mille kõige otsesem paralleel on Liigvalla mõisa suure saali nišis säilinud fragment. Nende eeskuju võib näha Rooma Villa Livia a Prima Portas ja Pompei Casa del Bracciale d’Oros, kus on kujutatud illusionistlikku Arkaadia aeda. Adami töödest ehk kõige mõjukamad paralleelid on just tema etruskide kunstist inspireeritud teosed, seda nii ornamendi delikaatsuses kui ka koloriidi valikus. Saltrami maja salongi laest leiab nõgusate külgedega nelinurkse teemantmotiivi.

15. Greifide ja palmetiga nurgamotiiv Lai 36 eluruumi laes. Foto: Liisa Perend
16. Tõstamaa mõisa grisaille’i tehnikas akantusmotiividega laerosett. Foto: Heli Tuksam
Varaklassitsistlikke mõisakujunduse näiteid võib leida ka ümberkaudsetest mõisatest: Varangu, Liigvalla, Norra, Aruküla ja Väätsa mõisast. Teatud paralleele võib leida Pärnumaalt Tõstamaa mõisast (foto 16), mis oma grisaille ’i stiilis rosetiga annab vihjeid, milline võis olla Kiltsi põhjatorni rosetimaalingu teine, hall kihistus.


Järva maakond, Esna küla
Kultuurimälestiste registri nr 15115

Keset Järvamaad asuv kaunis ja romantiline puitmõis sai praeguse ilme eelkõige 19. sajandi algupoolel, mil mõisa omanikeks olid von Grünewaldtid. Siiski on säilinud ka hoone vanem osa 18. sajandi esimesest poolest. Esna mõisa olulisemad maalingud kuuluvad kahte perioodi: varasemad, baroksed talamaalingud pärinevad 18. sajandi esimesest poolest ning hilisemad, historitsistlikud maalingud tõenäoliselt 19. sajandi teisest poolest ehk peale mõisahoone viimast ümberehitust 1880. aastatel. Säilinud ja eksponeeritud on kaunid historitsistlikud laekujundused ja ajaloolised tapeedid mitmes kihis. Restaureeritud on historitsistlik tahveldis. Interjööride konserveerimisel on lähtutud põhimõttest: maksimaalselt säilitada ja minimaalselt sekkuda.
Esna mõis asub Järvamaal ajaloolises Peetri kihelkonnas, mis moodustati varasemast muinaskihelkonnast 13. sajandil. Henriku Liivimaa kroonikas on mainitud tollast Järvamaa keskust Kareda küla ning seda, et piirkond oli väga jõukas ja arenenud.
Esna mõisa nimi, saksapäraselt Orrisaar, on identne küla varasema nimetusega. Valdus on seotud peamiselt kahe kuulsa suguvõsaga: Essenite ja Grünewaldtidega.
Mõis esmaläänistati aastal 1623, kui Rootsi kuningas Gustav II Adolf andis piirkonnas suured maa-alad oma ustavale sõjapealikule Alexander von Essenile, kelle abikaasa Magdalena von Ungern pärines Liivimaa Ungurmuiža mõisast (Orellen, praegu Läti aladel).
Alexander von Esseni järeltulija tütar Maria Helena abielu kaudu läks mõis Bernd von Uexküll-Güldenbandile. Peale viimase surma jäi omanikuks Maria Helena, kelle ajal (ajavahemikus 1726–1749) ilmselt ehitati praeguse hoone kõige vanem osa.
Selgemapiiriline peahoone- ja perekonnalugu algab ajast, mil Esna pärijaks saab Moritz Engelbrecht von Kurselli lese surma järel lapsendatud tütar Anna Christina von Kursell. 1792. aastal oli Anna Christina abiellunud Johann Georg von Grünewaldtiga Koigi mõisast. Mõlemad mõisad jäid perekonna valdusesse kuni 1919. aastani. Hea ülevaate perekonnast annab dr Otto von Grünewaldti raamat „Vier Söhne eines Hauses”. Raamat kirjeldab värvikalt pere nelja poja noorusaastaid ja tudengiaega ning elu-olu nii Koigi mõisas kui ka ema pärandmõisas Esnas. 1820. aastatel, mil pere vanim poeg Johann (Iwan) elas oma naise Alexandraga Esnas, tehti mõisas suuri ümberkorraldusi, mis kajastuvad õe ja vendade vahelises kirjavahetuses. Ka peaukse kohal uksevalgmiku prussil nähtud daatum 1821 kinnitab seda. Uuenenud hoonest räägib 1822. aasta mais saadetud kirjas õde Helena vaimustunult:
„…seda sõbralikuma ja kaunimana mõjub Esna, mis on nüüdseks saanud päris valmis ning muutunud kõige nägusamaks ja meeldivamaks mõisaks, mida üldse näha võib. Maalid, mööbel – kõik on seal uus ja nooruslik, nagu on nooruslikud selle maja elanikudki. Kesk tärkavat rohelust mõjub see valdus kui rahu oaas, kui sügavale lehtede vahele peitunud lilleke, pakkudes sellisena kirjeldamatult meeldivat elamust. Kui me sinna jõudsime, oli härrastemaja ette viiv topeltallee hiirekõrvus ja häärberi tagant helkis õhtupäikeses kaskede vahele peitunud jõgi – sõnad „vaikse õnne maja“ tulid tahtmatult mu huultele. Ja seda see maja ka on, need kaks, kellele see kuulub, võiksid tõesti end pidada lausa taevaisa lemmikuteks ja mis rohkem võiksid nad tahtagi. Kogu elu võiks anda ühe seal veedetava aasta eest.“ (Helena von Grünewaldt, 27.05.1822)
Klassitsistlikku mõisa iseloomustavad krohvitud laed, mida dekoreerivad värviküllased maalingud. Viiteid tollastele maalingutele näitavad fragmendid historitsistliku maalingukihi all. Seinad krohviti ligi 10 cm paksuse savi-õlgkrohvi kihiga, millel omakorda heledad lubi-liimvärvi kihid: heleroosa, heleroheline, hele ookerkollane. Põrandad said uue tammeparketi ja laiad, kahepoolsed uksed moodustavad piduliku anfilaadi.
Perekonna valduses oli kolm mõisa, mis tuli jagada nelja venna vahel. Ema otsustas mõisate jagamise loosi teel. Esna sai endale noorim vend Alexander. Selleks, et vääriliselt oma positsioonile asuda, loobus Alexander senistest juuraõpingutest ja pühendus põllumajanduse ökonoomia stuudiumile Saksamaal. 22-aastaselt võttis ta majapidamise üle oma vennalt Johannilt, kes pühendus poliitilisele karjäärile ning temast sai Eestimaa tsiviilkuberner ja senaator Peterburis.
1835. aastal abiellus Alexander paruness Pauline Ungern-Sternbergiga, kes oli üles kasvanud Läänemaal Võnnu mõisas. On üsna tõenäoline, et noor perekond kohendas mõisamaja endale meelepäraseks. Täpsemalt on teada viimastest suurematest ümberehitustest, mis lõppesid 1888. aastal ja mil mõis omandas stiilse, perioodile omase historitsistliku ilme koos kahe verandaga. Ajaloolistelt fotodelt on näha, et verandad on algselt olnud modernselt klaasidega kujundatud.
Historitsismihõngulises hoones muutus praktiliselt kogu dekoor. Samuti pikendati oluliselt söögituba. Uue ruumi lage kattis kaunis puittahvleid imiteeriv laemaaling, mis on säilinud ka tänapäeval.
Esna viimaseks mõisahärraks oli Walter von Grünewaldt, maanõunik ja Eestimaa Põllumajanduse Seltsi president (1895–1904). Teda on meenutatud kui head mõisnikku.
Pärast Vabadussõda mõis võõrandati, mõisamaad tükeldati ja jagati asundustaludeks. Grünewaldtid olid elanud mõisas siiski veel 1921. aastal. Eesti Vabariigi ajal tegutsesid härrastemajas postijaamapidaja ja jaoskonnaarst, seal oli ka piimaühistu koorejaam.
Peale Eesti Vabariigi taasiseseisvumist läks mõis eravaldusesse. Hetkel haldab kompleksi Esna Mõis OÜ, kelle korraldamisel toimuvad hoones erinevad kogukonnale avatud üritused.
2006. aastal loodi 225 hektari suurune Esna maastikukaitseala, mis hõlmab Esna jõe lätteks olevad allikad, paisjärve ja pargi.
Esna mõisa on restaureeritud pikka aega, Kõrgem Kunstikool Pallas liitus interjööritöödega 2004. aastal. Taastamise kontseptsioon lähtus konserveerimisteooria põhialusest: sekkuda võimalikult vähe ning säilitada ajaloolist hõngu võimalikult palju. Lisaks Pallasele oli oluliseks partneriks Nele Rohtla Mõisaprojekt OÜ-st ning kaasatud olid ka erinevad üldehitustöid tegevad ettevõtted.
Peahoone siseplaneeringus valitseb anfilaadne ruumijaotus, mis on tihti omane klassitsistlikule mõisamajale.
Kirjeldatavad rosetid asuvad ruumides 2, 12 ja 19. Ruum number 2 asub vestibüülist paremal, kus asus peale 19. sajandi teise poole ümberkorraldusi avar söögisaal. Ruumid 19 ja 12 jäävad vestibüülist vasakule. Ruum 12 on
väike salong saali kõrval, mis tõenäoliselt oli omal ajal kasutuses daamide salongina, sest saalist paremale jäi väike mängude tuba. Ruumi 19 tuntakse ka muusikasalongi nime all. Mõis lummab oma erilise atmosfääriga. Neid ruume on restaureeritud sihiga säilitada maksimaalselt ajaloolist hõngu, peatades lagunemine, kuid samas mitte liigselt sekkudes.

12
19 2
Esna mõisa põhiplaan. Joonis: OÜ Mõisaprojekt
Kogu lage kattev aaderdus moodustab puitpaneelide võrgustiku, mille keskmes ilutseb historitsistlikus stiilis pruunides toonides rosett. Seinad on kaetud samuti aaderdust imiteeriva tapeediga (foto 19). Kogu kujundus on iseloomulik tollastele söögisaalidele. Aaderdatud uksed seovad ruumi kõrvaloleva saali ja vestibüüliga.
Rosett on peenelt kujundatud, jättes mulje marketrii tehnikas ornamendist. Rombikujulisel telgsümmeetrilisel rosetil on neli peaharu, millest kaks on pikemad ja näitavad põhja-lõuna suunas. Kaks lühemat haru osutavad ida-lääne suunas. Pikematel harudel on keskseks motiiviks suur akantuseõis, mille ümber väänlevad pahmikornamendi stiilis lehed. Nelja peaharu ühendab meandrimuster, mille kohal on väike stiliseeritud akantuseõie motiiv. Roseti keskmeks on neljast akantuselehest koosnev kujund, mis üldilmelt moodustab omaette väikese rombi, mida rõhutab ümbritsev joonraamistus. Pehmete kaartega väänlevad ornamendid ja sirgejooneline meandrimuster tasakaalustavad üksteist ning moodustavad ilusa terviku.


19. Söögisaali vaade. Foto: Heli Tuksam
Värvitoonid jätavad mulje tammepuidust. Põhijoonis on teostatud helepruuniga ning mustjaspruuniga lisatud varjud muudavad roseti ruumiliseks. Maalimisel on kasutatud õlivärve.
Esna mõisa restaureerimiskontseptsioonile omaselt ei ole rosetti olulisel määral retušeeritud, kuigi säilinud on piisavalt palju, et teha rekonstruktsioon. Küll aga võib
sellest rosetist lähtunud rekonstruktsiooni näha Kaagjärve mõisas, mille teostasid Kõrgema Kunstikooli Pallas tudengid 2018. aastal. Samuti on sarnase kompositsiooniga rosett Inju mõisas, mis on teostatud trafarett-tehnikas, mis tähendab, et sellel puudub Esnale omane läbimaalitus ja nn sillad ei ole ühendatud (foto 20).

Rosett on stiililt historitsistlik ning eeldatavalt võib paigutada roseti maalingu valmimise 19. sajandi teise poolde. Roseti põhimotiiv on telgsümmeetriline ning neljaharuline. Roseti saab jaotada justkui kaheks nelinurgaks, rombiks. Ruumis on rosett kujutatud nii, et selle tipud on suunatud ruumi seinte külgedele ning pikad sirged ruumi nurkadesse. Esimene, sisemine osa on väiksem ning teine, välimine osa suurem. Mõlemas osas esineb taimornament, kuid eriti välimisel osal on kujutatud ohtralt taime lehti. Kahte eraldi osa ühendavad neljast kohast taime õie motiivid.

Kogu lagi on maalitud pruunides-beežides kerge halli alatooniga värvides. Samasuguses gammas on maalitud ka keskne rosett. Dekoor on teostatud õli- või õli-tempera värvidega.
Aastatega on rosett kulunud ning värv tuhmunud, kuid sellegipoolest selgesti nähtav ja hästi säilinud.
Peamised jooned on tehtud kõige tumedamalt ning järgnevalt valguse ja hajutuse edasiandmiseks kasutatud heledamaid värvivariatsioone. Üldiselt on rosett maalitud hallikas-pruunikates värvitoonides, kuid on alust arvata, et algselt olid roseti värvid erksamad, justkui kuldpruunikad, mis on lihtsalt ajaga tuhmunud.
Välimist osa iseloomustavad selgelt kujutatud viinapuu lehed ja võrsed. Motiiv on üldiselt lihtne ja selge.
Viinapuuväätidest moodustub nelinurkne romb, mis ümbritseb roseti keskosa.
Roseti keskmes asetsevad akantusornamendid, need on kujutatud ringis üksteist peegeldavalt ning üksteisest läbipõimunult.
Keskosa ääristab kaks stiliseeritud palmetti ning akantuslehe- või -õiepungad. Pehmeid akantusevääte tasakaalustavad paelornamendid ehk strapwork, mis on stiliseeritud viinapuuvõrsetele omaste krõnksudega, harmoneerudes välisringil olevate looklevate võrsetega.


Salongi kujundus pärineb 19. sajandi teisest poolest ja esindab historitsismi neorenessanslikku suunda. Lae äärt raamistavad erineva laiusega pruunid ja punased triibud, millest sissepoole jääb peen ookerkollane joon, mis ühendab maitsekalt kujundatud nurgamotiive (foto 24). Lae keskosa ehib stiilne maalitud rosett.
Rosett koosneb jõulisest ja konkreetsest ringikujulisest keskosast ja seda ümbritsevast õhulisest arabesksest taimornamentikast. Roseti keskosa moodustub kaheksast ringjalt asetsevast väljapoole suunatud ookerkollasest lootosõie või stiliseeritud akantuselehe motiivist punase sõõri taustal. Ringi raamistab pontsakas pärlinöör, mida piirab nii seest kui ka väljast peen kollane joon. Lootosõie või akantuselehe motiivid on maalitud viisil, mis ei lase täie
kindlusega arvata, kas tegemist on ühe või teisega. Kui tegemist on lootosõiega, siis on kujutatud vaheldumisi lahtist ja kinnist õit. Samas on kinnise õie keskele tõmmatud joon, mis meenutab hoopis akantuselehe rootsu. Võimalik, et siin on vaheldumisi kujutatud hoopis avatud lootosõit ja akantuselehte. Välistada ei saa ka võimalust, et maalitud on vaheldumisi erineva kujuga akantuselehti. Keskmist, staatilise ilmega lihtsat ümarat rosetti ümbritseb neljaharuline õhuline ja dünaamiline arabeskina üles ehitatud akantusornamentika, mille harud on suunatud ruumi nurkade poole.
Originaal on täielikult avatud ja konserveeritud, samuti ka valdav osa lage raamistavast maalingust, vaid üks nurgamotiiv on rekonstrueeritud.

Esna mõisa laekujundustele ja rosettidele sarnaseid ruudu või rombi kuju moodustavaid arabeskseid rosette kohtab 19. sajandi interjöörides ja mustriraamatutes. Selle perioodi stiili iseloomustab just mustriraamatute lai levik ja kasutus ning seetõttu kohtab korduvaid elemente erinevates kujundustes.
Ühe sellise raamatu näitena võib tuua 1864. aastal Saksamaal Stuttgardis välja antud raamatu “Gewerbehalle. Organ für den Fortschritt in allen Zweigen der Kunstindustrie” (foto 25). Pealkirjas on viide, et eeskujusid kasutatakse ennekõike kunsttööstuse arendamiseks. Sellest olenemata kasutavad näiteid ka käsitöölised ja maalermeistrid.
Sarnast puiduimitatsiooni tehnikas ruumi, nagu Esna söögisaal, võib leida ka teistest historitsismi perioodi mõisatest. Tehnika, mida kutsutakse aaderduseks, on sel ajal laialdaselt kasutatud. Aaderdatud ruumid olid näiteks söögitoad, trepihallid või kabinetid. Väga kaunid on Suure-Kõpu mõisa aaderdatud saali lagi ja keskne rosett (foto 26) ning aaderdatud tahvlitega kujundatud trepihall. Aaderdatud söögituba kohtame ka von Knorringite linnamajas Tartus.
24. Salongi nurgamotiiv.
Foto: Liisa Perend

25. Stuttgardis 1864. aastal välja antud Wilhelm Bäumeri ja Julius Schnorri mustriraamatu tiitelleht.


Lai tn 36, Tartu
Kultuurimälestiste registri nr 6932

Uue nimega ristitud aadlike linnamaja sai oma nime pikaaegsete omanike von Knorringite järgi, kelle valduses oli hoone üle saja aasta. Sama kaua oli hoone omanikuks ka Tartu Ülikool. Nüüdseks eraomanduses olevas hoones algasid siseviimistlusuuringud 2019. aastal, paljastades palju põnevaid leide. Kõrgema Kunstikooli Pallas tudengid ja vilistlased jätkasid hoones töid ka pärast uuringute lõpetamist, avades, konserveerides ja restaureerides paremini säilinud maalinguid. Tihe koostöö toimus sisearhitekti ja kujundaja Aivar Roosaarega ning restauraatoritega Osaühingust Art Restauraator. Renoveerimistööd lõppesid 2023. aastal ning Von Knorringi aadlimaja omanikud Romet ja Maria Rand (tõlkebüroo Avatar) pälvisid muinsuskaitseameti tunnustuse hästi restaureeritud interjööri kategoorias.
Tartu ülikooli botaanikaaia kõrval Laial tänaval asub 18. sajandi lõpust pärit hilisklassitsistlik aadlielamu. Krundil asus juba varem von Rennenkampfidele kuulunud ühekordne kivimaja, kuid see sai 1775. aasta suurtulekahjus tõsiselt kannatada. Tulekahjujärgselt koostatud linnaplaanil on elamu koos kolme kõrvalhoonega märgitud mahapõlenuks, kuid juurde on lisatud, et omanik kavatseb selle taastada. Leskproua Caroline Sophie von Rennenkampf ehitas ühekordse kivimaja uuesti üles ajavahemikul 1778–1786. Kunstiajaloolase Enriko Talvistu sõnul on sellest perioodist tõenäoliselt pärit ka esimesel korrusel olevad rokokoolike lehemotiividega kahetiivalised siseuksed, mille meistriks peetakse puusepp Adam Pauli. 1803. aastal müüdi kinnistu Otto von Knorringile ning see jäi perekonna valdusesse enam kui sajaks aastaks. Ajaloolistest dokumentidest on võimalik järeldada, et teine korrus ehitati peale ajavahemikus 1830–1846. On teada, et esimene korrus üüriti välja ning teisel korrusel elasid
Knorringid ise. Hindamisaktidest võib välja lugeda, et esimesel korrusel asus 6 tuba, 1 kamber, 1 köök, 5 ahju, 9 tänavapoolset ning 12 hoovipoolset akent. Teisel korrusel aga 8 tuba, 1 kamber, 1 köök, 6 ahju, 10 tänavapoolset ja 12 hoovipoolset akent.
1875. aastal päris krundi poeg Artur von Knorring, kes palkas linna ehitusmeistri Friedrich Hübbe ümberehitusi projekteerima. Nii ühendati 1884. aastal esimese korruse kaudu elamu kõrvalhoonega (botaanikaaia-poolne). 1885. aastal ostis noor Knorring ka kõrvalkrundi ehk Lai 34 kinnistu, millel asus puithoone. Sellele kavandas Hübbe uue kivihoone ning ühtlasi ehitati 1886. aastal ümber ka Lai 36 fassaad, millega nihutati tänavapoolne peauks kesksest asukohast vasakule külge kangialuse kõrvale. Samuti ühendati kaks maja teise korruse kaudu. Peaukse asukoha muutmisega ehitati ka uus trepp uue asukohaga, mis on säilinud tänaseni. Kuidas täpselt vana trepp jooksis ja kuidas oli lahendatud vestibüüliruum, ei ole teada. Millalgi enne 1910. aastat ehitati välja väike kolmanda korruse korter, kuhu pääseb esimeselt korruselt puidust keerdtrepi kaudu. 1922. aastal ostis Lai 34 ja 36 hooned Tartu Ülikool, kuid ruume kasutas ka Eesti Põllumajanduse Akadeemia (nüüdne Eesti Maaülikool). Ilmselt sellest ajast on esimese korruse saali aknakoht ehitatud ümber laiaks kaheosaliseks ukseks. Muud väiksemahulised ümberehitused on puudutanud abiruume ja käimlaid. Kuna TÜ maaliosakond, mis Lai 36 ruumides tegutses, 2015. aastal suleti, müüdi mõlemad hooned eraomandisse. 2019. aasta lõpus viisid Kõrgema Kunstikooli Pallas tudengid professor Heli Tuksami juhendamisel läbi viimistlusuuringud mõlemas majas. Von Rennenkampfi aega võib tõenäoliselt paigutada üksikud tapeedileiud ja ka juba mainitud kahetiivalised rokokooliku motiiviga uksed. Võimalik, et sellesse aega jäävad ka ühest esimese korruse ruumist leitud tumedatoonilised maalingufragmendid, mis kuidagi ei sobitunud ülejäänud leidudega.
Ühed olulisemad leiud olid aga esimese korruse ruumides, kus sekundaarse krohvikihi alt tuli välja mitu kihti maalinguid, mis sobiksid stiililiselt 19. sajandi algusesse. Näiteks pompeistiilile omaselt tahvliteks jaotatud seinapinnad, drapeeritud kangad, taimegirlandid. 19. sajandi keskpaika võib dateerida hiliseima krohvialuse kihi: lopsakad ja looklevad akantusmotiivid laia bordüürina seina ülaosas. Stiilitunnuste järgi võib neid ruume nimetada biidermeierlikeks.
Teise korruse kujundus on silmapaistev ja hästi säilinud. Saali rikkalik komposiitsegust dekoor on tõenäoliselt hilisem, kui seni arvatud, pärinedes 1830.–40. aastatest,

seega ajast, mil hoone sai teise korruse. Saali dekoorilahendust on kunstiajaloo käsitlustes peetud väga silmapaistvaks. Helmi Üprus kirjeldab ruumi kui Louis XVI stiili näidet, dateerides kujunduse 18. sajandisse. Seinte raamistatud tahvlitel ripuvad medaljonid ja lillegirlandid (foto 28). Raamistus ise on kõrge profiiliga, siseküljel jookseb pärlivöö. Medaljonide keskel on säilinud kinnituskonksud, kus võisid rippuda seinalühtrid või maalid. Samadel tahvlitel on arabesksetest akantusvoluutidest moodustatud kompositsioonid, mille keskkohta tähistavad ampiirvaasid. Suursuguselt mõjuvad ka raamistustega trümoopeeglid. Seina alumises osas on lihtne lambrii, mis eraldub ülemi-

28. Lillegirlandidega medaljon teise korruse saalis. Foto: Liisa Perend
29. Antiikne vaas. Foto: Liisa Perend
sest osast kõrge komposiitmaterjalist profiilliistuga. Ruumi kujundus jätab suursuguse mulje, eriti kui kujutleda juurde kullatud detaile, mida uuringute käigus leiti näiteks pärlvöödil ja ka laerosetil. Dekoorielemendid on tõenäoliselt kokku pandud valmisdetailidest, mida oli võimalik tellida kataloogidest (foto 30).
Teiste teise korruse ruumide kujundused pärinevad ilmselt 19. sajandi II poolest. Lai 36 fassaad kujundatakse siis Hübbe projekti järgi ümber ning ilmselt samal perioodil kujundatakse ümber ka interjööre (foto 31). Seda tõendavad kujundusdetailide alla jäävad maalingud. Jõuline pompei punane salong jäi saalist paremale, järgmine nurgaruum oli kujundatud peamiselt sinakas-rohekates toonides. Ruumi ilmestas kaunis taevasinine lagi, millest maalingu fragment on ka eksponeeritud.
Teise korruse rosetid on üsna eripalgelised, samuti on nad valmistatud erinevatest materjalidest. Siin on tööstuslikult toodetud papjeemašee alusel rosette, kuid ka komposiitmaterjalist ja kipsist rosette. Kirjeldatud rosetid asuvad teise korruse ruumides 45 (trepihall), 53 (aaderdatud söögituba), 54 (saal) ja 58.


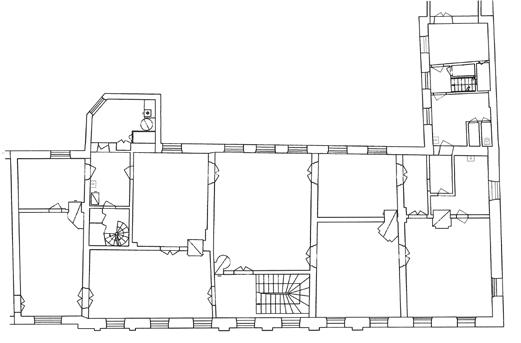
Lai 36 II korruse plaan. Joonis: ARC Projekt OÜ

Saali rosetti, nagu kogu kujundust, iseloomustab viide Louis XVI stiilile. Madalreljeefsed rosetid on iseloomulikud historitsismi perioodile. Neid valmistati tööstuslikult kas komposiitmaterjalist või papjeemašee tehnikas. Lai 36 saali laerosetti ei ümbritse täiendav dekoor. Rikkalikum dekoor jääb peegelvõlvile ja seintele.
Saali rosett on rombikujuline, neljaharulise jaotusega, koosnedes peamiselt mängust akantuselehe motiiviga. Roseti keskelt ulatuvad välja igas suunas lopsakad akantuselehed. Seda ümbritseb peen pahkmikornament, millest ulatuvad välja väänle-


Rosett on struktuurilt range ja rikkaliku kujundusega ning terviklikult säilinud. Kogu ruum on restaureeritud ja esinduslik.
Sarnase rikkaliku ja rombikujulise ülesehitusega on ka rosett ruumis nr 46 (foto 34).
vad akantuselehed. Roseti keskpaigas asetsevad palmetjalt kimbuks põimitud akantuselehed. Nende ümber on raamistus, mille nurki pehmendavad lillekimbud ja girlandid, mis ulatuvad väljast sissepoole. Raami lõikavad sümmeetriliselt väljapoole ulatuvad väänlevad ja peened akantuselehe motiivid. Roseti kahe pikema otsa keskmes on merekarbi motiiv.
Rosett on valmistatud komposiitmaterjalist, mis on kaetud õhukese kipsikihiga. Laes on säilinud alumistes kihtides ka polükroomiat, millest kõige silmapaistvam kihistus on pastelne roheline koos kullatud detailidega.

Historitsism on stiil, mis kordab varasemaid stiile. Nii võib siin kohata elemente Louis XVI kui ka Robert Adami stiilist. Sel perioodil on oluline roll eeskujuraamatutel, mis Euroopas levima hakkasid. Üks selline raamat on Inglismaal Londonis umbes 1840. aastal Bielefeldi-nimelise papjeemašee tehnikas arhitektuurielementide tootja poolt välja antud kataloog “Bielefeld’s Papier Mâché Ornaments”, mis levis ka mujale Euroopasse ja millest ruumide kujundamisel inspiratsiooni ammutati.
Sarnase ülesehitusega restaureeritud laerosett on näiteks Uderna mõisahäärberi suures saalis. Sarnasust võib leida ka Kuremaa mõisa lagede rikkalike stukkornamentidega. Kuremaa stukid moodustuvad üksikutest elementidest, mis kombineerides moodustavad rikkaliku terviku (foto 35). Sarnase ülesehitusega laeroseti näite leiab ka Saksamaa eeskujuraamatust (foto 36).


Ka Knorringi aadlimaja söögituba erineb teistest ruumidest oma dekoori poolest. Terve ruum on jagatud illusoorseteks puitpaneelideks (foto 38). Aaderdus on teostatud meisterlikult ja seda ilmestavad puidumustrilised dekoratiivribad, mille abil moodustub seinal klassikaline kolmene jaotus: alumine paneel, seinapind ja friis. Lagi jaotub tahvliteks, mis kärjena ümbritsevad keskset aktsenti.
Kompositsiooni keskmes on lihtne puiduimitatsiooniga rosett. Roseti tsentri moodustavad dekoratiivsed taime- või puulehed, millest osa jäävad allapoole, ning pealpool asetsevad lehed katavad neid osaliselt, jättes nähtavale vaid alumiste lehtede tipud. Seda ümbritseb lindiga kokku põimitud peentest vitstest moodustuv ring. Pärga ümbritsevad vahelduvalt illusoorsed nišiväljad ja sümmeetrilised akantusesarnased lehed, mille ümber on

kitsas munavööt. Kõike seda ümbritseb paelana ring, mille servas on omakorda helmesvöö.
Rosett on papjeemašeest, mis on kaetud tumepruuni õlleaaderdusega ning lakitud. Laerosett restaureeriti 2022. aastal. Kogu ruum on taastatud oma algupärases ilus.
Sarnaseid aaderdatud ruume leiab ka juba mainitud Suure-Kõpu ja Esna mõisatest.

Ruumi nr 58 viivad kahetiivalised tahveldistega uksed. Ümber ruumi kulgeb ornamenteeritud ruumiline peegelvõlv ja karniis, millel akantuslehed, giljošimotiividega ühendatud nišiväljad ja munavööt. Lae nurkades paiknevad kartušid.
Rosett koosneb kahest erinevast siseringist ja neid eraldavatest reljeefsetest motiividest. Roseti akantuslehtedest keskosa ümber on tõenäoliselt loorberilehtedest ja -marjadest pärg. Siseringi südamikku ümbritseb pärlvööt ja selle keskmest ripub lühter. Roseti välisringis on neli pärlinööriga kaunistatud medaljoni, mille allosas on sõlmitud pael, mis omakorda kinnitub loorberipärjale. Medaljoni tippudes, välisringist väljaspool, on fleur de li ’st tuletatud ornamendid. Medaljonid vahelduvad rinceau’like, väänlevate akantusmotiividega, mida kaunistavad akantusõied.

Uuringute käigus selgus, et rosett on olnud polükroomne, ning kõige alumises kihis on olnud pastelsed rohelised toonid. Lagi ise on aga olnud sinistes toonides ning tõenäoliselt olid laes ka maalingud.

39. Ruumi 58 rosett enne ja pärast restaureerimist. Foto: Liisa Perend
Ümmarguse roseti keskmeks on neljast akantuslehest koosnev südamik, mida ümbritseb rullis servaga ehisraam ehk kartušš. Sellest väljapoole jääb kahest vastassuunast korrapäraselt hargnev akantuslehtede motiiv, moodustades kaks sümmeetrilist poolkaart. Kui akantusväädid on pigem peened ja õhulised, siis tasakaaluks on lopsakad akantusõied. Kõike omakorda ümbritseb kahekordne ringikujuline raam, millel üksikutest kohtadest ulatuvad üle akantuslehed.
Rosett on valmistatud papjeemašeest, kaetud kipsiga ja tõenäoliselt on algselt olnud mitmevärviline.
Sarnaseid papjeemašee rosette toodeti tööstuslikult. Tihti erinevad elemendid koloreeriti, mis lisas rosetile isikupära. Kompositsioonilt sarnaseid näiteid leiab Imastu mõisast (foto 41) ja Porkuni mõisast.
Tartu arhitektuuri ja kujunduste puhul ei saa kindlasti mööda vaadata ülikooli mõjust ning linnaga seotud arhitektidest, kes oma hariduse on saanud peamiselt Saksamaa ülikoolides. Ilmne on, et historitsismi perioodil kasutati eeskujuraamatuid, aga ka kaubakatalooge, mille järgi sai tellida valmistoodangut. Maalermeistrid olid osavad dekoorimaalijad, mida on hästi näha Lai 36 interjöörides. Peenelt käsitleti illusiooni loomise võtteid, mida on kasutatud näiteks ruumides 46 ja 53.


41. Imastu mõisa komposiitmaterjalist rosett. Foto: Heli Tuksam
Eelnevate kirjelduste põhjal on rosettide elementidest ja muudest olulistest terminitest koostatud väike sõnastik koos näidiste ja joonistega. See võib olla abivahendiks nii tudengitele kui ka juba tegutsevatele konservaatoritele, aga ka kunsti- ja arhitektuuriajaloo huvilistele.
Koostajad: Heli Tuksam ja Riina Padar

AADERDUS ehk AADERDAMINE –puiduimitatsioon eseme värvitud pinnal, et anda sellele lisaväärtust. Aaderdatakse tavaliselt seinu, uksi, aknaid ja mööblit. Tehnika järgi jaguneb teostus kalja- ehk õlleaaderduseks ja õliaaderduseks. Õlleaaderdusega saavutatakse peenem ja täpsem tulemus. Pildil: Lai 36 söögisaali aaderdatud lagi.

AKANTUS (kr k akantha ‘okas’) –Vahemeremaades kasvava karusõra lehtedest kujundatud ornament, mida on rohkelt kasutatud Antiik-Kreekast (võeti kasutusele 5. saj eKr) historitsismini, eriti armastatud klassitsismis. Ornamendina on akantus tavaliselt vähem või rohkem stiliseeritud ning võib looduses esinevast karusõralehest tugevasti erineda. Antiigis kasutati akantust ennekõike korintose samba kapiteeli kujunduses ja friisidel väänlana, bütsantsi ja romaani kunstis kapiteelide kujunduses ja raidornamentikas, renessansist
alates on akantuse kasutus laienenud pea kõikjale. Igal ajastul on akantust stiliseeritud erineval moel, antiigis lopsakas ja dünaamiline, keskaja kunstis jäik ja teravate nurgeliste lehtedega, barokis raskepärane ja kuhjatud, rokokoos peenejooneline jne.


AKANTUSE ÕIS JA ÕIEPUNG – Vahemeremaadelt pärineva karusõra õiest moodustuv arhitektooniline ornament.


ANTEEMION (kr k anthemion ‘õis, lill’) – taimornament, mis koosneb kas ühest või kahest erinevast motiivist: harilikult kuslapuu õiest, palmetist ja/või lootosõiest. Sageli ühendatud voluutide abil. Pildil: anteemionist inspireeritud friis Lai 36 eluruumis.


ARABESK (it k arabesco ‘araabia laadis’) – 1. Lineaarne pinda kattev taimornament, moodustub omavahel põimitud naturalistlikest taimeväätidest ja lehtedest (ennekõike euroopa kunstis). 2. Stiliseeritud taimornamentika või geomeetriline pinnaornament islami kunstis. Levis euroopa kunstis alates renessansist, euroopa vaste on MORESK . (Vt ka rinceau .)

FLEUR DE LIS (pr k ‘liilia’) ehk
PRANTSUSE LIILIA – Stiliseeritud liilia motiiv. Aastast 1179 kasutusel Prantsuse kuninga vapil.

GIRLAND (pr k guirlande) ehk VANIK, FESTOON – lintidega põimitud lille-, lehe- ja puuviljadega vanikut kujutav ornament. Seda leidub Vana-Kreeka ja Vana-Rooma ornamentides ning hiljem ka renessansi ja klassitsismi dekooris.

GILJOŠŠ (pr k guillochis) – arhitektuurne element, mis on moodustatud kahest või enamast põimitud paelast, mille avaused moodustuvad ümaratest elementidest.
Pildil: Lai 36 friis, mille nišiväljad on ühendatud giljošiliku motiiviga.


GREIF (kr k gryps ‘raisakotkas, kull’) – kotka pea ja tiivulise lõvi kehaga loom antiikmütoloogias. Euroopa ornamentikas kasutusel alates antiigist.

GRISAILLE (pr k gris ‘hall’) – hallikates toonides monokroomne maaling, mõnikord kullaga täiendatud, imiteerib sageli skulptuuri või reljeefi. Võeti kasutusele prantsuse hilisgooti vitraažis, eriti omane prantsuse 18. sajandi rokokoole.
HARPÜIA – Vana-Kreeka mütoloogias naisenäo ning linnutiibade ja -küünistega olend. Ornamentikas kasutatud alates renessansist.
KAHEKSANURK ehk OKTOGOON (ka OKTAGOON , kr k okto ‘kaheksa’, gonia ‘nurk’) – kaheksa tipuga geomeetriline vorm.

RING (pr k cannelure ‘vagu, soon’, ld k canna ‘pilliroog’) – vertikaalselt kulgevad rihvad ehk nõgusad ehisvaokesed samba, piilari või pilastri tüvesel. Pärit antiikarhitektuurist, kanneleeringut esineb ka ornamentikas. Kanneleerimine ehk rihvamine muudab samba tüvese näiliselt saledamaks.

KARTUŠŠ (ka RULLISORNAMENT, pr k cartouche ‘rull, ääristus’) –pooleldi lahtikeeratud paberirulli meenutava dekooriga ehisraam, mis ümbritseb näiteks kirja, embleemi või vappi kandvat kilpi. Seda kasutati ornamendimotiivina renessansi ja baroki dekooris ning historitsismis nende stiilide jäljendamisel.

KOMPOSIITMATERJAL ehk KOM
POSIIT (ld k compositus ‘kokku pandud’) – materjal, mis on valmistatud kahest või enamast erinevast materjalist, millel on sageli väga erinevad omadused. Reljeefseid interjööridetaile vormiti traditsiooniliselt kriidist, (loomsest) liimist, linaõlist ja vaigust. Nimetatakse tihti ka lühendatult KOMPOks. Taignalaadne mass surutakse vormi ja lastakse kuivada. Kuivanult on see materjal väga tugev ja vastupidav, kuid vajab kaitsvat kattekihti (värvi või lakki). Selline kiire ja soodne interjööridetailide valmistusviis sai populaarseks 18. sajandil, mil see asendas aeganõudva puunikerdustöö.
LOORBERIPÄRG – Vana-Kreekas ja Vana-Roomas oli kasutuses võidu sümbolina. Ka edu ja kuulsuse sümbol. Levinud motiiv ampiirstiilis.

LOOTOSÕIE MOTIIV – algselt egiptuse kunstis kasutatud lootosõiest inspireeritud ornamendi motiiv, hiljem levis ka kreeka kunsti.


MEANDER – geomeetriline paelornament lainjatest või täisnurkselt murtud joontest. Levinud motiiv antiikkunstis (eriti kreeka kunstis) ning antiigist lähtuvates kunstistiilides. Meandril on rohkelt variatsioone.
LÜNETT (pr k lunette ‘kuuke’) –poolringi- või segmenditaoline pind akna või ukse kohal, sageli kaunistatud maaliga (lünettmaal).
Pildil: näide Kiltsi mõisa etruski stiilis seinamaalingutest.

MEDALJON (pr k medallion ‘suur münt’) – Ovaalne või ümmargune ehismedaljoni meenutav raamistatud ornament.


MUNAVÖÖT – klassikaliselt muna- ja nooleotsakujundist koosnev profileeritud ehisliist. Munavööti kasutati eriti antiikkunstis ja -arhitektuuris.
Esineb palju variatsioone.
Pildil: Lai 36 eluruumi friis.
ODAOTS – antiigis ja ampiirstiilis kasutatud motiiv, võimu ja võidu sümbol.


MEREKARP – teokarbi motiiv, mida lisati dekooris tihti taimornamendile. Kasutati rohkelt baroki ja rokokoo perioodil, samuti historitsismis, kui jäljendatakse varasemaid stiile. (Vt ka rocaille.)


Odaots 1
1
PAELORNAMENT (ka STRAPWORK) – väänlevatest, ristuvatest ja põimuvatest paeltest moodustuv ornament, millega mõnikord on liidetud ka taime- või figuraalsed motiivid. Pärineb Vana-Rooma kunstist.

PAHKMIKORNAMENT (ka KÕHRORNAMENT, KNORPEL) – kõrvalestakujuliseks keerdunud plastiline dekoorielement, mis on omane renessansile ja varabarokile. Mõjutas rocaille' motiivi kujunemist.

PALMETT (pr k palmette ‘väike palm’) – rangelt sümmeetriline lehvikukujuline palmilehti kujutav ornament. Esineb üksikmotiivina ja ka friisina. Selle motiivi juured ulatuvad Vana-Egiptusesse.


PAPJEEMAŠEE (pr k papier-mâché ‘nätsutatud paber’) – materjal ja tehnika, mida kasutatakse ruumiliste objektide valmistamiseks. Papjeemašee peamised komponendid on liimaine ja paber. Vahel kasutatakse ka kipsi või kangast, vastavalt kas sidususe või elastsuse suurendamise eesmärgil. Kasutati esmalt Idamaades, hiljem muutus populaarseks ka Euroopas.
PAUSEERIMINE (ka PUNTSEERIMINE) – ornamendi alusele kandmise meetod, kus joonisele tehakse mustrit järgides tihedalt väikesed augud, mida alusele asetades tupsutatakse värvilise pigmendiga. Nii tekib mustrist punktidest moodustuv jäljend. Pildil: pauseeringu trafarett Kiltsi mõisast pärit motiiviga.

PÄRG – võrukujuline okstest või taimelehtedest punutis.
Pildil: lookleva taimepärjaga rosett Kiltsi mõisas.

PÄRLINÖÖR (ka PÄRLVÖÖT, HELMESNÖÖR) – Vana-Kreeka arhitektuurist pärit väikestest üksteise kõrvale reastatud poolkeradest (nn pärlitest) koosev ornament. Algselt oli pärlinöör ruumiline, aga uusaja dekoratiivmaalingutes kohtab ka illusoorset maalitud pärlinööri. Sageli on helmeste vahel ka nn LAMBAKEEL – lapiku ketta taoline detail.

ROCAILLE (pr k ‘meri- või jõekarpide killud’), ka ROKAI, ORVAND – C- ja S-kujuliste detailidega ääristatud peenelt liigendatud asümmeetriline teokarbimotiiv. Tüüpiline rokokooajastu ornament, esineb paljudes variatsioonides.

RINCEAU (pr k, ka RINCEAUX ) –dekoratiivmuster levib järjestikuse lainetava joonena, koosnedes taimsetest leherühmadest või rootsudest ning rühmad hargnevad korrapärase rütmiga. Kasutatakse sageli siis, kui muster levib laiemas tsoonis. Inglise keeles ka SCROLL , eriti, kui muster on korrapärane, kordudes piki kitsast tsooni.

ROSETT (pr k rosette ‘roosike’) – stiliseeritud lille- või roosiõit jäljendav ümmargune dekoorimotiiv. Kasutatakse alates antiigist, ka gootikas. Roosakna põhivorm.

STUKK (it k stucco) – kipsist ja veest (sageli lisati ka muid aineid, nagu lupja ja liiva) segatud kiiresti kivistuv mass, millest vormitakse või valatakse seina- ja laekaunistusi (stukkdekoor). Eriti palju kasutati seda baroki, rokokoo ja klassitsismi ajal. Kasutusel ka üldmõistena muudest materjalidest (nt kompo, papjeemašee) ruumiliste dekoratsioonide puhul.
Pildil: Sargvere mõisa stukk ja Kuremaa lossi lae stukk-karniis.


SUPRAPORT (it k sopraporte, ld k supraporte ‘ukse kohal’) – portaali või ukse kohal asuv raamitud pind maalingu või reljeefi jaoks. See võib asetseda seinal omaette või olla kujunduslikult seotud ukseraamistusega. Eriti levinud barokk- ja rokokooarhitektuuris.
Ülemisel fotol: näide Kiltsi mõisa maalitud suprapordist urnimotiiviga. Alumisel fotol: Lai 36 esimesel korrusel asuva salongi maalitud supraport.


TAIMORNAMENT – taime lehti, oksi, õisi, varsi või teisi osi realistlikult või stiliseeritult jäljendav ornament. On olnud kasutuses kõigis kunstistiilides. Palju alaliike: arabesk, akantus, palmett, köitraagornament, lootosõie motiiv, granaatõuna muster jne.

TRAFARETT (ka ŠABLOON , it k trafaretto ‘auklikuks tehtud’) –leht või plaat, millesse on lõigatud tähed või joonised alusmaterjalile kandmiseks. Kasutati lihtsamate mustrite tegemiseks või ka keerukate kompositsioonide teostamisel abivahendina.

TSENTRAALSÜMMEETRIA – keskpunktist lähtuv sümmeetria.
URN (ld k urna) – kõrgem hrl vaasilik jalaga ja kaanega anum, mida kasutati Vana-Kreekas lahkunu tuha hoidmiseks. Urnmatused levisid Euroopas juba nooremal pronksiajal (nn urniväljade kultuur II aastatuhandel). Ampiirstiilis levinud element.

VAAS (ld k vas ‘nõu’) – savist, kivist, klaasist või muust materjalist tarbevõi dekoratiivnõu. Ornamentikas populaarne motiiv. Enam levinud antiikvaaside tüübid on näiteks amfora (1), hüdria (2) ja küüliks (3). Pildil: Lai 36 teise korruse saali vaasornament.

VIINAPUU VÄÄT – kasutatakse tihti taimse ornamendi moodustamiseks.

VOLUUT (ld k volutus ‘keerdu tõmbumine’) – spiraalselt rulluva otsa või otstega ehismotiiv. Kasutati näiteks vertikaalse joone üleminekul horisontaalsele. Iseloomulik joonia sambale, esineb ka korintose orderis. Uuesti tuli kasutusele renessansi ajal. Pildil: maalitud voluutidega joonia sammas Kiltsi mõisa torniruumis.

Bielefeld, C. F. (1842). Bielefeld’s papier mache ornaments. On the use of the improved papier-mache in furniture, in the interior decoration of buildings, and in works of art. London. https://archive.org/details/OnTheUseOfTheImproved Papier-mchInFurnitureInTheInterior/mode/2up
Bäumer, W., Schnorr, J. (1863). Gewerbehalle: Organ für den Fortschritt in allen Zweigen der Kunstindustrie. Stuttgard: Engelhorn. https://www.digitale-sammlungen.de/en/view/ bsb10694072?page=,1
Eesti arhitektuur 3. (1997). Üldtoim. Raam, V. Tallinn: Valgus.
Eesti kunsti ajalugu 3. 1770–1840. (2017). Peatoim. Kodres, K. Tallinn: Tallinna Raamatutrükikoda.
Eesti mõisaportaal. Kiltsi mõis. https://www.mois.ee/viru/ kiltsi.shtml
Eesti mõisaportaal. Esna mõis. https://www.mois.ee/jarva/ esna.shtml
Hein, A. (2011). Kiltsi mõis. Narva: VR Kirjastus.
Hisour - Hi So You Are. Historicist Arcitecture. https://www. hisour.com/historicist-architecture-33793/
Jones, O. (2006). The grammar of ornament. Lyon: PCM.
Kiltsi kaardiloss. http://kiltsimois.ee/kaardiloss/lossi-ajalugu/ Kodres, K. (2001). Ilus maja, kaunis ruum. Tallinn: Prisma Prindi Kirjastus.
Kunstileksikon. (2001). Toim. Laidre, S., Ootsing, S., Rajasaar, I. Tallinn: Eesti Klassikakirjastus.
Maiste, J. (1966). Eestimaa mõisad. Tallinn: Kunst.
Meyer, F. S. (1957). Handbook of ornament : a grammar of art industrial and architectural designing in all its branches for practical as well as theoretical use. New York: Dover.
Männisalu, M. (1980). Paide rajoon, Esna mõisa ajalooline õiend. ENSV Riiklik Ehituskomitee, Kultuurimälestiste Riiklik Projekteerimise Instituut. https://register.muinas.ee/ftp/ DIGI_2013/pdf/eraT-0-76_001_0010636.pdf
Narusk, V. (2010). Pompei maalingud Eestis Kiltsi mõisa näidetel. Lõputöö. Tartu Kõrgem Kunstikool. Kättesaadav Kõrgema Kunstikooli Pallas raamatukogust.
Pärnoja, R. (2011). Muinsuskaitse eritingimused Lai 36 hoone ja kinnistul asuva endise tall/vankrikuuri restaureerimis- ja remonttööde projekti koostamiseks. ARC Projekt OÜ. Tartu.
Ranniku, V. (1978). Eesti NSV mõisate esialgne ülevaade. Paide rajoon, I köide. ENSV Riiklik Ehituskomitee, Kultuurimälestiste Riiklik Projekteerimise Instituut. https://register. muinas.ee/public.php?menuID=archivalmaterial&action=view&id=310
Rohtla, N. (2001). Esna mõisa peahoone uuringute aruanne. Mõisaprojekt OÜ.
Rohtla, N. (2011). Kiltsi mõisa peahoone ja tiibhoonete restaureerimine. Muinsuskaitse aastaraamat 2010, lk 6–9. https:// www.muinsuskaitseamet.ee/sites/default/files/content-editors/trykised/muinsuskaitse_aastaraamat_2010-1.pdf
Tuksam, H. (2011). Kiltsi mõisa seinamaalingud. Maaleht, 05.01.2011. https://maaleht.delfi.ee/artikkel/43904171/ kiltsi-moisa-seinamaalingud
Tuksam, H., Ülesoo, T., Padar, R. (2019). Elamu Tartus Lai 36 siseviimistlusuuringute aruanne. Kõrgem Kunstikool Pallas. Tartu.
Vikipeedia/Wikipedia
Wilson, E. (1994). 8000 years of ornament. London: British Museum Press.
Üprus, H. (1965). Ehitusmälestis Tartus, Mitšurini tn 36. Ajalooline kirjutis. Eesti NSV Ministrite Nõukogu Riiklik Ehituskomitee, Teaduslik Restaureerimise Töökoda. https:// register.muinas.ee/public.php?menuID=archivalmaterial&action=view&id=4194
