XDXDXD

Page 1

PRE EXISTENCIAS

T5 16
AV: CASUARINAS
C A L L E A L A M O S

ZONIFICACION

VISTA AMPLIACION DEL TERRENO VISTA DE LA INTEGRACION DEL SEGUNDO NIVEL
T6 ESTRATEGIAS DEL ENTORNO INMEDIATO
8 ACTUAL Y PROPUESTA CALLE
LOS ALMENDROS
AV. CASUARINAS

ZONIFICACION

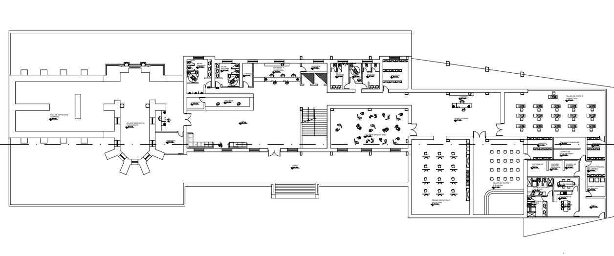
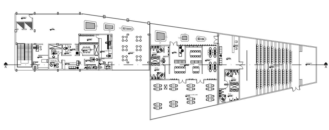
TERRAZA TALLERES BIBLIOTECA

MUSEO MANTENIMIENTO Y SERVICIO DEPOSITO ADMINISTRACIÓN

RECEPCIÓN TALLERES CAFETERIA AUDITORIO

MUROS POR MANTENER MUROS POR DEMOLER MUROS EN MAL ESTADO

0 5 10 20 25 m.
MUSEO T6 ESTRATEGIAS DEL ENTORNO INMEDIATO
CAFETERIA
BIBLIOTECATALLERES MANT. Y SERV. RECEPCIÓN TALLERES AUDITORIO ADMIN. DEPOSITO TALLERES TERRAZA
T6
ESTRATEGIAS DEL ENTORNO INMEDIATO PLANOS
T6

Turn static files into dynamic content formats.

Create a flipbook
Issuu converts static files into: digital portfolios, online yearbooks, online catalogs, digital photo albums and more. Sign up and create your flipbook.