fortin

Page 1

INTEGRANTES: DÍAZ ORRILLO JOSE ALEXANDER ORTIZ DELGADO SARITA MARIAM
CONTENIDO T1 UBICACION PUBLICO OBJETIVO JUSTIFICACIÓN PROBLEMATICAS T2 IDEA RECTORA PROGRAMA CULTURAL T3 PROPUESTAS
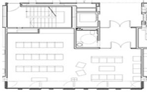
LIMA CARABAYLLO 0% 10% 20% 30% 40% ADULTO MAYOR ADULTO JOVEN ADOLECENTE NIÑO SECTOR MICRO ÁRESAS VERDES HACIENDA "EL FORTÍN" T1 UBICACION - PUBLICO OBJETIVO JUSTIFICACIÓN PROBLEMATICAS ANÁLISIS LEYENDA 4 UBICACION 9% POBLACIÓN POR EDADES 25% 40% 35% 18% UBICACIÓN : LIMA NORTE METROPOLITANA USO DE LA ÉPOCA: HACIENDA COLONIAL USO ACTUAL: DESDE JULIO DE 1980 ESTE LUGAR ES PATRIMONIO CULTURAL ALTURA MÁXIMA APROXIMADA: 8 METROS ÁREA: 1 6 HECTÁREAS ÁREA CONSTRUIDA: 79380 M2 ALTURA PROMEDIO DEL ENTORNO: 12 METROS POBLACIÓN TOTAL: 333,039 HABITANTES PUBLICO OBJETIVO AV.JOSÉSACO AV.JOSÉSACO LOSEUCALIPTOS AV.CAMREAL AV.A 10 AÑOS - 19 AÑOS 19 AÑOS - 25 AÑOS AV. JOSE SACO AV. PANAMERICANA NORTE PUENTE PIEDRA AV. CAMINO REAL AV TUPAC AMARU AV.CASUARINAS

CULTURAL - CASA PRINCIPAL

la zona cultural se delimita mediante el canal de riego

PROBLEMATICAS

Falta de conservacion de la hacienda

se promueve el turismo

Falta de identidad cultural de la mayoria de los pobladores.

Dentro del entorno no existe un centro que promuva la identidad cultural y que beneficie a los pobladores.

La falta de servicios basicos como electrecidad agua potable y saneamiento

La mayor parte del la edificaci se encuentra materiales deficientes como el techo, piso y paredes.

FICACIÓN

75% 25% 45% 15%
La casa posee formas coloniales en los contrafuertes y los vanos
No
CONSERVACION TURISMO IDENTIDAD CULTURAL EQUIPAMIENTO CULTUAL 5

MUTACION - ADN

ElGen:parte inportante derestauracion

Estadoactual

ElGenfunciona como integracionde apoyoprincipal

Unaedificacion restauradayhabitada

Estadofinal

En conclusión la hacienda fortín en este caso la casa principal viene a ser el ADN como parte importante de la zona y la restauración viene a ser el CROMOSOMA que se agrega para dar vida de nuevo a la edificación, con nuevos espacios y con un nuevo desarrollo cultural. Siempre respetando su forma inicial.

T2 IDEA RECTORA PROGRAMA ARQUITECTONICO CONCEPTO 6
7 PÚBLICO OBJETIVO PASAJERO FAMILIAS 40% ESTUDIANTES 85% TRABAJADORES 35% TURISTAS 30% OBJETIVOS GENERALES Conservar gran parte de la infraestructura de la hacienda el Fotin ya que cuenta con sucesos históricos Construir ambientes que ayuden a potencializar el valor histórico El turista o visitante tendrá contacto directo con la cultura Incentivar el respeto y cuidado por el patrimonio local Influir en el desarrollo turístico social, urbano y cultural PUBLICO OBJETIVOT2 PUBLICO OBJETIVO PERMANENTE 12% ANCIANOS NIÑOS Y JOVENES CON ALGUNA DISCAPASIDAD 18% 24% FAMILLAS VICITANTES 32% 45% JOVENES VICITANTES TRANSEÚNTES LOCALES
1 2 T3 ESTRATEGIAS DEL ENTORNO INMEDIATO PROPUESTAS 8 SKATE PARK LOSA DEPORTIVA ZONA DE RECRACIÓN CON EL FIN DE JUNTAR A LOS JOVENES DEL DISTRITO PARA REALIZAR DEPORTE Y CONOCER DE MANERA INDIRECTA LA CULTURA DE SU DISTRITO KIOSCOS CULTURALES ZONA DE ENCUENTRO PARA COMPARTIR Y CONSUMIR ALIMENTOS PROPIOS DE LAS ACTIVIDADES Y COSTUMBRES DE CARABAYLLO TALLERES AL AIRE LIBRE TALLER DE MANUALIDADES AL AIRE LIBRE CON EL FIN DE EXIBIR A LOS TRANSEUNTES UNA DE LAS ACTIVIDADES QUE SE REALIZAN DENTRO DEL CENTRO CULTURAL PANELES UBICADOS EN DISTINTOS PUNTOS DEL FORTIN CONLE OBJETIVO DE MANIFESTAR DE MANERA INDIRECTA LA CULTURA A SECTOR INSTITUCIONAL 7 8 A
5 6 NTRALMA G 1 2 3 4 5 6 9 ESTACIONAMIENTO INTERACCION CON LA PREEXISTENCIA PUNTO DE UNION CON EL RECORRIDO HISTORICO , ADEMAS TRATAMIENTO AL CANAL DE RIEGO EXPRESANDO LAS FORMAS DE LA HACIENDA EL FORTIN ALAMEDA PUNTO CENTRAL DE LA ALAMEDA QUE PERMITE LA UNION CON LA HACIENDA EL FORTIN ACCESO PEATONAL QUE RECORRE DESDE LA AV A HASTA LA AV JOSE SACO ROJAS JUEGOS PANELES PALMERA MOLLE AMPLIACIÓN
1 SKATE PARK LOSA DEPORTIVA AV.JOSESACO T3 ESTRATEGIAS DEL ENTORNO INMEDIATO JUSTIFICACIÓN 10 SKATE PARK - LOSA DEPORTIVA CONCLUSIÓN: SE VA A MANTENER LA LOSA DEPORTIVA QUE SE ENCUENTRA DENTRO DE LA HACIENDA ASI MISMO SE PLANTEA UN SKATE PARK DENTRO DEL FORITN PROPUESTA 1 DATOS 1 1 CALLE LA ARBOLEDA 2 CALLE SIN NOMBRE 3 CALLE LOMA ALEGRE 2 3 4 DENTRO DE CARABAYLO NO SE IDENTIFICA NINGUN SKATE PARK. ESTRATEGIAS JUNTAR A LOS JOVENES DEL DISTRITO PARA REALIZAR DEPORTE Y BRINDAR DE MANERA INDIRECTA LA CULTURA DE SU DISTRITO AV.A AV .CASUARINAS PALMERASLOSEUCALIPTOS AV.JOSÉSACO PALMERAS CALLE S.N CALLE.S.N AV.CASUARINAS LOSALMENDROS
2 3 3 3 3 PALMERAS KIOSCO PLATOS TIPICOS PALMERAS AV.JOSÉSACO KIOSCOS FRUTAS 11 CONCLUSIÓN: SE PLANTEA KIOSCOS CULTURALES DONDE SE VENDAN ALIMENTOS TIPICOS DE LA ZONA COMO CAÑA DE AZUCAR , SANDIA, CUY CHACTADO, CHICHARRON DE CHANCHO PROPUESTA 2 DATOS 1 1 AV JOSE SACO 2 AV JOSE SACO 3 AV CAMINO REAL 4 CARABAYLLO ES ZONA AGRICOLA, POR ELLO EXISTE COMERCIO AMBULATORIO. ESTRATEGIAS CREAR UNA ZONA DE ENCUENTRO PARA COMPARTIR Y DEGUSTAR LOS ALIMENTOS PROPIOS DE LAS ACTIVIDADES Y COSTUMBRES DEL SECTOR INCENTIVANDO LA CULTURA. AV.A AV .CASUARINASLOSEUCALIPTOS CALLE.S.N AV.CASUARINAS LOSALMENDROS KIOSCOS CULTURALES 21 1 2 AV.CAMINOREAL AV.JOSESACO CALLE.S.N
3 CONC FREN GENER SOBRE CULTU LA A PR 4 AV.JOSÉSACO DPALMERAS DATOS CALLE.S.N CALLE.S.N D AV .CASUARINAS T3 ESTRATEGIAS DEL ENTORNO INMEDIATO JUSTIFICACIÓN 12 PROPUESTA 3 DATOS3 SE PLANTEA UN RECORRIDO HISTORICO CULTURAL CON EL FIN DE GENERAR UN INGRESO DINAMICO AL ZONA DE MUSEO TALLERES AL AIRE LIBRE RECORRIDO HISTORICO AV.CASUARINAS EL RECORRIDO HISTORICO BRINDA INFORMACION DE LA HACIENDA DESDE SU INICIO HASTA LA ACTUALIDAD 4 LOSALMENDROS 1 2 POSEE TRATAMIENTO VERDE CON UN RECORRIDO QUE GIA HACIA LA HACIENDA DESDE LA CALLE LOS ALMENDROS 3 SECCIÓN A A A A
5-6 CONC IRRIGA INTER CON E EL C PR IONAMIENTO AV.JOSÉSACO PALMERAS DATOS T3 ESTRATEGIAS DEL ENTORNO INMEDIATO JUSTIFICACIÓN 13 PROPUESTA 5 - 6 DATOS5 SE PLANTEA UNA ALAMEDA QUE RECORRA LA HACIENDA ACOMPAÑADA DE ACTIVADES AV .CASUARINAS 7-8 INTERACCION CON LA PREEXISTENCIA NTRAL EDA ACTUAL CANAL ACTUAL CANAL EL CANAL DE IRRIGACIÓN ABASTECE DE AGUA A LA HACIENDA EL FORTIN Y ADEMAS A LOS SEMBRIOS DE TODO EL SECTOR 5 6 SE PLANTEA UNA PLAZA CENTRAL CON EL FIN D GENERAR UN PUNTO DE ENCUENTRO ENTRE L ALAMEDA Y LA AVENIDA CASUARINAS, ADEMAS D JERARQUIZAR EL SECTOR 87 LOSALMENDROS GYM CARTES JUEGOS KIOSCO DATOS6 CALLE LOS ALMENDROS SE PLANTEA EL ESTACIONAMIENTO EN LA CALLE LOS ALMENDROS CON EL FIN DE GENERAR FRENTE A LA AVENIDA ACTIVIDADES ACTRACTIVAS AL OJO HUMANO

HALL SALA DE ESPERA RECEPCION

Zona de Circulación

Area de uso 50m2

Zona de Circulación

Zona de Actividad

Area de uso 35m2

Zona de Circulación

Zona de Actividad

Area de uso 12m2

T3 PROGRAMA 14

ARCHIVO

Zona de Circulación

ona de Actividad

Area de uso 6m2

SS.HH. MUJERES

Zona de Circulación

Zona de Actividad

Area de uso 16m2

SS.HH. HOMBRES

Zona de Circulación

Zona de

Area de uso 20m2

T3 14
ZActividad

HALL OFICINA GENERAL OFICINAS

Zona de Circulación

Zona de Actividad

Area de uso 16m2

Zona de Circulación

Zona de Circulación

Zona de Actividad

Area de uso 12m2

Area de uso 20m2 Zona de Actividad

T3 15

SALA DE REUNIONES

Zona de Circulación

Zona de Actividad

Area de uso 20m2

KITCHENET

Zona de Circulación

Zona de Actividad

Area de uso 6m2

SS.HH HOMBRES

Zona de Circulación

Zona de Actividad

Area de uso 3 5m2

T3 15

HALL RECEPCION

Zona de Circulación

Zona de Actividad

Area de uso 25m2

Zona de Circulación

Zona de Actividad

Area de uso 10m2

OFICINA ADMINISTRATIVA

Zona de Circulación

Zona de Actividad

Area de uso 12m2

T3 15

SALA DE LECTURA CUBÍCULOS DE ESTUDIO

Zona de Circulación

Zona de Actividad

Area de uso 80m2

Zona de Circulación

Zona de Actividad

Area de uso 35m2

VIDEOTECA

Zona de Circulación

Zona de Actividad

Area de uso 60m2

T3 15

HALL TALLER DE MUSICA ALMACEN

Zona de

Zona

Zona de Circulación

de

Area de

Zona de Circulación

Zona de

Area de uso

T3 15
Circulación
uso 60m2
6m2 Zona
Actividad
Actividad Area de uso 20m2
de Actividad

TALLER DANZA

Zona de Circulación

Zona de Actividad

Area de uso 60m2

TALLER DE PINTURA

Zona de Circulación

Zona de Actividad

Area de uso 60m2

TALLER DE ARTESANIA

Zona de Circulación

Zona de Actividad

Area de uso 60m2

T3 15
T3 15 ALMACEN SS.HH. MUJERES SS.HH. HOMBRES Zona de Circulación Area de uso 6m2 Zona de Circulación Area de uso 16m2 Zona de Circulación Area de uso 20m2 Zona de Actividad Zona de ZActividad ona de Actividad

SALA EXHIBICION P

Zona de

Zona

Area de uso

SALA EXHIBICION C

Zona de Circulación

Zona

Area de uso 65m2

ALMACEN DE MUSEO

Zona de Circulación

Zona de

Area de uso 8m2

T3 15
Actividad
Circulación
65m2
de Actividad
de Actividad

HALL RECEPCION

Zona de Circulación

Area de uso 12m2

Zona de Circulación

Zona de Actividad

Area de uso 8m2

AREA DE BUTACAS

Zona de Circulación

Zona de Actividad

Area de uso 120m2

T3 15

ESCENARIO

Zona de Circulación

Zona de Actividad

Area de uso 30m2

CABINA DE SONIDO

Zona de Circulación

Zona de Actividad

Area de uso 8m2

ALMACEN

Zona de Circulación

Zona de Actividad

Area de uso 6m2

T3 15
T3 15
T3 15
T3 15
T3 15
T3 15
T3 15
T3 15
T3 15
T3 16 PRE EXISTENCIAS
T3 AV: CASUARINAS C A L L E A L A M O S
0 5 10 20 25 m. MUSEO MANTENIMIENTO Y SERVICIO DEPOSITO ADMINISTRACIÓN MUSEO T3 ESTRATEGIAS DEL ENTORNO INMEDIATO ZONIFICACION CAFETERIA MUROS POR MANTENER MUROS POR DEMOLER MUROS EN MAL ESTADO RECEPCIÓN TALLERES CAFETERIA AUDITORIO TERRAZA TALLERES BIBLIOTECA BIBLIOTECATALLERES MANT. Y SERV. RECEPCIÓN TALLERES AUDITORIO ADMIN. DEPOSITO TALLERES TERRAZA
VISTA AMPLIACION DEL TERRENO VISTA DE LA INTEGRACION DEL SEGUNDO NIVEL T3 ESTRATEGIAS DEL ENTORNO INMEDIATO ZONIFICACION 8 ACTUAL Y PROPUESTA CALLE LOS ALMENDROS AV. CASUARINAS
ANEXOS
ANEXOS
ANEXOS
ANEXOS

Turn static files into dynamic content formats.

Create a flipbook
Issuu converts static files into: digital portfolios, online yearbooks, online catalogs, digital photo albums and more. Sign up and create your flipbook.