AAAAAAAAAA

Page 1

SKATE PARCK

Zona de Circulación

Zona de Actividad

Area de uso 250m2

PLAZA CUTURAL ARTISTICO

Zona de Circulación

Zona de Actividad

Area de uso 120m2

ESTACIONAMIENTO

Zona de Circulación

Zona de Actividad

Area de uso 1200m2

15

PRE EXISTENCIAS

T5 16
AV: CASUARINAS
C A L L E A L A M O S

ZONIFICACION

VISTA AMPLIACION DEL TERRENO VISTA DE LA INTEGRACION DEL SEGUNDO NIVEL
T6 ESTRATEGIAS DEL ENTORNO INMEDIATO
8 ACTUAL Y PROPUESTA CALLE
LOS ALMENDROS
AV. CASUARINAS

ZONIFICACION

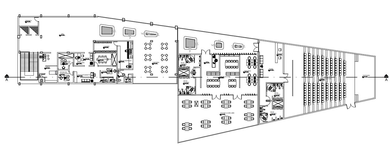
TERRAZA TALLERES BIBLIOTECA

MUSEO MANTENIMIENTO Y SERVICIO DEPOSITO ADMINISTRACIÓN

RECEPCIÓN TALLERES CAFETERIA AUDITORIO

MUROS POR MANTENER MUROS POR DEMOLER MUROS EN MAL ESTADO

0 5 10 20 25 m.
MUSEO T6 ESTRATEGIAS DEL ENTORNO INMEDIATO
CAFETERIA
BIBLIOTECATALLERES MANT. Y SERV. RECEPCIÓN TALLERES AUDITORIO ADMIN. DEPOSITO TALLERES TERRAZA
T6
ESTRATEGIAS DEL ENTORNO INMEDIATO PLANOS
T6

Turn static files into dynamic content formats.

Create a flipbook
Issuu converts static files into: digital portfolios, online yearbooks, online catalogs, digital photo albums and more. Sign up and create your flipbook.
AAAAAAAAAA by alexander diaz orrillo - Issuu