TALLER VI - S09,S2

Page 1

CHULUCANAS UBICACIÓN Y LOCALIZACIÓN2 Distrito de Chulucanas La Encatada Departamento de Piura Perú UBICADO A: 92 msnm ÁREA: 327 km2 PERIMETRO: 2471 15 m DENSIDAD POBLACIONAL: 158 11 Hab / km² DELIMITACION Norte Con el Centro Poblado Ñomala Rinconada y Nueva Esperanza Sur : Con Chulucanas Este Con el Centro Poblado de Yapatera Oeste : Con el Centro Poblado Sausal 01MARCO HISTORICO 02 MARCO CONSTRUIDO1 ABAST. DE SERVICIOS1.1 1.2 1.3 Piura Chulucanas 53 km 1H. 26MIN Estacionamiento de vehículos menores en áreas adyacentes a la vía nacional Tránsito de moto taxis en la vía nacional Distrito de Chulucanas fue fundado el 27 de junio de 1937 La Encantada es conocida por las múltiples historias que son contadas por los pobladores a lo largo de los años EQUIPAMIENTO URBANO LEYENDA Vivienda Vivienda Comercio Educación Industria Otros usos ÁREAS CRITICAS LEYENDA Área urbana critica Área ambiental critica Sectores de riesgo critico muy alto LEYENDA Nueva vía evitamiento Vía arterial Vía colectiva Ciclovía Vía peatonal MOVILIDAD URBANA SECTORES CRITICOS DE RIESGO Descarga y carga de productos en zonas adyacentes a la vía nacional Media Baja El estado de conservación de Chulucanas de viviendas es muy malo a regular No presenta sistemas constructivos no presenta un sistema constructivo adecuado 2 PLANO DE CLASIFICACION GENERAL DEL USO DE SUELOS LEYENDA Área urbana Área no urbana CONFLICTO VIAL2.1 LEYENDA Sectores críticos de riesgo + Conflicto vial remodelación de masas Botadero informal de residuos Zona en peligro por avulsión ESCENARIO TENDENCIAL3 ASPECTO SOCIO4 Mapa de sectorización LEYENDA Sector Urbano 01 Sector Urbano 02 Sector Urbano 03 Sector Urbano 04 Sector Urbano 05 Sector Urbano 06Sectores Urbanos Pavimentadas LEYENDA 50.00% 50.01 75.00% Mapa Hidrológico LEYENDA DE COBERTURA DE AGUA Ámbito de intervención Canal de irritación Redes de Agua LEYENDA Con cobertura Sin cobertura 5 03 MARCO NATURAL 1 ASOLEAMIENTO VELOCIDAD DE VIENTOS TOPOGRAFÍA CLIMATOLOGIA ✓ Zona andina subtropical, tiene un clima seco y fresco durante la mayor época del año ✓ Veranos calurosos ✓ Temperatura constante templada durante casi todo el año ✓ Inviernos templados, no tienen cambios bruscos ✓ Entre enero y septiembre la encantada tiene su temperatura entre 16°C hasta los 25°C ✓ Diciember y Abril 24 C a 32 C Temperaturas Máximas ROSA DE VIENTOS 2 Presenta una topografía poco variada y rocosa, existen terrenos planos, con algunas pendientes, normalmente practican la agricultura en extensas áreas de tierra F O D A ❑ Calidad de diseño y prestigio internacional de la cerámica de Chulucanas ❑ Existencia de áreas agro urbanas que pueden permitir el crecimiento de la ciudad ❑ Existencia de atractivos naturales e histórico culturales en el distrito y alrededores ❑ Demanda de productos agropecuarios con mercado asegurado a nivel regional y nacional ❑ Demanda de productos y servicios comerciales ❑ Existencia de áreas naturales protegidas ❑ Existencia de programas para impulsar al sector ❑ Existencia de intermediarios que generan bajos ingresos de los artesanos ❑ Desarrollo industrial bajo incipiente y disperso, con desarrollo informal de fabricación artesana de ladrillos de arcilla que genera impactos ambientales ❑ Infraestructura vial el mal estado, ocasiona congestión vehicular y difícil acceso a zonas de gran importancia, Cambio climático que alteran el medio ambiente, los procesos productivos y generan daños a la infraestructura ❑ Existencia de tráfico de terrenos en áreas de expansión urbana TRADICION Y COSTUMBRES Temporada alta de turistas, es en verano 2 04 MARCO CULTURAL https://issuu.com/ander_ray/docs/entrega_ final_de_centro_de_investigacion CULTURA Y COSTUMBRES Un lugar lleno de leyendas y ceramistas, con pobladores herederos de la cultura de los Vicús y Tallan en sus trabajos manifiestan sus costumbres, tradiciones, modo de vida REFERENTES Cerro Verde Mirador CATALAGO DE MATERIALES SISTEMA CONSTRUCTIVO Bambú Troncos Ramas Techo dos aguas Rocas Celosía INTERVENCIÓN ENFOQUE ECONOMICO ✓ MEJORAMIENTO DE VIAS, CICLOVIAS ✓ EQUIPAMIENTOS PEATONALES Y PAISAJISTAS ✓ PLANTAS DE RECICLAJE ✓ ENERGIA RENOBABLE (ENERGIA SOLAR) ENFOQUE TURISTICO ✓ TURISMO DE AVENTURA ✓ TURISMO RURAL ✓ TURISMO DE NEGOCIOS ENFOQUE URBANISTICO ✓ COMERCIO DE RECURSOS NATURALES ✓ COMERCIO GASTRONOMICO ✓ VENTA DE CERAMICA Y TALLERES ✓ REMODELACION DE HACIENDAS ✓ IMPLEMENTACION DE ZONAS DE ESTANCIA PARA CENTROS ARQUOLOGICOS ENFOQUE CULTURAL

un proyecto familiar que surge en el año 2010, el propietario Juan Carlo Espinosa Norori destino el uso de sus tierras para la construcción de un hotel eclógico, cuyo objetivo fundamental era lograr un aprovechamiento sustentable del sitio que integrara al hombre con la naturaleza.

DENTRO DE SU INFRAESTRUCTURA CUENTA CON:

Restaurante

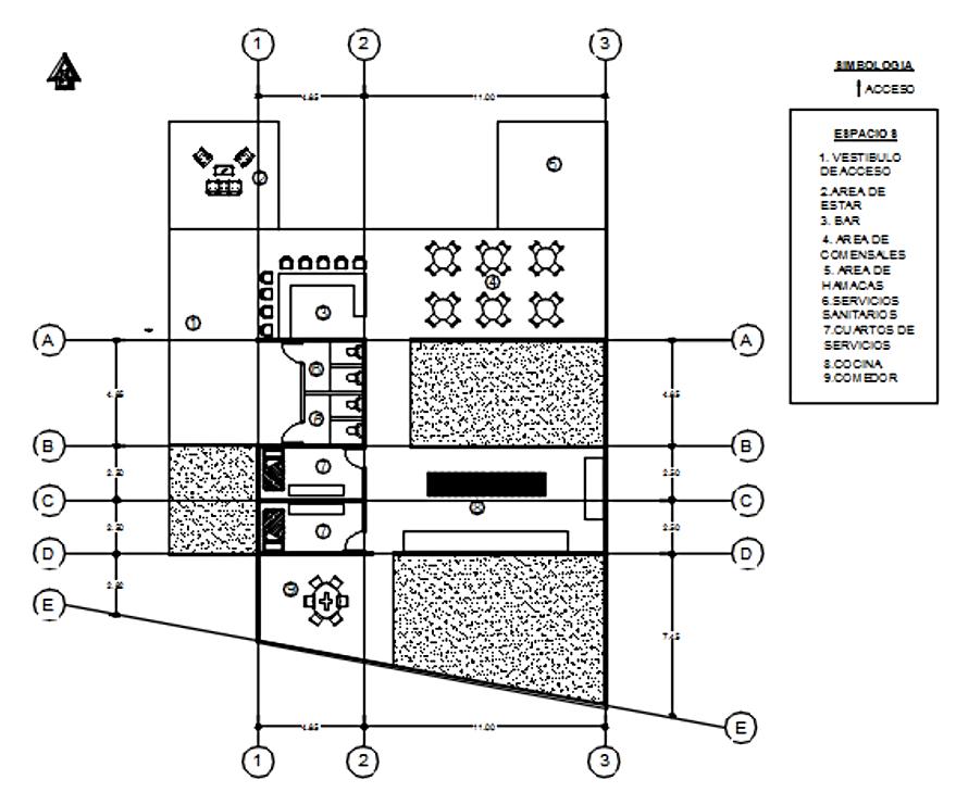
Cuenta con los siguientes espacios, posee son una zona pública y privada; zona publica se encuentra un lobby, un bar, área de comensales con vista al volcán Masaya, área de hamacas, mirador con una hermosa vista hacia la laguna y volcán Masaya, y baños públicos; en la zona privada se encuentra la cocina, en ella están 2 cuartos de servicio, lavandería, área de tendederos y el área de almuerzo de los trabajadores Este restaurante cuenta con un área de 180 m2

ANÁLISIS DE FORMA

Casa Hacienda

Posee dos cuartos con camas convertir en cama matrimonial), con están al lado de la Sala principal la mejor vista del Parque Nacional tienen un área de 19 m2 con un 11 5’

de la reserva Natural Volcán Masaya UNIVERSIDAD TECNOLÓGICA DEL PERU | UTP ALUMNOS: Leon Panta Nallely Agustina COD: 20228630 Alzamora Romero, Leila Roxany COD: 20207721 DOCENTES: ARQ. KARLA PATRICIA PALACIOS GONZALES ARQ. RENSO RODRISH CARRASCO JOCOPE “Hacienda Puerta Del Cielo Ecolodge & Spa” UBICACIÓN Y LOCALIZACIÓN: ÁREA DEL TERRENO: 8.452.8 h PROPIETARIO: Juan Carlos Espinosa Norori AÑO DE CONTRUCCION: 2010 TIEMPO DE CONTRUCCION: Año y medio MODELO A N A L O G O Venecia, Nimboja 2
Limite del terreno del proyecto En el municipio de Masatepe Nicaragua ESTILO ARQUITECTÓNICO: Es una mezcla de estilos tradicionales, techos se aplicaron estructura de cabañas que posee la hacienda Es
• Lobby casa Hacienda área de fumado • Restaurante (multifuncional) • Mirador • Cabañas • Spa • Viveros • Mariposario • Arboretum • Senderos
Mirador Sauna Senderismo Arboretum
Restaurante • • • • Casa • • • •

unipersonales (que se pueden con baños privados Estos cuartos de Casa Hacienda, la cual tiene Nacional Volcán Masaya Estos cuartos área de dormir de 12 m2 o 12’ x

Es la Casa más grande que posee la hacienda, tiene acceso directo a rio piscina entre sus áreas se destacan una terraza de madera, un baño privado y mini bar, y un Jacuzzi. Posee una vista increíble del Parque Nacional Volcán Masaya y del entorno existente Casa Linda posee un área de 45 m2 de los cuales 19 m2 son de dormitorio y 54 m2 pertenecen al área de Patio y deck

ANÁLISIS ESTRUCTURAL

Restaurante:

Cerramiento: Mampostería confinada de ladrillo de barro cocido

Estructura de techo: De madera

Cubierta de techo: Conformado por paja y tejas de barro

Acabados: detalles de madera, puerta y ventanas de madera, cielo raso de petates Paredes de adobe

Casa Hacienda y cabañas :

Cerramiento: Mampostería confinada con divisiones en su interior de durock Ladrillo de cerámica rojizo Estructura de techo: De madera Cubierta de techo: Está conformado tejas de barro y cielo falso de caña de castilla

Acabados: Detalles de madera, puertas y ventanas de madera, cielo raso de caña de castilla Paredes de concreto y divisiones de durock

Turistas

locales.

Pasadía.

hacienda posee 6 modelos habitaciones

bajo el mismo concepto:

Casa bela

Casa cayo

Casa blanca

Casa gabi

Casa juanca

Casa linda vista

Cada una de ellas cuenta con mini bar y patios privados (excepto LINDA VISTA) y todas gozan de una

Y FUNCIÓN tradicionales, con una combinación de sistemas constructivos; desde mampostería confinada, adobe, paja, bambú; en los madera cubiertas de tejas, pajas, como cielo se incorporó la aplicación de la caña de castilla en todas las MATERIALES
Hacienda Casa Linda Mampostería Bambú AdobePaja Madera Caña de castilla
Teja La
diseñados
MODELOS HABITACIONALES USUARIOS: •
extranjeros. Turistas
vista maravillosa de parque Nacional Volcán Masaya Poseen un área total 36 m2, distribuidas de la siguiente manera: • Dormitorio: 19 m2 • Áreas verdes privadas y deck: 29m2 • Servicio sanitarios: • Terrazas: Con respecto al modelo de la casa linda vista, esta varia en el dimensionamiento propuesto ya que posee un área de 32 mts2. cuenta con los siguientes ambientes; Minibar, servicio sanitario, terrazas, dormitorio Esta localizado junto a casa hacienda y tiene la mejor vista del sitio

1 Enfoque paisajista

Captación de agua

camino orgánico que

de espacios

las áreas

todo

este terreno

HOTEL

lugar

que

a

una

los mismos pobladores

estadía

lo que es un ambientes agradable y sostenible, apoyando a la economía y medio ambiente del lugar

brindando

Sistema de baterías con

solares

Bioconstrucción

UNIVERSIDAD TECNOLÓGICA DEL PERU | UTP ALUMNOS: Leon Panta Nallely Agustina COD: 20228630 DOCENTES ARQ. KARLA PATRICIA PALACIOS GONZALES ARQ. RENSO RODRISH CARRASCO JOCOPE
Enfoque sustentable Buen manejo del espacio abierto y los elementos que lo conforman (pendiente y camino hacia la catarata de citan) ARQUITECTURA BIOCLIMÁTICA ECO AMIGABLE SUSTENTABLE, basado en : • Medio natural ecológico que se integre con la naturaleza 2
pluvial
paneles
PLAN ESTARTEGICO E C O H O T E L - S P A El
serpentea
través
abiertos conecta todas
construidas y brinda
experiencia interesante a diferentes usuarios en
el sitio En
planteamos lo
es un ECO
y SPA, un
recreacional con
tanto para turistas como
,
así
MATERIALIDAD: Empleo de materiales saludables, biocompatibles e higroscópicos. Bambu Paja Madera Cob Mashrabiya
• Optimización de recursos naturales • Implantación de sistemas y equipos para el ahorro • Incorporación de sistemas y equipos de producción limpia • Programa de recuperación de residuos y depuración de vertidos • Manual de usuario para su utilización y mantenimiento Sistema constructivo pared a base de botella PET Arquitectura Vernacular CULTURA ACTUAL ARQUITECTURA RESPETUOSA ESTRUCTURADA FOLCLÓRICA TRADICIONAL COMÚN ORDINARIA Piedra Objetivo: intento de generar más conciencia en la importancia de la energía con el diseño y la construcción contemporáneos, como parte fundamental para las generaciones futuras de un interés más amplio en el diseño sustentable
6 GRAFICO DE FLUJO DE RESTAURANTE 5 GRAFICO DE FLUJO DE BUNGALOWS DUPLEX 4 GRAFICO DE FLUJO DE BUNGALOWS 2 Matriz General 1 DIAGRAMACION E C O H O T E L - S P A Matriz General ZONA DE HABITACION SIMPLE HALL SS.HH DORMITORIO CLOSET TERRAZA MENOR FLUJOMAYOR FLUJO ZONA RESTAURANTE HALL SS.HH COMEDORRECCEPCION BARRA BARCOCINA ALMACEN MENOR FLUJO MAYOR FLUJO 3 GRAFICO DE FLUJO DE HABITACIONES ZONA DE BUNGALOWS DUPLEX HALL SS.HH DORMITORIO 1 CLOSET TERRAZA MENOR FLUJO MAYOR FLUJO SALA KITCHENETTE DORMITORIO 2 ZONA DE BUNGALOWS HALL SS.HH DORMITORIO CLOSET TERRAZA MENOR FLUJOMAYOR FLUJO KITCHENETTE Recepción ZONA ADMINIST RATIVA ZONA INGRESO ZONA ECOLOGICA ZONA DE RECREACIO N ZONA HOSPEDAJE SERVICIOS GENERALES Lobby Mini granja Marketing Contabilida d Gerencia Habitación simple Habitación doble Cuarto de basura Comedor de servicios GYM Camping Zona cultural Oficinas Almacén Sala de espera Sala de espera Recursos humanos Bungalow simples Bungalow dúplex ESTACIOMA MIENTO Estaciona miento publico Estaciona miento privado SERVICIOS COMPLEME NTARIOS SPA segundo nivel SUNA SPA

P R O G R A M A

UNIVERSIDAD TECNOLÓGICA DEL PERU | UTP ALUMNOS: Leon Panta Nallely Agustina COD: 20228630 Alzamora Romero, Leila Roxany COD: 20207721 DOCENTES: ARQ. KARLA PATRICIA PALACIOS GONZALES ARQ. RENSO RODRISH CARRASCO JOCOPE
ZONOFCACION CHULUCANAS ESTADO ACTUAL DEL TERRENO2 UNIVERSIDAD TECNOLÓGICA DEL PERU | UTP ALUMNOS: Leon Panta Nallely Agustina COD: 20228630 DOCENTES: ARQ. KARLA PATRICIA PALACIOS GONZALES ARQ. RENSO RODRISH CARRASCO JOCOPE CATARTA DE CITAN CATARTA DE CITAN AREA DEL TERRENO Catarata de citan 11 12 TOMA DE PARTIDA1 CONCEPTO + LAND ART PROPUESTA SE RAMIFICA DISTINTOS 1 Ramifica la corriente del terreno Camino Distribución Espacios • Geometrización 13 11
Ingreso peatonal 1 5 7 6 4 2 3 10 8 9 RAMIFICA CREANDO CAMINOS del agua Al final tiene un punto de remate 2 LEYENDA: 1. Ingreso peatonal 2. Administración 3. Recepción 4. Zona de estancia 5. Semicautiverio de plantas y animales 6. Estacionamiento 7. Restaurante 8. Habitaciones 9. Habitaciones 10. Habitaciones 11. Piscina publica 12. Zona de camping 13. Mirador 14. SPA
UNIVERSIDAD TECNOLÓGICA DEL PERU | UTP ALUMNOS: Leon Panta Nallely Agustina COD: 20228630 DOCENTES: ARQ. KARLA PATRICIA PALACIOS GONZALES ARQ. RENSO RODRISH CARRASCO JOCOPE CHULUCANAS ESPACIOS PROPUESTOS4 8 9 11 13 12 10 CIRCULACION PARA EL TURISTA3 13 11 12 10 9 7
1 2 7 6 5 4 3 USUARIOS TURISMO EN PAREJA Exploren nuevos lugares con tours y experiencias románticas para 2 personas TURISMO DE AVENTURA Para los amantes de la naturaleza y lo salvaje, con actividades extremas en catarata, acantilados, bosques, senderos, etc... TURISMO DE CULTURAL Para los que disfrutan de la cultura de otras ciudades, ¡estos paquetes son ideales! TURISMO EN FAMILIA Exploren nuevos lugares con tours y experiencias para familias 6 4 3 1

Turn static files into dynamic content formats.

Create a flipbook
Issuu converts static files into: digital portfolios, online yearbooks, online catalogs, digital photo albums and more. Sign up and create your flipbook.