ENTREGA S07.S2 - TALLER VI

Page 1

TALLER DE DISEÑO ARQUITECTONICO VI (CURSO INTEGRADOR I) DOCENTES:

KARLA PATRICIA PALACIOS GONZALES

RODRISH CARRASCO JOCOPE

ARQ.
ARQ. RENSO
1 Leon Panta, Nallely Agustina COD: 20228630 Alzamora Romero, Leila Roxany COD: 20207721 2
CHULUCANAS UBICACIÓN Y LOCALIZACIÓN2 Distrito de Chulucanas La Encatada Departamento de Piura Perú UBICADO A: 92 msnm ÁREA: 327 km2 PERIMETRO: 2471 15 m DENSIDAD POBLACIONAL: 158 11 Hab / km² DELIMITACION Norte Con el Centro Poblado Ñomala Rinconada y Nueva Esperanza Sur : Con Chulucanas Este Con el Centro Poblado de Yapatera Oeste : Con el Centro Poblado Sausal 01MARCO HISTORICO 02 MARCO CONSTRUIDO1 ABAST. DE SERVICIOS1.1 1.2 1.3 Piura Chulucanas 53 km 1H. 26MIN Estacionamiento de vehículos menores en áreas adyacentes a la vía nacional Tránsito de moto taxis en la vía nacional Distrito de Chulucanas fue fundado el 27 de junio de 1937 La Encantada es conocida por las múltiples historias que son contadas por los pobladores a lo largo de los años EQUIPAMIENTO URBANO LEYENDA Vivienda Vivienda Comercio Educación Industria Otros usos ÁREAS CRITICAS LEYENDA Área urbana critica Área ambiental critica Sectores de riesgo critico muy alto LEYENDA Nueva vía evitamiento Vía arterial Vía colectiva Ciclovía Vía peatonal MOVILIDAD URBANA SECTORES CRITICOS DE RIESGO Descarga y carga de productos en zonas adyacentes a la vía nacional Media Baja El estado de conservación de Chulucanas de viviendas es muy malo a regular No presenta sistemas constructivos no presenta un sistema constructivo adecuado 2 PLANO DE CLASIFICACION GENERAL DEL USO DE SUELOS LEYENDA Área urbana Área no urbana CONFLICTO VIAL2.1 LEYENDA Sectores críticos de riesgo + Conflicto vial remodelación de masas Botadero informal de residuos Zona en peligro por avulsión ESCENARIO TENDENCIAL3 ASPECTO SOCIO4 Mapa de sectorización LEYENDA Sector Urbano 01 Sector Urbano 02 Sector Urbano 03 Sector Urbano 04 Sector Urbano 05 Sector Urbano 06Sectores Urbanos Pavimentadas LEYENDA 50.00% 50.01 75.00% Mapa Hidrológico LEYENDA DE COBERTURA DE AGUA Ámbito de intervención Canal de irritación Redes de Agua LEYENDA Con cobertura Sin cobertura 5 03 MARCO NATURAL 1 ASOLEAMIENTO VELOCIDAD DE VIENTOS TOPOGRAFÍA CLIMATOLOGIA ✓ Zona andina subtropical, tiene un clima seco y fresco durante la mayor época del año ✓ Veranos calurosos ✓ Temperatura constante templada durante casi todo el año ✓ Inviernos templados, no tienen cambios bruscos ✓ Entre enero y septiembre la encantada tiene su temperatura entre 16°C hasta los 25°C ✓ Diciember y Abril 24 C a 32 C Temperaturas Máximas ROSA DE VIENTOS 2 Presenta una topografía poco variada y rocosa, existen terrenos planos, con algunas pendientes, normalmente practican la agricultura en extensas áreas de tierra F O D A ❑ Calidad de diseño y prestigio internacional de la cerámica de Chulucanas ❑ Existencia de áreas agro urbanas que pueden permitir el crecimiento de la ciudad ❑ Existencia de atractivos naturales e histórico culturales en el distrito y alrededores ❑ Demanda de productos agropecuarios con mercado asegurado a nivel regional y nacional ❑ Demanda de productos y servicios comerciales ❑ Existencia de áreas naturales protegidas ❑ Existencia de programas para impulsar al sector ❑ Existencia de intermediarios que generan bajos ingresos de los artesanos ❑ Desarrollo industrial bajo incipiente y disperso, con desarrollo informal de fabricación artesana de ladrillos de arcilla que genera impactos ambientales ❑ Infraestructura vial el mal estado, ocasiona congestión vehicular y difícil acceso a zonas de gran importancia, Cambio climático que alteran el medio ambiente, los procesos productivos y generan daños a la infraestructura ❑ Existencia de tráfico de terrenos en áreas de expansión urbana TRADICION Y COSTUMBRES Temporada alta de turistas, es en verano 2 04 MARCO CULTURAL https://issuu.com/ander_ray/docs/entrega_ final_de_centro_de_investigacion CULTURA Y COSTUMBRES Un lugar lleno de leyendas y ceramistas, con pobladores herederos de la cultura de los Vicús y Tallan en sus trabajos manifiestan sus costumbres, tradiciones, modo de vida REFERENTES Cerro Verde Mirador CATALAGO DE MATERIALES SISTEMA CONSTRUCTIVO Bambú Troncos Ramas Techo dos aguas Rocas Celosía INTERVENCIÓN ENFOQUE ECONOMICO ✓ MEJORAMIENTO DE VIAS, CICLOVIAS ✓ EQUIPAMIENTOS PEATONALES Y PAISAJISTAS ✓ PLANTAS DE RECICLAJE ✓ ENERGIA RENOBABLE (ENERGIA SOLAR) ENFOQUE TURISTICO ✓ TURISMO DE AVENTURA ✓ TURISMO RURAL ✓ TURISMO DE NEGOCIOS ENFOQUE URBANISTICO ✓ COMERCIO DE RECURSOS NATURALES ✓ COMERCIO GASTRONOMICO ✓ VENTA DE CERAMICA Y TALLERES ✓ REMODELACION DE HACIENDAS ✓ IMPLEMENTACION DE ZONAS DE ESTANCIA PARA CENTROS ARQUOLOGICOS ENFOQUE CULTURAL
UNIVERSIDAD TECNOLÓGICA DEL PERU | UTP ALUMNOS: Leon Panta Nallely Agustina COD: 20228630 Alzamora Romero, Leila Roxany COD: 20207721 DOCENTES: ARQ. KARLA PATRICIA PALACIOS GONZALES ARQ. RENSO RODRISH CARRASCO JOCOPE MASTER PLAN PUNTO DE INICIO PUNTO FINAL 1 MALECON RIO ÑACARA PARQUE TEMATICO YAPATERA Y LA ENCANTADA 2 2 CALLE FERIAL GASTRONOMICO TELEFERICO ANFITEATRO, SALA DE EXPOSICIONES Y MIRADOR 5 6 MUSEO 0OVNI RESTAURANTE 7 8 9 10 11 12 PLANETARIO PARQUE AVENTURERO TORRE ESCÉNICA ECO HOTEL SPA LUGAR ESPIRITUAL 3 4 INICIO DE TELEFERICO 4 CATARATA DE KILOMETRO 50 CERRO VIVUS MIRADOR CHULUCANAS 10 11 12 PUNTO DE PARTIDA CHULUCANAS ZOOM A A ZOOM B B ZOOM A- A ZOOM B B MIRADOR PUNTO DE INICIO DE TELEFERICO MALECON RIO ÑACARA MUSEO AFROPERUANO CENTRO AGRICOLA CALLE GASTRONOMICA MIRADOR PUNTO FINAL MUSEO OVNI PLANETARIO PARQUE AVENTURERO PLANO ACTUAL Centro Chulucanas Kilometro 50 Catarata de citan CENTRO AGRICOLA EJE CULTURAL EJE COMERCIAL EJE TURISTICO CAMPING EJE VIAL REMODELACIÓN 1 MALECON RIO ÑACARA 2 MUSEO AFROPERUANO CENTRO AGRÍCOLA 3 CALLE FERIAL GASTRONOMICO BOULEVARD COMERCIAL 4 TELEFERICO 5 ANFITEATRO, MIRADOR Y PARQUE INFANTIL 6 RESTAURANTE 7 MUSEO OVNI 8 PLANETARIO 9 PARQUE AVENTURERO 10 TORRE ESCÉNICA 11 ECO HOTEL 12 SPA LUGAR ESPIRITUAL PLANO Vial Plan de Ciclo vía
Objetivo y metas: Diseñar un centro cultural que promueva un ambiente de información, buscando revelar al publico el significado del legado cultural e histórico de los bienes que se expone en Chulucanas y Yapatera pueblo cercano y lleno de historia y un centro de agrícola UBICACIÓN: Inicios de la ciudad, accediendo por la carretea principal, vía Ramon Castilla ÁREA Y PERIMETRO: 1000 m², 128m TOPOGRAFIA: Llano ACTIVIDADES: Información Exposición venta Objetivo y metas: Diseñar una estructura costera que resguarde la ciudad protegiéndola del avance del agua proporcionando a la vez un escenario abierto, que cuente con espacios confortables UBICACIÓN: Antes del mirador Ñañañique en toda la carretea principal Ramon Castilla. ÁREA Y PERIMETRO: 748.88 m², 122.81m. TOPOGRAFIA: Llano con una leve pendiente. ACTIVIDADES: Recreacional Avistamiento Paseo Objetivo y metas: Diseñar una feria gastronómica, en toda la calle del KM50 que permita la exhibición y venta de la riqueza gastronómica UBICACIÓN: En el km 50 . ÁREA Y PERIMETRO: 800 m², 162m. TOPOGRAFIA: Llano. ACTIVIDADES: Ventas Objetivo y metas: Diseñar un espacio comercial, que permita la exhibición y venta de cerámica y recursos naturales propios del lugar UBICACIÓN: Cruce con el km 50 ÁREA Y PERIMETRO: 423 50 m², 150 91m TOPOGRAFIA: Llano ACTIVIDADES: Ventas 1 E J E C O M E R C I A L F L O R A Y F A U N A M A T E R I A L E S MAL ESTADO • Ciclo vía • Paraderos • Vías de transporte pesado ESTADO ACTUAL ESTADO ACTUAL ESTRATEGIASESTRATEGIAS ESTADO ACTUAL ESTADO ACTUAL ESTRATEGIAS ESTRATEGIAS BOULEVARD COMERCIAL ARTEZANAL Y DE RECURSOS NATURALES CALLE FERIAL GASTRONOMICA KM 50 MALECON FRENTE AL RIO PARQUE TEMATICO / CENTRO AGRICOLA 2 E J E V I A L SECCIONES PROPUESTAS 22PROPUESTAS PARADEROS E J E C U L T U R A L
UNIVERSIDAD TECNOLÓGICA DEL PERU | UTP ALUMNOS: Leon Panta Nallely Agustina COD: 20228630 Alzamora Romero, Leila Roxany COD: 20207721 DOCENTES: ARQ. KARLA PATRICIA PALACIOS GONZALES ARQ. RENSO RODRISH CARRASCO JOCOPE Se tomo en cuenta este medio de transporte, para poder observar la naturaleza que nos rodea desde cada punto OBJETIVO Fomentar un recorrido atractivo por toda la zona agrícola + rio Diseñar uno de los puntos turísticos mas atractivos. RECORRIDO: Cerro ñañañique cerro citan TOPOGRAFIA: Montañoso Consiste en un espacio con vocación de mirador plaza en forma de anfiteatro; que aprovecha el desnivel entre la terraza inferior. Fue conceptualmente planteado como un punto de vista del entorno en el que se encuentra emplazado, se ubica en el cerro vicus en una ladera con vistas a las montañas TELEFERICO ESTADO ACTUAL Mirador contempla una historia, tanto haciéndole alusión a las manos de los artesanos, como la gran vista desde lo alto Al norte del anfiteatro mirador y el área de juegos se encuentra un área plana en la que se ha emplazado el parque infantil La proyección de espectáculos relacionados con la astronomía, llegada de los ovnis un gran ejemplo es el gran parque de ovnis en cusco. Se plantea generar un emocionante viaje cuenta abajo en la montaña rusa + teleférico que va a conectar con el cerro pilan Actividades ecoturísticas, se enmarcan en destinos especialmente de naturaleza Efectos físicos y espirituales del contacto con la naturaleza, cabañas y retiros CERRO ÑAÑAÑIQUE Cerro Vicus MIRADORCASA DE CERAMICA RESTAURANTE TEMATICO ZONIFICACIÓN REFENCIAL CERRO VICUS ESTRATEGIAS ANFITEATRO, SALA DE EXPOSICIONES Y MIRADOR ESTADO ACTUAL RESTAURANTE ESTRATEGIAS ESTRATEGIAS ESTADO ACTUAL ESTRATEGIAS ESTRATEGIAS 2 CERRO PILAN MUSEO OVNI ESTRATEGIASESTADO ACTUAL PLANETARIO PARQUE AVENTURERO OBJETIVO • Fomentar un recorrido atractivo por toda la zona. • Diseñar uno de los puntos turísticos mas atractivos en el cerro. Ubicación: Cerro Pilan muy famoso por los sucsos de avistamiento de ovnis Se plantea generar un planerario con temática de ovnis, es un punto interesande para los turistas y los mismos pobladores para que tengan un conocimiento acerca de este ESTADO ACTUAL ESTRATEGIAS TORRE ESCENICA CATARATA CITAN ESTADO ACTUAL ECO HOTEL SPA LUGAR ESPIRITUAL Espacio de gran altura en el cual el turista puede observar los alrededores, como la catarata, ESTRATEGIAS ESTRATEGIAS ESTADO ACTUAL ESTADO ACTUAL 1 4 5TOMAMOS EN CUENTA LOS SIGUIENTES PUNTOS: FLORA FAUNA MATERIALIDAD DE LA ZONA E J E T U R U S T I C O ESTRATEGIAS ESTRATEGIASESTADO ACTUAL ESTRATEGIAS

Masaya

En el municipio de Masatepe Nicaragua

DENTRO DE SU INFRAESTRUCTURA CUENTA CON:

• Lobby casa Hacienda área de fumado

• Restaurante (multifuncional)

• Mirador

• Cabañas

• Spa • Viveros

• Mariposario

• Arboretum

• Senderos

Restaurante

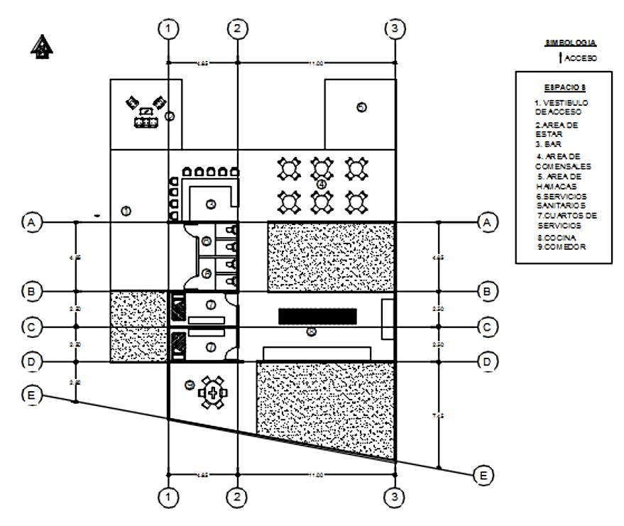
Cuenta con los siguientes espacios, posee son una zona pública y privada; zona publica se encuentra un lobby, un bar, área de comensales con vista al volcán Masaya, área de hamacas, mirador con una hermosa vista hacia la laguna y volcán Masaya, y baños públicos; en la zona privada se encuentra la cocina, en ella están 2 cuartos de servicio, lavandería, área de tendederos y el área de almuerzo de los trabajadores Este restaurante cuenta con un área de 180 m2

ESTILO ARQUITECTÓNICO: Es una mezcla de estilos tradicionales, techos se aplicaron estructura de cabañas que posee la hacienda

ANÁLISIS DE FORMA

Posee dos cuartos con camas convertir en cama matrimonial), con están al lado de la Sala principal la mejor vista del Parque Nacional tienen un área de 19 m2 con un 11 5

Es un proyecto familiar que surge en el año 2010, el propietario Juan Carlo Espinosa Norori destino el uso de sus tierras para la construcción de un hotel eclógico, cuyo objetivo fundamental era lograr un aprovechamiento sustentable del sitio que integrara al hombre con la naturaleza.

Casa Hacienda Mirador Sauna Senderismo Arboretum
de la reserva Natural Volcán
UNIVERSIDAD TECNOLÓGICA DEL PERU | UTP ALUMNOS: Leon Panta Nallely Agustina COD: 20228630 Alzamora Romero, Leila Roxany COD: 20207721 DOCENTES: ARQ. KARLA PATRICIA PALACIOS GONZALES ARQ. RENSO RODRISH CARRASCO JOCOPE “Hacienda Puerta Del Cielo Ecolodge & Spa” UBICACIÓN Y LOCALIZACIÓN: ÁREA DEL TERRENO: 8.452.8 h PROPIETARIO: Juan Carlos Espinosa Norori AÑO DE CONTRUCCION: 2010 TIEMPO DE CONTRUCCION: Año y medio MODELO A N A L O G O Venecia, Nimboja 2
Limite del terreno del proyecto
Restaurante • • • • Casa • • • •

Es

más

hacienda, tiene

Volcán Masaya

ANÁLISIS ESTRUCTURAL

Restaurante:

Cerramiento: Mampostería confinada de ladrillo de barro cocido

Estructura de techo: De madera

Cubierta de techo: Conformado por paja y tejas de barro

Acabados: detalles de madera, puerta y ventanas de madera, cielo raso de petates Paredes de adobe

Casa Hacienda y cabañas :

Cerramiento: Mampostería confinada con divisiones en su interior de durock Ladrillo de cerámica rojizo

Estructura de techo: De madera

Cubierta de techo: Está conformado tejas de barro y cielo falso de caña de castilla

Acabados: Detalles de madera, puertas y ventanas de madera, cielo raso de caña de castilla Paredes de concreto y divisiones de durock

Turistas

locales.

Pasadía.

MODELOS HABITACIONALES

sanitario,

casa hacienda y tiene

sitio

de sistemas constructivos; desde mampostería confinada, adobe, paja, bambú; en los madera cubiertas de tejas, pajas, como cielo se incorporó la aplicación de la caña de castilla en todas las Hacienda Casa Linda Mampostería Bambú AdobePaja Madera Caña de castilla
Y FUNCIÓN tradicionales, con una combinación
MATERIALES
unipersonales (que se pueden con baños privados Estos cuartos de Casa Hacienda, la cual tiene Nacional Volcán Masaya Estos cuartos área de dormir de 12 m2 o 12’ x
la Casa
grande que posee la
acceso directo a rio piscina entre sus áreas se destacan una terraza de madera, un baño privado y mini bar, y un Jacuzzi. Posee una vista increíble del Parque Nacional
y del entorno existente Casa Linda posee un área de 45 m2 de los cuales 19 m2 son de dormitorio y 54 m2 pertenecen al área de Patio y deck
Teja La hacienda posee 6 modelos habitaciones diseñados bajo el mismo concepto: • Casa bela • Casa cayo • Casa blanca • Casa gabi • Casa juanca • Casa linda vista
USUARIOS: •
extranjeros. Turistas
Cada una de ellas cuenta con mini bar y patios privados (excepto LINDA VISTA) y todas gozan de una vista maravillosa de parque Nacional Volcán Masaya Poseen un área total 36 m2, distribuidas de la siguiente manera: • Dormitorio: 19 m2 • Áreas verdes privadas y deck: 29m2 • Servicio sanitarios: • Terrazas: Con respecto al modelo de la casa linda vista, esta varia en el dimensionamiento propuesto ya que posee un área de 32 mts2. cuenta con los siguientes ambientes; Minibar, servicio
terrazas, dormitorio Esta localizado junto a
la mejor vista del

R R E N

FORTALEZAS

La reserva natural, catarata de citan y recursos turísticos

Excelente ubicación geográfica, topografía, flora y fauna

Variedad de atractivos turísticos

Presencia de guías turísticos

OPORTUNIDADES

El entorno natural es un potencial turístico para los visitantes

El proyecto traerá mejores plazas laborales para los pobladores

Facilidad de

para llegar al destino

IDEA RECTORA:

CATARTA DE CITAN

DEBILIDADES

Insuficiencia de guías turísticos bilingües a nivel turístico

No cuenta con suficientes vías vehiculares, estas son angostas y están de forma independiente.

Falta mayor equipamiento de recreación

AMENAZAS

Ausencia de planificación estratégica para el desarrollo turístico.

Posible abandono de las actividades económicas tradicionales por el turismo.

conocimiento del distrito y sus atractivos

CONCEPTO FORMAL

Se busca que la arquitectura cumpla un rol social y con ello una integración con los usuarios.

La idea parte en integrar exitosamente el proyecto con su entorno, ello mediante el uso de la forma de la catarata el proyecto se regirá en base a los principios ordenadores identificados en la forma como también el land art propuesto pero de manera mas abstracta y en su materialidad

02.
ANALISIS DE T E
O
UNIVERSIDAD TECNOLÓGICA DEL PERU | UTP ALUMNOS: Leon Panta Nallely Agustina COD: 20228630 Alzamora Romero, Leila Roxany COD: 20207721 DOCENTES ARQ. KARLA PATRICIA PALACIOS GONZALES ARQ. RENSO RODRISH CARRASCO JOCOPE
transporte
Poco
UBICACIÓN Y LOCALIZACION: PAIS PERÚ DEPARTAMENTO: PIURA 0m 50m 100m 150m 200m CHULUCANAS QUIRPON 01. ESTRATEGIA, ECO HOTEL - SPA: TURISTAS PARA LA VISITA DE LA CATARTA DE CITAN, BRINDANDO AGUA:

encontramos este terreno, creímos conveniente ya que podemos disfrutar de la pendiente y la cercanía a este

natural que es la

catarata

de

CRITERIOS
542 m 525 m 500m 491m RAMIFICAR LA CORRIENTE DEL AGUA EN EL TERRENO: • Camino • Distibucion • Espacios • GeometrizacionSe ramifica, creando distintos caminos, pero siempre llegando a un mismo punto 250m 300m 350m 400m 460m ÁREA: Libre, aproximado de 8 hectáreas RIESGOS: Terreno irregular, no cuenta con riesgo a inundación ÁREA INFLUYENTE: 80% recurrente ACCECIBILIDAD: Carretea Piura la vieja Morropón TEMPERATURA PROMEDIO: 32°C/ 15°C. VIENTOS: 13 km/h PRECIPITACIONES: 80% recurrente HUMEDAD RELATIVA: 21 % HORAS DE SOL: 12 horas y 25 minutos FOTO DEL TERRENO Camino a la catarata
recurso
famosa
Encontramos variedad
vegetación y arborización, ganado TURISTAS Respetar el entorno inmediato, considerando todos sus componentes: agua, suelo, flora y fauna, es paisaje, lo social, cultural y económico
A TOMAR EN CUENTA: Guanábana Plantas silvestres Palo santo Bambú COMPLEJO TURISTICO QUE RESPONDE A LA CONCURRENCIA DE LOS BRINDANDO ESPACIOS DE RELAJACION, ENTRETENIMIENTO Y ESTADIA. 542 m 525 m 500m 491m

P R O G R A M

UNIVERSIDAD TECNOLÓGICA DEL PERU | UTP ALUMNOS: Leon Panta Nallely Agustina COD: 20228630 Alzamora Romero, Leila Roxany COD: 20207721 DOCENTES: ARQ. KARLA PATRICIA PALACIOS GONZALES ARQ. RENSO RODRISH CARRASCO JOCOPE
A

E C O H O T E L - S P A

El camino orgánico que serpentea través de espacios abiertos conecta todas las áreas construidas y brinda una experiencia interesante diferentes usuarios en todo el sitio En este terreno planteamos lo que un ECO HOTEL y SPA, un lugar recreacional con estadía tanto para turistas como los mismos pobladores, brindando así lo que es un ambientes agradable y sostenible, apoyando a la economía y medio ambiente del lugar

Bioconstrucción

• Adecuada ubicación Integración en su entorno mas próximo Diseño personalizado Adecuada distribución de espacios Optimización de recursos naturales Implantación de sistemas y equipos para el ahorro

• Incorporación de sistemas y equipos de producción limpia

• Programa de recuperación de residuos y depuración de vertidos

• Manual de usuario para su utilización y mantenimiento

Sistema de baterías con paneles solares Sistema constructivo pared a base de botella PET e higroscópicos.
UNIVERSIDAD TECNOLÓGICA DEL PERU | UTP ALUMNOS: Leon Panta Nallely Agustina COD: 20228630 Alzamora Romero, Leila Roxany COD: 20207721 DOCENTES ARQ. KARLA PATRICIA PALACIOS GONZALES ARQ. RENSO RODRISH CARRASCO JOCOPE 1 Enfoque paisajista Enfoque sustentable Buen manejo del espacio abierto y los elementos que lo conforman (pendiente y camino hacia la catarata de citan) ARQUITECTURA BIOCLIMÁTICA, ECO AMIGABLE Y SUSTENTABLE, basado en : • Aprovechamiento de energía solar • Captación de agua pluvial • Aprovechamiento del recurso natural principal (la catarata) • Medio natural ecológico que se integre con la naturaleza 2 Piso base de barro cocido Pared a base de botella PET Columna de concreto para sistema confinado Estructura de soporte de cubierta de techo a base de entramado Captación de agua pluvial
PLAN ESTARTEGICO
MATERIALIDAD: Empleo de materiales saludables, biocompatibles
Bambu Paja Madera Caña Adobe
6 GRAFICO DE FLUJO DE RESTAURANTE 5 GRAFICO DE FLUJO DE BUNGALOWS DUPLEX 4 GRAFICO DE FLUJO DE BUNGALOWS 2 Matriz General 1 DIAGRAMACION E C O H O T E L - S P A Matriz General ZONA DE HABITACION SIMPLE HALL SS.HH DORMITORIO CLOSET TERRAZA MENOR FLUJOMAYOR FLUJO ZONA RESTAURANTE HALL SS.HH COMEDORRECCEPCION BARRA BARCOCINA ALMACEN MENOR FLUJO MAYOR FLUJO 3 GRAFICO DE FLUJO DE HABITACIONES ZONA DE BUNGALOWS DUPLEX HALL SS.HH DORMITORIO 1 CLOSET TERRAZA MENOR FLUJO MAYOR FLUJO SALA KITCHENETTE DORMITORIO 2 ZONA DE BUNGALOWS HALL SS.HH DORMITORIO CLOSET TERRAZA MENOR FLUJOMAYOR FLUJO KITCHENETTE Recepción ZONA ADMINIST RATIVA ZONA INGRESO ZONA ECOLOGICA ZONA DE RECREACIO N ZONA HOSPEDAJE SERVICIOS GENERALES Lobby Mini granja Marketing Contabilida d Gerencia Habitación simple Habitación doble Cuarto de basura Comedor de servicios GYM Camping Zona cultural Oficinas Almacén Sala de espera Sala de espera Recursos humanos Bungalow simples Bungalow dúplex ESTACIOMA MIENTO Estaciona miento publico Estaciona miento privado SERVICIOS COMPLEME NTARIOS SPA segundo nivel SUNA SPA

TOMA

PARTIDA

PRINCIPIOS BASICOS

C O N C E P T O

F O R M A L

Se busca que el la arquitectura cumpla un rol social, y con ello una integración con los usuarios La idea parte en integrar exitosamente el proyecto con su entorno, ello mediante el uso de la forma de la catarata. El proyecto se regirá en base a los principios ordenadores identificados en la forma como también el land art propuesto pero de manera más abstracta y en su materialidad

CONCEPTO

USUARIOS

TURISMO EN PAREJA

Exploren nuevos lugares con tours y experiencias románticas para 2 personas.

TURISMO DE AVENTURA

Para los amantes de la naturaleza y lo salvaje, con actividades extremas en catarata, acantilados, bosques, senderos, etc...

TURISMO DE CULTURAL

Para los que disfrutan de la cultura de otras ciudades, ¡estos paquetes son ideales!

LAND

UNIVERSIDAD TECNOLÓGICA DEL PERU | UTP ALUMNOS: Leon Panta Nallely Agustina COD: 20228630 Alzamora Romero, Leila Roxany COD: 20207721 DOCENTES: ARQ. KARLA PATRICIA PALACIOS GONZALES ARQ. RENSO RODRISH CARRASCO JOCOPE CHULUCANAS
DE
1
+
ART PROPUESTA
SE RAMIFICA CREANDO DISTINTOS CAMINOS 1 Ramifica la corriente del agua del terreno Camino Distribución Espacios Geometrización Al final tiene un punto de remate 2 Z O N I F IC A C I Ó N
ZONIFICACIÓN POR ZONAS NORMATIVA Catarata de citan INICIO IDEAS BIOHUERTO CAMPING MINI GRANJA SPA GYM BUNGALOWS BUNGALOWS SIMPLES RESTAURANTE ESTACIONA MIENTO ZONA DE INGRESO RECEPCIÓN + ADMINISTRACIÓNZONA CULTURAL LEYENDA ZONA ADMINISTRATIVA ESTACIONAMIENTO ZONA CULTURAL BAR RESTAURANTE BIOHUERTO ZONIFICACIÓN RIO + CATARATA ZONIFICACIÓN ZONIFICACIÓN ZONAS + SUB ZONAS ZONIFICACIÓN GENERAL

Turn static files into dynamic content formats.

Create a flipbook
Issuu converts static files into: digital portfolios, online yearbooks, online catalogs, digital photo albums and more. Sign up and create your flipbook.