3105 E 13th St

Page 1

3105E13thSt TheDalles,OR97058 Presented to you by: Molly Whiteman,Principal Broker
Offered At $725,000 3105E13thSt TheDalles,OR97058 MollyWhiteman Principal Broker,Licensed in Oregon 503.701.5022 molly.whiteman@cascadesir.com CascadeHasson Sotheby's International Realty 118 3rd Street,Hood River,OR97031

updated single level home on a stunning 57 acre lot just outside of city limits Property features include an attached 5 car garage, gated entry, in ground heated pool, new landscaping, views of the Washington Hills and Columbia River, a primary suite with walkin tile shower, heated tile floors and walkin closet. The open concept kitchen has granite counters, stainless steel appliances and a large farm sink. This stunning property has many features showing best in person!

3105E13thSt. TheDalles,OR97058 Newly
3 Bed, 3/ 0 Bat h, 1643 Sqft , $725,0 0 0
TableofContents PageNumber 05. 07. 08. 09. 10. RMLS Sheet Map Utilities Seller's Additional Information About the Property Seller's Interview ............ ............ ............ ............ ............ 12. Home .Improvements ........... 13. Seller's Favorite .Photos ........... 16. Disclosures and .Attachments ...........

MOLLY WHITEMAN REAL ESTATE

Map

Utilities

Water

Well

Sewer

Septic

Garbage

Dalles Disposal

PUD

Airconditioning

Pump

-
-
-
- Dalles
Electricity - Heat

Seller'sAdditionalInformation About TheProperty

Andres Lawn Care LLC Landscaping

-

Maintained by Simply Landscaping SprinklerSystem

Isaac Plumbing

-
- ColumbiaElectricity Electrician - Jeff
Plumbing - Dish TV/Internet

Seller'sInterview

Are t here addit ional it em s included in t he sale of your hom e?

Everythinginandout ofthehouseisnegotiable.

How old is t he wat er heat er?

It isapproximately10-12 yearsold.Oneheater isonlyfor themaster bedroom andother oneisfor therest ofthehome.

When was t he last t im e you ser viced your HVAC and by who?

It wasAugust 10,2021byElisonHVAC.

How do you collect t he m ail?

Thereisaboxacrossthestreet.

What day is t he garbage ser vice?

GarbageonWednesdaysandYarddebrisonThursdays

Is t here any inform at ion about t he propert y t hat would be usef ul for t he new buyer?

Therearewonderfulneighborswhowatchout for eachother.

If you were going t o st ay anot her 5 years at your propert y, are t here any im provem ent s or upgrades you would have want ed t o m ake?

None.

Seller'sInterview

What are t he Top 3 t hings you love about t he hom e?

1. The View - I'llnever get tiredofit.Theviewisgorgeousfrom thefront, backor sideoftheproperty.

2. Quiet Living -Thepropertyislocatedjust outsidethecitybut verycloseto everything.

3. Always felt like home - It isverycozy,privateandcomfortable.

HomeImprovements

Ext erior

Swimming pool installed in July 2022 Heated and fully automated by your cell phone

New automated sprinkler system

New sod, plants and landscaping

- New concrete

New deck and railing off kitchen

Posts and sunshade to cover deck

New roofs on pool house and pump house

New R59 insulation in house attic and first garage

- Fully fenced yard

Electric Gate with double opening

50 AMPRVHook up

Exterior paint

Dusk to dawn exterior lighting - Garage cupboards and shelving

Septic riser and lid installed

New skylight and flashing

Int erior

Interior paint and trim

All lighting fixtures

- All window coverings

Tiled shower in guest bath

All new closet doors

Barn door in master

New carpet in master - Heated tile floors in master - Heated tile floors in master shower

Tiled shower in master

All new bath hardware and fixtures

New dishwasher

New microwave - New kitchen faucet

New programmable thermostat

New electrical outlets and switches

Seller'sFavoritePhotos

Molly Whiteman Principal Broker,Licensed in Oregon 503.701.5022 mollywhiteman@cascadesir com CascadeHasson Sotheby's International Realty 118 3rd Street Hood River,OR97031

Molly Whiteman is a licensed Principal Broker and Brand Ambassador for Cascade Sotheby?s International Realty based in Hood River Oregon Molly has provided real estateservices in theColumbia River Gorgefor over a decade.Having closed over 400 transactions in her career,her knowledgeand experiencegive her clients and collogues theconfidence needed to successfully closeany transaction

Molly is licensed in both Oregon and Washington state.Sheis a local representativeof the Columbia Gorgewithin theCascadeSotheby?s International Realty?s global network,making her a valuable resourcefor agents and clients alike. Molly?s knowledge and support from theSotheby?s International network provide her clients with unparalleled marketing opportunities,an unrivaled global reach and an innovateplatform to achievetheir real estategoals.

Molly is well known for her entrepreneurial drive and dedication to her professional career.Her professional accomplishments include,holding a principal broker license,being amanaging principal broker,mentoring new agents,creating and co owning areal estate brokerage,attracting and facilitating amerger with Sotheby?s International realty,being a brand ambassador for Cascade Sotheby?s International Realty and holding thedistinguished titleof a Platinum Level Agent at CascadeSotheby?s International Realty with gross sales over 80% of her peers Prior to her career in real estate Molly worked as aSpecial Operations Director for a national eyecaresurgery center whereshefacilitated acquisitions,mergers and oversaw clinic operations Shewas also a clinic director at OHSU Casey Eye Institutebeforesheentered the wineindustry whereshesuccessfully developed marketing and distribution for an innovative single serve wine concept originally developed in Franceto theUnited States

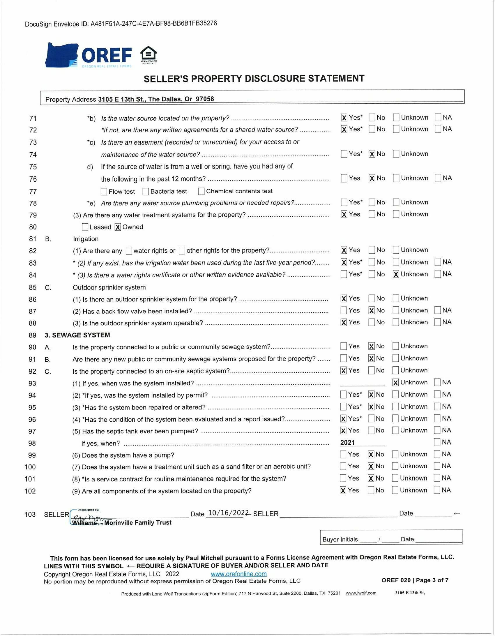
Molly is a runner,hiker,skier,outdoor enthusiast,and world traveler Sheenjoys spending timewith her husband,Ken Whiteman,her two children and her two stepsons,making them a modern day Brady Bunch! When Molly is not managing her busy real estateagency and business,she enjoys taking advantage of being in theoutdoors,with her closefriends and family Apersonal pastimeshe enjoys is pondering over social theories and philosophy whereshecan exerciseher knowledgeand interest in Sociology and Humanities

Disclosures and Attachments

LEAD-BASEDPAINTDISCLOSUREADDENDUM

1PROPERTYADDRESS

2ThisAddendummustbepartofeveryRealEstateSaleAgreementforthesaleofahomebuiltpriorto1978.AcopyofthecompletedAddendum 3maybetreatedasanoriginal.

4 LEADWARNINGSTATEMENT

5Everypurchaserofanyinterestinresidentialrealpropertyonwhicharesidentialdwellingwasbuiltpriorto1978isnotifiedsuchpropertymay 6presentexposuretoleadfromlead-basedpaintwhichmayplaceyoungchildrenatriskofdevelopingleadpoisoning.Leadpoisoninginyoung 7childrenmayproducepermanentneurologicaldamage,includinglearningdisabilities,reducedintelligencequotient,behavioralproblemsand 8impairedmemory.Leadpoisoningalsoposesaparticularrisktopregnantwomen.Thesellerofanyinterestinresidentialrealpropertyisrequired 9toprovidethebuyerwithanyinformationonlead-basedpainthazardsfromriskassessmentsorinspectionsintheseller'spossessionandnotifythe 10buyerofanyknownlead-basedpainthazards.Ariskassessmentorinspectionforpossiblelead-basedpainthazardsisrecommendedpriorto 11purchase.

12SELLER'SAGENT'SACKNOWLEDGMENT:

13Seller'sAgent'sInitialsRequired:Agenthasinformedtheselleroftheseller'sobligationsunder42USC4852dandisawareofhis/her 14responsibilitytoensurecompliance.

15 SELLER'SDISCLOSURE

161.Sellermustcheckeither(a)or(b)belowregardingpresenceoflead-basedpaintand/orlead-basedpainthazards:

explain).

20(b)Sellerhasnoknowledgeoflead-basedpaintand/orlead-basedpainthazardsinthehousing.

212.Sellermustcheckeither(a)or(b)belowregardingrecordsandreportsavailabletotheSeller:

22(a)SellerhasprovidedtheBuyerwithallavailablerecordsandreportspertainingtolead-basedpaintand/orlead-basedpaint 23 hazardsinthehousing (listdocumentsbelow):

26(b)Sellerhasnorecordsorreportspertainingtolead-basedpaintand/orlead-basedpainthazardsinthehousing.

27 BUYER'SACKNOWLEDGMENT:

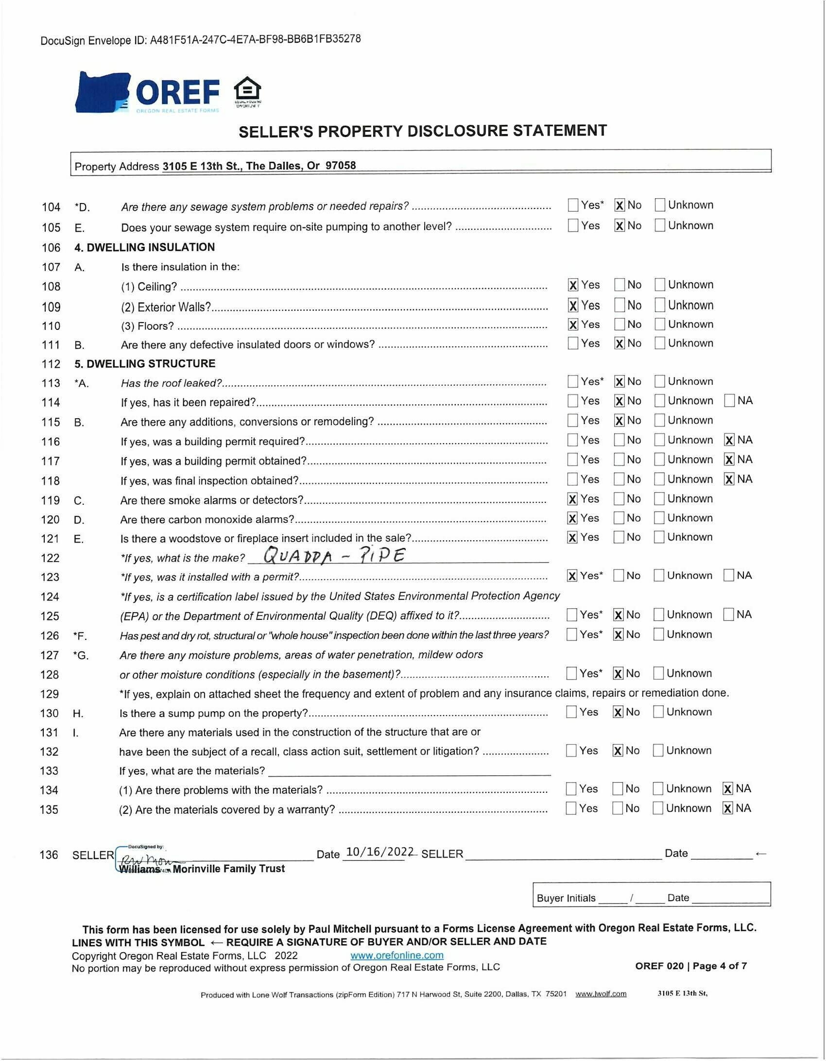
281.Buyerhasreceivedcopiesofallinformationlistedat2(a)above.BuyerInitials /

292.Buyerhasreceivedthepamphlet ProtectYourFamilyfromLeadinYourHome. BuyerInitialsRequired / 303. Buyermustcheckeither(a)or(b)below,confirmingBuyerhas:

31(a)Pursuanttotheprovisionscontainedinthe"LeadBasedPaintInspection"sectionoftheRealEstateSaleAgreement,received 32a10-dayopportunity(ormutuallyagreeduponperiod)toconductariskassessmentorinspectionforthepresenceoflead-basedpaint 33and/orlead-basedpainthazards;or

34(b)Waivedtheopportunitytoconductariskassessmentorinspectionforthepresenceoflead-basedpaintand/orlead-basedpaint 35hazards.

36 RIGHTOFCANCELLATIONWITHINLEAD-BASEDPAINTCONTINGENCYPERIOD

37IfthisLead-BasedPaintDisclosureAddendum(hereinafterthis"DisclosureAddendum")isdeliveredtoBuyerafterBuyer'sofferisacceptedby 38SellerunlesswaivedpursuanttoBuyer'sAcknowledgmentofthisDisclosureAddendum,BuyershallhavetherighttocanceltheRealEstateSale 39Agreementwithinten(10)calendardays(orothermutuallyagreeduponperiod)whichshallcommenceonthedayfollowingthedateofdeliveryby 40BuyergivingwrittennoticeofcancellationtoSeller.Uponsuchcancellation,allearnestmoneydeposit(s)shallbepromptlyrefundedtoBuyerand 41thistransactionshallbeterminated.

42 CERTIFICATIONOFACCURACY(BUYER,SELLER,ANDAGENTSTOSIGNBELOW):

44andaccurate.

SaleAgreement# LEAD-BASEDPAINTDISCLOSUREADDENDUM
17(a)Sellerhasknowledgeoflead-basedpaintand/orlead-basedpainthazardsinthehousing(
18 19
24 25
43Thefollowingpartieshavereviewedtheinformationaboveandcertify,tothebestoftheirknowledge,thattheinformationtheyhaveprovidedistrue
45Buyer Date ←Seller Date ← 46Buyer Date ←Seller Date ← 47Buyer'sAgent Date ←Seller'sAgent Date ← 48Buyer'sAgent'sFirmSeller'sAgent'sFirm LINESWITHTHISSYMBOL ← REQUIREASIGNATUREOFBUYERAND/ORSELLERANDDATE CopyrightOregonRealEstateForms,LLC2022 www.orefonline.com NoportionmaybereproducedwithoutexpresspermissionofOregonRealEstateForms,LLC OREF021|Page1of1 Phone: Fax: ProducedwithLoneWolfTransactions(zipFormEdition)717NHarwoodSt,Suite2200,Dallas,TX75201 www.lwolf.com 3105 E 13th St., The Dalles, Or 97058 X X Williams - Morinville Family Trust Paul Mitchell Sowins Real Estate This form has been licensed for use solely by Paul Mitchell pursuant to a Forms License Agreement with Oregon Real Estate Forms, LLC. Sowins RE, 380 Alt Hwy 101 Warrenton OR 97146 5037911675 3105 E 13th St, The Paul Mitchell DocuSign Envelope ID: 9FC7D7BF-0C00-445A-B80F-B551496A6855 10/18/2022 10/18/2022

Turn static files into dynamic content formats.

Create a flipbook
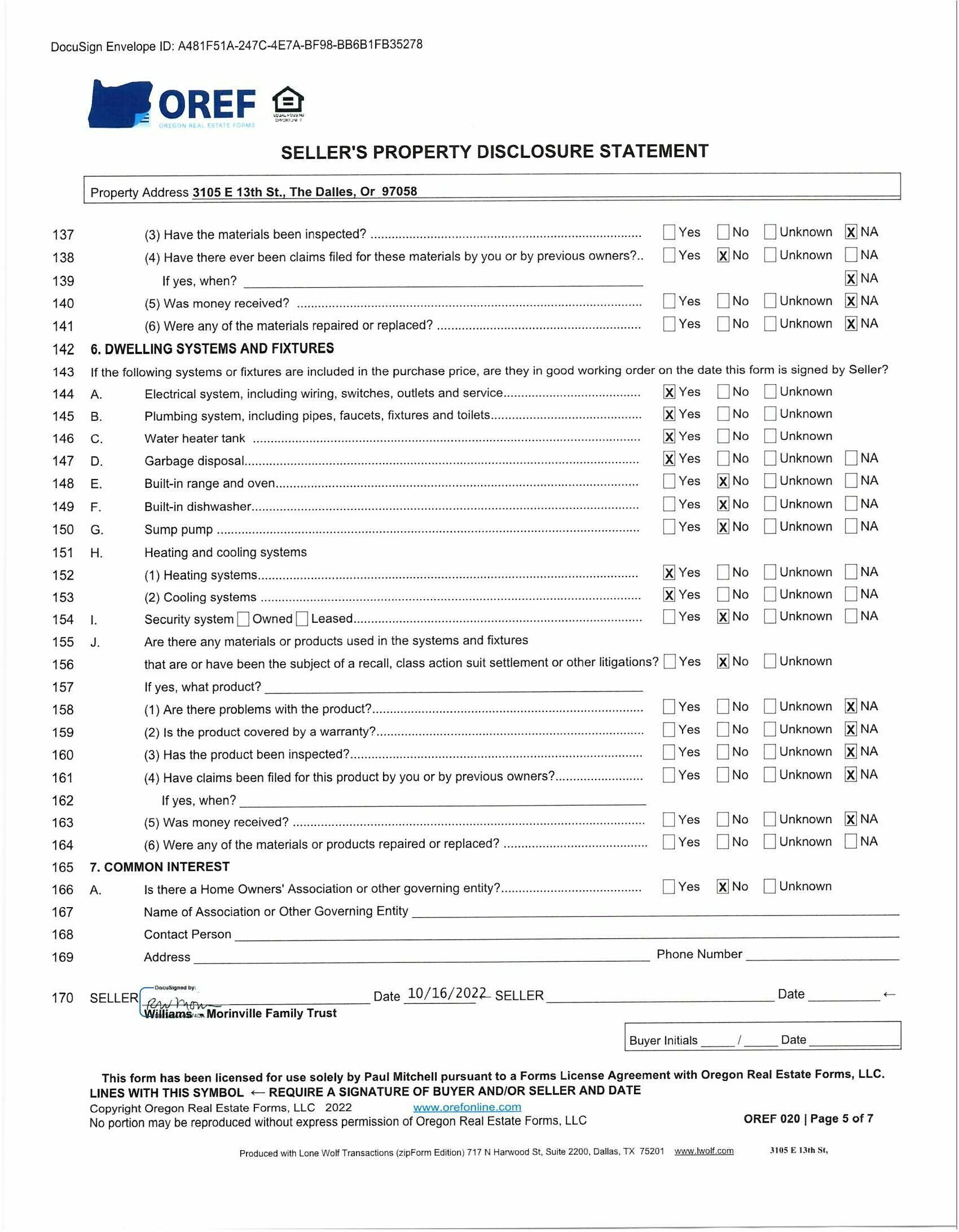
Issuu converts static files into: digital portfolios, online yearbooks, online catalogs, digital photo albums and more. Sign up and create your flipbook.