Valuation - Kornblau

Page 1

870 FIFTH AVE #8H V A L U A T I O N R E P O R T 03-06-2024 KEN KORNBLAU MANHATTAN HOME VALUES.COM

M a n h a t t a n H o m e V a l u e s w a s f o u n d e d t o e m p o w e r h o m e o w n e r s . T o o o f t e n , w e ' v e s e e n a g e n t s p r i o r i t i z e p e r s o n a l g a i n o v e r i n t e g r i t y , i n f l a t i n g s a l e s n u m b e r s .

T h i s o f t e n r e s u l t s i n p r o p e r t i e s s i t t i n g f o r a n e x t e n d e d t i m e o n t h e m a r k e t w i t h b a r e m i n i m u m m a r k e t i n g e f f o r t s . D e s p i t e b e i n g a g e n t s o u r s e l v e s , w e a r e c o m m i t t e d t o e n s u r i n g h o m e o w n e r s a r e n o t m e r e l y b e i n g ' s o l d '

t o . I n s t e a d , w e p r i o r i t i z e t r a n s p a r e n c y a n d t r u s t .

T h r o u g h o u r a c c u r a t e , c o m p r e h e n s i v e v a l u a t i o n r e p o r t s p r o v i d e d a t n o c o s t o r o b l i g a t i o n , w e e m p o w e r h o m e o w n e r s w i t h t h e k n o w l e d g e a n d p e a c e o f m i n d t h e y d e s e r v e .

F O U N D E R S

“ O u r m i s s i o n i s t o e n s u r e t h a t e v e r y h o m e o w n e r h a s a c c e s s t o t h e i n f o r m a t i o n t h e y n e e d t o m a k e i n f o r m e d d e c i s i o n s a b o u t t h e i r p r o p e r t y , f r e e f r o m p r e s s u r e o r h i d d e n a g e n d a s ” - B r i a n M e i e r

“ W e ' r e o n a m i s s i o n t o r e d e f i n e t h e r e a l e s t a t e e x p e r i e n c e , o n e t h a t i s b u i l t o n t r u s t a n d a n u n w a v e r i n g c o m m i t m e n t t o q u a l i t y s e r v i c e ” - A p p l e C h r i s t i e - W a l l a c e

S i n c e r e l y ,

Brian and Apple
Y O U R V A L U A T I O N
HOME VALUES 870 FIFTH AVE #8H
MANHATTAN

SUBJECT PROPERTY

870 FIFTH AVE #8H

Co-op

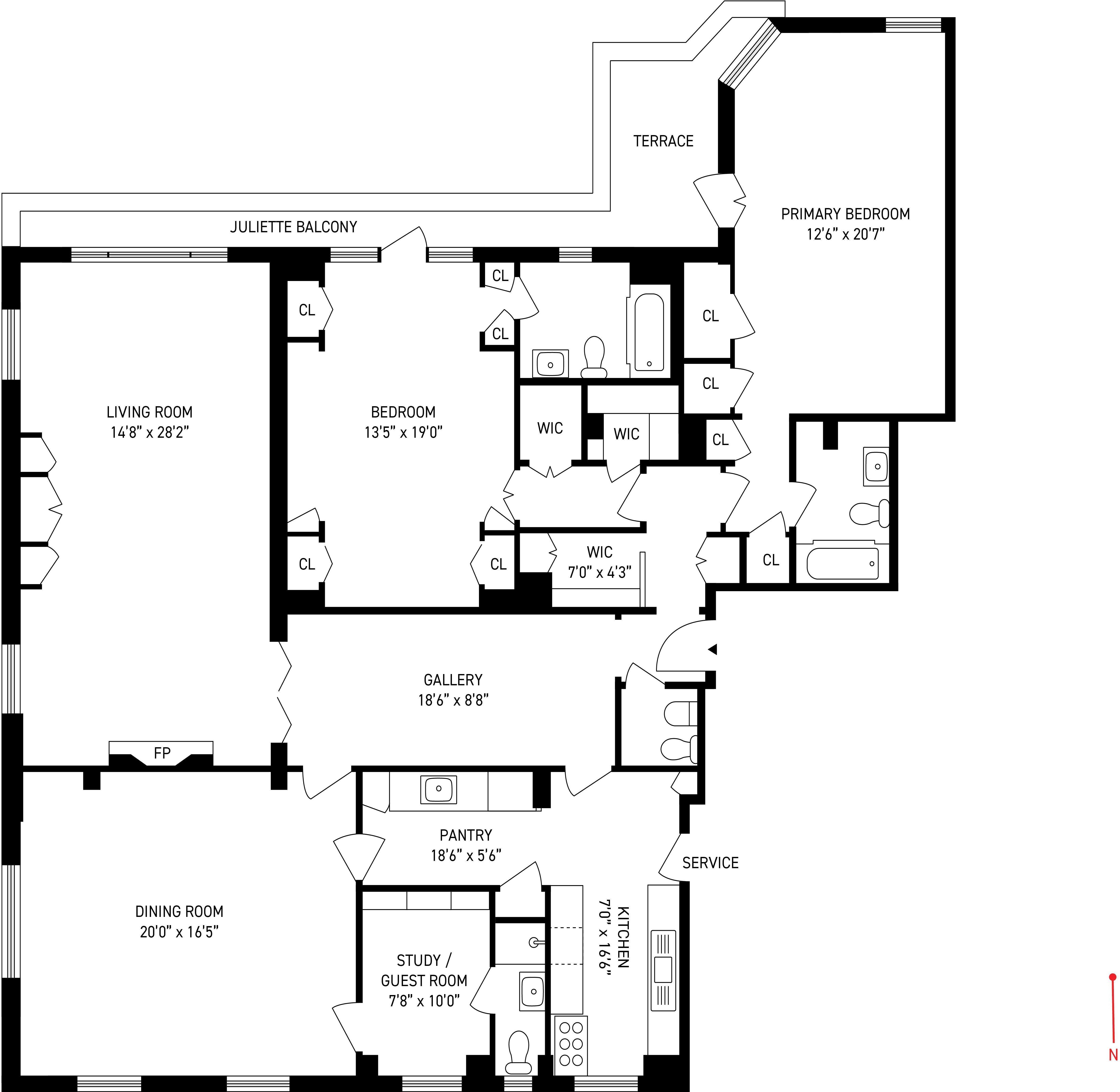
3-4 Bedrooms; 3.5 Bathrooms

Sqft: Approx 2500

Exposures: North, South and East

Property Condition: Excellent

Ownership Since: 10/16/2009

MANHATTAN HOME VALUES

03-06-2024

We have completed an evaluation of your property located at 870 Fifth Ave #8H, New York, NY 10065, and have determined that the estimated sale value is $3,550,000.

This valuation is meticulously grounded in several factors, including appreciation since your ownership, current market activity, the condition of your property, and comparable sales data (enclosed)

We sincerely appreciate your cooperation throughout this process, as your input and assistance have been invaluable in ensuring the accuracy of our assessment.

If you have any questions or would like to discuss the valuation further, please do not hesitate to reach out We are here to assist you every step of the way

Thank you for entrusting Manhattan Home Values with the valuation of your property. Brian and Apple

D e a r K e n ,
It’s important to note that real estate valuations are subject to market fluctuations and other external factors Therefore, this valuation serves as a snapshot based on the current market conditions and available data
870 FIFTH AVE #8H
C O M P A R A B L E S A L E S D A T A MANHATTAN HOME VALUES

Subject Property

Address Unit PRICE Type DOM Rooms Beds Baths Total Monthlies Outdoor Space Park View 870 Fifth Avenue 8H $3,550,000 Co-op - 7 3 3.5 - No No Active Listings Address Unit Price Type DOM Rooms Beds Baths Total Monthlies Outdoor Space Park View 875 Fifth Avenue 9A $3,195,000 Co-op 169 6 3 3 $6,300 No Yes 870 Fifth Avenue 8A $4,895,000 Co-op 244 6 3 3|1 $5,407 No Yes 870 Fifth Avenue 18-C $2,795,000 Co-op 145 6 3 3|1 $7,115 Yes Yes 10 East 70th Street 10C $3,900,000 Co-op 179 8 3 2|2 $9,617 No No 880 Fifth Avenue 2D $4,300,000 Co-op 232 6 3 3 $3,818 No Yes Active Averages (5) - $3,817,000 - 193 6.4 3 2.8 | 0 $6,451 -In-Contract Listings Address Unit Price Type DOM Rooms Beds Baths Total Monthlies Outdoor Space Park View 870 Fifth Avenue 11H $3,400,000 Co-op 228 7 3 3|1 $5,947 Yes Yes Closed Sales Address Unit Closing Price Type DOM Rooms Beds Baths Total Monthlies Outdoor Space Park View 870 Fifth Avenue 3H $3,250,000 Co-op 25 7 3 4|1 $5,490 No No 10 East 70th Street 10A $3,400,000 Co-op 313 13 3 4|1 $9,426 No No 880 Fifth Avenue 5-F $4,400,000 Co-op 199 7 3 3|1 $5,748 No Yes 880 Fifth Avenue 3D $4,500,000 Co-op 95 6 3 3 $3,819 No Yes Closed Sales Averages (4) - $3,887,500 - 158 8.3 3 3.5 | 0 $6,121 - -
Market Analysis
Apple Christie-Wallace (347) 443-4798 | achristiewallace@bhhsnyp.com 1 of 2
Comparative
created March 8, 2024
Summary Status Count Price DOM Rooms Beds Total Monthlies 870 Fifth Avenue #8H - $3,550,000 - 7 3Active Listings Averages 5 $3,817,000 193 6.4 3 $6,451 In-Contract Averages 1 $3,400,000 228 7 3 $5,947 Closed Sales Listings Averages 4 $3,887,500 158 8.3 3 $6,121 Summary Average 10 $3,701,500 193 7.2 3.0 $6,172 Comparative Market Analysis Created March 8, 2024 | 2 of 2 Apple Christie-Wallace (347) 443-4798 | achristiewallace@bhhsnyp.com

875 FIFTH AVE.

NEW YORK, NY, 10065

$3,195,000

LENOX HILL

Come see the beautiful views of Central Park from this spacious and elegant Classic Six estate. The layout and room sizes are very gracious, and the ceilings are high at 8'8".

The enormous living room and primary bedroom have over the treetop views of the Park through large windows. The very generously proportioned dining room is directly across from the living room with a formal gallery between them creating a 50' expanse which is perfect for gatherings of all kinds. For an art collector, there is ample wall space for even very large works. The roomy primary bedroom has a large ensuite bath. The second bedroom faces east and is currently used as a den with built-in bookcases. The second bathroom is off the bedroom hallway. There is a third bedroom and bath off the hallway next to the kitchen. This room also could be the perfect office, or it could be combined with the current kitchen to create a large eat-in kitchen. The apartment has good closet space. Washer/dryers and 50% financing are allowed. Pets are not allowed. 4% Flip Tax. Capital assessment of $416.66 per month until March 2025. Built in 1940, 875 Fifth Avenue is a full-service coop designed by acclaimed architect, Emery Roth. The building is fully staffed with full-time doormen (two during the day). a handyman and a live-in resident manager. The building has a well equipped gym, a lovely, quiet shaded garden with seating, individual storage, bike storage, a business center with WiFi, and a laundry room.

Apple Christie-Wallace

Co-op

Maintenance/CC: $6,300

3 Bedrooms

3 Bathrooms

6 Rooms

List Date 9.22.2023

FEATURES: W/D, Bike Storage, Doorman, Elevator, Gym, Building Laundry, Prewar, Storage, East Exposure, West Exposure, Central Park View, Park View, Foyer

POLICIES: Pied A Terre

#9A
o: 646-677-9374 c:
212.710.1900 • contact@bhhsnyp.com • bhhsnyp.com • 590 Madison Avenue, New York, NY, 10022 © 2024 BHH Affiliates, LLC. An independently operated subsidiary of HomeServices of America, Inc., a Berkshire Hathaway affiliate, and a franchisee of BHH Affiliates, LLC. Berkshire Hathaway HomeServices and the Berkshire Hathaway HomeServices symbol are registered service marks of HomeServices of America, Inc.® Equal Housing Opportunity. Information not verified or guaranteed. If your home is currently listed with a Broker, this is not intended as a solicitation.
(347) 443-4798 achristiewallace@bhhsnyp.com
SUBWAYS: 68th St-Hunter College 0.26 MI 6 Lexington Av 0.37 MI F 5th Av 0.41 MI N Q R 77th St 0.49 MI 6 59th St 0.5 MI 4 5 6 N Q R 72nd St 0.51 MI Q 212.710.1900 • contact@bhhsnyp.com • bhhsnyp.com • 590 Madison Avenue, New York, NY, 10022 © 2024 BHH Affiliates, LLC. An independently operated subsidiary of HomeServices of America, Inc., a Berkshire Hathaway affiliate, and a franchisee of BHH Affiliates, LLC. Berkshire Hathaway HomeServices and the Berkshire Hathaway HomeServices symbol are registered service marks of HomeServices of America, Inc.® Equal Housing Opportunity. Information not verified or guaranteed. If your home is currently listed with a Broker, this is not intended as a solicitation.

870 FIFTH AVE. #8A

NEW YORK, NY, 10065

$4,895,000

LENOX HILL

At long last BACK ON THE AVENUE again. Stunning home with direct Central Park facing views in a most distinguished full-service cooperatives on Fifth Avenue. WASHER/DRYERS

NOW PERMITTED IN THE APARTMENT 870 has an elegant street entrance and a beautiful Art Deco lobby with a private garden and roof deck with expansive views. Welcoming Doormen and a Concierge are all in line with the hallmarks of a respected, well managed Fifth Avenue Building. Apartment 8A, required 1.5 years of reconfiguration to transform it into the gracious and impeccable Classic 6 it is today. Every inch has been renovated to perfection with all new Mechanicals, Plumbing and upgraded Electric. The owners used the highest specifications as would be expected in a home of this caliber. This sunny home has yearround mesmerizing views through large new double paned windows. The expansive floor plan provides a flow of 57 feet from the Living Room with sweeping views of Central Park through to the Dining Room with its open East exposure of tranquil townhouse gardens. A highlight of the home is the defined center foyer, with custom bookcases of sycamore and mahogany and deco moldings throughout . The large Primary Bedroom enjoys direct Central Park views, a walk-in closet, custom desk and bath ensuite. The Second and Third Bedrooms have open garden views East and their own ensuite baths. The East facing windowed chef's kitchen was given new life with custom two-tone cabinetry, quartz counter tops, marble backsplash and floors. It is outfitted with top of the line appliances; a Subzero refrigerator, Viking gas range with vented hood and a Bosch dishwasher. Further upgrades in the apartment include matching solid wood milled doors, hardwood floors, recessed lighting and custom window shades. A surplus of cabinetry has been seamlessly located under all windows providing generous storage, ma...

Co-op Maintenance/CC: $5,407

3 Bedrooms

3.5 Bathrooms

6 Rooms

List Date 4.24.2023

FEATURES: W/D, Garden, Bike Storage, Doorman, Elevator, Gym, Building Laundry, Rooftop, Storage, Concierge, East Exposure, West Exposure, Central Park View, Park View, Dishwasher, Foyer

POLICIES: Pets Allowed, Pied A Terre

Apple Christie-Wallace o: 646-677-9374 c: (347)
achristiewallace@bhhsnyp.com 212.710.1900 • contact@bhhsnyp.com • bhhsnyp.com • 590 Madison Avenue, New York, NY, 10022 © 2024 BHH Affiliates, LLC. An independently operated subsidiary of HomeServices of America, Inc., a Berkshire Hathaway affiliate, and a franchisee of BHH Affiliates, LLC. Berkshire Hathaway HomeServices and the Berkshire Hathaway HomeServices symbol are registered service marks of HomeServices of America, Inc.® Equal Housing Opportunity. Information not verified or guaranteed. If your home is currently listed with a Broker, this is not intended as a solicitation.
443-4798
SUBWAYS: 68th St-Hunter College 0.25 MI 6 Lexington Av 0.36 MI F 5th Av 0.39 MI N Q R 59th St 0.48 MI 4 5 6 N Q R 77th St 0.5 MI 6 72nd St 0.5 MI Q 212.710.1900 • contact@bhhsnyp.com • bhhsnyp.com • 590 Madison Avenue, New York, NY, 10022 © 2024 BHH Affiliates, LLC. An independently operated subsidiary of HomeServices of America, Inc., a Berkshire Hathaway affiliate, and a franchisee of BHH Affiliates, LLC. Berkshire Hathaway HomeServices and the Berkshire Hathaway HomeServices symbol are registered service marks of HomeServices of America, Inc.® Equal Housing Opportunity. Information not verified or guaranteed. If your home is currently listed with a Broker, this is not intended as a solicitation.

870 FIFTH AVE. #18-C

NEW YORK, NY, 10065

$2,795,000

LENOX HILL

Experience stately living and timeless grandeur at 870 Fifth Avenue with this magnificent, sprawling three bedroom, three and a half bath apartment on the Gold Coast of Fifth Avenue. Perched like an aerie high above on the 18th floor of a gracious white glove building, this residence boasts an elegance and grace that stands in stark contrast to today’s cramped cookie-cutter apartments. Enter into a large and gracious gallery ideal for displaying your priceless art, and which leads directly into the massive corner living room featuring a decorative fireplace, and sweeping vistas of the southern and eastern skylines and drowning in sunlight. The oversized formal dining room, featuring eastern and northern exposures, helps make this home ideal for those who relish being gracious hosts. The dining room leads to a third bedroom/study, complete with original wood-paneling and its own private en suite bath. Whether you wish to retire to the great room for group entertaining or repair to the study for a quiet brandy, this home suits every entertainer’s whim and need. The bedroom wing features a split layout with unparalleled size, grandeur, and closet space, and each of the two massive bedrooms suites feature en suite baths and their own access points to the balcony that runs the entire length of the grand apartment. The primary suite also features direct access to the terrace, large enough for a seating area, and featuring amazing views of Central Park to the south and west. Storage abounds with numerous closets, multiple walk-in closets, and additionally a large storage unit trades with the sale. A guest’s powder room in the gallery, and the ability to add W/D round out the space. The option to restore this home to its original grandeur, or completely transform it to your more modern aesthetic make this the perfect opportunity for those wishing to paint their vision on a...

Co-op

Maintenance/CC: $7,115

2400 Sq. Ft. Approx.

3 Bedrooms

3.5 Bathrooms

6 Rooms

List Date 10.16.2023

FEATURES: W/D, Terrace, Balcony, Garden, Bike Storage, Doorman, Elevator, Gym, Building Laundry, Rooftop, Storage, Concierge, North Exposure, South Exposure, East Exposure, Central Park View, Park View, Skyline View, Formal Dining

POLICIES: Pets Allowed, Pied A Terre Apple

achristiewallace@bhhsnyp.com

o: 646-677-9374 c:
Christie-Wallace
(347) 443-4798
212.710.1900 • contact@bhhsnyp.com • bhhsnyp.com • 590 Madison Avenue, New York, NY, 10022 © 2024 BHH Affiliates, LLC. An independently operated subsidiary of HomeServices of America, Inc., a Berkshire Hathaway affiliate, and a franchisee of BHH Affiliates, LLC. Berkshire Hathaway HomeServices and the Berkshire Hathaway HomeServices symbol are registered service marks of HomeServices of America, Inc.® Equal Housing Opportunity. Information not verified or guaranteed. If your home is currently listed with a Broker, this is not intended as a solicitation.
SUBWAYS: 68th St-Hunter College 0.25 MI 6 Lexington Av 0.36 MI F 5th Av 0.39 MI N Q R 59th St 0.48 MI 4 5 6 N Q R 77th St 0.5 MI 6 72nd St 0.5 MI Q 212.710.1900 • contact@bhhsnyp.com • bhhsnyp.com • 590 Madison Avenue, New York, NY, 10022 © 2024 BHH Affiliates, LLC. An independently operated subsidiary of HomeServices of America, Inc., a Berkshire Hathaway affiliate, and a franchisee of BHH Affiliates, LLC. Berkshire Hathaway HomeServices and the Berkshire Hathaway HomeServices symbol are registered service marks of HomeServices of America, Inc.® Equal Housing Opportunity. Information not verified or guaranteed. If your home is currently listed with a Broker, this is not intended as a solicitation.

10 EAST 70TH ST. #10C

NEW YORK, NY, 10021

$3,900,000

LENOX HILL

Just off Fifth Avenue, this flawlessly renovated, 8 Room, 3 Bedroom, 2 Bath and 2 Powder Room residence is distinguished by wall-to-wall windows overlooking Central Park and The Frick Museum. All of the rooms of the residence are uncommonly voluminous with room lengths averaging almost 20 feet and 9-foot ceilings. Distinguishing apartment 10C from its Fifth Avenue neighbors is that 6 of the 8 rooms are graced with triple width windows. The home offers brilliant light and open views from every room. Enter through a gracious center Gallery which radiates in three directions with impressive entry portals both to the north facing Living Room and Library as well as to the south facing Dining Room. Perfectly situated off the grand Gallery is a Powder Room with hand-painted murals, LeFroy Brooks hardware and Kalista toilets and sinks. The main entertainment spaces span over 900 ft2. The living room has beautiful sightlines stretching 55 ft to the Dining Room and 28 ft to the Library. The massive north facing windows of the Living Room and the Library are 7 floors above the Frick Museum, allowing views of both the iconic architecture of the Frick as well as long views of Central Park. The Library is distinguished by tray ceilings and two walls of custom bookshelves. The large Dining Room feels open and has views above the mansions of 69th St and extending all the way to the Midtown skyline. Perfect for both holiday family gatherings and intimate dinners. The substantial Eat-In Kitchen has a Subzero Refrigerator, Wolf Range and Hood, Miele Dishwasher, Franke Sink and many other top of the line appliances. There is room for casual dining for four, abundant custom St Charles cabinetry and beautiful granite countertops, as well as a separate laundry closet with a Asko Clothing Wash/Dryer. Occupying the private West Wing of the home, the Primary Bedroom Suite is enhanced...

Co-op

Maintenance/CC: $9,617

3 Bedrooms

3 Bathrooms

8 Rooms

List Date 9.12.2023

FEATURES: Bike Storage, Doorman, Elevator, Building Laundry, Storage, Garage, Live In Super, Package Room, Cold Storage, Formal Dining Room, Unit Library

POLICIES: Pied A Terre

Apple Christie-Wallace

646-677-9374 c: (347) 443-4798 achristiewallace@bhhsnyp.com

o:
212.710.1900 • contact@bhhsnyp.com • bhhsnyp.com • 590 Madison Avenue, New York, NY, 10022 © 2024 BHH Affiliates, LLC. An independently operated subsidiary of HomeServices of America, Inc., a Berkshire Hathaway affiliate, and a franchisee of BHH Affiliates, LLC. Berkshire Hathaway HomeServices and the Berkshire Hathaway HomeServices symbol are registered service marks of HomeServices of America, Inc.® Equal Housing Opportunity. Information not verified or guaranteed. If your home is currently listed with a Broker, this is not intended as a solicitation.
SUBWAYS: 68th St-Hunter College 0.23 MI 6 Lexington Av 0.39 MI F 77th St 0.42 MI 6 72nd St 0.46 MI Q 5th Av 0.47 MI N Q R 59th St 0.52 MI 4 5 6 N Q R 212.710.1900 • contact@bhhsnyp.com • bhhsnyp.com • 590 Madison Avenue, New York, NY, 10022 © 2024 BHH Affiliates, LLC. An independently operated subsidiary of HomeServices of America, Inc., a Berkshire Hathaway affiliate, and a franchisee of BHH Affiliates, LLC. Berkshire Hathaway HomeServices and the Berkshire Hathaway HomeServices symbol are registered service marks of HomeServices of America, Inc.® Equal Housing Opportunity. Information not verified or guaranteed. If your home is currently listed with a Broker, this is not intended as a solicitation.

880 FIFTH AVE. #2D

NEW YORK, NY, 10021

$4,300,000

LENOX HILL

Welcome to 880 Fifth Avenue Apt. 2D. This three bedroom, classic six, is a true Art Deco masterpiece with breathtaking Central Park views! You will immediately feel at home and be mesmerized by the natural light cascading through the expansive living room windows, and fall in love with the spacious open layout which is perfect for entertaining, with tree-line views of Central Park overlooking Fifth Avenue. The living room features a decorative fireplace, custom draperies, and coved moldings. This open space flows right into your formal dining room with a sleek mirrored hidden door leading to your third bedroom. 2D is tastefully designed. Indulge in the culinary delights of this impeccable custom chefs kitchen. No detail was missed in this oversized windowed kitchen from the luxurious high end Italian Massacar laminate cabinets, to the herringbone wood floors. The kitchen is outfitted with top-of-the-line appliances, including a wine fridge, sleek Gaggenau dishwasher, an exquisite Thermador stove top, and a Sub-Zero refrigerator & freezer sleekly hidden behind the elegant cabinetry. The oversized primary suite also overlooks Central Park and features a custom designed ensuite bathroom with the finest finishes including double sinks, a large soaking tub and glass shower. Indulge in the hand-picked bookmatched Calacatta marble covered walls encompassing the beauty. Your primary suite also includes two custom designed closets including a large walk-in, offering more storage than you can imagine. The spacious secondary bedroom overlooks the pristine building garden with regally planted flowers. Just off this bedroom is the 3rd bedroom equipped with an en suite bathroom. This room is also accessible from the dining room through a hidden mirrored door. 880 Fifth Avenue, a masterpiece crafted by the renowned architect Emery Roth, stands majestically between the pres...

Co-op

Maintenance/CC: $3,818

3 Bedrooms

3 Bathrooms

6 Rooms

List Date 7.21.2023

FEATURES: Fireplace, Doorman, Elevator, Gym, Building Laundry, Prewar, Storage, Concierge, Central Park View, Park View, Skyline View, Dishwasher, Pilates Studio, Windowed Kitchen, Formal Dining Room

POLICIES: Pets Allowed, Pied A Terre Apple

(347) 443-4798 achristiewallace@bhhsnyp.com

Christie-Wallace o:
c:
212.710.1900 • contact@bhhsnyp.com • bhhsnyp.com • 590 Madison Avenue, New York, NY, 10022 © 2024 BHH Affiliates, LLC. An independently operated subsidiary of HomeServices of America, Inc., a Berkshire Hathaway affiliate, and a franchisee of BHH Affiliates, LLC. Berkshire Hathaway HomeServices and the Berkshire Hathaway HomeServices symbol are registered service marks of HomeServices of America, Inc.® Equal Housing Opportunity. Information not verified or guaranteed. If your home is currently listed with a Broker, this is not intended as a solicitation.
646-677-9374
SUBWAYS: 68th St-Hunter College 0.26 MI 6 Lexington Av 0.4 MI F 5th Av 0.45 MI N Q R 77th St 0.46 MI 6 72nd St 0.5 MI Q 59th St 0.53 MI 4 5 6 N Q R 212.710.1900 • contact@bhhsnyp.com • bhhsnyp.com • 590 Madison Avenue, New York, NY, 10022 © 2024 BHH Affiliates, LLC. An independently operated subsidiary of HomeServices of America, Inc., a Berkshire Hathaway affiliate, and a franchisee of BHH Affiliates, LLC. Berkshire Hathaway HomeServices and the Berkshire Hathaway HomeServices symbol are registered service marks of HomeServices of America, Inc.® Equal Housing Opportunity. Information not verified or guaranteed. If your home is currently listed with a Broker, this is not intended as a solicitation.

870 FIFTH AVE. #11H

NEW YORK, NY, 10065

$3,400,000

LENOX HILL

Triple mint! Perfectly positioned on the corner of Fifth Avenue and 68th Street, With incredible light and city views from 3 exposures, this 3 bed, 3.5 bath with a private terrace is not to be missed. Enter off a semi private landing into a grand foyer with ample closet space and a beautifully appointed powder room. The oversized living room can accommodate multiple seating areas and the private terrace spans the width of the living room, facing south onto a charming townhouse block. A formal dining room with North and East exposures is perfect for entertaining and leads into an elegant wet bar with sink, wine refrigerator, ice machine, and storage. The top of the line custom kitchen provides exquisite hardwood cabinetry, Subzero and Viking appliances and an enormous picture window with open city views facing North. Through a hallway, the private primary bedroom is full of light with duel exposures facing South and East, as well as an en-suite bathroom with custom finishes and an enormous walk in closet. The second bedroom can function as a den or proper bedroom with en-suite bathroom and walk in closet. A third cozy bedroom with ensuite bath is tucked away in the rear of the apartment offering ultimate privacy. Central A/C, hardwood floors and incredible closet space can be found throughout. 870 Fifth Avenue is a prime Upper East Side white glove building with full-time doorman, concierge, porters and a live-in resident manager. Other amenities include a recently renovated fitness center, bike storage, a large windowed laundry room, private storage and a gorgeous roof deck with direct Central Park Views. Pied-a-terres, co-purchasing, and pets are all allowed. With access to Central Park, some of the city’s finest restaurants nearby, and iconic Madison Avenue shopping, 870Fifth Avenue is a fabulous place to call home. A 3% Flip Tax is to be paid by the buyer and 5...

Co-op

Maintenance/CC: $5,947

3 Bedrooms

3.5 Bathrooms

7 Rooms

List Date 6.20.2023

FEATURES: Terrace, Bike Storage, Doorman, Elevator, Gym, Building Laundry, Rooftop, Storage, Concierge, North Exposure, South Exposure, East Exposure, Central Park View, Park View, Skyline View, Central Ac, Foyer, Formal Dining Room

POLICIES: Pets Allowed, Pied A Terre

Apple Christie-Wallace

646-677-9374 c: (347) 443-4798

achristiewallace@bhhsnyp.com

o:
212.710.1900 • contact@bhhsnyp.com • bhhsnyp.com • 590 Madison Avenue, New York, NY, 10022 © 2024 BHH Affiliates, LLC. An independently operated subsidiary of HomeServices of America, Inc., a Berkshire Hathaway affiliate, and a franchisee of BHH Affiliates, LLC. Berkshire Hathaway HomeServices and the Berkshire Hathaway HomeServices symbol are registered service marks of HomeServices of America, Inc.® Equal Housing Opportunity. Information not verified or guaranteed. If your home is currently listed with a Broker, this is not intended as a solicitation.
SUBWAYS: 68th St-Hunter College 0.25 MI 6 Lexington Av 0.36 MI F 5th Av 0.39 MI N Q R 59th St 0.48 MI 4 5 6 N Q R 77th St 0.5 MI 6 72nd St 0.5 MI Q 212.710.1900 • contact@bhhsnyp.com • bhhsnyp.com • 590 Madison Avenue, New York, NY, 10022 © 2024 BHH Affiliates, LLC. An independently operated subsidiary of HomeServices of America, Inc., a Berkshire Hathaway affiliate, and a franchisee of BHH Affiliates, LLC. Berkshire Hathaway HomeServices and the Berkshire Hathaway HomeServices symbol are registered service marks of HomeServices of America, Inc.® Equal Housing Opportunity. Information not verified or guaranteed. If your home is currently listed with a Broker, this is not intended as a solicitation.

870 FIFTH AVE. #3H

NEW YORK, NY, 10065

$3,250,000

LENOX HILL

Excellent opportunity to purchase a renovated TRUE three-bedroom plus staff room and 4.5bathrooms, featuring approx. 2,600 sq. ft. across a sprawling double-living room, corner formal dining room with garden views, three generously proportioned bedrooms each with their own en suite bathroom, located in white-glove building on Prime Fifth Avenue, across Central Park. A gracious entry gallery with wood-paneled and vintage mirror walls welcomes you into this beautifully updated home. Connecting to all main areas of the home, the gallery has a large coat closet and a well-appointed powder room, and leads you into the sprawling double-living room with charming tree-line views through a wall of windows. The inviting living room also features beamed ceilings with custom lighting, cinematic entertaining space with 84"-wide screen TV, two separate sitting areas including lounge with built-in dry bar, beautifully designed with black marble countertop and excellent storage. The wood-paneled corner formal dining room has East and North exposures with attractive garden views through oversized windows, and connects to a butler's pantry. The windowed kitchen with polished granite floors and countertops, glass-mosaic backsplash, custom wood-and-glass cabinetry, garbage disposal, and stainless steel appliances, including SubZero refrigerator, wine cooler, and Bosch dishwasher. There is also a laundry closet with Miele washer & dryer. The staff room has north exposure and its own windowed bathroom. The separate bedroom wing offers three spacious bedrooms, each with their own en suite bathroom. The sizable corner primary bedroom has lovely tree-line views, a massive custom-outfitted walk-in closet, as well as a separate wall of closets; the windowed marble bathroom has a double-sink vanity and glass-enclosed stall shower. The second bedroom has North and East exposures, and bath...

Co-op

Maintenance/CC: $5,490

3 Bedrooms

4.5 Bathrooms

7 Rooms

List Date 11.3.2023

FEATURES: Bike Storage, Doorman, Elevator, Gym, Building Laundry, Rooftop, Storage, Concierge, North Exposure, South Exposure, East Exposure, Skyline View, Dishwasher, Windowed Kitchen, Formal Dining Room

POLICIES: Pets Allowed, Pied A Terre

Christie-Wallace o: 646-677-9374 c: (347)
achristiewallace@bhhsnyp.com 212.710.1900 • contact@bhhsnyp.com • bhhsnyp.com • 590 Madison Avenue, New York, NY, 10022 © 2024 BHH Affiliates, LLC. An independently operated subsidiary of HomeServices of America, Inc., a Berkshire Hathaway affiliate, and a franchisee of BHH Affiliates, LLC. Berkshire Hathaway HomeServices and the Berkshire Hathaway HomeServices symbol are registered service marks of HomeServices of America, Inc.® Equal Housing Opportunity. Information not verified or guaranteed. If your home is currently listed with a Broker, this is not intended as a solicitation.
Apple
443-4798
SUBWAYS: 68th St-Hunter College 0.25 MI 6 Lexington Av 0.36 MI F 5th Av 0.39 MI N Q R 59th St 0.48 MI 4 5 6 N Q R 77th St 0.5 MI 6 72nd St 0.5 MI Q 212.710.1900 • contact@bhhsnyp.com • bhhsnyp.com • 590 Madison Avenue, New York, NY, 10022 © 2024 BHH Affiliates, LLC. An independently operated subsidiary of HomeServices of America, Inc., a Berkshire Hathaway affiliate, and a franchisee of BHH Affiliates, LLC. Berkshire Hathaway HomeServices and the Berkshire Hathaway HomeServices symbol are registered service marks of HomeServices of America, Inc.® Equal Housing Opportunity. Information not verified or guaranteed. If your home is currently listed with a Broker, this is not intended as a solicitation.

10 EAST 70TH ST. #10A

NEW YORK, NY, 10021

$3,400,000

LENOX HILL

Sitting on one of the Upper East Side’s most coveted blocks, this extraordinary home at 10 East 70th Street offers unparalleled views of the Frick Collection museum, its renowned gardens, and the iconic limestone townhouses the neighborhood is known for. This spectacular three bedroom, four and a half bathroom sprawls over 2700 square feet, boasts ceiling heights of up to 9.5”, and includes plentiful entertaining space and spacious staff quarters. A stunning introduction to this remarkable residence, the formal entrance leads you into a grand foyer that is flanked by the living and dining rooms. The huge living room is anchored by a custom Madagascar Ebony encased wall-to-wall window with Nero Oro marble top, with north and west views, including Central Park. A grand dining room serves up another classic city view with its duplicate Madagascar Ebony encased wall-width window. The dining room adjoins the comprehensive chef’s kitchen, boasting black Kirkstone counters, a dual-range Viking oven, and generous storage options. A breakfast bar overlooks the impressively-sized, sun-filled media room with custom built-in shelving, surround sound with ADS speakers, and a full en-suite bathroom. Elegant and plush, the primary bedroom overlooks the jaw-dropping, neoclassical architecture of the Frick, and features two walk-in closets, built-in Maple cabinets and work station, as well as an en-suite with a huge glass shower. A second bedroom sits in the same private sleeping quarter, and boasts plentiful closet space and adjacent full bathroom. The third, south-facing bedroom sits next to the media room, accesses a shared full bathroom and is crowned with a sleek, custom cabinetry. Accessed via a separate entry, the service quarters feature a large bedroom with full en-suite bathroom and a full-sized laundry room with top-of-the-line washer and dryer. Rounding out...

Co-op

Maintenance/CC: $9,426

2700 Sq. Ft. Approx.

3 Bedrooms

4.5 Bathrooms

13 Rooms

List Date 10.17.2022

FEATURES: Doorman, Elevator, Building Laundry, Storage, Garage, North Exposure, South Exposure, Skyline View

POLICIES: Pied A Terre

Apple Christie-Wallace

646-677-9374

(347) 443-4798

achristiewallace@bhhsnyp.com

o:
c:
212.710.1900 • contact@bhhsnyp.com • bhhsnyp.com • 590 Madison Avenue, New York, NY, 10022 © 2024 BHH Affiliates, LLC. An independently operated subsidiary of HomeServices of America, Inc., a Berkshire Hathaway affiliate, and a franchisee of BHH Affiliates, LLC. Berkshire Hathaway HomeServices and the Berkshire Hathaway HomeServices symbol are registered service marks of HomeServices of America, Inc.® Equal Housing Opportunity. Information not verified or guaranteed. If your home is currently listed with a Broker, this is not intended as a solicitation.
SUBWAYS: 68th St-Hunter College 0.23 MI 6 Lexington Av 0.39 MI F 77th St 0.42 MI 6 72nd St 0.46 MI Q 5th Av 0.47 MI N Q R 59th St 0.52 MI 4 5 6 N Q R 212.710.1900 • contact@bhhsnyp.com • bhhsnyp.com • 590 Madison Avenue, New York, NY, 10022 © 2024 BHH Affiliates, LLC. An independently operated subsidiary of HomeServices of America, Inc., a Berkshire Hathaway affiliate, and a franchisee of BHH Affiliates, LLC. Berkshire Hathaway HomeServices and the Berkshire Hathaway HomeServices symbol are registered service marks of HomeServices of America, Inc.® Equal Housing Opportunity. Information not verified or guaranteed. If your home is currently listed with a Broker, this is not intended as a solicitation.

880 FIFTH AVE. #5-F

NEW YORK, NY, 10021

$4,400,000

LENOX HILL

PRICED TO SELL. Now asking under $5M for most desirable eight room corner F line with unobstructed West, South and North views through Central Park, of iconic CPS skyline as well as up and down Fifth Avenue. With an expansive, well-conceived layout (~2500 square feet), this apartment has it all. Off a beautifully appointed shared landing, enter the gallery foyer with two large closets, one walk-in, and a separate powder room with dressing area and additional storage. The living areas and residential quarters flow naturally from this central point. The dining room is perfect for hosting both intimate and elaborate dinner parties. The kitchen with its large walk-in pantry, two windows, service entrance and fabulous butler's pantry offers a multitude of design possibilities. Tucked behind the kitchen is a washer/dryer, separate office/staff room and full bathroom. On the other side of the gallery is a substantial living room with built-in bookcase and decorative fireplace. It is warm and inviting, boasting picturesque Central Park views that form an exterior canvas one never tires of day or night throughout the changing seasons. Separated by a hallway, the primary bedroom is sublime. There is a sitting area, a wall of closets, two walk-ins, built-ins, with three large windows overlooking the Park and dramatic city skyline. The on suite windowed bathroom has a shower and tub. There are two additional well proportioned bedrooms, one is currently set up as a media room/den with custom built-in cabinetry and bar while the other is used as a guest room. A private storage unit will transfer with the apartment. This unique apartment does need love and attention but renovating to your taste and preferences is well worth the time and investment! 880 Fifth is an elegant Emery Roth cooperative with a long-standing reputation for extraordinary service and amenities. The ...

Co-op

Maintenance/CC: $5,748

3 Bedrooms

3.5 Bathrooms

7 Rooms

List Date 1.29.2023

FEATURES: Doorman, Elevator, Gym, Building Laundry, Prewar, Storage, Garage, Landmark, Concierge, North Exposure, South Exposure, West Exposure, Central Park View, Park View, Skyline View, Media Room, Yoga Studio, Foyer

POLICIES: Pets Allowed, Pied A Terre

Apple Christie-Wallace

achristiewallace@bhhsnyp.com

o: 646-677-9374 c:
(347) 443-4798
212.710.1900 • contact@bhhsnyp.com • bhhsnyp.com • 590 Madison Avenue, New York, NY, 10022 © 2024 BHH Affiliates, LLC. An independently operated subsidiary of HomeServices of America, Inc., a Berkshire Hathaway affiliate, and a franchisee of BHH Affiliates, LLC. Berkshire Hathaway HomeServices and the Berkshire Hathaway HomeServices symbol are registered service marks of HomeServices of America, Inc.® Equal Housing Opportunity. Information not verified or guaranteed. If your home is currently listed with a Broker, this is not intended as a solicitation.
SUBWAYS: 68th St-Hunter College 0.26 MI 6 Lexington Av 0.4 MI F 5th Av 0.45 MI N Q R 77th St 0.46 MI 6 72nd St 0.5 MI Q 59th St 0.53 MI 4 5 6 N Q R 212.710.1900 • contact@bhhsnyp.com • bhhsnyp.com • 590 Madison Avenue, New York, NY, 10022 © 2024 BHH Affiliates, LLC. An independently operated subsidiary of HomeServices of America, Inc., a Berkshire Hathaway affiliate, and a franchisee of BHH Affiliates, LLC. Berkshire Hathaway HomeServices and the Berkshire Hathaway HomeServices symbol are registered service marks of HomeServices of America, Inc.® Equal Housing Opportunity. Information not verified or guaranteed. If your home is currently listed with a Broker, this is not intended as a solicitation.

880 FIFTH AVE. #3D

NEW YORK, NY, 10021

$4,500,000

LENOX HILL

PARK FACING MASTERPIECE ON 69TH & FIFTH Brilliantly conceptualized and immaculately renovated. Apartment 3D is a pristine residence offering 3 bedrooms, 3 bathrooms, formal dining area and a generously proportioned windowed kitchen. Boasting Central Park views from the open concept main living area as well as the primary suite. Not a single detail was overlooked in this completely reimagined space! Features and benefits include: - Double-pane windows featuring electronic window treatments from the Shade Store - HVAC system thermostatically controlled plus silent through wall A/C regulated for front of the apartment - Upgraded electric system with stunning cove ceiling elements - AV sound system: Sonos plus built-in speakers - Wide plank oak hardwood floors - Custom millwork throughout including oak bookshelves with under lighting - Bathrooms: custom vanities and Waterworks fixtures, primary suite - Carrara marble and Dornbracht fixtures - Wolf, Sub-Zero, and Miele appliances including wine fridge and washer/dryer - Ample storage and apartment transfers with additional storage space 880 Fifth Avenue, built by famed architect Emery Roth, is superbly located between 69th and 70th Street offering the ultimate in service, shopping, restaurants, culture and convenience. Shareholders enjoy the benefit of a full-time doorman, concierge, valet parking garage with reduced shareholder rate, a well-conceived gym and an entrance to Central Park directly across the street. The building allows up to 50% financing and permits ownership through trust on a case-bycase basis. Purchaser pays 3% flip tax. Pied-a-terre's and pets permitted with board approval.

Co-op

Maintenance/CC: $3,819

3 Bedrooms

3 Bathrooms

6 Rooms

List Date 5.2.2023

FEATURES: W/D, Doorman, Elevator, Gym, Building Laundry, Prewar, Storage, Concierge, East Exposure, West Exposure, Central Park View, Park View, Windowed Kitchen

POLICIES: Pets Allowed, Pied A

Terre

Apple Christie-Wallace o: 646-677-9374 c: (347) 443-4798

achristiewallace@bhhsnyp.com

212.710.1900 • contact@bhhsnyp.com • bhhsnyp.com • 590 Madison Avenue, New York, NY, 10022 © 2024 BHH Affiliates, LLC. An independently operated subsidiary of HomeServices of America, Inc., a Berkshire Hathaway affiliate, and a franchisee of BHH Affiliates, LLC. Berkshire Hathaway HomeServices and the Berkshire Hathaway HomeServices symbol are registered service marks of HomeServices of America, Inc.® Equal Housing Opportunity. Information not verified or guaranteed. If your home is currently listed with a Broker, this is not intended as a solicitation.
SUBWAYS: 68th St-Hunter College 0.26 MI 6 Lexington Av 0.4 MI F 5th Av 0.45 MI N Q R 77th St 0.46 MI 6 72nd St 0.5 MI Q 59th St 0.53 MI 4 5 6 N Q R 212.710.1900 • contact@bhhsnyp.com • bhhsnyp.com • 590 Madison Avenue, New York, NY, 10022 © 2024 BHH Affiliates, LLC. An independently operated subsidiary of HomeServices of America, Inc., a Berkshire Hathaway affiliate, and a franchisee of BHH Affiliates, LLC. Berkshire Hathaway HomeServices and the Berkshire Hathaway HomeServices symbol are registered service marks of HomeServices of America, Inc.® Equal Housing Opportunity. Information not verified or guaranteed. If your home is currently listed with a Broker, this is not intended as a solicitation.

MANHATTAN

M A R K E T

R E P O R T

HOME VALUES
MARCH 2024

Meier Report

KNOWING WHEN THE RIGHT TIME IS TO SELL

MARCH 2024
The AN AMAZING OPPORTUNITY AT THE BUTTERFIELD

Best Time to List Your New York City Home for Sale

For individuals contemplating entering the New York City market this spring, the pressing question often revolves around the ideal timing for listing their property. While the answer may not be straightforward, understanding key factors can significantly impact the selling process. Here is a breakdown to help you determine the most opportune moment to list your New York City home for sale.

1. Lower Deal Volume —The current New York City real estate market is experiencing lower deal volume, with transactions approximately 35% below historical averages. This reduced activity, persisting for the past 20 months, signifies a low-liquidity market. Potential sellers need to comprehend the landscape they are entering.

2. Price Action Challenges Resale condo prices in Manhattan have declined by around 8% to 10%, reflecting the impact of reduced competition among buyers. In a low-volume market, sellers may need to adjust prices to attract buyers, demonstrating a shift towards pricing strategies focused on market realities.

3. Lingering Listings The ratio of successful to unsuccessful listings has been on a downward trend, highlighting a challenging listing climate where properties struggle to find buyers. This trend underscores the importance of accurate pricing to avoid prolonged market exposure.

NAVIGATING THE MARKET

Sellers in the current market must price their properties competitively from the start, as significant price adjustments may be necessary to stimulate buyer interest. With fewer buyers and a constrained supply, understanding market dynamics is crucial to successful listing outcomes.

SEASONALITY AND MARKET INSIGHTS

Recognizing seasonal ebbs and flows in market activity is vital for strategic listing timing. The spring season typically sees increased buying activity, but hyperlocal market dynamics can influence optimal listing windows for specific property types.

RECIPE FOR SUCCESS Finding the optimal listing window involves aligning market conditions, pricing strategies, and buyer trends. Collaborating with a knowledgeable real estate agent to leverage insights and data can enhance your listing strategy and maximize exposure to potential buyers.

As the real estate landscape evolves, adapting to market nuances and leveraging seasonal trends can position sellers for successful listings in 2024. Understanding market forces and aligning listing strategies with buyer behavior are key to navigating the complexities of the current New York City real estate market.

MARCH 2024

The straightforward account of today’s market. We highlight current market action as well as trends and risk factors that keep you informed. Whether translated into great investments or gaining insight on economic characteristics before you buy, this is the up-to-date news you need for assessing today’s Real Estate Market.

These numbers are offers that were accepted and contracts that were signed this month. This represents an accurate window into the Manhattan Real Estate Market.

0 200 400 600 800 1000 2 ‘24 1 ‘24 12 ‘23 11 ‘23 10 ‘23 9 ‘23 8 ‘23 7 ‘23 6 ‘23 5 ‘23 4 ‘23 3 ‘23 STUDIOS 118 Units +71% 1 BEDROOMS 285 Units +52.4% 2 BEDROOMS 295 Units +36.6% 3+ BEDROOMS 190 Units +28.4%
Contracts Signed/Accepted Offer Over the Past 12 Months

B R O K E R A G E S E R V I C E S

THE MEIER TEAM

“The true New Yorker secretly believes that people living anywhere else have to be, in some sense, kidding.” - John Updike

2023 Recognitions

The Meier Team is proud to be featured in the Wall Street Journal Real Trends top 250 teams in America for its 15th year with a total of $259,037,000 in sales during 2022.

SUCCESS RATE

% LISTINGS SOLD Source: Streeteasy

64.2%

TOTAL NYC MARKET

91.6%

THE MEIER TEAM

PRICING EDGE

% BELOW INITIAL ASK Source: Urban Digs & Perchwell Inc.

9.7%

TOTAL NYC MARKET

4.1%

THE MEIER TEAM

TIME URGENCY

AVERAGE DAYS ON MARKET Source: Streeteasy

224

TOTAL NYC MARKET

78

THE MEIER TEAM

BERKSHIRE HATHAWAY HOMESERVICES

Manhattan Flagship Office Leadership

Berkshire Hathaway HomeServices New York Properties opened its flagship office at 590 Madison Avenue in 2017. Led by industry icons Steven James, Diane Ramirez and Brad Loe, the 75 sales associates work closely with the New England and Hudson Valley Properties offices and agents.

BRAD LOE Executive Vice President & Sales Director, BHHS New York Properties

BERKSHIRE HATHAWAY HOMESERVICES
DIANE RAMIREZ Chief Strategy Officer, BHHS New York Properties STEVEN JAMES President & CEO, BHHS New York Properties

Ofice 646.680.8654

Cell 917.656.3230

bmeier@bhhsnyp.com

Principal of The Meier Team at Berkshire Hathaway, Brian Meier leads the New York City real estate industry as a trusted asset to his clients and community for over three decades.

Brian has continuously risen as a leader in his industry by always puting his clients frst and emphasizing the importance of authentic commitment, values, and standards. His comprehensive understanding of market identity and fnancial security, combined with his ability to navigate economic issues and new market entrants, sets him apart as a premier real estate liaison.

With The Meier Team, clients not only gain a trusted advisor and expert in their corner, but also a dedicated partner who is invested in their long-term success. It’s not just a transaction, it’s your future. Trust in Brian Meier and The Meier Team for unparalleled service and results in the world of New York City real estate.

The Meier Team expertise as your liaison brings established roots with trusted principals every step of the way. We bring value to our clients not just by bringing market identity to their spaces but by bringing peace of fnancial security. Our market and value acquisition analysis remains a trusted resource in our clients’ portfolios. Our vigorous presence in each borough enables the efective understanding of new market entrants and economic issues to guide our proactive approach. We stand behind our beliefs, values and standards of authentic commitment which led us to the top of our industry. We take your vested interest as our own. With us it’s not just a transaction, it’s your future.

After graduating from the Culinary Institute of America and spending several years in the New York City restaurant industry, where he held positions such as the Sous Chef of Cafe des Artistes and the Chef de Partie of Union Square Cafe and One If by Land, he redefned his passion for his community through unrivaled expertise in real estate. His master intuition of the market, expertise in negotiation, and deep roots in every New York borough bring clear, transparent strategies for success to the forefront of global luxury real estate.

BERKSHIRE HATHAWAY HOMESERVICES

Apple Christie-Wallace

Ofice 646.677.0046

Cell 347.443.4798

achristiewallace@bhhsnyp.com

As an Expert Sales Specialist, Apple leverages her award-winning client relations skills, her leadership abilities, and her profciency in Japanese to serve clients in the competitive New York City market.

After receiving her BSc in Information Technology, this Jamaican native moved to Japan where she studied the Japanese language and culture. Her diverse upbringing and experiences have shaped her skills as a problem solver, communicator, and connector, skills that make her an excellent agent to work with.

Apple’s achievements are rooted in her authentic personality, combined with a keen ability to identify and navigate potential challenges and a remarkable talent for negotiations. She has built her brand on integrity and transparency, ensuring her clients feel confdent and informed, whether they are selling or buying. Her dedication to providing a seamless and personalized experience has earned her a reputation as a trusted advisor in NYC’s real estate scene.

When she’s not busy advocating for her clients, you’ll fnd Apple embracing the city’s vibrant energy. Whether she’s hiting the gym, atending a Pilates class, or embarking on a leisurely bike ride through the bustling streets, she’s always in motion, just like the dynamic city she calls home.

Apple believes New York City to be a hub of culture, individuality, and style. There is no other city more enriched in diversity and creativity, and the beauty of New York is that it can be the perfect place for ANYONE.

BERKSHIRE HATHAWAY HOMESERVICES
Licensed Real Estate Salesperson

Corinne Newton

Administrative Coordinator

Ofice 646.680.8654

Cell 631.896.2447

cnewton@bhhsnyp.com

Corinne is the Administrative Coordinator for the Meier Team. With an impressive background spanning various industries, Corinne brings a wealth of experience and a unique skill set to the world of real estate.

Corinne spent fve successful years as a real estate agent on Long Island, providing her with a deep understanding of the local market. This experience enables her to ofer valuable insights and expertise to clients seeking luxury properties. Her hands-on approach has honed her ability to navigate the intricacies of real estate transactions with precision and fnesse.

In addition to her real estate career, Corinne worked as a proofreader and editor. This atention to detail is a hallmark of her professional approach, ensuring that all aspects of the real estate process, from contracts to marketing materials, meet the highest standards of excellence.

With an impressive 20-year tenure in the restaurant business, Corinne brings invaluable managerial skills to her role. This background has instilled a commitment to exceptional customer service and a keen understanding of the importance of building lasting relationships. Such skills are seamlessly integrated into Corinne’s approach, enhancing the client experience and seting the Meier Team apart in the luxury real estate landscape.

Corinne is a devoted parent to two boys and a proud resident of Warwick, New York, a quaint town north of New York City. A dedicated reader, Corinne fnds solace and inspiration in books, fostering a well-rounded perspective that enriches both her personal and professional life.

BERKSHIRE HATHAWAY HOMESERVICES

You Deserve A Luxury Experience

Berkshire Hathaway, Inc. resonates as a trusted brand with affluent buyers and sellers worldwide. Our name opens doors of opportunity, exposing your home to an exclusive audience courtesy of our carefully curated marketing strategies.

“A home is one of the most important assets that most people will ever buy. Homes are also where memories are made and you want to work with someone you can trust.”

BERKSHIRE HATHAWAY HOMESERVICES

Proven Results

We know that performance and reputation matter. To better serve you, we are continuously improving how we do business and earning recognition on local, national, and global levels.

THE #1 REAL ESTATE BROKERAGE NATIONWIDE

HomeServices of America is the largest real estate brokerage nationwide with the most transaction sides, based on the annual Real Trends 500.

REAL ESTATE BRAND OF THE YEAR

Berkshire Hathaway HomeServices is the 2020 Real Estate Agency Brand of the Year and the Most Trusted Real Estate Brand based on the results of the Harris Poll.

WORLD’S MOST ADMIRED COMPANIES

1. Apple 6. Berkshire Hathaway

2. Amazon 7. Alphabet

3. Microsoft 8. JPMorgan Chase

4. Walt Disney 9. Netflix

5. Starbucks 10. Costco Wholesale

BERKSHIRE HATHAWAY HOMESERVICES

Our Global Network

Berkshire Hathaway HomeServices has more than 50,000 real estate professionals and nearly 1,600 ofices across 4 continents and 13 countries and territories including the U.S., Canada, Mexico, Europe, the Middle East, The Caribbean and India. Let’s discuss your real estate goals.

BERKSHIRE HATHAWAY HOMESERVICES NETWORK SALES PROFESSIONALS 50,000 + OFFICES 1,550 REPRESENTED TRANSACTION Sides 318,000 NEARLY IN SALES VOLUME (USD) in 2022 $155 Billion

Global Reach

BHHS.COM

Where millions of buyers begin their international home search.

REALTOR.COM

Hosted by the National Association of REALTORS ® featuring a vast range of nationwide listings.

THE WALL STREET JOURNAL

Highlights the most luxurious homes in print and online editions of this world-renowned publication.

In addition to displays on the website’s Real Estate section, listings are featured in the WSJ across Europe, Latin America, and Asia.

FINANCIAL TIMES OF LONDON

Luxury listing exposure to a readership of over one million affluent subscribers.

MANSIONGLOBAL.COM

Features $1 million+ listings in three global editions –English, Chinese, and Spanish- with more extensive coverage of properties valued over $7 million.

BARRON’S

Widely-read financial publication with strong appeal to high-income property investors.

PENTA

Delivers inspiring luxury lifestyle and wealth content including exclusive real estate features.

PROPGOLUXURY.COM

The only US-based online real estate company in Asia and the fastest growing luxury property site in the China and Asia Pacific region.

JUWAI.COM

The number one real estate portal in China for those searching for homes abroad.

Our international syndication strategy showcases your home to the most affluent buyers.

BERKSHIRE HATHAWAY HOMESERVICES
BERKSHIRE HATHAWAY HOMESERVICES
Maximum Exposure

Rebny Distribution

RLS IDX is a collaborative Agreement which displays our exclusive listing across all REBNY Internet Data Exchange (IDX)participating firms’ websites ensuring ever wider exposure to potential buyers working with other firms.

Apartments.com is the leading online apartment listing website offering renters access to information with more than 1.1M listing available.

HomeFinder is part of the top 5 sites for streaming home searches from sales to rentals including foreclosure and rent to own homes.

REA Group is the No. 1 digital advertising company specialized in residential and commercial Real Estate

UrbanDigs is a premier real estate service provider for Manhattan and Brooklyn offering local analytics, personalized reports, and relevant insights.

Chalk Digital is a dedicated digital advertising partner for BHHS Sales Executives with a FREE week of listing ads, shown to potential homebuyers within a 15-mile radius on social, premium mobile & desktop sites, and phone apps.

Property Shark is a nationwide data provider of in-depth information on any US commercial and residential property.

PropertyNest is a one-stop shop, from home services, and improvement needs, with tips and insights on how to improve a credit score, qualify for mortgage and more.

Luxury Real Estate is recognized worldwide by industry leaders as the premier luxury home search site and magazine proving access to international estate and property listings.

BERKSHIRE HATHAWAY HOMESERVICES

Print Media Strategy

Print advertising remains a vital component of our marketing strategy to reach mature, affluent buyers. We leverage local listing exposure and our brand presence throughout publications worldwide.

BERKSHIRE HATHAWAY HOMESERVICES
WATERFRONT LUXURY LIVING Just For the Fun of It TECH THAT WORKS More than 24 pages of Waterfront Escapes COAST TO COAST
PRINT PLACEMENTS REACH
OUR
Million+ READERS PER DAY
2.1

Digital Media Strategy

We generate qualified buyer leads for your home using an evolving SEO strategy, artificial intelligence technology, carefully crafted messages, and expert design across all digital platforms. Our in-house creative team promotes our brand and your listing with:

• Geographical and behavioral digital advertising

• An exclusive buyer-match network

• State-of-the-art social media resources

• Virtual tours and consultation

• Email marketing

• Global Syndication

• Professional image/video resources

• Custom property microsites

Original Content

The Meier Report has been in circulation for over 12 years, ofering unparalleled real estate data and insightes to the community monthly.

Our report is distributed to over 60,000 subscribers with 10,000 readers online.

A unique opportunity to market properties with a market leadership perspective.

The inside look on what’s actually going on in New York City Real Estate. We answer questions from listeners, gives the authentic, current market condition and each week share how to tackle the countless challenges and unpredictable situations that are part of an agent’s everyday life.

Over the last four years, we have produced over 100 episodes of the podcast.

Each episode averages between 1,500 and 2,000 listeners.

BERKSHIRE HATHAWAY HOMESERVICES
BHHS.com | BHHSNEProperties.com BHHSNYProperties.com | BHHSHudsonValley.com 30 Million+ VISITORS ANNUALLY 1 Billion BRAND IMPRESSIONS ANNUALLY 160 Million CUSTOMERS AROUND THE GLOBE

Public Relations Strategy

Each home’s story is carefully curated, with potential exposure in:

• Local print and online publications

• Our Company Blog

• Social media & social media advertising

• The Wall Street Journal

• Mansion Global

• New York Times

• The Week

We operate with the utmost discretion, putting you in control of the details we share about your home.

BERKSHIRE HATHAWAY HOMESERVICES

Comparative Market Analysis

A Comparative Market Analysis (CMA) is the strongest tool we use when estimating the potential selling price for your home. Berkshire Hathaway HomeServices New York Properties agents are empowered with detailed analysis of comparable homes in your area. Using the valuable information, we will assist you in determine an attractive, yet realistic price for your home.

A Comparative Market Analysis highlights these types of homes in your neighborhood:

ACTIVE LISTINGS

These homes are currently competing with yours for the attnetion of buyers. While it is very important to review homes that are on the market, keep in mind, these homes have not yet received an acceptable offer.

UNDER CONTRACT

Homes that have received an accepted an offer give a good indication of realistic pricing.

SOLD

Looking at recent sales prices in your neighborhood provides the best foundation in determining your home’s most accurate market value. Once adjustments are made for square footage and features, we can make a qualified recommendation for the asking price of your home.

EXPIRED

Homes that have gone through the agreed-upon listing period without selling may be in poor condition or received little marketing attention. Most likely, the home was priced inappropriately for the market.

BERKSHIRE HATHAWAY HOMESERVICES

Pricing Right To Sell Quickly

Make the right first impression. Your home’s price will set the tone for how agents and buyers will assess your property. A home priced correctly directly impacts the length of time it spends on the market.

PRICE TOO HIGH

This home is likely to linger on the market.

PRICE NEEDS ADJUSTMENT

Not perceived as a good buy.

REASONABLY PRICED

In line with the marketplace.

COMPETITIVELY PRICED

Will attract offers faster.

QUICK-SALE PRICED

Will attract offers faster.

BERKSHIRE HATHAWAY HOMESERVICES
MARKET VALUE RANGE BELOW MARKET VALUE RANGE
MARKET VALUE RANGE
ABOVE

STAGING, DESIGNING, CREATING

e Meier Team Does It All for You

BEFORE BEFORE BEFORE

AFTER AFTER

We can handle all that you need to get your home ready for its sale.

We do all this and more. We use the best resources and vendors. We design, we manage the process and we assist in the costs. Let us take the responsibility. Let us do what we do best.

BERKSHIRE

BERKSHIRE HATHAWAY HOMESERVICES

• CLEANING • DETAILING • PAINTING • ORGANIZING
HATHAWAY HOMESERVICES STAGING
AFTER

AUCTION HOUSE CONNECTION

Christie’s New York

Introductory Bonus Program

As an exclusive client of The Meier Team at Berkshire Hathaway, your properties will receive direct marketing and coordination with the Christie’s New York network.

With a network of over 3,000 art and antiquities sales associates, your property will be actively promoted to their private clientele of buyers and sellers.

In this process, Christie’s art representatives will receive a substantial commission, a unique advantage not available through any other brokerage or group.

Doyle New York

Berkshire Hathaway HomeServices New England, New York & Westchester Properties’ clients enjoy access to this premier New York City auction house.

• Founded in 1963, Doyle New York is one of the world’s foremost auctioneers and appraisers of fine art, jewelry, furniture, decorations and a variety of other categories.

• Holds approximately 40 sales each year that attract a broad base of buyers and consignors from around the world.

• Has a professional reputation for achieving outstanding prices at auction for clients.

• Recognized for providing direct and comprehensive access to international markets and maintains an ever-expanding network of regional representatives throughout the United States including Arizona, Connecticut and Washington, D.C.

• Committed to providing expert evaluations and personalized services to meet the individual needs of our clients.

• Sales Representatives from Doyle New York are available to assess the value of your more rare or precious personal items as a complimentary service, and take valuable items under consignment for auction.

• Under appropriate circumstances, Doyle New York offers a “Broomclean” service when the entire contents of a home are to be liquidated. Doyle New York will consign the valuable property to auction, purchase the remaining property outright, deliver the items of little or no commercial value to a thrift organization, and sweep the premises “Broomclean” to be ready for closing day.

BERKSHIRE HATHAWAY HOMESERVICES BERKSHIRE HATHAWAY HOMESERVICES
US $8,375 US
25%)
CLIENT
US
WITH
US $37,500 BROKERAGE COMMISSION Examples GROSS REVENUE REPRESENTATIVE BONUS (2.75%)
$37,500 (ASSUME
US $150,000 (ASSUME 3%) WITH AN AFFILIATE BROKERAGE
BUYS OR SELLS US $5M HOME
$150,000 (ASSUME 3%) NOT APPLICABLE
THE MEIER TEAM

THE BOARD PACKAGE

Are you tired of dealing with the stress and uncertainty of managing the application process for your potential buyers? Look no further! Our real estate team is here to offer you a stress-free and successful solution.

We understand that as a seller, your time is valuable and you want the sale of your property to go smoothly. This is why we have developed a comprehensive and strategic approach to overseeing and executing the buyer’s board application package and process.

Here’s how our team can guarantee a successful and hassle-free experience for you and your buyers:

1. We have a team of experienced professionals who are well-versed in the board application process and are familiar with the requirements of different NYC buildings. This ensures that your buyer’s application is complete and free of any errors or omissions that may delay the process.

2. We work closely with your buyers to ensure that all necessary documents and information are gathered and organized in a timely manner. This not only speeds up the application process but also increases the chances of approval by the board.

3. Our team is equipped with strong negotiation skills to effectively communicate with the building’s board or management on behalf of your buyers. We will address any concerns or issues that may arise and provide solutions to keep the process on track.

4. We understand the importance of timing in the NYC real estate market. That’s why we have a streamlined process in place to ensure that your buyer’s application is submitted to the board in a timely manner and that all necessary steps are taken to expedite the process.

5. We keep you updated throughout the entire process, so you are always in the loop. Our team will provide you with regular progress reports and communicate any updates or changes promptly.

We are dedicated to providing you and your buyers with a seamless and successful board application process. With our expertise and resources, we guarantee that your buyer’s application will be approved, and your property will close on time.

Don’t let the board application process stand in the way of closing on your property. Let our team handle it for you and experience a stress-free and successful sale. Contact us today to learn more about how we can assist you in overseeing and executing the buyer’s board application package and process. We look forward to working with you!

BERKSHIRE HATHAWAY HOMESERVICES BERKSHIRE HATHAWAY HOMESERVICES

CUSTOM MARKETING PLAN

BERKSHIRE HATHAWAY HOMESERVICES

STANDARD MARKETING PLAN

ON THE MARKET

Feedback:

As an owner, you will receive ongoing feedback on a daily and weekly basis. Every Monday morning you will receive overall feedback including an analysis of traffic from the previous week. You will receive individual feedback after each showing sent to you via email or text by Brian or a team member. After the first month (if we have not already sold the property), we will have a meeting to discuss our placement in the market, the current feedback, and what changes we can implement to increase traffic, interest, and offers going forward.

Buyer Follow-up:

After each showing, we continually follow-up with buyers. Brian will email and text buyers who viewed the property and/or follow-up with their brokers. In addition, we have a third-party software system which contacts the buyer directly and asks for feedback. We find that sometimes direct feedback given to a third party is more open and honest than feedback given to Brian.

Open Houses:

Open houses are scheduled on a weekly basis. We prefer to schedule these five to seven days in advance as this allows more time for the market to see the advertisements and results in a larger turn out. We advertise on social media and all web platforms. In addition, we send out emails, eblasts, and postcards advertising these open houses.

Web Exposure:

As we continue to market the property on 104 different websites, inside our nine different auction houses, and throughout our 1,500+ offices, we are routinely checking the ads making sure they are accurate. We also update them to ensure they are on the top of each list for every website; Many times, when an ad sits dormant on a website, it may fall to the bottom of the list, disappear completely, or become contaminated with misinformation.

Constant Communication with The Market:

Like the top 300 in which we call the initial brokers who work that market, we continue to call agents. However, now our focus is on agents with comparable listings. The goal is to get more of an up-todate insight on what is going on in the market. We like to see how much traffic and how many offers the competition is receiving. We then compare that to what we have received and make sure they are comparable. In areas where we are falling behind, we find out what the competition is doing differently.

Paid Placements:

Throughout the marketing cycle, we advertise on 104 different websites. Many of these have paid enhancements. We carefully choose which enhancements to pay for and update them on both a weekly and monthly basis based on our findings.

BERKSHIRE HATHAWAY HOMESERVICES

We’d Love to Hear From You

Dear Ken

At Manhattan Home Values, each valuation report is personally curated by one or both of our founders. They oversee every on-site visit and dedicate hours to crafting each report to provide you with the most precise valuation possible. In return, we kindly ask for a small favor – your feedback

We understand the importance of continuous improvement. Whether you have suggestions for enhancing our services or simply want to share your thoughts, we're here to listen and learn

Your feedback helps us refine our processes, ensuring we meet and exceed your expectations Please reach out to us, whether through email, text, or a quick phone callwe look forward to hearing from you

F O R C H O O S I N G B E R K S H I R E H A T H A W A Y H O M E S E R V I C E S A N D N E W Y O R K P R O P E R T I E S Brian and Apple MANHATTAN HOME VALUES
Thank You

Turn static files into dynamic content formats.

Create a flipbook
Issuu converts static files into: digital portfolios, online yearbooks, online catalogs, digital photo albums and more. Sign up and create your flipbook.